Двухэтажный дом 18х12 — идеальное решение для большой семьи
Планировка и архитектура частного дома — это не просто набор комнат и стен, а пространство, в котором вы создаёте свою жизненную историю. Представляем двухэтажный дом размером 18 на 12 метров с полезной площадью 218 м² — комфортный и функциональный проект, который позволит организовать домашний быт и досуг с максимальным удобством.
Этот дом отлично подходит как для постоянного проживания, так и для сезонного отдыха всей семьёй. Сочетание большой площади с продуманной планировкой позволяет разместить всё необходимое для комфортной жизни, от просторной гостиной до приватных спален. Такой дом станет отличным решением для тех, кто ценит простор и качественные архитектурные решения.
Общая характеристика и параметры дома
Перед изучением деталей важно представить ключевые характеристики дома, которые непосредственно влияют на комфорт и функциональность жилья.
| Параметр | Значение |
|---|---|
| Размеры дома | 18 x 12 м |
| Полезная площадь | 218 м² |
| Жилая площадь | 132,20 м² |
| Количество этажей | 2 |
| Количество спален | 4 |
| Количество санузлов | 2 |
| Площадь застройки | 175,30 м² |
| Площадь крыши | 255 м² |
| Угол наклона крыши | 37° |
| Высота здания | 8,20 м |
| Минимальные размеры участка | 25,70 x 20,40 м |
| Тип крыши | Двускатная, сложной формы |
| Опции | Камин, комната на первом этаже, терраса |
Стоимость строительства данного дома составляет примерно 8 065 470 рублей, что является привлекательным предложением для домов такого размера и функциональности. При этом цена включает качественные материалы и продуманную планировку, столь необходимых для долговечного и комфортного строительства.
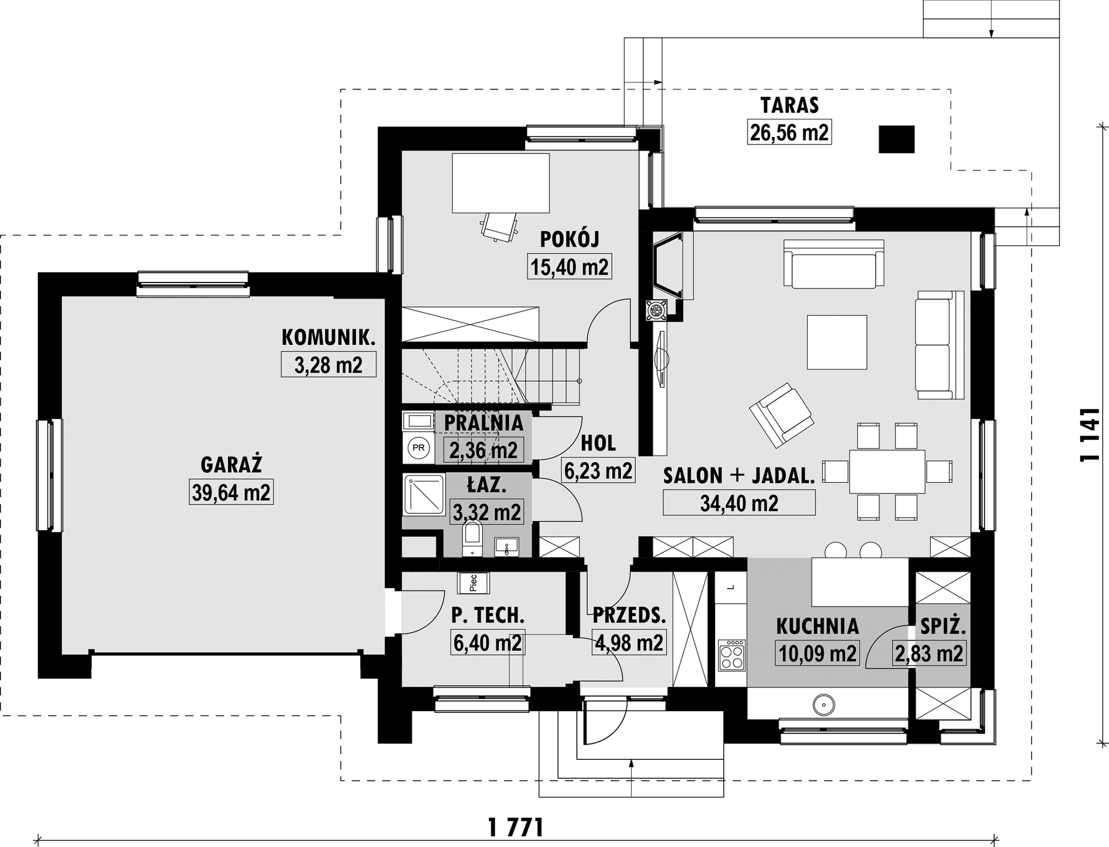
Планировка и зонирование пространства
Проект дома включает два полноценных этажа с общей полезной площадью 218 м², из которых 132,20 м² занимают жилые помещения. Такое соотношение говорит о грамотно организованном пространстве, где жилые комнаты оптимально сочетаются с хозяйственными и общественными зонами.
4 спальни это прекрасный выбор для большой семьи или для тех, кто хочет иметь гостевые и рабочие комнаты. Размещение санузлов — их два на весь дом — обеспечивает удобство и минимизирует очереди, что особенно важно при большом количестве жильцов.
Первый этаж: пространство для общения и комфорта
На первом этаже обычно располагается гостиная, объединённая с кухней и столовой зоной. В представленном проекте есть также отдельная комната, которая может использоваться как кабинет, гостевая, игровая или даже дополнительная спальня при необходимости.
Особое внимание уделено присутствию камина — это не только функциональный элемент отопления, но и украшение интерьера, создающее уют и атмосферу семейного очага. Благодаря террасе, которая является частью этого дома, летом можно устроить ужины на свежем воздухе или место для отдыха после активного дня.
Второй этаж: личное пространство и отдых
Второй этаж занимает четыре спальни, среди которых спальня хозяев дома с максимумом уюта и приватности. Такое количество комнат подходит для семьи, в которой есть дети, ведь каждый получит свой индивидуальный уголок.
Второй санузел на этом этаже позволяет избежать неудобств по утрам и вечером, особенно когда все члены семьи собираются домой.
Особенности крыши и конструктивные решения
Крыша дома двускатная, со сложной конфигурацией, что придает внешнему облику здания уникальность и эстетическую привлекательность. Площадь крыши составляет внушительные 255 м², что говорит о значительном свесе и защищенности фасадов дома от осадков.
Угол наклона в 37° — оптимальный для климатических условий средней полосы России, обеспечивающий эффективный сброс снега зимой и хорошую вентиляцию подкровельного пространства летом.
Высота здания в 8,20 м позволяет создать комфортную атмосферу внутри, сохраняя при этом пропорции и гармонию с внешней застройкой, где важно соблюдать размеры соседних участков.
Требования к участку для строительства
Для строительства такого дома требуется земельный участок минимальных размеров 25,70 м по ширине и 20,40 м по длине. Эти параметры обеспечивают необходимое отступление от границ соседних участков, создают комфортное пространство для обустройства придомовой территории и подъездных путей.
Зная минимальные габариты участка, вы легче сможете подыскать подходящий вариант земли для возведения такого дома, не боясь, что постройка не поместится на территории.
Основные преимущества проекта
- Простор и функциональность. Большая площадь и удобное разделение зон позволяют максимально комфортно организовать домашний быт.
- Современный дизайн крыши. Сложная форма двускатной крыши делает дом одновременно классическим и оригинальным.
- Оптимальная высота и размеры. Дом гармонично впишется в типичные коттеджные поселки и позволит сохранить ощущение пространства на участке.
- Дополнительные опции. Камин и терраса создадут неповторимую атмосферу уюта независимо от времени года.
- Разумная стоимость. Цена строительства около 8 миллионов рублей при таком размере дома — очень привлекательная для рынка жилья такого уровня.
Как разумно подойти к строительству дома 18х12 с площадью 218 м²
Построить двухэтажный дом сложной конфигурации — задача, требующая продуманного подхода и профессионального сопровождения. Рекомендуется пошагово рассмотреть каждую стадию — от выбора участка до отделки и благоустройства территории.
Выбор материалов и технологии строительства
Обратите внимание на прочность и теплоизоляцию материалов. Банальные ошибки при выборе кирпича, блоков или каркасных конструкций могут обернуться переплатами за отопление и снижением комфорта проживания.
Использование современных энергоэффективных технологий строительства позволит создать дом, в котором прохладно летом и тепло зимой при минимальных затратах на эксплуатацию.
Планирование инженерных систем
Создание качественной системы отопления, водоснабжения и канализации невозможно без предварительного проектирования. Наличие двух санузлов и камина требует тщательного расчета дымоходов и вентиляции.
Важно не забыть про электрические сети, освещение и точки розеток, чтобы минимизировать настойчивое использование удлинителей и создать домашний комфорт.
Финансовое планирование
Стоимость строительства в 8 065 470 рублей — ориентир, но необходимо учитывать дополнительные траты на отделочные материалы, ландшафтный дизайн и мебель.
Для правильного распределения бюджета разумно заранее составить список приоритетов и обязательно оставить небольшой запас на непредвиденные расходы.
Итоги: почему стоит выбрать дом размером 18х12 с площадью 218 м²
Двухэтажный дом с размерами 18 на 12 метров и площадью 218 м² — это замечательный вариант для тех, кто ищет простор, комфорт и практичность в сочетании с разумной стоимостью.
Такой проект отлично подходит для жизни большой семьи, обеспечивая как личное пространство для каждого, так и уютные общественные зоны для общения и отдыха. Уникальная крыша, продуманная планировка и дополнительные опции в виде камина и террасы делают этот дом настоящим семейным гнездом.
Планируя строительство, важно учесть все особенности проекта и качество исполнения, чтобы создавать действительно комфортное и долговечное жилье.



