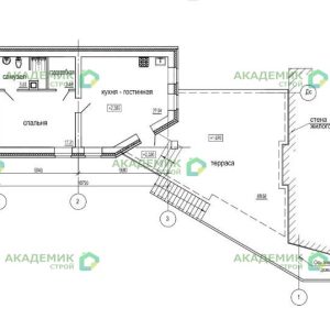
Особенности планировки двухэтажного дома размером 12х16 м
Проект двухэтажного дома размером 12 на 16 метров — это удачное сочетание компактности и эргономичности, которое пользуется заслуженной популярностью среди владельцев частной недвижимости. Такой дом оптимально подходит для семей, которые ценят простор и функциональность, но при этом не хотят тратить лишнее место на непрактичные площади.
Размеры 12х16 метров позволяют разместить на двух этажах не только необходимый набор жилых и технических помещений, но и обустроить комфортные зоны для отдыха и работы. Важно отметить, что общая площадь в 563.66 м² делает такой дом просторным, в нем найдется место для всей семьи, а также для приема гостей.
Двухэтажное решение привносит в проект дополнительный уровень комфорта: раздельное зонирование дневной и ночной жизни жильцов. Первый этаж традиционно отводится под общественные пространства — гостиную, кухню, столовую и гостевой санузел, а второй — под приватные комнаты и несколько санузлов. Это разграничение помогает создать атмосферу уюта и приватности.
Количество и расположение спален
Одной из ключевых характеристик данного проекта является наличие трех спален. Это оптимальное количество для семей с двумя-тремя детьми или для тех, кто часто принимает гостей. Размещение трех спален на втором этаже обеспечивает максимальное уединение — каждое помещение может быть использовано как для взрослых, так и для детей или близких родственников.
Кроме того, возможность разделения спален на детские и взрослые комнаты дает гибкость в планировании интерьера и выборе мебели. Как правило, в родительской спальне предусмотрено дополнительное пространство для гардеробной или мини-кабинета, что значительно расширяет функциональность жилища.
Комфорт и функционал санузлов
Количество санузлов в доме — важный фактор комфорта и удобства. В нашем проекте предусмотрено четыре санузла, что позволяет полностью исключить проблему очередей в утренние часы и во время больших семейных мероприятий.
Такая концентрация санузлов означает, что каждый из этажей оснащен как минимум двумя ванными комнатами, а также есть возможность оборудовать гостевой санузел на первом этаже. Это удобно не только для жителей дома, но и для гостей, сохраняя приватность семейных зон.
Размещение санузлов вблизи спален и общественных зон — залог того, что каждый член семьи сможет быстро и комфортно пользоваться этими удобствами. Продуманная планировка санитарных узлов также облегчает техническое обслуживание и уменьшает затраты на водо- и электроснабжение.
Преимущества двухэтажного дома без гаража
Хотя в представленном проекте не предусмотрен гараж, это не является недостатком, а скорее дает дополнительную свободу планирования ландшафта и фасада. Отсутствие встроенного гаража позволяет сделать акцент на зоне отдыха на участке, увеличивая площадь газона, сада или зоны барбекю.
Если автотранспорт есть, можно выделить отдельную открытую парковку или построить отдельное навесное сооружение рядом с домом. Это значительно упрощает конструкцию здания и уменьшает затраты на строительство, так как не требуется возведение объемной инженерной кладки и потолков с дополнительной нагрузкой.
Варианты дополнительного использования пространства без гаража
- Организация летней террасы или веранды с выходом из гостиной.
- Создание огорода, зон для отдыха с удобными гриль-площадками и лаунж-зонами.
- Возведение хозяйственных построек в отдельной зоне без визуального ущерба дизайну дома.
Эксплуатационные и архитектурные особенности
Дом 12х16 с общей площадью почти 564 м² относится к категории многокомнатных комфортабельных домов с продуманной архитектурой. Несмотря на свои размеры, он обеспечивает идеальный баланс между площадью жилых комнат и вспомогательных помещений, таких как санузлы, коридоры и технические зоны.
Строительство двухэтажного дома в заданных размерах позволяет сохранить компактность застройки, что особенно важно при ограниченных размерах земельного участка. Такой дом отлично вписывается в большинство типовых коттеджных поселков, не занимая слишком много места и оставляя возможность обустроить участок.
Архитектурные решения в таком проекте включают разумное использование оконных проемов для максимального естественного освещения, а также возможное использование разноуровневых перекрытий или мансардных этажей для увеличения полезной площади. Это делает дом одновременно современным и уютным.
Таблица: Основные параметры двухэтажного дома 12х16 м
| Параметр | Значение |
|---|---|
| Размеры дома | 12 x 16 м |
| Этажность | 2 этажа |
| Общая площадь | 563.66 м² |
| Количество спален | 3 |
| Количество санузлов | 4 |
| Наличие гаража | Нет |
Организация пространства и зонирование внутри дома
Внутреннее зонирование играет ключевую роль в создании домашнего комфорта. Благодаря двум этажам владельцы способны разделить дома на дневные и ночные зоны, что существенно повышает качество жизни и удобство пребывания в доме.
Первый этаж, как правило, содержит гостиную с уютной обеденной зоной, современную кухню и служебные помещения — котельную, кладовые, возможно, гардеробную. Присутствие гостевого санузла делает первый этаж комфортным для гостей.
Второй этаж отведен под три спальни и несколько полноценных санузлов, что создает пространство для уединения и приватности. Некоторые проекты предусматривают кабинет или комнату для творчества, что делает дом максимально универсальным.
Преимущества двух этажей в планировке
- Ясное разделение общественной и приватной зон.
- Оптимальное использование полезной площади.
- Повышение тепловой эффективности дома (теплый воздух поднимается вверх).
- Возможность создания комфортных видов из окон второго этажа.
Строительные материалы и технологии для дома 12х16 м
Выбор материалов для строительства дома напрямую влияет на его долговечность, энергосбережение и внешний облик. При проектировании такой площади наиболее оптимальными являются материалы, сочетающие в себе прочность, теплоизоляцию и эстетичность.
Часто для несущих конструкций используют кирпич или газобетон, поскольку они обеспечивают хорошую звукоизоляцию и устойчивость к погодным условиям. Для облицовки применяют фасадные панели, декоративную штукатурку или натуральный камень.
Кровля, по качеству и долговечности, должна обеспечивать надежную защиту от осадков и перепадов температур. Для этого идеально подходят металлочерепица или керамическая черепица, которые вместе с грамотным устройством гидроизоляции и утепления гарантируют долгий срок службы крыши.
Современные технологии повышения энергоэффективности
- Использование утеплителей с низким коэффициентом теплопроводности (минвата, пенополиуретан).
- Двойное остекление с энергосберегающими свойствами.
- Современные системы вентиляции с рекуперацией тепла.
- Интеллектуальные системы управления отоплением и освещением.
Перспективы использования дома 12х16 м
Двухэтажный дом размером 12х16 метров идеально подходит как для круглогодичного проживания большой семьи, так и для создания загородной резиденции. Возможность обустройства трех спален и четырех санузлов создают комфорт даже при обильных гостевых визитах.
Это пространство можно адаптировать под различные нужды: выделить зоны для работы и творческого отдыха, оборудовать пространство для детских игр или спортзала. Просторные коридоры и лестничная зона позволяют без труда перемещаться внутри дома, не создавая ощущения тесноты.
Дополнительным преимуществом является возможность дальнейшей индивидуальной отделки интерьеров, что сделает дом уникальным и максимально отвечающим потребностям конкретной семьи.
Чек-лист преимуществ двухэтажного дома 12х16 м
- Компактные габариты при большой жилой площади.
- Рациональное планирование с учетом всех потребностей семьи.
- Высокий уровень комфорта благодаря множеству санузлов.
- Оптимальное соотношение цена/качество при строительстве и эксплуатации.
- Гибкость в выборе внешнего и внутреннего дизайна.






























































































