Двухэтажный дом 14x16 - 234.8 м2 за руб.

ID-56736

Стоимость дома 8119200 руб.
154 м2 Полезная
площадь
14 x 16 м Размеры
2 этажа Этажей
26 м2 Террасы
и балконы
0Без
гаража
4 Количество
спален
3 Количество
санузлов

Планировки

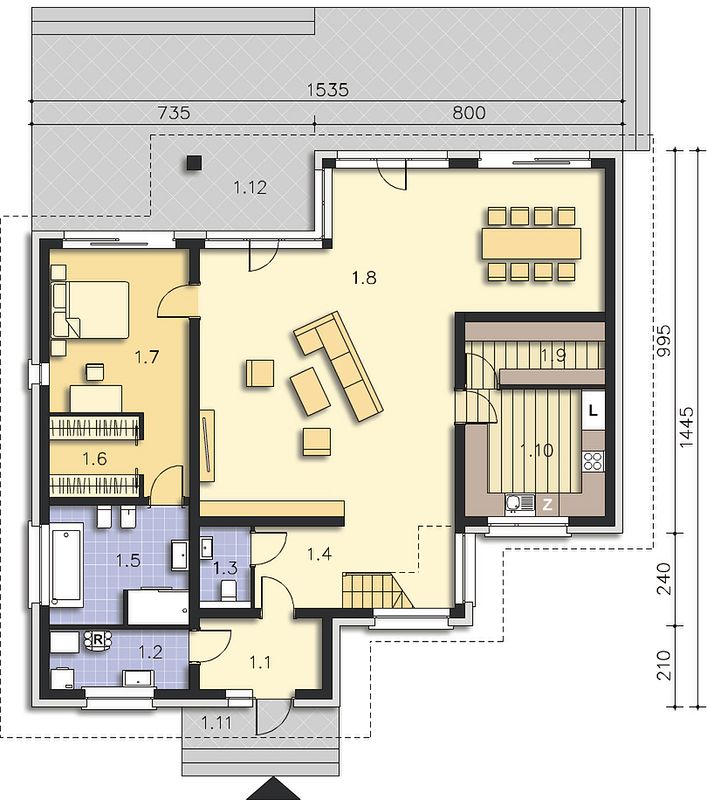
План первого этажа

floor image
  • 1. Прихожая 5,77 m²
  • 2. Котельная 7,28 m²
  • 3. Туалет 2,83 m²
  • 4. Коридор 9,68 m² (11,78 m²)
  • 5. Ванная комната 9,32 m²
  • 6. Гардероб 4,90 m²
  • 7. Комната 17,97 m²
  • 8. Гостиная + столовая 67 m²
  • 9. Кладовая 5,79 m²
  • 10. Кухня 11,84 m²
  • 11. Лестничная площадка (4,48 m²)
  • 12. Терраса (66,80 m²)
  • План первого этажа 142,38 m²

План мансарды

floor image
  • 1. Лестница 3,80 m²
  • 2. Коридор 10,17 m²
  • 3. Ванная комната 7,77 m²
  • 4. Кладовая 3,67 m² (8,50 m²)
  • 5. Комната 13,38 m² (20,31 m²)
  • 6. Комната 16,87 m²
  • 7. Гардероб 4,27 m²
  • 8. Комната 13,45 m² (20,38 m²)
  • 9. Гардероб 1,58 m² (3,36 m²)
  • 10. Балкон 17,46 m² (22,90 m²)
  • План мансарды 92,42 m²

Разрезы

Вертикальный разрез
Вертикальный разрез

Фасады

Передний
Задний
Левый
Правый
Передний
Задний
Левый
Правый

Подробная информация

Жилая площадь
217,34 m²
icon

Сумма площади всех жилых помещений, за вычетом пов. гараж, котельная, чердак, подвал. Учитывается в 100%, для помещений высотой более 2,2 м, в 50% для помещений с высотой 2,2-1,4 м и не включается для более низких помещений (меньше 1,4 м).

Площадь застройки
181,87 m²
icon

Площадь застройки здания определяется как площадь горизонтального сечения по внешнему обводу здания на уровне цоколя, включая выступающие части.

Площадь нетто
262,81 m²
icon

Площадь всех помещений в здании, измеренная на высоте пола.

Объем брутто
1 153 m³
icon

Как правило, это сумма объема всех помещений в здании, подсчитанных по внешнему контуру стены (с утеплением).

Угол наклона крыши
35°
icon

Наклон ската крыши в градусах. Внимание! В некоторых проектах возникает более чем один наклон крыши.

Высота здания
9,11 m
icon

Высота измеряется от поверхности земли до самой высокой точки кровли (конька), за исключением дымоходов.

Мин. ширина участка
22,40 m
icon

Наименьшая возможная ширина участка, необходимая для строительства выбранного дома. Состоит из длины фасада дома плюс с обеих сторон три метра отступ.

Мин. длина участка
23,70 m
icon

Наименьшая возможная длина участка, необходимая для строительства выбранного дома. Состоит из длины фасада дома плюс с обеих сторон три метра отступ.

Материалы и опции
Общие
Цена, руб.
Площадь м²
290
Площадь от и до
Ежемесячный платёж, руб
Количество спален
4
Гараж
0
Количество санузлов
3
Тип крыши
Ширина
14
Глубина
16

Площади дома

№ п/п Наименование Ед. из. Строительная площадь Полезная площадь
1 1 этаж м2 175.45 142.38
2 2 этаж м2 113.89 92.42
3 Итого м2 289.34 234.8

ПРИГЛАШАЕМ НА ДЕНЬ ОТКРЫТЫХ ДВЕРЕЙ СТРОЯЩЕГОСЯ ДОМА

ХОЧУ ПОЕХАТЬ
День открытых дверей

Калькулятор опций

0

В ипотеку от 26 090 ₽/мес.

Фундамент
stdClass Object ( [id] => 1 [attribute_id] => 1 [name] => Ленточный монолитный ж/б [material_modifier] => 1 [work_modifier] => 1 [options] => Array ( [0] => размер 200 х 700 мм [1] => размер 300 х 900 мм [2] => размер 400 х 1 000 мм [3] => размер 500 х 1 100 мм [4] => размер 600 х 1 200 мм ) [days] => [20,21,22,25,30] [material_price] => [2823,3630,4475,5210,12047] [work_price] => [2154,2826,3731,4577,5293] [image] => https://akademik-stroy.ru/wp-content/uploads/materials/lentochnyj-monolitnyj-zh-b.jpg [area_modifier] => 175.45 [parent_name] => Фундамент [parent_id] => 1 [material_sum] => 624072 [work_sum] => 396815 [total_sum] => 1020887 [total_days] => 20 [display_material_sum] => 624 072 [display_work_sum] => 396 815 [display_total_sum] => 1 020 887 ) 1
1 020 887
Работа:396 815
Материалы:624 072
Дни:20
stdClass Object ( [id] => 2 [attribute_id] => 1 [name] => Забивные Ж/Б сваи [material_modifier] => 1 [work_modifier] => 1 [options] => Array ( [0] => 150х150х3000мм [1] => 150х150х4000мм [2] => 200х200х3000мм [3] => 200х200х4000мм [4] => 200х200х5000мм [5] => 200х200х6000мм ) [days] => [2,2,2,2,2,2] [material_price] => [1990,2850,3255,4360,5120,6837] [work_price] => [1002,1185,1336,1438,1574,1839] [image] => https://akademik-stroy.ru/wp-content/uploads/materials/zabivnye-zh-b-svai.png [area_modifier] => 175.45 [parent_name] => Фундамент [parent_id] => 1 [material_sum] => 439923 [work_sum] => 184591 [total_sum] => 624514 [total_days] => 2 [display_material_sum] => 439 923 [display_work_sum] => 184 591 [display_total_sum] => 624 514 ) 1
624 514
Работа:184 591
Материалы:439 923
Дни:2
stdClass Object ( [id] => 71 [attribute_id] => 1 [name] => Свайно-ростверковый ж/б [material_modifier] => 1 [work_modifier] => 1 [options] => Array ( [0] => ростверк 200х300 мм [1] => ростверк 300х600 мм [2] => ростверк 400х900 мм [3] => ростверк 500х1200 мм ) [days] => [20,23,25,27] [material_price] => [3018,3474,7109,9792] [work_price] => [2024,3012,5635,7022] [image] => https://akademik-stroy.ru/wp-content/uploads/materials/svajno-rostverkovyj-monolitnyj-zh-b-3.png [area_modifier] => 175.45 [parent_name] => Фундамент [parent_id] => 1 [material_sum] => 667180 [work_sum] => 372866 [total_sum] => 1040046 [total_days] => 20 [display_material_sum] => 667 180 [display_work_sum] => 372 866 [display_total_sum] => 1 040 046 ) 1
1 040 046
Работа:372 866
Материалы:667 180
Дни:20
stdClass Object ( [id] => 72 [attribute_id] => 1 [name] => Монолитная ж/б плита [material_modifier] => 1 [work_modifier] => 1 [options] => Array ( [0] => 200 мм [1] => 300 мм [2] => 400 мм [3] => 500 мм [4] => 600 мм ) [days] => [30,33,35,37,40] [material_price] => [5348,8555,12788,14388,15189] [work_price] => [4314,4881,7037,8061,10230] [image] => https://akademik-stroy.ru/wp-content/uploads/materials/monolitnaya-zhb-plita.png [area_modifier] => 175.45 [parent_name] => Фундамент [parent_id] => 1 [material_sum] => 1182266 [work_sum] => 794736 [total_sum] => 1977002 [total_days] => 30 [display_material_sum] => 1 182 266 [display_work_sum] => 794 736 [display_total_sum] => 1 977 002 ) 1
1 977 002
Работа:794 736
Материалы:1 182 266
Дни:30
stdClass Object ( [id] => 73 [attribute_id] => 1 [name] => Утепленная шведская плита [material_modifier] => 1 [work_modifier] => 1 [options] => Array ( [0] => 200 мм [1] => 300 мм [2] => 400 мм [3] => 500 мм [4] => 600 мм ) [days] => [32,37,39,42,45] [material_price] => [10249,12692,13760,14936,16230] [work_price] => [5960,7337,8072,8878,9765] [image] => https://akademik-stroy.ru/wp-content/uploads/materials/uteplennaya-shvedskaya-plita.jpg [area_modifier] => 175.45 [parent_name] => Фундамент [parent_id] => 1 [material_sum] => 2265716 [work_sum] => 1097966 [total_sum] => 3363682 [total_days] => 32 [display_material_sum] => 2 265 716 [display_work_sum] => 1 097 966 [display_total_sum] => 3 363 682 ) 1
3 363 682
Работа:1 097 966
Материалы:2 265 716
Дни:32
stdClass Object ( [id] => 75 [attribute_id] => 1 [name] => Ленточный из ФБС [material_modifier] => 1 [work_modifier] => 1 [options] => Array ( [0] => толщ. 300 мм [1] => толщ. 400 мм [2] => толщ. 500 мм [3] => толщ. 600 мм ) [days] => [20,20,20,20] [material_price] => [3675,4902,6126,7350] [work_price] => [2451,3264,4083,4902] [image] => https://akademik-stroy.ru/wp-content/uploads/materials/lentochnyj-iz-fbs.png [area_modifier] => 175.45 [parent_name] => Фундамент [parent_id] => 1 [material_sum] => 812421 [work_sum] => 451529 [total_sum] => 1263950 [total_days] => 20 [display_material_sum] => 812 421 [display_work_sum] => 451 529 [display_total_sum] => 1 263 950 ) 1
1 263 950
Работа:451 529
Материалы:812 421
Дни:20
stdClass Object ( [id] => 76 [attribute_id] => 1 [name] => Цокольный этаж из ФБС [material_modifier] => 1 [work_modifier] => 1 [options] => Array ( [0] => толщ. 300 мм [1] => толщ. 400 мм [2] => толщ. 500 мм [3] => толщ. 600 мм ) [days] => [30,32,34,36] [material_price] => [20916,23299,26680,29060] [work_price] => [17524,18700,19873,21046] [image] => https://akademik-stroy.ru/wp-content/uploads/materials/cokolnyj-ehtazh-iz-fbs.jpg [area_modifier] => 175.45 [parent_name] => Фундамент [parent_id] => 1 [material_sum] => 4623837 [work_sum] => 3228315 [total_sum] => 7852152 [total_days] => 30 [display_material_sum] => 4 623 837 [display_work_sum] => 3 228 315 [display_total_sum] => 7 852 152 ) 1
7 852 152
Работа:3 228 315
Материалы:4 623 837
Дни:30
stdClass Object ( [id] => 77 [attribute_id] => 1 [name] => Цокольный этаж монолитный ж/б [material_modifier] => 1 [work_modifier] => 1 [options] => Array ( [0] => толщ. 200 мм [1] => толщ. 300 мм [2] => толщ. 400 мм [3] => толщ. 500 мм [4] => толщ. 600 мм ) [days] => [40,42,44,46,48] [material_price] => [25421,29148,32275,35602,37326] [work_price] => [20441,21907,23375,24841,26306] [image] => https://akademik-stroy.ru/wp-content/uploads/materials/cokolnyj-etazh-zh-b.jpg [area_modifier] => 175.45 [parent_name] => Фундамент [parent_id] => 1 [material_sum] => 5619744 [work_sum] => 3765692 [total_sum] => 9385436 [total_days] => 40 [display_material_sum] => 5 619 744 [display_work_sum] => 3 765 692 [display_total_sum] => 9 385 436 ) 1
9 385 436
Работа:3 765 692
Материалы:5 619 744
Дни:40
stdClass Object ( [id] => 191 [attribute_id] => 1 [name] => Винтовые сваи [material_modifier] => 1 [work_modifier] => 1 [options] => Array ( [0] => 57х200мм [1] => 76х250мм [2] => 108х300мм [3] => 133х350мм ) [days] => [1,1,2,2] [material_price] => [1200,1300,1450,1600] [work_price] => [400,600,900,1100] [image] => https://akademik-stroy.ru/wp-content/uploads/materials/vintovye-svai.png [area_modifier] => 175.45 [parent_name] => Фундамент [parent_id] => 1 [material_sum] => 265280 [work_sum] => 73689 [total_sum] => 338969 [total_days] => 1 [display_material_sum] => 265 280 [display_work_sum] => 73 689 [display_total_sum] => 338 969 ) 1
338 969
Работа:73 689
Материалы:265 280
Дни:1
Перекрытие цоколя
stdClass Object ( [id] => 3 [attribute_id] => 2 [name] => Деревянные балки [material_modifier] => 1 [work_modifier] => 1 [options] => Array ( [0] => без утепления [1] => утепление 200 мм [2] => утепление 250 мм [3] => утепление 300 мм [4] => утепление 350 мм [5] => утепление 400 мм [6] => утепление 450 мм [7] => утепление 500 мм ) [days] => [8,9,9,9,11,12,13,14] [material_price] => [1634,2042,2344,2947,3149,3652,3354,3557] [work_price] => [1230,1339,1393,1426,1460,1513,1587,1620] [image] => https://akademik-stroy.ru/wp-content/uploads/materials/derevyannye-balki.png [area_modifier] => 175.45 [parent_name] => Перекрытие цоколя [parent_id] => 2 [material_sum] => 361223 [work_sum] => 226594 [total_sum] => 587817 [total_days] => 8 [display_material_sum] => 361 223 [display_work_sum] => 226 594 [display_total_sum] => 587 817 ) 1
587 817
Работа:226 594
Материалы:361 223
Дни:8
stdClass Object ( [id] => 4 [attribute_id] => 2 [name] => Сборные ж/б плиты [material_modifier] => 1 [work_modifier] => 1 [options] => Array ( [0] => без утепления [1] => утепление 150мм [2] => утепление 200мм [3] => утепление 250мм [4] => утепление 300мм [5] => утепление 350мм [6] => утепление 400мм [7] => утепление 450мм [8] => утепление 500мм ) [days] => [13,15,15,15,15,15,15,15,15] [material_price] => [3067,5577,5928,6679,7730,8782,9833,10884,11935] [work_price] => [1520,1956,2102,2247,2392,2537,2684,2829,2974] [image] => https://akademik-stroy.ru/wp-content/uploads/materials/sbornye-zh-b-plity-2.jpg [area_modifier] => 175.45 [parent_name] => Перекрытие цоколя [parent_id] => 2 [material_sum] => 678012 [work_sum] => 280018 [total_sum] => 958030 [total_days] => 13 [display_material_sum] => 678 012 [display_work_sum] => 280 018 [display_total_sum] => 958 030 ) 1
958 030
Работа:280 018
Материалы:678 012
Дни:13
stdClass Object ( [id] => 78 [attribute_id] => 2 [name] => Монолитная ж/б плита [material_modifier] => 1 [work_modifier] => 1 [options] => Array ( [0] => без утепления [1] => утепление 150 мм [2] => утепление 200 мм [3] => утепление 250 мм [4] => утепление 300 мм [5] => утепление 350 мм [6] => утепление 400 мм [7] => утепление 450 мм [8] => утепление 500 мм ) [days] => [18,20,20,20,20,20,20,20,20] [material_price] => [4837,6572,7224,7375,79426,8177,8728,9180,10031] [work_price] => [3348,3921,4112,4302,4493,4684,4875,5066,5256] [image] => https://akademik-stroy.ru/wp-content/uploads/materials/monolitnaya-zh-b-plita-2.jpg [area_modifier] => 175.45 [parent_name] => Перекрытие цоколя [parent_id] => 2 [material_sum] => 1069301 [work_sum] => 616777 [total_sum] => 1686078 [total_days] => 18 [display_material_sum] => 1 069 301 [display_work_sum] => 616 777 [display_total_sum] => 1 686 078 ) 1
1 686 078
Работа:616 777
Материалы:1 069 301
Дни:18
Стены 1 этаж (несущие)
stdClass Object ( [id] => 6 [attribute_id] => 3 [name] => Пеноблок [material_modifier] => 1 [work_modifier] => 1 [options] => Array ( [0] => 300 мм [1] => 400 мм [2] => 500 мм [3] => 600 мм ) [days] => [29,31,34,39] [material_price] => [3000,4000,4500,4937] [work_price] => [5033,5805,6400,8710] [image] => https://akademik-stroy.ru/wp-content/uploads/materials/penoblok.jpg [area_modifier] => 175.45 [parent_name] => Стены 1 этаж (несущие) [parent_id] => 3 [material_sum] => 663201 [work_sum] => 927192 [total_sum] => 1590393 [total_days] => 29 [display_material_sum] => 663 201 [display_work_sum] => 927 192 [display_total_sum] => 1 590 393 ) 1
1 590 393
Работа:927 192
Материалы:663 201
Дни:29
stdClass Object ( [id] => 79 [attribute_id] => 3 [name] => Керамический блок [material_modifier] => 1 [work_modifier] => 1 [options] => Array ( [0] => 380 мм [1] => 380 мм Thermo [2] => 440 мм [3] => 510 мм ) [days] => [23,23,24,25] [material_price] => [4510,5098,6093,8013] [work_price] => [4737,4937,5903,6958] [image] => https://akademik-stroy.ru/wp-content/uploads/materials/keramicheskij-blok.jpg [area_modifier] => 175.45 [parent_name] => Стены 1 этаж (несущие) [parent_id] => 3 [material_sum] => 997012 [work_sum] => 872662 [total_sum] => 1869674 [total_days] => 23 [display_material_sum] => 997 012 [display_work_sum] => 872 662 [display_total_sum] => 1 869 674 ) 1
1 869 674
Работа:872 662
Материалы:997 012
Дни:23
stdClass Object ( [id] => 80 [attribute_id] => 3 [name] => Кирпич [material_modifier] => 1 [work_modifier] => 1 [options] => Array ( [0] => Кирпич 250 мм [1] => Кирпич 380 мм [2] => Кирпич 510 мм [3] => Кирпич 640 мм [4] => Кирпич 770 мм ) [days] => [30,30,31,33,36] [material_price] => [5500,7142,9206,10171,12235] [work_price] => [8736,10041,12018,15240,18462] [image] => https://akademik-stroy.ru/wp-content/uploads/materials/kirpich.jpg [area_modifier] => 175.45 [parent_name] => Стены 1 этаж (несущие) [parent_id] => 3 [material_sum] => 1215869 [work_sum] => 1609368 [total_sum] => 2825237 [total_days] => 30 [display_material_sum] => 1 215 869 [display_work_sum] => 1 609 368 [display_total_sum] => 2 825 237 ) 1
2 825 237
Работа:1 609 368
Материалы:1 215 869
Дни:30
stdClass Object ( [id] => 81 [attribute_id] => 3 [name] => Монолитные [material_modifier] => 1 [work_modifier] => 1 [options] => Array ( [0] => 150 мм [1] => 200 мм [2] => 250 мм [3] => 300 мм [4] => 350 мм [5] => 400 мм ) [days] => [45,46,47,49,50,53] [material_price] => [6545,7876,10175,12011,13908,15204] [work_price] => [5106,6444,7698,8552,9807,11461] [image] => https://akademik-stroy.ru/wp-content/uploads/materials/monolitnye.jpg [area_modifier] => 175.45 [parent_name] => Стены 1 этаж (несущие) [parent_id] => 3 [material_sum] => 1446884 [work_sum] => 940640 [total_sum] => 2387524 [total_days] => 45 [display_material_sum] => 1 446 884 [display_work_sum] => 940 640 [display_total_sum] => 2 387 524 ) 1
2 387 524
Работа:940 640
Материалы:1 446 884
Дни:45
stdClass Object ( [id] => 82 [attribute_id] => 3 [name] => Клееный брус [material_modifier] => 1 [work_modifier] => 1 [options] => Array ( [0] => 160 мм [1] => 175 мм [2] => 200 мм [3] => 215 мм [4] => 240 мм [5] => 270 мм [6] => 282 мм ) [days] => [24,28,32,37,40,42,48] [material_price] => [16975,18773,19950,20545,21599,22159,23275] [work_price] => [4806,5287,5815,6397,7036,7740,8514] [image] => https://akademik-stroy.ru/wp-content/uploads/materials/kleenyj-brus.jpg [area_modifier] => 175.45 [parent_name] => Стены 1 этаж (несущие) [parent_id] => 3 [material_sum] => 3752612 [work_sum] => 885373 [total_sum] => 4637985 [total_days] => 24 [display_material_sum] => 3 752 612 [display_work_sum] => 885 373 [display_total_sum] => 4 637 985 ) 1
4 637 985
Работа:885 373
Материалы:3 752 612
Дни:24
stdClass Object ( [id] => 83 [attribute_id] => 3 [name] => Каркасные [material_modifier] => 1 [work_modifier] => 1 [options] => Array ( [0] => 150 мм [1] => 200 мм [2] => 250 мм [3] => 300 мм ) [days] => [15,16,17,18] [material_price] => [2379,2639,2898,3258] [work_price] => [2418,2686,2985,3716] [image] => https://akademik-stroy.ru/wp-content/uploads/materials/karkasnye.jpg [area_modifier] => 175.45 [parent_name] => Стены 1 этаж (несущие) [parent_id] => 3 [material_sum] => 525918 [work_sum] => 445450 [total_sum] => 971368 [total_days] => 15 [display_material_sum] => 525 918 [display_work_sum] => 445 450 [display_total_sum] => 971 368 ) 1
971 368
Работа:445 450
Материалы:525 918
Дни:15
stdClass Object ( [id] => 84 [attribute_id] => 3 [name] => СИП-панели [material_modifier] => 1 [work_modifier] => 1 [options] => Array ( [0] => 120 мм [1] => 170 мм [2] => 220 мм ) [days] => [7,7,7] [material_price] => [1210,1856,2292] [work_price] => [1410,1551,1706] [image] => https://akademik-stroy.ru/wp-content/uploads/materials/sip-paneli.jpg [area_modifier] => 175.45 [parent_name] => Стены 1 этаж (несущие) [parent_id] => 3 [material_sum] => 267491 [work_sum] => 259754 [total_sum] => 527245 [total_days] => 7 [display_material_sum] => 267 491 [display_work_sum] => 259 754 [display_total_sum] => 527 245 ) 1
527 245
Работа:259 754
Материалы:267 491
Дни:7
stdClass Object ( [id] => 85 [attribute_id] => 3 [name] => Сухой брус [material_modifier] => 1 [work_modifier] => 1 [options] => Array ( [0] => 150 мм [1] => 180 мм [2] => 200 мм ) [days] => [7,8,9] [material_price] => [6010,7190,8709] [work_price] => [3204,3845,4229] [image] => https://akademik-stroy.ru/wp-content/uploads/materials/suhoj-brus.jpg [area_modifier] => 175.45 [parent_name] => Стены 1 этаж (несущие) [parent_id] => 3 [material_sum] => 1328613 [work_sum] => 590249 [total_sum] => 1918862 [total_days] => 7 [display_material_sum] => 1 328 613 [display_work_sum] => 590 249 [display_total_sum] => 1 918 862 ) 1
1 918 862
Работа:590 249
Материалы:1 328 613
Дни:7
stdClass Object ( [id] => 86 [attribute_id] => 3 [name] => Профилированный брус [material_modifier] => 1 [work_modifier] => 1 [options] => Array ( [0] => 150 мм [1] => 180 мм [2] => 200 мм ) [days] => [7,8,9] [material_price] => [8190,9228,10051] [work_price] => [3845,4614,5075] [image] => https://akademik-stroy.ru/wp-content/uploads/materials/profilirovannyj-brus.jpg [area_modifier] => 175.45 [parent_name] => Стены 1 этаж (несущие) [parent_id] => 3 [material_sum] => 1810539 [work_sum] => 708336 [total_sum] => 2518875 [total_days] => 7 [display_material_sum] => 1 810 539 [display_work_sum] => 708 336 [display_total_sum] => 2 518 875 ) 1
2 518 875
Работа:708 336
Материалы:1 810 539
Дни:7
stdClass Object ( [id] => 87 [attribute_id] => 3 [name] => Оцилиндрованное бревно [material_modifier] => 1 [work_modifier] => 1 [options] => Array ( [0] => 180 мм [1] => 220 мм [2] => 260 мм [3] => 320 мм ) [days] => [7,8,9,10] [material_price] => [75190,9532,10868,13116] [work_price] => [3845,4691,5535,6863] [image] => https://akademik-stroy.ru/wp-content/uploads/materials/ocilindrovannoe-brevno-1.jpg [area_modifier] => 175.45 [parent_name] => Стены 1 этаж (несущие) [parent_id] => 3 [material_sum] => 16622028 [work_sum] => 708336 [total_sum] => 17330364 [total_days] => 7 [display_material_sum] => 16 622 028 [display_work_sum] => 708 336 [display_total_sum] => 17 330 364 ) 1
17 330 364
Работа:708 336
Материалы:16 622 028
Дни:7
stdClass Object ( [id] => 88 [attribute_id] => 3 [name] => Срубы [material_modifier] => 1 [work_modifier] => 1 [options] => Array ( [0] => 260 мм [1] => 320 мм [2] => 360 мм [3] => 400 мм [4] => 500 мм ) [days] => [7,8,9,10,11] [material_price] => [37975,46709,52314,58069,73167] [work_price] => [4806,5911,6621,7349,9260] [image] => https://akademik-stroy.ru/wp-content/uploads/materials/sruby.jpg [area_modifier] => 175.45 [parent_name] => Стены 1 этаж (несущие) [parent_id] => 3 [material_sum] => 8395019 [work_sum] => 885373 [total_sum] => 9280392 [total_days] => 7 [display_material_sum] => 8 395 019 [display_work_sum] => 885 373 [display_total_sum] => 9 280 392 ) 1
9 280 392
Работа:885 373
Материалы:8 395 019
Дни:7
stdClass Object ( [id] => 174 [attribute_id] => 3 [name] => Брус [material_modifier] => 1 [work_modifier] => 1 [options] => Array ( [0] => 150 мм [1] => 180 мм [2] => 200 мм ) [days] => [7,8,9] [material_price] => [5127,6152,7367] [work_price] => [1602,1922,2115] [image] => https://akademik-stroy.ru/wp-content/uploads/materials/brus.jpg [area_modifier] => 175.45 [parent_name] => Стены 1 этаж (несущие) [parent_id] => 3 [material_sum] => 1133411 [work_sum] => 295124 [total_sum] => 1428535 [total_days] => 7 [display_material_sum] => 1 133 411 [display_work_sum] => 295 124 [display_total_sum] => 1 428 535 ) 1
1 428 535
Работа:295 124
Материалы:1 133 411
Дни:7
stdClass Object ( [id] => 175 [attribute_id] => 3 [name] => Газобетон [material_modifier] => 1 [work_modifier] => 1 [options] => Array ( [0] => 300 мм [1] => 375 мм [2] => 400 мм [3] => 500 мм [4] => 600 мм ) [days] => [29,31,35,37,44] [material_price] => [4298,5573,6356,7288,9119] [work_price] => [4538,5251,5926,6733,7195] [image] => https://akademik-stroy.ru/wp-content/uploads/materials/gazobeton.jpg [area_modifier] => 175.45 [parent_name] => Стены 1 этаж (несущие) [parent_id] => 3 [material_sum] => 950146 [work_sum] => 836002 [total_sum] => 1786148 [total_days] => 29 [display_material_sum] => 950 146 [display_work_sum] => 836 002 [display_total_sum] => 1 786 148 ) 1
1 786 148
Работа:836 002
Материалы:950 146
Дни:29
stdClass Object ( [id] => 176 [attribute_id] => 3 [name] => Блок [material_modifier] => 1 [work_modifier] => 1 [options] => Array ( [0] => 300 мм [1] => 375 мм [2] => 400 мм [3] => 500 мм [4] => 600 мм ) [days] => [29,31,35,37,44] [material_price] => [2698,3973,4356,6588,7119] [work_price] => [5038,5851,6426,8733,9195] [image] => https://akademik-stroy.ru/wp-content/uploads/materials/blok.jpg [area_modifier] => 175.45 [parent_name] => Стены 1 этаж (несущие) [parent_id] => 3 [material_sum] => 596439 [work_sum] => 928113 [total_sum] => 1524552 [total_days] => 29 [display_material_sum] => 596 439 [display_work_sum] => 928 113 [display_total_sum] => 1 524 552 ) 1
1 524 552
Работа:928 113
Материалы:596 439
Дни:29
stdClass Object ( [id] => 177 [attribute_id] => 3 [name] => Газосиликатный блок [material_modifier] => 1 [work_modifier] => 1 [options] => Array ( [0] => 300 мм [1] => 375 мм [2] => 400 мм [3] => 500 мм [4] => 600 мм ) [days] => [29,31,35,37,44] [material_price] => [4298,5573,6356,7288,9119] [work_price] => [4538,5251,5926,6733,7195] [image] => https://akademik-stroy.ru/wp-content/uploads/materials/gazosilikatnyj-blok.jpg [area_modifier] => 175.45 [parent_name] => Стены 1 этаж (несущие) [parent_id] => 3 [material_sum] => 950146 [work_sum] => 836002 [total_sum] => 1786148 [total_days] => 29 [display_material_sum] => 950 146 [display_work_sum] => 836 002 [display_total_sum] => 1 786 148 ) 1
1 786 148
Работа:836 002
Материалы:950 146
Дни:29
stdClass Object ( [id] => 178 [attribute_id] => 3 [name] => Керамзитобетонный блок [material_modifier] => 1 [work_modifier] => 1 [options] => Array ( [0] => 300 мм [1] => 375 мм [2] => 400 мм [3] => 500 мм [4] => 600 мм ) [days] => [23,23,24,25,28] [material_price] => [3641,4298,5693,7613,9612] [work_price] => [5737,5737,6903,7958,8901] [image] => https://akademik-stroy.ru/wp-content/uploads/materials/keramzitobetonnyj-blok.jpg [area_modifier] => 175.45 [parent_name] => Стены 1 этаж (несущие) [parent_id] => 3 [material_sum] => 804905 [work_sum] => 1056884 [total_sum] => 1861789 [total_days] => 23 [display_material_sum] => 804 905 [display_work_sum] => 1 056 884 [display_total_sum] => 1 861 789 ) 1
1 861 789
Работа:1 056 884
Материалы:804 905
Дни:23
stdClass Object ( [id] => 179 [attribute_id] => 3 [name] => Деревянные [material_modifier] => 1 [work_modifier] => 1 [options] => Array ( [0] => 180 мм [1] => 220 мм [2] => 260 мм [3] => 320 мм ) [days] => [7,8,9,10] [material_price] => [7950,9458,11961,14472] [work_price] => [4037,4925,5812,7207] [image] => https://akademik-stroy.ru/wp-content/uploads/materials/derevyannye.jpg [area_modifier] => 175.45 [parent_name] => Стены 1 этаж (несущие) [parent_id] => 3 [material_sum] => 1757483 [work_sum] => 743706 [total_sum] => 2501189 [total_days] => 7 [display_material_sum] => 1 757 483 [display_work_sum] => 743 706 [display_total_sum] => 2 501 189 ) 1
2 501 189
Работа:743 706
Материалы:1 757 483
Дни:7
stdClass Object ( [id] => 181 [attribute_id] => 3 [name] => Камень [material_modifier] => 1 [work_modifier] => 1 [options] => Array ( [0] => 300 мм [1] => 400 мм [2] => 500 мм [3] => 600 мм ) [days] => [25,27,31,34] [material_price] => [5262,6844,8330,9815] [work_price] => [8331,9135,10427,11069] [image] => https://akademik-stroy.ru/wp-content/uploads/materials/kamen.jpg [area_modifier] => 175.45 [parent_name] => Стены 1 этаж (несущие) [parent_id] => 3 [material_sum] => 1163255 [work_sum] => 1534758 [total_sum] => 2698013 [total_days] => 25 [display_material_sum] => 1 163 255 [display_work_sum] => 1 534 758 [display_total_sum] => 2 698 013 ) 1
2 698 013
Работа:1 534 758
Материалы:1 163 255
Дни:25
stdClass Object ( [id] => 182 [attribute_id] => 3 [name] => Каркасно-щитовые [material_modifier] => 1 [work_modifier] => 1 [options] => Array ( [0] => 150 мм [1] => 200 мм [2] => 250 мм [3] => 300 мм [4] => 350 мм [5] => 400 мм ) [days] => [15,16,17,18,19,20] [material_price] => [2379,2639,2898,3458,3601,4175] [work_price] => [2538,2820,3134,3483,4062,5642] [image] => https://akademik-stroy.ru/wp-content/uploads/materials/karkasno-shchitovye.jpg [area_modifier] => 175.45 [parent_name] => Стены 1 этаж (несущие) [parent_id] => 3 [material_sum] => 525918 [work_sum] => 467557 [total_sum] => 993475 [total_days] => 15 [display_material_sum] => 525 918 [display_work_sum] => 467 557 [display_total_sum] => 993 475 ) 1
993 475
Работа:467 557
Материалы:525 918
Дни:15
stdClass Object ( [id] => 183 [attribute_id] => 3 [name] => Рубленные [material_modifier] => 1 [work_modifier] => 1 [options] => Array ( [0] => 150 мм [1] => 200 мм [2] => 250 мм [3] => 300 мм [4] => 350 мм [5] => 400 мм ) [days] => [15,16,17,18,17,18] [material_price] => [35950,50267,60583,75900,80217,100533] [work_price] => [9612,12816,16020,19224,22428,25632] [image] => https://akademik-stroy.ru/wp-content/uploads/materials/rublennye.jpg [area_modifier] => 175.45 [parent_name] => Стены 1 этаж (несущие) [parent_id] => 3 [material_sum] => 7947359 [work_sum] => 1770747 [total_sum] => 9718106 [total_days] => 15 [display_material_sum] => 7 947 359 [display_work_sum] => 1 770 747 [display_total_sum] => 9 718 106 ) 1
9 718 106
Работа:1 770 747
Материалы:7 947 359
Дни:15
stdClass Object ( [id] => 185 [attribute_id] => 3 [name] => Теплоблок [material_modifier] => 1 [work_modifier] => 1 [options] => Array ( [0] => 300 мм (с облицовкой, не покрашенный) [1] => 400 мм (с облицовкой, не покрашенный) [2] => 300 мм (с облицовкой, покрашенный) [3] => 400 мм (с облицовкой, покрашенный) ) [days] => [15,16,15,16] [material_price] => [2888,3729,3957,4258] [work_price] => [2564,3229,2949,3713] [image] => https://akademik-stroy.ru/wp-content/uploads/materials/teploblok.jpg [area_modifier] => 175.45 [parent_name] => Стены 1 этаж (несущие) [parent_id] => 3 [material_sum] => 638441 [work_sum] => 472346 [total_sum] => 1110787 [total_days] => 15 [display_material_sum] => 638 441 [display_work_sum] => 472 346 [display_total_sum] => 1 110 787 ) 1
1 110 787
Работа:472 346
Материалы:638 441
Дни:15
stdClass Object ( [id] => 186 [attribute_id] => 3 [name] => Арболитовые блоки [material_modifier] => 1 [work_modifier] => 1 [options] => Array ( [0] => 300 мм [1] => 400 мм [2] => 600 мм ) [days] => [19,22,27] [material_price] => [3210,4475,5852] [work_price] => [4214,4788,5866] [image] => https://akademik-stroy.ru/wp-content/uploads/materials/arbolitovye-bloki.png [area_modifier] => 175.45 [parent_name] => Стены 1 этаж (несущие) [parent_id] => 3 [material_sum] => 709625 [work_sum] => 776314 [total_sum] => 1485939 [total_days] => 19 [display_material_sum] => 709 625 [display_work_sum] => 776 314 [display_total_sum] => 1 485 939 ) 1
1 485 939
Работа:776 314
Материалы:709 625
Дни:19
stdClass Object ( [id] => 187 [attribute_id] => 3 [name] => Полистиролбетон [material_modifier] => 1 [work_modifier] => 1 [options] => Array ( [0] => 300 мм [1] => 400 мм [2] => 600 мм ) [days] => [29,31,35] [material_price] => [2798,4573,5256] [work_price] => [5038,5851,6426] [image] => https://akademik-stroy.ru/wp-content/uploads/materials/polistirolbeton.jpg [area_modifier] => 175.45 [parent_name] => Стены 1 этаж (несущие) [parent_id] => 3 [material_sum] => 618545 [work_sum] => 928113 [total_sum] => 1546658 [total_days] => 29 [display_material_sum] => 618 545 [display_work_sum] => 928 113 [display_total_sum] => 1 546 658 ) 1
1 546 658
Работа:928 113
Материалы:618 545
Дни:29
stdClass Object ( [id] => 188 [attribute_id] => 3 [name] => Шлакоблок [material_modifier] => 1 [work_modifier] => 1 [options] => Array ( [0] => 400 мм [1] => 600 мм ) [days] => [15,16] [material_price] => [2391,3471] [work_price] => [2642,3662] [image] => https://akademik-stroy.ru/wp-content/uploads/materials/shlakoblok.jpg [area_modifier] => 175.45 [parent_name] => Стены 1 этаж (несущие) [parent_id] => 3 [material_sum] => 528571 [work_sum] => 486716 [total_sum] => 1015287 [total_days] => 15 [display_material_sum] => 528 571 [display_work_sum] => 486 716 [display_total_sum] => 1 015 287 ) 1
1 015 287
Работа:486 716
Материалы:528 571
Дни:15
stdClass Object ( [id] => 189 [attribute_id] => 3 [name] => Теплая керамика [material_modifier] => 1 [work_modifier] => 1 [options] => Array ( [0] => 380 мм [1] => 380 мм Thermo [2] => 440 мм [3] => 510 мм ) [days] => [23,23,24,25] [material_price] => [4510,5098,6093,8013] [work_price] => [4737,4937,5903,6958] [image] => https://akademik-stroy.ru/wp-content/uploads/materials/teplaya-keramika.jpg [area_modifier] => 175.45 [parent_name] => Стены 1 этаж (несущие) [parent_id] => 3 [material_sum] => 997012 [work_sum] => 872662 [total_sum] => 1869674 [total_days] => 23 [display_material_sum] => 997 012 [display_work_sum] => 872 662 [display_total_sum] => 1 869 674 ) 1
1 869 674
Работа:872 662
Материалы:997 012
Дни:23
stdClass Object ( [id] => 190 [attribute_id] => 3 [name] => Несъемная опалубка [material_modifier] => 1 [work_modifier] => 1 [options] => Array ( [0] => 200 мм [1] => 250 мм [2] => 300 мм [3] => 350 мм ) [days] => [15,17,19,21] [material_price] => [3302,3902,4108,5008] [work_price] => [2100,2100,2300,2534] [image] => https://akademik-stroy.ru/wp-content/uploads/materials/nesemnaya-opalubka.jpg [area_modifier] => 175.45 [parent_name] => Стены 1 этаж (несущие) [parent_id] => 3 [material_sum] => 729963 [work_sum] => 386867 [total_sum] => 1116830 [total_days] => 15 [display_material_sum] => 729 963 [display_work_sum] => 386 867 [display_total_sum] => 1 116 830 ) 1
1 116 830
Работа:386 867
Материалы:729 963
Дни:15
stdClass Object ( [id] => 251 [attribute_id] => 3 [name] => Бревно [material_modifier] => 1 [work_modifier] => 1 [options] => Array ( [0] => 260 мм [1] => 320 мм [2] => 360 мм [3] => 400 мм [4] => 500 мм ) [days] => [7,8,9,10,11] [material_price] => [1874,24045,26930,30972,38825] [work_price] => [5046,6207,6952,7716,9723] [image] => https://akademik-stroy.ru/wp-content/uploads/materials/sruby.jpg [area_modifier] => 175.45 [parent_name] => Стены 1 этаж (несущие) [parent_id] => 3 [material_sum] => 414280 [work_sum] => 929587 [total_sum] => 1343867 [total_days] => 7 [display_material_sum] => 414 280 [display_work_sum] => 929 587 [display_total_sum] => 1 343 867 ) 1
1 343 867
Работа:929 587
Материалы:414 280
Дни:7
Перекрытие первого этажа
stdClass Object ( [id] => 7 [attribute_id] => 4 [name] => Деревянные балки [material_modifier] => 1 [work_modifier] => 1 [options] => Array ( [0] => без утепления [1] => утепление 200 мм [2] => утепление 250 мм [3] => утепление 300 мм [4] => утепление 350 мм [5] => утепление 400 мм [6] => утепление 450 мм [7] => утепление 500 мм ) [days] => [8,9,9,9,11,12,13,14] [material_price] => [1634,2042,2344,2947,3149,3652,3354,3557] [work_price] => [1230,1339,1393,1426,1460,1513,1587,1620] [image] => https://akademik-stroy.ru/wp-content/uploads/materials/derevyannye-balki.png [area_modifier] => 175.45 [parent_name] => Перекрытие первого этажа [parent_id] => 4 [material_sum] => 361223 [work_sum] => 226594 [total_sum] => 587817 [total_days] => 8 [display_material_sum] => 361 223 [display_work_sum] => 226 594 [display_total_sum] => 587 817 ) 1
587 817
Работа:226 594
Материалы:361 223
Дни:8
stdClass Object ( [id] => 8 [attribute_id] => 4 [name] => Сборные ж/б плиты [material_modifier] => 1 [work_modifier] => 1 [options] => Array ( [0] => без утепления [1] => утепление 150 мм [2] => утепление 200 мм [3] => утепление 250 мм [4] => утепление 300 мм [5] => утепление 350 мм [6] => утепление 400 мм [7] => утепление 450 мм [8] => утепление 500 мм ) [days] => [13,15,15,15,15,15,15,15,15] [material_price] => [3067,5577,5928,6679,7730,8782,9833,10884,11935] [work_price] => [1520,1956,2102,2247,2392,2537,2684,2829,2974] [image] => https://akademik-stroy.ru/wp-content/uploads/materials/sbornye-zh-b-plity-2.jpg [area_modifier] => 175.45 [parent_name] => Перекрытие первого этажа [parent_id] => 4 [material_sum] => 678012 [work_sum] => 280018 [total_sum] => 958030 [total_days] => 13 [display_material_sum] => 678 012 [display_work_sum] => 280 018 [display_total_sum] => 958 030 ) 1
958 030
Работа:280 018
Материалы:678 012
Дни:13
stdClass Object ( [id] => 89 [attribute_id] => 4 [name] => Монолитная ж/б плита [material_modifier] => 1 [work_modifier] => 1 [options] => Array ( [0] => без утепления [1] => утепление 150 мм [2] => утепление 200 мм [3] => утепление 250 мм [4] => утепление 300 мм [5] => утепление 350 мм [6] => утепление 400 мм [7] => утепление 450 мм [8] => утепление 500 мм ) [days] => [18,20,20,20,20,20,20,20,20] [material_price] => [4837,6572,7224,7375,79426,8177,8728,9180,10031] [work_price] => [3348,3921,4112,4302,4493,4684,4875,5066,5256] [image] => https://akademik-stroy.ru/wp-content/uploads/materials/monolitnaya-zh-b-plita-2.jpg [area_modifier] => 175.45 [parent_name] => Перекрытие первого этажа [parent_id] => 4 [material_sum] => 1069301 [work_sum] => 616777 [total_sum] => 1686078 [total_days] => 18 [display_material_sum] => 1 069 301 [display_work_sum] => 616 777 [display_total_sum] => 1 686 078 ) 1
1 686 078
Работа:616 777
Материалы:1 069 301
Дни:18
Стены 2 этаж (несущие)
stdClass Object ( [id] => 10 [attribute_id] => 5 [name] => Пеноблок [material_modifier] => 1 [work_modifier] => 1 [options] => Array ( [0] => 300 мм [1] => 400 мм [2] => 500 мм [3] => 600 мм ) [days] => [29,31,34,39] [material_price] => [3000,4000,4500,4937] [work_price] => [5033,5805,6400,8710] [image] => https://akademik-stroy.ru/wp-content/uploads/materials/penoblok.jpg [area_modifier] => 113.89 [parent_name] => Стены 2 этаж (несущие) [parent_id] => 5 [material_sum] => 430504 [work_sum] => 601869 [total_sum] => 1032373 [total_days] => 29 [display_material_sum] => 430 504 [display_work_sum] => 601 869 [display_total_sum] => 1 032 373 ) 1
1 032 373
Работа:601 869
Материалы:430 504
Дни:29
stdClass Object ( [id] => 90 [attribute_id] => 5 [name] => Керамический блок [material_modifier] => 1 [work_modifier] => 1 [options] => Array ( [0] => 380 мм [1] => 380 мм Thermo [2] => 440 мм [3] => 510 мм ) [days] => [23,23,24,25] [material_price] => [4510,5098,6093,8013] [work_price] => [4737,4937,5903,6958] [image] => https://akademik-stroy.ru/wp-content/uploads/materials/keramicheskij-blok.jpg [area_modifier] => 113.89 [parent_name] => Стены 2 этаж (несущие) [parent_id] => 5 [material_sum] => 647191 [work_sum] => 566472 [total_sum] => 1213663 [total_days] => 23 [display_material_sum] => 647 191 [display_work_sum] => 566 472 [display_total_sum] => 1 213 663 ) 1
1 213 663
Работа:566 472
Материалы:647 191
Дни:23
stdClass Object ( [id] => 91 [attribute_id] => 5 [name] => Кирпич [material_modifier] => 1 [work_modifier] => 1 [options] => Array ( [0] => Кирпич 250 мм [1] => Кирпич 380 мм [2] => Кирпич 510 мм [3] => Кирпич 640 мм [4] => Кирпич 770 мм ) [days] => [30,30,31,33,36] [material_price] => [5500,7142,9206,10171,12235] [work_price] => [8736,10041,12018,15240,18462] [image] => https://akademik-stroy.ru/wp-content/uploads/materials/kirpich.jpg [area_modifier] => 113.89 [parent_name] => Стены 2 этаж (несущие) [parent_id] => 5 [material_sum] => 789258 [work_sum] => 1044690 [total_sum] => 1833948 [total_days] => 30 [display_material_sum] => 789 258 [display_work_sum] => 1 044 690 [display_total_sum] => 1 833 948 ) 1
1 833 948
Работа:1 044 690
Материалы:789 258
Дни:30
stdClass Object ( [id] => 92 [attribute_id] => 5 [name] => Монолитные [material_modifier] => 1 [work_modifier] => 1 [options] => Array ( [0] => 150 мм [1] => 200 мм [2] => 250 мм [3] => 300 мм [4] => 350 мм [5] => 400 мм ) [days] => [45,46,47,49,50,53] [material_price] => [6545,7876,10175,12011,13908,15204] [work_price] => [5106,6444,7698,8552,9807,11461] [image] => https://akademik-stroy.ru/wp-content/uploads/materials/monolitnye.jpg [area_modifier] => 113.89 [parent_name] => Стены 2 этаж (несущие) [parent_id] => 5 [material_sum] => 939217 [work_sum] => 610598 [total_sum] => 1549815 [total_days] => 45 [display_material_sum] => 939 217 [display_work_sum] => 610 598 [display_total_sum] => 1 549 815 ) 1
1 549 815
Работа:610 598
Материалы:939 217
Дни:45
stdClass Object ( [id] => 93 [attribute_id] => 5 [name] => Клееный брус [material_modifier] => 1 [work_modifier] => 1 [options] => Array ( [0] => 160 мм [1] => 175 мм [2] => 200 мм [3] => 215 мм [4] => 240 мм [5] => 270 мм [6] => 282 мм ) [days] => [24,28,32,37,40,42,48] [material_price] => [16975,18773,19950,20545,21599,22159,23275] [work_price] => [4806,5287,5815,6397,7036,7740,8514] [image] => https://akademik-stroy.ru/wp-content/uploads/materials/kleenyj-brus.jpg [area_modifier] => 113.89 [parent_name] => Стены 2 этаж (несущие) [parent_id] => 5 [material_sum] => 2435936 [work_sum] => 574723 [total_sum] => 3010659 [total_days] => 24 [display_material_sum] => 2 435 936 [display_work_sum] => 574 723 [display_total_sum] => 3 010 659 ) 1
3 010 659
Работа:574 723
Материалы:2 435 936
Дни:24
stdClass Object ( [id] => 94 [attribute_id] => 5 [name] => Каркасные [material_modifier] => 1 [work_modifier] => 1 [options] => Array ( [0] => 150 мм [1] => 200 мм [2] => 250 мм [3] => 300 мм ) [days] => [15,16,17,18] [material_price] => [2379,2639,2898,3258] [work_price] => [2418,2686,2985,3716] [image] => https://akademik-stroy.ru/wp-content/uploads/materials/karkasnye.jpg [area_modifier] => 113.89 [parent_name] => Стены 2 этаж (несущие) [parent_id] => 5 [material_sum] => 341390 [work_sum] => 289155 [total_sum] => 630545 [total_days] => 15 [display_material_sum] => 341 390 [display_work_sum] => 289 155 [display_total_sum] => 630 545 ) 1
630 545
Работа:289 155
Материалы:341 390
Дни:15
stdClass Object ( [id] => 95 [attribute_id] => 5 [name] => СИП-панели [material_modifier] => 1 [work_modifier] => 1 [options] => Array ( [0] => 120 мм [1] => 170 мм [2] => 220 мм ) [days] => [7,7,7] [material_price] => [1210,1856,2292] [work_price] => [1410,1551,1706] [image] => https://akademik-stroy.ru/wp-content/uploads/materials/sip-paneli.jpg [area_modifier] => 113.89 [parent_name] => Стены 2 этаж (несущие) [parent_id] => 5 [material_sum] => 173637 [work_sum] => 168614 [total_sum] => 342251 [total_days] => 7 [display_material_sum] => 173 637 [display_work_sum] => 168 614 [display_total_sum] => 342 251 ) 1
342 251
Работа:168 614
Материалы:173 637
Дни:7
stdClass Object ( [id] => 96 [attribute_id] => 5 [name] => Сухой брус [material_modifier] => 1 [work_modifier] => 1 [options] => Array ( [0] => 150 мм [1] => 180 мм [2] => 200 мм ) [days] => [7,8,9] [material_price] => [6010,7190,8709] [work_price] => [3204,3845,4229] [image] => https://akademik-stroy.ru/wp-content/uploads/materials/suhoj-brus.jpg [area_modifier] => 113.89 [parent_name] => Стены 2 этаж (несущие) [parent_id] => 5 [material_sum] => 862443 [work_sum] => 383149 [total_sum] => 1245592 [total_days] => 7 [display_material_sum] => 862 443 [display_work_sum] => 383 149 [display_total_sum] => 1 245 592 ) 1
1 245 592
Работа:383 149
Материалы:862 443
Дни:7
stdClass Object ( [id] => 97 [attribute_id] => 5 [name] => Профилированный брус [material_modifier] => 1 [work_modifier] => 1 [options] => Array ( [0] => 150 мм [1] => 180 мм [2] => 200 мм ) [days] => [7,8,9] [material_price] => [8190,9228,10051] [work_price] => [3845,4614,5075] [image] => https://akademik-stroy.ru/wp-content/uploads/materials/profilirovannyj-brus.jpg [area_modifier] => 113.89 [parent_name] => Стены 2 этаж (несущие) [parent_id] => 5 [material_sum] => 1175276 [work_sum] => 459802 [total_sum] => 1635078 [total_days] => 7 [display_material_sum] => 1 175 276 [display_work_sum] => 459 802 [display_total_sum] => 1 635 078 ) 1
1 635 078
Работа:459 802
Материалы:1 175 276
Дни:7
stdClass Object ( [id] => 98 [attribute_id] => 5 [name] => Оцилиндрованное бревно [material_modifier] => 1 [work_modifier] => 1 [options] => Array ( [0] => 180 мм [1] => 220 мм [2] => 260 мм [3] => 320 мм ) [days] => [7,8,9,10] [material_price] => [75190,9532,10868,13116] [work_price] => [3845,4691,5535,6863] [image] => https://akademik-stroy.ru/wp-content/uploads/materials/ocilindrovannoe-brevno-1.jpg [area_modifier] => 113.89 [parent_name] => Стены 2 этаж (несущие) [parent_id] => 5 [material_sum] => 10789870 [work_sum] => 459802 [total_sum] => 11249672 [total_days] => 7 [display_material_sum] => 10 789 870 [display_work_sum] => 459 802 [display_total_sum] => 11 249 672 ) 1
11 249 672
Работа:459 802
Материалы:10 789 870
Дни:7
stdClass Object ( [id] => 99 [attribute_id] => 5 [name] => Срубы [material_modifier] => 1 [work_modifier] => 1 [options] => Array ( [0] => 260 мм [1] => 320 мм [2] => 360 мм [3] => 400 мм [4] => 500 мм ) [days] => [7,8,9,10,11] [material_price] => [16175,23709,26314,29069,32167] [work_price] => [4806,5911,6621,7349,9260] [image] => https://akademik-stroy.ru/wp-content/uploads/materials/suhoj-brus.jpg [area_modifier] => 113.89 [parent_name] => Стены 2 этаж (несущие) [parent_id] => 5 [material_sum] => 2321135 [work_sum] => 574723 [total_sum] => 2895858 [total_days] => 7 [display_material_sum] => 2 321 135 [display_work_sum] => 574 723 [display_total_sum] => 2 895 858 ) 1
2 895 858
Работа:574 723
Материалы:2 321 135
Дни:7
stdClass Object ( [id] => 194 [attribute_id] => 5 [name] => Брус [material_modifier] => 1 [work_modifier] => 1 [options] => Array ( [0] => 150 мм [1] => 180 мм [2] => 200 мм ) [days] => [10,13,15] [material_price] => [5127,6152,7367] [work_price] => [1602,1922,2115] [image] => https://akademik-stroy.ru/wp-content/uploads/materials/brus.jpg [area_modifier] => 113.89 [parent_name] => Стены 2 этаж (несущие) [parent_id] => 5 [material_sum] => 735732 [work_sum] => 191574 [total_sum] => 927306 [total_days] => 10 [display_material_sum] => 735 732 [display_work_sum] => 191 574 [display_total_sum] => 927 306 ) 1
927 306
Работа:191 574
Материалы:735 732
Дни:10
stdClass Object ( [id] => 195 [attribute_id] => 5 [name] => Газобетон [material_modifier] => 1 [work_modifier] => 1 [options] => Array ( [0] => 300 мм [1] => 375 мм [2] => 400 мм [3] => 500 мм [4] => 600 мм ) [days] => [29,31,35,37,44] [material_price] => [4298,5573,6356,7288,9119] [work_price] => [4538,5251,5926,6733,7195] [image] => https://akademik-stroy.ru/wp-content/uploads/materials/gazobeton.jpg [area_modifier] => 113.89 [parent_name] => Стены 2 этаж (несущие) [parent_id] => 5 [material_sum] => 616769 [work_sum] => 542674 [total_sum] => 1159443 [total_days] => 29 [display_material_sum] => 616 769 [display_work_sum] => 542 674 [display_total_sum] => 1 159 443 ) 1
1 159 443
Работа:542 674
Материалы:616 769
Дни:29
stdClass Object ( [id] => 196 [attribute_id] => 5 [name] => Блок [material_modifier] => 1 [work_modifier] => 1 [options] => Array ( [0] => 300 мм [1] => 375 мм [2] => 400 мм [3] => 500 мм [4] => 600 мм ) [days] => [29,31,35,37,44] [material_price] => [2698,3973,4356,6588,7119] [work_price] => [5038,5851,6426,8733,9195] [image] => https://akademik-stroy.ru/wp-content/uploads/materials/blok.jpg [area_modifier] => 113.89 [parent_name] => Стены 2 этаж (несущие) [parent_id] => 5 [material_sum] => 387167 [work_sum] => 602467 [total_sum] => 989634 [total_days] => 29 [display_material_sum] => 387 167 [display_work_sum] => 602 467 [display_total_sum] => 989 634 ) 1
989 634
Работа:602 467
Материалы:387 167
Дни:29
stdClass Object ( [id] => 197 [attribute_id] => 5 [name] => Газосиликатный блок [material_modifier] => 1 [work_modifier] => 1 [options] => Array ( [0] => 300 мм [1] => 375 мм [2] => 400 мм [3] => 500 мм [4] => 600 мм ) [days] => [29,31,35,37,44] [material_price] => [4298,5573,6356,7288,9119] [work_price] => [4538,5251,5926,6733,7195] [image] => https://akademik-stroy.ru/wp-content/uploads/materials/gazosilikatnyj-blok.jpg [area_modifier] => 113.89 [parent_name] => Стены 2 этаж (несущие) [parent_id] => 5 [material_sum] => 616769 [work_sum] => 542674 [total_sum] => 1159443 [total_days] => 29 [display_material_sum] => 616 769 [display_work_sum] => 542 674 [display_total_sum] => 1 159 443 ) 1
1 159 443
Работа:542 674
Материалы:616 769
Дни:29
stdClass Object ( [id] => 198 [attribute_id] => 5 [name] => Керамзитобетонный блок [material_modifier] => 1 [work_modifier] => 1 [options] => Array ( [0] => 300 мм [1] => 375 мм [2] => 400 мм [3] => 500 мм [4] => 600 мм ) [days] => [23,23,24,25,28] [material_price] => [3641,4298,5693,7613,9612] [work_price] => [5737,5737,6903,7958,8901] [image] => https://akademik-stroy.ru/wp-content/uploads/materials/keramzitobetonnyj-blok.jpg [area_modifier] => 113.89 [parent_name] => Стены 2 этаж (несущие) [parent_id] => 5 [material_sum] => 522489 [work_sum] => 686056 [total_sum] => 1208545 [total_days] => 23 [display_material_sum] => 522 489 [display_work_sum] => 686 056 [display_total_sum] => 1 208 545 ) 1
1 208 545
Работа:686 056
Материалы:522 489
Дни:23
stdClass Object ( [id] => 199 [attribute_id] => 5 [name] => Деревянные [material_modifier] => 1 [work_modifier] => 1 [options] => Array ( [0] => 180 мм [1] => 220 мм [2] => 260 мм [3] => 320 мм ) [days] => [7,8,9,10] [material_price] => [7950,9458,11961,14472] [work_price] => [4037,4925,5812,7207] [image] => https://akademik-stroy.ru/wp-content/uploads/materials/derevyannye.jpg [area_modifier] => 113.89 [parent_name] => Стены 2 этаж (несущие) [parent_id] => 5 [material_sum] => 1140836 [work_sum] => 482763 [total_sum] => 1623599 [total_days] => 7 [display_material_sum] => 1 140 836 [display_work_sum] => 482 763 [display_total_sum] => 1 623 599 ) 1
1 623 599
Работа:482 763
Материалы:1 140 836
Дни:7
stdClass Object ( [id] => 200 [attribute_id] => 5 [name] => Камень [material_modifier] => 1 [work_modifier] => 1 [options] => Array ( [0] => 300 мм [1] => 400 мм [2] => 500 мм [3] => 600 мм ) [days] => [25,27,31,34] [material_price] => [5262,6844,8330,9815] [work_price] => [8331,9135,10427,11069] [image] => https://akademik-stroy.ru/wp-content/uploads/materials/kamen.jpg [area_modifier] => 113.89 [parent_name] => Стены 2 этаж (несущие) [parent_id] => 5 [material_sum] => 755104 [work_sum] => 996258 [total_sum] => 1751362 [total_days] => 25 [display_material_sum] => 755 104 [display_work_sum] => 996 258 [display_total_sum] => 1 751 362 ) 1
1 751 362
Работа:996 258
Материалы:755 104
Дни:25
stdClass Object ( [id] => 201 [attribute_id] => 5 [name] => Каркасно-щитовые [material_modifier] => 1 [work_modifier] => 1 [options] => Array ( [0] => 150 мм [1] => 200 мм [2] => 250 мм [3] => 300 мм [4] => 350 мм [5] => 400 мм ) [days] => [15,16,17,18,19,20] [material_price] => [2379,2639,2898,3458,3601,4175] [work_price] => [2538,2820,3134,3483,4062,5642] [image] => https://akademik-stroy.ru/wp-content/uploads/materials/karkasno-shchitovye.jpg [area_modifier] => 113.89 [parent_name] => Стены 2 этаж (несущие) [parent_id] => 5 [material_sum] => 341390 [work_sum] => 303505 [total_sum] => 644895 [total_days] => 15 [display_material_sum] => 341 390 [display_work_sum] => 303 505 [display_total_sum] => 644 895 ) 1
644 895
Работа:303 505
Материалы:341 390
Дни:15
stdClass Object ( [id] => 202 [attribute_id] => 5 [name] => Рубленные [material_modifier] => 1 [work_modifier] => 1 [options] => Array ( [0] => 150 мм [1] => 200 мм [2] => 250 мм [3] => 300 мм [4] => 350 мм [5] => 400 мм ) [days] => [15,16,17,18,17,18] [material_price] => [35950,50267,60583,75900,80217,100533] [work_price] => [9612,12816,16020,19224,22428,25632] [image] => https://akademik-stroy.ru/wp-content/uploads/materials/rublennye.jpg [area_modifier] => 113.89 [parent_name] => Стены 2 этаж (несущие) [parent_id] => 5 [material_sum] => 5158875 [work_sum] => 1149446 [total_sum] => 6308321 [total_days] => 15 [display_material_sum] => 5 158 875 [display_work_sum] => 1 149 446 [display_total_sum] => 6 308 321 ) 1
6 308 321
Работа:1 149 446
Материалы:5 158 875
Дни:15
stdClass Object ( [id] => 203 [attribute_id] => 5 [name] => Теплоблок [material_modifier] => 1 [work_modifier] => 1 [options] => Array ( [0] => 300 мм (с облицовкой, не покрашенный) [1] => 400 мм (с облицовкой, не покрашенный) [2] => 300 мм (с облицовкой, покрашенный) [3] => 400 мм (с облицовкой, покрашенный) ) [days] => [15,16,15,16] [material_price] => [2888,3729,3957,4258] [work_price] => [2564,3229,2949,3713] [image] => https://akademik-stroy.ru/wp-content/uploads/materials/teploblok.jpg [area_modifier] => 113.89 [parent_name] => Стены 2 этаж (несущие) [parent_id] => 5 [material_sum] => 414432 [work_sum] => 306615 [total_sum] => 721047 [total_days] => 15 [display_material_sum] => 414 432 [display_work_sum] => 306 615 [display_total_sum] => 721 047 ) 1
721 047
Работа:306 615
Материалы:414 432
Дни:15
stdClass Object ( [id] => 204 [attribute_id] => 5 [name] => Арболитовые блоки [material_modifier] => 1 [work_modifier] => 1 [options] => Array ( [0] => 300 мм [1] => 400 мм [2] => 600 мм ) [days] => [19,22,27] [material_price] => [3210,4475,5852] [work_price] => [4214,4788,5866] [image] => https://akademik-stroy.ru/wp-content/uploads/materials/arbolitovye-bloki.png [area_modifier] => 113.89 [parent_name] => Стены 2 этаж (несущие) [parent_id] => 5 [material_sum] => 460639 [work_sum] => 503929 [total_sum] => 964568 [total_days] => 19 [display_material_sum] => 460 639 [display_work_sum] => 503 929 [display_total_sum] => 964 568 ) 1
964 568
Работа:503 929
Материалы:460 639
Дни:19
stdClass Object ( [id] => 205 [attribute_id] => 5 [name] => Полистиролбетон [material_modifier] => 1 [work_modifier] => 1 [options] => Array ( [0] => 300 мм [1] => 400 мм [2] => 600 мм ) [days] => [29,31,35] [material_price] => [2798,4573,5256] [work_price] => [5038,5851,6426] [image] => https://akademik-stroy.ru/wp-content/uploads/materials/polistirolbeton.jpg [area_modifier] => 113.89 [parent_name] => Стены 2 этаж (несущие) [parent_id] => 5 [material_sum] => 401517 [work_sum] => 602467 [total_sum] => 1003984 [total_days] => 29 [display_material_sum] => 401 517 [display_work_sum] => 602 467 [display_total_sum] => 1 003 984 ) 1
1 003 984
Работа:602 467
Материалы:401 517
Дни:29
stdClass Object ( [id] => 206 [attribute_id] => 5 [name] => Шлакоблок [material_modifier] => 1 [work_modifier] => 1 [options] => Array ( [0] => 400 мм [1] => 600 мм ) [days] => [15,16] [material_price] => [2391,3471] [work_price] => [2642,3662] [image] => https://akademik-stroy.ru/wp-content/uploads/materials/shlakoblok.jpg [area_modifier] => 113.89 [parent_name] => Стены 2 этаж (несущие) [parent_id] => 5 [material_sum] => 343112 [work_sum] => 315942 [total_sum] => 659054 [total_days] => 15 [display_material_sum] => 343 112 [display_work_sum] => 315 942 [display_total_sum] => 659 054 ) 1
659 054
Работа:315 942
Материалы:343 112
Дни:15
stdClass Object ( [id] => 245 [attribute_id] => 5 [name] => Теплая керамика [material_modifier] => 1 [work_modifier] => 1 [options] => Array ( [0] => 380 мм [1] => 380 мм Thermo [2] => 440 мм [3] => 510 мм ) [days] => [10,10,11,12] [material_price] => [4510,5098,6093,8013] [work_price] => [4737,4937,5903,6958] [image] => https://akademik-stroy.ru/wp-content/uploads/materials/teplaya-keramika.jpg [area_modifier] => 113.89 [parent_name] => Стены 2 этаж (несущие) [parent_id] => 5 [material_sum] => 647191 [work_sum] => 566472 [total_sum] => 1213663 [total_days] => 10 [display_material_sum] => 647 191 [display_work_sum] => 566 472 [display_total_sum] => 1 213 663 ) 1
1 213 663
Работа:566 472
Материалы:647 191
Дни:10
stdClass Object ( [id] => 246 [attribute_id] => 5 [name] => Несъемная опалубка [material_modifier] => 1 [work_modifier] => 1 [options] => Array ( [0] => 380 мм [1] => 380 мм Thermo [2] => 440 мм [3] => 510 мм ) [days] => [10,10,11,12] [material_price] => [3302,3902,4108,5008] [work_price] => [2100,2100,2300,2534] [image] => https://akademik-stroy.ru/wp-content/uploads/materials/nesemnaya-opalubka.jpg [area_modifier] => 113.89 [parent_name] => Стены 2 этаж (несущие) [parent_id] => 5 [material_sum] => 473842 [work_sum] => 251127 [total_sum] => 724969 [total_days] => 10 [display_material_sum] => 473 842 [display_work_sum] => 251 127 [display_total_sum] => 724 969 ) 1
724 969
Работа:251 127
Материалы:473 842
Дни:10
stdClass Object ( [id] => 254 [attribute_id] => 5 [name] => Бревно [material_modifier] => 1 [work_modifier] => 1 [options] => Array ( [0] => 260 мм [1] => 320 мм [2] => 360 мм [3] => 400 мм [4] => 500 мм ) [days] => [7,8,9,10,11] [material_price] => [1874,24045,26930,30972,38825] [work_price] => [5046,6207,6952,7716,9723] [image] => https://akademik-stroy.ru/wp-content/uploads/materials/sruby.jpg [area_modifier] => 113.89 [parent_name] => Стены 2 этаж (несущие) [parent_id] => 5 [material_sum] => 268922 [work_sum] => 603423 [total_sum] => 872345 [total_days] => 7 [display_material_sum] => 268 922 [display_work_sum] => 603 423 [display_total_sum] => 872 345 ) 1
872 345
Работа:603 423
Материалы:268 922
Дни:7
Крыша (Скатная)
stdClass Object ( [id] => 164 [attribute_id] => 37 [name] => Металлочерепица [material_modifier] => 1 [work_modifier] => 1 [options] => Array ( ) [days] => [20] [material_price] => [6112] [work_price] => [5726] [image] => https://akademik-stroy.ru/wp-content/uploads/materials/metallocherepica.jpg [area_modifier] => 175.45 [parent_name] => Крыша (Скатная) [parent_id] => 37 [material_sum] => 1351162 [work_sum] => 1054858 [total_sum] => 2406020 [total_days] => 20 [display_material_sum] => 1 351 162 [display_work_sum] => 1 054 858 [display_total_sum] => 2 406 020 ) 1
2 406 020
Работа:1 054 858
Материалы:1 351 162
Дни:20
stdClass Object ( [id] => 165 [attribute_id] => 37 [name] => Гибкая черепица [material_modifier] => 1 [work_modifier] => 1 [options] => Array ( ) [days] => [20] [material_price] => [6980] [work_price] => [5950] [image] => https://akademik-stroy.ru/wp-content/uploads/materials/gibkaya-cherepica.jpg [area_modifier] => 175.45 [parent_name] => Крыша (Скатная) [parent_id] => 37 [material_sum] => 1543048 [work_sum] => 1096124 [total_sum] => 2639172 [total_days] => 20 [display_material_sum] => 1 543 048 [display_work_sum] => 1 096 124 [display_total_sum] => 2 639 172 ) 1
2 639 172
Работа:1 096 124
Материалы:1 543 048
Дни:20
stdClass Object ( [id] => 166 [attribute_id] => 37 [name] => Цементно-песчаная черепица [material_modifier] => 1 [work_modifier] => 1 [options] => Array ( ) [days] => [20] [material_price] => [10560] [work_price] => [9456] [image] => https://akademik-stroy.ru/wp-content/uploads/materials/cementno-peschanaya-cherepica.jpg [area_modifier] => 175.45 [parent_name] => Крыша (Скатная) [parent_id] => 37 [material_sum] => 2334468 [work_sum] => 1742008 [total_sum] => 4076476 [total_days] => 20 [display_material_sum] => 2 334 468 [display_work_sum] => 1 742 008 [display_total_sum] => 4 076 476 ) 1
4 076 476
Работа:1 742 008
Материалы:2 334 468
Дни:20
stdClass Object ( [id] => 167 [attribute_id] => 37 [name] => Композитная черепица [material_modifier] => 1 [work_modifier] => 1 [options] => Array ( ) [days] => [20] [material_price] => [9506] [work_price] => [8905] [image] => https://akademik-stroy.ru/wp-content/uploads/materials/kompozitnaya-cherepica.jpg [area_modifier] => 175.45 [parent_name] => Крыша (Скатная) [parent_id] => 37 [material_sum] => 2101463 [work_sum] => 1640501 [total_sum] => 3741964 [total_days] => 20 [display_material_sum] => 2 101 463 [display_work_sum] => 1 640 501 [display_total_sum] => 3 741 964 ) 1
3 741 964
Работа:1 640 501
Материалы:2 101 463
Дни:20
stdClass Object ( [id] => 168 [attribute_id] => 37 [name] => Керамическая черепица [material_modifier] => 1 [work_modifier] => 1 [options] => Array ( ) [days] => [20] [material_price] => [12750] [work_price] => [9456] [image] => https://akademik-stroy.ru/wp-content/uploads/materials/keramicheskaya-cherepica.jpg [area_modifier] => 175.45 [parent_name] => Крыша (Скатная) [parent_id] => 37 [material_sum] => 2818604 [work_sum] => 1742008 [total_sum] => 4560612 [total_days] => 20 [display_material_sum] => 2 818 604 [display_work_sum] => 1 742 008 [display_total_sum] => 4 560 612 ) 1
4 560 612
Работа:1 742 008
Материалы:2 818 604
Дни:20
stdClass Object ( [id] => 169 [attribute_id] => 37 [name] => Металлическая фальцевая [material_modifier] => 1 [work_modifier] => 1 [options] => Array ( ) [days] => [20] [material_price] => [8550] [work_price] => [8190] [image] => https://akademik-stroy.ru/wp-content/uploads/materials/metallicheskaya-falcevaya.jpg [area_modifier] => 175.45 [parent_name] => Крыша (Скатная) [parent_id] => 37 [material_sum] => 1890123 [work_sum] => 1508782 [total_sum] => 3398905 [total_days] => 20 [display_material_sum] => 1 890 123 [display_work_sum] => 1 508 782 [display_total_sum] => 3 398 905 ) 1
3 398 905
Работа:1 508 782
Материалы:1 890 123
Дни:20
stdClass Object ( [id] => 170 [attribute_id] => 37 [name] => Медная фальцевая [material_modifier] => 1 [work_modifier] => 1 [options] => Array ( ) [days] => [20] [material_price] => [20450] [work_price] => [16750] [image] => https://akademik-stroy.ru/wp-content/uploads/materials/mednaya-falcevaya.jpg [area_modifier] => 175.45 [parent_name] => Крыша (Скатная) [parent_id] => 37 [material_sum] => 4520820 [work_sum] => 3085727 [total_sum] => 7606547 [total_days] => 20 [display_material_sum] => 4 520 820 [display_work_sum] => 3 085 727 [display_total_sum] => 7 606 547 ) 1
7 606 547
Работа:3 085 727
Материалы:4 520 820
Дни:20
stdClass Object ( [id] => 171 [attribute_id] => 37 [name] => Зеленая кровля [material_modifier] => 1 [work_modifier] => 1 [options] => Array ( ) [days] => [20] [material_price] => [19850] [work_price] => [16780] [image] => https://akademik-stroy.ru/wp-content/uploads/materials/zelenaya-krovlya.jpg [area_modifier] => 175.45 [parent_name] => Крыша (Скатная) [parent_id] => 37 [material_sum] => 4388180 [work_sum] => 3091254 [total_sum] => 7479434 [total_days] => 20 [display_material_sum] => 4 388 180 [display_work_sum] => 3 091 254 [display_total_sum] => 7 479 434 ) 1
7 479 434
Работа:3 091 254
Материалы:4 388 180
Дни:20
stdClass Object ( [id] => 172 [attribute_id] => 37 [name] => Профлист [material_modifier] => 1 [work_modifier] => 1 [options] => Array ( ) [days] => [20] [material_price] => [3450] [work_price] => [3750] [image] => https://akademik-stroy.ru/wp-content/uploads/materials/proflist.jpg [area_modifier] => 175.45 [parent_name] => Крыша (Скатная) [parent_id] => 37 [material_sum] => 762681 [work_sum] => 690834 [total_sum] => 1453515 [total_days] => 20 [display_material_sum] => 762 681 [display_work_sum] => 690 834 [display_total_sum] => 1 453 515 ) 1
1 453 515
Работа:690 834
Материалы:762 681
Дни:20
Окна
stdClass Object ( [id] => 51 [attribute_id] => 26 [name] => Есть [material_modifier] => 1 [work_modifier] => 1 [options] => Array ( [0] => Профиль 58 мм, 3-камерный, стеклопакет 2-камерный до 32 мм [1] => Профиль 60 мм, 4-камерный, стеклопакет 2-камерный до 32 мм [2] => Профиль 70 мм, 5-камерный, стеклопакет 2-камерный до 40 мм [3] => Профиль 72 мм, 5-камерный, стеклопакет 2-камерный до 40 мм [4] => Алюминиевые окна Alutech профиль 72 мм, стеклопакет 2-камерный ) [days] => [3,3,3,3,3] [material_price] => [1339,2124,2867,3023,29596] [work_price] => [635,647,659,668,2579] [image] => https://akademik-stroy.ru/wp-content/uploads/materials/okna.jpg [area_modifier] => 234.8 [parent_name] => Окна [parent_id] => 26 [material_sum] => 396140 [work_sum] => 156553 [total_sum] => 552693 [total_days] => 3 [display_material_sum] => 396 140 [display_work_sum] => 156 553 [display_total_sum] => 552 693 ) 1
552 693
Работа:156 553
Материалы:396 140
Дни:3
stdClass Object ( [id] => 52 [attribute_id] => 26 [name] => Нет [material_modifier] => 2 [work_modifier] => 1 [options] => [days] => null [material_price] => null [work_price] => null [image] => https://akademik-stroy.ru/wp-content/uploads/materials/okna.jpg [area_modifier] => 234.8 [parent_name] => Окна [parent_id] => 26 [material_sum] => 0 [work_sum] => 0 [total_sum] => 0 [total_days] => 0 [display_material_sum] => 0 [display_work_sum] => 0 [display_total_sum] => 0 ) 1
0
Работа:0
Материалы:0
Дни:0
Двери входные
stdClass Object ( [id] => 53 [attribute_id] => 27 [name] => Есть [material_modifier] => 1 [work_modifier] => 1 [options] => Array ( ) [days] => [1] [material_price] => [10000] [work_price] => [5500] [image] => https://akademik-stroy.ru/wp-content/uploads/materials/dveri.jpg [area_modifier] => 1 [parent_name] => Двери входные [parent_id] => 27 [material_sum] => 12600 [work_sum] => 5775 [total_sum] => 18375 [total_days] => 1 [display_material_sum] => 12 600 [display_work_sum] => 5 775 [display_total_sum] => 18 375 ) 1
18 375
Работа:5 775
Материалы:12 600
Дни:1
stdClass Object ( [id] => 54 [attribute_id] => 27 [name] => Нет [material_modifier] => 1 [work_modifier] => 1 [options] => Array ( ) [days] => [0] [material_price] => [0] [work_price] => [0] [image] => https://akademik-stroy.ru/wp-content/uploads/materials/dveri.jpg [area_modifier] => 1 [parent_name] => Двери входные [parent_id] => 27 [material_sum] => 0 [work_sum] => 0 [total_sum] => 0 [total_days] => 0 [display_material_sum] => 0 [display_work_sum] => 0 [display_total_sum] => 0 ) 1
0
Работа:0
Материалы:0
Дни:0
Утепление кровли (Мансарда)
stdClass Object ( [id] => 25 [attribute_id] => 13 [name] => Нет [material_modifier] => 1 [work_modifier] => 1 [options] => Array ( ) [days] => [0] [material_price] => [0] [work_price] => [0] [image] => https://akademik-stroy.ru/wp-content/uploads/materials/mineralovata-krov.jpg [area_modifier] => 175.45 [parent_name] => Утепление кровли (Мансарда) [parent_id] => 13 [material_sum] => 0 [work_sum] => 0 [total_sum] => 0 [total_days] => 0 [display_material_sum] => 0 [display_work_sum] => 0 [display_total_sum] => 0 ) 1
0
Работа:0
Материалы:0
Дни:0
stdClass Object ( [id] => 26 [attribute_id] => 13 [name] => Минераловатный [material_modifier] => 1 [work_modifier] => 1 [options] => Array ( [0] => 50 мм [1] => 100 мм [2] => 150 мм [3] => 200 мм [4] => 250 мм [5] => 300 мм [6] => 350 мм [7] => 400 мм [8] => 450 мм [9] => 500 мм ) [days] => [5,5,6,6,6,7,7,7,8,8] [material_price] => [1158,1414,1772,2230,3602,4060,4974,5890,6408,7718] [work_price] => [650,846,846,1098,1318,1450,1596,1754,1930,2122] [image] => https://akademik-stroy.ru/wp-content/uploads/materials/mineralovata-krov.jpg [area_modifier] => 175.45 [parent_name] => Утепление кровли (Мансарда) [parent_id] => 13 [material_sum] => 255996 [work_sum] => 119745 [total_sum] => 375741 [total_days] => 5 [display_material_sum] => 255 996 [display_work_sum] => 119 745 [display_total_sum] => 375 741 ) 1
375 741
Работа:119 745
Материалы:255 996
Дни:5
stdClass Object ( [id] => 123 [attribute_id] => 13 [name] => Эковата (целлюлозная вата) [material_modifier] => 1 [work_modifier] => 1 [options] => Array ( [0] => 50 мм [1] => 100 мм [2] => 150 мм [3] => 200 мм [4] => 250 мм [5] => 300 мм [6] => 350 мм [7] => 400 мм [8] => 450 мм [9] => 500 мм ) [days] => [3,3,4,4,4,5,5,5,5,5] [material_price] => [820,1638,2458,3276,5734,6552,8190,9828,11466,13104] [work_price] => [234,304,304,396,474,522,574,632,694,764] [image] => https://akademik-stroy.ru/wp-content/uploads/materials/ehkovata-krov.jpg [area_modifier] => 175.45 [parent_name] => Утепление кровли (Мансарда) [parent_id] => 13 [material_sum] => 181275 [work_sum] => 43108 [total_sum] => 224383 [total_days] => 3 [display_material_sum] => 181 275 [display_work_sum] => 43 108 [display_total_sum] => 224 383 ) 1
224 383
Работа:43 108
Материалы:181 275
Дни:3
stdClass Object ( [id] => 124 [attribute_id] => 13 [name] => Экструдированный пенополистирол [material_modifier] => 1 [work_modifier] => 1 [options] => Array ( [0] => 50 мм [1] => 100 мм [2] => 150 мм [3] => 200 мм [4] => 250 мм [5] => 300 мм [6] => 350 мм [7] => 400 мм [8] => 450 мм [9] => 500 мм ) [days] => [3,3,4,4,4,5,5,5,5,6] [material_price] => [1146,2292,3438,4584,8020,9166,11458,13750,16040,18332] [work_price] => [390,508,508,660,790,870,958,1052,1158,1274] [image] => https://akademik-stroy.ru/wp-content/uploads/materials/epps-krov.jpg [area_modifier] => 175.45 [parent_name] => Утепление кровли (Мансарда) [parent_id] => 13 [material_sum] => 253343 [work_sum] => 71847 [total_sum] => 325190 [total_days] => 3 [display_material_sum] => 253 343 [display_work_sum] => 71 847 [display_total_sum] => 325 190 ) 1
325 190
Работа:71 847
Материалы:253 343
Дни:3
stdClass Object ( [id] => 125 [attribute_id] => 13 [name] => ПСБ (ППС-пенополистирол) [material_modifier] => 1 [work_modifier] => 1 [options] => Array ( [0] => 50 мм [1] => 100 мм [2] => 150 мм [3] => 200 мм [4] => 250 мм [5] => 300 мм [6] => 350 мм [7] => 400 мм [8] => 450 мм [9] => 500 мм ) [days] => [3,3,4,4,4,5,5,5,5,6] [material_price] => [476,954,1430,1906,3336,3814,4766,5720,6674,7626] [work_price] => [390,508,508,660,790,870,958,1052,1158,1274] [image] => https://akademik-stroy.ru/wp-content/uploads/materials/psb-krov.jpg [area_modifier] => 175.45 [parent_name] => Утепление кровли (Мансарда) [parent_id] => 13 [material_sum] => 105228 [work_sum] => 71847 [total_sum] => 177075 [total_days] => 3 [display_material_sum] => 105 228 [display_work_sum] => 71 847 [display_total_sum] => 177 075 ) 1
177 075
Работа:71 847
Материалы:105 228
Дни:3
stdClass Object ( [id] => 126 [attribute_id] => 13 [name] => ППУ (Пенополиуретан) [material_modifier] => 1 [work_modifier] => 1 [options] => Array ( [0] => 50 мм [1] => 100 мм [2] => 150 мм [3] => 200 мм [4] => 250 мм [5] => 300 мм [6] => 350 мм [7] => 400 мм [8] => 450 мм [9] => 500 мм ) [days] => [2,2,3,3,3,3,4,4,4,4] [material_price] => [2080,4160,6240,8320,14560,16640,20800,24960,29120,33280] [work_price] => [234,304,304,396,474,522,574,632,694,764] [image] => https://akademik-stroy.ru/wp-content/uploads/materials/ppu-krov.jpg [area_modifier] => 175.45 [parent_name] => Утепление кровли (Мансарда) [parent_id] => 13 [material_sum] => 459819 [work_sum] => 43108 [total_sum] => 502927 [total_days] => 2 [display_material_sum] => 459 819 [display_work_sum] => 43 108 [display_total_sum] => 502 927 ) 1
502 927
Работа:43 108
Материалы:459 819
Дни:2
stdClass Object ( [id] => 127 [attribute_id] => 13 [name] => PIR-плиты (пенополиизоцианурат) [material_modifier] => 1 [work_modifier] => 1 [options] => Array ( [0] => 50 мм [1] => 100 мм [2] => 150 мм [3] => 200 мм [4] => 250 мм [5] => 300 мм [6] => 350 мм [7] => 400 мм [8] => 450 мм [9] => 500 мм ) [days] => [3,3,4,4,4,5,5,5,5,6] [material_price] => [2646,5290,7936,10580,18516,21162,26452,31742,37032,42324] [work_price] => [390,508,508,660,790,870,958,1052,1158,1274] [image] => https://akademik-stroy.ru/wp-content/uploads/materials/pir-krov.jpg [area_modifier] => 175.45 [parent_name] => Утепление кровли (Мансарда) [parent_id] => 13 [material_sum] => 584943 [work_sum] => 71847 [total_sum] => 656790 [total_days] => 3 [display_material_sum] => 584 943 [display_work_sum] => 71 847 [display_total_sum] => 656 790 ) 1
656 790
Работа:71 847
Материалы:584 943
Дни:3
Мансардные окна
stdClass Object ( [id] => 27 [attribute_id] => 14 [name] => Нет [material_modifier] => 1 [work_modifier] => 1 [options] => Array ( ) [days] => [0] [material_price] => [0] [work_price] => [0] [image] => https://akademik-stroy.ru/wp-content/uploads/materials/mansardnye-okna-2.jpg [area_modifier] => 1 [parent_name] => Мансардные окна [parent_id] => 14 [material_sum] => 0 [work_sum] => 0 [total_sum] => 0 [total_days] => 0 [display_material_sum] => 0 [display_work_sum] => 0 [display_total_sum] => 0 ) 1
0
Работа:0
Материалы:0
Дни:0
stdClass Object ( [id] => 28 [attribute_id] => 14 [name] => Есть [material_modifier] => 1 [work_modifier] => 1 [options] => Array ( [0] => 55x78 [1] => 55x98 ) [days] => [6,7] [material_price] => [47480,68700] [work_price] => [17900,19500] [image] => https://akademik-stroy.ru/wp-content/uploads/materials/mansardnye-okna-2.jpg [area_modifier] => 1 [parent_name] => Мансардные окна [parent_id] => 14 [material_sum] => 59825 [work_sum] => 18795 [total_sum] => 78620 [total_days] => 6 [display_material_sum] => 59 825 [display_work_sum] => 18 795 [display_total_sum] => 78 620 ) 1
78 620
Работа:18 795
Материалы:59 825
Дни:6
Подшивка кровли
stdClass Object ( [id] => 29 [attribute_id] => 15 [name] => Нет [material_modifier] => 1 [work_modifier] => 1 [options] => Array ( ) [days] => [0] [material_price] => [0] [work_price] => [0] [image] => https://akademik-stroy.ru/wp-content/uploads/materials/sofit.jpg [area_modifier] => 175.45 [parent_name] => Подшивка кровли [parent_id] => 15 [material_sum] => 0 [work_sum] => 0 [total_sum] => 0 [total_days] => 0 [display_material_sum] => 0 [display_work_sum] => 0 [display_total_sum] => 0 ) 1
0
Работа:0
Материалы:0
Дни:0
stdClass Object ( [id] => 30 [attribute_id] => 15 [name] => Есть [material_modifier] => 1 [work_modifier] => 1 [options] => Array ( [0] => Софиты (ПВХ) [1] => Cedral [2] => ДПК [3] => Планкен ) [days] => [7,10,9,8] [material_price] => [1803,3213,3025,3150] [work_price] => [1529,2188,2075,1923] [image] => https://akademik-stroy.ru/wp-content/uploads/materials/sofit.jpg [area_modifier] => 175.45 [parent_name] => Подшивка кровли [parent_id] => 15 [material_sum] => 398584 [work_sum] => 281676 [total_sum] => 680260 [total_days] => 7 [display_material_sum] => 398 584 [display_work_sum] => 281 676 [display_total_sum] => 680 260 ) 1
680 260
Работа:281 676
Материалы:398 584
Дни:7
Водосточная система
stdClass Object ( [id] => 31 [attribute_id] => 16 [name] => Нет [material_modifier] => 1 [work_modifier] => 1 [options] => Array ( ) [days] => [0] [material_price] => [0] [work_price] => [0] [image] => https://akademik-stroy.ru/wp-content/uploads/materials/docke-standard-pvh.jpg [area_modifier] => 175.45 [parent_name] => Водосточная система [parent_id] => 16 [material_sum] => 0 [work_sum] => 0 [total_sum] => 0 [total_days] => 0 [display_material_sum] => 0 [display_work_sum] => 0 [display_total_sum] => 0 ) 1
0
Работа:0
Материалы:0
Дни:0
stdClass Object ( [id] => 32 [attribute_id] => 16 [name] => Есть [material_modifier] => 1 [work_modifier] => 1 [options] => Array ( [0] => Döcke Standard (ПВХ) [1] => Металлические Grand Line ) [days] => [7,7] [material_price] => [1842,2703] [work_price] => [1491,1529] [image] => https://akademik-stroy.ru/wp-content/uploads/materials/docke-standard-pvh.jpg [area_modifier] => 175.45 [parent_name] => Водосточная система [parent_id] => 16 [material_sum] => 407205 [work_sum] => 274676 [total_sum] => 681881 [total_days] => 7 [display_material_sum] => 407 205 [display_work_sum] => 274 676 [display_total_sum] => 681 881 ) 1
681 881
Работа:274 676
Материалы:407 205
Дни:7
Дополнительное утепление наружных стен
stdClass Object ( [id] => 33 [attribute_id] => 17 [name] => Нет [material_modifier] => 1 [work_modifier] => 1 [options] => Array ( ) [days] => [0] [material_price] => [0] [work_price] => [0] [image] => https://akademik-stroy.ru/wp-content/uploads/materials/mineralovata.jpg [area_modifier] => 289.34 [parent_name] => Дополнительное утепление наружных стен [parent_id] => 17 [material_sum] => 0 [work_sum] => 0 [total_sum] => 0 [total_days] => 0 [display_material_sum] => 0 [display_work_sum] => 0 [display_total_sum] => 0 ) 1
0
Работа:0
Материалы:0
Дни:0
stdClass Object ( [id] => 34 [attribute_id] => 17 [name] => Минераловатный [material_modifier] => 1 [work_modifier] => 1 [options] => Array ( [0] => 50 мм [1] => 100 мм [2] => 150 мм [3] => 200 мм [4] => 250 мм [5] => 300 мм ) [days] => [7,8,10,12,14,15] [material_price] => [3437,3613,3803,3915,4601,4830] [work_price] => [2325,2423,2523,2749,2859,3025] [image] => https://akademik-stroy.ru/wp-content/uploads/materials/mineralovata.jpg [area_modifier] => 289.34 [parent_name] => Дополнительное утепление наружных стен [parent_id] => 17 [material_sum] => 1253022 [work_sum] => 706351 [total_sum] => 1959373 [total_days] => 7 [display_material_sum] => 1 253 022 [display_work_sum] => 706 351 [display_total_sum] => 1 959 373 ) 1
1 959 373
Работа:706 351
Материалы:1 253 022
Дни:7
stdClass Object ( [id] => 128 [attribute_id] => 17 [name] => Эковата (целлюлозная вата) [material_modifier] => 1 [work_modifier] => 1 [options] => Array ( [0] => 50 мм [1] => 100 мм [2] => 150 мм [3] => 200 мм [4] => 250 мм [5] => 300 мм ) [days] => [3,4,5,6,7,8] [material_price] => [810,1319,1629,1838,2267,2676] [work_price] => [1225,1323,1423,1549,1659,1725] [image] => https://akademik-stroy.ru/wp-content/uploads/materials/ehkovata.jpg [area_modifier] => 289.34 [parent_name] => Дополнительное утепление наружных стен [parent_id] => 17 [material_sum] => 295300 [work_sum] => 372164 [total_sum] => 667464 [total_days] => 3 [display_material_sum] => 295 300 [display_work_sum] => 372 164 [display_total_sum] => 667 464 ) 1
667 464
Работа:372 164
Материалы:295 300
Дни:3
stdClass Object ( [id] => 129 [attribute_id] => 17 [name] => Экструдированный пенополистирол [material_modifier] => 1 [work_modifier] => 1 [options] => Array ( [0] => 50 мм [1] => 100 мм [2] => 150 мм [3] => 200 мм [4] => 250 мм [5] => 300 мм ) [days] => [5,6,7,8,9,10] [material_price] => [4560,4300,5119,6292,7010,8583] [work_price] => [1795,1954,2254,2330,2595,2735] [image] => https://akademik-stroy.ru/wp-content/uploads/materials/epps.jpg [area_modifier] => 289.34 [parent_name] => Дополнительное утепление наружных стен [parent_id] => 17 [material_sum] => 1662432 [work_sum] => 545334 [total_sum] => 2207766 [total_days] => 5 [display_material_sum] => 1 662 432 [display_work_sum] => 545 334 [display_total_sum] => 2 207 766 ) 1
2 207 766
Работа:545 334
Материалы:1 662 432
Дни:5
stdClass Object ( [id] => 130 [attribute_id] => 17 [name] => ПСБ (ППС-пенополистирол) [material_modifier] => 1 [work_modifier] => 1 [options] => Array ( [0] => 50 мм [1] => 100 мм [2] => 150 мм [3] => 200 мм [4] => 250 мм [5] => 300 мм ) [days] => [5,6,7,8,9,10] [material_price] => [4822,5200,5819,6292,7010,7583] [work_price] => [1795,1954,2254,2330,2595,2735] [image] => https://akademik-stroy.ru/wp-content/uploads/materials/psb.jpg [area_modifier] => 289.34 [parent_name] => Дополнительное утепление наружных стен [parent_id] => 17 [material_sum] => 1757949 [work_sum] => 545334 [total_sum] => 2303283 [total_days] => 5 [display_material_sum] => 1 757 949 [display_work_sum] => 545 334 [display_total_sum] => 2 303 283 ) 1
2 303 283
Работа:545 334
Материалы:1 757 949
Дни:5
stdClass Object ( [id] => 131 [attribute_id] => 17 [name] => ППУ (Пенополиуретан) [material_modifier] => 1 [work_modifier] => 1 [options] => Array ( [0] => 50 мм [1] => 100 мм [2] => 150 мм [3] => 200 мм [4] => 250 мм [5] => 300 мм ) [days] => [3,4,5,6,7,8] [material_price] => [2860,3400,4219,4592,5010,5583] [work_price] => [729,900,980,1120,1280,1530] [image] => https://akademik-stroy.ru/wp-content/uploads/materials/ppu.jpg [area_modifier] => 289.34 [parent_name] => Дополнительное утепление наружных стен [parent_id] => 17 [material_sum] => 1042666 [work_sum] => 221475 [total_sum] => 1264141 [total_days] => 3 [display_material_sum] => 1 042 666 [display_work_sum] => 221 475 [display_total_sum] => 1 264 141 ) 1
1 264 141
Работа:221 475
Материалы:1 042 666
Дни:3
stdClass Object ( [id] => 132 [attribute_id] => 17 [name] => PIR-плиты (пенополиизоцианурат) [material_modifier] => 1 [work_modifier] => 1 [options] => Array ( [0] => 50 мм [1] => 100 мм [2] => 150 мм [3] => 200 мм [4] => 250 мм [5] => 300 мм ) [days] => [5,6,7,8,9,10] [material_price] => [8323,15645,20968,25900,29258,30581] [work_price] => [800,900,970,1150,1280,1330] [image] => https://akademik-stroy.ru/wp-content/uploads/materials/pir.jpg [area_modifier] => 289.34 [parent_name] => Дополнительное утепление наружных стен [parent_id] => 17 [material_sum] => 3034303 [work_sum] => 243046 [total_sum] => 3277349 [total_days] => 5 [display_material_sum] => 3 034 303 [display_work_sum] => 243 046 [display_total_sum] => 3 277 349 ) 1
3 277 349
Работа:243 046
Материалы:3 034 303
Дни:5
Наружная отделка фасада
stdClass Object ( [id] => 37 [attribute_id] => 19 [name] => Нет [material_modifier] => 1 [work_modifier] => 1 [options] => Array ( ) [days] => [0] [material_price] => [0] [work_price] => [0] [image] => https://akademik-stroy.ru/wp-content/uploads/materials/imitaciya-brusa.jpg [area_modifier] => 289.34 [parent_name] => Наружная отделка фасада [parent_id] => 19 [material_sum] => 0 [work_sum] => 0 [total_sum] => 0 [total_days] => 0 [display_material_sum] => 0 [display_work_sum] => 0 [display_total_sum] => 0 ) 1
0
Работа:0
Материалы:0
Дни:0
stdClass Object ( [id] => 38 [attribute_id] => 19 [name] => Имитация бруса [material_modifier] => 1 [work_modifier] => 1 [options] => Array ( [0] => Сосна [1] => Ель [2] => Лиственница ) [days] => [20,20,20] [material_price] => [2994,2762,4954] [work_price] => [1397,1231,1577] [image] => https://akademik-stroy.ru/wp-content/uploads/materials/imitaciya-brusa.jpg [area_modifier] => 289.34 [parent_name] => Наружная отделка фасада [parent_id] => 19 [material_sum] => 1091518 [work_sum] => 424418 [total_sum] => 1515936 [total_days] => 20 [display_material_sum] => 1 091 518 [display_work_sum] => 424 418 [display_total_sum] => 1 515 936 ) 1
1 515 936
Работа:424 418
Материалы:1 091 518
Дни:20
stdClass Object ( [id] => 136 [attribute_id] => 19 [name] => Планкен [material_modifier] => 1 [work_modifier] => 1 [options] => Array ( [0] => Сосна [1] => Ель [2] => Лиственница ) [days] => [20,20,20] [material_price] => [3194,2862,5154] [work_price] => [1537,1354,1735] [image] => https://akademik-stroy.ru/wp-content/uploads/materials/planken.jpg [area_modifier] => 289.34 [parent_name] => Наружная отделка фасада [parent_id] => 19 [material_sum] => 1164431 [work_sum] => 466951 [total_sum] => 1631382 [total_days] => 20 [display_material_sum] => 1 164 431 [display_work_sum] => 466 951 [display_total_sum] => 1 631 382 ) 1
1 631 382
Работа:466 951
Материалы:1 164 431
Дни:20
stdClass Object ( [id] => 137 [attribute_id] => 19 [name] => Штукатурка [material_modifier] => 1 [work_modifier] => 1 [options] => Array ( [0] => Цементно-песчаная (минеральная) [1] => Мокрый фасад ) [days] => [35,35] [material_price] => [2231,3938] [work_price] => [1202,2422] [image] => https://akademik-stroy.ru/wp-content/uploads/materials/shtukaturka.jpg [area_modifier] => 289.34 [parent_name] => Наружная отделка фасада [parent_id] => 19 [material_sum] => 813352 [work_sum] => 365176 [total_sum] => 1178528 [total_days] => 35 [display_material_sum] => 813 352 [display_work_sum] => 365 176 [display_total_sum] => 1 178 528 ) 1
1 178 528
Работа:365 176
Материалы:813 352
Дни:35
stdClass Object ( [id] => 138 [attribute_id] => 19 [name] => Облицовочный кирпич [material_modifier] => 1 [work_modifier] => 1 [options] => Array ( [0] => Керамический [1] => Клинкерный [2] => Ручной формовки [3] => Гиперпрессованный [4] => Силикатный кирпич ) [days] => [45,45,45,45,45] [material_price] => [8174,9148,1040,1257,5876] [work_price] => [3240,3758,4536,4017,3369] [image] => https://akademik-stroy.ru/wp-content/uploads/materials/oblicovochnyj-kirpich.jpg [area_modifier] => 289.34 [parent_name] => Наружная отделка фасада [parent_id] => 19 [material_sum] => 2979982 [work_sum] => 984335 [total_sum] => 3964317 [total_days] => 45 [display_material_sum] => 2 979 982 [display_work_sum] => 984 335 [display_total_sum] => 3 964 317 ) 1
3 964 317
Работа:984 335
Материалы:2 979 982
Дни:45
stdClass Object ( [id] => 139 [attribute_id] => 19 [name] => Фасадная плитка [material_modifier] => 1 [work_modifier] => 1 [options] => Array ( [0] => Клинкерная [1] => Керамическая [2] => Плитка ручной формовки ) [days] => [40,40,40] [material_price] => [2974,1487,3470] [work_price] => [3007,2592,3629] [image] => https://akademik-stroy.ru/wp-content/uploads/materials/fasadnaya-plitka.jpg [area_modifier] => 289.34 [parent_name] => Наружная отделка фасада [parent_id] => 19 [material_sum] => 1084226 [work_sum] => 913548 [total_sum] => 1997774 [total_days] => 40 [display_material_sum] => 1 084 226 [display_work_sum] => 913 548 [display_total_sum] => 1 997 774 ) 1
1 997 774
Работа:913 548
Материалы:1 084 226
Дни:40
stdClass Object ( [id] => 140 [attribute_id] => 19 [name] => Сайдинг [material_modifier] => 1 [work_modifier] => 1 [options] => Array ( [0] => Виниловый [1] => Металлический [2] => Фиброцементный ) [days] => [20,20,20] [material_price] => [1263,1944,4147] [work_price] => [1263,1944,2074] [image] => https://akademik-stroy.ru/wp-content/uploads/materials/sajding.jpg [area_modifier] => 289.34 [parent_name] => Наружная отделка фасада [parent_id] => 19 [material_sum] => 460450 [work_sum] => 383708 [total_sum] => 844158 [total_days] => 20 [display_material_sum] => 460 450 [display_work_sum] => 383 708 [display_total_sum] => 844 158 ) 1
844 158
Работа:383 708
Материалы:460 450
Дни:20
stdClass Object ( [id] => 141 [attribute_id] => 19 [name] => Камень [material_modifier] => 1 [work_modifier] => 1 [options] => Array ( [0] => Травертин [1] => Дагестанский [2] => Искусственный [3] => Натуральный [4] => Керамогранит ) [days] => [45,45,45,45,45] [material_price] => [4536,3888,2592,3240,2462] [work_price] => [3240,3240,2462,3110,1944] [image] => https://akademik-stroy.ru/wp-content/uploads/materials/kamen-1.jpg [area_modifier] => 289.34 [parent_name] => Наружная отделка фасада [parent_id] => 19 [material_sum] => 1653682 [work_sum] => 984335 [total_sum] => 2638017 [total_days] => 45 [display_material_sum] => 1 653 682 [display_work_sum] => 984 335 [display_total_sum] => 2 638 017 ) 1
2 638 017
Работа:984 335
Материалы:1 653 682
Дни:45
stdClass Object ( [id] => 142 [attribute_id] => 19 [name] => Термопанели [material_modifier] => 1 [work_modifier] => 1 [options] => Array ( ) [days] => [20] [material_price] => [6221] [work_price] => [2333] [image] => https://akademik-stroy.ru/wp-content/uploads/materials/termo.png [area_modifier] => 289.34 [parent_name] => Наружная отделка фасада [parent_id] => 19 [material_sum] => 2267980 [work_sum] => 708782 [total_sum] => 2976762 [total_days] => 20 [display_material_sum] => 2 267 980 [display_work_sum] => 708 782 [display_total_sum] => 2 976 762 ) 1
2 976 762
Работа:708 782
Материалы:2 267 980
Дни:20
stdClass Object ( [id] => 143 [attribute_id] => 19 [name] => Плитка HAUBERK [material_modifier] => 1 [work_modifier] => 1 [options] => Array ( ) [days] => [20] [material_price] => [2786] [work_price] => [1944] [image] => https://akademik-stroy.ru/wp-content/uploads/materials/hauberk.jpg [area_modifier] => 289.34 [parent_name] => Наружная отделка фасада [parent_id] => 19 [material_sum] => 1015688 [work_sum] => 590601 [total_sum] => 1606289 [total_days] => 20 [display_material_sum] => 1 015 688 [display_work_sum] => 590 601 [display_total_sum] => 1 606 289 ) 1
1 606 289
Работа:590 601
Материалы:1 015 688
Дни:20
stdClass Object ( [id] => 144 [attribute_id] => 19 [name] => Фальцевый фасад [material_modifier] => 1 [work_modifier] => 1 [options] => Array ( ) [days] => [20] [material_price] => [3240] [work_price] => [2592] [image] => https://akademik-stroy.ru/wp-content/uploads/materials/falcevyj-fasad.jpg [area_modifier] => 289.34 [parent_name] => Наружная отделка фасада [parent_id] => 19 [material_sum] => 1181202 [work_sum] => 787468 [total_sum] => 1968670 [total_days] => 20 [display_material_sum] => 1 181 202 [display_work_sum] => 787 468 [display_total_sum] => 1 968 670 ) 1
1 968 670
Работа:787 468
Материалы:1 181 202
Дни:20
stdClass Object ( [id] => 145 [attribute_id] => 19 [name] => Комбинированный [material_modifier] => 1 [work_modifier] => 1 [options] => Array ( ) [days] => [20] [material_price] => [4629] [work_price] => [3499] [image] => https://akademik-stroy.ru/wp-content/uploads/materials/Kombinirovannyj.jpg [area_modifier] => 289.34 [parent_name] => Наружная отделка фасада [parent_id] => 19 [material_sum] => 1687587 [work_sum] => 1063021 [total_sum] => 2750608 [total_days] => 20 [display_material_sum] => 1 687 587 [display_work_sum] => 1 063 021 [display_total_sum] => 2 750 608 ) 1
2 750 608
Работа:1 063 021
Материалы:1 687 587
Дни:20
stdClass Object ( [id] => 257 [attribute_id] => 19 [name] => Японские фиброцементные [material_modifier] => 1 [work_modifier] => 1 [options] => Array ( ) [days] => [20] [material_price] => [7043] [work_price] => [2993] [image] => https://akademik-stroy.ru/wp-content/uploads/materials/paneli.jpg [area_modifier] => 289.34 [parent_name] => Наружная отделка фасада [parent_id] => 19 [material_sum] => 2567655 [work_sum] => 909294 [total_sum] => 3476949 [total_days] => 20 [display_material_sum] => 2 567 655 [display_work_sum] => 909 294 [display_total_sum] => 3 476 949 ) 1
3 476 949
Работа:909 294
Материалы:2 567 655
Дни:20
stdClass Object ( [id] => 258 [attribute_id] => 19 [name] => Панели Каньон [material_modifier] => 1 [work_modifier] => 1 [options] => Array ( ) [days] => [20] [material_price] => [4543] [work_price] => [2592] [image] => https://akademik-stroy.ru/wp-content/uploads/materials/kanon.png [area_modifier] => 289.34 [parent_name] => Наружная отделка фасада [parent_id] => 19 [material_sum] => 1656234 [work_sum] => 787468 [total_sum] => 2443702 [total_days] => 20 [display_material_sum] => 1 656 234 [display_work_sum] => 787 468 [display_total_sum] => 2 443 702 ) 1
2 443 702
Работа:787 468
Материалы:1 656 234
Дни:20
Террасы, крыльца, навесы
stdClass Object ( [id] => 39 [attribute_id] => 20 [name] => Нет [material_modifier] => 1 [work_modifier] => 1 [options] => Array ( ) [days] => [0] [material_price] => [0] [work_price] => [0] [image] => https://akademik-stroy.ru/wp-content/uploads/materials/terrasy.jpg [area_modifier] => 30 [parent_name] => Террасы, крыльца, навесы [parent_id] => 20 [material_sum] => 0 [work_sum] => 0 [total_sum] => 0 [total_days] => 0 [display_material_sum] => 0 [display_work_sum] => 0 [display_total_sum] => 0 ) 1
0
Работа:0
Материалы:0
Дни:0
stdClass Object ( [id] => 40 [attribute_id] => 20 [name] => Есть [material_modifier] => 1 [work_modifier] => 1 [options] => Array ( ) [days] => [5] [material_price] => [10450] [work_price] => [1950] [image] => https://akademik-stroy.ru/wp-content/uploads/materials/terrasy.jpg [area_modifier] => 30 [parent_name] => Террасы, крыльца, навесы [parent_id] => 20 [material_sum] => 395010 [work_sum] => 61425 [total_sum] => 456435 [total_days] => 5 [display_material_sum] => 395 010 [display_work_sum] => 61 425 [display_total_sum] => 456 435 ) 1
456 435
Работа:61 425
Материалы:395 010
Дни:5
Балконы
stdClass Object ( [id] => 41 [attribute_id] => 21 [name] => Нет [material_modifier] => 1 [work_modifier] => 1 [options] => Array ( ) [days] => [0] [material_price] => [0] [work_price] => [0] [image] => https://akademik-stroy.ru/wp-content/uploads/materials/balkony.jpg [area_modifier] => 30 [parent_name] => Балконы [parent_id] => 21 [material_sum] => 0 [work_sum] => 0 [total_sum] => 0 [total_days] => 0 [display_material_sum] => 0 [display_work_sum] => 0 [display_total_sum] => 0 ) 1
0
Работа:0
Материалы:0
Дни:0
stdClass Object ( [id] => 42 [attribute_id] => 21 [name] => Есть [material_modifier] => 1 [work_modifier] => 1 [options] => Array ( ) [days] => [12] [material_price] => [3600] [work_price] => [1950] [image] => https://akademik-stroy.ru/wp-content/uploads/materials/balkony.jpg [area_modifier] => 30 [parent_name] => Балконы [parent_id] => 21 [material_sum] => 136080 [work_sum] => 61425 [total_sum] => 197505 [total_days] => 12 [display_material_sum] => 136 080 [display_work_sum] => 61 425 [display_total_sum] => 197 505 ) 1
197 505
Работа:61 425
Материалы:136 080
Дни:12
Отмостка
stdClass Object ( [id] => 43 [attribute_id] => 22 [name] => Нет [material_modifier] => 1 [work_modifier] => 1 [options] => Array ( ) [days] => [0] [material_price] => [0] [work_price] => [0] [image] => https://akademik-stroy.ru/wp-content/uploads/materials/uteplennaya.jpg [area_modifier] => 175.45 [parent_name] => Отмостка [parent_id] => 22 [material_sum] => 0 [work_sum] => 0 [total_sum] => 0 [total_days] => 0 [display_material_sum] => 0 [display_work_sum] => 0 [display_total_sum] => 0 ) 1
0
Работа:0
Материалы:0
Дни:0
stdClass Object ( [id] => 44 [attribute_id] => 22 [name] => Утепленная отмостка [material_modifier] => 1 [work_modifier] => 1 [options] => Array ( ) [days] => [15] [material_price] => [2550] [work_price] => [1750] [image] => https://akademik-stroy.ru/wp-content/uploads/materials/uteplennaya.jpg [area_modifier] => 175.45 [parent_name] => Отмостка [parent_id] => 22 [material_sum] => 563721 [work_sum] => 322389 [total_sum] => 886110 [total_days] => 15 [display_material_sum] => 563 721 [display_work_sum] => 322 389 [display_total_sum] => 886 110 ) 1
886 110
Работа:322 389
Материалы:563 721
Дни:15
stdClass Object ( [id] => 146 [attribute_id] => 22 [name] => Не утепленная отмостка [material_modifier] => 1 [work_modifier] => 1 [options] => Array ( ) [days] => [10] [material_price] => [1650] [work_price] => [1450] [image] => https://akademik-stroy.ru/wp-content/uploads/materials/ne-uteplennaya.jpg [area_modifier] => 175.45 [parent_name] => Отмостка [parent_id] => 22 [material_sum] => 364761 [work_sum] => 267123 [total_sum] => 631884 [total_days] => 10 [display_material_sum] => 364 761 [display_work_sum] => 267 123 [display_total_sum] => 631 884 ) 1
631 884
Работа:267 123
Материалы:364 761
Дни:10
Дренаж вокруг дома
stdClass Object ( [id] => 45 [attribute_id] => 23 [name] => Нет [material_modifier] => 1 [work_modifier] => 1 [options] => Array ( ) [days] => [0] [material_price] => [0] [work_price] => [0] [image] => https://akademik-stroy.ru/wp-content/uploads/materials/drenazh-2.jpg [area_modifier] => 175.45 [parent_name] => Дренаж вокруг дома [parent_id] => 23 [material_sum] => 0 [work_sum] => 0 [total_sum] => 0 [total_days] => 0 [display_material_sum] => 0 [display_work_sum] => 0 [display_total_sum] => 0 ) 1
0
Работа:0
Материалы:0
Дни:0
stdClass Object ( [id] => 46 [attribute_id] => 23 [name] => Есть [material_modifier] => 1 [work_modifier] => 1 [options] => Array ( ) [days] => [5] [material_price] => [2366] [work_price] => [1911] [image] => https://akademik-stroy.ru/wp-content/uploads/materials/drenazh-2.jpg [area_modifier] => 175.45 [parent_name] => Дренаж вокруг дома [parent_id] => 23 [material_sum] => 523045 [work_sum] => 352049 [total_sum] => 875094 [total_days] => 5 [display_material_sum] => 523 045 [display_work_sum] => 352 049 [display_total_sum] => 875 094 ) 1
875 094
Работа:352 049
Материалы:523 045
Дни:5
Автономная канализация (септики)
stdClass Object ( [id] => 47 [attribute_id] => 24 [name] => Нет [material_modifier] => 1 [work_modifier] => 1 [options] => Array ( ) [days] => [0] [material_price] => [0] [work_price] => [0] [image] => https://akademik-stroy.ru/wp-content/uploads/materials/septik.jpg [area_modifier] => 1 [parent_name] => Автономная канализация (септики) [parent_id] => 24 [material_sum] => 0 [work_sum] => 0 [total_sum] => 0 [total_days] => 0 [display_material_sum] => 0 [display_work_sum] => 0 [display_total_sum] => 0 ) 1
0
Работа:0
Материалы:0
Дни:0
stdClass Object ( [id] => 48 [attribute_id] => 24 [name] => Есть [material_modifier] => 1 [work_modifier] => 1 [options] => Array ( [0] => Для дачи на 4 человека [1] => Для дома на 5 человек [2] => Для дома на 6 человек [3] => Для дома на 7 человек [4] => Для дома на 10 человек ) [days] => [7,7,7,8,8] [material_price] => [196340,220500,240940,264200,293340] [work_price] => [50000,55000,60500,66550,73206] [image] => https://akademik-stroy.ru/wp-content/uploads/materials/septik.jpg [area_modifier] => 1 [parent_name] => Автономная канализация (септики) [parent_id] => 24 [material_sum] => 247388 [work_sum] => 52500 [total_sum] => 299888 [total_days] => 7 [display_material_sum] => 247 388 [display_work_sum] => 52 500 [display_total_sum] => 299 888 ) 1
299 888
Работа:52 500
Материалы:247 388
Дни:7
Внутренние (не несущие) перегородки
stdClass Object ( [id] => 49 [attribute_id] => 25 [name] => Нет [material_modifier] => 1 [work_modifier] => 1 [options] => Array ( ) [days] => [0] [material_price] => [0] [work_price] => [0] [image] => https://akademik-stroy.ru/wp-content/uploads/materials/gkl.jpg [area_modifier] => 289.34 [parent_name] => Внутренние (не несущие) перегородки [parent_id] => 25 [material_sum] => 0 [work_sum] => 0 [total_sum] => 0 [total_days] => 0 [display_material_sum] => 0 [display_work_sum] => 0 [display_total_sum] => 0 ) 1
0
Работа:0
Материалы:0
Дни:0
stdClass Object ( [id] => 147 [attribute_id] => 25 [name] => Каркасно-обшивные [material_modifier] => 1 [work_modifier] => 1 [options] => Array ( [0] => 75 мм (без шумоизоляции) [1] => 75 мм (с шумоизоляцией) ) [days] => [11,11] [material_price] => [580,970] [work_price] => [380,570] [image] => https://akademik-stroy.ru/wp-content/uploads/materials/gkl.jpg [area_modifier] => 289.34 [parent_name] => Внутренние (не несущие) перегородки [parent_id] => 25 [material_sum] => 211450 [work_sum] => 115447 [total_sum] => 326897 [total_days] => 11 [display_material_sum] => 211 450 [display_work_sum] => 115 447 [display_total_sum] => 326 897 ) 1
326 897
Работа:115 447
Материалы:211 450
Дни:11
stdClass Object ( [id] => 148 [attribute_id] => 25 [name] => Пазогребневые [material_modifier] => 1 [work_modifier] => 1 [options] => Array ( [0] => 80 мм [1] => 100 мм ) [days] => [5,5] [material_price] => [1022,1313] [work_price] => [600,700] [image] => https://akademik-stroy.ru/wp-content/uploads/materials/pazogrebnevye-bloki.jpg [area_modifier] => 289.34 [parent_name] => Внутренние (не несущие) перегородки [parent_id] => 25 [material_sum] => 372589 [work_sum] => 182284 [total_sum] => 554873 [total_days] => 5 [display_material_sum] => 372 589 [display_work_sum] => 182 284 [display_total_sum] => 554 873 ) 1
554 873
Работа:182 284
Материалы:372 589
Дни:5
stdClass Object ( [id] => 149 [attribute_id] => 25 [name] => Газобетонные [material_modifier] => 1 [work_modifier] => 1 [options] => Array ( [0] => 100 мм [1] => 200 мм ) [days] => [11,11] [material_price] => [1160,1920] [work_price] => [700,900] [image] => https://akademik-stroy.ru/wp-content/uploads/materials/gazobeton-2.jpg [area_modifier] => 289.34 [parent_name] => Внутренние (не несущие) перегородки [parent_id] => 25 [material_sum] => 422899 [work_sum] => 212665 [total_sum] => 635564 [total_days] => 11 [display_material_sum] => 422 899 [display_work_sum] => 212 665 [display_total_sum] => 635 564 ) 1
635 564
Работа:212 665
Материалы:422 899
Дни:11
stdClass Object ( [id] => 150 [attribute_id] => 25 [name] => Кирпичные [material_modifier] => 1 [work_modifier] => 1 [options] => Array ( [0] => 120 мм [1] => 250 мм [2] => 360 мм ) [days] => [7,7,7] [material_price] => [1785,3570,5355] [work_price] => [900,1600,1800] [image] => https://akademik-stroy.ru/wp-content/uploads/materials/kirpich-1.jpg [area_modifier] => 289.34 [parent_name] => Внутренние (не несущие) перегородки [parent_id] => 25 [material_sum] => 650755 [work_sum] => 273426 [total_sum] => 924181 [total_days] => 7 [display_material_sum] => 650 755 [display_work_sum] => 273 426 [display_total_sum] => 924 181 ) 1
924 181
Работа:273 426
Материалы:650 755
Дни:7
Электрика
stdClass Object ( [id] => 55 [attribute_id] => 28 [name] => Нет [material_modifier] => 1 [work_modifier] => 1 [options] => Array ( ) [days] => [0] [material_price] => [0] [work_price] => [0] [image] => https://akademik-stroy.ru/wp-content/uploads/materials/ehlektrika.jpg [area_modifier] => 234.8 [parent_name] => Электрика [parent_id] => 28 [material_sum] => 0 [work_sum] => 0 [total_sum] => 0 [total_days] => 0 [display_material_sum] => 0 [display_work_sum] => 0 [display_total_sum] => 0 ) 1
0
Работа:0
Материалы:0
Дни:0
stdClass Object ( [id] => 56 [attribute_id] => 28 [name] => Есть [material_modifier] => 1 [work_modifier] => 1 [options] => Array ( ) [days] => [10] [material_price] => [650] [work_price] => [950] [image] => https://akademik-stroy.ru/wp-content/uploads/materials/ehlektrika.jpg [area_modifier] => 234.8 [parent_name] => Электрика [parent_id] => 28 [material_sum] => 192301 [work_sum] => 234213 [total_sum] => 426514 [total_days] => 10 [display_material_sum] => 192 301 [display_work_sum] => 234 213 [display_total_sum] => 426 514 ) 1
426 514
Работа:234 213
Материалы:192 301
Дни:10
Сантехника, канализация в доме
stdClass Object ( [id] => 57 [attribute_id] => 29 [name] => Нет [material_modifier] => 1 [work_modifier] => 1 [options] => Array ( ) [days] => [0] [material_price] => [0] [work_price] => [0] [image] => https://akademik-stroy.ru/wp-content/uploads/materials/santekhnika-kanalizaciya-1.jpg [area_modifier] => 234.8 [parent_name] => Сантехника, канализация в доме [parent_id] => 29 [material_sum] => 0 [work_sum] => 0 [total_sum] => 0 [total_days] => 0 [display_material_sum] => 0 [display_work_sum] => 0 [display_total_sum] => 0 ) 1
0
Работа:0
Материалы:0
Дни:0
stdClass Object ( [id] => 58 [attribute_id] => 29 [name] => Есть [material_modifier] => 1 [work_modifier] => 1 [options] => Array ( ) [days] => [10] [material_price] => [600] [work_price] => [730] [image] => https://akademik-stroy.ru/wp-content/uploads/materials/santekhnika-kanalizaciya-1.jpg [area_modifier] => 234.8 [parent_name] => Сантехника, канализация в доме [parent_id] => 29 [material_sum] => 177509 [work_sum] => 179974 [total_sum] => 357483 [total_days] => 10 [display_material_sum] => 177 509 [display_work_sum] => 179 974 [display_total_sum] => 357 483 ) 1
357 483
Работа:179 974
Материалы:177 509
Дни:10
Отопление
stdClass Object ( [id] => 59 [attribute_id] => 30 [name] => Нет [material_modifier] => 1 [work_modifier] => 1 [options] => Array ( ) [days] => [0] [material_price] => [0] [work_price] => [0] [image] => https://akademik-stroy.ru/wp-content/uploads/materials/otoplenie-1.jpg [area_modifier] => 234.8 [parent_name] => Отопление [parent_id] => 30 [material_sum] => 0 [work_sum] => 0 [total_sum] => 0 [total_days] => 0 [display_material_sum] => 0 [display_work_sum] => 0 [display_total_sum] => 0 ) 1
0
Работа:0
Материалы:0
Дни:0
stdClass Object ( [id] => 60 [attribute_id] => 30 [name] => Есть [material_modifier] => 1 [work_modifier] => 1 [options] => Array ( ) [days] => [5] [material_price] => [610] [work_price] => [560] [image] => https://akademik-stroy.ru/wp-content/uploads/materials/otoplenie-1.jpg [area_modifier] => 234.8 [parent_name] => Отопление [parent_id] => 30 [material_sum] => 180467 [work_sum] => 138062 [total_sum] => 318529 [total_days] => 5 [display_material_sum] => 180 467 [display_work_sum] => 138 062 [display_total_sum] => 318 529 ) 1
318 529
Работа:138 062
Материалы:180 467
Дни:5
Теплые полы
stdClass Object ( [id] => 61 [attribute_id] => 31 [name] => Нет [material_modifier] => 1 [work_modifier] => 1 [options] => Array ( ) [days] => [0] [material_price] => [0] [work_price] => [0] [image] => https://akademik-stroy.ru/wp-content/uploads/materials/vodyanye.jpg [area_modifier] => 30 [parent_name] => Теплые полы [parent_id] => 31 [material_sum] => 0 [work_sum] => 0 [total_sum] => 0 [total_days] => 0 [display_material_sum] => 0 [display_work_sum] => 0 [display_total_sum] => 0 ) 1
0
Работа:0
Материалы:0
Дни:0
stdClass Object ( [id] => 151 [attribute_id] => 31 [name] => Водяные [material_modifier] => 1 [work_modifier] => 1 [options] => Array ( ) [days] => [9] [material_price] => [10200] [work_price] => [2500] [image] => https://akademik-stroy.ru/wp-content/uploads/materials/vodyanye.jpg [area_modifier] => 30 [parent_name] => Теплые полы [parent_id] => 31 [material_sum] => 385560 [work_sum] => 78750 [total_sum] => 464310 [total_days] => 9 [display_material_sum] => 385 560 [display_work_sum] => 78 750 [display_total_sum] => 464 310 ) 1
464 310
Работа:78 750
Материалы:385 560
Дни:9
stdClass Object ( [id] => 152 [attribute_id] => 31 [name] => Электро [material_modifier] => 1 [work_modifier] => 1 [options] => Array ( ) [days] => [5] [material_price] => [6300] [work_price] => [1500] [image] => https://akademik-stroy.ru/wp-content/uploads/materials/ehlektricheskij.jpg [area_modifier] => 30 [parent_name] => Теплые полы [parent_id] => 31 [material_sum] => 238140 [work_sum] => 47250 [total_sum] => 285390 [total_days] => 5 [display_material_sum] => 238 140 [display_work_sum] => 47 250 [display_total_sum] => 285 390 ) 1
285 390
Работа:47 250
Материалы:238 140
Дни:5
Черновая отделка стен
stdClass Object ( [id] => 63 [attribute_id] => 32 [name] => Нет [material_modifier] => 1 [work_modifier] => 1 [options] => Array ( ) [days] => [0] [material_price] => [0] [work_price] => [0] [image] => https://akademik-stroy.ru/wp-content/uploads/materials/shtukaturka-shpatlevka-1.jpg [area_modifier] => 234.8 [parent_name] => Черновая отделка стен [parent_id] => 32 [material_sum] => 0 [work_sum] => 0 [total_sum] => 0 [total_days] => 0 [display_material_sum] => 0 [display_work_sum] => 0 [display_total_sum] => 0 ) 1
0
Работа:0
Материалы:0
Дни:0
stdClass Object ( [id] => 153 [attribute_id] => 32 [name] => Штукатурка и шпатлевка [material_modifier] => 1 [work_modifier] => 1 [options] => Array ( ) [days] => [20] [material_price] => [1850] [work_price] => [2600] [image] => https://akademik-stroy.ru/wp-content/uploads/materials/shtukaturka-shpatlevka-1.jpg [area_modifier] => 234.8 [parent_name] => Черновая отделка стен [parent_id] => 32 [material_sum] => 547319 [work_sum] => 641004 [total_sum] => 1188323 [total_days] => 20 [display_material_sum] => 547 319 [display_work_sum] => 641 004 [display_total_sum] => 1 188 323 ) 1
1 188 323
Работа:641 004
Материалы:547 319
Дни:20
stdClass Object ( [id] => 154 [attribute_id] => 32 [name] => Гипсокортон на стены [material_modifier] => 1 [work_modifier] => 1 [options] => Array ( ) [days] => [15] [material_price] => [950] [work_price] => [2100] [image] => https://akademik-stroy.ru/wp-content/uploads/materials/gkl-1.jpg [area_modifier] => 234.8 [parent_name] => Черновая отделка стен [parent_id] => 32 [material_sum] => 281056 [work_sum] => 517734 [total_sum] => 798790 [total_days] => 15 [display_material_sum] => 281 056 [display_work_sum] => 517 734 [display_total_sum] => 798 790 ) 1
798 790
Работа:517 734
Материалы:281 056
Дни:15
stdClass Object ( [id] => 155 [attribute_id] => 32 [name] => Вагонка [material_modifier] => 1 [work_modifier] => 1 [options] => Array ( ) [days] => [15] [material_price] => [1250] [work_price] => [950] [image] => https://akademik-stroy.ru/wp-content/uploads/materials/vagonka.jpg [area_modifier] => 234.8 [parent_name] => Черновая отделка стен [parent_id] => 32 [material_sum] => 369810 [work_sum] => 234213 [total_sum] => 604023 [total_days] => 15 [display_material_sum] => 369 810 [display_work_sum] => 234 213 [display_total_sum] => 604 023 ) 1
604 023
Работа:234 213
Материалы:369 810
Дни:15
Черновая отделка полов
stdClass Object ( [id] => 65 [attribute_id] => 33 [name] => Нет [material_modifier] => 1 [work_modifier] => 1 [options] => Array ( ) [days] => [0] [material_price] => [0] [work_price] => [0] [image] => https://akademik-stroy.ru/wp-content/uploads/materials/styazhka.jpg [area_modifier] => 234.8 [parent_name] => Черновая отделка полов [parent_id] => 33 [material_sum] => 0 [work_sum] => 0 [total_sum] => 0 [total_days] => 0 [display_material_sum] => 0 [display_work_sum] => 0 [display_total_sum] => 0 ) 1
0
Работа:0
Материалы:0
Дни:0
stdClass Object ( [id] => 156 [attribute_id] => 33 [name] => Стяжка + наливные полы [material_modifier] => 1 [work_modifier] => 1 [options] => Array ( ) [days] => [10] [material_price] => [1000] [work_price] => [900] [image] => https://akademik-stroy.ru/wp-content/uploads/materials/styazhka.jpg [area_modifier] => 234.8 [parent_name] => Черновая отделка полов [parent_id] => 33 [material_sum] => 295848 [work_sum] => 221886 [total_sum] => 517734 [total_days] => 10 [display_material_sum] => 295 848 [display_work_sum] => 221 886 [display_total_sum] => 517 734 ) 1
517 734
Работа:221 886
Материалы:295 848
Дни:10
stdClass Object ( [id] => 157 [attribute_id] => 33 [name] => ОСБ на пол [material_modifier] => 1 [work_modifier] => 1 [options] => Array ( ) [days] => [7] [material_price] => [580] [work_price] => [350] [image] => https://akademik-stroy.ru/wp-content/uploads/materials/osb-1.jpg [area_modifier] => 234.8 [parent_name] => Черновая отделка полов [parent_id] => 33 [material_sum] => 171592 [work_sum] => 86289 [total_sum] => 257881 [total_days] => 7 [display_material_sum] => 171 592 [display_work_sum] => 86 289 [display_total_sum] => 257 881 ) 1
257 881
Работа:86 289
Материалы:171 592
Дни:7
Чистовая отделка стен и полов
stdClass Object ( [id] => 67 [attribute_id] => 34 [name] => Нет [material_modifier] => 1 [work_modifier] => 1 [options] => Array ( ) [days] => [0] [material_price] => [0] [work_price] => [0] [image] => https://akademik-stroy.ru/wp-content/uploads/materials/chistovaya-otdelka.jpg [area_modifier] => 234.8 [parent_name] => Чистовая отделка стен и полов [parent_id] => 34 [material_sum] => 0 [work_sum] => 0 [total_sum] => 0 [total_days] => 0 [display_material_sum] => 0 [display_work_sum] => 0 [display_total_sum] => 0 ) 1
0
Работа:0
Материалы:0
Дни:0
stdClass Object ( [id] => 68 [attribute_id] => 34 [name] => Есть [material_modifier] => 1 [work_modifier] => 1 [options] => Array ( ) [days] => [50] [material_price] => [6000] [work_price] => [3500] [image] => https://akademik-stroy.ru/wp-content/uploads/materials/chistovaya-otdelka.jpg [area_modifier] => 234.8 [parent_name] => Чистовая отделка стен и полов [parent_id] => 34 [material_sum] => 1775088 [work_sum] => 862890 [total_sum] => 2637978 [total_days] => 50 [display_material_sum] => 1 775 088 [display_work_sum] => 862 890 [display_total_sum] => 2 637 978 ) 1
2 637 978
Работа:862 890
Материалы:1 775 088
Дни:50
Отделка потолка
stdClass Object ( [id] => 69 [attribute_id] => 35 [name] => Нет [material_modifier] => 1 [work_modifier] => 1 [options] => Array ( ) [days] => [0] [material_price] => [0] [work_price] => [0] [image] => https://akademik-stroy.ru/wp-content/uploads/materials/mnogourovnevyj-gkl.jpg [area_modifier] => 234.8 [parent_name] => Отделка потолка [parent_id] => 35 [material_sum] => 0 [work_sum] => 0 [total_sum] => 0 [total_days] => 0 [display_material_sum] => 0 [display_work_sum] => 0 [display_total_sum] => 0 ) 1
0
Работа:0
Материалы:0
Дни:0
stdClass Object ( [id] => 70 [attribute_id] => 35 [name] => Есть [material_modifier] => 1 [work_modifier] => 1 [options] => Array ( [0] => Многоуровневый потолок из гипсокартона [1] => Многоуровневый потолок из гипсокартона и натяжного потолка [2] => Одноуровневый потолок из гипсокартона [3] => Одноуровневый натяжной потолок ) [days] => [10,10,1,1] [material_price] => [900,700,700,600] [work_price] => [1000,800,500,300] [image] => https://akademik-stroy.ru/wp-content/uploads/materials/mnogourovnevyj-gkl.jpg [area_modifier] => 234.8 [parent_name] => Отделка потолка [parent_id] => 35 [material_sum] => 266263 [work_sum] => 246540 [total_sum] => 512803 [total_days] => 10 [display_material_sum] => 266 263 [display_work_sum] => 246 540 [display_total_sum] => 512 803 ) 1
512 803
Работа:246 540
Материалы:266 263
Дни:10

Преимущества работы с нами

icon

7 этапов оплаты

icon

Независимый строительный надзор

icon

Экологически чистые материалы

icon

16 лет гарантии

icon

Онлайн-кабинет с веб-камерой

icon

Строители с опытом более 15 лет

icon

Собственное производство

Почему двухэтажный дом 14х16 площадью 234,8 м² – идеальный выбор для Москвы

Каждый, кто задумывается о строительстве собственного дома, неизменно начинает свой путь с выбора проекта. Покупка типового проекта или создание индивидуального проекта – это отправная точка любого надежного строительного процесса. И если вы хотите современный, практичный, комфортабельный и в то же время недорогой дом для постоянного проживания, двухэтажный дом размером 14х16 метров и площадью 234,8 м² становится отличным вариантом. В Москве многие ценят сочетание индивидуальности, высокого уровня комфорта, энергоэффективности и эстетики. Такой проект легко вписывается даже в плотную застройку, но главным образом – отвечает всем требованиям современной семьи. Компания «Академик Строй» создала проект, который сочетает удачную планировку с оптимизацией расходов и чудесной архитектурой. Остановимся на деталях подробнее.

Общие размеры и архитектурные особенности

Дом занимает в основании пятно 14 × 16 метров – это довольно внушительный размер, который дает простор для самых смелых интерьерных решений. В наши дни очень важно, чтобы дом отражал желания и характер его владельцев. Дом такого масштаба прекрасно смотрится на участке: он не выглядит «коробкой» даже при компактном размещении благодаря грамотным архитектурным акцентам, двускатной крыше с уклоном 35° и продуманным пропорциям. Высота здания – 9,11 метра. Такое соотношение высоты и основания визуально делает дом гармоничным, легким и уютным. Классическая двускатная крыша – это не только дань традициям, но и техническое преимущество в нашем климате: снег не задерживается, не создавая нагрузку на стропила. Объем брутто дома составляет 1 153 куб. метра – эта характеристика важна для оценки термического баланса, вентиляции и будущих отопительных расходов.

Параметры дома: взгляд в цифрах

Проще всего оценить достоинства дома с помощью таблицы:
Параметр Значение
Полезная площадь 234,8 м²
Жилая площадь 217,34 м²
Площадь застройки 181,87 м²
Площадь нетто 262,81 м²
Объем брутто 1 153 м³
Высота здания 9,11 м
Количество спален 4
Количество санузлов 3
Угол наклона кровли 35°
Минимальная ширина участка 22,40 м
Минимальная длина участка 23,70 м
Площадь м² (максимальная рекомендуемая) 290
Этажей 2
Тип крыши Двускатная
Опции Комната на первом этаже, терраса

Планировка: максимум комфорта и функциональности

Грамотная планировка существенно влияет на качество жизни, поэтому архитекторы «Академик Строй» уделяют большое внимание эффективности каждого метра. Двухэтажная компоновка позволяет четко отделить приватные и общественные зоны, при этом не нужно делать дом очень крупным по площади участка. Планировка включает просторную гостиную, большую кухню-столовую, отдельную комнату на первом этаже (ее часто используют под кабинет или гостевую спальню для пожилых членов семьи), три санузла, четыре изолированные спальни на втором этаже и, конечно же, террасу, где приятно проводить вечера или встречать рассветы за чашкой чая. В доме нет встроенного гаража – зато все пространство отдано жилым помещениям и общим зонам, что увеличивает гибкость использования каждой комнаты.

Удобство для всех членов семьи

Четыре изолированные спальни позволяют комфортно разместиться не только родителям и детям, но и гостям. Три санузла – стандарт для современной семьи: это избавит от очередей по утрам и создаст максимальное удобство для всех жильцов. На первом этаже предусмотрена отдельная комната – идеальное место для организации домашнего кабинета, библиотеки, игровой или гостевой спальни. Список преимуществ такой планировки:
  • Все спальни изолированы, что дает максимальную приватность
  • Наличие трёх санузлов удобно для большой семьи и гостей
  • Четкая граница между приватной и общественной зонами
  • Кухня столовая и гостиная разделены, но при желании могут составлять единое пространство
  • Современные световые решения: минимум глухих стен, максимум окон
  • Терраса позволяет организовать летний обед или зону отдыха на свежем воздухе

Технические характеристики: надежность и энергоэффективность

Климатические условия Подмосковья диктуют свои требования к частной застройке: высокий уровень теплоизоляции, долговечность материалов, сохранение тепла и минимизация потерь в холодное время года. Благодаря объему брутто 1 153 кубических метра и площади нетто в 262,81 m² достигается оптимальное соотношение «теплой» и «охлаждающейся» площади. Полезная площадь в 234,8 м² позволяет рационально размещать все необходимые инженерные коммуникации. Крыша с уклоном 35° прекрасно справляется с отведением воды и снега, а это значит, что риск протечек и связанных с ними проблем минимален. Отдельным плюсом является высота дома — 9,11 метра: достаточный этажный просвет, воздушность внутренних пространств, отсутствие ощущения замкнутости.

Важно и то, что данный проект рассчитан на участки от 22,4 на 23,7 метров — такие участки широко представлены в ряде московских и подмосковных коттеджных поселков, то есть вы без труда найдете подходящий земельный надел.

Двускатная крыша: эстетика и функциональность

Двускатная кровля – не просто красиво! Это оптимальное архитектурно-конструктивное решение для российских условий. Помимо простоты в обслуживании, двускатная крыша гарантирует отсутствие избыточных снеговых нагрузок. Ее не нужно очищать вручную каждый сезон – достаточно минимальных профилактических мероприятий. Список преимуществ:
  • Меньшая стоимость относительно сложных многоуровневых крыш
  • Идеально подходит под мансардные окна (если пожелаете их установить)
  • Простая схема гидроизоляции и вентиляции подкровельного пространства
  • Запас высоты для хранения или оборудования антресолей, если потребуется

Дом без гаража: преимущества и новые возможности

Все больше домовладельцев осознанно делают выбор в пользу дома без встроенного гаража. Почему? Во-первых – это безопасность. Гараж и дом чаще всего должны быть раздельными по требованиям пожарных норм, что важно при семейном проживании. Во-вторых, отсутствие гаража освобождает пространство, позволяя увеличить размеры комнат, зону кухни и гостиной, предусмотреть просторную террасу. Дом без гаража имеет следующие плюсы:
  • Экономия средств на строительство и отделку
  • Больше солнечного света – вместо гаражных ворот появляется полноценное окно
  • Возможность организовать отдельный навес для машины – дешевле и практичнее
  • Больше «живого» пространства для семьи, хобби, спорта

Общая площадь: эффективное использование каждого метра

Жилая площадь дома составляет 217,34 м² – это серьезный показатель, ведь здесь речь идет именно о помещениях, предназначенных для жизни: спальнях, гостиной, кухне, коридорах. Полезная площадь еще больше — 234,8 м², а общая площадь нетто и вовсе 262,81 м². Разница объясняется техническими помещениями, кладовыми, холлами и т. д., благодаря которым каждый член семьи найдет свое персональное пространство. Сравните основные технические площади:
Показатель Площадь, м²
Жилая 217,34
Полезная 234,8
Нетто 262,81
Застройки 181,87

Особенности участка: как выбрать идеальную площадку под такой дом?

Для строительства двухэтажного дома размером 14х16 м потребуется участок шириной не менее 22,4 м и длиной 23,7 м (учитывая санитарные и противопожарные отступы, рекомендуемые для московского региона). Такая площадь весьма комфортна, чтобы разместить не только дом, но и зону отдыха во дворе, отдельный хозблок, ландшафтный дизайн и просторную детскую площадку.
  • Максимально актуальны прямоугольные или квадратные участки — на них дом располагается с наибольшей эффективностью
  • На небольших угловых участках появляется возможность интересного ландшафтного зонирования
  • На просторных участках удобно расположить дополнительную баню, беседку, летнюю кухню
Если ваш участок больше минимального, можно позволить себе сделать «зеленый пояс» — деревья, кустарники, цветники будут не только украшать фасад, но и скрывать дом от посторонних глаз, обеспечивать микроклимат и тишину.

Почему стоит заказать проект в компании «Академик Строй»?

Выбор проекта – это долгосрочное решение, от которого зависит не только внешний вид дома, но и удобство проживания на десятилетия вперед. Почему клиенты выбирают «Академик Строй»? Потому что компания умеет совмещать индивидуальный подход, современные стандарты проектирования и адекватную цену. Вам доступны различные опции персонализации планировки, подбор отделочных материалов, расчет инженерных систем под индивидуальный бюджет и консультации опытных архитекторов на каждом этапе. Заказав проект у «Академик Строй», вы получаете рабочий комплект документов для получения разрешения на строительство, а также пошаговые инструкции для вашей строительной бригады. Главные причины выбрать «Академик Строй»:
  • Более 15 лет на рынке индивидуального домостроения
  • Собственные архитекторы и инженеры, которые сопровождают проект до конца работ
  • Огромная библиотека готовых и выполненных объектов, что позволяет избежать типовых ошибок
  • Гарантированное сопровождение всех согласовательных процедур в Москве и МО
  • Возможность скорректировать проект под личные пожелания по минимальной цене
  • Полная прозрачность расчетов и сметы уже на этапе подписания договора
Для заказа проекта достаточно позвонить по телефону +7 (980) 800-47-93 — специалисты компании подробно ответят на все вопросы, расскажут об этапах проектирования, стоимости и предоставят образцы документов.

Стоимость и опции изготовления

Стоимость проектной документации и самого строительства — важный вопрос для каждого застройщика. Компания «Академик Строй» предлагает прозрачную фиксированную цену на типовой проект, а также гибкую систему скидок для тех, кто выбирает комплекс услуг: от проектирования до строительных работ «под ключ». Возможны следующие варианты работы:
  • Базовый комплект проекта с расчетом фундаментов, планировкой, фасадами
  • Проект с доработками под пожелания заказчика
  • Индивидуальный дизайн фасада или интерьера за дополнительную плату
  • Авторское сопровождение строительства
В каждом случае вы получите полную смету и график выполнения всех этапов работ, вплоть до оформления дома в собственность.
Услуга Описание Примерная стоимость
Типовой проект Стандартная документация для дома 14×16, 234,8 м² по запросу
Индивидуальная доработка Корректировка под ваши пожелания от 10% к стоимости базового проекта
Строительство «под ключ» Весь цикл – от фундамента до отделки индивидуально

Как заказать проект и начать свой путь в новый дом?

Как же быстро и без лишних хлопот заказать проект и приступить к строительству мечты? Процесс крайне простой:
  1. Оставьте заявку на сайте «Академик Строй» или позвоните по телефону +7 (980) 800-47-93
  2. Обсудите с менеджером особенности вашего участка и личные предпочтения. Получите консультацию по изменению планировки, инженерных решений, использованию материалов.
  3. Подпишите договор на проектирование. Работа начинается немедленно — уже через несколько дней вы получите предварительную планировку для согласования.
  4. Оформите все документы и начните строительство: у компании есть партнеры-строители, проверенные бригады, специалисты по инженерным коммуникациям.
  5. Готовый проект подходит для получения разрешения на строительство в Московском регионе. Все этапы сопровождаются профессиональными консультациями.

Заключительные рекомендации и советы от эксперта

Двухэтажный дом размером 14х16 метров — это серьезная заявка на комфорт, стиль и современную инфраструктуру для жизни. Выбирайте проект с учетом состава семьи, личных предпочтений и особенностей вашего участка. Ощутите разницу между типовой застройкой и индивидуальным проектом — и пусть ваш будущий дом станет местом, куда хочется возвращаться вновь и вновь! И не забудьте воспользоваться консультацией профессионалов «Академик Строй», чтобы получить максимум пользы и радости от строительства. Желаю вам удачи в выборе вашего идеального проекта и успешного строительства!