Двухэтажный дом 16x11 - 184.06 м2 за руб.

ID-57513

Стоимость дома 6966123 руб.
154 м2 Полезная
площадь
16 x 11 м Размеры
2 этажа Этажей
26 м2 Террасы
и балконы
1Без
гаража
4 Количество
спален
3 Количество
санузлов

Планировки

План первого этажа

floor image
  • 1. Прихожая 4,38 m²
  • 2. Холл 12,46 m²
  • 3. Кладовая 2,25 m²
  • 4. Кухня 14,41 m²
  • 5. Гостиная + столовая 39,29 m²
  • 6. Комната 12,94 m²
  • 7. Гардероб 1,85 m²
  • 8. Ванная комната 3,52 m²
  • 9. Гараж на 1 машину 26,04 m²
  • 10. Котельная 12,95 m²
  • План первого этажа 130,09 m²

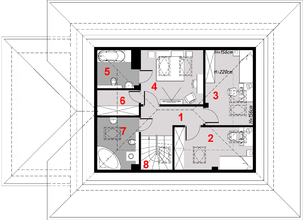
План мансарды

floor image
  • 1. Коридор 6,09 m²
  • 2. Комната 9,40 m² (13,41 m²)
  • 3. Комната 10,25 m² (14,36 m²)
  • 4. Комната 11,20 m² (13,69 m²)
  • 5. Ванная комната 3,70 m² (5,82 m²)
  • 6. Гардероб 3,23 m² (4,23 m²)
  • 7. Ванная комната 5,78 m² (8,68 m²)
  • 8. Лестница 4,32 m²
  • План мансарды 53,97 m²

Фасады

Передний
Задний
Левый
Правый
Передний
Задний
Левый
Правый

Подробная информация

Жилая площадь
145,09 m²
icon

Сумма площади всех жилых помещений, за вычетом пов. гараж, котельная, чердак, подвал. Учитывается в 100%, для помещений высотой более 2,2 м, в 50% для помещений с высотой 2,2-1,4 м и не включается для более низких помещений (меньше 1,4 м).

Площадь застройки
165,22 m²
icon

Площадь застройки здания определяется как площадь горизонтального сечения по внешнему обводу здания на уровне цоколя, включая выступающие части.

Объем брутто
683 m³
icon

Как правило, это сумма объема всех помещений в здании, подсчитанных по внешнему контуру стены (с утеплением).

Угол наклона крыши
27°
icon

Наклон ската крыши в градусах. Внимание! В некоторых проектах возникает более чем один наклон крыши.

Высота здания
7,24 m
icon

Высота измеряется от поверхности земли до самой высокой точки кровли (конька), за исключением дымоходов.

Мин. ширина участка
23,94 m
icon

Наименьшая возможная ширина участка, необходимая для строительства выбранного дома. Состоит из длины фасада дома плюс с обеих сторон три метра отступ.

Мин. длина участка
19 m
icon

Наименьшая возможная длина участка, необходимая для строительства выбранного дома. Состоит из длины фасада дома плюс с обеих сторон три метра отступ.

Материалы и опции
Общие
Цена, руб.
Площадь м²
230
Площадь от и до
Ежемесячный платёж, руб
Количество спален
4
Гараж
1
Количество санузлов
3
Ширина
16
Глубина
11

Площади дома

№ п/п Наименование Ед. из. Строительная площадь Полезная площадь
1 1 этаж м2 160.31 130.09
2 2 этаж м2 66.51 53.97
3 Итого м2 226.82 184.06

ПРИГЛАШАЕМ НА ДЕНЬ ОТКРЫТЫХ ДВЕРЕЙ СТРОЯЩЕГОСЯ ДОМА

ХОЧУ ПОЕХАТЬ
День открытых дверей

Калькулятор опций

0

В ипотеку от 22 684 ₽/мес.

Фундамент
stdClass Object ( [id] => 1 [attribute_id] => 1 [name] => Ленточный монолитный ж/б [material_modifier] => 1 [work_modifier] => 1 [options] => Array ( [0] => размер 200 х 700 мм [1] => размер 300 х 900 мм [2] => размер 400 х 1 000 мм [3] => размер 500 х 1 100 мм [4] => размер 600 х 1 200 мм ) [days] => [20,21,22,25,30] [material_price] => [2823,3630,4475,5210,12047] [work_price] => [2154,2826,3731,4577,5293] [image] => https://akademik-stroy.ru/wp-content/uploads/materials/lentochnyj-monolitnyj-zh-b.jpg [area_modifier] => 160.31 [parent_name] => Фундамент [parent_id] => 1 [material_sum] => 570219 [work_sum] => 362573 [total_sum] => 932792 [total_days] => 20 [display_material_sum] => 570 219 [display_work_sum] => 362 573 [display_total_sum] => 932 792 ) 1
932 792
Работа:362 573
Материалы:570 219
Дни:20
stdClass Object ( [id] => 2 [attribute_id] => 1 [name] => Забивные Ж/Б сваи [material_modifier] => 1 [work_modifier] => 1 [options] => Array ( [0] => 150х150х3000мм [1] => 150х150х4000мм [2] => 200х200х3000мм [3] => 200х200х4000мм [4] => 200х200х5000мм [5] => 200х200х6000мм ) [days] => [2,2,2,2,2,2] [material_price] => [1990,2850,3255,4360,5120,6837] [work_price] => [1002,1185,1336,1438,1574,1839] [image] => https://akademik-stroy.ru/wp-content/uploads/materials/zabivnye-zh-b-svai.png [area_modifier] => 160.31 [parent_name] => Фундамент [parent_id] => 1 [material_sum] => 401961 [work_sum] => 168662 [total_sum] => 570623 [total_days] => 2 [display_material_sum] => 401 961 [display_work_sum] => 168 662 [display_total_sum] => 570 623 ) 1
570 623
Работа:168 662
Материалы:401 961
Дни:2
stdClass Object ( [id] => 71 [attribute_id] => 1 [name] => Свайно-ростверковый ж/б [material_modifier] => 1 [work_modifier] => 1 [options] => Array ( [0] => ростверк 200х300 мм [1] => ростверк 300х600 мм [2] => ростверк 400х900 мм [3] => ростверк 500х1200 мм ) [days] => [20,23,25,27] [material_price] => [3018,3474,7109,9792] [work_price] => [2024,3012,5635,7022] [image] => https://akademik-stroy.ru/wp-content/uploads/materials/svajno-rostverkovyj-monolitnyj-zh-b-3.png [area_modifier] => 160.31 [parent_name] => Фундамент [parent_id] => 1 [material_sum] => 609608 [work_sum] => 340691 [total_sum] => 950299 [total_days] => 20 [display_material_sum] => 609 608 [display_work_sum] => 340 691 [display_total_sum] => 950 299 ) 1
950 299
Работа:340 691
Материалы:609 608
Дни:20
stdClass Object ( [id] => 72 [attribute_id] => 1 [name] => Монолитная ж/б плита [material_modifier] => 1 [work_modifier] => 1 [options] => Array ( [0] => 200 мм [1] => 300 мм [2] => 400 мм [3] => 500 мм [4] => 600 мм ) [days] => [30,33,35,37,40] [material_price] => [5348,8555,12788,14388,15189] [work_price] => [4314,4881,7037,8061,10230] [image] => https://akademik-stroy.ru/wp-content/uploads/materials/monolitnaya-zhb-plita.png [area_modifier] => 160.31 [parent_name] => Фундамент [parent_id] => 1 [material_sum] => 1080246 [work_sum] => 726156 [total_sum] => 1806402 [total_days] => 30 [display_material_sum] => 1 080 246 [display_work_sum] => 726 156 [display_total_sum] => 1 806 402 ) 1
1 806 402
Работа:726 156
Материалы:1 080 246
Дни:30
stdClass Object ( [id] => 73 [attribute_id] => 1 [name] => Утепленная шведская плита [material_modifier] => 1 [work_modifier] => 1 [options] => Array ( [0] => 200 мм [1] => 300 мм [2] => 400 мм [3] => 500 мм [4] => 600 мм ) [days] => [32,37,39,42,45] [material_price] => [10249,12692,13760,14936,16230] [work_price] => [5960,7337,8072,8878,9765] [image] => https://akademik-stroy.ru/wp-content/uploads/materials/uteplennaya-shvedskaya-plita.jpg [area_modifier] => 160.31 [parent_name] => Фундамент [parent_id] => 1 [material_sum] => 2070202 [work_sum] => 1003220 [total_sum] => 3073422 [total_days] => 32 [display_material_sum] => 2 070 202 [display_work_sum] => 1 003 220 [display_total_sum] => 3 073 422 ) 1
3 073 422
Работа:1 003 220
Материалы:2 070 202
Дни:32
stdClass Object ( [id] => 75 [attribute_id] => 1 [name] => Ленточный из ФБС [material_modifier] => 1 [work_modifier] => 1 [options] => Array ( [0] => толщ. 300 мм [1] => толщ. 400 мм [2] => толщ. 500 мм [3] => толщ. 600 мм ) [days] => [20,20,20,20] [material_price] => [3675,4902,6126,7350] [work_price] => [2451,3264,4083,4902] [image] => https://akademik-stroy.ru/wp-content/uploads/materials/lentochnyj-iz-fbs.png [area_modifier] => 160.31 [parent_name] => Фундамент [parent_id] => 1 [material_sum] => 742315 [work_sum] => 412566 [total_sum] => 1154881 [total_days] => 20 [display_material_sum] => 742 315 [display_work_sum] => 412 566 [display_total_sum] => 1 154 881 ) 1
1 154 881
Работа:412 566
Материалы:742 315
Дни:20
stdClass Object ( [id] => 76 [attribute_id] => 1 [name] => Цокольный этаж из ФБС [material_modifier] => 1 [work_modifier] => 1 [options] => Array ( [0] => толщ. 300 мм [1] => толщ. 400 мм [2] => толщ. 500 мм [3] => толщ. 600 мм ) [days] => [30,32,34,36] [material_price] => [20916,23299,26680,29060] [work_price] => [17524,18700,19873,21046] [image] => https://akademik-stroy.ru/wp-content/uploads/materials/cokolnyj-ehtazh-iz-fbs.jpg [area_modifier] => 160.31 [parent_name] => Фундамент [parent_id] => 1 [material_sum] => 4224835 [work_sum] => 2949736 [total_sum] => 7174571 [total_days] => 30 [display_material_sum] => 4 224 835 [display_work_sum] => 2 949 736 [display_total_sum] => 7 174 571 ) 1
7 174 571
Работа:2 949 736
Материалы:4 224 835
Дни:30
stdClass Object ( [id] => 77 [attribute_id] => 1 [name] => Цокольный этаж монолитный ж/б [material_modifier] => 1 [work_modifier] => 1 [options] => Array ( [0] => толщ. 200 мм [1] => толщ. 300 мм [2] => толщ. 400 мм [3] => толщ. 500 мм [4] => толщ. 600 мм ) [days] => [40,42,44,46,48] [material_price] => [25421,29148,32275,35602,37326] [work_price] => [20441,21907,23375,24841,26306] [image] => https://akademik-stroy.ru/wp-content/uploads/materials/cokolnyj-etazh-zh-b.jpg [area_modifier] => 160.31 [parent_name] => Фундамент [parent_id] => 1 [material_sum] => 5134803 [work_sum] => 3440742 [total_sum] => 8575545 [total_days] => 40 [display_material_sum] => 5 134 803 [display_work_sum] => 3 440 742 [display_total_sum] => 8 575 545 ) 1
8 575 545
Работа:3 440 742
Материалы:5 134 803
Дни:40
stdClass Object ( [id] => 191 [attribute_id] => 1 [name] => Винтовые сваи [material_modifier] => 1 [work_modifier] => 1 [options] => Array ( [0] => 57х200мм [1] => 76х250мм [2] => 108х300мм [3] => 133х350мм ) [days] => [1,1,2,2] [material_price] => [1200,1300,1450,1600] [work_price] => [400,600,900,1100] [image] => https://akademik-stroy.ru/wp-content/uploads/materials/vintovye-svai.png [area_modifier] => 160.31 [parent_name] => Фундамент [parent_id] => 1 [material_sum] => 242389 [work_sum] => 67330 [total_sum] => 309719 [total_days] => 1 [display_material_sum] => 242 389 [display_work_sum] => 67 330 [display_total_sum] => 309 719 ) 1
309 719
Работа:67 330
Материалы:242 389
Дни:1
Перекрытие цоколя
stdClass Object ( [id] => 3 [attribute_id] => 2 [name] => Деревянные балки [material_modifier] => 1 [work_modifier] => 1 [options] => Array ( [0] => без утепления [1] => утепление 200 мм [2] => утепление 250 мм [3] => утепление 300 мм [4] => утепление 350 мм [5] => утепление 400 мм [6] => утепление 450 мм [7] => утепление 500 мм ) [days] => [8,9,9,9,11,12,13,14] [material_price] => [1634,2042,2344,2947,3149,3652,3354,3557] [work_price] => [1230,1339,1393,1426,1460,1513,1587,1620] [image] => https://akademik-stroy.ru/wp-content/uploads/materials/derevyannye-balki.png [area_modifier] => 160.31 [parent_name] => Перекрытие цоколя [parent_id] => 2 [material_sum] => 330053 [work_sum] => 207040 [total_sum] => 537093 [total_days] => 8 [display_material_sum] => 330 053 [display_work_sum] => 207 040 [display_total_sum] => 537 093 ) 1
537 093
Работа:207 040
Материалы:330 053
Дни:8
stdClass Object ( [id] => 4 [attribute_id] => 2 [name] => Сборные ж/б плиты [material_modifier] => 1 [work_modifier] => 1 [options] => Array ( [0] => без утепления [1] => утепление 150мм [2] => утепление 200мм [3] => утепление 250мм [4] => утепление 300мм [5] => утепление 350мм [6] => утепление 400мм [7] => утепление 450мм [8] => утепление 500мм ) [days] => [13,15,15,15,15,15,15,15,15] [material_price] => [3067,5577,5928,6679,7730,8782,9833,10884,11935] [work_price] => [1520,1956,2102,2247,2392,2537,2684,2829,2974] [image] => https://akademik-stroy.ru/wp-content/uploads/materials/sbornye-zh-b-plity-2.jpg [area_modifier] => 160.31 [parent_name] => Перекрытие цоколя [parent_id] => 2 [material_sum] => 619505 [work_sum] => 255855 [total_sum] => 875360 [total_days] => 13 [display_material_sum] => 619 505 [display_work_sum] => 255 855 [display_total_sum] => 875 360 ) 1
875 360
Работа:255 855
Материалы:619 505
Дни:13
stdClass Object ( [id] => 78 [attribute_id] => 2 [name] => Монолитная ж/б плита [material_modifier] => 1 [work_modifier] => 1 [options] => Array ( [0] => без утепления [1] => утепление 150 мм [2] => утепление 200 мм [3] => утепление 250 мм [4] => утепление 300 мм [5] => утепление 350 мм [6] => утепление 400 мм [7] => утепление 450 мм [8] => утепление 500 мм ) [days] => [18,20,20,20,20,20,20,20,20] [material_price] => [4837,6572,7224,7375,79426,8177,8728,9180,10031] [work_price] => [3348,3921,4112,4302,4493,4684,4875,5066,5256] [image] => https://akademik-stroy.ru/wp-content/uploads/materials/monolitnaya-zh-b-plita-2.jpg [area_modifier] => 160.31 [parent_name] => Перекрытие цоколя [parent_id] => 2 [material_sum] => 977029 [work_sum] => 563554 [total_sum] => 1540583 [total_days] => 18 [display_material_sum] => 977 029 [display_work_sum] => 563 554 [display_total_sum] => 1 540 583 ) 1
1 540 583
Работа:563 554
Материалы:977 029
Дни:18
Стены 1 этаж (несущие)
stdClass Object ( [id] => 6 [attribute_id] => 3 [name] => Пеноблок [material_modifier] => 1 [work_modifier] => 1 [options] => Array ( [0] => 300 мм [1] => 400 мм [2] => 500 мм [3] => 600 мм ) [days] => [29,31,34,39] [material_price] => [3000,4000,4500,4937] [work_price] => [5033,5805,6400,8710] [image] => https://akademik-stroy.ru/wp-content/uploads/materials/penoblok.jpg [area_modifier] => 160.31 [parent_name] => Стены 1 этаж (несущие) [parent_id] => 3 [material_sum] => 605972 [work_sum] => 847182 [total_sum] => 1453154 [total_days] => 29 [display_material_sum] => 605 972 [display_work_sum] => 847 182 [display_total_sum] => 1 453 154 ) 1
1 453 154
Работа:847 182
Материалы:605 972
Дни:29
stdClass Object ( [id] => 79 [attribute_id] => 3 [name] => Керамический блок [material_modifier] => 1 [work_modifier] => 1 [options] => Array ( [0] => 380 мм [1] => 380 мм Thermo [2] => 440 мм [3] => 510 мм ) [days] => [23,23,24,25] [material_price] => [4510,5098,6093,8013] [work_price] => [4737,4937,5903,6958] [image] => https://akademik-stroy.ru/wp-content/uploads/materials/keramicheskij-blok.jpg [area_modifier] => 160.31 [parent_name] => Стены 1 этаж (несущие) [parent_id] => 3 [material_sum] => 910978 [work_sum] => 797358 [total_sum] => 1708336 [total_days] => 23 [display_material_sum] => 910 978 [display_work_sum] => 797 358 [display_total_sum] => 1 708 336 ) 1
1 708 336
Работа:797 358
Материалы:910 978
Дни:23
stdClass Object ( [id] => 80 [attribute_id] => 3 [name] => Кирпич [material_modifier] => 1 [work_modifier] => 1 [options] => Array ( [0] => Кирпич 250 мм [1] => Кирпич 380 мм [2] => Кирпич 510 мм [3] => Кирпич 640 мм [4] => Кирпич 770 мм ) [days] => [30,30,31,33,36] [material_price] => [5500,7142,9206,10171,12235] [work_price] => [8736,10041,12018,15240,18462] [image] => https://akademik-stroy.ru/wp-content/uploads/materials/kirpich.jpg [area_modifier] => 160.31 [parent_name] => Стены 1 этаж (несущие) [parent_id] => 3 [material_sum] => 1110948 [work_sum] => 1470492 [total_sum] => 2581440 [total_days] => 30 [display_material_sum] => 1 110 948 [display_work_sum] => 1 470 492 [display_total_sum] => 2 581 440 ) 1
2 581 440
Работа:1 470 492
Материалы:1 110 948
Дни:30
stdClass Object ( [id] => 81 [attribute_id] => 3 [name] => Монолитные [material_modifier] => 1 [work_modifier] => 1 [options] => Array ( [0] => 150 мм [1] => 200 мм [2] => 250 мм [3] => 300 мм [4] => 350 мм [5] => 400 мм ) [days] => [45,46,47,49,50,53] [material_price] => [6545,7876,10175,12011,13908,15204] [work_price] => [5106,6444,7698,8552,9807,11461] [image] => https://akademik-stroy.ru/wp-content/uploads/materials/monolitnye.jpg [area_modifier] => 160.31 [parent_name] => Стены 1 этаж (несущие) [parent_id] => 3 [material_sum] => 1322028 [work_sum] => 859470 [total_sum] => 2181498 [total_days] => 45 [display_material_sum] => 1 322 028 [display_work_sum] => 859 470 [display_total_sum] => 2 181 498 ) 1
2 181 498
Работа:859 470
Материалы:1 322 028
Дни:45
stdClass Object ( [id] => 82 [attribute_id] => 3 [name] => Клееный брус [material_modifier] => 1 [work_modifier] => 1 [options] => Array ( [0] => 160 мм [1] => 175 мм [2] => 200 мм [3] => 215 мм [4] => 240 мм [5] => 270 мм [6] => 282 мм ) [days] => [24,28,32,37,40,42,48] [material_price] => [16975,18773,19950,20545,21599,22159,23275] [work_price] => [4806,5287,5815,6397,7036,7740,8514] [image] => https://akademik-stroy.ru/wp-content/uploads/materials/kleenyj-brus.jpg [area_modifier] => 160.31 [parent_name] => Стены 1 этаж (несущие) [parent_id] => 3 [material_sum] => 3428790 [work_sum] => 808972 [total_sum] => 4237762 [total_days] => 24 [display_material_sum] => 3 428 790 [display_work_sum] => 808 972 [display_total_sum] => 4 237 762 ) 1
4 237 762
Работа:808 972
Материалы:3 428 790
Дни:24
stdClass Object ( [id] => 83 [attribute_id] => 3 [name] => Каркасные [material_modifier] => 1 [work_modifier] => 1 [options] => Array ( [0] => 150 мм [1] => 200 мм [2] => 250 мм [3] => 300 мм ) [days] => [15,16,17,18] [material_price] => [2379,2639,2898,3258] [work_price] => [2418,2686,2985,3716] [image] => https://akademik-stroy.ru/wp-content/uploads/materials/karkasnye.jpg [area_modifier] => 160.31 [parent_name] => Стены 1 этаж (несущие) [parent_id] => 3 [material_sum] => 480536 [work_sum] => 407011 [total_sum] => 887547 [total_days] => 15 [display_material_sum] => 480 536 [display_work_sum] => 407 011 [display_total_sum] => 887 547 ) 1
887 547
Работа:407 011
Материалы:480 536
Дни:15
stdClass Object ( [id] => 84 [attribute_id] => 3 [name] => СИП-панели [material_modifier] => 1 [work_modifier] => 1 [options] => Array ( [0] => 120 мм [1] => 170 мм [2] => 220 мм ) [days] => [7,7,7] [material_price] => [1210,1856,2292] [work_price] => [1410,1551,1706] [image] => https://akademik-stroy.ru/wp-content/uploads/materials/sip-paneli.jpg [area_modifier] => 160.31 [parent_name] => Стены 1 этаж (несущие) [parent_id] => 3 [material_sum] => 244409 [work_sum] => 237339 [total_sum] => 481748 [total_days] => 7 [display_material_sum] => 244 409 [display_work_sum] => 237 339 [display_total_sum] => 481 748 ) 1
481 748
Работа:237 339
Материалы:244 409
Дни:7
stdClass Object ( [id] => 85 [attribute_id] => 3 [name] => Сухой брус [material_modifier] => 1 [work_modifier] => 1 [options] => Array ( [0] => 150 мм [1] => 180 мм [2] => 200 мм ) [days] => [7,8,9] [material_price] => [6010,7190,8709] [work_price] => [3204,3845,4229] [image] => https://akademik-stroy.ru/wp-content/uploads/materials/suhoj-brus.jpg [area_modifier] => 160.31 [parent_name] => Стены 1 этаж (несущие) [parent_id] => 3 [material_sum] => 1213964 [work_sum] => 539315 [total_sum] => 1753279 [total_days] => 7 [display_material_sum] => 1 213 964 [display_work_sum] => 539 315 [display_total_sum] => 1 753 279 ) 1
1 753 279
Работа:539 315
Материалы:1 213 964
Дни:7
stdClass Object ( [id] => 86 [attribute_id] => 3 [name] => Профилированный брус [material_modifier] => 1 [work_modifier] => 1 [options] => Array ( [0] => 150 мм [1] => 180 мм [2] => 200 мм ) [days] => [7,8,9] [material_price] => [8190,9228,10051] [work_price] => [3845,4614,5075] [image] => https://akademik-stroy.ru/wp-content/uploads/materials/profilirovannyj-brus.jpg [area_modifier] => 160.31 [parent_name] => Стены 1 этаж (несущие) [parent_id] => 3 [material_sum] => 1654303 [work_sum] => 647212 [total_sum] => 2301515 [total_days] => 7 [display_material_sum] => 1 654 303 [display_work_sum] => 647 212 [display_total_sum] => 2 301 515 ) 1
2 301 515
Работа:647 212
Материалы:1 654 303
Дни:7
stdClass Object ( [id] => 87 [attribute_id] => 3 [name] => Оцилиндрованное бревно [material_modifier] => 1 [work_modifier] => 1 [options] => Array ( [0] => 180 мм [1] => 220 мм [2] => 260 мм [3] => 320 мм ) [days] => [7,8,9,10] [material_price] => [75190,9532,10868,13116] [work_price] => [3845,4691,5535,6863] [image] => https://akademik-stroy.ru/wp-content/uploads/materials/ocilindrovannoe-brevno-1.jpg [area_modifier] => 160.31 [parent_name] => Стены 1 этаж (несущие) [parent_id] => 3 [material_sum] => 15187673 [work_sum] => 647212 [total_sum] => 15834885 [total_days] => 7 [display_material_sum] => 15 187 673 [display_work_sum] => 647 212 [display_total_sum] => 15 834 885 ) 1
15 834 885
Работа:647 212
Материалы:15 187 673
Дни:7
stdClass Object ( [id] => 88 [attribute_id] => 3 [name] => Срубы [material_modifier] => 1 [work_modifier] => 1 [options] => Array ( [0] => 260 мм [1] => 320 мм [2] => 360 мм [3] => 400 мм [4] => 500 мм ) [days] => [7,8,9,10,11] [material_price] => [37975,46709,52314,58069,73167] [work_price] => [4806,5911,6621,7349,9260] [image] => https://akademik-stroy.ru/wp-content/uploads/materials/sruby.jpg [area_modifier] => 160.31 [parent_name] => Стены 1 этаж (несущие) [parent_id] => 3 [material_sum] => 7670593 [work_sum] => 808972 [total_sum] => 8479565 [total_days] => 7 [display_material_sum] => 7 670 593 [display_work_sum] => 808 972 [display_total_sum] => 8 479 565 ) 1
8 479 565
Работа:808 972
Материалы:7 670 593
Дни:7
stdClass Object ( [id] => 174 [attribute_id] => 3 [name] => Брус [material_modifier] => 1 [work_modifier] => 1 [options] => Array ( [0] => 150 мм [1] => 180 мм [2] => 200 мм ) [days] => [7,8,9] [material_price] => [5127,6152,7367] [work_price] => [1602,1922,2115] [image] => https://akademik-stroy.ru/wp-content/uploads/materials/brus.jpg [area_modifier] => 160.31 [parent_name] => Стены 1 этаж (несущие) [parent_id] => 3 [material_sum] => 1035606 [work_sum] => 269657 [total_sum] => 1305263 [total_days] => 7 [display_material_sum] => 1 035 606 [display_work_sum] => 269 657 [display_total_sum] => 1 305 263 ) 1
1 305 263
Работа:269 657
Материалы:1 035 606
Дни:7
stdClass Object ( [id] => 175 [attribute_id] => 3 [name] => Газобетон [material_modifier] => 1 [work_modifier] => 1 [options] => Array ( [0] => 300 мм [1] => 375 мм [2] => 400 мм [3] => 500 мм [4] => 600 мм ) [days] => [29,31,35,37,44] [material_price] => [4298,5573,6356,7288,9119] [work_price] => [4538,5251,5926,6733,7195] [image] => https://akademik-stroy.ru/wp-content/uploads/materials/gazobeton.jpg [area_modifier] => 160.31 [parent_name] => Стены 1 этаж (несущие) [parent_id] => 3 [material_sum] => 868156 [work_sum] => 763861 [total_sum] => 1632017 [total_days] => 29 [display_material_sum] => 868 156 [display_work_sum] => 763 861 [display_total_sum] => 1 632 017 ) 1
1 632 017
Работа:763 861
Материалы:868 156
Дни:29
stdClass Object ( [id] => 176 [attribute_id] => 3 [name] => Блок [material_modifier] => 1 [work_modifier] => 1 [options] => Array ( [0] => 300 мм [1] => 375 мм [2] => 400 мм [3] => 500 мм [4] => 600 мм ) [days] => [29,31,35,37,44] [material_price] => [2698,3973,4356,6588,7119] [work_price] => [5038,5851,6426,8733,9195] [image] => https://akademik-stroy.ru/wp-content/uploads/materials/blok.jpg [area_modifier] => 160.31 [parent_name] => Стены 1 этаж (несущие) [parent_id] => 3 [material_sum] => 544971 [work_sum] => 848024 [total_sum] => 1392995 [total_days] => 29 [display_material_sum] => 544 971 [display_work_sum] => 848 024 [display_total_sum] => 1 392 995 ) 1
1 392 995
Работа:848 024
Материалы:544 971
Дни:29
stdClass Object ( [id] => 177 [attribute_id] => 3 [name] => Газосиликатный блок [material_modifier] => 1 [work_modifier] => 1 [options] => Array ( [0] => 300 мм [1] => 375 мм [2] => 400 мм [3] => 500 мм [4] => 600 мм ) [days] => [29,31,35,37,44] [material_price] => [4298,5573,6356,7288,9119] [work_price] => [4538,5251,5926,6733,7195] [image] => https://akademik-stroy.ru/wp-content/uploads/materials/gazosilikatnyj-blok.jpg [area_modifier] => 160.31 [parent_name] => Стены 1 этаж (несущие) [parent_id] => 3 [material_sum] => 868156 [work_sum] => 763861 [total_sum] => 1632017 [total_days] => 29 [display_material_sum] => 868 156 [display_work_sum] => 763 861 [display_total_sum] => 1 632 017 ) 1
1 632 017
Работа:763 861
Материалы:868 156
Дни:29
stdClass Object ( [id] => 178 [attribute_id] => 3 [name] => Керамзитобетонный блок [material_modifier] => 1 [work_modifier] => 1 [options] => Array ( [0] => 300 мм [1] => 375 мм [2] => 400 мм [3] => 500 мм [4] => 600 мм ) [days] => [23,23,24,25,28] [material_price] => [3641,4298,5693,7613,9612] [work_price] => [5737,5737,6903,7958,8901] [image] => https://akademik-stroy.ru/wp-content/uploads/materials/keramzitobetonnyj-blok.jpg [area_modifier] => 160.31 [parent_name] => Стены 1 этаж (несущие) [parent_id] => 3 [material_sum] => 735448 [work_sum] => 965683 [total_sum] => 1701131 [total_days] => 23 [display_material_sum] => 735 448 [display_work_sum] => 965 683 [display_total_sum] => 1 701 131 ) 1
1 701 131
Работа:965 683
Материалы:735 448
Дни:23
stdClass Object ( [id] => 179 [attribute_id] => 3 [name] => Деревянные [material_modifier] => 1 [work_modifier] => 1 [options] => Array ( [0] => 180 мм [1] => 220 мм [2] => 260 мм [3] => 320 мм ) [days] => [7,8,9,10] [material_price] => [7950,9458,11961,14472] [work_price] => [4037,4925,5812,7207] [image] => https://akademik-stroy.ru/wp-content/uploads/materials/derevyannye.jpg [area_modifier] => 160.31 [parent_name] => Стены 1 этаж (несущие) [parent_id] => 3 [material_sum] => 1605825 [work_sum] => 679530 [total_sum] => 2285355 [total_days] => 7 [display_material_sum] => 1 605 825 [display_work_sum] => 679 530 [display_total_sum] => 2 285 355 ) 1
2 285 355
Работа:679 530
Материалы:1 605 825
Дни:7
stdClass Object ( [id] => 181 [attribute_id] => 3 [name] => Камень [material_modifier] => 1 [work_modifier] => 1 [options] => Array ( [0] => 300 мм [1] => 400 мм [2] => 500 мм [3] => 600 мм ) [days] => [25,27,31,34] [material_price] => [5262,6844,8330,9815] [work_price] => [8331,9135,10427,11069] [image] => https://akademik-stroy.ru/wp-content/uploads/materials/kamen.jpg [area_modifier] => 160.31 [parent_name] => Стены 1 этаж (несущие) [parent_id] => 3 [material_sum] => 1062875 [work_sum] => 1402320 [total_sum] => 2465195 [total_days] => 25 [display_material_sum] => 1 062 875 [display_work_sum] => 1 402 320 [display_total_sum] => 2 465 195 ) 1
2 465 195
Работа:1 402 320
Материалы:1 062 875
Дни:25
stdClass Object ( [id] => 182 [attribute_id] => 3 [name] => Каркасно-щитовые [material_modifier] => 1 [work_modifier] => 1 [options] => Array ( [0] => 150 мм [1] => 200 мм [2] => 250 мм [3] => 300 мм [4] => 350 мм [5] => 400 мм ) [days] => [15,16,17,18,19,20] [material_price] => [2379,2639,2898,3458,3601,4175] [work_price] => [2538,2820,3134,3483,4062,5642] [image] => https://akademik-stroy.ru/wp-content/uploads/materials/karkasno-shchitovye.jpg [area_modifier] => 160.31 [parent_name] => Стены 1 этаж (несущие) [parent_id] => 3 [material_sum] => 480536 [work_sum] => 427210 [total_sum] => 907746 [total_days] => 15 [display_material_sum] => 480 536 [display_work_sum] => 427 210 [display_total_sum] => 907 746 ) 1
907 746
Работа:427 210
Материалы:480 536
Дни:15
stdClass Object ( [id] => 183 [attribute_id] => 3 [name] => Рубленные [material_modifier] => 1 [work_modifier] => 1 [options] => Array ( [0] => 150 мм [1] => 200 мм [2] => 250 мм [3] => 300 мм [4] => 350 мм [5] => 400 мм ) [days] => [15,16,17,18,17,18] [material_price] => [35950,50267,60583,75900,80217,100533] [work_price] => [9612,12816,16020,19224,22428,25632] [image] => https://akademik-stroy.ru/wp-content/uploads/materials/rublennye.jpg [area_modifier] => 160.31 [parent_name] => Стены 1 этаж (несущие) [parent_id] => 3 [material_sum] => 7261562 [work_sum] => 1617945 [total_sum] => 8879507 [total_days] => 15 [display_material_sum] => 7 261 562 [display_work_sum] => 1 617 945 [display_total_sum] => 8 879 507 ) 1
8 879 507
Работа:1 617 945
Материалы:7 261 562
Дни:15
stdClass Object ( [id] => 185 [attribute_id] => 3 [name] => Теплоблок [material_modifier] => 1 [work_modifier] => 1 [options] => Array ( [0] => 300 мм (с облицовкой, не покрашенный) [1] => 400 мм (с облицовкой, не покрашенный) [2] => 300 мм (с облицовкой, покрашенный) [3] => 400 мм (с облицовкой, покрашенный) ) [days] => [15,16,15,16] [material_price] => [2888,3729,3957,4258] [work_price] => [2564,3229,2949,3713] [image] => https://akademik-stroy.ru/wp-content/uploads/materials/teploblok.jpg [area_modifier] => 160.31 [parent_name] => Стены 1 этаж (несущие) [parent_id] => 3 [material_sum] => 583349 [work_sum] => 431587 [total_sum] => 1014936 [total_days] => 15 [display_material_sum] => 583 349 [display_work_sum] => 431 587 [display_total_sum] => 1 014 936 ) 1
1 014 936
Работа:431 587
Материалы:583 349
Дни:15
stdClass Object ( [id] => 186 [attribute_id] => 3 [name] => Арболитовые блоки [material_modifier] => 1 [work_modifier] => 1 [options] => Array ( [0] => 300 мм [1] => 400 мм [2] => 600 мм ) [days] => [19,22,27] [material_price] => [3210,4475,5852] [work_price] => [4214,4788,5866] [image] => https://akademik-stroy.ru/wp-content/uploads/materials/arbolitovye-bloki.png [area_modifier] => 160.31 [parent_name] => Стены 1 этаж (несущие) [parent_id] => 3 [material_sum] => 648390 [work_sum] => 709324 [total_sum] => 1357714 [total_days] => 19 [display_material_sum] => 648 390 [display_work_sum] => 709 324 [display_total_sum] => 1 357 714 ) 1
1 357 714
Работа:709 324
Материалы:648 390
Дни:19
stdClass Object ( [id] => 187 [attribute_id] => 3 [name] => Полистиролбетон [material_modifier] => 1 [work_modifier] => 1 [options] => Array ( [0] => 300 мм [1] => 400 мм [2] => 600 мм ) [days] => [29,31,35] [material_price] => [2798,4573,5256] [work_price] => [5038,5851,6426] [image] => https://akademik-stroy.ru/wp-content/uploads/materials/polistirolbeton.jpg [area_modifier] => 160.31 [parent_name] => Стены 1 этаж (несущие) [parent_id] => 3 [material_sum] => 565170 [work_sum] => 848024 [total_sum] => 1413194 [total_days] => 29 [display_material_sum] => 565 170 [display_work_sum] => 848 024 [display_total_sum] => 1 413 194 ) 1
1 413 194
Работа:848 024
Материалы:565 170
Дни:29
stdClass Object ( [id] => 188 [attribute_id] => 3 [name] => Шлакоблок [material_modifier] => 1 [work_modifier] => 1 [options] => Array ( [0] => 400 мм [1] => 600 мм ) [days] => [15,16] [material_price] => [2391,3471] [work_price] => [2642,3662] [image] => https://akademik-stroy.ru/wp-content/uploads/materials/shlakoblok.jpg [area_modifier] => 160.31 [parent_name] => Стены 1 этаж (несущие) [parent_id] => 3 [material_sum] => 482960 [work_sum] => 444716 [total_sum] => 927676 [total_days] => 15 [display_material_sum] => 482 960 [display_work_sum] => 444 716 [display_total_sum] => 927 676 ) 1
927 676
Работа:444 716
Материалы:482 960
Дни:15
stdClass Object ( [id] => 189 [attribute_id] => 3 [name] => Теплая керамика [material_modifier] => 1 [work_modifier] => 1 [options] => Array ( [0] => 380 мм [1] => 380 мм Thermo [2] => 440 мм [3] => 510 мм ) [days] => [23,23,24,25] [material_price] => [4510,5098,6093,8013] [work_price] => [4737,4937,5903,6958] [image] => https://akademik-stroy.ru/wp-content/uploads/materials/teplaya-keramika.jpg [area_modifier] => 160.31 [parent_name] => Стены 1 этаж (несущие) [parent_id] => 3 [material_sum] => 910978 [work_sum] => 797358 [total_sum] => 1708336 [total_days] => 23 [display_material_sum] => 910 978 [display_work_sum] => 797 358 [display_total_sum] => 1 708 336 ) 1
1 708 336
Работа:797 358
Материалы:910 978
Дни:23
stdClass Object ( [id] => 190 [attribute_id] => 3 [name] => Несъемная опалубка [material_modifier] => 1 [work_modifier] => 1 [options] => Array ( [0] => 200 мм [1] => 250 мм [2] => 300 мм [3] => 350 мм ) [days] => [15,17,19,21] [material_price] => [3302,3902,4108,5008] [work_price] => [2100,2100,2300,2534] [image] => https://akademik-stroy.ru/wp-content/uploads/materials/nesemnaya-opalubka.jpg [area_modifier] => 160.31 [parent_name] => Стены 1 этаж (несущие) [parent_id] => 3 [material_sum] => 666973 [work_sum] => 353484 [total_sum] => 1020457 [total_days] => 15 [display_material_sum] => 666 973 [display_work_sum] => 353 484 [display_total_sum] => 1 020 457 ) 1
1 020 457
Работа:353 484
Материалы:666 973
Дни:15
stdClass Object ( [id] => 251 [attribute_id] => 3 [name] => Бревно [material_modifier] => 1 [work_modifier] => 1 [options] => Array ( [0] => 260 мм [1] => 320 мм [2] => 360 мм [3] => 400 мм [4] => 500 мм ) [days] => [7,8,9,10,11] [material_price] => [1874,24045,26930,30972,38825] [work_price] => [5046,6207,6952,7716,9723] [image] => https://akademik-stroy.ru/wp-content/uploads/materials/sruby.jpg [area_modifier] => 160.31 [parent_name] => Стены 1 этаж (несущие) [parent_id] => 3 [material_sum] => 378530 [work_sum] => 849370 [total_sum] => 1227900 [total_days] => 7 [display_material_sum] => 378 530 [display_work_sum] => 849 370 [display_total_sum] => 1 227 900 ) 1
1 227 900
Работа:849 370
Материалы:378 530
Дни:7
Перекрытие первого этажа
stdClass Object ( [id] => 7 [attribute_id] => 4 [name] => Деревянные балки [material_modifier] => 1 [work_modifier] => 1 [options] => Array ( [0] => без утепления [1] => утепление 200 мм [2] => утепление 250 мм [3] => утепление 300 мм [4] => утепление 350 мм [5] => утепление 400 мм [6] => утепление 450 мм [7] => утепление 500 мм ) [days] => [8,9,9,9,11,12,13,14] [material_price] => [1634,2042,2344,2947,3149,3652,3354,3557] [work_price] => [1230,1339,1393,1426,1460,1513,1587,1620] [image] => https://akademik-stroy.ru/wp-content/uploads/materials/derevyannye-balki.png [area_modifier] => 160.31 [parent_name] => Перекрытие первого этажа [parent_id] => 4 [material_sum] => 330053 [work_sum] => 207040 [total_sum] => 537093 [total_days] => 8 [display_material_sum] => 330 053 [display_work_sum] => 207 040 [display_total_sum] => 537 093 ) 1
537 093
Работа:207 040
Материалы:330 053
Дни:8
stdClass Object ( [id] => 8 [attribute_id] => 4 [name] => Сборные ж/б плиты [material_modifier] => 1 [work_modifier] => 1 [options] => Array ( [0] => без утепления [1] => утепление 150 мм [2] => утепление 200 мм [3] => утепление 250 мм [4] => утепление 300 мм [5] => утепление 350 мм [6] => утепление 400 мм [7] => утепление 450 мм [8] => утепление 500 мм ) [days] => [13,15,15,15,15,15,15,15,15] [material_price] => [3067,5577,5928,6679,7730,8782,9833,10884,11935] [work_price] => [1520,1956,2102,2247,2392,2537,2684,2829,2974] [image] => https://akademik-stroy.ru/wp-content/uploads/materials/sbornye-zh-b-plity-2.jpg [area_modifier] => 160.31 [parent_name] => Перекрытие первого этажа [parent_id] => 4 [material_sum] => 619505 [work_sum] => 255855 [total_sum] => 875360 [total_days] => 13 [display_material_sum] => 619 505 [display_work_sum] => 255 855 [display_total_sum] => 875 360 ) 1
875 360
Работа:255 855
Материалы:619 505
Дни:13
stdClass Object ( [id] => 89 [attribute_id] => 4 [name] => Монолитная ж/б плита [material_modifier] => 1 [work_modifier] => 1 [options] => Array ( [0] => без утепления [1] => утепление 150 мм [2] => утепление 200 мм [3] => утепление 250 мм [4] => утепление 300 мм [5] => утепление 350 мм [6] => утепление 400 мм [7] => утепление 450 мм [8] => утепление 500 мм ) [days] => [18,20,20,20,20,20,20,20,20] [material_price] => [4837,6572,7224,7375,79426,8177,8728,9180,10031] [work_price] => [3348,3921,4112,4302,4493,4684,4875,5066,5256] [image] => https://akademik-stroy.ru/wp-content/uploads/materials/monolitnaya-zh-b-plita-2.jpg [area_modifier] => 160.31 [parent_name] => Перекрытие первого этажа [parent_id] => 4 [material_sum] => 977029 [work_sum] => 563554 [total_sum] => 1540583 [total_days] => 18 [display_material_sum] => 977 029 [display_work_sum] => 563 554 [display_total_sum] => 1 540 583 ) 1
1 540 583
Работа:563 554
Материалы:977 029
Дни:18
Стены 2 этаж (несущие)
stdClass Object ( [id] => 10 [attribute_id] => 5 [name] => Пеноблок [material_modifier] => 1 [work_modifier] => 1 [options] => Array ( [0] => 300 мм [1] => 400 мм [2] => 500 мм [3] => 600 мм ) [days] => [29,31,34,39] [material_price] => [3000,4000,4500,4937] [work_price] => [5033,5805,6400,8710] [image] => https://akademik-stroy.ru/wp-content/uploads/materials/penoblok.jpg [area_modifier] => 66.51 [parent_name] => Стены 2 этаж (несущие) [parent_id] => 5 [material_sum] => 251408 [work_sum] => 351482 [total_sum] => 602890 [total_days] => 29 [display_material_sum] => 251 408 [display_work_sum] => 351 482 [display_total_sum] => 602 890 ) 1
602 890
Работа:351 482
Материалы:251 408
Дни:29
stdClass Object ( [id] => 90 [attribute_id] => 5 [name] => Керамический блок [material_modifier] => 1 [work_modifier] => 1 [options] => Array ( [0] => 380 мм [1] => 380 мм Thermo [2] => 440 мм [3] => 510 мм ) [days] => [23,23,24,25] [material_price] => [4510,5098,6093,8013] [work_price] => [4737,4937,5903,6958] [image] => https://akademik-stroy.ru/wp-content/uploads/materials/keramicheskij-blok.jpg [area_modifier] => 66.51 [parent_name] => Стены 2 этаж (несущие) [parent_id] => 5 [material_sum] => 377950 [work_sum] => 330811 [total_sum] => 708761 [total_days] => 23 [display_material_sum] => 377 950 [display_work_sum] => 330 811 [display_total_sum] => 708 761 ) 1
708 761
Работа:330 811
Материалы:377 950
Дни:23
stdClass Object ( [id] => 91 [attribute_id] => 5 [name] => Кирпич [material_modifier] => 1 [work_modifier] => 1 [options] => Array ( [0] => Кирпич 250 мм [1] => Кирпич 380 мм [2] => Кирпич 510 мм [3] => Кирпич 640 мм [4] => Кирпич 770 мм ) [days] => [30,30,31,33,36] [material_price] => [5500,7142,9206,10171,12235] [work_price] => [8736,10041,12018,15240,18462] [image] => https://akademik-stroy.ru/wp-content/uploads/materials/kirpich.jpg [area_modifier] => 66.51 [parent_name] => Стены 2 этаж (несущие) [parent_id] => 5 [material_sum] => 460914 [work_sum] => 610083 [total_sum] => 1070997 [total_days] => 30 [display_material_sum] => 460 914 [display_work_sum] => 610 083 [display_total_sum] => 1 070 997 ) 1
1 070 997
Работа:610 083
Материалы:460 914
Дни:30
stdClass Object ( [id] => 92 [attribute_id] => 5 [name] => Монолитные [material_modifier] => 1 [work_modifier] => 1 [options] => Array ( [0] => 150 мм [1] => 200 мм [2] => 250 мм [3] => 300 мм [4] => 350 мм [5] => 400 мм ) [days] => [45,46,47,49,50,53] [material_price] => [6545,7876,10175,12011,13908,15204] [work_price] => [5106,6444,7698,8552,9807,11461] [image] => https://akademik-stroy.ru/wp-content/uploads/materials/monolitnye.jpg [area_modifier] => 66.51 [parent_name] => Стены 2 этаж (несущие) [parent_id] => 5 [material_sum] => 548488 [work_sum] => 356580 [total_sum] => 905068 [total_days] => 45 [display_material_sum] => 548 488 [display_work_sum] => 356 580 [display_total_sum] => 905 068 ) 1
905 068
Работа:356 580
Материалы:548 488
Дни:45
stdClass Object ( [id] => 93 [attribute_id] => 5 [name] => Клееный брус [material_modifier] => 1 [work_modifier] => 1 [options] => Array ( [0] => 160 мм [1] => 175 мм [2] => 200 мм [3] => 215 мм [4] => 240 мм [5] => 270 мм [6] => 282 мм ) [days] => [24,28,32,37,40,42,48] [material_price] => [16975,18773,19950,20545,21599,22159,23275] [work_price] => [4806,5287,5815,6397,7036,7740,8514] [image] => https://akademik-stroy.ru/wp-content/uploads/materials/kleenyj-brus.jpg [area_modifier] => 66.51 [parent_name] => Стены 2 этаж (несущие) [parent_id] => 5 [material_sum] => 1422549 [work_sum] => 335629 [total_sum] => 1758178 [total_days] => 24 [display_material_sum] => 1 422 549 [display_work_sum] => 335 629 [display_total_sum] => 1 758 178 ) 1
1 758 178
Работа:335 629
Материалы:1 422 549
Дни:24
stdClass Object ( [id] => 94 [attribute_id] => 5 [name] => Каркасные [material_modifier] => 1 [work_modifier] => 1 [options] => Array ( [0] => 150 мм [1] => 200 мм [2] => 250 мм [3] => 300 мм ) [days] => [15,16,17,18] [material_price] => [2379,2639,2898,3258] [work_price] => [2418,2686,2985,3716] [image] => https://akademik-stroy.ru/wp-content/uploads/materials/karkasnye.jpg [area_modifier] => 66.51 [parent_name] => Стены 2 этаж (несущие) [parent_id] => 5 [material_sum] => 199366 [work_sum] => 168862 [total_sum] => 368228 [total_days] => 15 [display_material_sum] => 199 366 [display_work_sum] => 168 862 [display_total_sum] => 368 228 ) 1
368 228
Работа:168 862
Материалы:199 366
Дни:15
stdClass Object ( [id] => 95 [attribute_id] => 5 [name] => СИП-панели [material_modifier] => 1 [work_modifier] => 1 [options] => Array ( [0] => 120 мм [1] => 170 мм [2] => 220 мм ) [days] => [7,7,7] [material_price] => [1210,1856,2292] [work_price] => [1410,1551,1706] [image] => https://akademik-stroy.ru/wp-content/uploads/materials/sip-paneli.jpg [area_modifier] => 66.51 [parent_name] => Стены 2 этаж (несущие) [parent_id] => 5 [material_sum] => 101401 [work_sum] => 98468 [total_sum] => 199869 [total_days] => 7 [display_material_sum] => 101 401 [display_work_sum] => 98 468 [display_total_sum] => 199 869 ) 1
199 869
Работа:98 468
Материалы:101 401
Дни:7
stdClass Object ( [id] => 96 [attribute_id] => 5 [name] => Сухой брус [material_modifier] => 1 [work_modifier] => 1 [options] => Array ( [0] => 150 мм [1] => 180 мм [2] => 200 мм ) [days] => [7,8,9] [material_price] => [6010,7190,8709] [work_price] => [3204,3845,4229] [image] => https://akademik-stroy.ru/wp-content/uploads/materials/suhoj-brus.jpg [area_modifier] => 66.51 [parent_name] => Стены 2 этаж (несущие) [parent_id] => 5 [material_sum] => 503654 [work_sum] => 223753 [total_sum] => 727407 [total_days] => 7 [display_material_sum] => 503 654 [display_work_sum] => 223 753 [display_total_sum] => 727 407 ) 1
727 407
Работа:223 753
Материалы:503 654
Дни:7
stdClass Object ( [id] => 97 [attribute_id] => 5 [name] => Профилированный брус [material_modifier] => 1 [work_modifier] => 1 [options] => Array ( [0] => 150 мм [1] => 180 мм [2] => 200 мм ) [days] => [7,8,9] [material_price] => [8190,9228,10051] [work_price] => [3845,4614,5075] [image] => https://akademik-stroy.ru/wp-content/uploads/materials/profilirovannyj-brus.jpg [area_modifier] => 66.51 [parent_name] => Стены 2 этаж (несущие) [parent_id] => 5 [material_sum] => 686343 [work_sum] => 268517 [total_sum] => 954860 [total_days] => 7 [display_material_sum] => 686 343 [display_work_sum] => 268 517 [display_total_sum] => 954 860 ) 1
954 860
Работа:268 517
Материалы:686 343
Дни:7
stdClass Object ( [id] => 98 [attribute_id] => 5 [name] => Оцилиндрованное бревно [material_modifier] => 1 [work_modifier] => 1 [options] => Array ( [0] => 180 мм [1] => 220 мм [2] => 260 мм [3] => 320 мм ) [days] => [7,8,9,10] [material_price] => [75190,9532,10868,13116] [work_price] => [3845,4691,5535,6863] [image] => https://akademik-stroy.ru/wp-content/uploads/materials/ocilindrovannoe-brevno-1.jpg [area_modifier] => 66.51 [parent_name] => Стены 2 этаж (несущие) [parent_id] => 5 [material_sum] => 6301117 [work_sum] => 268517 [total_sum] => 6569634 [total_days] => 7 [display_material_sum] => 6 301 117 [display_work_sum] => 268 517 [display_total_sum] => 6 569 634 ) 1
6 569 634
Работа:268 517
Материалы:6 301 117
Дни:7
stdClass Object ( [id] => 99 [attribute_id] => 5 [name] => Срубы [material_modifier] => 1 [work_modifier] => 1 [options] => Array ( [0] => 260 мм [1] => 320 мм [2] => 360 мм [3] => 400 мм [4] => 500 мм ) [days] => [7,8,9,10,11] [material_price] => [16175,23709,26314,29069,32167] [work_price] => [4806,5911,6621,7349,9260] [image] => https://akademik-stroy.ru/wp-content/uploads/materials/suhoj-brus.jpg [area_modifier] => 66.51 [parent_name] => Стены 2 этаж (несущие) [parent_id] => 5 [material_sum] => 1355507 [work_sum] => 335629 [total_sum] => 1691136 [total_days] => 7 [display_material_sum] => 1 355 507 [display_work_sum] => 335 629 [display_total_sum] => 1 691 136 ) 1
1 691 136
Работа:335 629
Материалы:1 355 507
Дни:7
stdClass Object ( [id] => 194 [attribute_id] => 5 [name] => Брус [material_modifier] => 1 [work_modifier] => 1 [options] => Array ( [0] => 150 мм [1] => 180 мм [2] => 200 мм ) [days] => [10,13,15] [material_price] => [5127,6152,7367] [work_price] => [1602,1922,2115] [image] => https://akademik-stroy.ru/wp-content/uploads/materials/brus.jpg [area_modifier] => 66.51 [parent_name] => Стены 2 этаж (несущие) [parent_id] => 5 [material_sum] => 429656 [work_sum] => 111876 [total_sum] => 541532 [total_days] => 10 [display_material_sum] => 429 656 [display_work_sum] => 111 876 [display_total_sum] => 541 532 ) 1
541 532
Работа:111 876
Материалы:429 656
Дни:10
stdClass Object ( [id] => 195 [attribute_id] => 5 [name] => Газобетон [material_modifier] => 1 [work_modifier] => 1 [options] => Array ( [0] => 300 мм [1] => 375 мм [2] => 400 мм [3] => 500 мм [4] => 600 мм ) [days] => [29,31,35,37,44] [material_price] => [4298,5573,6356,7288,9119] [work_price] => [4538,5251,5926,6733,7195] [image] => https://akademik-stroy.ru/wp-content/uploads/materials/gazobeton.jpg [area_modifier] => 66.51 [parent_name] => Стены 2 этаж (несущие) [parent_id] => 5 [material_sum] => 360184 [work_sum] => 316913 [total_sum] => 677097 [total_days] => 29 [display_material_sum] => 360 184 [display_work_sum] => 316 913 [display_total_sum] => 677 097 ) 1
677 097
Работа:316 913
Материалы:360 184
Дни:29
stdClass Object ( [id] => 196 [attribute_id] => 5 [name] => Блок [material_modifier] => 1 [work_modifier] => 1 [options] => Array ( [0] => 300 мм [1] => 375 мм [2] => 400 мм [3] => 500 мм [4] => 600 мм ) [days] => [29,31,35,37,44] [material_price] => [2698,3973,4356,6588,7119] [work_price] => [5038,5851,6426,8733,9195] [image] => https://akademik-stroy.ru/wp-content/uploads/materials/blok.jpg [area_modifier] => 66.51 [parent_name] => Стены 2 этаж (несущие) [parent_id] => 5 [material_sum] => 226099 [work_sum] => 351831 [total_sum] => 577930 [total_days] => 29 [display_material_sum] => 226 099 [display_work_sum] => 351 831 [display_total_sum] => 577 930 ) 1
577 930
Работа:351 831
Материалы:226 099
Дни:29
stdClass Object ( [id] => 197 [attribute_id] => 5 [name] => Газосиликатный блок [material_modifier] => 1 [work_modifier] => 1 [options] => Array ( [0] => 300 мм [1] => 375 мм [2] => 400 мм [3] => 500 мм [4] => 600 мм ) [days] => [29,31,35,37,44] [material_price] => [4298,5573,6356,7288,9119] [work_price] => [4538,5251,5926,6733,7195] [image] => https://akademik-stroy.ru/wp-content/uploads/materials/gazosilikatnyj-blok.jpg [area_modifier] => 66.51 [parent_name] => Стены 2 этаж (несущие) [parent_id] => 5 [material_sum] => 360184 [work_sum] => 316913 [total_sum] => 677097 [total_days] => 29 [display_material_sum] => 360 184 [display_work_sum] => 316 913 [display_total_sum] => 677 097 ) 1
677 097
Работа:316 913
Материалы:360 184
Дни:29
stdClass Object ( [id] => 198 [attribute_id] => 5 [name] => Керамзитобетонный блок [material_modifier] => 1 [work_modifier] => 1 [options] => Array ( [0] => 300 мм [1] => 375 мм [2] => 400 мм [3] => 500 мм [4] => 600 мм ) [days] => [23,23,24,25,28] [material_price] => [3641,4298,5693,7613,9612] [work_price] => [5737,5737,6903,7958,8901] [image] => https://akademik-stroy.ru/wp-content/uploads/materials/keramzitobetonnyj-blok.jpg [area_modifier] => 66.51 [parent_name] => Стены 2 этаж (несущие) [parent_id] => 5 [material_sum] => 305125 [work_sum] => 400646 [total_sum] => 705771 [total_days] => 23 [display_material_sum] => 305 125 [display_work_sum] => 400 646 [display_total_sum] => 705 771 ) 1
705 771
Работа:400 646
Материалы:305 125
Дни:23
stdClass Object ( [id] => 199 [attribute_id] => 5 [name] => Деревянные [material_modifier] => 1 [work_modifier] => 1 [options] => Array ( [0] => 180 мм [1] => 220 мм [2] => 260 мм [3] => 320 мм ) [days] => [7,8,9,10] [material_price] => [7950,9458,11961,14472] [work_price] => [4037,4925,5812,7207] [image] => https://akademik-stroy.ru/wp-content/uploads/materials/derevyannye.jpg [area_modifier] => 66.51 [parent_name] => Стены 2 этаж (несущие) [parent_id] => 5 [material_sum] => 666231 [work_sum] => 281926 [total_sum] => 948157 [total_days] => 7 [display_material_sum] => 666 231 [display_work_sum] => 281 926 [display_total_sum] => 948 157 ) 1
948 157
Работа:281 926
Материалы:666 231
Дни:7
stdClass Object ( [id] => 200 [attribute_id] => 5 [name] => Камень [material_modifier] => 1 [work_modifier] => 1 [options] => Array ( [0] => 300 мм [1] => 400 мм [2] => 500 мм [3] => 600 мм ) [days] => [25,27,31,34] [material_price] => [5262,6844,8330,9815] [work_price] => [8331,9135,10427,11069] [image] => https://akademik-stroy.ru/wp-content/uploads/materials/kamen.jpg [area_modifier] => 66.51 [parent_name] => Стены 2 этаж (несущие) [parent_id] => 5 [material_sum] => 440969 [work_sum] => 581800 [total_sum] => 1022769 [total_days] => 25 [display_material_sum] => 440 969 [display_work_sum] => 581 800 [display_total_sum] => 1 022 769 ) 1
1 022 769
Работа:581 800
Материалы:440 969
Дни:25
stdClass Object ( [id] => 201 [attribute_id] => 5 [name] => Каркасно-щитовые [material_modifier] => 1 [work_modifier] => 1 [options] => Array ( [0] => 150 мм [1] => 200 мм [2] => 250 мм [3] => 300 мм [4] => 350 мм [5] => 400 мм ) [days] => [15,16,17,18,19,20] [material_price] => [2379,2639,2898,3458,3601,4175] [work_price] => [2538,2820,3134,3483,4062,5642] [image] => https://akademik-stroy.ru/wp-content/uploads/materials/karkasno-shchitovye.jpg [area_modifier] => 66.51 [parent_name] => Стены 2 этаж (несущие) [parent_id] => 5 [material_sum] => 199366 [work_sum] => 177242 [total_sum] => 376608 [total_days] => 15 [display_material_sum] => 199 366 [display_work_sum] => 177 242 [display_total_sum] => 376 608 ) 1
376 608
Работа:177 242
Материалы:199 366
Дни:15
stdClass Object ( [id] => 202 [attribute_id] => 5 [name] => Рубленные [material_modifier] => 1 [work_modifier] => 1 [options] => Array ( [0] => 150 мм [1] => 200 мм [2] => 250 мм [3] => 300 мм [4] => 350 мм [5] => 400 мм ) [days] => [15,16,17,18,17,18] [material_price] => [35950,50267,60583,75900,80217,100533] [work_price] => [9612,12816,16020,19224,22428,25632] [image] => https://akademik-stroy.ru/wp-content/uploads/materials/rublennye.jpg [area_modifier] => 66.51 [parent_name] => Стены 2 этаж (несущие) [parent_id] => 5 [material_sum] => 3012703 [work_sum] => 671259 [total_sum] => 3683962 [total_days] => 15 [display_material_sum] => 3 012 703 [display_work_sum] => 671 259 [display_total_sum] => 3 683 962 ) 1
3 683 962
Работа:671 259
Материалы:3 012 703
Дни:15
stdClass Object ( [id] => 203 [attribute_id] => 5 [name] => Теплоблок [material_modifier] => 1 [work_modifier] => 1 [options] => Array ( [0] => 300 мм (с облицовкой, не покрашенный) [1] => 400 мм (с облицовкой, не покрашенный) [2] => 300 мм (с облицовкой, покрашенный) [3] => 400 мм (с облицовкой, покрашенный) ) [days] => [15,16,15,16] [material_price] => [2888,3729,3957,4258] [work_price] => [2564,3229,2949,3713] [image] => https://akademik-stroy.ru/wp-content/uploads/materials/teploblok.jpg [area_modifier] => 66.51 [parent_name] => Стены 2 этаж (несущие) [parent_id] => 5 [material_sum] => 242022 [work_sum] => 179058 [total_sum] => 421080 [total_days] => 15 [display_material_sum] => 242 022 [display_work_sum] => 179 058 [display_total_sum] => 421 080 ) 1
421 080
Работа:179 058
Материалы:242 022
Дни:15
stdClass Object ( [id] => 204 [attribute_id] => 5 [name] => Арболитовые блоки [material_modifier] => 1 [work_modifier] => 1 [options] => Array ( [0] => 300 мм [1] => 400 мм [2] => 600 мм ) [days] => [19,22,27] [material_price] => [3210,4475,5852] [work_price] => [4214,4788,5866] [image] => https://akademik-stroy.ru/wp-content/uploads/materials/arbolitovye-bloki.png [area_modifier] => 66.51 [parent_name] => Стены 2 этаж (несущие) [parent_id] => 5 [material_sum] => 269006 [work_sum] => 294287 [total_sum] => 563293 [total_days] => 19 [display_material_sum] => 269 006 [display_work_sum] => 294 287 [display_total_sum] => 563 293 ) 1
563 293
Работа:294 287
Материалы:269 006
Дни:19
stdClass Object ( [id] => 205 [attribute_id] => 5 [name] => Полистиролбетон [material_modifier] => 1 [work_modifier] => 1 [options] => Array ( [0] => 300 мм [1] => 400 мм [2] => 600 мм ) [days] => [29,31,35] [material_price] => [2798,4573,5256] [work_price] => [5038,5851,6426] [image] => https://akademik-stroy.ru/wp-content/uploads/materials/polistirolbeton.jpg [area_modifier] => 66.51 [parent_name] => Стены 2 этаж (несущие) [parent_id] => 5 [material_sum] => 234480 [work_sum] => 351831 [total_sum] => 586311 [total_days] => 29 [display_material_sum] => 234 480 [display_work_sum] => 351 831 [display_total_sum] => 586 311 ) 1
586 311
Работа:351 831
Материалы:234 480
Дни:29
stdClass Object ( [id] => 206 [attribute_id] => 5 [name] => Шлакоблок [material_modifier] => 1 [work_modifier] => 1 [options] => Array ( [0] => 400 мм [1] => 600 мм ) [days] => [15,16] [material_price] => [2391,3471] [work_price] => [2642,3662] [image] => https://akademik-stroy.ru/wp-content/uploads/materials/shlakoblok.jpg [area_modifier] => 66.51 [parent_name] => Стены 2 этаж (несущие) [parent_id] => 5 [material_sum] => 200372 [work_sum] => 184505 [total_sum] => 384877 [total_days] => 15 [display_material_sum] => 200 372 [display_work_sum] => 184 505 [display_total_sum] => 384 877 ) 1
384 877
Работа:184 505
Материалы:200 372
Дни:15
stdClass Object ( [id] => 245 [attribute_id] => 5 [name] => Теплая керамика [material_modifier] => 1 [work_modifier] => 1 [options] => Array ( [0] => 380 мм [1] => 380 мм Thermo [2] => 440 мм [3] => 510 мм ) [days] => [10,10,11,12] [material_price] => [4510,5098,6093,8013] [work_price] => [4737,4937,5903,6958] [image] => https://akademik-stroy.ru/wp-content/uploads/materials/teplaya-keramika.jpg [area_modifier] => 66.51 [parent_name] => Стены 2 этаж (несущие) [parent_id] => 5 [material_sum] => 377950 [work_sum] => 330811 [total_sum] => 708761 [total_days] => 10 [display_material_sum] => 377 950 [display_work_sum] => 330 811 [display_total_sum] => 708 761 ) 1
708 761
Работа:330 811
Материалы:377 950
Дни:10
stdClass Object ( [id] => 246 [attribute_id] => 5 [name] => Несъемная опалубка [material_modifier] => 1 [work_modifier] => 1 [options] => Array ( [0] => 380 мм [1] => 380 мм Thermo [2] => 440 мм [3] => 510 мм ) [days] => [10,10,11,12] [material_price] => [3302,3902,4108,5008] [work_price] => [2100,2100,2300,2534] [image] => https://akademik-stroy.ru/wp-content/uploads/materials/nesemnaya-opalubka.jpg [area_modifier] => 66.51 [parent_name] => Стены 2 этаж (несущие) [parent_id] => 5 [material_sum] => 276716 [work_sum] => 146655 [total_sum] => 423371 [total_days] => 10 [display_material_sum] => 276 716 [display_work_sum] => 146 655 [display_total_sum] => 423 371 ) 1
423 371
Работа:146 655
Материалы:276 716
Дни:10
stdClass Object ( [id] => 254 [attribute_id] => 5 [name] => Бревно [material_modifier] => 1 [work_modifier] => 1 [options] => Array ( [0] => 260 мм [1] => 320 мм [2] => 360 мм [3] => 400 мм [4] => 500 мм ) [days] => [7,8,9,10,11] [material_price] => [1874,24045,26930,30972,38825] [work_price] => [5046,6207,6952,7716,9723] [image] => https://akademik-stroy.ru/wp-content/uploads/materials/sruby.jpg [area_modifier] => 66.51 [parent_name] => Стены 2 этаж (несущие) [parent_id] => 5 [material_sum] => 157046 [work_sum] => 352390 [total_sum] => 509436 [total_days] => 7 [display_material_sum] => 157 046 [display_work_sum] => 352 390 [display_total_sum] => 509 436 ) 1
509 436
Работа:352 390
Материалы:157 046
Дни:7
Крыша (Скатная)
stdClass Object ( [id] => 164 [attribute_id] => 37 [name] => Металлочерепица [material_modifier] => 1 [work_modifier] => 1 [options] => Array ( ) [days] => [20] [material_price] => [6112] [work_price] => [5726] [image] => https://akademik-stroy.ru/wp-content/uploads/materials/metallocherepica.jpg [area_modifier] => 160.31 [parent_name] => Крыша (Скатная) [parent_id] => 37 [material_sum] => 1234567 [work_sum] => 963832 [total_sum] => 2198399 [total_days] => 20 [display_material_sum] => 1 234 567 [display_work_sum] => 963 832 [display_total_sum] => 2 198 399 ) 1
2 198 399
Работа:963 832
Материалы:1 234 567
Дни:20
stdClass Object ( [id] => 165 [attribute_id] => 37 [name] => Гибкая черепица [material_modifier] => 1 [work_modifier] => 1 [options] => Array ( ) [days] => [20] [material_price] => [6980] [work_price] => [5950] [image] => https://akademik-stroy.ru/wp-content/uploads/materials/gibkaya-cherepica.jpg [area_modifier] => 160.31 [parent_name] => Крыша (Скатная) [parent_id] => 37 [material_sum] => 1409894 [work_sum] => 1001537 [total_sum] => 2411431 [total_days] => 20 [display_material_sum] => 1 409 894 [display_work_sum] => 1 001 537 [display_total_sum] => 2 411 431 ) 1
2 411 431
Работа:1 001 537
Материалы:1 409 894
Дни:20
stdClass Object ( [id] => 166 [attribute_id] => 37 [name] => Цементно-песчаная черепица [material_modifier] => 1 [work_modifier] => 1 [options] => Array ( ) [days] => [20] [material_price] => [10560] [work_price] => [9456] [image] => https://akademik-stroy.ru/wp-content/uploads/materials/cementno-peschanaya-cherepica.jpg [area_modifier] => 160.31 [parent_name] => Крыша (Скатная) [parent_id] => 37 [material_sum] => 2133021 [work_sum] => 1591686 [total_sum] => 3724707 [total_days] => 20 [display_material_sum] => 2 133 021 [display_work_sum] => 1 591 686 [display_total_sum] => 3 724 707 ) 1
3 724 707
Работа:1 591 686
Материалы:2 133 021
Дни:20
stdClass Object ( [id] => 167 [attribute_id] => 37 [name] => Композитная черепица [material_modifier] => 1 [work_modifier] => 1 [options] => Array ( ) [days] => [20] [material_price] => [9506] [work_price] => [8905] [image] => https://akademik-stroy.ru/wp-content/uploads/materials/kompozitnaya-cherepica.jpg [area_modifier] => 160.31 [parent_name] => Крыша (Скатная) [parent_id] => 37 [material_sum] => 1920123 [work_sum] => 1498939 [total_sum] => 3419062 [total_days] => 20 [display_material_sum] => 1 920 123 [display_work_sum] => 1 498 939 [display_total_sum] => 3 419 062 ) 1
3 419 062
Работа:1 498 939
Материалы:1 920 123
Дни:20
stdClass Object ( [id] => 168 [attribute_id] => 37 [name] => Керамическая черепица [material_modifier] => 1 [work_modifier] => 1 [options] => Array ( ) [days] => [20] [material_price] => [12750] [work_price] => [9456] [image] => https://akademik-stroy.ru/wp-content/uploads/materials/keramicheskaya-cherepica.jpg [area_modifier] => 160.31 [parent_name] => Крыша (Скатная) [parent_id] => 37 [material_sum] => 2575380 [work_sum] => 1591686 [total_sum] => 4167066 [total_days] => 20 [display_material_sum] => 2 575 380 [display_work_sum] => 1 591 686 [display_total_sum] => 4 167 066 ) 1
4 167 066
Работа:1 591 686
Материалы:2 575 380
Дни:20
stdClass Object ( [id] => 169 [attribute_id] => 37 [name] => Металлическая фальцевая [material_modifier] => 1 [work_modifier] => 1 [options] => Array ( ) [days] => [20] [material_price] => [8550] [work_price] => [8190] [image] => https://akademik-stroy.ru/wp-content/uploads/materials/metallicheskaya-falcevaya.jpg [area_modifier] => 160.31 [parent_name] => Крыша (Скатная) [parent_id] => 37 [material_sum] => 1727020 [work_sum] => 1378586 [total_sum] => 3105606 [total_days] => 20 [display_material_sum] => 1 727 020 [display_work_sum] => 1 378 586 [display_total_sum] => 3 105 606 ) 1
3 105 606
Работа:1 378 586
Материалы:1 727 020
Дни:20
stdClass Object ( [id] => 170 [attribute_id] => 37 [name] => Медная фальцевая [material_modifier] => 1 [work_modifier] => 1 [options] => Array ( ) [days] => [20] [material_price] => [20450] [work_price] => [16750] [image] => https://akademik-stroy.ru/wp-content/uploads/materials/mednaya-falcevaya.jpg [area_modifier] => 160.31 [parent_name] => Крыша (Скатная) [parent_id] => 37 [material_sum] => 4130708 [work_sum] => 2819452 [total_sum] => 6950160 [total_days] => 20 [display_material_sum] => 4 130 708 [display_work_sum] => 2 819 452 [display_total_sum] => 6 950 160 ) 1
6 950 160
Работа:2 819 452
Материалы:4 130 708
Дни:20
stdClass Object ( [id] => 171 [attribute_id] => 37 [name] => Зеленая кровля [material_modifier] => 1 [work_modifier] => 1 [options] => Array ( ) [days] => [20] [material_price] => [19850] [work_price] => [16780] [image] => https://akademik-stroy.ru/wp-content/uploads/materials/zelenaya-krovlya.jpg [area_modifier] => 160.31 [parent_name] => Крыша (Скатная) [parent_id] => 37 [material_sum] => 4009513 [work_sum] => 2824502 [total_sum] => 6834015 [total_days] => 20 [display_material_sum] => 4 009 513 [display_work_sum] => 2 824 502 [display_total_sum] => 6 834 015 ) 1
6 834 015
Работа:2 824 502
Материалы:4 009 513
Дни:20
stdClass Object ( [id] => 172 [attribute_id] => 37 [name] => Профлист [material_modifier] => 1 [work_modifier] => 1 [options] => Array ( ) [days] => [20] [material_price] => [3450] [work_price] => [3750] [image] => https://akademik-stroy.ru/wp-content/uploads/materials/proflist.jpg [area_modifier] => 160.31 [parent_name] => Крыша (Скатная) [parent_id] => 37 [material_sum] => 696868 [work_sum] => 631221 [total_sum] => 1328089 [total_days] => 20 [display_material_sum] => 696 868 [display_work_sum] => 631 221 [display_total_sum] => 1 328 089 ) 1
1 328 089
Работа:631 221
Материалы:696 868
Дни:20
Окна
stdClass Object ( [id] => 51 [attribute_id] => 26 [name] => Есть [material_modifier] => 1 [work_modifier] => 1 [options] => Array ( [0] => Профиль 58 мм, 3-камерный, стеклопакет 2-камерный до 32 мм [1] => Профиль 60 мм, 4-камерный, стеклопакет 2-камерный до 32 мм [2] => Профиль 70 мм, 5-камерный, стеклопакет 2-камерный до 40 мм [3] => Профиль 72 мм, 5-камерный, стеклопакет 2-камерный до 40 мм [4] => Алюминиевые окна Alutech профиль 72 мм, стеклопакет 2-камерный ) [days] => [3,3,3,3,3] [material_price] => [1339,2124,2867,3023,29596] [work_price] => [635,647,659,668,2579] [image] => https://akademik-stroy.ru/wp-content/uploads/materials/okna.jpg [area_modifier] => 184.06 [parent_name] => Окна [parent_id] => 26 [material_sum] => 310535 [work_sum] => 122722 [total_sum] => 433257 [total_days] => 3 [display_material_sum] => 310 535 [display_work_sum] => 122 722 [display_total_sum] => 433 257 ) 1
433 257
Работа:122 722
Материалы:310 535
Дни:3
stdClass Object ( [id] => 52 [attribute_id] => 26 [name] => Нет [material_modifier] => 2 [work_modifier] => 1 [options] => [days] => null [material_price] => null [work_price] => null [image] => https://akademik-stroy.ru/wp-content/uploads/materials/okna.jpg [area_modifier] => 184.06 [parent_name] => Окна [parent_id] => 26 [material_sum] => 0 [work_sum] => 0 [total_sum] => 0 [total_days] => 0 [display_material_sum] => 0 [display_work_sum] => 0 [display_total_sum] => 0 ) 1
0
Работа:0
Материалы:0
Дни:0
Двери входные
stdClass Object ( [id] => 53 [attribute_id] => 27 [name] => Есть [material_modifier] => 1 [work_modifier] => 1 [options] => Array ( ) [days] => [1] [material_price] => [10000] [work_price] => [5500] [image] => https://akademik-stroy.ru/wp-content/uploads/materials/dveri.jpg [area_modifier] => 1 [parent_name] => Двери входные [parent_id] => 27 [material_sum] => 12600 [work_sum] => 5775 [total_sum] => 18375 [total_days] => 1 [display_material_sum] => 12 600 [display_work_sum] => 5 775 [display_total_sum] => 18 375 ) 1
18 375
Работа:5 775
Материалы:12 600
Дни:1
stdClass Object ( [id] => 54 [attribute_id] => 27 [name] => Нет [material_modifier] => 1 [work_modifier] => 1 [options] => Array ( ) [days] => [0] [material_price] => [0] [work_price] => [0] [image] => https://akademik-stroy.ru/wp-content/uploads/materials/dveri.jpg [area_modifier] => 1 [parent_name] => Двери входные [parent_id] => 27 [material_sum] => 0 [work_sum] => 0 [total_sum] => 0 [total_days] => 0 [display_material_sum] => 0 [display_work_sum] => 0 [display_total_sum] => 0 ) 1
0
Работа:0
Материалы:0
Дни:0
Утепление кровли (Мансарда)
stdClass Object ( [id] => 25 [attribute_id] => 13 [name] => Нет [material_modifier] => 1 [work_modifier] => 1 [options] => Array ( ) [days] => [0] [material_price] => [0] [work_price] => [0] [image] => https://akademik-stroy.ru/wp-content/uploads/materials/mineralovata-krov.jpg [area_modifier] => 160.31 [parent_name] => Утепление кровли (Мансарда) [parent_id] => 13 [material_sum] => 0 [work_sum] => 0 [total_sum] => 0 [total_days] => 0 [display_material_sum] => 0 [display_work_sum] => 0 [display_total_sum] => 0 ) 1
0
Работа:0
Материалы:0
Дни:0
stdClass Object ( [id] => 26 [attribute_id] => 13 [name] => Минераловатный [material_modifier] => 1 [work_modifier] => 1 [options] => Array ( [0] => 50 мм [1] => 100 мм [2] => 150 мм [3] => 200 мм [4] => 250 мм [5] => 300 мм [6] => 350 мм [7] => 400 мм [8] => 450 мм [9] => 500 мм ) [days] => [5,5,6,6,6,7,7,7,8,8] [material_price] => [1158,1414,1772,2230,3602,4060,4974,5890,6408,7718] [work_price] => [650,846,846,1098,1318,1450,1596,1754,1930,2122] [image] => https://akademik-stroy.ru/wp-content/uploads/materials/mineralovata-krov.jpg [area_modifier] => 160.31 [parent_name] => Утепление кровли (Мансарда) [parent_id] => 13 [material_sum] => 233905 [work_sum] => 109412 [total_sum] => 343317 [total_days] => 5 [display_material_sum] => 233 905 [display_work_sum] => 109 412 [display_total_sum] => 343 317 ) 1
343 317
Работа:109 412
Материалы:233 905
Дни:5
stdClass Object ( [id] => 123 [attribute_id] => 13 [name] => Эковата (целлюлозная вата) [material_modifier] => 1 [work_modifier] => 1 [options] => Array ( [0] => 50 мм [1] => 100 мм [2] => 150 мм [3] => 200 мм [4] => 250 мм [5] => 300 мм [6] => 350 мм [7] => 400 мм [8] => 450 мм [9] => 500 мм ) [days] => [3,3,4,4,4,5,5,5,5,5] [material_price] => [820,1638,2458,3276,5734,6552,8190,9828,11466,13104] [work_price] => [234,304,304,396,474,522,574,632,694,764] [image] => https://akademik-stroy.ru/wp-content/uploads/materials/ehkovata-krov.jpg [area_modifier] => 160.31 [parent_name] => Утепление кровли (Мансарда) [parent_id] => 13 [material_sum] => 165632 [work_sum] => 39388 [total_sum] => 205020 [total_days] => 3 [display_material_sum] => 165 632 [display_work_sum] => 39 388 [display_total_sum] => 205 020 ) 1
205 020
Работа:39 388
Материалы:165 632
Дни:3
stdClass Object ( [id] => 124 [attribute_id] => 13 [name] => Экструдированный пенополистирол [material_modifier] => 1 [work_modifier] => 1 [options] => Array ( [0] => 50 мм [1] => 100 мм [2] => 150 мм [3] => 200 мм [4] => 250 мм [5] => 300 мм [6] => 350 мм [7] => 400 мм [8] => 450 мм [9] => 500 мм ) [days] => [3,3,4,4,4,5,5,5,5,6] [material_price] => [1146,2292,3438,4584,8020,9166,11458,13750,16040,18332] [work_price] => [390,508,508,660,790,870,958,1052,1158,1274] [image] => https://akademik-stroy.ru/wp-content/uploads/materials/epps-krov.jpg [area_modifier] => 160.31 [parent_name] => Утепление кровли (Мансарда) [parent_id] => 13 [material_sum] => 231481 [work_sum] => 65647 [total_sum] => 297128 [total_days] => 3 [display_material_sum] => 231 481 [display_work_sum] => 65 647 [display_total_sum] => 297 128 ) 1
297 128
Работа:65 647
Материалы:231 481
Дни:3
stdClass Object ( [id] => 125 [attribute_id] => 13 [name] => ПСБ (ППС-пенополистирол) [material_modifier] => 1 [work_modifier] => 1 [options] => Array ( [0] => 50 мм [1] => 100 мм [2] => 150 мм [3] => 200 мм [4] => 250 мм [5] => 300 мм [6] => 350 мм [7] => 400 мм [8] => 450 мм [9] => 500 мм ) [days] => [3,3,4,4,4,5,5,5,5,6] [material_price] => [476,954,1430,1906,3336,3814,4766,5720,6674,7626] [work_price] => [390,508,508,660,790,870,958,1052,1158,1274] [image] => https://akademik-stroy.ru/wp-content/uploads/materials/psb-krov.jpg [area_modifier] => 160.31 [parent_name] => Утепление кровли (Мансарда) [parent_id] => 13 [material_sum] => 96148 [work_sum] => 65647 [total_sum] => 161795 [total_days] => 3 [display_material_sum] => 96 148 [display_work_sum] => 65 647 [display_total_sum] => 161 795 ) 1
161 795
Работа:65 647
Материалы:96 148
Дни:3
stdClass Object ( [id] => 126 [attribute_id] => 13 [name] => ППУ (Пенополиуретан) [material_modifier] => 1 [work_modifier] => 1 [options] => Array ( [0] => 50 мм [1] => 100 мм [2] => 150 мм [3] => 200 мм [4] => 250 мм [5] => 300 мм [6] => 350 мм [7] => 400 мм [8] => 450 мм [9] => 500 мм ) [days] => [2,2,3,3,3,3,4,4,4,4] [material_price] => [2080,4160,6240,8320,14560,16640,20800,24960,29120,33280] [work_price] => [234,304,304,396,474,522,574,632,694,764] [image] => https://akademik-stroy.ru/wp-content/uploads/materials/ppu-krov.jpg [area_modifier] => 160.31 [parent_name] => Утепление кровли (Мансарда) [parent_id] => 13 [material_sum] => 420140 [work_sum] => 39388 [total_sum] => 459528 [total_days] => 2 [display_material_sum] => 420 140 [display_work_sum] => 39 388 [display_total_sum] => 459 528 ) 1
459 528
Работа:39 388
Материалы:420 140
Дни:2
stdClass Object ( [id] => 127 [attribute_id] => 13 [name] => PIR-плиты (пенополиизоцианурат) [material_modifier] => 1 [work_modifier] => 1 [options] => Array ( [0] => 50 мм [1] => 100 мм [2] => 150 мм [3] => 200 мм [4] => 250 мм [5] => 300 мм [6] => 350 мм [7] => 400 мм [8] => 450 мм [9] => 500 мм ) [days] => [3,3,4,4,4,5,5,5,5,6] [material_price] => [2646,5290,7936,10580,18516,21162,26452,31742,37032,42324] [work_price] => [390,508,508,660,790,870,958,1052,1158,1274] [image] => https://akademik-stroy.ru/wp-content/uploads/materials/pir-krov.jpg [area_modifier] => 160.31 [parent_name] => Утепление кровли (Мансарда) [parent_id] => 13 [material_sum] => 534467 [work_sum] => 65647 [total_sum] => 600114 [total_days] => 3 [display_material_sum] => 534 467 [display_work_sum] => 65 647 [display_total_sum] => 600 114 ) 1
600 114
Работа:65 647
Материалы:534 467
Дни:3
Мансардные окна
stdClass Object ( [id] => 27 [attribute_id] => 14 [name] => Нет [material_modifier] => 1 [work_modifier] => 1 [options] => Array ( ) [days] => [0] [material_price] => [0] [work_price] => [0] [image] => https://akademik-stroy.ru/wp-content/uploads/materials/mansardnye-okna-2.jpg [area_modifier] => 1 [parent_name] => Мансардные окна [parent_id] => 14 [material_sum] => 0 [work_sum] => 0 [total_sum] => 0 [total_days] => 0 [display_material_sum] => 0 [display_work_sum] => 0 [display_total_sum] => 0 ) 1
0
Работа:0
Материалы:0
Дни:0
stdClass Object ( [id] => 28 [attribute_id] => 14 [name] => Есть [material_modifier] => 1 [work_modifier] => 1 [options] => Array ( [0] => 55x78 [1] => 55x98 ) [days] => [6,7] [material_price] => [47480,68700] [work_price] => [17900,19500] [image] => https://akademik-stroy.ru/wp-content/uploads/materials/mansardnye-okna-2.jpg [area_modifier] => 1 [parent_name] => Мансардные окна [parent_id] => 14 [material_sum] => 59825 [work_sum] => 18795 [total_sum] => 78620 [total_days] => 6 [display_material_sum] => 59 825 [display_work_sum] => 18 795 [display_total_sum] => 78 620 ) 1
78 620
Работа:18 795
Материалы:59 825
Дни:6
Подшивка кровли
stdClass Object ( [id] => 29 [attribute_id] => 15 [name] => Нет [material_modifier] => 1 [work_modifier] => 1 [options] => Array ( ) [days] => [0] [material_price] => [0] [work_price] => [0] [image] => https://akademik-stroy.ru/wp-content/uploads/materials/sofit.jpg [area_modifier] => 160.31 [parent_name] => Подшивка кровли [parent_id] => 15 [material_sum] => 0 [work_sum] => 0 [total_sum] => 0 [total_days] => 0 [display_material_sum] => 0 [display_work_sum] => 0 [display_total_sum] => 0 ) 1
0
Работа:0
Материалы:0
Дни:0
stdClass Object ( [id] => 30 [attribute_id] => 15 [name] => Есть [material_modifier] => 1 [work_modifier] => 1 [options] => Array ( [0] => Софиты (ПВХ) [1] => Cedral [2] => ДПК [3] => Планкен ) [days] => [7,10,9,8] [material_price] => [1803,3213,3025,3150] [work_price] => [1529,2188,2075,1923] [image] => https://akademik-stroy.ru/wp-content/uploads/materials/sofit.jpg [area_modifier] => 160.31 [parent_name] => Подшивка кровли [parent_id] => 15 [material_sum] => 364189 [work_sum] => 257370 [total_sum] => 621559 [total_days] => 7 [display_material_sum] => 364 189 [display_work_sum] => 257 370 [display_total_sum] => 621 559 ) 1
621 559
Работа:257 370
Материалы:364 189
Дни:7
Водосточная система
stdClass Object ( [id] => 31 [attribute_id] => 16 [name] => Нет [material_modifier] => 1 [work_modifier] => 1 [options] => Array ( ) [days] => [0] [material_price] => [0] [work_price] => [0] [image] => https://akademik-stroy.ru/wp-content/uploads/materials/docke-standard-pvh.jpg [area_modifier] => 160.31 [parent_name] => Водосточная система [parent_id] => 16 [material_sum] => 0 [work_sum] => 0 [total_sum] => 0 [total_days] => 0 [display_material_sum] => 0 [display_work_sum] => 0 [display_total_sum] => 0 ) 1
0
Работа:0
Материалы:0
Дни:0
stdClass Object ( [id] => 32 [attribute_id] => 16 [name] => Есть [material_modifier] => 1 [work_modifier] => 1 [options] => Array ( [0] => Döcke Standard (ПВХ) [1] => Металлические Grand Line ) [days] => [7,7] [material_price] => [1842,2703] [work_price] => [1491,1529] [image] => https://akademik-stroy.ru/wp-content/uploads/materials/docke-standard-pvh.jpg [area_modifier] => 160.31 [parent_name] => Водосточная система [parent_id] => 16 [material_sum] => 372067 [work_sum] => 250973 [total_sum] => 623040 [total_days] => 7 [display_material_sum] => 372 067 [display_work_sum] => 250 973 [display_total_sum] => 623 040 ) 1
623 040
Работа:250 973
Материалы:372 067
Дни:7
Дополнительное утепление наружных стен
stdClass Object ( [id] => 33 [attribute_id] => 17 [name] => Нет [material_modifier] => 1 [work_modifier] => 1 [options] => Array ( ) [days] => [0] [material_price] => [0] [work_price] => [0] [image] => https://akademik-stroy.ru/wp-content/uploads/materials/mineralovata.jpg [area_modifier] => 226.82 [parent_name] => Дополнительное утепление наружных стен [parent_id] => 17 [material_sum] => 0 [work_sum] => 0 [total_sum] => 0 [total_days] => 0 [display_material_sum] => 0 [display_work_sum] => 0 [display_total_sum] => 0 ) 1
0
Работа:0
Материалы:0
Дни:0
stdClass Object ( [id] => 34 [attribute_id] => 17 [name] => Минераловатный [material_modifier] => 1 [work_modifier] => 1 [options] => Array ( [0] => 50 мм [1] => 100 мм [2] => 150 мм [3] => 200 мм [4] => 250 мм [5] => 300 мм ) [days] => [7,8,10,12,14,15] [material_price] => [3437,3613,3803,3915,4601,4830] [work_price] => [2325,2423,2523,2749,2859,3025] [image] => https://akademik-stroy.ru/wp-content/uploads/materials/mineralovata.jpg [area_modifier] => 226.82 [parent_name] => Дополнительное утепление наружных стен [parent_id] => 17 [material_sum] => 982271 [work_sum] => 553724 [total_sum] => 1535995 [total_days] => 7 [display_material_sum] => 982 271 [display_work_sum] => 553 724 [display_total_sum] => 1 535 995 ) 1
1 535 995
Работа:553 724
Материалы:982 271
Дни:7
stdClass Object ( [id] => 128 [attribute_id] => 17 [name] => Эковата (целлюлозная вата) [material_modifier] => 1 [work_modifier] => 1 [options] => Array ( [0] => 50 мм [1] => 100 мм [2] => 150 мм [3] => 200 мм [4] => 250 мм [5] => 300 мм ) [days] => [3,4,5,6,7,8] [material_price] => [810,1319,1629,1838,2267,2676] [work_price] => [1225,1323,1423,1549,1659,1725] [image] => https://akademik-stroy.ru/wp-content/uploads/materials/ehkovata.jpg [area_modifier] => 226.82 [parent_name] => Дополнительное утепление наружных стен [parent_id] => 17 [material_sum] => 231492 [work_sum] => 291747 [total_sum] => 523239 [total_days] => 3 [display_material_sum] => 231 492 [display_work_sum] => 291 747 [display_total_sum] => 523 239 ) 1
523 239
Работа:291 747
Материалы:231 492
Дни:3
stdClass Object ( [id] => 129 [attribute_id] => 17 [name] => Экструдированный пенополистирол [material_modifier] => 1 [work_modifier] => 1 [options] => Array ( [0] => 50 мм [1] => 100 мм [2] => 150 мм [3] => 200 мм [4] => 250 мм [5] => 300 мм ) [days] => [5,6,7,8,9,10] [material_price] => [4560,4300,5119,6292,7010,8583] [work_price] => [1795,1954,2254,2330,2595,2735] [image] => https://akademik-stroy.ru/wp-content/uploads/materials/epps.jpg [area_modifier] => 226.82 [parent_name] => Дополнительное утепление наружных стен [parent_id] => 17 [material_sum] => 1303217 [work_sum] => 427499 [total_sum] => 1730716 [total_days] => 5 [display_material_sum] => 1 303 217 [display_work_sum] => 427 499 [display_total_sum] => 1 730 716 ) 1
1 730 716
Работа:427 499
Материалы:1 303 217
Дни:5
stdClass Object ( [id] => 130 [attribute_id] => 17 [name] => ПСБ (ППС-пенополистирол) [material_modifier] => 1 [work_modifier] => 1 [options] => Array ( [0] => 50 мм [1] => 100 мм [2] => 150 мм [3] => 200 мм [4] => 250 мм [5] => 300 мм ) [days] => [5,6,7,8,9,10] [material_price] => [4822,5200,5819,6292,7010,7583] [work_price] => [1795,1954,2254,2330,2595,2735] [image] => https://akademik-stroy.ru/wp-content/uploads/materials/psb.jpg [area_modifier] => 226.82 [parent_name] => Дополнительное утепление наружных стен [parent_id] => 17 [material_sum] => 1378095 [work_sum] => 427499 [total_sum] => 1805594 [total_days] => 5 [display_material_sum] => 1 378 095 [display_work_sum] => 427 499 [display_total_sum] => 1 805 594 ) 1
1 805 594
Работа:427 499
Материалы:1 378 095
Дни:5
stdClass Object ( [id] => 131 [attribute_id] => 17 [name] => ППУ (Пенополиуретан) [material_modifier] => 1 [work_modifier] => 1 [options] => Array ( [0] => 50 мм [1] => 100 мм [2] => 150 мм [3] => 200 мм [4] => 250 мм [5] => 300 мм ) [days] => [3,4,5,6,7,8] [material_price] => [2860,3400,4219,4592,5010,5583] [work_price] => [729,900,980,1120,1280,1530] [image] => https://akademik-stroy.ru/wp-content/uploads/materials/ppu.jpg [area_modifier] => 226.82 [parent_name] => Дополнительное утепление наружных стен [parent_id] => 17 [material_sum] => 817369 [work_sum] => 173619 [total_sum] => 990988 [total_days] => 3 [display_material_sum] => 817 369 [display_work_sum] => 173 619 [display_total_sum] => 990 988 ) 1
990 988
Работа:173 619
Материалы:817 369
Дни:3
stdClass Object ( [id] => 132 [attribute_id] => 17 [name] => PIR-плиты (пенополиизоцианурат) [material_modifier] => 1 [work_modifier] => 1 [options] => Array ( [0] => 50 мм [1] => 100 мм [2] => 150 мм [3] => 200 мм [4] => 250 мм [5] => 300 мм ) [days] => [5,6,7,8,9,10] [material_price] => [8323,15645,20968,25900,29258,30581] [work_price] => [800,900,970,1150,1280,1330] [image] => https://akademik-stroy.ru/wp-content/uploads/materials/pir.jpg [area_modifier] => 226.82 [parent_name] => Дополнительное утепление наружных стен [parent_id] => 17 [material_sum] => 2378657 [work_sum] => 190529 [total_sum] => 2569186 [total_days] => 5 [display_material_sum] => 2 378 657 [display_work_sum] => 190 529 [display_total_sum] => 2 569 186 ) 1
2 569 186
Работа:190 529
Материалы:2 378 657
Дни:5
Наружная отделка фасада
stdClass Object ( [id] => 37 [attribute_id] => 19 [name] => Нет [material_modifier] => 1 [work_modifier] => 1 [options] => Array ( ) [days] => [0] [material_price] => [0] [work_price] => [0] [image] => https://akademik-stroy.ru/wp-content/uploads/materials/imitaciya-brusa.jpg [area_modifier] => 226.82 [parent_name] => Наружная отделка фасада [parent_id] => 19 [material_sum] => 0 [work_sum] => 0 [total_sum] => 0 [total_days] => 0 [display_material_sum] => 0 [display_work_sum] => 0 [display_total_sum] => 0 ) 1
0
Работа:0
Материалы:0
Дни:0
stdClass Object ( [id] => 38 [attribute_id] => 19 [name] => Имитация бруса [material_modifier] => 1 [work_modifier] => 1 [options] => Array ( [0] => Сосна [1] => Ель [2] => Лиственница ) [days] => [20,20,20] [material_price] => [2994,2762,4954] [work_price] => [1397,1231,1577] [image] => https://akademik-stroy.ru/wp-content/uploads/materials/imitaciya-brusa.jpg [area_modifier] => 226.82 [parent_name] => Наружная отделка фасада [parent_id] => 19 [material_sum] => 855665 [work_sum] => 332711 [total_sum] => 1188376 [total_days] => 20 [display_material_sum] => 855 665 [display_work_sum] => 332 711 [display_total_sum] => 1 188 376 ) 1
1 188 376
Работа:332 711
Материалы:855 665
Дни:20
stdClass Object ( [id] => 136 [attribute_id] => 19 [name] => Планкен [material_modifier] => 1 [work_modifier] => 1 [options] => Array ( [0] => Сосна [1] => Ель [2] => Лиственница ) [days] => [20,20,20] [material_price] => [3194,2862,5154] [work_price] => [1537,1354,1735] [image] => https://akademik-stroy.ru/wp-content/uploads/materials/planken.jpg [area_modifier] => 226.82 [parent_name] => Наружная отделка фасада [parent_id] => 19 [material_sum] => 912823 [work_sum] => 366053 [total_sum] => 1278876 [total_days] => 20 [display_material_sum] => 912 823 [display_work_sum] => 366 053 [display_total_sum] => 1 278 876 ) 1
1 278 876
Работа:366 053
Материалы:912 823
Дни:20
stdClass Object ( [id] => 137 [attribute_id] => 19 [name] => Штукатурка [material_modifier] => 1 [work_modifier] => 1 [options] => Array ( [0] => Цементно-песчаная (минеральная) [1] => Мокрый фасад ) [days] => [35,35] [material_price] => [2231,3938] [work_price] => [1202,2422] [image] => https://akademik-stroy.ru/wp-content/uploads/materials/shtukaturka.jpg [area_modifier] => 226.82 [parent_name] => Наружная отделка фасада [parent_id] => 19 [material_sum] => 637605 [work_sum] => 286270 [total_sum] => 923875 [total_days] => 35 [display_material_sum] => 637 605 [display_work_sum] => 286 270 [display_total_sum] => 923 875 ) 1
923 875
Работа:286 270
Материалы:637 605
Дни:35
stdClass Object ( [id] => 138 [attribute_id] => 19 [name] => Облицовочный кирпич [material_modifier] => 1 [work_modifier] => 1 [options] => Array ( [0] => Керамический [1] => Клинкерный [2] => Ручной формовки [3] => Гиперпрессованный [4] => Силикатный кирпич ) [days] => [45,45,45,45,45] [material_price] => [8174,9148,1040,1257,5876] [work_price] => [3240,3758,4536,4017,3369] [image] => https://akademik-stroy.ru/wp-content/uploads/materials/oblicovochnyj-kirpich.jpg [area_modifier] => 226.82 [parent_name] => Наружная отделка фасада [parent_id] => 19 [material_sum] => 2336074 [work_sum] => 771642 [total_sum] => 3107716 [total_days] => 45 [display_material_sum] => 2 336 074 [display_work_sum] => 771 642 [display_total_sum] => 3 107 716 ) 1
3 107 716
Работа:771 642
Материалы:2 336 074
Дни:45
stdClass Object ( [id] => 139 [attribute_id] => 19 [name] => Фасадная плитка [material_modifier] => 1 [work_modifier] => 1 [options] => Array ( [0] => Клинкерная [1] => Керамическая [2] => Плитка ручной формовки ) [days] => [40,40,40] [material_price] => [2974,1487,3470] [work_price] => [3007,2592,3629] [image] => https://akademik-stroy.ru/wp-content/uploads/materials/fasadnaya-plitka.jpg [area_modifier] => 226.82 [parent_name] => Наружная отделка фасада [parent_id] => 19 [material_sum] => 849949 [work_sum] => 716150 [total_sum] => 1566099 [total_days] => 40 [display_material_sum] => 849 949 [display_work_sum] => 716 150 [display_total_sum] => 1 566 099 ) 1
1 566 099
Работа:716 150
Материалы:849 949
Дни:40
stdClass Object ( [id] => 140 [attribute_id] => 19 [name] => Сайдинг [material_modifier] => 1 [work_modifier] => 1 [options] => Array ( [0] => Виниловый [1] => Металлический [2] => Фиброцементный ) [days] => [20,20,20] [material_price] => [1263,1944,4147] [work_price] => [1263,1944,2074] [image] => https://akademik-stroy.ru/wp-content/uploads/materials/sajding.jpg [area_modifier] => 226.82 [parent_name] => Наружная отделка фасада [parent_id] => 19 [material_sum] => 360957 [work_sum] => 300797 [total_sum] => 661754 [total_days] => 20 [display_material_sum] => 360 957 [display_work_sum] => 300 797 [display_total_sum] => 661 754 ) 1
661 754
Работа:300 797
Материалы:360 957
Дни:20
stdClass Object ( [id] => 141 [attribute_id] => 19 [name] => Камень [material_modifier] => 1 [work_modifier] => 1 [options] => Array ( [0] => Травертин [1] => Дагестанский [2] => Искусственный [3] => Натуральный [4] => Керамогранит ) [days] => [45,45,45,45,45] [material_price] => [4536,3888,2592,3240,2462] [work_price] => [3240,3240,2462,3110,1944] [image] => https://akademik-stroy.ru/wp-content/uploads/materials/kamen-1.jpg [area_modifier] => 226.82 [parent_name] => Наружная отделка фасада [parent_id] => 19 [material_sum] => 1296358 [work_sum] => 771642 [total_sum] => 2068000 [total_days] => 45 [display_material_sum] => 1 296 358 [display_work_sum] => 771 642 [display_total_sum] => 2 068 000 ) 1
2 068 000
Работа:771 642
Материалы:1 296 358
Дни:45
stdClass Object ( [id] => 142 [attribute_id] => 19 [name] => Термопанели [material_modifier] => 1 [work_modifier] => 1 [options] => Array ( ) [days] => [20] [material_price] => [6221] [work_price] => [2333] [image] => https://akademik-stroy.ru/wp-content/uploads/materials/termo.png [area_modifier] => 226.82 [parent_name] => Наружная отделка фасада [parent_id] => 19 [material_sum] => 1777919 [work_sum] => 555630 [total_sum] => 2333549 [total_days] => 20 [display_material_sum] => 1 777 919 [display_work_sum] => 555 630 [display_total_sum] => 2 333 549 ) 1
2 333 549
Работа:555 630
Материалы:1 777 919
Дни:20
stdClass Object ( [id] => 143 [attribute_id] => 19 [name] => Плитка HAUBERK [material_modifier] => 1 [work_modifier] => 1 [options] => Array ( ) [days] => [20] [material_price] => [2786] [work_price] => [1944] [image] => https://akademik-stroy.ru/wp-content/uploads/materials/hauberk.jpg [area_modifier] => 226.82 [parent_name] => Наружная отделка фасада [parent_id] => 19 [material_sum] => 796220 [work_sum] => 462985 [total_sum] => 1259205 [total_days] => 20 [display_material_sum] => 796 220 [display_work_sum] => 462 985 [display_total_sum] => 1 259 205 ) 1
1 259 205
Работа:462 985
Материалы:796 220
Дни:20
stdClass Object ( [id] => 144 [attribute_id] => 19 [name] => Фальцевый фасад [material_modifier] => 1 [work_modifier] => 1 [options] => Array ( ) [days] => [20] [material_price] => [3240] [work_price] => [2592] [image] => https://akademik-stroy.ru/wp-content/uploads/materials/falcevyj-fasad.jpg [area_modifier] => 226.82 [parent_name] => Наружная отделка фасада [parent_id] => 19 [material_sum] => 925970 [work_sum] => 617313 [total_sum] => 1543283 [total_days] => 20 [display_material_sum] => 925 970 [display_work_sum] => 617 313 [display_total_sum] => 1 543 283 ) 1
1 543 283
Работа:617 313
Материалы:925 970
Дни:20
stdClass Object ( [id] => 145 [attribute_id] => 19 [name] => Комбинированный [material_modifier] => 1 [work_modifier] => 1 [options] => Array ( ) [days] => [20] [material_price] => [4629] [work_price] => [3499] [image] => https://akademik-stroy.ru/wp-content/uploads/materials/Kombinirovannyj.jpg [area_modifier] => 226.82 [parent_name] => Наружная отделка фасада [parent_id] => 19 [material_sum] => 1322937 [work_sum] => 833325 [total_sum] => 2156262 [total_days] => 20 [display_material_sum] => 1 322 937 [display_work_sum] => 833 325 [display_total_sum] => 2 156 262 ) 1
2 156 262
Работа:833 325
Материалы:1 322 937
Дни:20
stdClass Object ( [id] => 257 [attribute_id] => 19 [name] => Японские фиброцементные [material_modifier] => 1 [work_modifier] => 1 [options] => Array ( ) [days] => [20] [material_price] => [7043] [work_price] => [2993] [image] => https://akademik-stroy.ru/wp-content/uploads/materials/paneli.jpg [area_modifier] => 226.82 [parent_name] => Наружная отделка фасада [parent_id] => 19 [material_sum] => 2012842 [work_sum] => 712816 [total_sum] => 2725658 [total_days] => 20 [display_material_sum] => 2 012 842 [display_work_sum] => 712 816 [display_total_sum] => 2 725 658 ) 1
2 725 658
Работа:712 816
Материалы:2 012 842
Дни:20
stdClass Object ( [id] => 258 [attribute_id] => 19 [name] => Панели Каньон [material_modifier] => 1 [work_modifier] => 1 [options] => Array ( ) [days] => [20] [material_price] => [4543] [work_price] => [2592] [image] => https://akademik-stroy.ru/wp-content/uploads/materials/kanon.png [area_modifier] => 226.82 [parent_name] => Наружная отделка фасада [parent_id] => 19 [material_sum] => 1298359 [work_sum] => 617313 [total_sum] => 1915672 [total_days] => 20 [display_material_sum] => 1 298 359 [display_work_sum] => 617 313 [display_total_sum] => 1 915 672 ) 1
1 915 672
Работа:617 313
Материалы:1 298 359
Дни:20
Террасы, крыльца, навесы
stdClass Object ( [id] => 39 [attribute_id] => 20 [name] => Нет [material_modifier] => 1 [work_modifier] => 1 [options] => Array ( ) [days] => [0] [material_price] => [0] [work_price] => [0] [image] => https://akademik-stroy.ru/wp-content/uploads/materials/terrasy.jpg [area_modifier] => 30 [parent_name] => Террасы, крыльца, навесы [parent_id] => 20 [material_sum] => 0 [work_sum] => 0 [total_sum] => 0 [total_days] => 0 [display_material_sum] => 0 [display_work_sum] => 0 [display_total_sum] => 0 ) 1
0
Работа:0
Материалы:0
Дни:0
stdClass Object ( [id] => 40 [attribute_id] => 20 [name] => Есть [material_modifier] => 1 [work_modifier] => 1 [options] => Array ( ) [days] => [5] [material_price] => [10450] [work_price] => [1950] [image] => https://akademik-stroy.ru/wp-content/uploads/materials/terrasy.jpg [area_modifier] => 30 [parent_name] => Террасы, крыльца, навесы [parent_id] => 20 [material_sum] => 395010 [work_sum] => 61425 [total_sum] => 456435 [total_days] => 5 [display_material_sum] => 395 010 [display_work_sum] => 61 425 [display_total_sum] => 456 435 ) 1
456 435
Работа:61 425
Материалы:395 010
Дни:5
Балконы
stdClass Object ( [id] => 41 [attribute_id] => 21 [name] => Нет [material_modifier] => 1 [work_modifier] => 1 [options] => Array ( ) [days] => [0] [material_price] => [0] [work_price] => [0] [image] => https://akademik-stroy.ru/wp-content/uploads/materials/balkony.jpg [area_modifier] => 30 [parent_name] => Балконы [parent_id] => 21 [material_sum] => 0 [work_sum] => 0 [total_sum] => 0 [total_days] => 0 [display_material_sum] => 0 [display_work_sum] => 0 [display_total_sum] => 0 ) 1
0
Работа:0
Материалы:0
Дни:0
stdClass Object ( [id] => 42 [attribute_id] => 21 [name] => Есть [material_modifier] => 1 [work_modifier] => 1 [options] => Array ( ) [days] => [12] [material_price] => [3600] [work_price] => [1950] [image] => https://akademik-stroy.ru/wp-content/uploads/materials/balkony.jpg [area_modifier] => 30 [parent_name] => Балконы [parent_id] => 21 [material_sum] => 136080 [work_sum] => 61425 [total_sum] => 197505 [total_days] => 12 [display_material_sum] => 136 080 [display_work_sum] => 61 425 [display_total_sum] => 197 505 ) 1
197 505
Работа:61 425
Материалы:136 080
Дни:12
Отмостка
stdClass Object ( [id] => 43 [attribute_id] => 22 [name] => Нет [material_modifier] => 1 [work_modifier] => 1 [options] => Array ( ) [days] => [0] [material_price] => [0] [work_price] => [0] [image] => https://akademik-stroy.ru/wp-content/uploads/materials/uteplennaya.jpg [area_modifier] => 160.31 [parent_name] => Отмостка [parent_id] => 22 [material_sum] => 0 [work_sum] => 0 [total_sum] => 0 [total_days] => 0 [display_material_sum] => 0 [display_work_sum] => 0 [display_total_sum] => 0 ) 1
0
Работа:0
Материалы:0
Дни:0
stdClass Object ( [id] => 44 [attribute_id] => 22 [name] => Утепленная отмостка [material_modifier] => 1 [work_modifier] => 1 [options] => Array ( ) [days] => [15] [material_price] => [2550] [work_price] => [1750] [image] => https://akademik-stroy.ru/wp-content/uploads/materials/uteplennaya.jpg [area_modifier] => 160.31 [parent_name] => Отмостка [parent_id] => 22 [material_sum] => 515076 [work_sum] => 294570 [total_sum] => 809646 [total_days] => 15 [display_material_sum] => 515 076 [display_work_sum] => 294 570 [display_total_sum] => 809 646 ) 1
809 646
Работа:294 570
Материалы:515 076
Дни:15
stdClass Object ( [id] => 146 [attribute_id] => 22 [name] => Не утепленная отмостка [material_modifier] => 1 [work_modifier] => 1 [options] => Array ( ) [days] => [10] [material_price] => [1650] [work_price] => [1450] [image] => https://akademik-stroy.ru/wp-content/uploads/materials/ne-uteplennaya.jpg [area_modifier] => 160.31 [parent_name] => Отмостка [parent_id] => 22 [material_sum] => 333284 [work_sum] => 244072 [total_sum] => 577356 [total_days] => 10 [display_material_sum] => 333 284 [display_work_sum] => 244 072 [display_total_sum] => 577 356 ) 1
577 356
Работа:244 072
Материалы:333 284
Дни:10
Дренаж вокруг дома
stdClass Object ( [id] => 45 [attribute_id] => 23 [name] => Нет [material_modifier] => 1 [work_modifier] => 1 [options] => Array ( ) [days] => [0] [material_price] => [0] [work_price] => [0] [image] => https://akademik-stroy.ru/wp-content/uploads/materials/drenazh-2.jpg [area_modifier] => 160.31 [parent_name] => Дренаж вокруг дома [parent_id] => 23 [material_sum] => 0 [work_sum] => 0 [total_sum] => 0 [total_days] => 0 [display_material_sum] => 0 [display_work_sum] => 0 [display_total_sum] => 0 ) 1
0
Работа:0
Материалы:0
Дни:0
stdClass Object ( [id] => 46 [attribute_id] => 23 [name] => Есть [material_modifier] => 1 [work_modifier] => 1 [options] => Array ( ) [days] => [5] [material_price] => [2366] [work_price] => [1911] [image] => https://akademik-stroy.ru/wp-content/uploads/materials/drenazh-2.jpg [area_modifier] => 160.31 [parent_name] => Дренаж вокруг дома [parent_id] => 23 [material_sum] => 477910 [work_sum] => 321670 [total_sum] => 799580 [total_days] => 5 [display_material_sum] => 477 910 [display_work_sum] => 321 670 [display_total_sum] => 799 580 ) 1
799 580
Работа:321 670
Материалы:477 910
Дни:5
Автономная канализация (септики)
stdClass Object ( [id] => 47 [attribute_id] => 24 [name] => Нет [material_modifier] => 1 [work_modifier] => 1 [options] => Array ( ) [days] => [0] [material_price] => [0] [work_price] => [0] [image] => https://akademik-stroy.ru/wp-content/uploads/materials/septik.jpg [area_modifier] => 1 [parent_name] => Автономная канализация (септики) [parent_id] => 24 [material_sum] => 0 [work_sum] => 0 [total_sum] => 0 [total_days] => 0 [display_material_sum] => 0 [display_work_sum] => 0 [display_total_sum] => 0 ) 1
0
Работа:0
Материалы:0
Дни:0
stdClass Object ( [id] => 48 [attribute_id] => 24 [name] => Есть [material_modifier] => 1 [work_modifier] => 1 [options] => Array ( [0] => Для дачи на 4 человека [1] => Для дома на 5 человек [2] => Для дома на 6 человек [3] => Для дома на 7 человек [4] => Для дома на 10 человек ) [days] => [7,7,7,8,8] [material_price] => [196340,220500,240940,264200,293340] [work_price] => [50000,55000,60500,66550,73206] [image] => https://akademik-stroy.ru/wp-content/uploads/materials/septik.jpg [area_modifier] => 1 [parent_name] => Автономная канализация (септики) [parent_id] => 24 [material_sum] => 247388 [work_sum] => 52500 [total_sum] => 299888 [total_days] => 7 [display_material_sum] => 247 388 [display_work_sum] => 52 500 [display_total_sum] => 299 888 ) 1
299 888
Работа:52 500
Материалы:247 388
Дни:7
Внутренние (не несущие) перегородки
stdClass Object ( [id] => 49 [attribute_id] => 25 [name] => Нет [material_modifier] => 1 [work_modifier] => 1 [options] => Array ( ) [days] => [0] [material_price] => [0] [work_price] => [0] [image] => https://akademik-stroy.ru/wp-content/uploads/materials/gkl.jpg [area_modifier] => 226.82 [parent_name] => Внутренние (не несущие) перегородки [parent_id] => 25 [material_sum] => 0 [work_sum] => 0 [total_sum] => 0 [total_days] => 0 [display_material_sum] => 0 [display_work_sum] => 0 [display_total_sum] => 0 ) 1
0
Работа:0
Материалы:0
Дни:0
stdClass Object ( [id] => 147 [attribute_id] => 25 [name] => Каркасно-обшивные [material_modifier] => 1 [work_modifier] => 1 [options] => Array ( [0] => 75 мм (без шумоизоляции) [1] => 75 мм (с шумоизоляцией) ) [days] => [11,11] [material_price] => [580,970] [work_price] => [380,570] [image] => https://akademik-stroy.ru/wp-content/uploads/materials/gkl.jpg [area_modifier] => 226.82 [parent_name] => Внутренние (не несущие) перегородки [parent_id] => 25 [material_sum] => 165760 [work_sum] => 90501 [total_sum] => 256261 [total_days] => 11 [display_material_sum] => 165 760 [display_work_sum] => 90 501 [display_total_sum] => 256 261 ) 1
256 261
Работа:90 501
Материалы:165 760
Дни:11
stdClass Object ( [id] => 148 [attribute_id] => 25 [name] => Пазогребневые [material_modifier] => 1 [work_modifier] => 1 [options] => Array ( [0] => 80 мм [1] => 100 мм ) [days] => [5,5] [material_price] => [1022,1313] [work_price] => [600,700] [image] => https://akademik-stroy.ru/wp-content/uploads/materials/pazogrebnevye-bloki.jpg [area_modifier] => 226.82 [parent_name] => Внутренние (не несущие) перегородки [parent_id] => 25 [material_sum] => 292081 [work_sum] => 142897 [total_sum] => 434978 [total_days] => 5 [display_material_sum] => 292 081 [display_work_sum] => 142 897 [display_total_sum] => 434 978 ) 1
434 978
Работа:142 897
Материалы:292 081
Дни:5
stdClass Object ( [id] => 149 [attribute_id] => 25 [name] => Газобетонные [material_modifier] => 1 [work_modifier] => 1 [options] => Array ( [0] => 100 мм [1] => 200 мм ) [days] => [11,11] [material_price] => [1160,1920] [work_price] => [700,900] [image] => https://akademik-stroy.ru/wp-content/uploads/materials/gazobeton-2.jpg [area_modifier] => 226.82 [parent_name] => Внутренние (не несущие) перегородки [parent_id] => 25 [material_sum] => 331520 [work_sum] => 166713 [total_sum] => 498233 [total_days] => 11 [display_material_sum] => 331 520 [display_work_sum] => 166 713 [display_total_sum] => 498 233 ) 1
498 233
Работа:166 713
Материалы:331 520
Дни:11
stdClass Object ( [id] => 150 [attribute_id] => 25 [name] => Кирпичные [material_modifier] => 1 [work_modifier] => 1 [options] => Array ( [0] => 120 мм [1] => 250 мм [2] => 360 мм ) [days] => [7,7,7] [material_price] => [1785,3570,5355] [work_price] => [900,1600,1800] [image] => https://akademik-stroy.ru/wp-content/uploads/materials/kirpich-1.jpg [area_modifier] => 226.82 [parent_name] => Внутренние (не несущие) перегородки [parent_id] => 25 [material_sum] => 510141 [work_sum] => 214345 [total_sum] => 724486 [total_days] => 7 [display_material_sum] => 510 141 [display_work_sum] => 214 345 [display_total_sum] => 724 486 ) 1
724 486
Работа:214 345
Материалы:510 141
Дни:7
Электрика
stdClass Object ( [id] => 55 [attribute_id] => 28 [name] => Нет [material_modifier] => 1 [work_modifier] => 1 [options] => Array ( ) [days] => [0] [material_price] => [0] [work_price] => [0] [image] => https://akademik-stroy.ru/wp-content/uploads/materials/ehlektrika.jpg [area_modifier] => 184.06 [parent_name] => Электрика [parent_id] => 28 [material_sum] => 0 [work_sum] => 0 [total_sum] => 0 [total_days] => 0 [display_material_sum] => 0 [display_work_sum] => 0 [display_total_sum] => 0 ) 1
0
Работа:0
Материалы:0
Дни:0
stdClass Object ( [id] => 56 [attribute_id] => 28 [name] => Есть [material_modifier] => 1 [work_modifier] => 1 [options] => Array ( ) [days] => [10] [material_price] => [650] [work_price] => [950] [image] => https://akademik-stroy.ru/wp-content/uploads/materials/ehlektrika.jpg [area_modifier] => 184.06 [parent_name] => Электрика [parent_id] => 28 [material_sum] => 150745 [work_sum] => 183600 [total_sum] => 334345 [total_days] => 10 [display_material_sum] => 150 745 [display_work_sum] => 183 600 [display_total_sum] => 334 345 ) 1
334 345
Работа:183 600
Материалы:150 745
Дни:10
Сантехника, канализация в доме
stdClass Object ( [id] => 57 [attribute_id] => 29 [name] => Нет [material_modifier] => 1 [work_modifier] => 1 [options] => Array ( ) [days] => [0] [material_price] => [0] [work_price] => [0] [image] => https://akademik-stroy.ru/wp-content/uploads/materials/santekhnika-kanalizaciya-1.jpg [area_modifier] => 184.06 [parent_name] => Сантехника, канализация в доме [parent_id] => 29 [material_sum] => 0 [work_sum] => 0 [total_sum] => 0 [total_days] => 0 [display_material_sum] => 0 [display_work_sum] => 0 [display_total_sum] => 0 ) 1
0
Работа:0
Материалы:0
Дни:0
stdClass Object ( [id] => 58 [attribute_id] => 29 [name] => Есть [material_modifier] => 1 [work_modifier] => 1 [options] => Array ( ) [days] => [10] [material_price] => [600] [work_price] => [730] [image] => https://akademik-stroy.ru/wp-content/uploads/materials/santekhnika-kanalizaciya-1.jpg [area_modifier] => 184.06 [parent_name] => Сантехника, канализация в доме [parent_id] => 29 [material_sum] => 139149 [work_sum] => 141082 [total_sum] => 280231 [total_days] => 10 [display_material_sum] => 139 149 [display_work_sum] => 141 082 [display_total_sum] => 280 231 ) 1
280 231
Работа:141 082
Материалы:139 149
Дни:10
Отопление
stdClass Object ( [id] => 59 [attribute_id] => 30 [name] => Нет [material_modifier] => 1 [work_modifier] => 1 [options] => Array ( ) [days] => [0] [material_price] => [0] [work_price] => [0] [image] => https://akademik-stroy.ru/wp-content/uploads/materials/otoplenie-1.jpg [area_modifier] => 184.06 [parent_name] => Отопление [parent_id] => 30 [material_sum] => 0 [work_sum] => 0 [total_sum] => 0 [total_days] => 0 [display_material_sum] => 0 [display_work_sum] => 0 [display_total_sum] => 0 ) 1
0
Работа:0
Материалы:0
Дни:0
stdClass Object ( [id] => 60 [attribute_id] => 30 [name] => Есть [material_modifier] => 1 [work_modifier] => 1 [options] => Array ( ) [days] => [5] [material_price] => [610] [work_price] => [560] [image] => https://akademik-stroy.ru/wp-content/uploads/materials/otoplenie-1.jpg [area_modifier] => 184.06 [parent_name] => Отопление [parent_id] => 30 [material_sum] => 141469 [work_sum] => 108227 [total_sum] => 249696 [total_days] => 5 [display_material_sum] => 141 469 [display_work_sum] => 108 227 [display_total_sum] => 249 696 ) 1
249 696
Работа:108 227
Материалы:141 469
Дни:5
Теплые полы
stdClass Object ( [id] => 61 [attribute_id] => 31 [name] => Нет [material_modifier] => 1 [work_modifier] => 1 [options] => Array ( ) [days] => [0] [material_price] => [0] [work_price] => [0] [image] => https://akademik-stroy.ru/wp-content/uploads/materials/vodyanye.jpg [area_modifier] => 30 [parent_name] => Теплые полы [parent_id] => 31 [material_sum] => 0 [work_sum] => 0 [total_sum] => 0 [total_days] => 0 [display_material_sum] => 0 [display_work_sum] => 0 [display_total_sum] => 0 ) 1
0
Работа:0
Материалы:0
Дни:0
stdClass Object ( [id] => 151 [attribute_id] => 31 [name] => Водяные [material_modifier] => 1 [work_modifier] => 1 [options] => Array ( ) [days] => [9] [material_price] => [10200] [work_price] => [2500] [image] => https://akademik-stroy.ru/wp-content/uploads/materials/vodyanye.jpg [area_modifier] => 30 [parent_name] => Теплые полы [parent_id] => 31 [material_sum] => 385560 [work_sum] => 78750 [total_sum] => 464310 [total_days] => 9 [display_material_sum] => 385 560 [display_work_sum] => 78 750 [display_total_sum] => 464 310 ) 1
464 310
Работа:78 750
Материалы:385 560
Дни:9
stdClass Object ( [id] => 152 [attribute_id] => 31 [name] => Электро [material_modifier] => 1 [work_modifier] => 1 [options] => Array ( ) [days] => [5] [material_price] => [6300] [work_price] => [1500] [image] => https://akademik-stroy.ru/wp-content/uploads/materials/ehlektricheskij.jpg [area_modifier] => 30 [parent_name] => Теплые полы [parent_id] => 31 [material_sum] => 238140 [work_sum] => 47250 [total_sum] => 285390 [total_days] => 5 [display_material_sum] => 238 140 [display_work_sum] => 47 250 [display_total_sum] => 285 390 ) 1
285 390
Работа:47 250
Материалы:238 140
Дни:5
Черновая отделка стен
stdClass Object ( [id] => 63 [attribute_id] => 32 [name] => Нет [material_modifier] => 1 [work_modifier] => 1 [options] => Array ( ) [days] => [0] [material_price] => [0] [work_price] => [0] [image] => https://akademik-stroy.ru/wp-content/uploads/materials/shtukaturka-shpatlevka-1.jpg [area_modifier] => 184.06 [parent_name] => Черновая отделка стен [parent_id] => 32 [material_sum] => 0 [work_sum] => 0 [total_sum] => 0 [total_days] => 0 [display_material_sum] => 0 [display_work_sum] => 0 [display_total_sum] => 0 ) 1
0
Работа:0
Материалы:0
Дни:0
stdClass Object ( [id] => 153 [attribute_id] => 32 [name] => Штукатурка и шпатлевка [material_modifier] => 1 [work_modifier] => 1 [options] => Array ( ) [days] => [20] [material_price] => [1850] [work_price] => [2600] [image] => https://akademik-stroy.ru/wp-content/uploads/materials/shtukaturka-shpatlevka-1.jpg [area_modifier] => 184.06 [parent_name] => Черновая отделка стен [parent_id] => 32 [material_sum] => 429044 [work_sum] => 502484 [total_sum] => 931528 [total_days] => 20 [display_material_sum] => 429 044 [display_work_sum] => 502 484 [display_total_sum] => 931 528 ) 1
931 528
Работа:502 484
Материалы:429 044
Дни:20
stdClass Object ( [id] => 154 [attribute_id] => 32 [name] => Гипсокортон на стены [material_modifier] => 1 [work_modifier] => 1 [options] => Array ( ) [days] => [15] [material_price] => [950] [work_price] => [2100] [image] => https://akademik-stroy.ru/wp-content/uploads/materials/gkl-1.jpg [area_modifier] => 184.06 [parent_name] => Черновая отделка стен [parent_id] => 32 [material_sum] => 220320 [work_sum] => 405852 [total_sum] => 626172 [total_days] => 15 [display_material_sum] => 220 320 [display_work_sum] => 405 852 [display_total_sum] => 626 172 ) 1
626 172
Работа:405 852
Материалы:220 320
Дни:15
stdClass Object ( [id] => 155 [attribute_id] => 32 [name] => Вагонка [material_modifier] => 1 [work_modifier] => 1 [options] => Array ( ) [days] => [15] [material_price] => [1250] [work_price] => [950] [image] => https://akademik-stroy.ru/wp-content/uploads/materials/vagonka.jpg [area_modifier] => 184.06 [parent_name] => Черновая отделка стен [parent_id] => 32 [material_sum] => 289895 [work_sum] => 183600 [total_sum] => 473495 [total_days] => 15 [display_material_sum] => 289 895 [display_work_sum] => 183 600 [display_total_sum] => 473 495 ) 1
473 495
Работа:183 600
Материалы:289 895
Дни:15
Черновая отделка полов
stdClass Object ( [id] => 65 [attribute_id] => 33 [name] => Нет [material_modifier] => 1 [work_modifier] => 1 [options] => Array ( ) [days] => [0] [material_price] => [0] [work_price] => [0] [image] => https://akademik-stroy.ru/wp-content/uploads/materials/styazhka.jpg [area_modifier] => 184.06 [parent_name] => Черновая отделка полов [parent_id] => 33 [material_sum] => 0 [work_sum] => 0 [total_sum] => 0 [total_days] => 0 [display_material_sum] => 0 [display_work_sum] => 0 [display_total_sum] => 0 ) 1
0
Работа:0
Материалы:0
Дни:0
stdClass Object ( [id] => 156 [attribute_id] => 33 [name] => Стяжка + наливные полы [material_modifier] => 1 [work_modifier] => 1 [options] => Array ( ) [days] => [10] [material_price] => [1000] [work_price] => [900] [image] => https://akademik-stroy.ru/wp-content/uploads/materials/styazhka.jpg [area_modifier] => 184.06 [parent_name] => Черновая отделка полов [parent_id] => 33 [material_sum] => 231916 [work_sum] => 173937 [total_sum] => 405853 [total_days] => 10 [display_material_sum] => 231 916 [display_work_sum] => 173 937 [display_total_sum] => 405 853 ) 1
405 853
Работа:173 937
Материалы:231 916
Дни:10
stdClass Object ( [id] => 157 [attribute_id] => 33 [name] => ОСБ на пол [material_modifier] => 1 [work_modifier] => 1 [options] => Array ( ) [days] => [7] [material_price] => [580] [work_price] => [350] [image] => https://akademik-stroy.ru/wp-content/uploads/materials/osb-1.jpg [area_modifier] => 184.06 [parent_name] => Черновая отделка полов [parent_id] => 33 [material_sum] => 134511 [work_sum] => 67642 [total_sum] => 202153 [total_days] => 7 [display_material_sum] => 134 511 [display_work_sum] => 67 642 [display_total_sum] => 202 153 ) 1
202 153
Работа:67 642
Материалы:134 511
Дни:7
Чистовая отделка стен и полов
stdClass Object ( [id] => 67 [attribute_id] => 34 [name] => Нет [material_modifier] => 1 [work_modifier] => 1 [options] => Array ( ) [days] => [0] [material_price] => [0] [work_price] => [0] [image] => https://akademik-stroy.ru/wp-content/uploads/materials/chistovaya-otdelka.jpg [area_modifier] => 184.06 [parent_name] => Чистовая отделка стен и полов [parent_id] => 34 [material_sum] => 0 [work_sum] => 0 [total_sum] => 0 [total_days] => 0 [display_material_sum] => 0 [display_work_sum] => 0 [display_total_sum] => 0 ) 1
0
Работа:0
Материалы:0
Дни:0
stdClass Object ( [id] => 68 [attribute_id] => 34 [name] => Есть [material_modifier] => 1 [work_modifier] => 1 [options] => Array ( ) [days] => [50] [material_price] => [6000] [work_price] => [3500] [image] => https://akademik-stroy.ru/wp-content/uploads/materials/chistovaya-otdelka.jpg [area_modifier] => 184.06 [parent_name] => Чистовая отделка стен и полов [parent_id] => 34 [material_sum] => 1391494 [work_sum] => 676421 [total_sum] => 2067915 [total_days] => 50 [display_material_sum] => 1 391 494 [display_work_sum] => 676 421 [display_total_sum] => 2 067 915 ) 1
2 067 915
Работа:676 421
Материалы:1 391 494
Дни:50
Отделка потолка
stdClass Object ( [id] => 69 [attribute_id] => 35 [name] => Нет [material_modifier] => 1 [work_modifier] => 1 [options] => Array ( ) [days] => [0] [material_price] => [0] [work_price] => [0] [image] => https://akademik-stroy.ru/wp-content/uploads/materials/mnogourovnevyj-gkl.jpg [area_modifier] => 184.06 [parent_name] => Отделка потолка [parent_id] => 35 [material_sum] => 0 [work_sum] => 0 [total_sum] => 0 [total_days] => 0 [display_material_sum] => 0 [display_work_sum] => 0 [display_total_sum] => 0 ) 1
0
Работа:0
Материалы:0
Дни:0
stdClass Object ( [id] => 70 [attribute_id] => 35 [name] => Есть [material_modifier] => 1 [work_modifier] => 1 [options] => Array ( [0] => Многоуровневый потолок из гипсокартона [1] => Многоуровневый потолок из гипсокартона и натяжного потолка [2] => Одноуровневый потолок из гипсокартона [3] => Одноуровневый натяжной потолок ) [days] => [10,10,1,1] [material_price] => [900,700,700,600] [work_price] => [1000,800,500,300] [image] => https://akademik-stroy.ru/wp-content/uploads/materials/mnogourovnevyj-gkl.jpg [area_modifier] => 184.06 [parent_name] => Отделка потолка [parent_id] => 35 [material_sum] => 208724 [work_sum] => 193263 [total_sum] => 401987 [total_days] => 10 [display_material_sum] => 208 724 [display_work_sum] => 193 263 [display_total_sum] => 401 987 ) 1
401 987
Работа:193 263
Материалы:208 724
Дни:10

Преимущества работы с нами

icon

7 этапов оплаты

icon

Независимый строительный надзор

icon

Экологически чистые материалы

icon

16 лет гарантии

icon

Онлайн-кабинет с веб-камерой

icon

Строители с опытом более 15 лет

icon

Собственное производство

Планируете построить большой дом для своей семьи? Давайте поговорим о проекте двухэтажного дома 16x11 - 184.06 м2 в Москве!

Каждый, кто задумывается о собственном частном доме, мечтает не просто о квадратных метрах, а о целой вселенной для жизни: просторной, удобной, уютной и функциональной. Особое внимание заслуживает проект двухэтажного дома размером 16 на 11 метров и полезной площадью 184,06 м2, который предлагает компания "Академик Строй". Расскажу вам, почему этот дом может стать лучшим выбором для вашей семьи, а также поделюсь тонкостями проектирования, ценообразования и возможностей заказа в Москве.

Современный дом для большой семьи — каким он должен быть?

Современная семья все чаще выбирает универсальные планировки, совмещающие уют, стиль и максимальную функциональность. Сегодня недостаточно просто построить здание — важно, чтобы оно было удобным, энергоэффективным, гибким к переменам образа жизни. Проект двухэтажного дома площадью 184,06 м2 полностью соответствует этим трендам: он рассчитан на комфорт как для небольшой, так и для многочисленной семьи. Благодаря своим продуманным габаритам (16 на 11 метров), такой дом гармонично впишется в пространство среднечастного участка, не теряя ни грамма внутреннего простора. Внутри вас ждут светлые зоны, хорошо распланированные спальни и изолированные зоны отдыха и работы. Пожалуй, это лучший выбор для жизни в Подмосковье — в доме, построенном на века.

Технические характеристики дома — взгляд профессионала

Перед тем как заказать проект двухэтажного дома, стоит внимательно присмотреться к основным техническим параметрам. Вот информация, которая будет важна при выборе и согласовании:
Параметр Значение
Полезная площадь 184,06 м²
Жилая площадь 145,09 м²
Площадь застройки 165,22 м²
Объем брутто 683 м³
Размеры дома 16 x 11 м
Этажей 2
Количество спален 4
Количество санузлов 3
Угол наклона крыши 27°
Высота здания 7,24 м
Минимальная ширина участка 23,94 м
Минимальная длина участка 19 м
Площадь участка (рекоменд.) 230 м²
Тип крыши Двускатная, вальмовая, сложной формы
Опции Камин, комната на первом этаже, терраса
Каждое из этих значений имеет значение на практике — будь то обеспечение правильной инсоляции, архитектурная выразительность или комфорт при проживании.

Что привлекает в проекте двухэтажного дома 16x11 площадью 184,06 м2?

Вместительный и светлый

В первую очередь дом поражает своей вместимостью при вполне адекватных габаритах. На 184 “честных” квадратных метрах полезной площади с лёгкостью разместятся все основные зоны: просторная гостиная, кухня-столовая, кабинет, 4 изолированные спальни и 3 санузла! Немаловажно, что жилая площадь составляет более 145 м2, а это значит — большая часть пространства будет действительно использоваться для жизни, а не уйдет в коридоры и подсобные помещения.

Идеальное зонирование для современной семьи

Важная черта проекта — грамотно расчленённые функциональные зоны. На первом этаже легко выделить общественную часть: гостиная, столовая и кухня собраны в единое пространство, что отлично подходит для семейных вечеров и приема гостей. Обязательный элемент — отдельная комната на первом этаже (идеальна для пожилых родственников или обустройства кабинета). Три санузла — больше никаких очередей по утрам, когда собирается большая семья. На втором этаже размещены приватные зоны: три спальни, в том числе родительская с собственным санузлом. Такой подход гарантирует всем жильцам личное пространство и тишину.

Оптимальный размер и эргономика

Дом с размерами 16 x 11 метров очень удобно “садится” практически на любой участок шириной от 24 метров. Это позволяет экономно использовать территорию и при этом не переплачивать за лишние “пустые” сотки земли. Площадь застройки в 165,22 м² оставляет просторную зону для уютного двора, гаража, террасы, сада или игровой площадки.

Как проектируются такие дома? Главное — грамотный план и индивидуальность

Современное архитектурное проектирование дома — это всегда индивидуальный подход. В компании "Академик Строй" понимают: для каждой семьи свои смыслы и приоритеты. Поэтому проект может быть адаптирован под ваши пожелания: будь то организация дополнительных подсобных помещений, изменение положения окон или даже расширение террасы.

Основные этапы проектирования двухэтажного дома

  • Анализ участка, пожеланий и бюджета заказчика
  • Создание эскизного проекта: определение общей стилистики, фасадов, расположение комнат
  • Разработка архитектурных, конструкторских и инженерных решений
  • Согласование деталей (расположение камина, лестницы, террасы, оконных проемов)
  • Выпуск полного пакета проектной документации для строительства и согласования в органах власти
В компании “Академик Строй” вы сможете изменить планировку в зависимости от ваших привычек, состава семьи, особенностей участка. И получать не массовый типовой проект, а полноценный “костюм по мерке”.

Комплектация дома: на что обратить внимание?

Вам предстоит определиться не только с планировкой, но и с набором опций. Этот проект включает камин (и это не только интерьерное украшение, но и реальный дополнительный источник тепла в межсезонье), отдельную комнату на первом этаже, большую террасу для семейных посиделок. Дополнительные опции возможны по запросу — главное обсудить это на этапе проектирования.

Крыша: красота и надежность сложной формы

Дом украшает эффектная крыша сложной формы — сочетание двускатной, вальмовой кровли, с уклоном 27°. Такая конструкция не только выглядит современно, но и отлично выдерживает снеговые и ветровые нагрузки Подмосковья. Она создаёт выразительный силуэт, выдерживает капризы погоды и прекрасно подходит для установки мансардных окон или солнечных панелей. Уклон крыши подобран с учетом традиций российского частного строительства. 27° — золотая середина между классикой и современными энергоэффективными архитектурными решениями. Такая крыша подойдёт как для металлочерепицы, так и для мягкой черепицы, не боится снега, дает минимальную протечку даже во время оттепелей.

Для какого участка предназначен этот проект?

Правильный выбор участка — залог комфортной и безопасной жизни в доме. Для данного проекта минимальные размеры участка должны составлять:
  • Ширина — 23,94 м
  • Длина — 19 м
  • Площадь — от 230 м²
Обратите внимание: при таких размерах у вас останется место как перед домом, для зоны парковки или цветников, так и за домом — для террасы, сада, детской площадки, бани или беседки. Особенно удобно, что размеры дома и зона застройки подобраны так, чтобы между постройкой и границами участка соблюдались все нормативы пожарной и санитарной безопасности.

Кому подойдет дом 16x11 на 184,06 м2?

Идеальный вариант для семьи с детьми и гостей

Если у вас большая семья, гостиная и 4 спальни позволят каждому иметь свою территорию. Родители смогут наслаждаться личным пространством, дети — соседними комнатами и своей игровой на первом или втором этаже. Три санузла упростят жизнь утром и вечером, когда все члены семьи спешат на работу, учебу или прогулку.

Дом для жизни “на перспективу”

Даже если сейчас детей нет или они маленькие, такой дом позволит лишний раз не задумываться о будущем расширении семьи или приглашении родителей пожить вместе. Работать из дома станет ещё удобнее — отдельная комната на первом этаже отлично зонируется под кабинет или мастерскую. А если понадобился гостевой домик — на этом участке всегда найдется место для небольшой пристройки.

Разумная альтернатива городской квартире

Сравните — на цену квартиры в центре Москвы вы можете купить полноценный дом за городом, где каждому найдётся свое любимое место, а на участке будет место для отдыха и творчества.

Что входит в проект от компании "Академик Строй"

При заказе проекта дома 16x11 м у надежного застройщика важно понимать, что вы получаете не только эскиз, а целый комплекс услуг и документации:
  • Архитектурное и конструктивное решение дома с учётом ландшафта и климата
  • Инженерные системы — электричество, отопление, вентиляция, водоснабжение, канализация
  • Подбор оптимальных строительных материалов и консультации по их закупке
  • Рекомендации по выбору фундамента и вида кровли
  • Весь пакет документов для получения разрешения на строительство, включая планы, схемы, спецификации
  • Возможность авторского надзора и консультаций архитектора на всех стадиях работы

Собственный проект — грамотная инвестиция

Выбор индивидуального проекта — это гарантировано больше комфорта и тёплая атмосфера в доме. Не стоит гнаться за дешевизной типовых вариантов: изменение любой стандартной схемы — и вы потратите не меньше. А персональный подход избавит от множества проблем при строительстве.

Цена проекта: почему “Академик Строй” — отличное соотношение цены и качества

Стоимость проектирования всегда зависит от нескольких факторов: сложности задачи, набора опций, необходимости индивидуальной адаптации под ваш участок. Компания "Академик Строй" держит цены на выгодном уровне благодаря собственному штату архитекторов, проверенным на практике решениям и большому опыту работы на рынке Москвы и Подмосковья. Если сравнивать средние расценки по Москве — индивидуальный проект зачастую стоит не дороже типового, если дело касается реального строительства “под ключ”. Гарантии, прозрачная смета, отсутствие скрытых переплат — всё это отличает работу ведущих строительных компаний. Для получения точного расчета и консультации просто позвоните по телефону: +7 (980) 800-47-93 — специалисты всегда готовы обсудить ваш будущий дом, показать реализованные варианты и подобрать проект по вашим параметрам.

Возможности доукомплектации проекта

Стандартный проект — только основа, ваш будущий дом может заиграть новыми красками, если чуть дополнить его интересными “фишками”:
  • Большая терраса с выходом из гостиной или кухни
  • Камин на дровах или электрический — под современный интерьер
  • Гардеробная или мастер-комната на первом этаже
  • Встроенные шкафы и кладовые для хранения инвентаря и одежды
  • Дополнительные навесы или пристройки и навес для авто
  • Различные стили оформления фасадов — от классики до хай-тека
Архитекторы “Академик Строй” внимательно выслушают все ваши идеи, помогут их реализовать, подскажут, как оптимально совместить желания и возможности.

Купите проект двухэтажного дома 16x11 м в Москве — и стройте дом мечты!

Строительство собственного дома — это путь, полный волнений, предвкушения и, конечно, творческих поисков. Заказывая проект в "Академик Строй", вы не просто получаете набор документов — вы делаете шаг навстречу дому, в котором удобно и радостно жить, куда хочется возвращаться снова и снова. Все проекты компании рассчитаны на наш суровый, но прекрасный российский климат, а каждая стена, кровля и фундамент адаптированы под особенности ваших пожеланий и участка. Помните — профессиональная команда всегда рядом: от консультаций на старте до авторского надзора и грамотных строительных решений по ходу стройки. Заказать проект или получить консультацию можно по телефону: +7 (980) 800-47-93. Пусть следующий год начнётся со смелых решений и новых горизонтов — прекрасный дом с грамотным проектом достоин именно вашей семьи!