Обзор проекта двухэтажного дома 16х11 метров общей площадью 147.1 м²
Проект двухэтажного дома с габаритами 16 на 11 метров представляет собой оптимальное сочетание функциональности, комфорта и современного дизайна. Общее пространство в 147.1 квадратных метра позволяет разместить все необходимые жилые зоны и обеспечить комфортное проживание семьи из пяти и более человек. Это отличное решение для тех, кто ищет просторный и одновременно уютный дом, выдержанный в классическом стиле с элементами современности.
Высота здания составляет 7.90 метра, а площадь застройки снова акцентирует внимание на рациональном использовании участка – 163 квадратных метра. Такая площадь позволяет разместить дом даже на участке средней величины при минимальных размерах 23,5 метра по ширине и 19,2 метра по длине.
Особенностью проекта является двускатная крыша с углом наклона 45°, площадь которой достигает внушительных 269 м². Это не только декоративный элемент, придающий дому выразительность, но и обеспечивает эффективный сток осадков и оптимальное утепление крыши.
Планировка и жилая площадь: идеальное пространство для большой семьи
Жилая площадь дома составляет 122,10 квадратных метров, что является внушительным показателем для частного жилья. На двух этажах размещены пять и более спален, что предусматривает возможность полноценного размещения большой семьи, а также организации рабочих кабинетов, комнат для гостей или детских игровых зон.
Планировка дома учитывает все современные потребности: просторные спальни, функциональная кухонная зона, удобный санузел и дополнительные общие пространства для отдыха и общения. Несмотря на наличие всего одного санузла, его грамотное расположение и эргономичное оборудование позволяют сократить возможные неудобства большого числа жильцов.
Первый этаж: гостевая и обслуживающая зоны
Первый этаж проекта выделяется особой внимательностью к гостевым и обслуживающим помещениям. Здесь предусмотрена комната, которая может служить как гостевой спальней или домашним кабинетом. Кроме того, вариант с камином создает атмосферу уюта и тепла в холодные сезоны, служит центральным элементом гостиной зоны, объединяя всех членов семьи.
Также в проекте предусмотрена терраса, которая может стать отличным местом для отдыха на свежем воздухе, проведения семейных праздников и тихого утреннего чтения. Терраса является важным элементом, который расширяет жилое пространство и связывает дом с окружающим ландшафтом.
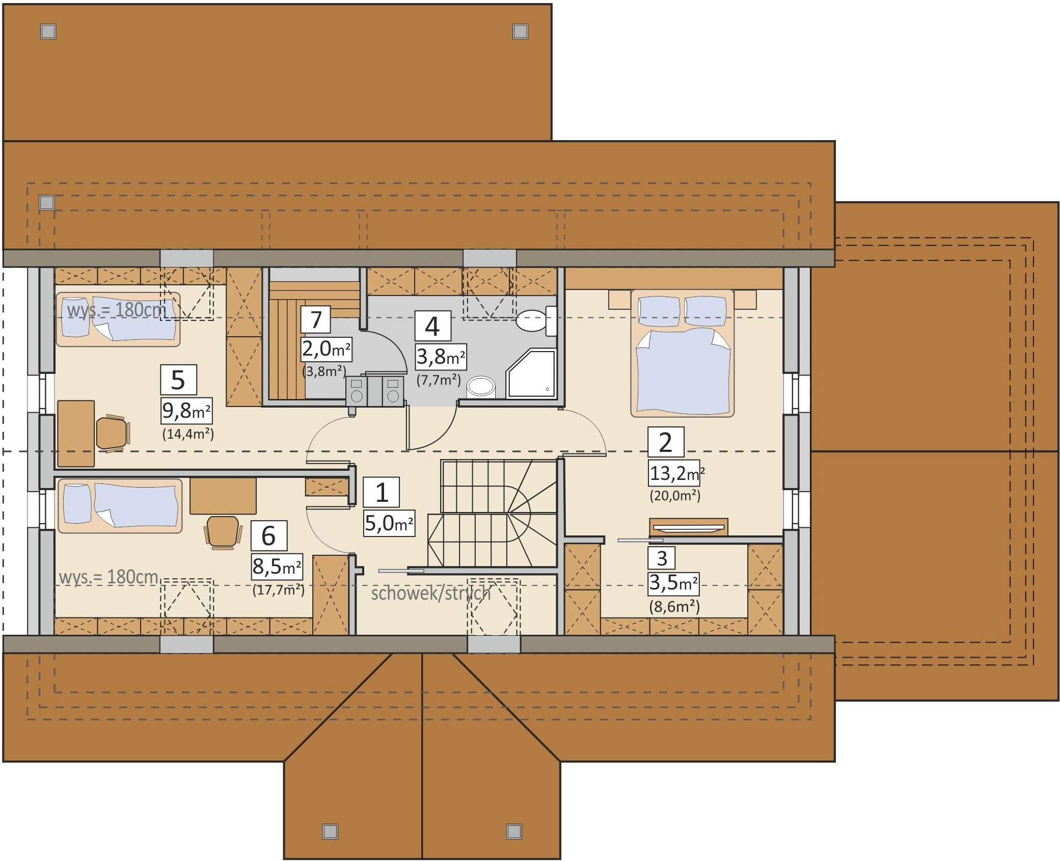
Второй этаж: приватные пространства и спальни
Второй этаж отведен под размещение спален — пять и более комнат, каждая из которых позволяет обеспечить личное пространство членам семьи. Большое количество спален не только подходит для большой семьи, но и дает простор для создания различных зон – детских, взрослых, комнат для отдыха и работы.
Организация приватной зоны второго этажа предоставляет возможность уединения и спокойствия, что важно для полноценного отдыха и восстановления сил после насыщенного дня.
Особенности архитектуры и конструкции
Двускатная кровля и ее преимущества
Проект дома использует классическую двускатную крышу с углом наклона 45°. Эта конструкция обладает рядом неоспоримых преимуществ: она позволяет эффективно отводить осадки, обеспечивает хорошую вентиляцию подкровельного пространства и способствует надежной защите дома от снега и дождя.
Кроме практичности, двускатная крыша придает дому узнаваемый внешний вид, делает фасад более выразительным и гармонирующим с окружающей архитектурой. Высокий скат крыши дает возможность использовать мансарду для дополнительного пространства или обустроить чердак для хранения.
Материалы и технология строительства
Для возведения дома традиционно используются высококачественные материалы: кирпич, газоблоки или древесина, которые обеспечивают отличную теплоизоляцию и звукоизоляцию. Технологии строительства позволят оптимизировать затраты и значительно сократить сроки возведения здания без ущерба качеству.
Особое внимание уделяется устройству фундамента, который рассчитывается исходя из массы дома и условий грунта на участке. Учитывая площадь застройки в 163 м² и габариты дома, предпочтение отдается монолитной плите или ленточному фундаменту для обеспечения устойчивости и долговечности строения.
Экономика и стоимость строительства
Бюджет на строительство этого двухэтажного дома, порядка 6 232 536 рублей, соответствует рыночным условиям и качеству материалов, использованных в проекте. В эту сумму включены все основные работы: от подготовки участка и заливки фундамента до установки окон, дверей и внутренней отделки.
Стоимость проекта можно считать оптимальной при таком размере и комплектации дома. Наличие комфортных жилых площадей, пяти спален, камина и террасы обуславливает инвестиции в недвижимость, которая будет служить надежным и удобным жилищем многие годы.
Структура затрат в строительстве
| Статья затрат | Процент от общей суммы | Примерная сумма (руб.) |
|---|---|---|
| Подготовка участка и фундамент | 20% | 1 246 507 |
| Возведение стен и конструкций | 35% | 2 181 388 |
| Кровельные работы | 15% | 934 880 |
| Инженерные коммуникации и оборудование | 15% | 934 880 |
| Внутренняя отделка | 15% | 934 880 |
Данная структура расходов помогает правильно планировать бюджет и контролировать каждый этап строительства, избегая непредвиденных затрат и задержек.
Требования к участку и инженерные коммуникации
Минимальные параметры участка для постройки дома составляют 23,5 метра по ширине и 19,2 метра по длине. Эти размеры обеспечивают достаточное пространство для возведения дома, организации отступов от границ участка и оформления зоны отдыха или сада.
При выборе участка рекомендуется учитывать расположение инженерных сетей — водоснабжения, канализации, электроэнергии и газа. Грамотное подключение к этим системам значительно облегчает этапы строительства и последующей эксплуатации дома.
Организация коммуникаций
- Водоснабжение — наличием центрального водопровода или обустройством автономной скважины;
- Канализация — выбор между централизованным подключением и устройством локальной очистной станции;
- Электроснабжение — подведение кабеля с возможностью установки современного электрощита;
- Отопление — в проекте предусмотрен камин, однако основным источником тепла рекомендуется использовать современное котельное оборудование;
- Вентиляция и кондиционирование для поддержания комфортного микроклимата в доме.
Преимущества дома и его особенности для жизни
Проект дома 16х11 метров отвечает запросам тех, кто хочет жить в просторном помещении, но при этом не имеет возможности увеличить габариты – строительство в высоту позволяет эффективно распорядиться площадью, сохраняя удобство пользования.
Наличие пяти и более спален — важный критерий для многодетных семей или семей, часто принимающих гостей. Благодаря удобной планировке, каждый член семьи получает собственное пространство без чувства стеснения.
Камин на первом этаже – не только дизайнерское и архитектурное решение, но и эффективный источник дополнительного отопления. Он создает уютную атмосферу и служит центром гостевой зоны, вокруг которого собирается семья.
Терраса – это еще один плюс в пользу комфортного проживания, особенно в теплое время года, когда хочется провести время на свежем воздухе, наслаждаясь природой и одновременно оставаясь на территории своего дома.
Как реализовать проект на практике: советы и рекомендации
Перед началом строительства рекомендуется подробно ознакомиться с проектной документацией и получить консультации у специалистов по строительству. Важно обратить внимание на следующие аспекты:
- Выбор надежного подрядчика с опытом возведения подобных зданий;
- Корректировка проекта под индивидуальные потребности семьи, если это необходимо;
- Подготовка участка с учетом требований к высоте и габаритам дома, а также правилам застройки в вашем регионе;
- Контроль качества материалов и работ на всех этапах строительства;
- Планирование интерьера с учетом комнат и их функционального назначения.
Эти простые шаги помогут минимизировать риски и обеспечить комфортное проживание в новом доме на многие годы. Проект двухэтажного дома 16х11 метров, площадью 147.1 м², представляет собой сбалансированное и продуманное решение для создания семейного очага с удобным и комфортным пространством.




