Обзор одноэтажного дома 16x10 м: комфорт и функциональность на 122,76 м²
Одноэтажные дома продолжают оставаться популярным выбором среди владельцев земельных участков, стремящихся к уюту, удобству и рациональному использованию пространства. Проект одноэтажного дома размером 16 на 10 метров с полезной площадью 122,76 м² сочетает в себе все необходимые элементы для комфортной жизни семьи из нескольких человек. В этой статье мы подробно рассмотрим особенности данного дома, его планировку, архитектурные решения и технические характеристики, а также расскажем об основных преимуществах, которые вы получаете за сумму около 6,6 млн рублей.
Сам по себе проект имеет идеальные пропорции для размещения жилых и хозяйственных помещений. Одноэтажное исполнение облегчает перемещение внутри здания и подходит для людей всех возрастов. При этом площадь достаточно большая, чтобы обеспечить большое количество функциональных зон для жизни и отдыха.
Основные параметры дома: размеры и площадь
Габаритные размеры дома составляют 16 на 10 метров, что удобно и для строительства, и для дальнейшего использования. Такие пропорции позволяют рационально распределить внутреннее пространство, а также создают привлекательный внешний вид дома — он не кажется слишком крупным или громоздким на любом участке.
Полезная площадь 122,76 м² учитывает все жилые помещения и хозяйственные зоны. При этом жилая площадь составляет 115,40 м² — достаточно для комфортного размещения семьи с активной социальной жизнью. Благодаря этому дом становится настоящим «семейным гнездом», где каждый член семьи имеет свою личную зону, а общие комнаты удобно объединяют всех.
| Параметр | Значение |
|---|---|
| Полезная площадь | 122,76 м² |
| Жилая площадь | 115,40 м² |
| Размеры дома | 16 x 10 м |
| Кол-во этажей | 1 |
| Площадь застройки | 158,10 м² |
| Объем брутто | 853 м³ |
| Площадь крыши | 240,60 м² |
| Угол наклона крыши | 35° |
| Высота здания | 7,53 м |
| Минимальный размер участка | 22,02 x 18,44 м |
| Тип крыши | Двускатная |
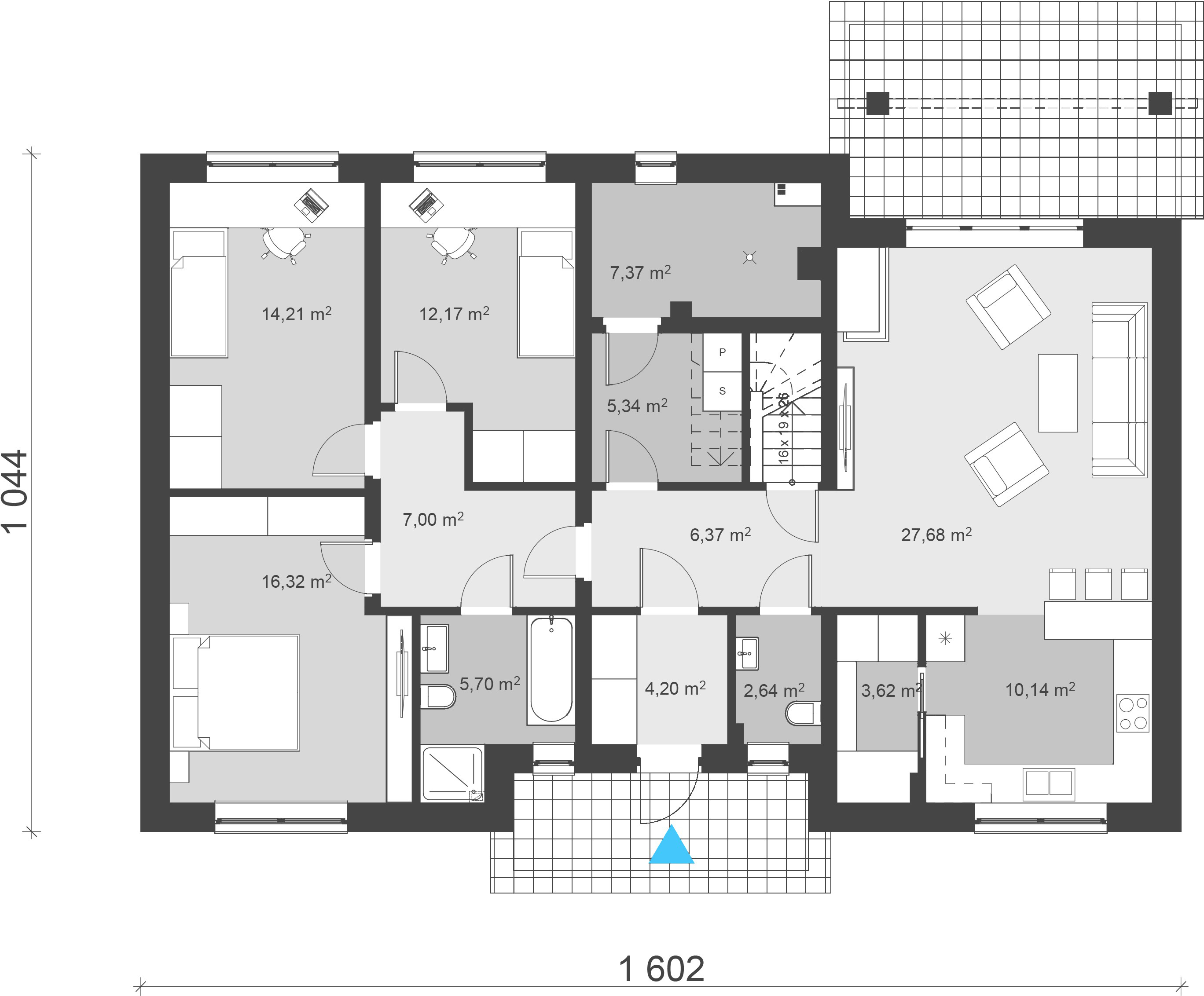
Планировка: три спальни и два санузла — оптимальное решение для семьи
Одно из ключевых достоинств данного проекта — наличие трех просторных спален. Такая конфигурация дает возможность каждому члену семьи иметь личную зону для отдыха и уединения. Кроме того, три спальни позволяют без проблем принимать гостей, при этом не ущемляя приватность жильцов.
Современный ритм жизни требует удобного и функционального размещения санузлов. В доме предусмотрено два санузла, что повышает уровень комфорта и снижает очереди в утренние часы. Размещение санитарных комнат продумано таким образом, чтобы обеспечить легкий доступ как из зон отдыха, так и из общественной части дома.
- Спальня 1 — родительская, с увеличенной площадью и удобной организацией пространства.
- Спальня 2 и 3 — детские/гостевые, подходят для различных нужд и детального планирования интерьера.
- Два санузла — позволяют использовать помещения без лишних ожиданий.
Жилая площадь: как использовать 115,40 м² в одном этаже?
Жилая площадь этой величины на одном этаже дает мощный потенциал для удобного зонирования. Как правило, в таких домах выделяют четко дневную и ночную зоны: гостиная, столовая и кухня объединены в общее пространство, а спальни и санузлы отделены для уединения. Благодаря этому можно, например, отдыхать после рабочего дня, не мешая другим членам семьи.
Архитектурные особенности и конструктивные решения
Двускатная кровля с углом наклона 35° — именно такое решение применяется в этом проекте для надежной защиты дома от осадков и ветровых нагрузок. Кровля покрывает внушительную площадь в 240,60 м², что требует качественного выбора материалов и профессионального монтажа. Однако она придает дому классический, гармоничный внешний вид, который хорошо вписывается в разные ландшафты.
Высота дома составляет 7,53 метра, что обеспечивает комфортную высоту потолков и позволяет использовать мансарду при необходимости для технических целей либо дополнительного хранения вещей.
Площадь застройки и объем здания
Площадь застройки равна 158,10 м² — это габариты, которые занимают технологические и конструктивные элементы здания с учетом наружных стен, ступенек и возможных выступающих частей фасада. Данная характеристика важна при выборе участка земли и планировании внешнего оформления территории.
Объем брутто здания — 853 м³ — отражает не только внутренние полезные и технические помещения, но и строительный объем фасада и кровли. Это полезно при расчете затрат на отопление, вентиляцию и другие инженерные системы.
Опции: камин и терраса для создания уюта и отдыха
Одним из важных бонусов проекта являются опции установки камина и организации террасы. Камин — это не только эффективный источник тепла в прохладное время года, но и визуальный центр гостиной, вокруг которого собирается семья в теплой атмосфере. Наличие камина делает интерьер особенным, придавая ему нотки традиционного домашнего уюта и комфорта.
Терраса расширяет жилое пространство, объединяя дом с природой. Это прекрасное место для отдыха на свежем воздухе, проведения вечеринок с друзьями и уютных семейных завтраков на открытом воздухе. Терраса также делает фасад дома более привлекательным и организует плавный переход между внутренним пространством и садом.
Преимущества одноэтажного дома с террасой
- Безопасность и удобство для детей и пожилых людей — отсутствие лестниц упрощает перемещения.
- Единое коммуникационное пространство — оптимальное распределение помещений и инженерных систем.
- Легкость в организации зон отдыха и хозяйственного использования без излишней сложности.
Требования к участку: комфорт строительства и эксплуатации
Для комфортной реализации проекта необходимо иметь участок минимальных размеров 22,02 метра по ширине и 18,44 метра по длине. Эти параметры обеспечивают достаточно места для красочных ландшафтных решений вокруг дома, свободное размещение хозяйственных построек, а также соблюдение нормативных отступов от соседских участков.
Минимальные габариты участка позволяют сохранить ощущение пространства, создают хорошие условия для открытого воздуха и солнечного освещения в жилых комнатах. Это важное преимущество, особенно в тех регионах, где природные условия требуют особого внимания к солнечной инсоляции и вентиляции.
Стоимость проекта: инвестиции в комфорт и качество
Общая стоимость строительства одноэтажного дома площадью 122,76 м² составляет примерно 6 606 396 рублей. Эта сумма включает материалы, работы, инженерные коммуникации и отделочные решения, ориентированные на надежность и долговечность.
С точки зрения цены на квадратный метр — это предложение соответствует уровню домов среднего и выше среднего класса, что оправдано качеством используемых материалов, продуманной архитектурой и современными инженерными системами. При правильном ведении строительства и грамотном выборе подрядчиков можно получить идеальный дом, который вкусно впишется в ландшафт и станет предметом гордости для владельцев.
Состав затрат на строительство
| Статья затрат | Примерный процент от стоимости | Комментарий |
|---|---|---|
| Фундамент и несущие конструкции | 30% | Основа надежности дома |
| Стены и кровля | 25% | Качественные материалы и утепление |
| Отделочные работы | 15% | Внутренняя отделка и дизайн |
| Инженерные системы | 20% | Отопление, электрика, водоснабжение |
| Опции (камин, терраса) | 10% | Отделочные и дополнительные материалы |
Выводы: Кому подойдет данное решение?
Одноэтажный дом размером 16x10 метров с полезной площадью около 123 м² является оптимальным вариантом для семей, которые ценят удобство, комфорт и простоту эксплуатации. Благодаря продуманной планировке с тремя спальнями и двумя санузлами, дом подходит для проживания взрослых людей, детей и гостей, обеспечивая каждому достаточную приватность и пространство.
Наличие опций в виде камина и террасы добавляет дому привлекательности и расширяет функциональность, делая отдых максимально приятным и разнообразным. Двускатная крыша с оптимальным углом наклона и качественные конструктивные решения обеспечивают долговечность и надежность конструкции в любых климатических условиях.
Инвестиции около 6,6 миллиона рублей при правильной организации строительства превращают этот проект в успешное вложение в качество жизни на долгие годы. Такой дом без проблем впишется в стандартный земельный участок с минимальными ограничениями по площади и оформлению, что особенно важно в плане юридической и проектной документации.
В целом, проект одноэтажного дома 16x10 — это удачное сочетание классики и современных стандартов, позволяющее жить комфортно и получать удовольствие от каждого дня, проведенного в уютном и надежном доме.






