Двухэтажный дом 18x10 - 207.2 м2 за руб.

ID-68218

Стоимость дома 7181768 руб.
154 м2 Полезная
площадь
18 x 10 м Размеры
2 этажа Этажей
26 м2 Террасы
и балконы
2Без
гаража
4 Количество
спален
2 Количество
санузлов

Планировки

План первого этажа

floor image
  • 1. Прихожая 5,10 m²
  • 2. Холл 9,50 m²
  • 3. Кухня 9,20 m²
  • 4. Гостиная + столовая 32,60 m²
  • 5. Комната 15,20 m²
  • 6. Лестница 3,50 m²
  • 7. Ванная комната 3,70 m²
  • 8. Кладовая 3,60 m²
  • 9. Котельная 11 m²
  • 10. Гараж на 2 машины 32,70 m²
  • План первого этажа 126,10 m²

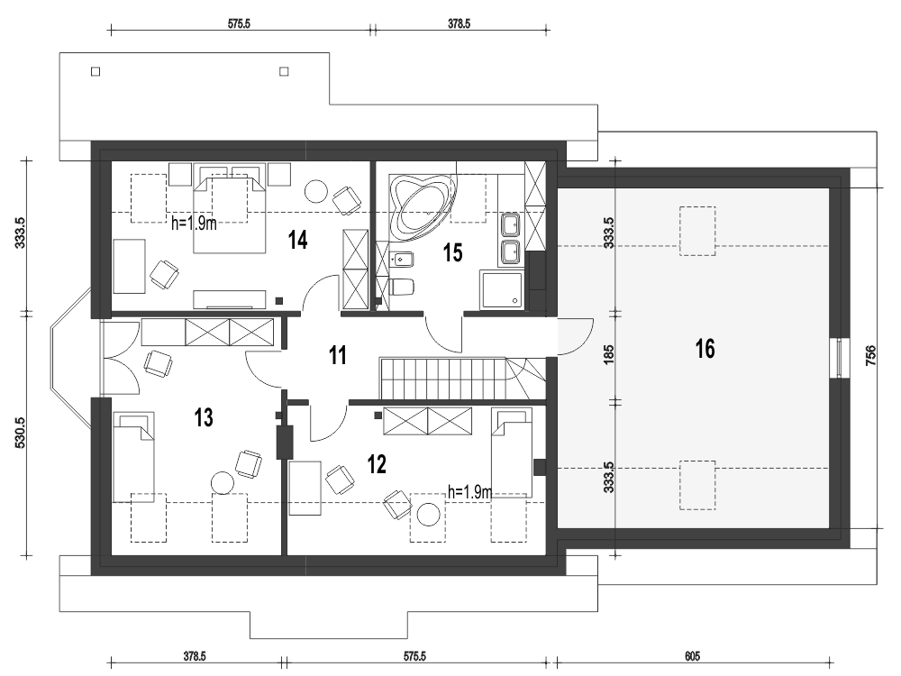
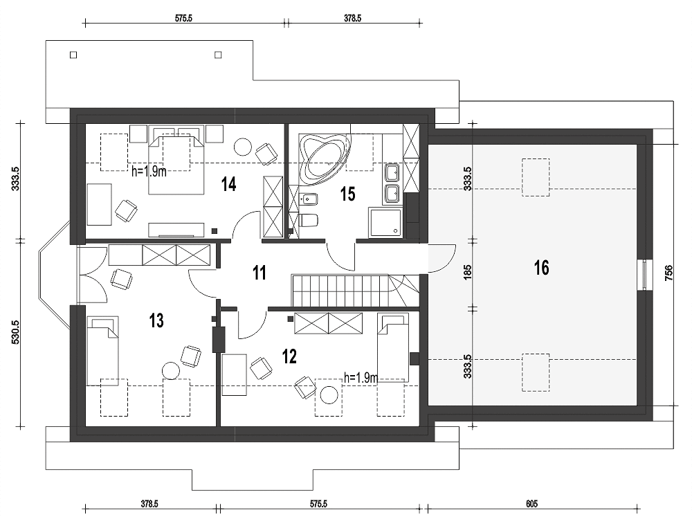
План мансарды

floor image
  • 1. Коридор 7,10 m²
  • 2. Комната 12,90 m² (18,80 m²)
  • 3. Комната 15,90 m² (19,80 m²)
  • 4. Комната 13,10 m² (19 m²)
  • 5. Ванная комната 7,90 m² (11,80 m²)
  • 6. Чердак 24,20 m² (45,30 m²)
  • План мансарды 81,10 m²

Разрезы

Вертикальный разрез
Вертикальный разрез

Фасады

Передний
Задний
Левый
Правый
Передний
Задний
Левый
Правый

Подробная информация

Жилая площадь
135,70 m²
icon

Сумма площади всех жилых помещений, за вычетом пов. гараж, котельная, чердак, подвал. Учитывается в 100%, для помещений высотой более 2,2 м, в 50% для помещений с высотой 2,2-1,4 м и не включается для более низких помещений (меньше 1,4 м).

Высота аттиковой стены
0,92 m
icon

Площадь застройки
158,20 m²
icon

Площадь застройки здания определяется как площадь горизонтального сечения по внешнему обводу здания на уровне цоколя, включая выступающие части.

Площадь нетто
247,90 m²
icon

Площадь всех помещений в здании, измеренная на высоте пола.

Объем брутто
645 m³
icon

Как правило, это сумма объема всех помещений в здании, подсчитанных по внешнему контуру стены (с утеплением).

Площадь крыши
274 m²
icon

Угол наклона крыши
40°
icon

Наклон ската крыши в градусах. Внимание! В некоторых проектах возникает более чем один наклон крыши.

Высота здания
8,70 m
icon

Высота измеряется от поверхности земли до самой высокой точки кровли (конька), за исключением дымоходов.

Мин. ширина участка
25,80 m
icon

Наименьшая возможная ширина участка, необходимая для строительства выбранного дома. Состоит из длины фасада дома плюс с обеих сторон три метра отступ.

Мин. длина участка
17,70 m
icon

Наименьшая возможная длина участка, необходимая для строительства выбранного дома. Состоит из длины фасада дома плюс с обеих сторон три метра отступ.

Материалы и опции
Общие
Цена, руб.
Площадь м²
260
Площадь от и до
Ежемесячный платёж, руб
Количество спален
4
Гараж
2
Количество санузлов
2
Тип крыши
Ширина
18
Глубина
10

Площади дома

№ п/п Наименование Ед. из. Строительная площадь Полезная площадь
1 1 этаж м2 155.39 126.1
2 2 этаж м2 99.94 81.1
3 Итого м2 255.33 207.2

Калькулятор опций

0

В ипотеку от 23 321 ₽/мес.

Фундамент
stdClass Object ( [id] => 1 [attribute_id] => 1 [name] => Ленточный монолитный ж/б [material_modifier] => 1 [work_modifier] => 1 [options] => Array ( [0] => размер 200 х 700 мм [1] => размер 300 х 900 мм [2] => размер 400 х 1 000 мм [3] => размер 500 х 1 100 мм [4] => размер 600 х 1 200 мм ) [days] => [20,21,22,25,30] [material_price] => [2823,3630,4475,5210,12047] [work_price] => [2154,2826,3731,4577,5293] [image] => https://akademik-stroy.ru/wp-content/uploads/materials/lentochnyj-monolitnyj-zh-b.jpg [area_modifier] => 155.39 [parent_name] => Фундамент [parent_id] => 1 [material_sum] => 552719 [work_sum] => 351446 [total_sum] => 904165 [total_days] => 20 [display_material_sum] => 552 719 [display_work_sum] => 351 446 [display_total_sum] => 904 165 ) 1
904 165
Работа:351 446
Материалы:552 719
Дни:20
stdClass Object ( [id] => 2 [attribute_id] => 1 [name] => Забивные Ж/Б сваи [material_modifier] => 1 [work_modifier] => 1 [options] => Array ( [0] => 150х150х3000мм [1] => 150х150х4000мм [2] => 200х200х3000мм [3] => 200х200х4000мм [4] => 200х200х5000мм [5] => 200х200х6000мм ) [days] => [2,2,2,2,2,2] [material_price] => [1990,2850,3255,4360,5120,6837] [work_price] => [1002,1185,1336,1438,1574,1839] [image] => https://akademik-stroy.ru/wp-content/uploads/materials/zabivnye-zh-b-svai.png [area_modifier] => 155.39 [parent_name] => Фундамент [parent_id] => 1 [material_sum] => 389625 [work_sum] => 163486 [total_sum] => 553111 [total_days] => 2 [display_material_sum] => 389 625 [display_work_sum] => 163 486 [display_total_sum] => 553 111 ) 1
553 111
Работа:163 486
Материалы:389 625
Дни:2
stdClass Object ( [id] => 71 [attribute_id] => 1 [name] => Свайно-ростверковый ж/б [material_modifier] => 1 [work_modifier] => 1 [options] => Array ( [0] => ростверк 200х300 мм [1] => ростверк 300х600 мм [2] => ростверк 400х900 мм [3] => ростверк 500х1200 мм ) [days] => [20,23,25,27] [material_price] => [3018,3474,7109,9792] [work_price] => [2024,3012,5635,7022] [image] => https://akademik-stroy.ru/wp-content/uploads/materials/svajno-rostverkovyj-monolitnyj-zh-b-3.png [area_modifier] => 155.39 [parent_name] => Фундамент [parent_id] => 1 [material_sum] => 590898 [work_sum] => 330235 [total_sum] => 921133 [total_days] => 20 [display_material_sum] => 590 898 [display_work_sum] => 330 235 [display_total_sum] => 921 133 ) 1
921 133
Работа:330 235
Материалы:590 898
Дни:20
stdClass Object ( [id] => 72 [attribute_id] => 1 [name] => Монолитная ж/б плита [material_modifier] => 1 [work_modifier] => 1 [options] => Array ( [0] => 200 мм [1] => 300 мм [2] => 400 мм [3] => 500 мм [4] => 600 мм ) [days] => [30,33,35,37,40] [material_price] => [5348,8555,12788,14388,15189] [work_price] => [4314,4881,7037,8061,10230] [image] => https://akademik-stroy.ru/wp-content/uploads/materials/monolitnaya-zhb-plita.png [area_modifier] => 155.39 [parent_name] => Фундамент [parent_id] => 1 [material_sum] => 1047092 [work_sum] => 703870 [total_sum] => 1750962 [total_days] => 30 [display_material_sum] => 1 047 092 [display_work_sum] => 703 870 [display_total_sum] => 1 750 962 ) 1
1 750 962
Работа:703 870
Материалы:1 047 092
Дни:30
stdClass Object ( [id] => 73 [attribute_id] => 1 [name] => Утепленная шведская плита [material_modifier] => 1 [work_modifier] => 1 [options] => Array ( [0] => 200 мм [1] => 300 мм [2] => 400 мм [3] => 500 мм [4] => 600 мм ) [days] => [32,37,39,42,45] [material_price] => [10249,12692,13760,14936,16230] [work_price] => [5960,7337,8072,8878,9765] [image] => https://akademik-stroy.ru/wp-content/uploads/materials/uteplennaya-shvedskaya-plita.jpg [area_modifier] => 155.39 [parent_name] => Фундамент [parent_id] => 1 [material_sum] => 2006666 [work_sum] => 972431 [total_sum] => 2979097 [total_days] => 32 [display_material_sum] => 2 006 666 [display_work_sum] => 972 431 [display_total_sum] => 2 979 097 ) 1
2 979 097
Работа:972 431
Материалы:2 006 666
Дни:32
stdClass Object ( [id] => 75 [attribute_id] => 1 [name] => Ленточный из ФБС [material_modifier] => 1 [work_modifier] => 1 [options] => Array ( [0] => толщ. 300 мм [1] => толщ. 400 мм [2] => толщ. 500 мм [3] => толщ. 600 мм ) [days] => [20,20,20,20] [material_price] => [3675,4902,6126,7350] [work_price] => [2451,3264,4083,4902] [image] => https://akademik-stroy.ru/wp-content/uploads/materials/lentochnyj-iz-fbs.png [area_modifier] => 155.39 [parent_name] => Фундамент [parent_id] => 1 [material_sum] => 719533 [work_sum] => 399904 [total_sum] => 1119437 [total_days] => 20 [display_material_sum] => 719 533 [display_work_sum] => 399 904 [display_total_sum] => 1 119 437 ) 1
1 119 437
Работа:399 904
Материалы:719 533
Дни:20
stdClass Object ( [id] => 76 [attribute_id] => 1 [name] => Цокольный этаж из ФБС [material_modifier] => 1 [work_modifier] => 1 [options] => Array ( [0] => толщ. 300 мм [1] => толщ. 400 мм [2] => толщ. 500 мм [3] => толщ. 600 мм ) [days] => [30,32,34,36] [material_price] => [20916,23299,26680,29060] [work_price] => [17524,18700,19873,21046] [image] => https://akademik-stroy.ru/wp-content/uploads/materials/cokolnyj-ehtazh-iz-fbs.jpg [area_modifier] => 155.39 [parent_name] => Фундамент [parent_id] => 1 [material_sum] => 4095173 [work_sum] => 2859207 [total_sum] => 6954380 [total_days] => 30 [display_material_sum] => 4 095 173 [display_work_sum] => 2 859 207 [display_total_sum] => 6 954 380 ) 1
6 954 380
Работа:2 859 207
Материалы:4 095 173
Дни:30
stdClass Object ( [id] => 77 [attribute_id] => 1 [name] => Цокольный этаж монолитный ж/б [material_modifier] => 1 [work_modifier] => 1 [options] => Array ( [0] => толщ. 200 мм [1] => толщ. 300 мм [2] => толщ. 400 мм [3] => толщ. 500 мм [4] => толщ. 600 мм ) [days] => [40,42,44,46,48] [material_price] => [25421,29148,32275,35602,37326] [work_price] => [20441,21907,23375,24841,26306] [image] => https://akademik-stroy.ru/wp-content/uploads/materials/cokolnyj-etazh-zh-b.jpg [area_modifier] => 155.39 [parent_name] => Фундамент [parent_id] => 1 [material_sum] => 4977213 [work_sum] => 3335143 [total_sum] => 8312356 [total_days] => 40 [display_material_sum] => 4 977 213 [display_work_sum] => 3 335 143 [display_total_sum] => 8 312 356 ) 1
8 312 356
Работа:3 335 143
Материалы:4 977 213
Дни:40
stdClass Object ( [id] => 191 [attribute_id] => 1 [name] => Винтовые сваи [material_modifier] => 1 [work_modifier] => 1 [options] => Array ( [0] => 57х200мм [1] => 76х250мм [2] => 108х300мм [3] => 133х350мм ) [days] => [1,1,2,2] [material_price] => [1200,1300,1450,1600] [work_price] => [400,600,900,1100] [image] => https://akademik-stroy.ru/wp-content/uploads/materials/vintovye-svai.png [area_modifier] => 155.39 [parent_name] => Фундамент [parent_id] => 1 [material_sum] => 234950 [work_sum] => 65264 [total_sum] => 300214 [total_days] => 1 [display_material_sum] => 234 950 [display_work_sum] => 65 264 [display_total_sum] => 300 214 ) 1
300 214
Работа:65 264
Материалы:234 950
Дни:1
Перекрытие цоколя
stdClass Object ( [id] => 3 [attribute_id] => 2 [name] => Деревянные балки [material_modifier] => 1 [work_modifier] => 1 [options] => Array ( [0] => без утепления [1] => утепление 200 мм [2] => утепление 250 мм [3] => утепление 300 мм [4] => утепление 350 мм [5] => утепление 400 мм [6] => утепление 450 мм [7] => утепление 500 мм ) [days] => [8,9,9,9,11,12,13,14] [material_price] => [1634,2042,2344,2947,3149,3652,3354,3557] [work_price] => [1230,1339,1393,1426,1460,1513,1587,1620] [image] => https://akademik-stroy.ru/wp-content/uploads/materials/derevyannye-balki.png [area_modifier] => 155.39 [parent_name] => Перекрытие цоколя [parent_id] => 2 [material_sum] => 319923 [work_sum] => 200686 [total_sum] => 520609 [total_days] => 8 [display_material_sum] => 319 923 [display_work_sum] => 200 686 [display_total_sum] => 520 609 ) 1
520 609
Работа:200 686
Материалы:319 923
Дни:8
stdClass Object ( [id] => 4 [attribute_id] => 2 [name] => Сборные ж/б плиты [material_modifier] => 1 [work_modifier] => 1 [options] => Array ( [0] => без утепления [1] => утепление 150мм [2] => утепление 200мм [3] => утепление 250мм [4] => утепление 300мм [5] => утепление 350мм [6] => утепление 400мм [7] => утепление 450мм [8] => утепление 500мм ) [days] => [13,15,15,15,15,15,15,15,15] [material_price] => [3067,5577,5928,6679,7730,8782,9833,10884,11935] [work_price] => [1520,1956,2102,2247,2392,2537,2684,2829,2974] [image] => https://akademik-stroy.ru/wp-content/uploads/materials/sbornye-zh-b-plity-2.jpg [area_modifier] => 155.39 [parent_name] => Перекрытие цоколя [parent_id] => 2 [material_sum] => 600492 [work_sum] => 248002 [total_sum] => 848494 [total_days] => 13 [display_material_sum] => 600 492 [display_work_sum] => 248 002 [display_total_sum] => 848 494 ) 1
848 494
Работа:248 002
Материалы:600 492
Дни:13
stdClass Object ( [id] => 78 [attribute_id] => 2 [name] => Монолитная ж/б плита [material_modifier] => 1 [work_modifier] => 1 [options] => Array ( [0] => без утепления [1] => утепление 150 мм [2] => утепление 200 мм [3] => утепление 250 мм [4] => утепление 300 мм [5] => утепление 350 мм [6] => утепление 400 мм [7] => утепление 450 мм [8] => утепление 500 мм ) [days] => [18,20,20,20,20,20,20,20,20] [material_price] => [4837,6572,7224,7375,79426,8177,8728,9180,10031] [work_price] => [3348,3921,4112,4302,4493,4684,4875,5066,5256] [image] => https://akademik-stroy.ru/wp-content/uploads/materials/monolitnaya-zh-b-plita-2.jpg [area_modifier] => 155.39 [parent_name] => Перекрытие цоколя [parent_id] => 2 [material_sum] => 947043 [work_sum] => 546258 [total_sum] => 1493301 [total_days] => 18 [display_material_sum] => 947 043 [display_work_sum] => 546 258 [display_total_sum] => 1 493 301 ) 1
1 493 301
Работа:546 258
Материалы:947 043
Дни:18
Стены 1 этаж (несущие)
stdClass Object ( [id] => 6 [attribute_id] => 3 [name] => Пеноблок [material_modifier] => 1 [work_modifier] => 1 [options] => Array ( [0] => 300 мм [1] => 400 мм [2] => 500 мм [3] => 600 мм ) [days] => [29,31,34,39] [material_price] => [3000,4000,4500,4937] [work_price] => [5033,5805,6400,8710] [image] => https://akademik-stroy.ru/wp-content/uploads/materials/penoblok.jpg [area_modifier] => 155.39 [parent_name] => Стены 1 этаж (несущие) [parent_id] => 3 [material_sum] => 587374 [work_sum] => 821182 [total_sum] => 1408556 [total_days] => 29 [display_material_sum] => 587 374 [display_work_sum] => 821 182 [display_total_sum] => 1 408 556 ) 1
1 408 556
Работа:821 182
Материалы:587 374
Дни:29
stdClass Object ( [id] => 79 [attribute_id] => 3 [name] => Керамический блок [material_modifier] => 1 [work_modifier] => 1 [options] => Array ( [0] => 380 мм [1] => 380 мм Thermo [2] => 440 мм [3] => 510 мм ) [days] => [23,23,24,25] [material_price] => [4510,5098,6093,8013] [work_price] => [4737,4937,5903,6958] [image] => https://akademik-stroy.ru/wp-content/uploads/materials/keramicheskij-blok.jpg [area_modifier] => 155.39 [parent_name] => Стены 1 этаж (несущие) [parent_id] => 3 [material_sum] => 883019 [work_sum] => 772887 [total_sum] => 1655906 [total_days] => 23 [display_material_sum] => 883 019 [display_work_sum] => 772 887 [display_total_sum] => 1 655 906 ) 1
1 655 906
Работа:772 887
Материалы:883 019
Дни:23
stdClass Object ( [id] => 80 [attribute_id] => 3 [name] => Кирпич [material_modifier] => 1 [work_modifier] => 1 [options] => Array ( [0] => Кирпич 250 мм [1] => Кирпич 380 мм [2] => Кирпич 510 мм [3] => Кирпич 640 мм [4] => Кирпич 770 мм ) [days] => [30,30,31,33,36] [material_price] => [5500,7142,9206,10171,12235] [work_price] => [8736,10041,12018,15240,18462] [image] => https://akademik-stroy.ru/wp-content/uploads/materials/kirpich.jpg [area_modifier] => 155.39 [parent_name] => Стены 1 этаж (несущие) [parent_id] => 3 [material_sum] => 1076853 [work_sum] => 1425361 [total_sum] => 2502214 [total_days] => 30 [display_material_sum] => 1 076 853 [display_work_sum] => 1 425 361 [display_total_sum] => 2 502 214 ) 1
2 502 214
Работа:1 425 361
Материалы:1 076 853
Дни:30
stdClass Object ( [id] => 81 [attribute_id] => 3 [name] => Монолитные [material_modifier] => 1 [work_modifier] => 1 [options] => Array ( [0] => 150 мм [1] => 200 мм [2] => 250 мм [3] => 300 мм [4] => 350 мм [5] => 400 мм ) [days] => [45,46,47,49,50,53] [material_price] => [6545,7876,10175,12011,13908,15204] [work_price] => [5106,6444,7698,8552,9807,11461] [image] => https://akademik-stroy.ru/wp-content/uploads/materials/monolitnye.jpg [area_modifier] => 155.39 [parent_name] => Стены 1 этаж (несущие) [parent_id] => 3 [material_sum] => 1281455 [work_sum] => 833092 [total_sum] => 2114547 [total_days] => 45 [display_material_sum] => 1 281 455 [display_work_sum] => 833 092 [display_total_sum] => 2 114 547 ) 1
2 114 547
Работа:833 092
Материалы:1 281 455
Дни:45
stdClass Object ( [id] => 82 [attribute_id] => 3 [name] => Клееный брус [material_modifier] => 1 [work_modifier] => 1 [options] => Array ( [0] => 160 мм [1] => 175 мм [2] => 200 мм [3] => 215 мм [4] => 240 мм [5] => 270 мм [6] => 282 мм ) [days] => [24,28,32,37,40,42,48] [material_price] => [16975,18773,19950,20545,21599,22159,23275] [work_price] => [4806,5287,5815,6397,7036,7740,8514] [image] => https://akademik-stroy.ru/wp-content/uploads/materials/kleenyj-brus.jpg [area_modifier] => 155.39 [parent_name] => Стены 1 этаж (несущие) [parent_id] => 3 [material_sum] => 3323559 [work_sum] => 784145 [total_sum] => 4107704 [total_days] => 24 [display_material_sum] => 3 323 559 [display_work_sum] => 784 145 [display_total_sum] => 4 107 704 ) 1
4 107 704
Работа:784 145
Материалы:3 323 559
Дни:24
stdClass Object ( [id] => 83 [attribute_id] => 3 [name] => Каркасные [material_modifier] => 1 [work_modifier] => 1 [options] => Array ( [0] => 150 мм [1] => 200 мм [2] => 250 мм [3] => 300 мм ) [days] => [15,16,17,18] [material_price] => [2379,2639,2898,3258] [work_price] => [2418,2686,2985,3716] [image] => https://akademik-stroy.ru/wp-content/uploads/materials/karkasnye.jpg [area_modifier] => 155.39 [parent_name] => Стены 1 этаж (несущие) [parent_id] => 3 [material_sum] => 465788 [work_sum] => 394520 [total_sum] => 860308 [total_days] => 15 [display_material_sum] => 465 788 [display_work_sum] => 394 520 [display_total_sum] => 860 308 ) 1
860 308
Работа:394 520
Материалы:465 788
Дни:15
stdClass Object ( [id] => 84 [attribute_id] => 3 [name] => СИП-панели [material_modifier] => 1 [work_modifier] => 1 [options] => Array ( [0] => 120 мм [1] => 170 мм [2] => 220 мм ) [days] => [7,7,7] [material_price] => [1210,1856,2292] [work_price] => [1410,1551,1706] [image] => https://akademik-stroy.ru/wp-content/uploads/materials/sip-paneli.jpg [area_modifier] => 155.39 [parent_name] => Стены 1 этаж (несущие) [parent_id] => 3 [material_sum] => 236908 [work_sum] => 230055 [total_sum] => 466963 [total_days] => 7 [display_material_sum] => 236 908 [display_work_sum] => 230 055 [display_total_sum] => 466 963 ) 1
466 963
Работа:230 055
Материалы:236 908
Дни:7
stdClass Object ( [id] => 85 [attribute_id] => 3 [name] => Сухой брус [material_modifier] => 1 [work_modifier] => 1 [options] => Array ( [0] => 150 мм [1] => 180 мм [2] => 200 мм ) [days] => [7,8,9] [material_price] => [6010,7190,8709] [work_price] => [3204,3845,4229] [image] => https://akademik-stroy.ru/wp-content/uploads/materials/suhoj-brus.jpg [area_modifier] => 155.39 [parent_name] => Стены 1 этаж (несущие) [parent_id] => 3 [material_sum] => 1176706 [work_sum] => 522763 [total_sum] => 1699469 [total_days] => 7 [display_material_sum] => 1 176 706 [display_work_sum] => 522 763 [display_total_sum] => 1 699 469 ) 1
1 699 469
Работа:522 763
Материалы:1 176 706
Дни:7
stdClass Object ( [id] => 86 [attribute_id] => 3 [name] => Профилированный брус [material_modifier] => 1 [work_modifier] => 1 [options] => Array ( [0] => 150 мм [1] => 180 мм [2] => 200 мм ) [days] => [7,8,9] [material_price] => [8190,9228,10051] [work_price] => [3845,4614,5075] [image] => https://akademik-stroy.ru/wp-content/uploads/materials/profilirovannyj-brus.jpg [area_modifier] => 155.39 [parent_name] => Стены 1 этаж (несущие) [parent_id] => 3 [material_sum] => 1603532 [work_sum] => 627348 [total_sum] => 2230880 [total_days] => 7 [display_material_sum] => 1 603 532 [display_work_sum] => 627 348 [display_total_sum] => 2 230 880 ) 1
2 230 880
Работа:627 348
Материалы:1 603 532
Дни:7
stdClass Object ( [id] => 87 [attribute_id] => 3 [name] => Оцилиндрованное бревно [material_modifier] => 1 [work_modifier] => 1 [options] => Array ( [0] => 180 мм [1] => 220 мм [2] => 260 мм [3] => 320 мм ) [days] => [7,8,9,10] [material_price] => [75190,9532,10868,13116] [work_price] => [3845,4691,5535,6863] [image] => https://akademik-stroy.ru/wp-content/uploads/materials/ocilindrovannoe-brevno-1.jpg [area_modifier] => 155.39 [parent_name] => Стены 1 этаж (несущие) [parent_id] => 3 [material_sum] => 14721555 [work_sum] => 627348 [total_sum] => 15348903 [total_days] => 7 [display_material_sum] => 14 721 555 [display_work_sum] => 627 348 [display_total_sum] => 15 348 903 ) 1
15 348 903
Работа:627 348
Материалы:14 721 555
Дни:7
stdClass Object ( [id] => 88 [attribute_id] => 3 [name] => Срубы [material_modifier] => 1 [work_modifier] => 1 [options] => Array ( [0] => 260 мм [1] => 320 мм [2] => 360 мм [3] => 400 мм [4] => 500 мм ) [days] => [7,8,9,10,11] [material_price] => [37975,46709,52314,58069,73167] [work_price] => [4806,5911,6621,7349,9260] [image] => https://akademik-stroy.ru/wp-content/uploads/materials/sruby.jpg [area_modifier] => 155.39 [parent_name] => Стены 1 этаж (несущие) [parent_id] => 3 [material_sum] => 7435178 [work_sum] => 784145 [total_sum] => 8219323 [total_days] => 7 [display_material_sum] => 7 435 178 [display_work_sum] => 784 145 [display_total_sum] => 8 219 323 ) 1
8 219 323
Работа:784 145
Материалы:7 435 178
Дни:7
stdClass Object ( [id] => 174 [attribute_id] => 3 [name] => Брус [material_modifier] => 1 [work_modifier] => 1 [options] => Array ( [0] => 150 мм [1] => 180 мм [2] => 200 мм ) [days] => [7,8,9] [material_price] => [5127,6152,7367] [work_price] => [1602,1922,2115] [image] => https://akademik-stroy.ru/wp-content/uploads/materials/brus.jpg [area_modifier] => 155.39 [parent_name] => Стены 1 этаж (несущие) [parent_id] => 3 [material_sum] => 1003823 [work_sum] => 261382 [total_sum] => 1265205 [total_days] => 7 [display_material_sum] => 1 003 823 [display_work_sum] => 261 382 [display_total_sum] => 1 265 205 ) 1
1 265 205
Работа:261 382
Материалы:1 003 823
Дни:7
stdClass Object ( [id] => 175 [attribute_id] => 3 [name] => Газобетон [material_modifier] => 1 [work_modifier] => 1 [options] => Array ( [0] => 300 мм [1] => 375 мм [2] => 400 мм [3] => 500 мм [4] => 600 мм ) [days] => [29,31,35,37,44] [material_price] => [4298,5573,6356,7288,9119] [work_price] => [4538,5251,5926,6733,7195] [image] => https://akademik-stroy.ru/wp-content/uploads/materials/gazobeton.jpg [area_modifier] => 155.39 [parent_name] => Стены 1 этаж (несущие) [parent_id] => 3 [material_sum] => 841511 [work_sum] => 740418 [total_sum] => 1581929 [total_days] => 29 [display_material_sum] => 841 511 [display_work_sum] => 740 418 [display_total_sum] => 1 581 929 ) 1
1 581 929
Работа:740 418
Материалы:841 511
Дни:29
stdClass Object ( [id] => 176 [attribute_id] => 3 [name] => Блок [material_modifier] => 1 [work_modifier] => 1 [options] => Array ( [0] => 300 мм [1] => 375 мм [2] => 400 мм [3] => 500 мм [4] => 600 мм ) [days] => [29,31,35,37,44] [material_price] => [2698,3973,4356,6588,7119] [work_price] => [5038,5851,6426,8733,9195] [image] => https://akademik-stroy.ru/wp-content/uploads/materials/blok.jpg [area_modifier] => 155.39 [parent_name] => Стены 1 этаж (несущие) [parent_id] => 3 [material_sum] => 528245 [work_sum] => 821998 [total_sum] => 1350243 [total_days] => 29 [display_material_sum] => 528 245 [display_work_sum] => 821 998 [display_total_sum] => 1 350 243 ) 1
1 350 243
Работа:821 998
Материалы:528 245
Дни:29
stdClass Object ( [id] => 177 [attribute_id] => 3 [name] => Газосиликатный блок [material_modifier] => 1 [work_modifier] => 1 [options] => Array ( [0] => 300 мм [1] => 375 мм [2] => 400 мм [3] => 500 мм [4] => 600 мм ) [days] => [29,31,35,37,44] [material_price] => [4298,5573,6356,7288,9119] [work_price] => [4538,5251,5926,6733,7195] [image] => https://akademik-stroy.ru/wp-content/uploads/materials/gazosilikatnyj-blok.jpg [area_modifier] => 155.39 [parent_name] => Стены 1 этаж (несущие) [parent_id] => 3 [material_sum] => 841511 [work_sum] => 740418 [total_sum] => 1581929 [total_days] => 29 [display_material_sum] => 841 511 [display_work_sum] => 740 418 [display_total_sum] => 1 581 929 ) 1
1 581 929
Работа:740 418
Материалы:841 511
Дни:29
stdClass Object ( [id] => 178 [attribute_id] => 3 [name] => Керамзитобетонный блок [material_modifier] => 1 [work_modifier] => 1 [options] => Array ( [0] => 300 мм [1] => 375 мм [2] => 400 мм [3] => 500 мм [4] => 600 мм ) [days] => [23,23,24,25,28] [material_price] => [3641,4298,5693,7613,9612] [work_price] => [5737,5737,6903,7958,8901] [image] => https://akademik-stroy.ru/wp-content/uploads/materials/keramzitobetonnyj-blok.jpg [area_modifier] => 155.39 [parent_name] => Стены 1 этаж (несущие) [parent_id] => 3 [material_sum] => 712876 [work_sum] => 936046 [total_sum] => 1648922 [total_days] => 23 [display_material_sum] => 712 876 [display_work_sum] => 936 046 [display_total_sum] => 1 648 922 ) 1
1 648 922
Работа:936 046
Материалы:712 876
Дни:23
stdClass Object ( [id] => 179 [attribute_id] => 3 [name] => Деревянные [material_modifier] => 1 [work_modifier] => 1 [options] => Array ( [0] => 180 мм [1] => 220 мм [2] => 260 мм [3] => 320 мм ) [days] => [7,8,9,10] [material_price] => [7950,9458,11961,14472] [work_price] => [4037,4925,5812,7207] [image] => https://akademik-stroy.ru/wp-content/uploads/materials/derevyannye.jpg [area_modifier] => 155.39 [parent_name] => Стены 1 этаж (несущие) [parent_id] => 3 [material_sum] => 1556542 [work_sum] => 658675 [total_sum] => 2215217 [total_days] => 7 [display_material_sum] => 1 556 542 [display_work_sum] => 658 675 [display_total_sum] => 2 215 217 ) 1
2 215 217
Работа:658 675
Материалы:1 556 542
Дни:7
stdClass Object ( [id] => 181 [attribute_id] => 3 [name] => Камень [material_modifier] => 1 [work_modifier] => 1 [options] => Array ( [0] => 300 мм [1] => 400 мм [2] => 500 мм [3] => 600 мм ) [days] => [25,27,31,34] [material_price] => [5262,6844,8330,9815] [work_price] => [8331,9135,10427,11069] [image] => https://akademik-stroy.ru/wp-content/uploads/materials/kamen.jpg [area_modifier] => 155.39 [parent_name] => Стены 1 этаж (несущие) [parent_id] => 3 [material_sum] => 1030254 [work_sum] => 1359282 [total_sum] => 2389536 [total_days] => 25 [display_material_sum] => 1 030 254 [display_work_sum] => 1 359 282 [display_total_sum] => 2 389 536 ) 1
2 389 536
Работа:1 359 282
Материалы:1 030 254
Дни:25
stdClass Object ( [id] => 182 [attribute_id] => 3 [name] => Каркасно-щитовые [material_modifier] => 1 [work_modifier] => 1 [options] => Array ( [0] => 150 мм [1] => 200 мм [2] => 250 мм [3] => 300 мм [4] => 350 мм [5] => 400 мм ) [days] => [15,16,17,18,19,20] [material_price] => [2379,2639,2898,3458,3601,4175] [work_price] => [2538,2820,3134,3483,4062,5642] [image] => https://akademik-stroy.ru/wp-content/uploads/materials/karkasno-shchitovye.jpg [area_modifier] => 155.39 [parent_name] => Стены 1 этаж (несущие) [parent_id] => 3 [material_sum] => 465788 [work_sum] => 414099 [total_sum] => 879887 [total_days] => 15 [display_material_sum] => 465 788 [display_work_sum] => 414 099 [display_total_sum] => 879 887 ) 1
879 887
Работа:414 099
Материалы:465 788
Дни:15
stdClass Object ( [id] => 183 [attribute_id] => 3 [name] => Рубленные [material_modifier] => 1 [work_modifier] => 1 [options] => Array ( [0] => 150 мм [1] => 200 мм [2] => 250 мм [3] => 300 мм [4] => 350 мм [5] => 400 мм ) [days] => [15,16,17,18,17,18] [material_price] => [35950,50267,60583,75900,80217,100533] [work_price] => [9612,12816,16020,19224,22428,25632] [image] => https://akademik-stroy.ru/wp-content/uploads/materials/rublennye.jpg [area_modifier] => 155.39 [parent_name] => Стены 1 этаж (несущие) [parent_id] => 3 [material_sum] => 7038701 [work_sum] => 1568289 [total_sum] => 8606990 [total_days] => 15 [display_material_sum] => 7 038 701 [display_work_sum] => 1 568 289 [display_total_sum] => 8 606 990 ) 1
8 606 990
Работа:1 568 289
Материалы:7 038 701
Дни:15
stdClass Object ( [id] => 185 [attribute_id] => 3 [name] => Теплоблок [material_modifier] => 1 [work_modifier] => 1 [options] => Array ( [0] => 300 мм (с облицовкой, не покрашенный) [1] => 400 мм (с облицовкой, не покрашенный) [2] => 300 мм (с облицовкой, покрашенный) [3] => 400 мм (с облицовкой, покрашенный) ) [days] => [15,16,15,16] [material_price] => [2888,3729,3957,4258] [work_price] => [2564,3229,2949,3713] [image] => https://akademik-stroy.ru/wp-content/uploads/materials/teploblok.jpg [area_modifier] => 155.39 [parent_name] => Стены 1 этаж (несущие) [parent_id] => 3 [material_sum] => 565446 [work_sum] => 418341 [total_sum] => 983787 [total_days] => 15 [display_material_sum] => 565 446 [display_work_sum] => 418 341 [display_total_sum] => 983 787 ) 1
983 787
Работа:418 341
Материалы:565 446
Дни:15
stdClass Object ( [id] => 186 [attribute_id] => 3 [name] => Арболитовые блоки [material_modifier] => 1 [work_modifier] => 1 [options] => Array ( [0] => 300 мм [1] => 400 мм [2] => 600 мм ) [days] => [19,22,27] [material_price] => [3210,4475,5852] [work_price] => [4214,4788,5866] [image] => https://akademik-stroy.ru/wp-content/uploads/materials/arbolitovye-bloki.png [area_modifier] => 155.39 [parent_name] => Стены 1 этаж (несущие) [parent_id] => 3 [material_sum] => 628490 [work_sum] => 687554 [total_sum] => 1316044 [total_days] => 19 [display_material_sum] => 628 490 [display_work_sum] => 687 554 [display_total_sum] => 1 316 044 ) 1
1 316 044
Работа:687 554
Материалы:628 490
Дни:19
stdClass Object ( [id] => 187 [attribute_id] => 3 [name] => Полистиролбетон [material_modifier] => 1 [work_modifier] => 1 [options] => Array ( [0] => 300 мм [1] => 400 мм [2] => 600 мм ) [days] => [29,31,35] [material_price] => [2798,4573,5256] [work_price] => [5038,5851,6426] [image] => https://akademik-stroy.ru/wp-content/uploads/materials/polistirolbeton.jpg [area_modifier] => 155.39 [parent_name] => Стены 1 этаж (несущие) [parent_id] => 3 [material_sum] => 547824 [work_sum] => 821998 [total_sum] => 1369822 [total_days] => 29 [display_material_sum] => 547 824 [display_work_sum] => 821 998 [display_total_sum] => 1 369 822 ) 1
1 369 822
Работа:821 998
Материалы:547 824
Дни:29
stdClass Object ( [id] => 188 [attribute_id] => 3 [name] => Шлакоблок [material_modifier] => 1 [work_modifier] => 1 [options] => Array ( [0] => 400 мм [1] => 600 мм ) [days] => [15,16] [material_price] => [2391,3471] [work_price] => [2642,3662] [image] => https://akademik-stroy.ru/wp-content/uploads/materials/shlakoblok.jpg [area_modifier] => 155.39 [parent_name] => Стены 1 этаж (несущие) [parent_id] => 3 [material_sum] => 468137 [work_sum] => 431067 [total_sum] => 899204 [total_days] => 15 [display_material_sum] => 468 137 [display_work_sum] => 431 067 [display_total_sum] => 899 204 ) 1
899 204
Работа:431 067
Материалы:468 137
Дни:15
stdClass Object ( [id] => 189 [attribute_id] => 3 [name] => Теплая керамика [material_modifier] => 1 [work_modifier] => 1 [options] => Array ( [0] => 380 мм [1] => 380 мм Thermo [2] => 440 мм [3] => 510 мм ) [days] => [23,23,24,25] [material_price] => [4510,5098,6093,8013] [work_price] => [4737,4937,5903,6958] [image] => https://akademik-stroy.ru/wp-content/uploads/materials/teplaya-keramika.jpg [area_modifier] => 155.39 [parent_name] => Стены 1 этаж (несущие) [parent_id] => 3 [material_sum] => 883019 [work_sum] => 772887 [total_sum] => 1655906 [total_days] => 23 [display_material_sum] => 883 019 [display_work_sum] => 772 887 [display_total_sum] => 1 655 906 ) 1
1 655 906
Работа:772 887
Материалы:883 019
Дни:23
stdClass Object ( [id] => 190 [attribute_id] => 3 [name] => Несъемная опалубка [material_modifier] => 1 [work_modifier] => 1 [options] => Array ( [0] => 200 мм [1] => 250 мм [2] => 300 мм [3] => 350 мм ) [days] => [15,17,19,21] [material_price] => [3302,3902,4108,5008] [work_price] => [2100,2100,2300,2534] [image] => https://akademik-stroy.ru/wp-content/uploads/materials/nesemnaya-opalubka.jpg [area_modifier] => 155.39 [parent_name] => Стены 1 этаж (несущие) [parent_id] => 3 [material_sum] => 646503 [work_sum] => 342635 [total_sum] => 989138 [total_days] => 15 [display_material_sum] => 646 503 [display_work_sum] => 342 635 [display_total_sum] => 989 138 ) 1
989 138
Работа:342 635
Материалы:646 503
Дни:15
stdClass Object ( [id] => 251 [attribute_id] => 3 [name] => Бревно [material_modifier] => 1 [work_modifier] => 1 [options] => Array ( [0] => 260 мм [1] => 320 мм [2] => 360 мм [3] => 400 мм [4] => 500 мм ) [days] => [7,8,9,10,11] [material_price] => [1874,24045,26930,30972,38825] [work_price] => [5046,6207,6952,7716,9723] [image] => https://akademik-stroy.ru/wp-content/uploads/materials/sruby.jpg [area_modifier] => 155.39 [parent_name] => Стены 1 этаж (несущие) [parent_id] => 3 [material_sum] => 366913 [work_sum] => 823303 [total_sum] => 1190216 [total_days] => 7 [display_material_sum] => 366 913 [display_work_sum] => 823 303 [display_total_sum] => 1 190 216 ) 1
1 190 216
Работа:823 303
Материалы:366 913
Дни:7
Перекрытие первого этажа
stdClass Object ( [id] => 7 [attribute_id] => 4 [name] => Деревянные балки [material_modifier] => 1 [work_modifier] => 1 [options] => Array ( [0] => без утепления [1] => утепление 200 мм [2] => утепление 250 мм [3] => утепление 300 мм [4] => утепление 350 мм [5] => утепление 400 мм [6] => утепление 450 мм [7] => утепление 500 мм ) [days] => [8,9,9,9,11,12,13,14] [material_price] => [1634,2042,2344,2947,3149,3652,3354,3557] [work_price] => [1230,1339,1393,1426,1460,1513,1587,1620] [image] => https://akademik-stroy.ru/wp-content/uploads/materials/derevyannye-balki.png [area_modifier] => 155.39 [parent_name] => Перекрытие первого этажа [parent_id] => 4 [material_sum] => 319923 [work_sum] => 200686 [total_sum] => 520609 [total_days] => 8 [display_material_sum] => 319 923 [display_work_sum] => 200 686 [display_total_sum] => 520 609 ) 1
520 609
Работа:200 686
Материалы:319 923
Дни:8
stdClass Object ( [id] => 8 [attribute_id] => 4 [name] => Сборные ж/б плиты [material_modifier] => 1 [work_modifier] => 1 [options] => Array ( [0] => без утепления [1] => утепление 150 мм [2] => утепление 200 мм [3] => утепление 250 мм [4] => утепление 300 мм [5] => утепление 350 мм [6] => утепление 400 мм [7] => утепление 450 мм [8] => утепление 500 мм ) [days] => [13,15,15,15,15,15,15,15,15] [material_price] => [3067,5577,5928,6679,7730,8782,9833,10884,11935] [work_price] => [1520,1956,2102,2247,2392,2537,2684,2829,2974] [image] => https://akademik-stroy.ru/wp-content/uploads/materials/sbornye-zh-b-plity-2.jpg [area_modifier] => 155.39 [parent_name] => Перекрытие первого этажа [parent_id] => 4 [material_sum] => 600492 [work_sum] => 248002 [total_sum] => 848494 [total_days] => 13 [display_material_sum] => 600 492 [display_work_sum] => 248 002 [display_total_sum] => 848 494 ) 1
848 494
Работа:248 002
Материалы:600 492
Дни:13
stdClass Object ( [id] => 89 [attribute_id] => 4 [name] => Монолитная ж/б плита [material_modifier] => 1 [work_modifier] => 1 [options] => Array ( [0] => без утепления [1] => утепление 150 мм [2] => утепление 200 мм [3] => утепление 250 мм [4] => утепление 300 мм [5] => утепление 350 мм [6] => утепление 400 мм [7] => утепление 450 мм [8] => утепление 500 мм ) [days] => [18,20,20,20,20,20,20,20,20] [material_price] => [4837,6572,7224,7375,79426,8177,8728,9180,10031] [work_price] => [3348,3921,4112,4302,4493,4684,4875,5066,5256] [image] => https://akademik-stroy.ru/wp-content/uploads/materials/monolitnaya-zh-b-plita-2.jpg [area_modifier] => 155.39 [parent_name] => Перекрытие первого этажа [parent_id] => 4 [material_sum] => 947043 [work_sum] => 546258 [total_sum] => 1493301 [total_days] => 18 [display_material_sum] => 947 043 [display_work_sum] => 546 258 [display_total_sum] => 1 493 301 ) 1
1 493 301
Работа:546 258
Материалы:947 043
Дни:18
Стены 2 этаж (несущие)
stdClass Object ( [id] => 10 [attribute_id] => 5 [name] => Пеноблок [material_modifier] => 1 [work_modifier] => 1 [options] => Array ( [0] => 300 мм [1] => 400 мм [2] => 500 мм [3] => 600 мм ) [days] => [29,31,34,39] [material_price] => [3000,4000,4500,4937] [work_price] => [5033,5805,6400,8710] [image] => https://akademik-stroy.ru/wp-content/uploads/materials/penoblok.jpg [area_modifier] => 99.94 [parent_name] => Стены 2 этаж (несущие) [parent_id] => 5 [material_sum] => 377773 [work_sum] => 528148 [total_sum] => 905921 [total_days] => 29 [display_material_sum] => 377 773 [display_work_sum] => 528 148 [display_total_sum] => 905 921 ) 1
905 921
Работа:528 148
Материалы:377 773
Дни:29
stdClass Object ( [id] => 90 [attribute_id] => 5 [name] => Керамический блок [material_modifier] => 1 [work_modifier] => 1 [options] => Array ( [0] => 380 мм [1] => 380 мм Thermo [2] => 440 мм [3] => 510 мм ) [days] => [23,23,24,25] [material_price] => [4510,5098,6093,8013] [work_price] => [4737,4937,5903,6958] [image] => https://akademik-stroy.ru/wp-content/uploads/materials/keramicheskij-blok.jpg [area_modifier] => 99.94 [parent_name] => Стены 2 этаж (несущие) [parent_id] => 5 [material_sum] => 567919 [work_sum] => 497087 [total_sum] => 1065006 [total_days] => 23 [display_material_sum] => 567 919 [display_work_sum] => 497 087 [display_total_sum] => 1 065 006 ) 1
1 065 006
Работа:497 087
Материалы:567 919
Дни:23
stdClass Object ( [id] => 91 [attribute_id] => 5 [name] => Кирпич [material_modifier] => 1 [work_modifier] => 1 [options] => Array ( [0] => Кирпич 250 мм [1] => Кирпич 380 мм [2] => Кирпич 510 мм [3] => Кирпич 640 мм [4] => Кирпич 770 мм ) [days] => [30,30,31,33,36] [material_price] => [5500,7142,9206,10171,12235] [work_price] => [8736,10041,12018,15240,18462] [image] => https://akademik-stroy.ru/wp-content/uploads/materials/kirpich.jpg [area_modifier] => 99.94 [parent_name] => Стены 2 этаж (несущие) [parent_id] => 5 [material_sum] => 692584 [work_sum] => 916730 [total_sum] => 1609314 [total_days] => 30 [display_material_sum] => 692 584 [display_work_sum] => 916 730 [display_total_sum] => 1 609 314 ) 1
1 609 314
Работа:916 730
Материалы:692 584
Дни:30
stdClass Object ( [id] => 92 [attribute_id] => 5 [name] => Монолитные [material_modifier] => 1 [work_modifier] => 1 [options] => Array ( [0] => 150 мм [1] => 200 мм [2] => 250 мм [3] => 300 мм [4] => 350 мм [5] => 400 мм ) [days] => [45,46,47,49,50,53] [material_price] => [6545,7876,10175,12011,13908,15204] [work_price] => [5106,6444,7698,8552,9807,11461] [image] => https://akademik-stroy.ru/wp-content/uploads/materials/monolitnye.jpg [area_modifier] => 99.94 [parent_name] => Стены 2 этаж (несущие) [parent_id] => 5 [material_sum] => 824175 [work_sum] => 535808 [total_sum] => 1359983 [total_days] => 45 [display_material_sum] => 824 175 [display_work_sum] => 535 808 [display_total_sum] => 1 359 983 ) 1
1 359 983
Работа:535 808
Материалы:824 175
Дни:45
stdClass Object ( [id] => 93 [attribute_id] => 5 [name] => Клееный брус [material_modifier] => 1 [work_modifier] => 1 [options] => Array ( [0] => 160 мм [1] => 175 мм [2] => 200 мм [3] => 215 мм [4] => 240 мм [5] => 270 мм [6] => 282 мм ) [days] => [24,28,32,37,40,42,48] [material_price] => [16975,18773,19950,20545,21599,22159,23275] [work_price] => [4806,5287,5815,6397,7036,7740,8514] [image] => https://akademik-stroy.ru/wp-content/uploads/materials/kleenyj-brus.jpg [area_modifier] => 99.94 [parent_name] => Стены 2 этаж (несущие) [parent_id] => 5 [material_sum] => 2137567 [work_sum] => 504327 [total_sum] => 2641894 [total_days] => 24 [display_material_sum] => 2 137 567 [display_work_sum] => 504 327 [display_total_sum] => 2 641 894 ) 1
2 641 894
Работа:504 327
Материалы:2 137 567
Дни:24
stdClass Object ( [id] => 94 [attribute_id] => 5 [name] => Каркасные [material_modifier] => 1 [work_modifier] => 1 [options] => Array ( [0] => 150 мм [1] => 200 мм [2] => 250 мм [3] => 300 мм ) [days] => [15,16,17,18] [material_price] => [2379,2639,2898,3258] [work_price] => [2418,2686,2985,3716] [image] => https://akademik-stroy.ru/wp-content/uploads/materials/karkasnye.jpg [area_modifier] => 99.94 [parent_name] => Стены 2 этаж (несущие) [parent_id] => 5 [material_sum] => 299574 [work_sum] => 253738 [total_sum] => 553312 [total_days] => 15 [display_material_sum] => 299 574 [display_work_sum] => 253 738 [display_total_sum] => 553 312 ) 1
553 312
Работа:253 738
Материалы:299 574
Дни:15
stdClass Object ( [id] => 95 [attribute_id] => 5 [name] => СИП-панели [material_modifier] => 1 [work_modifier] => 1 [options] => Array ( [0] => 120 мм [1] => 170 мм [2] => 220 мм ) [days] => [7,7,7] [material_price] => [1210,1856,2292] [work_price] => [1410,1551,1706] [image] => https://akademik-stroy.ru/wp-content/uploads/materials/sip-paneli.jpg [area_modifier] => 99.94 [parent_name] => Стены 2 этаж (несущие) [parent_id] => 5 [material_sum] => 152369 [work_sum] => 147961 [total_sum] => 300330 [total_days] => 7 [display_material_sum] => 152 369 [display_work_sum] => 147 961 [display_total_sum] => 300 330 ) 1
300 330
Работа:147 961
Материалы:152 369
Дни:7
stdClass Object ( [id] => 96 [attribute_id] => 5 [name] => Сухой брус [material_modifier] => 1 [work_modifier] => 1 [options] => Array ( [0] => 150 мм [1] => 180 мм [2] => 200 мм ) [days] => [7,8,9] [material_price] => [6010,7190,8709] [work_price] => [3204,3845,4229] [image] => https://akademik-stroy.ru/wp-content/uploads/materials/suhoj-brus.jpg [area_modifier] => 99.94 [parent_name] => Стены 2 этаж (несущие) [parent_id] => 5 [material_sum] => 756806 [work_sum] => 336218 [total_sum] => 1093024 [total_days] => 7 [display_material_sum] => 756 806 [display_work_sum] => 336 218 [display_total_sum] => 1 093 024 ) 1
1 093 024
Работа:336 218
Материалы:756 806
Дни:7
stdClass Object ( [id] => 97 [attribute_id] => 5 [name] => Профилированный брус [material_modifier] => 1 [work_modifier] => 1 [options] => Array ( [0] => 150 мм [1] => 180 мм [2] => 200 мм ) [days] => [7,8,9] [material_price] => [8190,9228,10051] [work_price] => [3845,4614,5075] [image] => https://akademik-stroy.ru/wp-content/uploads/materials/profilirovannyj-brus.jpg [area_modifier] => 99.94 [parent_name] => Стены 2 этаж (несущие) [parent_id] => 5 [material_sum] => 1031321 [work_sum] => 403483 [total_sum] => 1434804 [total_days] => 7 [display_material_sum] => 1 031 321 [display_work_sum] => 403 483 [display_total_sum] => 1 434 804 ) 1
1 434 804
Работа:403 483
Материалы:1 031 321
Дни:7
stdClass Object ( [id] => 98 [attribute_id] => 5 [name] => Оцилиндрованное бревно [material_modifier] => 1 [work_modifier] => 1 [options] => Array ( [0] => 180 мм [1] => 220 мм [2] => 260 мм [3] => 320 мм ) [days] => [7,8,9,10] [material_price] => [75190,9532,10868,13116] [work_price] => [3845,4691,5535,6863] [image] => https://akademik-stroy.ru/wp-content/uploads/materials/ocilindrovannoe-brevno-1.jpg [area_modifier] => 99.94 [parent_name] => Стены 2 этаж (несущие) [parent_id] => 5 [material_sum] => 9468256 [work_sum] => 403483 [total_sum] => 9871739 [total_days] => 7 [display_material_sum] => 9 468 256 [display_work_sum] => 403 483 [display_total_sum] => 9 871 739 ) 1
9 871 739
Работа:403 483
Материалы:9 468 256
Дни:7
stdClass Object ( [id] => 99 [attribute_id] => 5 [name] => Срубы [material_modifier] => 1 [work_modifier] => 1 [options] => Array ( [0] => 260 мм [1] => 320 мм [2] => 360 мм [3] => 400 мм [4] => 500 мм ) [days] => [7,8,9,10,11] [material_price] => [16175,23709,26314,29069,32167] [work_price] => [4806,5911,6621,7349,9260] [image] => https://akademik-stroy.ru/wp-content/uploads/materials/suhoj-brus.jpg [area_modifier] => 99.94 [parent_name] => Стены 2 этаж (несущие) [parent_id] => 5 [material_sum] => 2036827 [work_sum] => 504327 [total_sum] => 2541154 [total_days] => 7 [display_material_sum] => 2 036 827 [display_work_sum] => 504 327 [display_total_sum] => 2 541 154 ) 1
2 541 154
Работа:504 327
Материалы:2 036 827
Дни:7
stdClass Object ( [id] => 194 [attribute_id] => 5 [name] => Брус [material_modifier] => 1 [work_modifier] => 1 [options] => Array ( [0] => 150 мм [1] => 180 мм [2] => 200 мм ) [days] => [10,13,15] [material_price] => [5127,6152,7367] [work_price] => [1602,1922,2115] [image] => https://akademik-stroy.ru/wp-content/uploads/materials/brus.jpg [area_modifier] => 99.94 [parent_name] => Стены 2 этаж (несущие) [parent_id] => 5 [material_sum] => 645614 [work_sum] => 168109 [total_sum] => 813723 [total_days] => 10 [display_material_sum] => 645 614 [display_work_sum] => 168 109 [display_total_sum] => 813 723 ) 1
813 723
Работа:168 109
Материалы:645 614
Дни:10
stdClass Object ( [id] => 195 [attribute_id] => 5 [name] => Газобетон [material_modifier] => 1 [work_modifier] => 1 [options] => Array ( [0] => 300 мм [1] => 375 мм [2] => 400 мм [3] => 500 мм [4] => 600 мм ) [days] => [29,31,35,37,44] [material_price] => [4298,5573,6356,7288,9119] [work_price] => [4538,5251,5926,6733,7195] [image] => https://akademik-stroy.ru/wp-content/uploads/materials/gazobeton.jpg [area_modifier] => 99.94 [parent_name] => Стены 2 этаж (несущие) [parent_id] => 5 [material_sum] => 541223 [work_sum] => 476204 [total_sum] => 1017427 [total_days] => 29 [display_material_sum] => 541 223 [display_work_sum] => 476 204 [display_total_sum] => 1 017 427 ) 1
1 017 427
Работа:476 204
Материалы:541 223
Дни:29
stdClass Object ( [id] => 196 [attribute_id] => 5 [name] => Блок [material_modifier] => 1 [work_modifier] => 1 [options] => Array ( [0] => 300 мм [1] => 375 мм [2] => 400 мм [3] => 500 мм [4] => 600 мм ) [days] => [29,31,35,37,44] [material_price] => [2698,3973,4356,6588,7119] [work_price] => [5038,5851,6426,8733,9195] [image] => https://akademik-stroy.ru/wp-content/uploads/materials/blok.jpg [area_modifier] => 99.94 [parent_name] => Стены 2 этаж (несущие) [parent_id] => 5 [material_sum] => 339744 [work_sum] => 528673 [total_sum] => 868417 [total_days] => 29 [display_material_sum] => 339 744 [display_work_sum] => 528 673 [display_total_sum] => 868 417 ) 1
868 417
Работа:528 673
Материалы:339 744
Дни:29
stdClass Object ( [id] => 197 [attribute_id] => 5 [name] => Газосиликатный блок [material_modifier] => 1 [work_modifier] => 1 [options] => Array ( [0] => 300 мм [1] => 375 мм [2] => 400 мм [3] => 500 мм [4] => 600 мм ) [days] => [29,31,35,37,44] [material_price] => [4298,5573,6356,7288,9119] [work_price] => [4538,5251,5926,6733,7195] [image] => https://akademik-stroy.ru/wp-content/uploads/materials/gazosilikatnyj-blok.jpg [area_modifier] => 99.94 [parent_name] => Стены 2 этаж (несущие) [parent_id] => 5 [material_sum] => 541223 [work_sum] => 476204 [total_sum] => 1017427 [total_days] => 29 [display_material_sum] => 541 223 [display_work_sum] => 476 204 [display_total_sum] => 1 017 427 ) 1
1 017 427
Работа:476 204
Материалы:541 223
Дни:29
stdClass Object ( [id] => 198 [attribute_id] => 5 [name] => Керамзитобетонный блок [material_modifier] => 1 [work_modifier] => 1 [options] => Array ( [0] => 300 мм [1] => 375 мм [2] => 400 мм [3] => 500 мм [4] => 600 мм ) [days] => [23,23,24,25,28] [material_price] => [3641,4298,5693,7613,9612] [work_price] => [5737,5737,6903,7958,8901] [image] => https://akademik-stroy.ru/wp-content/uploads/materials/keramzitobetonnyj-blok.jpg [area_modifier] => 99.94 [parent_name] => Стены 2 этаж (несущие) [parent_id] => 5 [material_sum] => 458491 [work_sum] => 602024 [total_sum] => 1060515 [total_days] => 23 [display_material_sum] => 458 491 [display_work_sum] => 602 024 [display_total_sum] => 1 060 515 ) 1
1 060 515
Работа:602 024
Материалы:458 491
Дни:23
stdClass Object ( [id] => 199 [attribute_id] => 5 [name] => Деревянные [material_modifier] => 1 [work_modifier] => 1 [options] => Array ( [0] => 180 мм [1] => 220 мм [2] => 260 мм [3] => 320 мм ) [days] => [7,8,9,10] [material_price] => [7950,9458,11961,14472] [work_price] => [4037,4925,5812,7207] [image] => https://akademik-stroy.ru/wp-content/uploads/materials/derevyannye.jpg [area_modifier] => 99.94 [parent_name] => Стены 2 этаж (несущие) [parent_id] => 5 [material_sum] => 1001099 [work_sum] => 423631 [total_sum] => 1424730 [total_days] => 7 [display_material_sum] => 1 001 099 [display_work_sum] => 423 631 [display_total_sum] => 1 424 730 ) 1
1 424 730
Работа:423 631
Материалы:1 001 099
Дни:7
stdClass Object ( [id] => 200 [attribute_id] => 5 [name] => Камень [material_modifier] => 1 [work_modifier] => 1 [options] => Array ( [0] => 300 мм [1] => 400 мм [2] => 500 мм [3] => 600 мм ) [days] => [25,27,31,34] [material_price] => [5262,6844,8330,9815] [work_price] => [8331,9135,10427,11069] [image] => https://akademik-stroy.ru/wp-content/uploads/materials/kamen.jpg [area_modifier] => 99.94 [parent_name] => Стены 2 этаж (несущие) [parent_id] => 5 [material_sum] => 662614 [work_sum] => 874230 [total_sum] => 1536844 [total_days] => 25 [display_material_sum] => 662 614 [display_work_sum] => 874 230 [display_total_sum] => 1 536 844 ) 1
1 536 844
Работа:874 230
Материалы:662 614
Дни:25
stdClass Object ( [id] => 201 [attribute_id] => 5 [name] => Каркасно-щитовые [material_modifier] => 1 [work_modifier] => 1 [options] => Array ( [0] => 150 мм [1] => 200 мм [2] => 250 мм [3] => 300 мм [4] => 350 мм [5] => 400 мм ) [days] => [15,16,17,18,19,20] [material_price] => [2379,2639,2898,3458,3601,4175] [work_price] => [2538,2820,3134,3483,4062,5642] [image] => https://akademik-stroy.ru/wp-content/uploads/materials/karkasno-shchitovye.jpg [area_modifier] => 99.94 [parent_name] => Стены 2 этаж (несущие) [parent_id] => 5 [material_sum] => 299574 [work_sum] => 266330 [total_sum] => 565904 [total_days] => 15 [display_material_sum] => 299 574 [display_work_sum] => 266 330 [display_total_sum] => 565 904 ) 1
565 904
Работа:266 330
Материалы:299 574
Дни:15
stdClass Object ( [id] => 202 [attribute_id] => 5 [name] => Рубленные [material_modifier] => 1 [work_modifier] => 1 [options] => Array ( [0] => 150 мм [1] => 200 мм [2] => 250 мм [3] => 300 мм [4] => 350 мм [5] => 400 мм ) [days] => [15,16,17,18,17,18] [material_price] => [35950,50267,60583,75900,80217,100533] [work_price] => [9612,12816,16020,19224,22428,25632] [image] => https://akademik-stroy.ru/wp-content/uploads/materials/rublennye.jpg [area_modifier] => 99.94 [parent_name] => Стены 2 этаж (несущие) [parent_id] => 5 [material_sum] => 4526982 [work_sum] => 1008654 [total_sum] => 5535636 [total_days] => 15 [display_material_sum] => 4 526 982 [display_work_sum] => 1 008 654 [display_total_sum] => 5 535 636 ) 1
5 535 636
Работа:1 008 654
Материалы:4 526 982
Дни:15
stdClass Object ( [id] => 203 [attribute_id] => 5 [name] => Теплоблок [material_modifier] => 1 [work_modifier] => 1 [options] => Array ( [0] => 300 мм (с облицовкой, не покрашенный) [1] => 400 мм (с облицовкой, не покрашенный) [2] => 300 мм (с облицовкой, покрашенный) [3] => 400 мм (с облицовкой, покрашенный) ) [days] => [15,16,15,16] [material_price] => [2888,3729,3957,4258] [work_price] => [2564,3229,2949,3713] [image] => https://akademik-stroy.ru/wp-content/uploads/materials/teploblok.jpg [area_modifier] => 99.94 [parent_name] => Стены 2 этаж (несущие) [parent_id] => 5 [material_sum] => 363670 [work_sum] => 269058 [total_sum] => 632728 [total_days] => 15 [display_material_sum] => 363 670 [display_work_sum] => 269 058 [display_total_sum] => 632 728 ) 1
632 728
Работа:269 058
Материалы:363 670
Дни:15
stdClass Object ( [id] => 204 [attribute_id] => 5 [name] => Арболитовые блоки [material_modifier] => 1 [work_modifier] => 1 [options] => Array ( [0] => 300 мм [1] => 400 мм [2] => 600 мм ) [days] => [19,22,27] [material_price] => [3210,4475,5852] [work_price] => [4214,4788,5866] [image] => https://akademik-stroy.ru/wp-content/uploads/materials/arbolitovye-bloki.png [area_modifier] => 99.94 [parent_name] => Стены 2 этаж (несущие) [parent_id] => 5 [material_sum] => 404217 [work_sum] => 442205 [total_sum] => 846422 [total_days] => 19 [display_material_sum] => 404 217 [display_work_sum] => 442 205 [display_total_sum] => 846 422 ) 1
846 422
Работа:442 205
Материалы:404 217
Дни:19
stdClass Object ( [id] => 205 [attribute_id] => 5 [name] => Полистиролбетон [material_modifier] => 1 [work_modifier] => 1 [options] => Array ( [0] => 300 мм [1] => 400 мм [2] => 600 мм ) [days] => [29,31,35] [material_price] => [2798,4573,5256] [work_price] => [5038,5851,6426] [image] => https://akademik-stroy.ru/wp-content/uploads/materials/polistirolbeton.jpg [area_modifier] => 99.94 [parent_name] => Стены 2 этаж (несущие) [parent_id] => 5 [material_sum] => 352336 [work_sum] => 528673 [total_sum] => 881009 [total_days] => 29 [display_material_sum] => 352 336 [display_work_sum] => 528 673 [display_total_sum] => 881 009 ) 1
881 009
Работа:528 673
Материалы:352 336
Дни:29
stdClass Object ( [id] => 206 [attribute_id] => 5 [name] => Шлакоблок [material_modifier] => 1 [work_modifier] => 1 [options] => Array ( [0] => 400 мм [1] => 600 мм ) [days] => [15,16] [material_price] => [2391,3471] [work_price] => [2642,3662] [image] => https://akademik-stroy.ru/wp-content/uploads/materials/shlakoblok.jpg [area_modifier] => 99.94 [parent_name] => Стены 2 этаж (несущие) [parent_id] => 5 [material_sum] => 301085 [work_sum] => 277244 [total_sum] => 578329 [total_days] => 15 [display_material_sum] => 301 085 [display_work_sum] => 277 244 [display_total_sum] => 578 329 ) 1
578 329
Работа:277 244
Материалы:301 085
Дни:15
stdClass Object ( [id] => 245 [attribute_id] => 5 [name] => Теплая керамика [material_modifier] => 1 [work_modifier] => 1 [options] => Array ( [0] => 380 мм [1] => 380 мм Thermo [2] => 440 мм [3] => 510 мм ) [days] => [10,10,11,12] [material_price] => [4510,5098,6093,8013] [work_price] => [4737,4937,5903,6958] [image] => https://akademik-stroy.ru/wp-content/uploads/materials/teplaya-keramika.jpg [area_modifier] => 99.94 [parent_name] => Стены 2 этаж (несущие) [parent_id] => 5 [material_sum] => 567919 [work_sum] => 497087 [total_sum] => 1065006 [total_days] => 10 [display_material_sum] => 567 919 [display_work_sum] => 497 087 [display_total_sum] => 1 065 006 ) 1
1 065 006
Работа:497 087
Материалы:567 919
Дни:10
stdClass Object ( [id] => 246 [attribute_id] => 5 [name] => Несъемная опалубка [material_modifier] => 1 [work_modifier] => 1 [options] => Array ( [0] => 380 мм [1] => 380 мм Thermo [2] => 440 мм [3] => 510 мм ) [days] => [10,10,11,12] [material_price] => [3302,3902,4108,5008] [work_price] => [2100,2100,2300,2534] [image] => https://akademik-stroy.ru/wp-content/uploads/materials/nesemnaya-opalubka.jpg [area_modifier] => 99.94 [parent_name] => Стены 2 этаж (несущие) [parent_id] => 5 [material_sum] => 415802 [work_sum] => 220368 [total_sum] => 636170 [total_days] => 10 [display_material_sum] => 415 802 [display_work_sum] => 220 368 [display_total_sum] => 636 170 ) 1
636 170
Работа:220 368
Материалы:415 802
Дни:10
stdClass Object ( [id] => 254 [attribute_id] => 5 [name] => Бревно [material_modifier] => 1 [work_modifier] => 1 [options] => Array ( [0] => 260 мм [1] => 320 мм [2] => 360 мм [3] => 400 мм [4] => 500 мм ) [days] => [7,8,9,10,11] [material_price] => [1874,24045,26930,30972,38825] [work_price] => [5046,6207,6952,7716,9723] [image] => https://akademik-stroy.ru/wp-content/uploads/materials/sruby.jpg [area_modifier] => 99.94 [parent_name] => Стены 2 этаж (несущие) [parent_id] => 5 [material_sum] => 235982 [work_sum] => 529512 [total_sum] => 765494 [total_days] => 7 [display_material_sum] => 235 982 [display_work_sum] => 529 512 [display_total_sum] => 765 494 ) 1
765 494
Работа:529 512
Материалы:235 982
Дни:7
Крыша (Скатная)
stdClass Object ( [id] => 164 [attribute_id] => 37 [name] => Металлочерепица [material_modifier] => 1 [work_modifier] => 1 [options] => Array ( ) [days] => [20] [material_price] => [6112] [work_price] => [5726] [image] => https://akademik-stroy.ru/wp-content/uploads/materials/metallocherepica.jpg [area_modifier] => 155.39 [parent_name] => Крыша (Скатная) [parent_id] => 37 [material_sum] => 1196677 [work_sum] => 934251 [total_sum] => 2130928 [total_days] => 20 [display_material_sum] => 1 196 677 [display_work_sum] => 934 251 [display_total_sum] => 2 130 928 ) 1
2 130 928
Работа:934 251
Материалы:1 196 677
Дни:20
stdClass Object ( [id] => 165 [attribute_id] => 37 [name] => Гибкая черепица [material_modifier] => 1 [work_modifier] => 1 [options] => Array ( ) [days] => [20] [material_price] => [6980] [work_price] => [5950] [image] => https://akademik-stroy.ru/wp-content/uploads/materials/gibkaya-cherepica.jpg [area_modifier] => 155.39 [parent_name] => Крыша (Скатная) [parent_id] => 37 [material_sum] => 1366624 [work_sum] => 970799 [total_sum] => 2337423 [total_days] => 20 [display_material_sum] => 1 366 624 [display_work_sum] => 970 799 [display_total_sum] => 2 337 423 ) 1
2 337 423
Работа:970 799
Материалы:1 366 624
Дни:20
stdClass Object ( [id] => 166 [attribute_id] => 37 [name] => Цементно-песчаная черепица [material_modifier] => 1 [work_modifier] => 1 [options] => Array ( ) [days] => [20] [material_price] => [10560] [work_price] => [9456] [image] => https://akademik-stroy.ru/wp-content/uploads/materials/cementno-peschanaya-cherepica.jpg [area_modifier] => 155.39 [parent_name] => Крыша (Скатная) [parent_id] => 37 [material_sum] => 2067557 [work_sum] => 1542836 [total_sum] => 3610393 [total_days] => 20 [display_material_sum] => 2 067 557 [display_work_sum] => 1 542 836 [display_total_sum] => 3 610 393 ) 1
3 610 393
Работа:1 542 836
Материалы:2 067 557
Дни:20
stdClass Object ( [id] => 167 [attribute_id] => 37 [name] => Композитная черепица [material_modifier] => 1 [work_modifier] => 1 [options] => Array ( ) [days] => [20] [material_price] => [9506] [work_price] => [8905] [image] => https://akademik-stroy.ru/wp-content/uploads/materials/kompozitnaya-cherepica.jpg [area_modifier] => 155.39 [parent_name] => Крыша (Скатная) [parent_id] => 37 [material_sum] => 1861193 [work_sum] => 1452935 [total_sum] => 3314128 [total_days] => 20 [display_material_sum] => 1 861 193 [display_work_sum] => 1 452 935 [display_total_sum] => 3 314 128 ) 1
3 314 128
Работа:1 452 935
Материалы:1 861 193
Дни:20
stdClass Object ( [id] => 168 [attribute_id] => 37 [name] => Керамическая черепица [material_modifier] => 1 [work_modifier] => 1 [options] => Array ( ) [days] => [20] [material_price] => [12750] [work_price] => [9456] [image] => https://akademik-stroy.ru/wp-content/uploads/materials/keramicheskaya-cherepica.jpg [area_modifier] => 155.39 [parent_name] => Крыша (Скатная) [parent_id] => 37 [material_sum] => 2496340 [work_sum] => 1542836 [total_sum] => 4039176 [total_days] => 20 [display_material_sum] => 2 496 340 [display_work_sum] => 1 542 836 [display_total_sum] => 4 039 176 ) 1
4 039 176
Работа:1 542 836
Материалы:2 496 340
Дни:20
stdClass Object ( [id] => 169 [attribute_id] => 37 [name] => Металлическая фальцевая [material_modifier] => 1 [work_modifier] => 1 [options] => Array ( ) [days] => [20] [material_price] => [8550] [work_price] => [8190] [image] => https://akademik-stroy.ru/wp-content/uploads/materials/metallicheskaya-falcevaya.jpg [area_modifier] => 155.39 [parent_name] => Крыша (Скатная) [parent_id] => 37 [material_sum] => 1674016 [work_sum] => 1336276 [total_sum] => 3010292 [total_days] => 20 [display_material_sum] => 1 674 016 [display_work_sum] => 1 336 276 [display_total_sum] => 3 010 292 ) 1
3 010 292
Работа:1 336 276
Материалы:1 674 016
Дни:20
stdClass Object ( [id] => 170 [attribute_id] => 37 [name] => Медная фальцевая [material_modifier] => 1 [work_modifier] => 1 [options] => Array ( ) [days] => [20] [material_price] => [20450] [work_price] => [16750] [image] => https://akademik-stroy.ru/wp-content/uploads/materials/mednaya-falcevaya.jpg [area_modifier] => 155.39 [parent_name] => Крыша (Скатная) [parent_id] => 37 [material_sum] => 4003934 [work_sum] => 2732922 [total_sum] => 6736856 [total_days] => 20 [display_material_sum] => 4 003 934 [display_work_sum] => 2 732 922 [display_total_sum] => 6 736 856 ) 1
6 736 856
Работа:2 732 922
Материалы:4 003 934
Дни:20
stdClass Object ( [id] => 171 [attribute_id] => 37 [name] => Зеленая кровля [material_modifier] => 1 [work_modifier] => 1 [options] => Array ( ) [days] => [20] [material_price] => [19850] [work_price] => [16780] [image] => https://akademik-stroy.ru/wp-content/uploads/materials/zelenaya-krovlya.jpg [area_modifier] => 155.39 [parent_name] => Крыша (Скатная) [parent_id] => 37 [material_sum] => 3886459 [work_sum] => 2737816 [total_sum] => 6624275 [total_days] => 20 [display_material_sum] => 3 886 459 [display_work_sum] => 2 737 816 [display_total_sum] => 6 624 275 ) 1
6 624 275
Работа:2 737 816
Материалы:3 886 459
Дни:20
stdClass Object ( [id] => 172 [attribute_id] => 37 [name] => Профлист [material_modifier] => 1 [work_modifier] => 1 [options] => Array ( ) [days] => [20] [material_price] => [3450] [work_price] => [3750] [image] => https://akademik-stroy.ru/wp-content/uploads/materials/proflist.jpg [area_modifier] => 155.39 [parent_name] => Крыша (Скатная) [parent_id] => 37 [material_sum] => 675480 [work_sum] => 611848 [total_sum] => 1287328 [total_days] => 20 [display_material_sum] => 675 480 [display_work_sum] => 611 848 [display_total_sum] => 1 287 328 ) 1
1 287 328
Работа:611 848
Материалы:675 480
Дни:20
Окна
stdClass Object ( [id] => 51 [attribute_id] => 26 [name] => Есть [material_modifier] => 1 [work_modifier] => 1 [options] => Array ( [0] => Профиль 58 мм, 3-камерный, стеклопакет 2-камерный до 32 мм [1] => Профиль 60 мм, 4-камерный, стеклопакет 2-камерный до 32 мм [2] => Профиль 70 мм, 5-камерный, стеклопакет 2-камерный до 40 мм [3] => Профиль 72 мм, 5-камерный, стеклопакет 2-камерный до 40 мм [4] => Алюминиевые окна Alutech профиль 72 мм, стеклопакет 2-камерный ) [days] => [3,3,3,3,3] [material_price] => [1339,2124,2867,3023,29596] [work_price] => [635,647,659,668,2579] [image] => https://akademik-stroy.ru/wp-content/uploads/materials/okna.jpg [area_modifier] => 207.2 [parent_name] => Окна [parent_id] => 26 [material_sum] => 349575 [work_sum] => 138151 [total_sum] => 487726 [total_days] => 3 [display_material_sum] => 349 575 [display_work_sum] => 138 151 [display_total_sum] => 487 726 ) 1
487 726
Работа:138 151
Материалы:349 575
Дни:3
stdClass Object ( [id] => 52 [attribute_id] => 26 [name] => Нет [material_modifier] => 2 [work_modifier] => 1 [options] => [days] => null [material_price] => null [work_price] => null [image] => https://akademik-stroy.ru/wp-content/uploads/materials/okna.jpg [area_modifier] => 207.2 [parent_name] => Окна [parent_id] => 26 [material_sum] => 0 [work_sum] => 0 [total_sum] => 0 [total_days] => 0 [display_material_sum] => 0 [display_work_sum] => 0 [display_total_sum] => 0 ) 1
0
Работа:0
Материалы:0
Дни:0
Двери входные
stdClass Object ( [id] => 53 [attribute_id] => 27 [name] => Есть [material_modifier] => 1 [work_modifier] => 1 [options] => Array ( ) [days] => [1] [material_price] => [10000] [work_price] => [5500] [image] => https://akademik-stroy.ru/wp-content/uploads/materials/dveri.jpg [area_modifier] => 1 [parent_name] => Двери входные [parent_id] => 27 [material_sum] => 12600 [work_sum] => 5775 [total_sum] => 18375 [total_days] => 1 [display_material_sum] => 12 600 [display_work_sum] => 5 775 [display_total_sum] => 18 375 ) 1
18 375
Работа:5 775
Материалы:12 600
Дни:1
stdClass Object ( [id] => 54 [attribute_id] => 27 [name] => Нет [material_modifier] => 1 [work_modifier] => 1 [options] => Array ( ) [days] => [0] [material_price] => [0] [work_price] => [0] [image] => https://akademik-stroy.ru/wp-content/uploads/materials/dveri.jpg [area_modifier] => 1 [parent_name] => Двери входные [parent_id] => 27 [material_sum] => 0 [work_sum] => 0 [total_sum] => 0 [total_days] => 0 [display_material_sum] => 0 [display_work_sum] => 0 [display_total_sum] => 0 ) 1
0
Работа:0
Материалы:0
Дни:0
Утепление кровли (Мансарда)
stdClass Object ( [id] => 25 [attribute_id] => 13 [name] => Нет [material_modifier] => 1 [work_modifier] => 1 [options] => Array ( ) [days] => [0] [material_price] => [0] [work_price] => [0] [image] => https://akademik-stroy.ru/wp-content/uploads/materials/mineralovata-krov.jpg [area_modifier] => 155.39 [parent_name] => Утепление кровли (Мансарда) [parent_id] => 13 [material_sum] => 0 [work_sum] => 0 [total_sum] => 0 [total_days] => 0 [display_material_sum] => 0 [display_work_sum] => 0 [display_total_sum] => 0 ) 1
0
Работа:0
Материалы:0
Дни:0
stdClass Object ( [id] => 26 [attribute_id] => 13 [name] => Минераловатный [material_modifier] => 1 [work_modifier] => 1 [options] => Array ( [0] => 50 мм [1] => 100 мм [2] => 150 мм [3] => 200 мм [4] => 250 мм [5] => 300 мм [6] => 350 мм [7] => 400 мм [8] => 450 мм [9] => 500 мм ) [days] => [5,5,6,6,6,7,7,7,8,8] [material_price] => [1158,1414,1772,2230,3602,4060,4974,5890,6408,7718] [work_price] => [650,846,846,1098,1318,1450,1596,1754,1930,2122] [image] => https://akademik-stroy.ru/wp-content/uploads/materials/mineralovata-krov.jpg [area_modifier] => 155.39 [parent_name] => Утепление кровли (Мансарда) [parent_id] => 13 [material_sum] => 226726 [work_sum] => 106054 [total_sum] => 332780 [total_days] => 5 [display_material_sum] => 226 726 [display_work_sum] => 106 054 [display_total_sum] => 332 780 ) 1
332 780
Работа:106 054
Материалы:226 726
Дни:5
stdClass Object ( [id] => 123 [attribute_id] => 13 [name] => Эковата (целлюлозная вата) [material_modifier] => 1 [work_modifier] => 1 [options] => Array ( [0] => 50 мм [1] => 100 мм [2] => 150 мм [3] => 200 мм [4] => 250 мм [5] => 300 мм [6] => 350 мм [7] => 400 мм [8] => 450 мм [9] => 500 мм ) [days] => [3,3,4,4,4,5,5,5,5,5] [material_price] => [820,1638,2458,3276,5734,6552,8190,9828,11466,13104] [work_price] => [234,304,304,396,474,522,574,632,694,764] [image] => https://akademik-stroy.ru/wp-content/uploads/materials/ehkovata-krov.jpg [area_modifier] => 155.39 [parent_name] => Утепление кровли (Мансарда) [parent_id] => 13 [material_sum] => 160549 [work_sum] => 38179 [total_sum] => 198728 [total_days] => 3 [display_material_sum] => 160 549 [display_work_sum] => 38 179 [display_total_sum] => 198 728 ) 1
198 728
Работа:38 179
Материалы:160 549
Дни:3
stdClass Object ( [id] => 124 [attribute_id] => 13 [name] => Экструдированный пенополистирол [material_modifier] => 1 [work_modifier] => 1 [options] => Array ( [0] => 50 мм [1] => 100 мм [2] => 150 мм [3] => 200 мм [4] => 250 мм [5] => 300 мм [6] => 350 мм [7] => 400 мм [8] => 450 мм [9] => 500 мм ) [days] => [3,3,4,4,4,5,5,5,5,6] [material_price] => [1146,2292,3438,4584,8020,9166,11458,13750,16040,18332] [work_price] => [390,508,508,660,790,870,958,1052,1158,1274] [image] => https://akademik-stroy.ru/wp-content/uploads/materials/epps-krov.jpg [area_modifier] => 155.39 [parent_name] => Утепление кровли (Мансарда) [parent_id] => 13 [material_sum] => 224377 [work_sum] => 63632 [total_sum] => 288009 [total_days] => 3 [display_material_sum] => 224 377 [display_work_sum] => 63 632 [display_total_sum] => 288 009 ) 1
288 009
Работа:63 632
Материалы:224 377
Дни:3
stdClass Object ( [id] => 125 [attribute_id] => 13 [name] => ПСБ (ППС-пенополистирол) [material_modifier] => 1 [work_modifier] => 1 [options] => Array ( [0] => 50 мм [1] => 100 мм [2] => 150 мм [3] => 200 мм [4] => 250 мм [5] => 300 мм [6] => 350 мм [7] => 400 мм [8] => 450 мм [9] => 500 мм ) [days] => [3,3,4,4,4,5,5,5,5,6] [material_price] => [476,954,1430,1906,3336,3814,4766,5720,6674,7626] [work_price] => [390,508,508,660,790,870,958,1052,1158,1274] [image] => https://akademik-stroy.ru/wp-content/uploads/materials/psb-krov.jpg [area_modifier] => 155.39 [parent_name] => Утепление кровли (Мансарда) [parent_id] => 13 [material_sum] => 93197 [work_sum] => 63632 [total_sum] => 156829 [total_days] => 3 [display_material_sum] => 93 197 [display_work_sum] => 63 632 [display_total_sum] => 156 829 ) 1
156 829
Работа:63 632
Материалы:93 197
Дни:3
stdClass Object ( [id] => 126 [attribute_id] => 13 [name] => ППУ (Пенополиуретан) [material_modifier] => 1 [work_modifier] => 1 [options] => Array ( [0] => 50 мм [1] => 100 мм [2] => 150 мм [3] => 200 мм [4] => 250 мм [5] => 300 мм [6] => 350 мм [7] => 400 мм [8] => 450 мм [9] => 500 мм ) [days] => [2,2,3,3,3,3,4,4,4,4] [material_price] => [2080,4160,6240,8320,14560,16640,20800,24960,29120,33280] [work_price] => [234,304,304,396,474,522,574,632,694,764] [image] => https://akademik-stroy.ru/wp-content/uploads/materials/ppu-krov.jpg [area_modifier] => 155.39 [parent_name] => Утепление кровли (Мансарда) [parent_id] => 13 [material_sum] => 407246 [work_sum] => 38179 [total_sum] => 445425 [total_days] => 2 [display_material_sum] => 407 246 [display_work_sum] => 38 179 [display_total_sum] => 445 425 ) 1
445 425
Работа:38 179
Материалы:407 246
Дни:2
stdClass Object ( [id] => 127 [attribute_id] => 13 [name] => PIR-плиты (пенополиизоцианурат) [material_modifier] => 1 [work_modifier] => 1 [options] => Array ( [0] => 50 мм [1] => 100 мм [2] => 150 мм [3] => 200 мм [4] => 250 мм [5] => 300 мм [6] => 350 мм [7] => 400 мм [8] => 450 мм [9] => 500 мм ) [days] => [3,3,4,4,4,5,5,5,5,6] [material_price] => [2646,5290,7936,10580,18516,21162,26452,31742,37032,42324] [work_price] => [390,508,508,660,790,870,958,1052,1158,1274] [image] => https://akademik-stroy.ru/wp-content/uploads/materials/pir-krov.jpg [area_modifier] => 155.39 [parent_name] => Утепление кровли (Мансарда) [parent_id] => 13 [material_sum] => 518064 [work_sum] => 63632 [total_sum] => 581696 [total_days] => 3 [display_material_sum] => 518 064 [display_work_sum] => 63 632 [display_total_sum] => 581 696 ) 1
581 696
Работа:63 632
Материалы:518 064
Дни:3
Мансардные окна
stdClass Object ( [id] => 27 [attribute_id] => 14 [name] => Нет [material_modifier] => 1 [work_modifier] => 1 [options] => Array ( ) [days] => [0] [material_price] => [0] [work_price] => [0] [image] => https://akademik-stroy.ru/wp-content/uploads/materials/mansardnye-okna-2.jpg [area_modifier] => 1 [parent_name] => Мансардные окна [parent_id] => 14 [material_sum] => 0 [work_sum] => 0 [total_sum] => 0 [total_days] => 0 [display_material_sum] => 0 [display_work_sum] => 0 [display_total_sum] => 0 ) 1
0
Работа:0
Материалы:0
Дни:0
stdClass Object ( [id] => 28 [attribute_id] => 14 [name] => Есть [material_modifier] => 1 [work_modifier] => 1 [options] => Array ( [0] => 55x78 [1] => 55x98 ) [days] => [6,7] [material_price] => [47480,68700] [work_price] => [17900,19500] [image] => https://akademik-stroy.ru/wp-content/uploads/materials/mansardnye-okna-2.jpg [area_modifier] => 1 [parent_name] => Мансардные окна [parent_id] => 14 [material_sum] => 59825 [work_sum] => 18795 [total_sum] => 78620 [total_days] => 6 [display_material_sum] => 59 825 [display_work_sum] => 18 795 [display_total_sum] => 78 620 ) 1
78 620
Работа:18 795
Материалы:59 825
Дни:6
Подшивка кровли
stdClass Object ( [id] => 29 [attribute_id] => 15 [name] => Нет [material_modifier] => 1 [work_modifier] => 1 [options] => Array ( ) [days] => [0] [material_price] => [0] [work_price] => [0] [image] => https://akademik-stroy.ru/wp-content/uploads/materials/sofit.jpg [area_modifier] => 155.39 [parent_name] => Подшивка кровли [parent_id] => 15 [material_sum] => 0 [work_sum] => 0 [total_sum] => 0 [total_days] => 0 [display_material_sum] => 0 [display_work_sum] => 0 [display_total_sum] => 0 ) 1
0
Работа:0
Материалы:0
Дни:0
stdClass Object ( [id] => 30 [attribute_id] => 15 [name] => Есть [material_modifier] => 1 [work_modifier] => 1 [options] => Array ( [0] => Софиты (ПВХ) [1] => Cedral [2] => ДПК [3] => Планкен ) [days] => [7,10,9,8] [material_price] => [1803,3213,3025,3150] [work_price] => [1529,2188,2075,1923] [image] => https://akademik-stroy.ru/wp-content/uploads/materials/sofit.jpg [area_modifier] => 155.39 [parent_name] => Подшивка кровли [parent_id] => 15 [material_sum] => 353012 [work_sum] => 249471 [total_sum] => 602483 [total_days] => 7 [display_material_sum] => 353 012 [display_work_sum] => 249 471 [display_total_sum] => 602 483 ) 1
602 483
Работа:249 471
Материалы:353 012
Дни:7
Водосточная система
stdClass Object ( [id] => 31 [attribute_id] => 16 [name] => Нет [material_modifier] => 1 [work_modifier] => 1 [options] => Array ( ) [days] => [0] [material_price] => [0] [work_price] => [0] [image] => https://akademik-stroy.ru/wp-content/uploads/materials/docke-standard-pvh.jpg [area_modifier] => 155.39 [parent_name] => Водосточная система [parent_id] => 16 [material_sum] => 0 [work_sum] => 0 [total_sum] => 0 [total_days] => 0 [display_material_sum] => 0 [display_work_sum] => 0 [display_total_sum] => 0 ) 1
0
Работа:0
Материалы:0
Дни:0
stdClass Object ( [id] => 32 [attribute_id] => 16 [name] => Есть [material_modifier] => 1 [work_modifier] => 1 [options] => Array ( [0] => Döcke Standard (ПВХ) [1] => Металлические Grand Line ) [days] => [7,7] [material_price] => [1842,2703] [work_price] => [1491,1529] [image] => https://akademik-stroy.ru/wp-content/uploads/materials/docke-standard-pvh.jpg [area_modifier] => 155.39 [parent_name] => Водосточная система [parent_id] => 16 [material_sum] => 360648 [work_sum] => 243271 [total_sum] => 603919 [total_days] => 7 [display_material_sum] => 360 648 [display_work_sum] => 243 271 [display_total_sum] => 603 919 ) 1
603 919
Работа:243 271
Материалы:360 648
Дни:7
Дополнительное утепление наружных стен
stdClass Object ( [id] => 33 [attribute_id] => 17 [name] => Нет [material_modifier] => 1 [work_modifier] => 1 [options] => Array ( ) [days] => [0] [material_price] => [0] [work_price] => [0] [image] => https://akademik-stroy.ru/wp-content/uploads/materials/mineralovata.jpg [area_modifier] => 255.33 [parent_name] => Дополнительное утепление наружных стен [parent_id] => 17 [material_sum] => 0 [work_sum] => 0 [total_sum] => 0 [total_days] => 0 [display_material_sum] => 0 [display_work_sum] => 0 [display_total_sum] => 0 ) 1
0
Работа:0
Материалы:0
Дни:0
stdClass Object ( [id] => 34 [attribute_id] => 17 [name] => Минераловатный [material_modifier] => 1 [work_modifier] => 1 [options] => Array ( [0] => 50 мм [1] => 100 мм [2] => 150 мм [3] => 200 мм [4] => 250 мм [5] => 300 мм ) [days] => [7,8,10,12,14,15] [material_price] => [3437,3613,3803,3915,4601,4830] [work_price] => [2325,2423,2523,2749,2859,3025] [image] => https://akademik-stroy.ru/wp-content/uploads/materials/mineralovata.jpg [area_modifier] => 255.33 [parent_name] => Дополнительное утепление наружных стен [parent_id] => 17 [material_sum] => 1105737 [work_sum] => 623324 [total_sum] => 1729061 [total_days] => 7 [display_material_sum] => 1 105 737 [display_work_sum] => 623 324 [display_total_sum] => 1 729 061 ) 1
1 729 061
Работа:623 324
Материалы:1 105 737
Дни:7
stdClass Object ( [id] => 128 [attribute_id] => 17 [name] => Эковата (целлюлозная вата) [material_modifier] => 1 [work_modifier] => 1 [options] => Array ( [0] => 50 мм [1] => 100 мм [2] => 150 мм [3] => 200 мм [4] => 250 мм [5] => 300 мм ) [days] => [3,4,5,6,7,8] [material_price] => [810,1319,1629,1838,2267,2676] [work_price] => [1225,1323,1423,1549,1659,1725] [image] => https://akademik-stroy.ru/wp-content/uploads/materials/ehkovata.jpg [area_modifier] => 255.33 [parent_name] => Дополнительное утепление наружных стен [parent_id] => 17 [material_sum] => 260590 [work_sum] => 328418 [total_sum] => 589008 [total_days] => 3 [display_material_sum] => 260 590 [display_work_sum] => 328 418 [display_total_sum] => 589 008 ) 1
589 008
Работа:328 418
Материалы:260 590
Дни:3
stdClass Object ( [id] => 129 [attribute_id] => 17 [name] => Экструдированный пенополистирол [material_modifier] => 1 [work_modifier] => 1 [options] => Array ( [0] => 50 мм [1] => 100 мм [2] => 150 мм [3] => 200 мм [4] => 250 мм [5] => 300 мм ) [days] => [5,6,7,8,9,10] [material_price] => [4560,4300,5119,6292,7010,8583] [work_price] => [1795,1954,2254,2330,2595,2735] [image] => https://akademik-stroy.ru/wp-content/uploads/materials/epps.jpg [area_modifier] => 255.33 [parent_name] => Дополнительное утепление наружных стен [parent_id] => 17 [material_sum] => 1467024 [work_sum] => 481233 [total_sum] => 1948257 [total_days] => 5 [display_material_sum] => 1 467 024 [display_work_sum] => 481 233 [display_total_sum] => 1 948 257 ) 1
1 948 257
Работа:481 233
Материалы:1 467 024
Дни:5
stdClass Object ( [id] => 130 [attribute_id] => 17 [name] => ПСБ (ППС-пенополистирол) [material_modifier] => 1 [work_modifier] => 1 [options] => Array ( [0] => 50 мм [1] => 100 мм [2] => 150 мм [3] => 200 мм [4] => 250 мм [5] => 300 мм ) [days] => [5,6,7,8,9,10] [material_price] => [4822,5200,5819,6292,7010,7583] [work_price] => [1795,1954,2254,2330,2595,2735] [image] => https://akademik-stroy.ru/wp-content/uploads/materials/psb.jpg [area_modifier] => 255.33 [parent_name] => Дополнительное утепление наружных стен [parent_id] => 17 [material_sum] => 1551314 [work_sum] => 481233 [total_sum] => 2032547 [total_days] => 5 [display_material_sum] => 1 551 314 [display_work_sum] => 481 233 [display_total_sum] => 2 032 547 ) 1
2 032 547
Работа:481 233
Материалы:1 551 314
Дни:5
stdClass Object ( [id] => 131 [attribute_id] => 17 [name] => ППУ (Пенополиуретан) [material_modifier] => 1 [work_modifier] => 1 [options] => Array ( [0] => 50 мм [1] => 100 мм [2] => 150 мм [3] => 200 мм [4] => 250 мм [5] => 300 мм ) [days] => [3,4,5,6,7,8] [material_price] => [2860,3400,4219,4592,5010,5583] [work_price] => [729,900,980,1120,1280,1530] [image] => https://akademik-stroy.ru/wp-content/uploads/materials/ppu.jpg [area_modifier] => 255.33 [parent_name] => Дополнительное утепление наружных стен [parent_id] => 17 [material_sum] => 920107 [work_sum] => 195442 [total_sum] => 1115549 [total_days] => 3 [display_material_sum] => 920 107 [display_work_sum] => 195 442 [display_total_sum] => 1 115 549 ) 1
1 115 549
Работа:195 442
Материалы:920 107
Дни:3
stdClass Object ( [id] => 132 [attribute_id] => 17 [name] => PIR-плиты (пенополиизоцианурат) [material_modifier] => 1 [work_modifier] => 1 [options] => Array ( [0] => 50 мм [1] => 100 мм [2] => 150 мм [3] => 200 мм [4] => 250 мм [5] => 300 мм ) [days] => [5,6,7,8,9,10] [material_price] => [8323,15645,20968,25900,29258,30581] [work_price] => [800,900,970,1150,1280,1330] [image] => https://akademik-stroy.ru/wp-content/uploads/materials/pir.jpg [area_modifier] => 255.33 [parent_name] => Дополнительное утепление наружных стен [parent_id] => 17 [material_sum] => 2677641 [work_sum] => 214477 [total_sum] => 2892118 [total_days] => 5 [display_material_sum] => 2 677 641 [display_work_sum] => 214 477 [display_total_sum] => 2 892 118 ) 1
2 892 118
Работа:214 477
Материалы:2 677 641
Дни:5
Наружная отделка фасада
stdClass Object ( [id] => 37 [attribute_id] => 19 [name] => Нет [material_modifier] => 1 [work_modifier] => 1 [options] => Array ( ) [days] => [0] [material_price] => [0] [work_price] => [0] [image] => https://akademik-stroy.ru/wp-content/uploads/materials/imitaciya-brusa.jpg [area_modifier] => 255.33 [parent_name] => Наружная отделка фасада [parent_id] => 19 [material_sum] => 0 [work_sum] => 0 [total_sum] => 0 [total_days] => 0 [display_material_sum] => 0 [display_work_sum] => 0 [display_total_sum] => 0 ) 1
0
Работа:0
Материалы:0
Дни:0
stdClass Object ( [id] => 38 [attribute_id] => 19 [name] => Имитация бруса [material_modifier] => 1 [work_modifier] => 1 [options] => Array ( [0] => Сосна [1] => Ель [2] => Лиственница ) [days] => [20,20,20] [material_price] => [2994,2762,4954] [work_price] => [1397,1231,1577] [image] => https://akademik-stroy.ru/wp-content/uploads/materials/imitaciya-brusa.jpg [area_modifier] => 255.33 [parent_name] => Наружная отделка фасада [parent_id] => 19 [material_sum] => 963217 [work_sum] => 374531 [total_sum] => 1337748 [total_days] => 20 [display_material_sum] => 963 217 [display_work_sum] => 374 531 [display_total_sum] => 1 337 748 ) 1
1 337 748
Работа:374 531
Материалы:963 217
Дни:20
stdClass Object ( [id] => 136 [attribute_id] => 19 [name] => Планкен [material_modifier] => 1 [work_modifier] => 1 [options] => Array ( [0] => Сосна [1] => Ель [2] => Лиственница ) [days] => [20,20,20] [material_price] => [3194,2862,5154] [work_price] => [1537,1354,1735] [image] => https://akademik-stroy.ru/wp-content/uploads/materials/planken.jpg [area_modifier] => 255.33 [parent_name] => Наружная отделка фасада [parent_id] => 19 [material_sum] => 1027560 [work_sum] => 412064 [total_sum] => 1439624 [total_days] => 20 [display_material_sum] => 1 027 560 [display_work_sum] => 412 064 [display_total_sum] => 1 439 624 ) 1
1 439 624
Работа:412 064
Материалы:1 027 560
Дни:20
stdClass Object ( [id] => 137 [attribute_id] => 19 [name] => Штукатурка [material_modifier] => 1 [work_modifier] => 1 [options] => Array ( [0] => Цементно-песчаная (минеральная) [1] => Мокрый фасад ) [days] => [35,35] [material_price] => [2231,3938] [work_price] => [1202,2422] [image] => https://akademik-stroy.ru/wp-content/uploads/materials/shtukaturka.jpg [area_modifier] => 255.33 [parent_name] => Наружная отделка фасада [parent_id] => 19 [material_sum] => 717748 [work_sum] => 322252 [total_sum] => 1040000 [total_days] => 35 [display_material_sum] => 717 748 [display_work_sum] => 322 252 [display_total_sum] => 1 040 000 ) 1
1 040 000
Работа:322 252
Материалы:717 748
Дни:35
stdClass Object ( [id] => 138 [attribute_id] => 19 [name] => Облицовочный кирпич [material_modifier] => 1 [work_modifier] => 1 [options] => Array ( [0] => Керамический [1] => Клинкерный [2] => Ручной формовки [3] => Гиперпрессованный [4] => Силикатный кирпич ) [days] => [45,45,45,45,45] [material_price] => [8174,9148,1040,1257,5876] [work_price] => [3240,3758,4536,4017,3369] [image] => https://akademik-stroy.ru/wp-content/uploads/materials/oblicovochnyj-kirpich.jpg [area_modifier] => 255.33 [parent_name] => Наружная отделка фасада [parent_id] => 19 [material_sum] => 2629705 [work_sum] => 868633 [total_sum] => 3498338 [total_days] => 45 [display_material_sum] => 2 629 705 [display_work_sum] => 868 633 [display_total_sum] => 3 498 338 ) 1
3 498 338
Работа:868 633
Материалы:2 629 705
Дни:45
stdClass Object ( [id] => 139 [attribute_id] => 19 [name] => Фасадная плитка [material_modifier] => 1 [work_modifier] => 1 [options] => Array ( [0] => Клинкерная [1] => Керамическая [2] => Плитка ручной формовки ) [days] => [40,40,40] [material_price] => [2974,1487,3470] [work_price] => [3007,2592,3629] [image] => https://akademik-stroy.ru/wp-content/uploads/materials/fasadnaya-plitka.jpg [area_modifier] => 255.33 [parent_name] => Наружная отделка фасада [parent_id] => 19 [material_sum] => 956783 [work_sum] => 806166 [total_sum] => 1762949 [total_days] => 40 [display_material_sum] => 956 783 [display_work_sum] => 806 166 [display_total_sum] => 1 762 949 ) 1
1 762 949
Работа:806 166
Материалы:956 783
Дни:40
stdClass Object ( [id] => 140 [attribute_id] => 19 [name] => Сайдинг [material_modifier] => 1 [work_modifier] => 1 [options] => Array ( [0] => Виниловый [1] => Металлический [2] => Фиброцементный ) [days] => [20,20,20] [material_price] => [1263,1944,4147] [work_price] => [1263,1944,2074] [image] => https://akademik-stroy.ru/wp-content/uploads/materials/sajding.jpg [area_modifier] => 255.33 [parent_name] => Наружная отделка фасада [parent_id] => 19 [material_sum] => 406327 [work_sum] => 338606 [total_sum] => 744933 [total_days] => 20 [display_material_sum] => 406 327 [display_work_sum] => 338 606 [display_total_sum] => 744 933 ) 1
744 933
Работа:338 606
Материалы:406 327
Дни:20
stdClass Object ( [id] => 141 [attribute_id] => 19 [name] => Камень [material_modifier] => 1 [work_modifier] => 1 [options] => Array ( [0] => Травертин [1] => Дагестанский [2] => Искусственный [3] => Натуральный [4] => Керамогранит ) [days] => [45,45,45,45,45] [material_price] => [4536,3888,2592,3240,2462] [work_price] => [3240,3240,2462,3110,1944] [image] => https://akademik-stroy.ru/wp-content/uploads/materials/kamen-1.jpg [area_modifier] => 255.33 [parent_name] => Наружная отделка фасада [parent_id] => 19 [material_sum] => 1459303 [work_sum] => 868633 [total_sum] => 2327936 [total_days] => 45 [display_material_sum] => 1 459 303 [display_work_sum] => 868 633 [display_total_sum] => 2 327 936 ) 1
2 327 936
Работа:868 633
Материалы:1 459 303
Дни:45
stdClass Object ( [id] => 142 [attribute_id] => 19 [name] => Термопанели [material_modifier] => 1 [work_modifier] => 1 [options] => Array ( ) [days] => [20] [material_price] => [6221] [work_price] => [2333] [image] => https://akademik-stroy.ru/wp-content/uploads/materials/termo.png [area_modifier] => 255.33 [parent_name] => Наружная отделка фасада [parent_id] => 19 [material_sum] => 2001394 [work_sum] => 625469 [total_sum] => 2626863 [total_days] => 20 [display_material_sum] => 2 001 394 [display_work_sum] => 625 469 [display_total_sum] => 2 626 863 ) 1
2 626 863
Работа:625 469
Материалы:2 001 394
Дни:20
stdClass Object ( [id] => 143 [attribute_id] => 19 [name] => Плитка HAUBERK [material_modifier] => 1 [work_modifier] => 1 [options] => Array ( ) [days] => [20] [material_price] => [2786] [work_price] => [1944] [image] => https://akademik-stroy.ru/wp-content/uploads/materials/hauberk.jpg [area_modifier] => 255.33 [parent_name] => Наружная отделка фасада [parent_id] => 19 [material_sum] => 896300 [work_sum] => 521180 [total_sum] => 1417480 [total_days] => 20 [display_material_sum] => 896 300 [display_work_sum] => 521 180 [display_total_sum] => 1 417 480 ) 1
1 417 480
Работа:521 180
Материалы:896 300
Дни:20
stdClass Object ( [id] => 144 [attribute_id] => 19 [name] => Фальцевый фасад [material_modifier] => 1 [work_modifier] => 1 [options] => Array ( ) [days] => [20] [material_price] => [3240] [work_price] => [2592] [image] => https://akademik-stroy.ru/wp-content/uploads/materials/falcevyj-fasad.jpg [area_modifier] => 255.33 [parent_name] => Наружная отделка фасада [parent_id] => 19 [material_sum] => 1042359 [work_sum] => 694906 [total_sum] => 1737265 [total_days] => 20 [display_material_sum] => 1 042 359 [display_work_sum] => 694 906 [display_total_sum] => 1 737 265 ) 1
1 737 265
Работа:694 906
Материалы:1 042 359
Дни:20
stdClass Object ( [id] => 145 [attribute_id] => 19 [name] => Комбинированный [material_modifier] => 1 [work_modifier] => 1 [options] => Array ( ) [days] => [20] [material_price] => [4629] [work_price] => [3499] [image] => https://akademik-stroy.ru/wp-content/uploads/materials/Kombinirovannyj.jpg [area_modifier] => 255.33 [parent_name] => Наружная отделка фасада [parent_id] => 19 [material_sum] => 1489222 [work_sum] => 938070 [total_sum] => 2427292 [total_days] => 20 [display_material_sum] => 1 489 222 [display_work_sum] => 938 070 [display_total_sum] => 2 427 292 ) 1
2 427 292
Работа:938 070
Материалы:1 489 222
Дни:20
stdClass Object ( [id] => 257 [attribute_id] => 19 [name] => Японские фиброцементные [material_modifier] => 1 [work_modifier] => 1 [options] => Array ( ) [days] => [20] [material_price] => [7043] [work_price] => [2993] [image] => https://akademik-stroy.ru/wp-content/uploads/materials/paneli.jpg [area_modifier] => 255.33 [parent_name] => Наружная отделка фасада [parent_id] => 19 [material_sum] => 2265844 [work_sum] => 802413 [total_sum] => 3068257 [total_days] => 20 [display_material_sum] => 2 265 844 [display_work_sum] => 802 413 [display_total_sum] => 3 068 257 ) 1
3 068 257
Работа:802 413
Материалы:2 265 844
Дни:20
stdClass Object ( [id] => 258 [attribute_id] => 19 [name] => Панели Каньон [material_modifier] => 1 [work_modifier] => 1 [options] => Array ( ) [days] => [20] [material_price] => [4543] [work_price] => [2592] [image] => https://akademik-stroy.ru/wp-content/uploads/materials/kanon.png [area_modifier] => 255.33 [parent_name] => Наружная отделка фасада [parent_id] => 19 [material_sum] => 1461555 [work_sum] => 694906 [total_sum] => 2156461 [total_days] => 20 [display_material_sum] => 1 461 555 [display_work_sum] => 694 906 [display_total_sum] => 2 156 461 ) 1
2 156 461
Работа:694 906
Материалы:1 461 555
Дни:20
Террасы, крыльца, навесы
stdClass Object ( [id] => 39 [attribute_id] => 20 [name] => Нет [material_modifier] => 1 [work_modifier] => 1 [options] => Array ( ) [days] => [0] [material_price] => [0] [work_price] => [0] [image] => https://akademik-stroy.ru/wp-content/uploads/materials/terrasy.jpg [area_modifier] => 30 [parent_name] => Террасы, крыльца, навесы [parent_id] => 20 [material_sum] => 0 [work_sum] => 0 [total_sum] => 0 [total_days] => 0 [display_material_sum] => 0 [display_work_sum] => 0 [display_total_sum] => 0 ) 1
0
Работа:0
Материалы:0
Дни:0
stdClass Object ( [id] => 40 [attribute_id] => 20 [name] => Есть [material_modifier] => 1 [work_modifier] => 1 [options] => Array ( ) [days] => [5] [material_price] => [10450] [work_price] => [1950] [image] => https://akademik-stroy.ru/wp-content/uploads/materials/terrasy.jpg [area_modifier] => 30 [parent_name] => Террасы, крыльца, навесы [parent_id] => 20 [material_sum] => 395010 [work_sum] => 61425 [total_sum] => 456435 [total_days] => 5 [display_material_sum] => 395 010 [display_work_sum] => 61 425 [display_total_sum] => 456 435 ) 1
456 435
Работа:61 425
Материалы:395 010
Дни:5
Балконы
stdClass Object ( [id] => 41 [attribute_id] => 21 [name] => Нет [material_modifier] => 1 [work_modifier] => 1 [options] => Array ( ) [days] => [0] [material_price] => [0] [work_price] => [0] [image] => https://akademik-stroy.ru/wp-content/uploads/materials/balkony.jpg [area_modifier] => 30 [parent_name] => Балконы [parent_id] => 21 [material_sum] => 0 [work_sum] => 0 [total_sum] => 0 [total_days] => 0 [display_material_sum] => 0 [display_work_sum] => 0 [display_total_sum] => 0 ) 1
0
Работа:0
Материалы:0
Дни:0
stdClass Object ( [id] => 42 [attribute_id] => 21 [name] => Есть [material_modifier] => 1 [work_modifier] => 1 [options] => Array ( ) [days] => [12] [material_price] => [3600] [work_price] => [1950] [image] => https://akademik-stroy.ru/wp-content/uploads/materials/balkony.jpg [area_modifier] => 30 [parent_name] => Балконы [parent_id] => 21 [material_sum] => 136080 [work_sum] => 61425 [total_sum] => 197505 [total_days] => 12 [display_material_sum] => 136 080 [display_work_sum] => 61 425 [display_total_sum] => 197 505 ) 1
197 505
Работа:61 425
Материалы:136 080
Дни:12
Отмостка
stdClass Object ( [id] => 43 [attribute_id] => 22 [name] => Нет [material_modifier] => 1 [work_modifier] => 1 [options] => Array ( ) [days] => [0] [material_price] => [0] [work_price] => [0] [image] => https://akademik-stroy.ru/wp-content/uploads/materials/uteplennaya.jpg [area_modifier] => 155.39 [parent_name] => Отмостка [parent_id] => 22 [material_sum] => 0 [work_sum] => 0 [total_sum] => 0 [total_days] => 0 [display_material_sum] => 0 [display_work_sum] => 0 [display_total_sum] => 0 ) 1
0
Работа:0
Материалы:0
Дни:0
stdClass Object ( [id] => 44 [attribute_id] => 22 [name] => Утепленная отмостка [material_modifier] => 1 [work_modifier] => 1 [options] => Array ( ) [days] => [15] [material_price] => [2550] [work_price] => [1750] [image] => https://akademik-stroy.ru/wp-content/uploads/materials/uteplennaya.jpg [area_modifier] => 155.39 [parent_name] => Отмостка [parent_id] => 22 [material_sum] => 499268 [work_sum] => 285529 [total_sum] => 784797 [total_days] => 15 [display_material_sum] => 499 268 [display_work_sum] => 285 529 [display_total_sum] => 784 797 ) 1
784 797
Работа:285 529
Материалы:499 268
Дни:15
stdClass Object ( [id] => 146 [attribute_id] => 22 [name] => Не утепленная отмостка [material_modifier] => 1 [work_modifier] => 1 [options] => Array ( ) [days] => [10] [material_price] => [1650] [work_price] => [1450] [image] => https://akademik-stroy.ru/wp-content/uploads/materials/ne-uteplennaya.jpg [area_modifier] => 155.39 [parent_name] => Отмостка [parent_id] => 22 [material_sum] => 323056 [work_sum] => 236581 [total_sum] => 559637 [total_days] => 10 [display_material_sum] => 323 056 [display_work_sum] => 236 581 [display_total_sum] => 559 637 ) 1
559 637
Работа:236 581
Материалы:323 056
Дни:10
Дренаж вокруг дома
stdClass Object ( [id] => 45 [attribute_id] => 23 [name] => Нет [material_modifier] => 1 [work_modifier] => 1 [options] => Array ( ) [days] => [0] [material_price] => [0] [work_price] => [0] [image] => https://akademik-stroy.ru/wp-content/uploads/materials/drenazh-2.jpg [area_modifier] => 155.39 [parent_name] => Дренаж вокруг дома [parent_id] => 23 [material_sum] => 0 [work_sum] => 0 [total_sum] => 0 [total_days] => 0 [display_material_sum] => 0 [display_work_sum] => 0 [display_total_sum] => 0 ) 1
0
Работа:0
Материалы:0
Дни:0
stdClass Object ( [id] => 46 [attribute_id] => 23 [name] => Есть [material_modifier] => 1 [work_modifier] => 1 [options] => Array ( ) [days] => [5] [material_price] => [2366] [work_price] => [1911] [image] => https://akademik-stroy.ru/wp-content/uploads/materials/drenazh-2.jpg [area_modifier] => 155.39 [parent_name] => Дренаж вокруг дома [parent_id] => 23 [material_sum] => 463242 [work_sum] => 311798 [total_sum] => 775040 [total_days] => 5 [display_material_sum] => 463 242 [display_work_sum] => 311 798 [display_total_sum] => 775 040 ) 1
775 040
Работа:311 798
Материалы:463 242
Дни:5
Автономная канализация (септики)
stdClass Object ( [id] => 47 [attribute_id] => 24 [name] => Нет [material_modifier] => 1 [work_modifier] => 1 [options] => Array ( ) [days] => [0] [material_price] => [0] [work_price] => [0] [image] => https://akademik-stroy.ru/wp-content/uploads/materials/septik.jpg [area_modifier] => 1 [parent_name] => Автономная канализация (септики) [parent_id] => 24 [material_sum] => 0 [work_sum] => 0 [total_sum] => 0 [total_days] => 0 [display_material_sum] => 0 [display_work_sum] => 0 [display_total_sum] => 0 ) 1
0
Работа:0
Материалы:0
Дни:0
stdClass Object ( [id] => 48 [attribute_id] => 24 [name] => Есть [material_modifier] => 1 [work_modifier] => 1 [options] => Array ( [0] => Для дачи на 4 человека [1] => Для дома на 5 человек [2] => Для дома на 6 человек [3] => Для дома на 7 человек [4] => Для дома на 10 человек ) [days] => [7,7,7,8,8] [material_price] => [196340,220500,240940,264200,293340] [work_price] => [50000,55000,60500,66550,73206] [image] => https://akademik-stroy.ru/wp-content/uploads/materials/septik.jpg [area_modifier] => 1 [parent_name] => Автономная канализация (септики) [parent_id] => 24 [material_sum] => 247388 [work_sum] => 52500 [total_sum] => 299888 [total_days] => 7 [display_material_sum] => 247 388 [display_work_sum] => 52 500 [display_total_sum] => 299 888 ) 1
299 888
Работа:52 500
Материалы:247 388
Дни:7
Внутренние (не несущие) перегородки
stdClass Object ( [id] => 49 [attribute_id] => 25 [name] => Нет [material_modifier] => 1 [work_modifier] => 1 [options] => Array ( ) [days] => [0] [material_price] => [0] [work_price] => [0] [image] => https://akademik-stroy.ru/wp-content/uploads/materials/gkl.jpg [area_modifier] => 255.33 [parent_name] => Внутренние (не несущие) перегородки [parent_id] => 25 [material_sum] => 0 [work_sum] => 0 [total_sum] => 0 [total_days] => 0 [display_material_sum] => 0 [display_work_sum] => 0 [display_total_sum] => 0 ) 1
0
Работа:0
Материалы:0
Дни:0
stdClass Object ( [id] => 147 [attribute_id] => 25 [name] => Каркасно-обшивные [material_modifier] => 1 [work_modifier] => 1 [options] => Array ( [0] => 75 мм (без шумоизоляции) [1] => 75 мм (с шумоизоляцией) ) [days] => [11,11] [material_price] => [580,970] [work_price] => [380,570] [image] => https://akademik-stroy.ru/wp-content/uploads/materials/gkl.jpg [area_modifier] => 255.33 [parent_name] => Внутренние (не несущие) перегородки [parent_id] => 25 [material_sum] => 186595 [work_sum] => 101877 [total_sum] => 288472 [total_days] => 11 [display_material_sum] => 186 595 [display_work_sum] => 101 877 [display_total_sum] => 288 472 ) 1
288 472
Работа:101 877
Материалы:186 595
Дни:11
stdClass Object ( [id] => 148 [attribute_id] => 25 [name] => Пазогребневые [material_modifier] => 1 [work_modifier] => 1 [options] => Array ( [0] => 80 мм [1] => 100 мм ) [days] => [5,5] [material_price] => [1022,1313] [work_price] => [600,700] [image] => https://akademik-stroy.ru/wp-content/uploads/materials/pazogrebnevye-bloki.jpg [area_modifier] => 255.33 [parent_name] => Внутренние (не несущие) перегородки [parent_id] => 25 [material_sum] => 328794 [work_sum] => 160858 [total_sum] => 489652 [total_days] => 5 [display_material_sum] => 328 794 [display_work_sum] => 160 858 [display_total_sum] => 489 652 ) 1
489 652
Работа:160 858
Материалы:328 794
Дни:5
stdClass Object ( [id] => 149 [attribute_id] => 25 [name] => Газобетонные [material_modifier] => 1 [work_modifier] => 1 [options] => Array ( [0] => 100 мм [1] => 200 мм ) [days] => [11,11] [material_price] => [1160,1920] [work_price] => [700,900] [image] => https://akademik-stroy.ru/wp-content/uploads/materials/gazobeton-2.jpg [area_modifier] => 255.33 [parent_name] => Внутренние (не несущие) перегородки [parent_id] => 25 [material_sum] => 373190 [work_sum] => 187668 [total_sum] => 560858 [total_days] => 11 [display_material_sum] => 373 190 [display_work_sum] => 187 668 [display_total_sum] => 560 858 ) 1
560 858
Работа:187 668
Материалы:373 190
Дни:11
stdClass Object ( [id] => 150 [attribute_id] => 25 [name] => Кирпичные [material_modifier] => 1 [work_modifier] => 1 [options] => Array ( [0] => 120 мм [1] => 250 мм [2] => 360 мм ) [days] => [7,7,7] [material_price] => [1785,3570,5355] [work_price] => [900,1600,1800] [image] => https://akademik-stroy.ru/wp-content/uploads/materials/kirpich-1.jpg [area_modifier] => 255.33 [parent_name] => Внутренние (не несущие) перегородки [parent_id] => 25 [material_sum] => 574263 [work_sum] => 241287 [total_sum] => 815550 [total_days] => 7 [display_material_sum] => 574 263 [display_work_sum] => 241 287 [display_total_sum] => 815 550 ) 1
815 550
Работа:241 287
Материалы:574 263
Дни:7
Электрика
stdClass Object ( [id] => 55 [attribute_id] => 28 [name] => Нет [material_modifier] => 1 [work_modifier] => 1 [options] => Array ( ) [days] => [0] [material_price] => [0] [work_price] => [0] [image] => https://akademik-stroy.ru/wp-content/uploads/materials/ehlektrika.jpg [area_modifier] => 207.2 [parent_name] => Электрика [parent_id] => 28 [material_sum] => 0 [work_sum] => 0 [total_sum] => 0 [total_days] => 0 [display_material_sum] => 0 [display_work_sum] => 0 [display_total_sum] => 0 ) 1
0
Работа:0
Материалы:0
Дни:0
stdClass Object ( [id] => 56 [attribute_id] => 28 [name] => Есть [material_modifier] => 1 [work_modifier] => 1 [options] => Array ( ) [days] => [10] [material_price] => [650] [work_price] => [950] [image] => https://akademik-stroy.ru/wp-content/uploads/materials/ehlektrika.jpg [area_modifier] => 207.2 [parent_name] => Электрика [parent_id] => 28 [material_sum] => 169697 [work_sum] => 206682 [total_sum] => 376379 [total_days] => 10 [display_material_sum] => 169 697 [display_work_sum] => 206 682 [display_total_sum] => 376 379 ) 1
376 379
Работа:206 682
Материалы:169 697
Дни:10
Сантехника, канализация в доме
stdClass Object ( [id] => 57 [attribute_id] => 29 [name] => Нет [material_modifier] => 1 [work_modifier] => 1 [options] => Array ( ) [days] => [0] [material_price] => [0] [work_price] => [0] [image] => https://akademik-stroy.ru/wp-content/uploads/materials/santekhnika-kanalizaciya-1.jpg [area_modifier] => 207.2 [parent_name] => Сантехника, канализация в доме [parent_id] => 29 [material_sum] => 0 [work_sum] => 0 [total_sum] => 0 [total_days] => 0 [display_material_sum] => 0 [display_work_sum] => 0 [display_total_sum] => 0 ) 1
0
Работа:0
Материалы:0
Дни:0
stdClass Object ( [id] => 58 [attribute_id] => 29 [name] => Есть [material_modifier] => 1 [work_modifier] => 1 [options] => Array ( ) [days] => [10] [material_price] => [600] [work_price] => [730] [image] => https://akademik-stroy.ru/wp-content/uploads/materials/santekhnika-kanalizaciya-1.jpg [area_modifier] => 207.2 [parent_name] => Сантехника, канализация в доме [parent_id] => 29 [material_sum] => 156643 [work_sum] => 158819 [total_sum] => 315462 [total_days] => 10 [display_material_sum] => 156 643 [display_work_sum] => 158 819 [display_total_sum] => 315 462 ) 1
315 462
Работа:158 819
Материалы:156 643
Дни:10
Отопление
stdClass Object ( [id] => 59 [attribute_id] => 30 [name] => Нет [material_modifier] => 1 [work_modifier] => 1 [options] => Array ( ) [days] => [0] [material_price] => [0] [work_price] => [0] [image] => https://akademik-stroy.ru/wp-content/uploads/materials/otoplenie-1.jpg [area_modifier] => 207.2 [parent_name] => Отопление [parent_id] => 30 [material_sum] => 0 [work_sum] => 0 [total_sum] => 0 [total_days] => 0 [display_material_sum] => 0 [display_work_sum] => 0 [display_total_sum] => 0 ) 1
0
Работа:0
Материалы:0
Дни:0
stdClass Object ( [id] => 60 [attribute_id] => 30 [name] => Есть [material_modifier] => 1 [work_modifier] => 1 [options] => Array ( ) [days] => [5] [material_price] => [610] [work_price] => [560] [image] => https://akademik-stroy.ru/wp-content/uploads/materials/otoplenie-1.jpg [area_modifier] => 207.2 [parent_name] => Отопление [parent_id] => 30 [material_sum] => 159254 [work_sum] => 121834 [total_sum] => 281088 [total_days] => 5 [display_material_sum] => 159 254 [display_work_sum] => 121 834 [display_total_sum] => 281 088 ) 1
281 088
Работа:121 834
Материалы:159 254
Дни:5
Теплые полы
stdClass Object ( [id] => 61 [attribute_id] => 31 [name] => Нет [material_modifier] => 1 [work_modifier] => 1 [options] => Array ( ) [days] => [0] [material_price] => [0] [work_price] => [0] [image] => https://akademik-stroy.ru/wp-content/uploads/materials/vodyanye.jpg [area_modifier] => 30 [parent_name] => Теплые полы [parent_id] => 31 [material_sum] => 0 [work_sum] => 0 [total_sum] => 0 [total_days] => 0 [display_material_sum] => 0 [display_work_sum] => 0 [display_total_sum] => 0 ) 1
0
Работа:0
Материалы:0
Дни:0
stdClass Object ( [id] => 151 [attribute_id] => 31 [name] => Водяные [material_modifier] => 1 [work_modifier] => 1 [options] => Array ( ) [days] => [9] [material_price] => [10200] [work_price] => [2500] [image] => https://akademik-stroy.ru/wp-content/uploads/materials/vodyanye.jpg [area_modifier] => 30 [parent_name] => Теплые полы [parent_id] => 31 [material_sum] => 385560 [work_sum] => 78750 [total_sum] => 464310 [total_days] => 9 [display_material_sum] => 385 560 [display_work_sum] => 78 750 [display_total_sum] => 464 310 ) 1
464 310
Работа:78 750
Материалы:385 560
Дни:9
stdClass Object ( [id] => 152 [attribute_id] => 31 [name] => Электро [material_modifier] => 1 [work_modifier] => 1 [options] => Array ( ) [days] => [5] [material_price] => [6300] [work_price] => [1500] [image] => https://akademik-stroy.ru/wp-content/uploads/materials/ehlektricheskij.jpg [area_modifier] => 30 [parent_name] => Теплые полы [parent_id] => 31 [material_sum] => 238140 [work_sum] => 47250 [total_sum] => 285390 [total_days] => 5 [display_material_sum] => 238 140 [display_work_sum] => 47 250 [display_total_sum] => 285 390 ) 1
285 390
Работа:47 250
Материалы:238 140
Дни:5
Черновая отделка стен
stdClass Object ( [id] => 63 [attribute_id] => 32 [name] => Нет [material_modifier] => 1 [work_modifier] => 1 [options] => Array ( ) [days] => [0] [material_price] => [0] [work_price] => [0] [image] => https://akademik-stroy.ru/wp-content/uploads/materials/shtukaturka-shpatlevka-1.jpg [area_modifier] => 207.2 [parent_name] => Черновая отделка стен [parent_id] => 32 [material_sum] => 0 [work_sum] => 0 [total_sum] => 0 [total_days] => 0 [display_material_sum] => 0 [display_work_sum] => 0 [display_total_sum] => 0 ) 1
0
Работа:0
Материалы:0
Дни:0
stdClass Object ( [id] => 153 [attribute_id] => 32 [name] => Штукатурка и шпатлевка [material_modifier] => 1 [work_modifier] => 1 [options] => Array ( ) [days] => [20] [material_price] => [1850] [work_price] => [2600] [image] => https://akademik-stroy.ru/wp-content/uploads/materials/shtukaturka-shpatlevka-1.jpg [area_modifier] => 207.2 [parent_name] => Черновая отделка стен [parent_id] => 32 [material_sum] => 482983 [work_sum] => 565656 [total_sum] => 1048639 [total_days] => 20 [display_material_sum] => 482 983 [display_work_sum] => 565 656 [display_total_sum] => 1 048 639 ) 1
1 048 639
Работа:565 656
Материалы:482 983
Дни:20
stdClass Object ( [id] => 154 [attribute_id] => 32 [name] => Гипсокортон на стены [material_modifier] => 1 [work_modifier] => 1 [options] => Array ( ) [days] => [15] [material_price] => [950] [work_price] => [2100] [image] => https://akademik-stroy.ru/wp-content/uploads/materials/gkl-1.jpg [area_modifier] => 207.2 [parent_name] => Черновая отделка стен [parent_id] => 32 [material_sum] => 248018 [work_sum] => 456876 [total_sum] => 704894 [total_days] => 15 [display_material_sum] => 248 018 [display_work_sum] => 456 876 [display_total_sum] => 704 894 ) 1
704 894
Работа:456 876
Материалы:248 018
Дни:15
stdClass Object ( [id] => 155 [attribute_id] => 32 [name] => Вагонка [material_modifier] => 1 [work_modifier] => 1 [options] => Array ( ) [days] => [15] [material_price] => [1250] [work_price] => [950] [image] => https://akademik-stroy.ru/wp-content/uploads/materials/vagonka.jpg [area_modifier] => 207.2 [parent_name] => Черновая отделка стен [parent_id] => 32 [material_sum] => 326340 [work_sum] => 206682 [total_sum] => 533022 [total_days] => 15 [display_material_sum] => 326 340 [display_work_sum] => 206 682 [display_total_sum] => 533 022 ) 1
533 022
Работа:206 682
Материалы:326 340
Дни:15
Черновая отделка полов
stdClass Object ( [id] => 65 [attribute_id] => 33 [name] => Нет [material_modifier] => 1 [work_modifier] => 1 [options] => Array ( ) [days] => [0] [material_price] => [0] [work_price] => [0] [image] => https://akademik-stroy.ru/wp-content/uploads/materials/styazhka.jpg [area_modifier] => 207.2 [parent_name] => Черновая отделка полов [parent_id] => 33 [material_sum] => 0 [work_sum] => 0 [total_sum] => 0 [total_days] => 0 [display_material_sum] => 0 [display_work_sum] => 0 [display_total_sum] => 0 ) 1
0
Работа:0
Материалы:0
Дни:0
stdClass Object ( [id] => 156 [attribute_id] => 33 [name] => Стяжка + наливные полы [material_modifier] => 1 [work_modifier] => 1 [options] => Array ( ) [days] => [10] [material_price] => [1000] [work_price] => [900] [image] => https://akademik-stroy.ru/wp-content/uploads/materials/styazhka.jpg [area_modifier] => 207.2 [parent_name] => Черновая отделка полов [parent_id] => 33 [material_sum] => 261072 [work_sum] => 195804 [total_sum] => 456876 [total_days] => 10 [display_material_sum] => 261 072 [display_work_sum] => 195 804 [display_total_sum] => 456 876 ) 1
456 876
Работа:195 804
Материалы:261 072
Дни:10
stdClass Object ( [id] => 157 [attribute_id] => 33 [name] => ОСБ на пол [material_modifier] => 1 [work_modifier] => 1 [options] => Array ( ) [days] => [7] [material_price] => [580] [work_price] => [350] [image] => https://akademik-stroy.ru/wp-content/uploads/materials/osb-1.jpg [area_modifier] => 207.2 [parent_name] => Черновая отделка полов [parent_id] => 33 [material_sum] => 151422 [work_sum] => 76146 [total_sum] => 227568 [total_days] => 7 [display_material_sum] => 151 422 [display_work_sum] => 76 146 [display_total_sum] => 227 568 ) 1
227 568
Работа:76 146
Материалы:151 422
Дни:7
Чистовая отделка стен и полов
stdClass Object ( [id] => 67 [attribute_id] => 34 [name] => Нет [material_modifier] => 1 [work_modifier] => 1 [options] => Array ( ) [days] => [0] [material_price] => [0] [work_price] => [0] [image] => https://akademik-stroy.ru/wp-content/uploads/materials/chistovaya-otdelka.jpg [area_modifier] => 207.2 [parent_name] => Чистовая отделка стен и полов [parent_id] => 34 [material_sum] => 0 [work_sum] => 0 [total_sum] => 0 [total_days] => 0 [display_material_sum] => 0 [display_work_sum] => 0 [display_total_sum] => 0 ) 1
0
Работа:0
Материалы:0
Дни:0
stdClass Object ( [id] => 68 [attribute_id] => 34 [name] => Есть [material_modifier] => 1 [work_modifier] => 1 [options] => Array ( ) [days] => [50] [material_price] => [6000] [work_price] => [3500] [image] => https://akademik-stroy.ru/wp-content/uploads/materials/chistovaya-otdelka.jpg [area_modifier] => 207.2 [parent_name] => Чистовая отделка стен и полов [parent_id] => 34 [material_sum] => 1566432 [work_sum] => 761460 [total_sum] => 2327892 [total_days] => 50 [display_material_sum] => 1 566 432 [display_work_sum] => 761 460 [display_total_sum] => 2 327 892 ) 1
2 327 892
Работа:761 460
Материалы:1 566 432
Дни:50
Отделка потолка
stdClass Object ( [id] => 69 [attribute_id] => 35 [name] => Нет [material_modifier] => 1 [work_modifier] => 1 [options] => Array ( ) [days] => [0] [material_price] => [0] [work_price] => [0] [image] => https://akademik-stroy.ru/wp-content/uploads/materials/mnogourovnevyj-gkl.jpg [area_modifier] => 207.2 [parent_name] => Отделка потолка [parent_id] => 35 [material_sum] => 0 [work_sum] => 0 [total_sum] => 0 [total_days] => 0 [display_material_sum] => 0 [display_work_sum] => 0 [display_total_sum] => 0 ) 1
0
Работа:0
Материалы:0
Дни:0
stdClass Object ( [id] => 70 [attribute_id] => 35 [name] => Есть [material_modifier] => 1 [work_modifier] => 1 [options] => Array ( [0] => Многоуровневый потолок из гипсокартона [1] => Многоуровневый потолок из гипсокартона и натяжного потолка [2] => Одноуровневый потолок из гипсокартона [3] => Одноуровневый натяжной потолок ) [days] => [10,10,1,1] [material_price] => [900,700,700,600] [work_price] => [1000,800,500,300] [image] => https://akademik-stroy.ru/wp-content/uploads/materials/mnogourovnevyj-gkl.jpg [area_modifier] => 207.2 [parent_name] => Отделка потолка [parent_id] => 35 [material_sum] => 234965 [work_sum] => 217560 [total_sum] => 452525 [total_days] => 10 [display_material_sum] => 234 965 [display_work_sum] => 217 560 [display_total_sum] => 452 525 ) 1
452 525
Работа:217 560
Материалы:234 965
Дни:10

Преимущества работы с нами

icon

7 этапов оплаты

icon

Независимый строительный надзор

icon

Экологически чистые материалы

icon

16 лет гарантии

icon

Онлайн-кабинет с веб-камерой

icon

Строители с опытом более 15 лет

icon

Собственное производство

Двухэтажный дом 18х10 м в Москве: почему стоит обратить внимание именно на этот проект

Планируете строительство собственного жилья в столице или ближайшем Подмосковье? Если вы ищете идеальное сочетание современного дизайна, комфорта и разумной цены, то проект двухэтажного дома 18х10 метров с полезной площадью 207,2 м² от компании "Академик Строй" может стать для вас тем самым вариантом, который нельзя упускать. В условиях загруженного рынка недвижимости и высокого спроса на индивидуальное строительство именно этот проект выделяется своей продуманной планировкой, качеством и соответствием требованиям современного образа жизни. Давайте вместе разберём, почему двухэтажный дом размером 18 на 10 метров — это отличный выбор для семьи, какие преимущества он несет и как заказать проект с выгодой и гарантией качества.

Основные параметры и характеристики дома: зачем так важно понимать цифры

Для начала стоит внимательно взглянуть на главные размеры и технико-эксплуатационные характеристики дома. Понимание этих данных поможет вам сразу оценить масштаб будущего жилья и представить, как оно будет выглядеть и функционировать в реальной жизни.

Размеры и площадь — как всё располагается в пространстве

Сам дом имеет габариты 18х10 метров, что уже даёт просторную площадь застройки в 158,2 м². За счет двух этажей общая полезная площадь достигает 207,2 м², из которых жилая площадь составляет 135,7 м². Это оптимальные размеры для комфортного проживания семьи от 3 до 6 человек, где каждый получит личное пространство и уют.
Параметр Значение Комментарий
Размеры дома 18 x 10 м Просторный двухэтажный коттедж
Полезная площадь 207,2 м² Для комфортной жизни семьи
Площадь застройки 158,2 м² Площадь, занимаемая домом на участке
Жилая площадь 135,7 м² Только жилые комнаты
Высота здания 8,7 м Оптимальная для двух этажей
Высота аттиковой стены 0,92 м Современный архитектурный элемент

Количество комнат и функциональность

Наш дом предлагает 4 спальни и 2 полноценных санузла — то, что сегодня нужно для комфортной жизни большой семьи. Четыре спальни — это реальная возможность каждому члену семьи иметь своё уединённое пространство для отдыха и работы, а два санузла позволяют избежать бытовых конфликтов и очередей утром. Особенность проекта — наличие камина и большой комнаты на первом этаже, где можно организовать гостиную или кабинет, а также приятная терраса для отдыха на свежем воздухе.

Архитектурные особенности проекта от "Академик Строй"

Двускатная крыша с современным углом наклона

Одной из важных технических составляющих является кровля. В данном проекте — двускатная крыша с углом наклона 40°. Это классический и проверенный временем вариант, идеально подходящий для московского климата. За счет правильного угла наклона снег и вода быстро скапливаются и стекают, снижая нагрузку на конструкцию и продлевая срок службы крыши. Площадь самой крыши достигает 274 м² — это говорит о солидности конструкции и достаточном запасе вплоть до мансардных улучшений или установки солнечных панелей.

Высота и объем здания

Здание достигает 8,7 метров в высоту, что обеспечивает ощущение простора и открытости внутри. При этом объем брутто составляет 645 м³ — показатель, который важно учитывать при расчёте отопления и вентиляции, а также при выборе строительных материалов.

Как грамотно выбрать участок под строительство

Если вы решили строить двухэтажный дом, размером 18 на 10 метров, важно правильно подобрать участок, который позволит реализовать все преимущества проекта и не создаст дополнительных проблем. Минимальные размеры участка, рекомендованные компанией, составляют 25,8 метров по ширине и 17,7 метров в длину. Эти параметры позволяют не только разместить сам дом, но и обеспечить комфортное отступление от границ соседей, а также пространство для небольшой зоны отдыха, возможного сада или детской площадки. В процессе выбора участка настоятельно рекомендуем учитывать:
  • Уровень подъезда и подъездных путей
  • Ориентацию участка по сторонам света
  • Наличие коммуникаций: электричество, вода, газ
  • Рельеф и состояние почвы
Это поможет минимизировать дополнительные расходы и избежать сложностей на этапе строительства.

Почему выгодно заказать проект именно у компании "Академик Строй"

Профессионализм и опыт

Компания "Академик Строй" уже давно на московском рынке и заслужила репутацию надежного подрядчика, способного воплотить самые амбициозные архитектурные решения. В проекте двухэтажного дома 18x10 прослеживается современный и функциональный дизайн, и это результат тщательной работы архитекторов и инженеров.

Прозрачные цены и комплексное сопровождение

Заказать проект у компании — это выгодное вложение. Цены приемлемы, что привлекает многих клиентов, а профессиональный менеджмент процесса берёт на себя все сложности: от согласования документации до курирования строительства. Вы также получаете полный пакет рабочей документации и техническую поддержку. Записаться на консультацию и уточнить цены можно по телефону: +7 (980) 800-47-93. Операторы проконсультируют вас по всем деталям и помогут подобрать подходящий вариант именно под ваши пожелания.

Что входит в проект двухэтажного дома 18х10? Функционал и особенности

Организация внутренних помещений

Дом имеет рациональное внутреннее пространство. На первом этаже оборудована большая комната — великолепная гостиная, где собирается семья, а также отдельная комната, которая может стать кабинетом, столовой или детской игровой зоной. Камин придает уют и способствует созданию тёплой домашней атмосферы в холодное время года. Четыре спальни на втором этаже помогут семье сохранять комфорт и личное пространство, каждый сможет уединиться или сосредоточиться на своих делах.

Два санузла — удобно и практично

Два санузла, рассчитанные на семью средней или большой численности — это важный фактор комфорта, часто недоступный в стандартных планировках. Это позволит быстро принимать утренние процедуры без заторов и конфликтов.

Отдельная терраса — дополнительное место для отдыха

Терраса — это небольшое, но значимое дополнение к жилой площади дома. Это место для отдыха, семейных ужинов в тёплое время года и приятных встреч с друзьями. Можно оформить её с использованием современных материалов и сделать настоящей “летней гостиной”.

Эксплуатационные преимущества и экономия ресурсов

Помимо планировки и архитектуры особое внимание уделяется практичности и снижению затрат на содержание дома. Высокие потолки, правильное зонирование, утеплённые стены и оптимальная компоновка окон и дверей обеспечивают хорошее естественное освещение и надежный уровень энергосбережения. Грамотный расчет объемов и площадей позволяет избежать излишних затрат на отопление и кондиционирование. Объем брутто дома составляет 645 м³ — показатель, который учитывают при проектировании инженерных систем, что поможет впоследствии сэкономить на эксплуатационных расходах.

Стоимость и выгодные условия покупки проекта

Проект двухэтажного дома 18 x 10 предоставляется по очень привлекательной цене, учитывая все его достоинства и качественное исполнение. Компания "Академик Строй" предлагает своим клиентам несколько выгодных вариантов оплаты и сборки комплекта документации, чтобы максимально упростить процесс начала строительства. Важно позвонить по телефону +7 (980) 800-47-93 и уточнить актуальную стоимость, а также получить профессиональную консультацию, которая поможет подобрать лучшие решения именно для вашего участка и бюджета.

В заключение: почему именно этот проект дома 18x10 м — отличный выбор для вашей семьи

Если вы мечтаете о просторном, современном и комфортном доме с удобной планировкой, — проект этого двухэтажного дома от "Академик Строй" отвечает всем этим требованиям. Его габариты, функциональность и технические решения рассчитаны на комфортное проживание современной семьи в условиях Московской области. Комбинация оптимальных размеров, наличия 4 спален и 2 санузлов, камина, террасы и организации внутреннего пространства обеспечат вам уют и практичность на долгие годы. А доступная цена и профессиональное сопровождение от компании "Академик Строй" сделают процесс строительства простым и удобным. Не упускайте возможность сделать первый шаг к домам своей мечты — звоните и заказывайте проект уже сегодня!