Двухэтажный дом 15x10 - 180.6 м2 за руб.

ID-68228

Стоимость дома 6235864 руб.
154 м2 Полезная
площадь
15 x 10 м Размеры
2 этажа Этажей
26 м2 Террасы
и балконы
1Без
гаража
4 Количество
спален
2 Количество
санузлов

Планировки

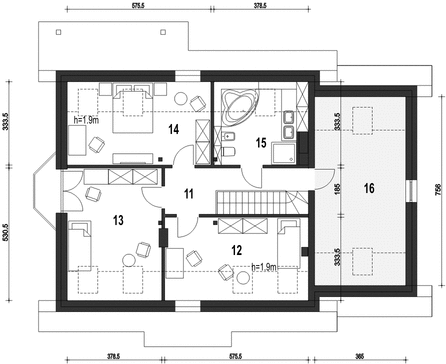
План первого этажа

floor image
  • 1. Прихожая 5,10 m²
  • 2. Холл 9,50 m²
  • 3. Кухня 9,20 m²
  • 4. Гостиная + столовая 32,60 m²
  • 5. Комната 15,20 m²
  • 6. Лестница 3,50 m²
  • 7. Ванная комната 3,70 m²
  • 8. Кладовая 3,60 m²
  • 9. Котельная 6,60 m²
  • 10. Гараж на 1 машину 20,10 m²
  • План первого этажа 109,10 m²

План мансарды

floor image
  • 1. Коридор 7,10 m²
  • 2. Комната 12,90 m² (18,80 m²)
  • 3. Комната 15,90 m² (19,80 m²)
  • 4. Комната 13,10 m² (19 m²)
  • 5. Ванная комната 7,90 m² (11,80 m²)
  • 6. Чердак 14,60 m² (27,30 m²)
  • План мансарды 71,50 m²

Разрезы

Вертикальный разрез
Вертикальный разрез

Фасады

Передний
Задний
Левый
Правый
Передний
Задний
Левый
Правый

Подробная информация

Жилая площадь
135,70 m²
icon

Сумма площади всех жилых помещений, за вычетом пов. гараж, котельная, чердак, подвал. Учитывается в 100%, для помещений высотой более 2,2 м, в 50% для помещений с высотой 2,2-1,4 м и не включается для более низких помещений (меньше 1,4 м).

Высота аттиковой стены
0,92 m
icon

Площадь застройки
137,80 m²
icon

Площадь застройки здания определяется как площадь горизонтального сечения по внешнему обводу здания на уровне цоколя, включая выступающие части.

Площадь нетто
212,90 m²
icon

Площадь всех помещений в здании, измеренная на высоте пола.

Объем брутто
554 m³
icon

Как правило, это сумма объема всех помещений в здании, подсчитанных по внешнему контуру стены (с утеплением).

Площадь крыши
243,50 m²
icon

Угол наклона крыши
40°
icon

Наклон ската крыши в градусах. Внимание! В некоторых проектах возникает более чем один наклон крыши.

Высота здания
8,70 m
icon

Высота измеряется от поверхности земли до самой высокой точки кровли (конька), за исключением дымоходов.

Мин. ширина участка
23,40 m
icon

Наименьшая возможная ширина участка, необходимая для строительства выбранного дома. Состоит из длины фасада дома плюс с обеих сторон три метра отступ.

Мин. длина участка
17,70 m
icon

Наименьшая возможная длина участка, необходимая для строительства выбранного дома. Состоит из длины фасада дома плюс с обеих сторон три метра отступ.

Материалы и опции
Общие
Цена, руб.
Площадь м²
230
Площадь от и до
Ежемесячный платёж, руб
Количество спален
4
Гараж
1
Количество санузлов
2
Тип крыши
Ширина
15
Глубина
10

Площади дома

№ п/п Наименование Ед. из. Строительная площадь Полезная площадь
1 1 этаж м2 134.44 109.1
2 2 этаж м2 88.11 71.5
3 Итого м2 222.55 180.6

Калькулятор опций

0

В ипотеку от 20 527 ₽/мес.

Фундамент
stdClass Object ( [id] => 1 [attribute_id] => 1 [name] => Ленточный монолитный ж/б [material_modifier] => 1 [work_modifier] => 1 [options] => Array ( [0] => размер 200 х 700 мм [1] => размер 300 х 900 мм [2] => размер 400 х 1 000 мм [3] => размер 500 х 1 100 мм [4] => размер 600 х 1 200 мм ) [days] => [20,21,22,25,30] [material_price] => [2823,3630,4475,5210,12047] [work_price] => [2154,2826,3731,4577,5293] [image] => https://akademik-stroy.ru/wp-content/uploads/materials/lentochnyj-monolitnyj-zh-b.jpg [area_modifier] => 134.44 [parent_name] => Фундамент [parent_id] => 1 [material_sum] => 478200 [work_sum] => 304063 [total_sum] => 782263 [total_days] => 20 [display_material_sum] => 478 200 [display_work_sum] => 304 063 [display_total_sum] => 782 263 ) 1
782 263
Работа:304 063
Материалы:478 200
Дни:20
stdClass Object ( [id] => 2 [attribute_id] => 1 [name] => Забивные Ж/Б сваи [material_modifier] => 1 [work_modifier] => 1 [options] => Array ( [0] => 150х150х3000мм [1] => 150х150х4000мм [2] => 200х200х3000мм [3] => 200х200х4000мм [4] => 200х200х5000мм [5] => 200х200х6000мм ) [days] => [2,2,2,2,2,2] [material_price] => [1990,2850,3255,4360,5120,6837] [work_price] => [1002,1185,1336,1438,1574,1839] [image] => https://akademik-stroy.ru/wp-content/uploads/materials/zabivnye-zh-b-svai.png [area_modifier] => 134.44 [parent_name] => Фундамент [parent_id] => 1 [material_sum] => 337095 [work_sum] => 141444 [total_sum] => 478539 [total_days] => 2 [display_material_sum] => 337 095 [display_work_sum] => 141 444 [display_total_sum] => 478 539 ) 1
478 539
Работа:141 444
Материалы:337 095
Дни:2
stdClass Object ( [id] => 71 [attribute_id] => 1 [name] => Свайно-ростверковый ж/б [material_modifier] => 1 [work_modifier] => 1 [options] => Array ( [0] => ростверк 200х300 мм [1] => ростверк 300х600 мм [2] => ростверк 400х900 мм [3] => ростверк 500х1200 мм ) [days] => [20,23,25,27] [material_price] => [3018,3474,7109,9792] [work_price] => [2024,3012,5635,7022] [image] => https://akademik-stroy.ru/wp-content/uploads/materials/svajno-rostverkovyj-monolitnyj-zh-b-3.png [area_modifier] => 134.44 [parent_name] => Фундамент [parent_id] => 1 [material_sum] => 511232 [work_sum] => 285712 [total_sum] => 796944 [total_days] => 20 [display_material_sum] => 511 232 [display_work_sum] => 285 712 [display_total_sum] => 796 944 ) 1
796 944
Работа:285 712
Материалы:511 232
Дни:20
stdClass Object ( [id] => 72 [attribute_id] => 1 [name] => Монолитная ж/б плита [material_modifier] => 1 [work_modifier] => 1 [options] => Array ( [0] => 200 мм [1] => 300 мм [2] => 400 мм [3] => 500 мм [4] => 600 мм ) [days] => [30,33,35,37,40] [material_price] => [5348,8555,12788,14388,15189] [work_price] => [4314,4881,7037,8061,10230] [image] => https://akademik-stroy.ru/wp-content/uploads/materials/monolitnaya-zhb-plita.png [area_modifier] => 134.44 [parent_name] => Фундамент [parent_id] => 1 [material_sum] => 905921 [work_sum] => 608973 [total_sum] => 1514894 [total_days] => 30 [display_material_sum] => 905 921 [display_work_sum] => 608 973 [display_total_sum] => 1 514 894 ) 1
1 514 894
Работа:608 973
Материалы:905 921
Дни:30
stdClass Object ( [id] => 73 [attribute_id] => 1 [name] => Утепленная шведская плита [material_modifier] => 1 [work_modifier] => 1 [options] => Array ( [0] => 200 мм [1] => 300 мм [2] => 400 мм [3] => 500 мм [4] => 600 мм ) [days] => [32,37,39,42,45] [material_price] => [10249,12692,13760,14936,16230] [work_price] => [5960,7337,8072,8878,9765] [image] => https://akademik-stroy.ru/wp-content/uploads/materials/uteplennaya-shvedskaya-plita.jpg [area_modifier] => 134.44 [parent_name] => Фундамент [parent_id] => 1 [material_sum] => 1736123 [work_sum] => 841326 [total_sum] => 2577449 [total_days] => 32 [display_material_sum] => 1 736 123 [display_work_sum] => 841 326 [display_total_sum] => 2 577 449 ) 1
2 577 449
Работа:841 326
Материалы:1 736 123
Дни:32
stdClass Object ( [id] => 75 [attribute_id] => 1 [name] => Ленточный из ФБС [material_modifier] => 1 [work_modifier] => 1 [options] => Array ( [0] => толщ. 300 мм [1] => толщ. 400 мм [2] => толщ. 500 мм [3] => толщ. 600 мм ) [days] => [20,20,20,20] [material_price] => [3675,4902,6126,7350] [work_price] => [2451,3264,4083,4902] [image] => https://akademik-stroy.ru/wp-content/uploads/materials/lentochnyj-iz-fbs.png [area_modifier] => 134.44 [parent_name] => Фундамент [parent_id] => 1 [material_sum] => 622524 [work_sum] => 345988 [total_sum] => 968512 [total_days] => 20 [display_material_sum] => 622 524 [display_work_sum] => 345 988 [display_total_sum] => 968 512 ) 1
968 512
Работа:345 988
Материалы:622 524
Дни:20
stdClass Object ( [id] => 76 [attribute_id] => 1 [name] => Цокольный этаж из ФБС [material_modifier] => 1 [work_modifier] => 1 [options] => Array ( [0] => толщ. 300 мм [1] => толщ. 400 мм [2] => толщ. 500 мм [3] => толщ. 600 мм ) [days] => [30,32,34,36] [material_price] => [20916,23299,26680,29060] [work_price] => [17524,18700,19873,21046] [image] => https://akademik-stroy.ru/wp-content/uploads/materials/cokolnyj-ehtazh-iz-fbs.jpg [area_modifier] => 134.44 [parent_name] => Фундамент [parent_id] => 1 [material_sum] => 3543053 [work_sum] => 2473723 [total_sum] => 6016776 [total_days] => 30 [display_material_sum] => 3 543 053 [display_work_sum] => 2 473 723 [display_total_sum] => 6 016 776 ) 1
6 016 776
Работа:2 473 723
Материалы:3 543 053
Дни:30
stdClass Object ( [id] => 77 [attribute_id] => 1 [name] => Цокольный этаж монолитный ж/б [material_modifier] => 1 [work_modifier] => 1 [options] => Array ( [0] => толщ. 200 мм [1] => толщ. 300 мм [2] => толщ. 400 мм [3] => толщ. 500 мм [4] => толщ. 600 мм ) [days] => [40,42,44,46,48] [material_price] => [25421,29148,32275,35602,37326] [work_price] => [20441,21907,23375,24841,26306] [image] => https://akademik-stroy.ru/wp-content/uploads/materials/cokolnyj-etazh-zh-b.jpg [area_modifier] => 134.44 [parent_name] => Фундамент [parent_id] => 1 [material_sum] => 4306175 [work_sum] => 2885492 [total_sum] => 7191667 [total_days] => 40 [display_material_sum] => 4 306 175 [display_work_sum] => 2 885 492 [display_total_sum] => 7 191 667 ) 1
7 191 667
Работа:2 885 492
Материалы:4 306 175
Дни:40
stdClass Object ( [id] => 191 [attribute_id] => 1 [name] => Винтовые сваи [material_modifier] => 1 [work_modifier] => 1 [options] => Array ( [0] => 57х200мм [1] => 76х250мм [2] => 108х300мм [3] => 133х350мм ) [days] => [1,1,2,2] [material_price] => [1200,1300,1450,1600] [work_price] => [400,600,900,1100] [image] => https://akademik-stroy.ru/wp-content/uploads/materials/vintovye-svai.png [area_modifier] => 134.44 [parent_name] => Фундамент [parent_id] => 1 [material_sum] => 203273 [work_sum] => 56465 [total_sum] => 259738 [total_days] => 1 [display_material_sum] => 203 273 [display_work_sum] => 56 465 [display_total_sum] => 259 738 ) 1
259 738
Работа:56 465
Материалы:203 273
Дни:1
Перекрытие цоколя
stdClass Object ( [id] => 3 [attribute_id] => 2 [name] => Деревянные балки [material_modifier] => 1 [work_modifier] => 1 [options] => Array ( [0] => без утепления [1] => утепление 200 мм [2] => утепление 250 мм [3] => утепление 300 мм [4] => утепление 350 мм [5] => утепление 400 мм [6] => утепление 450 мм [7] => утепление 500 мм ) [days] => [8,9,9,9,11,12,13,14] [material_price] => [1634,2042,2344,2947,3149,3652,3354,3557] [work_price] => [1230,1339,1393,1426,1460,1513,1587,1620] [image] => https://akademik-stroy.ru/wp-content/uploads/materials/derevyannye-balki.png [area_modifier] => 134.44 [parent_name] => Перекрытие цоколя [parent_id] => 2 [material_sum] => 276790 [work_sum] => 173629 [total_sum] => 450419 [total_days] => 8 [display_material_sum] => 276 790 [display_work_sum] => 173 629 [display_total_sum] => 450 419 ) 1
450 419
Работа:173 629
Материалы:276 790
Дни:8
stdClass Object ( [id] => 4 [attribute_id] => 2 [name] => Сборные ж/б плиты [material_modifier] => 1 [work_modifier] => 1 [options] => Array ( [0] => без утепления [1] => утепление 150мм [2] => утепление 200мм [3] => утепление 250мм [4] => утепление 300мм [5] => утепление 350мм [6] => утепление 400мм [7] => утепление 450мм [8] => утепление 500мм ) [days] => [13,15,15,15,15,15,15,15,15] [material_price] => [3067,5577,5928,6679,7730,8782,9833,10884,11935] [work_price] => [1520,1956,2102,2247,2392,2537,2684,2829,2974] [image] => https://akademik-stroy.ru/wp-content/uploads/materials/sbornye-zh-b-plity-2.jpg [area_modifier] => 134.44 [parent_name] => Перекрытие цоколя [parent_id] => 2 [material_sum] => 519533 [work_sum] => 214566 [total_sum] => 734099 [total_days] => 13 [display_material_sum] => 519 533 [display_work_sum] => 214 566 [display_total_sum] => 734 099 ) 1
734 099
Работа:214 566
Материалы:519 533
Дни:13
stdClass Object ( [id] => 78 [attribute_id] => 2 [name] => Монолитная ж/б плита [material_modifier] => 1 [work_modifier] => 1 [options] => Array ( [0] => без утепления [1] => утепление 150 мм [2] => утепление 200 мм [3] => утепление 250 мм [4] => утепление 300 мм [5] => утепление 350 мм [6] => утепление 400 мм [7] => утепление 450 мм [8] => утепление 500 мм ) [days] => [18,20,20,20,20,20,20,20,20] [material_price] => [4837,6572,7224,7375,79426,8177,8728,9180,10031] [work_price] => [3348,3921,4112,4302,4493,4684,4875,5066,5256] [image] => https://akademik-stroy.ru/wp-content/uploads/materials/monolitnaya-zh-b-plita-2.jpg [area_modifier] => 134.44 [parent_name] => Перекрытие цоколя [parent_id] => 2 [material_sum] => 819361 [work_sum] => 472610 [total_sum] => 1291971 [total_days] => 18 [display_material_sum] => 819 361 [display_work_sum] => 472 610 [display_total_sum] => 1 291 971 ) 1
1 291 971
Работа:472 610
Материалы:819 361
Дни:18
Стены 1 этаж (несущие)
stdClass Object ( [id] => 6 [attribute_id] => 3 [name] => Пеноблок [material_modifier] => 1 [work_modifier] => 1 [options] => Array ( [0] => 300 мм [1] => 400 мм [2] => 500 мм [3] => 600 мм ) [days] => [29,31,34,39] [material_price] => [3000,4000,4500,4937] [work_price] => [5033,5805,6400,8710] [image] => https://akademik-stroy.ru/wp-content/uploads/materials/penoblok.jpg [area_modifier] => 134.44 [parent_name] => Стены 1 этаж (несущие) [parent_id] => 3 [material_sum] => 508183 [work_sum] => 710468 [total_sum] => 1218651 [total_days] => 29 [display_material_sum] => 508 183 [display_work_sum] => 710 468 [display_total_sum] => 1 218 651 ) 1
1 218 651
Работа:710 468
Материалы:508 183
Дни:29
stdClass Object ( [id] => 79 [attribute_id] => 3 [name] => Керамический блок [material_modifier] => 1 [work_modifier] => 1 [options] => Array ( [0] => 380 мм [1] => 380 мм Thermo [2] => 440 мм [3] => 510 мм ) [days] => [23,23,24,25] [material_price] => [4510,5098,6093,8013] [work_price] => [4737,4937,5903,6958] [image] => https://akademik-stroy.ru/wp-content/uploads/materials/keramicheskij-blok.jpg [area_modifier] => 134.44 [parent_name] => Стены 1 этаж (несущие) [parent_id] => 3 [material_sum] => 763969 [work_sum] => 668684 [total_sum] => 1432653 [total_days] => 23 [display_material_sum] => 763 969 [display_work_sum] => 668 684 [display_total_sum] => 1 432 653 ) 1
1 432 653
Работа:668 684
Материалы:763 969
Дни:23
stdClass Object ( [id] => 80 [attribute_id] => 3 [name] => Кирпич [material_modifier] => 1 [work_modifier] => 1 [options] => Array ( [0] => Кирпич 250 мм [1] => Кирпич 380 мм [2] => Кирпич 510 мм [3] => Кирпич 640 мм [4] => Кирпич 770 мм ) [days] => [30,30,31,33,36] [material_price] => [5500,7142,9206,10171,12235] [work_price] => [8736,10041,12018,15240,18462] [image] => https://akademik-stroy.ru/wp-content/uploads/materials/kirpich.jpg [area_modifier] => 134.44 [parent_name] => Стены 1 этаж (несущие) [parent_id] => 3 [material_sum] => 931669 [work_sum] => 1233191 [total_sum] => 2164860 [total_days] => 30 [display_material_sum] => 931 669 [display_work_sum] => 1 233 191 [display_total_sum] => 2 164 860 ) 1
2 164 860
Работа:1 233 191
Материалы:931 669
Дни:30
stdClass Object ( [id] => 81 [attribute_id] => 3 [name] => Монолитные [material_modifier] => 1 [work_modifier] => 1 [options] => Array ( [0] => 150 мм [1] => 200 мм [2] => 250 мм [3] => 300 мм [4] => 350 мм [5] => 400 мм ) [days] => [45,46,47,49,50,53] [material_price] => [6545,7876,10175,12011,13908,15204] [work_price] => [5106,6444,7698,8552,9807,11461] [image] => https://akademik-stroy.ru/wp-content/uploads/materials/monolitnye.jpg [area_modifier] => 134.44 [parent_name] => Стены 1 этаж (несущие) [parent_id] => 3 [material_sum] => 1108686 [work_sum] => 720773 [total_sum] => 1829459 [total_days] => 45 [display_material_sum] => 1 108 686 [display_work_sum] => 720 773 [display_total_sum] => 1 829 459 ) 1
1 829 459
Работа:720 773
Материалы:1 108 686
Дни:45
stdClass Object ( [id] => 82 [attribute_id] => 3 [name] => Клееный брус [material_modifier] => 1 [work_modifier] => 1 [options] => Array ( [0] => 160 мм [1] => 175 мм [2] => 200 мм [3] => 215 мм [4] => 240 мм [5] => 270 мм [6] => 282 мм ) [days] => [24,28,32,37,40,42,48] [material_price] => [16975,18773,19950,20545,21599,22159,23275] [work_price] => [4806,5287,5815,6397,7036,7740,8514] [image] => https://akademik-stroy.ru/wp-content/uploads/materials/kleenyj-brus.jpg [area_modifier] => 134.44 [parent_name] => Стены 1 этаж (несущие) [parent_id] => 3 [material_sum] => 2875470 [work_sum] => 678425 [total_sum] => 3553895 [total_days] => 24 [display_material_sum] => 2 875 470 [display_work_sum] => 678 425 [display_total_sum] => 3 553 895 ) 1
3 553 895
Работа:678 425
Материалы:2 875 470
Дни:24
stdClass Object ( [id] => 83 [attribute_id] => 3 [name] => Каркасные [material_modifier] => 1 [work_modifier] => 1 [options] => Array ( [0] => 150 мм [1] => 200 мм [2] => 250 мм [3] => 300 мм ) [days] => [15,16,17,18] [material_price] => [2379,2639,2898,3258] [work_price] => [2418,2686,2985,3716] [image] => https://akademik-stroy.ru/wp-content/uploads/materials/karkasnye.jpg [area_modifier] => 134.44 [parent_name] => Стены 1 этаж (несущие) [parent_id] => 3 [material_sum] => 402989 [work_sum] => 341330 [total_sum] => 744319 [total_days] => 15 [display_material_sum] => 402 989 [display_work_sum] => 341 330 [display_total_sum] => 744 319 ) 1
744 319
Работа:341 330
Материалы:402 989
Дни:15
stdClass Object ( [id] => 84 [attribute_id] => 3 [name] => СИП-панели [material_modifier] => 1 [work_modifier] => 1 [options] => Array ( [0] => 120 мм [1] => 170 мм [2] => 220 мм ) [days] => [7,7,7] [material_price] => [1210,1856,2292] [work_price] => [1410,1551,1706] [image] => https://akademik-stroy.ru/wp-content/uploads/materials/sip-paneli.jpg [area_modifier] => 134.44 [parent_name] => Стены 1 этаж (несущие) [parent_id] => 3 [material_sum] => 204967 [work_sum] => 199038 [total_sum] => 404005 [total_days] => 7 [display_material_sum] => 204 967 [display_work_sum] => 199 038 [display_total_sum] => 404 005 ) 1
404 005
Работа:199 038
Материалы:204 967
Дни:7
stdClass Object ( [id] => 85 [attribute_id] => 3 [name] => Сухой брус [material_modifier] => 1 [work_modifier] => 1 [options] => Array ( [0] => 150 мм [1] => 180 мм [2] => 200 мм ) [days] => [7,8,9] [material_price] => [6010,7190,8709] [work_price] => [3204,3845,4229] [image] => https://akademik-stroy.ru/wp-content/uploads/materials/suhoj-brus.jpg [area_modifier] => 134.44 [parent_name] => Стены 1 этаж (несущие) [parent_id] => 3 [material_sum] => 1018060 [work_sum] => 452283 [total_sum] => 1470343 [total_days] => 7 [display_material_sum] => 1 018 060 [display_work_sum] => 452 283 [display_total_sum] => 1 470 343 ) 1
1 470 343
Работа:452 283
Материалы:1 018 060
Дни:7
stdClass Object ( [id] => 86 [attribute_id] => 3 [name] => Профилированный брус [material_modifier] => 1 [work_modifier] => 1 [options] => Array ( [0] => 150 мм [1] => 180 мм [2] => 200 мм ) [days] => [7,8,9] [material_price] => [8190,9228,10051] [work_price] => [3845,4614,5075] [image] => https://akademik-stroy.ru/wp-content/uploads/materials/profilirovannyj-brus.jpg [area_modifier] => 134.44 [parent_name] => Стены 1 этаж (несущие) [parent_id] => 3 [material_sum] => 1387340 [work_sum] => 542768 [total_sum] => 1930108 [total_days] => 7 [display_material_sum] => 1 387 340 [display_work_sum] => 542 768 [display_total_sum] => 1 930 108 ) 1
1 930 108
Работа:542 768
Материалы:1 387 340
Дни:7
stdClass Object ( [id] => 87 [attribute_id] => 3 [name] => Оцилиндрованное бревно [material_modifier] => 1 [work_modifier] => 1 [options] => Array ( [0] => 180 мм [1] => 220 мм [2] => 260 мм [3] => 320 мм ) [days] => [7,8,9,10] [material_price] => [75190,9532,10868,13116] [work_price] => [3845,4691,5535,6863] [image] => https://akademik-stroy.ru/wp-content/uploads/materials/ocilindrovannoe-brevno-1.jpg [area_modifier] => 134.44 [parent_name] => Стены 1 этаж (несущие) [parent_id] => 3 [material_sum] => 12736765 [work_sum] => 542768 [total_sum] => 13279533 [total_days] => 7 [display_material_sum] => 12 736 765 [display_work_sum] => 542 768 [display_total_sum] => 13 279 533 ) 1
13 279 533
Работа:542 768
Материалы:12 736 765
Дни:7
stdClass Object ( [id] => 88 [attribute_id] => 3 [name] => Срубы [material_modifier] => 1 [work_modifier] => 1 [options] => Array ( [0] => 260 мм [1] => 320 мм [2] => 360 мм [3] => 400 мм [4] => 500 мм ) [days] => [7,8,9,10,11] [material_price] => [37975,46709,52314,58069,73167] [work_price] => [4806,5911,6621,7349,9260] [image] => https://akademik-stroy.ru/wp-content/uploads/materials/sruby.jpg [area_modifier] => 134.44 [parent_name] => Стены 1 этаж (несущие) [parent_id] => 3 [material_sum] => 6432752 [work_sum] => 678425 [total_sum] => 7111177 [total_days] => 7 [display_material_sum] => 6 432 752 [display_work_sum] => 678 425 [display_total_sum] => 7 111 177 ) 1
7 111 177
Работа:678 425
Материалы:6 432 752
Дни:7
stdClass Object ( [id] => 174 [attribute_id] => 3 [name] => Брус [material_modifier] => 1 [work_modifier] => 1 [options] => Array ( [0] => 150 мм [1] => 180 мм [2] => 200 мм ) [days] => [7,8,9] [material_price] => [5127,6152,7367] [work_price] => [1602,1922,2115] [image] => https://akademik-stroy.ru/wp-content/uploads/materials/brus.jpg [area_modifier] => 134.44 [parent_name] => Стены 1 этаж (несущие) [parent_id] => 3 [material_sum] => 868485 [work_sum] => 226142 [total_sum] => 1094627 [total_days] => 7 [display_material_sum] => 868 485 [display_work_sum] => 226 142 [display_total_sum] => 1 094 627 ) 1
1 094 627
Работа:226 142
Материалы:868 485
Дни:7
stdClass Object ( [id] => 175 [attribute_id] => 3 [name] => Газобетон [material_modifier] => 1 [work_modifier] => 1 [options] => Array ( [0] => 300 мм [1] => 375 мм [2] => 400 мм [3] => 500 мм [4] => 600 мм ) [days] => [29,31,35,37,44] [material_price] => [4298,5573,6356,7288,9119] [work_price] => [4538,5251,5926,6733,7195] [image] => https://akademik-stroy.ru/wp-content/uploads/materials/gazobeton.jpg [area_modifier] => 134.44 [parent_name] => Стены 1 этаж (несущие) [parent_id] => 3 [material_sum] => 728057 [work_sum] => 640593 [total_sum] => 1368650 [total_days] => 29 [display_material_sum] => 728 057 [display_work_sum] => 640 593 [display_total_sum] => 1 368 650 ) 1
1 368 650
Работа:640 593
Материалы:728 057
Дни:29
stdClass Object ( [id] => 176 [attribute_id] => 3 [name] => Блок [material_modifier] => 1 [work_modifier] => 1 [options] => Array ( [0] => 300 мм [1] => 375 мм [2] => 400 мм [3] => 500 мм [4] => 600 мм ) [days] => [29,31,35,37,44] [material_price] => [2698,3973,4356,6588,7119] [work_price] => [5038,5851,6426,8733,9195] [image] => https://akademik-stroy.ru/wp-content/uploads/materials/blok.jpg [area_modifier] => 134.44 [parent_name] => Стены 1 этаж (несущие) [parent_id] => 3 [material_sum] => 457026 [work_sum] => 711174 [total_sum] => 1168200 [total_days] => 29 [display_material_sum] => 457 026 [display_work_sum] => 711 174 [display_total_sum] => 1 168 200 ) 1
1 168 200
Работа:711 174
Материалы:457 026
Дни:29
stdClass Object ( [id] => 177 [attribute_id] => 3 [name] => Газосиликатный блок [material_modifier] => 1 [work_modifier] => 1 [options] => Array ( [0] => 300 мм [1] => 375 мм [2] => 400 мм [3] => 500 мм [4] => 600 мм ) [days] => [29,31,35,37,44] [material_price] => [4298,5573,6356,7288,9119] [work_price] => [4538,5251,5926,6733,7195] [image] => https://akademik-stroy.ru/wp-content/uploads/materials/gazosilikatnyj-blok.jpg [area_modifier] => 134.44 [parent_name] => Стены 1 этаж (несущие) [parent_id] => 3 [material_sum] => 728057 [work_sum] => 640593 [total_sum] => 1368650 [total_days] => 29 [display_material_sum] => 728 057 [display_work_sum] => 640 593 [display_total_sum] => 1 368 650 ) 1
1 368 650
Работа:640 593
Материалы:728 057
Дни:29
stdClass Object ( [id] => 178 [attribute_id] => 3 [name] => Керамзитобетонный блок [material_modifier] => 1 [work_modifier] => 1 [options] => Array ( [0] => 300 мм [1] => 375 мм [2] => 400 мм [3] => 500 мм [4] => 600 мм ) [days] => [23,23,24,25,28] [material_price] => [3641,4298,5693,7613,9612] [work_price] => [5737,5737,6903,7958,8901] [image] => https://akademik-stroy.ru/wp-content/uploads/materials/keramzitobetonnyj-blok.jpg [area_modifier] => 134.44 [parent_name] => Стены 1 этаж (несущие) [parent_id] => 3 [material_sum] => 616765 [work_sum] => 809846 [total_sum] => 1426611 [total_days] => 23 [display_material_sum] => 616 765 [display_work_sum] => 809 846 [display_total_sum] => 1 426 611 ) 1
1 426 611
Работа:809 846
Материалы:616 765
Дни:23
stdClass Object ( [id] => 179 [attribute_id] => 3 [name] => Деревянные [material_modifier] => 1 [work_modifier] => 1 [options] => Array ( [0] => 180 мм [1] => 220 мм [2] => 260 мм [3] => 320 мм ) [days] => [7,8,9,10] [material_price] => [7950,9458,11961,14472] [work_price] => [4037,4925,5812,7207] [image] => https://akademik-stroy.ru/wp-content/uploads/materials/derevyannye.jpg [area_modifier] => 134.44 [parent_name] => Стены 1 этаж (несущие) [parent_id] => 3 [material_sum] => 1346685 [work_sum] => 569871 [total_sum] => 1916556 [total_days] => 7 [display_material_sum] => 1 346 685 [display_work_sum] => 569 871 [display_total_sum] => 1 916 556 ) 1
1 916 556
Работа:569 871
Материалы:1 346 685
Дни:7
stdClass Object ( [id] => 181 [attribute_id] => 3 [name] => Камень [material_modifier] => 1 [work_modifier] => 1 [options] => Array ( [0] => 300 мм [1] => 400 мм [2] => 500 мм [3] => 600 мм ) [days] => [25,27,31,34] [material_price] => [5262,6844,8330,9815] [work_price] => [8331,9135,10427,11069] [image] => https://akademik-stroy.ru/wp-content/uploads/materials/kamen.jpg [area_modifier] => 134.44 [parent_name] => Стены 1 этаж (несущие) [parent_id] => 3 [material_sum] => 891353 [work_sum] => 1176021 [total_sum] => 2067374 [total_days] => 25 [display_material_sum] => 891 353 [display_work_sum] => 1 176 021 [display_total_sum] => 2 067 374 ) 1
2 067 374
Работа:1 176 021
Материалы:891 353
Дни:25
stdClass Object ( [id] => 182 [attribute_id] => 3 [name] => Каркасно-щитовые [material_modifier] => 1 [work_modifier] => 1 [options] => Array ( [0] => 150 мм [1] => 200 мм [2] => 250 мм [3] => 300 мм [4] => 350 мм [5] => 400 мм ) [days] => [15,16,17,18,19,20] [material_price] => [2379,2639,2898,3458,3601,4175] [work_price] => [2538,2820,3134,3483,4062,5642] [image] => https://akademik-stroy.ru/wp-content/uploads/materials/karkasno-shchitovye.jpg [area_modifier] => 134.44 [parent_name] => Стены 1 этаж (несущие) [parent_id] => 3 [material_sum] => 402989 [work_sum] => 358269 [total_sum] => 761258 [total_days] => 15 [display_material_sum] => 402 989 [display_work_sum] => 358 269 [display_total_sum] => 761 258 ) 1
761 258
Работа:358 269
Материалы:402 989
Дни:15
stdClass Object ( [id] => 183 [attribute_id] => 3 [name] => Рубленные [material_modifier] => 1 [work_modifier] => 1 [options] => Array ( [0] => 150 мм [1] => 200 мм [2] => 250 мм [3] => 300 мм [4] => 350 мм [5] => 400 мм ) [days] => [15,16,17,18,17,18] [material_price] => [35950,50267,60583,75900,80217,100533] [work_price] => [9612,12816,16020,19224,22428,25632] [image] => https://akademik-stroy.ru/wp-content/uploads/materials/rublennye.jpg [area_modifier] => 134.44 [parent_name] => Стены 1 этаж (несущие) [parent_id] => 3 [material_sum] => 6089729 [work_sum] => 1356849 [total_sum] => 7446578 [total_days] => 15 [display_material_sum] => 6 089 729 [display_work_sum] => 1 356 849 [display_total_sum] => 7 446 578 ) 1
7 446 578
Работа:1 356 849
Материалы:6 089 729
Дни:15
stdClass Object ( [id] => 185 [attribute_id] => 3 [name] => Теплоблок [material_modifier] => 1 [work_modifier] => 1 [options] => Array ( [0] => 300 мм (с облицовкой, не покрашенный) [1] => 400 мм (с облицовкой, не покрашенный) [2] => 300 мм (с облицовкой, покрашенный) [3] => 400 мм (с облицовкой, покрашенный) ) [days] => [15,16,15,16] [material_price] => [2888,3729,3957,4258] [work_price] => [2564,3229,2949,3713] [image] => https://akademik-stroy.ru/wp-content/uploads/materials/teploblok.jpg [area_modifier] => 134.44 [parent_name] => Стены 1 этаж (несущие) [parent_id] => 3 [material_sum] => 489211 [work_sum] => 361939 [total_sum] => 851150 [total_days] => 15 [display_material_sum] => 489 211 [display_work_sum] => 361 939 [display_total_sum] => 851 150 ) 1
851 150
Работа:361 939
Материалы:489 211
Дни:15
stdClass Object ( [id] => 186 [attribute_id] => 3 [name] => Арболитовые блоки [material_modifier] => 1 [work_modifier] => 1 [options] => Array ( [0] => 300 мм [1] => 400 мм [2] => 600 мм ) [days] => [19,22,27] [material_price] => [3210,4475,5852] [work_price] => [4214,4788,5866] [image] => https://akademik-stroy.ru/wp-content/uploads/materials/arbolitovye-bloki.png [area_modifier] => 134.44 [parent_name] => Стены 1 этаж (несущие) [parent_id] => 3 [material_sum] => 543756 [work_sum] => 594857 [total_sum] => 1138613 [total_days] => 19 [display_material_sum] => 543 756 [display_work_sum] => 594 857 [display_total_sum] => 1 138 613 ) 1
1 138 613
Работа:594 857
Материалы:543 756
Дни:19
stdClass Object ( [id] => 187 [attribute_id] => 3 [name] => Полистиролбетон [material_modifier] => 1 [work_modifier] => 1 [options] => Array ( [0] => 300 мм [1] => 400 мм [2] => 600 мм ) [days] => [29,31,35] [material_price] => [2798,4573,5256] [work_price] => [5038,5851,6426] [image] => https://akademik-stroy.ru/wp-content/uploads/materials/polistirolbeton.jpg [area_modifier] => 134.44 [parent_name] => Стены 1 этаж (несущие) [parent_id] => 3 [material_sum] => 473966 [work_sum] => 711174 [total_sum] => 1185140 [total_days] => 29 [display_material_sum] => 473 966 [display_work_sum] => 711 174 [display_total_sum] => 1 185 140 ) 1
1 185 140
Работа:711 174
Материалы:473 966
Дни:29
stdClass Object ( [id] => 188 [attribute_id] => 3 [name] => Шлакоблок [material_modifier] => 1 [work_modifier] => 1 [options] => Array ( [0] => 400 мм [1] => 600 мм ) [days] => [15,16] [material_price] => [2391,3471] [work_price] => [2642,3662] [image] => https://akademik-stroy.ru/wp-content/uploads/materials/shlakoblok.jpg [area_modifier] => 134.44 [parent_name] => Стены 1 этаж (несущие) [parent_id] => 3 [material_sum] => 405022 [work_sum] => 372950 [total_sum] => 777972 [total_days] => 15 [display_material_sum] => 405 022 [display_work_sum] => 372 950 [display_total_sum] => 777 972 ) 1
777 972
Работа:372 950
Материалы:405 022
Дни:15
stdClass Object ( [id] => 189 [attribute_id] => 3 [name] => Теплая керамика [material_modifier] => 1 [work_modifier] => 1 [options] => Array ( [0] => 380 мм [1] => 380 мм Thermo [2] => 440 мм [3] => 510 мм ) [days] => [23,23,24,25] [material_price] => [4510,5098,6093,8013] [work_price] => [4737,4937,5903,6958] [image] => https://akademik-stroy.ru/wp-content/uploads/materials/teplaya-keramika.jpg [area_modifier] => 134.44 [parent_name] => Стены 1 этаж (несущие) [parent_id] => 3 [material_sum] => 763969 [work_sum] => 668684 [total_sum] => 1432653 [total_days] => 23 [display_material_sum] => 763 969 [display_work_sum] => 668 684 [display_total_sum] => 1 432 653 ) 1
1 432 653
Работа:668 684
Материалы:763 969
Дни:23
stdClass Object ( [id] => 190 [attribute_id] => 3 [name] => Несъемная опалубка [material_modifier] => 1 [work_modifier] => 1 [options] => Array ( [0] => 200 мм [1] => 250 мм [2] => 300 мм [3] => 350 мм ) [days] => [15,17,19,21] [material_price] => [3302,3902,4108,5008] [work_price] => [2100,2100,2300,2534] [image] => https://akademik-stroy.ru/wp-content/uploads/materials/nesemnaya-opalubka.jpg [area_modifier] => 134.44 [parent_name] => Стены 1 этаж (несущие) [parent_id] => 3 [material_sum] => 559340 [work_sum] => 296440 [total_sum] => 855780 [total_days] => 15 [display_material_sum] => 559 340 [display_work_sum] => 296 440 [display_total_sum] => 855 780 ) 1
855 780
Работа:296 440
Материалы:559 340
Дни:15
stdClass Object ( [id] => 251 [attribute_id] => 3 [name] => Бревно [material_modifier] => 1 [work_modifier] => 1 [options] => Array ( [0] => 260 мм [1] => 320 мм [2] => 360 мм [3] => 400 мм [4] => 500 мм ) [days] => [7,8,9,10,11] [material_price] => [1874,24045,26930,30972,38825] [work_price] => [5046,6207,6952,7716,9723] [image] => https://akademik-stroy.ru/wp-content/uploads/materials/sruby.jpg [area_modifier] => 134.44 [parent_name] => Стены 1 этаж (несущие) [parent_id] => 3 [material_sum] => 317445 [work_sum] => 712303 [total_sum] => 1029748 [total_days] => 7 [display_material_sum] => 317 445 [display_work_sum] => 712 303 [display_total_sum] => 1 029 748 ) 1
1 029 748
Работа:712 303
Материалы:317 445
Дни:7
Перекрытие первого этажа
stdClass Object ( [id] => 7 [attribute_id] => 4 [name] => Деревянные балки [material_modifier] => 1 [work_modifier] => 1 [options] => Array ( [0] => без утепления [1] => утепление 200 мм [2] => утепление 250 мм [3] => утепление 300 мм [4] => утепление 350 мм [5] => утепление 400 мм [6] => утепление 450 мм [7] => утепление 500 мм ) [days] => [8,9,9,9,11,12,13,14] [material_price] => [1634,2042,2344,2947,3149,3652,3354,3557] [work_price] => [1230,1339,1393,1426,1460,1513,1587,1620] [image] => https://akademik-stroy.ru/wp-content/uploads/materials/derevyannye-balki.png [area_modifier] => 134.44 [parent_name] => Перекрытие первого этажа [parent_id] => 4 [material_sum] => 276790 [work_sum] => 173629 [total_sum] => 450419 [total_days] => 8 [display_material_sum] => 276 790 [display_work_sum] => 173 629 [display_total_sum] => 450 419 ) 1
450 419
Работа:173 629
Материалы:276 790
Дни:8
stdClass Object ( [id] => 8 [attribute_id] => 4 [name] => Сборные ж/б плиты [material_modifier] => 1 [work_modifier] => 1 [options] => Array ( [0] => без утепления [1] => утепление 150 мм [2] => утепление 200 мм [3] => утепление 250 мм [4] => утепление 300 мм [5] => утепление 350 мм [6] => утепление 400 мм [7] => утепление 450 мм [8] => утепление 500 мм ) [days] => [13,15,15,15,15,15,15,15,15] [material_price] => [3067,5577,5928,6679,7730,8782,9833,10884,11935] [work_price] => [1520,1956,2102,2247,2392,2537,2684,2829,2974] [image] => https://akademik-stroy.ru/wp-content/uploads/materials/sbornye-zh-b-plity-2.jpg [area_modifier] => 134.44 [parent_name] => Перекрытие первого этажа [parent_id] => 4 [material_sum] => 519533 [work_sum] => 214566 [total_sum] => 734099 [total_days] => 13 [display_material_sum] => 519 533 [display_work_sum] => 214 566 [display_total_sum] => 734 099 ) 1
734 099
Работа:214 566
Материалы:519 533
Дни:13
stdClass Object ( [id] => 89 [attribute_id] => 4 [name] => Монолитная ж/б плита [material_modifier] => 1 [work_modifier] => 1 [options] => Array ( [0] => без утепления [1] => утепление 150 мм [2] => утепление 200 мм [3] => утепление 250 мм [4] => утепление 300 мм [5] => утепление 350 мм [6] => утепление 400 мм [7] => утепление 450 мм [8] => утепление 500 мм ) [days] => [18,20,20,20,20,20,20,20,20] [material_price] => [4837,6572,7224,7375,79426,8177,8728,9180,10031] [work_price] => [3348,3921,4112,4302,4493,4684,4875,5066,5256] [image] => https://akademik-stroy.ru/wp-content/uploads/materials/monolitnaya-zh-b-plita-2.jpg [area_modifier] => 134.44 [parent_name] => Перекрытие первого этажа [parent_id] => 4 [material_sum] => 819361 [work_sum] => 472610 [total_sum] => 1291971 [total_days] => 18 [display_material_sum] => 819 361 [display_work_sum] => 472 610 [display_total_sum] => 1 291 971 ) 1
1 291 971
Работа:472 610
Материалы:819 361
Дни:18
Стены 2 этаж (несущие)
stdClass Object ( [id] => 10 [attribute_id] => 5 [name] => Пеноблок [material_modifier] => 1 [work_modifier] => 1 [options] => Array ( [0] => 300 мм [1] => 400 мм [2] => 500 мм [3] => 600 мм ) [days] => [29,31,34,39] [material_price] => [3000,4000,4500,4937] [work_price] => [5033,5805,6400,8710] [image] => https://akademik-stroy.ru/wp-content/uploads/materials/penoblok.jpg [area_modifier] => 88.11 [parent_name] => Стены 2 этаж (несущие) [parent_id] => 5 [material_sum] => 333056 [work_sum] => 465631 [total_sum] => 798687 [total_days] => 29 [display_material_sum] => 333 056 [display_work_sum] => 465 631 [display_total_sum] => 798 687 ) 1
798 687
Работа:465 631
Материалы:333 056
Дни:29
stdClass Object ( [id] => 90 [attribute_id] => 5 [name] => Керамический блок [material_modifier] => 1 [work_modifier] => 1 [options] => Array ( [0] => 380 мм [1] => 380 мм Thermo [2] => 440 мм [3] => 510 мм ) [days] => [23,23,24,25] [material_price] => [4510,5098,6093,8013] [work_price] => [4737,4937,5903,6958] [image] => https://akademik-stroy.ru/wp-content/uploads/materials/keramicheskij-blok.jpg [area_modifier] => 88.11 [parent_name] => Стены 2 этаж (несущие) [parent_id] => 5 [material_sum] => 500694 [work_sum] => 438246 [total_sum] => 938940 [total_days] => 23 [display_material_sum] => 500 694 [display_work_sum] => 438 246 [display_total_sum] => 938 940 ) 1
938 940
Работа:438 246
Материалы:500 694
Дни:23
stdClass Object ( [id] => 91 [attribute_id] => 5 [name] => Кирпич [material_modifier] => 1 [work_modifier] => 1 [options] => Array ( [0] => Кирпич 250 мм [1] => Кирпич 380 мм [2] => Кирпич 510 мм [3] => Кирпич 640 мм [4] => Кирпич 770 мм ) [days] => [30,30,31,33,36] [material_price] => [5500,7142,9206,10171,12235] [work_price] => [8736,10041,12018,15240,18462] [image] => https://akademik-stroy.ru/wp-content/uploads/materials/kirpich.jpg [area_modifier] => 88.11 [parent_name] => Стены 2 этаж (несущие) [parent_id] => 5 [material_sum] => 610602 [work_sum] => 808215 [total_sum] => 1418817 [total_days] => 30 [display_material_sum] => 610 602 [display_work_sum] => 808 215 [display_total_sum] => 1 418 817 ) 1
1 418 817
Работа:808 215
Материалы:610 602
Дни:30
stdClass Object ( [id] => 92 [attribute_id] => 5 [name] => Монолитные [material_modifier] => 1 [work_modifier] => 1 [options] => Array ( [0] => 150 мм [1] => 200 мм [2] => 250 мм [3] => 300 мм [4] => 350 мм [5] => 400 мм ) [days] => [45,46,47,49,50,53] [material_price] => [6545,7876,10175,12011,13908,15204] [work_price] => [5106,6444,7698,8552,9807,11461] [image] => https://akademik-stroy.ru/wp-content/uploads/materials/monolitnye.jpg [area_modifier] => 88.11 [parent_name] => Стены 2 этаж (несущие) [parent_id] => 5 [material_sum] => 726617 [work_sum] => 472384 [total_sum] => 1199001 [total_days] => 45 [display_material_sum] => 726 617 [display_work_sum] => 472 384 [display_total_sum] => 1 199 001 ) 1
1 199 001
Работа:472 384
Материалы:726 617
Дни:45
stdClass Object ( [id] => 93 [attribute_id] => 5 [name] => Клееный брус [material_modifier] => 1 [work_modifier] => 1 [options] => Array ( [0] => 160 мм [1] => 175 мм [2] => 200 мм [3] => 215 мм [4] => 240 мм [5] => 270 мм [6] => 282 мм ) [days] => [24,28,32,37,40,42,48] [material_price] => [16975,18773,19950,20545,21599,22159,23275] [work_price] => [4806,5287,5815,6397,7036,7740,8514] [image] => https://akademik-stroy.ru/wp-content/uploads/materials/kleenyj-brus.jpg [area_modifier] => 88.11 [parent_name] => Стены 2 этаж (несущие) [parent_id] => 5 [material_sum] => 1884541 [work_sum] => 444629 [total_sum] => 2329170 [total_days] => 24 [display_material_sum] => 1 884 541 [display_work_sum] => 444 629 [display_total_sum] => 2 329 170 ) 1
2 329 170
Работа:444 629
Материалы:1 884 541
Дни:24
stdClass Object ( [id] => 94 [attribute_id] => 5 [name] => Каркасные [material_modifier] => 1 [work_modifier] => 1 [options] => Array ( [0] => 150 мм [1] => 200 мм [2] => 250 мм [3] => 300 мм ) [days] => [15,16,17,18] [material_price] => [2379,2639,2898,3258] [work_price] => [2418,2686,2985,3716] [image] => https://akademik-stroy.ru/wp-content/uploads/materials/karkasnye.jpg [area_modifier] => 88.11 [parent_name] => Стены 2 этаж (несущие) [parent_id] => 5 [material_sum] => 264113 [work_sum] => 223702 [total_sum] => 487815 [total_days] => 15 [display_material_sum] => 264 113 [display_work_sum] => 223 702 [display_total_sum] => 487 815 ) 1
487 815
Работа:223 702
Материалы:264 113
Дни:15
stdClass Object ( [id] => 95 [attribute_id] => 5 [name] => СИП-панели [material_modifier] => 1 [work_modifier] => 1 [options] => Array ( [0] => 120 мм [1] => 170 мм [2] => 220 мм ) [days] => [7,7,7] [material_price] => [1210,1856,2292] [work_price] => [1410,1551,1706] [image] => https://akademik-stroy.ru/wp-content/uploads/materials/sip-paneli.jpg [area_modifier] => 88.11 [parent_name] => Стены 2 этаж (несущие) [parent_id] => 5 [material_sum] => 134333 [work_sum] => 130447 [total_sum] => 264780 [total_days] => 7 [display_material_sum] => 134 333 [display_work_sum] => 130 447 [display_total_sum] => 264 780 ) 1
264 780
Работа:130 447
Материалы:134 333
Дни:7
stdClass Object ( [id] => 96 [attribute_id] => 5 [name] => Сухой брус [material_modifier] => 1 [work_modifier] => 1 [options] => Array ( [0] => 150 мм [1] => 180 мм [2] => 200 мм ) [days] => [7,8,9] [material_price] => [6010,7190,8709] [work_price] => [3204,3845,4229] [image] => https://akademik-stroy.ru/wp-content/uploads/materials/suhoj-brus.jpg [area_modifier] => 88.11 [parent_name] => Стены 2 этаж (несущие) [parent_id] => 5 [material_sum] => 667222 [work_sum] => 296420 [total_sum] => 963642 [total_days] => 7 [display_material_sum] => 667 222 [display_work_sum] => 296 420 [display_total_sum] => 963 642 ) 1
963 642
Работа:296 420
Материалы:667 222
Дни:7
stdClass Object ( [id] => 97 [attribute_id] => 5 [name] => Профилированный брус [material_modifier] => 1 [work_modifier] => 1 [options] => Array ( [0] => 150 мм [1] => 180 мм [2] => 200 мм ) [days] => [7,8,9] [material_price] => [8190,9228,10051] [work_price] => [3845,4614,5075] [image] => https://akademik-stroy.ru/wp-content/uploads/materials/profilirovannyj-brus.jpg [area_modifier] => 88.11 [parent_name] => Стены 2 этаж (несущие) [parent_id] => 5 [material_sum] => 909242 [work_sum] => 355722 [total_sum] => 1264964 [total_days] => 7 [display_material_sum] => 909 242 [display_work_sum] => 355 722 [display_total_sum] => 1 264 964 ) 1
1 264 964
Работа:355 722
Материалы:909 242
Дни:7
stdClass Object ( [id] => 98 [attribute_id] => 5 [name] => Оцилиндрованное бревно [material_modifier] => 1 [work_modifier] => 1 [options] => Array ( [0] => 180 мм [1] => 220 мм [2] => 260 мм [3] => 320 мм ) [days] => [7,8,9,10] [material_price] => [75190,9532,10868,13116] [work_price] => [3845,4691,5535,6863] [image] => https://akademik-stroy.ru/wp-content/uploads/materials/ocilindrovannoe-brevno-1.jpg [area_modifier] => 88.11 [parent_name] => Стены 2 этаж (несущие) [parent_id] => 5 [material_sum] => 8347489 [work_sum] => 355722 [total_sum] => 8703211 [total_days] => 7 [display_material_sum] => 8 347 489 [display_work_sum] => 355 722 [display_total_sum] => 8 703 211 ) 1
8 703 211
Работа:355 722
Материалы:8 347 489
Дни:7
stdClass Object ( [id] => 99 [attribute_id] => 5 [name] => Срубы [material_modifier] => 1 [work_modifier] => 1 [options] => Array ( [0] => 260 мм [1] => 320 мм [2] => 360 мм [3] => 400 мм [4] => 500 мм ) [days] => [7,8,9,10,11] [material_price] => [16175,23709,26314,29069,32167] [work_price] => [4806,5911,6621,7349,9260] [image] => https://akademik-stroy.ru/wp-content/uploads/materials/suhoj-brus.jpg [area_modifier] => 88.11 [parent_name] => Стены 2 этаж (несущие) [parent_id] => 5 [material_sum] => 1795726 [work_sum] => 444629 [total_sum] => 2240355 [total_days] => 7 [display_material_sum] => 1 795 726 [display_work_sum] => 444 629 [display_total_sum] => 2 240 355 ) 1
2 240 355
Работа:444 629
Материалы:1 795 726
Дни:7
stdClass Object ( [id] => 194 [attribute_id] => 5 [name] => Брус [material_modifier] => 1 [work_modifier] => 1 [options] => Array ( [0] => 150 мм [1] => 180 мм [2] => 200 мм ) [days] => [10,13,15] [material_price] => [5127,6152,7367] [work_price] => [1602,1922,2115] [image] => https://akademik-stroy.ru/wp-content/uploads/materials/brus.jpg [area_modifier] => 88.11 [parent_name] => Стены 2 этаж (несущие) [parent_id] => 5 [material_sum] => 569192 [work_sum] => 148210 [total_sum] => 717402 [total_days] => 10 [display_material_sum] => 569 192 [display_work_sum] => 148 210 [display_total_sum] => 717 402 ) 1
717 402
Работа:148 210
Материалы:569 192
Дни:10
stdClass Object ( [id] => 195 [attribute_id] => 5 [name] => Газобетон [material_modifier] => 1 [work_modifier] => 1 [options] => Array ( [0] => 300 мм [1] => 375 мм [2] => 400 мм [3] => 500 мм [4] => 600 мм ) [days] => [29,31,35,37,44] [material_price] => [4298,5573,6356,7288,9119] [work_price] => [4538,5251,5926,6733,7195] [image] => https://akademik-stroy.ru/wp-content/uploads/materials/gazobeton.jpg [area_modifier] => 88.11 [parent_name] => Стены 2 этаж (несущие) [parent_id] => 5 [material_sum] => 477158 [work_sum] => 419835 [total_sum] => 896993 [total_days] => 29 [display_material_sum] => 477 158 [display_work_sum] => 419 835 [display_total_sum] => 896 993 ) 1
896 993
Работа:419 835
Материалы:477 158
Дни:29
stdClass Object ( [id] => 196 [attribute_id] => 5 [name] => Блок [material_modifier] => 1 [work_modifier] => 1 [options] => Array ( [0] => 300 мм [1] => 375 мм [2] => 400 мм [3] => 500 мм [4] => 600 мм ) [days] => [29,31,35,37,44] [material_price] => [2698,3973,4356,6588,7119] [work_price] => [5038,5851,6426,8733,9195] [image] => https://akademik-stroy.ru/wp-content/uploads/materials/blok.jpg [area_modifier] => 88.11 [parent_name] => Стены 2 этаж (несущие) [parent_id] => 5 [material_sum] => 299528 [work_sum] => 466093 [total_sum] => 765621 [total_days] => 29 [display_material_sum] => 299 528 [display_work_sum] => 466 093 [display_total_sum] => 765 621 ) 1
765 621
Работа:466 093
Материалы:299 528
Дни:29
stdClass Object ( [id] => 197 [attribute_id] => 5 [name] => Газосиликатный блок [material_modifier] => 1 [work_modifier] => 1 [options] => Array ( [0] => 300 мм [1] => 375 мм [2] => 400 мм [3] => 500 мм [4] => 600 мм ) [days] => [29,31,35,37,44] [material_price] => [4298,5573,6356,7288,9119] [work_price] => [4538,5251,5926,6733,7195] [image] => https://akademik-stroy.ru/wp-content/uploads/materials/gazosilikatnyj-blok.jpg [area_modifier] => 88.11 [parent_name] => Стены 2 этаж (несущие) [parent_id] => 5 [material_sum] => 477158 [work_sum] => 419835 [total_sum] => 896993 [total_days] => 29 [display_material_sum] => 477 158 [display_work_sum] => 419 835 [display_total_sum] => 896 993 ) 1
896 993
Работа:419 835
Материалы:477 158
Дни:29
stdClass Object ( [id] => 198 [attribute_id] => 5 [name] => Керамзитобетонный блок [material_modifier] => 1 [work_modifier] => 1 [options] => Array ( [0] => 300 мм [1] => 375 мм [2] => 400 мм [3] => 500 мм [4] => 600 мм ) [days] => [23,23,24,25,28] [material_price] => [3641,4298,5693,7613,9612] [work_price] => [5737,5737,6903,7958,8901] [image] => https://akademik-stroy.ru/wp-content/uploads/materials/keramzitobetonnyj-blok.jpg [area_modifier] => 88.11 [parent_name] => Стены 2 этаж (несущие) [parent_id] => 5 [material_sum] => 404219 [work_sum] => 530761 [total_sum] => 934980 [total_days] => 23 [display_material_sum] => 404 219 [display_work_sum] => 530 761 [display_total_sum] => 934 980 ) 1
934 980
Работа:530 761
Материалы:404 219
Дни:23
stdClass Object ( [id] => 199 [attribute_id] => 5 [name] => Деревянные [material_modifier] => 1 [work_modifier] => 1 [options] => Array ( [0] => 180 мм [1] => 220 мм [2] => 260 мм [3] => 320 мм ) [days] => [7,8,9,10] [material_price] => [7950,9458,11961,14472] [work_price] => [4037,4925,5812,7207] [image] => https://akademik-stroy.ru/wp-content/uploads/materials/derevyannye.jpg [area_modifier] => 88.11 [parent_name] => Стены 2 этаж (несущие) [parent_id] => 5 [material_sum] => 882598 [work_sum] => 373485 [total_sum] => 1256083 [total_days] => 7 [display_material_sum] => 882 598 [display_work_sum] => 373 485 [display_total_sum] => 1 256 083 ) 1
1 256 083
Работа:373 485
Материалы:882 598
Дни:7
stdClass Object ( [id] => 200 [attribute_id] => 5 [name] => Камень [material_modifier] => 1 [work_modifier] => 1 [options] => Array ( [0] => 300 мм [1] => 400 мм [2] => 500 мм [3] => 600 мм ) [days] => [25,27,31,34] [material_price] => [5262,6844,8330,9815] [work_price] => [8331,9135,10427,11069] [image] => https://akademik-stroy.ru/wp-content/uploads/materials/kamen.jpg [area_modifier] => 88.11 [parent_name] => Стены 2 этаж (несущие) [parent_id] => 5 [material_sum] => 584180 [work_sum] => 770747 [total_sum] => 1354927 [total_days] => 25 [display_material_sum] => 584 180 [display_work_sum] => 770 747 [display_total_sum] => 1 354 927 ) 1
1 354 927
Работа:770 747
Материалы:584 180
Дни:25
stdClass Object ( [id] => 201 [attribute_id] => 5 [name] => Каркасно-щитовые [material_modifier] => 1 [work_modifier] => 1 [options] => Array ( [0] => 150 мм [1] => 200 мм [2] => 250 мм [3] => 300 мм [4] => 350 мм [5] => 400 мм ) [days] => [15,16,17,18,19,20] [material_price] => [2379,2639,2898,3458,3601,4175] [work_price] => [2538,2820,3134,3483,4062,5642] [image] => https://akademik-stroy.ru/wp-content/uploads/materials/karkasno-shchitovye.jpg [area_modifier] => 88.11 [parent_name] => Стены 2 этаж (несущие) [parent_id] => 5 [material_sum] => 264113 [work_sum] => 234804 [total_sum] => 498917 [total_days] => 15 [display_material_sum] => 264 113 [display_work_sum] => 234 804 [display_total_sum] => 498 917 ) 1
498 917
Работа:234 804
Материалы:264 113
Дни:15
stdClass Object ( [id] => 202 [attribute_id] => 5 [name] => Рубленные [material_modifier] => 1 [work_modifier] => 1 [options] => Array ( [0] => 150 мм [1] => 200 мм [2] => 250 мм [3] => 300 мм [4] => 350 мм [5] => 400 мм ) [days] => [15,16,17,18,17,18] [material_price] => [35950,50267,60583,75900,80217,100533] [work_price] => [9612,12816,16020,19224,22428,25632] [image] => https://akademik-stroy.ru/wp-content/uploads/materials/rublennye.jpg [area_modifier] => 88.11 [parent_name] => Стены 2 этаж (несущие) [parent_id] => 5 [material_sum] => 3991119 [work_sum] => 889259 [total_sum] => 4880378 [total_days] => 15 [display_material_sum] => 3 991 119 [display_work_sum] => 889 259 [display_total_sum] => 4 880 378 ) 1
4 880 378
Работа:889 259
Материалы:3 991 119
Дни:15
stdClass Object ( [id] => 203 [attribute_id] => 5 [name] => Теплоблок [material_modifier] => 1 [work_modifier] => 1 [options] => Array ( [0] => 300 мм (с облицовкой, не покрашенный) [1] => 400 мм (с облицовкой, не покрашенный) [2] => 300 мм (с облицовкой, покрашенный) [3] => 400 мм (с облицовкой, покрашенный) ) [days] => [15,16,15,16] [material_price] => [2888,3729,3957,4258] [work_price] => [2564,3229,2949,3713] [image] => https://akademik-stroy.ru/wp-content/uploads/materials/teploblok.jpg [area_modifier] => 88.11 [parent_name] => Стены 2 этаж (несущие) [parent_id] => 5 [material_sum] => 320622 [work_sum] => 237210 [total_sum] => 557832 [total_days] => 15 [display_material_sum] => 320 622 [display_work_sum] => 237 210 [display_total_sum] => 557 832 ) 1
557 832
Работа:237 210
Материалы:320 622
Дни:15
stdClass Object ( [id] => 204 [attribute_id] => 5 [name] => Арболитовые блоки [material_modifier] => 1 [work_modifier] => 1 [options] => Array ( [0] => 300 мм [1] => 400 мм [2] => 600 мм ) [days] => [19,22,27] [material_price] => [3210,4475,5852] [work_price] => [4214,4788,5866] [image] => https://akademik-stroy.ru/wp-content/uploads/materials/arbolitovye-bloki.png [area_modifier] => 88.11 [parent_name] => Стены 2 этаж (несущие) [parent_id] => 5 [material_sum] => 356370 [work_sum] => 389860 [total_sum] => 746230 [total_days] => 19 [display_material_sum] => 356 370 [display_work_sum] => 389 860 [display_total_sum] => 746 230 ) 1
746 230
Работа:389 860
Материалы:356 370
Дни:19
stdClass Object ( [id] => 205 [attribute_id] => 5 [name] => Полистиролбетон [material_modifier] => 1 [work_modifier] => 1 [options] => Array ( [0] => 300 мм [1] => 400 мм [2] => 600 мм ) [days] => [29,31,35] [material_price] => [2798,4573,5256] [work_price] => [5038,5851,6426] [image] => https://akademik-stroy.ru/wp-content/uploads/materials/polistirolbeton.jpg [area_modifier] => 88.11 [parent_name] => Стены 2 этаж (несущие) [parent_id] => 5 [material_sum] => 310630 [work_sum] => 466093 [total_sum] => 776723 [total_days] => 29 [display_material_sum] => 310 630 [display_work_sum] => 466 093 [display_total_sum] => 776 723 ) 1
776 723
Работа:466 093
Материалы:310 630
Дни:29
stdClass Object ( [id] => 206 [attribute_id] => 5 [name] => Шлакоблок [material_modifier] => 1 [work_modifier] => 1 [options] => Array ( [0] => 400 мм [1] => 600 мм ) [days] => [15,16] [material_price] => [2391,3471] [work_price] => [2642,3662] [image] => https://akademik-stroy.ru/wp-content/uploads/materials/shlakoblok.jpg [area_modifier] => 88.11 [parent_name] => Стены 2 этаж (несущие) [parent_id] => 5 [material_sum] => 265445 [work_sum] => 244426 [total_sum] => 509871 [total_days] => 15 [display_material_sum] => 265 445 [display_work_sum] => 244 426 [display_total_sum] => 509 871 ) 1
509 871
Работа:244 426
Материалы:265 445
Дни:15
stdClass Object ( [id] => 245 [attribute_id] => 5 [name] => Теплая керамика [material_modifier] => 1 [work_modifier] => 1 [options] => Array ( [0] => 380 мм [1] => 380 мм Thermo [2] => 440 мм [3] => 510 мм ) [days] => [10,10,11,12] [material_price] => [4510,5098,6093,8013] [work_price] => [4737,4937,5903,6958] [image] => https://akademik-stroy.ru/wp-content/uploads/materials/teplaya-keramika.jpg [area_modifier] => 88.11 [parent_name] => Стены 2 этаж (несущие) [parent_id] => 5 [material_sum] => 500694 [work_sum] => 438246 [total_sum] => 938940 [total_days] => 10 [display_material_sum] => 500 694 [display_work_sum] => 438 246 [display_total_sum] => 938 940 ) 1
938 940
Работа:438 246
Материалы:500 694
Дни:10
stdClass Object ( [id] => 246 [attribute_id] => 5 [name] => Несъемная опалубка [material_modifier] => 1 [work_modifier] => 1 [options] => Array ( [0] => 380 мм [1] => 380 мм Thermo [2] => 440 мм [3] => 510 мм ) [days] => [10,10,11,12] [material_price] => [3302,3902,4108,5008] [work_price] => [2100,2100,2300,2534] [image] => https://akademik-stroy.ru/wp-content/uploads/materials/nesemnaya-opalubka.jpg [area_modifier] => 88.11 [parent_name] => Стены 2 этаж (несущие) [parent_id] => 5 [material_sum] => 366583 [work_sum] => 194283 [total_sum] => 560866 [total_days] => 10 [display_material_sum] => 366 583 [display_work_sum] => 194 283 [display_total_sum] => 560 866 ) 1
560 866
Работа:194 283
Материалы:366 583
Дни:10
stdClass Object ( [id] => 254 [attribute_id] => 5 [name] => Бревно [material_modifier] => 1 [work_modifier] => 1 [options] => Array ( [0] => 260 мм [1] => 320 мм [2] => 360 мм [3] => 400 мм [4] => 500 мм ) [days] => [7,8,9,10,11] [material_price] => [1874,24045,26930,30972,38825] [work_price] => [5046,6207,6952,7716,9723] [image] => https://akademik-stroy.ru/wp-content/uploads/materials/sruby.jpg [area_modifier] => 88.11 [parent_name] => Стены 2 этаж (несущие) [parent_id] => 5 [material_sum] => 208049 [work_sum] => 466833 [total_sum] => 674882 [total_days] => 7 [display_material_sum] => 208 049 [display_work_sum] => 466 833 [display_total_sum] => 674 882 ) 1
674 882
Работа:466 833
Материалы:208 049
Дни:7
Крыша (Скатная)
stdClass Object ( [id] => 164 [attribute_id] => 37 [name] => Металлочерепица [material_modifier] => 1 [work_modifier] => 1 [options] => Array ( ) [days] => [20] [material_price] => [6112] [work_price] => [5726] [image] => https://akademik-stroy.ru/wp-content/uploads/materials/metallocherepica.jpg [area_modifier] => 134.44 [parent_name] => Крыша (Скатная) [parent_id] => 37 [material_sum] => 1035339 [work_sum] => 808294 [total_sum] => 1843633 [total_days] => 20 [display_material_sum] => 1 035 339 [display_work_sum] => 808 294 [display_total_sum] => 1 843 633 ) 1
1 843 633
Работа:808 294
Материалы:1 035 339
Дни:20
stdClass Object ( [id] => 165 [attribute_id] => 37 [name] => Гибкая черепица [material_modifier] => 1 [work_modifier] => 1 [options] => Array ( ) [days] => [20] [material_price] => [6980] [work_price] => [5950] [image] => https://akademik-stroy.ru/wp-content/uploads/materials/gibkaya-cherepica.jpg [area_modifier] => 134.44 [parent_name] => Крыша (Скатная) [parent_id] => 37 [material_sum] => 1182373 [work_sum] => 839914 [total_sum] => 2022287 [total_days] => 20 [display_material_sum] => 1 182 373 [display_work_sum] => 839 914 [display_total_sum] => 2 022 287 ) 1
2 022 287
Работа:839 914
Материалы:1 182 373
Дни:20
stdClass Object ( [id] => 166 [attribute_id] => 37 [name] => Цементно-песчаная черепица [material_modifier] => 1 [work_modifier] => 1 [options] => Array ( ) [days] => [20] [material_price] => [10560] [work_price] => [9456] [image] => https://akademik-stroy.ru/wp-content/uploads/materials/cementno-peschanaya-cherepica.jpg [area_modifier] => 134.44 [parent_name] => Крыша (Скатная) [parent_id] => 37 [material_sum] => 1788805 [work_sum] => 1334828 [total_sum] => 3123633 [total_days] => 20 [display_material_sum] => 1 788 805 [display_work_sum] => 1 334 828 [display_total_sum] => 3 123 633 ) 1
3 123 633
Работа:1 334 828
Материалы:1 788 805
Дни:20
stdClass Object ( [id] => 167 [attribute_id] => 37 [name] => Композитная черепица [material_modifier] => 1 [work_modifier] => 1 [options] => Array ( ) [days] => [20] [material_price] => [9506] [work_price] => [8905] [image] => https://akademik-stroy.ru/wp-content/uploads/materials/kompozitnaya-cherepica.jpg [area_modifier] => 134.44 [parent_name] => Крыша (Скатная) [parent_id] => 37 [material_sum] => 1610263 [work_sum] => 1257048 [total_sum] => 2867311 [total_days] => 20 [display_material_sum] => 1 610 263 [display_work_sum] => 1 257 048 [display_total_sum] => 2 867 311 ) 1
2 867 311
Работа:1 257 048
Материалы:1 610 263
Дни:20
stdClass Object ( [id] => 168 [attribute_id] => 37 [name] => Керамическая черепица [material_modifier] => 1 [work_modifier] => 1 [options] => Array ( ) [days] => [20] [material_price] => [12750] [work_price] => [9456] [image] => https://akademik-stroy.ru/wp-content/uploads/materials/keramicheskaya-cherepica.jpg [area_modifier] => 134.44 [parent_name] => Крыша (Скатная) [parent_id] => 37 [material_sum] => 2159779 [work_sum] => 1334828 [total_sum] => 3494607 [total_days] => 20 [display_material_sum] => 2 159 779 [display_work_sum] => 1 334 828 [display_total_sum] => 3 494 607 ) 1
3 494 607
Работа:1 334 828
Материалы:2 159 779
Дни:20
stdClass Object ( [id] => 169 [attribute_id] => 37 [name] => Металлическая фальцевая [material_modifier] => 1 [work_modifier] => 1 [options] => Array ( ) [days] => [20] [material_price] => [8550] [work_price] => [8190] [image] => https://akademik-stroy.ru/wp-content/uploads/materials/metallicheskaya-falcevaya.jpg [area_modifier] => 134.44 [parent_name] => Крыша (Скатная) [parent_id] => 37 [material_sum] => 1448322 [work_sum] => 1156117 [total_sum] => 2604439 [total_days] => 20 [display_material_sum] => 1 448 322 [display_work_sum] => 1 156 117 [display_total_sum] => 2 604 439 ) 1
2 604 439
Работа:1 156 117
Материалы:1 448 322
Дни:20
stdClass Object ( [id] => 170 [attribute_id] => 37 [name] => Медная фальцевая [material_modifier] => 1 [work_modifier] => 1 [options] => Array ( ) [days] => [20] [material_price] => [20450] [work_price] => [16750] [image] => https://akademik-stroy.ru/wp-content/uploads/materials/mednaya-falcevaya.jpg [area_modifier] => 134.44 [parent_name] => Крыша (Скатная) [parent_id] => 37 [material_sum] => 3464115 [work_sum] => 2364464 [total_sum] => 5828579 [total_days] => 20 [display_material_sum] => 3 464 115 [display_work_sum] => 2 364 464 [display_total_sum] => 5 828 579 ) 1
5 828 579
Работа:2 364 464
Материалы:3 464 115
Дни:20
stdClass Object ( [id] => 171 [attribute_id] => 37 [name] => Зеленая кровля [material_modifier] => 1 [work_modifier] => 1 [options] => Array ( ) [days] => [20] [material_price] => [19850] [work_price] => [16780] [image] => https://akademik-stroy.ru/wp-content/uploads/materials/zelenaya-krovlya.jpg [area_modifier] => 134.44 [parent_name] => Крыша (Скатная) [parent_id] => 37 [material_sum] => 3362479 [work_sum] => 2368698 [total_sum] => 5731177 [total_days] => 20 [display_material_sum] => 3 362 479 [display_work_sum] => 2 368 698 [display_total_sum] => 5 731 177 ) 1
5 731 177
Работа:2 368 698
Материалы:3 362 479
Дни:20
stdClass Object ( [id] => 172 [attribute_id] => 37 [name] => Профлист [material_modifier] => 1 [work_modifier] => 1 [options] => Array ( ) [days] => [20] [material_price] => [3450] [work_price] => [3750] [image] => https://akademik-stroy.ru/wp-content/uploads/materials/proflist.jpg [area_modifier] => 134.44 [parent_name] => Крыша (Скатная) [parent_id] => 37 [material_sum] => 584411 [work_sum] => 529358 [total_sum] => 1113769 [total_days] => 20 [display_material_sum] => 584 411 [display_work_sum] => 529 358 [display_total_sum] => 1 113 769 ) 1
1 113 769
Работа:529 358
Материалы:584 411
Дни:20
Окна
stdClass Object ( [id] => 51 [attribute_id] => 26 [name] => Есть [material_modifier] => 1 [work_modifier] => 1 [options] => Array ( [0] => Профиль 58 мм, 3-камерный, стеклопакет 2-камерный до 32 мм [1] => Профиль 60 мм, 4-камерный, стеклопакет 2-камерный до 32 мм [2] => Профиль 70 мм, 5-камерный, стеклопакет 2-камерный до 40 мм [3] => Профиль 72 мм, 5-камерный, стеклопакет 2-камерный до 40 мм [4] => Алюминиевые окна Alutech профиль 72 мм, стеклопакет 2-камерный ) [days] => [3,3,3,3,3] [material_price] => [1339,2124,2867,3023,29596] [work_price] => [635,647,659,668,2579] [image] => https://akademik-stroy.ru/wp-content/uploads/materials/okna.jpg [area_modifier] => 180.6 [parent_name] => Окна [parent_id] => 26 [material_sum] => 304697 [work_sum] => 120415 [total_sum] => 425112 [total_days] => 3 [display_material_sum] => 304 697 [display_work_sum] => 120 415 [display_total_sum] => 425 112 ) 1
425 112
Работа:120 415
Материалы:304 697
Дни:3
stdClass Object ( [id] => 52 [attribute_id] => 26 [name] => Нет [material_modifier] => 2 [work_modifier] => 1 [options] => [days] => null [material_price] => null [work_price] => null [image] => https://akademik-stroy.ru/wp-content/uploads/materials/okna.jpg [area_modifier] => 180.6 [parent_name] => Окна [parent_id] => 26 [material_sum] => 0 [work_sum] => 0 [total_sum] => 0 [total_days] => 0 [display_material_sum] => 0 [display_work_sum] => 0 [display_total_sum] => 0 ) 1
0
Работа:0
Материалы:0
Дни:0
Двери входные
stdClass Object ( [id] => 53 [attribute_id] => 27 [name] => Есть [material_modifier] => 1 [work_modifier] => 1 [options] => Array ( ) [days] => [1] [material_price] => [10000] [work_price] => [5500] [image] => https://akademik-stroy.ru/wp-content/uploads/materials/dveri.jpg [area_modifier] => 1 [parent_name] => Двери входные [parent_id] => 27 [material_sum] => 12600 [work_sum] => 5775 [total_sum] => 18375 [total_days] => 1 [display_material_sum] => 12 600 [display_work_sum] => 5 775 [display_total_sum] => 18 375 ) 1
18 375
Работа:5 775
Материалы:12 600
Дни:1
stdClass Object ( [id] => 54 [attribute_id] => 27 [name] => Нет [material_modifier] => 1 [work_modifier] => 1 [options] => Array ( ) [days] => [0] [material_price] => [0] [work_price] => [0] [image] => https://akademik-stroy.ru/wp-content/uploads/materials/dveri.jpg [area_modifier] => 1 [parent_name] => Двери входные [parent_id] => 27 [material_sum] => 0 [work_sum] => 0 [total_sum] => 0 [total_days] => 0 [display_material_sum] => 0 [display_work_sum] => 0 [display_total_sum] => 0 ) 1
0
Работа:0
Материалы:0
Дни:0
Утепление кровли (Мансарда)
stdClass Object ( [id] => 25 [attribute_id] => 13 [name] => Нет [material_modifier] => 1 [work_modifier] => 1 [options] => Array ( ) [days] => [0] [material_price] => [0] [work_price] => [0] [image] => https://akademik-stroy.ru/wp-content/uploads/materials/mineralovata-krov.jpg [area_modifier] => 134.44 [parent_name] => Утепление кровли (Мансарда) [parent_id] => 13 [material_sum] => 0 [work_sum] => 0 [total_sum] => 0 [total_days] => 0 [display_material_sum] => 0 [display_work_sum] => 0 [display_total_sum] => 0 ) 1
0
Работа:0
Материалы:0
Дни:0
stdClass Object ( [id] => 26 [attribute_id] => 13 [name] => Минераловатный [material_modifier] => 1 [work_modifier] => 1 [options] => Array ( [0] => 50 мм [1] => 100 мм [2] => 150 мм [3] => 200 мм [4] => 250 мм [5] => 300 мм [6] => 350 мм [7] => 400 мм [8] => 450 мм [9] => 500 мм ) [days] => [5,5,6,6,6,7,7,7,8,8] [material_price] => [1158,1414,1772,2230,3602,4060,4974,5890,6408,7718] [work_price] => [650,846,846,1098,1318,1450,1596,1754,1930,2122] [image] => https://akademik-stroy.ru/wp-content/uploads/materials/mineralovata-krov.jpg [area_modifier] => 134.44 [parent_name] => Утепление кровли (Мансарда) [parent_id] => 13 [material_sum] => 196159 [work_sum] => 91755 [total_sum] => 287914 [total_days] => 5 [display_material_sum] => 196 159 [display_work_sum] => 91 755 [display_total_sum] => 287 914 ) 1
287 914
Работа:91 755
Материалы:196 159
Дни:5
stdClass Object ( [id] => 123 [attribute_id] => 13 [name] => Эковата (целлюлозная вата) [material_modifier] => 1 [work_modifier] => 1 [options] => Array ( [0] => 50 мм [1] => 100 мм [2] => 150 мм [3] => 200 мм [4] => 250 мм [5] => 300 мм [6] => 350 мм [7] => 400 мм [8] => 450 мм [9] => 500 мм ) [days] => [3,3,4,4,4,5,5,5,5,5] [material_price] => [820,1638,2458,3276,5734,6552,8190,9828,11466,13104] [work_price] => [234,304,304,396,474,522,574,632,694,764] [image] => https://akademik-stroy.ru/wp-content/uploads/materials/ehkovata-krov.jpg [area_modifier] => 134.44 [parent_name] => Утепление кровли (Мансарда) [parent_id] => 13 [material_sum] => 138903 [work_sum] => 33032 [total_sum] => 171935 [total_days] => 3 [display_material_sum] => 138 903 [display_work_sum] => 33 032 [display_total_sum] => 171 935 ) 1
171 935
Работа:33 032
Материалы:138 903
Дни:3
stdClass Object ( [id] => 124 [attribute_id] => 13 [name] => Экструдированный пенополистирол [material_modifier] => 1 [work_modifier] => 1 [options] => Array ( [0] => 50 мм [1] => 100 мм [2] => 150 мм [3] => 200 мм [4] => 250 мм [5] => 300 мм [6] => 350 мм [7] => 400 мм [8] => 450 мм [9] => 500 мм ) [days] => [3,3,4,4,4,5,5,5,5,6] [material_price] => [1146,2292,3438,4584,8020,9166,11458,13750,16040,18332] [work_price] => [390,508,508,660,790,870,958,1052,1158,1274] [image] => https://akademik-stroy.ru/wp-content/uploads/materials/epps-krov.jpg [area_modifier] => 134.44 [parent_name] => Утепление кровли (Мансарда) [parent_id] => 13 [material_sum] => 194126 [work_sum] => 55053 [total_sum] => 249179 [total_days] => 3 [display_material_sum] => 194 126 [display_work_sum] => 55 053 [display_total_sum] => 249 179 ) 1
249 179
Работа:55 053
Материалы:194 126
Дни:3
stdClass Object ( [id] => 125 [attribute_id] => 13 [name] => ПСБ (ППС-пенополистирол) [material_modifier] => 1 [work_modifier] => 1 [options] => Array ( [0] => 50 мм [1] => 100 мм [2] => 150 мм [3] => 200 мм [4] => 250 мм [5] => 300 мм [6] => 350 мм [7] => 400 мм [8] => 450 мм [9] => 500 мм ) [days] => [3,3,4,4,4,5,5,5,5,6] [material_price] => [476,954,1430,1906,3336,3814,4766,5720,6674,7626] [work_price] => [390,508,508,660,790,870,958,1052,1158,1274] [image] => https://akademik-stroy.ru/wp-content/uploads/materials/psb-krov.jpg [area_modifier] => 134.44 [parent_name] => Утепление кровли (Мансарда) [parent_id] => 13 [material_sum] => 80632 [work_sum] => 55053 [total_sum] => 135685 [total_days] => 3 [display_material_sum] => 80 632 [display_work_sum] => 55 053 [display_total_sum] => 135 685 ) 1
135 685
Работа:55 053
Материалы:80 632
Дни:3
stdClass Object ( [id] => 126 [attribute_id] => 13 [name] => ППУ (Пенополиуретан) [material_modifier] => 1 [work_modifier] => 1 [options] => Array ( [0] => 50 мм [1] => 100 мм [2] => 150 мм [3] => 200 мм [4] => 250 мм [5] => 300 мм [6] => 350 мм [7] => 400 мм [8] => 450 мм [9] => 500 мм ) [days] => [2,2,3,3,3,3,4,4,4,4] [material_price] => [2080,4160,6240,8320,14560,16640,20800,24960,29120,33280] [work_price] => [234,304,304,396,474,522,574,632,694,764] [image] => https://akademik-stroy.ru/wp-content/uploads/materials/ppu-krov.jpg [area_modifier] => 134.44 [parent_name] => Утепление кровли (Мансарда) [parent_id] => 13 [material_sum] => 352340 [work_sum] => 33032 [total_sum] => 385372 [total_days] => 2 [display_material_sum] => 352 340 [display_work_sum] => 33 032 [display_total_sum] => 385 372 ) 1
385 372
Работа:33 032
Материалы:352 340
Дни:2
stdClass Object ( [id] => 127 [attribute_id] => 13 [name] => PIR-плиты (пенополиизоцианурат) [material_modifier] => 1 [work_modifier] => 1 [options] => Array ( [0] => 50 мм [1] => 100 мм [2] => 150 мм [3] => 200 мм [4] => 250 мм [5] => 300 мм [6] => 350 мм [7] => 400 мм [8] => 450 мм [9] => 500 мм ) [days] => [3,3,4,4,4,5,5,5,5,6] [material_price] => [2646,5290,7936,10580,18516,21162,26452,31742,37032,42324] [work_price] => [390,508,508,660,790,870,958,1052,1158,1274] [image] => https://akademik-stroy.ru/wp-content/uploads/materials/pir-krov.jpg [area_modifier] => 134.44 [parent_name] => Утепление кровли (Мансарда) [parent_id] => 13 [material_sum] => 448218 [work_sum] => 55053 [total_sum] => 503271 [total_days] => 3 [display_material_sum] => 448 218 [display_work_sum] => 55 053 [display_total_sum] => 503 271 ) 1
503 271
Работа:55 053
Материалы:448 218
Дни:3
Мансардные окна
stdClass Object ( [id] => 27 [attribute_id] => 14 [name] => Нет [material_modifier] => 1 [work_modifier] => 1 [options] => Array ( ) [days] => [0] [material_price] => [0] [work_price] => [0] [image] => https://akademik-stroy.ru/wp-content/uploads/materials/mansardnye-okna-2.jpg [area_modifier] => 1 [parent_name] => Мансардные окна [parent_id] => 14 [material_sum] => 0 [work_sum] => 0 [total_sum] => 0 [total_days] => 0 [display_material_sum] => 0 [display_work_sum] => 0 [display_total_sum] => 0 ) 1
0
Работа:0
Материалы:0
Дни:0
stdClass Object ( [id] => 28 [attribute_id] => 14 [name] => Есть [material_modifier] => 1 [work_modifier] => 1 [options] => Array ( [0] => 55x78 [1] => 55x98 ) [days] => [6,7] [material_price] => [47480,68700] [work_price] => [17900,19500] [image] => https://akademik-stroy.ru/wp-content/uploads/materials/mansardnye-okna-2.jpg [area_modifier] => 1 [parent_name] => Мансардные окна [parent_id] => 14 [material_sum] => 59825 [work_sum] => 18795 [total_sum] => 78620 [total_days] => 6 [display_material_sum] => 59 825 [display_work_sum] => 18 795 [display_total_sum] => 78 620 ) 1
78 620
Работа:18 795
Материалы:59 825
Дни:6
Подшивка кровли
stdClass Object ( [id] => 29 [attribute_id] => 15 [name] => Нет [material_modifier] => 1 [work_modifier] => 1 [options] => Array ( ) [days] => [0] [material_price] => [0] [work_price] => [0] [image] => https://akademik-stroy.ru/wp-content/uploads/materials/sofit.jpg [area_modifier] => 134.44 [parent_name] => Подшивка кровли [parent_id] => 15 [material_sum] => 0 [work_sum] => 0 [total_sum] => 0 [total_days] => 0 [display_material_sum] => 0 [display_work_sum] => 0 [display_total_sum] => 0 ) 1
0
Работа:0
Материалы:0
Дни:0
stdClass Object ( [id] => 30 [attribute_id] => 15 [name] => Есть [material_modifier] => 1 [work_modifier] => 1 [options] => Array ( [0] => Софиты (ПВХ) [1] => Cedral [2] => ДПК [3] => Планкен ) [days] => [7,10,9,8] [material_price] => [1803,3213,3025,3150] [work_price] => [1529,2188,2075,1923] [image] => https://akademik-stroy.ru/wp-content/uploads/materials/sofit.jpg [area_modifier] => 134.44 [parent_name] => Подшивка кровли [parent_id] => 15 [material_sum] => 305418 [work_sum] => 215837 [total_sum] => 521255 [total_days] => 7 [display_material_sum] => 305 418 [display_work_sum] => 215 837 [display_total_sum] => 521 255 ) 1
521 255
Работа:215 837
Материалы:305 418
Дни:7
Водосточная система
stdClass Object ( [id] => 31 [attribute_id] => 16 [name] => Нет [material_modifier] => 1 [work_modifier] => 1 [options] => Array ( ) [days] => [0] [material_price] => [0] [work_price] => [0] [image] => https://akademik-stroy.ru/wp-content/uploads/materials/docke-standard-pvh.jpg [area_modifier] => 134.44 [parent_name] => Водосточная система [parent_id] => 16 [material_sum] => 0 [work_sum] => 0 [total_sum] => 0 [total_days] => 0 [display_material_sum] => 0 [display_work_sum] => 0 [display_total_sum] => 0 ) 1
0
Работа:0
Материалы:0
Дни:0
stdClass Object ( [id] => 32 [attribute_id] => 16 [name] => Есть [material_modifier] => 1 [work_modifier] => 1 [options] => Array ( [0] => Döcke Standard (ПВХ) [1] => Металлические Grand Line ) [days] => [7,7] [material_price] => [1842,2703] [work_price] => [1491,1529] [image] => https://akademik-stroy.ru/wp-content/uploads/materials/docke-standard-pvh.jpg [area_modifier] => 134.44 [parent_name] => Водосточная система [parent_id] => 16 [material_sum] => 312024 [work_sum] => 210473 [total_sum] => 522497 [total_days] => 7 [display_material_sum] => 312 024 [display_work_sum] => 210 473 [display_total_sum] => 522 497 ) 1
522 497
Работа:210 473
Материалы:312 024
Дни:7
Дополнительное утепление наружных стен
stdClass Object ( [id] => 33 [attribute_id] => 17 [name] => Нет [material_modifier] => 1 [work_modifier] => 1 [options] => Array ( ) [days] => [0] [material_price] => [0] [work_price] => [0] [image] => https://akademik-stroy.ru/wp-content/uploads/materials/mineralovata.jpg [area_modifier] => 222.55 [parent_name] => Дополнительное утепление наружных стен [parent_id] => 17 [material_sum] => 0 [work_sum] => 0 [total_sum] => 0 [total_days] => 0 [display_material_sum] => 0 [display_work_sum] => 0 [display_total_sum] => 0 ) 1
0
Работа:0
Материалы:0
Дни:0
stdClass Object ( [id] => 34 [attribute_id] => 17 [name] => Минераловатный [material_modifier] => 1 [work_modifier] => 1 [options] => Array ( [0] => 50 мм [1] => 100 мм [2] => 150 мм [3] => 200 мм [4] => 250 мм [5] => 300 мм ) [days] => [7,8,10,12,14,15] [material_price] => [3437,3613,3803,3915,4601,4830] [work_price] => [2325,2423,2523,2749,2859,3025] [image] => https://akademik-stroy.ru/wp-content/uploads/materials/mineralovata.jpg [area_modifier] => 222.55 [parent_name] => Дополнительное утепление наружных стен [parent_id] => 17 [material_sum] => 963779 [work_sum] => 543300 [total_sum] => 1507079 [total_days] => 7 [display_material_sum] => 963 779 [display_work_sum] => 543 300 [display_total_sum] => 1 507 079 ) 1
1 507 079
Работа:543 300
Материалы:963 779
Дни:7
stdClass Object ( [id] => 128 [attribute_id] => 17 [name] => Эковата (целлюлозная вата) [material_modifier] => 1 [work_modifier] => 1 [options] => Array ( [0] => 50 мм [1] => 100 мм [2] => 150 мм [3] => 200 мм [4] => 250 мм [5] => 300 мм ) [days] => [3,4,5,6,7,8] [material_price] => [810,1319,1629,1838,2267,2676] [work_price] => [1225,1323,1423,1549,1659,1725] [image] => https://akademik-stroy.ru/wp-content/uploads/materials/ehkovata.jpg [area_modifier] => 222.55 [parent_name] => Дополнительное утепление наружных стен [parent_id] => 17 [material_sum] => 227135 [work_sum] => 286255 [total_sum] => 513390 [total_days] => 3 [display_material_sum] => 227 135 [display_work_sum] => 286 255 [display_total_sum] => 513 390 ) 1
513 390
Работа:286 255
Материалы:227 135
Дни:3
stdClass Object ( [id] => 129 [attribute_id] => 17 [name] => Экструдированный пенополистирол [material_modifier] => 1 [work_modifier] => 1 [options] => Array ( [0] => 50 мм [1] => 100 мм [2] => 150 мм [3] => 200 мм [4] => 250 мм [5] => 300 мм ) [days] => [5,6,7,8,9,10] [material_price] => [4560,4300,5119,6292,7010,8583] [work_price] => [1795,1954,2254,2330,2595,2735] [image] => https://akademik-stroy.ru/wp-content/uploads/materials/epps.jpg [area_modifier] => 222.55 [parent_name] => Дополнительное утепление наружных стен [parent_id] => 17 [material_sum] => 1278683 [work_sum] => 419451 [total_sum] => 1698134 [total_days] => 5 [display_material_sum] => 1 278 683 [display_work_sum] => 419 451 [display_total_sum] => 1 698 134 ) 1
1 698 134
Работа:419 451
Материалы:1 278 683
Дни:5
stdClass Object ( [id] => 130 [attribute_id] => 17 [name] => ПСБ (ППС-пенополистирол) [material_modifier] => 1 [work_modifier] => 1 [options] => Array ( [0] => 50 мм [1] => 100 мм [2] => 150 мм [3] => 200 мм [4] => 250 мм [5] => 300 мм ) [days] => [5,6,7,8,9,10] [material_price] => [4822,5200,5819,6292,7010,7583] [work_price] => [1795,1954,2254,2330,2595,2735] [image] => https://akademik-stroy.ru/wp-content/uploads/materials/psb.jpg [area_modifier] => 222.55 [parent_name] => Дополнительное утепление наружных стен [parent_id] => 17 [material_sum] => 1352151 [work_sum] => 419451 [total_sum] => 1771602 [total_days] => 5 [display_material_sum] => 1 352 151 [display_work_sum] => 419 451 [display_total_sum] => 1 771 602 ) 1
1 771 602
Работа:419 451
Материалы:1 352 151
Дни:5
stdClass Object ( [id] => 131 [attribute_id] => 17 [name] => ППУ (Пенополиуретан) [material_modifier] => 1 [work_modifier] => 1 [options] => Array ( [0] => 50 мм [1] => 100 мм [2] => 150 мм [3] => 200 мм [4] => 250 мм [5] => 300 мм ) [days] => [3,4,5,6,7,8] [material_price] => [2860,3400,4219,4592,5010,5583] [work_price] => [729,900,980,1120,1280,1530] [image] => https://akademik-stroy.ru/wp-content/uploads/materials/ppu.jpg [area_modifier] => 222.55 [parent_name] => Дополнительное утепление наружных стен [parent_id] => 17 [material_sum] => 801981 [work_sum] => 170351 [total_sum] => 972332 [total_days] => 3 [display_material_sum] => 801 981 [display_work_sum] => 170 351 [display_total_sum] => 972 332 ) 1
972 332
Работа:170 351
Материалы:801 981
Дни:3
stdClass Object ( [id] => 132 [attribute_id] => 17 [name] => PIR-плиты (пенополиизоцианурат) [material_modifier] => 1 [work_modifier] => 1 [options] => Array ( [0] => 50 мм [1] => 100 мм [2] => 150 мм [3] => 200 мм [4] => 250 мм [5] => 300 мм ) [days] => [5,6,7,8,9,10] [material_price] => [8323,15645,20968,25900,29258,30581] [work_price] => [800,900,970,1150,1280,1330] [image] => https://akademik-stroy.ru/wp-content/uploads/materials/pir.jpg [area_modifier] => 222.55 [parent_name] => Дополнительное утепление наружных стен [parent_id] => 17 [material_sum] => 2333877 [work_sum] => 186942 [total_sum] => 2520819 [total_days] => 5 [display_material_sum] => 2 333 877 [display_work_sum] => 186 942 [display_total_sum] => 2 520 819 ) 1
2 520 819
Работа:186 942
Материалы:2 333 877
Дни:5
Наружная отделка фасада
stdClass Object ( [id] => 37 [attribute_id] => 19 [name] => Нет [material_modifier] => 1 [work_modifier] => 1 [options] => Array ( ) [days] => [0] [material_price] => [0] [work_price] => [0] [image] => https://akademik-stroy.ru/wp-content/uploads/materials/imitaciya-brusa.jpg [area_modifier] => 222.55 [parent_name] => Наружная отделка фасада [parent_id] => 19 [material_sum] => 0 [work_sum] => 0 [total_sum] => 0 [total_days] => 0 [display_material_sum] => 0 [display_work_sum] => 0 [display_total_sum] => 0 ) 1
0
Работа:0
Материалы:0
Дни:0
stdClass Object ( [id] => 38 [attribute_id] => 19 [name] => Имитация бруса [material_modifier] => 1 [work_modifier] => 1 [options] => Array ( [0] => Сосна [1] => Ель [2] => Лиственница ) [days] => [20,20,20] [material_price] => [2994,2762,4954] [work_price] => [1397,1231,1577] [image] => https://akademik-stroy.ru/wp-content/uploads/materials/imitaciya-brusa.jpg [area_modifier] => 222.55 [parent_name] => Наружная отделка фасада [parent_id] => 19 [material_sum] => 839557 [work_sum] => 326447 [total_sum] => 1166004 [total_days] => 20 [display_material_sum] => 839 557 [display_work_sum] => 326 447 [display_total_sum] => 1 166 004 ) 1
1 166 004
Работа:326 447
Материалы:839 557
Дни:20
stdClass Object ( [id] => 136 [attribute_id] => 19 [name] => Планкен [material_modifier] => 1 [work_modifier] => 1 [options] => Array ( [0] => Сосна [1] => Ель [2] => Лиственница ) [days] => [20,20,20] [material_price] => [3194,2862,5154] [work_price] => [1537,1354,1735] [image] => https://akademik-stroy.ru/wp-content/uploads/materials/planken.jpg [area_modifier] => 222.55 [parent_name] => Наружная отделка фасада [parent_id] => 19 [material_sum] => 895639 [work_sum] => 359162 [total_sum] => 1254801 [total_days] => 20 [display_material_sum] => 895 639 [display_work_sum] => 359 162 [display_total_sum] => 1 254 801 ) 1
1 254 801
Работа:359 162
Материалы:895 639
Дни:20
stdClass Object ( [id] => 137 [attribute_id] => 19 [name] => Штукатурка [material_modifier] => 1 [work_modifier] => 1 [options] => Array ( [0] => Цементно-песчаная (минеральная) [1] => Мокрый фасад ) [days] => [35,35] [material_price] => [2231,3938] [work_price] => [1202,2422] [image] => https://akademik-stroy.ru/wp-content/uploads/materials/shtukaturka.jpg [area_modifier] => 222.55 [parent_name] => Наружная отделка фасада [parent_id] => 19 [material_sum] => 625601 [work_sum] => 280880 [total_sum] => 906481 [total_days] => 35 [display_material_sum] => 625 601 [display_work_sum] => 280 880 [display_total_sum] => 906 481 ) 1
906 481
Работа:280 880
Материалы:625 601
Дни:35
stdClass Object ( [id] => 138 [attribute_id] => 19 [name] => Облицовочный кирпич [material_modifier] => 1 [work_modifier] => 1 [options] => Array ( [0] => Керамический [1] => Клинкерный [2] => Ручной формовки [3] => Гиперпрессованный [4] => Силикатный кирпич ) [days] => [45,45,45,45,45] [material_price] => [8174,9148,1040,1257,5876] [work_price] => [3240,3758,4536,4017,3369] [image] => https://akademik-stroy.ru/wp-content/uploads/materials/oblicovochnyj-kirpich.jpg [area_modifier] => 222.55 [parent_name] => Наружная отделка фасада [parent_id] => 19 [material_sum] => 2292096 [work_sum] => 757115 [total_sum] => 3049211 [total_days] => 45 [display_material_sum] => 2 292 096 [display_work_sum] => 757 115 [display_total_sum] => 3 049 211 ) 1
3 049 211
Работа:757 115
Материалы:2 292 096
Дни:45
stdClass Object ( [id] => 139 [attribute_id] => 19 [name] => Фасадная плитка [material_modifier] => 1 [work_modifier] => 1 [options] => Array ( [0] => Клинкерная [1] => Керамическая [2] => Плитка ручной формовки ) [days] => [40,40,40] [material_price] => [2974,1487,3470] [work_price] => [3007,2592,3629] [image] => https://akademik-stroy.ru/wp-content/uploads/materials/fasadnaya-plitka.jpg [area_modifier] => 222.55 [parent_name] => Наружная отделка фасада [parent_id] => 19 [material_sum] => 833948 [work_sum] => 702668 [total_sum] => 1536616 [total_days] => 40 [display_material_sum] => 833 948 [display_work_sum] => 702 668 [display_total_sum] => 1 536 616 ) 1
1 536 616
Работа:702 668
Материалы:833 948
Дни:40
stdClass Object ( [id] => 140 [attribute_id] => 19 [name] => Сайдинг [material_modifier] => 1 [work_modifier] => 1 [options] => Array ( [0] => Виниловый [1] => Металлический [2] => Фиброцементный ) [days] => [20,20,20] [material_price] => [1263,1944,4147] [work_price] => [1263,1944,2074] [image] => https://akademik-stroy.ru/wp-content/uploads/materials/sajding.jpg [area_modifier] => 222.55 [parent_name] => Наружная отделка фасада [parent_id] => 19 [material_sum] => 354162 [work_sum] => 295135 [total_sum] => 649297 [total_days] => 20 [display_material_sum] => 354 162 [display_work_sum] => 295 135 [display_total_sum] => 649 297 ) 1
649 297
Работа:295 135
Материалы:354 162
Дни:20
stdClass Object ( [id] => 141 [attribute_id] => 19 [name] => Камень [material_modifier] => 1 [work_modifier] => 1 [options] => Array ( [0] => Травертин [1] => Дагестанский [2] => Искусственный [3] => Натуральный [4] => Керамогранит ) [days] => [45,45,45,45,45] [material_price] => [4536,3888,2592,3240,2462] [work_price] => [3240,3240,2462,3110,1944] [image] => https://akademik-stroy.ru/wp-content/uploads/materials/kamen-1.jpg [area_modifier] => 222.55 [parent_name] => Наружная отделка фасада [parent_id] => 19 [material_sum] => 1271953 [work_sum] => 757115 [total_sum] => 2029068 [total_days] => 45 [display_material_sum] => 1 271 953 [display_work_sum] => 757 115 [display_total_sum] => 2 029 068 ) 1
2 029 068
Работа:757 115
Материалы:1 271 953
Дни:45
stdClass Object ( [id] => 142 [attribute_id] => 19 [name] => Термопанели [material_modifier] => 1 [work_modifier] => 1 [options] => Array ( ) [days] => [20] [material_price] => [6221] [work_price] => [2333] [image] => https://akademik-stroy.ru/wp-content/uploads/materials/termo.png [area_modifier] => 222.55 [parent_name] => Наружная отделка фасада [parent_id] => 19 [material_sum] => 1744449 [work_sum] => 545170 [total_sum] => 2289619 [total_days] => 20 [display_material_sum] => 1 744 449 [display_work_sum] => 545 170 [display_total_sum] => 2 289 619 ) 1
2 289 619
Работа:545 170
Материалы:1 744 449
Дни:20
stdClass Object ( [id] => 143 [attribute_id] => 19 [name] => Плитка HAUBERK [material_modifier] => 1 [work_modifier] => 1 [options] => Array ( ) [days] => [20] [material_price] => [2786] [work_price] => [1944] [image] => https://akademik-stroy.ru/wp-content/uploads/materials/hauberk.jpg [area_modifier] => 222.55 [parent_name] => Наружная отделка фасада [parent_id] => 19 [material_sum] => 781231 [work_sum] => 454269 [total_sum] => 1235500 [total_days] => 20 [display_material_sum] => 781 231 [display_work_sum] => 454 269 [display_total_sum] => 1 235 500 ) 1
1 235 500
Работа:454 269
Материалы:781 231
Дни:20
stdClass Object ( [id] => 144 [attribute_id] => 19 [name] => Фальцевый фасад [material_modifier] => 1 [work_modifier] => 1 [options] => Array ( ) [days] => [20] [material_price] => [3240] [work_price] => [2592] [image] => https://akademik-stroy.ru/wp-content/uploads/materials/falcevyj-fasad.jpg [area_modifier] => 222.55 [parent_name] => Наружная отделка фасада [parent_id] => 19 [material_sum] => 908538 [work_sum] => 605692 [total_sum] => 1514230 [total_days] => 20 [display_material_sum] => 908 538 [display_work_sum] => 605 692 [display_total_sum] => 1 514 230 ) 1
1 514 230
Работа:605 692
Материалы:908 538
Дни:20
stdClass Object ( [id] => 145 [attribute_id] => 19 [name] => Комбинированный [material_modifier] => 1 [work_modifier] => 1 [options] => Array ( ) [days] => [20] [material_price] => [4629] [work_price] => [3499] [image] => https://akademik-stroy.ru/wp-content/uploads/materials/Kombinirovannyj.jpg [area_modifier] => 222.55 [parent_name] => Наружная отделка фасада [parent_id] => 19 [material_sum] => 1298032 [work_sum] => 817638 [total_sum] => 2115670 [total_days] => 20 [display_material_sum] => 1 298 032 [display_work_sum] => 817 638 [display_total_sum] => 2 115 670 ) 1
2 115 670
Работа:817 638
Материалы:1 298 032
Дни:20
stdClass Object ( [id] => 257 [attribute_id] => 19 [name] => Японские фиброцементные [material_modifier] => 1 [work_modifier] => 1 [options] => Array ( ) [days] => [20] [material_price] => [7043] [work_price] => [2993] [image] => https://akademik-stroy.ru/wp-content/uploads/materials/paneli.jpg [area_modifier] => 222.55 [parent_name] => Наружная отделка фасада [parent_id] => 19 [material_sum] => 1974949 [work_sum] => 699397 [total_sum] => 2674346 [total_days] => 20 [display_material_sum] => 1 974 949 [display_work_sum] => 699 397 [display_total_sum] => 2 674 346 ) 1
2 674 346
Работа:699 397
Материалы:1 974 949
Дни:20
stdClass Object ( [id] => 258 [attribute_id] => 19 [name] => Панели Каньон [material_modifier] => 1 [work_modifier] => 1 [options] => Array ( ) [days] => [20] [material_price] => [4543] [work_price] => [2592] [image] => https://akademik-stroy.ru/wp-content/uploads/materials/kanon.png [area_modifier] => 222.55 [parent_name] => Наружная отделка фасада [parent_id] => 19 [material_sum] => 1273916 [work_sum] => 605692 [total_sum] => 1879608 [total_days] => 20 [display_material_sum] => 1 273 916 [display_work_sum] => 605 692 [display_total_sum] => 1 879 608 ) 1
1 879 608
Работа:605 692
Материалы:1 273 916
Дни:20
Террасы, крыльца, навесы
stdClass Object ( [id] => 39 [attribute_id] => 20 [name] => Нет [material_modifier] => 1 [work_modifier] => 1 [options] => Array ( ) [days] => [0] [material_price] => [0] [work_price] => [0] [image] => https://akademik-stroy.ru/wp-content/uploads/materials/terrasy.jpg [area_modifier] => 30 [parent_name] => Террасы, крыльца, навесы [parent_id] => 20 [material_sum] => 0 [work_sum] => 0 [total_sum] => 0 [total_days] => 0 [display_material_sum] => 0 [display_work_sum] => 0 [display_total_sum] => 0 ) 1
0
Работа:0
Материалы:0
Дни:0
stdClass Object ( [id] => 40 [attribute_id] => 20 [name] => Есть [material_modifier] => 1 [work_modifier] => 1 [options] => Array ( ) [days] => [5] [material_price] => [10450] [work_price] => [1950] [image] => https://akademik-stroy.ru/wp-content/uploads/materials/terrasy.jpg [area_modifier] => 30 [parent_name] => Террасы, крыльца, навесы [parent_id] => 20 [material_sum] => 395010 [work_sum] => 61425 [total_sum] => 456435 [total_days] => 5 [display_material_sum] => 395 010 [display_work_sum] => 61 425 [display_total_sum] => 456 435 ) 1
456 435
Работа:61 425
Материалы:395 010
Дни:5
Балконы
stdClass Object ( [id] => 41 [attribute_id] => 21 [name] => Нет [material_modifier] => 1 [work_modifier] => 1 [options] => Array ( ) [days] => [0] [material_price] => [0] [work_price] => [0] [image] => https://akademik-stroy.ru/wp-content/uploads/materials/balkony.jpg [area_modifier] => 30 [parent_name] => Балконы [parent_id] => 21 [material_sum] => 0 [work_sum] => 0 [total_sum] => 0 [total_days] => 0 [display_material_sum] => 0 [display_work_sum] => 0 [display_total_sum] => 0 ) 1
0
Работа:0
Материалы:0
Дни:0
stdClass Object ( [id] => 42 [attribute_id] => 21 [name] => Есть [material_modifier] => 1 [work_modifier] => 1 [options] => Array ( ) [days] => [12] [material_price] => [3600] [work_price] => [1950] [image] => https://akademik-stroy.ru/wp-content/uploads/materials/balkony.jpg [area_modifier] => 30 [parent_name] => Балконы [parent_id] => 21 [material_sum] => 136080 [work_sum] => 61425 [total_sum] => 197505 [total_days] => 12 [display_material_sum] => 136 080 [display_work_sum] => 61 425 [display_total_sum] => 197 505 ) 1
197 505
Работа:61 425
Материалы:136 080
Дни:12
Отмостка
stdClass Object ( [id] => 43 [attribute_id] => 22 [name] => Нет [material_modifier] => 1 [work_modifier] => 1 [options] => Array ( ) [days] => [0] [material_price] => [0] [work_price] => [0] [image] => https://akademik-stroy.ru/wp-content/uploads/materials/uteplennaya.jpg [area_modifier] => 134.44 [parent_name] => Отмостка [parent_id] => 22 [material_sum] => 0 [work_sum] => 0 [total_sum] => 0 [total_days] => 0 [display_material_sum] => 0 [display_work_sum] => 0 [display_total_sum] => 0 ) 1
0
Работа:0
Материалы:0
Дни:0
stdClass Object ( [id] => 44 [attribute_id] => 22 [name] => Утепленная отмостка [material_modifier] => 1 [work_modifier] => 1 [options] => Array ( ) [days] => [15] [material_price] => [2550] [work_price] => [1750] [image] => https://akademik-stroy.ru/wp-content/uploads/materials/uteplennaya.jpg [area_modifier] => 134.44 [parent_name] => Отмостка [parent_id] => 22 [material_sum] => 431956 [work_sum] => 247034 [total_sum] => 678990 [total_days] => 15 [display_material_sum] => 431 956 [display_work_sum] => 247 034 [display_total_sum] => 678 990 ) 1
678 990
Работа:247 034
Материалы:431 956
Дни:15
stdClass Object ( [id] => 146 [attribute_id] => 22 [name] => Не утепленная отмостка [material_modifier] => 1 [work_modifier] => 1 [options] => Array ( ) [days] => [10] [material_price] => [1650] [work_price] => [1450] [image] => https://akademik-stroy.ru/wp-content/uploads/materials/ne-uteplennaya.jpg [area_modifier] => 134.44 [parent_name] => Отмостка [parent_id] => 22 [material_sum] => 279501 [work_sum] => 204685 [total_sum] => 484186 [total_days] => 10 [display_material_sum] => 279 501 [display_work_sum] => 204 685 [display_total_sum] => 484 186 ) 1
484 186
Работа:204 685
Материалы:279 501
Дни:10
Дренаж вокруг дома
stdClass Object ( [id] => 45 [attribute_id] => 23 [name] => Нет [material_modifier] => 1 [work_modifier] => 1 [options] => Array ( ) [days] => [0] [material_price] => [0] [work_price] => [0] [image] => https://akademik-stroy.ru/wp-content/uploads/materials/drenazh-2.jpg [area_modifier] => 134.44 [parent_name] => Дренаж вокруг дома [parent_id] => 23 [material_sum] => 0 [work_sum] => 0 [total_sum] => 0 [total_days] => 0 [display_material_sum] => 0 [display_work_sum] => 0 [display_total_sum] => 0 ) 1
0
Работа:0
Материалы:0
Дни:0
stdClass Object ( [id] => 46 [attribute_id] => 23 [name] => Есть [material_modifier] => 1 [work_modifier] => 1 [options] => Array ( ) [days] => [5] [material_price] => [2366] [work_price] => [1911] [image] => https://akademik-stroy.ru/wp-content/uploads/materials/drenazh-2.jpg [area_modifier] => 134.44 [parent_name] => Дренаж вокруг дома [parent_id] => 23 [material_sum] => 400787 [work_sum] => 269761 [total_sum] => 670548 [total_days] => 5 [display_material_sum] => 400 787 [display_work_sum] => 269 761 [display_total_sum] => 670 548 ) 1
670 548
Работа:269 761
Материалы:400 787
Дни:5
Автономная канализация (септики)
stdClass Object ( [id] => 47 [attribute_id] => 24 [name] => Нет [material_modifier] => 1 [work_modifier] => 1 [options] => Array ( ) [days] => [0] [material_price] => [0] [work_price] => [0] [image] => https://akademik-stroy.ru/wp-content/uploads/materials/septik.jpg [area_modifier] => 1 [parent_name] => Автономная канализация (септики) [parent_id] => 24 [material_sum] => 0 [work_sum] => 0 [total_sum] => 0 [total_days] => 0 [display_material_sum] => 0 [display_work_sum] => 0 [display_total_sum] => 0 ) 1
0
Работа:0
Материалы:0
Дни:0
stdClass Object ( [id] => 48 [attribute_id] => 24 [name] => Есть [material_modifier] => 1 [work_modifier] => 1 [options] => Array ( [0] => Для дачи на 4 человека [1] => Для дома на 5 человек [2] => Для дома на 6 человек [3] => Для дома на 7 человек [4] => Для дома на 10 человек ) [days] => [7,7,7,8,8] [material_price] => [196340,220500,240940,264200,293340] [work_price] => [50000,55000,60500,66550,73206] [image] => https://akademik-stroy.ru/wp-content/uploads/materials/septik.jpg [area_modifier] => 1 [parent_name] => Автономная канализация (септики) [parent_id] => 24 [material_sum] => 247388 [work_sum] => 52500 [total_sum] => 299888 [total_days] => 7 [display_material_sum] => 247 388 [display_work_sum] => 52 500 [display_total_sum] => 299 888 ) 1
299 888
Работа:52 500
Материалы:247 388
Дни:7
Внутренние (не несущие) перегородки
stdClass Object ( [id] => 49 [attribute_id] => 25 [name] => Нет [material_modifier] => 1 [work_modifier] => 1 [options] => Array ( ) [days] => [0] [material_price] => [0] [work_price] => [0] [image] => https://akademik-stroy.ru/wp-content/uploads/materials/gkl.jpg [area_modifier] => 222.55 [parent_name] => Внутренние (не несущие) перегородки [parent_id] => 25 [material_sum] => 0 [work_sum] => 0 [total_sum] => 0 [total_days] => 0 [display_material_sum] => 0 [display_work_sum] => 0 [display_total_sum] => 0 ) 1
0
Работа:0
Материалы:0
Дни:0
stdClass Object ( [id] => 147 [attribute_id] => 25 [name] => Каркасно-обшивные [material_modifier] => 1 [work_modifier] => 1 [options] => Array ( [0] => 75 мм (без шумоизоляции) [1] => 75 мм (с шумоизоляцией) ) [days] => [11,11] [material_price] => [580,970] [work_price] => [380,570] [image] => https://akademik-stroy.ru/wp-content/uploads/materials/gkl.jpg [area_modifier] => 222.55 [parent_name] => Внутренние (не несущие) перегородки [parent_id] => 25 [material_sum] => 162640 [work_sum] => 88797 [total_sum] => 251437 [total_days] => 11 [display_material_sum] => 162 640 [display_work_sum] => 88 797 [display_total_sum] => 251 437 ) 1
251 437
Работа:88 797
Материалы:162 640
Дни:11
stdClass Object ( [id] => 148 [attribute_id] => 25 [name] => Пазогребневые [material_modifier] => 1 [work_modifier] => 1 [options] => Array ( [0] => 80 мм [1] => 100 мм ) [days] => [5,5] [material_price] => [1022,1313] [work_price] => [600,700] [image] => https://akademik-stroy.ru/wp-content/uploads/materials/pazogrebnevye-bloki.jpg [area_modifier] => 222.55 [parent_name] => Внутренние (не несущие) перегородки [parent_id] => 25 [material_sum] => 286582 [work_sum] => 140207 [total_sum] => 426789 [total_days] => 5 [display_material_sum] => 286 582 [display_work_sum] => 140 207 [display_total_sum] => 426 789 ) 1
426 789
Работа:140 207
Материалы:286 582
Дни:5
stdClass Object ( [id] => 149 [attribute_id] => 25 [name] => Газобетонные [material_modifier] => 1 [work_modifier] => 1 [options] => Array ( [0] => 100 мм [1] => 200 мм ) [days] => [11,11] [material_price] => [1160,1920] [work_price] => [700,900] [image] => https://akademik-stroy.ru/wp-content/uploads/materials/gazobeton-2.jpg [area_modifier] => 222.55 [parent_name] => Внутренние (не несущие) перегородки [parent_id] => 25 [material_sum] => 325279 [work_sum] => 163574 [total_sum] => 488853 [total_days] => 11 [display_material_sum] => 325 279 [display_work_sum] => 163 574 [display_total_sum] => 488 853 ) 1
488 853
Работа:163 574
Материалы:325 279
Дни:11
stdClass Object ( [id] => 150 [attribute_id] => 25 [name] => Кирпичные [material_modifier] => 1 [work_modifier] => 1 [options] => Array ( [0] => 120 мм [1] => 250 мм [2] => 360 мм ) [days] => [7,7,7] [material_price] => [1785,3570,5355] [work_price] => [900,1600,1800] [image] => https://akademik-stroy.ru/wp-content/uploads/materials/kirpich-1.jpg [area_modifier] => 222.55 [parent_name] => Внутренние (не несущие) перегородки [parent_id] => 25 [material_sum] => 500537 [work_sum] => 210310 [total_sum] => 710847 [total_days] => 7 [display_material_sum] => 500 537 [display_work_sum] => 210 310 [display_total_sum] => 710 847 ) 1
710 847
Работа:210 310
Материалы:500 537
Дни:7
Электрика
stdClass Object ( [id] => 55 [attribute_id] => 28 [name] => Нет [material_modifier] => 1 [work_modifier] => 1 [options] => Array ( ) [days] => [0] [material_price] => [0] [work_price] => [0] [image] => https://akademik-stroy.ru/wp-content/uploads/materials/ehlektrika.jpg [area_modifier] => 180.6 [parent_name] => Электрика [parent_id] => 28 [material_sum] => 0 [work_sum] => 0 [total_sum] => 0 [total_days] => 0 [display_material_sum] => 0 [display_work_sum] => 0 [display_total_sum] => 0 ) 1
0
Работа:0
Материалы:0
Дни:0
stdClass Object ( [id] => 56 [attribute_id] => 28 [name] => Есть [material_modifier] => 1 [work_modifier] => 1 [options] => Array ( ) [days] => [10] [material_price] => [650] [work_price] => [950] [image] => https://akademik-stroy.ru/wp-content/uploads/materials/ehlektrika.jpg [area_modifier] => 180.6 [parent_name] => Электрика [parent_id] => 28 [material_sum] => 147911 [work_sum] => 180149 [total_sum] => 328060 [total_days] => 10 [display_material_sum] => 147 911 [display_work_sum] => 180 149 [display_total_sum] => 328 060 ) 1
328 060
Работа:180 149
Материалы:147 911
Дни:10
Сантехника, канализация в доме
stdClass Object ( [id] => 57 [attribute_id] => 29 [name] => Нет [material_modifier] => 1 [work_modifier] => 1 [options] => Array ( ) [days] => [0] [material_price] => [0] [work_price] => [0] [image] => https://akademik-stroy.ru/wp-content/uploads/materials/santekhnika-kanalizaciya-1.jpg [area_modifier] => 180.6 [parent_name] => Сантехника, канализация в доме [parent_id] => 29 [material_sum] => 0 [work_sum] => 0 [total_sum] => 0 [total_days] => 0 [display_material_sum] => 0 [display_work_sum] => 0 [display_total_sum] => 0 ) 1
0
Работа:0
Материалы:0
Дни:0
stdClass Object ( [id] => 58 [attribute_id] => 29 [name] => Есть [material_modifier] => 1 [work_modifier] => 1 [options] => Array ( ) [days] => [10] [material_price] => [600] [work_price] => [730] [image] => https://akademik-stroy.ru/wp-content/uploads/materials/santekhnika-kanalizaciya-1.jpg [area_modifier] => 180.6 [parent_name] => Сантехника, канализация в доме [parent_id] => 29 [material_sum] => 136534 [work_sum] => 138430 [total_sum] => 274964 [total_days] => 10 [display_material_sum] => 136 534 [display_work_sum] => 138 430 [display_total_sum] => 274 964 ) 1
274 964
Работа:138 430
Материалы:136 534
Дни:10
Отопление
stdClass Object ( [id] => 59 [attribute_id] => 30 [name] => Нет [material_modifier] => 1 [work_modifier] => 1 [options] => Array ( ) [days] => [0] [material_price] => [0] [work_price] => [0] [image] => https://akademik-stroy.ru/wp-content/uploads/materials/otoplenie-1.jpg [area_modifier] => 180.6 [parent_name] => Отопление [parent_id] => 30 [material_sum] => 0 [work_sum] => 0 [total_sum] => 0 [total_days] => 0 [display_material_sum] => 0 [display_work_sum] => 0 [display_total_sum] => 0 ) 1
0
Работа:0
Материалы:0
Дни:0
stdClass Object ( [id] => 60 [attribute_id] => 30 [name] => Есть [material_modifier] => 1 [work_modifier] => 1 [options] => Array ( ) [days] => [5] [material_price] => [610] [work_price] => [560] [image] => https://akademik-stroy.ru/wp-content/uploads/materials/otoplenie-1.jpg [area_modifier] => 180.6 [parent_name] => Отопление [parent_id] => 30 [material_sum] => 138809 [work_sum] => 106193 [total_sum] => 245002 [total_days] => 5 [display_material_sum] => 138 809 [display_work_sum] => 106 193 [display_total_sum] => 245 002 ) 1
245 002
Работа:106 193
Материалы:138 809
Дни:5
Теплые полы
stdClass Object ( [id] => 61 [attribute_id] => 31 [name] => Нет [material_modifier] => 1 [work_modifier] => 1 [options] => Array ( ) [days] => [0] [material_price] => [0] [work_price] => [0] [image] => https://akademik-stroy.ru/wp-content/uploads/materials/vodyanye.jpg [area_modifier] => 30 [parent_name] => Теплые полы [parent_id] => 31 [material_sum] => 0 [work_sum] => 0 [total_sum] => 0 [total_days] => 0 [display_material_sum] => 0 [display_work_sum] => 0 [display_total_sum] => 0 ) 1
0
Работа:0
Материалы:0
Дни:0
stdClass Object ( [id] => 151 [attribute_id] => 31 [name] => Водяные [material_modifier] => 1 [work_modifier] => 1 [options] => Array ( ) [days] => [9] [material_price] => [10200] [work_price] => [2500] [image] => https://akademik-stroy.ru/wp-content/uploads/materials/vodyanye.jpg [area_modifier] => 30 [parent_name] => Теплые полы [parent_id] => 31 [material_sum] => 385560 [work_sum] => 78750 [total_sum] => 464310 [total_days] => 9 [display_material_sum] => 385 560 [display_work_sum] => 78 750 [display_total_sum] => 464 310 ) 1
464 310
Работа:78 750
Материалы:385 560
Дни:9
stdClass Object ( [id] => 152 [attribute_id] => 31 [name] => Электро [material_modifier] => 1 [work_modifier] => 1 [options] => Array ( ) [days] => [5] [material_price] => [6300] [work_price] => [1500] [image] => https://akademik-stroy.ru/wp-content/uploads/materials/ehlektricheskij.jpg [area_modifier] => 30 [parent_name] => Теплые полы [parent_id] => 31 [material_sum] => 238140 [work_sum] => 47250 [total_sum] => 285390 [total_days] => 5 [display_material_sum] => 238 140 [display_work_sum] => 47 250 [display_total_sum] => 285 390 ) 1
285 390
Работа:47 250
Материалы:238 140
Дни:5
Черновая отделка стен
stdClass Object ( [id] => 63 [attribute_id] => 32 [name] => Нет [material_modifier] => 1 [work_modifier] => 1 [options] => Array ( ) [days] => [0] [material_price] => [0] [work_price] => [0] [image] => https://akademik-stroy.ru/wp-content/uploads/materials/shtukaturka-shpatlevka-1.jpg [area_modifier] => 180.6 [parent_name] => Черновая отделка стен [parent_id] => 32 [material_sum] => 0 [work_sum] => 0 [total_sum] => 0 [total_days] => 0 [display_material_sum] => 0 [display_work_sum] => 0 [display_total_sum] => 0 ) 1
0
Работа:0
Материалы:0
Дни:0
stdClass Object ( [id] => 153 [attribute_id] => 32 [name] => Штукатурка и шпатлевка [material_modifier] => 1 [work_modifier] => 1 [options] => Array ( ) [days] => [20] [material_price] => [1850] [work_price] => [2600] [image] => https://akademik-stroy.ru/wp-content/uploads/materials/shtukaturka-shpatlevka-1.jpg [area_modifier] => 180.6 [parent_name] => Черновая отделка стен [parent_id] => 32 [material_sum] => 420979 [work_sum] => 493038 [total_sum] => 914017 [total_days] => 20 [display_material_sum] => 420 979 [display_work_sum] => 493 038 [display_total_sum] => 914 017 ) 1
914 017
Работа:493 038
Материалы:420 979
Дни:20
stdClass Object ( [id] => 154 [attribute_id] => 32 [name] => Гипсокортон на стены [material_modifier] => 1 [work_modifier] => 1 [options] => Array ( ) [days] => [15] [material_price] => [950] [work_price] => [2100] [image] => https://akademik-stroy.ru/wp-content/uploads/materials/gkl-1.jpg [area_modifier] => 180.6 [parent_name] => Черновая отделка стен [parent_id] => 32 [material_sum] => 216178 [work_sum] => 398223 [total_sum] => 614401 [total_days] => 15 [display_material_sum] => 216 178 [display_work_sum] => 398 223 [display_total_sum] => 614 401 ) 1
614 401
Работа:398 223
Материалы:216 178
Дни:15
stdClass Object ( [id] => 155 [attribute_id] => 32 [name] => Вагонка [material_modifier] => 1 [work_modifier] => 1 [options] => Array ( ) [days] => [15] [material_price] => [1250] [work_price] => [950] [image] => https://akademik-stroy.ru/wp-content/uploads/materials/vagonka.jpg [area_modifier] => 180.6 [parent_name] => Черновая отделка стен [parent_id] => 32 [material_sum] => 284445 [work_sum] => 180149 [total_sum] => 464594 [total_days] => 15 [display_material_sum] => 284 445 [display_work_sum] => 180 149 [display_total_sum] => 464 594 ) 1
464 594
Работа:180 149
Материалы:284 445
Дни:15
Черновая отделка полов
stdClass Object ( [id] => 65 [attribute_id] => 33 [name] => Нет [material_modifier] => 1 [work_modifier] => 1 [options] => Array ( ) [days] => [0] [material_price] => [0] [work_price] => [0] [image] => https://akademik-stroy.ru/wp-content/uploads/materials/styazhka.jpg [area_modifier] => 180.6 [parent_name] => Черновая отделка полов [parent_id] => 33 [material_sum] => 0 [work_sum] => 0 [total_sum] => 0 [total_days] => 0 [display_material_sum] => 0 [display_work_sum] => 0 [display_total_sum] => 0 ) 1
0
Работа:0
Материалы:0
Дни:0
stdClass Object ( [id] => 156 [attribute_id] => 33 [name] => Стяжка + наливные полы [material_modifier] => 1 [work_modifier] => 1 [options] => Array ( ) [days] => [10] [material_price] => [1000] [work_price] => [900] [image] => https://akademik-stroy.ru/wp-content/uploads/materials/styazhka.jpg [area_modifier] => 180.6 [parent_name] => Черновая отделка полов [parent_id] => 33 [material_sum] => 227556 [work_sum] => 170667 [total_sum] => 398223 [total_days] => 10 [display_material_sum] => 227 556 [display_work_sum] => 170 667 [display_total_sum] => 398 223 ) 1
398 223
Работа:170 667
Материалы:227 556
Дни:10
stdClass Object ( [id] => 157 [attribute_id] => 33 [name] => ОСБ на пол [material_modifier] => 1 [work_modifier] => 1 [options] => Array ( ) [days] => [7] [material_price] => [580] [work_price] => [350] [image] => https://akademik-stroy.ru/wp-content/uploads/materials/osb-1.jpg [area_modifier] => 180.6 [parent_name] => Черновая отделка полов [parent_id] => 33 [material_sum] => 131982 [work_sum] => 66371 [total_sum] => 198353 [total_days] => 7 [display_material_sum] => 131 982 [display_work_sum] => 66 371 [display_total_sum] => 198 353 ) 1
198 353
Работа:66 371
Материалы:131 982
Дни:7
Чистовая отделка стен и полов
stdClass Object ( [id] => 67 [attribute_id] => 34 [name] => Нет [material_modifier] => 1 [work_modifier] => 1 [options] => Array ( ) [days] => [0] [material_price] => [0] [work_price] => [0] [image] => https://akademik-stroy.ru/wp-content/uploads/materials/chistovaya-otdelka.jpg [area_modifier] => 180.6 [parent_name] => Чистовая отделка стен и полов [parent_id] => 34 [material_sum] => 0 [work_sum] => 0 [total_sum] => 0 [total_days] => 0 [display_material_sum] => 0 [display_work_sum] => 0 [display_total_sum] => 0 ) 1
0
Работа:0
Материалы:0
Дни:0
stdClass Object ( [id] => 68 [attribute_id] => 34 [name] => Есть [material_modifier] => 1 [work_modifier] => 1 [options] => Array ( ) [days] => [50] [material_price] => [6000] [work_price] => [3500] [image] => https://akademik-stroy.ru/wp-content/uploads/materials/chistovaya-otdelka.jpg [area_modifier] => 180.6 [parent_name] => Чистовая отделка стен и полов [parent_id] => 34 [material_sum] => 1365336 [work_sum] => 663705 [total_sum] => 2029041 [total_days] => 50 [display_material_sum] => 1 365 336 [display_work_sum] => 663 705 [display_total_sum] => 2 029 041 ) 1
2 029 041
Работа:663 705
Материалы:1 365 336
Дни:50
Отделка потолка
stdClass Object ( [id] => 69 [attribute_id] => 35 [name] => Нет [material_modifier] => 1 [work_modifier] => 1 [options] => Array ( ) [days] => [0] [material_price] => [0] [work_price] => [0] [image] => https://akademik-stroy.ru/wp-content/uploads/materials/mnogourovnevyj-gkl.jpg [area_modifier] => 180.6 [parent_name] => Отделка потолка [parent_id] => 35 [material_sum] => 0 [work_sum] => 0 [total_sum] => 0 [total_days] => 0 [display_material_sum] => 0 [display_work_sum] => 0 [display_total_sum] => 0 ) 1
0
Работа:0
Материалы:0
Дни:0
stdClass Object ( [id] => 70 [attribute_id] => 35 [name] => Есть [material_modifier] => 1 [work_modifier] => 1 [options] => Array ( [0] => Многоуровневый потолок из гипсокартона [1] => Многоуровневый потолок из гипсокартона и натяжного потолка [2] => Одноуровневый потолок из гипсокартона [3] => Одноуровневый натяжной потолок ) [days] => [10,10,1,1] [material_price] => [900,700,700,600] [work_price] => [1000,800,500,300] [image] => https://akademik-stroy.ru/wp-content/uploads/materials/mnogourovnevyj-gkl.jpg [area_modifier] => 180.6 [parent_name] => Отделка потолка [parent_id] => 35 [material_sum] => 204800 [work_sum] => 189630 [total_sum] => 394430 [total_days] => 10 [display_material_sum] => 204 800 [display_work_sum] => 189 630 [display_total_sum] => 394 430 ) 1
394 430
Работа:189 630
Материалы:204 800
Дни:10

Преимущества работы с нами

icon

7 этапов оплаты

icon

Независимый строительный надзор

icon

Экологически чистые материалы

icon

16 лет гарантии

icon

Онлайн-кабинет с веб-камерой

icon

Строители с опытом более 15 лет

icon

Собственное производство

Двухэтажный дом 15x10 - 180.6 м² в Москве: оптимальное решение для семейной жизни

Вы мечтаете о просторном и комфортном доме, который станет вашим личным уголком уюта и спокойствия? Тогда проект двухэтажного дома размером 15 на 10 метров площадью 180.6 м² от компании "Академик Строй" — именно то, что вам нужно. Современный подход к проектированию, качественные материалы и продуманная планировка позволят вам создать идеальный дом, в котором комфортно и удобно жить всей семьёй. Если вы цените пространство, функциональность и стиль, важно понять, почему именно этот проект пользуется большим спросом в Москве и Московской области. Не просто большой дом — а дом, который решает множество жизненных задач, даёт массу возможностей и оптимально вписывается в городскую среду с ограниченным по площади участком.

Ключевые параметры дома: основные преимущества проекта

Когда рассматриваешь варианты строительства частного дома, важно обращать внимание не только на внешний вид, но и на технические характеристики, которые напрямую влияют на качество жизни. Посмотрим, что предлагает этот проект.
Параметр Значение
Размеры дома 15 x 10 м
Полезная площадь 180.6 м²
Этажность 2 этажа
Количество спален 4
Количество санузлов 2
Жилая площадь 135.7 м²
Площадь застройки 137.8 м²
Площадь крыши 243.5 м²
Угол наклона крыши 40°
Высота здания 8.7 м
Минимальные размеры участка 23.4 м (ширина) x 17.7 м (длина)
Тип крыши Двускатная
Высота аттиковой стены 0.92 м
Как видно из таблицы, проект отличается сбалансированными размерами – 15 на 10 метров — что позволяет рационально использовать участок, не занимая слишком много свободного пространства, но при этом предоставляя достаточно комнат и удобств.

Пространство для жизнь и комфорта: планировка и жилые комнаты

Дом рассчитан на комфортное проживание семьи из 4 или 5 человек – здесь предусмотрено четыре просторных спальни. Это идеальный вариант, если у вас большая семья или вы хотите иметь гостевую комнату, кабинет или детскую отдельно. Жилая площадь в 135,7 квадратных метров обеспечивает удобное разделение пространства на зоны отдыха и личного пространства. Помимо спален, обязательным элементом комфортного загородного дома являются санузлы. В этом проекте предусмотрено два санузла, что особенно удобно для семей с детьми: утром не нужно устраивать гонки и споры за ванной.

Особенности внешнего вида и архитектуры дома

Двухэтажное строение высотой 8.7 метра легко впишется в разные ландшафты, будет эффектно смотреться как в частном поселке, так и на окраине мегаполиса. Оригинальный двускатный тип крыши с углом наклона 40° придаёт дому стильный и одновременно традиционный вид. Такая крыша практична в российском климате: снег и осадки быстро скатываются, что минимизирует риск протечек и повреждений. Высота аттиковой стены — 0.92 м — добавляет дому дополнительный дизайнерский штрих и расширяет возможности для использования мансардного пространства, например, для размещения гардеробных или кладовых.

Преимущества заказа проекта от компании "Академик Строй"

Выбор подрядчика и проектной компании — это ключевой шаг в строительстве надежного и долговечного дома. Компания "Академик Строй" заслужила популярность за счёт комплексного подхода, высокого качества проектирования и технической поддержки клиентов на всех этапах.

Почему именно "Академик Строй"?

  • Индивидуальный подход — каждый проект адаптируется под особенности участка и пожелания заказчика.
  • Оптимальное соотношение цена/качество — проекты доступны по приемлемой цене, при этом не уступают в дизайне и функциональности.
  • Профессиональная команда — архитекторы и инженеры с многолетним опытом работы в сфере загородного строительства.
  • Поддержка при согласовании — помощь в оформлении документов и получении разрешений.
Телефон для заказа проекта: +7 (980) 800-47-93. Всего один звонок — и ваш путь к мечте о собственном доме станет на шаг ближе.

Что включает в себя проект?

Проект компании "Академик Строй" — это не просто чертежи. Вы получите полноценный набор документов, который позволяет сразу перейти к этапу строительства:
  • Архитектурные чертежи
  • Конструктивные решения
  • Схемы инженерных коммуникаций
  • Разрезы и планы этажей
  • Детализация фасадов
Все это значительно экономит ваше время и силы и минимизирует риски при строительстве.

Как будет выглядеть дом изнутри? Планировка и удобства

Жилое пространство всегда выигрывает от продуманной планировки. В проекте дома 15x10 предусмотрено всё, что нужно для современной семьи.

Первый этаж — центр семейной жизни

Первый этаж занимает просторная гостиная, объединённая с кухней и столовой — это место для общения, отдыха и приёма гостей. Плюс комната, которую можно использовать как кабинет или дополнительную спальню для пожилых родственников или гостей. Также здесь находятся один из двух санузлов и дополнительное хозяйственное помещение — кладовая или котельная.

Второй этаж — личное пространство и спокойствие

На втором этаже разместились четыре спальни и второй санузел. Такой вариант прекрасно подходит как для большой семьи, так и для семей с детьми школьного возраста. Каждая комната достаточно просторна для комфортного отдыха, занятия учебой или хобби.

Дополнительные опции и преимущества

Хотя в доме отсутствует гараж, предусмотрена терраса и эркер, которые украшают фасад и позволяют наслаждаться открытым пространством непосредственно у входа. Также есть возможность оборудовать камин — отличный способ добавить уюта и тепла, особенно в холодные московские зимы.
  • Терраса: место для отдыха на свежем воздухе
  • Эркер: добавляет свет и визуально расширяет помещения
  • Камин: эстетика и дополнительное отопление

Параметры участка: как подобрать место для идеального дома

Очень важно, чтобы параметры участка соответствовали требованиям проекта. Для дома 15x10 требуется минимальный участок шириной 23.4 метра и длиной 17.7 метра. Это условие позволит без проблем вписать дом в ландшафт, оставить место для подсобных построек, небольшого сада или зоны отдыха. Если участок меньше, приходится искать другие варианты или подгонять проект — что иногда приводит к дополнительным затратам и неудобствам.

Как выбрать участок под строительство в Москве и Подмосковье

  • Обратите внимание на рельеф: ровная поверхность намного облегчает строительство и сокращает затраты на фундамент.
  • Продумайте расположение по сторонам света: комнаты с окнами на юг будут светлыми и тёплыми.
  • Проверьте доступность коммуникаций: электричество, водоснабжение, газ.
  • Оцените инфраструктуру: дороги, магазины, школы и детские сады.

Экономика и стоимость: почему аккуратный выбор проекта экономит деньги

Строительство — это всегда значительные вложения. Проект двухэтажного дома 15x10 размером 180.6 м² — оптимальный баланс между ценой и площадью. Зачастую при меньшей площади приходится сокращать количество комнат или уменьшать комфорт, что в итоге снижает ценность объекта. Оптимальные габариты и продуманный архитектурный облик помогают снизить расходы на материалы и работу, исключить ненужные переплаты, а также получить красивый и функциональный дом.

Важно знать

Показатель Значение Примечание
Полезная площадь 180.6 м² Оптимальна для семьи из 4-5 человек
Площадь застройки 137.8 м² Учитывается под фундамент
Объем брутто 554 м³ Влияет на фундамент и внутренние конструкции
Площадь крыши 243.5 м² Для расчёта кровельных материалов
Минимальная ширина участка 23.4 м Без ограничения плотности застройки

Заказать проект — просто и быстро: как начать строительство мечты уже сегодня

Самый сложный этап — выбрать подходящий проект и надёжного исполнителя. Компания "Академик Строй" предлагает готовое решение, адаптированное под стандарты Москвы и условия Московской области. Чтобы заказать проект, достаточно набрать номер +7 (980) 800-47-93. Вам подробно расскажут обо всех нюансах, предложат альтернативные варианты и помогут оформить договор.

Пошаговый процесс заказа проекта

  1. Связываетесь с менеджером компании
  2. Обсуждаете нужды и пожелания по дому
  3. Получаете полный пакет документов и смету
  4. Подписываете договор и начинаете подготовительные работы
Вы можете быть уверены, что проект будет реализован в срок и качественно, с учётом современных технологий и материалов.

Вывод: ваш дом мечты начинается здесь и сейчас

Двухэтажный дом размером 15 на 10 метров площадью 180.6 м² — это не просто жилище. Это возможность создавать тёплую атмосферу, наслаждаться семейным уютом, принимать гостей и реализовывать свои мечты о собственном комфортном пространстве. Проект от "Академик Строй" — это рентабельное, разумное и эстетичное решение для тех, кто хочет построить дом в московском регионе без лишних рисков и переплат. Не откладывайте на завтра то, что можно сделать сегодня — позвоните и закажите проект, который станет базой для вашего счастливого дома. Телефон для связи: +7 (980) 800-47-93. Ваш будущий дом уже ждёт вас!