Двухэтажный дом 18x10 - 207.5 м2 за руб.

ID-68239

Стоимость дома 7195948 руб.
154 м2 Полезная
площадь
18 x 10 м Размеры
2 этажа Этажей
26 м2 Террасы
и балконы
2Без
гаража
4 Количество
спален
2 Количество
санузлов

Планировки

План первого этажа

floor image
  • 1. Прихожая 5 m²
  • 2. Холл 8,60 m²
  • 3. Кухня + кладовая 10,40 m²
  • 4. Гостиная + столовая 30,70 m²
  • 5. Ванная комната 4,20 m²
  • 6. Кладовая 8,50 m²
  • 7. Лестница 3,60 m²
  • 8. Комната 11 m²
  • 9. Котельная 11 m²
  • 10. Гараж на 2 машины 33,40 m²
  • План первого этажа 126,40 m²

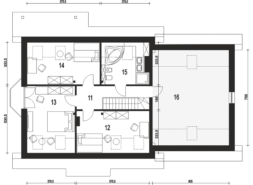
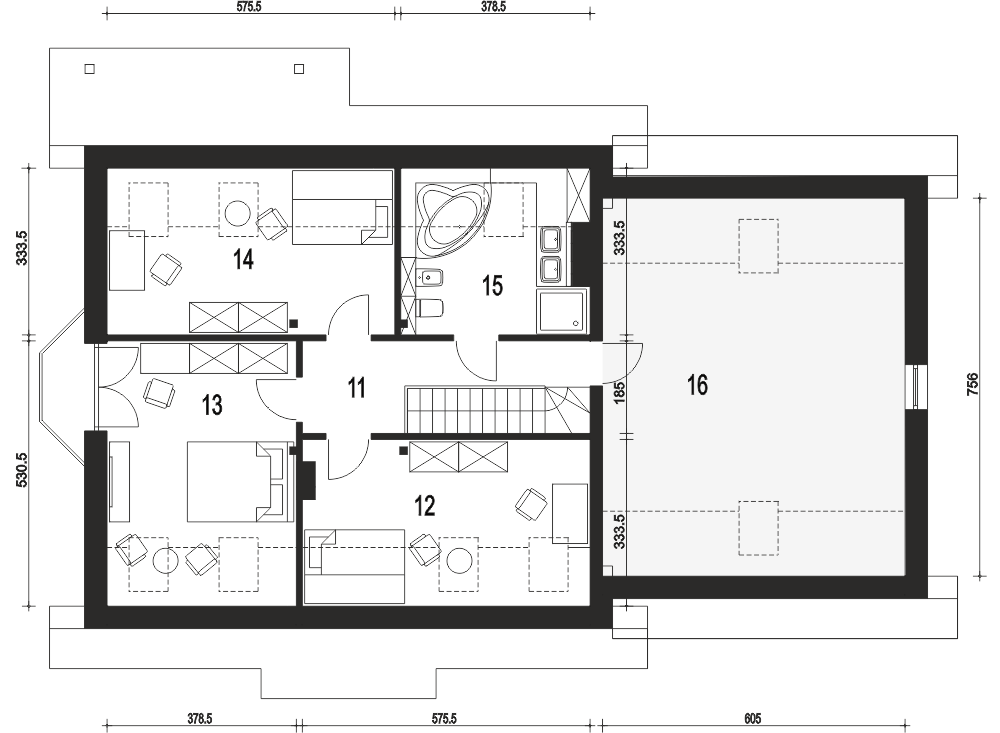
План мансарды

floor image
  • 1. Коридор 7,20 m²
  • 2. Комната 12,80 m² (18,70 m²)
  • 3. Комната 15,90 m² (19,80 m²)
  • 4. Комната 13 m² (18,90 m²)
  • 5. Ванная комната 8 m² (11,80 m²)
  • 6. Чердак 24,20 m² (45,30 m²)
  • План мансарды 81,10 m²

Разрезы

Вертикальный разрез
Вертикальный разрез

Фасады

Передний
Задний
Левый
Правый
Передний
Задний
Левый
Правый

Подробная информация

Жилая площадь
130,40 m²
icon

Сумма площади всех жилых помещений, за вычетом пов. гараж, котельная, чердак, подвал. Учитывается в 100%, для помещений высотой более 2,2 м, в 50% для помещений с высотой 2,2-1,4 м и не включается для более низких помещений (меньше 1,4 м).

Высота аттиковой стены
0,92 m
icon

Площадь застройки
158,20 m²
icon

Площадь застройки здания определяется как площадь горизонтального сечения по внешнему обводу здания на уровне цоколя, включая выступающие части.

Площадь нетто
248,10 m²
icon

Площадь всех помещений в здании, измеренная на высоте пола.

Площадь крыши
278,50 m²
icon

Угол наклона крыши
40°
icon

Наклон ската крыши в градусах. Внимание! В некоторых проектах возникает более чем один наклон крыши.

Высота здания
8,70 m
icon

Высота измеряется от поверхности земли до самой высокой точки кровли (конька), за исключением дымоходов.

Мин. ширина участка
25,80 m
icon

Наименьшая возможная ширина участка, необходимая для строительства выбранного дома. Состоит из длины фасада дома плюс с обеих сторон три метра отступ.

Мин. длина участка
17,70 m
icon

Наименьшая возможная длина участка, необходимая для строительства выбранного дома. Состоит из длины фасада дома плюс с обеих сторон три метра отступ.

Материалы и опции
Общие
Цена, руб.
Площадь м²
260
Площадь от и до
Ежемесячный платёж, руб
Количество спален
4
Гараж
2
Количество санузлов
2
Тип крыши
Ширина
18
Глубина
10

Площади дома

№ п/п Наименование Ед. из. Строительная площадь Полезная площадь
1 1 этаж м2 155.76 126.4
2 2 этаж м2 99.94 81.1
3 Итого м2 255.7 207.5

Калькулятор опций

0

В ипотеку от 23 363 ₽/мес.

Фундамент
stdClass Object ( [id] => 1 [attribute_id] => 1 [name] => Ленточный монолитный ж/б [material_modifier] => 1 [work_modifier] => 1 [options] => Array ( [0] => размер 200 х 700 мм [1] => размер 300 х 900 мм [2] => размер 400 х 1 000 мм [3] => размер 500 х 1 100 мм [4] => размер 600 х 1 200 мм ) [days] => [20,21,22,25,30] [material_price] => [2823,3630,4475,5210,12047] [work_price] => [2154,2826,3731,4577,5293] [image] => https://akademik-stroy.ru/wp-content/uploads/materials/lentochnyj-monolitnyj-zh-b.jpg [area_modifier] => 155.76 [parent_name] => Фундамент [parent_id] => 1 [material_sum] => 554035 [work_sum] => 352282 [total_sum] => 906317 [total_days] => 20 [display_material_sum] => 554 035 [display_work_sum] => 352 282 [display_total_sum] => 906 317 ) 1
906 317
Работа:352 282
Материалы:554 035
Дни:20
stdClass Object ( [id] => 2 [attribute_id] => 1 [name] => Забивные Ж/Б сваи [material_modifier] => 1 [work_modifier] => 1 [options] => Array ( [0] => 150х150х3000мм [1] => 150х150х4000мм [2] => 200х200х3000мм [3] => 200х200х4000мм [4] => 200х200х5000мм [5] => 200х200х6000мм ) [days] => [2,2,2,2,2,2] [material_price] => [1990,2850,3255,4360,5120,6837] [work_price] => [1002,1185,1336,1438,1574,1839] [image] => https://akademik-stroy.ru/wp-content/uploads/materials/zabivnye-zh-b-svai.png [area_modifier] => 155.76 [parent_name] => Фундамент [parent_id] => 1 [material_sum] => 390553 [work_sum] => 163875 [total_sum] => 554428 [total_days] => 2 [display_material_sum] => 390 553 [display_work_sum] => 163 875 [display_total_sum] => 554 428 ) 1
554 428
Работа:163 875
Материалы:390 553
Дни:2
stdClass Object ( [id] => 71 [attribute_id] => 1 [name] => Свайно-ростверковый ж/б [material_modifier] => 1 [work_modifier] => 1 [options] => Array ( [0] => ростверк 200х300 мм [1] => ростверк 300х600 мм [2] => ростверк 400х900 мм [3] => ростверк 500х1200 мм ) [days] => [20,23,25,27] [material_price] => [3018,3474,7109,9792] [work_price] => [2024,3012,5635,7022] [image] => https://akademik-stroy.ru/wp-content/uploads/materials/svajno-rostverkovyj-monolitnyj-zh-b-3.png [area_modifier] => 155.76 [parent_name] => Фундамент [parent_id] => 1 [material_sum] => 592305 [work_sum] => 331021 [total_sum] => 923326 [total_days] => 20 [display_material_sum] => 592 305 [display_work_sum] => 331 021 [display_total_sum] => 923 326 ) 1
923 326
Работа:331 021
Материалы:592 305
Дни:20
stdClass Object ( [id] => 72 [attribute_id] => 1 [name] => Монолитная ж/б плита [material_modifier] => 1 [work_modifier] => 1 [options] => Array ( [0] => 200 мм [1] => 300 мм [2] => 400 мм [3] => 500 мм [4] => 600 мм ) [days] => [30,33,35,37,40] [material_price] => [5348,8555,12788,14388,15189] [work_price] => [4314,4881,7037,8061,10230] [image] => https://akademik-stroy.ru/wp-content/uploads/materials/monolitnaya-zhb-plita.png [area_modifier] => 155.76 [parent_name] => Фундамент [parent_id] => 1 [material_sum] => 1049586 [work_sum] => 705546 [total_sum] => 1755132 [total_days] => 30 [display_material_sum] => 1 049 586 [display_work_sum] => 705 546 [display_total_sum] => 1 755 132 ) 1
1 755 132
Работа:705 546
Материалы:1 049 586
Дни:30
stdClass Object ( [id] => 73 [attribute_id] => 1 [name] => Утепленная шведская плита [material_modifier] => 1 [work_modifier] => 1 [options] => Array ( [0] => 200 мм [1] => 300 мм [2] => 400 мм [3] => 500 мм [4] => 600 мм ) [days] => [32,37,39,42,45] [material_price] => [10249,12692,13760,14936,16230] [work_price] => [5960,7337,8072,8878,9765] [image] => https://akademik-stroy.ru/wp-content/uploads/materials/uteplennaya-shvedskaya-plita.jpg [area_modifier] => 155.76 [parent_name] => Фундамент [parent_id] => 1 [material_sum] => 2011444 [work_sum] => 974746 [total_sum] => 2986190 [total_days] => 32 [display_material_sum] => 2 011 444 [display_work_sum] => 974 746 [display_total_sum] => 2 986 190 ) 1
2 986 190
Работа:974 746
Материалы:2 011 444
Дни:32
stdClass Object ( [id] => 75 [attribute_id] => 1 [name] => Ленточный из ФБС [material_modifier] => 1 [work_modifier] => 1 [options] => Array ( [0] => толщ. 300 мм [1] => толщ. 400 мм [2] => толщ. 500 мм [3] => толщ. 600 мм ) [days] => [20,20,20,20] [material_price] => [3675,4902,6126,7350] [work_price] => [2451,3264,4083,4902] [image] => https://akademik-stroy.ru/wp-content/uploads/materials/lentochnyj-iz-fbs.png [area_modifier] => 155.76 [parent_name] => Фундамент [parent_id] => 1 [material_sum] => 721247 [work_sum] => 400856 [total_sum] => 1122103 [total_days] => 20 [display_material_sum] => 721 247 [display_work_sum] => 400 856 [display_total_sum] => 1 122 103 ) 1
1 122 103
Работа:400 856
Материалы:721 247
Дни:20
stdClass Object ( [id] => 76 [attribute_id] => 1 [name] => Цокольный этаж из ФБС [material_modifier] => 1 [work_modifier] => 1 [options] => Array ( [0] => толщ. 300 мм [1] => толщ. 400 мм [2] => толщ. 500 мм [3] => толщ. 600 мм ) [days] => [30,32,34,36] [material_price] => [20916,23299,26680,29060] [work_price] => [17524,18700,19873,21046] [image] => https://akademik-stroy.ru/wp-content/uploads/materials/cokolnyj-ehtazh-iz-fbs.jpg [area_modifier] => 155.76 [parent_name] => Фундамент [parent_id] => 1 [material_sum] => 4104924 [work_sum] => 2866015 [total_sum] => 6970939 [total_days] => 30 [display_material_sum] => 4 104 924 [display_work_sum] => 2 866 015 [display_total_sum] => 6 970 939 ) 1
6 970 939
Работа:2 866 015
Материалы:4 104 924
Дни:30
stdClass Object ( [id] => 77 [attribute_id] => 1 [name] => Цокольный этаж монолитный ж/б [material_modifier] => 1 [work_modifier] => 1 [options] => Array ( [0] => толщ. 200 мм [1] => толщ. 300 мм [2] => толщ. 400 мм [3] => толщ. 500 мм [4] => толщ. 600 мм ) [days] => [40,42,44,46,48] [material_price] => [25421,29148,32275,35602,37326] [work_price] => [20441,21907,23375,24841,26306] [image] => https://akademik-stroy.ru/wp-content/uploads/materials/cokolnyj-etazh-zh-b.jpg [area_modifier] => 155.76 [parent_name] => Фундамент [parent_id] => 1 [material_sum] => 4989064 [work_sum] => 3343085 [total_sum] => 8332149 [total_days] => 40 [display_material_sum] => 4 989 064 [display_work_sum] => 3 343 085 [display_total_sum] => 8 332 149 ) 1
8 332 149
Работа:3 343 085
Материалы:4 989 064
Дни:40
stdClass Object ( [id] => 191 [attribute_id] => 1 [name] => Винтовые сваи [material_modifier] => 1 [work_modifier] => 1 [options] => Array ( [0] => 57х200мм [1] => 76х250мм [2] => 108х300мм [3] => 133х350мм ) [days] => [1,1,2,2] [material_price] => [1200,1300,1450,1600] [work_price] => [400,600,900,1100] [image] => https://akademik-stroy.ru/wp-content/uploads/materials/vintovye-svai.png [area_modifier] => 155.76 [parent_name] => Фундамент [parent_id] => 1 [material_sum] => 235509 [work_sum] => 65419 [total_sum] => 300928 [total_days] => 1 [display_material_sum] => 235 509 [display_work_sum] => 65 419 [display_total_sum] => 300 928 ) 1
300 928
Работа:65 419
Материалы:235 509
Дни:1
Перекрытие цоколя
stdClass Object ( [id] => 3 [attribute_id] => 2 [name] => Деревянные балки [material_modifier] => 1 [work_modifier] => 1 [options] => Array ( [0] => без утепления [1] => утепление 200 мм [2] => утепление 250 мм [3] => утепление 300 мм [4] => утепление 350 мм [5] => утепление 400 мм [6] => утепление 450 мм [7] => утепление 500 мм ) [days] => [8,9,9,9,11,12,13,14] [material_price] => [1634,2042,2344,2947,3149,3652,3354,3557] [work_price] => [1230,1339,1393,1426,1460,1513,1587,1620] [image] => https://akademik-stroy.ru/wp-content/uploads/materials/derevyannye-balki.png [area_modifier] => 155.76 [parent_name] => Перекрытие цоколя [parent_id] => 2 [material_sum] => 320685 [work_sum] => 201164 [total_sum] => 521849 [total_days] => 8 [display_material_sum] => 320 685 [display_work_sum] => 201 164 [display_total_sum] => 521 849 ) 1
521 849
Работа:201 164
Материалы:320 685
Дни:8
stdClass Object ( [id] => 4 [attribute_id] => 2 [name] => Сборные ж/б плиты [material_modifier] => 1 [work_modifier] => 1 [options] => Array ( [0] => без утепления [1] => утепление 150мм [2] => утепление 200мм [3] => утепление 250мм [4] => утепление 300мм [5] => утепление 350мм [6] => утепление 400мм [7] => утепление 450мм [8] => утепление 500мм ) [days] => [13,15,15,15,15,15,15,15,15] [material_price] => [3067,5577,5928,6679,7730,8782,9833,10884,11935] [work_price] => [1520,1956,2102,2247,2392,2537,2684,2829,2974] [image] => https://akademik-stroy.ru/wp-content/uploads/materials/sbornye-zh-b-plity-2.jpg [area_modifier] => 155.76 [parent_name] => Перекрытие цоколя [parent_id] => 2 [material_sum] => 601922 [work_sum] => 248593 [total_sum] => 850515 [total_days] => 13 [display_material_sum] => 601 922 [display_work_sum] => 248 593 [display_total_sum] => 850 515 ) 1
850 515
Работа:248 593
Материалы:601 922
Дни:13
stdClass Object ( [id] => 78 [attribute_id] => 2 [name] => Монолитная ж/б плита [material_modifier] => 1 [work_modifier] => 1 [options] => Array ( [0] => без утепления [1] => утепление 150 мм [2] => утепление 200 мм [3] => утепление 250 мм [4] => утепление 300 мм [5] => утепление 350 мм [6] => утепление 400 мм [7] => утепление 450 мм [8] => утепление 500 мм ) [days] => [18,20,20,20,20,20,20,20,20] [material_price] => [4837,6572,7224,7375,79426,8177,8728,9180,10031] [work_price] => [3348,3921,4112,4302,4493,4684,4875,5066,5256] [image] => https://akademik-stroy.ru/wp-content/uploads/materials/monolitnaya-zh-b-plita-2.jpg [area_modifier] => 155.76 [parent_name] => Перекрытие цоколя [parent_id] => 2 [material_sum] => 949298 [work_sum] => 547559 [total_sum] => 1496857 [total_days] => 18 [display_material_sum] => 949 298 [display_work_sum] => 547 559 [display_total_sum] => 1 496 857 ) 1
1 496 857
Работа:547 559
Материалы:949 298
Дни:18
Стены 1 этаж (несущие)
stdClass Object ( [id] => 6 [attribute_id] => 3 [name] => Пеноблок [material_modifier] => 1 [work_modifier] => 1 [options] => Array ( [0] => 300 мм [1] => 400 мм [2] => 500 мм [3] => 600 мм ) [days] => [29,31,34,39] [material_price] => [3000,4000,4500,4937] [work_price] => [5033,5805,6400,8710] [image] => https://akademik-stroy.ru/wp-content/uploads/materials/penoblok.jpg [area_modifier] => 155.76 [parent_name] => Стены 1 этаж (несущие) [parent_id] => 3 [material_sum] => 588773 [work_sum] => 823137 [total_sum] => 1411910 [total_days] => 29 [display_material_sum] => 588 773 [display_work_sum] => 823 137 [display_total_sum] => 1 411 910 ) 1
1 411 910
Работа:823 137
Материалы:588 773
Дни:29
stdClass Object ( [id] => 79 [attribute_id] => 3 [name] => Керамический блок [material_modifier] => 1 [work_modifier] => 1 [options] => Array ( [0] => 380 мм [1] => 380 мм Thermo [2] => 440 мм [3] => 510 мм ) [days] => [23,23,24,25] [material_price] => [4510,5098,6093,8013] [work_price] => [4737,4937,5903,6958] [image] => https://akademik-stroy.ru/wp-content/uploads/materials/keramicheskij-blok.jpg [area_modifier] => 155.76 [parent_name] => Стены 1 этаж (несущие) [parent_id] => 3 [material_sum] => 885122 [work_sum] => 774727 [total_sum] => 1659849 [total_days] => 23 [display_material_sum] => 885 122 [display_work_sum] => 774 727 [display_total_sum] => 1 659 849 ) 1
1 659 849
Работа:774 727
Материалы:885 122
Дни:23
stdClass Object ( [id] => 80 [attribute_id] => 3 [name] => Кирпич [material_modifier] => 1 [work_modifier] => 1 [options] => Array ( [0] => Кирпич 250 мм [1] => Кирпич 380 мм [2] => Кирпич 510 мм [3] => Кирпич 640 мм [4] => Кирпич 770 мм ) [days] => [30,30,31,33,36] [material_price] => [5500,7142,9206,10171,12235] [work_price] => [8736,10041,12018,15240,18462] [image] => https://akademik-stroy.ru/wp-content/uploads/materials/kirpich.jpg [area_modifier] => 155.76 [parent_name] => Стены 1 этаж (несущие) [parent_id] => 3 [material_sum] => 1079417 [work_sum] => 1428755 [total_sum] => 2508172 [total_days] => 30 [display_material_sum] => 1 079 417 [display_work_sum] => 1 428 755 [display_total_sum] => 2 508 172 ) 1
2 508 172
Работа:1 428 755
Материалы:1 079 417
Дни:30
stdClass Object ( [id] => 81 [attribute_id] => 3 [name] => Монолитные [material_modifier] => 1 [work_modifier] => 1 [options] => Array ( [0] => 150 мм [1] => 200 мм [2] => 250 мм [3] => 300 мм [4] => 350 мм [5] => 400 мм ) [days] => [45,46,47,49,50,53] [material_price] => [6545,7876,10175,12011,13908,15204] [work_price] => [5106,6444,7698,8552,9807,11461] [image] => https://akademik-stroy.ru/wp-content/uploads/materials/monolitnye.jpg [area_modifier] => 155.76 [parent_name] => Стены 1 этаж (несущие) [parent_id] => 3 [material_sum] => 1284506 [work_sum] => 835076 [total_sum] => 2119582 [total_days] => 45 [display_material_sum] => 1 284 506 [display_work_sum] => 835 076 [display_total_sum] => 2 119 582 ) 1
2 119 582
Работа:835 076
Материалы:1 284 506
Дни:45
stdClass Object ( [id] => 82 [attribute_id] => 3 [name] => Клееный брус [material_modifier] => 1 [work_modifier] => 1 [options] => Array ( [0] => 160 мм [1] => 175 мм [2] => 200 мм [3] => 215 мм [4] => 240 мм [5] => 270 мм [6] => 282 мм ) [days] => [24,28,32,37,40,42,48] [material_price] => [16975,18773,19950,20545,21599,22159,23275] [work_price] => [4806,5287,5815,6397,7036,7740,8514] [image] => https://akademik-stroy.ru/wp-content/uploads/materials/kleenyj-brus.jpg [area_modifier] => 155.76 [parent_name] => Стены 1 этаж (несущие) [parent_id] => 3 [material_sum] => 3331473 [work_sum] => 786012 [total_sum] => 4117485 [total_days] => 24 [display_material_sum] => 3 331 473 [display_work_sum] => 786 012 [display_total_sum] => 4 117 485 ) 1
4 117 485
Работа:786 012
Материалы:3 331 473
Дни:24
stdClass Object ( [id] => 83 [attribute_id] => 3 [name] => Каркасные [material_modifier] => 1 [work_modifier] => 1 [options] => Array ( [0] => 150 мм [1] => 200 мм [2] => 250 мм [3] => 300 мм ) [days] => [15,16,17,18] [material_price] => [2379,2639,2898,3258] [work_price] => [2418,2686,2985,3716] [image] => https://akademik-stroy.ru/wp-content/uploads/materials/karkasnye.jpg [area_modifier] => 155.76 [parent_name] => Стены 1 этаж (несущие) [parent_id] => 3 [material_sum] => 466897 [work_sum] => 395459 [total_sum] => 862356 [total_days] => 15 [display_material_sum] => 466 897 [display_work_sum] => 395 459 [display_total_sum] => 862 356 ) 1
862 356
Работа:395 459
Материалы:466 897
Дни:15
stdClass Object ( [id] => 84 [attribute_id] => 3 [name] => СИП-панели [material_modifier] => 1 [work_modifier] => 1 [options] => Array ( [0] => 120 мм [1] => 170 мм [2] => 220 мм ) [days] => [7,7,7] [material_price] => [1210,1856,2292] [work_price] => [1410,1551,1706] [image] => https://akademik-stroy.ru/wp-content/uploads/materials/sip-paneli.jpg [area_modifier] => 155.76 [parent_name] => Стены 1 этаж (несущие) [parent_id] => 3 [material_sum] => 237472 [work_sum] => 230603 [total_sum] => 468075 [total_days] => 7 [display_material_sum] => 237 472 [display_work_sum] => 230 603 [display_total_sum] => 468 075 ) 1
468 075
Работа:230 603
Материалы:237 472
Дни:7
stdClass Object ( [id] => 85 [attribute_id] => 3 [name] => Сухой брус [material_modifier] => 1 [work_modifier] => 1 [options] => Array ( [0] => 150 мм [1] => 180 мм [2] => 200 мм ) [days] => [7,8,9] [material_price] => [6010,7190,8709] [work_price] => [3204,3845,4229] [image] => https://akademik-stroy.ru/wp-content/uploads/materials/suhoj-brus.jpg [area_modifier] => 155.76 [parent_name] => Стены 1 этаж (несущие) [parent_id] => 3 [material_sum] => 1179508 [work_sum] => 524008 [total_sum] => 1703516 [total_days] => 7 [display_material_sum] => 1 179 508 [display_work_sum] => 524 008 [display_total_sum] => 1 703 516 ) 1
1 703 516
Работа:524 008
Материалы:1 179 508
Дни:7
stdClass Object ( [id] => 86 [attribute_id] => 3 [name] => Профилированный брус [material_modifier] => 1 [work_modifier] => 1 [options] => Array ( [0] => 150 мм [1] => 180 мм [2] => 200 мм ) [days] => [7,8,9] [material_price] => [8190,9228,10051] [work_price] => [3845,4614,5075] [image] => https://akademik-stroy.ru/wp-content/uploads/materials/profilirovannyj-brus.jpg [area_modifier] => 155.76 [parent_name] => Стены 1 этаж (несущие) [parent_id] => 3 [material_sum] => 1607350 [work_sum] => 628842 [total_sum] => 2236192 [total_days] => 7 [display_material_sum] => 1 607 350 [display_work_sum] => 628 842 [display_total_sum] => 2 236 192 ) 1
2 236 192
Работа:628 842
Материалы:1 607 350
Дни:7
stdClass Object ( [id] => 87 [attribute_id] => 3 [name] => Оцилиндрованное бревно [material_modifier] => 1 [work_modifier] => 1 [options] => Array ( [0] => 180 мм [1] => 220 мм [2] => 260 мм [3] => 320 мм ) [days] => [7,8,9,10] [material_price] => [75190,9532,10868,13116] [work_price] => [3845,4691,5535,6863] [image] => https://akademik-stroy.ru/wp-content/uploads/materials/ocilindrovannoe-brevno-1.jpg [area_modifier] => 155.76 [parent_name] => Стены 1 этаж (несущие) [parent_id] => 3 [material_sum] => 14756609 [work_sum] => 628842 [total_sum] => 15385451 [total_days] => 7 [display_material_sum] => 14 756 609 [display_work_sum] => 628 842 [display_total_sum] => 15 385 451 ) 1
15 385 451
Работа:628 842
Материалы:14 756 609
Дни:7
stdClass Object ( [id] => 88 [attribute_id] => 3 [name] => Срубы [material_modifier] => 1 [work_modifier] => 1 [options] => Array ( [0] => 260 мм [1] => 320 мм [2] => 360 мм [3] => 400 мм [4] => 500 мм ) [days] => [7,8,9,10,11] [material_price] => [37975,46709,52314,58069,73167] [work_price] => [4806,5911,6621,7349,9260] [image] => https://akademik-stroy.ru/wp-content/uploads/materials/sruby.jpg [area_modifier] => 155.76 [parent_name] => Стены 1 этаж (несущие) [parent_id] => 3 [material_sum] => 7452882 [work_sum] => 786012 [total_sum] => 8238894 [total_days] => 7 [display_material_sum] => 7 452 882 [display_work_sum] => 786 012 [display_total_sum] => 8 238 894 ) 1
8 238 894
Работа:786 012
Материалы:7 452 882
Дни:7
stdClass Object ( [id] => 174 [attribute_id] => 3 [name] => Брус [material_modifier] => 1 [work_modifier] => 1 [options] => Array ( [0] => 150 мм [1] => 180 мм [2] => 200 мм ) [days] => [7,8,9] [material_price] => [5127,6152,7367] [work_price] => [1602,1922,2115] [image] => https://akademik-stroy.ru/wp-content/uploads/materials/brus.jpg [area_modifier] => 155.76 [parent_name] => Стены 1 этаж (несущие) [parent_id] => 3 [material_sum] => 1006213 [work_sum] => 262004 [total_sum] => 1268217 [total_days] => 7 [display_material_sum] => 1 006 213 [display_work_sum] => 262 004 [display_total_sum] => 1 268 217 ) 1
1 268 217
Работа:262 004
Материалы:1 006 213
Дни:7
stdClass Object ( [id] => 175 [attribute_id] => 3 [name] => Газобетон [material_modifier] => 1 [work_modifier] => 1 [options] => Array ( [0] => 300 мм [1] => 375 мм [2] => 400 мм [3] => 500 мм [4] => 600 мм ) [days] => [29,31,35,37,44] [material_price] => [4298,5573,6356,7288,9119] [work_price] => [4538,5251,5926,6733,7195] [image] => https://akademik-stroy.ru/wp-content/uploads/materials/gazobeton.jpg [area_modifier] => 155.76 [parent_name] => Стены 1 этаж (несущие) [parent_id] => 3 [material_sum] => 843515 [work_sum] => 742181 [total_sum] => 1585696 [total_days] => 29 [display_material_sum] => 843 515 [display_work_sum] => 742 181 [display_total_sum] => 1 585 696 ) 1
1 585 696
Работа:742 181
Материалы:843 515
Дни:29
stdClass Object ( [id] => 176 [attribute_id] => 3 [name] => Блок [material_modifier] => 1 [work_modifier] => 1 [options] => Array ( [0] => 300 мм [1] => 375 мм [2] => 400 мм [3] => 500 мм [4] => 600 мм ) [days] => [29,31,35,37,44] [material_price] => [2698,3973,4356,6588,7119] [work_price] => [5038,5851,6426,8733,9195] [image] => https://akademik-stroy.ru/wp-content/uploads/materials/blok.jpg [area_modifier] => 155.76 [parent_name] => Стены 1 этаж (несущие) [parent_id] => 3 [material_sum] => 529503 [work_sum] => 823955 [total_sum] => 1353458 [total_days] => 29 [display_material_sum] => 529 503 [display_work_sum] => 823 955 [display_total_sum] => 1 353 458 ) 1
1 353 458
Работа:823 955
Материалы:529 503
Дни:29
stdClass Object ( [id] => 177 [attribute_id] => 3 [name] => Газосиликатный блок [material_modifier] => 1 [work_modifier] => 1 [options] => Array ( [0] => 300 мм [1] => 375 мм [2] => 400 мм [3] => 500 мм [4] => 600 мм ) [days] => [29,31,35,37,44] [material_price] => [4298,5573,6356,7288,9119] [work_price] => [4538,5251,5926,6733,7195] [image] => https://akademik-stroy.ru/wp-content/uploads/materials/gazosilikatnyj-blok.jpg [area_modifier] => 155.76 [parent_name] => Стены 1 этаж (несущие) [parent_id] => 3 [material_sum] => 843515 [work_sum] => 742181 [total_sum] => 1585696 [total_days] => 29 [display_material_sum] => 843 515 [display_work_sum] => 742 181 [display_total_sum] => 1 585 696 ) 1
1 585 696
Работа:742 181
Материалы:843 515
Дни:29
stdClass Object ( [id] => 178 [attribute_id] => 3 [name] => Керамзитобетонный блок [material_modifier] => 1 [work_modifier] => 1 [options] => Array ( [0] => 300 мм [1] => 375 мм [2] => 400 мм [3] => 500 мм [4] => 600 мм ) [days] => [23,23,24,25,28] [material_price] => [3641,4298,5693,7613,9612] [work_price] => [5737,5737,6903,7958,8901] [image] => https://akademik-stroy.ru/wp-content/uploads/materials/keramzitobetonnyj-blok.jpg [area_modifier] => 155.76 [parent_name] => Стены 1 этаж (несущие) [parent_id] => 3 [material_sum] => 714574 [work_sum] => 938275 [total_sum] => 1652849 [total_days] => 23 [display_material_sum] => 714 574 [display_work_sum] => 938 275 [display_total_sum] => 1 652 849 ) 1
1 652 849
Работа:938 275
Материалы:714 574
Дни:23
stdClass Object ( [id] => 179 [attribute_id] => 3 [name] => Деревянные [material_modifier] => 1 [work_modifier] => 1 [options] => Array ( [0] => 180 мм [1] => 220 мм [2] => 260 мм [3] => 320 мм ) [days] => [7,8,9,10] [material_price] => [7950,9458,11961,14472] [work_price] => [4037,4925,5812,7207] [image] => https://akademik-stroy.ru/wp-content/uploads/materials/derevyannye.jpg [area_modifier] => 155.76 [parent_name] => Стены 1 этаж (несущие) [parent_id] => 3 [material_sum] => 1560248 [work_sum] => 660243 [total_sum] => 2220491 [total_days] => 7 [display_material_sum] => 1 560 248 [display_work_sum] => 660 243 [display_total_sum] => 2 220 491 ) 1
2 220 491
Работа:660 243
Материалы:1 560 248
Дни:7
stdClass Object ( [id] => 181 [attribute_id] => 3 [name] => Камень [material_modifier] => 1 [work_modifier] => 1 [options] => Array ( [0] => 300 мм [1] => 400 мм [2] => 500 мм [3] => 600 мм ) [days] => [25,27,31,34] [material_price] => [5262,6844,8330,9815] [work_price] => [8331,9135,10427,11069] [image] => https://akademik-stroy.ru/wp-content/uploads/materials/kamen.jpg [area_modifier] => 155.76 [parent_name] => Стены 1 этаж (несущие) [parent_id] => 3 [material_sum] => 1032707 [work_sum] => 1362518 [total_sum] => 2395225 [total_days] => 25 [display_material_sum] => 1 032 707 [display_work_sum] => 1 362 518 [display_total_sum] => 2 395 225 ) 1
2 395 225
Работа:1 362 518
Материалы:1 032 707
Дни:25
stdClass Object ( [id] => 182 [attribute_id] => 3 [name] => Каркасно-щитовые [material_modifier] => 1 [work_modifier] => 1 [options] => Array ( [0] => 150 мм [1] => 200 мм [2] => 250 мм [3] => 300 мм [4] => 350 мм [5] => 400 мм ) [days] => [15,16,17,18,19,20] [material_price] => [2379,2639,2898,3458,3601,4175] [work_price] => [2538,2820,3134,3483,4062,5642] [image] => https://akademik-stroy.ru/wp-content/uploads/materials/karkasno-shchitovye.jpg [area_modifier] => 155.76 [parent_name] => Стены 1 этаж (несущие) [parent_id] => 3 [material_sum] => 466897 [work_sum] => 415085 [total_sum] => 881982 [total_days] => 15 [display_material_sum] => 466 897 [display_work_sum] => 415 085 [display_total_sum] => 881 982 ) 1
881 982
Работа:415 085
Материалы:466 897
Дни:15
stdClass Object ( [id] => 183 [attribute_id] => 3 [name] => Рубленные [material_modifier] => 1 [work_modifier] => 1 [options] => Array ( [0] => 150 мм [1] => 200 мм [2] => 250 мм [3] => 300 мм [4] => 350 мм [5] => 400 мм ) [days] => [15,16,17,18,17,18] [material_price] => [35950,50267,60583,75900,80217,100533] [work_price] => [9612,12816,16020,19224,22428,25632] [image] => https://akademik-stroy.ru/wp-content/uploads/materials/rublennye.jpg [area_modifier] => 155.76 [parent_name] => Стены 1 этаж (несущие) [parent_id] => 3 [material_sum] => 7055461 [work_sum] => 1572023 [total_sum] => 8627484 [total_days] => 15 [display_material_sum] => 7 055 461 [display_work_sum] => 1 572 023 [display_total_sum] => 8 627 484 ) 1
8 627 484
Работа:1 572 023
Материалы:7 055 461
Дни:15
stdClass Object ( [id] => 185 [attribute_id] => 3 [name] => Теплоблок [material_modifier] => 1 [work_modifier] => 1 [options] => Array ( [0] => 300 мм (с облицовкой, не покрашенный) [1] => 400 мм (с облицовкой, не покрашенный) [2] => 300 мм (с облицовкой, покрашенный) [3] => 400 мм (с облицовкой, покрашенный) ) [days] => [15,16,15,16] [material_price] => [2888,3729,3957,4258] [work_price] => [2564,3229,2949,3713] [image] => https://akademik-stroy.ru/wp-content/uploads/materials/teploblok.jpg [area_modifier] => 155.76 [parent_name] => Стены 1 этаж (несущие) [parent_id] => 3 [material_sum] => 566792 [work_sum] => 419337 [total_sum] => 986129 [total_days] => 15 [display_material_sum] => 566 792 [display_work_sum] => 419 337 [display_total_sum] => 986 129 ) 1
986 129
Работа:419 337
Материалы:566 792
Дни:15
stdClass Object ( [id] => 186 [attribute_id] => 3 [name] => Арболитовые блоки [material_modifier] => 1 [work_modifier] => 1 [options] => Array ( [0] => 300 мм [1] => 400 мм [2] => 600 мм ) [days] => [19,22,27] [material_price] => [3210,4475,5852] [work_price] => [4214,4788,5866] [image] => https://akademik-stroy.ru/wp-content/uploads/materials/arbolitovye-bloki.png [area_modifier] => 155.76 [parent_name] => Стены 1 этаж (несущие) [parent_id] => 3 [material_sum] => 629987 [work_sum] => 689191 [total_sum] => 1319178 [total_days] => 19 [display_material_sum] => 629 987 [display_work_sum] => 689 191 [display_total_sum] => 1 319 178 ) 1
1 319 178
Работа:689 191
Материалы:629 987
Дни:19
stdClass Object ( [id] => 187 [attribute_id] => 3 [name] => Полистиролбетон [material_modifier] => 1 [work_modifier] => 1 [options] => Array ( [0] => 300 мм [1] => 400 мм [2] => 600 мм ) [days] => [29,31,35] [material_price] => [2798,4573,5256] [work_price] => [5038,5851,6426] [image] => https://akademik-stroy.ru/wp-content/uploads/materials/polistirolbeton.jpg [area_modifier] => 155.76 [parent_name] => Стены 1 этаж (несущие) [parent_id] => 3 [material_sum] => 549129 [work_sum] => 823955 [total_sum] => 1373084 [total_days] => 29 [display_material_sum] => 549 129 [display_work_sum] => 823 955 [display_total_sum] => 1 373 084 ) 1
1 373 084
Работа:823 955
Материалы:549 129
Дни:29
stdClass Object ( [id] => 188 [attribute_id] => 3 [name] => Шлакоблок [material_modifier] => 1 [work_modifier] => 1 [options] => Array ( [0] => 400 мм [1] => 600 мм ) [days] => [15,16] [material_price] => [2391,3471] [work_price] => [2642,3662] [image] => https://akademik-stroy.ru/wp-content/uploads/materials/shlakoblok.jpg [area_modifier] => 155.76 [parent_name] => Стены 1 этаж (несущие) [parent_id] => 3 [material_sum] => 469252 [work_sum] => 432094 [total_sum] => 901346 [total_days] => 15 [display_material_sum] => 469 252 [display_work_sum] => 432 094 [display_total_sum] => 901 346 ) 1
901 346
Работа:432 094
Материалы:469 252
Дни:15
stdClass Object ( [id] => 189 [attribute_id] => 3 [name] => Теплая керамика [material_modifier] => 1 [work_modifier] => 1 [options] => Array ( [0] => 380 мм [1] => 380 мм Thermo [2] => 440 мм [3] => 510 мм ) [days] => [23,23,24,25] [material_price] => [4510,5098,6093,8013] [work_price] => [4737,4937,5903,6958] [image] => https://akademik-stroy.ru/wp-content/uploads/materials/teplaya-keramika.jpg [area_modifier] => 155.76 [parent_name] => Стены 1 этаж (несущие) [parent_id] => 3 [material_sum] => 885122 [work_sum] => 774727 [total_sum] => 1659849 [total_days] => 23 [display_material_sum] => 885 122 [display_work_sum] => 774 727 [display_total_sum] => 1 659 849 ) 1
1 659 849
Работа:774 727
Материалы:885 122
Дни:23
stdClass Object ( [id] => 190 [attribute_id] => 3 [name] => Несъемная опалубка [material_modifier] => 1 [work_modifier] => 1 [options] => Array ( [0] => 200 мм [1] => 250 мм [2] => 300 мм [3] => 350 мм ) [days] => [15,17,19,21] [material_price] => [3302,3902,4108,5008] [work_price] => [2100,2100,2300,2534] [image] => https://akademik-stroy.ru/wp-content/uploads/materials/nesemnaya-opalubka.jpg [area_modifier] => 155.76 [parent_name] => Стены 1 этаж (несущие) [parent_id] => 3 [material_sum] => 648043 [work_sum] => 343451 [total_sum] => 991494 [total_days] => 15 [display_material_sum] => 648 043 [display_work_sum] => 343 451 [display_total_sum] => 991 494 ) 1
991 494
Работа:343 451
Материалы:648 043
Дни:15
stdClass Object ( [id] => 251 [attribute_id] => 3 [name] => Бревно [material_modifier] => 1 [work_modifier] => 1 [options] => Array ( [0] => 260 мм [1] => 320 мм [2] => 360 мм [3] => 400 мм [4] => 500 мм ) [days] => [7,8,9,10,11] [material_price] => [1874,24045,26930,30972,38825] [work_price] => [5046,6207,6952,7716,9723] [image] => https://akademik-stroy.ru/wp-content/uploads/materials/sruby.jpg [area_modifier] => 155.76 [parent_name] => Стены 1 этаж (несущие) [parent_id] => 3 [material_sum] => 367787 [work_sum] => 825263 [total_sum] => 1193050 [total_days] => 7 [display_material_sum] => 367 787 [display_work_sum] => 825 263 [display_total_sum] => 1 193 050 ) 1
1 193 050
Работа:825 263
Материалы:367 787
Дни:7
Перекрытие первого этажа
stdClass Object ( [id] => 7 [attribute_id] => 4 [name] => Деревянные балки [material_modifier] => 1 [work_modifier] => 1 [options] => Array ( [0] => без утепления [1] => утепление 200 мм [2] => утепление 250 мм [3] => утепление 300 мм [4] => утепление 350 мм [5] => утепление 400 мм [6] => утепление 450 мм [7] => утепление 500 мм ) [days] => [8,9,9,9,11,12,13,14] [material_price] => [1634,2042,2344,2947,3149,3652,3354,3557] [work_price] => [1230,1339,1393,1426,1460,1513,1587,1620] [image] => https://akademik-stroy.ru/wp-content/uploads/materials/derevyannye-balki.png [area_modifier] => 155.76 [parent_name] => Перекрытие первого этажа [parent_id] => 4 [material_sum] => 320685 [work_sum] => 201164 [total_sum] => 521849 [total_days] => 8 [display_material_sum] => 320 685 [display_work_sum] => 201 164 [display_total_sum] => 521 849 ) 1
521 849
Работа:201 164
Материалы:320 685
Дни:8
stdClass Object ( [id] => 8 [attribute_id] => 4 [name] => Сборные ж/б плиты [material_modifier] => 1 [work_modifier] => 1 [options] => Array ( [0] => без утепления [1] => утепление 150 мм [2] => утепление 200 мм [3] => утепление 250 мм [4] => утепление 300 мм [5] => утепление 350 мм [6] => утепление 400 мм [7] => утепление 450 мм [8] => утепление 500 мм ) [days] => [13,15,15,15,15,15,15,15,15] [material_price] => [3067,5577,5928,6679,7730,8782,9833,10884,11935] [work_price] => [1520,1956,2102,2247,2392,2537,2684,2829,2974] [image] => https://akademik-stroy.ru/wp-content/uploads/materials/sbornye-zh-b-plity-2.jpg [area_modifier] => 155.76 [parent_name] => Перекрытие первого этажа [parent_id] => 4 [material_sum] => 601922 [work_sum] => 248593 [total_sum] => 850515 [total_days] => 13 [display_material_sum] => 601 922 [display_work_sum] => 248 593 [display_total_sum] => 850 515 ) 1
850 515
Работа:248 593
Материалы:601 922
Дни:13
stdClass Object ( [id] => 89 [attribute_id] => 4 [name] => Монолитная ж/б плита [material_modifier] => 1 [work_modifier] => 1 [options] => Array ( [0] => без утепления [1] => утепление 150 мм [2] => утепление 200 мм [3] => утепление 250 мм [4] => утепление 300 мм [5] => утепление 350 мм [6] => утепление 400 мм [7] => утепление 450 мм [8] => утепление 500 мм ) [days] => [18,20,20,20,20,20,20,20,20] [material_price] => [4837,6572,7224,7375,79426,8177,8728,9180,10031] [work_price] => [3348,3921,4112,4302,4493,4684,4875,5066,5256] [image] => https://akademik-stroy.ru/wp-content/uploads/materials/monolitnaya-zh-b-plita-2.jpg [area_modifier] => 155.76 [parent_name] => Перекрытие первого этажа [parent_id] => 4 [material_sum] => 949298 [work_sum] => 547559 [total_sum] => 1496857 [total_days] => 18 [display_material_sum] => 949 298 [display_work_sum] => 547 559 [display_total_sum] => 1 496 857 ) 1
1 496 857
Работа:547 559
Материалы:949 298
Дни:18
Стены 2 этаж (несущие)
stdClass Object ( [id] => 10 [attribute_id] => 5 [name] => Пеноблок [material_modifier] => 1 [work_modifier] => 1 [options] => Array ( [0] => 300 мм [1] => 400 мм [2] => 500 мм [3] => 600 мм ) [days] => [29,31,34,39] [material_price] => [3000,4000,4500,4937] [work_price] => [5033,5805,6400,8710] [image] => https://akademik-stroy.ru/wp-content/uploads/materials/penoblok.jpg [area_modifier] => 99.94 [parent_name] => Стены 2 этаж (несущие) [parent_id] => 5 [material_sum] => 377773 [work_sum] => 528148 [total_sum] => 905921 [total_days] => 29 [display_material_sum] => 377 773 [display_work_sum] => 528 148 [display_total_sum] => 905 921 ) 1
905 921
Работа:528 148
Материалы:377 773
Дни:29
stdClass Object ( [id] => 90 [attribute_id] => 5 [name] => Керамический блок [material_modifier] => 1 [work_modifier] => 1 [options] => Array ( [0] => 380 мм [1] => 380 мм Thermo [2] => 440 мм [3] => 510 мм ) [days] => [23,23,24,25] [material_price] => [4510,5098,6093,8013] [work_price] => [4737,4937,5903,6958] [image] => https://akademik-stroy.ru/wp-content/uploads/materials/keramicheskij-blok.jpg [area_modifier] => 99.94 [parent_name] => Стены 2 этаж (несущие) [parent_id] => 5 [material_sum] => 567919 [work_sum] => 497087 [total_sum] => 1065006 [total_days] => 23 [display_material_sum] => 567 919 [display_work_sum] => 497 087 [display_total_sum] => 1 065 006 ) 1
1 065 006
Работа:497 087
Материалы:567 919
Дни:23
stdClass Object ( [id] => 91 [attribute_id] => 5 [name] => Кирпич [material_modifier] => 1 [work_modifier] => 1 [options] => Array ( [0] => Кирпич 250 мм [1] => Кирпич 380 мм [2] => Кирпич 510 мм [3] => Кирпич 640 мм [4] => Кирпич 770 мм ) [days] => [30,30,31,33,36] [material_price] => [5500,7142,9206,10171,12235] [work_price] => [8736,10041,12018,15240,18462] [image] => https://akademik-stroy.ru/wp-content/uploads/materials/kirpich.jpg [area_modifier] => 99.94 [parent_name] => Стены 2 этаж (несущие) [parent_id] => 5 [material_sum] => 692584 [work_sum] => 916730 [total_sum] => 1609314 [total_days] => 30 [display_material_sum] => 692 584 [display_work_sum] => 916 730 [display_total_sum] => 1 609 314 ) 1
1 609 314
Работа:916 730
Материалы:692 584
Дни:30
stdClass Object ( [id] => 92 [attribute_id] => 5 [name] => Монолитные [material_modifier] => 1 [work_modifier] => 1 [options] => Array ( [0] => 150 мм [1] => 200 мм [2] => 250 мм [3] => 300 мм [4] => 350 мм [5] => 400 мм ) [days] => [45,46,47,49,50,53] [material_price] => [6545,7876,10175,12011,13908,15204] [work_price] => [5106,6444,7698,8552,9807,11461] [image] => https://akademik-stroy.ru/wp-content/uploads/materials/monolitnye.jpg [area_modifier] => 99.94 [parent_name] => Стены 2 этаж (несущие) [parent_id] => 5 [material_sum] => 824175 [work_sum] => 535808 [total_sum] => 1359983 [total_days] => 45 [display_material_sum] => 824 175 [display_work_sum] => 535 808 [display_total_sum] => 1 359 983 ) 1
1 359 983
Работа:535 808
Материалы:824 175
Дни:45
stdClass Object ( [id] => 93 [attribute_id] => 5 [name] => Клееный брус [material_modifier] => 1 [work_modifier] => 1 [options] => Array ( [0] => 160 мм [1] => 175 мм [2] => 200 мм [3] => 215 мм [4] => 240 мм [5] => 270 мм [6] => 282 мм ) [days] => [24,28,32,37,40,42,48] [material_price] => [16975,18773,19950,20545,21599,22159,23275] [work_price] => [4806,5287,5815,6397,7036,7740,8514] [image] => https://akademik-stroy.ru/wp-content/uploads/materials/kleenyj-brus.jpg [area_modifier] => 99.94 [parent_name] => Стены 2 этаж (несущие) [parent_id] => 5 [material_sum] => 2137567 [work_sum] => 504327 [total_sum] => 2641894 [total_days] => 24 [display_material_sum] => 2 137 567 [display_work_sum] => 504 327 [display_total_sum] => 2 641 894 ) 1
2 641 894
Работа:504 327
Материалы:2 137 567
Дни:24
stdClass Object ( [id] => 94 [attribute_id] => 5 [name] => Каркасные [material_modifier] => 1 [work_modifier] => 1 [options] => Array ( [0] => 150 мм [1] => 200 мм [2] => 250 мм [3] => 300 мм ) [days] => [15,16,17,18] [material_price] => [2379,2639,2898,3258] [work_price] => [2418,2686,2985,3716] [image] => https://akademik-stroy.ru/wp-content/uploads/materials/karkasnye.jpg [area_modifier] => 99.94 [parent_name] => Стены 2 этаж (несущие) [parent_id] => 5 [material_sum] => 299574 [work_sum] => 253738 [total_sum] => 553312 [total_days] => 15 [display_material_sum] => 299 574 [display_work_sum] => 253 738 [display_total_sum] => 553 312 ) 1
553 312
Работа:253 738
Материалы:299 574
Дни:15
stdClass Object ( [id] => 95 [attribute_id] => 5 [name] => СИП-панели [material_modifier] => 1 [work_modifier] => 1 [options] => Array ( [0] => 120 мм [1] => 170 мм [2] => 220 мм ) [days] => [7,7,7] [material_price] => [1210,1856,2292] [work_price] => [1410,1551,1706] [image] => https://akademik-stroy.ru/wp-content/uploads/materials/sip-paneli.jpg [area_modifier] => 99.94 [parent_name] => Стены 2 этаж (несущие) [parent_id] => 5 [material_sum] => 152369 [work_sum] => 147961 [total_sum] => 300330 [total_days] => 7 [display_material_sum] => 152 369 [display_work_sum] => 147 961 [display_total_sum] => 300 330 ) 1
300 330
Работа:147 961
Материалы:152 369
Дни:7
stdClass Object ( [id] => 96 [attribute_id] => 5 [name] => Сухой брус [material_modifier] => 1 [work_modifier] => 1 [options] => Array ( [0] => 150 мм [1] => 180 мм [2] => 200 мм ) [days] => [7,8,9] [material_price] => [6010,7190,8709] [work_price] => [3204,3845,4229] [image] => https://akademik-stroy.ru/wp-content/uploads/materials/suhoj-brus.jpg [area_modifier] => 99.94 [parent_name] => Стены 2 этаж (несущие) [parent_id] => 5 [material_sum] => 756806 [work_sum] => 336218 [total_sum] => 1093024 [total_days] => 7 [display_material_sum] => 756 806 [display_work_sum] => 336 218 [display_total_sum] => 1 093 024 ) 1
1 093 024
Работа:336 218
Материалы:756 806
Дни:7
stdClass Object ( [id] => 97 [attribute_id] => 5 [name] => Профилированный брус [material_modifier] => 1 [work_modifier] => 1 [options] => Array ( [0] => 150 мм [1] => 180 мм [2] => 200 мм ) [days] => [7,8,9] [material_price] => [8190,9228,10051] [work_price] => [3845,4614,5075] [image] => https://akademik-stroy.ru/wp-content/uploads/materials/profilirovannyj-brus.jpg [area_modifier] => 99.94 [parent_name] => Стены 2 этаж (несущие) [parent_id] => 5 [material_sum] => 1031321 [work_sum] => 403483 [total_sum] => 1434804 [total_days] => 7 [display_material_sum] => 1 031 321 [display_work_sum] => 403 483 [display_total_sum] => 1 434 804 ) 1
1 434 804
Работа:403 483
Материалы:1 031 321
Дни:7
stdClass Object ( [id] => 98 [attribute_id] => 5 [name] => Оцилиндрованное бревно [material_modifier] => 1 [work_modifier] => 1 [options] => Array ( [0] => 180 мм [1] => 220 мм [2] => 260 мм [3] => 320 мм ) [days] => [7,8,9,10] [material_price] => [75190,9532,10868,13116] [work_price] => [3845,4691,5535,6863] [image] => https://akademik-stroy.ru/wp-content/uploads/materials/ocilindrovannoe-brevno-1.jpg [area_modifier] => 99.94 [parent_name] => Стены 2 этаж (несущие) [parent_id] => 5 [material_sum] => 9468256 [work_sum] => 403483 [total_sum] => 9871739 [total_days] => 7 [display_material_sum] => 9 468 256 [display_work_sum] => 403 483 [display_total_sum] => 9 871 739 ) 1
9 871 739
Работа:403 483
Материалы:9 468 256
Дни:7
stdClass Object ( [id] => 99 [attribute_id] => 5 [name] => Срубы [material_modifier] => 1 [work_modifier] => 1 [options] => Array ( [0] => 260 мм [1] => 320 мм [2] => 360 мм [3] => 400 мм [4] => 500 мм ) [days] => [7,8,9,10,11] [material_price] => [16175,23709,26314,29069,32167] [work_price] => [4806,5911,6621,7349,9260] [image] => https://akademik-stroy.ru/wp-content/uploads/materials/suhoj-brus.jpg [area_modifier] => 99.94 [parent_name] => Стены 2 этаж (несущие) [parent_id] => 5 [material_sum] => 2036827 [work_sum] => 504327 [total_sum] => 2541154 [total_days] => 7 [display_material_sum] => 2 036 827 [display_work_sum] => 504 327 [display_total_sum] => 2 541 154 ) 1
2 541 154
Работа:504 327
Материалы:2 036 827
Дни:7
stdClass Object ( [id] => 194 [attribute_id] => 5 [name] => Брус [material_modifier] => 1 [work_modifier] => 1 [options] => Array ( [0] => 150 мм [1] => 180 мм [2] => 200 мм ) [days] => [10,13,15] [material_price] => [5127,6152,7367] [work_price] => [1602,1922,2115] [image] => https://akademik-stroy.ru/wp-content/uploads/materials/brus.jpg [area_modifier] => 99.94 [parent_name] => Стены 2 этаж (несущие) [parent_id] => 5 [material_sum] => 645614 [work_sum] => 168109 [total_sum] => 813723 [total_days] => 10 [display_material_sum] => 645 614 [display_work_sum] => 168 109 [display_total_sum] => 813 723 ) 1
813 723
Работа:168 109
Материалы:645 614
Дни:10
stdClass Object ( [id] => 195 [attribute_id] => 5 [name] => Газобетон [material_modifier] => 1 [work_modifier] => 1 [options] => Array ( [0] => 300 мм [1] => 375 мм [2] => 400 мм [3] => 500 мм [4] => 600 мм ) [days] => [29,31,35,37,44] [material_price] => [4298,5573,6356,7288,9119] [work_price] => [4538,5251,5926,6733,7195] [image] => https://akademik-stroy.ru/wp-content/uploads/materials/gazobeton.jpg [area_modifier] => 99.94 [parent_name] => Стены 2 этаж (несущие) [parent_id] => 5 [material_sum] => 541223 [work_sum] => 476204 [total_sum] => 1017427 [total_days] => 29 [display_material_sum] => 541 223 [display_work_sum] => 476 204 [display_total_sum] => 1 017 427 ) 1
1 017 427
Работа:476 204
Материалы:541 223
Дни:29
stdClass Object ( [id] => 196 [attribute_id] => 5 [name] => Блок [material_modifier] => 1 [work_modifier] => 1 [options] => Array ( [0] => 300 мм [1] => 375 мм [2] => 400 мм [3] => 500 мм [4] => 600 мм ) [days] => [29,31,35,37,44] [material_price] => [2698,3973,4356,6588,7119] [work_price] => [5038,5851,6426,8733,9195] [image] => https://akademik-stroy.ru/wp-content/uploads/materials/blok.jpg [area_modifier] => 99.94 [parent_name] => Стены 2 этаж (несущие) [parent_id] => 5 [material_sum] => 339744 [work_sum] => 528673 [total_sum] => 868417 [total_days] => 29 [display_material_sum] => 339 744 [display_work_sum] => 528 673 [display_total_sum] => 868 417 ) 1
868 417
Работа:528 673
Материалы:339 744
Дни:29
stdClass Object ( [id] => 197 [attribute_id] => 5 [name] => Газосиликатный блок [material_modifier] => 1 [work_modifier] => 1 [options] => Array ( [0] => 300 мм [1] => 375 мм [2] => 400 мм [3] => 500 мм [4] => 600 мм ) [days] => [29,31,35,37,44] [material_price] => [4298,5573,6356,7288,9119] [work_price] => [4538,5251,5926,6733,7195] [image] => https://akademik-stroy.ru/wp-content/uploads/materials/gazosilikatnyj-blok.jpg [area_modifier] => 99.94 [parent_name] => Стены 2 этаж (несущие) [parent_id] => 5 [material_sum] => 541223 [work_sum] => 476204 [total_sum] => 1017427 [total_days] => 29 [display_material_sum] => 541 223 [display_work_sum] => 476 204 [display_total_sum] => 1 017 427 ) 1
1 017 427
Работа:476 204
Материалы:541 223
Дни:29
stdClass Object ( [id] => 198 [attribute_id] => 5 [name] => Керамзитобетонный блок [material_modifier] => 1 [work_modifier] => 1 [options] => Array ( [0] => 300 мм [1] => 375 мм [2] => 400 мм [3] => 500 мм [4] => 600 мм ) [days] => [23,23,24,25,28] [material_price] => [3641,4298,5693,7613,9612] [work_price] => [5737,5737,6903,7958,8901] [image] => https://akademik-stroy.ru/wp-content/uploads/materials/keramzitobetonnyj-blok.jpg [area_modifier] => 99.94 [parent_name] => Стены 2 этаж (несущие) [parent_id] => 5 [material_sum] => 458491 [work_sum] => 602024 [total_sum] => 1060515 [total_days] => 23 [display_material_sum] => 458 491 [display_work_sum] => 602 024 [display_total_sum] => 1 060 515 ) 1
1 060 515
Работа:602 024
Материалы:458 491
Дни:23
stdClass Object ( [id] => 199 [attribute_id] => 5 [name] => Деревянные [material_modifier] => 1 [work_modifier] => 1 [options] => Array ( [0] => 180 мм [1] => 220 мм [2] => 260 мм [3] => 320 мм ) [days] => [7,8,9,10] [material_price] => [7950,9458,11961,14472] [work_price] => [4037,4925,5812,7207] [image] => https://akademik-stroy.ru/wp-content/uploads/materials/derevyannye.jpg [area_modifier] => 99.94 [parent_name] => Стены 2 этаж (несущие) [parent_id] => 5 [material_sum] => 1001099 [work_sum] => 423631 [total_sum] => 1424730 [total_days] => 7 [display_material_sum] => 1 001 099 [display_work_sum] => 423 631 [display_total_sum] => 1 424 730 ) 1
1 424 730
Работа:423 631
Материалы:1 001 099
Дни:7
stdClass Object ( [id] => 200 [attribute_id] => 5 [name] => Камень [material_modifier] => 1 [work_modifier] => 1 [options] => Array ( [0] => 300 мм [1] => 400 мм [2] => 500 мм [3] => 600 мм ) [days] => [25,27,31,34] [material_price] => [5262,6844,8330,9815] [work_price] => [8331,9135,10427,11069] [image] => https://akademik-stroy.ru/wp-content/uploads/materials/kamen.jpg [area_modifier] => 99.94 [parent_name] => Стены 2 этаж (несущие) [parent_id] => 5 [material_sum] => 662614 [work_sum] => 874230 [total_sum] => 1536844 [total_days] => 25 [display_material_sum] => 662 614 [display_work_sum] => 874 230 [display_total_sum] => 1 536 844 ) 1
1 536 844
Работа:874 230
Материалы:662 614
Дни:25
stdClass Object ( [id] => 201 [attribute_id] => 5 [name] => Каркасно-щитовые [material_modifier] => 1 [work_modifier] => 1 [options] => Array ( [0] => 150 мм [1] => 200 мм [2] => 250 мм [3] => 300 мм [4] => 350 мм [5] => 400 мм ) [days] => [15,16,17,18,19,20] [material_price] => [2379,2639,2898,3458,3601,4175] [work_price] => [2538,2820,3134,3483,4062,5642] [image] => https://akademik-stroy.ru/wp-content/uploads/materials/karkasno-shchitovye.jpg [area_modifier] => 99.94 [parent_name] => Стены 2 этаж (несущие) [parent_id] => 5 [material_sum] => 299574 [work_sum] => 266330 [total_sum] => 565904 [total_days] => 15 [display_material_sum] => 299 574 [display_work_sum] => 266 330 [display_total_sum] => 565 904 ) 1
565 904
Работа:266 330
Материалы:299 574
Дни:15
stdClass Object ( [id] => 202 [attribute_id] => 5 [name] => Рубленные [material_modifier] => 1 [work_modifier] => 1 [options] => Array ( [0] => 150 мм [1] => 200 мм [2] => 250 мм [3] => 300 мм [4] => 350 мм [5] => 400 мм ) [days] => [15,16,17,18,17,18] [material_price] => [35950,50267,60583,75900,80217,100533] [work_price] => [9612,12816,16020,19224,22428,25632] [image] => https://akademik-stroy.ru/wp-content/uploads/materials/rublennye.jpg [area_modifier] => 99.94 [parent_name] => Стены 2 этаж (несущие) [parent_id] => 5 [material_sum] => 4526982 [work_sum] => 1008654 [total_sum] => 5535636 [total_days] => 15 [display_material_sum] => 4 526 982 [display_work_sum] => 1 008 654 [display_total_sum] => 5 535 636 ) 1
5 535 636
Работа:1 008 654
Материалы:4 526 982
Дни:15
stdClass Object ( [id] => 203 [attribute_id] => 5 [name] => Теплоблок [material_modifier] => 1 [work_modifier] => 1 [options] => Array ( [0] => 300 мм (с облицовкой, не покрашенный) [1] => 400 мм (с облицовкой, не покрашенный) [2] => 300 мм (с облицовкой, покрашенный) [3] => 400 мм (с облицовкой, покрашенный) ) [days] => [15,16,15,16] [material_price] => [2888,3729,3957,4258] [work_price] => [2564,3229,2949,3713] [image] => https://akademik-stroy.ru/wp-content/uploads/materials/teploblok.jpg [area_modifier] => 99.94 [parent_name] => Стены 2 этаж (несущие) [parent_id] => 5 [material_sum] => 363670 [work_sum] => 269058 [total_sum] => 632728 [total_days] => 15 [display_material_sum] => 363 670 [display_work_sum] => 269 058 [display_total_sum] => 632 728 ) 1
632 728
Работа:269 058
Материалы:363 670
Дни:15
stdClass Object ( [id] => 204 [attribute_id] => 5 [name] => Арболитовые блоки [material_modifier] => 1 [work_modifier] => 1 [options] => Array ( [0] => 300 мм [1] => 400 мм [2] => 600 мм ) [days] => [19,22,27] [material_price] => [3210,4475,5852] [work_price] => [4214,4788,5866] [image] => https://akademik-stroy.ru/wp-content/uploads/materials/arbolitovye-bloki.png [area_modifier] => 99.94 [parent_name] => Стены 2 этаж (несущие) [parent_id] => 5 [material_sum] => 404217 [work_sum] => 442205 [total_sum] => 846422 [total_days] => 19 [display_material_sum] => 404 217 [display_work_sum] => 442 205 [display_total_sum] => 846 422 ) 1
846 422
Работа:442 205
Материалы:404 217
Дни:19
stdClass Object ( [id] => 205 [attribute_id] => 5 [name] => Полистиролбетон [material_modifier] => 1 [work_modifier] => 1 [options] => Array ( [0] => 300 мм [1] => 400 мм [2] => 600 мм ) [days] => [29,31,35] [material_price] => [2798,4573,5256] [work_price] => [5038,5851,6426] [image] => https://akademik-stroy.ru/wp-content/uploads/materials/polistirolbeton.jpg [area_modifier] => 99.94 [parent_name] => Стены 2 этаж (несущие) [parent_id] => 5 [material_sum] => 352336 [work_sum] => 528673 [total_sum] => 881009 [total_days] => 29 [display_material_sum] => 352 336 [display_work_sum] => 528 673 [display_total_sum] => 881 009 ) 1
881 009
Работа:528 673
Материалы:352 336
Дни:29
stdClass Object ( [id] => 206 [attribute_id] => 5 [name] => Шлакоблок [material_modifier] => 1 [work_modifier] => 1 [options] => Array ( [0] => 400 мм [1] => 600 мм ) [days] => [15,16] [material_price] => [2391,3471] [work_price] => [2642,3662] [image] => https://akademik-stroy.ru/wp-content/uploads/materials/shlakoblok.jpg [area_modifier] => 99.94 [parent_name] => Стены 2 этаж (несущие) [parent_id] => 5 [material_sum] => 301085 [work_sum] => 277244 [total_sum] => 578329 [total_days] => 15 [display_material_sum] => 301 085 [display_work_sum] => 277 244 [display_total_sum] => 578 329 ) 1
578 329
Работа:277 244
Материалы:301 085
Дни:15
stdClass Object ( [id] => 245 [attribute_id] => 5 [name] => Теплая керамика [material_modifier] => 1 [work_modifier] => 1 [options] => Array ( [0] => 380 мм [1] => 380 мм Thermo [2] => 440 мм [3] => 510 мм ) [days] => [10,10,11,12] [material_price] => [4510,5098,6093,8013] [work_price] => [4737,4937,5903,6958] [image] => https://akademik-stroy.ru/wp-content/uploads/materials/teplaya-keramika.jpg [area_modifier] => 99.94 [parent_name] => Стены 2 этаж (несущие) [parent_id] => 5 [material_sum] => 567919 [work_sum] => 497087 [total_sum] => 1065006 [total_days] => 10 [display_material_sum] => 567 919 [display_work_sum] => 497 087 [display_total_sum] => 1 065 006 ) 1
1 065 006
Работа:497 087
Материалы:567 919
Дни:10
stdClass Object ( [id] => 246 [attribute_id] => 5 [name] => Несъемная опалубка [material_modifier] => 1 [work_modifier] => 1 [options] => Array ( [0] => 380 мм [1] => 380 мм Thermo [2] => 440 мм [3] => 510 мм ) [days] => [10,10,11,12] [material_price] => [3302,3902,4108,5008] [work_price] => [2100,2100,2300,2534] [image] => https://akademik-stroy.ru/wp-content/uploads/materials/nesemnaya-opalubka.jpg [area_modifier] => 99.94 [parent_name] => Стены 2 этаж (несущие) [parent_id] => 5 [material_sum] => 415802 [work_sum] => 220368 [total_sum] => 636170 [total_days] => 10 [display_material_sum] => 415 802 [display_work_sum] => 220 368 [display_total_sum] => 636 170 ) 1
636 170
Работа:220 368
Материалы:415 802
Дни:10
stdClass Object ( [id] => 254 [attribute_id] => 5 [name] => Бревно [material_modifier] => 1 [work_modifier] => 1 [options] => Array ( [0] => 260 мм [1] => 320 мм [2] => 360 мм [3] => 400 мм [4] => 500 мм ) [days] => [7,8,9,10,11] [material_price] => [1874,24045,26930,30972,38825] [work_price] => [5046,6207,6952,7716,9723] [image] => https://akademik-stroy.ru/wp-content/uploads/materials/sruby.jpg [area_modifier] => 99.94 [parent_name] => Стены 2 этаж (несущие) [parent_id] => 5 [material_sum] => 235982 [work_sum] => 529512 [total_sum] => 765494 [total_days] => 7 [display_material_sum] => 235 982 [display_work_sum] => 529 512 [display_total_sum] => 765 494 ) 1
765 494
Работа:529 512
Материалы:235 982
Дни:7
Крыша (Скатная)
stdClass Object ( [id] => 164 [attribute_id] => 37 [name] => Металлочерепица [material_modifier] => 1 [work_modifier] => 1 [options] => Array ( ) [days] => [20] [material_price] => [6112] [work_price] => [5726] [image] => https://akademik-stroy.ru/wp-content/uploads/materials/metallocherepica.jpg [area_modifier] => 155.76 [parent_name] => Крыша (Скатная) [parent_id] => 37 [material_sum] => 1199526 [work_sum] => 936476 [total_sum] => 2136002 [total_days] => 20 [display_material_sum] => 1 199 526 [display_work_sum] => 936 476 [display_total_sum] => 2 136 002 ) 1
2 136 002
Работа:936 476
Материалы:1 199 526
Дни:20
stdClass Object ( [id] => 165 [attribute_id] => 37 [name] => Гибкая черепица [material_modifier] => 1 [work_modifier] => 1 [options] => Array ( ) [days] => [20] [material_price] => [6980] [work_price] => [5950] [image] => https://akademik-stroy.ru/wp-content/uploads/materials/gibkaya-cherepica.jpg [area_modifier] => 155.76 [parent_name] => Крыша (Скатная) [parent_id] => 37 [material_sum] => 1369878 [work_sum] => 973111 [total_sum] => 2342989 [total_days] => 20 [display_material_sum] => 1 369 878 [display_work_sum] => 973 111 [display_total_sum] => 2 342 989 ) 1
2 342 989
Работа:973 111
Материалы:1 369 878
Дни:20
stdClass Object ( [id] => 166 [attribute_id] => 37 [name] => Цементно-песчаная черепица [material_modifier] => 1 [work_modifier] => 1 [options] => Array ( ) [days] => [20] [material_price] => [10560] [work_price] => [9456] [image] => https://akademik-stroy.ru/wp-content/uploads/materials/cementno-peschanaya-cherepica.jpg [area_modifier] => 155.76 [parent_name] => Крыша (Скатная) [parent_id] => 37 [material_sum] => 2072480 [work_sum] => 1546510 [total_sum] => 3618990 [total_days] => 20 [display_material_sum] => 2 072 480 [display_work_sum] => 1 546 510 [display_total_sum] => 3 618 990 ) 1
3 618 990
Работа:1 546 510
Материалы:2 072 480
Дни:20
stdClass Object ( [id] => 167 [attribute_id] => 37 [name] => Композитная черепица [material_modifier] => 1 [work_modifier] => 1 [options] => Array ( ) [days] => [20] [material_price] => [9506] [work_price] => [8905] [image] => https://akademik-stroy.ru/wp-content/uploads/materials/kompozitnaya-cherepica.jpg [area_modifier] => 155.76 [parent_name] => Крыша (Скатная) [parent_id] => 37 [material_sum] => 1865625 [work_sum] => 1456395 [total_sum] => 3322020 [total_days] => 20 [display_material_sum] => 1 865 625 [display_work_sum] => 1 456 395 [display_total_sum] => 3 322 020 ) 1
3 322 020
Работа:1 456 395
Материалы:1 865 625
Дни:20
stdClass Object ( [id] => 168 [attribute_id] => 37 [name] => Керамическая черепица [material_modifier] => 1 [work_modifier] => 1 [options] => Array ( ) [days] => [20] [material_price] => [12750] [work_price] => [9456] [image] => https://akademik-stroy.ru/wp-content/uploads/materials/keramicheskaya-cherepica.jpg [area_modifier] => 155.76 [parent_name] => Крыша (Скатная) [parent_id] => 37 [material_sum] => 2502284 [work_sum] => 1546510 [total_sum] => 4048794 [total_days] => 20 [display_material_sum] => 2 502 284 [display_work_sum] => 1 546 510 [display_total_sum] => 4 048 794 ) 1
4 048 794
Работа:1 546 510
Материалы:2 502 284
Дни:20
stdClass Object ( [id] => 169 [attribute_id] => 37 [name] => Металлическая фальцевая [material_modifier] => 1 [work_modifier] => 1 [options] => Array ( ) [days] => [20] [material_price] => [8550] [work_price] => [8190] [image] => https://akademik-stroy.ru/wp-content/uploads/materials/metallicheskaya-falcevaya.jpg [area_modifier] => 155.76 [parent_name] => Крыша (Скатная) [parent_id] => 37 [material_sum] => 1678002 [work_sum] => 1339458 [total_sum] => 3017460 [total_days] => 20 [display_material_sum] => 1 678 002 [display_work_sum] => 1 339 458 [display_total_sum] => 3 017 460 ) 1
3 017 460
Работа:1 339 458
Материалы:1 678 002
Дни:20
stdClass Object ( [id] => 170 [attribute_id] => 37 [name] => Медная фальцевая [material_modifier] => 1 [work_modifier] => 1 [options] => Array ( ) [days] => [20] [material_price] => [20450] [work_price] => [16750] [image] => https://akademik-stroy.ru/wp-content/uploads/materials/mednaya-falcevaya.jpg [area_modifier] => 155.76 [parent_name] => Крыша (Скатная) [parent_id] => 37 [material_sum] => 4013468 [work_sum] => 2739429 [total_sum] => 6752897 [total_days] => 20 [display_material_sum] => 4 013 468 [display_work_sum] => 2 739 429 [display_total_sum] => 6 752 897 ) 1
6 752 897
Работа:2 739 429
Материалы:4 013 468
Дни:20
stdClass Object ( [id] => 171 [attribute_id] => 37 [name] => Зеленая кровля [material_modifier] => 1 [work_modifier] => 1 [options] => Array ( ) [days] => [20] [material_price] => [19850] [work_price] => [16780] [image] => https://akademik-stroy.ru/wp-content/uploads/materials/zelenaya-krovlya.jpg [area_modifier] => 155.76 [parent_name] => Крыша (Скатная) [parent_id] => 37 [material_sum] => 3895713 [work_sum] => 2744335 [total_sum] => 6640048 [total_days] => 20 [display_material_sum] => 3 895 713 [display_work_sum] => 2 744 335 [display_total_sum] => 6 640 048 ) 1
6 640 048
Работа:2 744 335
Материалы:3 895 713
Дни:20
stdClass Object ( [id] => 172 [attribute_id] => 37 [name] => Профлист [material_modifier] => 1 [work_modifier] => 1 [options] => Array ( ) [days] => [20] [material_price] => [3450] [work_price] => [3750] [image] => https://akademik-stroy.ru/wp-content/uploads/materials/proflist.jpg [area_modifier] => 155.76 [parent_name] => Крыша (Скатная) [parent_id] => 37 [material_sum] => 677089 [work_sum] => 613305 [total_sum] => 1290394 [total_days] => 20 [display_material_sum] => 677 089 [display_work_sum] => 613 305 [display_total_sum] => 1 290 394 ) 1
1 290 394
Работа:613 305
Материалы:677 089
Дни:20
Окна
stdClass Object ( [id] => 51 [attribute_id] => 26 [name] => Есть [material_modifier] => 1 [work_modifier] => 1 [options] => Array ( [0] => Профиль 58 мм, 3-камерный, стеклопакет 2-камерный до 32 мм [1] => Профиль 60 мм, 4-камерный, стеклопакет 2-камерный до 32 мм [2] => Профиль 70 мм, 5-камерный, стеклопакет 2-камерный до 40 мм [3] => Профиль 72 мм, 5-камерный, стеклопакет 2-камерный до 40 мм [4] => Алюминиевые окна Alutech профиль 72 мм, стеклопакет 2-камерный ) [days] => [3,3,3,3,3] [material_price] => [1339,2124,2867,3023,29596] [work_price] => [635,647,659,668,2579] [image] => https://akademik-stroy.ru/wp-content/uploads/materials/okna.jpg [area_modifier] => 207.5 [parent_name] => Окна [parent_id] => 26 [material_sum] => 350082 [work_sum] => 138351 [total_sum] => 488433 [total_days] => 3 [display_material_sum] => 350 082 [display_work_sum] => 138 351 [display_total_sum] => 488 433 ) 1
488 433
Работа:138 351
Материалы:350 082
Дни:3
stdClass Object ( [id] => 52 [attribute_id] => 26 [name] => Нет [material_modifier] => 2 [work_modifier] => 1 [options] => [days] => null [material_price] => null [work_price] => null [image] => https://akademik-stroy.ru/wp-content/uploads/materials/okna.jpg [area_modifier] => 207.5 [parent_name] => Окна [parent_id] => 26 [material_sum] => 0 [work_sum] => 0 [total_sum] => 0 [total_days] => 0 [display_material_sum] => 0 [display_work_sum] => 0 [display_total_sum] => 0 ) 1
0
Работа:0
Материалы:0
Дни:0
Двери входные
stdClass Object ( [id] => 53 [attribute_id] => 27 [name] => Есть [material_modifier] => 1 [work_modifier] => 1 [options] => Array ( ) [days] => [1] [material_price] => [10000] [work_price] => [5500] [image] => https://akademik-stroy.ru/wp-content/uploads/materials/dveri.jpg [area_modifier] => 1 [parent_name] => Двери входные [parent_id] => 27 [material_sum] => 12600 [work_sum] => 5775 [total_sum] => 18375 [total_days] => 1 [display_material_sum] => 12 600 [display_work_sum] => 5 775 [display_total_sum] => 18 375 ) 1
18 375
Работа:5 775
Материалы:12 600
Дни:1
stdClass Object ( [id] => 54 [attribute_id] => 27 [name] => Нет [material_modifier] => 1 [work_modifier] => 1 [options] => Array ( ) [days] => [0] [material_price] => [0] [work_price] => [0] [image] => https://akademik-stroy.ru/wp-content/uploads/materials/dveri.jpg [area_modifier] => 1 [parent_name] => Двери входные [parent_id] => 27 [material_sum] => 0 [work_sum] => 0 [total_sum] => 0 [total_days] => 0 [display_material_sum] => 0 [display_work_sum] => 0 [display_total_sum] => 0 ) 1
0
Работа:0
Материалы:0
Дни:0
Утепление кровли (Мансарда)
stdClass Object ( [id] => 25 [attribute_id] => 13 [name] => Нет [material_modifier] => 1 [work_modifier] => 1 [options] => Array ( ) [days] => [0] [material_price] => [0] [work_price] => [0] [image] => https://akademik-stroy.ru/wp-content/uploads/materials/mineralovata-krov.jpg [area_modifier] => 155.76 [parent_name] => Утепление кровли (Мансарда) [parent_id] => 13 [material_sum] => 0 [work_sum] => 0 [total_sum] => 0 [total_days] => 0 [display_material_sum] => 0 [display_work_sum] => 0 [display_total_sum] => 0 ) 1
0
Работа:0
Материалы:0
Дни:0
stdClass Object ( [id] => 26 [attribute_id] => 13 [name] => Минераловатный [material_modifier] => 1 [work_modifier] => 1 [options] => Array ( [0] => 50 мм [1] => 100 мм [2] => 150 мм [3] => 200 мм [4] => 250 мм [5] => 300 мм [6] => 350 мм [7] => 400 мм [8] => 450 мм [9] => 500 мм ) [days] => [5,5,6,6,6,7,7,7,8,8] [material_price] => [1158,1414,1772,2230,3602,4060,4974,5890,6408,7718] [work_price] => [650,846,846,1098,1318,1450,1596,1754,1930,2122] [image] => https://akademik-stroy.ru/wp-content/uploads/materials/mineralovata-krov.jpg [area_modifier] => 155.76 [parent_name] => Утепление кровли (Мансарда) [parent_id] => 13 [material_sum] => 227266 [work_sum] => 106306 [total_sum] => 333572 [total_days] => 5 [display_material_sum] => 227 266 [display_work_sum] => 106 306 [display_total_sum] => 333 572 ) 1
333 572
Работа:106 306
Материалы:227 266
Дни:5
stdClass Object ( [id] => 123 [attribute_id] => 13 [name] => Эковата (целлюлозная вата) [material_modifier] => 1 [work_modifier] => 1 [options] => Array ( [0] => 50 мм [1] => 100 мм [2] => 150 мм [3] => 200 мм [4] => 250 мм [5] => 300 мм [6] => 350 мм [7] => 400 мм [8] => 450 мм [9] => 500 мм ) [days] => [3,3,4,4,4,5,5,5,5,5] [material_price] => [820,1638,2458,3276,5734,6552,8190,9828,11466,13104] [work_price] => [234,304,304,396,474,522,574,632,694,764] [image] => https://akademik-stroy.ru/wp-content/uploads/materials/ehkovata-krov.jpg [area_modifier] => 155.76 [parent_name] => Утепление кровли (Мансарда) [parent_id] => 13 [material_sum] => 160931 [work_sum] => 38270 [total_sum] => 199201 [total_days] => 3 [display_material_sum] => 160 931 [display_work_sum] => 38 270 [display_total_sum] => 199 201 ) 1
199 201
Работа:38 270
Материалы:160 931
Дни:3
stdClass Object ( [id] => 124 [attribute_id] => 13 [name] => Экструдированный пенополистирол [material_modifier] => 1 [work_modifier] => 1 [options] => Array ( [0] => 50 мм [1] => 100 мм [2] => 150 мм [3] => 200 мм [4] => 250 мм [5] => 300 мм [6] => 350 мм [7] => 400 мм [8] => 450 мм [9] => 500 мм ) [days] => [3,3,4,4,4,5,5,5,5,6] [material_price] => [1146,2292,3438,4584,8020,9166,11458,13750,16040,18332] [work_price] => [390,508,508,660,790,870,958,1052,1158,1274] [image] => https://akademik-stroy.ru/wp-content/uploads/materials/epps-krov.jpg [area_modifier] => 155.76 [parent_name] => Утепление кровли (Мансарда) [parent_id] => 13 [material_sum] => 224911 [work_sum] => 63784 [total_sum] => 288695 [total_days] => 3 [display_material_sum] => 224 911 [display_work_sum] => 63 784 [display_total_sum] => 288 695 ) 1
288 695
Работа:63 784
Материалы:224 911
Дни:3
stdClass Object ( [id] => 125 [attribute_id] => 13 [name] => ПСБ (ППС-пенополистирол) [material_modifier] => 1 [work_modifier] => 1 [options] => Array ( [0] => 50 мм [1] => 100 мм [2] => 150 мм [3] => 200 мм [4] => 250 мм [5] => 300 мм [6] => 350 мм [7] => 400 мм [8] => 450 мм [9] => 500 мм ) [days] => [3,3,4,4,4,5,5,5,5,6] [material_price] => [476,954,1430,1906,3336,3814,4766,5720,6674,7626] [work_price] => [390,508,508,660,790,870,958,1052,1158,1274] [image] => https://akademik-stroy.ru/wp-content/uploads/materials/psb-krov.jpg [area_modifier] => 155.76 [parent_name] => Утепление кровли (Мансарда) [parent_id] => 13 [material_sum] => 93419 [work_sum] => 63784 [total_sum] => 157203 [total_days] => 3 [display_material_sum] => 93 419 [display_work_sum] => 63 784 [display_total_sum] => 157 203 ) 1
157 203
Работа:63 784
Материалы:93 419
Дни:3
stdClass Object ( [id] => 126 [attribute_id] => 13 [name] => ППУ (Пенополиуретан) [material_modifier] => 1 [work_modifier] => 1 [options] => Array ( [0] => 50 мм [1] => 100 мм [2] => 150 мм [3] => 200 мм [4] => 250 мм [5] => 300 мм [6] => 350 мм [7] => 400 мм [8] => 450 мм [9] => 500 мм ) [days] => [2,2,3,3,3,3,4,4,4,4] [material_price] => [2080,4160,6240,8320,14560,16640,20800,24960,29120,33280] [work_price] => [234,304,304,396,474,522,574,632,694,764] [image] => https://akademik-stroy.ru/wp-content/uploads/materials/ppu-krov.jpg [area_modifier] => 155.76 [parent_name] => Утепление кровли (Мансарда) [parent_id] => 13 [material_sum] => 408216 [work_sum] => 38270 [total_sum] => 446486 [total_days] => 2 [display_material_sum] => 408 216 [display_work_sum] => 38 270 [display_total_sum] => 446 486 ) 1
446 486
Работа:38 270
Материалы:408 216
Дни:2
stdClass Object ( [id] => 127 [attribute_id] => 13 [name] => PIR-плиты (пенополиизоцианурат) [material_modifier] => 1 [work_modifier] => 1 [options] => Array ( [0] => 50 мм [1] => 100 мм [2] => 150 мм [3] => 200 мм [4] => 250 мм [5] => 300 мм [6] => 350 мм [7] => 400 мм [8] => 450 мм [9] => 500 мм ) [days] => [3,3,4,4,4,5,5,5,5,6] [material_price] => [2646,5290,7936,10580,18516,21162,26452,31742,37032,42324] [work_price] => [390,508,508,660,790,870,958,1052,1158,1274] [image] => https://akademik-stroy.ru/wp-content/uploads/materials/pir-krov.jpg [area_modifier] => 155.76 [parent_name] => Утепление кровли (Мансарда) [parent_id] => 13 [material_sum] => 519298 [work_sum] => 63784 [total_sum] => 583082 [total_days] => 3 [display_material_sum] => 519 298 [display_work_sum] => 63 784 [display_total_sum] => 583 082 ) 1
583 082
Работа:63 784
Материалы:519 298
Дни:3
Мансардные окна
stdClass Object ( [id] => 27 [attribute_id] => 14 [name] => Нет [material_modifier] => 1 [work_modifier] => 1 [options] => Array ( ) [days] => [0] [material_price] => [0] [work_price] => [0] [image] => https://akademik-stroy.ru/wp-content/uploads/materials/mansardnye-okna-2.jpg [area_modifier] => 1 [parent_name] => Мансардные окна [parent_id] => 14 [material_sum] => 0 [work_sum] => 0 [total_sum] => 0 [total_days] => 0 [display_material_sum] => 0 [display_work_sum] => 0 [display_total_sum] => 0 ) 1
0
Работа:0
Материалы:0
Дни:0
stdClass Object ( [id] => 28 [attribute_id] => 14 [name] => Есть [material_modifier] => 1 [work_modifier] => 1 [options] => Array ( [0] => 55x78 [1] => 55x98 ) [days] => [6,7] [material_price] => [47480,68700] [work_price] => [17900,19500] [image] => https://akademik-stroy.ru/wp-content/uploads/materials/mansardnye-okna-2.jpg [area_modifier] => 1 [parent_name] => Мансардные окна [parent_id] => 14 [material_sum] => 59825 [work_sum] => 18795 [total_sum] => 78620 [total_days] => 6 [display_material_sum] => 59 825 [display_work_sum] => 18 795 [display_total_sum] => 78 620 ) 1
78 620
Работа:18 795
Материалы:59 825
Дни:6
Подшивка кровли
stdClass Object ( [id] => 29 [attribute_id] => 15 [name] => Нет [material_modifier] => 1 [work_modifier] => 1 [options] => Array ( ) [days] => [0] [material_price] => [0] [work_price] => [0] [image] => https://akademik-stroy.ru/wp-content/uploads/materials/sofit.jpg [area_modifier] => 155.76 [parent_name] => Подшивка кровли [parent_id] => 15 [material_sum] => 0 [work_sum] => 0 [total_sum] => 0 [total_days] => 0 [display_material_sum] => 0 [display_work_sum] => 0 [display_total_sum] => 0 ) 1
0
Работа:0
Материалы:0
Дни:0
stdClass Object ( [id] => 30 [attribute_id] => 15 [name] => Есть [material_modifier] => 1 [work_modifier] => 1 [options] => Array ( [0] => Софиты (ПВХ) [1] => Cedral [2] => ДПК [3] => Планкен ) [days] => [7,10,9,8] [material_price] => [1803,3213,3025,3150] [work_price] => [1529,2188,2075,1923] [image] => https://akademik-stroy.ru/wp-content/uploads/materials/sofit.jpg [area_modifier] => 155.76 [parent_name] => Подшивка кровли [parent_id] => 15 [material_sum] => 353852 [work_sum] => 250065 [total_sum] => 603917 [total_days] => 7 [display_material_sum] => 353 852 [display_work_sum] => 250 065 [display_total_sum] => 603 917 ) 1
603 917
Работа:250 065
Материалы:353 852
Дни:7
Водосточная система
stdClass Object ( [id] => 31 [attribute_id] => 16 [name] => Нет [material_modifier] => 1 [work_modifier] => 1 [options] => Array ( ) [days] => [0] [material_price] => [0] [work_price] => [0] [image] => https://akademik-stroy.ru/wp-content/uploads/materials/docke-standard-pvh.jpg [area_modifier] => 155.76 [parent_name] => Водосточная система [parent_id] => 16 [material_sum] => 0 [work_sum] => 0 [total_sum] => 0 [total_days] => 0 [display_material_sum] => 0 [display_work_sum] => 0 [display_total_sum] => 0 ) 1
0
Работа:0
Материалы:0
Дни:0
stdClass Object ( [id] => 32 [attribute_id] => 16 [name] => Есть [material_modifier] => 1 [work_modifier] => 1 [options] => Array ( [0] => Döcke Standard (ПВХ) [1] => Металлические Grand Line ) [days] => [7,7] [material_price] => [1842,2703] [work_price] => [1491,1529] [image] => https://akademik-stroy.ru/wp-content/uploads/materials/docke-standard-pvh.jpg [area_modifier] => 155.76 [parent_name] => Водосточная система [parent_id] => 16 [material_sum] => 361506 [work_sum] => 243850 [total_sum] => 605356 [total_days] => 7 [display_material_sum] => 361 506 [display_work_sum] => 243 850 [display_total_sum] => 605 356 ) 1
605 356
Работа:243 850
Материалы:361 506
Дни:7
Дополнительное утепление наружных стен
stdClass Object ( [id] => 33 [attribute_id] => 17 [name] => Нет [material_modifier] => 1 [work_modifier] => 1 [options] => Array ( ) [days] => [0] [material_price] => [0] [work_price] => [0] [image] => https://akademik-stroy.ru/wp-content/uploads/materials/mineralovata.jpg [area_modifier] => 255.7 [parent_name] => Дополнительное утепление наружных стен [parent_id] => 17 [material_sum] => 0 [work_sum] => 0 [total_sum] => 0 [total_days] => 0 [display_material_sum] => 0 [display_work_sum] => 0 [display_total_sum] => 0 ) 1
0
Работа:0
Материалы:0
Дни:0
stdClass Object ( [id] => 34 [attribute_id] => 17 [name] => Минераловатный [material_modifier] => 1 [work_modifier] => 1 [options] => Array ( [0] => 50 мм [1] => 100 мм [2] => 150 мм [3] => 200 мм [4] => 250 мм [5] => 300 мм ) [days] => [7,8,10,12,14,15] [material_price] => [3437,3613,3803,3915,4601,4830] [work_price] => [2325,2423,2523,2749,2859,3025] [image] => https://akademik-stroy.ru/wp-content/uploads/materials/mineralovata.jpg [area_modifier] => 255.7 [parent_name] => Дополнительное утепление наружных стен [parent_id] => 17 [material_sum] => 1107340 [work_sum] => 624228 [total_sum] => 1731568 [total_days] => 7 [display_material_sum] => 1 107 340 [display_work_sum] => 624 228 [display_total_sum] => 1 731 568 ) 1
1 731 568
Работа:624 228
Материалы:1 107 340
Дни:7
stdClass Object ( [id] => 128 [attribute_id] => 17 [name] => Эковата (целлюлозная вата) [material_modifier] => 1 [work_modifier] => 1 [options] => Array ( [0] => 50 мм [1] => 100 мм [2] => 150 мм [3] => 200 мм [4] => 250 мм [5] => 300 мм ) [days] => [3,4,5,6,7,8] [material_price] => [810,1319,1629,1838,2267,2676] [work_price] => [1225,1323,1423,1549,1659,1725] [image] => https://akademik-stroy.ru/wp-content/uploads/materials/ehkovata.jpg [area_modifier] => 255.7 [parent_name] => Дополнительное утепление наружных стен [parent_id] => 17 [material_sum] => 260967 [work_sum] => 328894 [total_sum] => 589861 [total_days] => 3 [display_material_sum] => 260 967 [display_work_sum] => 328 894 [display_total_sum] => 589 861 ) 1
589 861
Работа:328 894
Материалы:260 967
Дни:3
stdClass Object ( [id] => 129 [attribute_id] => 17 [name] => Экструдированный пенополистирол [material_modifier] => 1 [work_modifier] => 1 [options] => Array ( [0] => 50 мм [1] => 100 мм [2] => 150 мм [3] => 200 мм [4] => 250 мм [5] => 300 мм ) [days] => [5,6,7,8,9,10] [material_price] => [4560,4300,5119,6292,7010,8583] [work_price] => [1795,1954,2254,2330,2595,2735] [image] => https://akademik-stroy.ru/wp-content/uploads/materials/epps.jpg [area_modifier] => 255.7 [parent_name] => Дополнительное утепление наружных стен [parent_id] => 17 [material_sum] => 1469150 [work_sum] => 481931 [total_sum] => 1951081 [total_days] => 5 [display_material_sum] => 1 469 150 [display_work_sum] => 481 931 [display_total_sum] => 1 951 081 ) 1
1 951 081
Работа:481 931
Материалы:1 469 150
Дни:5
stdClass Object ( [id] => 130 [attribute_id] => 17 [name] => ПСБ (ППС-пенополистирол) [material_modifier] => 1 [work_modifier] => 1 [options] => Array ( [0] => 50 мм [1] => 100 мм [2] => 150 мм [3] => 200 мм [4] => 250 мм [5] => 300 мм ) [days] => [5,6,7,8,9,10] [material_price] => [4822,5200,5819,6292,7010,7583] [work_price] => [1795,1954,2254,2330,2595,2735] [image] => https://akademik-stroy.ru/wp-content/uploads/materials/psb.jpg [area_modifier] => 255.7 [parent_name] => Дополнительное утепление наружных стен [parent_id] => 17 [material_sum] => 1553562 [work_sum] => 481931 [total_sum] => 2035493 [total_days] => 5 [display_material_sum] => 1 553 562 [display_work_sum] => 481 931 [display_total_sum] => 2 035 493 ) 1
2 035 493
Работа:481 931
Материалы:1 553 562
Дни:5
stdClass Object ( [id] => 131 [attribute_id] => 17 [name] => ППУ (Пенополиуретан) [material_modifier] => 1 [work_modifier] => 1 [options] => Array ( [0] => 50 мм [1] => 100 мм [2] => 150 мм [3] => 200 мм [4] => 250 мм [5] => 300 мм ) [days] => [3,4,5,6,7,8] [material_price] => [2860,3400,4219,4592,5010,5583] [work_price] => [729,900,980,1120,1280,1530] [image] => https://akademik-stroy.ru/wp-content/uploads/materials/ppu.jpg [area_modifier] => 255.7 [parent_name] => Дополнительное утепление наружных стен [parent_id] => 17 [material_sum] => 921441 [work_sum] => 195726 [total_sum] => 1117167 [total_days] => 3 [display_material_sum] => 921 441 [display_work_sum] => 195 726 [display_total_sum] => 1 117 167 ) 1
1 117 167
Работа:195 726
Материалы:921 441
Дни:3
stdClass Object ( [id] => 132 [attribute_id] => 17 [name] => PIR-плиты (пенополиизоцианурат) [material_modifier] => 1 [work_modifier] => 1 [options] => Array ( [0] => 50 мм [1] => 100 мм [2] => 150 мм [3] => 200 мм [4] => 250 мм [5] => 300 мм ) [days] => [5,6,7,8,9,10] [material_price] => [8323,15645,20968,25900,29258,30581] [work_price] => [800,900,970,1150,1280,1330] [image] => https://akademik-stroy.ru/wp-content/uploads/materials/pir.jpg [area_modifier] => 255.7 [parent_name] => Дополнительное утепление наружных стен [parent_id] => 17 [material_sum] => 2681521 [work_sum] => 214788 [total_sum] => 2896309 [total_days] => 5 [display_material_sum] => 2 681 521 [display_work_sum] => 214 788 [display_total_sum] => 2 896 309 ) 1
2 896 309
Работа:214 788
Материалы:2 681 521
Дни:5
Наружная отделка фасада
stdClass Object ( [id] => 37 [attribute_id] => 19 [name] => Нет [material_modifier] => 1 [work_modifier] => 1 [options] => Array ( ) [days] => [0] [material_price] => [0] [work_price] => [0] [image] => https://akademik-stroy.ru/wp-content/uploads/materials/imitaciya-brusa.jpg [area_modifier] => 255.7 [parent_name] => Наружная отделка фасада [parent_id] => 19 [material_sum] => 0 [work_sum] => 0 [total_sum] => 0 [total_days] => 0 [display_material_sum] => 0 [display_work_sum] => 0 [display_total_sum] => 0 ) 1
0
Работа:0
Материалы:0
Дни:0
stdClass Object ( [id] => 38 [attribute_id] => 19 [name] => Имитация бруса [material_modifier] => 1 [work_modifier] => 1 [options] => Array ( [0] => Сосна [1] => Ель [2] => Лиственница ) [days] => [20,20,20] [material_price] => [2994,2762,4954] [work_price] => [1397,1231,1577] [image] => https://akademik-stroy.ru/wp-content/uploads/materials/imitaciya-brusa.jpg [area_modifier] => 255.7 [parent_name] => Наружная отделка фасада [parent_id] => 19 [material_sum] => 964613 [work_sum] => 375074 [total_sum] => 1339687 [total_days] => 20 [display_material_sum] => 964 613 [display_work_sum] => 375 074 [display_total_sum] => 1 339 687 ) 1
1 339 687
Работа:375 074
Материалы:964 613
Дни:20
stdClass Object ( [id] => 136 [attribute_id] => 19 [name] => Планкен [material_modifier] => 1 [work_modifier] => 1 [options] => Array ( [0] => Сосна [1] => Ель [2] => Лиственница ) [days] => [20,20,20] [material_price] => [3194,2862,5154] [work_price] => [1537,1354,1735] [image] => https://akademik-stroy.ru/wp-content/uploads/materials/planken.jpg [area_modifier] => 255.7 [parent_name] => Наружная отделка фасада [parent_id] => 19 [material_sum] => 1029049 [work_sum] => 412661 [total_sum] => 1441710 [total_days] => 20 [display_material_sum] => 1 029 049 [display_work_sum] => 412 661 [display_total_sum] => 1 441 710 ) 1
1 441 710
Работа:412 661
Материалы:1 029 049
Дни:20
stdClass Object ( [id] => 137 [attribute_id] => 19 [name] => Штукатурка [material_modifier] => 1 [work_modifier] => 1 [options] => Array ( [0] => Цементно-песчаная (минеральная) [1] => Мокрый фасад ) [days] => [35,35] [material_price] => [2231,3938] [work_price] => [1202,2422] [image] => https://akademik-stroy.ru/wp-content/uploads/materials/shtukaturka.jpg [area_modifier] => 255.7 [parent_name] => Наружная отделка фасада [parent_id] => 19 [material_sum] => 718788 [work_sum] => 322719 [total_sum] => 1041507 [total_days] => 35 [display_material_sum] => 718 788 [display_work_sum] => 322 719 [display_total_sum] => 1 041 507 ) 1
1 041 507
Работа:322 719
Материалы:718 788
Дни:35
stdClass Object ( [id] => 138 [attribute_id] => 19 [name] => Облицовочный кирпич [material_modifier] => 1 [work_modifier] => 1 [options] => Array ( [0] => Керамический [1] => Клинкерный [2] => Ручной формовки [3] => Гиперпрессованный [4] => Силикатный кирпич ) [days] => [45,45,45,45,45] [material_price] => [8174,9148,1040,1257,5876] [work_price] => [3240,3758,4536,4017,3369] [image] => https://akademik-stroy.ru/wp-content/uploads/materials/oblicovochnyj-kirpich.jpg [area_modifier] => 255.7 [parent_name] => Наружная отделка фасада [parent_id] => 19 [material_sum] => 2633516 [work_sum] => 869891 [total_sum] => 3503407 [total_days] => 45 [display_material_sum] => 2 633 516 [display_work_sum] => 869 891 [display_total_sum] => 3 503 407 ) 1
3 503 407
Работа:869 891
Материалы:2 633 516
Дни:45
stdClass Object ( [id] => 139 [attribute_id] => 19 [name] => Фасадная плитка [material_modifier] => 1 [work_modifier] => 1 [options] => Array ( [0] => Клинкерная [1] => Керамическая [2] => Плитка ручной формовки ) [days] => [40,40,40] [material_price] => [2974,1487,3470] [work_price] => [3007,2592,3629] [image] => https://akademik-stroy.ru/wp-content/uploads/materials/fasadnaya-plitka.jpg [area_modifier] => 255.7 [parent_name] => Наружная отделка фасада [parent_id] => 19 [material_sum] => 958169 [work_sum] => 807334 [total_sum] => 1765503 [total_days] => 40 [display_material_sum] => 958 169 [display_work_sum] => 807 334 [display_total_sum] => 1 765 503 ) 1
1 765 503
Работа:807 334
Материалы:958 169
Дни:40
stdClass Object ( [id] => 140 [attribute_id] => 19 [name] => Сайдинг [material_modifier] => 1 [work_modifier] => 1 [options] => Array ( [0] => Виниловый [1] => Металлический [2] => Фиброцементный ) [days] => [20,20,20] [material_price] => [1263,1944,4147] [work_price] => [1263,1944,2074] [image] => https://akademik-stroy.ru/wp-content/uploads/materials/sajding.jpg [area_modifier] => 255.7 [parent_name] => Наружная отделка фасада [parent_id] => 19 [material_sum] => 406916 [work_sum] => 339097 [total_sum] => 746013 [total_days] => 20 [display_material_sum] => 406 916 [display_work_sum] => 339 097 [display_total_sum] => 746 013 ) 1
746 013
Работа:339 097
Материалы:406 916
Дни:20
stdClass Object ( [id] => 141 [attribute_id] => 19 [name] => Камень [material_modifier] => 1 [work_modifier] => 1 [options] => Array ( [0] => Травертин [1] => Дагестанский [2] => Искусственный [3] => Натуральный [4] => Керамогранит ) [days] => [45,45,45,45,45] [material_price] => [4536,3888,2592,3240,2462] [work_price] => [3240,3240,2462,3110,1944] [image] => https://akademik-stroy.ru/wp-content/uploads/materials/kamen-1.jpg [area_modifier] => 255.7 [parent_name] => Наружная отделка фасада [parent_id] => 19 [material_sum] => 1461418 [work_sum] => 869891 [total_sum] => 2331309 [total_days] => 45 [display_material_sum] => 1 461 418 [display_work_sum] => 869 891 [display_total_sum] => 2 331 309 ) 1
2 331 309
Работа:869 891
Материалы:1 461 418
Дни:45
stdClass Object ( [id] => 142 [attribute_id] => 19 [name] => Термопанели [material_modifier] => 1 [work_modifier] => 1 [options] => Array ( ) [days] => [20] [material_price] => [6221] [work_price] => [2333] [image] => https://akademik-stroy.ru/wp-content/uploads/materials/termo.png [area_modifier] => 255.7 [parent_name] => Наружная отделка фасада [parent_id] => 19 [material_sum] => 2004294 [work_sum] => 626376 [total_sum] => 2630670 [total_days] => 20 [display_material_sum] => 2 004 294 [display_work_sum] => 626 376 [display_total_sum] => 2 630 670 ) 1
2 630 670
Работа:626 376
Материалы:2 004 294
Дни:20
stdClass Object ( [id] => 143 [attribute_id] => 19 [name] => Плитка HAUBERK [material_modifier] => 1 [work_modifier] => 1 [options] => Array ( ) [days] => [20] [material_price] => [2786] [work_price] => [1944] [image] => https://akademik-stroy.ru/wp-content/uploads/materials/hauberk.jpg [area_modifier] => 255.7 [parent_name] => Наружная отделка фасада [parent_id] => 19 [material_sum] => 897599 [work_sum] => 521935 [total_sum] => 1419534 [total_days] => 20 [display_material_sum] => 897 599 [display_work_sum] => 521 935 [display_total_sum] => 1 419 534 ) 1
1 419 534
Работа:521 935
Материалы:897 599
Дни:20
stdClass Object ( [id] => 144 [attribute_id] => 19 [name] => Фальцевый фасад [material_modifier] => 1 [work_modifier] => 1 [options] => Array ( ) [days] => [20] [material_price] => [3240] [work_price] => [2592] [image] => https://akademik-stroy.ru/wp-content/uploads/materials/falcevyj-fasad.jpg [area_modifier] => 255.7 [parent_name] => Наружная отделка фасада [parent_id] => 19 [material_sum] => 1043870 [work_sum] => 695913 [total_sum] => 1739783 [total_days] => 20 [display_material_sum] => 1 043 870 [display_work_sum] => 695 913 [display_total_sum] => 1 739 783 ) 1
1 739 783
Работа:695 913
Материалы:1 043 870
Дни:20
stdClass Object ( [id] => 145 [attribute_id] => 19 [name] => Комбинированный [material_modifier] => 1 [work_modifier] => 1 [options] => Array ( ) [days] => [20] [material_price] => [4629] [work_price] => [3499] [image] => https://akademik-stroy.ru/wp-content/uploads/materials/Kombinirovannyj.jpg [area_modifier] => 255.7 [parent_name] => Наружная отделка фасада [parent_id] => 19 [material_sum] => 1491380 [work_sum] => 939429 [total_sum] => 2430809 [total_days] => 20 [display_material_sum] => 1 491 380 [display_work_sum] => 939 429 [display_total_sum] => 2 430 809 ) 1
2 430 809
Работа:939 429
Материалы:1 491 380
Дни:20
stdClass Object ( [id] => 257 [attribute_id] => 19 [name] => Японские фиброцементные [material_modifier] => 1 [work_modifier] => 1 [options] => Array ( ) [days] => [20] [material_price] => [7043] [work_price] => [2993] [image] => https://akademik-stroy.ru/wp-content/uploads/materials/paneli.jpg [area_modifier] => 255.7 [parent_name] => Наружная отделка фасада [parent_id] => 19 [material_sum] => 2269128 [work_sum] => 803576 [total_sum] => 3072704 [total_days] => 20 [display_material_sum] => 2 269 128 [display_work_sum] => 803 576 [display_total_sum] => 3 072 704 ) 1
3 072 704
Работа:803 576
Материалы:2 269 128
Дни:20
stdClass Object ( [id] => 258 [attribute_id] => 19 [name] => Панели Каньон [material_modifier] => 1 [work_modifier] => 1 [options] => Array ( ) [days] => [20] [material_price] => [4543] [work_price] => [2592] [image] => https://akademik-stroy.ru/wp-content/uploads/materials/kanon.png [area_modifier] => 255.7 [parent_name] => Наружная отделка фасада [parent_id] => 19 [material_sum] => 1463673 [work_sum] => 695913 [total_sum] => 2159586 [total_days] => 20 [display_material_sum] => 1 463 673 [display_work_sum] => 695 913 [display_total_sum] => 2 159 586 ) 1
2 159 586
Работа:695 913
Материалы:1 463 673
Дни:20
Террасы, крыльца, навесы
stdClass Object ( [id] => 39 [attribute_id] => 20 [name] => Нет [material_modifier] => 1 [work_modifier] => 1 [options] => Array ( ) [days] => [0] [material_price] => [0] [work_price] => [0] [image] => https://akademik-stroy.ru/wp-content/uploads/materials/terrasy.jpg [area_modifier] => 30 [parent_name] => Террасы, крыльца, навесы [parent_id] => 20 [material_sum] => 0 [work_sum] => 0 [total_sum] => 0 [total_days] => 0 [display_material_sum] => 0 [display_work_sum] => 0 [display_total_sum] => 0 ) 1
0
Работа:0
Материалы:0
Дни:0
stdClass Object ( [id] => 40 [attribute_id] => 20 [name] => Есть [material_modifier] => 1 [work_modifier] => 1 [options] => Array ( ) [days] => [5] [material_price] => [10450] [work_price] => [1950] [image] => https://akademik-stroy.ru/wp-content/uploads/materials/terrasy.jpg [area_modifier] => 30 [parent_name] => Террасы, крыльца, навесы [parent_id] => 20 [material_sum] => 395010 [work_sum] => 61425 [total_sum] => 456435 [total_days] => 5 [display_material_sum] => 395 010 [display_work_sum] => 61 425 [display_total_sum] => 456 435 ) 1
456 435
Работа:61 425
Материалы:395 010
Дни:5
Балконы
stdClass Object ( [id] => 41 [attribute_id] => 21 [name] => Нет [material_modifier] => 1 [work_modifier] => 1 [options] => Array ( ) [days] => [0] [material_price] => [0] [work_price] => [0] [image] => https://akademik-stroy.ru/wp-content/uploads/materials/balkony.jpg [area_modifier] => 30 [parent_name] => Балконы [parent_id] => 21 [material_sum] => 0 [work_sum] => 0 [total_sum] => 0 [total_days] => 0 [display_material_sum] => 0 [display_work_sum] => 0 [display_total_sum] => 0 ) 1
0
Работа:0
Материалы:0
Дни:0
stdClass Object ( [id] => 42 [attribute_id] => 21 [name] => Есть [material_modifier] => 1 [work_modifier] => 1 [options] => Array ( ) [days] => [12] [material_price] => [3600] [work_price] => [1950] [image] => https://akademik-stroy.ru/wp-content/uploads/materials/balkony.jpg [area_modifier] => 30 [parent_name] => Балконы [parent_id] => 21 [material_sum] => 136080 [work_sum] => 61425 [total_sum] => 197505 [total_days] => 12 [display_material_sum] => 136 080 [display_work_sum] => 61 425 [display_total_sum] => 197 505 ) 1
197 505
Работа:61 425
Материалы:136 080
Дни:12
Отмостка
stdClass Object ( [id] => 43 [attribute_id] => 22 [name] => Нет [material_modifier] => 1 [work_modifier] => 1 [options] => Array ( ) [days] => [0] [material_price] => [0] [work_price] => [0] [image] => https://akademik-stroy.ru/wp-content/uploads/materials/uteplennaya.jpg [area_modifier] => 155.76 [parent_name] => Отмостка [parent_id] => 22 [material_sum] => 0 [work_sum] => 0 [total_sum] => 0 [total_days] => 0 [display_material_sum] => 0 [display_work_sum] => 0 [display_total_sum] => 0 ) 1
0
Работа:0
Материалы:0
Дни:0
stdClass Object ( [id] => 44 [attribute_id] => 22 [name] => Утепленная отмостка [material_modifier] => 1 [work_modifier] => 1 [options] => Array ( ) [days] => [15] [material_price] => [2550] [work_price] => [1750] [image] => https://akademik-stroy.ru/wp-content/uploads/materials/uteplennaya.jpg [area_modifier] => 155.76 [parent_name] => Отмостка [parent_id] => 22 [material_sum] => 500457 [work_sum] => 286209 [total_sum] => 786666 [total_days] => 15 [display_material_sum] => 500 457 [display_work_sum] => 286 209 [display_total_sum] => 786 666 ) 1
786 666
Работа:286 209
Материалы:500 457
Дни:15
stdClass Object ( [id] => 146 [attribute_id] => 22 [name] => Не утепленная отмостка [material_modifier] => 1 [work_modifier] => 1 [options] => Array ( ) [days] => [10] [material_price] => [1650] [work_price] => [1450] [image] => https://akademik-stroy.ru/wp-content/uploads/materials/ne-uteplennaya.jpg [area_modifier] => 155.76 [parent_name] => Отмостка [parent_id] => 22 [material_sum] => 323825 [work_sum] => 237145 [total_sum] => 560970 [total_days] => 10 [display_material_sum] => 323 825 [display_work_sum] => 237 145 [display_total_sum] => 560 970 ) 1
560 970
Работа:237 145
Материалы:323 825
Дни:10
Дренаж вокруг дома
stdClass Object ( [id] => 45 [attribute_id] => 23 [name] => Нет [material_modifier] => 1 [work_modifier] => 1 [options] => Array ( ) [days] => [0] [material_price] => [0] [work_price] => [0] [image] => https://akademik-stroy.ru/wp-content/uploads/materials/drenazh-2.jpg [area_modifier] => 155.76 [parent_name] => Дренаж вокруг дома [parent_id] => 23 [material_sum] => 0 [work_sum] => 0 [total_sum] => 0 [total_days] => 0 [display_material_sum] => 0 [display_work_sum] => 0 [display_total_sum] => 0 ) 1
0
Работа:0
Материалы:0
Дни:0
stdClass Object ( [id] => 46 [attribute_id] => 23 [name] => Есть [material_modifier] => 1 [work_modifier] => 1 [options] => Array ( ) [days] => [5] [material_price] => [2366] [work_price] => [1911] [image] => https://akademik-stroy.ru/wp-content/uploads/materials/drenazh-2.jpg [area_modifier] => 155.76 [parent_name] => Дренаж вокруг дома [parent_id] => 23 [material_sum] => 464345 [work_sum] => 312540 [total_sum] => 776885 [total_days] => 5 [display_material_sum] => 464 345 [display_work_sum] => 312 540 [display_total_sum] => 776 885 ) 1
776 885
Работа:312 540
Материалы:464 345
Дни:5
Автономная канализация (септики)
stdClass Object ( [id] => 47 [attribute_id] => 24 [name] => Нет [material_modifier] => 1 [work_modifier] => 1 [options] => Array ( ) [days] => [0] [material_price] => [0] [work_price] => [0] [image] => https://akademik-stroy.ru/wp-content/uploads/materials/septik.jpg [area_modifier] => 1 [parent_name] => Автономная канализация (септики) [parent_id] => 24 [material_sum] => 0 [work_sum] => 0 [total_sum] => 0 [total_days] => 0 [display_material_sum] => 0 [display_work_sum] => 0 [display_total_sum] => 0 ) 1
0
Работа:0
Материалы:0
Дни:0
stdClass Object ( [id] => 48 [attribute_id] => 24 [name] => Есть [material_modifier] => 1 [work_modifier] => 1 [options] => Array ( [0] => Для дачи на 4 человека [1] => Для дома на 5 человек [2] => Для дома на 6 человек [3] => Для дома на 7 человек [4] => Для дома на 10 человек ) [days] => [7,7,7,8,8] [material_price] => [196340,220500,240940,264200,293340] [work_price] => [50000,55000,60500,66550,73206] [image] => https://akademik-stroy.ru/wp-content/uploads/materials/septik.jpg [area_modifier] => 1 [parent_name] => Автономная канализация (септики) [parent_id] => 24 [material_sum] => 247388 [work_sum] => 52500 [total_sum] => 299888 [total_days] => 7 [display_material_sum] => 247 388 [display_work_sum] => 52 500 [display_total_sum] => 299 888 ) 1
299 888
Работа:52 500
Материалы:247 388
Дни:7
Внутренние (не несущие) перегородки
stdClass Object ( [id] => 49 [attribute_id] => 25 [name] => Нет [material_modifier] => 1 [work_modifier] => 1 [options] => Array ( ) [days] => [0] [material_price] => [0] [work_price] => [0] [image] => https://akademik-stroy.ru/wp-content/uploads/materials/gkl.jpg [area_modifier] => 255.7 [parent_name] => Внутренние (не несущие) перегородки [parent_id] => 25 [material_sum] => 0 [work_sum] => 0 [total_sum] => 0 [total_days] => 0 [display_material_sum] => 0 [display_work_sum] => 0 [display_total_sum] => 0 ) 1
0
Работа:0
Материалы:0
Дни:0
stdClass Object ( [id] => 147 [attribute_id] => 25 [name] => Каркасно-обшивные [material_modifier] => 1 [work_modifier] => 1 [options] => Array ( [0] => 75 мм (без шумоизоляции) [1] => 75 мм (с шумоизоляцией) ) [days] => [11,11] [material_price] => [580,970] [work_price] => [380,570] [image] => https://akademik-stroy.ru/wp-content/uploads/materials/gkl.jpg [area_modifier] => 255.7 [parent_name] => Внутренние (не несущие) перегородки [parent_id] => 25 [material_sum] => 186866 [work_sum] => 102024 [total_sum] => 288890 [total_days] => 11 [display_material_sum] => 186 866 [display_work_sum] => 102 024 [display_total_sum] => 288 890 ) 1
288 890
Работа:102 024
Материалы:186 866
Дни:11
stdClass Object ( [id] => 148 [attribute_id] => 25 [name] => Пазогребневые [material_modifier] => 1 [work_modifier] => 1 [options] => Array ( [0] => 80 мм [1] => 100 мм ) [days] => [5,5] [material_price] => [1022,1313] [work_price] => [600,700] [image] => https://akademik-stroy.ru/wp-content/uploads/materials/pazogrebnevye-bloki.jpg [area_modifier] => 255.7 [parent_name] => Внутренние (не несущие) перегородки [parent_id] => 25 [material_sum] => 329270 [work_sum] => 161091 [total_sum] => 490361 [total_days] => 5 [display_material_sum] => 329 270 [display_work_sum] => 161 091 [display_total_sum] => 490 361 ) 1
490 361
Работа:161 091
Материалы:329 270
Дни:5
stdClass Object ( [id] => 149 [attribute_id] => 25 [name] => Газобетонные [material_modifier] => 1 [work_modifier] => 1 [options] => Array ( [0] => 100 мм [1] => 200 мм ) [days] => [11,11] [material_price] => [1160,1920] [work_price] => [700,900] [image] => https://akademik-stroy.ru/wp-content/uploads/materials/gazobeton-2.jpg [area_modifier] => 255.7 [parent_name] => Внутренние (не несущие) перегородки [parent_id] => 25 [material_sum] => 373731 [work_sum] => 187940 [total_sum] => 561671 [total_days] => 11 [display_material_sum] => 373 731 [display_work_sum] => 187 940 [display_total_sum] => 561 671 ) 1
561 671
Работа:187 940
Материалы:373 731
Дни:11
stdClass Object ( [id] => 150 [attribute_id] => 25 [name] => Кирпичные [material_modifier] => 1 [work_modifier] => 1 [options] => Array ( [0] => 120 мм [1] => 250 мм [2] => 360 мм ) [days] => [7,7,7] [material_price] => [1785,3570,5355] [work_price] => [900,1600,1800] [image] => https://akademik-stroy.ru/wp-content/uploads/materials/kirpich-1.jpg [area_modifier] => 255.7 [parent_name] => Внутренние (не несущие) перегородки [parent_id] => 25 [material_sum] => 575095 [work_sum] => 241637 [total_sum] => 816732 [total_days] => 7 [display_material_sum] => 575 095 [display_work_sum] => 241 637 [display_total_sum] => 816 732 ) 1
816 732
Работа:241 637
Материалы:575 095
Дни:7
Электрика
stdClass Object ( [id] => 55 [attribute_id] => 28 [name] => Нет [material_modifier] => 1 [work_modifier] => 1 [options] => Array ( ) [days] => [0] [material_price] => [0] [work_price] => [0] [image] => https://akademik-stroy.ru/wp-content/uploads/materials/ehlektrika.jpg [area_modifier] => 207.5 [parent_name] => Электрика [parent_id] => 28 [material_sum] => 0 [work_sum] => 0 [total_sum] => 0 [total_days] => 0 [display_material_sum] => 0 [display_work_sum] => 0 [display_total_sum] => 0 ) 1
0
Работа:0
Материалы:0
Дни:0
stdClass Object ( [id] => 56 [attribute_id] => 28 [name] => Есть [material_modifier] => 1 [work_modifier] => 1 [options] => Array ( ) [days] => [10] [material_price] => [650] [work_price] => [950] [image] => https://akademik-stroy.ru/wp-content/uploads/materials/ehlektrika.jpg [area_modifier] => 207.5 [parent_name] => Электрика [parent_id] => 28 [material_sum] => 169943 [work_sum] => 206981 [total_sum] => 376924 [total_days] => 10 [display_material_sum] => 169 943 [display_work_sum] => 206 981 [display_total_sum] => 376 924 ) 1
376 924
Работа:206 981
Материалы:169 943
Дни:10
Сантехника, канализация в доме
stdClass Object ( [id] => 57 [attribute_id] => 29 [name] => Нет [material_modifier] => 1 [work_modifier] => 1 [options] => Array ( ) [days] => [0] [material_price] => [0] [work_price] => [0] [image] => https://akademik-stroy.ru/wp-content/uploads/materials/santekhnika-kanalizaciya-1.jpg [area_modifier] => 207.5 [parent_name] => Сантехника, канализация в доме [parent_id] => 29 [material_sum] => 0 [work_sum] => 0 [total_sum] => 0 [total_days] => 0 [display_material_sum] => 0 [display_work_sum] => 0 [display_total_sum] => 0 ) 1
0
Работа:0
Материалы:0
Дни:0
stdClass Object ( [id] => 58 [attribute_id] => 29 [name] => Есть [material_modifier] => 1 [work_modifier] => 1 [options] => Array ( ) [days] => [10] [material_price] => [600] [work_price] => [730] [image] => https://akademik-stroy.ru/wp-content/uploads/materials/santekhnika-kanalizaciya-1.jpg [area_modifier] => 207.5 [parent_name] => Сантехника, канализация в доме [parent_id] => 29 [material_sum] => 156870 [work_sum] => 159049 [total_sum] => 315919 [total_days] => 10 [display_material_sum] => 156 870 [display_work_sum] => 159 049 [display_total_sum] => 315 919 ) 1
315 919
Работа:159 049
Материалы:156 870
Дни:10
Отопление
stdClass Object ( [id] => 59 [attribute_id] => 30 [name] => Нет [material_modifier] => 1 [work_modifier] => 1 [options] => Array ( ) [days] => [0] [material_price] => [0] [work_price] => [0] [image] => https://akademik-stroy.ru/wp-content/uploads/materials/otoplenie-1.jpg [area_modifier] => 207.5 [parent_name] => Отопление [parent_id] => 30 [material_sum] => 0 [work_sum] => 0 [total_sum] => 0 [total_days] => 0 [display_material_sum] => 0 [display_work_sum] => 0 [display_total_sum] => 0 ) 1
0
Работа:0
Материалы:0
Дни:0
stdClass Object ( [id] => 60 [attribute_id] => 30 [name] => Есть [material_modifier] => 1 [work_modifier] => 1 [options] => Array ( ) [days] => [5] [material_price] => [610] [work_price] => [560] [image] => https://akademik-stroy.ru/wp-content/uploads/materials/otoplenie-1.jpg [area_modifier] => 207.5 [parent_name] => Отопление [parent_id] => 30 [material_sum] => 159485 [work_sum] => 122010 [total_sum] => 281495 [total_days] => 5 [display_material_sum] => 159 485 [display_work_sum] => 122 010 [display_total_sum] => 281 495 ) 1
281 495
Работа:122 010
Материалы:159 485
Дни:5
Теплые полы
stdClass Object ( [id] => 61 [attribute_id] => 31 [name] => Нет [material_modifier] => 1 [work_modifier] => 1 [options] => Array ( ) [days] => [0] [material_price] => [0] [work_price] => [0] [image] => https://akademik-stroy.ru/wp-content/uploads/materials/vodyanye.jpg [area_modifier] => 30 [parent_name] => Теплые полы [parent_id] => 31 [material_sum] => 0 [work_sum] => 0 [total_sum] => 0 [total_days] => 0 [display_material_sum] => 0 [display_work_sum] => 0 [display_total_sum] => 0 ) 1
0
Работа:0
Материалы:0
Дни:0
stdClass Object ( [id] => 151 [attribute_id] => 31 [name] => Водяные [material_modifier] => 1 [work_modifier] => 1 [options] => Array ( ) [days] => [9] [material_price] => [10200] [work_price] => [2500] [image] => https://akademik-stroy.ru/wp-content/uploads/materials/vodyanye.jpg [area_modifier] => 30 [parent_name] => Теплые полы [parent_id] => 31 [material_sum] => 385560 [work_sum] => 78750 [total_sum] => 464310 [total_days] => 9 [display_material_sum] => 385 560 [display_work_sum] => 78 750 [display_total_sum] => 464 310 ) 1
464 310
Работа:78 750
Материалы:385 560
Дни:9
stdClass Object ( [id] => 152 [attribute_id] => 31 [name] => Электро [material_modifier] => 1 [work_modifier] => 1 [options] => Array ( ) [days] => [5] [material_price] => [6300] [work_price] => [1500] [image] => https://akademik-stroy.ru/wp-content/uploads/materials/ehlektricheskij.jpg [area_modifier] => 30 [parent_name] => Теплые полы [parent_id] => 31 [material_sum] => 238140 [work_sum] => 47250 [total_sum] => 285390 [total_days] => 5 [display_material_sum] => 238 140 [display_work_sum] => 47 250 [display_total_sum] => 285 390 ) 1
285 390
Работа:47 250
Материалы:238 140
Дни:5
Черновая отделка стен
stdClass Object ( [id] => 63 [attribute_id] => 32 [name] => Нет [material_modifier] => 1 [work_modifier] => 1 [options] => Array ( ) [days] => [0] [material_price] => [0] [work_price] => [0] [image] => https://akademik-stroy.ru/wp-content/uploads/materials/shtukaturka-shpatlevka-1.jpg [area_modifier] => 207.5 [parent_name] => Черновая отделка стен [parent_id] => 32 [material_sum] => 0 [work_sum] => 0 [total_sum] => 0 [total_days] => 0 [display_material_sum] => 0 [display_work_sum] => 0 [display_total_sum] => 0 ) 1
0
Работа:0
Материалы:0
Дни:0
stdClass Object ( [id] => 153 [attribute_id] => 32 [name] => Штукатурка и шпатлевка [material_modifier] => 1 [work_modifier] => 1 [options] => Array ( ) [days] => [20] [material_price] => [1850] [work_price] => [2600] [image] => https://akademik-stroy.ru/wp-content/uploads/materials/shtukaturka-shpatlevka-1.jpg [area_modifier] => 207.5 [parent_name] => Черновая отделка стен [parent_id] => 32 [material_sum] => 483683 [work_sum] => 566475 [total_sum] => 1050158 [total_days] => 20 [display_material_sum] => 483 683 [display_work_sum] => 566 475 [display_total_sum] => 1 050 158 ) 1
1 050 158
Работа:566 475
Материалы:483 683
Дни:20
stdClass Object ( [id] => 154 [attribute_id] => 32 [name] => Гипсокортон на стены [material_modifier] => 1 [work_modifier] => 1 [options] => Array ( ) [days] => [15] [material_price] => [950] [work_price] => [2100] [image] => https://akademik-stroy.ru/wp-content/uploads/materials/gkl-1.jpg [area_modifier] => 207.5 [parent_name] => Черновая отделка стен [parent_id] => 32 [material_sum] => 248378 [work_sum] => 457538 [total_sum] => 705916 [total_days] => 15 [display_material_sum] => 248 378 [display_work_sum] => 457 538 [display_total_sum] => 705 916 ) 1
705 916
Работа:457 538
Материалы:248 378
Дни:15
stdClass Object ( [id] => 155 [attribute_id] => 32 [name] => Вагонка [material_modifier] => 1 [work_modifier] => 1 [options] => Array ( ) [days] => [15] [material_price] => [1250] [work_price] => [950] [image] => https://akademik-stroy.ru/wp-content/uploads/materials/vagonka.jpg [area_modifier] => 207.5 [parent_name] => Черновая отделка стен [parent_id] => 32 [material_sum] => 326813 [work_sum] => 206981 [total_sum] => 533794 [total_days] => 15 [display_material_sum] => 326 813 [display_work_sum] => 206 981 [display_total_sum] => 533 794 ) 1
533 794
Работа:206 981
Материалы:326 813
Дни:15
Черновая отделка полов
stdClass Object ( [id] => 65 [attribute_id] => 33 [name] => Нет [material_modifier] => 1 [work_modifier] => 1 [options] => Array ( ) [days] => [0] [material_price] => [0] [work_price] => [0] [image] => https://akademik-stroy.ru/wp-content/uploads/materials/styazhka.jpg [area_modifier] => 207.5 [parent_name] => Черновая отделка полов [parent_id] => 33 [material_sum] => 0 [work_sum] => 0 [total_sum] => 0 [total_days] => 0 [display_material_sum] => 0 [display_work_sum] => 0 [display_total_sum] => 0 ) 1
0
Работа:0
Материалы:0
Дни:0
stdClass Object ( [id] => 156 [attribute_id] => 33 [name] => Стяжка + наливные полы [material_modifier] => 1 [work_modifier] => 1 [options] => Array ( ) [days] => [10] [material_price] => [1000] [work_price] => [900] [image] => https://akademik-stroy.ru/wp-content/uploads/materials/styazhka.jpg [area_modifier] => 207.5 [parent_name] => Черновая отделка полов [parent_id] => 33 [material_sum] => 261450 [work_sum] => 196088 [total_sum] => 457538 [total_days] => 10 [display_material_sum] => 261 450 [display_work_sum] => 196 088 [display_total_sum] => 457 538 ) 1
457 538
Работа:196 088
Материалы:261 450
Дни:10
stdClass Object ( [id] => 157 [attribute_id] => 33 [name] => ОСБ на пол [material_modifier] => 1 [work_modifier] => 1 [options] => Array ( ) [days] => [7] [material_price] => [580] [work_price] => [350] [image] => https://akademik-stroy.ru/wp-content/uploads/materials/osb-1.jpg [area_modifier] => 207.5 [parent_name] => Черновая отделка полов [parent_id] => 33 [material_sum] => 151641 [work_sum] => 76256 [total_sum] => 227897 [total_days] => 7 [display_material_sum] => 151 641 [display_work_sum] => 76 256 [display_total_sum] => 227 897 ) 1
227 897
Работа:76 256
Материалы:151 641
Дни:7
Чистовая отделка стен и полов
stdClass Object ( [id] => 67 [attribute_id] => 34 [name] => Нет [material_modifier] => 1 [work_modifier] => 1 [options] => Array ( ) [days] => [0] [material_price] => [0] [work_price] => [0] [image] => https://akademik-stroy.ru/wp-content/uploads/materials/chistovaya-otdelka.jpg [area_modifier] => 207.5 [parent_name] => Чистовая отделка стен и полов [parent_id] => 34 [material_sum] => 0 [work_sum] => 0 [total_sum] => 0 [total_days] => 0 [display_material_sum] => 0 [display_work_sum] => 0 [display_total_sum] => 0 ) 1
0
Работа:0
Материалы:0
Дни:0
stdClass Object ( [id] => 68 [attribute_id] => 34 [name] => Есть [material_modifier] => 1 [work_modifier] => 1 [options] => Array ( ) [days] => [50] [material_price] => [6000] [work_price] => [3500] [image] => https://akademik-stroy.ru/wp-content/uploads/materials/chistovaya-otdelka.jpg [area_modifier] => 207.5 [parent_name] => Чистовая отделка стен и полов [parent_id] => 34 [material_sum] => 1568700 [work_sum] => 762563 [total_sum] => 2331263 [total_days] => 50 [display_material_sum] => 1 568 700 [display_work_sum] => 762 563 [display_total_sum] => 2 331 263 ) 1
2 331 263
Работа:762 563
Материалы:1 568 700
Дни:50
Отделка потолка
stdClass Object ( [id] => 69 [attribute_id] => 35 [name] => Нет [material_modifier] => 1 [work_modifier] => 1 [options] => Array ( ) [days] => [0] [material_price] => [0] [work_price] => [0] [image] => https://akademik-stroy.ru/wp-content/uploads/materials/mnogourovnevyj-gkl.jpg [area_modifier] => 207.5 [parent_name] => Отделка потолка [parent_id] => 35 [material_sum] => 0 [work_sum] => 0 [total_sum] => 0 [total_days] => 0 [display_material_sum] => 0 [display_work_sum] => 0 [display_total_sum] => 0 ) 1
0
Работа:0
Материалы:0
Дни:0
stdClass Object ( [id] => 70 [attribute_id] => 35 [name] => Есть [material_modifier] => 1 [work_modifier] => 1 [options] => Array ( [0] => Многоуровневый потолок из гипсокартона [1] => Многоуровневый потолок из гипсокартона и натяжного потолка [2] => Одноуровневый потолок из гипсокартона [3] => Одноуровневый натяжной потолок ) [days] => [10,10,1,1] [material_price] => [900,700,700,600] [work_price] => [1000,800,500,300] [image] => https://akademik-stroy.ru/wp-content/uploads/materials/mnogourovnevyj-gkl.jpg [area_modifier] => 207.5 [parent_name] => Отделка потолка [parent_id] => 35 [material_sum] => 235305 [work_sum] => 217875 [total_sum] => 453180 [total_days] => 10 [display_material_sum] => 235 305 [display_work_sum] => 217 875 [display_total_sum] => 453 180 ) 1
453 180
Работа:217 875
Материалы:235 305
Дни:10

Преимущества работы с нами

icon

7 этапов оплаты

icon

Независимый строительный надзор

icon

Экологически чистые материалы

icon

16 лет гарантии

icon

Онлайн-кабинет с веб-камерой

icon

Строители с опытом более 15 лет

icon

Собственное производство

Двухэтажный дом 18х10 - идеальное решение для семьи в Москве

Когда речь заходит о строительстве частного дома под Москвой, каждый хозяин мечтает о просторном, комфортном и одновременно стильном жилье. Если вы ищете вариант, который сочетает в себе продуманность планировки, функциональность и привлекательную архитектуру, проект двухэтажного дома размером 18 на 10 метров с полезной площадью 207,5 м² от компании «Академик Строй» — это именно то, что вам нужно. Такой дом прекрасно вписывается в современный ритм жизни, учитывая как требования к жилому пространству, так и особенности московского климата. Давайте вместе разберём, почему именно эта планировка и размер дома заслуживают вашего внимания, и какие преимущества вы получите, доверившись профессионалам из «Академик Строй». 207,5 квадратных метров комфорта — это просто пространство для жизни, которое способно подарить вашей семье уют и свободу движений.

Основные параметры дома и их значение

В первую очередь, обратим внимание на ключевые технические данные, которые делают этот проект востребованным:
Параметр Значение
Размеры дома 18 x 10 м
Полезная площадь 207,5 м²
Жилая площадь 130,4 м²
Количество этажей 2
Количество спален 4
Количество санузлов 2
Высота здания 8,7 м
Тип крыши Двускатная
Угол наклона крыши 40°
Площадь крыши 278,5 м²
Высота аттиковой стены 0,92 м
Минимальная ширина участка 25,8 м
Минимальная длина участка 17,7 м
Эти цифры — не просто технические данные, а ключ к пониманию того, насколько рациональна и удобна эксплуатация дома в наших условиях. Размеры 18 на 10 метров — это пространство, в котором будет комфортно жить как большой семье, так и тем, кто ценит оптимальный баланс между жилым и техническим пространством.

Полезная и жилая площадь: что это значит для вас?

Полезная площадь в 207,5 м² — это весь внутренний объём помещения, за вычетом стен и технических зон. Из них жилая площадь составляет около 130 м², то есть та часть дома, где вы будете проводить основное время: спальни, гостиная, кухня, рабочие и уютные уголки. Такая площадь позволяет сделать планировку таким образом, чтобы каждый член семьи имел своё личное пространство, а также простор для совместного отдыха и встреч гостей. Проживая в таком доме, вы почувствуете свободу и комфорт, которые редко можно получить в городской квартире.

Два этажа — двойной комфорт

Проект подразумевает два полноценных этажа — это возможность зонировать пространство по интересам и функциям. Первый этаж идеально подходит для общих зон: кухни, гостиной, кабинета и комнаты для гостей, а второй — для уединения и отдыха, где расположены четыре спальни. Высота дома 8,7 метра и конструкция с двускатной крышей с углом наклона 40°, а также аттиковой стеной высотой почти один метр — это не только красивая архитектура, но и практичное решение для отвода осадков и максимального использования пространства второго этажа.

Планировка — ключ к удобству и функциональности

Как опытный строитель, могу сказать — планировка дома определяется не только архитектурой, но и повседневной жизнью его обитателей. В доме 18х10 с проектом от «Академик Строй» предусмотрено всё для комфортного проживания:
  • 4 просторные спальни — каждая имеет достаточную площадь, чтобы разместить не только кровати, но и места для хранения, рабочие зоны или гардеробы.
  • 2 санузла — это особенно важно для большой семьи. Нет необходимости стоять в очереди утром, каждый может комфортно готовиться к рабочему дню.
  • Камин на первом этаже — не просто элемент декора, а источник уюта и мягкого тепла в прохладное время года.
  • Комната на первом этаже — можно превратить в кабинет, игровую или гостевую, что значительно расширяет функционал дома.
  • Терраса и эркер — архитектурные акценты, которые создают дополнительные места для отдыха и позволяют максимально насладиться видом участка и сада.

Преимущества двускатной крыши с углом 40°

Двускатная крыша с такой крутизной — это классика, проверенная временем и климатическими особенностями Московской области. Благодаря углу 40°, снег и дождевая вода легко скатываются, что снижает нагрузку и продлевает срок службы кровли. Площадь крыши в 278,5 м² говорит о том, что в ней продумана хорошая теплоизоляция и вентиляция, что крайне важно для сохранения тепла зимой и комфорта летом. Кроме того, такая конструкция позволяет использовать чердачное пространство для хранения вещей или даже для оборудования мансарды.

Подбор участка под проект: что нужно знать

Проект требует определённых минимальных размеров участка — 25,8 м в ширину и 17,7 м в длину. Это необходимо учитывать при выборе или подведении к строительству, ведь комфортный заезд, зона отдыха на открытом воздухе и техническая инфраструктура должны гармонично вписываться в общую площадь. Приняв во внимание площадь застройки в 158,2 м², легко представить себе, сколько пространства останется для маневра на придомовой территории — высадка сада, установка детской площадки, зона отдыха с барбекю или даже бассейн.

Советы по выбору и организации пространства участка

  1. При планировке участка важно учитывать ориентацию дома относительно сторон света — для оптимального освещения жилых помещений и экономии энергии на отоплении.
  2. Разумно подойдет зонирование территории по функционалу: место для отдыха, огорода, технических построек и парковки.
  3. Обратите внимание на подъездные пути — удобный подъезд для техники и гостей важен в повседневной жизни и особенно в строительстве.
  4. Прокладка коммуникаций — канализация, электроснабжение, вода должны быть проработаны заранее.

Почему стоит заказать проект именно у «Академик Строй»?

Сегодня на рынке много компаний, которые предлагают проекты домов. Однако «Академик Строй» выделяется качеством, опытом и комплексным подходом. Вот основные причины, почему многие жители Москвы и Подмосковья выбирают именно эту компанию:
  • Профессионализм и опыт: команда инженеров и архитекторов тщательно разрабатывает каждый проект, учитывая пожелания клиента и особенности участка.
  • Оптимальная цена: проект двухэтажного дома 18х10 всего за разумные деньги, без скрытых наценок и лишних затрат.
  • Поддержка от идеи до реализации: вы получаете полную документацию, консультации по выбору материалов и строительства, услуги по сопровождению проекта.
  • Гибкость в плане адаптации проекта: если у вас есть особые пожелания или ограничения, специалисты без проблем подгонят план под ваши нужды.

Что входит в стандартный проект дома 18х10?

Элемент проекта Описание
Архитектурные планы Подробные чертежи этажей, разрезы и фасады дома
Конструктивные решения Расчёты несущих конструкций, фундамента и кровли
Системы коммуникаций Проекты водоснабжения, отопления, электроснабжения и вентиляции
Визуализации 3D моделирование, чтобы вы точно знали, как будет выглядеть ваш дом
Состав сметы Расчёт ориентировочных затрат на строительство по проекту

Простота связи и заказ проекта в Москве

Чтобы сделать первый шаг к дому своей мечты, достаточно позвонить в компанию «Академик Строй» по телефону +7 (980) 800-47-93. Вам обеспечат подробную консультацию, ответят на все вопросы и расскажут о текущих акциях и специальных предложениях. Такой подход позволяет избежать лишних хлопот при выборе проекта и сразу перейти к детальному обсуждению планировки, материалов и этапов реализации. Заказ проекта — это не просто оформление документов, а начало увлекательного пути к вашему собственному уютному дому.

Что стоит учесть при заказе и реализации проекта?

  • Подготовьте список своих пожеланий — что важно именно для вашей семьи в плане внутренней организации пространства.
  • Сделайте замеры участка или предоставьте имеющуюся документацию специалистам.
  • Обсудите с консультантом сроки проектирования и строительства — они могут варьироваться в зависимости от материалов и условий.
  • Не бойтесь задавать вопросы и просить сделать дополнительные проработки — это ваше жильё, и вам должно быть комфортно.

Особенности дома с камином, эркером и террасой

Включение таких элементов, как камин, эркер и терраса в проект — это не только элегантный дизайнерский ход, но и дополнительный комфорт, который вы будете ценить на протяжении многих лет.

Камин — сердце гостиной

Камин создает особенную атмосферу тепла и уюта, особенно в холодное московское время года. Он позволяет сделать гостиную центром притяжения, где собирается семья и друзья. Современные проекты от «Академик Строй» учитывают все технические нюансы для безопасной и эффективной установки камина.

Терраса — место для отдыха на свежем воздухе

Терраса при доме размером 18 на 10 м — отличное дополнение к жилой области. Здесь можно устраивать завтраки на свежем воздухе, вечерние посиделки или просто наслаждаться природой, не выезжая из дома. В проекте терраса гармонично интегрирована с интерьером и дизайном фасада.

Эркер — больше света и простора

Эркер позволяет увеличить площадь комнаты за счёт выступающей части фасада, что одновременно улучшает естественное освещение и создает уникальный архитектурный акцент. Это особенно ценно для гостиной или столовой зоны, делая помещение визуально просторнее и теплее.

Цена и выгодные условия покупки проекта

Одна из важнейших тем — сколько стоит проект дома с такими характеристиками и как получить лучшее предложение на рынке Москвы и Подмосковья. Компания «Академик Строй» предлагает отличную цену и прозрачные условия оплаты, что является весомым аргументом для тех, кто хочет сделать надёжный выбор, не переплачивая. Кроме того, регулярные акции и скидки делают этот проект особенно привлекательным.

Что входит в стоимость проекта?

  • Разработка базовой и рабочей документации
  • Технические консультации по всем этапам
  • Смета материалов и предварительный подбор конструкций
  • Обработка индивидуальных пожеланий заказчика
Если сравнить средние цены на аналогичные проекты в Москве, то вы увидите, что предложенная стоимость — одна из наиболее выгодных и при этом соответствует высоким стандартам качества.

Итоговое мнение: почему этот проект идеально подходит для вашего дома

Когда мы говорим о двухэтажном доме размером 18х10 метров и площадью 207,5 квадратных метров, в первую очередь имеет смысл задать себе вопрос: что вы хотите получить от собственного жилья? Простор, комфорт, оптимальное разделение площадей, возможность быстро и эффективно проживать всю семью, не забывая про зоны уединения и отдыха. Проект от «Академик Строй» максимально сбалансирован по всем параметрам. Он продуман и с архитектурной, и с инженерной точки зрения, учитывая климатические и бытовые требования московского региона. Если вы стремитесь к тому, чтобы ваш дом стал настоящим семейным гнёздышком, который дарит комфорт и вдохновляет каждый день, звоните по телефону +7 (980) 800-47-93 и заказывайте проект. --- Построить свой дом — это большой шаг, но он обязательно стоит того, чтобы сделать его качественно и красиво с помощью профессиональных решений и команд единомышленников. Ваш комфорт начинается с грамотного проекта — и «Академик Строй» готов помочь вам в этом!