Двухэтажный дом 9x11 - 111.9 м2 за руб.

ID-68265

Стоимость дома 4120146 руб.
154 м2 Полезная
площадь
9 x 11 м Размеры
2 этажа Этажей
26 м2 Террасы
и балконы
1Без
гаража
3 Количество
спален
2 Количество
санузлов

Планировки

План первого этажа

floor image
  • 1. Прихожая 2,42 m²
  • 2. Холл 9,34 m²
  • 3. Кухня 6,72 m²
  • 4. Гостиная 22,50 m²
  • 5. Ванная комната 2,75 m²
  • 6. Гараж на 1 машину 20,50 m²
  • План первого этажа 64,23 m²

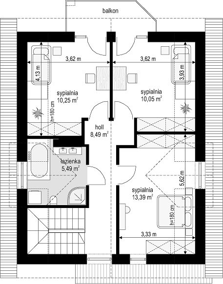
План мансарды

floor image
  • 1. Комната 10,25 m²
  • 2. Комната 10,05 m²
  • 3. Комната 13,39 m²
  • 4. Ванная комната 5,49 m²
  • 5. Холл 8,49 m²
  • План мансарды 47,67 m²

Фасады

Передний
Задний
Левый
Правый
Передний
Задний
Левый
Правый

Подробная информация

Жилая площадь
91,41 m²
icon

Сумма площади всех жилых помещений, за вычетом пов. гараж, котельная, чердак, подвал. Учитывается в 100%, для помещений высотой более 2,2 м, в 50% для помещений с высотой 2,2-1,4 м и не включается для более низких помещений (меньше 1,4 м).

Площадь застройки
98,03 m²
icon

Площадь застройки здания определяется как площадь горизонтального сечения по внешнему обводу здания на уровне цоколя, включая выступающие части.

Общая площадь
148,10 m²
icon

Общая площадь всех этажей здания, в том числе с несущими конструкциями, такими как наружные стены (с утеплением), столбы, террасы, и т. д.

Площадь нетто
94,90 m²
icon

Площадь всех помещений в здании, измеренная на высоте пола.

Объем брутто
481 m³
icon

Как правило, это сумма объема всех помещений в здании, подсчитанных по внешнему контуру стены (с утеплением).

Площадь крыши
158,80 m²
icon

Угол наклона крыши
45°
icon

Наклон ската крыши в градусах. Внимание! В некоторых проектах возникает более чем один наклон крыши.

Высота здания
8,47 m
icon

Высота измеряется от поверхности земли до самой высокой точки кровли (конька), за исключением дымоходов.

Ширина фасада
8,64 m
icon

Длина фасада
11,13 m
icon

Мин. ширина участка
16,34 m
icon

Наименьшая возможная ширина участка, необходимая для строительства выбранного дома. Состоит из длины фасада дома плюс с обеих сторон три метра отступ.

Мин. длина участка
19,49 m
icon

Наименьшая возможная длина участка, необходимая для строительства выбранного дома. Состоит из длины фасада дома плюс с обеих сторон три метра отступ.

Материалы и опции
Общие
Цена, руб.
Площадь м²
140
Площадь от и до
Ежемесячный платёж, руб
Количество спален
3
Гараж
1
Количество санузлов
2
Тип крыши
Ширина
9
Глубина
11

Площади дома

№ п/п Наименование Ед. из. Строительная площадь Полезная площадь
1 1 этаж м2 79.15 64.23
2 2 этаж м2 58.74 47.67
3 Итого м2 137.89 111.9

Калькулятор опций

0

В ипотеку от 14 278 ₽/мес.

Фундамент
stdClass Object ( [id] => 1 [attribute_id] => 1 [name] => Ленточный монолитный ж/б [material_modifier] => 1 [work_modifier] => 1 [options] => Array ( [0] => размер 200 х 700 мм [1] => размер 300 х 900 мм [2] => размер 400 х 1 000 мм [3] => размер 500 х 1 100 мм [4] => размер 600 х 1 200 мм ) [days] => [20,21,22,25,30] [material_price] => [2823,3630,4475,5210,12047] [work_price] => [2154,2826,3731,4577,5293] [image] => https://akademik-stroy.ru/wp-content/uploads/materials/lentochnyj-monolitnyj-zh-b.jpg [area_modifier] => 79.15 [parent_name] => Фундамент [parent_id] => 1 [material_sum] => 308348 [work_sum] => 196062 [total_sum] => 504410 [total_days] => 20 [display_material_sum] => 308 348 [display_work_sum] => 196 062 [display_total_sum] => 504 410 ) 1
504 410
Работа:196 062
Материалы:308 348
Дни:20
stdClass Object ( [id] => 2 [attribute_id] => 1 [name] => Забивные Ж/Б сваи [material_modifier] => 1 [work_modifier] => 1 [options] => Array ( [0] => 150х150х3000мм [1] => 150х150х4000мм [2] => 200х200х3000мм [3] => 200х200х4000мм [4] => 200х200х5000мм [5] => 200х200х6000мм ) [days] => [2,2,2,2,2,2] [material_price] => [1990,2850,3255,4360,5120,6837] [work_price] => [1002,1185,1336,1438,1574,1839] [image] => https://akademik-stroy.ru/wp-content/uploads/materials/zabivnye-zh-b-svai.png [area_modifier] => 79.15 [parent_name] => Фундамент [parent_id] => 1 [material_sum] => 217362 [work_sum] => 91205 [total_sum] => 308567 [total_days] => 2 [display_material_sum] => 217 362 [display_work_sum] => 91 205 [display_total_sum] => 308 567 ) 1
308 567
Работа:91 205
Материалы:217 362
Дни:2
stdClass Object ( [id] => 71 [attribute_id] => 1 [name] => Свайно-ростверковый ж/б [material_modifier] => 1 [work_modifier] => 1 [options] => Array ( [0] => ростверк 200х300 мм [1] => ростверк 300х600 мм [2] => ростверк 400х900 мм [3] => ростверк 500х1200 мм ) [days] => [20,23,25,27] [material_price] => [3018,3474,7109,9792] [work_price] => [2024,3012,5635,7022] [image] => https://akademik-stroy.ru/wp-content/uploads/materials/svajno-rostverkovyj-monolitnyj-zh-b-3.png [area_modifier] => 79.15 [parent_name] => Фундамент [parent_id] => 1 [material_sum] => 329647 [work_sum] => 184230 [total_sum] => 513877 [total_days] => 20 [display_material_sum] => 329 647 [display_work_sum] => 184 230 [display_total_sum] => 513 877 ) 1
513 877
Работа:184 230
Материалы:329 647
Дни:20
stdClass Object ( [id] => 72 [attribute_id] => 1 [name] => Монолитная ж/б плита [material_modifier] => 1 [work_modifier] => 1 [options] => Array ( [0] => 200 мм [1] => 300 мм [2] => 400 мм [3] => 500 мм [4] => 600 мм ) [days] => [30,33,35,37,40] [material_price] => [5348,8555,12788,14388,15189] [work_price] => [4314,4881,7037,8061,10230] [image] => https://akademik-stroy.ru/wp-content/uploads/materials/monolitnaya-zhb-plita.png [area_modifier] => 79.15 [parent_name] => Фундамент [parent_id] => 1 [material_sum] => 584146 [work_sum] => 392671 [total_sum] => 976817 [total_days] => 30 [display_material_sum] => 584 146 [display_work_sum] => 392 671 [display_total_sum] => 976 817 ) 1
976 817
Работа:392 671
Материалы:584 146
Дни:30
stdClass Object ( [id] => 73 [attribute_id] => 1 [name] => Утепленная шведская плита [material_modifier] => 1 [work_modifier] => 1 [options] => Array ( [0] => 200 мм [1] => 300 мм [2] => 400 мм [3] => 500 мм [4] => 600 мм ) [days] => [32,37,39,42,45] [material_price] => [10249,12692,13760,14936,16230] [work_price] => [5960,7337,8072,8878,9765] [image] => https://akademik-stroy.ru/wp-content/uploads/materials/uteplennaya-shvedskaya-plita.jpg [area_modifier] => 79.15 [parent_name] => Фундамент [parent_id] => 1 [material_sum] => 1119468 [work_sum] => 542494 [total_sum] => 1661962 [total_days] => 32 [display_material_sum] => 1 119 468 [display_work_sum] => 542 494 [display_total_sum] => 1 661 962 ) 1
1 661 962
Работа:542 494
Материалы:1 119 468
Дни:32
stdClass Object ( [id] => 75 [attribute_id] => 1 [name] => Ленточный из ФБС [material_modifier] => 1 [work_modifier] => 1 [options] => Array ( [0] => толщ. 300 мм [1] => толщ. 400 мм [2] => толщ. 500 мм [3] => толщ. 600 мм ) [days] => [20,20,20,20] [material_price] => [3675,4902,6126,7350] [work_price] => [2451,3264,4083,4902] [image] => https://akademik-stroy.ru/wp-content/uploads/materials/lentochnyj-iz-fbs.png [area_modifier] => 79.15 [parent_name] => Фундамент [parent_id] => 1 [material_sum] => 401409 [work_sum] => 223096 [total_sum] => 624505 [total_days] => 20 [display_material_sum] => 401 409 [display_work_sum] => 223 096 [display_total_sum] => 624 505 ) 1
624 505
Работа:223 096
Материалы:401 409
Дни:20
stdClass Object ( [id] => 76 [attribute_id] => 1 [name] => Цокольный этаж из ФБС [material_modifier] => 1 [work_modifier] => 1 [options] => Array ( [0] => толщ. 300 мм [1] => толщ. 400 мм [2] => толщ. 500 мм [3] => толщ. 600 мм ) [days] => [30,32,34,36] [material_price] => [20916,23299,26680,29060] [work_price] => [17524,18700,19873,21046] [image] => https://akademik-stroy.ru/wp-content/uploads/materials/cokolnyj-ehtazh-iz-fbs.jpg [area_modifier] => 79.15 [parent_name] => Фундамент [parent_id] => 1 [material_sum] => 2284592 [work_sum] => 1595078 [total_sum] => 3879670 [total_days] => 30 [display_material_sum] => 2 284 592 [display_work_sum] => 1 595 078 [display_total_sum] => 3 879 670 ) 1
3 879 670
Работа:1 595 078
Материалы:2 284 592
Дни:30
stdClass Object ( [id] => 77 [attribute_id] => 1 [name] => Цокольный этаж монолитный ж/б [material_modifier] => 1 [work_modifier] => 1 [options] => Array ( [0] => толщ. 200 мм [1] => толщ. 300 мм [2] => толщ. 400 мм [3] => толщ. 500 мм [4] => толщ. 600 мм ) [days] => [40,42,44,46,48] [material_price] => [25421,29148,32275,35602,37326] [work_price] => [20441,21907,23375,24841,26306] [image] => https://akademik-stroy.ru/wp-content/uploads/materials/cokolnyj-etazh-zh-b.jpg [area_modifier] => 79.15 [parent_name] => Фундамент [parent_id] => 1 [material_sum] => 2776660 [work_sum] => 1860591 [total_sum] => 4637251 [total_days] => 40 [display_material_sum] => 2 776 660 [display_work_sum] => 1 860 591 [display_total_sum] => 4 637 251 ) 1
4 637 251
Работа:1 860 591
Материалы:2 776 660
Дни:40
stdClass Object ( [id] => 191 [attribute_id] => 1 [name] => Винтовые сваи [material_modifier] => 1 [work_modifier] => 1 [options] => Array ( [0] => 57х200мм [1] => 76х250мм [2] => 108х300мм [3] => 133х350мм ) [days] => [1,1,2,2] [material_price] => [1200,1300,1450,1600] [work_price] => [400,600,900,1100] [image] => https://akademik-stroy.ru/wp-content/uploads/materials/vintovye-svai.png [area_modifier] => 79.15 [parent_name] => Фундамент [parent_id] => 1 [material_sum] => 131072 [work_sum] => 36409 [total_sum] => 167481 [total_days] => 1 [display_material_sum] => 131 072 [display_work_sum] => 36 409 [display_total_sum] => 167 481 ) 1
167 481
Работа:36 409
Материалы:131 072
Дни:1
Перекрытие цоколя
stdClass Object ( [id] => 3 [attribute_id] => 2 [name] => Деревянные балки [material_modifier] => 1 [work_modifier] => 1 [options] => Array ( [0] => без утепления [1] => утепление 200 мм [2] => утепление 250 мм [3] => утепление 300 мм [4] => утепление 350 мм [5] => утепление 400 мм [6] => утепление 450 мм [7] => утепление 500 мм ) [days] => [8,9,9,9,11,12,13,14] [material_price] => [1634,2042,2344,2947,3149,3652,3354,3557] [work_price] => [1230,1339,1393,1426,1460,1513,1587,1620] [image] => https://akademik-stroy.ru/wp-content/uploads/materials/derevyannye-balki.png [area_modifier] => 79.15 [parent_name] => Перекрытие цоколя [parent_id] => 2 [material_sum] => 178477 [work_sum] => 111958 [total_sum] => 290435 [total_days] => 8 [display_material_sum] => 178 477 [display_work_sum] => 111 958 [display_total_sum] => 290 435 ) 1
290 435
Работа:111 958
Материалы:178 477
Дни:8
stdClass Object ( [id] => 4 [attribute_id] => 2 [name] => Сборные ж/б плиты [material_modifier] => 1 [work_modifier] => 1 [options] => Array ( [0] => без утепления [1] => утепление 150мм [2] => утепление 200мм [3] => утепление 250мм [4] => утепление 300мм [5] => утепление 350мм [6] => утепление 400мм [7] => утепление 450мм [8] => утепление 500мм ) [days] => [13,15,15,15,15,15,15,15,15] [material_price] => [3067,5577,5928,6679,7730,8782,9833,10884,11935] [work_price] => [1520,1956,2102,2247,2392,2537,2684,2829,2974] [image] => https://akademik-stroy.ru/wp-content/uploads/materials/sbornye-zh-b-plity-2.jpg [area_modifier] => 79.15 [parent_name] => Перекрытие цоколя [parent_id] => 2 [material_sum] => 334999 [work_sum] => 138354 [total_sum] => 473353 [total_days] => 13 [display_material_sum] => 334 999 [display_work_sum] => 138 354 [display_total_sum] => 473 353 ) 1
473 353
Работа:138 354
Материалы:334 999
Дни:13
stdClass Object ( [id] => 78 [attribute_id] => 2 [name] => Монолитная ж/б плита [material_modifier] => 1 [work_modifier] => 1 [options] => Array ( [0] => без утепления [1] => утепление 150 мм [2] => утепление 200 мм [3] => утепление 250 мм [4] => утепление 300 мм [5] => утепление 350 мм [6] => утепление 400 мм [7] => утепление 450 мм [8] => утепление 500 мм ) [days] => [18,20,20,20,20,20,20,20,20] [material_price] => [4837,6572,7224,7375,79426,8177,8728,9180,10031] [work_price] => [3348,3921,4112,4302,4493,4684,4875,5066,5256] [image] => https://akademik-stroy.ru/wp-content/uploads/materials/monolitnaya-zh-b-plita-2.jpg [area_modifier] => 79.15 [parent_name] => Перекрытие цоколя [parent_id] => 2 [material_sum] => 528331 [work_sum] => 304743 [total_sum] => 833074 [total_days] => 18 [display_material_sum] => 528 331 [display_work_sum] => 304 743 [display_total_sum] => 833 074 ) 1
833 074
Работа:304 743
Материалы:528 331
Дни:18
Стены 1 этаж (несущие)
stdClass Object ( [id] => 6 [attribute_id] => 3 [name] => Пеноблок [material_modifier] => 1 [work_modifier] => 1 [options] => Array ( [0] => 300 мм [1] => 400 мм [2] => 500 мм [3] => 600 мм ) [days] => [29,31,34,39] [material_price] => [3000,4000,4500,4937] [work_price] => [5033,5805,6400,8710] [image] => https://akademik-stroy.ru/wp-content/uploads/materials/penoblok.jpg [area_modifier] => 79.15 [parent_name] => Стены 1 этаж (несущие) [parent_id] => 3 [material_sum] => 327681 [work_sum] => 458116 [total_sum] => 785797 [total_days] => 29 [display_material_sum] => 327 681 [display_work_sum] => 458 116 [display_total_sum] => 785 797 ) 1
785 797
Работа:458 116
Материалы:327 681
Дни:29
stdClass Object ( [id] => 79 [attribute_id] => 3 [name] => Керамический блок [material_modifier] => 1 [work_modifier] => 1 [options] => Array ( [0] => 380 мм [1] => 380 мм Thermo [2] => 440 мм [3] => 510 мм ) [days] => [23,23,24,25] [material_price] => [4510,5098,6093,8013] [work_price] => [4737,4937,5903,6958] [image] => https://akademik-stroy.ru/wp-content/uploads/materials/keramicheskij-blok.jpg [area_modifier] => 79.15 [parent_name] => Стены 1 этаж (несущие) [parent_id] => 3 [material_sum] => 492614 [work_sum] => 431174 [total_sum] => 923788 [total_days] => 23 [display_material_sum] => 492 614 [display_work_sum] => 431 174 [display_total_sum] => 923 788 ) 1
923 788
Работа:431 174
Материалы:492 614
Дни:23
stdClass Object ( [id] => 80 [attribute_id] => 3 [name] => Кирпич [material_modifier] => 1 [work_modifier] => 1 [options] => Array ( [0] => Кирпич 250 мм [1] => Кирпич 380 мм [2] => Кирпич 510 мм [3] => Кирпич 640 мм [4] => Кирпич 770 мм ) [days] => [30,30,31,33,36] [material_price] => [5500,7142,9206,10171,12235] [work_price] => [8736,10041,12018,15240,18462] [image] => https://akademik-stroy.ru/wp-content/uploads/materials/kirpich.jpg [area_modifier] => 79.15 [parent_name] => Стены 1 этаж (несущие) [parent_id] => 3 [material_sum] => 600749 [work_sum] => 795173 [total_sum] => 1395922 [total_days] => 30 [display_material_sum] => 600 749 [display_work_sum] => 795 173 [display_total_sum] => 1 395 922 ) 1
1 395 922
Работа:795 173
Материалы:600 749
Дни:30
stdClass Object ( [id] => 81 [attribute_id] => 3 [name] => Монолитные [material_modifier] => 1 [work_modifier] => 1 [options] => Array ( [0] => 150 мм [1] => 200 мм [2] => 250 мм [3] => 300 мм [4] => 350 мм [5] => 400 мм ) [days] => [45,46,47,49,50,53] [material_price] => [6545,7876,10175,12011,13908,15204] [work_price] => [5106,6444,7698,8552,9807,11461] [image] => https://akademik-stroy.ru/wp-content/uploads/materials/monolitnye.jpg [area_modifier] => 79.15 [parent_name] => Стены 1 этаж (несущие) [parent_id] => 3 [material_sum] => 714891 [work_sum] => 464761 [total_sum] => 1179652 [total_days] => 45 [display_material_sum] => 714 891 [display_work_sum] => 464 761 [display_total_sum] => 1 179 652 ) 1
1 179 652
Работа:464 761
Материалы:714 891
Дни:45
stdClass Object ( [id] => 82 [attribute_id] => 3 [name] => Клееный брус [material_modifier] => 1 [work_modifier] => 1 [options] => Array ( [0] => 160 мм [1] => 175 мм [2] => 200 мм [3] => 215 мм [4] => 240 мм [5] => 270 мм [6] => 282 мм ) [days] => [24,28,32,37,40,42,48] [material_price] => [16975,18773,19950,20545,21599,22159,23275] [work_price] => [4806,5287,5815,6397,7036,7740,8514] [image] => https://akademik-stroy.ru/wp-content/uploads/materials/kleenyj-brus.jpg [area_modifier] => 79.15 [parent_name] => Стены 1 этаж (несущие) [parent_id] => 3 [material_sum] => 1854128 [work_sum] => 437454 [total_sum] => 2291582 [total_days] => 24 [display_material_sum] => 1 854 128 [display_work_sum] => 437 454 [display_total_sum] => 2 291 582 ) 1
2 291 582
Работа:437 454
Материалы:1 854 128
Дни:24
stdClass Object ( [id] => 83 [attribute_id] => 3 [name] => Каркасные [material_modifier] => 1 [work_modifier] => 1 [options] => Array ( [0] => 150 мм [1] => 200 мм [2] => 250 мм [3] => 300 мм ) [days] => [15,16,17,18] [material_price] => [2379,2639,2898,3258] [work_price] => [2418,2686,2985,3716] [image] => https://akademik-stroy.ru/wp-content/uploads/materials/karkasnye.jpg [area_modifier] => 79.15 [parent_name] => Стены 1 этаж (несущие) [parent_id] => 3 [material_sum] => 259851 [work_sum] => 220092 [total_sum] => 479943 [total_days] => 15 [display_material_sum] => 259 851 [display_work_sum] => 220 092 [display_total_sum] => 479 943 ) 1
479 943
Работа:220 092
Материалы:259 851
Дни:15
stdClass Object ( [id] => 84 [attribute_id] => 3 [name] => СИП-панели [material_modifier] => 1 [work_modifier] => 1 [options] => Array ( [0] => 120 мм [1] => 170 мм [2] => 220 мм ) [days] => [7,7,7] [material_price] => [1210,1856,2292] [work_price] => [1410,1551,1706] [image] => https://akademik-stroy.ru/wp-content/uploads/materials/sip-paneli.jpg [area_modifier] => 79.15 [parent_name] => Стены 1 этаж (несущие) [parent_id] => 3 [material_sum] => 132165 [work_sum] => 128342 [total_sum] => 260507 [total_days] => 7 [display_material_sum] => 132 165 [display_work_sum] => 128 342 [display_total_sum] => 260 507 ) 1
260 507
Работа:128 342
Материалы:132 165
Дни:7
stdClass Object ( [id] => 85 [attribute_id] => 3 [name] => Сухой брус [material_modifier] => 1 [work_modifier] => 1 [options] => Array ( [0] => 150 мм [1] => 180 мм [2] => 200 мм ) [days] => [7,8,9] [material_price] => [6010,7190,8709] [work_price] => [3204,3845,4229] [image] => https://akademik-stroy.ru/wp-content/uploads/materials/suhoj-brus.jpg [area_modifier] => 79.15 [parent_name] => Стены 1 этаж (несущие) [parent_id] => 3 [material_sum] => 656454 [work_sum] => 291636 [total_sum] => 948090 [total_days] => 7 [display_material_sum] => 656 454 [display_work_sum] => 291 636 [display_total_sum] => 948 090 ) 1
948 090
Работа:291 636
Материалы:656 454
Дни:7
stdClass Object ( [id] => 86 [attribute_id] => 3 [name] => Профилированный брус [material_modifier] => 1 [work_modifier] => 1 [options] => Array ( [0] => 150 мм [1] => 180 мм [2] => 200 мм ) [days] => [7,8,9] [material_price] => [8190,9228,10051] [work_price] => [3845,4614,5075] [image] => https://akademik-stroy.ru/wp-content/uploads/materials/profilirovannyj-brus.jpg [area_modifier] => 79.15 [parent_name] => Стены 1 этаж (несущие) [parent_id] => 3 [material_sum] => 894569 [work_sum] => 349982 [total_sum] => 1244551 [total_days] => 7 [display_material_sum] => 894 569 [display_work_sum] => 349 982 [display_total_sum] => 1 244 551 ) 1
1 244 551
Работа:349 982
Материалы:894 569
Дни:7
stdClass Object ( [id] => 87 [attribute_id] => 3 [name] => Оцилиндрованное бревно [material_modifier] => 1 [work_modifier] => 1 [options] => Array ( [0] => 180 мм [1] => 220 мм [2] => 260 мм [3] => 320 мм ) [days] => [7,8,9,10] [material_price] => [75190,9532,10868,13116] [work_price] => [3845,4691,5535,6863] [image] => https://akademik-stroy.ru/wp-content/uploads/materials/ocilindrovannoe-brevno-1.jpg [area_modifier] => 79.15 [parent_name] => Стены 1 этаж (несущие) [parent_id] => 3 [material_sum] => 8212778 [work_sum] => 349982 [total_sum] => 8562760 [total_days] => 7 [display_material_sum] => 8 212 778 [display_work_sum] => 349 982 [display_total_sum] => 8 562 760 ) 1
8 562 760
Работа:349 982
Материалы:8 212 778
Дни:7
stdClass Object ( [id] => 88 [attribute_id] => 3 [name] => Срубы [material_modifier] => 1 [work_modifier] => 1 [options] => Array ( [0] => 260 мм [1] => 320 мм [2] => 360 мм [3] => 400 мм [4] => 500 мм ) [days] => [7,8,9,10,11] [material_price] => [37975,46709,52314,58069,73167] [work_price] => [4806,5911,6621,7349,9260] [image] => https://akademik-stroy.ru/wp-content/uploads/materials/sruby.jpg [area_modifier] => 79.15 [parent_name] => Стены 1 этаж (несущие) [parent_id] => 3 [material_sum] => 4147895 [work_sum] => 437454 [total_sum] => 4585349 [total_days] => 7 [display_material_sum] => 4 147 895 [display_work_sum] => 437 454 [display_total_sum] => 4 585 349 ) 1
4 585 349
Работа:437 454
Материалы:4 147 895
Дни:7
stdClass Object ( [id] => 174 [attribute_id] => 3 [name] => Брус [material_modifier] => 1 [work_modifier] => 1 [options] => Array ( [0] => 150 мм [1] => 180 мм [2] => 200 мм ) [days] => [7,8,9] [material_price] => [5127,6152,7367] [work_price] => [1602,1922,2115] [image] => https://akademik-stroy.ru/wp-content/uploads/materials/brus.jpg [area_modifier] => 79.15 [parent_name] => Стены 1 этаж (несущие) [parent_id] => 3 [material_sum] => 560007 [work_sum] => 145818 [total_sum] => 705825 [total_days] => 7 [display_material_sum] => 560 007 [display_work_sum] => 145 818 [display_total_sum] => 705 825 ) 1
705 825
Работа:145 818
Материалы:560 007
Дни:7
stdClass Object ( [id] => 175 [attribute_id] => 3 [name] => Газобетон [material_modifier] => 1 [work_modifier] => 1 [options] => Array ( [0] => 300 мм [1] => 375 мм [2] => 400 мм [3] => 500 мм [4] => 600 мм ) [days] => [29,31,35,37,44] [material_price] => [4298,5573,6356,7288,9119] [work_price] => [4538,5251,5926,6733,7195] [image] => https://akademik-stroy.ru/wp-content/uploads/materials/gazobeton.jpg [area_modifier] => 79.15 [parent_name] => Стены 1 этаж (несущие) [parent_id] => 3 [material_sum] => 469458 [work_sum] => 413060 [total_sum] => 882518 [total_days] => 29 [display_material_sum] => 469 458 [display_work_sum] => 413 060 [display_total_sum] => 882 518 ) 1
882 518
Работа:413 060
Материалы:469 458
Дни:29
stdClass Object ( [id] => 176 [attribute_id] => 3 [name] => Блок [material_modifier] => 1 [work_modifier] => 1 [options] => Array ( [0] => 300 мм [1] => 375 мм [2] => 400 мм [3] => 500 мм [4] => 600 мм ) [days] => [29,31,35,37,44] [material_price] => [2698,3973,4356,6588,7119] [work_price] => [5038,5851,6426,8733,9195] [image] => https://akademik-stroy.ru/wp-content/uploads/materials/blok.jpg [area_modifier] => 79.15 [parent_name] => Стены 1 этаж (несущие) [parent_id] => 3 [material_sum] => 294694 [work_sum] => 458571 [total_sum] => 753265 [total_days] => 29 [display_material_sum] => 294 694 [display_work_sum] => 458 571 [display_total_sum] => 753 265 ) 1
753 265
Работа:458 571
Материалы:294 694
Дни:29
stdClass Object ( [id] => 177 [attribute_id] => 3 [name] => Газосиликатный блок [material_modifier] => 1 [work_modifier] => 1 [options] => Array ( [0] => 300 мм [1] => 375 мм [2] => 400 мм [3] => 500 мм [4] => 600 мм ) [days] => [29,31,35,37,44] [material_price] => [4298,5573,6356,7288,9119] [work_price] => [4538,5251,5926,6733,7195] [image] => https://akademik-stroy.ru/wp-content/uploads/materials/gazosilikatnyj-blok.jpg [area_modifier] => 79.15 [parent_name] => Стены 1 этаж (несущие) [parent_id] => 3 [material_sum] => 469458 [work_sum] => 413060 [total_sum] => 882518 [total_days] => 29 [display_material_sum] => 469 458 [display_work_sum] => 413 060 [display_total_sum] => 882 518 ) 1
882 518
Работа:413 060
Материалы:469 458
Дни:29
stdClass Object ( [id] => 178 [attribute_id] => 3 [name] => Керамзитобетонный блок [material_modifier] => 1 [work_modifier] => 1 [options] => Array ( [0] => 300 мм [1] => 375 мм [2] => 400 мм [3] => 500 мм [4] => 600 мм ) [days] => [23,23,24,25,28] [material_price] => [3641,4298,5693,7613,9612] [work_price] => [5737,5737,6903,7958,8901] [image] => https://akademik-stroy.ru/wp-content/uploads/materials/keramzitobetonnyj-blok.jpg [area_modifier] => 79.15 [parent_name] => Стены 1 этаж (несущие) [parent_id] => 3 [material_sum] => 397696 [work_sum] => 522196 [total_sum] => 919892 [total_days] => 23 [display_material_sum] => 397 696 [display_work_sum] => 522 196 [display_total_sum] => 919 892 ) 1
919 892
Работа:522 196
Материалы:397 696
Дни:23
stdClass Object ( [id] => 179 [attribute_id] => 3 [name] => Деревянные [material_modifier] => 1 [work_modifier] => 1 [options] => Array ( [0] => 180 мм [1] => 220 мм [2] => 260 мм [3] => 320 мм ) [days] => [7,8,9,10] [material_price] => [7950,9458,11961,14472] [work_price] => [4037,4925,5812,7207] [image] => https://akademik-stroy.ru/wp-content/uploads/materials/derevyannye.jpg [area_modifier] => 79.15 [parent_name] => Стены 1 этаж (несущие) [parent_id] => 3 [material_sum] => 868355 [work_sum] => 367458 [total_sum] => 1235813 [total_days] => 7 [display_material_sum] => 868 355 [display_work_sum] => 367 458 [display_total_sum] => 1 235 813 ) 1
1 235 813
Работа:367 458
Материалы:868 355
Дни:7
stdClass Object ( [id] => 181 [attribute_id] => 3 [name] => Камень [material_modifier] => 1 [work_modifier] => 1 [options] => Array ( [0] => 300 мм [1] => 400 мм [2] => 500 мм [3] => 600 мм ) [days] => [25,27,31,34] [material_price] => [5262,6844,8330,9815] [work_price] => [8331,9135,10427,11069] [image] => https://akademik-stroy.ru/wp-content/uploads/materials/kamen.jpg [area_modifier] => 79.15 [parent_name] => Стены 1 этаж (несущие) [parent_id] => 3 [material_sum] => 574752 [work_sum] => 758308 [total_sum] => 1333060 [total_days] => 25 [display_material_sum] => 574 752 [display_work_sum] => 758 308 [display_total_sum] => 1 333 060 ) 1
1 333 060
Работа:758 308
Материалы:574 752
Дни:25
stdClass Object ( [id] => 182 [attribute_id] => 3 [name] => Каркасно-щитовые [material_modifier] => 1 [work_modifier] => 1 [options] => Array ( [0] => 150 мм [1] => 200 мм [2] => 250 мм [3] => 300 мм [4] => 350 мм [5] => 400 мм ) [days] => [15,16,17,18,19,20] [material_price] => [2379,2639,2898,3458,3601,4175] [work_price] => [2538,2820,3134,3483,4062,5642] [image] => https://akademik-stroy.ru/wp-content/uploads/materials/karkasno-shchitovye.jpg [area_modifier] => 79.15 [parent_name] => Стены 1 этаж (несущие) [parent_id] => 3 [material_sum] => 259851 [work_sum] => 231015 [total_sum] => 490866 [total_days] => 15 [display_material_sum] => 259 851 [display_work_sum] => 231 015 [display_total_sum] => 490 866 ) 1
490 866
Работа:231 015
Материалы:259 851
Дни:15
stdClass Object ( [id] => 183 [attribute_id] => 3 [name] => Рубленные [material_modifier] => 1 [work_modifier] => 1 [options] => Array ( [0] => 150 мм [1] => 200 мм [2] => 250 мм [3] => 300 мм [4] => 350 мм [5] => 400 мм ) [days] => [15,16,17,18,17,18] [material_price] => [35950,50267,60583,75900,80217,100533] [work_price] => [9612,12816,16020,19224,22428,25632] [image] => https://akademik-stroy.ru/wp-content/uploads/materials/rublennye.jpg [area_modifier] => 79.15 [parent_name] => Стены 1 этаж (несущие) [parent_id] => 3 [material_sum] => 3926711 [work_sum] => 874908 [total_sum] => 4801619 [total_days] => 15 [display_material_sum] => 3 926 711 [display_work_sum] => 874 908 [display_total_sum] => 4 801 619 ) 1
4 801 619
Работа:874 908
Материалы:3 926 711
Дни:15
stdClass Object ( [id] => 185 [attribute_id] => 3 [name] => Теплоблок [material_modifier] => 1 [work_modifier] => 1 [options] => Array ( [0] => 300 мм (с облицовкой, не покрашенный) [1] => 400 мм (с облицовкой, не покрашенный) [2] => 300 мм (с облицовкой, покрашенный) [3] => 400 мм (с облицовкой, покрашенный) ) [days] => [15,16,15,16] [material_price] => [2888,3729,3957,4258] [work_price] => [2564,3229,2949,3713] [image] => https://akademik-stroy.ru/wp-content/uploads/materials/teploblok.jpg [area_modifier] => 79.15 [parent_name] => Стены 1 этаж (несущие) [parent_id] => 3 [material_sum] => 315448 [work_sum] => 233382 [total_sum] => 548830 [total_days] => 15 [display_material_sum] => 315 448 [display_work_sum] => 233 382 [display_total_sum] => 548 830 ) 1
548 830
Работа:233 382
Материалы:315 448
Дни:15
stdClass Object ( [id] => 186 [attribute_id] => 3 [name] => Арболитовые блоки [material_modifier] => 1 [work_modifier] => 1 [options] => Array ( [0] => 300 мм [1] => 400 мм [2] => 600 мм ) [days] => [19,22,27] [material_price] => [3210,4475,5852] [work_price] => [4214,4788,5866] [image] => https://akademik-stroy.ru/wp-content/uploads/materials/arbolitovye-bloki.png [area_modifier] => 79.15 [parent_name] => Стены 1 этаж (несущие) [parent_id] => 3 [material_sum] => 350619 [work_sum] => 383569 [total_sum] => 734188 [total_days] => 19 [display_material_sum] => 350 619 [display_work_sum] => 383 569 [display_total_sum] => 734 188 ) 1
734 188
Работа:383 569
Материалы:350 619
Дни:19
stdClass Object ( [id] => 187 [attribute_id] => 3 [name] => Полистиролбетон [material_modifier] => 1 [work_modifier] => 1 [options] => Array ( [0] => 300 мм [1] => 400 мм [2] => 600 мм ) [days] => [29,31,35] [material_price] => [2798,4573,5256] [work_price] => [5038,5851,6426] [image] => https://akademik-stroy.ru/wp-content/uploads/materials/polistirolbeton.jpg [area_modifier] => 79.15 [parent_name] => Стены 1 этаж (несущие) [parent_id] => 3 [material_sum] => 305617 [work_sum] => 458571 [total_sum] => 764188 [total_days] => 29 [display_material_sum] => 305 617 [display_work_sum] => 458 571 [display_total_sum] => 764 188 ) 1
764 188
Работа:458 571
Материалы:305 617
Дни:29
stdClass Object ( [id] => 188 [attribute_id] => 3 [name] => Шлакоблок [material_modifier] => 1 [work_modifier] => 1 [options] => Array ( [0] => 400 мм [1] => 600 мм ) [days] => [15,16] [material_price] => [2391,3471] [work_price] => [2642,3662] [image] => https://akademik-stroy.ru/wp-content/uploads/materials/shlakoblok.jpg [area_modifier] => 79.15 [parent_name] => Стены 1 этаж (несущие) [parent_id] => 3 [material_sum] => 261162 [work_sum] => 240481 [total_sum] => 501643 [total_days] => 15 [display_material_sum] => 261 162 [display_work_sum] => 240 481 [display_total_sum] => 501 643 ) 1
501 643
Работа:240 481
Материалы:261 162
Дни:15
stdClass Object ( [id] => 189 [attribute_id] => 3 [name] => Теплая керамика [material_modifier] => 1 [work_modifier] => 1 [options] => Array ( [0] => 380 мм [1] => 380 мм Thermo [2] => 440 мм [3] => 510 мм ) [days] => [23,23,24,25] [material_price] => [4510,5098,6093,8013] [work_price] => [4737,4937,5903,6958] [image] => https://akademik-stroy.ru/wp-content/uploads/materials/teplaya-keramika.jpg [area_modifier] => 79.15 [parent_name] => Стены 1 этаж (несущие) [parent_id] => 3 [material_sum] => 492614 [work_sum] => 431174 [total_sum] => 923788 [total_days] => 23 [display_material_sum] => 492 614 [display_work_sum] => 431 174 [display_total_sum] => 923 788 ) 1
923 788
Работа:431 174
Материалы:492 614
Дни:23
stdClass Object ( [id] => 190 [attribute_id] => 3 [name] => Несъемная опалубка [material_modifier] => 1 [work_modifier] => 1 [options] => Array ( [0] => 200 мм [1] => 250 мм [2] => 300 мм [3] => 350 мм ) [days] => [15,17,19,21] [material_price] => [3302,3902,4108,5008] [work_price] => [2100,2100,2300,2534] [image] => https://akademik-stroy.ru/wp-content/uploads/materials/nesemnaya-opalubka.jpg [area_modifier] => 79.15 [parent_name] => Стены 1 этаж (несущие) [parent_id] => 3 [material_sum] => 360668 [work_sum] => 191147 [total_sum] => 551815 [total_days] => 15 [display_material_sum] => 360 668 [display_work_sum] => 191 147 [display_total_sum] => 551 815 ) 1
551 815
Работа:191 147
Материалы:360 668
Дни:15
stdClass Object ( [id] => 251 [attribute_id] => 3 [name] => Бревно [material_modifier] => 1 [work_modifier] => 1 [options] => Array ( [0] => 260 мм [1] => 320 мм [2] => 360 мм [3] => 400 мм [4] => 500 мм ) [days] => [7,8,9,10,11] [material_price] => [1874,24045,26930,30972,38825] [work_price] => [5046,6207,6952,7716,9723] [image] => https://akademik-stroy.ru/wp-content/uploads/materials/sruby.jpg [area_modifier] => 79.15 [parent_name] => Стены 1 этаж (несущие) [parent_id] => 3 [material_sum] => 204691 [work_sum] => 459300 [total_sum] => 663991 [total_days] => 7 [display_material_sum] => 204 691 [display_work_sum] => 459 300 [display_total_sum] => 663 991 ) 1
663 991
Работа:459 300
Материалы:204 691
Дни:7
Перекрытие первого этажа
stdClass Object ( [id] => 7 [attribute_id] => 4 [name] => Деревянные балки [material_modifier] => 1 [work_modifier] => 1 [options] => Array ( [0] => без утепления [1] => утепление 200 мм [2] => утепление 250 мм [3] => утепление 300 мм [4] => утепление 350 мм [5] => утепление 400 мм [6] => утепление 450 мм [7] => утепление 500 мм ) [days] => [8,9,9,9,11,12,13,14] [material_price] => [1634,2042,2344,2947,3149,3652,3354,3557] [work_price] => [1230,1339,1393,1426,1460,1513,1587,1620] [image] => https://akademik-stroy.ru/wp-content/uploads/materials/derevyannye-balki.png [area_modifier] => 79.15 [parent_name] => Перекрытие первого этажа [parent_id] => 4 [material_sum] => 178477 [work_sum] => 111958 [total_sum] => 290435 [total_days] => 8 [display_material_sum] => 178 477 [display_work_sum] => 111 958 [display_total_sum] => 290 435 ) 1
290 435
Работа:111 958
Материалы:178 477
Дни:8
stdClass Object ( [id] => 8 [attribute_id] => 4 [name] => Сборные ж/б плиты [material_modifier] => 1 [work_modifier] => 1 [options] => Array ( [0] => без утепления [1] => утепление 150 мм [2] => утепление 200 мм [3] => утепление 250 мм [4] => утепление 300 мм [5] => утепление 350 мм [6] => утепление 400 мм [7] => утепление 450 мм [8] => утепление 500 мм ) [days] => [13,15,15,15,15,15,15,15,15] [material_price] => [3067,5577,5928,6679,7730,8782,9833,10884,11935] [work_price] => [1520,1956,2102,2247,2392,2537,2684,2829,2974] [image] => https://akademik-stroy.ru/wp-content/uploads/materials/sbornye-zh-b-plity-2.jpg [area_modifier] => 79.15 [parent_name] => Перекрытие первого этажа [parent_id] => 4 [material_sum] => 334999 [work_sum] => 138354 [total_sum] => 473353 [total_days] => 13 [display_material_sum] => 334 999 [display_work_sum] => 138 354 [display_total_sum] => 473 353 ) 1
473 353
Работа:138 354
Материалы:334 999
Дни:13
stdClass Object ( [id] => 89 [attribute_id] => 4 [name] => Монолитная ж/б плита [material_modifier] => 1 [work_modifier] => 1 [options] => Array ( [0] => без утепления [1] => утепление 150 мм [2] => утепление 200 мм [3] => утепление 250 мм [4] => утепление 300 мм [5] => утепление 350 мм [6] => утепление 400 мм [7] => утепление 450 мм [8] => утепление 500 мм ) [days] => [18,20,20,20,20,20,20,20,20] [material_price] => [4837,6572,7224,7375,79426,8177,8728,9180,10031] [work_price] => [3348,3921,4112,4302,4493,4684,4875,5066,5256] [image] => https://akademik-stroy.ru/wp-content/uploads/materials/monolitnaya-zh-b-plita-2.jpg [area_modifier] => 79.15 [parent_name] => Перекрытие первого этажа [parent_id] => 4 [material_sum] => 528331 [work_sum] => 304743 [total_sum] => 833074 [total_days] => 18 [display_material_sum] => 528 331 [display_work_sum] => 304 743 [display_total_sum] => 833 074 ) 1
833 074
Работа:304 743
Материалы:528 331
Дни:18
Стены 2 этаж (несущие)
stdClass Object ( [id] => 10 [attribute_id] => 5 [name] => Пеноблок [material_modifier] => 1 [work_modifier] => 1 [options] => Array ( [0] => 300 мм [1] => 400 мм [2] => 500 мм [3] => 600 мм ) [days] => [29,31,34,39] [material_price] => [3000,4000,4500,4937] [work_price] => [5033,5805,6400,8710] [image] => https://akademik-stroy.ru/wp-content/uploads/materials/penoblok.jpg [area_modifier] => 58.74 [parent_name] => Стены 2 этаж (несущие) [parent_id] => 5 [material_sum] => 243184 [work_sum] => 339984 [total_sum] => 583168 [total_days] => 29 [display_material_sum] => 243 184 [display_work_sum] => 339 984 [display_total_sum] => 583 168 ) 1
583 168
Работа:339 984
Материалы:243 184
Дни:29
stdClass Object ( [id] => 90 [attribute_id] => 5 [name] => Керамический блок [material_modifier] => 1 [work_modifier] => 1 [options] => Array ( [0] => 380 мм [1] => 380 мм Thermo [2] => 440 мм [3] => 510 мм ) [days] => [23,23,24,25] [material_price] => [4510,5098,6093,8013] [work_price] => [4737,4937,5903,6958] [image] => https://akademik-stroy.ru/wp-content/uploads/materials/keramicheskij-blok.jpg [area_modifier] => 58.74 [parent_name] => Стены 2 этаж (несущие) [parent_id] => 5 [material_sum] => 365586 [work_sum] => 319989 [total_sum] => 685575 [total_days] => 23 [display_material_sum] => 365 586 [display_work_sum] => 319 989 [display_total_sum] => 685 575 ) 1
685 575
Работа:319 989
Материалы:365 586
Дни:23
stdClass Object ( [id] => 91 [attribute_id] => 5 [name] => Кирпич [material_modifier] => 1 [work_modifier] => 1 [options] => Array ( [0] => Кирпич 250 мм [1] => Кирпич 380 мм [2] => Кирпич 510 мм [3] => Кирпич 640 мм [4] => Кирпич 770 мм ) [days] => [30,30,31,33,36] [material_price] => [5500,7142,9206,10171,12235] [work_price] => [8736,10041,12018,15240,18462] [image] => https://akademik-stroy.ru/wp-content/uploads/materials/kirpich.jpg [area_modifier] => 58.74 [parent_name] => Стены 2 этаж (несущие) [parent_id] => 5 [material_sum] => 445837 [work_sum] => 590126 [total_sum] => 1035963 [total_days] => 30 [display_material_sum] => 445 837 [display_work_sum] => 590 126 [display_total_sum] => 1 035 963 ) 1
1 035 963
Работа:590 126
Материалы:445 837
Дни:30
stdClass Object ( [id] => 92 [attribute_id] => 5 [name] => Монолитные [material_modifier] => 1 [work_modifier] => 1 [options] => Array ( [0] => 150 мм [1] => 200 мм [2] => 250 мм [3] => 300 мм [4] => 350 мм [5] => 400 мм ) [days] => [45,46,47,49,50,53] [material_price] => [6545,7876,10175,12011,13908,15204] [work_price] => [5106,6444,7698,8552,9807,11461] [image] => https://akademik-stroy.ru/wp-content/uploads/materials/monolitnye.jpg [area_modifier] => 58.74 [parent_name] => Стены 2 этаж (несущие) [parent_id] => 5 [material_sum] => 530546 [work_sum] => 344915 [total_sum] => 875461 [total_days] => 45 [display_material_sum] => 530 546 [display_work_sum] => 344 915 [display_total_sum] => 875 461 ) 1
875 461
Работа:344 915
Материалы:530 546
Дни:45
stdClass Object ( [id] => 93 [attribute_id] => 5 [name] => Клееный брус [material_modifier] => 1 [work_modifier] => 1 [options] => Array ( [0] => 160 мм [1] => 175 мм [2] => 200 мм [3] => 215 мм [4] => 240 мм [5] => 270 мм [6] => 282 мм ) [days] => [24,28,32,37,40,42,48] [material_price] => [16975,18773,19950,20545,21599,22159,23275] [work_price] => [4806,5287,5815,6397,7036,7740,8514] [image] => https://akademik-stroy.ru/wp-content/uploads/materials/kleenyj-brus.jpg [area_modifier] => 58.74 [parent_name] => Стены 2 этаж (несущие) [parent_id] => 5 [material_sum] => 1376014 [work_sum] => 324650 [total_sum] => 1700664 [total_days] => 24 [display_material_sum] => 1 376 014 [display_work_sum] => 324 650 [display_total_sum] => 1 700 664 ) 1
1 700 664
Работа:324 650
Материалы:1 376 014
Дни:24
stdClass Object ( [id] => 94 [attribute_id] => 5 [name] => Каркасные [material_modifier] => 1 [work_modifier] => 1 [options] => Array ( [0] => 150 мм [1] => 200 мм [2] => 250 мм [3] => 300 мм ) [days] => [15,16,17,18] [material_price] => [2379,2639,2898,3258] [work_price] => [2418,2686,2985,3716] [image] => https://akademik-stroy.ru/wp-content/uploads/materials/karkasnye.jpg [area_modifier] => 58.74 [parent_name] => Стены 2 этаж (несущие) [parent_id] => 5 [material_sum] => 192845 [work_sum] => 163338 [total_sum] => 356183 [total_days] => 15 [display_material_sum] => 192 845 [display_work_sum] => 163 338 [display_total_sum] => 356 183 ) 1
356 183
Работа:163 338
Материалы:192 845
Дни:15
stdClass Object ( [id] => 95 [attribute_id] => 5 [name] => СИП-панели [material_modifier] => 1 [work_modifier] => 1 [options] => Array ( [0] => 120 мм [1] => 170 мм [2] => 220 мм ) [days] => [7,7,7] [material_price] => [1210,1856,2292] [work_price] => [1410,1551,1706] [image] => https://akademik-stroy.ru/wp-content/uploads/materials/sip-paneli.jpg [area_modifier] => 58.74 [parent_name] => Стены 2 этаж (несущие) [parent_id] => 5 [material_sum] => 98084 [work_sum] => 95247 [total_sum] => 193331 [total_days] => 7 [display_material_sum] => 98 084 [display_work_sum] => 95 247 [display_total_sum] => 193 331 ) 1
193 331
Работа:95 247
Материалы:98 084
Дни:7
stdClass Object ( [id] => 96 [attribute_id] => 5 [name] => Сухой брус [material_modifier] => 1 [work_modifier] => 1 [options] => Array ( [0] => 150 мм [1] => 180 мм [2] => 200 мм ) [days] => [7,8,9] [material_price] => [6010,7190,8709] [work_price] => [3204,3845,4229] [image] => https://akademik-stroy.ru/wp-content/uploads/materials/suhoj-brus.jpg [area_modifier] => 58.74 [parent_name] => Стены 2 этаж (несущие) [parent_id] => 5 [material_sum] => 487178 [work_sum] => 216433 [total_sum] => 703611 [total_days] => 7 [display_material_sum] => 487 178 [display_work_sum] => 216 433 [display_total_sum] => 703 611 ) 1
703 611
Работа:216 433
Материалы:487 178
Дни:7
stdClass Object ( [id] => 97 [attribute_id] => 5 [name] => Профилированный брус [material_modifier] => 1 [work_modifier] => 1 [options] => Array ( [0] => 150 мм [1] => 180 мм [2] => 200 мм ) [days] => [7,8,9] [material_price] => [8190,9228,10051] [work_price] => [3845,4614,5075] [image] => https://akademik-stroy.ru/wp-content/uploads/materials/profilirovannyj-brus.jpg [area_modifier] => 58.74 [parent_name] => Стены 2 этаж (несущие) [parent_id] => 5 [material_sum] => 663891 [work_sum] => 259734 [total_sum] => 923625 [total_days] => 7 [display_material_sum] => 663 891 [display_work_sum] => 259 734 [display_total_sum] => 923 625 ) 1
923 625
Работа:259 734
Материалы:663 891
Дни:7
stdClass Object ( [id] => 98 [attribute_id] => 5 [name] => Оцилиндрованное бревно [material_modifier] => 1 [work_modifier] => 1 [options] => Array ( [0] => 180 мм [1] => 220 мм [2] => 260 мм [3] => 320 мм ) [days] => [7,8,9,10] [material_price] => [75190,9532,10868,13116] [work_price] => [3845,4691,5535,6863] [image] => https://akademik-stroy.ru/wp-content/uploads/materials/ocilindrovannoe-brevno-1.jpg [area_modifier] => 58.74 [parent_name] => Стены 2 этаж (несущие) [parent_id] => 5 [material_sum] => 6094992 [work_sum] => 259734 [total_sum] => 6354726 [total_days] => 7 [display_material_sum] => 6 094 992 [display_work_sum] => 259 734 [display_total_sum] => 6 354 726 ) 1
6 354 726
Работа:259 734
Материалы:6 094 992
Дни:7
stdClass Object ( [id] => 99 [attribute_id] => 5 [name] => Срубы [material_modifier] => 1 [work_modifier] => 1 [options] => Array ( [0] => 260 мм [1] => 320 мм [2] => 360 мм [3] => 400 мм [4] => 500 мм ) [days] => [7,8,9,10,11] [material_price] => [16175,23709,26314,29069,32167] [work_price] => [4806,5911,6621,7349,9260] [image] => https://akademik-stroy.ru/wp-content/uploads/materials/suhoj-brus.jpg [area_modifier] => 58.74 [parent_name] => Стены 2 этаж (несущие) [parent_id] => 5 [material_sum] => 1311165 [work_sum] => 324650 [total_sum] => 1635815 [total_days] => 7 [display_material_sum] => 1 311 165 [display_work_sum] => 324 650 [display_total_sum] => 1 635 815 ) 1
1 635 815
Работа:324 650
Материалы:1 311 165
Дни:7
stdClass Object ( [id] => 194 [attribute_id] => 5 [name] => Брус [material_modifier] => 1 [work_modifier] => 1 [options] => Array ( [0] => 150 мм [1] => 180 мм [2] => 200 мм ) [days] => [10,13,15] [material_price] => [5127,6152,7367] [work_price] => [1602,1922,2115] [image] => https://akademik-stroy.ru/wp-content/uploads/materials/brus.jpg [area_modifier] => 58.74 [parent_name] => Стены 2 этаж (несущие) [parent_id] => 5 [material_sum] => 415601 [work_sum] => 108217 [total_sum] => 523818 [total_days] => 10 [display_material_sum] => 415 601 [display_work_sum] => 108 217 [display_total_sum] => 523 818 ) 1
523 818
Работа:108 217
Материалы:415 601
Дни:10
stdClass Object ( [id] => 195 [attribute_id] => 5 [name] => Газобетон [material_modifier] => 1 [work_modifier] => 1 [options] => Array ( [0] => 300 мм [1] => 375 мм [2] => 400 мм [3] => 500 мм [4] => 600 мм ) [days] => [29,31,35,37,44] [material_price] => [4298,5573,6356,7288,9119] [work_price] => [4538,5251,5926,6733,7195] [image] => https://akademik-stroy.ru/wp-content/uploads/materials/gazobeton.jpg [area_modifier] => 58.74 [parent_name] => Стены 2 этаж (несущие) [parent_id] => 5 [material_sum] => 348401 [work_sum] => 306546 [total_sum] => 654947 [total_days] => 29 [display_material_sum] => 348 401 [display_work_sum] => 306 546 [display_total_sum] => 654 947 ) 1
654 947
Работа:306 546
Материалы:348 401
Дни:29
stdClass Object ( [id] => 196 [attribute_id] => 5 [name] => Блок [material_modifier] => 1 [work_modifier] => 1 [options] => Array ( [0] => 300 мм [1] => 375 мм [2] => 400 мм [3] => 500 мм [4] => 600 мм ) [days] => [29,31,35,37,44] [material_price] => [2698,3973,4356,6588,7119] [work_price] => [5038,5851,6426,8733,9195] [image] => https://akademik-stroy.ru/wp-content/uploads/materials/blok.jpg [area_modifier] => 58.74 [parent_name] => Стены 2 этаж (несущие) [parent_id] => 5 [material_sum] => 218703 [work_sum] => 340322 [total_sum] => 559025 [total_days] => 29 [display_material_sum] => 218 703 [display_work_sum] => 340 322 [display_total_sum] => 559 025 ) 1
559 025
Работа:340 322
Материалы:218 703
Дни:29
stdClass Object ( [id] => 197 [attribute_id] => 5 [name] => Газосиликатный блок [material_modifier] => 1 [work_modifier] => 1 [options] => Array ( [0] => 300 мм [1] => 375 мм [2] => 400 мм [3] => 500 мм [4] => 600 мм ) [days] => [29,31,35,37,44] [material_price] => [4298,5573,6356,7288,9119] [work_price] => [4538,5251,5926,6733,7195] [image] => https://akademik-stroy.ru/wp-content/uploads/materials/gazosilikatnyj-blok.jpg [area_modifier] => 58.74 [parent_name] => Стены 2 этаж (несущие) [parent_id] => 5 [material_sum] => 348401 [work_sum] => 306546 [total_sum] => 654947 [total_days] => 29 [display_material_sum] => 348 401 [display_work_sum] => 306 546 [display_total_sum] => 654 947 ) 1
654 947
Работа:306 546
Материалы:348 401
Дни:29
stdClass Object ( [id] => 198 [attribute_id] => 5 [name] => Керамзитобетонный блок [material_modifier] => 1 [work_modifier] => 1 [options] => Array ( [0] => 300 мм [1] => 375 мм [2] => 400 мм [3] => 500 мм [4] => 600 мм ) [days] => [23,23,24,25,28] [material_price] => [3641,4298,5693,7613,9612] [work_price] => [5737,5737,6903,7958,8901] [image] => https://akademik-stroy.ru/wp-content/uploads/materials/keramzitobetonnyj-blok.jpg [area_modifier] => 58.74 [parent_name] => Стены 2 этаж (несущие) [parent_id] => 5 [material_sum] => 295144 [work_sum] => 387540 [total_sum] => 682684 [total_days] => 23 [display_material_sum] => 295 144 [display_work_sum] => 387 540 [display_total_sum] => 682 684 ) 1
682 684
Работа:387 540
Материалы:295 144
Дни:23
stdClass Object ( [id] => 199 [attribute_id] => 5 [name] => Деревянные [material_modifier] => 1 [work_modifier] => 1 [options] => Array ( [0] => 180 мм [1] => 220 мм [2] => 260 мм [3] => 320 мм ) [days] => [7,8,9,10] [material_price] => [7950,9458,11961,14472] [work_price] => [4037,4925,5812,7207] [image] => https://akademik-stroy.ru/wp-content/uploads/materials/derevyannye.jpg [area_modifier] => 58.74 [parent_name] => Стены 2 этаж (несущие) [parent_id] => 5 [material_sum] => 644437 [work_sum] => 272703 [total_sum] => 917140 [total_days] => 7 [display_material_sum] => 644 437 [display_work_sum] => 272 703 [display_total_sum] => 917 140 ) 1
917 140
Работа:272 703
Материалы:644 437
Дни:7
stdClass Object ( [id] => 200 [attribute_id] => 5 [name] => Камень [material_modifier] => 1 [work_modifier] => 1 [options] => Array ( [0] => 300 мм [1] => 400 мм [2] => 500 мм [3] => 600 мм ) [days] => [25,27,31,34] [material_price] => [5262,6844,8330,9815] [work_price] => [8331,9135,10427,11069] [image] => https://akademik-stroy.ru/wp-content/uploads/materials/kamen.jpg [area_modifier] => 58.74 [parent_name] => Стены 2 этаж (несущие) [parent_id] => 5 [material_sum] => 426544 [work_sum] => 562767 [total_sum] => 989311 [total_days] => 25 [display_material_sum] => 426 544 [display_work_sum] => 562 767 [display_total_sum] => 989 311 ) 1
989 311
Работа:562 767
Материалы:426 544
Дни:25
stdClass Object ( [id] => 201 [attribute_id] => 5 [name] => Каркасно-щитовые [material_modifier] => 1 [work_modifier] => 1 [options] => Array ( [0] => 150 мм [1] => 200 мм [2] => 250 мм [3] => 300 мм [4] => 350 мм [5] => 400 мм ) [days] => [15,16,17,18,19,20] [material_price] => [2379,2639,2898,3458,3601,4175] [work_price] => [2538,2820,3134,3483,4062,5642] [image] => https://akademik-stroy.ru/wp-content/uploads/materials/karkasno-shchitovye.jpg [area_modifier] => 58.74 [parent_name] => Стены 2 этаж (несущие) [parent_id] => 5 [material_sum] => 192845 [work_sum] => 171444 [total_sum] => 364289 [total_days] => 15 [display_material_sum] => 192 845 [display_work_sum] => 171 444 [display_total_sum] => 364 289 ) 1
364 289
Работа:171 444
Материалы:192 845
Дни:15
stdClass Object ( [id] => 202 [attribute_id] => 5 [name] => Рубленные [material_modifier] => 1 [work_modifier] => 1 [options] => Array ( [0] => 150 мм [1] => 200 мм [2] => 250 мм [3] => 300 мм [4] => 350 мм [5] => 400 мм ) [days] => [15,16,17,18,17,18] [material_price] => [35950,50267,60583,75900,80217,100533] [work_price] => [9612,12816,16020,19224,22428,25632] [image] => https://akademik-stroy.ru/wp-content/uploads/materials/rublennye.jpg [area_modifier] => 58.74 [parent_name] => Стены 2 этаж (несущие) [parent_id] => 5 [material_sum] => 2914150 [work_sum] => 649300 [total_sum] => 3563450 [total_days] => 15 [display_material_sum] => 2 914 150 [display_work_sum] => 649 300 [display_total_sum] => 3 563 450 ) 1
3 563 450
Работа:649 300
Материалы:2 914 150
Дни:15
stdClass Object ( [id] => 203 [attribute_id] => 5 [name] => Теплоблок [material_modifier] => 1 [work_modifier] => 1 [options] => Array ( [0] => 300 мм (с облицовкой, не покрашенный) [1] => 400 мм (с облицовкой, не покрашенный) [2] => 300 мм (с облицовкой, покрашенный) [3] => 400 мм (с облицовкой, покрашенный) ) [days] => [15,16,15,16] [material_price] => [2888,3729,3957,4258] [work_price] => [2564,3229,2949,3713] [image] => https://akademik-stroy.ru/wp-content/uploads/materials/teploblok.jpg [area_modifier] => 58.74 [parent_name] => Стены 2 этаж (несущие) [parent_id] => 5 [material_sum] => 234105 [work_sum] => 173201 [total_sum] => 407306 [total_days] => 15 [display_material_sum] => 234 105 [display_work_sum] => 173 201 [display_total_sum] => 407 306 ) 1
407 306
Работа:173 201
Материалы:234 105
Дни:15
stdClass Object ( [id] => 204 [attribute_id] => 5 [name] => Арболитовые блоки [material_modifier] => 1 [work_modifier] => 1 [options] => Array ( [0] => 300 мм [1] => 400 мм [2] => 600 мм ) [days] => [19,22,27] [material_price] => [3210,4475,5852] [work_price] => [4214,4788,5866] [image] => https://akademik-stroy.ru/wp-content/uploads/materials/arbolitovye-bloki.png [area_modifier] => 58.74 [parent_name] => Стены 2 этаж (несущие) [parent_id] => 5 [material_sum] => 260206 [work_sum] => 284660 [total_sum] => 544866 [total_days] => 19 [display_material_sum] => 260 206 [display_work_sum] => 284 660 [display_total_sum] => 544 866 ) 1
544 866
Работа:284 660
Материалы:260 206
Дни:19
stdClass Object ( [id] => 205 [attribute_id] => 5 [name] => Полистиролбетон [material_modifier] => 1 [work_modifier] => 1 [options] => Array ( [0] => 300 мм [1] => 400 мм [2] => 600 мм ) [days] => [29,31,35] [material_price] => [2798,4573,5256] [work_price] => [5038,5851,6426] [image] => https://akademik-stroy.ru/wp-content/uploads/materials/polistirolbeton.jpg [area_modifier] => 58.74 [parent_name] => Стены 2 этаж (несущие) [parent_id] => 5 [material_sum] => 226809 [work_sum] => 340322 [total_sum] => 567131 [total_days] => 29 [display_material_sum] => 226 809 [display_work_sum] => 340 322 [display_total_sum] => 567 131 ) 1
567 131
Работа:340 322
Материалы:226 809
Дни:29
stdClass Object ( [id] => 206 [attribute_id] => 5 [name] => Шлакоблок [material_modifier] => 1 [work_modifier] => 1 [options] => Array ( [0] => 400 мм [1] => 600 мм ) [days] => [15,16] [material_price] => [2391,3471] [work_price] => [2642,3662] [image] => https://akademik-stroy.ru/wp-content/uploads/materials/shlakoblok.jpg [area_modifier] => 58.74 [parent_name] => Стены 2 этаж (несущие) [parent_id] => 5 [material_sum] => 193817 [work_sum] => 178470 [total_sum] => 372287 [total_days] => 15 [display_material_sum] => 193 817 [display_work_sum] => 178 470 [display_total_sum] => 372 287 ) 1
372 287
Работа:178 470
Материалы:193 817
Дни:15
stdClass Object ( [id] => 245 [attribute_id] => 5 [name] => Теплая керамика [material_modifier] => 1 [work_modifier] => 1 [options] => Array ( [0] => 380 мм [1] => 380 мм Thermo [2] => 440 мм [3] => 510 мм ) [days] => [10,10,11,12] [material_price] => [4510,5098,6093,8013] [work_price] => [4737,4937,5903,6958] [image] => https://akademik-stroy.ru/wp-content/uploads/materials/teplaya-keramika.jpg [area_modifier] => 58.74 [parent_name] => Стены 2 этаж (несущие) [parent_id] => 5 [material_sum] => 365586 [work_sum] => 319989 [total_sum] => 685575 [total_days] => 10 [display_material_sum] => 365 586 [display_work_sum] => 319 989 [display_total_sum] => 685 575 ) 1
685 575
Работа:319 989
Материалы:365 586
Дни:10
stdClass Object ( [id] => 246 [attribute_id] => 5 [name] => Несъемная опалубка [material_modifier] => 1 [work_modifier] => 1 [options] => Array ( [0] => 380 мм [1] => 380 мм Thermo [2] => 440 мм [3] => 510 мм ) [days] => [10,10,11,12] [material_price] => [3302,3902,4108,5008] [work_price] => [2100,2100,2300,2534] [image] => https://akademik-stroy.ru/wp-content/uploads/materials/nesemnaya-opalubka.jpg [area_modifier] => 58.74 [parent_name] => Стены 2 этаж (несущие) [parent_id] => 5 [material_sum] => 267664 [work_sum] => 141857 [total_sum] => 409521 [total_days] => 10 [display_material_sum] => 267 664 [display_work_sum] => 141 857 [display_total_sum] => 409 521 ) 1
409 521
Работа:141 857
Материалы:267 664
Дни:10
stdClass Object ( [id] => 254 [attribute_id] => 5 [name] => Бревно [material_modifier] => 1 [work_modifier] => 1 [options] => Array ( [0] => 260 мм [1] => 320 мм [2] => 360 мм [3] => 400 мм [4] => 500 мм ) [days] => [7,8,9,10,11] [material_price] => [1874,24045,26930,30972,38825] [work_price] => [5046,6207,6952,7716,9723] [image] => https://akademik-stroy.ru/wp-content/uploads/materials/sruby.jpg [area_modifier] => 58.74 [parent_name] => Стены 2 этаж (несущие) [parent_id] => 5 [material_sum] => 151909 [work_sum] => 340862 [total_sum] => 492771 [total_days] => 7 [display_material_sum] => 151 909 [display_work_sum] => 340 862 [display_total_sum] => 492 771 ) 1
492 771
Работа:340 862
Материалы:151 909
Дни:7
Крыша (Скатная)
stdClass Object ( [id] => 164 [attribute_id] => 37 [name] => Металлочерепица [material_modifier] => 1 [work_modifier] => 1 [options] => Array ( ) [days] => [20] [material_price] => [6112] [work_price] => [5726] [image] => https://akademik-stroy.ru/wp-content/uploads/materials/metallocherepica.jpg [area_modifier] => 79.15 [parent_name] => Крыша (Скатная) [parent_id] => 37 [material_sum] => 667595 [work_sum] => 521195 [total_sum] => 1188790 [total_days] => 20 [display_material_sum] => 667 595 [display_work_sum] => 521 195 [display_total_sum] => 1 188 790 ) 1
1 188 790
Работа:521 195
Материалы:667 595
Дни:20
stdClass Object ( [id] => 165 [attribute_id] => 37 [name] => Гибкая черепица [material_modifier] => 1 [work_modifier] => 1 [options] => Array ( ) [days] => [20] [material_price] => [6980] [work_price] => [5950] [image] => https://akademik-stroy.ru/wp-content/uploads/materials/gibkaya-cherepica.jpg [area_modifier] => 79.15 [parent_name] => Крыша (Скатная) [parent_id] => 37 [material_sum] => 762404 [work_sum] => 541584 [total_sum] => 1303988 [total_days] => 20 [display_material_sum] => 762 404 [display_work_sum] => 541 584 [display_total_sum] => 1 303 988 ) 1
1 303 988
Работа:541 584
Материалы:762 404
Дни:20
stdClass Object ( [id] => 166 [attribute_id] => 37 [name] => Цементно-песчаная черепица [material_modifier] => 1 [work_modifier] => 1 [options] => Array ( ) [days] => [20] [material_price] => [10560] [work_price] => [9456] [image] => https://akademik-stroy.ru/wp-content/uploads/materials/cementno-peschanaya-cherepica.jpg [area_modifier] => 79.15 [parent_name] => Крыша (Скатная) [parent_id] => 37 [material_sum] => 1153437 [work_sum] => 860709 [total_sum] => 2014146 [total_days] => 20 [display_material_sum] => 1 153 437 [display_work_sum] => 860 709 [display_total_sum] => 2 014 146 ) 1
2 014 146
Работа:860 709
Материалы:1 153 437
Дни:20
stdClass Object ( [id] => 167 [attribute_id] => 37 [name] => Композитная черепица [material_modifier] => 1 [work_modifier] => 1 [options] => Array ( ) [days] => [20] [material_price] => [9506] [work_price] => [8905] [image] => https://akademik-stroy.ru/wp-content/uploads/materials/kompozitnaya-cherepica.jpg [area_modifier] => 79.15 [parent_name] => Крыша (Скатная) [parent_id] => 37 [material_sum] => 1038312 [work_sum] => 810555 [total_sum] => 1848867 [total_days] => 20 [display_material_sum] => 1 038 312 [display_work_sum] => 810 555 [display_total_sum] => 1 848 867 ) 1
1 848 867
Работа:810 555
Материалы:1 038 312
Дни:20
stdClass Object ( [id] => 168 [attribute_id] => 37 [name] => Керамическая черепица [material_modifier] => 1 [work_modifier] => 1 [options] => Array ( ) [days] => [20] [material_price] => [12750] [work_price] => [9456] [image] => https://akademik-stroy.ru/wp-content/uploads/materials/keramicheskaya-cherepica.jpg [area_modifier] => 79.15 [parent_name] => Крыша (Скатная) [parent_id] => 37 [material_sum] => 1392644 [work_sum] => 860709 [total_sum] => 2253353 [total_days] => 20 [display_material_sum] => 1 392 644 [display_work_sum] => 860 709 [display_total_sum] => 2 253 353 ) 1
2 253 353
Работа:860 709
Материалы:1 392 644
Дни:20
stdClass Object ( [id] => 169 [attribute_id] => 37 [name] => Металлическая фальцевая [material_modifier] => 1 [work_modifier] => 1 [options] => Array ( ) [days] => [20] [material_price] => [8550] [work_price] => [8190] [image] => https://akademik-stroy.ru/wp-content/uploads/materials/metallicheskaya-falcevaya.jpg [area_modifier] => 79.15 [parent_name] => Крыша (Скатная) [parent_id] => 37 [material_sum] => 933891 [work_sum] => 745474 [total_sum] => 1679365 [total_days] => 20 [display_material_sum] => 933 891 [display_work_sum] => 745 474 [display_total_sum] => 1 679 365 ) 1
1 679 365
Работа:745 474
Материалы:933 891
Дни:20
stdClass Object ( [id] => 170 [attribute_id] => 37 [name] => Медная фальцевая [material_modifier] => 1 [work_modifier] => 1 [options] => Array ( ) [days] => [20] [material_price] => [20450] [work_price] => [16750] [image] => https://akademik-stroy.ru/wp-content/uploads/materials/mednaya-falcevaya.jpg [area_modifier] => 79.15 [parent_name] => Крыша (Скатная) [parent_id] => 37 [material_sum] => 2233692 [work_sum] => 1524627 [total_sum] => 3758319 [total_days] => 20 [display_material_sum] => 2 233 692 [display_work_sum] => 1 524 627 [display_total_sum] => 3 758 319 ) 1
3 758 319
Работа:1 524 627
Материалы:2 233 692
Дни:20
stdClass Object ( [id] => 171 [attribute_id] => 37 [name] => Зеленая кровля [material_modifier] => 1 [work_modifier] => 1 [options] => Array ( ) [days] => [20] [material_price] => [19850] [work_price] => [16780] [image] => https://akademik-stroy.ru/wp-content/uploads/materials/zelenaya-krovlya.jpg [area_modifier] => 79.15 [parent_name] => Крыша (Скатная) [parent_id] => 37 [material_sum] => 2168156 [work_sum] => 1527358 [total_sum] => 3695514 [total_days] => 20 [display_material_sum] => 2 168 156 [display_work_sum] => 1 527 358 [display_total_sum] => 3 695 514 ) 1
3 695 514
Работа:1 527 358
Материалы:2 168 156
Дни:20
stdClass Object ( [id] => 172 [attribute_id] => 37 [name] => Профлист [material_modifier] => 1 [work_modifier] => 1 [options] => Array ( ) [days] => [20] [material_price] => [3450] [work_price] => [3750] [image] => https://akademik-stroy.ru/wp-content/uploads/materials/proflist.jpg [area_modifier] => 79.15 [parent_name] => Крыша (Скатная) [parent_id] => 37 [material_sum] => 376833 [work_sum] => 341334 [total_sum] => 718167 [total_days] => 20 [display_material_sum] => 376 833 [display_work_sum] => 341 334 [display_total_sum] => 718 167 ) 1
718 167
Работа:341 334
Материалы:376 833
Дни:20
Окна
stdClass Object ( [id] => 51 [attribute_id] => 26 [name] => Есть [material_modifier] => 1 [work_modifier] => 1 [options] => Array ( [0] => Профиль 58 мм, 3-камерный, стеклопакет 2-камерный до 32 мм [1] => Профиль 60 мм, 4-камерный, стеклопакет 2-камерный до 32 мм [2] => Профиль 70 мм, 5-камерный, стеклопакет 2-камерный до 40 мм [3] => Профиль 72 мм, 5-камерный, стеклопакет 2-камерный до 40 мм [4] => Алюминиевые окна Alutech профиль 72 мм, стеклопакет 2-камерный ) [days] => [3,3,3,3,3] [material_price] => [1339,2124,2867,3023,29596] [work_price] => [635,647,659,668,2579] [image] => https://akademik-stroy.ru/wp-content/uploads/materials/okna.jpg [area_modifier] => 111.9 [parent_name] => Окна [parent_id] => 26 [material_sum] => 206771 [work_sum] => 81715 [total_sum] => 288486 [total_days] => 3 [display_material_sum] => 206 771 [display_work_sum] => 81 715 [display_total_sum] => 288 486 ) 1
288 486
Работа:81 715
Материалы:206 771
Дни:3
stdClass Object ( [id] => 52 [attribute_id] => 26 [name] => Нет [material_modifier] => 2 [work_modifier] => 1 [options] => [days] => null [material_price] => null [work_price] => null [image] => https://akademik-stroy.ru/wp-content/uploads/materials/okna.jpg [area_modifier] => 111.9 [parent_name] => Окна [parent_id] => 26 [material_sum] => 0 [work_sum] => 0 [total_sum] => 0 [total_days] => 0 [display_material_sum] => 0 [display_work_sum] => 0 [display_total_sum] => 0 ) 1
0
Работа:0
Материалы:0
Дни:0
Двери входные
stdClass Object ( [id] => 53 [attribute_id] => 27 [name] => Есть [material_modifier] => 1 [work_modifier] => 1 [options] => Array ( ) [days] => [1] [material_price] => [10000] [work_price] => [5500] [image] => https://akademik-stroy.ru/wp-content/uploads/materials/dveri.jpg [area_modifier] => 1 [parent_name] => Двери входные [parent_id] => 27 [material_sum] => 13800 [work_sum] => 6325 [total_sum] => 20125 [total_days] => 1 [display_material_sum] => 13 800 [display_work_sum] => 6 325 [display_total_sum] => 20 125 ) 1
20 125
Работа:6 325
Материалы:13 800
Дни:1
stdClass Object ( [id] => 54 [attribute_id] => 27 [name] => Нет [material_modifier] => 1 [work_modifier] => 1 [options] => Array ( ) [days] => [0] [material_price] => [0] [work_price] => [0] [image] => https://akademik-stroy.ru/wp-content/uploads/materials/dveri.jpg [area_modifier] => 1 [parent_name] => Двери входные [parent_id] => 27 [material_sum] => 0 [work_sum] => 0 [total_sum] => 0 [total_days] => 0 [display_material_sum] => 0 [display_work_sum] => 0 [display_total_sum] => 0 ) 1
0
Работа:0
Материалы:0
Дни:0
Утепление кровли (Мансарда)
stdClass Object ( [id] => 25 [attribute_id] => 13 [name] => Нет [material_modifier] => 1 [work_modifier] => 1 [options] => Array ( ) [days] => [0] [material_price] => [0] [work_price] => [0] [image] => https://akademik-stroy.ru/wp-content/uploads/materials/mineralovata-krov.jpg [area_modifier] => 79.15 [parent_name] => Утепление кровли (Мансарда) [parent_id] => 13 [material_sum] => 0 [work_sum] => 0 [total_sum] => 0 [total_days] => 0 [display_material_sum] => 0 [display_work_sum] => 0 [display_total_sum] => 0 ) 1
0
Работа:0
Материалы:0
Дни:0
stdClass Object ( [id] => 26 [attribute_id] => 13 [name] => Минераловатный [material_modifier] => 1 [work_modifier] => 1 [options] => Array ( [0] => 50 мм [1] => 100 мм [2] => 150 мм [3] => 200 мм [4] => 250 мм [5] => 300 мм [6] => 350 мм [7] => 400 мм [8] => 450 мм [9] => 500 мм ) [days] => [5,5,6,6,6,7,7,7,8,8] [material_price] => [1158,1414,1772,2230,3602,4060,4974,5890,6408,7718] [work_price] => [650,846,846,1098,1318,1450,1596,1754,1930,2122] [image] => https://akademik-stroy.ru/wp-content/uploads/materials/mineralovata-krov.jpg [area_modifier] => 79.15 [parent_name] => Утепление кровли (Мансарда) [parent_id] => 13 [material_sum] => 126485 [work_sum] => 59165 [total_sum] => 185650 [total_days] => 5 [display_material_sum] => 126 485 [display_work_sum] => 59 165 [display_total_sum] => 185 650 ) 1
185 650
Работа:59 165
Материалы:126 485
Дни:5
stdClass Object ( [id] => 123 [attribute_id] => 13 [name] => Эковата (целлюлозная вата) [material_modifier] => 1 [work_modifier] => 1 [options] => Array ( [0] => 50 мм [1] => 100 мм [2] => 150 мм [3] => 200 мм [4] => 250 мм [5] => 300 мм [6] => 350 мм [7] => 400 мм [8] => 450 мм [9] => 500 мм ) [days] => [3,3,4,4,4,5,5,5,5,5] [material_price] => [820,1638,2458,3276,5734,6552,8190,9828,11466,13104] [work_price] => [234,304,304,396,474,522,574,632,694,764] [image] => https://akademik-stroy.ru/wp-content/uploads/materials/ehkovata-krov.jpg [area_modifier] => 79.15 [parent_name] => Утепление кровли (Мансарда) [parent_id] => 13 [material_sum] => 89566 [work_sum] => 21299 [total_sum] => 110865 [total_days] => 3 [display_material_sum] => 89 566 [display_work_sum] => 21 299 [display_total_sum] => 110 865 ) 1
110 865
Работа:21 299
Материалы:89 566
Дни:3
stdClass Object ( [id] => 124 [attribute_id] => 13 [name] => Экструдированный пенополистирол [material_modifier] => 1 [work_modifier] => 1 [options] => Array ( [0] => 50 мм [1] => 100 мм [2] => 150 мм [3] => 200 мм [4] => 250 мм [5] => 300 мм [6] => 350 мм [7] => 400 мм [8] => 450 мм [9] => 500 мм ) [days] => [3,3,4,4,4,5,5,5,5,6] [material_price] => [1146,2292,3438,4584,8020,9166,11458,13750,16040,18332] [work_price] => [390,508,508,660,790,870,958,1052,1158,1274] [image] => https://akademik-stroy.ru/wp-content/uploads/materials/epps-krov.jpg [area_modifier] => 79.15 [parent_name] => Утепление кровли (Мансарда) [parent_id] => 13 [material_sum] => 125174 [work_sum] => 35499 [total_sum] => 160673 [total_days] => 3 [display_material_sum] => 125 174 [display_work_sum] => 35 499 [display_total_sum] => 160 673 ) 1
160 673
Работа:35 499
Материалы:125 174
Дни:3
stdClass Object ( [id] => 125 [attribute_id] => 13 [name] => ПСБ (ППС-пенополистирол) [material_modifier] => 1 [work_modifier] => 1 [options] => Array ( [0] => 50 мм [1] => 100 мм [2] => 150 мм [3] => 200 мм [4] => 250 мм [5] => 300 мм [6] => 350 мм [7] => 400 мм [8] => 450 мм [9] => 500 мм ) [days] => [3,3,4,4,4,5,5,5,5,6] [material_price] => [476,954,1430,1906,3336,3814,4766,5720,6674,7626] [work_price] => [390,508,508,660,790,870,958,1052,1158,1274] [image] => https://akademik-stroy.ru/wp-content/uploads/materials/psb-krov.jpg [area_modifier] => 79.15 [parent_name] => Утепление кровли (Мансарда) [parent_id] => 13 [material_sum] => 51992 [work_sum] => 35499 [total_sum] => 87491 [total_days] => 3 [display_material_sum] => 51 992 [display_work_sum] => 35 499 [display_total_sum] => 87 491 ) 1
87 491
Работа:35 499
Материалы:51 992
Дни:3
stdClass Object ( [id] => 126 [attribute_id] => 13 [name] => ППУ (Пенополиуретан) [material_modifier] => 1 [work_modifier] => 1 [options] => Array ( [0] => 50 мм [1] => 100 мм [2] => 150 мм [3] => 200 мм [4] => 250 мм [5] => 300 мм [6] => 350 мм [7] => 400 мм [8] => 450 мм [9] => 500 мм ) [days] => [2,2,3,3,3,3,4,4,4,4] [material_price] => [2080,4160,6240,8320,14560,16640,20800,24960,29120,33280] [work_price] => [234,304,304,396,474,522,574,632,694,764] [image] => https://akademik-stroy.ru/wp-content/uploads/materials/ppu-krov.jpg [area_modifier] => 79.15 [parent_name] => Утепление кровли (Мансарда) [parent_id] => 13 [material_sum] => 227192 [work_sum] => 21299 [total_sum] => 248491 [total_days] => 2 [display_material_sum] => 227 192 [display_work_sum] => 21 299 [display_total_sum] => 248 491 ) 1
248 491
Работа:21 299
Материалы:227 192
Дни:2
stdClass Object ( [id] => 127 [attribute_id] => 13 [name] => PIR-плиты (пенополиизоцианурат) [material_modifier] => 1 [work_modifier] => 1 [options] => Array ( [0] => 50 мм [1] => 100 мм [2] => 150 мм [3] => 200 мм [4] => 250 мм [5] => 300 мм [6] => 350 мм [7] => 400 мм [8] => 450 мм [9] => 500 мм ) [days] => [3,3,4,4,4,5,5,5,5,6] [material_price] => [2646,5290,7936,10580,18516,21162,26452,31742,37032,42324] [work_price] => [390,508,508,660,790,870,958,1052,1158,1274] [image] => https://akademik-stroy.ru/wp-content/uploads/materials/pir-krov.jpg [area_modifier] => 79.15 [parent_name] => Утепление кровли (Мансарда) [parent_id] => 13 [material_sum] => 289015 [work_sum] => 35499 [total_sum] => 324514 [total_days] => 3 [display_material_sum] => 289 015 [display_work_sum] => 35 499 [display_total_sum] => 324 514 ) 1
324 514
Работа:35 499
Материалы:289 015
Дни:3
Мансардные окна
stdClass Object ( [id] => 27 [attribute_id] => 14 [name] => Нет [material_modifier] => 1 [work_modifier] => 1 [options] => Array ( ) [days] => [0] [material_price] => [0] [work_price] => [0] [image] => https://akademik-stroy.ru/wp-content/uploads/materials/mansardnye-okna-2.jpg [area_modifier] => 1 [parent_name] => Мансардные окна [parent_id] => 14 [material_sum] => 0 [work_sum] => 0 [total_sum] => 0 [total_days] => 0 [display_material_sum] => 0 [display_work_sum] => 0 [display_total_sum] => 0 ) 1
0
Работа:0
Материалы:0
Дни:0
stdClass Object ( [id] => 28 [attribute_id] => 14 [name] => Есть [material_modifier] => 1 [work_modifier] => 1 [options] => Array ( [0] => 55x78 [1] => 55x98 ) [days] => [6,7] [material_price] => [47480,68700] [work_price] => [17900,19500] [image] => https://akademik-stroy.ru/wp-content/uploads/materials/mansardnye-okna-2.jpg [area_modifier] => 1 [parent_name] => Мансардные окна [parent_id] => 14 [material_sum] => 65522 [work_sum] => 20585 [total_sum] => 86107 [total_days] => 6 [display_material_sum] => 65 522 [display_work_sum] => 20 585 [display_total_sum] => 86 107 ) 1
86 107
Работа:20 585
Материалы:65 522
Дни:6
Подшивка кровли
stdClass Object ( [id] => 29 [attribute_id] => 15 [name] => Нет [material_modifier] => 1 [work_modifier] => 1 [options] => Array ( ) [days] => [0] [material_price] => [0] [work_price] => [0] [image] => https://akademik-stroy.ru/wp-content/uploads/materials/sofit.jpg [area_modifier] => 79.15 [parent_name] => Подшивка кровли [parent_id] => 15 [material_sum] => 0 [work_sum] => 0 [total_sum] => 0 [total_days] => 0 [display_material_sum] => 0 [display_work_sum] => 0 [display_total_sum] => 0 ) 1
0
Работа:0
Материалы:0
Дни:0
stdClass Object ( [id] => 30 [attribute_id] => 15 [name] => Есть [material_modifier] => 1 [work_modifier] => 1 [options] => Array ( [0] => Софиты (ПВХ) [1] => Cedral [2] => ДПК [3] => Планкен ) [days] => [7,10,9,8] [material_price] => [1803,3213,3025,3150] [work_price] => [1529,2188,2075,1923] [image] => https://akademik-stroy.ru/wp-content/uploads/materials/sofit.jpg [area_modifier] => 79.15 [parent_name] => Подшивка кровли [parent_id] => 15 [material_sum] => 196936 [work_sum] => 139173 [total_sum] => 336109 [total_days] => 7 [display_material_sum] => 196 936 [display_work_sum] => 139 173 [display_total_sum] => 336 109 ) 1
336 109
Работа:139 173
Материалы:196 936
Дни:7
Водосточная система
stdClass Object ( [id] => 31 [attribute_id] => 16 [name] => Нет [material_modifier] => 1 [work_modifier] => 1 [options] => Array ( ) [days] => [0] [material_price] => [0] [work_price] => [0] [image] => https://akademik-stroy.ru/wp-content/uploads/materials/docke-standard-pvh.jpg [area_modifier] => 79.15 [parent_name] => Водосточная система [parent_id] => 16 [material_sum] => 0 [work_sum] => 0 [total_sum] => 0 [total_days] => 0 [display_material_sum] => 0 [display_work_sum] => 0 [display_total_sum] => 0 ) 1
0
Работа:0
Материалы:0
Дни:0
stdClass Object ( [id] => 32 [attribute_id] => 16 [name] => Есть [material_modifier] => 1 [work_modifier] => 1 [options] => Array ( [0] => Döcke Standard (ПВХ) [1] => Металлические Grand Line ) [days] => [7,7] [material_price] => [1842,2703] [work_price] => [1491,1529] [image] => https://akademik-stroy.ru/wp-content/uploads/materials/docke-standard-pvh.jpg [area_modifier] => 79.15 [parent_name] => Водосточная система [parent_id] => 16 [material_sum] => 201196 [work_sum] => 135715 [total_sum] => 336911 [total_days] => 7 [display_material_sum] => 201 196 [display_work_sum] => 135 715 [display_total_sum] => 336 911 ) 1
336 911
Работа:135 715
Материалы:201 196
Дни:7
Дополнительное утепление наружных стен
stdClass Object ( [id] => 33 [attribute_id] => 17 [name] => Нет [material_modifier] => 1 [work_modifier] => 1 [options] => Array ( ) [days] => [0] [material_price] => [0] [work_price] => [0] [image] => https://akademik-stroy.ru/wp-content/uploads/materials/mineralovata.jpg [area_modifier] => 137.89 [parent_name] => Дополнительное утепление наружных стен [parent_id] => 17 [material_sum] => 0 [work_sum] => 0 [total_sum] => 0 [total_days] => 0 [display_material_sum] => 0 [display_work_sum] => 0 [display_total_sum] => 0 ) 1
0
Работа:0
Материалы:0
Дни:0
stdClass Object ( [id] => 34 [attribute_id] => 17 [name] => Минераловатный [material_modifier] => 1 [work_modifier] => 1 [options] => Array ( [0] => 50 мм [1] => 100 мм [2] => 150 мм [3] => 200 мм [4] => 250 мм [5] => 300 мм ) [days] => [7,8,10,12,14,15] [material_price] => [3437,3613,3803,3915,4601,4830] [work_price] => [2325,2423,2523,2749,2859,3025] [image] => https://akademik-stroy.ru/wp-content/uploads/materials/mineralovata.jpg [area_modifier] => 137.89 [parent_name] => Дополнительное утепление наружных стен [parent_id] => 17 [material_sum] => 654021 [work_sum] => 368683 [total_sum] => 1022704 [total_days] => 7 [display_material_sum] => 654 021 [display_work_sum] => 368 683 [display_total_sum] => 1 022 704 ) 1
1 022 704
Работа:368 683
Материалы:654 021
Дни:7
stdClass Object ( [id] => 128 [attribute_id] => 17 [name] => Эковата (целлюлозная вата) [material_modifier] => 1 [work_modifier] => 1 [options] => Array ( [0] => 50 мм [1] => 100 мм [2] => 150 мм [3] => 200 мм [4] => 250 мм [5] => 300 мм ) [days] => [3,4,5,6,7,8] [material_price] => [810,1319,1629,1838,2267,2676] [work_price] => [1225,1323,1423,1549,1659,1725] [image] => https://akademik-stroy.ru/wp-content/uploads/materials/ehkovata.jpg [area_modifier] => 137.89 [parent_name] => Дополнительное утепление наружных стен [parent_id] => 17 [material_sum] => 154133 [work_sum] => 194253 [total_sum] => 348386 [total_days] => 3 [display_material_sum] => 154 133 [display_work_sum] => 194 253 [display_total_sum] => 348 386 ) 1
348 386
Работа:194 253
Материалы:154 133
Дни:3
stdClass Object ( [id] => 129 [attribute_id] => 17 [name] => Экструдированный пенополистирол [material_modifier] => 1 [work_modifier] => 1 [options] => Array ( [0] => 50 мм [1] => 100 мм [2] => 150 мм [3] => 200 мм [4] => 250 мм [5] => 300 мм ) [days] => [5,6,7,8,9,10] [material_price] => [4560,4300,5119,6292,7010,8583] [work_price] => [1795,1954,2254,2330,2595,2735] [image] => https://akademik-stroy.ru/wp-content/uploads/materials/epps.jpg [area_modifier] => 137.89 [parent_name] => Дополнительное утепление наружных стен [parent_id] => 17 [material_sum] => 867714 [work_sum] => 284639 [total_sum] => 1152353 [total_days] => 5 [display_material_sum] => 867 714 [display_work_sum] => 284 639 [display_total_sum] => 1 152 353 ) 1
1 152 353
Работа:284 639
Материалы:867 714
Дни:5
stdClass Object ( [id] => 130 [attribute_id] => 17 [name] => ПСБ (ППС-пенополистирол) [material_modifier] => 1 [work_modifier] => 1 [options] => Array ( [0] => 50 мм [1] => 100 мм [2] => 150 мм [3] => 200 мм [4] => 250 мм [5] => 300 мм ) [days] => [5,6,7,8,9,10] [material_price] => [4822,5200,5819,6292,7010,7583] [work_price] => [1795,1954,2254,2330,2595,2735] [image] => https://akademik-stroy.ru/wp-content/uploads/materials/psb.jpg [area_modifier] => 137.89 [parent_name] => Дополнительное утепление наружных стен [parent_id] => 17 [material_sum] => 917570 [work_sum] => 284639 [total_sum] => 1202209 [total_days] => 5 [display_material_sum] => 917 570 [display_work_sum] => 284 639 [display_total_sum] => 1 202 209 ) 1
1 202 209
Работа:284 639
Материалы:917 570
Дни:5
stdClass Object ( [id] => 131 [attribute_id] => 17 [name] => ППУ (Пенополиуретан) [material_modifier] => 1 [work_modifier] => 1 [options] => Array ( [0] => 50 мм [1] => 100 мм [2] => 150 мм [3] => 200 мм [4] => 250 мм [5] => 300 мм ) [days] => [3,4,5,6,7,8] [material_price] => [2860,3400,4219,4592,5010,5583] [work_price] => [729,900,980,1120,1280,1530] [image] => https://akademik-stroy.ru/wp-content/uploads/materials/ppu.jpg [area_modifier] => 137.89 [parent_name] => Дополнительное утепление наружных стен [parent_id] => 17 [material_sum] => 544224 [work_sum] => 115600 [total_sum] => 659824 [total_days] => 3 [display_material_sum] => 544 224 [display_work_sum] => 115 600 [display_total_sum] => 659 824 ) 1
659 824
Работа:115 600
Материалы:544 224
Дни:3
stdClass Object ( [id] => 132 [attribute_id] => 17 [name] => PIR-плиты (пенополиизоцианурат) [material_modifier] => 1 [work_modifier] => 1 [options] => Array ( [0] => 50 мм [1] => 100 мм [2] => 150 мм [3] => 200 мм [4] => 250 мм [5] => 300 мм ) [days] => [5,6,7,8,9,10] [material_price] => [8323,15645,20968,25900,29258,30581] [work_price] => [800,900,970,1150,1280,1330] [image] => https://akademik-stroy.ru/wp-content/uploads/materials/pir.jpg [area_modifier] => 137.89 [parent_name] => Дополнительное утепление наружных стен [parent_id] => 17 [material_sum] => 1583769 [work_sum] => 126859 [total_sum] => 1710628 [total_days] => 5 [display_material_sum] => 1 583 769 [display_work_sum] => 126 859 [display_total_sum] => 1 710 628 ) 1
1 710 628
Работа:126 859
Материалы:1 583 769
Дни:5
Наружная отделка фасада
stdClass Object ( [id] => 37 [attribute_id] => 19 [name] => Нет [material_modifier] => 1 [work_modifier] => 1 [options] => Array ( ) [days] => [0] [material_price] => [0] [work_price] => [0] [image] => https://akademik-stroy.ru/wp-content/uploads/materials/imitaciya-brusa.jpg [area_modifier] => 137.89 [parent_name] => Наружная отделка фасада [parent_id] => 19 [material_sum] => 0 [work_sum] => 0 [total_sum] => 0 [total_days] => 0 [display_material_sum] => 0 [display_work_sum] => 0 [display_total_sum] => 0 ) 1
0
Работа:0
Материалы:0
Дни:0
stdClass Object ( [id] => 38 [attribute_id] => 19 [name] => Имитация бруса [material_modifier] => 1 [work_modifier] => 1 [options] => Array ( [0] => Сосна [1] => Ель [2] => Лиственница ) [days] => [20,20,20] [material_price] => [2994,2762,4954] [work_price] => [1397,1231,1577] [image] => https://akademik-stroy.ru/wp-content/uploads/materials/imitaciya-brusa.jpg [area_modifier] => 137.89 [parent_name] => Наружная отделка фасада [parent_id] => 19 [material_sum] => 569723 [work_sum] => 221527 [total_sum] => 791250 [total_days] => 20 [display_material_sum] => 569 723 [display_work_sum] => 221 527 [display_total_sum] => 791 250 ) 1
791 250
Работа:221 527
Материалы:569 723
Дни:20
stdClass Object ( [id] => 136 [attribute_id] => 19 [name] => Планкен [material_modifier] => 1 [work_modifier] => 1 [options] => Array ( [0] => Сосна [1] => Ель [2] => Лиственница ) [days] => [20,20,20] [material_price] => [3194,2862,5154] [work_price] => [1537,1354,1735] [image] => https://akademik-stroy.ru/wp-content/uploads/materials/planken.jpg [area_modifier] => 137.89 [parent_name] => Наружная отделка фасада [parent_id] => 19 [material_sum] => 607781 [work_sum] => 243727 [total_sum] => 851508 [total_days] => 20 [display_material_sum] => 607 781 [display_work_sum] => 243 727 [display_total_sum] => 851 508 ) 1
851 508
Работа:243 727
Материалы:607 781
Дни:20
stdClass Object ( [id] => 137 [attribute_id] => 19 [name] => Штукатурка [material_modifier] => 1 [work_modifier] => 1 [options] => Array ( [0] => Цементно-песчаная (минеральная) [1] => Мокрый фасад ) [days] => [35,35] [material_price] => [2231,3938] [work_price] => [1202,2422] [image] => https://akademik-stroy.ru/wp-content/uploads/materials/shtukaturka.jpg [area_modifier] => 137.89 [parent_name] => Наружная отделка фасада [parent_id] => 19 [material_sum] => 424533 [work_sum] => 190605 [total_sum] => 615138 [total_days] => 35 [display_material_sum] => 424 533 [display_work_sum] => 190 605 [display_total_sum] => 615 138 ) 1
615 138
Работа:190 605
Материалы:424 533
Дни:35
stdClass Object ( [id] => 138 [attribute_id] => 19 [name] => Облицовочный кирпич [material_modifier] => 1 [work_modifier] => 1 [options] => Array ( [0] => Керамический [1] => Клинкерный [2] => Ручной формовки [3] => Гиперпрессованный [4] => Силикатный кирпич ) [days] => [45,45,45,45,45] [material_price] => [8174,9148,1040,1257,5876] [work_price] => [3240,3758,4536,4017,3369] [image] => https://akademik-stroy.ru/wp-content/uploads/materials/oblicovochnyj-kirpich.jpg [area_modifier] => 137.89 [parent_name] => Наружная отделка фасада [parent_id] => 19 [material_sum] => 1555416 [work_sum] => 513778 [total_sum] => 2069194 [total_days] => 45 [display_material_sum] => 1 555 416 [display_work_sum] => 513 778 [display_total_sum] => 2 069 194 ) 1
2 069 194
Работа:513 778
Материалы:1 555 416
Дни:45
stdClass Object ( [id] => 139 [attribute_id] => 19 [name] => Фасадная плитка [material_modifier] => 1 [work_modifier] => 1 [options] => Array ( [0] => Клинкерная [1] => Керамическая [2] => Плитка ручной формовки ) [days] => [40,40,40] [material_price] => [2974,1487,3470] [work_price] => [3007,2592,3629] [image] => https://akademik-stroy.ru/wp-content/uploads/materials/fasadnaya-plitka.jpg [area_modifier] => 137.89 [parent_name] => Наружная отделка фасада [parent_id] => 19 [material_sum] => 565917 [work_sum] => 476831 [total_sum] => 1042748 [total_days] => 40 [display_material_sum] => 565 917 [display_work_sum] => 476 831 [display_total_sum] => 1 042 748 ) 1
1 042 748
Работа:476 831
Материалы:565 917
Дни:40
stdClass Object ( [id] => 140 [attribute_id] => 19 [name] => Сайдинг [material_modifier] => 1 [work_modifier] => 1 [options] => Array ( [0] => Виниловый [1] => Металлический [2] => Фиброцементный ) [days] => [20,20,20] [material_price] => [1263,1944,4147] [work_price] => [1263,1944,2074] [image] => https://akademik-stroy.ru/wp-content/uploads/materials/sajding.jpg [area_modifier] => 137.89 [parent_name] => Наружная отделка фасада [parent_id] => 19 [material_sum] => 240334 [work_sum] => 200278 [total_sum] => 440612 [total_days] => 20 [display_material_sum] => 240 334 [display_work_sum] => 200 278 [display_total_sum] => 440 612 ) 1
440 612
Работа:200 278
Материалы:240 334
Дни:20
stdClass Object ( [id] => 141 [attribute_id] => 19 [name] => Камень [material_modifier] => 1 [work_modifier] => 1 [options] => Array ( [0] => Травертин [1] => Дагестанский [2] => Искусственный [3] => Натуральный [4] => Керамогранит ) [days] => [45,45,45,45,45] [material_price] => [4536,3888,2592,3240,2462] [work_price] => [3240,3240,2462,3110,1944] [image] => https://akademik-stroy.ru/wp-content/uploads/materials/kamen-1.jpg [area_modifier] => 137.89 [parent_name] => Наружная отделка фасада [parent_id] => 19 [material_sum] => 863147 [work_sum] => 513778 [total_sum] => 1376925 [total_days] => 45 [display_material_sum] => 863 147 [display_work_sum] => 513 778 [display_total_sum] => 1 376 925 ) 1
1 376 925
Работа:513 778
Материалы:863 147
Дни:45
stdClass Object ( [id] => 142 [attribute_id] => 19 [name] => Термопанели [material_modifier] => 1 [work_modifier] => 1 [options] => Array ( ) [days] => [20] [material_price] => [6221] [work_price] => [2333] [image] => https://akademik-stroy.ru/wp-content/uploads/materials/termo.png [area_modifier] => 137.89 [parent_name] => Наружная отделка фасада [parent_id] => 19 [material_sum] => 1183783 [work_sum] => 369952 [total_sum] => 1553735 [total_days] => 20 [display_material_sum] => 1 183 783 [display_work_sum] => 369 952 [display_total_sum] => 1 553 735 ) 1
1 553 735
Работа:369 952
Материалы:1 183 783
Дни:20
stdClass Object ( [id] => 143 [attribute_id] => 19 [name] => Плитка HAUBERK [material_modifier] => 1 [work_modifier] => 1 [options] => Array ( ) [days] => [20] [material_price] => [2786] [work_price] => [1944] [image] => https://akademik-stroy.ru/wp-content/uploads/materials/hauberk.jpg [area_modifier] => 137.89 [parent_name] => Наружная отделка фасада [parent_id] => 19 [material_sum] => 530143 [work_sum] => 308267 [total_sum] => 838410 [total_days] => 20 [display_material_sum] => 530 143 [display_work_sum] => 308 267 [display_total_sum] => 838 410 ) 1
838 410
Работа:308 267
Материалы:530 143
Дни:20
stdClass Object ( [id] => 144 [attribute_id] => 19 [name] => Фальцевый фасад [material_modifier] => 1 [work_modifier] => 1 [options] => Array ( ) [days] => [20] [material_price] => [3240] [work_price] => [2592] [image] => https://akademik-stroy.ru/wp-content/uploads/materials/falcevyj-fasad.jpg [area_modifier] => 137.89 [parent_name] => Наружная отделка фасада [parent_id] => 19 [material_sum] => 616534 [work_sum] => 411023 [total_sum] => 1027557 [total_days] => 20 [display_material_sum] => 616 534 [display_work_sum] => 411 023 [display_total_sum] => 1 027 557 ) 1
1 027 557
Работа:411 023
Материалы:616 534
Дни:20
stdClass Object ( [id] => 145 [attribute_id] => 19 [name] => Комбинированный [material_modifier] => 1 [work_modifier] => 1 [options] => Array ( ) [days] => [20] [material_price] => [4629] [work_price] => [3499] [image] => https://akademik-stroy.ru/wp-content/uploads/materials/Kombinirovannyj.jpg [area_modifier] => 137.89 [parent_name] => Наружная отделка фасада [parent_id] => 19 [material_sum] => 880844 [work_sum] => 554849 [total_sum] => 1435693 [total_days] => 20 [display_material_sum] => 880 844 [display_work_sum] => 554 849 [display_total_sum] => 1 435 693 ) 1
1 435 693
Работа:554 849
Материалы:880 844
Дни:20
stdClass Object ( [id] => 257 [attribute_id] => 19 [name] => Японские фиброцементные [material_modifier] => 1 [work_modifier] => 1 [options] => Array ( ) [days] => [20] [material_price] => [7043] [work_price] => [2993] [image] => https://akademik-stroy.ru/wp-content/uploads/materials/paneli.jpg [area_modifier] => 137.89 [parent_name] => Наружная отделка фасада [parent_id] => 19 [material_sum] => 1340200 [work_sum] => 474610 [total_sum] => 1814810 [total_days] => 20 [display_material_sum] => 1 340 200 [display_work_sum] => 474 610 [display_total_sum] => 1 814 810 ) 1
1 814 810
Работа:474 610
Материалы:1 340 200
Дни:20
stdClass Object ( [id] => 258 [attribute_id] => 19 [name] => Панели Каньон [material_modifier] => 1 [work_modifier] => 1 [options] => Array ( ) [days] => [20] [material_price] => [4543] [work_price] => [2592] [image] => https://akademik-stroy.ru/wp-content/uploads/materials/kanon.png [area_modifier] => 137.89 [parent_name] => Наружная отделка фасада [parent_id] => 19 [material_sum] => 864479 [work_sum] => 411023 [total_sum] => 1275502 [total_days] => 20 [display_material_sum] => 864 479 [display_work_sum] => 411 023 [display_total_sum] => 1 275 502 ) 1
1 275 502
Работа:411 023
Материалы:864 479
Дни:20
Террасы, крыльца, навесы
stdClass Object ( [id] => 39 [attribute_id] => 20 [name] => Нет [material_modifier] => 1 [work_modifier] => 1 [options] => Array ( ) [days] => [0] [material_price] => [0] [work_price] => [0] [image] => https://akademik-stroy.ru/wp-content/uploads/materials/terrasy.jpg [area_modifier] => 30 [parent_name] => Террасы, крыльца, навесы [parent_id] => 20 [material_sum] => 0 [work_sum] => 0 [total_sum] => 0 [total_days] => 0 [display_material_sum] => 0 [display_work_sum] => 0 [display_total_sum] => 0 ) 1
0
Работа:0
Материалы:0
Дни:0
stdClass Object ( [id] => 40 [attribute_id] => 20 [name] => Есть [material_modifier] => 1 [work_modifier] => 1 [options] => Array ( ) [days] => [5] [material_price] => [10450] [work_price] => [1950] [image] => https://akademik-stroy.ru/wp-content/uploads/materials/terrasy.jpg [area_modifier] => 30 [parent_name] => Террасы, крыльца, навесы [parent_id] => 20 [material_sum] => 432630 [work_sum] => 67275 [total_sum] => 499905 [total_days] => 5 [display_material_sum] => 432 630 [display_work_sum] => 67 275 [display_total_sum] => 499 905 ) 1
499 905
Работа:67 275
Материалы:432 630
Дни:5
Балконы
stdClass Object ( [id] => 41 [attribute_id] => 21 [name] => Нет [material_modifier] => 1 [work_modifier] => 1 [options] => Array ( ) [days] => [0] [material_price] => [0] [work_price] => [0] [image] => https://akademik-stroy.ru/wp-content/uploads/materials/balkony.jpg [area_modifier] => 30 [parent_name] => Балконы [parent_id] => 21 [material_sum] => 0 [work_sum] => 0 [total_sum] => 0 [total_days] => 0 [display_material_sum] => 0 [display_work_sum] => 0 [display_total_sum] => 0 ) 1
0
Работа:0
Материалы:0
Дни:0
stdClass Object ( [id] => 42 [attribute_id] => 21 [name] => Есть [material_modifier] => 1 [work_modifier] => 1 [options] => Array ( ) [days] => [12] [material_price] => [3600] [work_price] => [1950] [image] => https://akademik-stroy.ru/wp-content/uploads/materials/balkony.jpg [area_modifier] => 30 [parent_name] => Балконы [parent_id] => 21 [material_sum] => 149040 [work_sum] => 67275 [total_sum] => 216315 [total_days] => 12 [display_material_sum] => 149 040 [display_work_sum] => 67 275 [display_total_sum] => 216 315 ) 1
216 315
Работа:67 275
Материалы:149 040
Дни:12
Отмостка
stdClass Object ( [id] => 43 [attribute_id] => 22 [name] => Нет [material_modifier] => 1 [work_modifier] => 1 [options] => Array ( ) [days] => [0] [material_price] => [0] [work_price] => [0] [image] => https://akademik-stroy.ru/wp-content/uploads/materials/uteplennaya.jpg [area_modifier] => 79.15 [parent_name] => Отмостка [parent_id] => 22 [material_sum] => 0 [work_sum] => 0 [total_sum] => 0 [total_days] => 0 [display_material_sum] => 0 [display_work_sum] => 0 [display_total_sum] => 0 ) 1
0
Работа:0
Материалы:0
Дни:0
stdClass Object ( [id] => 44 [attribute_id] => 22 [name] => Утепленная отмостка [material_modifier] => 1 [work_modifier] => 1 [options] => Array ( ) [days] => [15] [material_price] => [2550] [work_price] => [1750] [image] => https://akademik-stroy.ru/wp-content/uploads/materials/uteplennaya.jpg [area_modifier] => 79.15 [parent_name] => Отмостка [parent_id] => 22 [material_sum] => 278529 [work_sum] => 159289 [total_sum] => 437818 [total_days] => 15 [display_material_sum] => 278 529 [display_work_sum] => 159 289 [display_total_sum] => 437 818 ) 1
437 818
Работа:159 289
Материалы:278 529
Дни:15
stdClass Object ( [id] => 146 [attribute_id] => 22 [name] => Не утепленная отмостка [material_modifier] => 1 [work_modifier] => 1 [options] => Array ( ) [days] => [10] [material_price] => [1650] [work_price] => [1450] [image] => https://akademik-stroy.ru/wp-content/uploads/materials/ne-uteplennaya.jpg [area_modifier] => 79.15 [parent_name] => Отмостка [parent_id] => 22 [material_sum] => 180225 [work_sum] => 131983 [total_sum] => 312208 [total_days] => 10 [display_material_sum] => 180 225 [display_work_sum] => 131 983 [display_total_sum] => 312 208 ) 1
312 208
Работа:131 983
Материалы:180 225
Дни:10
Дренаж вокруг дома
stdClass Object ( [id] => 45 [attribute_id] => 23 [name] => Нет [material_modifier] => 1 [work_modifier] => 1 [options] => Array ( ) [days] => [0] [material_price] => [0] [work_price] => [0] [image] => https://akademik-stroy.ru/wp-content/uploads/materials/drenazh-2.jpg [area_modifier] => 79.15 [parent_name] => Дренаж вокруг дома [parent_id] => 23 [material_sum] => 0 [work_sum] => 0 [total_sum] => 0 [total_days] => 0 [display_material_sum] => 0 [display_work_sum] => 0 [display_total_sum] => 0 ) 1
0
Работа:0
Материалы:0
Дни:0
stdClass Object ( [id] => 46 [attribute_id] => 23 [name] => Есть [material_modifier] => 1 [work_modifier] => 1 [options] => Array ( ) [days] => [5] [material_price] => [2366] [work_price] => [1911] [image] => https://akademik-stroy.ru/wp-content/uploads/materials/drenazh-2.jpg [area_modifier] => 79.15 [parent_name] => Дренаж вокруг дома [parent_id] => 23 [material_sum] => 258431 [work_sum] => 173944 [total_sum] => 432375 [total_days] => 5 [display_material_sum] => 258 431 [display_work_sum] => 173 944 [display_total_sum] => 432 375 ) 1
432 375
Работа:173 944
Материалы:258 431
Дни:5
Автономная канализация (септики)
stdClass Object ( [id] => 47 [attribute_id] => 24 [name] => Нет [material_modifier] => 1 [work_modifier] => 1 [options] => Array ( ) [days] => [0] [material_price] => [0] [work_price] => [0] [image] => https://akademik-stroy.ru/wp-content/uploads/materials/septik.jpg [area_modifier] => 1 [parent_name] => Автономная канализация (септики) [parent_id] => 24 [material_sum] => 0 [work_sum] => 0 [total_sum] => 0 [total_days] => 0 [display_material_sum] => 0 [display_work_sum] => 0 [display_total_sum] => 0 ) 1
0
Работа:0
Материалы:0
Дни:0
stdClass Object ( [id] => 48 [attribute_id] => 24 [name] => Есть [material_modifier] => 1 [work_modifier] => 1 [options] => Array ( [0] => Для дачи на 4 человека [1] => Для дома на 5 человек [2] => Для дома на 6 человек [3] => Для дома на 7 человек [4] => Для дома на 10 человек ) [days] => [7,7,7,8,8] [material_price] => [196340,220500,240940,264200,293340] [work_price] => [50000,55000,60500,66550,73206] [image] => https://akademik-stroy.ru/wp-content/uploads/materials/septik.jpg [area_modifier] => 1 [parent_name] => Автономная канализация (септики) [parent_id] => 24 [material_sum] => 270949 [work_sum] => 57500 [total_sum] => 328449 [total_days] => 7 [display_material_sum] => 270 949 [display_work_sum] => 57 500 [display_total_sum] => 328 449 ) 1
328 449
Работа:57 500
Материалы:270 949
Дни:7
Внутренние (не несущие) перегородки
stdClass Object ( [id] => 49 [attribute_id] => 25 [name] => Нет [material_modifier] => 1 [work_modifier] => 1 [options] => Array ( ) [days] => [0] [material_price] => [0] [work_price] => [0] [image] => https://akademik-stroy.ru/wp-content/uploads/materials/gkl.jpg [area_modifier] => 137.89 [parent_name] => Внутренние (не несущие) перегородки [parent_id] => 25 [material_sum] => 0 [work_sum] => 0 [total_sum] => 0 [total_days] => 0 [display_material_sum] => 0 [display_work_sum] => 0 [display_total_sum] => 0 ) 1
0
Работа:0
Материалы:0
Дни:0
stdClass Object ( [id] => 147 [attribute_id] => 25 [name] => Каркасно-обшивные [material_modifier] => 1 [work_modifier] => 1 [options] => Array ( [0] => 75 мм (без шумоизоляции) [1] => 75 мм (с шумоизоляцией) ) [days] => [11,11] [material_price] => [580,970] [work_price] => [380,570] [image] => https://akademik-stroy.ru/wp-content/uploads/materials/gkl.jpg [area_modifier] => 137.89 [parent_name] => Внутренние (не несущие) перегородки [parent_id] => 25 [material_sum] => 110367 [work_sum] => 60258 [total_sum] => 170625 [total_days] => 11 [display_material_sum] => 110 367 [display_work_sum] => 60 258 [display_total_sum] => 170 625 ) 1
170 625
Работа:60 258
Материалы:110 367
Дни:11
stdClass Object ( [id] => 148 [attribute_id] => 25 [name] => Пазогребневые [material_modifier] => 1 [work_modifier] => 1 [options] => Array ( [0] => 80 мм [1] => 100 мм ) [days] => [5,5] [material_price] => [1022,1313] [work_price] => [600,700] [image] => https://akademik-stroy.ru/wp-content/uploads/materials/pazogrebnevye-bloki.jpg [area_modifier] => 137.89 [parent_name] => Внутренние (не несущие) перегородки [parent_id] => 25 [material_sum] => 194475 [work_sum] => 95144 [total_sum] => 289619 [total_days] => 5 [display_material_sum] => 194 475 [display_work_sum] => 95 144 [display_total_sum] => 289 619 ) 1
289 619
Работа:95 144
Материалы:194 475
Дни:5
stdClass Object ( [id] => 149 [attribute_id] => 25 [name] => Газобетонные [material_modifier] => 1 [work_modifier] => 1 [options] => Array ( [0] => 100 мм [1] => 200 мм ) [days] => [11,11] [material_price] => [1160,1920] [work_price] => [700,900] [image] => https://akademik-stroy.ru/wp-content/uploads/materials/gazobeton-2.jpg [area_modifier] => 137.89 [parent_name] => Внутренние (не несущие) перегородки [parent_id] => 25 [material_sum] => 220734 [work_sum] => 111001 [total_sum] => 331735 [total_days] => 11 [display_material_sum] => 220 734 [display_work_sum] => 111 001 [display_total_sum] => 331 735 ) 1
331 735
Работа:111 001
Материалы:220 734
Дни:11
stdClass Object ( [id] => 150 [attribute_id] => 25 [name] => Кирпичные [material_modifier] => 1 [work_modifier] => 1 [options] => Array ( [0] => 120 мм [1] => 250 мм [2] => 360 мм ) [days] => [7,7,7] [material_price] => [1785,3570,5355] [work_price] => [900,1600,1800] [image] => https://akademik-stroy.ru/wp-content/uploads/materials/kirpich-1.jpg [area_modifier] => 137.89 [parent_name] => Внутренние (не несущие) перегородки [parent_id] => 25 [material_sum] => 339664 [work_sum] => 142716 [total_sum] => 482380 [total_days] => 7 [display_material_sum] => 339 664 [display_work_sum] => 142 716 [display_total_sum] => 482 380 ) 1
482 380
Работа:142 716
Материалы:339 664
Дни:7
Электрика
stdClass Object ( [id] => 55 [attribute_id] => 28 [name] => Нет [material_modifier] => 1 [work_modifier] => 1 [options] => Array ( ) [days] => [0] [material_price] => [0] [work_price] => [0] [image] => https://akademik-stroy.ru/wp-content/uploads/materials/ehlektrika.jpg [area_modifier] => 111.9 [parent_name] => Электрика [parent_id] => 28 [material_sum] => 0 [work_sum] => 0 [total_sum] => 0 [total_days] => 0 [display_material_sum] => 0 [display_work_sum] => 0 [display_total_sum] => 0 ) 1
0
Работа:0
Материалы:0
Дни:0
stdClass Object ( [id] => 56 [attribute_id] => 28 [name] => Есть [material_modifier] => 1 [work_modifier] => 1 [options] => Array ( ) [days] => [10] [material_price] => [650] [work_price] => [950] [image] => https://akademik-stroy.ru/wp-content/uploads/materials/ehlektrika.jpg [area_modifier] => 111.9 [parent_name] => Электрика [parent_id] => 28 [material_sum] => 100374 [work_sum] => 122251 [total_sum] => 222625 [total_days] => 10 [display_material_sum] => 100 374 [display_work_sum] => 122 251 [display_total_sum] => 222 625 ) 1
222 625
Работа:122 251
Материалы:100 374
Дни:10
Сантехника, канализация в доме
stdClass Object ( [id] => 57 [attribute_id] => 29 [name] => Нет [material_modifier] => 1 [work_modifier] => 1 [options] => Array ( ) [days] => [0] [material_price] => [0] [work_price] => [0] [image] => https://akademik-stroy.ru/wp-content/uploads/materials/santekhnika-kanalizaciya-1.jpg [area_modifier] => 111.9 [parent_name] => Сантехника, канализация в доме [parent_id] => 29 [material_sum] => 0 [work_sum] => 0 [total_sum] => 0 [total_days] => 0 [display_material_sum] => 0 [display_work_sum] => 0 [display_total_sum] => 0 ) 1
0
Работа:0
Материалы:0
Дни:0
stdClass Object ( [id] => 58 [attribute_id] => 29 [name] => Есть [material_modifier] => 1 [work_modifier] => 1 [options] => Array ( ) [days] => [10] [material_price] => [600] [work_price] => [730] [image] => https://akademik-stroy.ru/wp-content/uploads/materials/santekhnika-kanalizaciya-1.jpg [area_modifier] => 111.9 [parent_name] => Сантехника, канализация в доме [parent_id] => 29 [material_sum] => 92653 [work_sum] => 93940 [total_sum] => 186593 [total_days] => 10 [display_material_sum] => 92 653 [display_work_sum] => 93 940 [display_total_sum] => 186 593 ) 1
186 593
Работа:93 940
Материалы:92 653
Дни:10
Отопление
stdClass Object ( [id] => 59 [attribute_id] => 30 [name] => Нет [material_modifier] => 1 [work_modifier] => 1 [options] => Array ( ) [days] => [0] [material_price] => [0] [work_price] => [0] [image] => https://akademik-stroy.ru/wp-content/uploads/materials/otoplenie-1.jpg [area_modifier] => 111.9 [parent_name] => Отопление [parent_id] => 30 [material_sum] => 0 [work_sum] => 0 [total_sum] => 0 [total_days] => 0 [display_material_sum] => 0 [display_work_sum] => 0 [display_total_sum] => 0 ) 1
0
Работа:0
Материалы:0
Дни:0
stdClass Object ( [id] => 60 [attribute_id] => 30 [name] => Есть [material_modifier] => 1 [work_modifier] => 1 [options] => Array ( ) [days] => [5] [material_price] => [610] [work_price] => [560] [image] => https://akademik-stroy.ru/wp-content/uploads/materials/otoplenie-1.jpg [area_modifier] => 111.9 [parent_name] => Отопление [parent_id] => 30 [material_sum] => 94197 [work_sum] => 72064 [total_sum] => 166261 [total_days] => 5 [display_material_sum] => 94 197 [display_work_sum] => 72 064 [display_total_sum] => 166 261 ) 1
166 261
Работа:72 064
Материалы:94 197
Дни:5
Теплые полы
stdClass Object ( [id] => 61 [attribute_id] => 31 [name] => Нет [material_modifier] => 1 [work_modifier] => 1 [options] => Array ( ) [days] => [0] [material_price] => [0] [work_price] => [0] [image] => https://akademik-stroy.ru/wp-content/uploads/materials/vodyanye.jpg [area_modifier] => 30 [parent_name] => Теплые полы [parent_id] => 31 [material_sum] => 0 [work_sum] => 0 [total_sum] => 0 [total_days] => 0 [display_material_sum] => 0 [display_work_sum] => 0 [display_total_sum] => 0 ) 1
0
Работа:0
Материалы:0
Дни:0
stdClass Object ( [id] => 151 [attribute_id] => 31 [name] => Водяные [material_modifier] => 1 [work_modifier] => 1 [options] => Array ( ) [days] => [9] [material_price] => [10200] [work_price] => [2500] [image] => https://akademik-stroy.ru/wp-content/uploads/materials/vodyanye.jpg [area_modifier] => 30 [parent_name] => Теплые полы [parent_id] => 31 [material_sum] => 422280 [work_sum] => 86250 [total_sum] => 508530 [total_days] => 9 [display_material_sum] => 422 280 [display_work_sum] => 86 250 [display_total_sum] => 508 530 ) 1
508 530
Работа:86 250
Материалы:422 280
Дни:9
stdClass Object ( [id] => 152 [attribute_id] => 31 [name] => Электро [material_modifier] => 1 [work_modifier] => 1 [options] => Array ( ) [days] => [5] [material_price] => [6300] [work_price] => [1500] [image] => https://akademik-stroy.ru/wp-content/uploads/materials/ehlektricheskij.jpg [area_modifier] => 30 [parent_name] => Теплые полы [parent_id] => 31 [material_sum] => 260820 [work_sum] => 51750 [total_sum] => 312570 [total_days] => 5 [display_material_sum] => 260 820 [display_work_sum] => 51 750 [display_total_sum] => 312 570 ) 1
312 570
Работа:51 750
Материалы:260 820
Дни:5
Черновая отделка стен
stdClass Object ( [id] => 63 [attribute_id] => 32 [name] => Нет [material_modifier] => 1 [work_modifier] => 1 [options] => Array ( ) [days] => [0] [material_price] => [0] [work_price] => [0] [image] => https://akademik-stroy.ru/wp-content/uploads/materials/shtukaturka-shpatlevka-1.jpg [area_modifier] => 111.9 [parent_name] => Черновая отделка стен [parent_id] => 32 [material_sum] => 0 [work_sum] => 0 [total_sum] => 0 [total_days] => 0 [display_material_sum] => 0 [display_work_sum] => 0 [display_total_sum] => 0 ) 1
0
Работа:0
Материалы:0
Дни:0
stdClass Object ( [id] => 153 [attribute_id] => 32 [name] => Штукатурка и шпатлевка [material_modifier] => 1 [work_modifier] => 1 [options] => Array ( ) [days] => [20] [material_price] => [1850] [work_price] => [2600] [image] => https://akademik-stroy.ru/wp-content/uploads/materials/shtukaturka-shpatlevka-1.jpg [area_modifier] => 111.9 [parent_name] => Черновая отделка стен [parent_id] => 32 [material_sum] => 285681 [work_sum] => 334581 [total_sum] => 620262 [total_days] => 20 [display_material_sum] => 285 681 [display_work_sum] => 334 581 [display_total_sum] => 620 262 ) 1
620 262
Работа:334 581
Материалы:285 681
Дни:20
stdClass Object ( [id] => 154 [attribute_id] => 32 [name] => Гипсокортон на стены [material_modifier] => 1 [work_modifier] => 1 [options] => Array ( ) [days] => [15] [material_price] => [950] [work_price] => [2100] [image] => https://akademik-stroy.ru/wp-content/uploads/materials/gkl-1.jpg [area_modifier] => 111.9 [parent_name] => Черновая отделка стен [parent_id] => 32 [material_sum] => 146701 [work_sum] => 270239 [total_sum] => 416940 [total_days] => 15 [display_material_sum] => 146 701 [display_work_sum] => 270 239 [display_total_sum] => 416 940 ) 1
416 940
Работа:270 239
Материалы:146 701
Дни:15
stdClass Object ( [id] => 155 [attribute_id] => 32 [name] => Вагонка [material_modifier] => 1 [work_modifier] => 1 [options] => Array ( ) [days] => [15] [material_price] => [1250] [work_price] => [950] [image] => https://akademik-stroy.ru/wp-content/uploads/materials/vagonka.jpg [area_modifier] => 111.9 [parent_name] => Черновая отделка стен [parent_id] => 32 [material_sum] => 193028 [work_sum] => 122251 [total_sum] => 315279 [total_days] => 15 [display_material_sum] => 193 028 [display_work_sum] => 122 251 [display_total_sum] => 315 279 ) 1
315 279
Работа:122 251
Материалы:193 028
Дни:15
Черновая отделка полов
stdClass Object ( [id] => 65 [attribute_id] => 33 [name] => Нет [material_modifier] => 1 [work_modifier] => 1 [options] => Array ( ) [days] => [0] [material_price] => [0] [work_price] => [0] [image] => https://akademik-stroy.ru/wp-content/uploads/materials/styazhka.jpg [area_modifier] => 111.9 [parent_name] => Черновая отделка полов [parent_id] => 33 [material_sum] => 0 [work_sum] => 0 [total_sum] => 0 [total_days] => 0 [display_material_sum] => 0 [display_work_sum] => 0 [display_total_sum] => 0 ) 1
0
Работа:0
Материалы:0
Дни:0
stdClass Object ( [id] => 156 [attribute_id] => 33 [name] => Стяжка + наливные полы [material_modifier] => 1 [work_modifier] => 1 [options] => Array ( ) [days] => [10] [material_price] => [1000] [work_price] => [900] [image] => https://akademik-stroy.ru/wp-content/uploads/materials/styazhka.jpg [area_modifier] => 111.9 [parent_name] => Черновая отделка полов [parent_id] => 33 [material_sum] => 154422 [work_sum] => 115817 [total_sum] => 270239 [total_days] => 10 [display_material_sum] => 154 422 [display_work_sum] => 115 817 [display_total_sum] => 270 239 ) 1
270 239
Работа:115 817
Материалы:154 422
Дни:10
stdClass Object ( [id] => 157 [attribute_id] => 33 [name] => ОСБ на пол [material_modifier] => 1 [work_modifier] => 1 [options] => Array ( ) [days] => [7] [material_price] => [580] [work_price] => [350] [image] => https://akademik-stroy.ru/wp-content/uploads/materials/osb-1.jpg [area_modifier] => 111.9 [parent_name] => Черновая отделка полов [parent_id] => 33 [material_sum] => 89565 [work_sum] => 45040 [total_sum] => 134605 [total_days] => 7 [display_material_sum] => 89 565 [display_work_sum] => 45 040 [display_total_sum] => 134 605 ) 1
134 605
Работа:45 040
Материалы:89 565
Дни:7
Чистовая отделка стен и полов
stdClass Object ( [id] => 67 [attribute_id] => 34 [name] => Нет [material_modifier] => 1 [work_modifier] => 1 [options] => Array ( ) [days] => [0] [material_price] => [0] [work_price] => [0] [image] => https://akademik-stroy.ru/wp-content/uploads/materials/chistovaya-otdelka.jpg [area_modifier] => 111.9 [parent_name] => Чистовая отделка стен и полов [parent_id] => 34 [material_sum] => 0 [work_sum] => 0 [total_sum] => 0 [total_days] => 0 [display_material_sum] => 0 [display_work_sum] => 0 [display_total_sum] => 0 ) 1
0
Работа:0
Материалы:0
Дни:0
stdClass Object ( [id] => 68 [attribute_id] => 34 [name] => Есть [material_modifier] => 1 [work_modifier] => 1 [options] => Array ( ) [days] => [50] [material_price] => [6000] [work_price] => [3500] [image] => https://akademik-stroy.ru/wp-content/uploads/materials/chistovaya-otdelka.jpg [area_modifier] => 111.9 [parent_name] => Чистовая отделка стен и полов [parent_id] => 34 [material_sum] => 926532 [work_sum] => 450398 [total_sum] => 1376930 [total_days] => 50 [display_material_sum] => 926 532 [display_work_sum] => 450 398 [display_total_sum] => 1 376 930 ) 1
1 376 930
Работа:450 398
Материалы:926 532
Дни:50
Отделка потолка
stdClass Object ( [id] => 69 [attribute_id] => 35 [name] => Нет [material_modifier] => 1 [work_modifier] => 1 [options] => Array ( ) [days] => [0] [material_price] => [0] [work_price] => [0] [image] => https://akademik-stroy.ru/wp-content/uploads/materials/mnogourovnevyj-gkl.jpg [area_modifier] => 111.9 [parent_name] => Отделка потолка [parent_id] => 35 [material_sum] => 0 [work_sum] => 0 [total_sum] => 0 [total_days] => 0 [display_material_sum] => 0 [display_work_sum] => 0 [display_total_sum] => 0 ) 1
0
Работа:0
Материалы:0
Дни:0
stdClass Object ( [id] => 70 [attribute_id] => 35 [name] => Есть [material_modifier] => 1 [work_modifier] => 1 [options] => Array ( [0] => Многоуровневый потолок из гипсокартона [1] => Многоуровневый потолок из гипсокартона и натяжного потолка [2] => Одноуровневый потолок из гипсокартона [3] => Одноуровневый натяжной потолок ) [days] => [10,10,1,1] [material_price] => [900,700,700,600] [work_price] => [1000,800,500,300] [image] => https://akademik-stroy.ru/wp-content/uploads/materials/mnogourovnevyj-gkl.jpg [area_modifier] => 111.9 [parent_name] => Отделка потолка [parent_id] => 35 [material_sum] => 138980 [work_sum] => 128685 [total_sum] => 267665 [total_days] => 10 [display_material_sum] => 138 980 [display_work_sum] => 128 685 [display_total_sum] => 267 665 ) 1
267 665
Работа:128 685
Материалы:138 980
Дни:10

Преимущества работы с нами

icon

7 этапов оплаты

icon

Независимый строительный надзор

icon

Экологически чистые материалы

icon

16 лет гарантии

icon

Онлайн-кабинет с веб-камерой

icon

Строители с опытом более 15 лет

icon

Собственное производство

Двухэтажный дом 9х11 м – идеальное решение для комфортной жизни в Москве

Когда речь заходит о строительстве частного дома, многие мечтают об уютном, функциональном, а главное – эстетически привлекательном жилье. Представьте себе двухэтажный дом размером 9х11 метров с полезной площадью 111,9 м² — это оптимальный вариант для семьи, которая ценит комфорт и практичность. Компания «Академик Строй» предлагает заказать проект именно такого дома, адаптированного под климатические и градостроительные особенности Москвы, с выгодной ценой и полным сопровождением на всех этапах строительства. Почему именно двухэтажный дом? Пространство двух этажей позволяет максимально рационально использовать территорию участка, не уменьшая жилую площадь. При размерах 9х11, или 99 м² в плане, полезная площадь достигает 111,9 м² за счёт грамотного зонирования. Здесь есть всё необходимое для комфортной жизни — три спальни, два санузла, просторная гостиная и уютный камин, который сделает дом по-настоящему теплым и душевным.

Основные характеристики дома 9x11 от «Академик Строй»

Для начала полезно взглянуть на ключевые параметры данного проекта, которые помогут понять, что это за дом и почему он так популярен у жителей Москвы.
Параметр Значение
Полезная площадь 111,9 м²
Размеры дома 9 х 11 м
Этажей 2
Количество спален 3
Количество санузлов 2
Жилая площадь 91,41 м²
Общая площадь 148,10 м²
Площадь застройки 98,03 м²
Объем здания (брутто) 481 м³
Угол наклона крыши 45°
Высота здания 8,47 м
Тип крыши Двускатная
Минимальная ширина участка 16,34 м
Минимальная длина участка 19,49 м
Опции Камин, терраса
Такой срок жизни на самом деле широкий и учитывает не только комфорт в будни, но и эстетический аспект, а также возможность обустроить красивую зону отдыха на террасе или возле камина.

Почему стоит выбрать дом площадью 111,9 м²?

Многим кажется, что небольшой дом – это плохое решение с точки зрения пространства и удобств. Однако 111,9 м² — это достаточно, чтобы разместить все необходимые жилые комнаты и сделать дом просторным. При правильной планировке здесь уместятся три спальни, что удобно для семьи из 4-5 человек. Жилая площадь почти 91,41 м² говорит о том, что большая часть дома предназначена именно для комфортного проживания, а не технических или вспомогательных помещений. Для сравнения, квартиры в городской черте с такой жилой площадью стоят гораздо дороже, при этом не обеспечивают ощущения уюта, которую даёт частный дом.

Преимущества такого размера дома

  • Рациональное использование земли. Дом компактный, но двухэтажный, что позволяет сэкономить место на участке.
  • Оптимальная планировка. Три спальни и два санузла обеспечивают комфорт всех членов семьи.
  • Энергосбережение. Площадь позволяет легко и эффективно отапливать дом, что важно в климате Москвы.
  • Доступная стоимость проекта. Это не «золотая» вилла, а классический семейный вариант, который отвечает запросам по цене и качеству.

Какова планировка двухэтажного дома 9х11 м?

Конечно, каждый проект уникален, но рассмотрим типичные особенности планировки дома от «Академик Строй», исходя из предоставленных параметров и потребностей типичной семьи.

Первый этаж: зона для общения и отдыха

Первый этаж в доме такой площади — это место для гостиной, кухни и столовой, а также одного из санузлов. Здесь же обычно располагается прихожая и технические помещения (к примеру, котельная или кладовая). В гостиной центральное место занимает камин — не только источник тепла, но и элемент уюта, который формирует домашнюю атмосферу. Пространство вокруг камина организовано так, чтобы вокруг собиралась вся семья, особенно в холодное время года. Открытая планировка первого этажа придаёт домашнему пространству ощущение легкости и воздушности, что особенно ценно в небольших домах.

Второй этаж: приватная зона

Если первый этаж — это место для семьи и гостей, то второй — зона приватности. Тут расположены три удобные спальни и второй санузел. Планировка грамотна, поэтому комнаты получаются светлыми и вместительными. Разделение санузлов между этажами позволяет снять все вопросы с утренними очередями и вечером, когда все устали и хочется спокойствия.

Особенности крыши: двускатная с углом наклона 45°

Большое внимание в проекте уделено крыше — она двускатная с углом наклона 45°, что идеально подходит для московского климата. Почему это важно? Давайте разберёмся.
  • Отведение снега и дождя. Крутой угол наклона помогает избегать скопления снега и воды, уменьшая нагрузку на конструкцию крыши.
  • Использование чердака. При таком угле можно сделать утеплённый мансардный этаж или использовать пространство для хранения.
  • Эстетика. Двускатная крыша — классика, которая гармонично вписывается в ландшафт загородной зоны.
Площадь крыши размером 158,80 м² соответствует общему объему здания, что говорит о правильном расчёте и качестве проекта.

Участок под строительство: требования к размеру

Когда речь заходит о постройке дома 9х11 метров, следует помнить и о размерах участка, поскольку нельзя строить «впритык» к границам соседей — есть нормы и правила. Минимальные размеры участка под этот дом составляют:
  • Минимальная ширина: 16,34 метра
  • Минимальная длина: 19,49 метра
Это позволяет хорошо располагать дом, оставлять место для зоны отдыха, садика или хозяйственных построек. Важно учитывать, что даже при компактном строении участок должен качественно служить всей семье, обеспечивая безопасность и удобство.

Комплектация проекта и дополнительные опции

Компания «Академик Строй» предлагает не просто чертежи или стандартный набор документов, а полный пакет услуг — от разработки проекта с учётом ваших пожеланий до помощи в оформлении разрешительной документации. Важно отметить и опции, которые можно включить в проект по желанию заказчика.

Что входит в базовый проект?

  • Архитектурно-строительные чертежи
  • Инженерные решения (электрика, отопление, водоснабжение)
  • Технические спецификации строительных материалов
  • Смета затрат на строительство

Опции, которые сделают дом ещё лучше:

Опция Описание
Камин Уютный и теплоэффективный источник отопления и центр домашнего уюта.
Терраса Дополнительное пространство для отдыха на свежем воздухе, позволяет расширить жилую зону летом.
Для Москвы, где лето не слишком длинное, терраса становится отличным местом для приема гостей, семейных обедов и наслаждения природой прямо у себя дома.

Стоимость и как заказать проект в «Академик Строй»

Что особенно важно для многих заказчиков — цена и условия сотрудничества. Проект двухэтажного дома 9x11 по площади 111,9 м² доступен по привлекательной цене, которая полностью соответствует рынку и включает технологическую поддержку. Если вы хотите купить проект, выявить все детали и получить профессиональные консультации, просто позвоните по телефону: +7 (980) 800-47-93. Здесь вам подробно расскажут о процессе, ответят на все вопросы и предложат оптимальные варианты оформления заказа.

Преимущества заказа проекта от «Академик Строй»

  • Долгие годы опыта в проектировании и строительстве частных домов
  • Индивидуальный подход к каждому заказчику
  • Чёткое соблюдение сроков и контроль качества
  • Техническая поддержка на всех этапах строительства
  • Возможность добавить опции и внести изменения в проект

Почему именно этот проект подходит для жителей Москвы

Москва и область отличаются определёнными климатическими и строительными требованиями — от морозных зим до плотной городской застройки. Проект дома 9х11 м от «Академик Строй» учитывает все эти особенности:
  • Климатическая адаптация. Надёжная защита от холода, продуманная вентиляция и теплоизоляция.
  • Стандарты безопасности. Утеплённый фундамент, устойчивость к ветрам и осадкам.
  • Простота обслуживания. Коммуникации проведены так, чтобы минимизировать затраты на эксплуатацию.
  • Эстетика и уют. Двускатная крыша и камин создают классический загородный стиль, который ценят многие москвичи.

Советы для будущих владельцев дома 9х11 м

Если вы решились заказать проект и построить дом вашей мечты, важно учесть несколько нюансов, чтобы сделать процесс максимально приятным и результат эффективным.

Планировка участка

Совет — заранее подготовить план участка, учитывая не только дом, но и места для отдыха, грядок или гаража. Хотя в проекте данного дома гараж не предусмотрен, его можно построить отдельно или заменить парковочной зоной.

Определение бюджета

Экономия — хорошая вещь, но не стоит жалеть на качество материала и исполнительские работы. Обсуждайте бюджет с менеджерами, чтобы подобрать максимально выгодный и надёжный вариант.

Обращение к профессионалам

Самостоятельная стройка – это риск и не всегда малозатратно. Заказывая проект в «Академик Строй», вы получаете гарантии качества и поддержку, что существенно снижает вероятность ошибок.

Выводы: идеальный вариант для семьи и даже с перспективой расширения

Двухэтажный дом размером 9х11 метров от компании «Академик Строй» — это сбалансированное решение по параметрам площади, стоимости и удобства. 111,9 м² полезной площади превращаются в настоящую жилую крепость для вас и вашей семьи. Красивый внешний вид, функциональная планировка и продуманная конструкция крыши позволят вам наслаждаться жизнью в своём доме долгое время. Если вы хотите заказать проект, узнать цену и получить больше информации — звоните по телефону +7 (980) 800-47-93. Ваша мечта о собственном доме ближе, чем кажется!