Двухэтажный дом 17x10 - 198.4 м2 за руб.

ID-68831

Стоимость дома 6824572 руб.
154 м2 Полезная
площадь
17 x 10 м Размеры
2 этажа Этажей
26 м2 Террасы
и балконы
2Без
гаража
4 Количество
спален
2 Количество
санузлов

Планировки

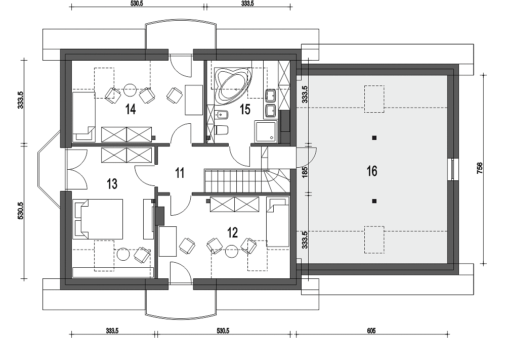
План первого этажа

floor image
  • 1. Прихожая 5 m²
  • 2. Холл 7,60 m²
  • 3. Кухня + кладовая 9 m²
  • 4. Гостиная + столовая 29,20 m²
  • 5. Ванная комната 3,90 m²
  • 6. Кладовая 7,40 m²
  • 7. Лестница 3,50 m²
  • 8. Комната 9,10 m²
  • 9. Котельная 11 m²
  • 10. Гараж на 2 машины 33,40 m²
  • План первого этажа 119,10 m²

План мансарды

floor image
  • 1. Коридор 6,50 m²
  • 2. Комната 13,70 m² (17,20 m²)
  • 3. Комната 14 m² (17,40 m²)
  • 4. Комната 13,90 m² (17,40 m²)
  • 5. Ванная комната 7 m² (10,30 m²)
  • 6. Чердак 24,20 m² (45,30 m²)
  • План мансарды 79,30 m²

Разрезы

Вертикальный разрез
Вертикальный разрез

Фасады

Передний
Задний
Левый
Правый
Передний
Задний
Левый
Правый

Подробная информация

Жилая площадь
122,50 m²
icon

Сумма площади всех жилых помещений, за вычетом пов. гараж, котельная, чердак, подвал. Учитывается в 100%, для помещений высотой более 2,2 м, в 50% для помещений с высотой 2,2-1,4 м и не включается для более низких помещений (меньше 1,4 м).

Высота аттиковой стены
0,92 m
icon

Площадь застройки
149,50 m²
icon

Площадь застройки здания определяется как площадь горизонтального сечения по внешнему обводу здания на уровне цоколя, включая выступающие части.

Площадь нетто
233,20 m²
icon

Площадь всех помещений в здании, измеренная на высоте пола.

Площадь крыши
259,50 m²
icon

Угол наклона крыши
40°
icon

Наклон ската крыши в градусах. Внимание! В некоторых проектах возникает более чем один наклон крыши.

Высота здания
8,70 m
icon

Высота измеряется от поверхности земли до самой высокой точки кровли (конька), за исключением дымоходов.

Мин. ширина участка
24,90 m
icon

Наименьшая возможная ширина участка, необходимая для строительства выбранного дома. Состоит из длины фасада дома плюс с обеих сторон три метра отступ.

Мин. длина участка
17,70 m
icon

Наименьшая возможная длина участка, необходимая для строительства выбранного дома. Состоит из длины фасада дома плюс с обеих сторон три метра отступ.

Материалы и опции
Общие
Цена, руб.
Площадь м²
250
Площадь от и до
Ежемесячный платёж, руб
Количество спален
4
Гараж
2
Количество санузлов
2
Тип крыши
Ширина
17
Глубина
10

Площади дома

№ п/п Наименование Ед. из. Строительная площадь Полезная площадь
1 1 этаж м2 146.77 119.1
2 2 этаж м2 97.72 79.3
3 Итого м2 244.49 198.4

Калькулятор опций

0

В ипотеку от 22 266 ₽/мес.

Фундамент
stdClass Object ( [id] => 1 [attribute_id] => 1 [name] => Ленточный монолитный ж/б [material_modifier] => 1 [work_modifier] => 1 [options] => Array ( [0] => размер 200 х 700 мм [1] => размер 300 х 900 мм [2] => размер 400 х 1 000 мм [3] => размер 500 х 1 100 мм [4] => размер 600 х 1 200 мм ) [days] => [20,21,22,25,30] [material_price] => [2823,3630,4475,5210,12047] [work_price] => [2154,2826,3731,4577,5293] [image] => https://akademik-stroy.ru/wp-content/uploads/materials/lentochnyj-monolitnyj-zh-b.jpg [area_modifier] => 146.77 [parent_name] => Фундамент [parent_id] => 1 [material_sum] => 522058 [work_sum] => 331950 [total_sum] => 854008 [total_days] => 20 [display_material_sum] => 522 058 [display_work_sum] => 331 950 [display_total_sum] => 854 008 ) 1
854 008
Работа:331 950
Материалы:522 058
Дни:20
stdClass Object ( [id] => 2 [attribute_id] => 1 [name] => Забивные Ж/Б сваи [material_modifier] => 1 [work_modifier] => 1 [options] => Array ( [0] => 150х150х3000мм [1] => 150х150х4000мм [2] => 200х200х3000мм [3] => 200х200х4000мм [4] => 200х200х5000мм [5] => 200х200х6000мм ) [days] => [2,2,2,2,2,2] [material_price] => [1990,2850,3255,4360,5120,6837] [work_price] => [1002,1185,1336,1438,1574,1839] [image] => https://akademik-stroy.ru/wp-content/uploads/materials/zabivnye-zh-b-svai.png [area_modifier] => 146.77 [parent_name] => Фундамент [parent_id] => 1 [material_sum] => 368011 [work_sum] => 154417 [total_sum] => 522428 [total_days] => 2 [display_material_sum] => 368 011 [display_work_sum] => 154 417 [display_total_sum] => 522 428 ) 1
522 428
Работа:154 417
Материалы:368 011
Дни:2
stdClass Object ( [id] => 71 [attribute_id] => 1 [name] => Свайно-ростверковый ж/б [material_modifier] => 1 [work_modifier] => 1 [options] => Array ( [0] => ростверк 200х300 мм [1] => ростверк 300х600 мм [2] => ростверк 400х900 мм [3] => ростверк 500х1200 мм ) [days] => [20,23,25,27] [material_price] => [3018,3474,7109,9792] [work_price] => [2024,3012,5635,7022] [image] => https://akademik-stroy.ru/wp-content/uploads/materials/svajno-rostverkovyj-monolitnyj-zh-b-3.png [area_modifier] => 146.77 [parent_name] => Фундамент [parent_id] => 1 [material_sum] => 558119 [work_sum] => 311916 [total_sum] => 870035 [total_days] => 20 [display_material_sum] => 558 119 [display_work_sum] => 311 916 [display_total_sum] => 870 035 ) 1
870 035
Работа:311 916
Материалы:558 119
Дни:20
stdClass Object ( [id] => 72 [attribute_id] => 1 [name] => Монолитная ж/б плита [material_modifier] => 1 [work_modifier] => 1 [options] => Array ( [0] => 200 мм [1] => 300 мм [2] => 400 мм [3] => 500 мм [4] => 600 мм ) [days] => [30,33,35,37,40] [material_price] => [5348,8555,12788,14388,15189] [work_price] => [4314,4881,7037,8061,10230] [image] => https://akademik-stroy.ru/wp-content/uploads/materials/monolitnaya-zhb-plita.png [area_modifier] => 146.77 [parent_name] => Фундамент [parent_id] => 1 [material_sum] => 989007 [work_sum] => 664824 [total_sum] => 1653831 [total_days] => 30 [display_material_sum] => 989 007 [display_work_sum] => 664 824 [display_total_sum] => 1 653 831 ) 1
1 653 831
Работа:664 824
Материалы:989 007
Дни:30
stdClass Object ( [id] => 73 [attribute_id] => 1 [name] => Утепленная шведская плита [material_modifier] => 1 [work_modifier] => 1 [options] => Array ( [0] => 200 мм [1] => 300 мм [2] => 400 мм [3] => 500 мм [4] => 600 мм ) [days] => [32,37,39,42,45] [material_price] => [10249,12692,13760,14936,16230] [work_price] => [5960,7337,8072,8878,9765] [image] => https://akademik-stroy.ru/wp-content/uploads/materials/uteplennaya-shvedskaya-plita.jpg [area_modifier] => 146.77 [parent_name] => Фундамент [parent_id] => 1 [material_sum] => 1895350 [work_sum] => 918487 [total_sum] => 2813837 [total_days] => 32 [display_material_sum] => 1 895 350 [display_work_sum] => 918 487 [display_total_sum] => 2 813 837 ) 1
2 813 837
Работа:918 487
Материалы:1 895 350
Дни:32
stdClass Object ( [id] => 75 [attribute_id] => 1 [name] => Ленточный из ФБС [material_modifier] => 1 [work_modifier] => 1 [options] => Array ( [0] => толщ. 300 мм [1] => толщ. 400 мм [2] => толщ. 500 мм [3] => толщ. 600 мм ) [days] => [20,20,20,20] [material_price] => [3675,4902,6126,7350] [work_price] => [2451,3264,4083,4902] [image] => https://akademik-stroy.ru/wp-content/uploads/materials/lentochnyj-iz-fbs.png [area_modifier] => 146.77 [parent_name] => Фундамент [parent_id] => 1 [material_sum] => 679618 [work_sum] => 377720 [total_sum] => 1057338 [total_days] => 20 [display_material_sum] => 679 618 [display_work_sum] => 377 720 [display_total_sum] => 1 057 338 ) 1
1 057 338
Работа:377 720
Материалы:679 618
Дни:20
stdClass Object ( [id] => 76 [attribute_id] => 1 [name] => Цокольный этаж из ФБС [material_modifier] => 1 [work_modifier] => 1 [options] => Array ( [0] => толщ. 300 мм [1] => толщ. 400 мм [2] => толщ. 500 мм [3] => толщ. 600 мм ) [days] => [30,32,34,36] [material_price] => [20916,23299,26680,29060] [work_price] => [17524,18700,19873,21046] [image] => https://akademik-stroy.ru/wp-content/uploads/materials/cokolnyj-ehtazh-iz-fbs.jpg [area_modifier] => 146.77 [parent_name] => Фундамент [parent_id] => 1 [material_sum] => 3868000 [work_sum] => 2700597 [total_sum] => 6568597 [total_days] => 30 [display_material_sum] => 3 868 000 [display_work_sum] => 2 700 597 [display_total_sum] => 6 568 597 ) 1
6 568 597
Работа:2 700 597
Материалы:3 868 000
Дни:30
stdClass Object ( [id] => 77 [attribute_id] => 1 [name] => Цокольный этаж монолитный ж/б [material_modifier] => 1 [work_modifier] => 1 [options] => Array ( [0] => толщ. 200 мм [1] => толщ. 300 мм [2] => толщ. 400 мм [3] => толщ. 500 мм [4] => толщ. 600 мм ) [days] => [40,42,44,46,48] [material_price] => [25421,29148,32275,35602,37326] [work_price] => [20441,21907,23375,24841,26306] [image] => https://akademik-stroy.ru/wp-content/uploads/materials/cokolnyj-etazh-zh-b.jpg [area_modifier] => 146.77 [parent_name] => Фундамент [parent_id] => 1 [material_sum] => 4701111 [work_sum] => 3150132 [total_sum] => 7851243 [total_days] => 40 [display_material_sum] => 4 701 111 [display_work_sum] => 3 150 132 [display_total_sum] => 7 851 243 ) 1
7 851 243
Работа:3 150 132
Материалы:4 701 111
Дни:40
stdClass Object ( [id] => 191 [attribute_id] => 1 [name] => Винтовые сваи [material_modifier] => 1 [work_modifier] => 1 [options] => Array ( [0] => 57х200мм [1] => 76х250мм [2] => 108х300мм [3] => 133х350мм ) [days] => [1,1,2,2] [material_price] => [1200,1300,1450,1600] [work_price] => [400,600,900,1100] [image] => https://akademik-stroy.ru/wp-content/uploads/materials/vintovye-svai.png [area_modifier] => 146.77 [parent_name] => Фундамент [parent_id] => 1 [material_sum] => 221916 [work_sum] => 61643 [total_sum] => 283559 [total_days] => 1 [display_material_sum] => 221 916 [display_work_sum] => 61 643 [display_total_sum] => 283 559 ) 1
283 559
Работа:61 643
Материалы:221 916
Дни:1
Перекрытие цоколя
stdClass Object ( [id] => 3 [attribute_id] => 2 [name] => Деревянные балки [material_modifier] => 1 [work_modifier] => 1 [options] => Array ( [0] => без утепления [1] => утепление 200 мм [2] => утепление 250 мм [3] => утепление 300 мм [4] => утепление 350 мм [5] => утепление 400 мм [6] => утепление 450 мм [7] => утепление 500 мм ) [days] => [8,9,9,9,11,12,13,14] [material_price] => [1634,2042,2344,2947,3149,3652,3354,3557] [work_price] => [1230,1339,1393,1426,1460,1513,1587,1620] [image] => https://akademik-stroy.ru/wp-content/uploads/materials/derevyannye-balki.png [area_modifier] => 146.77 [parent_name] => Перекрытие цоколя [parent_id] => 2 [material_sum] => 302176 [work_sum] => 189553 [total_sum] => 491729 [total_days] => 8 [display_material_sum] => 302 176 [display_work_sum] => 189 553 [display_total_sum] => 491 729 ) 1
491 729
Работа:189 553
Материалы:302 176
Дни:8
stdClass Object ( [id] => 4 [attribute_id] => 2 [name] => Сборные ж/б плиты [material_modifier] => 1 [work_modifier] => 1 [options] => Array ( [0] => без утепления [1] => утепление 150мм [2] => утепление 200мм [3] => утепление 250мм [4] => утепление 300мм [5] => утепление 350мм [6] => утепление 400мм [7] => утепление 450мм [8] => утепление 500мм ) [days] => [13,15,15,15,15,15,15,15,15] [material_price] => [3067,5577,5928,6679,7730,8782,9833,10884,11935] [work_price] => [1520,1956,2102,2247,2392,2537,2684,2829,2974] [image] => https://akademik-stroy.ru/wp-content/uploads/materials/sbornye-zh-b-plity-2.jpg [area_modifier] => 146.77 [parent_name] => Перекрытие цоколя [parent_id] => 2 [material_sum] => 567181 [work_sum] => 234245 [total_sum] => 801426 [total_days] => 13 [display_material_sum] => 567 181 [display_work_sum] => 234 245 [display_total_sum] => 801 426 ) 1
801 426
Работа:234 245
Материалы:567 181
Дни:13
stdClass Object ( [id] => 78 [attribute_id] => 2 [name] => Монолитная ж/б плита [material_modifier] => 1 [work_modifier] => 1 [options] => Array ( [0] => без утепления [1] => утепление 150 мм [2] => утепление 200 мм [3] => утепление 250 мм [4] => утепление 300 мм [5] => утепление 350 мм [6] => утепление 400 мм [7] => утепление 450 мм [8] => утепление 500 мм ) [days] => [18,20,20,20,20,20,20,20,20] [material_price] => [4837,6572,7224,7375,79426,8177,8728,9180,10031] [work_price] => [3348,3921,4112,4302,4493,4684,4875,5066,5256] [image] => https://akademik-stroy.ru/wp-content/uploads/materials/monolitnaya-zh-b-plita-2.jpg [area_modifier] => 146.77 [parent_name] => Перекрытие цоколя [parent_id] => 2 [material_sum] => 894507 [work_sum] => 515955 [total_sum] => 1410462 [total_days] => 18 [display_material_sum] => 894 507 [display_work_sum] => 515 955 [display_total_sum] => 1 410 462 ) 1
1 410 462
Работа:515 955
Материалы:894 507
Дни:18
Стены 1 этаж (несущие)
stdClass Object ( [id] => 6 [attribute_id] => 3 [name] => Пеноблок [material_modifier] => 1 [work_modifier] => 1 [options] => Array ( [0] => 300 мм [1] => 400 мм [2] => 500 мм [3] => 600 мм ) [days] => [29,31,34,39] [material_price] => [3000,4000,4500,4937] [work_price] => [5033,5805,6400,8710] [image] => https://akademik-stroy.ru/wp-content/uploads/materials/penoblok.jpg [area_modifier] => 146.77 [parent_name] => Стены 1 этаж (несущие) [parent_id] => 3 [material_sum] => 554791 [work_sum] => 775628 [total_sum] => 1330419 [total_days] => 29 [display_material_sum] => 554 791 [display_work_sum] => 775 628 [display_total_sum] => 1 330 419 ) 1
1 330 419
Работа:775 628
Материалы:554 791
Дни:29
stdClass Object ( [id] => 79 [attribute_id] => 3 [name] => Керамический блок [material_modifier] => 1 [work_modifier] => 1 [options] => Array ( [0] => 380 мм [1] => 380 мм Thermo [2] => 440 мм [3] => 510 мм ) [days] => [23,23,24,25] [material_price] => [4510,5098,6093,8013] [work_price] => [4737,4937,5903,6958] [image] => https://akademik-stroy.ru/wp-content/uploads/materials/keramicheskij-blok.jpg [area_modifier] => 146.77 [parent_name] => Стены 1 этаж (несущие) [parent_id] => 3 [material_sum] => 834035 [work_sum] => 730012 [total_sum] => 1564047 [total_days] => 23 [display_material_sum] => 834 035 [display_work_sum] => 730 012 [display_total_sum] => 1 564 047 ) 1
1 564 047
Работа:730 012
Материалы:834 035
Дни:23
stdClass Object ( [id] => 80 [attribute_id] => 3 [name] => Кирпич [material_modifier] => 1 [work_modifier] => 1 [options] => Array ( [0] => Кирпич 250 мм [1] => Кирпич 380 мм [2] => Кирпич 510 мм [3] => Кирпич 640 мм [4] => Кирпич 770 мм ) [days] => [30,30,31,33,36] [material_price] => [5500,7142,9206,10171,12235] [work_price] => [8736,10041,12018,15240,18462] [image] => https://akademik-stroy.ru/wp-content/uploads/materials/kirpich.jpg [area_modifier] => 146.77 [parent_name] => Стены 1 этаж (несущие) [parent_id] => 3 [material_sum] => 1017116 [work_sum] => 1346292 [total_sum] => 2363408 [total_days] => 30 [display_material_sum] => 1 017 116 [display_work_sum] => 1 346 292 [display_total_sum] => 2 363 408 ) 1
2 363 408
Работа:1 346 292
Материалы:1 017 116
Дни:30
stdClass Object ( [id] => 81 [attribute_id] => 3 [name] => Монолитные [material_modifier] => 1 [work_modifier] => 1 [options] => Array ( [0] => 150 мм [1] => 200 мм [2] => 250 мм [3] => 300 мм [4] => 350 мм [5] => 400 мм ) [days] => [45,46,47,49,50,53] [material_price] => [6545,7876,10175,12011,13908,15204] [work_price] => [5106,6444,7698,8552,9807,11461] [image] => https://akademik-stroy.ru/wp-content/uploads/materials/monolitnye.jpg [area_modifier] => 146.77 [parent_name] => Стены 1 этаж (несущие) [parent_id] => 3 [material_sum] => 1210368 [work_sum] => 786878 [total_sum] => 1997246 [total_days] => 45 [display_material_sum] => 1 210 368 [display_work_sum] => 786 878 [display_total_sum] => 1 997 246 ) 1
1 997 246
Работа:786 878
Материалы:1 210 368
Дни:45
stdClass Object ( [id] => 82 [attribute_id] => 3 [name] => Клееный брус [material_modifier] => 1 [work_modifier] => 1 [options] => Array ( [0] => 160 мм [1] => 175 мм [2] => 200 мм [3] => 215 мм [4] => 240 мм [5] => 270 мм [6] => 282 мм ) [days] => [24,28,32,37,40,42,48] [material_price] => [16975,18773,19950,20545,21599,22159,23275] [work_price] => [4806,5287,5815,6397,7036,7740,8514] [image] => https://akademik-stroy.ru/wp-content/uploads/materials/kleenyj-brus.jpg [area_modifier] => 146.77 [parent_name] => Стены 1 этаж (несущие) [parent_id] => 3 [material_sum] => 3139190 [work_sum] => 740645 [total_sum] => 3879835 [total_days] => 24 [display_material_sum] => 3 139 190 [display_work_sum] => 740 645 [display_total_sum] => 3 879 835 ) 1
3 879 835
Работа:740 645
Материалы:3 139 190
Дни:24
stdClass Object ( [id] => 83 [attribute_id] => 3 [name] => Каркасные [material_modifier] => 1 [work_modifier] => 1 [options] => Array ( [0] => 150 мм [1] => 200 мм [2] => 250 мм [3] => 300 мм ) [days] => [15,16,17,18] [material_price] => [2379,2639,2898,3258] [work_price] => [2418,2686,2985,3716] [image] => https://akademik-stroy.ru/wp-content/uploads/materials/karkasnye.jpg [area_modifier] => 146.77 [parent_name] => Стены 1 этаж (несущие) [parent_id] => 3 [material_sum] => 439949 [work_sum] => 372634 [total_sum] => 812583 [total_days] => 15 [display_material_sum] => 439 949 [display_work_sum] => 372 634 [display_total_sum] => 812 583 ) 1
812 583
Работа:372 634
Материалы:439 949
Дни:15
stdClass Object ( [id] => 84 [attribute_id] => 3 [name] => СИП-панели [material_modifier] => 1 [work_modifier] => 1 [options] => Array ( [0] => 120 мм [1] => 170 мм [2] => 220 мм ) [days] => [7,7,7] [material_price] => [1210,1856,2292] [work_price] => [1410,1551,1706] [image] => https://akademik-stroy.ru/wp-content/uploads/materials/sip-paneli.jpg [area_modifier] => 146.77 [parent_name] => Стены 1 этаж (несущие) [parent_id] => 3 [material_sum] => 223766 [work_sum] => 217293 [total_sum] => 441059 [total_days] => 7 [display_material_sum] => 223 766 [display_work_sum] => 217 293 [display_total_sum] => 441 059 ) 1
441 059
Работа:217 293
Материалы:223 766
Дни:7
stdClass Object ( [id] => 85 [attribute_id] => 3 [name] => Сухой брус [material_modifier] => 1 [work_modifier] => 1 [options] => Array ( [0] => 150 мм [1] => 180 мм [2] => 200 мм ) [days] => [7,8,9] [material_price] => [6010,7190,8709] [work_price] => [3204,3845,4229] [image] => https://akademik-stroy.ru/wp-content/uploads/materials/suhoj-brus.jpg [area_modifier] => 146.77 [parent_name] => Стены 1 этаж (несущие) [parent_id] => 3 [material_sum] => 1111431 [work_sum] => 493764 [total_sum] => 1605195 [total_days] => 7 [display_material_sum] => 1 111 431 [display_work_sum] => 493 764 [display_total_sum] => 1 605 195 ) 1
1 605 195
Работа:493 764
Материалы:1 111 431
Дни:7
stdClass Object ( [id] => 86 [attribute_id] => 3 [name] => Профилированный брус [material_modifier] => 1 [work_modifier] => 1 [options] => Array ( [0] => 150 мм [1] => 180 мм [2] => 200 мм ) [days] => [7,8,9] [material_price] => [8190,9228,10051] [work_price] => [3845,4614,5075] [image] => https://akademik-stroy.ru/wp-content/uploads/materials/profilirovannyj-brus.jpg [area_modifier] => 146.77 [parent_name] => Стены 1 этаж (несущие) [parent_id] => 3 [material_sum] => 1514578 [work_sum] => 592547 [total_sum] => 2107125 [total_days] => 7 [display_material_sum] => 1 514 578 [display_work_sum] => 592 547 [display_total_sum] => 2 107 125 ) 1
2 107 125
Работа:592 547
Материалы:1 514 578
Дни:7
stdClass Object ( [id] => 87 [attribute_id] => 3 [name] => Оцилиндрованное бревно [material_modifier] => 1 [work_modifier] => 1 [options] => Array ( [0] => 180 мм [1] => 220 мм [2] => 260 мм [3] => 320 мм ) [days] => [7,8,9,10] [material_price] => [75190,9532,10868,13116] [work_price] => [3845,4691,5535,6863] [image] => https://akademik-stroy.ru/wp-content/uploads/materials/ocilindrovannoe-brevno-1.jpg [area_modifier] => 146.77 [parent_name] => Стены 1 этаж (несущие) [parent_id] => 3 [material_sum] => 13904902 [work_sum] => 592547 [total_sum] => 14497449 [total_days] => 7 [display_material_sum] => 13 904 902 [display_work_sum] => 592 547 [display_total_sum] => 14 497 449 ) 1
14 497 449
Работа:592 547
Материалы:13 904 902
Дни:7
stdClass Object ( [id] => 88 [attribute_id] => 3 [name] => Срубы [material_modifier] => 1 [work_modifier] => 1 [options] => Array ( [0] => 260 мм [1] => 320 мм [2] => 360 мм [3] => 400 мм [4] => 500 мм ) [days] => [7,8,9,10,11] [material_price] => [37975,46709,52314,58069,73167] [work_price] => [4806,5911,6621,7349,9260] [image] => https://akademik-stroy.ru/wp-content/uploads/materials/sruby.jpg [area_modifier] => 146.77 [parent_name] => Стены 1 этаж (несущие) [parent_id] => 3 [material_sum] => 7022724 [work_sum] => 740645 [total_sum] => 7763369 [total_days] => 7 [display_material_sum] => 7 022 724 [display_work_sum] => 740 645 [display_total_sum] => 7 763 369 ) 1
7 763 369
Работа:740 645
Материалы:7 022 724
Дни:7
stdClass Object ( [id] => 174 [attribute_id] => 3 [name] => Брус [material_modifier] => 1 [work_modifier] => 1 [options] => Array ( [0] => 150 мм [1] => 180 мм [2] => 200 мм ) [days] => [7,8,9] [material_price] => [5127,6152,7367] [work_price] => [1602,1922,2115] [image] => https://akademik-stroy.ru/wp-content/uploads/materials/brus.jpg [area_modifier] => 146.77 [parent_name] => Стены 1 этаж (несущие) [parent_id] => 3 [material_sum] => 948137 [work_sum] => 246882 [total_sum] => 1195019 [total_days] => 7 [display_material_sum] => 948 137 [display_work_sum] => 246 882 [display_total_sum] => 1 195 019 ) 1
1 195 019
Работа:246 882
Материалы:948 137
Дни:7
stdClass Object ( [id] => 175 [attribute_id] => 3 [name] => Газобетон [material_modifier] => 1 [work_modifier] => 1 [options] => Array ( [0] => 300 мм [1] => 375 мм [2] => 400 мм [3] => 500 мм [4] => 600 мм ) [days] => [29,31,35,37,44] [material_price] => [4298,5573,6356,7288,9119] [work_price] => [4538,5251,5926,6733,7195] [image] => https://akademik-stroy.ru/wp-content/uploads/materials/gazobeton.jpg [area_modifier] => 146.77 [parent_name] => Стены 1 этаж (несущие) [parent_id] => 3 [material_sum] => 794830 [work_sum] => 699344 [total_sum] => 1494174 [total_days] => 29 [display_material_sum] => 794 830 [display_work_sum] => 699 344 [display_total_sum] => 1 494 174 ) 1
1 494 174
Работа:699 344
Материалы:794 830
Дни:29
stdClass Object ( [id] => 176 [attribute_id] => 3 [name] => Блок [material_modifier] => 1 [work_modifier] => 1 [options] => Array ( [0] => 300 мм [1] => 375 мм [2] => 400 мм [3] => 500 мм [4] => 600 мм ) [days] => [29,31,35,37,44] [material_price] => [2698,3973,4356,6588,7119] [work_price] => [5038,5851,6426,8733,9195] [image] => https://akademik-stroy.ru/wp-content/uploads/materials/blok.jpg [area_modifier] => 146.77 [parent_name] => Стены 1 этаж (несущие) [parent_id] => 3 [material_sum] => 498942 [work_sum] => 776399 [total_sum] => 1275341 [total_days] => 29 [display_material_sum] => 498 942 [display_work_sum] => 776 399 [display_total_sum] => 1 275 341 ) 1
1 275 341
Работа:776 399
Материалы:498 942
Дни:29
stdClass Object ( [id] => 177 [attribute_id] => 3 [name] => Газосиликатный блок [material_modifier] => 1 [work_modifier] => 1 [options] => Array ( [0] => 300 мм [1] => 375 мм [2] => 400 мм [3] => 500 мм [4] => 600 мм ) [days] => [29,31,35,37,44] [material_price] => [4298,5573,6356,7288,9119] [work_price] => [4538,5251,5926,6733,7195] [image] => https://akademik-stroy.ru/wp-content/uploads/materials/gazosilikatnyj-blok.jpg [area_modifier] => 146.77 [parent_name] => Стены 1 этаж (несущие) [parent_id] => 3 [material_sum] => 794830 [work_sum] => 699344 [total_sum] => 1494174 [total_days] => 29 [display_material_sum] => 794 830 [display_work_sum] => 699 344 [display_total_sum] => 1 494 174 ) 1
1 494 174
Работа:699 344
Материалы:794 830
Дни:29
stdClass Object ( [id] => 178 [attribute_id] => 3 [name] => Керамзитобетонный блок [material_modifier] => 1 [work_modifier] => 1 [options] => Array ( [0] => 300 мм [1] => 375 мм [2] => 400 мм [3] => 500 мм [4] => 600 мм ) [days] => [23,23,24,25,28] [material_price] => [3641,4298,5693,7613,9612] [work_price] => [5737,5737,6903,7958,8901] [image] => https://akademik-stroy.ru/wp-content/uploads/materials/keramzitobetonnyj-blok.jpg [area_modifier] => 146.77 [parent_name] => Стены 1 этаж (несущие) [parent_id] => 3 [material_sum] => 673331 [work_sum] => 884120 [total_sum] => 1557451 [total_days] => 23 [display_material_sum] => 673 331 [display_work_sum] => 884 120 [display_total_sum] => 1 557 451 ) 1
1 557 451
Работа:884 120
Материалы:673 331
Дни:23
stdClass Object ( [id] => 179 [attribute_id] => 3 [name] => Деревянные [material_modifier] => 1 [work_modifier] => 1 [options] => Array ( [0] => 180 мм [1] => 220 мм [2] => 260 мм [3] => 320 мм ) [days] => [7,8,9,10] [material_price] => [7950,9458,11961,14472] [work_price] => [4037,4925,5812,7207] [image] => https://akademik-stroy.ru/wp-content/uploads/materials/derevyannye.jpg [area_modifier] => 146.77 [parent_name] => Стены 1 этаж (несущие) [parent_id] => 3 [material_sum] => 1470195 [work_sum] => 622136 [total_sum] => 2092331 [total_days] => 7 [display_material_sum] => 1 470 195 [display_work_sum] => 622 136 [display_total_sum] => 2 092 331 ) 1
2 092 331
Работа:622 136
Материалы:1 470 195
Дни:7
stdClass Object ( [id] => 181 [attribute_id] => 3 [name] => Камень [material_modifier] => 1 [work_modifier] => 1 [options] => Array ( [0] => 300 мм [1] => 400 мм [2] => 500 мм [3] => 600 мм ) [days] => [25,27,31,34] [material_price] => [5262,6844,8330,9815] [work_price] => [8331,9135,10427,11069] [image] => https://akademik-stroy.ru/wp-content/uploads/materials/kamen.jpg [area_modifier] => 146.77 [parent_name] => Стены 1 этаж (несущие) [parent_id] => 3 [material_sum] => 973103 [work_sum] => 1283878 [total_sum] => 2256981 [total_days] => 25 [display_material_sum] => 973 103 [display_work_sum] => 1 283 878 [display_total_sum] => 2 256 981 ) 1
2 256 981
Работа:1 283 878
Материалы:973 103
Дни:25
stdClass Object ( [id] => 182 [attribute_id] => 3 [name] => Каркасно-щитовые [material_modifier] => 1 [work_modifier] => 1 [options] => Array ( [0] => 150 мм [1] => 200 мм [2] => 250 мм [3] => 300 мм [4] => 350 мм [5] => 400 мм ) [days] => [15,16,17,18,19,20] [material_price] => [2379,2639,2898,3458,3601,4175] [work_price] => [2538,2820,3134,3483,4062,5642] [image] => https://akademik-stroy.ru/wp-content/uploads/materials/karkasno-shchitovye.jpg [area_modifier] => 146.77 [parent_name] => Стены 1 этаж (несущие) [parent_id] => 3 [material_sum] => 439949 [work_sum] => 391127 [total_sum] => 831076 [total_days] => 15 [display_material_sum] => 439 949 [display_work_sum] => 391 127 [display_total_sum] => 831 076 ) 1
831 076
Работа:391 127
Материалы:439 949
Дни:15
stdClass Object ( [id] => 183 [attribute_id] => 3 [name] => Рубленные [material_modifier] => 1 [work_modifier] => 1 [options] => Array ( [0] => 150 мм [1] => 200 мм [2] => 250 мм [3] => 300 мм [4] => 350 мм [5] => 400 мм ) [days] => [15,16,17,18,17,18] [material_price] => [35950,50267,60583,75900,80217,100533] [work_price] => [9612,12816,16020,19224,22428,25632] [image] => https://akademik-stroy.ru/wp-content/uploads/materials/rublennye.jpg [area_modifier] => 146.77 [parent_name] => Стены 1 этаж (несущие) [parent_id] => 3 [material_sum] => 6648241 [work_sum] => 1481291 [total_sum] => 8129532 [total_days] => 15 [display_material_sum] => 6 648 241 [display_work_sum] => 1 481 291 [display_total_sum] => 8 129 532 ) 1
8 129 532
Работа:1 481 291
Материалы:6 648 241
Дни:15
stdClass Object ( [id] => 185 [attribute_id] => 3 [name] => Теплоблок [material_modifier] => 1 [work_modifier] => 1 [options] => Array ( [0] => 300 мм (с облицовкой, не покрашенный) [1] => 400 мм (с облицовкой, не покрашенный) [2] => 300 мм (с облицовкой, покрашенный) [3] => 400 мм (с облицовкой, покрашенный) ) [days] => [15,16,15,16] [material_price] => [2888,3729,3957,4258] [work_price] => [2564,3229,2949,3713] [image] => https://akademik-stroy.ru/wp-content/uploads/materials/teploblok.jpg [area_modifier] => 146.77 [parent_name] => Стены 1 этаж (несущие) [parent_id] => 3 [material_sum] => 534078 [work_sum] => 395134 [total_sum] => 929212 [total_days] => 15 [display_material_sum] => 534 078 [display_work_sum] => 395 134 [display_total_sum] => 929 212 ) 1
929 212
Работа:395 134
Материалы:534 078
Дни:15
stdClass Object ( [id] => 186 [attribute_id] => 3 [name] => Арболитовые блоки [material_modifier] => 1 [work_modifier] => 1 [options] => Array ( [0] => 300 мм [1] => 400 мм [2] => 600 мм ) [days] => [19,22,27] [material_price] => [3210,4475,5852] [work_price] => [4214,4788,5866] [image] => https://akademik-stroy.ru/wp-content/uploads/materials/arbolitovye-bloki.png [area_modifier] => 146.77 [parent_name] => Стены 1 этаж (несущие) [parent_id] => 3 [material_sum] => 593626 [work_sum] => 649413 [total_sum] => 1243039 [total_days] => 19 [display_material_sum] => 593 626 [display_work_sum] => 649 413 [display_total_sum] => 1 243 039 ) 1
1 243 039
Работа:649 413
Материалы:593 626
Дни:19
stdClass Object ( [id] => 187 [attribute_id] => 3 [name] => Полистиролбетон [material_modifier] => 1 [work_modifier] => 1 [options] => Array ( [0] => 300 мм [1] => 400 мм [2] => 600 мм ) [days] => [29,31,35] [material_price] => [2798,4573,5256] [work_price] => [5038,5851,6426] [image] => https://akademik-stroy.ru/wp-content/uploads/materials/polistirolbeton.jpg [area_modifier] => 146.77 [parent_name] => Стены 1 этаж (несущие) [parent_id] => 3 [material_sum] => 517435 [work_sum] => 776399 [total_sum] => 1293834 [total_days] => 29 [display_material_sum] => 517 435 [display_work_sum] => 776 399 [display_total_sum] => 1 293 834 ) 1
1 293 834
Работа:776 399
Материалы:517 435
Дни:29
stdClass Object ( [id] => 188 [attribute_id] => 3 [name] => Шлакоблок [material_modifier] => 1 [work_modifier] => 1 [options] => Array ( [0] => 400 мм [1] => 600 мм ) [days] => [15,16] [material_price] => [2391,3471] [work_price] => [2642,3662] [image] => https://akademik-stroy.ru/wp-content/uploads/materials/shlakoblok.jpg [area_modifier] => 146.77 [parent_name] => Стены 1 этаж (несущие) [parent_id] => 3 [material_sum] => 442168 [work_sum] => 407155 [total_sum] => 849323 [total_days] => 15 [display_material_sum] => 442 168 [display_work_sum] => 407 155 [display_total_sum] => 849 323 ) 1
849 323
Работа:407 155
Материалы:442 168
Дни:15
stdClass Object ( [id] => 189 [attribute_id] => 3 [name] => Теплая керамика [material_modifier] => 1 [work_modifier] => 1 [options] => Array ( [0] => 380 мм [1] => 380 мм Thermo [2] => 440 мм [3] => 510 мм ) [days] => [23,23,24,25] [material_price] => [4510,5098,6093,8013] [work_price] => [4737,4937,5903,6958] [image] => https://akademik-stroy.ru/wp-content/uploads/materials/teplaya-keramika.jpg [area_modifier] => 146.77 [parent_name] => Стены 1 этаж (несущие) [parent_id] => 3 [material_sum] => 834035 [work_sum] => 730012 [total_sum] => 1564047 [total_days] => 23 [display_material_sum] => 834 035 [display_work_sum] => 730 012 [display_total_sum] => 1 564 047 ) 1
1 564 047
Работа:730 012
Материалы:834 035
Дни:23
stdClass Object ( [id] => 190 [attribute_id] => 3 [name] => Несъемная опалубка [material_modifier] => 1 [work_modifier] => 1 [options] => Array ( [0] => 200 мм [1] => 250 мм [2] => 300 мм [3] => 350 мм ) [days] => [15,17,19,21] [material_price] => [3302,3902,4108,5008] [work_price] => [2100,2100,2300,2534] [image] => https://akademik-stroy.ru/wp-content/uploads/materials/nesemnaya-opalubka.jpg [area_modifier] => 146.77 [parent_name] => Стены 1 этаж (несущие) [parent_id] => 3 [material_sum] => 610640 [work_sum] => 323628 [total_sum] => 934268 [total_days] => 15 [display_material_sum] => 610 640 [display_work_sum] => 323 628 [display_total_sum] => 934 268 ) 1
934 268
Работа:323 628
Материалы:610 640
Дни:15
stdClass Object ( [id] => 251 [attribute_id] => 3 [name] => Бревно [material_modifier] => 1 [work_modifier] => 1 [options] => Array ( [0] => 260 мм [1] => 320 мм [2] => 360 мм [3] => 400 мм [4] => 500 мм ) [days] => [7,8,9,10,11] [material_price] => [1874,24045,26930,30972,38825] [work_price] => [5046,6207,6952,7716,9723] [image] => https://akademik-stroy.ru/wp-content/uploads/materials/sruby.jpg [area_modifier] => 146.77 [parent_name] => Стены 1 этаж (несущие) [parent_id] => 3 [material_sum] => 346559 [work_sum] => 777631 [total_sum] => 1124190 [total_days] => 7 [display_material_sum] => 346 559 [display_work_sum] => 777 631 [display_total_sum] => 1 124 190 ) 1
1 124 190
Работа:777 631
Материалы:346 559
Дни:7
Перекрытие первого этажа
stdClass Object ( [id] => 7 [attribute_id] => 4 [name] => Деревянные балки [material_modifier] => 1 [work_modifier] => 1 [options] => Array ( [0] => без утепления [1] => утепление 200 мм [2] => утепление 250 мм [3] => утепление 300 мм [4] => утепление 350 мм [5] => утепление 400 мм [6] => утепление 450 мм [7] => утепление 500 мм ) [days] => [8,9,9,9,11,12,13,14] [material_price] => [1634,2042,2344,2947,3149,3652,3354,3557] [work_price] => [1230,1339,1393,1426,1460,1513,1587,1620] [image] => https://akademik-stroy.ru/wp-content/uploads/materials/derevyannye-balki.png [area_modifier] => 146.77 [parent_name] => Перекрытие первого этажа [parent_id] => 4 [material_sum] => 302176 [work_sum] => 189553 [total_sum] => 491729 [total_days] => 8 [display_material_sum] => 302 176 [display_work_sum] => 189 553 [display_total_sum] => 491 729 ) 1
491 729
Работа:189 553
Материалы:302 176
Дни:8
stdClass Object ( [id] => 8 [attribute_id] => 4 [name] => Сборные ж/б плиты [material_modifier] => 1 [work_modifier] => 1 [options] => Array ( [0] => без утепления [1] => утепление 150 мм [2] => утепление 200 мм [3] => утепление 250 мм [4] => утепление 300 мм [5] => утепление 350 мм [6] => утепление 400 мм [7] => утепление 450 мм [8] => утепление 500 мм ) [days] => [13,15,15,15,15,15,15,15,15] [material_price] => [3067,5577,5928,6679,7730,8782,9833,10884,11935] [work_price] => [1520,1956,2102,2247,2392,2537,2684,2829,2974] [image] => https://akademik-stroy.ru/wp-content/uploads/materials/sbornye-zh-b-plity-2.jpg [area_modifier] => 146.77 [parent_name] => Перекрытие первого этажа [parent_id] => 4 [material_sum] => 567181 [work_sum] => 234245 [total_sum] => 801426 [total_days] => 13 [display_material_sum] => 567 181 [display_work_sum] => 234 245 [display_total_sum] => 801 426 ) 1
801 426
Работа:234 245
Материалы:567 181
Дни:13
stdClass Object ( [id] => 89 [attribute_id] => 4 [name] => Монолитная ж/б плита [material_modifier] => 1 [work_modifier] => 1 [options] => Array ( [0] => без утепления [1] => утепление 150 мм [2] => утепление 200 мм [3] => утепление 250 мм [4] => утепление 300 мм [5] => утепление 350 мм [6] => утепление 400 мм [7] => утепление 450 мм [8] => утепление 500 мм ) [days] => [18,20,20,20,20,20,20,20,20] [material_price] => [4837,6572,7224,7375,79426,8177,8728,9180,10031] [work_price] => [3348,3921,4112,4302,4493,4684,4875,5066,5256] [image] => https://akademik-stroy.ru/wp-content/uploads/materials/monolitnaya-zh-b-plita-2.jpg [area_modifier] => 146.77 [parent_name] => Перекрытие первого этажа [parent_id] => 4 [material_sum] => 894507 [work_sum] => 515955 [total_sum] => 1410462 [total_days] => 18 [display_material_sum] => 894 507 [display_work_sum] => 515 955 [display_total_sum] => 1 410 462 ) 1
1 410 462
Работа:515 955
Материалы:894 507
Дни:18
Стены 2 этаж (несущие)
stdClass Object ( [id] => 10 [attribute_id] => 5 [name] => Пеноблок [material_modifier] => 1 [work_modifier] => 1 [options] => Array ( [0] => 300 мм [1] => 400 мм [2] => 500 мм [3] => 600 мм ) [days] => [29,31,34,39] [material_price] => [3000,4000,4500,4937] [work_price] => [5033,5805,6400,8710] [image] => https://akademik-stroy.ru/wp-content/uploads/materials/penoblok.jpg [area_modifier] => 97.72 [parent_name] => Стены 2 этаж (несущие) [parent_id] => 5 [material_sum] => 369382 [work_sum] => 516416 [total_sum] => 885798 [total_days] => 29 [display_material_sum] => 369 382 [display_work_sum] => 516 416 [display_total_sum] => 885 798 ) 1
885 798
Работа:516 416
Материалы:369 382
Дни:29
stdClass Object ( [id] => 90 [attribute_id] => 5 [name] => Керамический блок [material_modifier] => 1 [work_modifier] => 1 [options] => Array ( [0] => 380 мм [1] => 380 мм Thermo [2] => 440 мм [3] => 510 мм ) [days] => [23,23,24,25] [material_price] => [4510,5098,6093,8013] [work_price] => [4737,4937,5903,6958] [image] => https://akademik-stroy.ru/wp-content/uploads/materials/keramicheskij-blok.jpg [area_modifier] => 97.72 [parent_name] => Стены 2 этаж (несущие) [parent_id] => 5 [material_sum] => 555304 [work_sum] => 486045 [total_sum] => 1041349 [total_days] => 23 [display_material_sum] => 555 304 [display_work_sum] => 486 045 [display_total_sum] => 1 041 349 ) 1
1 041 349
Работа:486 045
Материалы:555 304
Дни:23
stdClass Object ( [id] => 91 [attribute_id] => 5 [name] => Кирпич [material_modifier] => 1 [work_modifier] => 1 [options] => Array ( [0] => Кирпич 250 мм [1] => Кирпич 380 мм [2] => Кирпич 510 мм [3] => Кирпич 640 мм [4] => Кирпич 770 мм ) [days] => [30,30,31,33,36] [material_price] => [5500,7142,9206,10171,12235] [work_price] => [8736,10041,12018,15240,18462] [image] => https://akademik-stroy.ru/wp-content/uploads/materials/kirpich.jpg [area_modifier] => 97.72 [parent_name] => Стены 2 этаж (несущие) [parent_id] => 5 [material_sum] => 677200 [work_sum] => 896366 [total_sum] => 1573566 [total_days] => 30 [display_material_sum] => 677 200 [display_work_sum] => 896 366 [display_total_sum] => 1 573 566 ) 1
1 573 566
Работа:896 366
Материалы:677 200
Дни:30
stdClass Object ( [id] => 92 [attribute_id] => 5 [name] => Монолитные [material_modifier] => 1 [work_modifier] => 1 [options] => Array ( [0] => 150 мм [1] => 200 мм [2] => 250 мм [3] => 300 мм [4] => 350 мм [5] => 400 мм ) [days] => [45,46,47,49,50,53] [material_price] => [6545,7876,10175,12011,13908,15204] [work_price] => [5106,6444,7698,8552,9807,11461] [image] => https://akademik-stroy.ru/wp-content/uploads/materials/monolitnye.jpg [area_modifier] => 97.72 [parent_name] => Стены 2 этаж (несущие) [parent_id] => 5 [material_sum] => 805868 [work_sum] => 523906 [total_sum] => 1329774 [total_days] => 45 [display_material_sum] => 805 868 [display_work_sum] => 523 906 [display_total_sum] => 1 329 774 ) 1
1 329 774
Работа:523 906
Материалы:805 868
Дни:45
stdClass Object ( [id] => 93 [attribute_id] => 5 [name] => Клееный брус [material_modifier] => 1 [work_modifier] => 1 [options] => Array ( [0] => 160 мм [1] => 175 мм [2] => 200 мм [3] => 215 мм [4] => 240 мм [5] => 270 мм [6] => 282 мм ) [days] => [24,28,32,37,40,42,48] [material_price] => [16975,18773,19950,20545,21599,22159,23275] [work_price] => [4806,5287,5815,6397,7036,7740,8514] [image] => https://akademik-stroy.ru/wp-content/uploads/materials/kleenyj-brus.jpg [area_modifier] => 97.72 [parent_name] => Стены 2 этаж (несущие) [parent_id] => 5 [material_sum] => 2090084 [work_sum] => 493124 [total_sum] => 2583208 [total_days] => 24 [display_material_sum] => 2 090 084 [display_work_sum] => 493 124 [display_total_sum] => 2 583 208 ) 1
2 583 208
Работа:493 124
Материалы:2 090 084
Дни:24
stdClass Object ( [id] => 94 [attribute_id] => 5 [name] => Каркасные [material_modifier] => 1 [work_modifier] => 1 [options] => Array ( [0] => 150 мм [1] => 200 мм [2] => 250 мм [3] => 300 мм ) [days] => [15,16,17,18] [material_price] => [2379,2639,2898,3258] [work_price] => [2418,2686,2985,3716] [image] => https://akademik-stroy.ru/wp-content/uploads/materials/karkasnye.jpg [area_modifier] => 97.72 [parent_name] => Стены 2 этаж (несущие) [parent_id] => 5 [material_sum] => 292920 [work_sum] => 248101 [total_sum] => 541021 [total_days] => 15 [display_material_sum] => 292 920 [display_work_sum] => 248 101 [display_total_sum] => 541 021 ) 1
541 021
Работа:248 101
Материалы:292 920
Дни:15
stdClass Object ( [id] => 95 [attribute_id] => 5 [name] => СИП-панели [material_modifier] => 1 [work_modifier] => 1 [options] => Array ( [0] => 120 мм [1] => 170 мм [2] => 220 мм ) [days] => [7,7,7] [material_price] => [1210,1856,2292] [work_price] => [1410,1551,1706] [image] => https://akademik-stroy.ru/wp-content/uploads/materials/sip-paneli.jpg [area_modifier] => 97.72 [parent_name] => Стены 2 этаж (несущие) [parent_id] => 5 [material_sum] => 148984 [work_sum] => 144674 [total_sum] => 293658 [total_days] => 7 [display_material_sum] => 148 984 [display_work_sum] => 144 674 [display_total_sum] => 293 658 ) 1
293 658
Работа:144 674
Материалы:148 984
Дни:7
stdClass Object ( [id] => 96 [attribute_id] => 5 [name] => Сухой брус [material_modifier] => 1 [work_modifier] => 1 [options] => Array ( [0] => 150 мм [1] => 180 мм [2] => 200 мм ) [days] => [7,8,9] [material_price] => [6010,7190,8709] [work_price] => [3204,3845,4229] [image] => https://akademik-stroy.ru/wp-content/uploads/materials/suhoj-brus.jpg [area_modifier] => 97.72 [parent_name] => Стены 2 этаж (несущие) [parent_id] => 5 [material_sum] => 739994 [work_sum] => 328750 [total_sum] => 1068744 [total_days] => 7 [display_material_sum] => 739 994 [display_work_sum] => 328 750 [display_total_sum] => 1 068 744 ) 1
1 068 744
Работа:328 750
Материалы:739 994
Дни:7
stdClass Object ( [id] => 97 [attribute_id] => 5 [name] => Профилированный брус [material_modifier] => 1 [work_modifier] => 1 [options] => Array ( [0] => 150 мм [1] => 180 мм [2] => 200 мм ) [days] => [7,8,9] [material_price] => [8190,9228,10051] [work_price] => [3845,4614,5075] [image] => https://akademik-stroy.ru/wp-content/uploads/materials/profilirovannyj-brus.jpg [area_modifier] => 97.72 [parent_name] => Стены 2 этаж (несущие) [parent_id] => 5 [material_sum] => 1008412 [work_sum] => 394520 [total_sum] => 1402932 [total_days] => 7 [display_material_sum] => 1 008 412 [display_work_sum] => 394 520 [display_total_sum] => 1 402 932 ) 1
1 402 932
Работа:394 520
Материалы:1 008 412
Дни:7
stdClass Object ( [id] => 98 [attribute_id] => 5 [name] => Оцилиндрованное бревно [material_modifier] => 1 [work_modifier] => 1 [options] => Array ( [0] => 180 мм [1] => 220 мм [2] => 260 мм [3] => 320 мм ) [days] => [7,8,9,10] [material_price] => [75190,9532,10868,13116] [work_price] => [3845,4691,5535,6863] [image] => https://akademik-stroy.ru/wp-content/uploads/materials/ocilindrovannoe-brevno-1.jpg [area_modifier] => 97.72 [parent_name] => Стены 2 этаж (несущие) [parent_id] => 5 [material_sum] => 9257934 [work_sum] => 394520 [total_sum] => 9652454 [total_days] => 7 [display_material_sum] => 9 257 934 [display_work_sum] => 394 520 [display_total_sum] => 9 652 454 ) 1
9 652 454
Работа:394 520
Материалы:9 257 934
Дни:7
stdClass Object ( [id] => 99 [attribute_id] => 5 [name] => Срубы [material_modifier] => 1 [work_modifier] => 1 [options] => Array ( [0] => 260 мм [1] => 320 мм [2] => 360 мм [3] => 400 мм [4] => 500 мм ) [days] => [7,8,9,10,11] [material_price] => [16175,23709,26314,29069,32167] [work_price] => [4806,5911,6621,7349,9260] [image] => https://akademik-stroy.ru/wp-content/uploads/materials/suhoj-brus.jpg [area_modifier] => 97.72 [parent_name] => Стены 2 этаж (несущие) [parent_id] => 5 [material_sum] => 1991582 [work_sum] => 493124 [total_sum] => 2484706 [total_days] => 7 [display_material_sum] => 1 991 582 [display_work_sum] => 493 124 [display_total_sum] => 2 484 706 ) 1
2 484 706
Работа:493 124
Материалы:1 991 582
Дни:7
stdClass Object ( [id] => 194 [attribute_id] => 5 [name] => Брус [material_modifier] => 1 [work_modifier] => 1 [options] => Array ( [0] => 150 мм [1] => 180 мм [2] => 200 мм ) [days] => [10,13,15] [material_price] => [5127,6152,7367] [work_price] => [1602,1922,2115] [image] => https://akademik-stroy.ru/wp-content/uploads/materials/brus.jpg [area_modifier] => 97.72 [parent_name] => Стены 2 этаж (несущие) [parent_id] => 5 [material_sum] => 631273 [work_sum] => 164375 [total_sum] => 795648 [total_days] => 10 [display_material_sum] => 631 273 [display_work_sum] => 164 375 [display_total_sum] => 795 648 ) 1
795 648
Работа:164 375
Материалы:631 273
Дни:10
stdClass Object ( [id] => 195 [attribute_id] => 5 [name] => Газобетон [material_modifier] => 1 [work_modifier] => 1 [options] => Array ( [0] => 300 мм [1] => 375 мм [2] => 400 мм [3] => 500 мм [4] => 600 мм ) [days] => [29,31,35,37,44] [material_price] => [4298,5573,6356,7288,9119] [work_price] => [4538,5251,5926,6733,7195] [image] => https://akademik-stroy.ru/wp-content/uploads/materials/gazobeton.jpg [area_modifier] => 97.72 [parent_name] => Стены 2 этаж (несущие) [parent_id] => 5 [material_sum] => 529201 [work_sum] => 465626 [total_sum] => 994827 [total_days] => 29 [display_material_sum] => 529 201 [display_work_sum] => 465 626 [display_total_sum] => 994 827 ) 1
994 827
Работа:465 626
Материалы:529 201
Дни:29
stdClass Object ( [id] => 196 [attribute_id] => 5 [name] => Блок [material_modifier] => 1 [work_modifier] => 1 [options] => Array ( [0] => 300 мм [1] => 375 мм [2] => 400 мм [3] => 500 мм [4] => 600 мм ) [days] => [29,31,35,37,44] [material_price] => [2698,3973,4356,6588,7119] [work_price] => [5038,5851,6426,8733,9195] [image] => https://akademik-stroy.ru/wp-content/uploads/materials/blok.jpg [area_modifier] => 97.72 [parent_name] => Стены 2 этаж (несущие) [parent_id] => 5 [material_sum] => 332197 [work_sum] => 516929 [total_sum] => 849126 [total_days] => 29 [display_material_sum] => 332 197 [display_work_sum] => 516 929 [display_total_sum] => 849 126 ) 1
849 126
Работа:516 929
Материалы:332 197
Дни:29
stdClass Object ( [id] => 197 [attribute_id] => 5 [name] => Газосиликатный блок [material_modifier] => 1 [work_modifier] => 1 [options] => Array ( [0] => 300 мм [1] => 375 мм [2] => 400 мм [3] => 500 мм [4] => 600 мм ) [days] => [29,31,35,37,44] [material_price] => [4298,5573,6356,7288,9119] [work_price] => [4538,5251,5926,6733,7195] [image] => https://akademik-stroy.ru/wp-content/uploads/materials/gazosilikatnyj-blok.jpg [area_modifier] => 97.72 [parent_name] => Стены 2 этаж (несущие) [parent_id] => 5 [material_sum] => 529201 [work_sum] => 465626 [total_sum] => 994827 [total_days] => 29 [display_material_sum] => 529 201 [display_work_sum] => 465 626 [display_total_sum] => 994 827 ) 1
994 827
Работа:465 626
Материалы:529 201
Дни:29
stdClass Object ( [id] => 198 [attribute_id] => 5 [name] => Керамзитобетонный блок [material_modifier] => 1 [work_modifier] => 1 [options] => Array ( [0] => 300 мм [1] => 375 мм [2] => 400 мм [3] => 500 мм [4] => 600 мм ) [days] => [23,23,24,25,28] [material_price] => [3641,4298,5693,7613,9612] [work_price] => [5737,5737,6903,7958,8901] [image] => https://akademik-stroy.ru/wp-content/uploads/materials/keramzitobetonnyj-blok.jpg [area_modifier] => 97.72 [parent_name] => Стены 2 этаж (несущие) [parent_id] => 5 [material_sum] => 448306 [work_sum] => 588651 [total_sum] => 1036957 [total_days] => 23 [display_material_sum] => 448 306 [display_work_sum] => 588 651 [display_total_sum] => 1 036 957 ) 1
1 036 957
Работа:588 651
Материалы:448 306
Дни:23
stdClass Object ( [id] => 199 [attribute_id] => 5 [name] => Деревянные [material_modifier] => 1 [work_modifier] => 1 [options] => Array ( [0] => 180 мм [1] => 220 мм [2] => 260 мм [3] => 320 мм ) [days] => [7,8,9,10] [material_price] => [7950,9458,11961,14472] [work_price] => [4037,4925,5812,7207] [image] => https://akademik-stroy.ru/wp-content/uploads/materials/derevyannye.jpg [area_modifier] => 97.72 [parent_name] => Стены 2 этаж (несущие) [parent_id] => 5 [material_sum] => 978861 [work_sum] => 414220 [total_sum] => 1393081 [total_days] => 7 [display_material_sum] => 978 861 [display_work_sum] => 414 220 [display_total_sum] => 1 393 081 ) 1
1 393 081
Работа:414 220
Материалы:978 861
Дни:7
stdClass Object ( [id] => 200 [attribute_id] => 5 [name] => Камень [material_modifier] => 1 [work_modifier] => 1 [options] => Array ( [0] => 300 мм [1] => 400 мм [2] => 500 мм [3] => 600 мм ) [days] => [25,27,31,34] [material_price] => [5262,6844,8330,9815] [work_price] => [8331,9135,10427,11069] [image] => https://akademik-stroy.ru/wp-content/uploads/materials/kamen.jpg [area_modifier] => 97.72 [parent_name] => Стены 2 этаж (несущие) [parent_id] => 5 [material_sum] => 647895 [work_sum] => 854811 [total_sum] => 1502706 [total_days] => 25 [display_material_sum] => 647 895 [display_work_sum] => 854 811 [display_total_sum] => 1 502 706 ) 1
1 502 706
Работа:854 811
Материалы:647 895
Дни:25
stdClass Object ( [id] => 201 [attribute_id] => 5 [name] => Каркасно-щитовые [material_modifier] => 1 [work_modifier] => 1 [options] => Array ( [0] => 150 мм [1] => 200 мм [2] => 250 мм [3] => 300 мм [4] => 350 мм [5] => 400 мм ) [days] => [15,16,17,18,19,20] [material_price] => [2379,2639,2898,3458,3601,4175] [work_price] => [2538,2820,3134,3483,4062,5642] [image] => https://akademik-stroy.ru/wp-content/uploads/materials/karkasno-shchitovye.jpg [area_modifier] => 97.72 [parent_name] => Стены 2 этаж (несущие) [parent_id] => 5 [material_sum] => 292920 [work_sum] => 260414 [total_sum] => 553334 [total_days] => 15 [display_material_sum] => 292 920 [display_work_sum] => 260 414 [display_total_sum] => 553 334 ) 1
553 334
Работа:260 414
Материалы:292 920
Дни:15
stdClass Object ( [id] => 202 [attribute_id] => 5 [name] => Рубленные [material_modifier] => 1 [work_modifier] => 1 [options] => Array ( [0] => 150 мм [1] => 200 мм [2] => 250 мм [3] => 300 мм [4] => 350 мм [5] => 400 мм ) [days] => [15,16,17,18,17,18] [material_price] => [35950,50267,60583,75900,80217,100533] [work_price] => [9612,12816,16020,19224,22428,25632] [image] => https://akademik-stroy.ru/wp-content/uploads/materials/rublennye.jpg [area_modifier] => 97.72 [parent_name] => Стены 2 этаж (несущие) [parent_id] => 5 [material_sum] => 4426423 [work_sum] => 986249 [total_sum] => 5412672 [total_days] => 15 [display_material_sum] => 4 426 423 [display_work_sum] => 986 249 [display_total_sum] => 5 412 672 ) 1
5 412 672
Работа:986 249
Материалы:4 426 423
Дни:15
stdClass Object ( [id] => 203 [attribute_id] => 5 [name] => Теплоблок [material_modifier] => 1 [work_modifier] => 1 [options] => Array ( [0] => 300 мм (с облицовкой, не покрашенный) [1] => 400 мм (с облицовкой, не покрашенный) [2] => 300 мм (с облицовкой, покрашенный) [3] => 400 мм (с облицовкой, покрашенный) ) [days] => [15,16,15,16] [material_price] => [2888,3729,3957,4258] [work_price] => [2564,3229,2949,3713] [image] => https://akademik-stroy.ru/wp-content/uploads/materials/teploblok.jpg [area_modifier] => 97.72 [parent_name] => Стены 2 этаж (несущие) [parent_id] => 5 [material_sum] => 355591 [work_sum] => 263082 [total_sum] => 618673 [total_days] => 15 [display_material_sum] => 355 591 [display_work_sum] => 263 082 [display_total_sum] => 618 673 ) 1
618 673
Работа:263 082
Материалы:355 591
Дни:15
stdClass Object ( [id] => 204 [attribute_id] => 5 [name] => Арболитовые блоки [material_modifier] => 1 [work_modifier] => 1 [options] => Array ( [0] => 300 мм [1] => 400 мм [2] => 600 мм ) [days] => [19,22,27] [material_price] => [3210,4475,5852] [work_price] => [4214,4788,5866] [image] => https://akademik-stroy.ru/wp-content/uploads/materials/arbolitovye-bloki.png [area_modifier] => 97.72 [parent_name] => Стены 2 этаж (несущие) [parent_id] => 5 [material_sum] => 395238 [work_sum] => 432382 [total_sum] => 827620 [total_days] => 19 [display_material_sum] => 395 238 [display_work_sum] => 432 382 [display_total_sum] => 827 620 ) 1
827 620
Работа:432 382
Материалы:395 238
Дни:19
stdClass Object ( [id] => 205 [attribute_id] => 5 [name] => Полистиролбетон [material_modifier] => 1 [work_modifier] => 1 [options] => Array ( [0] => 300 мм [1] => 400 мм [2] => 600 мм ) [days] => [29,31,35] [material_price] => [2798,4573,5256] [work_price] => [5038,5851,6426] [image] => https://akademik-stroy.ru/wp-content/uploads/materials/polistirolbeton.jpg [area_modifier] => 97.72 [parent_name] => Стены 2 этаж (несущие) [parent_id] => 5 [material_sum] => 344510 [work_sum] => 516929 [total_sum] => 861439 [total_days] => 29 [display_material_sum] => 344 510 [display_work_sum] => 516 929 [display_total_sum] => 861 439 ) 1
861 439
Работа:516 929
Материалы:344 510
Дни:29
stdClass Object ( [id] => 206 [attribute_id] => 5 [name] => Шлакоблок [material_modifier] => 1 [work_modifier] => 1 [options] => Array ( [0] => 400 мм [1] => 600 мм ) [days] => [15,16] [material_price] => [2391,3471] [work_price] => [2642,3662] [image] => https://akademik-stroy.ru/wp-content/uploads/materials/shlakoblok.jpg [area_modifier] => 97.72 [parent_name] => Стены 2 этаж (несущие) [parent_id] => 5 [material_sum] => 294397 [work_sum] => 271085 [total_sum] => 565482 [total_days] => 15 [display_material_sum] => 294 397 [display_work_sum] => 271 085 [display_total_sum] => 565 482 ) 1
565 482
Работа:271 085
Материалы:294 397
Дни:15
stdClass Object ( [id] => 245 [attribute_id] => 5 [name] => Теплая керамика [material_modifier] => 1 [work_modifier] => 1 [options] => Array ( [0] => 380 мм [1] => 380 мм Thermo [2] => 440 мм [3] => 510 мм ) [days] => [10,10,11,12] [material_price] => [4510,5098,6093,8013] [work_price] => [4737,4937,5903,6958] [image] => https://akademik-stroy.ru/wp-content/uploads/materials/teplaya-keramika.jpg [area_modifier] => 97.72 [parent_name] => Стены 2 этаж (несущие) [parent_id] => 5 [material_sum] => 555304 [work_sum] => 486045 [total_sum] => 1041349 [total_days] => 10 [display_material_sum] => 555 304 [display_work_sum] => 486 045 [display_total_sum] => 1 041 349 ) 1
1 041 349
Работа:486 045
Материалы:555 304
Дни:10
stdClass Object ( [id] => 246 [attribute_id] => 5 [name] => Несъемная опалубка [material_modifier] => 1 [work_modifier] => 1 [options] => Array ( [0] => 380 мм [1] => 380 мм Thermo [2] => 440 мм [3] => 510 мм ) [days] => [10,10,11,12] [material_price] => [3302,3902,4108,5008] [work_price] => [2100,2100,2300,2534] [image] => https://akademik-stroy.ru/wp-content/uploads/materials/nesemnaya-opalubka.jpg [area_modifier] => 97.72 [parent_name] => Стены 2 этаж (несущие) [parent_id] => 5 [material_sum] => 406566 [work_sum] => 215473 [total_sum] => 622039 [total_days] => 10 [display_material_sum] => 406 566 [display_work_sum] => 215 473 [display_total_sum] => 622 039 ) 1
622 039
Работа:215 473
Материалы:406 566
Дни:10
stdClass Object ( [id] => 254 [attribute_id] => 5 [name] => Бревно [material_modifier] => 1 [work_modifier] => 1 [options] => Array ( [0] => 260 мм [1] => 320 мм [2] => 360 мм [3] => 400 мм [4] => 500 мм ) [days] => [7,8,9,10,11] [material_price] => [1874,24045,26930,30972,38825] [work_price] => [5046,6207,6952,7716,9723] [image] => https://akademik-stroy.ru/wp-content/uploads/materials/sruby.jpg [area_modifier] => 97.72 [parent_name] => Стены 2 этаж (несущие) [parent_id] => 5 [material_sum] => 230740 [work_sum] => 517750 [total_sum] => 748490 [total_days] => 7 [display_material_sum] => 230 740 [display_work_sum] => 517 750 [display_total_sum] => 748 490 ) 1
748 490
Работа:517 750
Материалы:230 740
Дни:7
Крыша (Скатная)
stdClass Object ( [id] => 164 [attribute_id] => 37 [name] => Металлочерепица [material_modifier] => 1 [work_modifier] => 1 [options] => Array ( ) [days] => [20] [material_price] => [6112] [work_price] => [5726] [image] => https://akademik-stroy.ru/wp-content/uploads/materials/metallocherepica.jpg [area_modifier] => 146.77 [parent_name] => Крыша (Скатная) [parent_id] => 37 [material_sum] => 1130293 [work_sum] => 882425 [total_sum] => 2012718 [total_days] => 20 [display_material_sum] => 1 130 293 [display_work_sum] => 882 425 [display_total_sum] => 2 012 718 ) 1
2 012 718
Работа:882 425
Материалы:1 130 293
Дни:20
stdClass Object ( [id] => 165 [attribute_id] => 37 [name] => Гибкая черепица [material_modifier] => 1 [work_modifier] => 1 [options] => Array ( ) [days] => [20] [material_price] => [6980] [work_price] => [5950] [image] => https://akademik-stroy.ru/wp-content/uploads/materials/gibkaya-cherepica.jpg [area_modifier] => 146.77 [parent_name] => Крыша (Скатная) [parent_id] => 37 [material_sum] => 1290813 [work_sum] => 916946 [total_sum] => 2207759 [total_days] => 20 [display_material_sum] => 1 290 813 [display_work_sum] => 916 946 [display_total_sum] => 2 207 759 ) 1
2 207 759
Работа:916 946
Материалы:1 290 813
Дни:20
stdClass Object ( [id] => 166 [attribute_id] => 37 [name] => Цементно-песчаная черепица [material_modifier] => 1 [work_modifier] => 1 [options] => Array ( ) [days] => [20] [material_price] => [10560] [work_price] => [9456] [image] => https://akademik-stroy.ru/wp-content/uploads/materials/cementno-peschanaya-cherepica.jpg [area_modifier] => 146.77 [parent_name] => Крыша (Скатная) [parent_id] => 37 [material_sum] => 1952863 [work_sum] => 1457250 [total_sum] => 3410113 [total_days] => 20 [display_material_sum] => 1 952 863 [display_work_sum] => 1 457 250 [display_total_sum] => 3 410 113 ) 1
3 410 113
Работа:1 457 250
Материалы:1 952 863
Дни:20
stdClass Object ( [id] => 167 [attribute_id] => 37 [name] => Композитная черепица [material_modifier] => 1 [work_modifier] => 1 [options] => Array ( ) [days] => [20] [material_price] => [9506] [work_price] => [8905] [image] => https://akademik-stroy.ru/wp-content/uploads/materials/kompozitnaya-cherepica.jpg [area_modifier] => 146.77 [parent_name] => Крыша (Скатная) [parent_id] => 37 [material_sum] => 1757946 [work_sum] => 1372336 [total_sum] => 3130282 [total_days] => 20 [display_material_sum] => 1 757 946 [display_work_sum] => 1 372 336 [display_total_sum] => 3 130 282 ) 1
3 130 282
Работа:1 372 336
Материалы:1 757 946
Дни:20
stdClass Object ( [id] => 168 [attribute_id] => 37 [name] => Керамическая черепица [material_modifier] => 1 [work_modifier] => 1 [options] => Array ( ) [days] => [20] [material_price] => [12750] [work_price] => [9456] [image] => https://akademik-stroy.ru/wp-content/uploads/materials/keramicheskaya-cherepica.jpg [area_modifier] => 146.77 [parent_name] => Крыша (Скатная) [parent_id] => 37 [material_sum] => 2357860 [work_sum] => 1457250 [total_sum] => 3815110 [total_days] => 20 [display_material_sum] => 2 357 860 [display_work_sum] => 1 457 250 [display_total_sum] => 3 815 110 ) 1
3 815 110
Работа:1 457 250
Материалы:2 357 860
Дни:20
stdClass Object ( [id] => 169 [attribute_id] => 37 [name] => Металлическая фальцевая [material_modifier] => 1 [work_modifier] => 1 [options] => Array ( ) [days] => [20] [material_price] => [8550] [work_price] => [8190] [image] => https://akademik-stroy.ru/wp-content/uploads/materials/metallicheskaya-falcevaya.jpg [area_modifier] => 146.77 [parent_name] => Крыша (Скатная) [parent_id] => 37 [material_sum] => 1581153 [work_sum] => 1262149 [total_sum] => 2843302 [total_days] => 20 [display_material_sum] => 1 581 153 [display_work_sum] => 1 262 149 [display_total_sum] => 2 843 302 ) 1
2 843 302
Работа:1 262 149
Материалы:1 581 153
Дни:20
stdClass Object ( [id] => 170 [attribute_id] => 37 [name] => Медная фальцевая [material_modifier] => 1 [work_modifier] => 1 [options] => Array ( ) [days] => [20] [material_price] => [20450] [work_price] => [16750] [image] => https://akademik-stroy.ru/wp-content/uploads/materials/mednaya-falcevaya.jpg [area_modifier] => 146.77 [parent_name] => Крыша (Скатная) [parent_id] => 37 [material_sum] => 3781823 [work_sum] => 2581317 [total_sum] => 6363140 [total_days] => 20 [display_material_sum] => 3 781 823 [display_work_sum] => 2 581 317 [display_total_sum] => 6 363 140 ) 1
6 363 140
Работа:2 581 317
Материалы:3 781 823
Дни:20
stdClass Object ( [id] => 171 [attribute_id] => 37 [name] => Зеленая кровля [material_modifier] => 1 [work_modifier] => 1 [options] => Array ( ) [days] => [20] [material_price] => [19850] [work_price] => [16780] [image] => https://akademik-stroy.ru/wp-content/uploads/materials/zelenaya-krovlya.jpg [area_modifier] => 146.77 [parent_name] => Крыша (Скатная) [parent_id] => 37 [material_sum] => 3670864 [work_sum] => 2585941 [total_sum] => 6256805 [total_days] => 20 [display_material_sum] => 3 670 864 [display_work_sum] => 2 585 941 [display_total_sum] => 6 256 805 ) 1
6 256 805
Работа:2 585 941
Материалы:3 670 864
Дни:20
stdClass Object ( [id] => 172 [attribute_id] => 37 [name] => Профлист [material_modifier] => 1 [work_modifier] => 1 [options] => Array ( ) [days] => [20] [material_price] => [3450] [work_price] => [3750] [image] => https://akademik-stroy.ru/wp-content/uploads/materials/proflist.jpg [area_modifier] => 146.77 [parent_name] => Крыша (Скатная) [parent_id] => 37 [material_sum] => 638009 [work_sum] => 577907 [total_sum] => 1215916 [total_days] => 20 [display_material_sum] => 638 009 [display_work_sum] => 577 907 [display_total_sum] => 1 215 916 ) 1
1 215 916
Работа:577 907
Материалы:638 009
Дни:20
Окна
stdClass Object ( [id] => 51 [attribute_id] => 26 [name] => Есть [material_modifier] => 1 [work_modifier] => 1 [options] => Array ( [0] => Профиль 58 мм, 3-камерный, стеклопакет 2-камерный до 32 мм [1] => Профиль 60 мм, 4-камерный, стеклопакет 2-камерный до 32 мм [2] => Профиль 70 мм, 5-камерный, стеклопакет 2-камерный до 40 мм [3] => Профиль 72 мм, 5-камерный, стеклопакет 2-камерный до 40 мм [4] => Алюминиевые окна Alutech профиль 72 мм, стеклопакет 2-камерный ) [days] => [3,3,3,3,3] [material_price] => [1339,2124,2867,3023,29596] [work_price] => [635,647,659,668,2579] [image] => https://akademik-stroy.ru/wp-content/uploads/materials/okna.jpg [area_modifier] => 198.4 [parent_name] => Окна [parent_id] => 26 [material_sum] => 334729 [work_sum] => 132283 [total_sum] => 467012 [total_days] => 3 [display_material_sum] => 334 729 [display_work_sum] => 132 283 [display_total_sum] => 467 012 ) 1
467 012
Работа:132 283
Материалы:334 729
Дни:3
stdClass Object ( [id] => 52 [attribute_id] => 26 [name] => Нет [material_modifier] => 2 [work_modifier] => 1 [options] => [days] => null [material_price] => null [work_price] => null [image] => https://akademik-stroy.ru/wp-content/uploads/materials/okna.jpg [area_modifier] => 198.4 [parent_name] => Окна [parent_id] => 26 [material_sum] => 0 [work_sum] => 0 [total_sum] => 0 [total_days] => 0 [display_material_sum] => 0 [display_work_sum] => 0 [display_total_sum] => 0 ) 1
0
Работа:0
Материалы:0
Дни:0
Двери входные
stdClass Object ( [id] => 53 [attribute_id] => 27 [name] => Есть [material_modifier] => 1 [work_modifier] => 1 [options] => Array ( ) [days] => [1] [material_price] => [10000] [work_price] => [5500] [image] => https://akademik-stroy.ru/wp-content/uploads/materials/dveri.jpg [area_modifier] => 1 [parent_name] => Двери входные [parent_id] => 27 [material_sum] => 12600 [work_sum] => 5775 [total_sum] => 18375 [total_days] => 1 [display_material_sum] => 12 600 [display_work_sum] => 5 775 [display_total_sum] => 18 375 ) 1
18 375
Работа:5 775
Материалы:12 600
Дни:1
stdClass Object ( [id] => 54 [attribute_id] => 27 [name] => Нет [material_modifier] => 1 [work_modifier] => 1 [options] => Array ( ) [days] => [0] [material_price] => [0] [work_price] => [0] [image] => https://akademik-stroy.ru/wp-content/uploads/materials/dveri.jpg [area_modifier] => 1 [parent_name] => Двери входные [parent_id] => 27 [material_sum] => 0 [work_sum] => 0 [total_sum] => 0 [total_days] => 0 [display_material_sum] => 0 [display_work_sum] => 0 [display_total_sum] => 0 ) 1
0
Работа:0
Материалы:0
Дни:0
Утепление кровли (Мансарда)
stdClass Object ( [id] => 25 [attribute_id] => 13 [name] => Нет [material_modifier] => 1 [work_modifier] => 1 [options] => Array ( ) [days] => [0] [material_price] => [0] [work_price] => [0] [image] => https://akademik-stroy.ru/wp-content/uploads/materials/mineralovata-krov.jpg [area_modifier] => 146.77 [parent_name] => Утепление кровли (Мансарда) [parent_id] => 13 [material_sum] => 0 [work_sum] => 0 [total_sum] => 0 [total_days] => 0 [display_material_sum] => 0 [display_work_sum] => 0 [display_total_sum] => 0 ) 1
0
Работа:0
Материалы:0
Дни:0
stdClass Object ( [id] => 26 [attribute_id] => 13 [name] => Минераловатный [material_modifier] => 1 [work_modifier] => 1 [options] => Array ( [0] => 50 мм [1] => 100 мм [2] => 150 мм [3] => 200 мм [4] => 250 мм [5] => 300 мм [6] => 350 мм [7] => 400 мм [8] => 450 мм [9] => 500 мм ) [days] => [5,5,6,6,6,7,7,7,8,8] [material_price] => [1158,1414,1772,2230,3602,4060,4974,5890,6408,7718] [work_price] => [650,846,846,1098,1318,1450,1596,1754,1930,2122] [image] => https://akademik-stroy.ru/wp-content/uploads/materials/mineralovata-krov.jpg [area_modifier] => 146.77 [parent_name] => Утепление кровли (Мансарда) [parent_id] => 13 [material_sum] => 214149 [work_sum] => 100171 [total_sum] => 314320 [total_days] => 5 [display_material_sum] => 214 149 [display_work_sum] => 100 171 [display_total_sum] => 314 320 ) 1
314 320
Работа:100 171
Материалы:214 149
Дни:5
stdClass Object ( [id] => 123 [attribute_id] => 13 [name] => Эковата (целлюлозная вата) [material_modifier] => 1 [work_modifier] => 1 [options] => Array ( [0] => 50 мм [1] => 100 мм [2] => 150 мм [3] => 200 мм [4] => 250 мм [5] => 300 мм [6] => 350 мм [7] => 400 мм [8] => 450 мм [9] => 500 мм ) [days] => [3,3,4,4,4,5,5,5,5,5] [material_price] => [820,1638,2458,3276,5734,6552,8190,9828,11466,13104] [work_price] => [234,304,304,396,474,522,574,632,694,764] [image] => https://akademik-stroy.ru/wp-content/uploads/materials/ehkovata-krov.jpg [area_modifier] => 146.77 [parent_name] => Утепление кровли (Мансарда) [parent_id] => 13 [material_sum] => 151643 [work_sum] => 36061 [total_sum] => 187704 [total_days] => 3 [display_material_sum] => 151 643 [display_work_sum] => 36 061 [display_total_sum] => 187 704 ) 1
187 704
Работа:36 061
Материалы:151 643
Дни:3
stdClass Object ( [id] => 124 [attribute_id] => 13 [name] => Экструдированный пенополистирол [material_modifier] => 1 [work_modifier] => 1 [options] => Array ( [0] => 50 мм [1] => 100 мм [2] => 150 мм [3] => 200 мм [4] => 250 мм [5] => 300 мм [6] => 350 мм [7] => 400 мм [8] => 450 мм [9] => 500 мм ) [days] => [3,3,4,4,4,5,5,5,5,6] [material_price] => [1146,2292,3438,4584,8020,9166,11458,13750,16040,18332] [work_price] => [390,508,508,660,790,870,958,1052,1158,1274] [image] => https://akademik-stroy.ru/wp-content/uploads/materials/epps-krov.jpg [area_modifier] => 146.77 [parent_name] => Утепление кровли (Мансарда) [parent_id] => 13 [material_sum] => 211930 [work_sum] => 60102 [total_sum] => 272032 [total_days] => 3 [display_material_sum] => 211 930 [display_work_sum] => 60 102 [display_total_sum] => 272 032 ) 1
272 032
Работа:60 102
Материалы:211 930
Дни:3
stdClass Object ( [id] => 125 [attribute_id] => 13 [name] => ПСБ (ППС-пенополистирол) [material_modifier] => 1 [work_modifier] => 1 [options] => Array ( [0] => 50 мм [1] => 100 мм [2] => 150 мм [3] => 200 мм [4] => 250 мм [5] => 300 мм [6] => 350 мм [7] => 400 мм [8] => 450 мм [9] => 500 мм ) [days] => [3,3,4,4,4,5,5,5,5,6] [material_price] => [476,954,1430,1906,3336,3814,4766,5720,6674,7626] [work_price] => [390,508,508,660,790,870,958,1052,1158,1274] [image] => https://akademik-stroy.ru/wp-content/uploads/materials/psb-krov.jpg [area_modifier] => 146.77 [parent_name] => Утепление кровли (Мансарда) [parent_id] => 13 [material_sum] => 88027 [work_sum] => 60102 [total_sum] => 148129 [total_days] => 3 [display_material_sum] => 88 027 [display_work_sum] => 60 102 [display_total_sum] => 148 129 ) 1
148 129
Работа:60 102
Материалы:88 027
Дни:3
stdClass Object ( [id] => 126 [attribute_id] => 13 [name] => ППУ (Пенополиуретан) [material_modifier] => 1 [work_modifier] => 1 [options] => Array ( [0] => 50 мм [1] => 100 мм [2] => 150 мм [3] => 200 мм [4] => 250 мм [5] => 300 мм [6] => 350 мм [7] => 400 мм [8] => 450 мм [9] => 500 мм ) [days] => [2,2,3,3,3,3,4,4,4,4] [material_price] => [2080,4160,6240,8320,14560,16640,20800,24960,29120,33280] [work_price] => [234,304,304,396,474,522,574,632,694,764] [image] => https://akademik-stroy.ru/wp-content/uploads/materials/ppu-krov.jpg [area_modifier] => 146.77 [parent_name] => Утепление кровли (Мансарда) [parent_id] => 13 [material_sum] => 384655 [work_sum] => 36061 [total_sum] => 420716 [total_days] => 2 [display_material_sum] => 384 655 [display_work_sum] => 36 061 [display_total_sum] => 420 716 ) 1
420 716
Работа:36 061
Материалы:384 655
Дни:2
stdClass Object ( [id] => 127 [attribute_id] => 13 [name] => PIR-плиты (пенополиизоцианурат) [material_modifier] => 1 [work_modifier] => 1 [options] => Array ( [0] => 50 мм [1] => 100 мм [2] => 150 мм [3] => 200 мм [4] => 250 мм [5] => 300 мм [6] => 350 мм [7] => 400 мм [8] => 450 мм [9] => 500 мм ) [days] => [3,3,4,4,4,5,5,5,5,6] [material_price] => [2646,5290,7936,10580,18516,21162,26452,31742,37032,42324] [work_price] => [390,508,508,660,790,870,958,1052,1158,1274] [image] => https://akademik-stroy.ru/wp-content/uploads/materials/pir-krov.jpg [area_modifier] => 146.77 [parent_name] => Утепление кровли (Мансарда) [parent_id] => 13 [material_sum] => 489325 [work_sum] => 60102 [total_sum] => 549427 [total_days] => 3 [display_material_sum] => 489 325 [display_work_sum] => 60 102 [display_total_sum] => 549 427 ) 1
549 427
Работа:60 102
Материалы:489 325
Дни:3
Мансардные окна
stdClass Object ( [id] => 27 [attribute_id] => 14 [name] => Нет [material_modifier] => 1 [work_modifier] => 1 [options] => Array ( ) [days] => [0] [material_price] => [0] [work_price] => [0] [image] => https://akademik-stroy.ru/wp-content/uploads/materials/mansardnye-okna-2.jpg [area_modifier] => 1 [parent_name] => Мансардные окна [parent_id] => 14 [material_sum] => 0 [work_sum] => 0 [total_sum] => 0 [total_days] => 0 [display_material_sum] => 0 [display_work_sum] => 0 [display_total_sum] => 0 ) 1
0
Работа:0
Материалы:0
Дни:0
stdClass Object ( [id] => 28 [attribute_id] => 14 [name] => Есть [material_modifier] => 1 [work_modifier] => 1 [options] => Array ( [0] => 55x78 [1] => 55x98 ) [days] => [6,7] [material_price] => [47480,68700] [work_price] => [17900,19500] [image] => https://akademik-stroy.ru/wp-content/uploads/materials/mansardnye-okna-2.jpg [area_modifier] => 1 [parent_name] => Мансардные окна [parent_id] => 14 [material_sum] => 59825 [work_sum] => 18795 [total_sum] => 78620 [total_days] => 6 [display_material_sum] => 59 825 [display_work_sum] => 18 795 [display_total_sum] => 78 620 ) 1
78 620
Работа:18 795
Материалы:59 825
Дни:6
Подшивка кровли
stdClass Object ( [id] => 29 [attribute_id] => 15 [name] => Нет [material_modifier] => 1 [work_modifier] => 1 [options] => Array ( ) [days] => [0] [material_price] => [0] [work_price] => [0] [image] => https://akademik-stroy.ru/wp-content/uploads/materials/sofit.jpg [area_modifier] => 146.77 [parent_name] => Подшивка кровли [parent_id] => 15 [material_sum] => 0 [work_sum] => 0 [total_sum] => 0 [total_days] => 0 [display_material_sum] => 0 [display_work_sum] => 0 [display_total_sum] => 0 ) 1
0
Работа:0
Материалы:0
Дни:0
stdClass Object ( [id] => 30 [attribute_id] => 15 [name] => Есть [material_modifier] => 1 [work_modifier] => 1 [options] => Array ( [0] => Софиты (ПВХ) [1] => Cedral [2] => ДПК [3] => Планкен ) [days] => [7,10,9,8] [material_price] => [1803,3213,3025,3150] [work_price] => [1529,2188,2075,1923] [image] => https://akademik-stroy.ru/wp-content/uploads/materials/sofit.jpg [area_modifier] => 146.77 [parent_name] => Подшивка кровли [parent_id] => 15 [material_sum] => 333429 [work_sum] => 235632 [total_sum] => 569061 [total_days] => 7 [display_material_sum] => 333 429 [display_work_sum] => 235 632 [display_total_sum] => 569 061 ) 1
569 061
Работа:235 632
Материалы:333 429
Дни:7
Водосточная система
stdClass Object ( [id] => 31 [attribute_id] => 16 [name] => Нет [material_modifier] => 1 [work_modifier] => 1 [options] => Array ( ) [days] => [0] [material_price] => [0] [work_price] => [0] [image] => https://akademik-stroy.ru/wp-content/uploads/materials/docke-standard-pvh.jpg [area_modifier] => 146.77 [parent_name] => Водосточная система [parent_id] => 16 [material_sum] => 0 [work_sum] => 0 [total_sum] => 0 [total_days] => 0 [display_material_sum] => 0 [display_work_sum] => 0 [display_total_sum] => 0 ) 1
0
Работа:0
Материалы:0
Дни:0
stdClass Object ( [id] => 32 [attribute_id] => 16 [name] => Есть [material_modifier] => 1 [work_modifier] => 1 [options] => Array ( [0] => Döcke Standard (ПВХ) [1] => Металлические Grand Line ) [days] => [7,7] [material_price] => [1842,2703] [work_price] => [1491,1529] [image] => https://akademik-stroy.ru/wp-content/uploads/materials/docke-standard-pvh.jpg [area_modifier] => 146.77 [parent_name] => Водосточная система [parent_id] => 16 [material_sum] => 340641 [work_sum] => 229776 [total_sum] => 570417 [total_days] => 7 [display_material_sum] => 340 641 [display_work_sum] => 229 776 [display_total_sum] => 570 417 ) 1
570 417
Работа:229 776
Материалы:340 641
Дни:7
Дополнительное утепление наружных стен
stdClass Object ( [id] => 33 [attribute_id] => 17 [name] => Нет [material_modifier] => 1 [work_modifier] => 1 [options] => Array ( ) [days] => [0] [material_price] => [0] [work_price] => [0] [image] => https://akademik-stroy.ru/wp-content/uploads/materials/mineralovata.jpg [area_modifier] => 244.49 [parent_name] => Дополнительное утепление наружных стен [parent_id] => 17 [material_sum] => 0 [work_sum] => 0 [total_sum] => 0 [total_days] => 0 [display_material_sum] => 0 [display_work_sum] => 0 [display_total_sum] => 0 ) 1
0
Работа:0
Материалы:0
Дни:0
stdClass Object ( [id] => 34 [attribute_id] => 17 [name] => Минераловатный [material_modifier] => 1 [work_modifier] => 1 [options] => Array ( [0] => 50 мм [1] => 100 мм [2] => 150 мм [3] => 200 мм [4] => 250 мм [5] => 300 мм ) [days] => [7,8,10,12,14,15] [material_price] => [3437,3613,3803,3915,4601,4830] [work_price] => [2325,2423,2523,2749,2859,3025] [image] => https://akademik-stroy.ru/wp-content/uploads/materials/mineralovata.jpg [area_modifier] => 244.49 [parent_name] => Дополнительное утепление наружных стен [parent_id] => 17 [material_sum] => 1058793 [work_sum] => 596861 [total_sum] => 1655654 [total_days] => 7 [display_material_sum] => 1 058 793 [display_work_sum] => 596 861 [display_total_sum] => 1 655 654 ) 1
1 655 654
Работа:596 861
Материалы:1 058 793
Дни:7
stdClass Object ( [id] => 128 [attribute_id] => 17 [name] => Эковата (целлюлозная вата) [material_modifier] => 1 [work_modifier] => 1 [options] => Array ( [0] => 50 мм [1] => 100 мм [2] => 150 мм [3] => 200 мм [4] => 250 мм [5] => 300 мм ) [days] => [3,4,5,6,7,8] [material_price] => [810,1319,1629,1838,2267,2676] [work_price] => [1225,1323,1423,1549,1659,1725] [image] => https://akademik-stroy.ru/wp-content/uploads/materials/ehkovata.jpg [area_modifier] => 244.49 [parent_name] => Дополнительное утепление наружных стен [parent_id] => 17 [material_sum] => 249526 [work_sum] => 314475 [total_sum] => 564001 [total_days] => 3 [display_material_sum] => 249 526 [display_work_sum] => 314 475 [display_total_sum] => 564 001 ) 1
564 001
Работа:314 475
Материалы:249 526
Дни:3
stdClass Object ( [id] => 129 [attribute_id] => 17 [name] => Экструдированный пенополистирол [material_modifier] => 1 [work_modifier] => 1 [options] => Array ( [0] => 50 мм [1] => 100 мм [2] => 150 мм [3] => 200 мм [4] => 250 мм [5] => 300 мм ) [days] => [5,6,7,8,9,10] [material_price] => [4560,4300,5119,6292,7010,8583] [work_price] => [1795,1954,2254,2330,2595,2735] [image] => https://akademik-stroy.ru/wp-content/uploads/materials/epps.jpg [area_modifier] => 244.49 [parent_name] => Дополнительное утепление наружных стен [parent_id] => 17 [material_sum] => 1404742 [work_sum] => 460803 [total_sum] => 1865545 [total_days] => 5 [display_material_sum] => 1 404 742 [display_work_sum] => 460 803 [display_total_sum] => 1 865 545 ) 1
1 865 545
Работа:460 803
Материалы:1 404 742
Дни:5
stdClass Object ( [id] => 130 [attribute_id] => 17 [name] => ПСБ (ППС-пенополистирол) [material_modifier] => 1 [work_modifier] => 1 [options] => Array ( [0] => 50 мм [1] => 100 мм [2] => 150 мм [3] => 200 мм [4] => 250 мм [5] => 300 мм ) [days] => [5,6,7,8,9,10] [material_price] => [4822,5200,5819,6292,7010,7583] [work_price] => [1795,1954,2254,2330,2595,2735] [image] => https://akademik-stroy.ru/wp-content/uploads/materials/psb.jpg [area_modifier] => 244.49 [parent_name] => Дополнительное утепление наружных стен [parent_id] => 17 [material_sum] => 1485453 [work_sum] => 460803 [total_sum] => 1946256 [total_days] => 5 [display_material_sum] => 1 485 453 [display_work_sum] => 460 803 [display_total_sum] => 1 946 256 ) 1
1 946 256
Работа:460 803
Материалы:1 485 453
Дни:5
stdClass Object ( [id] => 131 [attribute_id] => 17 [name] => ППУ (Пенополиуретан) [material_modifier] => 1 [work_modifier] => 1 [options] => Array ( [0] => 50 мм [1] => 100 мм [2] => 150 мм [3] => 200 мм [4] => 250 мм [5] => 300 мм ) [days] => [3,4,5,6,7,8] [material_price] => [2860,3400,4219,4592,5010,5583] [work_price] => [729,900,980,1120,1280,1530] [image] => https://akademik-stroy.ru/wp-content/uploads/materials/ppu.jpg [area_modifier] => 244.49 [parent_name] => Дополнительное утепление наружных стен [parent_id] => 17 [material_sum] => 881044 [work_sum] => 187145 [total_sum] => 1068189 [total_days] => 3 [display_material_sum] => 881 044 [display_work_sum] => 187 145 [display_total_sum] => 1 068 189 ) 1
1 068 189
Работа:187 145
Материалы:881 044
Дни:3
stdClass Object ( [id] => 132 [attribute_id] => 17 [name] => PIR-плиты (пенополиизоцианурат) [material_modifier] => 1 [work_modifier] => 1 [options] => Array ( [0] => 50 мм [1] => 100 мм [2] => 150 мм [3] => 200 мм [4] => 250 мм [5] => 300 мм ) [days] => [5,6,7,8,9,10] [material_price] => [8323,15645,20968,25900,29258,30581] [work_price] => [800,900,970,1150,1280,1330] [image] => https://akademik-stroy.ru/wp-content/uploads/materials/pir.jpg [area_modifier] => 244.49 [parent_name] => Дополнительное утепление наружных стен [parent_id] => 17 [material_sum] => 2563962 [work_sum] => 205372 [total_sum] => 2769334 [total_days] => 5 [display_material_sum] => 2 563 962 [display_work_sum] => 205 372 [display_total_sum] => 2 769 334 ) 1
2 769 334
Работа:205 372
Материалы:2 563 962
Дни:5
Наружная отделка фасада
stdClass Object ( [id] => 37 [attribute_id] => 19 [name] => Нет [material_modifier] => 1 [work_modifier] => 1 [options] => Array ( ) [days] => [0] [material_price] => [0] [work_price] => [0] [image] => https://akademik-stroy.ru/wp-content/uploads/materials/imitaciya-brusa.jpg [area_modifier] => 244.49 [parent_name] => Наружная отделка фасада [parent_id] => 19 [material_sum] => 0 [work_sum] => 0 [total_sum] => 0 [total_days] => 0 [display_material_sum] => 0 [display_work_sum] => 0 [display_total_sum] => 0 ) 1
0
Работа:0
Материалы:0
Дни:0
stdClass Object ( [id] => 38 [attribute_id] => 19 [name] => Имитация бруса [material_modifier] => 1 [work_modifier] => 1 [options] => Array ( [0] => Сосна [1] => Ель [2] => Лиственница ) [days] => [20,20,20] [material_price] => [2994,2762,4954] [work_price] => [1397,1231,1577] [image] => https://akademik-stroy.ru/wp-content/uploads/materials/imitaciya-brusa.jpg [area_modifier] => 244.49 [parent_name] => Наружная отделка фасада [parent_id] => 19 [material_sum] => 922324 [work_sum] => 358630 [total_sum] => 1280954 [total_days] => 20 [display_material_sum] => 922 324 [display_work_sum] => 358 630 [display_total_sum] => 1 280 954 ) 1
1 280 954
Работа:358 630
Материалы:922 324
Дни:20
stdClass Object ( [id] => 136 [attribute_id] => 19 [name] => Планкен [material_modifier] => 1 [work_modifier] => 1 [options] => Array ( [0] => Сосна [1] => Ель [2] => Лиственница ) [days] => [20,20,20] [material_price] => [3194,2862,5154] [work_price] => [1537,1354,1735] [image] => https://akademik-stroy.ru/wp-content/uploads/materials/planken.jpg [area_modifier] => 244.49 [parent_name] => Наружная отделка фасада [parent_id] => 19 [material_sum] => 983935 [work_sum] => 394570 [total_sum] => 1378505 [total_days] => 20 [display_material_sum] => 983 935 [display_work_sum] => 394 570 [display_total_sum] => 1 378 505 ) 1
1 378 505
Работа:394 570
Материалы:983 935
Дни:20
stdClass Object ( [id] => 137 [attribute_id] => 19 [name] => Штукатурка [material_modifier] => 1 [work_modifier] => 1 [options] => Array ( [0] => Цементно-песчаная (минеральная) [1] => Мокрый фасад ) [days] => [35,35] [material_price] => [2231,3938] [work_price] => [1202,2422] [image] => https://akademik-stroy.ru/wp-content/uploads/materials/shtukaturka.jpg [area_modifier] => 244.49 [parent_name] => Наружная отделка фасада [parent_id] => 19 [material_sum] => 687276 [work_sum] => 308571 [total_sum] => 995847 [total_days] => 35 [display_material_sum] => 687 276 [display_work_sum] => 308 571 [display_total_sum] => 995 847 ) 1
995 847
Работа:308 571
Материалы:687 276
Дни:35
stdClass Object ( [id] => 138 [attribute_id] => 19 [name] => Облицовочный кирпич [material_modifier] => 1 [work_modifier] => 1 [options] => Array ( [0] => Керамический [1] => Клинкерный [2] => Ручной формовки [3] => Гиперпрессованный [4] => Силикатный кирпич ) [days] => [45,45,45,45,45] [material_price] => [8174,9148,1040,1257,5876] [work_price] => [3240,3758,4536,4017,3369] [image] => https://akademik-stroy.ru/wp-content/uploads/materials/oblicovochnyj-kirpich.jpg [area_modifier] => 244.49 [parent_name] => Наружная отделка фасада [parent_id] => 19 [material_sum] => 2518061 [work_sum] => 831755 [total_sum] => 3349816 [total_days] => 45 [display_material_sum] => 2 518 061 [display_work_sum] => 831 755 [display_total_sum] => 3 349 816 ) 1
3 349 816
Работа:831 755
Материалы:2 518 061
Дни:45
stdClass Object ( [id] => 139 [attribute_id] => 19 [name] => Фасадная плитка [material_modifier] => 1 [work_modifier] => 1 [options] => Array ( [0] => Клинкерная [1] => Керамическая [2] => Плитка ручной формовки ) [days] => [40,40,40] [material_price] => [2974,1487,3470] [work_price] => [3007,2592,3629] [image] => https://akademik-stroy.ru/wp-content/uploads/materials/fasadnaya-plitka.jpg [area_modifier] => 244.49 [parent_name] => Наружная отделка фасада [parent_id] => 19 [material_sum] => 916163 [work_sum] => 771941 [total_sum] => 1688104 [total_days] => 40 [display_material_sum] => 916 163 [display_work_sum] => 771 941 [display_total_sum] => 1 688 104 ) 1
1 688 104
Работа:771 941
Материалы:916 163
Дни:40
stdClass Object ( [id] => 140 [attribute_id] => 19 [name] => Сайдинг [material_modifier] => 1 [work_modifier] => 1 [options] => Array ( [0] => Виниловый [1] => Металлический [2] => Фиброцементный ) [days] => [20,20,20] [material_price] => [1263,1944,4147] [work_price] => [1263,1944,2074] [image] => https://akademik-stroy.ru/wp-content/uploads/materials/sajding.jpg [area_modifier] => 244.49 [parent_name] => Наружная отделка фасада [parent_id] => 19 [material_sum] => 389076 [work_sum] => 324230 [total_sum] => 713306 [total_days] => 20 [display_material_sum] => 389 076 [display_work_sum] => 324 230 [display_total_sum] => 713 306 ) 1
713 306
Работа:324 230
Материалы:389 076
Дни:20
stdClass Object ( [id] => 141 [attribute_id] => 19 [name] => Камень [material_modifier] => 1 [work_modifier] => 1 [options] => Array ( [0] => Травертин [1] => Дагестанский [2] => Искусственный [3] => Натуральный [4] => Керамогранит ) [days] => [45,45,45,45,45] [material_price] => [4536,3888,2592,3240,2462] [work_price] => [3240,3240,2462,3110,1944] [image] => https://akademik-stroy.ru/wp-content/uploads/materials/kamen-1.jpg [area_modifier] => 244.49 [parent_name] => Наружная отделка фасада [parent_id] => 19 [material_sum] => 1397348 [work_sum] => 831755 [total_sum] => 2229103 [total_days] => 45 [display_material_sum] => 1 397 348 [display_work_sum] => 831 755 [display_total_sum] => 2 229 103 ) 1
2 229 103
Работа:831 755
Материалы:1 397 348
Дни:45
stdClass Object ( [id] => 142 [attribute_id] => 19 [name] => Термопанели [material_modifier] => 1 [work_modifier] => 1 [options] => Array ( ) [days] => [20] [material_price] => [6221] [work_price] => [2333] [image] => https://akademik-stroy.ru/wp-content/uploads/materials/termo.png [area_modifier] => 244.49 [parent_name] => Наружная отделка фасада [parent_id] => 19 [material_sum] => 1916425 [work_sum] => 598915 [total_sum] => 2515340 [total_days] => 20 [display_material_sum] => 1 916 425 [display_work_sum] => 598 915 [display_total_sum] => 2 515 340 ) 1
2 515 340
Работа:598 915
Материалы:1 916 425
Дни:20
stdClass Object ( [id] => 143 [attribute_id] => 19 [name] => Плитка HAUBERK [material_modifier] => 1 [work_modifier] => 1 [options] => Array ( ) [days] => [20] [material_price] => [2786] [work_price] => [1944] [image] => https://akademik-stroy.ru/wp-content/uploads/materials/hauberk.jpg [area_modifier] => 244.49 [parent_name] => Наружная отделка фасада [parent_id] => 19 [material_sum] => 858248 [work_sum] => 499053 [total_sum] => 1357301 [total_days] => 20 [display_material_sum] => 858 248 [display_work_sum] => 499 053 [display_total_sum] => 1 357 301 ) 1
1 357 301
Работа:499 053
Материалы:858 248
Дни:20
stdClass Object ( [id] => 144 [attribute_id] => 19 [name] => Фальцевый фасад [material_modifier] => 1 [work_modifier] => 1 [options] => Array ( ) [days] => [20] [material_price] => [3240] [work_price] => [2592] [image] => https://akademik-stroy.ru/wp-content/uploads/materials/falcevyj-fasad.jpg [area_modifier] => 244.49 [parent_name] => Наружная отделка фасада [parent_id] => 19 [material_sum] => 998106 [work_sum] => 665404 [total_sum] => 1663510 [total_days] => 20 [display_material_sum] => 998 106 [display_work_sum] => 665 404 [display_total_sum] => 1 663 510 ) 1
1 663 510
Работа:665 404
Материалы:998 106
Дни:20
stdClass Object ( [id] => 145 [attribute_id] => 19 [name] => Комбинированный [material_modifier] => 1 [work_modifier] => 1 [options] => Array ( ) [days] => [20] [material_price] => [4629] [work_price] => [3499] [image] => https://akademik-stroy.ru/wp-content/uploads/materials/Kombinirovannyj.jpg [area_modifier] => 244.49 [parent_name] => Наружная отделка фасада [parent_id] => 19 [material_sum] => 1425998 [work_sum] => 898244 [total_sum] => 2324242 [total_days] => 20 [display_material_sum] => 1 425 998 [display_work_sum] => 898 244 [display_total_sum] => 2 324 242 ) 1
2 324 242
Работа:898 244
Материалы:1 425 998
Дни:20
stdClass Object ( [id] => 257 [attribute_id] => 19 [name] => Японские фиброцементные [material_modifier] => 1 [work_modifier] => 1 [options] => Array ( ) [days] => [20] [material_price] => [7043] [work_price] => [2993] [image] => https://akademik-stroy.ru/wp-content/uploads/materials/paneli.jpg [area_modifier] => 244.49 [parent_name] => Наружная отделка фасада [parent_id] => 19 [material_sum] => 2169648 [work_sum] => 768346 [total_sum] => 2937994 [total_days] => 20 [display_material_sum] => 2 169 648 [display_work_sum] => 768 346 [display_total_sum] => 2 937 994 ) 1
2 937 994
Работа:768 346
Материалы:2 169 648
Дни:20
stdClass Object ( [id] => 258 [attribute_id] => 19 [name] => Панели Каньон [material_modifier] => 1 [work_modifier] => 1 [options] => Array ( ) [days] => [20] [material_price] => [4543] [work_price] => [2592] [image] => https://akademik-stroy.ru/wp-content/uploads/materials/kanon.png [area_modifier] => 244.49 [parent_name] => Наружная отделка фасада [parent_id] => 19 [material_sum] => 1399505 [work_sum] => 665404 [total_sum] => 2064909 [total_days] => 20 [display_material_sum] => 1 399 505 [display_work_sum] => 665 404 [display_total_sum] => 2 064 909 ) 1
2 064 909
Работа:665 404
Материалы:1 399 505
Дни:20
Террасы, крыльца, навесы
stdClass Object ( [id] => 39 [attribute_id] => 20 [name] => Нет [material_modifier] => 1 [work_modifier] => 1 [options] => Array ( ) [days] => [0] [material_price] => [0] [work_price] => [0] [image] => https://akademik-stroy.ru/wp-content/uploads/materials/terrasy.jpg [area_modifier] => 30 [parent_name] => Террасы, крыльца, навесы [parent_id] => 20 [material_sum] => 0 [work_sum] => 0 [total_sum] => 0 [total_days] => 0 [display_material_sum] => 0 [display_work_sum] => 0 [display_total_sum] => 0 ) 1
0
Работа:0
Материалы:0
Дни:0
stdClass Object ( [id] => 40 [attribute_id] => 20 [name] => Есть [material_modifier] => 1 [work_modifier] => 1 [options] => Array ( ) [days] => [5] [material_price] => [10450] [work_price] => [1950] [image] => https://akademik-stroy.ru/wp-content/uploads/materials/terrasy.jpg [area_modifier] => 30 [parent_name] => Террасы, крыльца, навесы [parent_id] => 20 [material_sum] => 395010 [work_sum] => 61425 [total_sum] => 456435 [total_days] => 5 [display_material_sum] => 395 010 [display_work_sum] => 61 425 [display_total_sum] => 456 435 ) 1
456 435
Работа:61 425
Материалы:395 010
Дни:5
Балконы
stdClass Object ( [id] => 41 [attribute_id] => 21 [name] => Нет [material_modifier] => 1 [work_modifier] => 1 [options] => Array ( ) [days] => [0] [material_price] => [0] [work_price] => [0] [image] => https://akademik-stroy.ru/wp-content/uploads/materials/balkony.jpg [area_modifier] => 30 [parent_name] => Балконы [parent_id] => 21 [material_sum] => 0 [work_sum] => 0 [total_sum] => 0 [total_days] => 0 [display_material_sum] => 0 [display_work_sum] => 0 [display_total_sum] => 0 ) 1
0
Работа:0
Материалы:0
Дни:0
stdClass Object ( [id] => 42 [attribute_id] => 21 [name] => Есть [material_modifier] => 1 [work_modifier] => 1 [options] => Array ( ) [days] => [12] [material_price] => [3600] [work_price] => [1950] [image] => https://akademik-stroy.ru/wp-content/uploads/materials/balkony.jpg [area_modifier] => 30 [parent_name] => Балконы [parent_id] => 21 [material_sum] => 136080 [work_sum] => 61425 [total_sum] => 197505 [total_days] => 12 [display_material_sum] => 136 080 [display_work_sum] => 61 425 [display_total_sum] => 197 505 ) 1
197 505
Работа:61 425
Материалы:136 080
Дни:12
Отмостка
stdClass Object ( [id] => 43 [attribute_id] => 22 [name] => Нет [material_modifier] => 1 [work_modifier] => 1 [options] => Array ( ) [days] => [0] [material_price] => [0] [work_price] => [0] [image] => https://akademik-stroy.ru/wp-content/uploads/materials/uteplennaya.jpg [area_modifier] => 146.77 [parent_name] => Отмостка [parent_id] => 22 [material_sum] => 0 [work_sum] => 0 [total_sum] => 0 [total_days] => 0 [display_material_sum] => 0 [display_work_sum] => 0 [display_total_sum] => 0 ) 1
0
Работа:0
Материалы:0
Дни:0
stdClass Object ( [id] => 44 [attribute_id] => 22 [name] => Утепленная отмостка [material_modifier] => 1 [work_modifier] => 1 [options] => Array ( ) [days] => [15] [material_price] => [2550] [work_price] => [1750] [image] => https://akademik-stroy.ru/wp-content/uploads/materials/uteplennaya.jpg [area_modifier] => 146.77 [parent_name] => Отмостка [parent_id] => 22 [material_sum] => 471572 [work_sum] => 269690 [total_sum] => 741262 [total_days] => 15 [display_material_sum] => 471 572 [display_work_sum] => 269 690 [display_total_sum] => 741 262 ) 1
741 262
Работа:269 690
Материалы:471 572
Дни:15
stdClass Object ( [id] => 146 [attribute_id] => 22 [name] => Не утепленная отмостка [material_modifier] => 1 [work_modifier] => 1 [options] => Array ( ) [days] => [10] [material_price] => [1650] [work_price] => [1450] [image] => https://akademik-stroy.ru/wp-content/uploads/materials/ne-uteplennaya.jpg [area_modifier] => 146.77 [parent_name] => Отмостка [parent_id] => 22 [material_sum] => 305135 [work_sum] => 223457 [total_sum] => 528592 [total_days] => 10 [display_material_sum] => 305 135 [display_work_sum] => 223 457 [display_total_sum] => 528 592 ) 1
528 592
Работа:223 457
Материалы:305 135
Дни:10
Дренаж вокруг дома
stdClass Object ( [id] => 45 [attribute_id] => 23 [name] => Нет [material_modifier] => 1 [work_modifier] => 1 [options] => Array ( ) [days] => [0] [material_price] => [0] [work_price] => [0] [image] => https://akademik-stroy.ru/wp-content/uploads/materials/drenazh-2.jpg [area_modifier] => 146.77 [parent_name] => Дренаж вокруг дома [parent_id] => 23 [material_sum] => 0 [work_sum] => 0 [total_sum] => 0 [total_days] => 0 [display_material_sum] => 0 [display_work_sum] => 0 [display_total_sum] => 0 ) 1
0
Работа:0
Материалы:0
Дни:0
stdClass Object ( [id] => 46 [attribute_id] => 23 [name] => Есть [material_modifier] => 1 [work_modifier] => 1 [options] => Array ( ) [days] => [5] [material_price] => [2366] [work_price] => [1911] [image] => https://akademik-stroy.ru/wp-content/uploads/materials/drenazh-2.jpg [area_modifier] => 146.77 [parent_name] => Дренаж вокруг дома [parent_id] => 23 [material_sum] => 437545 [work_sum] => 294501 [total_sum] => 732046 [total_days] => 5 [display_material_sum] => 437 545 [display_work_sum] => 294 501 [display_total_sum] => 732 046 ) 1
732 046
Работа:294 501
Материалы:437 545
Дни:5
Автономная канализация (септики)
stdClass Object ( [id] => 47 [attribute_id] => 24 [name] => Нет [material_modifier] => 1 [work_modifier] => 1 [options] => Array ( ) [days] => [0] [material_price] => [0] [work_price] => [0] [image] => https://akademik-stroy.ru/wp-content/uploads/materials/septik.jpg [area_modifier] => 1 [parent_name] => Автономная канализация (септики) [parent_id] => 24 [material_sum] => 0 [work_sum] => 0 [total_sum] => 0 [total_days] => 0 [display_material_sum] => 0 [display_work_sum] => 0 [display_total_sum] => 0 ) 1
0
Работа:0
Материалы:0
Дни:0
stdClass Object ( [id] => 48 [attribute_id] => 24 [name] => Есть [material_modifier] => 1 [work_modifier] => 1 [options] => Array ( [0] => Для дачи на 4 человека [1] => Для дома на 5 человек [2] => Для дома на 6 человек [3] => Для дома на 7 человек [4] => Для дома на 10 человек ) [days] => [7,7,7,8,8] [material_price] => [196340,220500,240940,264200,293340] [work_price] => [50000,55000,60500,66550,73206] [image] => https://akademik-stroy.ru/wp-content/uploads/materials/septik.jpg [area_modifier] => 1 [parent_name] => Автономная канализация (септики) [parent_id] => 24 [material_sum] => 247388 [work_sum] => 52500 [total_sum] => 299888 [total_days] => 7 [display_material_sum] => 247 388 [display_work_sum] => 52 500 [display_total_sum] => 299 888 ) 1
299 888
Работа:52 500
Материалы:247 388
Дни:7
Внутренние (не несущие) перегородки
stdClass Object ( [id] => 49 [attribute_id] => 25 [name] => Нет [material_modifier] => 1 [work_modifier] => 1 [options] => Array ( ) [days] => [0] [material_price] => [0] [work_price] => [0] [image] => https://akademik-stroy.ru/wp-content/uploads/materials/gkl.jpg [area_modifier] => 244.49 [parent_name] => Внутренние (не несущие) перегородки [parent_id] => 25 [material_sum] => 0 [work_sum] => 0 [total_sum] => 0 [total_days] => 0 [display_material_sum] => 0 [display_work_sum] => 0 [display_total_sum] => 0 ) 1
0
Работа:0
Материалы:0
Дни:0
stdClass Object ( [id] => 147 [attribute_id] => 25 [name] => Каркасно-обшивные [material_modifier] => 1 [work_modifier] => 1 [options] => Array ( [0] => 75 мм (без шумоизоляции) [1] => 75 мм (с шумоизоляцией) ) [days] => [11,11] [material_price] => [580,970] [work_price] => [380,570] [image] => https://akademik-stroy.ru/wp-content/uploads/materials/gkl.jpg [area_modifier] => 244.49 [parent_name] => Внутренние (не несущие) перегородки [parent_id] => 25 [material_sum] => 178673 [work_sum] => 97552 [total_sum] => 276225 [total_days] => 11 [display_material_sum] => 178 673 [display_work_sum] => 97 552 [display_total_sum] => 276 225 ) 1
276 225
Работа:97 552
Материалы:178 673
Дни:11
stdClass Object ( [id] => 148 [attribute_id] => 25 [name] => Пазогребневые [material_modifier] => 1 [work_modifier] => 1 [options] => Array ( [0] => 80 мм [1] => 100 мм ) [days] => [5,5] [material_price] => [1022,1313] [work_price] => [600,700] [image] => https://akademik-stroy.ru/wp-content/uploads/materials/pazogrebnevye-bloki.jpg [area_modifier] => 244.49 [parent_name] => Внутренние (не несущие) перегородки [parent_id] => 25 [material_sum] => 314835 [work_sum] => 154029 [total_sum] => 468864 [total_days] => 5 [display_material_sum] => 314 835 [display_work_sum] => 154 029 [display_total_sum] => 468 864 ) 1
468 864
Работа:154 029
Материалы:314 835
Дни:5
stdClass Object ( [id] => 149 [attribute_id] => 25 [name] => Газобетонные [material_modifier] => 1 [work_modifier] => 1 [options] => Array ( [0] => 100 мм [1] => 200 мм ) [days] => [11,11] [material_price] => [1160,1920] [work_price] => [700,900] [image] => https://akademik-stroy.ru/wp-content/uploads/materials/gazobeton-2.jpg [area_modifier] => 244.49 [parent_name] => Внутренние (не несущие) перегородки [parent_id] => 25 [material_sum] => 357347 [work_sum] => 179700 [total_sum] => 537047 [total_days] => 11 [display_material_sum] => 357 347 [display_work_sum] => 179 700 [display_total_sum] => 537 047 ) 1
537 047
Работа:179 700
Материалы:357 347
Дни:11
stdClass Object ( [id] => 150 [attribute_id] => 25 [name] => Кирпичные [material_modifier] => 1 [work_modifier] => 1 [options] => Array ( [0] => 120 мм [1] => 250 мм [2] => 360 мм ) [days] => [7,7,7] [material_price] => [1785,3570,5355] [work_price] => [900,1600,1800] [image] => https://akademik-stroy.ru/wp-content/uploads/materials/kirpich-1.jpg [area_modifier] => 244.49 [parent_name] => Внутренние (не несущие) перегородки [parent_id] => 25 [material_sum] => 549882 [work_sum] => 231043 [total_sum] => 780925 [total_days] => 7 [display_material_sum] => 549 882 [display_work_sum] => 231 043 [display_total_sum] => 780 925 ) 1
780 925
Работа:231 043
Материалы:549 882
Дни:7
Электрика
stdClass Object ( [id] => 55 [attribute_id] => 28 [name] => Нет [material_modifier] => 1 [work_modifier] => 1 [options] => Array ( ) [days] => [0] [material_price] => [0] [work_price] => [0] [image] => https://akademik-stroy.ru/wp-content/uploads/materials/ehlektrika.jpg [area_modifier] => 198.4 [parent_name] => Электрика [parent_id] => 28 [material_sum] => 0 [work_sum] => 0 [total_sum] => 0 [total_days] => 0 [display_material_sum] => 0 [display_work_sum] => 0 [display_total_sum] => 0 ) 1
0
Работа:0
Материалы:0
Дни:0
stdClass Object ( [id] => 56 [attribute_id] => 28 [name] => Есть [material_modifier] => 1 [work_modifier] => 1 [options] => Array ( ) [days] => [10] [material_price] => [650] [work_price] => [950] [image] => https://akademik-stroy.ru/wp-content/uploads/materials/ehlektrika.jpg [area_modifier] => 198.4 [parent_name] => Электрика [parent_id] => 28 [material_sum] => 162490 [work_sum] => 197904 [total_sum] => 360394 [total_days] => 10 [display_material_sum] => 162 490 [display_work_sum] => 197 904 [display_total_sum] => 360 394 ) 1
360 394
Работа:197 904
Материалы:162 490
Дни:10
Сантехника, канализация в доме
stdClass Object ( [id] => 57 [attribute_id] => 29 [name] => Нет [material_modifier] => 1 [work_modifier] => 1 [options] => Array ( ) [days] => [0] [material_price] => [0] [work_price] => [0] [image] => https://akademik-stroy.ru/wp-content/uploads/materials/santekhnika-kanalizaciya-1.jpg [area_modifier] => 198.4 [parent_name] => Сантехника, канализация в доме [parent_id] => 29 [material_sum] => 0 [work_sum] => 0 [total_sum] => 0 [total_days] => 0 [display_material_sum] => 0 [display_work_sum] => 0 [display_total_sum] => 0 ) 1
0
Работа:0
Материалы:0
Дни:0
stdClass Object ( [id] => 58 [attribute_id] => 29 [name] => Есть [material_modifier] => 1 [work_modifier] => 1 [options] => Array ( ) [days] => [10] [material_price] => [600] [work_price] => [730] [image] => https://akademik-stroy.ru/wp-content/uploads/materials/santekhnika-kanalizaciya-1.jpg [area_modifier] => 198.4 [parent_name] => Сантехника, канализация в доме [parent_id] => 29 [material_sum] => 149990 [work_sum] => 152074 [total_sum] => 302064 [total_days] => 10 [display_material_sum] => 149 990 [display_work_sum] => 152 074 [display_total_sum] => 302 064 ) 1
302 064
Работа:152 074
Материалы:149 990
Дни:10
Отопление
stdClass Object ( [id] => 59 [attribute_id] => 30 [name] => Нет [material_modifier] => 1 [work_modifier] => 1 [options] => Array ( ) [days] => [0] [material_price] => [0] [work_price] => [0] [image] => https://akademik-stroy.ru/wp-content/uploads/materials/otoplenie-1.jpg [area_modifier] => 198.4 [parent_name] => Отопление [parent_id] => 30 [material_sum] => 0 [work_sum] => 0 [total_sum] => 0 [total_days] => 0 [display_material_sum] => 0 [display_work_sum] => 0 [display_total_sum] => 0 ) 1
0
Работа:0
Материалы:0
Дни:0
stdClass Object ( [id] => 60 [attribute_id] => 30 [name] => Есть [material_modifier] => 1 [work_modifier] => 1 [options] => Array ( ) [days] => [5] [material_price] => [610] [work_price] => [560] [image] => https://akademik-stroy.ru/wp-content/uploads/materials/otoplenie-1.jpg [area_modifier] => 198.4 [parent_name] => Отопление [parent_id] => 30 [material_sum] => 152490 [work_sum] => 116659 [total_sum] => 269149 [total_days] => 5 [display_material_sum] => 152 490 [display_work_sum] => 116 659 [display_total_sum] => 269 149 ) 1
269 149
Работа:116 659
Материалы:152 490
Дни:5
Теплые полы
stdClass Object ( [id] => 61 [attribute_id] => 31 [name] => Нет [material_modifier] => 1 [work_modifier] => 1 [options] => Array ( ) [days] => [0] [material_price] => [0] [work_price] => [0] [image] => https://akademik-stroy.ru/wp-content/uploads/materials/vodyanye.jpg [area_modifier] => 30 [parent_name] => Теплые полы [parent_id] => 31 [material_sum] => 0 [work_sum] => 0 [total_sum] => 0 [total_days] => 0 [display_material_sum] => 0 [display_work_sum] => 0 [display_total_sum] => 0 ) 1
0
Работа:0
Материалы:0
Дни:0
stdClass Object ( [id] => 151 [attribute_id] => 31 [name] => Водяные [material_modifier] => 1 [work_modifier] => 1 [options] => Array ( ) [days] => [9] [material_price] => [10200] [work_price] => [2500] [image] => https://akademik-stroy.ru/wp-content/uploads/materials/vodyanye.jpg [area_modifier] => 30 [parent_name] => Теплые полы [parent_id] => 31 [material_sum] => 385560 [work_sum] => 78750 [total_sum] => 464310 [total_days] => 9 [display_material_sum] => 385 560 [display_work_sum] => 78 750 [display_total_sum] => 464 310 ) 1
464 310
Работа:78 750
Материалы:385 560
Дни:9
stdClass Object ( [id] => 152 [attribute_id] => 31 [name] => Электро [material_modifier] => 1 [work_modifier] => 1 [options] => Array ( ) [days] => [5] [material_price] => [6300] [work_price] => [1500] [image] => https://akademik-stroy.ru/wp-content/uploads/materials/ehlektricheskij.jpg [area_modifier] => 30 [parent_name] => Теплые полы [parent_id] => 31 [material_sum] => 238140 [work_sum] => 47250 [total_sum] => 285390 [total_days] => 5 [display_material_sum] => 238 140 [display_work_sum] => 47 250 [display_total_sum] => 285 390 ) 1
285 390
Работа:47 250
Материалы:238 140
Дни:5
Черновая отделка стен
stdClass Object ( [id] => 63 [attribute_id] => 32 [name] => Нет [material_modifier] => 1 [work_modifier] => 1 [options] => Array ( ) [days] => [0] [material_price] => [0] [work_price] => [0] [image] => https://akademik-stroy.ru/wp-content/uploads/materials/shtukaturka-shpatlevka-1.jpg [area_modifier] => 198.4 [parent_name] => Черновая отделка стен [parent_id] => 32 [material_sum] => 0 [work_sum] => 0 [total_sum] => 0 [total_days] => 0 [display_material_sum] => 0 [display_work_sum] => 0 [display_total_sum] => 0 ) 1
0
Работа:0
Материалы:0
Дни:0
stdClass Object ( [id] => 153 [attribute_id] => 32 [name] => Штукатурка и шпатлевка [material_modifier] => 1 [work_modifier] => 1 [options] => Array ( ) [days] => [20] [material_price] => [1850] [work_price] => [2600] [image] => https://akademik-stroy.ru/wp-content/uploads/materials/shtukaturka-shpatlevka-1.jpg [area_modifier] => 198.4 [parent_name] => Черновая отделка стен [parent_id] => 32 [material_sum] => 462470 [work_sum] => 541632 [total_sum] => 1004102 [total_days] => 20 [display_material_sum] => 462 470 [display_work_sum] => 541 632 [display_total_sum] => 1 004 102 ) 1
1 004 102
Работа:541 632
Материалы:462 470
Дни:20
stdClass Object ( [id] => 154 [attribute_id] => 32 [name] => Гипсокортон на стены [material_modifier] => 1 [work_modifier] => 1 [options] => Array ( ) [days] => [15] [material_price] => [950] [work_price] => [2100] [image] => https://akademik-stroy.ru/wp-content/uploads/materials/gkl-1.jpg [area_modifier] => 198.4 [parent_name] => Черновая отделка стен [parent_id] => 32 [material_sum] => 237485 [work_sum] => 437472 [total_sum] => 674957 [total_days] => 15 [display_material_sum] => 237 485 [display_work_sum] => 437 472 [display_total_sum] => 674 957 ) 1
674 957
Работа:437 472
Материалы:237 485
Дни:15
stdClass Object ( [id] => 155 [attribute_id] => 32 [name] => Вагонка [material_modifier] => 1 [work_modifier] => 1 [options] => Array ( ) [days] => [15] [material_price] => [1250] [work_price] => [950] [image] => https://akademik-stroy.ru/wp-content/uploads/materials/vagonka.jpg [area_modifier] => 198.4 [parent_name] => Черновая отделка стен [parent_id] => 32 [material_sum] => 312480 [work_sum] => 197904 [total_sum] => 510384 [total_days] => 15 [display_material_sum] => 312 480 [display_work_sum] => 197 904 [display_total_sum] => 510 384 ) 1
510 384
Работа:197 904
Материалы:312 480
Дни:15
Черновая отделка полов
stdClass Object ( [id] => 65 [attribute_id] => 33 [name] => Нет [material_modifier] => 1 [work_modifier] => 1 [options] => Array ( ) [days] => [0] [material_price] => [0] [work_price] => [0] [image] => https://akademik-stroy.ru/wp-content/uploads/materials/styazhka.jpg [area_modifier] => 198.4 [parent_name] => Черновая отделка полов [parent_id] => 33 [material_sum] => 0 [work_sum] => 0 [total_sum] => 0 [total_days] => 0 [display_material_sum] => 0 [display_work_sum] => 0 [display_total_sum] => 0 ) 1
0
Работа:0
Материалы:0
Дни:0
stdClass Object ( [id] => 156 [attribute_id] => 33 [name] => Стяжка + наливные полы [material_modifier] => 1 [work_modifier] => 1 [options] => Array ( ) [days] => [10] [material_price] => [1000] [work_price] => [900] [image] => https://akademik-stroy.ru/wp-content/uploads/materials/styazhka.jpg [area_modifier] => 198.4 [parent_name] => Черновая отделка полов [parent_id] => 33 [material_sum] => 249984 [work_sum] => 187488 [total_sum] => 437472 [total_days] => 10 [display_material_sum] => 249 984 [display_work_sum] => 187 488 [display_total_sum] => 437 472 ) 1
437 472
Работа:187 488
Материалы:249 984
Дни:10
stdClass Object ( [id] => 157 [attribute_id] => 33 [name] => ОСБ на пол [material_modifier] => 1 [work_modifier] => 1 [options] => Array ( ) [days] => [7] [material_price] => [580] [work_price] => [350] [image] => https://akademik-stroy.ru/wp-content/uploads/materials/osb-1.jpg [area_modifier] => 198.4 [parent_name] => Черновая отделка полов [parent_id] => 33 [material_sum] => 144991 [work_sum] => 72912 [total_sum] => 217903 [total_days] => 7 [display_material_sum] => 144 991 [display_work_sum] => 72 912 [display_total_sum] => 217 903 ) 1
217 903
Работа:72 912
Материалы:144 991
Дни:7
Чистовая отделка стен и полов
stdClass Object ( [id] => 67 [attribute_id] => 34 [name] => Нет [material_modifier] => 1 [work_modifier] => 1 [options] => Array ( ) [days] => [0] [material_price] => [0] [work_price] => [0] [image] => https://akademik-stroy.ru/wp-content/uploads/materials/chistovaya-otdelka.jpg [area_modifier] => 198.4 [parent_name] => Чистовая отделка стен и полов [parent_id] => 34 [material_sum] => 0 [work_sum] => 0 [total_sum] => 0 [total_days] => 0 [display_material_sum] => 0 [display_work_sum] => 0 [display_total_sum] => 0 ) 1
0
Работа:0
Материалы:0
Дни:0
stdClass Object ( [id] => 68 [attribute_id] => 34 [name] => Есть [material_modifier] => 1 [work_modifier] => 1 [options] => Array ( ) [days] => [50] [material_price] => [6000] [work_price] => [3500] [image] => https://akademik-stroy.ru/wp-content/uploads/materials/chistovaya-otdelka.jpg [area_modifier] => 198.4 [parent_name] => Чистовая отделка стен и полов [parent_id] => 34 [material_sum] => 1499904 [work_sum] => 729120 [total_sum] => 2229024 [total_days] => 50 [display_material_sum] => 1 499 904 [display_work_sum] => 729 120 [display_total_sum] => 2 229 024 ) 1
2 229 024
Работа:729 120
Материалы:1 499 904
Дни:50
Отделка потолка
stdClass Object ( [id] => 69 [attribute_id] => 35 [name] => Нет [material_modifier] => 1 [work_modifier] => 1 [options] => Array ( ) [days] => [0] [material_price] => [0] [work_price] => [0] [image] => https://akademik-stroy.ru/wp-content/uploads/materials/mnogourovnevyj-gkl.jpg [area_modifier] => 198.4 [parent_name] => Отделка потолка [parent_id] => 35 [material_sum] => 0 [work_sum] => 0 [total_sum] => 0 [total_days] => 0 [display_material_sum] => 0 [display_work_sum] => 0 [display_total_sum] => 0 ) 1
0
Работа:0
Материалы:0
Дни:0
stdClass Object ( [id] => 70 [attribute_id] => 35 [name] => Есть [material_modifier] => 1 [work_modifier] => 1 [options] => Array ( [0] => Многоуровневый потолок из гипсокартона [1] => Многоуровневый потолок из гипсокартона и натяжного потолка [2] => Одноуровневый потолок из гипсокартона [3] => Одноуровневый натяжной потолок ) [days] => [10,10,1,1] [material_price] => [900,700,700,600] [work_price] => [1000,800,500,300] [image] => https://akademik-stroy.ru/wp-content/uploads/materials/mnogourovnevyj-gkl.jpg [area_modifier] => 198.4 [parent_name] => Отделка потолка [parent_id] => 35 [material_sum] => 224986 [work_sum] => 208320 [total_sum] => 433306 [total_days] => 10 [display_material_sum] => 224 986 [display_work_sum] => 208 320 [display_total_sum] => 433 306 ) 1
433 306
Работа:208 320
Материалы:224 986
Дни:10

Преимущества работы с нами

icon

7 этапов оплаты

icon

Независимый строительный надзор

icon

Экологически чистые материалы

icon

16 лет гарантии

icon

Онлайн-кабинет с веб-камерой

icon

Строители с опытом более 15 лет

icon

Собственное производство

Двухэтажный дом 17х10 - 198.4 м² в Москве: идеальный проект от компании «Академик Строй»

Если вам хочется построить большой, комфортный и уютный дом в Москве, проект двухэтажного дома размеры 17 на 10 метров с полезной площадью 198,4 м² станет настоящим спасением. Компания «Академик Строй» предлагает детально проработанный дизайн, который уже завоевал доверие многих семей. Этот дом — сочетание практичности и эстетики, а также возможность подстроить интерьер под свои нужды, ведь в нем все продумано до мелочей. Стройка собственного дома − это не просто инвестиция в недвижимость, а создание атмосферы уюта, где хочется возвращаться снова и снова. Тем более если учесть, что двухэтажное строительство позволяет сэкономить площадь участка, не жертвуя пространством внутри. Об этом и пойдет речь – почему проект именно этого дома станет вашим оптимальным выбором, а также почему заказывать проекты нужно у профессионалов.

Основные параметры проекта: что делает дом таким привлекательным?

Для начала хочется рассказать о технических и проектных характеристиках, которые делают этот дом особенным и максимально удобным для семьи из 4-6 человек.
Параметр Значение
Размеры дома (Д x Ш) 17 x 10 м
Полезная площадь 198,4 м²
Жилая площадь 122,50 м²
Этажность 2 этажа
Количество спален 4
Количество санузлов 2
Высота аттиковой стены 0,92 м
Площадь застройки 149,50 м²
Площадь крыши 259,50 м²
Угол наклона крыши 40°
Высота здания 8,70 м
Минимальная ширина участка 24,90 м
Минимальная длина участка 17,70 м
Тип крыши двускатная
Это комплекс параметров, который показывает, что проект продуман максимально тщательно – он не только просторен, но и отвечает требованиям комфорта и практичности. При таких габаритах можно как раз комфортно разместить все необходимые зоны — от гостиных до рабочих — не чувствуя себя загнанными в угол.

Почему стоит выбрать именно двухэтажный дом?

Часто выбор между одноэтажным и двухэтажным домом ставит в тупик будущих владельцев. Почему мы советуем именно двухэтажный? Во-первых, два этажа позволяют рационально использовать участок. Если участок ограничен по площади, как часто бывает в городской черте Москвы и Подмосковья, двумя этажами можно увеличить жилую площадь, не занимая лишнего места на земле. Здесь минимальная ширина участка — 24,90 м, а длина — 17,70 м, что вполне типично для московского региона. Во-вторых, мы получаем четкое структурное разделение — на первом этаже обычно расположены общественные зоны: кухня, гостиная, кабинет, комната отдыха или каминный зал, а второй этаж остается зоной приватных покоев — спален и детских. И наконец, двухэтажный дом визуально выглядит более представительно и позволяет играть с архитектурой фасадов, создавая гармоничные и уютные объекты, которые вписываются в любой ландшафт.

Планировка и функциональность: где и как можно разместить всё необходимое

Основная жилплощадь в доме — 122,5 м², что отлично подходит четырем спальням. Здесь же два санузла и дополнительные полезные помещения, включая комнаты отдыха. Проект от «Академик Строй» предлагает непринужденное распределение пространства, чтобы каждый нашел в доме свое комфортное место.

Первый этаж – центр семейной жизни

Первый этаж обычно отводится под общение и совместный отдых. В нашем проекте сюда включена просторная гостиная зона, оборудованная камином, который создает уютную атмосферу в холодное время года. Тут же располагается кухня с обеденной зоной, что очень удобно для семейных ужинов и приема гостей. Кроме того, предусмотрена комната на первом этаже — отличный вариант для тех, кто хочет организовать домашний офис или спальню для пожилых родственников, чтобы им не пришлось подниматься по лестнице. В доме достаточно места для техники, мебели и даже для небольшой кладовой.

Второй этаж – спокойствие и приватность

Второй этаж занят четырьмя комфортными спальнями, которые отлично подойдут для семьи с детьми или для приема гостей. Все комнаты достаточно просторные и светлые, что связано с продуманной высотой аттиковой стены — 0,92 метра. Это помогает насытить этаж естественным светом и создать ощущение воздушности. Кроме того, на втором этаже находится второй санузел — для удобства всех жильцов и гостей. Это правило современных проектов домов: спорных очередей на ванную и туалет больше не будет!

Теплые отметки об эргономике

Если вы цените функциональность, то оцените и следующие аспекты проекта:
  • **Оптимальное использование полезной площади 198,4 м²**
  • **Удобные входные группы с возможностью оборудования места для хранения обуви и верхней одежды**
  • **Продуманные проходы и коридоры, которые не «крадут» полезные метры**
  • **Угол наклона крыши в 40° способствует надежному отводу осадков и улучшает теплоизоляционные характеристики кровли**

Особенности архитектуры и внешнего вида

Двухэтажный дом в размерах 17х10 от «Академик Строй» — это не просто коробка с комнатами, а архитектурный шедевр в рамках классической эстетики.

Двускатная крыша – классика и надежность

Двускатная крыша с углом наклона 40° — один из самых удачных вариантов для московского климата. Такая кровля отлично справляется с дождями и снегом, предотвращая наледь и протечки. К тому же, площадь крыши в 259,50 м² позволяет устанавливать дополнительные элементы: современные солнечные панели или оригинальные мансардные окна, которые заполнят дом естественным светом.

Высота здания и аттиковая стена

Общая высота 8,70 метра создает приятные пропорции наружного вида. Аттиковая стена в 0,92 метра — невысокий утопленный элемент, который помогает сделать верхний этаж более просторным и светлым. Благодаря ей обеспечивается лучшее утепление и защита фасада.

Минимальный участок – большой дом

Такой дом можно комфортно возвести даже на участке с параметрами 24,9 на 17,7 метра, что особенно ценно для московских окраин и пригородов. Это позволяет вложиться и в строительство, и в покупку земельного участка.

Опции и дополнительные удобства: камин, терраса и комната на первом этаже

Любой дом — это не только стены, а обширное пространство для хозяйской фантазии. В этом проекте есть несколько важных опций, которые делают жизнь здесь более комфортной и приятной.

Камин: сердце домашнего очага

Камин — это не просто элемент декора, а источник уюта и тепла. В холодное московское время года ощущение живого огня в гостиной приносит ощущение спокойствия и расслабления. Кроме эстетики, камин можно использовать как дополнительный источник отопления, что помогает экономить на коммунальных счетах.

Комната на первом этаже: универсальное пространство

Наличие отдельной комнаты сразу на первом этаже – это удобно для гостей, работающих из дома или для пожилых членов семьи. Они не будут испытывать неудобств из-за подъема на второй этаж, а вы получите дополнительную функциональную площадь.

Терраса – зона отдыха под открытым небом

Хотя террасы в изначальном списке параметров не было, проект от компании «Академик Строй» предлагает ее как важную опцию. Терраса с выходом из гостиной станет любимым местом для летних вечеров, отдыха с семьей и приема друзей на свежем воздухе. Она расширяет функционал дома и позволяет наслаждаться природой, не покидая дома.

Цена и контакты: как заказать проект в Москве

Важнейшим преимуществом проекта является отличное соотношение «цена – качество». Заказать проект двухэтажного дома 17х10 с площадью 198,4 м² в Москве проще, чем вы думаете. Компания «Академик Строй» предлагает готовый проект за разумные деньги, покрывая все необходимые требования по современным стандартам строительства.

Персональный подход и консультации

Опытные специалисты компании готовы помочь вам с выбором проекта, учитывая все ваши пожелания и особенности участка. Телефон для заказа и консультации:
+7 (980) 800-47-93 Обращаясь по телефону, вы получите:
  • Персональную консультацию по проекту и его адаптации под ваш участок
  • Подробную стоимость и разбивку сметы работ и материалов
  • Помощь в оформлении необходимых разрешений для строительства

Почему выгодно купить готовый проект, а не заказывать индивидуальный?

Покупая готовый проект, вы значительно сокращаете сроки согласования и снижения финансовых затрат. Ведь все технические решения уже проверены, а документы готовы к подаче в органы архитектуры. В «Академик Строй» такой проект — это гарантия качества и надежности, ведь он разработан профессионалами с многолетним опытом в сфере частного домостроения.

Сравнение с другими вариантами: стоит ли обращать внимание на проект 17х10 м?

Для понимания преимуществ проекта стоит сравнить его с другими популярными вариантами коттеджей, близкими по площади и этажности.
Параметр Проект 17x10 м, 198,4 м² Одноэтажный дом 200 м² Двухэтажный дом 14x9 м
Полезная площадь 198,4 м² 200 м² 170 м²
Количество спален 4 3-4 3
Этажность 2 этажа 1 этаж 2 этажа
Минимальная площадь земельного участка от 24,9 м х 17,7 м от 30 м х 20 м от 22 м х 15 м
Камин Да Опция Опция
Терраса Да (опция) Редко Редко
Как видно из таблицы, проект 17х10 м максимально сбалансирован для загородного строительства в Подмосковье и Москве. Он экономит участок и при этом не теряет в удобствах.

Что еще важно знать перед заказом проекта дома

Постройка загородного дома – ответственное дело, и важно обратить внимание на несколько моментов при заказе.

Дополнительные услуги и сопровождение

Когда вы покупаете проект у «Академик Строй», вы получаете не только чертежи, но и поддержку специалиста по вопросам:
  • Адаптации под особенности грунта и рельефа
  • Рекомендации по выбору материалов
  • Поддержка при взаимодействии с подрядчиками
  • Согласование разрешительной документации

Временные рамки и этапы реализации

Планирование строительства всегда начинается с выбора проекта. После оформления документов вы получите весь пакет документов для подрядчика. При хорошем планировании и грамотном выборе подрядчиков срок возведения коттеджа такого типа составляет примерно от 9 до 12 месяцев.

Адаптация проекта под ваши пожелания

Хотя проект готовый, компания «Академик Строй» предусматривает возможность внесения изменений, будь то изменение планировки кухни, расширение санузлов или оборудования дополнительных инженерных систем. Это делается чтобы дом стал именно тем, о котором вы мечтаете.

Почему «Академик Строй» — лучший выбор для строительства вашего дома

Компания с многолетним опытом — это команда, которая понимает, как создать теплый и надежный дом для вас и вашей семьи. За время работы «Академик Строй» реализовал множество проектов с достойной репутацией в Москве и Подмосковье.
  • Профессионализм и индивидуальный подход к каждому клиенту
  • Соблюдение сроков и бюджета
  • Технические консультации на каждом этапе
  • Гарантированное качество и долговечность построек
Если вы хотите заказать проект надежного дома 17х10 м с площадью около 198 м² — звоните прямо сейчас по номеру +7 (980) 800-47-93, и специалисты помогут подобрать лучшие условия и ответят на все интересующие вас вопросы.

Итог: ваш будущий дом — комфорт, качество и стиль

Проект двухэтажного дома 17х10 м площадью 198,4 м² — идеальное решение для тех, кто хочет жить в уютном, практичном и красивом доме в Москве или Подмосковье. Это дом, который легко впишется в типичный городской или пригородный ландшафт, подарит личное пространство каждому члену семьи и станет местом, куда вам всегда захочется возвращаться после напряженного дня. Не упускайте возможность сделать первый шаг к своему дому мечты: достаточно связаться с профессионалами компании «Академик Строй» и заказать проект по выгодной цене, с поддержкой и учетом всех ваших пожеланий. Ведь дом — это не только стены, это ваша история и комфорт на долгие годы.