Двухэтажный дом 16x12 - 191.7 м2 за руб.

ID-70015

Стоимость дома 6543808 руб.
154 м2 Полезная
площадь
16 x 12 м Размеры
2 этажа Этажей
26 м2 Террасы
и балконы
1Без
гаража
4 Количество
спален
3 Количество
санузлов

Планировки

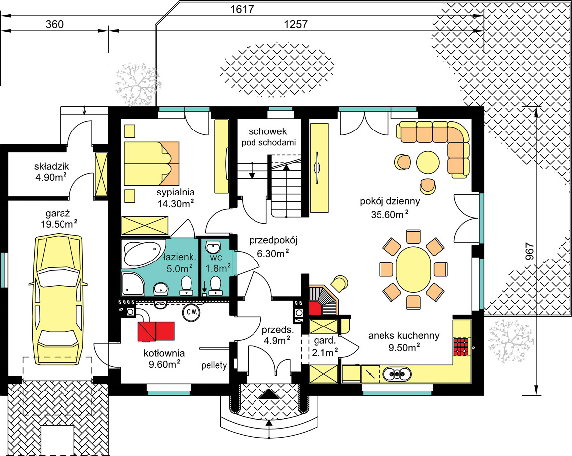
План первого этажа

floor image
  • 1. Прихожая 4,90 m²
  • 2. Гардероб 2,10 m²
  • 3. Кухня 9,50 m²
  • 4. Гостиная 35,60 m²
  • 5. Коридор 6,30 m²
  • 6. Комната 14,30 m²
  • 7. Ванная комната 5 m²
  • 8. Туалет 1,80 m²
  • 9. Котельная 9,60 m²
  • 10. Кладовая 4,90 m²
  • 11. Гараж на 1 машину 19,50 m²
  • План первого этажа 113,50 m²

План мансарды

floor image
  • 1. Коридор 9,60 m²
  • 2. Комната 16,50 m²
  • 3. Комната 16,50 m²
  • 4. Гардероб 3,30 m²
  • 5. Ванная комната 6,50 m²
  • 6. Комната 11,10 m²
  • 7. Чердак 14,70 m²
  • План мансарды 78,20 m²

Разрезы

Вертикальный разрез
Вертикальный разрез

Фасады

Передний
Задний
Левый
Правый
Передний
Задний
Левый
Правый

Подробная информация

Жилая площадь
143 m²
icon

Сумма площади всех жилых помещений, за вычетом пов. гараж, котельная, чердак, подвал. Учитывается в 100%, для помещений высотой более 2,2 м, в 50% для помещений с высотой 2,2-1,4 м и не включается для более низких помещений (меньше 1,4 м).

Площадь застройки
152,20 m²
icon

Площадь застройки здания определяется как площадь горизонтального сечения по внешнему обводу здания на уровне цоколя, включая выступающие части.

Объем брутто
909,70 m³
icon

Как правило, это сумма объема всех помещений в здании, подсчитанных по внешнему контуру стены (с утеплением).

Площадь крыши
256,90 m²
icon

Угол наклона крыши
42°
icon

Наклон ската крыши в градусах. Внимание! В некоторых проектах возникает более чем один наклон крыши.

Высота здания
8,60 m
icon

Высота измеряется от поверхности земли до самой высокой точки кровли (конька), за исключением дымоходов.

Мин. ширина участка
24,20 m
icon

Наименьшая возможная ширина участка, необходимая для строительства выбранного дома. Состоит из длины фасада дома плюс с обеих сторон три метра отступ.

Мин. длина участка
19,70 m
icon

Наименьшая возможная длина участка, необходимая для строительства выбранного дома. Состоит из длины фасада дома плюс с обеих сторон три метра отступ.

Материалы и опции
Общие
Цена, руб.
Площадь м²
240
Площадь от и до
Ежемесячный платёж, руб
Количество спален
4
Гараж
1
Количество санузлов
3
Тип крыши
Ширина
16
Глубина
12

Площади дома

№ п/п Наименование Ед. из. Строительная площадь Полезная площадь
1 1 этаж м2 139.87 113.5
2 2 этаж м2 96.37 78.2
3 Итого м2 236.24 191.7

Калькулятор опций

0

В ипотеку от 21 437 ₽/мес.

Фундамент
stdClass Object ( [id] => 1 [attribute_id] => 1 [name] => Ленточный монолитный ж/б [material_modifier] => 1 [work_modifier] => 1 [options] => Array ( [0] => размер 200 х 700 мм [1] => размер 300 х 900 мм [2] => размер 400 х 1 000 мм [3] => размер 500 х 1 100 мм [4] => размер 600 х 1 200 мм ) [days] => [20,21,22,25,30] [material_price] => [2823,3630,4475,5210,12047] [work_price] => [2154,2826,3731,4577,5293] [image] => https://akademik-stroy.ru/wp-content/uploads/materials/lentochnyj-monolitnyj-zh-b.jpg [area_modifier] => 139.87 [parent_name] => Фундамент [parent_id] => 1 [material_sum] => 497515 [work_sum] => 316344 [total_sum] => 813859 [total_days] => 20 [display_material_sum] => 497 515 [display_work_sum] => 316 344 [display_total_sum] => 813 859 ) 1
813 859
Работа:316 344
Материалы:497 515
Дни:20
stdClass Object ( [id] => 2 [attribute_id] => 1 [name] => Забивные Ж/Б сваи [material_modifier] => 1 [work_modifier] => 1 [options] => Array ( [0] => 150х150х3000мм [1] => 150х150х4000мм [2] => 200х200х3000мм [3] => 200х200х4000мм [4] => 200х200х5000мм [5] => 200х200х6000мм ) [days] => [2,2,2,2,2,2] [material_price] => [1990,2850,3255,4360,5120,6837] [work_price] => [1002,1185,1336,1438,1574,1839] [image] => https://akademik-stroy.ru/wp-content/uploads/materials/zabivnye-zh-b-svai.png [area_modifier] => 139.87 [parent_name] => Фундамент [parent_id] => 1 [material_sum] => 350710 [work_sum] => 147157 [total_sum] => 497867 [total_days] => 2 [display_material_sum] => 350 710 [display_work_sum] => 147 157 [display_total_sum] => 497 867 ) 1
497 867
Работа:147 157
Материалы:350 710
Дни:2
stdClass Object ( [id] => 71 [attribute_id] => 1 [name] => Свайно-ростверковый ж/б [material_modifier] => 1 [work_modifier] => 1 [options] => Array ( [0] => ростверк 200х300 мм [1] => ростверк 300х600 мм [2] => ростверк 400х900 мм [3] => ростверк 500х1200 мм ) [days] => [20,23,25,27] [material_price] => [3018,3474,7109,9792] [work_price] => [2024,3012,5635,7022] [image] => https://akademik-stroy.ru/wp-content/uploads/materials/svajno-rostverkovyj-monolitnyj-zh-b-3.png [area_modifier] => 139.87 [parent_name] => Фундамент [parent_id] => 1 [material_sum] => 531881 [work_sum] => 297252 [total_sum] => 829133 [total_days] => 20 [display_material_sum] => 531 881 [display_work_sum] => 297 252 [display_total_sum] => 829 133 ) 1
829 133
Работа:297 252
Материалы:531 881
Дни:20
stdClass Object ( [id] => 72 [attribute_id] => 1 [name] => Монолитная ж/б плита [material_modifier] => 1 [work_modifier] => 1 [options] => Array ( [0] => 200 мм [1] => 300 мм [2] => 400 мм [3] => 500 мм [4] => 600 мм ) [days] => [30,33,35,37,40] [material_price] => [5348,8555,12788,14388,15189] [work_price] => [4314,4881,7037,8061,10230] [image] => https://akademik-stroy.ru/wp-content/uploads/materials/monolitnaya-zhb-plita.png [area_modifier] => 139.87 [parent_name] => Фундамент [parent_id] => 1 [material_sum] => 942511 [work_sum] => 633569 [total_sum] => 1576080 [total_days] => 30 [display_material_sum] => 942 511 [display_work_sum] => 633 569 [display_total_sum] => 1 576 080 ) 1
1 576 080
Работа:633 569
Материалы:942 511
Дни:30
stdClass Object ( [id] => 73 [attribute_id] => 1 [name] => Утепленная шведская плита [material_modifier] => 1 [work_modifier] => 1 [options] => Array ( [0] => 200 мм [1] => 300 мм [2] => 400 мм [3] => 500 мм [4] => 600 мм ) [days] => [32,37,39,42,45] [material_price] => [10249,12692,13760,14936,16230] [work_price] => [5960,7337,8072,8878,9765] [image] => https://akademik-stroy.ru/wp-content/uploads/materials/uteplennaya-shvedskaya-plita.jpg [area_modifier] => 139.87 [parent_name] => Фундамент [parent_id] => 1 [material_sum] => 1806245 [work_sum] => 875306 [total_sum] => 2681551 [total_days] => 32 [display_material_sum] => 1 806 245 [display_work_sum] => 875 306 [display_total_sum] => 2 681 551 ) 1
2 681 551
Работа:875 306
Материалы:1 806 245
Дни:32
stdClass Object ( [id] => 75 [attribute_id] => 1 [name] => Ленточный из ФБС [material_modifier] => 1 [work_modifier] => 1 [options] => Array ( [0] => толщ. 300 мм [1] => толщ. 400 мм [2] => толщ. 500 мм [3] => толщ. 600 мм ) [days] => [20,20,20,20] [material_price] => [3675,4902,6126,7350] [work_price] => [2451,3264,4083,4902] [image] => https://akademik-stroy.ru/wp-content/uploads/materials/lentochnyj-iz-fbs.png [area_modifier] => 139.87 [parent_name] => Фундамент [parent_id] => 1 [material_sum] => 647668 [work_sum] => 359962 [total_sum] => 1007630 [total_days] => 20 [display_material_sum] => 647 668 [display_work_sum] => 359 962 [display_total_sum] => 1 007 630 ) 1
1 007 630
Работа:359 962
Материалы:647 668
Дни:20
stdClass Object ( [id] => 76 [attribute_id] => 1 [name] => Цокольный этаж из ФБС [material_modifier] => 1 [work_modifier] => 1 [options] => Array ( [0] => толщ. 300 мм [1] => толщ. 400 мм [2] => толщ. 500 мм [3] => толщ. 600 мм ) [days] => [30,32,34,36] [material_price] => [20916,23299,26680,29060] [work_price] => [17524,18700,19873,21046] [image] => https://akademik-stroy.ru/wp-content/uploads/materials/cokolnyj-ehtazh-iz-fbs.jpg [area_modifier] => 139.87 [parent_name] => Фундамент [parent_id] => 1 [material_sum] => 3686156 [work_sum] => 2573636 [total_sum] => 6259792 [total_days] => 30 [display_material_sum] => 3 686 156 [display_work_sum] => 2 573 636 [display_total_sum] => 6 259 792 ) 1
6 259 792
Работа:2 573 636
Материалы:3 686 156
Дни:30
stdClass Object ( [id] => 77 [attribute_id] => 1 [name] => Цокольный этаж монолитный ж/б [material_modifier] => 1 [work_modifier] => 1 [options] => Array ( [0] => толщ. 200 мм [1] => толщ. 300 мм [2] => толщ. 400 мм [3] => толщ. 500 мм [4] => толщ. 600 мм ) [days] => [40,42,44,46,48] [material_price] => [25421,29148,32275,35602,37326] [work_price] => [20441,21907,23375,24841,26306] [image] => https://akademik-stroy.ru/wp-content/uploads/materials/cokolnyj-etazh-zh-b.jpg [area_modifier] => 139.87 [parent_name] => Фундамент [parent_id] => 1 [material_sum] => 4480100 [work_sum] => 3002037 [total_sum] => 7482137 [total_days] => 40 [display_material_sum] => 4 480 100 [display_work_sum] => 3 002 037 [display_total_sum] => 7 482 137 ) 1
7 482 137
Работа:3 002 037
Материалы:4 480 100
Дни:40
stdClass Object ( [id] => 191 [attribute_id] => 1 [name] => Винтовые сваи [material_modifier] => 1 [work_modifier] => 1 [options] => Array ( [0] => 57х200мм [1] => 76х250мм [2] => 108х300мм [3] => 133х350мм ) [days] => [1,1,2,2] [material_price] => [1200,1300,1450,1600] [work_price] => [400,600,900,1100] [image] => https://akademik-stroy.ru/wp-content/uploads/materials/vintovye-svai.png [area_modifier] => 139.87 [parent_name] => Фундамент [parent_id] => 1 [material_sum] => 211483 [work_sum] => 58745 [total_sum] => 270228 [total_days] => 1 [display_material_sum] => 211 483 [display_work_sum] => 58 745 [display_total_sum] => 270 228 ) 1
270 228
Работа:58 745
Материалы:211 483
Дни:1
Перекрытие цоколя
stdClass Object ( [id] => 3 [attribute_id] => 2 [name] => Деревянные балки [material_modifier] => 1 [work_modifier] => 1 [options] => Array ( [0] => без утепления [1] => утепление 200 мм [2] => утепление 250 мм [3] => утепление 300 мм [4] => утепление 350 мм [5] => утепление 400 мм [6] => утепление 450 мм [7] => утепление 500 мм ) [days] => [8,9,9,9,11,12,13,14] [material_price] => [1634,2042,2344,2947,3149,3652,3354,3557] [work_price] => [1230,1339,1393,1426,1460,1513,1587,1620] [image] => https://akademik-stroy.ru/wp-content/uploads/materials/derevyannye-balki.png [area_modifier] => 139.87 [parent_name] => Перекрытие цоколя [parent_id] => 2 [material_sum] => 287970 [work_sum] => 180642 [total_sum] => 468612 [total_days] => 8 [display_material_sum] => 287 970 [display_work_sum] => 180 642 [display_total_sum] => 468 612 ) 1
468 612
Работа:180 642
Материалы:287 970
Дни:8
stdClass Object ( [id] => 4 [attribute_id] => 2 [name] => Сборные ж/б плиты [material_modifier] => 1 [work_modifier] => 1 [options] => Array ( [0] => без утепления [1] => утепление 150мм [2] => утепление 200мм [3] => утепление 250мм [4] => утепление 300мм [5] => утепление 350мм [6] => утепление 400мм [7] => утепление 450мм [8] => утепление 500мм ) [days] => [13,15,15,15,15,15,15,15,15] [material_price] => [3067,5577,5928,6679,7730,8782,9833,10884,11935] [work_price] => [1520,1956,2102,2247,2392,2537,2684,2829,2974] [image] => https://akademik-stroy.ru/wp-content/uploads/materials/sbornye-zh-b-plity-2.jpg [area_modifier] => 139.87 [parent_name] => Перекрытие цоколя [parent_id] => 2 [material_sum] => 540516 [work_sum] => 223233 [total_sum] => 763749 [total_days] => 13 [display_material_sum] => 540 516 [display_work_sum] => 223 233 [display_total_sum] => 763 749 ) 1
763 749
Работа:223 233
Материалы:540 516
Дни:13
stdClass Object ( [id] => 78 [attribute_id] => 2 [name] => Монолитная ж/б плита [material_modifier] => 1 [work_modifier] => 1 [options] => Array ( [0] => без утепления [1] => утепление 150 мм [2] => утепление 200 мм [3] => утепление 250 мм [4] => утепление 300 мм [5] => утепление 350 мм [6] => утепление 400 мм [7] => утепление 450 мм [8] => утепление 500 мм ) [days] => [18,20,20,20,20,20,20,20,20] [material_price] => [4837,6572,7224,7375,79426,8177,8728,9180,10031] [work_price] => [3348,3921,4112,4302,4493,4684,4875,5066,5256] [image] => https://akademik-stroy.ru/wp-content/uploads/materials/monolitnaya-zh-b-plita-2.jpg [area_modifier] => 139.87 [parent_name] => Перекрытие цоколя [parent_id] => 2 [material_sum] => 852454 [work_sum] => 491699 [total_sum] => 1344153 [total_days] => 18 [display_material_sum] => 852 454 [display_work_sum] => 491 699 [display_total_sum] => 1 344 153 ) 1
1 344 153
Работа:491 699
Материалы:852 454
Дни:18
Стены 1 этаж (несущие)
stdClass Object ( [id] => 6 [attribute_id] => 3 [name] => Пеноблок [material_modifier] => 1 [work_modifier] => 1 [options] => Array ( [0] => 300 мм [1] => 400 мм [2] => 500 мм [3] => 600 мм ) [days] => [29,31,34,39] [material_price] => [3000,4000,4500,4937] [work_price] => [5033,5805,6400,8710] [image] => https://akademik-stroy.ru/wp-content/uploads/materials/penoblok.jpg [area_modifier] => 139.87 [parent_name] => Стены 1 этаж (несущие) [parent_id] => 3 [material_sum] => 528709 [work_sum] => 739164 [total_sum] => 1267873 [total_days] => 29 [display_material_sum] => 528 709 [display_work_sum] => 739 164 [display_total_sum] => 1 267 873 ) 1
1 267 873
Работа:739 164
Материалы:528 709
Дни:29
stdClass Object ( [id] => 79 [attribute_id] => 3 [name] => Керамический блок [material_modifier] => 1 [work_modifier] => 1 [options] => Array ( [0] => 380 мм [1] => 380 мм Thermo [2] => 440 мм [3] => 510 мм ) [days] => [23,23,24,25] [material_price] => [4510,5098,6093,8013] [work_price] => [4737,4937,5903,6958] [image] => https://akademik-stroy.ru/wp-content/uploads/materials/keramicheskij-blok.jpg [area_modifier] => 139.87 [parent_name] => Стены 1 этаж (несущие) [parent_id] => 3 [material_sum] => 794825 [work_sum] => 695692 [total_sum] => 1490517 [total_days] => 23 [display_material_sum] => 794 825 [display_work_sum] => 695 692 [display_total_sum] => 1 490 517 ) 1
1 490 517
Работа:695 692
Материалы:794 825
Дни:23
stdClass Object ( [id] => 80 [attribute_id] => 3 [name] => Кирпич [material_modifier] => 1 [work_modifier] => 1 [options] => Array ( [0] => Кирпич 250 мм [1] => Кирпич 380 мм [2] => Кирпич 510 мм [3] => Кирпич 640 мм [4] => Кирпич 770 мм ) [days] => [30,30,31,33,36] [material_price] => [5500,7142,9206,10171,12235] [work_price] => [8736,10041,12018,15240,18462] [image] => https://akademik-stroy.ru/wp-content/uploads/materials/kirpich.jpg [area_modifier] => 139.87 [parent_name] => Стены 1 этаж (несущие) [parent_id] => 3 [material_sum] => 969299 [work_sum] => 1283000 [total_sum] => 2252299 [total_days] => 30 [display_material_sum] => 969 299 [display_work_sum] => 1 283 000 [display_total_sum] => 2 252 299 ) 1
2 252 299
Работа:1 283 000
Материалы:969 299
Дни:30
stdClass Object ( [id] => 81 [attribute_id] => 3 [name] => Монолитные [material_modifier] => 1 [work_modifier] => 1 [options] => Array ( [0] => 150 мм [1] => 200 мм [2] => 250 мм [3] => 300 мм [4] => 350 мм [5] => 400 мм ) [days] => [45,46,47,49,50,53] [material_price] => [6545,7876,10175,12011,13908,15204] [work_price] => [5106,6444,7698,8552,9807,11461] [image] => https://akademik-stroy.ru/wp-content/uploads/materials/monolitnye.jpg [area_modifier] => 139.87 [parent_name] => Стены 1 этаж (несущие) [parent_id] => 3 [material_sum] => 1153466 [work_sum] => 749885 [total_sum] => 1903351 [total_days] => 45 [display_material_sum] => 1 153 466 [display_work_sum] => 749 885 [display_total_sum] => 1 903 351 ) 1
1 903 351
Работа:749 885
Материалы:1 153 466
Дни:45
stdClass Object ( [id] => 82 [attribute_id] => 3 [name] => Клееный брус [material_modifier] => 1 [work_modifier] => 1 [options] => Array ( [0] => 160 мм [1] => 175 мм [2] => 200 мм [3] => 215 мм [4] => 240 мм [5] => 270 мм [6] => 282 мм ) [days] => [24,28,32,37,40,42,48] [material_price] => [16975,18773,19950,20545,21599,22159,23275] [work_price] => [4806,5287,5815,6397,7036,7740,8514] [image] => https://akademik-stroy.ru/wp-content/uploads/materials/kleenyj-brus.jpg [area_modifier] => 139.87 [parent_name] => Стены 1 этаж (несущие) [parent_id] => 3 [material_sum] => 2991609 [work_sum] => 705826 [total_sum] => 3697435 [total_days] => 24 [display_material_sum] => 2 991 609 [display_work_sum] => 705 826 [display_total_sum] => 3 697 435 ) 1
3 697 435
Работа:705 826
Материалы:2 991 609
Дни:24
stdClass Object ( [id] => 83 [attribute_id] => 3 [name] => Каркасные [material_modifier] => 1 [work_modifier] => 1 [options] => Array ( [0] => 150 мм [1] => 200 мм [2] => 250 мм [3] => 300 мм ) [days] => [15,16,17,18] [material_price] => [2379,2639,2898,3258] [work_price] => [2418,2686,2985,3716] [image] => https://akademik-stroy.ru/wp-content/uploads/materials/karkasnye.jpg [area_modifier] => 139.87 [parent_name] => Стены 1 этаж (несущие) [parent_id] => 3 [material_sum] => 419266 [work_sum] => 355116 [total_sum] => 774382 [total_days] => 15 [display_material_sum] => 419 266 [display_work_sum] => 355 116 [display_total_sum] => 774 382 ) 1
774 382
Работа:355 116
Материалы:419 266
Дни:15
stdClass Object ( [id] => 84 [attribute_id] => 3 [name] => СИП-панели [material_modifier] => 1 [work_modifier] => 1 [options] => Array ( [0] => 120 мм [1] => 170 мм [2] => 220 мм ) [days] => [7,7,7] [material_price] => [1210,1856,2292] [work_price] => [1410,1551,1706] [image] => https://akademik-stroy.ru/wp-content/uploads/materials/sip-paneli.jpg [area_modifier] => 139.87 [parent_name] => Стены 1 этаж (несущие) [parent_id] => 3 [material_sum] => 213246 [work_sum] => 207078 [total_sum] => 420324 [total_days] => 7 [display_material_sum] => 213 246 [display_work_sum] => 207 078 [display_total_sum] => 420 324 ) 1
420 324
Работа:207 078
Материалы:213 246
Дни:7
stdClass Object ( [id] => 85 [attribute_id] => 3 [name] => Сухой брус [material_modifier] => 1 [work_modifier] => 1 [options] => Array ( [0] => 150 мм [1] => 180 мм [2] => 200 мм ) [days] => [7,8,9] [material_price] => [6010,7190,8709] [work_price] => [3204,3845,4229] [image] => https://akademik-stroy.ru/wp-content/uploads/materials/suhoj-brus.jpg [area_modifier] => 139.87 [parent_name] => Стены 1 этаж (несущие) [parent_id] => 3 [material_sum] => 1059180 [work_sum] => 470551 [total_sum] => 1529731 [total_days] => 7 [display_material_sum] => 1 059 180 [display_work_sum] => 470 551 [display_total_sum] => 1 529 731 ) 1
1 529 731
Работа:470 551
Материалы:1 059 180
Дни:7
stdClass Object ( [id] => 86 [attribute_id] => 3 [name] => Профилированный брус [material_modifier] => 1 [work_modifier] => 1 [options] => Array ( [0] => 150 мм [1] => 180 мм [2] => 200 мм ) [days] => [7,8,9] [material_price] => [8190,9228,10051] [work_price] => [3845,4614,5075] [image] => https://akademik-stroy.ru/wp-content/uploads/materials/profilirovannyj-brus.jpg [area_modifier] => 139.87 [parent_name] => Стены 1 этаж (несущие) [parent_id] => 3 [material_sum] => 1443374 [work_sum] => 564690 [total_sum] => 2008064 [total_days] => 7 [display_material_sum] => 1 443 374 [display_work_sum] => 564 690 [display_total_sum] => 2 008 064 ) 1
2 008 064
Работа:564 690
Материалы:1 443 374
Дни:7
stdClass Object ( [id] => 87 [attribute_id] => 3 [name] => Оцилиндрованное бревно [material_modifier] => 1 [work_modifier] => 1 [options] => Array ( [0] => 180 мм [1] => 220 мм [2] => 260 мм [3] => 320 мм ) [days] => [7,8,9,10] [material_price] => [75190,9532,10868,13116] [work_price] => [3845,4691,5535,6863] [image] => https://akademik-stroy.ru/wp-content/uploads/materials/ocilindrovannoe-brevno-1.jpg [area_modifier] => 139.87 [parent_name] => Стены 1 этаж (несущие) [parent_id] => 3 [material_sum] => 13251200 [work_sum] => 564690 [total_sum] => 13815890 [total_days] => 7 [display_material_sum] => 13 251 200 [display_work_sum] => 564 690 [display_total_sum] => 13 815 890 ) 1
13 815 890
Работа:564 690
Материалы:13 251 200
Дни:7
stdClass Object ( [id] => 88 [attribute_id] => 3 [name] => Срубы [material_modifier] => 1 [work_modifier] => 1 [options] => Array ( [0] => 260 мм [1] => 320 мм [2] => 360 мм [3] => 400 мм [4] => 500 мм ) [days] => [7,8,9,10,11] [material_price] => [37975,46709,52314,58069,73167] [work_price] => [4806,5911,6621,7349,9260] [image] => https://akademik-stroy.ru/wp-content/uploads/materials/sruby.jpg [area_modifier] => 139.87 [parent_name] => Стены 1 этаж (несущие) [parent_id] => 3 [material_sum] => 6692570 [work_sum] => 705826 [total_sum] => 7398396 [total_days] => 7 [display_material_sum] => 6 692 570 [display_work_sum] => 705 826 [display_total_sum] => 7 398 396 ) 1
7 398 396
Работа:705 826
Материалы:6 692 570
Дни:7
stdClass Object ( [id] => 174 [attribute_id] => 3 [name] => Брус [material_modifier] => 1 [work_modifier] => 1 [options] => Array ( [0] => 150 мм [1] => 180 мм [2] => 200 мм ) [days] => [7,8,9] [material_price] => [5127,6152,7367] [work_price] => [1602,1922,2115] [image] => https://akademik-stroy.ru/wp-content/uploads/materials/brus.jpg [area_modifier] => 139.87 [parent_name] => Стены 1 этаж (несущие) [parent_id] => 3 [material_sum] => 903563 [work_sum] => 235275 [total_sum] => 1138838 [total_days] => 7 [display_material_sum] => 903 563 [display_work_sum] => 235 275 [display_total_sum] => 1 138 838 ) 1
1 138 838
Работа:235 275
Материалы:903 563
Дни:7
stdClass Object ( [id] => 175 [attribute_id] => 3 [name] => Газобетон [material_modifier] => 1 [work_modifier] => 1 [options] => Array ( [0] => 300 мм [1] => 375 мм [2] => 400 мм [3] => 500 мм [4] => 600 мм ) [days] => [29,31,35,37,44] [material_price] => [4298,5573,6356,7288,9119] [work_price] => [4538,5251,5926,6733,7195] [image] => https://akademik-stroy.ru/wp-content/uploads/materials/gazobeton.jpg [area_modifier] => 139.87 [parent_name] => Стены 1 этаж (несущие) [parent_id] => 3 [material_sum] => 757463 [work_sum] => 666467 [total_sum] => 1423930 [total_days] => 29 [display_material_sum] => 757 463 [display_work_sum] => 666 467 [display_total_sum] => 1 423 930 ) 1
1 423 930
Работа:666 467
Материалы:757 463
Дни:29
stdClass Object ( [id] => 176 [attribute_id] => 3 [name] => Блок [material_modifier] => 1 [work_modifier] => 1 [options] => Array ( [0] => 300 мм [1] => 375 мм [2] => 400 мм [3] => 500 мм [4] => 600 мм ) [days] => [29,31,35,37,44] [material_price] => [2698,3973,4356,6588,7119] [work_price] => [5038,5851,6426,8733,9195] [image] => https://akademik-stroy.ru/wp-content/uploads/materials/blok.jpg [area_modifier] => 139.87 [parent_name] => Стены 1 этаж (несущие) [parent_id] => 3 [material_sum] => 475485 [work_sum] => 739898 [total_sum] => 1215383 [total_days] => 29 [display_material_sum] => 475 485 [display_work_sum] => 739 898 [display_total_sum] => 1 215 383 ) 1
1 215 383
Работа:739 898
Материалы:475 485
Дни:29
stdClass Object ( [id] => 177 [attribute_id] => 3 [name] => Газосиликатный блок [material_modifier] => 1 [work_modifier] => 1 [options] => Array ( [0] => 300 мм [1] => 375 мм [2] => 400 мм [3] => 500 мм [4] => 600 мм ) [days] => [29,31,35,37,44] [material_price] => [4298,5573,6356,7288,9119] [work_price] => [4538,5251,5926,6733,7195] [image] => https://akademik-stroy.ru/wp-content/uploads/materials/gazosilikatnyj-blok.jpg [area_modifier] => 139.87 [parent_name] => Стены 1 этаж (несущие) [parent_id] => 3 [material_sum] => 757463 [work_sum] => 666467 [total_sum] => 1423930 [total_days] => 29 [display_material_sum] => 757 463 [display_work_sum] => 666 467 [display_total_sum] => 1 423 930 ) 1
1 423 930
Работа:666 467
Материалы:757 463
Дни:29
stdClass Object ( [id] => 178 [attribute_id] => 3 [name] => Керамзитобетонный блок [material_modifier] => 1 [work_modifier] => 1 [options] => Array ( [0] => 300 мм [1] => 375 мм [2] => 400 мм [3] => 500 мм [4] => 600 мм ) [days] => [23,23,24,25,28] [material_price] => [3641,4298,5693,7613,9612] [work_price] => [5737,5737,6903,7958,8901] [image] => https://akademik-stroy.ru/wp-content/uploads/materials/keramzitobetonnyj-blok.jpg [area_modifier] => 139.87 [parent_name] => Стены 1 этаж (несущие) [parent_id] => 3 [material_sum] => 641676 [work_sum] => 842556 [total_sum] => 1484232 [total_days] => 23 [display_material_sum] => 641 676 [display_work_sum] => 842 556 [display_total_sum] => 1 484 232 ) 1
1 484 232
Работа:842 556
Материалы:641 676
Дни:23
stdClass Object ( [id] => 179 [attribute_id] => 3 [name] => Деревянные [material_modifier] => 1 [work_modifier] => 1 [options] => Array ( [0] => 180 мм [1] => 220 мм [2] => 260 мм [3] => 320 мм ) [days] => [7,8,9,10] [material_price] => [7950,9458,11961,14472] [work_price] => [4037,4925,5812,7207] [image] => https://akademik-stroy.ru/wp-content/uploads/materials/derevyannye.jpg [area_modifier] => 139.87 [parent_name] => Стены 1 этаж (несущие) [parent_id] => 3 [material_sum] => 1401078 [work_sum] => 592888 [total_sum] => 1993966 [total_days] => 7 [display_material_sum] => 1 401 078 [display_work_sum] => 592 888 [display_total_sum] => 1 993 966 ) 1
1 993 966
Работа:592 888
Материалы:1 401 078
Дни:7
stdClass Object ( [id] => 181 [attribute_id] => 3 [name] => Камень [material_modifier] => 1 [work_modifier] => 1 [options] => Array ( [0] => 300 мм [1] => 400 мм [2] => 500 мм [3] => 600 мм ) [days] => [25,27,31,34] [material_price] => [5262,6844,8330,9815] [work_price] => [8331,9135,10427,11069] [image] => https://akademik-stroy.ru/wp-content/uploads/materials/kamen.jpg [area_modifier] => 139.87 [parent_name] => Стены 1 этаж (несущие) [parent_id] => 3 [material_sum] => 927355 [work_sum] => 1223520 [total_sum] => 2150875 [total_days] => 25 [display_material_sum] => 927 355 [display_work_sum] => 1 223 520 [display_total_sum] => 2 150 875 ) 1
2 150 875
Работа:1 223 520
Материалы:927 355
Дни:25
stdClass Object ( [id] => 182 [attribute_id] => 3 [name] => Каркасно-щитовые [material_modifier] => 1 [work_modifier] => 1 [options] => Array ( [0] => 150 мм [1] => 200 мм [2] => 250 мм [3] => 300 мм [4] => 350 мм [5] => 400 мм ) [days] => [15,16,17,18,19,20] [material_price] => [2379,2639,2898,3458,3601,4175] [work_price] => [2538,2820,3134,3483,4062,5642] [image] => https://akademik-stroy.ru/wp-content/uploads/materials/karkasno-shchitovye.jpg [area_modifier] => 139.87 [parent_name] => Стены 1 этаж (несущие) [parent_id] => 3 [material_sum] => 419266 [work_sum] => 372740 [total_sum] => 792006 [total_days] => 15 [display_material_sum] => 419 266 [display_work_sum] => 372 740 [display_total_sum] => 792 006 ) 1
792 006
Работа:372 740
Материалы:419 266
Дни:15
stdClass Object ( [id] => 183 [attribute_id] => 3 [name] => Рубленные [material_modifier] => 1 [work_modifier] => 1 [options] => Array ( [0] => 150 мм [1] => 200 мм [2] => 250 мм [3] => 300 мм [4] => 350 мм [5] => 400 мм ) [days] => [15,16,17,18,17,18] [material_price] => [35950,50267,60583,75900,80217,100533] [work_price] => [9612,12816,16020,19224,22428,25632] [image] => https://akademik-stroy.ru/wp-content/uploads/materials/rublennye.jpg [area_modifier] => 139.87 [parent_name] => Стены 1 этаж (несущие) [parent_id] => 3 [material_sum] => 6335691 [work_sum] => 1411652 [total_sum] => 7747343 [total_days] => 15 [display_material_sum] => 6 335 691 [display_work_sum] => 1 411 652 [display_total_sum] => 7 747 343 ) 1
7 747 343
Работа:1 411 652
Материалы:6 335 691
Дни:15
stdClass Object ( [id] => 185 [attribute_id] => 3 [name] => Теплоблок [material_modifier] => 1 [work_modifier] => 1 [options] => Array ( [0] => 300 мм (с облицовкой, не покрашенный) [1] => 400 мм (с облицовкой, не покрашенный) [2] => 300 мм (с облицовкой, покрашенный) [3] => 400 мм (с облицовкой, покрашенный) ) [days] => [15,16,15,16] [material_price] => [2888,3729,3957,4258] [work_price] => [2564,3229,2949,3713] [image] => https://akademik-stroy.ru/wp-content/uploads/materials/teploblok.jpg [area_modifier] => 139.87 [parent_name] => Стены 1 этаж (несущие) [parent_id] => 3 [material_sum] => 508970 [work_sum] => 376558 [total_sum] => 885528 [total_days] => 15 [display_material_sum] => 508 970 [display_work_sum] => 376 558 [display_total_sum] => 885 528 ) 1
885 528
Работа:376 558
Материалы:508 970
Дни:15
stdClass Object ( [id] => 186 [attribute_id] => 3 [name] => Арболитовые блоки [material_modifier] => 1 [work_modifier] => 1 [options] => Array ( [0] => 300 мм [1] => 400 мм [2] => 600 мм ) [days] => [19,22,27] [material_price] => [3210,4475,5852] [work_price] => [4214,4788,5866] [image] => https://akademik-stroy.ru/wp-content/uploads/materials/arbolitovye-bloki.png [area_modifier] => 139.87 [parent_name] => Стены 1 этаж (несущие) [parent_id] => 3 [material_sum] => 565718 [work_sum] => 618883 [total_sum] => 1184601 [total_days] => 19 [display_material_sum] => 565 718 [display_work_sum] => 618 883 [display_total_sum] => 1 184 601 ) 1
1 184 601
Работа:618 883
Материалы:565 718
Дни:19
stdClass Object ( [id] => 187 [attribute_id] => 3 [name] => Полистиролбетон [material_modifier] => 1 [work_modifier] => 1 [options] => Array ( [0] => 300 мм [1] => 400 мм [2] => 600 мм ) [days] => [29,31,35] [material_price] => [2798,4573,5256] [work_price] => [5038,5851,6426] [image] => https://akademik-stroy.ru/wp-content/uploads/materials/polistirolbeton.jpg [area_modifier] => 139.87 [parent_name] => Стены 1 этаж (несущие) [parent_id] => 3 [material_sum] => 493109 [work_sum] => 739898 [total_sum] => 1233007 [total_days] => 29 [display_material_sum] => 493 109 [display_work_sum] => 739 898 [display_total_sum] => 1 233 007 ) 1
1 233 007
Работа:739 898
Материалы:493 109
Дни:29
stdClass Object ( [id] => 188 [attribute_id] => 3 [name] => Шлакоблок [material_modifier] => 1 [work_modifier] => 1 [options] => Array ( [0] => 400 мм [1] => 600 мм ) [days] => [15,16] [material_price] => [2391,3471] [work_price] => [2642,3662] [image] => https://akademik-stroy.ru/wp-content/uploads/materials/shlakoblok.jpg [area_modifier] => 139.87 [parent_name] => Стены 1 этаж (несущие) [parent_id] => 3 [material_sum] => 421381 [work_sum] => 388013 [total_sum] => 809394 [total_days] => 15 [display_material_sum] => 421 381 [display_work_sum] => 388 013 [display_total_sum] => 809 394 ) 1
809 394
Работа:388 013
Материалы:421 381
Дни:15
stdClass Object ( [id] => 189 [attribute_id] => 3 [name] => Теплая керамика [material_modifier] => 1 [work_modifier] => 1 [options] => Array ( [0] => 380 мм [1] => 380 мм Thermo [2] => 440 мм [3] => 510 мм ) [days] => [23,23,24,25] [material_price] => [4510,5098,6093,8013] [work_price] => [4737,4937,5903,6958] [image] => https://akademik-stroy.ru/wp-content/uploads/materials/teplaya-keramika.jpg [area_modifier] => 139.87 [parent_name] => Стены 1 этаж (несущие) [parent_id] => 3 [material_sum] => 794825 [work_sum] => 695692 [total_sum] => 1490517 [total_days] => 23 [display_material_sum] => 794 825 [display_work_sum] => 695 692 [display_total_sum] => 1 490 517 ) 1
1 490 517
Работа:695 692
Материалы:794 825
Дни:23
stdClass Object ( [id] => 190 [attribute_id] => 3 [name] => Несъемная опалубка [material_modifier] => 1 [work_modifier] => 1 [options] => Array ( [0] => 200 мм [1] => 250 мм [2] => 300 мм [3] => 350 мм ) [days] => [15,17,19,21] [material_price] => [3302,3902,4108,5008] [work_price] => [2100,2100,2300,2534] [image] => https://akademik-stroy.ru/wp-content/uploads/materials/nesemnaya-opalubka.jpg [area_modifier] => 139.87 [parent_name] => Стены 1 этаж (несущие) [parent_id] => 3 [material_sum] => 581932 [work_sum] => 308413 [total_sum] => 890345 [total_days] => 15 [display_material_sum] => 581 932 [display_work_sum] => 308 413 [display_total_sum] => 890 345 ) 1
890 345
Работа:308 413
Материалы:581 932
Дни:15
stdClass Object ( [id] => 251 [attribute_id] => 3 [name] => Бревно [material_modifier] => 1 [work_modifier] => 1 [options] => Array ( [0] => 260 мм [1] => 320 мм [2] => 360 мм [3] => 400 мм [4] => 500 мм ) [days] => [7,8,9,10,11] [material_price] => [1874,24045,26930,30972,38825] [work_price] => [5046,6207,6952,7716,9723] [image] => https://akademik-stroy.ru/wp-content/uploads/materials/sruby.jpg [area_modifier] => 139.87 [parent_name] => Стены 1 этаж (несущие) [parent_id] => 3 [material_sum] => 330267 [work_sum] => 741073 [total_sum] => 1071340 [total_days] => 7 [display_material_sum] => 330 267 [display_work_sum] => 741 073 [display_total_sum] => 1 071 340 ) 1
1 071 340
Работа:741 073
Материалы:330 267
Дни:7
Перекрытие первого этажа
stdClass Object ( [id] => 7 [attribute_id] => 4 [name] => Деревянные балки [material_modifier] => 1 [work_modifier] => 1 [options] => Array ( [0] => без утепления [1] => утепление 200 мм [2] => утепление 250 мм [3] => утепление 300 мм [4] => утепление 350 мм [5] => утепление 400 мм [6] => утепление 450 мм [7] => утепление 500 мм ) [days] => [8,9,9,9,11,12,13,14] [material_price] => [1634,2042,2344,2947,3149,3652,3354,3557] [work_price] => [1230,1339,1393,1426,1460,1513,1587,1620] [image] => https://akademik-stroy.ru/wp-content/uploads/materials/derevyannye-balki.png [area_modifier] => 139.87 [parent_name] => Перекрытие первого этажа [parent_id] => 4 [material_sum] => 287970 [work_sum] => 180642 [total_sum] => 468612 [total_days] => 8 [display_material_sum] => 287 970 [display_work_sum] => 180 642 [display_total_sum] => 468 612 ) 1
468 612
Работа:180 642
Материалы:287 970
Дни:8
stdClass Object ( [id] => 8 [attribute_id] => 4 [name] => Сборные ж/б плиты [material_modifier] => 1 [work_modifier] => 1 [options] => Array ( [0] => без утепления [1] => утепление 150 мм [2] => утепление 200 мм [3] => утепление 250 мм [4] => утепление 300 мм [5] => утепление 350 мм [6] => утепление 400 мм [7] => утепление 450 мм [8] => утепление 500 мм ) [days] => [13,15,15,15,15,15,15,15,15] [material_price] => [3067,5577,5928,6679,7730,8782,9833,10884,11935] [work_price] => [1520,1956,2102,2247,2392,2537,2684,2829,2974] [image] => https://akademik-stroy.ru/wp-content/uploads/materials/sbornye-zh-b-plity-2.jpg [area_modifier] => 139.87 [parent_name] => Перекрытие первого этажа [parent_id] => 4 [material_sum] => 540516 [work_sum] => 223233 [total_sum] => 763749 [total_days] => 13 [display_material_sum] => 540 516 [display_work_sum] => 223 233 [display_total_sum] => 763 749 ) 1
763 749
Работа:223 233
Материалы:540 516
Дни:13
stdClass Object ( [id] => 89 [attribute_id] => 4 [name] => Монолитная ж/б плита [material_modifier] => 1 [work_modifier] => 1 [options] => Array ( [0] => без утепления [1] => утепление 150 мм [2] => утепление 200 мм [3] => утепление 250 мм [4] => утепление 300 мм [5] => утепление 350 мм [6] => утепление 400 мм [7] => утепление 450 мм [8] => утепление 500 мм ) [days] => [18,20,20,20,20,20,20,20,20] [material_price] => [4837,6572,7224,7375,79426,8177,8728,9180,10031] [work_price] => [3348,3921,4112,4302,4493,4684,4875,5066,5256] [image] => https://akademik-stroy.ru/wp-content/uploads/materials/monolitnaya-zh-b-plita-2.jpg [area_modifier] => 139.87 [parent_name] => Перекрытие первого этажа [parent_id] => 4 [material_sum] => 852454 [work_sum] => 491699 [total_sum] => 1344153 [total_days] => 18 [display_material_sum] => 852 454 [display_work_sum] => 491 699 [display_total_sum] => 1 344 153 ) 1
1 344 153
Работа:491 699
Материалы:852 454
Дни:18
Стены 2 этаж (несущие)
stdClass Object ( [id] => 10 [attribute_id] => 5 [name] => Пеноблок [material_modifier] => 1 [work_modifier] => 1 [options] => Array ( [0] => 300 мм [1] => 400 мм [2] => 500 мм [3] => 600 мм ) [days] => [29,31,34,39] [material_price] => [3000,4000,4500,4937] [work_price] => [5033,5805,6400,8710] [image] => https://akademik-stroy.ru/wp-content/uploads/materials/penoblok.jpg [area_modifier] => 96.37 [parent_name] => Стены 2 этаж (несущие) [parent_id] => 5 [material_sum] => 364279 [work_sum] => 509282 [total_sum] => 873561 [total_days] => 29 [display_material_sum] => 364 279 [display_work_sum] => 509 282 [display_total_sum] => 873 561 ) 1
873 561
Работа:509 282
Материалы:364 279
Дни:29
stdClass Object ( [id] => 90 [attribute_id] => 5 [name] => Керамический блок [material_modifier] => 1 [work_modifier] => 1 [options] => Array ( [0] => 380 мм [1] => 380 мм Thermo [2] => 440 мм [3] => 510 мм ) [days] => [23,23,24,25] [material_price] => [4510,5098,6093,8013] [work_price] => [4737,4937,5903,6958] [image] => https://akademik-stroy.ru/wp-content/uploads/materials/keramicheskij-blok.jpg [area_modifier] => 96.37 [parent_name] => Стены 2 этаж (несущие) [parent_id] => 5 [material_sum] => 547632 [work_sum] => 479330 [total_sum] => 1026962 [total_days] => 23 [display_material_sum] => 547 632 [display_work_sum] => 479 330 [display_total_sum] => 1 026 962 ) 1
1 026 962
Работа:479 330
Материалы:547 632
Дни:23
stdClass Object ( [id] => 91 [attribute_id] => 5 [name] => Кирпич [material_modifier] => 1 [work_modifier] => 1 [options] => Array ( [0] => Кирпич 250 мм [1] => Кирпич 380 мм [2] => Кирпич 510 мм [3] => Кирпич 640 мм [4] => Кирпич 770 мм ) [days] => [30,30,31,33,36] [material_price] => [5500,7142,9206,10171,12235] [work_price] => [8736,10041,12018,15240,18462] [image] => https://akademik-stroy.ru/wp-content/uploads/materials/kirpich.jpg [area_modifier] => 96.37 [parent_name] => Стены 2 этаж (несущие) [parent_id] => 5 [material_sum] => 667844 [work_sum] => 883983 [total_sum] => 1551827 [total_days] => 30 [display_material_sum] => 667 844 [display_work_sum] => 883 983 [display_total_sum] => 1 551 827 ) 1
1 551 827
Работа:883 983
Материалы:667 844
Дни:30
stdClass Object ( [id] => 92 [attribute_id] => 5 [name] => Монолитные [material_modifier] => 1 [work_modifier] => 1 [options] => Array ( [0] => 150 мм [1] => 200 мм [2] => 250 мм [3] => 300 мм [4] => 350 мм [5] => 400 мм ) [days] => [45,46,47,49,50,53] [material_price] => [6545,7876,10175,12011,13908,15204] [work_price] => [5106,6444,7698,8552,9807,11461] [image] => https://akademik-stroy.ru/wp-content/uploads/materials/monolitnye.jpg [area_modifier] => 96.37 [parent_name] => Стены 2 этаж (несущие) [parent_id] => 5 [material_sum] => 794734 [work_sum] => 516668 [total_sum] => 1311402 [total_days] => 45 [display_material_sum] => 794 734 [display_work_sum] => 516 668 [display_total_sum] => 1 311 402 ) 1
1 311 402
Работа:516 668
Материалы:794 734
Дни:45
stdClass Object ( [id] => 93 [attribute_id] => 5 [name] => Клееный брус [material_modifier] => 1 [work_modifier] => 1 [options] => Array ( [0] => 160 мм [1] => 175 мм [2] => 200 мм [3] => 215 мм [4] => 240 мм [5] => 270 мм [6] => 282 мм ) [days] => [24,28,32,37,40,42,48] [material_price] => [16975,18773,19950,20545,21599,22159,23275] [work_price] => [4806,5287,5815,6397,7036,7740,8514] [image] => https://akademik-stroy.ru/wp-content/uploads/materials/kleenyj-brus.jpg [area_modifier] => 96.37 [parent_name] => Стены 2 этаж (несущие) [parent_id] => 5 [material_sum] => 2061210 [work_sum] => 486312 [total_sum] => 2547522 [total_days] => 24 [display_material_sum] => 2 061 210 [display_work_sum] => 486 312 [display_total_sum] => 2 547 522 ) 1
2 547 522
Работа:486 312
Материалы:2 061 210
Дни:24
stdClass Object ( [id] => 94 [attribute_id] => 5 [name] => Каркасные [material_modifier] => 1 [work_modifier] => 1 [options] => Array ( [0] => 150 мм [1] => 200 мм [2] => 250 мм [3] => 300 мм ) [days] => [15,16,17,18] [material_price] => [2379,2639,2898,3258] [work_price] => [2418,2686,2985,3716] [image] => https://akademik-stroy.ru/wp-content/uploads/materials/karkasnye.jpg [area_modifier] => 96.37 [parent_name] => Стены 2 этаж (несущие) [parent_id] => 5 [material_sum] => 288873 [work_sum] => 244674 [total_sum] => 533547 [total_days] => 15 [display_material_sum] => 288 873 [display_work_sum] => 244 674 [display_total_sum] => 533 547 ) 1
533 547
Работа:244 674
Материалы:288 873
Дни:15
stdClass Object ( [id] => 95 [attribute_id] => 5 [name] => СИП-панели [material_modifier] => 1 [work_modifier] => 1 [options] => Array ( [0] => 120 мм [1] => 170 мм [2] => 220 мм ) [days] => [7,7,7] [material_price] => [1210,1856,2292] [work_price] => [1410,1551,1706] [image] => https://akademik-stroy.ru/wp-content/uploads/materials/sip-paneli.jpg [area_modifier] => 96.37 [parent_name] => Стены 2 этаж (несущие) [parent_id] => 5 [material_sum] => 146926 [work_sum] => 142676 [total_sum] => 289602 [total_days] => 7 [display_material_sum] => 146 926 [display_work_sum] => 142 676 [display_total_sum] => 289 602 ) 1
289 602
Работа:142 676
Материалы:146 926
Дни:7
stdClass Object ( [id] => 96 [attribute_id] => 5 [name] => Сухой брус [material_modifier] => 1 [work_modifier] => 1 [options] => Array ( [0] => 150 мм [1] => 180 мм [2] => 200 мм ) [days] => [7,8,9] [material_price] => [6010,7190,8709] [work_price] => [3204,3845,4229] [image] => https://akademik-stroy.ru/wp-content/uploads/materials/suhoj-brus.jpg [area_modifier] => 96.37 [parent_name] => Стены 2 этаж (несущие) [parent_id] => 5 [material_sum] => 729771 [work_sum] => 324208 [total_sum] => 1053979 [total_days] => 7 [display_material_sum] => 729 771 [display_work_sum] => 324 208 [display_total_sum] => 1 053 979 ) 1
1 053 979
Работа:324 208
Материалы:729 771
Дни:7
stdClass Object ( [id] => 97 [attribute_id] => 5 [name] => Профилированный брус [material_modifier] => 1 [work_modifier] => 1 [options] => Array ( [0] => 150 мм [1] => 180 мм [2] => 200 мм ) [days] => [7,8,9] [material_price] => [8190,9228,10051] [work_price] => [3845,4614,5075] [image] => https://akademik-stroy.ru/wp-content/uploads/materials/profilirovannyj-brus.jpg [area_modifier] => 96.37 [parent_name] => Стены 2 этаж (несущие) [parent_id] => 5 [material_sum] => 994481 [work_sum] => 389070 [total_sum] => 1383551 [total_days] => 7 [display_material_sum] => 994 481 [display_work_sum] => 389 070 [display_total_sum] => 1 383 551 ) 1
1 383 551
Работа:389 070
Материалы:994 481
Дни:7
stdClass Object ( [id] => 98 [attribute_id] => 5 [name] => Оцилиндрованное бревно [material_modifier] => 1 [work_modifier] => 1 [options] => Array ( [0] => 180 мм [1] => 220 мм [2] => 260 мм [3] => 320 мм ) [days] => [7,8,9,10] [material_price] => [75190,9532,10868,13116] [work_price] => [3845,4691,5535,6863] [image] => https://akademik-stroy.ru/wp-content/uploads/materials/ocilindrovannoe-brevno-1.jpg [area_modifier] => 96.37 [parent_name] => Стены 2 этаж (несущие) [parent_id] => 5 [material_sum] => 9130036 [work_sum] => 389070 [total_sum] => 9519106 [total_days] => 7 [display_material_sum] => 9 130 036 [display_work_sum] => 389 070 [display_total_sum] => 9 519 106 ) 1
9 519 106
Работа:389 070
Материалы:9 130 036
Дни:7
stdClass Object ( [id] => 99 [attribute_id] => 5 [name] => Срубы [material_modifier] => 1 [work_modifier] => 1 [options] => Array ( [0] => 260 мм [1] => 320 мм [2] => 360 мм [3] => 400 мм [4] => 500 мм ) [days] => [7,8,9,10,11] [material_price] => [16175,23709,26314,29069,32167] [work_price] => [4806,5911,6621,7349,9260] [image] => https://akademik-stroy.ru/wp-content/uploads/materials/suhoj-brus.jpg [area_modifier] => 96.37 [parent_name] => Стены 2 этаж (несущие) [parent_id] => 5 [material_sum] => 1964069 [work_sum] => 486312 [total_sum] => 2450381 [total_days] => 7 [display_material_sum] => 1 964 069 [display_work_sum] => 486 312 [display_total_sum] => 2 450 381 ) 1
2 450 381
Работа:486 312
Материалы:1 964 069
Дни:7
stdClass Object ( [id] => 194 [attribute_id] => 5 [name] => Брус [material_modifier] => 1 [work_modifier] => 1 [options] => Array ( [0] => 150 мм [1] => 180 мм [2] => 200 мм ) [days] => [10,13,15] [material_price] => [5127,6152,7367] [work_price] => [1602,1922,2115] [image] => https://akademik-stroy.ru/wp-content/uploads/materials/brus.jpg [area_modifier] => 96.37 [parent_name] => Стены 2 этаж (несущие) [parent_id] => 5 [material_sum] => 622552 [work_sum] => 162104 [total_sum] => 784656 [total_days] => 10 [display_material_sum] => 622 552 [display_work_sum] => 162 104 [display_total_sum] => 784 656 ) 1
784 656
Работа:162 104
Материалы:622 552
Дни:10
stdClass Object ( [id] => 195 [attribute_id] => 5 [name] => Газобетон [material_modifier] => 1 [work_modifier] => 1 [options] => Array ( [0] => 300 мм [1] => 375 мм [2] => 400 мм [3] => 500 мм [4] => 600 мм ) [days] => [29,31,35,37,44] [material_price] => [4298,5573,6356,7288,9119] [work_price] => [4538,5251,5926,6733,7195] [image] => https://akademik-stroy.ru/wp-content/uploads/materials/gazobeton.jpg [area_modifier] => 96.37 [parent_name] => Стены 2 этаж (несущие) [parent_id] => 5 [material_sum] => 521890 [work_sum] => 459193 [total_sum] => 981083 [total_days] => 29 [display_material_sum] => 521 890 [display_work_sum] => 459 193 [display_total_sum] => 981 083 ) 1
981 083
Работа:459 193
Материалы:521 890
Дни:29
stdClass Object ( [id] => 196 [attribute_id] => 5 [name] => Блок [material_modifier] => 1 [work_modifier] => 1 [options] => Array ( [0] => 300 мм [1] => 375 мм [2] => 400 мм [3] => 500 мм [4] => 600 мм ) [days] => [29,31,35,37,44] [material_price] => [2698,3973,4356,6588,7119] [work_price] => [5038,5851,6426,8733,9195] [image] => https://akademik-stroy.ru/wp-content/uploads/materials/blok.jpg [area_modifier] => 96.37 [parent_name] => Стены 2 этаж (несущие) [parent_id] => 5 [material_sum] => 327608 [work_sum] => 509788 [total_sum] => 837396 [total_days] => 29 [display_material_sum] => 327 608 [display_work_sum] => 509 788 [display_total_sum] => 837 396 ) 1
837 396
Работа:509 788
Материалы:327 608
Дни:29
stdClass Object ( [id] => 197 [attribute_id] => 5 [name] => Газосиликатный блок [material_modifier] => 1 [work_modifier] => 1 [options] => Array ( [0] => 300 мм [1] => 375 мм [2] => 400 мм [3] => 500 мм [4] => 600 мм ) [days] => [29,31,35,37,44] [material_price] => [4298,5573,6356,7288,9119] [work_price] => [4538,5251,5926,6733,7195] [image] => https://akademik-stroy.ru/wp-content/uploads/materials/gazosilikatnyj-blok.jpg [area_modifier] => 96.37 [parent_name] => Стены 2 этаж (несущие) [parent_id] => 5 [material_sum] => 521890 [work_sum] => 459193 [total_sum] => 981083 [total_days] => 29 [display_material_sum] => 521 890 [display_work_sum] => 459 193 [display_total_sum] => 981 083 ) 1
981 083
Работа:459 193
Материалы:521 890
Дни:29
stdClass Object ( [id] => 198 [attribute_id] => 5 [name] => Керамзитобетонный блок [material_modifier] => 1 [work_modifier] => 1 [options] => Array ( [0] => 300 мм [1] => 375 мм [2] => 400 мм [3] => 500 мм [4] => 600 мм ) [days] => [23,23,24,25,28] [material_price] => [3641,4298,5693,7613,9612] [work_price] => [5737,5737,6903,7958,8901] [image] => https://akademik-stroy.ru/wp-content/uploads/materials/keramzitobetonnyj-blok.jpg [area_modifier] => 96.37 [parent_name] => Стены 2 этаж (несущие) [parent_id] => 5 [material_sum] => 442113 [work_sum] => 580518 [total_sum] => 1022631 [total_days] => 23 [display_material_sum] => 442 113 [display_work_sum] => 580 518 [display_total_sum] => 1 022 631 ) 1
1 022 631
Работа:580 518
Материалы:442 113
Дни:23
stdClass Object ( [id] => 199 [attribute_id] => 5 [name] => Деревянные [material_modifier] => 1 [work_modifier] => 1 [options] => Array ( [0] => 180 мм [1] => 220 мм [2] => 260 мм [3] => 320 мм ) [days] => [7,8,9,10] [material_price] => [7950,9458,11961,14472] [work_price] => [4037,4925,5812,7207] [image] => https://akademik-stroy.ru/wp-content/uploads/materials/derevyannye.jpg [area_modifier] => 96.37 [parent_name] => Стены 2 этаж (несущие) [parent_id] => 5 [material_sum] => 965338 [work_sum] => 408498 [total_sum] => 1373836 [total_days] => 7 [display_material_sum] => 965 338 [display_work_sum] => 408 498 [display_total_sum] => 1 373 836 ) 1
1 373 836
Работа:408 498
Материалы:965 338
Дни:7
stdClass Object ( [id] => 200 [attribute_id] => 5 [name] => Камень [material_modifier] => 1 [work_modifier] => 1 [options] => Array ( [0] => 300 мм [1] => 400 мм [2] => 500 мм [3] => 600 мм ) [days] => [25,27,31,34] [material_price] => [5262,6844,8330,9815] [work_price] => [8331,9135,10427,11069] [image] => https://akademik-stroy.ru/wp-content/uploads/materials/kamen.jpg [area_modifier] => 96.37 [parent_name] => Стены 2 этаж (несущие) [parent_id] => 5 [material_sum] => 638945 [work_sum] => 843001 [total_sum] => 1481946 [total_days] => 25 [display_material_sum] => 638 945 [display_work_sum] => 843 001 [display_total_sum] => 1 481 946 ) 1
1 481 946
Работа:843 001
Материалы:638 945
Дни:25
stdClass Object ( [id] => 201 [attribute_id] => 5 [name] => Каркасно-щитовые [material_modifier] => 1 [work_modifier] => 1 [options] => Array ( [0] => 150 мм [1] => 200 мм [2] => 250 мм [3] => 300 мм [4] => 350 мм [5] => 400 мм ) [days] => [15,16,17,18,19,20] [material_price] => [2379,2639,2898,3458,3601,4175] [work_price] => [2538,2820,3134,3483,4062,5642] [image] => https://akademik-stroy.ru/wp-content/uploads/materials/karkasno-shchitovye.jpg [area_modifier] => 96.37 [parent_name] => Стены 2 этаж (несущие) [parent_id] => 5 [material_sum] => 288873 [work_sum] => 256816 [total_sum] => 545689 [total_days] => 15 [display_material_sum] => 288 873 [display_work_sum] => 256 816 [display_total_sum] => 545 689 ) 1
545 689
Работа:256 816
Материалы:288 873
Дни:15
stdClass Object ( [id] => 202 [attribute_id] => 5 [name] => Рубленные [material_modifier] => 1 [work_modifier] => 1 [options] => Array ( [0] => 150 мм [1] => 200 мм [2] => 250 мм [3] => 300 мм [4] => 350 мм [5] => 400 мм ) [days] => [15,16,17,18,17,18] [material_price] => [35950,50267,60583,75900,80217,100533] [work_price] => [9612,12816,16020,19224,22428,25632] [image] => https://akademik-stroy.ru/wp-content/uploads/materials/rublennye.jpg [area_modifier] => 96.37 [parent_name] => Стены 2 этаж (несущие) [parent_id] => 5 [material_sum] => 4365272 [work_sum] => 972624 [total_sum] => 5337896 [total_days] => 15 [display_material_sum] => 4 365 272 [display_work_sum] => 972 624 [display_total_sum] => 5 337 896 ) 1
5 337 896
Работа:972 624
Материалы:4 365 272
Дни:15
stdClass Object ( [id] => 203 [attribute_id] => 5 [name] => Теплоблок [material_modifier] => 1 [work_modifier] => 1 [options] => Array ( [0] => 300 мм (с облицовкой, не покрашенный) [1] => 400 мм (с облицовкой, не покрашенный) [2] => 300 мм (с облицовкой, покрашенный) [3] => 400 мм (с облицовкой, покрашенный) ) [days] => [15,16,15,16] [material_price] => [2888,3729,3957,4258] [work_price] => [2564,3229,2949,3713] [image] => https://akademik-stroy.ru/wp-content/uploads/materials/teploblok.jpg [area_modifier] => 96.37 [parent_name] => Стены 2 этаж (несущие) [parent_id] => 5 [material_sum] => 350679 [work_sum] => 259447 [total_sum] => 610126 [total_days] => 15 [display_material_sum] => 350 679 [display_work_sum] => 259 447 [display_total_sum] => 610 126 ) 1
610 126
Работа:259 447
Материалы:350 679
Дни:15
stdClass Object ( [id] => 204 [attribute_id] => 5 [name] => Арболитовые блоки [material_modifier] => 1 [work_modifier] => 1 [options] => Array ( [0] => 300 мм [1] => 400 мм [2] => 600 мм ) [days] => [19,22,27] [material_price] => [3210,4475,5852] [work_price] => [4214,4788,5866] [image] => https://akademik-stroy.ru/wp-content/uploads/materials/arbolitovye-bloki.png [area_modifier] => 96.37 [parent_name] => Стены 2 этаж (несущие) [parent_id] => 5 [material_sum] => 389778 [work_sum] => 426408 [total_sum] => 816186 [total_days] => 19 [display_material_sum] => 389 778 [display_work_sum] => 426 408 [display_total_sum] => 816 186 ) 1
816 186
Работа:426 408
Материалы:389 778
Дни:19
stdClass Object ( [id] => 205 [attribute_id] => 5 [name] => Полистиролбетон [material_modifier] => 1 [work_modifier] => 1 [options] => Array ( [0] => 300 мм [1] => 400 мм [2] => 600 мм ) [days] => [29,31,35] [material_price] => [2798,4573,5256] [work_price] => [5038,5851,6426] [image] => https://akademik-stroy.ru/wp-content/uploads/materials/polistirolbeton.jpg [area_modifier] => 96.37 [parent_name] => Стены 2 этаж (несущие) [parent_id] => 5 [material_sum] => 339751 [work_sum] => 509788 [total_sum] => 849539 [total_days] => 29 [display_material_sum] => 339 751 [display_work_sum] => 509 788 [display_total_sum] => 849 539 ) 1
849 539
Работа:509 788
Материалы:339 751
Дни:29
stdClass Object ( [id] => 206 [attribute_id] => 5 [name] => Шлакоблок [material_modifier] => 1 [work_modifier] => 1 [options] => Array ( [0] => 400 мм [1] => 600 мм ) [days] => [15,16] [material_price] => [2391,3471] [work_price] => [2642,3662] [image] => https://akademik-stroy.ru/wp-content/uploads/materials/shlakoblok.jpg [area_modifier] => 96.37 [parent_name] => Стены 2 этаж (несущие) [parent_id] => 5 [material_sum] => 290330 [work_sum] => 267340 [total_sum] => 557670 [total_days] => 15 [display_material_sum] => 290 330 [display_work_sum] => 267 340 [display_total_sum] => 557 670 ) 1
557 670
Работа:267 340
Материалы:290 330
Дни:15
stdClass Object ( [id] => 245 [attribute_id] => 5 [name] => Теплая керамика [material_modifier] => 1 [work_modifier] => 1 [options] => Array ( [0] => 380 мм [1] => 380 мм Thermo [2] => 440 мм [3] => 510 мм ) [days] => [10,10,11,12] [material_price] => [4510,5098,6093,8013] [work_price] => [4737,4937,5903,6958] [image] => https://akademik-stroy.ru/wp-content/uploads/materials/teplaya-keramika.jpg [area_modifier] => 96.37 [parent_name] => Стены 2 этаж (несущие) [parent_id] => 5 [material_sum] => 547632 [work_sum] => 479330 [total_sum] => 1026962 [total_days] => 10 [display_material_sum] => 547 632 [display_work_sum] => 479 330 [display_total_sum] => 1 026 962 ) 1
1 026 962
Работа:479 330
Материалы:547 632
Дни:10
stdClass Object ( [id] => 246 [attribute_id] => 5 [name] => Несъемная опалубка [material_modifier] => 1 [work_modifier] => 1 [options] => Array ( [0] => 380 мм [1] => 380 мм Thermo [2] => 440 мм [3] => 510 мм ) [days] => [10,10,11,12] [material_price] => [3302,3902,4108,5008] [work_price] => [2100,2100,2300,2534] [image] => https://akademik-stroy.ru/wp-content/uploads/materials/nesemnaya-opalubka.jpg [area_modifier] => 96.37 [parent_name] => Стены 2 этаж (несущие) [parent_id] => 5 [material_sum] => 400949 [work_sum] => 212496 [total_sum] => 613445 [total_days] => 10 [display_material_sum] => 400 949 [display_work_sum] => 212 496 [display_total_sum] => 613 445 ) 1
613 445
Работа:212 496
Материалы:400 949
Дни:10
stdClass Object ( [id] => 254 [attribute_id] => 5 [name] => Бревно [material_modifier] => 1 [work_modifier] => 1 [options] => Array ( [0] => 260 мм [1] => 320 мм [2] => 360 мм [3] => 400 мм [4] => 500 мм ) [days] => [7,8,9,10,11] [material_price] => [1874,24045,26930,30972,38825] [work_price] => [5046,6207,6952,7716,9723] [image] => https://akademik-stroy.ru/wp-content/uploads/materials/sruby.jpg [area_modifier] => 96.37 [parent_name] => Стены 2 этаж (несущие) [parent_id] => 5 [material_sum] => 227553 [work_sum] => 510597 [total_sum] => 738150 [total_days] => 7 [display_material_sum] => 227 553 [display_work_sum] => 510 597 [display_total_sum] => 738 150 ) 1
738 150
Работа:510 597
Материалы:227 553
Дни:7
Крыша (Скатная)
stdClass Object ( [id] => 164 [attribute_id] => 37 [name] => Металлочерепица [material_modifier] => 1 [work_modifier] => 1 [options] => Array ( ) [days] => [20] [material_price] => [6112] [work_price] => [5726] [image] => https://akademik-stroy.ru/wp-content/uploads/materials/metallocherepica.jpg [area_modifier] => 139.87 [parent_name] => Крыша (Скатная) [parent_id] => 37 [material_sum] => 1077156 [work_sum] => 840940 [total_sum] => 1918096 [total_days] => 20 [display_material_sum] => 1 077 156 [display_work_sum] => 840 940 [display_total_sum] => 1 918 096 ) 1
1 918 096
Работа:840 940
Материалы:1 077 156
Дни:20
stdClass Object ( [id] => 165 [attribute_id] => 37 [name] => Гибкая черепица [material_modifier] => 1 [work_modifier] => 1 [options] => Array ( ) [days] => [20] [material_price] => [6980] [work_price] => [5950] [image] => https://akademik-stroy.ru/wp-content/uploads/materials/gibkaya-cherepica.jpg [area_modifier] => 139.87 [parent_name] => Крыша (Скатная) [parent_id] => 37 [material_sum] => 1230129 [work_sum] => 873838 [total_sum] => 2103967 [total_days] => 20 [display_material_sum] => 1 230 129 [display_work_sum] => 873 838 [display_total_sum] => 2 103 967 ) 1
2 103 967
Работа:873 838
Материалы:1 230 129
Дни:20
stdClass Object ( [id] => 166 [attribute_id] => 37 [name] => Цементно-песчаная черепица [material_modifier] => 1 [work_modifier] => 1 [options] => Array ( ) [days] => [20] [material_price] => [10560] [work_price] => [9456] [image] => https://akademik-stroy.ru/wp-content/uploads/materials/cementno-peschanaya-cherepica.jpg [area_modifier] => 139.87 [parent_name] => Крыша (Скатная) [parent_id] => 37 [material_sum] => 1861054 [work_sum] => 1388741 [total_sum] => 3249795 [total_days] => 20 [display_material_sum] => 1 861 054 [display_work_sum] => 1 388 741 [display_total_sum] => 3 249 795 ) 1
3 249 795
Работа:1 388 741
Материалы:1 861 054
Дни:20
stdClass Object ( [id] => 167 [attribute_id] => 37 [name] => Композитная черепица [material_modifier] => 1 [work_modifier] => 1 [options] => Array ( ) [days] => [20] [material_price] => [9506] [work_price] => [8905] [image] => https://akademik-stroy.ru/wp-content/uploads/materials/kompozitnaya-cherepica.jpg [area_modifier] => 139.87 [parent_name] => Крыша (Скатная) [parent_id] => 37 [material_sum] => 1675301 [work_sum] => 1307819 [total_sum] => 2983120 [total_days] => 20 [display_material_sum] => 1 675 301 [display_work_sum] => 1 307 819 [display_total_sum] => 2 983 120 ) 1
2 983 120
Работа:1 307 819
Материалы:1 675 301
Дни:20
stdClass Object ( [id] => 168 [attribute_id] => 37 [name] => Керамическая черепица [material_modifier] => 1 [work_modifier] => 1 [options] => Array ( ) [days] => [20] [material_price] => [12750] [work_price] => [9456] [image] => https://akademik-stroy.ru/wp-content/uploads/materials/keramicheskaya-cherepica.jpg [area_modifier] => 139.87 [parent_name] => Крыша (Скатная) [parent_id] => 37 [material_sum] => 2247012 [work_sum] => 1388741 [total_sum] => 3635753 [total_days] => 20 [display_material_sum] => 2 247 012 [display_work_sum] => 1 388 741 [display_total_sum] => 3 635 753 ) 1
3 635 753
Работа:1 388 741
Материалы:2 247 012
Дни:20
stdClass Object ( [id] => 169 [attribute_id] => 37 [name] => Металлическая фальцевая [material_modifier] => 1 [work_modifier] => 1 [options] => Array ( ) [days] => [20] [material_price] => [8550] [work_price] => [8190] [image] => https://akademik-stroy.ru/wp-content/uploads/materials/metallicheskaya-falcevaya.jpg [area_modifier] => 139.87 [parent_name] => Крыша (Скатная) [parent_id] => 37 [material_sum] => 1506820 [work_sum] => 1202812 [total_sum] => 2709632 [total_days] => 20 [display_material_sum] => 1 506 820 [display_work_sum] => 1 202 812 [display_total_sum] => 2 709 632 ) 1
2 709 632
Работа:1 202 812
Материалы:1 506 820
Дни:20
stdClass Object ( [id] => 170 [attribute_id] => 37 [name] => Медная фальцевая [material_modifier] => 1 [work_modifier] => 1 [options] => Array ( ) [days] => [20] [material_price] => [20450] [work_price] => [16750] [image] => https://akademik-stroy.ru/wp-content/uploads/materials/mednaya-falcevaya.jpg [area_modifier] => 139.87 [parent_name] => Крыша (Скатная) [parent_id] => 37 [material_sum] => 3604030 [work_sum] => 2459964 [total_sum] => 6063994 [total_days] => 20 [display_material_sum] => 3 604 030 [display_work_sum] => 2 459 964 [display_total_sum] => 6 063 994 ) 1
6 063 994
Работа:2 459 964
Материалы:3 604 030
Дни:20
stdClass Object ( [id] => 171 [attribute_id] => 37 [name] => Зеленая кровля [material_modifier] => 1 [work_modifier] => 1 [options] => Array ( ) [days] => [20] [material_price] => [19850] [work_price] => [16780] [image] => https://akademik-stroy.ru/wp-content/uploads/materials/zelenaya-krovlya.jpg [area_modifier] => 139.87 [parent_name] => Крыша (Скатная) [parent_id] => 37 [material_sum] => 3498289 [work_sum] => 2464370 [total_sum] => 5962659 [total_days] => 20 [display_material_sum] => 3 498 289 [display_work_sum] => 2 464 370 [display_total_sum] => 5 962 659 ) 1
5 962 659
Работа:2 464 370
Материалы:3 498 289
Дни:20
stdClass Object ( [id] => 172 [attribute_id] => 37 [name] => Профлист [material_modifier] => 1 [work_modifier] => 1 [options] => Array ( ) [days] => [20] [material_price] => [3450] [work_price] => [3750] [image] => https://akademik-stroy.ru/wp-content/uploads/materials/proflist.jpg [area_modifier] => 139.87 [parent_name] => Крыша (Скатная) [parent_id] => 37 [material_sum] => 608015 [work_sum] => 550738 [total_sum] => 1158753 [total_days] => 20 [display_material_sum] => 608 015 [display_work_sum] => 550 738 [display_total_sum] => 1 158 753 ) 1
1 158 753
Работа:550 738
Материалы:608 015
Дни:20
Окна
stdClass Object ( [id] => 51 [attribute_id] => 26 [name] => Есть [material_modifier] => 1 [work_modifier] => 1 [options] => Array ( [0] => Профиль 58 мм, 3-камерный, стеклопакет 2-камерный до 32 мм [1] => Профиль 60 мм, 4-камерный, стеклопакет 2-камерный до 32 мм [2] => Профиль 70 мм, 5-камерный, стеклопакет 2-камерный до 40 мм [3] => Профиль 72 мм, 5-камерный, стеклопакет 2-камерный до 40 мм [4] => Алюминиевые окна Alutech профиль 72 мм, стеклопакет 2-камерный ) [days] => [3,3,3,3,3] [material_price] => [1339,2124,2867,3023,29596] [work_price] => [635,647,659,668,2579] [image] => https://akademik-stroy.ru/wp-content/uploads/materials/okna.jpg [area_modifier] => 191.7 [parent_name] => Окна [parent_id] => 26 [material_sum] => 323425 [work_sum] => 127816 [total_sum] => 451241 [total_days] => 3 [display_material_sum] => 323 425 [display_work_sum] => 127 816 [display_total_sum] => 451 241 ) 1
451 241
Работа:127 816
Материалы:323 425
Дни:3
stdClass Object ( [id] => 52 [attribute_id] => 26 [name] => Нет [material_modifier] => 2 [work_modifier] => 1 [options] => [days] => null [material_price] => null [work_price] => null [image] => https://akademik-stroy.ru/wp-content/uploads/materials/okna.jpg [area_modifier] => 191.7 [parent_name] => Окна [parent_id] => 26 [material_sum] => 0 [work_sum] => 0 [total_sum] => 0 [total_days] => 0 [display_material_sum] => 0 [display_work_sum] => 0 [display_total_sum] => 0 ) 1
0
Работа:0
Материалы:0
Дни:0
Двери входные
stdClass Object ( [id] => 53 [attribute_id] => 27 [name] => Есть [material_modifier] => 1 [work_modifier] => 1 [options] => Array ( ) [days] => [1] [material_price] => [10000] [work_price] => [5500] [image] => https://akademik-stroy.ru/wp-content/uploads/materials/dveri.jpg [area_modifier] => 1 [parent_name] => Двери входные [parent_id] => 27 [material_sum] => 12600 [work_sum] => 5775 [total_sum] => 18375 [total_days] => 1 [display_material_sum] => 12 600 [display_work_sum] => 5 775 [display_total_sum] => 18 375 ) 1
18 375
Работа:5 775
Материалы:12 600
Дни:1
stdClass Object ( [id] => 54 [attribute_id] => 27 [name] => Нет [material_modifier] => 1 [work_modifier] => 1 [options] => Array ( ) [days] => [0] [material_price] => [0] [work_price] => [0] [image] => https://akademik-stroy.ru/wp-content/uploads/materials/dveri.jpg [area_modifier] => 1 [parent_name] => Двери входные [parent_id] => 27 [material_sum] => 0 [work_sum] => 0 [total_sum] => 0 [total_days] => 0 [display_material_sum] => 0 [display_work_sum] => 0 [display_total_sum] => 0 ) 1
0
Работа:0
Материалы:0
Дни:0
Утепление кровли (Мансарда)
stdClass Object ( [id] => 25 [attribute_id] => 13 [name] => Нет [material_modifier] => 1 [work_modifier] => 1 [options] => Array ( ) [days] => [0] [material_price] => [0] [work_price] => [0] [image] => https://akademik-stroy.ru/wp-content/uploads/materials/mineralovata-krov.jpg [area_modifier] => 139.87 [parent_name] => Утепление кровли (Мансарда) [parent_id] => 13 [material_sum] => 0 [work_sum] => 0 [total_sum] => 0 [total_days] => 0 [display_material_sum] => 0 [display_work_sum] => 0 [display_total_sum] => 0 ) 1
0
Работа:0
Материалы:0
Дни:0
stdClass Object ( [id] => 26 [attribute_id] => 13 [name] => Минераловатный [material_modifier] => 1 [work_modifier] => 1 [options] => Array ( [0] => 50 мм [1] => 100 мм [2] => 150 мм [3] => 200 мм [4] => 250 мм [5] => 300 мм [6] => 350 мм [7] => 400 мм [8] => 450 мм [9] => 500 мм ) [days] => [5,5,6,6,6,7,7,7,8,8] [material_price] => [1158,1414,1772,2230,3602,4060,4974,5890,6408,7718] [work_price] => [650,846,846,1098,1318,1450,1596,1754,1930,2122] [image] => https://akademik-stroy.ru/wp-content/uploads/materials/mineralovata-krov.jpg [area_modifier] => 139.87 [parent_name] => Утепление кровли (Мансарда) [parent_id] => 13 [material_sum] => 204082 [work_sum] => 95461 [total_sum] => 299543 [total_days] => 5 [display_material_sum] => 204 082 [display_work_sum] => 95 461 [display_total_sum] => 299 543 ) 1
299 543
Работа:95 461
Материалы:204 082
Дни:5
stdClass Object ( [id] => 123 [attribute_id] => 13 [name] => Эковата (целлюлозная вата) [material_modifier] => 1 [work_modifier] => 1 [options] => Array ( [0] => 50 мм [1] => 100 мм [2] => 150 мм [3] => 200 мм [4] => 250 мм [5] => 300 мм [6] => 350 мм [7] => 400 мм [8] => 450 мм [9] => 500 мм ) [days] => [3,3,4,4,4,5,5,5,5,5] [material_price] => [820,1638,2458,3276,5734,6552,8190,9828,11466,13104] [work_price] => [234,304,304,396,474,522,574,632,694,764] [image] => https://akademik-stroy.ru/wp-content/uploads/materials/ehkovata-krov.jpg [area_modifier] => 139.87 [parent_name] => Утепление кровли (Мансарда) [parent_id] => 13 [material_sum] => 144514 [work_sum] => 34366 [total_sum] => 178880 [total_days] => 3 [display_material_sum] => 144 514 [display_work_sum] => 34 366 [display_total_sum] => 178 880 ) 1
178 880
Работа:34 366
Материалы:144 514
Дни:3
stdClass Object ( [id] => 124 [attribute_id] => 13 [name] => Экструдированный пенополистирол [material_modifier] => 1 [work_modifier] => 1 [options] => Array ( [0] => 50 мм [1] => 100 мм [2] => 150 мм [3] => 200 мм [4] => 250 мм [5] => 300 мм [6] => 350 мм [7] => 400 мм [8] => 450 мм [9] => 500 мм ) [days] => [3,3,4,4,4,5,5,5,5,6] [material_price] => [1146,2292,3438,4584,8020,9166,11458,13750,16040,18332] [work_price] => [390,508,508,660,790,870,958,1052,1158,1274] [image] => https://akademik-stroy.ru/wp-content/uploads/materials/epps-krov.jpg [area_modifier] => 139.87 [parent_name] => Утепление кровли (Мансарда) [parent_id] => 13 [material_sum] => 201967 [work_sum] => 57277 [total_sum] => 259244 [total_days] => 3 [display_material_sum] => 201 967 [display_work_sum] => 57 277 [display_total_sum] => 259 244 ) 1
259 244
Работа:57 277
Материалы:201 967
Дни:3
stdClass Object ( [id] => 125 [attribute_id] => 13 [name] => ПСБ (ППС-пенополистирол) [material_modifier] => 1 [work_modifier] => 1 [options] => Array ( [0] => 50 мм [1] => 100 мм [2] => 150 мм [3] => 200 мм [4] => 250 мм [5] => 300 мм [6] => 350 мм [7] => 400 мм [8] => 450 мм [9] => 500 мм ) [days] => [3,3,4,4,4,5,5,5,5,6] [material_price] => [476,954,1430,1906,3336,3814,4766,5720,6674,7626] [work_price] => [390,508,508,660,790,870,958,1052,1158,1274] [image] => https://akademik-stroy.ru/wp-content/uploads/materials/psb-krov.jpg [area_modifier] => 139.87 [parent_name] => Утепление кровли (Мансарда) [parent_id] => 13 [material_sum] => 83888 [work_sum] => 57277 [total_sum] => 141165 [total_days] => 3 [display_material_sum] => 83 888 [display_work_sum] => 57 277 [display_total_sum] => 141 165 ) 1
141 165
Работа:57 277
Материалы:83 888
Дни:3
stdClass Object ( [id] => 126 [attribute_id] => 13 [name] => ППУ (Пенополиуретан) [material_modifier] => 1 [work_modifier] => 1 [options] => Array ( [0] => 50 мм [1] => 100 мм [2] => 150 мм [3] => 200 мм [4] => 250 мм [5] => 300 мм [6] => 350 мм [7] => 400 мм [8] => 450 мм [9] => 500 мм ) [days] => [2,2,3,3,3,3,4,4,4,4] [material_price] => [2080,4160,6240,8320,14560,16640,20800,24960,29120,33280] [work_price] => [234,304,304,396,474,522,574,632,694,764] [image] => https://akademik-stroy.ru/wp-content/uploads/materials/ppu-krov.jpg [area_modifier] => 139.87 [parent_name] => Утепление кровли (Мансарда) [parent_id] => 13 [material_sum] => 366571 [work_sum] => 34366 [total_sum] => 400937 [total_days] => 2 [display_material_sum] => 366 571 [display_work_sum] => 34 366 [display_total_sum] => 400 937 ) 1
400 937
Работа:34 366
Материалы:366 571
Дни:2
stdClass Object ( [id] => 127 [attribute_id] => 13 [name] => PIR-плиты (пенополиизоцианурат) [material_modifier] => 1 [work_modifier] => 1 [options] => Array ( [0] => 50 мм [1] => 100 мм [2] => 150 мм [3] => 200 мм [4] => 250 мм [5] => 300 мм [6] => 350 мм [7] => 400 мм [8] => 450 мм [9] => 500 мм ) [days] => [3,3,4,4,4,5,5,5,5,6] [material_price] => [2646,5290,7936,10580,18516,21162,26452,31742,37032,42324] [work_price] => [390,508,508,660,790,870,958,1052,1158,1274] [image] => https://akademik-stroy.ru/wp-content/uploads/materials/pir-krov.jpg [area_modifier] => 139.87 [parent_name] => Утепление кровли (Мансарда) [parent_id] => 13 [material_sum] => 466321 [work_sum] => 57277 [total_sum] => 523598 [total_days] => 3 [display_material_sum] => 466 321 [display_work_sum] => 57 277 [display_total_sum] => 523 598 ) 1
523 598
Работа:57 277
Материалы:466 321
Дни:3
Мансардные окна
stdClass Object ( [id] => 27 [attribute_id] => 14 [name] => Нет [material_modifier] => 1 [work_modifier] => 1 [options] => Array ( ) [days] => [0] [material_price] => [0] [work_price] => [0] [image] => https://akademik-stroy.ru/wp-content/uploads/materials/mansardnye-okna-2.jpg [area_modifier] => 1 [parent_name] => Мансардные окна [parent_id] => 14 [material_sum] => 0 [work_sum] => 0 [total_sum] => 0 [total_days] => 0 [display_material_sum] => 0 [display_work_sum] => 0 [display_total_sum] => 0 ) 1
0
Работа:0
Материалы:0
Дни:0
stdClass Object ( [id] => 28 [attribute_id] => 14 [name] => Есть [material_modifier] => 1 [work_modifier] => 1 [options] => Array ( [0] => 55x78 [1] => 55x98 ) [days] => [6,7] [material_price] => [47480,68700] [work_price] => [17900,19500] [image] => https://akademik-stroy.ru/wp-content/uploads/materials/mansardnye-okna-2.jpg [area_modifier] => 1 [parent_name] => Мансардные окна [parent_id] => 14 [material_sum] => 59825 [work_sum] => 18795 [total_sum] => 78620 [total_days] => 6 [display_material_sum] => 59 825 [display_work_sum] => 18 795 [display_total_sum] => 78 620 ) 1
78 620
Работа:18 795
Материалы:59 825
Дни:6
Подшивка кровли
stdClass Object ( [id] => 29 [attribute_id] => 15 [name] => Нет [material_modifier] => 1 [work_modifier] => 1 [options] => Array ( ) [days] => [0] [material_price] => [0] [work_price] => [0] [image] => https://akademik-stroy.ru/wp-content/uploads/materials/sofit.jpg [area_modifier] => 139.87 [parent_name] => Подшивка кровли [parent_id] => 15 [material_sum] => 0 [work_sum] => 0 [total_sum] => 0 [total_days] => 0 [display_material_sum] => 0 [display_work_sum] => 0 [display_total_sum] => 0 ) 1
0
Работа:0
Материалы:0
Дни:0
stdClass Object ( [id] => 30 [attribute_id] => 15 [name] => Есть [material_modifier] => 1 [work_modifier] => 1 [options] => Array ( [0] => Софиты (ПВХ) [1] => Cedral [2] => ДПК [3] => Планкен ) [days] => [7,10,9,8] [material_price] => [1803,3213,3025,3150] [work_price] => [1529,2188,2075,1923] [image] => https://akademik-stroy.ru/wp-content/uploads/materials/sofit.jpg [area_modifier] => 139.87 [parent_name] => Подшивка кровли [parent_id] => 15 [material_sum] => 317754 [work_sum] => 224554 [total_sum] => 542308 [total_days] => 7 [display_material_sum] => 317 754 [display_work_sum] => 224 554 [display_total_sum] => 542 308 ) 1
542 308
Работа:224 554
Материалы:317 754
Дни:7
Водосточная система
stdClass Object ( [id] => 31 [attribute_id] => 16 [name] => Нет [material_modifier] => 1 [work_modifier] => 1 [options] => Array ( ) [days] => [0] [material_price] => [0] [work_price] => [0] [image] => https://akademik-stroy.ru/wp-content/uploads/materials/docke-standard-pvh.jpg [area_modifier] => 139.87 [parent_name] => Водосточная система [parent_id] => 16 [material_sum] => 0 [work_sum] => 0 [total_sum] => 0 [total_days] => 0 [display_material_sum] => 0 [display_work_sum] => 0 [display_total_sum] => 0 ) 1
0
Работа:0
Материалы:0
Дни:0
stdClass Object ( [id] => 32 [attribute_id] => 16 [name] => Есть [material_modifier] => 1 [work_modifier] => 1 [options] => Array ( [0] => Döcke Standard (ПВХ) [1] => Металлические Grand Line ) [days] => [7,7] [material_price] => [1842,2703] [work_price] => [1491,1529] [image] => https://akademik-stroy.ru/wp-content/uploads/materials/docke-standard-pvh.jpg [area_modifier] => 139.87 [parent_name] => Водосточная система [parent_id] => 16 [material_sum] => 324627 [work_sum] => 218973 [total_sum] => 543600 [total_days] => 7 [display_material_sum] => 324 627 [display_work_sum] => 218 973 [display_total_sum] => 543 600 ) 1
543 600
Работа:218 973
Материалы:324 627
Дни:7
Дополнительное утепление наружных стен
stdClass Object ( [id] => 33 [attribute_id] => 17 [name] => Нет [material_modifier] => 1 [work_modifier] => 1 [options] => Array ( ) [days] => [0] [material_price] => [0] [work_price] => [0] [image] => https://akademik-stroy.ru/wp-content/uploads/materials/mineralovata.jpg [area_modifier] => 236.23 [parent_name] => Дополнительное утепление наружных стен [parent_id] => 17 [material_sum] => 0 [work_sum] => 0 [total_sum] => 0 [total_days] => 0 [display_material_sum] => 0 [display_work_sum] => 0 [display_total_sum] => 0 ) 1
0
Работа:0
Материалы:0
Дни:0
stdClass Object ( [id] => 34 [attribute_id] => 17 [name] => Минераловатный [material_modifier] => 1 [work_modifier] => 1 [options] => Array ( [0] => 50 мм [1] => 100 мм [2] => 150 мм [3] => 200 мм [4] => 250 мм [5] => 300 мм ) [days] => [7,8,10,12,14,15] [material_price] => [3437,3613,3803,3915,4601,4830] [work_price] => [2325,2423,2523,2749,2859,3025] [image] => https://akademik-stroy.ru/wp-content/uploads/materials/mineralovata.jpg [area_modifier] => 236.23 [parent_name] => Дополнительное утепление наружных стен [parent_id] => 17 [material_sum] => 1023022 [work_sum] => 576696 [total_sum] => 1599718 [total_days] => 7 [display_material_sum] => 1 023 022 [display_work_sum] => 576 696 [display_total_sum] => 1 599 718 ) 1
1 599 718
Работа:576 696
Материалы:1 023 022
Дни:7
stdClass Object ( [id] => 128 [attribute_id] => 17 [name] => Эковата (целлюлозная вата) [material_modifier] => 1 [work_modifier] => 1 [options] => Array ( [0] => 50 мм [1] => 100 мм [2] => 150 мм [3] => 200 мм [4] => 250 мм [5] => 300 мм ) [days] => [3,4,5,6,7,8] [material_price] => [810,1319,1629,1838,2267,2676] [work_price] => [1225,1323,1423,1549,1659,1725] [image] => https://akademik-stroy.ru/wp-content/uploads/materials/ehkovata.jpg [area_modifier] => 236.23 [parent_name] => Дополнительное утепление наружных стен [parent_id] => 17 [material_sum] => 241096 [work_sum] => 303851 [total_sum] => 544947 [total_days] => 3 [display_material_sum] => 241 096 [display_work_sum] => 303 851 [display_total_sum] => 544 947 ) 1
544 947
Работа:303 851
Материалы:241 096
Дни:3
stdClass Object ( [id] => 129 [attribute_id] => 17 [name] => Экструдированный пенополистирол [material_modifier] => 1 [work_modifier] => 1 [options] => Array ( [0] => 50 мм [1] => 100 мм [2] => 150 мм [3] => 200 мм [4] => 250 мм [5] => 300 мм ) [days] => [5,6,7,8,9,10] [material_price] => [4560,4300,5119,6292,7010,8583] [work_price] => [1795,1954,2254,2330,2595,2735] [image] => https://akademik-stroy.ru/wp-content/uploads/materials/epps.jpg [area_modifier] => 236.23 [parent_name] => Дополнительное утепление наружных стен [parent_id] => 17 [material_sum] => 1357283 [work_sum] => 445234 [total_sum] => 1802517 [total_days] => 5 [display_material_sum] => 1 357 283 [display_work_sum] => 445 234 [display_total_sum] => 1 802 517 ) 1
1 802 517
Работа:445 234
Материалы:1 357 283
Дни:5
stdClass Object ( [id] => 130 [attribute_id] => 17 [name] => ПСБ (ППС-пенополистирол) [material_modifier] => 1 [work_modifier] => 1 [options] => Array ( [0] => 50 мм [1] => 100 мм [2] => 150 мм [3] => 200 мм [4] => 250 мм [5] => 300 мм ) [days] => [5,6,7,8,9,10] [material_price] => [4822,5200,5819,6292,7010,7583] [work_price] => [1795,1954,2254,2330,2595,2735] [image] => https://akademik-stroy.ru/wp-content/uploads/materials/psb.jpg [area_modifier] => 236.23 [parent_name] => Дополнительное утепление наружных стен [parent_id] => 17 [material_sum] => 1435267 [work_sum] => 445234 [total_sum] => 1880501 [total_days] => 5 [display_material_sum] => 1 435 267 [display_work_sum] => 445 234 [display_total_sum] => 1 880 501 ) 1
1 880 501
Работа:445 234
Материалы:1 435 267
Дни:5
stdClass Object ( [id] => 131 [attribute_id] => 17 [name] => ППУ (Пенополиуретан) [material_modifier] => 1 [work_modifier] => 1 [options] => Array ( [0] => 50 мм [1] => 100 мм [2] => 150 мм [3] => 200 мм [4] => 250 мм [5] => 300 мм ) [days] => [3,4,5,6,7,8] [material_price] => [2860,3400,4219,4592,5010,5583] [work_price] => [729,900,980,1120,1280,1530] [image] => https://akademik-stroy.ru/wp-content/uploads/materials/ppu.jpg [area_modifier] => 236.23 [parent_name] => Дополнительное утепление наружных стен [parent_id] => 17 [material_sum] => 851278 [work_sum] => 180822 [total_sum] => 1032100 [total_days] => 3 [display_material_sum] => 851 278 [display_work_sum] => 180 822 [display_total_sum] => 1 032 100 ) 1
1 032 100
Работа:180 822
Материалы:851 278
Дни:3
stdClass Object ( [id] => 132 [attribute_id] => 17 [name] => PIR-плиты (пенополиизоцианурат) [material_modifier] => 1 [work_modifier] => 1 [options] => Array ( [0] => 50 мм [1] => 100 мм [2] => 150 мм [3] => 200 мм [4] => 250 мм [5] => 300 мм ) [days] => [5,6,7,8,9,10] [material_price] => [8323,15645,20968,25900,29258,30581] [work_price] => [800,900,970,1150,1280,1330] [image] => https://akademik-stroy.ru/wp-content/uploads/materials/pir.jpg [area_modifier] => 236.23 [parent_name] => Дополнительное утепление наружных стен [parent_id] => 17 [material_sum] => 2477339 [work_sum] => 198433 [total_sum] => 2675772 [total_days] => 5 [display_material_sum] => 2 477 339 [display_work_sum] => 198 433 [display_total_sum] => 2 675 772 ) 1
2 675 772
Работа:198 433
Материалы:2 477 339
Дни:5
Наружная отделка фасада
stdClass Object ( [id] => 37 [attribute_id] => 19 [name] => Нет [material_modifier] => 1 [work_modifier] => 1 [options] => Array ( ) [days] => [0] [material_price] => [0] [work_price] => [0] [image] => https://akademik-stroy.ru/wp-content/uploads/materials/imitaciya-brusa.jpg [area_modifier] => 236.23 [parent_name] => Наружная отделка фасада [parent_id] => 19 [material_sum] => 0 [work_sum] => 0 [total_sum] => 0 [total_days] => 0 [display_material_sum] => 0 [display_work_sum] => 0 [display_total_sum] => 0 ) 1
0
Работа:0
Материалы:0
Дни:0
stdClass Object ( [id] => 38 [attribute_id] => 19 [name] => Имитация бруса [material_modifier] => 1 [work_modifier] => 1 [options] => Array ( [0] => Сосна [1] => Ель [2] => Лиственница ) [days] => [20,20,20] [material_price] => [2994,2762,4954] [work_price] => [1397,1231,1577] [image] => https://akademik-stroy.ru/wp-content/uploads/materials/imitaciya-brusa.jpg [area_modifier] => 236.23 [parent_name] => Наружная отделка фасада [parent_id] => 19 [material_sum] => 891164 [work_sum] => 346514 [total_sum] => 1237678 [total_days] => 20 [display_material_sum] => 891 164 [display_work_sum] => 346 514 [display_total_sum] => 1 237 678 ) 1
1 237 678
Работа:346 514
Материалы:891 164
Дни:20
stdClass Object ( [id] => 136 [attribute_id] => 19 [name] => Планкен [material_modifier] => 1 [work_modifier] => 1 [options] => Array ( [0] => Сосна [1] => Ель [2] => Лиственница ) [days] => [20,20,20] [material_price] => [3194,2862,5154] [work_price] => [1537,1354,1735] [image] => https://akademik-stroy.ru/wp-content/uploads/materials/planken.jpg [area_modifier] => 236.23 [parent_name] => Наружная отделка фасада [parent_id] => 19 [material_sum] => 950693 [work_sum] => 381240 [total_sum] => 1331933 [total_days] => 20 [display_material_sum] => 950 693 [display_work_sum] => 381 240 [display_total_sum] => 1 331 933 ) 1
1 331 933
Работа:381 240
Материалы:950 693
Дни:20
stdClass Object ( [id] => 137 [attribute_id] => 19 [name] => Штукатурка [material_modifier] => 1 [work_modifier] => 1 [options] => Array ( [0] => Цементно-песчаная (минеральная) [1] => Мокрый фасад ) [days] => [35,35] [material_price] => [2231,3938] [work_price] => [1202,2422] [image] => https://akademik-stroy.ru/wp-content/uploads/materials/shtukaturka.jpg [area_modifier] => 236.23 [parent_name] => Наружная отделка фасада [parent_id] => 19 [material_sum] => 664057 [work_sum] => 298146 [total_sum] => 962203 [total_days] => 35 [display_material_sum] => 664 057 [display_work_sum] => 298 146 [display_total_sum] => 962 203 ) 1
962 203
Работа:298 146
Материалы:664 057
Дни:35
stdClass Object ( [id] => 138 [attribute_id] => 19 [name] => Облицовочный кирпич [material_modifier] => 1 [work_modifier] => 1 [options] => Array ( [0] => Керамический [1] => Клинкерный [2] => Ручной формовки [3] => Гиперпрессованный [4] => Силикатный кирпич ) [days] => [45,45,45,45,45] [material_price] => [8174,9148,1040,1257,5876] [work_price] => [3240,3758,4536,4017,3369] [image] => https://akademik-stroy.ru/wp-content/uploads/materials/oblicovochnyj-kirpich.jpg [area_modifier] => 236.23 [parent_name] => Наружная отделка фасада [parent_id] => 19 [material_sum] => 2432989 [work_sum] => 803654 [total_sum] => 3236643 [total_days] => 45 [display_material_sum] => 2 432 989 [display_work_sum] => 803 654 [display_total_sum] => 3 236 643 ) 1
3 236 643
Работа:803 654
Материалы:2 432 989
Дни:45
stdClass Object ( [id] => 139 [attribute_id] => 19 [name] => Фасадная плитка [material_modifier] => 1 [work_modifier] => 1 [options] => Array ( [0] => Клинкерная [1] => Керамическая [2] => Плитка ручной формовки ) [days] => [40,40,40] [material_price] => [2974,1487,3470] [work_price] => [3007,2592,3629] [image] => https://akademik-stroy.ru/wp-content/uploads/materials/fasadnaya-plitka.jpg [area_modifier] => 236.23 [parent_name] => Наружная отделка фасада [parent_id] => 19 [material_sum] => 885211 [work_sum] => 745861 [total_sum] => 1631072 [total_days] => 40 [display_material_sum] => 885 211 [display_work_sum] => 745 861 [display_total_sum] => 1 631 072 ) 1
1 631 072
Работа:745 861
Материалы:885 211
Дни:40
stdClass Object ( [id] => 140 [attribute_id] => 19 [name] => Сайдинг [material_modifier] => 1 [work_modifier] => 1 [options] => Array ( [0] => Виниловый [1] => Металлический [2] => Фиброцементный ) [days] => [20,20,20] [material_price] => [1263,1944,4147] [work_price] => [1263,1944,2074] [image] => https://akademik-stroy.ru/wp-content/uploads/materials/sajding.jpg [area_modifier] => 236.23 [parent_name] => Наружная отделка фасада [parent_id] => 19 [material_sum] => 375932 [work_sum] => 313276 [total_sum] => 689208 [total_days] => 20 [display_material_sum] => 375 932 [display_work_sum] => 313 276 [display_total_sum] => 689 208 ) 1
689 208
Работа:313 276
Материалы:375 932
Дни:20
stdClass Object ( [id] => 141 [attribute_id] => 19 [name] => Камень [material_modifier] => 1 [work_modifier] => 1 [options] => Array ( [0] => Травертин [1] => Дагестанский [2] => Искусственный [3] => Натуральный [4] => Керамогранит ) [days] => [45,45,45,45,45] [material_price] => [4536,3888,2592,3240,2462] [work_price] => [3240,3240,2462,3110,1944] [image] => https://akademik-stroy.ru/wp-content/uploads/materials/kamen-1.jpg [area_modifier] => 236.23 [parent_name] => Наружная отделка фасада [parent_id] => 19 [material_sum] => 1350139 [work_sum] => 803654 [total_sum] => 2153793 [total_days] => 45 [display_material_sum] => 1 350 139 [display_work_sum] => 803 654 [display_total_sum] => 2 153 793 ) 1
2 153 793
Работа:803 654
Материалы:1 350 139
Дни:45
stdClass Object ( [id] => 142 [attribute_id] => 19 [name] => Термопанели [material_modifier] => 1 [work_modifier] => 1 [options] => Array ( ) [days] => [20] [material_price] => [6221] [work_price] => [2333] [image] => https://akademik-stroy.ru/wp-content/uploads/materials/termo.png [area_modifier] => 236.23 [parent_name] => Наружная отделка фасада [parent_id] => 19 [material_sum] => 1851679 [work_sum] => 578681 [total_sum] => 2430360 [total_days] => 20 [display_material_sum] => 1 851 679 [display_work_sum] => 578 681 [display_total_sum] => 2 430 360 ) 1
2 430 360
Работа:578 681
Материалы:1 851 679
Дни:20
stdClass Object ( [id] => 143 [attribute_id] => 19 [name] => Плитка HAUBERK [material_modifier] => 1 [work_modifier] => 1 [options] => Array ( ) [days] => [20] [material_price] => [2786] [work_price] => [1944] [image] => https://akademik-stroy.ru/wp-content/uploads/materials/hauberk.jpg [area_modifier] => 236.23 [parent_name] => Наружная отделка фасада [parent_id] => 19 [material_sum] => 829252 [work_sum] => 482193 [total_sum] => 1311445 [total_days] => 20 [display_material_sum] => 829 252 [display_work_sum] => 482 193 [display_total_sum] => 1 311 445 ) 1
1 311 445
Работа:482 193
Материалы:829 252
Дни:20
stdClass Object ( [id] => 144 [attribute_id] => 19 [name] => Фальцевый фасад [material_modifier] => 1 [work_modifier] => 1 [options] => Array ( ) [days] => [20] [material_price] => [3240] [work_price] => [2592] [image] => https://akademik-stroy.ru/wp-content/uploads/materials/falcevyj-fasad.jpg [area_modifier] => 236.23 [parent_name] => Наружная отделка фасада [parent_id] => 19 [material_sum] => 964385 [work_sum] => 642924 [total_sum] => 1607309 [total_days] => 20 [display_material_sum] => 964 385 [display_work_sum] => 642 924 [display_total_sum] => 1 607 309 ) 1
1 607 309
Работа:642 924
Материалы:964 385
Дни:20
stdClass Object ( [id] => 145 [attribute_id] => 19 [name] => Комбинированный [material_modifier] => 1 [work_modifier] => 1 [options] => Array ( ) [days] => [20] [material_price] => [4629] [work_price] => [3499] [image] => https://akademik-stroy.ru/wp-content/uploads/materials/Kombinirovannyj.jpg [area_modifier] => 236.23 [parent_name] => Наружная отделка фасада [parent_id] => 19 [material_sum] => 1377821 [work_sum] => 867897 [total_sum] => 2245718 [total_days] => 20 [display_material_sum] => 1 377 821 [display_work_sum] => 867 897 [display_total_sum] => 2 245 718 ) 1
2 245 718
Работа:867 897
Материалы:1 377 821
Дни:20
stdClass Object ( [id] => 257 [attribute_id] => 19 [name] => Японские фиброцементные [material_modifier] => 1 [work_modifier] => 1 [options] => Array ( ) [days] => [20] [material_price] => [7043] [work_price] => [2993] [image] => https://akademik-stroy.ru/wp-content/uploads/materials/paneli.jpg [area_modifier] => 236.23 [parent_name] => Наружная отделка фасада [parent_id] => 19 [material_sum] => 2096348 [work_sum] => 742388 [total_sum] => 2838736 [total_days] => 20 [display_material_sum] => 2 096 348 [display_work_sum] => 742 388 [display_total_sum] => 2 838 736 ) 1
2 838 736
Работа:742 388
Материалы:2 096 348
Дни:20
stdClass Object ( [id] => 258 [attribute_id] => 19 [name] => Панели Каньон [material_modifier] => 1 [work_modifier] => 1 [options] => Array ( ) [days] => [20] [material_price] => [4543] [work_price] => [2592] [image] => https://akademik-stroy.ru/wp-content/uploads/materials/kanon.png [area_modifier] => 236.23 [parent_name] => Наружная отделка фасада [parent_id] => 19 [material_sum] => 1352223 [work_sum] => 642924 [total_sum] => 1995147 [total_days] => 20 [display_material_sum] => 1 352 223 [display_work_sum] => 642 924 [display_total_sum] => 1 995 147 ) 1
1 995 147
Работа:642 924
Материалы:1 352 223
Дни:20
Террасы, крыльца, навесы
stdClass Object ( [id] => 39 [attribute_id] => 20 [name] => Нет [material_modifier] => 1 [work_modifier] => 1 [options] => Array ( ) [days] => [0] [material_price] => [0] [work_price] => [0] [image] => https://akademik-stroy.ru/wp-content/uploads/materials/terrasy.jpg [area_modifier] => 30 [parent_name] => Террасы, крыльца, навесы [parent_id] => 20 [material_sum] => 0 [work_sum] => 0 [total_sum] => 0 [total_days] => 0 [display_material_sum] => 0 [display_work_sum] => 0 [display_total_sum] => 0 ) 1
0
Работа:0
Материалы:0
Дни:0
stdClass Object ( [id] => 40 [attribute_id] => 20 [name] => Есть [material_modifier] => 1 [work_modifier] => 1 [options] => Array ( ) [days] => [5] [material_price] => [10450] [work_price] => [1950] [image] => https://akademik-stroy.ru/wp-content/uploads/materials/terrasy.jpg [area_modifier] => 30 [parent_name] => Террасы, крыльца, навесы [parent_id] => 20 [material_sum] => 395010 [work_sum] => 61425 [total_sum] => 456435 [total_days] => 5 [display_material_sum] => 395 010 [display_work_sum] => 61 425 [display_total_sum] => 456 435 ) 1
456 435
Работа:61 425
Материалы:395 010
Дни:5
Балконы
stdClass Object ( [id] => 41 [attribute_id] => 21 [name] => Нет [material_modifier] => 1 [work_modifier] => 1 [options] => Array ( ) [days] => [0] [material_price] => [0] [work_price] => [0] [image] => https://akademik-stroy.ru/wp-content/uploads/materials/balkony.jpg [area_modifier] => 30 [parent_name] => Балконы [parent_id] => 21 [material_sum] => 0 [work_sum] => 0 [total_sum] => 0 [total_days] => 0 [display_material_sum] => 0 [display_work_sum] => 0 [display_total_sum] => 0 ) 1
0
Работа:0
Материалы:0
Дни:0
stdClass Object ( [id] => 42 [attribute_id] => 21 [name] => Есть [material_modifier] => 1 [work_modifier] => 1 [options] => Array ( ) [days] => [12] [material_price] => [3600] [work_price] => [1950] [image] => https://akademik-stroy.ru/wp-content/uploads/materials/balkony.jpg [area_modifier] => 30 [parent_name] => Балконы [parent_id] => 21 [material_sum] => 136080 [work_sum] => 61425 [total_sum] => 197505 [total_days] => 12 [display_material_sum] => 136 080 [display_work_sum] => 61 425 [display_total_sum] => 197 505 ) 1
197 505
Работа:61 425
Материалы:136 080
Дни:12
Отмостка
stdClass Object ( [id] => 43 [attribute_id] => 22 [name] => Нет [material_modifier] => 1 [work_modifier] => 1 [options] => Array ( ) [days] => [0] [material_price] => [0] [work_price] => [0] [image] => https://akademik-stroy.ru/wp-content/uploads/materials/uteplennaya.jpg [area_modifier] => 139.87 [parent_name] => Отмостка [parent_id] => 22 [material_sum] => 0 [work_sum] => 0 [total_sum] => 0 [total_days] => 0 [display_material_sum] => 0 [display_work_sum] => 0 [display_total_sum] => 0 ) 1
0
Работа:0
Материалы:0
Дни:0
stdClass Object ( [id] => 44 [attribute_id] => 22 [name] => Утепленная отмостка [material_modifier] => 1 [work_modifier] => 1 [options] => Array ( ) [days] => [15] [material_price] => [2550] [work_price] => [1750] [image] => https://akademik-stroy.ru/wp-content/uploads/materials/uteplennaya.jpg [area_modifier] => 139.87 [parent_name] => Отмостка [parent_id] => 22 [material_sum] => 449402 [work_sum] => 257011 [total_sum] => 706413 [total_days] => 15 [display_material_sum] => 449 402 [display_work_sum] => 257 011 [display_total_sum] => 706 413 ) 1
706 413
Работа:257 011
Материалы:449 402
Дни:15
stdClass Object ( [id] => 146 [attribute_id] => 22 [name] => Не утепленная отмостка [material_modifier] => 1 [work_modifier] => 1 [options] => Array ( ) [days] => [10] [material_price] => [1650] [work_price] => [1450] [image] => https://akademik-stroy.ru/wp-content/uploads/materials/ne-uteplennaya.jpg [area_modifier] => 139.87 [parent_name] => Отмостка [parent_id] => 22 [material_sum] => 290790 [work_sum] => 212952 [total_sum] => 503742 [total_days] => 10 [display_material_sum] => 290 790 [display_work_sum] => 212 952 [display_total_sum] => 503 742 ) 1
503 742
Работа:212 952
Материалы:290 790
Дни:10
Дренаж вокруг дома
stdClass Object ( [id] => 45 [attribute_id] => 23 [name] => Нет [material_modifier] => 1 [work_modifier] => 1 [options] => Array ( ) [days] => [0] [material_price] => [0] [work_price] => [0] [image] => https://akademik-stroy.ru/wp-content/uploads/materials/drenazh-2.jpg [area_modifier] => 139.87 [parent_name] => Дренаж вокруг дома [parent_id] => 23 [material_sum] => 0 [work_sum] => 0 [total_sum] => 0 [total_days] => 0 [display_material_sum] => 0 [display_work_sum] => 0 [display_total_sum] => 0 ) 1
0
Работа:0
Материалы:0
Дни:0
stdClass Object ( [id] => 46 [attribute_id] => 23 [name] => Есть [material_modifier] => 1 [work_modifier] => 1 [options] => Array ( ) [days] => [5] [material_price] => [2366] [work_price] => [1911] [image] => https://akademik-stroy.ru/wp-content/uploads/materials/drenazh-2.jpg [area_modifier] => 139.87 [parent_name] => Дренаж вокруг дома [parent_id] => 23 [material_sum] => 416975 [work_sum] => 280656 [total_sum] => 697631 [total_days] => 5 [display_material_sum] => 416 975 [display_work_sum] => 280 656 [display_total_sum] => 697 631 ) 1
697 631
Работа:280 656
Материалы:416 975
Дни:5
Автономная канализация (септики)
stdClass Object ( [id] => 47 [attribute_id] => 24 [name] => Нет [material_modifier] => 1 [work_modifier] => 1 [options] => Array ( ) [days] => [0] [material_price] => [0] [work_price] => [0] [image] => https://akademik-stroy.ru/wp-content/uploads/materials/septik.jpg [area_modifier] => 1 [parent_name] => Автономная канализация (септики) [parent_id] => 24 [material_sum] => 0 [work_sum] => 0 [total_sum] => 0 [total_days] => 0 [display_material_sum] => 0 [display_work_sum] => 0 [display_total_sum] => 0 ) 1
0
Работа:0
Материалы:0
Дни:0
stdClass Object ( [id] => 48 [attribute_id] => 24 [name] => Есть [material_modifier] => 1 [work_modifier] => 1 [options] => Array ( [0] => Для дачи на 4 человека [1] => Для дома на 5 человек [2] => Для дома на 6 человек [3] => Для дома на 7 человек [4] => Для дома на 10 человек ) [days] => [7,7,7,8,8] [material_price] => [196340,220500,240940,264200,293340] [work_price] => [50000,55000,60500,66550,73206] [image] => https://akademik-stroy.ru/wp-content/uploads/materials/septik.jpg [area_modifier] => 1 [parent_name] => Автономная канализация (септики) [parent_id] => 24 [material_sum] => 247388 [work_sum] => 52500 [total_sum] => 299888 [total_days] => 7 [display_material_sum] => 247 388 [display_work_sum] => 52 500 [display_total_sum] => 299 888 ) 1
299 888
Работа:52 500
Материалы:247 388
Дни:7
Внутренние (не несущие) перегородки
stdClass Object ( [id] => 49 [attribute_id] => 25 [name] => Нет [material_modifier] => 1 [work_modifier] => 1 [options] => Array ( ) [days] => [0] [material_price] => [0] [work_price] => [0] [image] => https://akademik-stroy.ru/wp-content/uploads/materials/gkl.jpg [area_modifier] => 236.23 [parent_name] => Внутренние (не несущие) перегородки [parent_id] => 25 [material_sum] => 0 [work_sum] => 0 [total_sum] => 0 [total_days] => 0 [display_material_sum] => 0 [display_work_sum] => 0 [display_total_sum] => 0 ) 1
0
Работа:0
Материалы:0
Дни:0
stdClass Object ( [id] => 147 [attribute_id] => 25 [name] => Каркасно-обшивные [material_modifier] => 1 [work_modifier] => 1 [options] => Array ( [0] => 75 мм (без шумоизоляции) [1] => 75 мм (с шумоизоляцией) ) [days] => [11,11] [material_price] => [580,970] [work_price] => [380,570] [image] => https://akademik-stroy.ru/wp-content/uploads/materials/gkl.jpg [area_modifier] => 236.23 [parent_name] => Внутренние (не несущие) перегородки [parent_id] => 25 [material_sum] => 172637 [work_sum] => 94256 [total_sum] => 266893 [total_days] => 11 [display_material_sum] => 172 637 [display_work_sum] => 94 256 [display_total_sum] => 266 893 ) 1
266 893
Работа:94 256
Материалы:172 637
Дни:11
stdClass Object ( [id] => 148 [attribute_id] => 25 [name] => Пазогребневые [material_modifier] => 1 [work_modifier] => 1 [options] => Array ( [0] => 80 мм [1] => 100 мм ) [days] => [5,5] [material_price] => [1022,1313] [work_price] => [600,700] [image] => https://akademik-stroy.ru/wp-content/uploads/materials/pazogrebnevye-bloki.jpg [area_modifier] => 236.23 [parent_name] => Внутренние (не несущие) перегородки [parent_id] => 25 [material_sum] => 304198 [work_sum] => 148825 [total_sum] => 453023 [total_days] => 5 [display_material_sum] => 304 198 [display_work_sum] => 148 825 [display_total_sum] => 453 023 ) 1
453 023
Работа:148 825
Материалы:304 198
Дни:5
stdClass Object ( [id] => 149 [attribute_id] => 25 [name] => Газобетонные [material_modifier] => 1 [work_modifier] => 1 [options] => Array ( [0] => 100 мм [1] => 200 мм ) [days] => [11,11] [material_price] => [1160,1920] [work_price] => [700,900] [image] => https://akademik-stroy.ru/wp-content/uploads/materials/gazobeton-2.jpg [area_modifier] => 236.23 [parent_name] => Внутренние (не несущие) перегородки [parent_id] => 25 [material_sum] => 345274 [work_sum] => 173629 [total_sum] => 518903 [total_days] => 11 [display_material_sum] => 345 274 [display_work_sum] => 173 629 [display_total_sum] => 518 903 ) 1
518 903
Работа:173 629
Материалы:345 274
Дни:11
stdClass Object ( [id] => 150 [attribute_id] => 25 [name] => Кирпичные [material_modifier] => 1 [work_modifier] => 1 [options] => Array ( [0] => 120 мм [1] => 250 мм [2] => 360 мм ) [days] => [7,7,7] [material_price] => [1785,3570,5355] [work_price] => [900,1600,1800] [image] => https://akademik-stroy.ru/wp-content/uploads/materials/kirpich-1.jpg [area_modifier] => 236.23 [parent_name] => Внутренние (не несущие) перегородки [parent_id] => 25 [material_sum] => 531305 [work_sum] => 223237 [total_sum] => 754542 [total_days] => 7 [display_material_sum] => 531 305 [display_work_sum] => 223 237 [display_total_sum] => 754 542 ) 1
754 542
Работа:223 237
Материалы:531 305
Дни:7
Электрика
stdClass Object ( [id] => 55 [attribute_id] => 28 [name] => Нет [material_modifier] => 1 [work_modifier] => 1 [options] => Array ( ) [days] => [0] [material_price] => [0] [work_price] => [0] [image] => https://akademik-stroy.ru/wp-content/uploads/materials/ehlektrika.jpg [area_modifier] => 191.7 [parent_name] => Электрика [parent_id] => 28 [material_sum] => 0 [work_sum] => 0 [total_sum] => 0 [total_days] => 0 [display_material_sum] => 0 [display_work_sum] => 0 [display_total_sum] => 0 ) 1
0
Работа:0
Материалы:0
Дни:0
stdClass Object ( [id] => 56 [attribute_id] => 28 [name] => Есть [material_modifier] => 1 [work_modifier] => 1 [options] => Array ( ) [days] => [10] [material_price] => [650] [work_price] => [950] [image] => https://akademik-stroy.ru/wp-content/uploads/materials/ehlektrika.jpg [area_modifier] => 191.7 [parent_name] => Электрика [parent_id] => 28 [material_sum] => 157002 [work_sum] => 191221 [total_sum] => 348223 [total_days] => 10 [display_material_sum] => 157 002 [display_work_sum] => 191 221 [display_total_sum] => 348 223 ) 1
348 223
Работа:191 221
Материалы:157 002
Дни:10
Сантехника, канализация в доме
stdClass Object ( [id] => 57 [attribute_id] => 29 [name] => Нет [material_modifier] => 1 [work_modifier] => 1 [options] => Array ( ) [days] => [0] [material_price] => [0] [work_price] => [0] [image] => https://akademik-stroy.ru/wp-content/uploads/materials/santekhnika-kanalizaciya-1.jpg [area_modifier] => 191.7 [parent_name] => Сантехника, канализация в доме [parent_id] => 29 [material_sum] => 0 [work_sum] => 0 [total_sum] => 0 [total_days] => 0 [display_material_sum] => 0 [display_work_sum] => 0 [display_total_sum] => 0 ) 1
0
Работа:0
Материалы:0
Дни:0
stdClass Object ( [id] => 58 [attribute_id] => 29 [name] => Есть [material_modifier] => 1 [work_modifier] => 1 [options] => Array ( ) [days] => [10] [material_price] => [600] [work_price] => [730] [image] => https://akademik-stroy.ru/wp-content/uploads/materials/santekhnika-kanalizaciya-1.jpg [area_modifier] => 191.7 [parent_name] => Сантехника, канализация в доме [parent_id] => 29 [material_sum] => 144925 [work_sum] => 146938 [total_sum] => 291863 [total_days] => 10 [display_material_sum] => 144 925 [display_work_sum] => 146 938 [display_total_sum] => 291 863 ) 1
291 863
Работа:146 938
Материалы:144 925
Дни:10
Отопление
stdClass Object ( [id] => 59 [attribute_id] => 30 [name] => Нет [material_modifier] => 1 [work_modifier] => 1 [options] => Array ( ) [days] => [0] [material_price] => [0] [work_price] => [0] [image] => https://akademik-stroy.ru/wp-content/uploads/materials/otoplenie-1.jpg [area_modifier] => 191.7 [parent_name] => Отопление [parent_id] => 30 [material_sum] => 0 [work_sum] => 0 [total_sum] => 0 [total_days] => 0 [display_material_sum] => 0 [display_work_sum] => 0 [display_total_sum] => 0 ) 1
0
Работа:0
Материалы:0
Дни:0
stdClass Object ( [id] => 60 [attribute_id] => 30 [name] => Есть [material_modifier] => 1 [work_modifier] => 1 [options] => Array ( ) [days] => [5] [material_price] => [610] [work_price] => [560] [image] => https://akademik-stroy.ru/wp-content/uploads/materials/otoplenie-1.jpg [area_modifier] => 191.7 [parent_name] => Отопление [parent_id] => 30 [material_sum] => 147341 [work_sum] => 112720 [total_sum] => 260061 [total_days] => 5 [display_material_sum] => 147 341 [display_work_sum] => 112 720 [display_total_sum] => 260 061 ) 1
260 061
Работа:112 720
Материалы:147 341
Дни:5
Теплые полы
stdClass Object ( [id] => 61 [attribute_id] => 31 [name] => Нет [material_modifier] => 1 [work_modifier] => 1 [options] => Array ( ) [days] => [0] [material_price] => [0] [work_price] => [0] [image] => https://akademik-stroy.ru/wp-content/uploads/materials/vodyanye.jpg [area_modifier] => 30 [parent_name] => Теплые полы [parent_id] => 31 [material_sum] => 0 [work_sum] => 0 [total_sum] => 0 [total_days] => 0 [display_material_sum] => 0 [display_work_sum] => 0 [display_total_sum] => 0 ) 1
0
Работа:0
Материалы:0
Дни:0
stdClass Object ( [id] => 151 [attribute_id] => 31 [name] => Водяные [material_modifier] => 1 [work_modifier] => 1 [options] => Array ( ) [days] => [9] [material_price] => [10200] [work_price] => [2500] [image] => https://akademik-stroy.ru/wp-content/uploads/materials/vodyanye.jpg [area_modifier] => 30 [parent_name] => Теплые полы [parent_id] => 31 [material_sum] => 385560 [work_sum] => 78750 [total_sum] => 464310 [total_days] => 9 [display_material_sum] => 385 560 [display_work_sum] => 78 750 [display_total_sum] => 464 310 ) 1
464 310
Работа:78 750
Материалы:385 560
Дни:9
stdClass Object ( [id] => 152 [attribute_id] => 31 [name] => Электро [material_modifier] => 1 [work_modifier] => 1 [options] => Array ( ) [days] => [5] [material_price] => [6300] [work_price] => [1500] [image] => https://akademik-stroy.ru/wp-content/uploads/materials/ehlektricheskij.jpg [area_modifier] => 30 [parent_name] => Теплые полы [parent_id] => 31 [material_sum] => 238140 [work_sum] => 47250 [total_sum] => 285390 [total_days] => 5 [display_material_sum] => 238 140 [display_work_sum] => 47 250 [display_total_sum] => 285 390 ) 1
285 390
Работа:47 250
Материалы:238 140
Дни:5
Черновая отделка стен
stdClass Object ( [id] => 63 [attribute_id] => 32 [name] => Нет [material_modifier] => 1 [work_modifier] => 1 [options] => Array ( ) [days] => [0] [material_price] => [0] [work_price] => [0] [image] => https://akademik-stroy.ru/wp-content/uploads/materials/shtukaturka-shpatlevka-1.jpg [area_modifier] => 191.7 [parent_name] => Черновая отделка стен [parent_id] => 32 [material_sum] => 0 [work_sum] => 0 [total_sum] => 0 [total_days] => 0 [display_material_sum] => 0 [display_work_sum] => 0 [display_total_sum] => 0 ) 1
0
Работа:0
Материалы:0
Дни:0
stdClass Object ( [id] => 153 [attribute_id] => 32 [name] => Штукатурка и шпатлевка [material_modifier] => 1 [work_modifier] => 1 [options] => Array ( ) [days] => [20] [material_price] => [1850] [work_price] => [2600] [image] => https://akademik-stroy.ru/wp-content/uploads/materials/shtukaturka-shpatlevka-1.jpg [area_modifier] => 191.7 [parent_name] => Черновая отделка стен [parent_id] => 32 [material_sum] => 446853 [work_sum] => 523341 [total_sum] => 970194 [total_days] => 20 [display_material_sum] => 446 853 [display_work_sum] => 523 341 [display_total_sum] => 970 194 ) 1
970 194
Работа:523 341
Материалы:446 853
Дни:20
stdClass Object ( [id] => 154 [attribute_id] => 32 [name] => Гипсокортон на стены [material_modifier] => 1 [work_modifier] => 1 [options] => Array ( ) [days] => [15] [material_price] => [950] [work_price] => [2100] [image] => https://akademik-stroy.ru/wp-content/uploads/materials/gkl-1.jpg [area_modifier] => 191.7 [parent_name] => Черновая отделка стен [parent_id] => 32 [material_sum] => 229465 [work_sum] => 422699 [total_sum] => 652164 [total_days] => 15 [display_material_sum] => 229 465 [display_work_sum] => 422 699 [display_total_sum] => 652 164 ) 1
652 164
Работа:422 699
Материалы:229 465
Дни:15
stdClass Object ( [id] => 155 [attribute_id] => 32 [name] => Вагонка [material_modifier] => 1 [work_modifier] => 1 [options] => Array ( ) [days] => [15] [material_price] => [1250] [work_price] => [950] [image] => https://akademik-stroy.ru/wp-content/uploads/materials/vagonka.jpg [area_modifier] => 191.7 [parent_name] => Черновая отделка стен [parent_id] => 32 [material_sum] => 301928 [work_sum] => 191221 [total_sum] => 493149 [total_days] => 15 [display_material_sum] => 301 928 [display_work_sum] => 191 221 [display_total_sum] => 493 149 ) 1
493 149
Работа:191 221
Материалы:301 928
Дни:15
Черновая отделка полов
stdClass Object ( [id] => 65 [attribute_id] => 33 [name] => Нет [material_modifier] => 1 [work_modifier] => 1 [options] => Array ( ) [days] => [0] [material_price] => [0] [work_price] => [0] [image] => https://akademik-stroy.ru/wp-content/uploads/materials/styazhka.jpg [area_modifier] => 191.7 [parent_name] => Черновая отделка полов [parent_id] => 33 [material_sum] => 0 [work_sum] => 0 [total_sum] => 0 [total_days] => 0 [display_material_sum] => 0 [display_work_sum] => 0 [display_total_sum] => 0 ) 1
0
Работа:0
Материалы:0
Дни:0
stdClass Object ( [id] => 156 [attribute_id] => 33 [name] => Стяжка + наливные полы [material_modifier] => 1 [work_modifier] => 1 [options] => Array ( ) [days] => [10] [material_price] => [1000] [work_price] => [900] [image] => https://akademik-stroy.ru/wp-content/uploads/materials/styazhka.jpg [area_modifier] => 191.7 [parent_name] => Черновая отделка полов [parent_id] => 33 [material_sum] => 241542 [work_sum] => 181157 [total_sum] => 422699 [total_days] => 10 [display_material_sum] => 241 542 [display_work_sum] => 181 157 [display_total_sum] => 422 699 ) 1
422 699
Работа:181 157
Материалы:241 542
Дни:10
stdClass Object ( [id] => 157 [attribute_id] => 33 [name] => ОСБ на пол [material_modifier] => 1 [work_modifier] => 1 [options] => Array ( ) [days] => [7] [material_price] => [580] [work_price] => [350] [image] => https://akademik-stroy.ru/wp-content/uploads/materials/osb-1.jpg [area_modifier] => 191.7 [parent_name] => Черновая отделка полов [parent_id] => 33 [material_sum] => 140094 [work_sum] => 70450 [total_sum] => 210544 [total_days] => 7 [display_material_sum] => 140 094 [display_work_sum] => 70 450 [display_total_sum] => 210 544 ) 1
210 544
Работа:70 450
Материалы:140 094
Дни:7
Чистовая отделка стен и полов
stdClass Object ( [id] => 67 [attribute_id] => 34 [name] => Нет [material_modifier] => 1 [work_modifier] => 1 [options] => Array ( ) [days] => [0] [material_price] => [0] [work_price] => [0] [image] => https://akademik-stroy.ru/wp-content/uploads/materials/chistovaya-otdelka.jpg [area_modifier] => 191.7 [parent_name] => Чистовая отделка стен и полов [parent_id] => 34 [material_sum] => 0 [work_sum] => 0 [total_sum] => 0 [total_days] => 0 [display_material_sum] => 0 [display_work_sum] => 0 [display_total_sum] => 0 ) 1
0
Работа:0
Материалы:0
Дни:0
stdClass Object ( [id] => 68 [attribute_id] => 34 [name] => Есть [material_modifier] => 1 [work_modifier] => 1 [options] => Array ( ) [days] => [50] [material_price] => [6000] [work_price] => [3500] [image] => https://akademik-stroy.ru/wp-content/uploads/materials/chistovaya-otdelka.jpg [area_modifier] => 191.7 [parent_name] => Чистовая отделка стен и полов [parent_id] => 34 [material_sum] => 1449252 [work_sum] => 704498 [total_sum] => 2153750 [total_days] => 50 [display_material_sum] => 1 449 252 [display_work_sum] => 704 498 [display_total_sum] => 2 153 750 ) 1
2 153 750
Работа:704 498
Материалы:1 449 252
Дни:50
Отделка потолка
stdClass Object ( [id] => 69 [attribute_id] => 35 [name] => Нет [material_modifier] => 1 [work_modifier] => 1 [options] => Array ( ) [days] => [0] [material_price] => [0] [work_price] => [0] [image] => https://akademik-stroy.ru/wp-content/uploads/materials/mnogourovnevyj-gkl.jpg [area_modifier] => 191.7 [parent_name] => Отделка потолка [parent_id] => 35 [material_sum] => 0 [work_sum] => 0 [total_sum] => 0 [total_days] => 0 [display_material_sum] => 0 [display_work_sum] => 0 [display_total_sum] => 0 ) 1
0
Работа:0
Материалы:0
Дни:0
stdClass Object ( [id] => 70 [attribute_id] => 35 [name] => Есть [material_modifier] => 1 [work_modifier] => 1 [options] => Array ( [0] => Многоуровневый потолок из гипсокартона [1] => Многоуровневый потолок из гипсокартона и натяжного потолка [2] => Одноуровневый потолок из гипсокартона [3] => Одноуровневый натяжной потолок ) [days] => [10,10,1,1] [material_price] => [900,700,700,600] [work_price] => [1000,800,500,300] [image] => https://akademik-stroy.ru/wp-content/uploads/materials/mnogourovnevyj-gkl.jpg [area_modifier] => 191.7 [parent_name] => Отделка потолка [parent_id] => 35 [material_sum] => 217388 [work_sum] => 201285 [total_sum] => 418673 [total_days] => 10 [display_material_sum] => 217 388 [display_work_sum] => 201 285 [display_total_sum] => 418 673 ) 1
418 673
Работа:201 285
Материалы:217 388
Дни:10

Преимущества работы с нами

icon

7 этапов оплаты

icon

Независимый строительный надзор

icon

Экологически чистые материалы

icon

16 лет гарантии

icon

Онлайн-кабинет с веб-камерой

icon

Строители с опытом более 15 лет

icon

Собственное производство

Почему стоит выбрать двухэтажный дом 16х12 - 191.7 м2 от компании "Академик Строй" в Москве

Если вы задумались о строительстве просторного и функционального частного дома в Москве, то проект двухэтажного дома размером 16 на 12 метров с полезной площадью 191.7 м² — отличное решение. Компания "Академик Строй" предлагает готовый проект, который идеально подойдет для семьи из 4-6 человек, ценящей уют, комфорт и продуманную планировку. Почему именно этот дом? Прежде всего, он сочетает в себе оптимальные габариты для загородной жизни и функциональность, которая позволит создать максимально удобную и современную жилую среду. Заказать проект можно по телефону +7 (980) 800-47-93 – отличная цена и профессиональный подход к каждому клиенту вас приятно удивят.

Основные характеристики дома 16х12 - 191.7 м2

Давайте более детально разберем, что именно предлагает проект двухэтажного дома 16х12 метров.
Параметр Значение
Размеры дома 16 x 12 м
Полезная площадь 191.7 м²
Этажность 2 этажа
Количество спален 4
Количество санузлов 3
Жилая площадь 143 м²
Площадь застройки 152.20 м²
Объем брутто 909.70 м³
Площадь крыши 256.90 м²
Угол наклона крыши 42°
Высота здания 8.60 м
Минимальная ширина участка 24.20 м
Минимальная длина участка 19.70 м
Тип крыши двускатная
Опции камин, комната на первом этаже, терраса

Что же значит каждый из этих параметров?

Когда вы выбираете проект дома, важно понимать не просто цифры на бумаге, а их функциональное значение и удобство для вас в повседневной жизни. 16х12 метров – такой формат идеально подходит для участка средней площади, при этом домовладение не будет давить своим размером, но при этом предоставит организованное и комфортное пространство для жизни. Полезная площадь 191.7 м² – это простор для всей семьи, чтобы не чувствовать ограничений в свободе передвижения и разместить необходимые зоны: спальни, гостиную, кухню и рабочие кабинеты. Наличие 4 спален — отличный вариант для семьи с детьми или для тех, кто любит принимать гостей. Три санузла – это повышение комфорта блюм семьи и гостей одновременно. Высота дома 8,60 метров и двускатная крыша с углом наклона 42° обеспечивают отличный дизайн фасада и хорошую защиту от атмосферных осадков.

Планировка и функциональность – что внутри вашего дома?

От планировки напрямую зависит комфорт проживания. В проекте двухэтажного дома 16х12 от "Академик Строй" все сделано, чтобы максимально использовать пространство без ощущения тесноты.

Первый этаж

Здесь располагается просторная зона для семейных и общественных мероприятий. Вы найдете:
  • Гостиную с камином – идеальное место для уютных вечеров с семьей.
  • Кухню – функциональную, с современным дизайном, где готовить будет в удовольствие.
  • Столовую зону, объединенную с гостиной, подчеркивающую концепцию открытого пространства.
  • Один из санузлов, чтобы гости и члены семьи не бегали по лестнице.
  • Отдельную комнату на первом этаже – отличное решение для рабочего кабинета или гостевой спальни.
  • Выход на террасу – пространство для отдыха на свежем воздухе.
Все зоны продуманы таким образом, чтобы вы почувствовали себя максимально комфортно в течение дня.

Второй этаж

Здесь расположены спальни и остальные санузлы:
  • Четыре спальни различных размеров, среди которых главная — просторная с возможностью размещения большой кровати и гардеробной.
  • Два санузла – очень удобно, если в семье несколько человек или есть дети.
  • Места для хранения вещей – шкафы, гардеробы, кладовые.
Второй этаж — это приватное пространство, которое идеально подходит для отдыха и восстановления сил после рабочего дня.

Преимущества двускатной крыши с углом наклона 42°

Это классическое решение, которое пользуется заслуженной популярностью. Почему стоит обратить внимание именно на такую крышу?
  • Эффективный отвод осадков. Угол наклона 42° обеспечивает быстрый сток дождевой и талой воды, что минимизирует риск протечек и повреждения конструкции.
  • Возможность использования чердачного пространства – под крышу можно устроить дополнительное помещение, например, мансарду или место для хранения.
  • Классическая эстетика. Двускатная крыша отлично вписывается в любой ландшафт и хорошо сочетается с разным фасадным дизайном.
  • Простота монтажа и ремонта. Такая крыша является одним из самых простых вариантов для кровельных работ, что сокращает затраты времени и средств.
Если при строительстве вам важна надежность, долговечность и красота дома, двускатная крыша – отличный выбор.

Почему именно "Академик Строй" — надежный партнер в реализации вашего проекта

Строительство дома — серьёзный и ответственный шаг. Компания "Академик Строй" зарекомендовала себя на рынке как профессиональный и ответственный подрядчик с богатым опытом в строительстве частных домов в Москве и области.

Чем выделяется "Академик Строй"?

  • Индивидуальный подход к каждому клиенту — проект не просто стандартный, но адаптируемый под ваши пожелания.
  • Комплексная поддержка — от подачи заявки на заказ проекта до сопровождения строительства.
  • Открытые цены и выгодные предложения — проект 16х12 191.7 м² доступен по отличной цене, что делает дом доступным без ущерба качеству.
  • Профессиональный коллектив — инженеры, архитекторы и строители с богатой практикой работы в Московском регионе.
  • Использование современных технологий и материалов — дом будет теплым, удобным и долговечным.
Обратившись в "Академик Строй", вы получаете все необходимые гарантии и качественную документацию для строительства и оформления.

Как заказать проект двухэтажного дома 16x12 – 191,7 м²

Процесс заказа проекта предельно прост и удобен. Вам достаточно связаться по телефону +7 (980) 800-47-93 и обсудить все детали. Вот как это обычно происходит:
  1. Вы звоните или оставляете заявку на сайте компании.
  2. Менеджер уточняет ваши пожелания и отвечает на все вопросы по проекту.
  3. Заключается договор, в котором прописаны все условия и сроки.
  4. Вам предоставляют полный комплект проектной документации.
  5. Вы приступаете к выбору строительной бригады или можете заказать строительство под ключ у "Академик Строй".
Все этапы прозрачные и понятные, а специалисты компании будут сопровождать вас на каждом шаге.

Как подготовить участок для строительства дома 16х12

Минимальные размеры участка, необходимые для реализации этого проекта — 24,20 м по ширине и 19,70 м по длине. Это важно учитывать, чтобы сохранить необходимые отступы для комфортной эксплуатации и соответствия нормам. Перед началом строительства стоит учесть следующие рекомендации:
  • Провести геодезическую съемку участка.
  • Определить расположение коммуникаций — вода, электричество, канализация.
  • Подготовить площадку — снять плодородный слой почвы и выровнять участок.
  • Подобрать тип фундамента согласно геологии участка и проектным рекомендациям.
  • Заранее согласовать проект с местными властями.
Тщательная подготовка создаст крепкую основу для надежного и долговечного дома.

Что еще важно знать о проекте двухэтажного дома 16х12

Предлагаемый проект — это не просто набор цифр и схем, а продуманное решение, которое можно адаптировать.

Интересные особенности проекта

  • Камин – одновременно элемент декора и дополнительный источник тепла, создающий неповторимую атмосферу уюта.
  • Наличие отдельной комнаты на первом этаже расширяет возможности использования дома — это может быть кабинет, игровая или даже гостевая спальня.
  • Терраса станет любимым местом для отдыха на свежем воздухе, утреннего кофе или семейных ужинов.
Такой дом идеально впишется в стиль загородного образа жизни и станет настоящим семейным гнездом.

Отделка и материалы

Компания "Академик Строй" предлагает широкий выбор материалов и решений для отделки дома, начиная от классического кирпича и заканчивая современными теплосберегающими панелями. Вы также можете обговорить с архитекторами варианты фасадного оформления и внутренней отделки, чтобы сделать дом полностью отвечающим вашему вкусу и бюджету.

Стоимость проекта и выгодные условия покупки

При цене, доступной для покупателей на уровне среднего ценового сегмента, проект двухэтажного дома 16x12 – 191,7 м² сочетает в себе качество, надежность и современный дизайн. Компания "Академик Строй" предлагает:
  • Гибкие условия оплаты.
  • Возможность заказа сметы на строительство.
  • Сопровождение клиента на каждом этапе — от выбора проекта до ввода дома в эксплуатацию.
  • Консультации по выбору материалов и оптимизации строительных затрат.
Если вы хотите построить надежный и комфортный дом с учетом всех ваших пожеланий, звоните по телефону +7 (980) 800-47-93 и закажите проект уже сегодня!

Почему 191.7 м² полезной площади — это чуть больше, чем вы ожидаете

Если сравнить с традиционными планировками, такая площадь отлично сбалансирована между жилыми и хозяйственными зонами. Это значит, что в доме хватит места не только для повседневной жизни, но и для размещения всей необходимой мебели, техники и даже зоны для хобби. 143 м² жилой площади позволяют делать акцент именно на комфортных спальнях и гостиной, не перегружая пространство коридорами и лишними коммуникационными зонами.

Выгода и комфорт по-настоящему

Ваш дом – это не просто крыша над головой, а пространство, которое вдохновляет, дарит покой и дает возможность реализовать мечты. Проект от "Академик Строй" поможет сделать этот шаг легко и уверенно, ведь здесь продумано все до мелочей — от площади и планировки до материалов и опций.

Заключение

В строительстве дома важно выбрать не только проект, но и надежного партнера. Двухэтажный дом размером 16х12 метров с полезной площадью 191.7 м² от компании "Академик Строй" — это сочетание оптимальной площади, современной архитектуры и функциональности. Воспользуйтесь выгодным предложением, сделайте первый звонок по телефону +7 (980) 800-47-93, и сделайте шаг к дому мечты в Москве!