Двухэтажный дом 19x11 м с полезной площадью 247,88 м²: современный подход к комфорту и пространству
Когда речь заходит о частном доме, размер и функциональность играют ключевую роль. Дом размером 19 на 11 метров — это отличный выбор для большой семьи, желающей получить просторное и удобное жилище. Полезная площадь в 247,88 квадратных метров позволяет разместить все необходимые зоны для жизни, работы и отдыха, не жертвуя комфортом. Такой дом способен вместить до пяти спален, что делает его оптимальным как для большой семьи, так и для гостей.
Планировка с двумя этажами — это классика, проверенная временем, дающая возможность эффективно разделить пространство на общественные и приватные зоны. Благодаря двускатной крыше сложной формы с углом наклона 45 градусов дом приобретает не только привлекательный внешний вид, но и улучшенные эксплуатационные характеристики, связанные с отводом снега и дождевой воды.
Габариты и архитектурные особенности
Главные размеры дома – 19 на 11 метров – создают прочную основу для эргономичной планировки. Дом высотой 9 метров располагается на участках минимальными параметрами 27,51 метра по ширине и 19,45 метра по длине, что означает удобство реализации проекта на стандартных загородных участках.
Одной из особенностей конструкции является двухскатная крыша сложной формы общей площадью 319 м². Угол наклона крыши в 45° обеспечивает эффективный отвод осадков и способность выдерживать нагрузки, характерные для регионов с умеренно суровым климатом. Благодаря такой форме крыши, также создается пространство для антресоли – дополнительного пространства, которое можно использовать под хранение или как дополнительную жилую зону.
Основные параметры дома в таблице
| Параметр | Значение |
|---|---|
| Полезная площадь | 247,88 м² |
| Общая площадь | 292,79 м² |
| Площадь застройки | 175,90 м² |
| Площадь нетто | 205,57 м² |
| Жилая площадь | 184,97 м² |
| Количество этажей | 2 этажа |
| Высота здания | 9 м |
| Объем брутто | 884 м³ |
| Угол наклона крыши | 45° |
| Площадь крыши | 319 м² |
| Минимальная ширина участка | 27,51 м |
| Минимальная длина участка | 19,45 м |
| Количество спален | 5+ |
| Количество санузлов | 2 |
Планировка и размещение комнат: как грамотно использовать площадь 247,88 м²
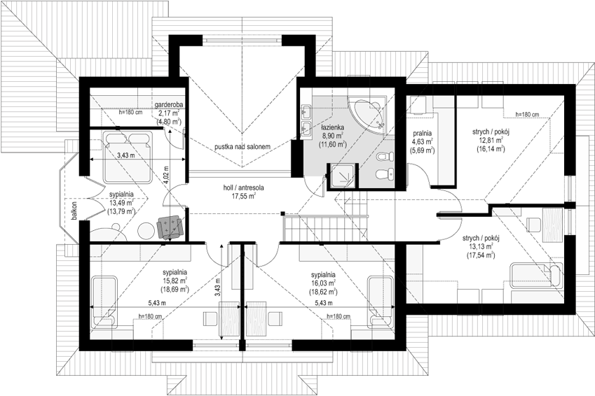
Одно из главных преимуществ этого дома — возможность разместить пять и более спален. Это делает проект особенно привлекательным для больших семей, а также для тех, кто ценит простор и хочет иметь отдельные комнаты для гостей, кабинеты или детские комнаты. Жилая площадь — почти 185 м² — дает возможность создать уютный и функциональный интерьер, удовлетворяющий разные потребности каждого члена семьи.
Четкое разделение этажей позволяет распределить зоны на личные и общественные. Первый этаж обычно отведен под гостиную, столовую, кухню и, возможно, гостевую комнату или кабинет. Второй этаж идеально подходит для размещения спален и санузлов, сохраняя приватность для каждого домочадца. Наличие двух санузлов значительно увеличивает удобство проживания для больших семей.
Типовое распределение помещений
- Первый этаж: просторная гостиная с камином, кухня-столовая, гостевая спальня или кабинет, санузел, комната для бытовых нужд.
- Второй этаж: четыре и более спальни, просторный санузел, антресоль (при необходимости - дополнительное пространство для отдыха или хранения).
Антресоль – это прекрасный способ использовать пространство под крышей, добавляя жилые или полезные зоны без значительного увеличения бюджета. Камин добавляет не только эстетики, но и уют, особенно в холодный сезон.
Архитектурные и декоративные элементы: эркер и терраса
В проекте дома учитываются такие опции, как эркер и терраса, которые значительно обогащают внешний и внутренний облик здания. Эркер позволяет увеличить полезную площадь и обеспечивает дополнительное освещение в зонах отдыха. Кроме того, эркер — прекрасный элемент для создания оригинального дизайна интерьера с удобными уголками для чтения или отдыха.
Терраса, хоть и не всегда обязательна, становится замечательной «пригородной гостиной». Это место, где можно устроить расслабляющие вечеринки на свежем воздухе, завтракать и наслаждаться природой, не выходя из дома.
Преимущества использования эркера и террасы
- Увеличение площади полезного и жилого пространства.
- Дополнительное естественное освещение и вентиляция.
- Возможность создания уникальных зон отдыха и приема гостей.
- Улучшение эстетики фасада дома.
Отсутствие гаража: стоит ли волноваться?
Двухэтажный дом 19x11 м не предусматривает встроенный гараж, что в первую очередь стоит воспринимать как возможность самому выбрать отдельное место для автомобиля или оборудовать навес. Отказ от гаража внутри постройки может позитивно сказаться на стоимости дома и позволит увеличить пространство внутренних помещений.
Если для вас важно наличие гаража, есть несколько вариантов решения. Его можно построить отдельно, что даст дополнительное пространство для хранения и защитит автомобиль от непогоды. Также навесы и парковочные места на участке – практичный и комфортный вариант, особенно если участок достаточно просторный.
Экономика строительства: анализ стоимости дома в 8 623 298 рублей
Цена проекта — 8 623 298 рублей — отражает высокое качество материалов, инженерных решений и современный дизайн. При бюджете более 8,6 миллиона рублей заказчик получает дом с внушительной площадью, продуманной планировкой и современными опциями, такими как камин и антресоль.
Стоимость включает не только «коробку» дома, но и инженерные системы, отделочные материалы и в некоторых случаях работы по благоустройству территории. При этом важно учитывать, что двухэтажный дом с габаритами 19x11 метров требует больших объёмов строительных материалов и значительных трудозатрат, что естественно отражается на конечной цене.
Что входит в стоимость строительства?
- Фундамент: заливка и гидроизоляция.
- Возведение стен и перекрытий.
- Кровельные работы с двускатной крышей сложной формы.
- Устройство оконных и дверных проемов.
- Установка инженерных коммуникаций (отопление, электричество, водоснабжение).
- Отделочные работы и декоративные элементы.
- Наличие камина и антресоли.
Важно планировать расходы заранее и сотрудничать с проверенными подрядчиками, чтобы избежать неожиданных затрат и задержек во время строительства.
Технические показатели дома: объем, высоты и площадь крыши
Объем здания — 884 м³ — является неплохим показателем для дома данной площади и этажности, демонстрируя хороший баланс между внутренними и внешними объёмами здания. Высота в 9 метров предоставляет достаточно места для комфортабельного размещения на двух уровнях, в том числе с использованием антресоли.
Площадь крыши в 319 м² и ее сложная форма двускатного типа позволяют не только эффективно распределять нагрузку от осадков, но и создавать оригинальный облик дома, который не останется незамеченным в вашем районе. Такой вид крыши также облегчает организацию чердачного пространства и способствует улучшению теплоизоляции.
Сводные технические характеристики
| Показатель | Значение |
|---|---|
| Объем брутто | 884 м³ |
| Высота здания | 9 м |
| Площадь крыши | 319 м² |
| Угол наклона крыши | 45° |
Инфраструктура и ландшафт: минимальные размеры участка и организация пространства
Построить такой дом можно на участке минимум 27,51 метра в ширину и 19,45 метра в длину. Это довольно удобные размеры, благодаря которым участок не требует лишнего расширения и подходит для многих типичных загородных территорий.
Планирование ландшафта вокруг дома позволит гармонично расположить зоны отдыха, хозяйственные постройки и сад. Использование пространства вокруг дома с эркером и террасой предоставляет возможности для уютных уголков, зоны барбекю или небольшого огорода. Важно заранее продумать, где разместить парковку, чтобы сохранить удобный подъезд и комфортные подъездные пути.
Рекомендуемые элементы планировки участка вокруг дома
- Зона отдыха с мебелью на террасе.
- Открытая парковка или навес для автомобилей.
- Зеленые насаждения и цветники рядом с эркером.
- Игровая площадка для детей или спортивный уголок.
- Хозяйственная зона для хранения садового инвентаря.
Хорошо спроектированный и обустроенный участок станет продолжением дома и подчеркивает общую концепцию роскоши и удобства.
Использование камина в интерьере: тепло и атмосфера уюта
Наличие камина в доме — это не просто практичный элемент отопления, но и центральный акцент гостиной или любой другой зоны отдыха. Камин создает особенную атмосферу, заряжая дом теплом и светом, а также становится местом притяжения для всей семьи в холодное время года.
Современные камины могут работать на разных видах топлива: дрова, газ, электричество, что позволяет выбрать оптимальный вариант с точки зрения затрат и удобства эксплуатации. Правильное размещение камина в доме улучшает распределение тепла, снижая нагрузку на центральное отопление и делая жилище более энергоэффективным.
Плюсы установки камина
- Создание уютной и расслабляющей атмосферы.
- Повышение эстетической ценности интерьера.
- Резервное отопление при отключении центральных систем.
- Возможность использования в качестве зоны встреч и отдыха.
Практические советы по выбору и строительству двухэтажного дома размером 19x11 м
При выборе проекта и последующем строительстве двухэтажного дома таких размеров стоит учесть несколько важных моментов, чтобы реализовать идею качественно и без лишних проблем. Во-первых, правильное зонирование и гибкость планировки должны позволять изменять интерьер под потребности семьи в долгосрочной перспективе.
Во-вторых, качество строительных и отделочных материалов напрямую влияет на длительность эксплуатации, энергоэффективность и внешний вид дома. При выборе нужно ориентироваться на проверенных производителей и современные технологии, способствующие сохранению тепла и шумоизоляции.
В-третьих, не стоит забывать про грамотное проектирование инженерных систем: отопления, электроснабжения, водоснабжения и канализации. Комплексный подход к этим вопросам предотвратит возможные проблемы при эксплуатации дома.
Рекомендации для успешного строительства
- Обратитесь к опытным архитекторам и строителям, специализирующимся на загородных домах.
- Изначально закладывайте в проект возможность перепланировки и расширения.
- Используйте качественную тепло- и звукоизоляцию для повышения комфортности.
- Выбирайте энергоэффективные окна и двери с хорошими показателями теплопередачи.
- Планируйте инженерные сети с учетом современных требований и стандартов.
- Продумайте систему вентиляции и кондиционирования для круглогодичного комфорта.
Итог: почему дом 19x11 с площадью 247,88 м² — это оптимальный выбор для вашей семьи
Этот проект сочетает в себе комфорт, простор и многофункциональность. Пять и более спален, удобное разделение зон, наличие антресоли и камина — все это обеспечивает высокий уровень жизни и эстетическую привлекательность. Дом с двускатной крышей сложной формы и грамотным использованием площади — выгодное инвестиционное решение для тех, кто хочет построить дом мечты.
Высокое качество материалов и отделки при цене в 8 623 298 рублей гарантирует долговечность и комфорт на многие годы. Продуманная планировка, оптимальные габариты дома и возможность адаптации под разные потребности делают проект универсальным и подходящим для любого климата и стиля жизни.



