Обзор проекта двухэтажного дома 15х18 – комфорт и простор на 262,35 м²
Проект двухэтажного дома размером 15 на 18 метров с общей полезной площадью 262,35 квадратных метров представляет собой современное и функциональное жилище для большой семьи. Этот дом сочетает в себе удобство планировки, продуманные технические решения и привлекательную архитектуру. С двумя полноразмерными этажами, пятью спальнями и двумя санузлами, он предназначен для тех, кто ищет пространство, комфорт и качество строительства в умеренном бюджете.
Стоимость такого дома составляет 9 782 989 рублей, что вполне оправдано благодаря качеству материалов, современным инженерным системам и продуманной эргономике. В этой статье мы подробно рассмотрим все особенности проекта, от планировки и конструктивных решений до выбора кровли и минимальных размеров участка.
Главные характеристики дома: размеры, площадь и этажность
Основные габариты дома составляют 15 на 18 метров, что дает внушительную площадь застройки в 198,41 м². Высота здания достигает 8,83 метра, что позволяет реализовать полноценный двухэтажный дом с комфортной высотой потолков и достаточным объемом внутренних помещений.
Полезная площадь внутреннего пространства равна 262,35 м², из которых жилая площадь занимает 205,80 м². Это важный показатель, который демонстрирует, что большая часть площади дома выделена под жилые комнаты, что делает его особенно удобным для проживания семьи из пяти и более человек.
Площадь нетто, равная 262,50 м², а также объем брутто в 1160 м³ дают представление о масштабах дома и о том, сколько воздуха и пространства он способен вместить внутри. Все размеры и объёмы расположены в гармонии, что способствует уюту и максимальному комфорту во время проживания.
Таблица основных характеристик дома 15х18
| Параметр | Значение |
|---|---|
| Размеры дома | 15 x 18 м |
| Полезная площадь | 262,35 м² |
| Жилая площадь | 205,80 м² |
| Площадь застройки | 198,41 м² |
| Площадь крыши | 285 м² |
| Высота здания | 8,83 м |
| Объем брутто | 1 160 м³ |
| Количество этажей | 2 |
| Угол наклона крыши | 25° |
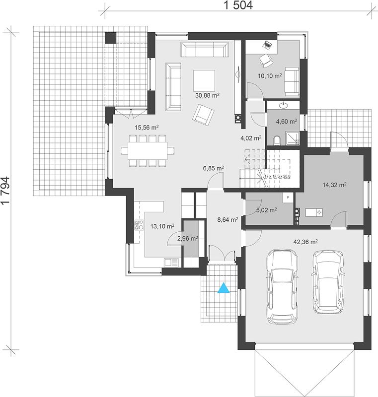
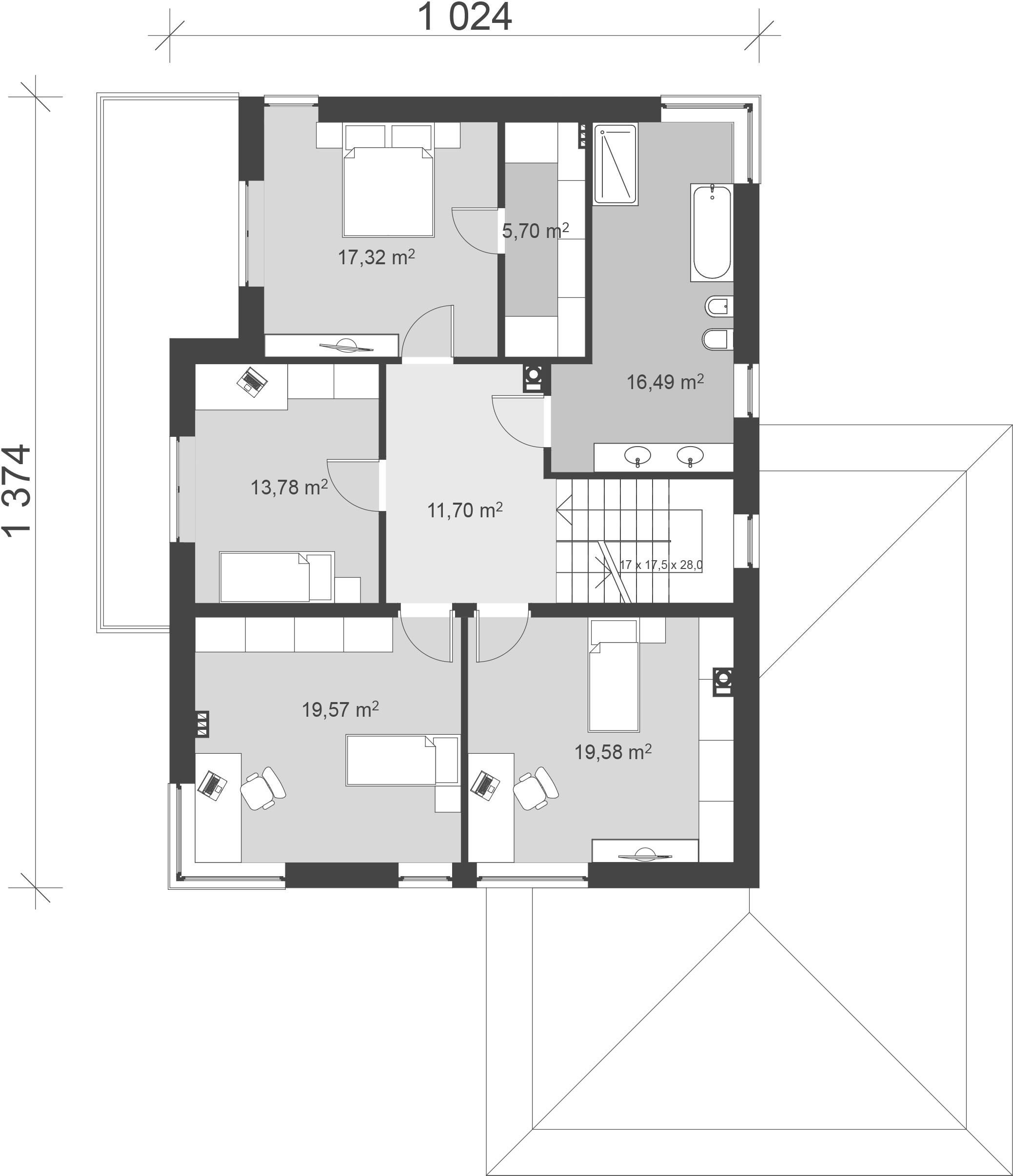
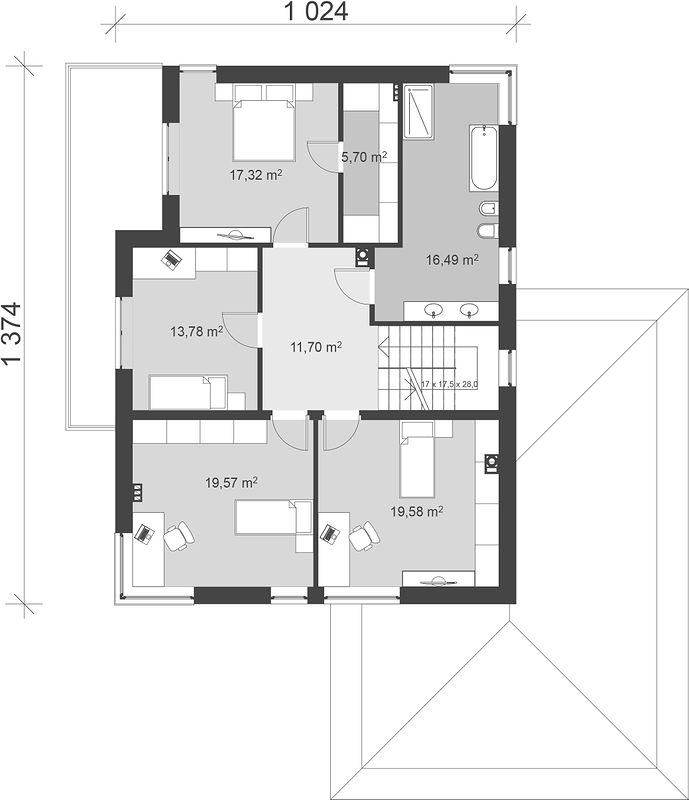
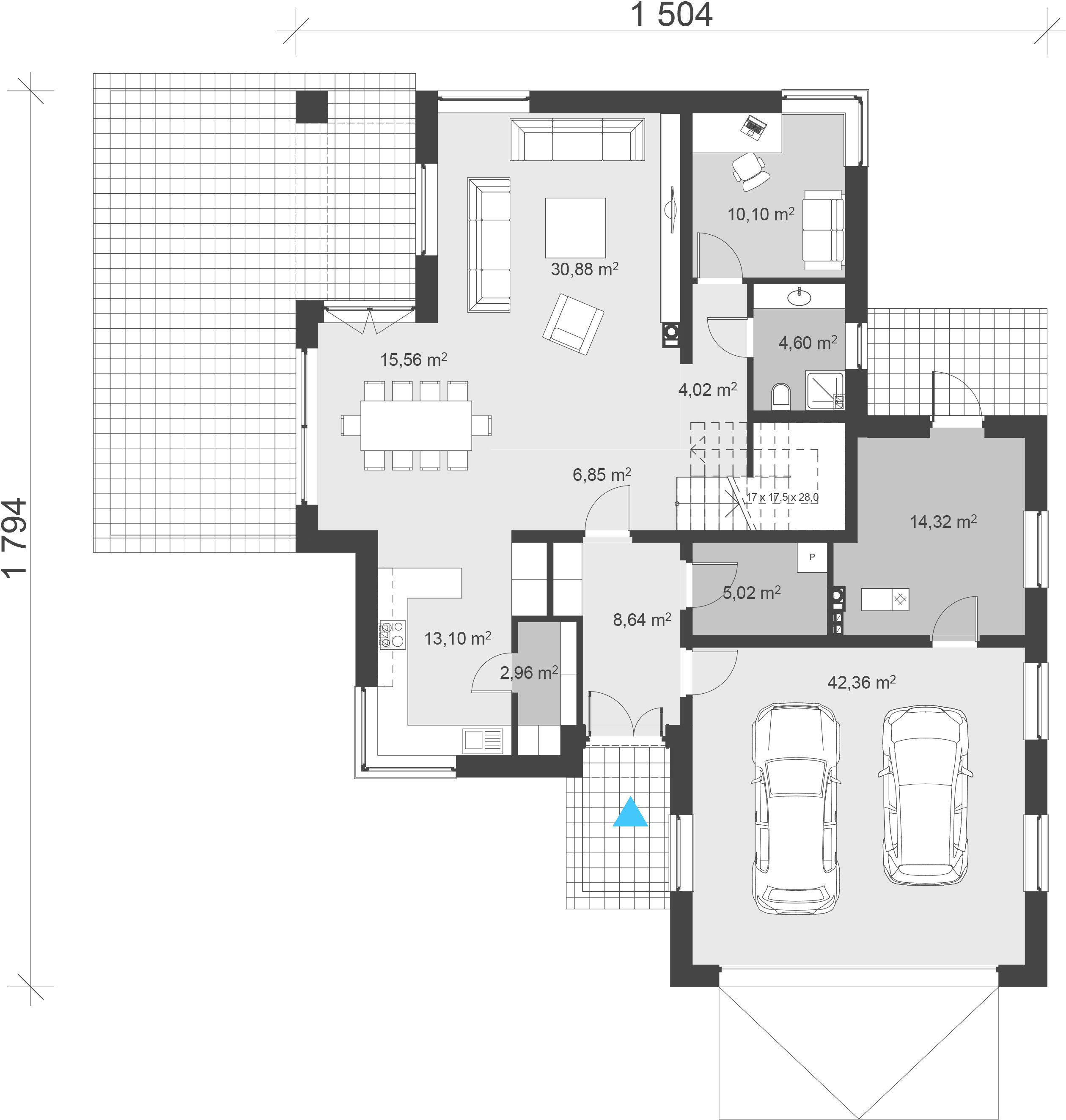
Планировка и функциональность: от спален до санузлов
Одной из ключевых особенностей данного проекта является наличие не менее пяти просторных спален, что обеспечивает каждому члену семьи личное пространство и комфорт. Дополнительные помещения можно использовать в качестве кабинетов, комнат для гостей или детских игровых зон, что делает дом универсальным и многофункциональным.
Дом оснащён двумя санузлами, что является оптимальным вариантом для семьи из пяти и более человек. Наличие нескольких ванных комнат существенно повышает уровень комфорта и удобства, особенно в утренние часы и перед сном.
Жилая площадь в 205,80 м² указывает на то, что большая часть пространства выделена под зоны отдыха, что говорит о грамотном подходе к зонированию дома. Просторные гостиные, столовые и спальни создают атмосферу уюта и позволяют не чувствовать себя тесно даже в большой компании.
Список основных жилых помещений в доме
- 5 и более спален — зона отдыха для каждого члена семьи
- Комнаты для работы и отдыха — многофункциональные пространства
- Два санузла — удобство для большой семьи
- Просторная гостиная и кухня — для проведения семейных мероприятий
Архитектура и конструктивные особенности: крыша и фасад
Дом имеет сложную форму кровли, которая представляет собой сочетание двускатной и вальмовой конструкции. Такая форма крыши выгодно выделяет архитектуру дома, придавая ему изысканный внешний вид, а также обеспечивает эффективный отвод осадков и надежную защиту от атмосферных воздействий.
Площадь крыши составляет 285 м², что позволяет использовать качественные и долговечные кровельные материалы, такие как металлочерепица или керамическая черепица. Угол наклона кровли 25° – оптимальный вариант для регионов с умеренным климатом, он обеспечивает хорошую вентиляцию подкровельного пространства и способствует долгосрочной сохранности кровельного покрытия.
Особенности кровли
- Сложная форма: комбинация двускатной и вальмовой конструкции
- Площадь — 285 м², что позволяет использовать качественные оболочки
- Угол наклона 25°, обеспечивающий надежный отвод влаги и снега
Территория и участок: минимальные требования по размерам
Минимальные размеры земельного участка под строительство такого дома составляют 24,59 метра по ширине и 25,94 метра по длине. Эти параметры необходимо учитывать при выборе участка, чтобы дом можно было комфортно разместить с учетом отступов, инженерных подведений и зон отдыха на участке.
При таких размерах участка обеспечивается не только достаточное поле для самого дома, но и для создания приусадебной территории с элементами ландшафтного дизайна, зоной барбекю или детской площадкой. Такой участок позволяет гармонично вписать дом в окружающую среду и обеспечить удобство проживания.
Опции и дополнительные возможности проекта
Проект двухэтажного дома 15х18 м предусматривает ряд дополнительных опций, которые делают проживание более комфортным и уютным. В частности, в доме предусмотрен камин — это не только источник тепла, но и элемент декора, создающий атмосферу домашнего уюта и тепла в прохладное время года.
Также в проекте выделена комната на первом этаже, которая может быть использована как гостевая, кабинет, библиотека или игровая комната для детей. Наличие террасы позволяет организовать открытое пространство для отдыха и встреч на свежем воздухе, сохраняя связь с природой и одновременно обеспечивая комфортные условия для пребывания.
Основные дополнительные опции
- Камин — уют и дополнительный обогрев жилых помещений
- Комната на первом этаже — функциональное пространство под разные нужды
- Терраса — идеальное место для отдыха и общения на свежем воздухе
Экономический аспект строительства: цена дома и оправданность инвестиций
Стоимость проекта составляет приблизительно 9 782 989 рублей, что можно считать разумной инвестицией для жилого дома площадью более 260 м² с соответствующим качеством материалов и уровнем комфорта. В цену включены проектные работы, материалы и основные строительные работы, что позволяет избежать неожиданных расходов и затягивания сроков.
При сравнении с аналогичными предложениями на рынке двухэтажных коттеджей данного класса и размера, стоимость находится в нормальном диапазоне. Важно понимать, что хороший проект с грамотной планировкой и надежными конструктивными решениями позволяет не только комфортно проживать, но и повысить стоимость недвижимости в будущем при возможной продаже.
Преимущества разумных инвестиций
- Долгосрочная экономия на эксплуатации дома за счёт качественных материалов
- Комфорт и функциональность, снижающие потребность в ремонтах и перепланировках
- Высокий уровень энергосбережения при грамотно выполненных инженерных системах
Заключение о проекте двухэтажного дома 15х18 м
Проект дома размером 15 на 18 метров с двухэтажной планировкой и общей полезной площадью более 260 квадратных метров идеально подходит для большой семьи, ценящей комфорт, качество и функциональность. Наличие пяти и более спален, два современных санузла, а также продуманные архитектурные решения позволяют создать уютный и просторный дом, который станет настоящим семейным гнездом на долгие годы.
Сочетание современного дизайна сложной кровли и разумного экономического подхода делает данный проект выгодным вложением средств, способным обеспечить высокий уровень жизни и удовольствие от проживания в собственном доме.




