Двухэтажный дом 14x14 м в Москве – идеальное решение для большой семьи
Если вы мечтаете о просторном и комфортном доме, который гармонично впишется в городской ландшафт Москвы, то двухэтажный дом размером 14 на 14 метров – это то, что вам нужно. Компания «Академик Строй» представляет проект с полезной площадью 162,6 м², рассчитанный на комфортное размещение большой семьи и максимально функциональной организацией пространства. В этой статье я расскажу, почему этот проект заслуживает вашего внимания, на что стоит обратить внимание при его выборе и какие преимущества вы получаете, заказав его именно у «Академик Строй».
Стоит сразу отметить, что дом продуман до мелочей – здесь удобно и родителям, и детям, и гостям. Спроектирован он с расчетом на комфорт и практичность, что особенно важно в условиях городской застройки, где площадь участка и архитектурные ограничения имеют большое значение. При этом дом сохраняет привлекательный внешний вид и благородный стиль, который придаст статус любому владельцу.
Размеры и общая площадь: почему 14х14 – оптимальный формат для загородного дома
Дом с размером 14 на 14 метров – это классика, проверенная временем. Почему? Во-первых, квадратная или почти квадратная форма дома снижает потери полезного пространства на коридорах и технических зонах. Во-вторых, такой формат идеально вписывается даже в не слишком большие участки, с минимальной шириной и длиной участка 21,5 метра, что характерно для многих московских окраин и дачных поселков.
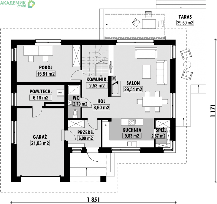
Полезная площадь в 162,6 м² предоставляет достаточный простор для полноценной комфортной жизни всей семьи. Здесь можно разместить всё необходимое для жизни без компромиссов: четыре спальни, три санузла, просторные гостиные зоны и даже дополнительную комнату на первом этаже. Важно отметить, что жилая площадь дома составляет 134,6 м² – пространства, которое вы реально используете для отдыха и жизни, без технических и подсобных помещений.
| Параметр | Значение |
|---|---|
| Размеры дома | 14 х 14 м |
| Полезная площадь | 162,6 м² |
| Жилая площадь | 134,6 м² |
| Площадь застройки | 144,5 м² |
| Площадь крыши | 230 м² |
| Высота здания | 8,1 м |
| Количество этажей | 2 |
Этажность и внутреннее зонирование
Двухэтажный формат – золотая середина между удобством и функцией. Он позволяет эффективно отделить дневные общественные зоны от приватных. В нашем проекте на первом этаже предусмотрена просторная гостиная и кухня, а также дополнительная комната, которая может служить кабинетом, игровой или гостевой спальней. Это особенно удобно, если вы цените возможность уединиться в любое время без необходимости подниматься наверх.
Второй этаж полностью посвещен приватной жизни семьи: здесь расположены четыре спальни и три санузла, что позволяет избежать привычной для многих семей утренней очереди в ванную. Такая планировка делает жизнь комфортной как для родителей, так и для детей, а иногда и для гостей или родственников, которые приезжают на посещение.
Преимущества двух этажей
- Оптимальное разделение пространства на общественные и приватные зоны.
- Экономия участка – большой дом на небольшом фундаменте.
- Возможность организовать вид из окон на разные стороны с разной интенсивностью солнечного света.
- Удобство и комфорт при проживании нескольких поколений семьи.
Крыша и фасад – эстетика и надежность
Одним из ключевых архитектурных решений этого дома является крыша сложной формы – двускатная и вальмовые элементы. Угол наклона кровли 37° обеспечивает эффективный сток воды и снега в зимние месяцы, что крайне важно для московского климата. Площадь крыши составляет внушительные 230 м², что позволяет выбирать материалы для кровли с учетом долговечности и энергоэффективности.
Кроме прочности и функциональности, подобный дизайн крыши придает дому индивидуальность и солидность во внешнем облике. Высота здания – 8,1 м – соответствует современным строительным нормам, при этом облик дома остается изящным и пропорциональным.
Плюсы двускатной и вальмовой крыши
- Хорошая устойчивость к ветровым нагрузкам.
- Возможность использования мансардного пространства.
- Эстетичный и традиционный внешний вид.
- Повышенная долговечность и надежность конструкции.
Комфорт и практичность: спальни и санузлы
Для многих семьей важнейшим параметром при выборе дома становится именно планировка спален и санузлов. Наша модель предусматривает четыре отдельные спальни, что уже говорит о максимально удобном размещении членов семьи без стеснения и необходимости делить пространство. Каждая спальня достаточно просторна для установки стандартной мебели, а благодаря продуманной планировке ловит естественный свет в течение всего дня.
Особое внимание уделено санузлам – их в доме три, что считается оптимальным количеством для семьи средних и больших размеров. Эта особенность значительно повышает качество жизни, особенно когда речь идет о доме с двумя этажами, где дополнительные точки для гигиены крайне необходимы для минимизации очередей и потоков утром и вечером.
Обзор спален и санузлов
| Тип помещения | Количество | Назначение |
|---|---|---|
| Спальни | 4 | Размещение членов семьи |
| Санузлы | 3 | Комфорт и удобство |
Технические и дополнительные опции: камин, комната на первом этаже, терраса
Проект дома от «Академик Строй» разработан с учетом современных требований к комфорту. В доме предусмотрен камин – эта деталь не только придаёт уют и особенную атмосферу в холодные московские вечера, но и может служить дополнительным источником отопления. Камин в гостиной делает ее центром притяжения всей семьи, местом сбора за разговорами и теплыми посиделками.
Кроме того, на первом этаже расположена отдельная комната, которую можно адаптировать под кабинет, игровую зону или гостиную спальню. Это удобно и многофункционально – такая гибкость особенно ценится в условиях современного ритма жизни, когда при необходимости дома можно работать или полностью расслабляться.
Немаловажным элементом является терраса – место для отдыха на свежем воздухе, проведение застолий и общения с природой. В московском климате терраса отлично впишется в летний сезон, а ее наличие всегда радует собственников и гостей дома. Именно такие мелочи создают уют и делают жизнь вне города комфортной и приятной.
Дополнительные опции проекта
- Камин для уюта и дополнительного отопления.
- Отдельная комната на первом этаже для гибкого использования.
- Терраса – место для отдыха и общения летом.
Почему стоит заказать проект именно в компании «Академик Строй»?
Существует множество компаний, предлагающих проекты частных домов, но «Академик Строй» занимает уникальную нишу, сочетая высокое качество, оптимальную цену и индивидуальный подход к каждому клиенту. При заказе проекта двухэтажного дома размером 14 на 14 метров в компании вы получаете не просто набор чертежей, а полноценное решение, учитывающее все особенности участка, архитектурные пожелания, а также требования по комфорту семейной жизни.
Компания предлагает полную техническую поддержку: от выбора участка, согласования проекта, разработки инженерных коммуникаций до контроля строительства на всех этапах. Цена на проект остаётся привлекательной благодаря оптимизации процессов и налаженным связям с поставщиками. В вашем распоряжении опытные архитекторы и инженеры, которые сделают все, чтобы ваш дом стал не только красивым, но и надежным, энергоэффективным и удобным для жизни.
Ключевые преимущества сотрудничества с «Академик Строй»
- Гарантия качества и профессионализм команды.
- Уникальные проекты с учетом климатических условий Москвы.
- Гибкие условия оплаты и недорогая цена проектов.
- Поддержка на всех этапах строительства.
- Индивидуальный подход и возможность доработки проектов.
Как заказать проект: просто и удобно
Если вы готовы сделать первый шаг к дому вашей мечты, то заказать проект двухэтажного дома 14х14 от компании «Академик Строй» можно просто по телефону. Специалисты компании готовы подробно рассказать обо всех тонкостях, подобрать оптимальное решение именно для вашего участка и семьи, а также оперативно оформить заказ.
Связаться можно по номеру +7 (980) 800-47-93 – звоните в удобное для вас время, и получите бесплатную консультацию, а также персональное коммерческое предложение. Компания отличается прозрачной политикой ценообразования, где стоимость проектов доступна и адекватна рынку, при этом качество остается на высоте.
Краткий итог по ключевым характеристикам дома
| Характеристика | Описание |
|---|---|
| Площадь дома | Полезная 162,6 м², жилая 134,6 м² |
| Габариты | 14 х 14 м |
| Этажность | 2 этажа |
| Спальни | 4 |
| Санузлы | 3 |
| Крыша | Двускатная с вальмовыми элементами, угол наклона 37°, площадь 230 м² |
| Высота дома | 8,1 м |
| Опции | Камин, комната на первом этаже, терраса |
Не упустите возможность стать владельцем современного, практичного и стильного дома, который создаст уют и комфорт на долгие годы. Проект двухэтажного дома 14х14 от компании «Академик Строй» – это сочетание решений, проверенных временем, и инноваций, позволяющих максимально эффективно использовать пространство и территория участка.
Звоните, консультируйтесь и начинайте путь к дому своей мечты уже сегодня!



