Двухэтажный дом 15x10 - 170.59 м2 за руб.

ID-75364

Стоимость дома 5558714 руб.
154 м2 Полезная
площадь
15 x 10 м Размеры
2 этажа Этажей
26 м2 Террасы
и балконы
2Без
гаража
3 Количество
спален
2 Количество
санузлов

Планировки

План первого этажа

floor image
  • 1. Прихожая 4,11 m²
  • 2. Ванная комната 2,93 m²
  • 3. Коридор 0,99 m²
  • 4. Гостиная + столовая 33,45 m²
  • 5. Кухня 8,12 m²
  • 6. Кладовая 1,90 m²
  • 7. Гараж на 2 машины 36,50 m²
  • 8. Кладовая 4,76 m²
  • План первого этажа 92,76 m²

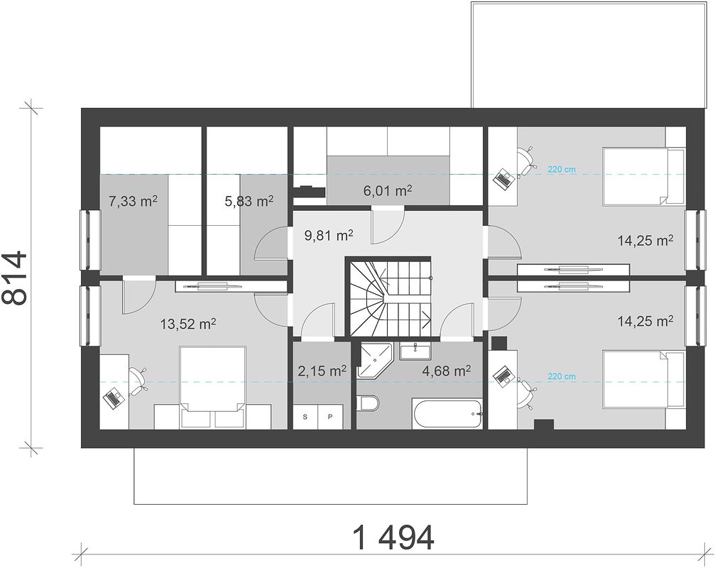
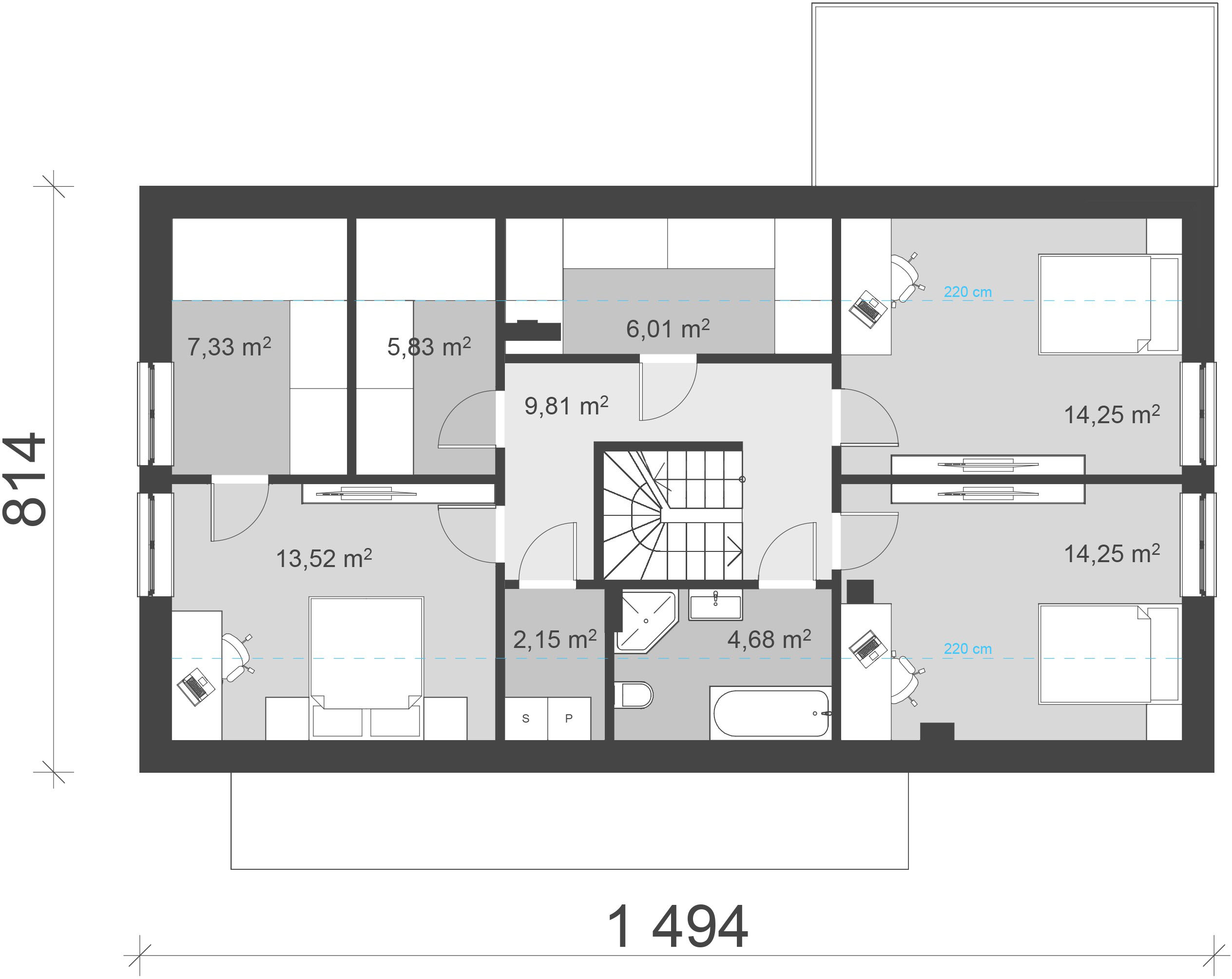
План мансарды

floor image
  • 1. Коридор 9,81 m²
  • 2. Комната 13,52 m²
  • 3. Гардероб 7,33 m²
  • 4. Гардероб 5,83 m²
  • 5. Гардероб 6,01 m²
  • 6. Комната 14,25 m²
  • 7. Комната 14,25 m²
  • 8. Ванная комната 4,68 m²
  • 9. Кладовая 2,15 m²
  • План мансарды 77,83 m²

Фасады

Передний
Задний
Левый
Правый
Передний
Задний
Левый
Правый

Подробная информация

Жилая площадь
129,33 m²
icon

Сумма площади всех жилых помещений, за вычетом пов. гараж, котельная, чердак, подвал. Учитывается в 100%, для помещений высотой более 2,2 м, в 50% для помещений с высотой 2,2-1,4 м и не включается для более низких помещений (меньше 1,4 м).

Площадь застройки
118,03 m²
icon

Площадь застройки здания определяется как площадь горизонтального сечения по внешнему обводу здания на уровне цоколя, включая выступающие части.

Площадь нетто
170,59 m²
icon

Площадь всех помещений в здании, измеренная на высоте пола.

Объем брутто
655 m³
icon

Как правило, это сумма объема всех помещений в здании, подсчитанных по внешнему контуру стены (с утеплением).

Площадь крыши
186 m²
icon

Угол наклона крыши
35°
icon

Наклон ската крыши в градусах. Внимание! В некоторых проектах возникает более чем один наклон крыши.

Высота здания
7,68 m
icon

Высота измеряется от поверхности земли до самой высокой точки кровли (конька), за исключением дымоходов.

Ширина фасада
14,94 m
icon

Мин. ширина участка
22,94 m
icon

Наименьшая возможная ширина участка, необходимая для строительства выбранного дома. Состоит из длины фасада дома плюс с обеих сторон три метра отступ.

Мин. длина участка
17,64 m
icon

Наименьшая возможная длина участка, необходимая для строительства выбранного дома. Состоит из длины фасада дома плюс с обеих сторон три метра отступ.

Материалы и опции
Общие
Цена, руб.
Площадь м²
220
Площадь от и до
Ежемесячный платёж, руб
Количество спален
3
Гараж
2
Количество санузлов
2
Тип крыши
Ширина
15
Глубина
10

Площади дома

№ п/п Наименование Ед. из. Строительная площадь Полезная площадь
1 1 этаж м2 114.31 92.76
2 2 этаж м2 95.91 77.83
3 Итого м2 210.22 170.59

ПРИГЛАШАЕМ НА ДЕНЬ ОТКРЫТЫХ ДВЕРЕЙ СТРОЯЩЕГОСЯ ДОМА

ХОЧУ ПОЕХАТЬ
День открытых дверей

Калькулятор опций

0

В ипотеку от 18 527 ₽/мес.

Фундамент
stdClass Object ( [id] => 1 [attribute_id] => 1 [name] => Ленточный монолитный ж/б [material_modifier] => 1 [work_modifier] => 1 [options] => Array ( [0] => размер 200 х 700 мм [1] => размер 300 х 900 мм [2] => размер 400 х 1 000 мм [3] => размер 500 х 1 100 мм [4] => размер 600 х 1 200 мм ) [days] => [20,21,22,25,30] [material_price] => [2823,3630,4475,5210,12047] [work_price] => [2154,2826,3731,4577,5293] [image] => https://akademik-stroy.ru/wp-content/uploads/materials/lentochnyj-monolitnyj-zh-b.jpg [area_modifier] => 114.31 [parent_name] => Фундамент [parent_id] => 1 [material_sum] => 406598 [work_sum] => 258535 [total_sum] => 665133 [total_days] => 20 [display_material_sum] => 406 598 [display_work_sum] => 258 535 [display_total_sum] => 665 133 ) 1
665 133
Работа:258 535
Материалы:406 598
Дни:20
stdClass Object ( [id] => 2 [attribute_id] => 1 [name] => Забивные Ж/Б сваи [material_modifier] => 1 [work_modifier] => 1 [options] => Array ( [0] => 150х150х3000мм [1] => 150х150х4000мм [2] => 200х200х3000мм [3] => 200х200х4000мм [4] => 200х200х5000мм [5] => 200х200х6000мм ) [days] => [2,2,2,2,2,2] [material_price] => [1990,2850,3255,4360,5120,6837] [work_price] => [1002,1185,1336,1438,1574,1839] [image] => https://akademik-stroy.ru/wp-content/uploads/materials/zabivnye-zh-b-svai.png [area_modifier] => 114.31 [parent_name] => Фундамент [parent_id] => 1 [material_sum] => 286621 [work_sum] => 120266 [total_sum] => 406887 [total_days] => 2 [display_material_sum] => 286 621 [display_work_sum] => 120 266 [display_total_sum] => 406 887 ) 1
406 887
Работа:120 266
Материалы:286 621
Дни:2
stdClass Object ( [id] => 71 [attribute_id] => 1 [name] => Свайно-ростверковый ж/б [material_modifier] => 1 [work_modifier] => 1 [options] => Array ( [0] => ростверк 200х300 мм [1] => ростверк 300х600 мм [2] => ростверк 400х900 мм [3] => ростверк 500х1200 мм ) [days] => [20,23,25,27] [material_price] => [3018,3474,7109,9792] [work_price] => [2024,3012,5635,7022] [image] => https://akademik-stroy.ru/wp-content/uploads/materials/svajno-rostverkovyj-monolitnyj-zh-b-3.png [area_modifier] => 114.31 [parent_name] => Фундамент [parent_id] => 1 [material_sum] => 434684 [work_sum] => 242932 [total_sum] => 677616 [total_days] => 20 [display_material_sum] => 434 684 [display_work_sum] => 242 932 [display_total_sum] => 677 616 ) 1
677 616
Работа:242 932
Материалы:434 684
Дни:20
stdClass Object ( [id] => 72 [attribute_id] => 1 [name] => Монолитная ж/б плита [material_modifier] => 1 [work_modifier] => 1 [options] => Array ( [0] => 200 мм [1] => 300 мм [2] => 400 мм [3] => 500 мм [4] => 600 мм ) [days] => [30,33,35,37,40] [material_price] => [5348,8555,12788,14388,15189] [work_price] => [4314,4881,7037,8061,10230] [image] => https://akademik-stroy.ru/wp-content/uploads/materials/monolitnaya-zhb-plita.png [area_modifier] => 114.31 [parent_name] => Фундамент [parent_id] => 1 [material_sum] => 770276 [work_sum] => 517790 [total_sum] => 1288066 [total_days] => 30 [display_material_sum] => 770 276 [display_work_sum] => 517 790 [display_total_sum] => 1 288 066 ) 1
1 288 066
Работа:517 790
Материалы:770 276
Дни:30
stdClass Object ( [id] => 73 [attribute_id] => 1 [name] => Утепленная шведская плита [material_modifier] => 1 [work_modifier] => 1 [options] => Array ( [0] => 200 мм [1] => 300 мм [2] => 400 мм [3] => 500 мм [4] => 600 мм ) [days] => [32,37,39,42,45] [material_price] => [10249,12692,13760,14936,16230] [work_price] => [5960,7337,8072,8878,9765] [image] => https://akademik-stroy.ru/wp-content/uploads/materials/uteplennaya-shvedskaya-plita.jpg [area_modifier] => 114.31 [parent_name] => Фундамент [parent_id] => 1 [material_sum] => 1476170 [work_sum] => 715352 [total_sum] => 2191522 [total_days] => 32 [display_material_sum] => 1 476 170 [display_work_sum] => 715 352 [display_total_sum] => 2 191 522 ) 1
2 191 522
Работа:715 352
Материалы:1 476 170
Дни:32
stdClass Object ( [id] => 75 [attribute_id] => 1 [name] => Ленточный из ФБС [material_modifier] => 1 [work_modifier] => 1 [options] => Array ( [0] => толщ. 300 мм [1] => толщ. 400 мм [2] => толщ. 500 мм [3] => толщ. 600 мм ) [days] => [20,20,20,20] [material_price] => [3675,4902,6126,7350] [work_price] => [2451,3264,4083,4902] [image] => https://akademik-stroy.ru/wp-content/uploads/materials/lentochnyj-iz-fbs.png [area_modifier] => 114.31 [parent_name] => Фундамент [parent_id] => 1 [material_sum] => 529312 [work_sum] => 294183 [total_sum] => 823495 [total_days] => 20 [display_material_sum] => 529 312 [display_work_sum] => 294 183 [display_total_sum] => 823 495 ) 1
823 495
Работа:294 183
Материалы:529 312
Дни:20
stdClass Object ( [id] => 76 [attribute_id] => 1 [name] => Цокольный этаж из ФБС [material_modifier] => 1 [work_modifier] => 1 [options] => Array ( [0] => толщ. 300 мм [1] => толщ. 400 мм [2] => толщ. 500 мм [3] => толщ. 600 мм ) [days] => [30,32,34,36] [material_price] => [20916,23299,26680,29060] [work_price] => [17524,18700,19873,21046] [image] => https://akademik-stroy.ru/wp-content/uploads/materials/cokolnyj-ehtazh-iz-fbs.jpg [area_modifier] => 114.31 [parent_name] => Фундамент [parent_id] => 1 [material_sum] => 3012544 [work_sum] => 2103327 [total_sum] => 5115871 [total_days] => 30 [display_material_sum] => 3 012 544 [display_work_sum] => 2 103 327 [display_total_sum] => 5 115 871 ) 1
5 115 871
Работа:2 103 327
Материалы:3 012 544
Дни:30
stdClass Object ( [id] => 77 [attribute_id] => 1 [name] => Цокольный этаж монолитный ж/б [material_modifier] => 1 [work_modifier] => 1 [options] => Array ( [0] => толщ. 200 мм [1] => толщ. 300 мм [2] => толщ. 400 мм [3] => толщ. 500 мм [4] => толщ. 600 мм ) [days] => [40,42,44,46,48] [material_price] => [25421,29148,32275,35602,37326] [work_price] => [20441,21907,23375,24841,26306] [image] => https://akademik-stroy.ru/wp-content/uploads/materials/cokolnyj-etazh-zh-b.jpg [area_modifier] => 114.31 [parent_name] => Фундамент [parent_id] => 1 [material_sum] => 3661402 [work_sum] => 2453441 [total_sum] => 6114843 [total_days] => 40 [display_material_sum] => 3 661 402 [display_work_sum] => 2 453 441 [display_total_sum] => 6 114 843 ) 1
6 114 843
Работа:2 453 441
Материалы:3 661 402
Дни:40
stdClass Object ( [id] => 191 [attribute_id] => 1 [name] => Винтовые сваи [material_modifier] => 1 [work_modifier] => 1 [options] => Array ( [0] => 57х200мм [1] => 76х250мм [2] => 108х300мм [3] => 133х350мм ) [days] => [1,1,2,2] [material_price] => [1200,1300,1450,1600] [work_price] => [400,600,900,1100] [image] => https://akademik-stroy.ru/wp-content/uploads/materials/vintovye-svai.png [area_modifier] => 114.31 [parent_name] => Фундамент [parent_id] => 1 [material_sum] => 172837 [work_sum] => 48010 [total_sum] => 220847 [total_days] => 1 [display_material_sum] => 172 837 [display_work_sum] => 48 010 [display_total_sum] => 220 847 ) 1
220 847
Работа:48 010
Материалы:172 837
Дни:1
Перекрытие цоколя
stdClass Object ( [id] => 3 [attribute_id] => 2 [name] => Деревянные балки [material_modifier] => 1 [work_modifier] => 1 [options] => Array ( [0] => без утепления [1] => утепление 200 мм [2] => утепление 250 мм [3] => утепление 300 мм [4] => утепление 350 мм [5] => утепление 400 мм [6] => утепление 450 мм [7] => утепление 500 мм ) [days] => [8,9,9,9,11,12,13,14] [material_price] => [1634,2042,2344,2947,3149,3652,3354,3557] [work_price] => [1230,1339,1393,1426,1460,1513,1587,1620] [image] => https://akademik-stroy.ru/wp-content/uploads/materials/derevyannye-balki.png [area_modifier] => 114.31 [parent_name] => Перекрытие цоколя [parent_id] => 2 [material_sum] => 235346 [work_sum] => 147631 [total_sum] => 382977 [total_days] => 8 [display_material_sum] => 235 346 [display_work_sum] => 147 631 [display_total_sum] => 382 977 ) 1
382 977
Работа:147 631
Материалы:235 346
Дни:8
stdClass Object ( [id] => 4 [attribute_id] => 2 [name] => Сборные ж/б плиты [material_modifier] => 1 [work_modifier] => 1 [options] => Array ( [0] => без утепления [1] => утепление 150мм [2] => утепление 200мм [3] => утепление 250мм [4] => утепление 300мм [5] => утепление 350мм [6] => утепление 400мм [7] => утепление 450мм [8] => утепление 500мм ) [days] => [13,15,15,15,15,15,15,15,15] [material_price] => [3067,5577,5928,6679,7730,8782,9833,10884,11935] [work_price] => [1520,1956,2102,2247,2392,2537,2684,2829,2974] [image] => https://akademik-stroy.ru/wp-content/uploads/materials/sbornye-zh-b-plity-2.jpg [area_modifier] => 114.31 [parent_name] => Перекрытие цоколя [parent_id] => 2 [material_sum] => 441742 [work_sum] => 182439 [total_sum] => 624181 [total_days] => 13 [display_material_sum] => 441 742 [display_work_sum] => 182 439 [display_total_sum] => 624 181 ) 1
624 181
Работа:182 439
Материалы:441 742
Дни:13
stdClass Object ( [id] => 78 [attribute_id] => 2 [name] => Монолитная ж/б плита [material_modifier] => 1 [work_modifier] => 1 [options] => Array ( [0] => без утепления [1] => утепление 150 мм [2] => утепление 200 мм [3] => утепление 250 мм [4] => утепление 300 мм [5] => утепление 350 мм [6] => утепление 400 мм [7] => утепление 450 мм [8] => утепление 500 мм ) [days] => [18,20,20,20,20,20,20,20,20] [material_price] => [4837,6572,7224,7375,79426,8177,8728,9180,10031] [work_price] => [3348,3921,4112,4302,4493,4684,4875,5066,5256] [image] => https://akademik-stroy.ru/wp-content/uploads/materials/monolitnaya-zh-b-plita-2.jpg [area_modifier] => 114.31 [parent_name] => Перекрытие цоколя [parent_id] => 2 [material_sum] => 696676 [work_sum] => 401845 [total_sum] => 1098521 [total_days] => 18 [display_material_sum] => 696 676 [display_work_sum] => 401 845 [display_total_sum] => 1 098 521 ) 1
1 098 521
Работа:401 845
Материалы:696 676
Дни:18
Стены 1 этаж (несущие)
stdClass Object ( [id] => 6 [attribute_id] => 3 [name] => Пеноблок [material_modifier] => 1 [work_modifier] => 1 [options] => Array ( [0] => 300 мм [1] => 400 мм [2] => 500 мм [3] => 600 мм ) [days] => [29,31,34,39] [material_price] => [3000,4000,4500,4937] [work_price] => [5033,5805,6400,8710] [image] => https://akademik-stroy.ru/wp-content/uploads/materials/penoblok.jpg [area_modifier] => 114.31 [parent_name] => Стены 1 этаж (несущие) [parent_id] => 3 [material_sum] => 432092 [work_sum] => 604088 [total_sum] => 1036180 [total_days] => 29 [display_material_sum] => 432 092 [display_work_sum] => 604 088 [display_total_sum] => 1 036 180 ) 1
1 036 180
Работа:604 088
Материалы:432 092
Дни:29
stdClass Object ( [id] => 79 [attribute_id] => 3 [name] => Керамический блок [material_modifier] => 1 [work_modifier] => 1 [options] => Array ( [0] => 380 мм [1] => 380 мм Thermo [2] => 440 мм [3] => 510 мм ) [days] => [23,23,24,25] [material_price] => [4510,5098,6093,8013] [work_price] => [4737,4937,5903,6958] [image] => https://akademik-stroy.ru/wp-content/uploads/materials/keramicheskij-blok.jpg [area_modifier] => 114.31 [parent_name] => Стены 1 этаж (несущие) [parent_id] => 3 [material_sum] => 649578 [work_sum] => 568561 [total_sum] => 1218139 [total_days] => 23 [display_material_sum] => 649 578 [display_work_sum] => 568 561 [display_total_sum] => 1 218 139 ) 1
1 218 139
Работа:568 561
Материалы:649 578
Дни:23
stdClass Object ( [id] => 80 [attribute_id] => 3 [name] => Кирпич [material_modifier] => 1 [work_modifier] => 1 [options] => Array ( [0] => Кирпич 250 мм [1] => Кирпич 380 мм [2] => Кирпич 510 мм [3] => Кирпич 640 мм [4] => Кирпич 770 мм ) [days] => [30,30,31,33,36] [material_price] => [5500,7142,9206,10171,12235] [work_price] => [8736,10041,12018,15240,18462] [image] => https://akademik-stroy.ru/wp-content/uploads/materials/kirpich.jpg [area_modifier] => 114.31 [parent_name] => Стены 1 этаж (несущие) [parent_id] => 3 [material_sum] => 792168 [work_sum] => 1048543 [total_sum] => 1840711 [total_days] => 30 [display_material_sum] => 792 168 [display_work_sum] => 1 048 543 [display_total_sum] => 1 840 711 ) 1
1 840 711
Работа:1 048 543
Материалы:792 168
Дни:30
stdClass Object ( [id] => 81 [attribute_id] => 3 [name] => Монолитные [material_modifier] => 1 [work_modifier] => 1 [options] => Array ( [0] => 150 мм [1] => 200 мм [2] => 250 мм [3] => 300 мм [4] => 350 мм [5] => 400 мм ) [days] => [45,46,47,49,50,53] [material_price] => [6545,7876,10175,12011,13908,15204] [work_price] => [5106,6444,7698,8552,9807,11461] [image] => https://akademik-stroy.ru/wp-content/uploads/materials/monolitnye.jpg [area_modifier] => 114.31 [parent_name] => Стены 1 этаж (несущие) [parent_id] => 3 [material_sum] => 942680 [work_sum] => 612850 [total_sum] => 1555530 [total_days] => 45 [display_material_sum] => 942 680 [display_work_sum] => 612 850 [display_total_sum] => 1 555 530 ) 1
1 555 530
Работа:612 850
Материалы:942 680
Дни:45
stdClass Object ( [id] => 82 [attribute_id] => 3 [name] => Клееный брус [material_modifier] => 1 [work_modifier] => 1 [options] => Array ( [0] => 160 мм [1] => 175 мм [2] => 200 мм [3] => 215 мм [4] => 240 мм [5] => 270 мм [6] => 282 мм ) [days] => [24,28,32,37,40,42,48] [material_price] => [16975,18773,19950,20545,21599,22159,23275] [work_price] => [4806,5287,5815,6397,7036,7740,8514] [image] => https://akademik-stroy.ru/wp-content/uploads/materials/kleenyj-brus.jpg [area_modifier] => 114.31 [parent_name] => Стены 1 этаж (несущие) [parent_id] => 3 [material_sum] => 2444919 [work_sum] => 576843 [total_sum] => 3021762 [total_days] => 24 [display_material_sum] => 2 444 919 [display_work_sum] => 576 843 [display_total_sum] => 3 021 762 ) 1
3 021 762
Работа:576 843
Материалы:2 444 919
Дни:24
stdClass Object ( [id] => 83 [attribute_id] => 3 [name] => Каркасные [material_modifier] => 1 [work_modifier] => 1 [options] => Array ( [0] => 150 мм [1] => 200 мм [2] => 250 мм [3] => 300 мм ) [days] => [15,16,17,18] [material_price] => [2379,2639,2898,3258] [work_price] => [2418,2686,2985,3716] [image] => https://akademik-stroy.ru/wp-content/uploads/materials/karkasnye.jpg [area_modifier] => 114.31 [parent_name] => Стены 1 этаж (несущие) [parent_id] => 3 [material_sum] => 342649 [work_sum] => 290222 [total_sum] => 632871 [total_days] => 15 [display_material_sum] => 342 649 [display_work_sum] => 290 222 [display_total_sum] => 632 871 ) 1
632 871
Работа:290 222
Материалы:342 649
Дни:15
stdClass Object ( [id] => 84 [attribute_id] => 3 [name] => СИП-панели [material_modifier] => 1 [work_modifier] => 1 [options] => Array ( [0] => 120 мм [1] => 170 мм [2] => 220 мм ) [days] => [7,7,7] [material_price] => [1210,1856,2292] [work_price] => [1410,1551,1706] [image] => https://akademik-stroy.ru/wp-content/uploads/materials/sip-paneli.jpg [area_modifier] => 114.31 [parent_name] => Стены 1 этаж (несущие) [parent_id] => 3 [material_sum] => 174277 [work_sum] => 169236 [total_sum] => 343513 [total_days] => 7 [display_material_sum] => 174 277 [display_work_sum] => 169 236 [display_total_sum] => 343 513 ) 1
343 513
Работа:169 236
Материалы:174 277
Дни:7
stdClass Object ( [id] => 85 [attribute_id] => 3 [name] => Сухой брус [material_modifier] => 1 [work_modifier] => 1 [options] => Array ( [0] => 150 мм [1] => 180 мм [2] => 200 мм ) [days] => [7,8,9] [material_price] => [6010,7190,8709] [work_price] => [3204,3845,4229] [image] => https://akademik-stroy.ru/wp-content/uploads/materials/suhoj-brus.jpg [area_modifier] => 114.31 [parent_name] => Стены 1 этаж (несущие) [parent_id] => 3 [material_sum] => 865624 [work_sum] => 384562 [total_sum] => 1250186 [total_days] => 7 [display_material_sum] => 865 624 [display_work_sum] => 384 562 [display_total_sum] => 1 250 186 ) 1
1 250 186
Работа:384 562
Материалы:865 624
Дни:7
stdClass Object ( [id] => 86 [attribute_id] => 3 [name] => Профилированный брус [material_modifier] => 1 [work_modifier] => 1 [options] => Array ( [0] => 150 мм [1] => 180 мм [2] => 200 мм ) [days] => [7,8,9] [material_price] => [8190,9228,10051] [work_price] => [3845,4614,5075] [image] => https://akademik-stroy.ru/wp-content/uploads/materials/profilirovannyj-brus.jpg [area_modifier] => 114.31 [parent_name] => Стены 1 этаж (несущие) [parent_id] => 3 [material_sum] => 1179611 [work_sum] => 461498 [total_sum] => 1641109 [total_days] => 7 [display_material_sum] => 1 179 611 [display_work_sum] => 461 498 [display_total_sum] => 1 641 109 ) 1
1 641 109
Работа:461 498
Материалы:1 179 611
Дни:7
stdClass Object ( [id] => 87 [attribute_id] => 3 [name] => Оцилиндрованное бревно [material_modifier] => 1 [work_modifier] => 1 [options] => Array ( [0] => 180 мм [1] => 220 мм [2] => 260 мм [3] => 320 мм ) [days] => [7,8,9,10] [material_price] => [75190,9532,10868,13116] [work_price] => [3845,4691,5535,6863] [image] => https://akademik-stroy.ru/wp-content/uploads/materials/ocilindrovannoe-brevno-1.jpg [area_modifier] => 114.31 [parent_name] => Стены 1 этаж (несущие) [parent_id] => 3 [material_sum] => 10829661 [work_sum] => 461498 [total_sum] => 11291159 [total_days] => 7 [display_material_sum] => 10 829 661 [display_work_sum] => 461 498 [display_total_sum] => 11 291 159 ) 1
11 291 159
Работа:461 498
Материалы:10 829 661
Дни:7
stdClass Object ( [id] => 88 [attribute_id] => 3 [name] => Срубы [material_modifier] => 1 [work_modifier] => 1 [options] => Array ( [0] => 260 мм [1] => 320 мм [2] => 360 мм [3] => 400 мм [4] => 500 мм ) [days] => [7,8,9,10,11] [material_price] => [37975,46709,52314,58069,73167] [work_price] => [4806,5911,6621,7349,9260] [image] => https://akademik-stroy.ru/wp-content/uploads/materials/sruby.jpg [area_modifier] => 114.31 [parent_name] => Стены 1 этаж (несущие) [parent_id] => 3 [material_sum] => 5469562 [work_sum] => 576843 [total_sum] => 6046405 [total_days] => 7 [display_material_sum] => 5 469 562 [display_work_sum] => 576 843 [display_total_sum] => 6 046 405 ) 1
6 046 405
Работа:576 843
Материалы:5 469 562
Дни:7
stdClass Object ( [id] => 174 [attribute_id] => 3 [name] => Брус [material_modifier] => 1 [work_modifier] => 1 [options] => Array ( [0] => 150 мм [1] => 180 мм [2] => 200 мм ) [days] => [7,8,9] [material_price] => [5127,6152,7367] [work_price] => [1602,1922,2115] [image] => https://akademik-stroy.ru/wp-content/uploads/materials/brus.jpg [area_modifier] => 114.31 [parent_name] => Стены 1 этаж (несущие) [parent_id] => 3 [material_sum] => 738445 [work_sum] => 192281 [total_sum] => 930726 [total_days] => 7 [display_material_sum] => 738 445 [display_work_sum] => 192 281 [display_total_sum] => 930 726 ) 1
930 726
Работа:192 281
Материалы:738 445
Дни:7
stdClass Object ( [id] => 175 [attribute_id] => 3 [name] => Газобетон [material_modifier] => 1 [work_modifier] => 1 [options] => Array ( [0] => 300 мм [1] => 375 мм [2] => 400 мм [3] => 500 мм [4] => 600 мм ) [days] => [29,31,35,37,44] [material_price] => [4298,5573,6356,7288,9119] [work_price] => [4538,5251,5926,6733,7195] [image] => https://akademik-stroy.ru/wp-content/uploads/materials/gazobeton.jpg [area_modifier] => 114.31 [parent_name] => Стены 1 этаж (несущие) [parent_id] => 3 [material_sum] => 619044 [work_sum] => 544676 [total_sum] => 1163720 [total_days] => 29 [display_material_sum] => 619 044 [display_work_sum] => 544 676 [display_total_sum] => 1 163 720 ) 1
1 163 720
Работа:544 676
Материалы:619 044
Дни:29
stdClass Object ( [id] => 176 [attribute_id] => 3 [name] => Блок [material_modifier] => 1 [work_modifier] => 1 [options] => Array ( [0] => 300 мм [1] => 375 мм [2] => 400 мм [3] => 500 мм [4] => 600 мм ) [days] => [29,31,35,37,44] [material_price] => [2698,3973,4356,6588,7119] [work_price] => [5038,5851,6426,8733,9195] [image] => https://akademik-stroy.ru/wp-content/uploads/materials/blok.jpg [area_modifier] => 114.31 [parent_name] => Стены 1 этаж (несущие) [parent_id] => 3 [material_sum] => 388595 [work_sum] => 604688 [total_sum] => 993283 [total_days] => 29 [display_material_sum] => 388 595 [display_work_sum] => 604 688 [display_total_sum] => 993 283 ) 1
993 283
Работа:604 688
Материалы:388 595
Дни:29
stdClass Object ( [id] => 177 [attribute_id] => 3 [name] => Газосиликатный блок [material_modifier] => 1 [work_modifier] => 1 [options] => Array ( [0] => 300 мм [1] => 375 мм [2] => 400 мм [3] => 500 мм [4] => 600 мм ) [days] => [29,31,35,37,44] [material_price] => [4298,5573,6356,7288,9119] [work_price] => [4538,5251,5926,6733,7195] [image] => https://akademik-stroy.ru/wp-content/uploads/materials/gazosilikatnyj-blok.jpg [area_modifier] => 114.31 [parent_name] => Стены 1 этаж (несущие) [parent_id] => 3 [material_sum] => 619044 [work_sum] => 544676 [total_sum] => 1163720 [total_days] => 29 [display_material_sum] => 619 044 [display_work_sum] => 544 676 [display_total_sum] => 1 163 720 ) 1
1 163 720
Работа:544 676
Материалы:619 044
Дни:29
stdClass Object ( [id] => 178 [attribute_id] => 3 [name] => Керамзитобетонный блок [material_modifier] => 1 [work_modifier] => 1 [options] => Array ( [0] => 300 мм [1] => 375 мм [2] => 400 мм [3] => 500 мм [4] => 600 мм ) [days] => [23,23,24,25,28] [material_price] => [3641,4298,5693,7613,9612] [work_price] => [5737,5737,6903,7958,8901] [image] => https://akademik-stroy.ru/wp-content/uploads/materials/keramzitobetonnyj-blok.jpg [area_modifier] => 114.31 [parent_name] => Стены 1 этаж (несущие) [parent_id] => 3 [material_sum] => 524415 [work_sum] => 688586 [total_sum] => 1213001 [total_days] => 23 [display_material_sum] => 524 415 [display_work_sum] => 688 586 [display_total_sum] => 1 213 001 ) 1
1 213 001
Работа:688 586
Материалы:524 415
Дни:23
stdClass Object ( [id] => 179 [attribute_id] => 3 [name] => Деревянные [material_modifier] => 1 [work_modifier] => 1 [options] => Array ( [0] => 180 мм [1] => 220 мм [2] => 260 мм [3] => 320 мм ) [days] => [7,8,9,10] [material_price] => [7950,9458,11961,14472] [work_price] => [4037,4925,5812,7207] [image] => https://akademik-stroy.ru/wp-content/uploads/materials/derevyannye.jpg [area_modifier] => 114.31 [parent_name] => Стены 1 этаж (несущие) [parent_id] => 3 [material_sum] => 1145043 [work_sum] => 484543 [total_sum] => 1629586 [total_days] => 7 [display_material_sum] => 1 145 043 [display_work_sum] => 484 543 [display_total_sum] => 1 629 586 ) 1
1 629 586
Работа:484 543
Материалы:1 145 043
Дни:7
stdClass Object ( [id] => 181 [attribute_id] => 3 [name] => Камень [material_modifier] => 1 [work_modifier] => 1 [options] => Array ( [0] => 300 мм [1] => 400 мм [2] => 500 мм [3] => 600 мм ) [days] => [25,27,31,34] [material_price] => [5262,6844,8330,9815] [work_price] => [8331,9135,10427,11069] [image] => https://akademik-stroy.ru/wp-content/uploads/materials/kamen.jpg [area_modifier] => 114.31 [parent_name] => Стены 1 этаж (несущие) [parent_id] => 3 [material_sum] => 757889 [work_sum] => 999932 [total_sum] => 1757821 [total_days] => 25 [display_material_sum] => 757 889 [display_work_sum] => 999 932 [display_total_sum] => 1 757 821 ) 1
1 757 821
Работа:999 932
Материалы:757 889
Дни:25
stdClass Object ( [id] => 182 [attribute_id] => 3 [name] => Каркасно-щитовые [material_modifier] => 1 [work_modifier] => 1 [options] => Array ( [0] => 150 мм [1] => 200 мм [2] => 250 мм [3] => 300 мм [4] => 350 мм [5] => 400 мм ) [days] => [15,16,17,18,19,20] [material_price] => [2379,2639,2898,3458,3601,4175] [work_price] => [2538,2820,3134,3483,4062,5642] [image] => https://akademik-stroy.ru/wp-content/uploads/materials/karkasno-shchitovye.jpg [area_modifier] => 114.31 [parent_name] => Стены 1 этаж (несущие) [parent_id] => 3 [material_sum] => 342649 [work_sum] => 304625 [total_sum] => 647274 [total_days] => 15 [display_material_sum] => 342 649 [display_work_sum] => 304 625 [display_total_sum] => 647 274 ) 1
647 274
Работа:304 625
Материалы:342 649
Дни:15
stdClass Object ( [id] => 183 [attribute_id] => 3 [name] => Рубленные [material_modifier] => 1 [work_modifier] => 1 [options] => Array ( [0] => 150 мм [1] => 200 мм [2] => 250 мм [3] => 300 мм [4] => 350 мм [5] => 400 мм ) [days] => [15,16,17,18,17,18] [material_price] => [35950,50267,60583,75900,80217,100533] [work_price] => [9612,12816,16020,19224,22428,25632] [image] => https://akademik-stroy.ru/wp-content/uploads/materials/rublennye.jpg [area_modifier] => 114.31 [parent_name] => Стены 1 этаж (несущие) [parent_id] => 3 [material_sum] => 5177900 [work_sum] => 1153685 [total_sum] => 6331585 [total_days] => 15 [display_material_sum] => 5 177 900 [display_work_sum] => 1 153 685 [display_total_sum] => 6 331 585 ) 1
6 331 585
Работа:1 153 685
Материалы:5 177 900
Дни:15
stdClass Object ( [id] => 185 [attribute_id] => 3 [name] => Теплоблок [material_modifier] => 1 [work_modifier] => 1 [options] => Array ( [0] => 300 мм (с облицовкой, не покрашенный) [1] => 400 мм (с облицовкой, не покрашенный) [2] => 300 мм (с облицовкой, покрашенный) [3] => 400 мм (с облицовкой, покрашенный) ) [days] => [15,16,15,16] [material_price] => [2888,3729,3957,4258] [work_price] => [2564,3229,2949,3713] [image] => https://akademik-stroy.ru/wp-content/uploads/materials/teploblok.jpg [area_modifier] => 114.31 [parent_name] => Стены 1 этаж (несущие) [parent_id] => 3 [material_sum] => 415960 [work_sum] => 307745 [total_sum] => 723705 [total_days] => 15 [display_material_sum] => 415 960 [display_work_sum] => 307 745 [display_total_sum] => 723 705 ) 1
723 705
Работа:307 745
Материалы:415 960
Дни:15
stdClass Object ( [id] => 186 [attribute_id] => 3 [name] => Арболитовые блоки [material_modifier] => 1 [work_modifier] => 1 [options] => Array ( [0] => 300 мм [1] => 400 мм [2] => 600 мм ) [days] => [19,22,27] [material_price] => [3210,4475,5852] [work_price] => [4214,4788,5866] [image] => https://akademik-stroy.ru/wp-content/uploads/materials/arbolitovye-bloki.png [area_modifier] => 114.31 [parent_name] => Стены 1 этаж (несущие) [parent_id] => 3 [material_sum] => 462338 [work_sum] => 505787 [total_sum] => 968125 [total_days] => 19 [display_material_sum] => 462 338 [display_work_sum] => 505 787 [display_total_sum] => 968 125 ) 1
968 125
Работа:505 787
Материалы:462 338
Дни:19
stdClass Object ( [id] => 187 [attribute_id] => 3 [name] => Полистиролбетон [material_modifier] => 1 [work_modifier] => 1 [options] => Array ( [0] => 300 мм [1] => 400 мм [2] => 600 мм ) [days] => [29,31,35] [material_price] => [2798,4573,5256] [work_price] => [5038,5851,6426] [image] => https://akademik-stroy.ru/wp-content/uploads/materials/polistirolbeton.jpg [area_modifier] => 114.31 [parent_name] => Стены 1 этаж (несущие) [parent_id] => 3 [material_sum] => 402998 [work_sum] => 604688 [total_sum] => 1007686 [total_days] => 29 [display_material_sum] => 402 998 [display_work_sum] => 604 688 [display_total_sum] => 1 007 686 ) 1
1 007 686
Работа:604 688
Материалы:402 998
Дни:29
stdClass Object ( [id] => 188 [attribute_id] => 3 [name] => Шлакоблок [material_modifier] => 1 [work_modifier] => 1 [options] => Array ( [0] => 400 мм [1] => 600 мм ) [days] => [15,16] [material_price] => [2391,3471] [work_price] => [2642,3662] [image] => https://akademik-stroy.ru/wp-content/uploads/materials/shlakoblok.jpg [area_modifier] => 114.31 [parent_name] => Стены 1 этаж (несущие) [parent_id] => 3 [material_sum] => 344377 [work_sum] => 317107 [total_sum] => 661484 [total_days] => 15 [display_material_sum] => 344 377 [display_work_sum] => 317 107 [display_total_sum] => 661 484 ) 1
661 484
Работа:317 107
Материалы:344 377
Дни:15
stdClass Object ( [id] => 189 [attribute_id] => 3 [name] => Теплая керамика [material_modifier] => 1 [work_modifier] => 1 [options] => Array ( [0] => 380 мм [1] => 380 мм Thermo [2] => 440 мм [3] => 510 мм ) [days] => [23,23,24,25] [material_price] => [4510,5098,6093,8013] [work_price] => [4737,4937,5903,6958] [image] => https://akademik-stroy.ru/wp-content/uploads/materials/teplaya-keramika.jpg [area_modifier] => 114.31 [parent_name] => Стены 1 этаж (несущие) [parent_id] => 3 [material_sum] => 649578 [work_sum] => 568561 [total_sum] => 1218139 [total_days] => 23 [display_material_sum] => 649 578 [display_work_sum] => 568 561 [display_total_sum] => 1 218 139 ) 1
1 218 139
Работа:568 561
Материалы:649 578
Дни:23
stdClass Object ( [id] => 190 [attribute_id] => 3 [name] => Несъемная опалубка [material_modifier] => 1 [work_modifier] => 1 [options] => Array ( [0] => 200 мм [1] => 250 мм [2] => 300 мм [3] => 350 мм ) [days] => [15,17,19,21] [material_price] => [3302,3902,4108,5008] [work_price] => [2100,2100,2300,2534] [image] => https://akademik-stroy.ru/wp-content/uploads/materials/nesemnaya-opalubka.jpg [area_modifier] => 114.31 [parent_name] => Стены 1 этаж (несущие) [parent_id] => 3 [material_sum] => 475589 [work_sum] => 252054 [total_sum] => 727643 [total_days] => 15 [display_material_sum] => 475 589 [display_work_sum] => 252 054 [display_total_sum] => 727 643 ) 1
727 643
Работа:252 054
Материалы:475 589
Дни:15
stdClass Object ( [id] => 251 [attribute_id] => 3 [name] => Бревно [material_modifier] => 1 [work_modifier] => 1 [options] => Array ( [0] => 260 мм [1] => 320 мм [2] => 360 мм [3] => 400 мм [4] => 500 мм ) [days] => [7,8,9,10,11] [material_price] => [1874,24045,26930,30972,38825] [work_price] => [5046,6207,6952,7716,9723] [image] => https://akademik-stroy.ru/wp-content/uploads/materials/sruby.jpg [area_modifier] => 114.31 [parent_name] => Стены 1 этаж (несущие) [parent_id] => 3 [material_sum] => 269913 [work_sum] => 605649 [total_sum] => 875562 [total_days] => 7 [display_material_sum] => 269 913 [display_work_sum] => 605 649 [display_total_sum] => 875 562 ) 1
875 562
Работа:605 649
Материалы:269 913
Дни:7
Перекрытие первого этажа
stdClass Object ( [id] => 7 [attribute_id] => 4 [name] => Деревянные балки [material_modifier] => 1 [work_modifier] => 1 [options] => Array ( [0] => без утепления [1] => утепление 200 мм [2] => утепление 250 мм [3] => утепление 300 мм [4] => утепление 350 мм [5] => утепление 400 мм [6] => утепление 450 мм [7] => утепление 500 мм ) [days] => [8,9,9,9,11,12,13,14] [material_price] => [1634,2042,2344,2947,3149,3652,3354,3557] [work_price] => [1230,1339,1393,1426,1460,1513,1587,1620] [image] => https://akademik-stroy.ru/wp-content/uploads/materials/derevyannye-balki.png [area_modifier] => 114.31 [parent_name] => Перекрытие первого этажа [parent_id] => 4 [material_sum] => 235346 [work_sum] => 147631 [total_sum] => 382977 [total_days] => 8 [display_material_sum] => 235 346 [display_work_sum] => 147 631 [display_total_sum] => 382 977 ) 1
382 977
Работа:147 631
Материалы:235 346
Дни:8
stdClass Object ( [id] => 8 [attribute_id] => 4 [name] => Сборные ж/б плиты [material_modifier] => 1 [work_modifier] => 1 [options] => Array ( [0] => без утепления [1] => утепление 150 мм [2] => утепление 200 мм [3] => утепление 250 мм [4] => утепление 300 мм [5] => утепление 350 мм [6] => утепление 400 мм [7] => утепление 450 мм [8] => утепление 500 мм ) [days] => [13,15,15,15,15,15,15,15,15] [material_price] => [3067,5577,5928,6679,7730,8782,9833,10884,11935] [work_price] => [1520,1956,2102,2247,2392,2537,2684,2829,2974] [image] => https://akademik-stroy.ru/wp-content/uploads/materials/sbornye-zh-b-plity-2.jpg [area_modifier] => 114.31 [parent_name] => Перекрытие первого этажа [parent_id] => 4 [material_sum] => 441742 [work_sum] => 182439 [total_sum] => 624181 [total_days] => 13 [display_material_sum] => 441 742 [display_work_sum] => 182 439 [display_total_sum] => 624 181 ) 1
624 181
Работа:182 439
Материалы:441 742
Дни:13
stdClass Object ( [id] => 89 [attribute_id] => 4 [name] => Монолитная ж/б плита [material_modifier] => 1 [work_modifier] => 1 [options] => Array ( [0] => без утепления [1] => утепление 150 мм [2] => утепление 200 мм [3] => утепление 250 мм [4] => утепление 300 мм [5] => утепление 350 мм [6] => утепление 400 мм [7] => утепление 450 мм [8] => утепление 500 мм ) [days] => [18,20,20,20,20,20,20,20,20] [material_price] => [4837,6572,7224,7375,79426,8177,8728,9180,10031] [work_price] => [3348,3921,4112,4302,4493,4684,4875,5066,5256] [image] => https://akademik-stroy.ru/wp-content/uploads/materials/monolitnaya-zh-b-plita-2.jpg [area_modifier] => 114.31 [parent_name] => Перекрытие первого этажа [parent_id] => 4 [material_sum] => 696676 [work_sum] => 401845 [total_sum] => 1098521 [total_days] => 18 [display_material_sum] => 696 676 [display_work_sum] => 401 845 [display_total_sum] => 1 098 521 ) 1
1 098 521
Работа:401 845
Материалы:696 676
Дни:18
Стены 2 этаж (несущие)
stdClass Object ( [id] => 10 [attribute_id] => 5 [name] => Пеноблок [material_modifier] => 1 [work_modifier] => 1 [options] => Array ( [0] => 300 мм [1] => 400 мм [2] => 500 мм [3] => 600 мм ) [days] => [29,31,34,39] [material_price] => [3000,4000,4500,4937] [work_price] => [5033,5805,6400,8710] [image] => https://akademik-stroy.ru/wp-content/uploads/materials/penoblok.jpg [area_modifier] => 95.91 [parent_name] => Стены 2 этаж (несущие) [parent_id] => 5 [material_sum] => 362540 [work_sum] => 506851 [total_sum] => 869391 [total_days] => 29 [display_material_sum] => 362 540 [display_work_sum] => 506 851 [display_total_sum] => 869 391 ) 1
869 391
Работа:506 851
Материалы:362 540
Дни:29
stdClass Object ( [id] => 90 [attribute_id] => 5 [name] => Керамический блок [material_modifier] => 1 [work_modifier] => 1 [options] => Array ( [0] => 380 мм [1] => 380 мм Thermo [2] => 440 мм [3] => 510 мм ) [days] => [23,23,24,25] [material_price] => [4510,5098,6093,8013] [work_price] => [4737,4937,5903,6958] [image] => https://akademik-stroy.ru/wp-content/uploads/materials/keramicheskij-blok.jpg [area_modifier] => 95.91 [parent_name] => Стены 2 этаж (несущие) [parent_id] => 5 [material_sum] => 545018 [work_sum] => 477042 [total_sum] => 1022060 [total_days] => 23 [display_material_sum] => 545 018 [display_work_sum] => 477 042 [display_total_sum] => 1 022 060 ) 1
1 022 060
Работа:477 042
Материалы:545 018
Дни:23
stdClass Object ( [id] => 91 [attribute_id] => 5 [name] => Кирпич [material_modifier] => 1 [work_modifier] => 1 [options] => Array ( [0] => Кирпич 250 мм [1] => Кирпич 380 мм [2] => Кирпич 510 мм [3] => Кирпич 640 мм [4] => Кирпич 770 мм ) [days] => [30,30,31,33,36] [material_price] => [5500,7142,9206,10171,12235] [work_price] => [8736,10041,12018,15240,18462] [image] => https://akademik-stroy.ru/wp-content/uploads/materials/kirpich.jpg [area_modifier] => 95.91 [parent_name] => Стены 2 этаж (несущие) [parent_id] => 5 [material_sum] => 664656 [work_sum] => 879763 [total_sum] => 1544419 [total_days] => 30 [display_material_sum] => 664 656 [display_work_sum] => 879 763 [display_total_sum] => 1 544 419 ) 1
1 544 419
Работа:879 763
Материалы:664 656
Дни:30
stdClass Object ( [id] => 92 [attribute_id] => 5 [name] => Монолитные [material_modifier] => 1 [work_modifier] => 1 [options] => Array ( [0] => 150 мм [1] => 200 мм [2] => 250 мм [3] => 300 мм [4] => 350 мм [5] => 400 мм ) [days] => [45,46,47,49,50,53] [material_price] => [6545,7876,10175,12011,13908,15204] [work_price] => [5106,6444,7698,8552,9807,11461] [image] => https://akademik-stroy.ru/wp-content/uploads/materials/monolitnye.jpg [area_modifier] => 95.91 [parent_name] => Стены 2 этаж (несущие) [parent_id] => 5 [material_sum] => 790941 [work_sum] => 514202 [total_sum] => 1305143 [total_days] => 45 [display_material_sum] => 790 941 [display_work_sum] => 514 202 [display_total_sum] => 1 305 143 ) 1
1 305 143
Работа:514 202
Материалы:790 941
Дни:45
stdClass Object ( [id] => 93 [attribute_id] => 5 [name] => Клееный брус [material_modifier] => 1 [work_modifier] => 1 [options] => Array ( [0] => 160 мм [1] => 175 мм [2] => 200 мм [3] => 215 мм [4] => 240 мм [5] => 270 мм [6] => 282 мм ) [days] => [24,28,32,37,40,42,48] [material_price] => [16975,18773,19950,20545,21599,22159,23275] [work_price] => [4806,5287,5815,6397,7036,7740,8514] [image] => https://akademik-stroy.ru/wp-content/uploads/materials/kleenyj-brus.jpg [area_modifier] => 95.91 [parent_name] => Стены 2 этаж (несущие) [parent_id] => 5 [material_sum] => 2051371 [work_sum] => 483991 [total_sum] => 2535362 [total_days] => 24 [display_material_sum] => 2 051 371 [display_work_sum] => 483 991 [display_total_sum] => 2 535 362 ) 1
2 535 362
Работа:483 991
Материалы:2 051 371
Дни:24
stdClass Object ( [id] => 94 [attribute_id] => 5 [name] => Каркасные [material_modifier] => 1 [work_modifier] => 1 [options] => Array ( [0] => 150 мм [1] => 200 мм [2] => 250 мм [3] => 300 мм ) [days] => [15,16,17,18] [material_price] => [2379,2639,2898,3258] [work_price] => [2418,2686,2985,3716] [image] => https://akademik-stroy.ru/wp-content/uploads/materials/karkasnye.jpg [area_modifier] => 95.91 [parent_name] => Стены 2 этаж (несущие) [parent_id] => 5 [material_sum] => 287494 [work_sum] => 243506 [total_sum] => 531000 [total_days] => 15 [display_material_sum] => 287 494 [display_work_sum] => 243 506 [display_total_sum] => 531 000 ) 1
531 000
Работа:243 506
Материалы:287 494
Дни:15
stdClass Object ( [id] => 95 [attribute_id] => 5 [name] => СИП-панели [material_modifier] => 1 [work_modifier] => 1 [options] => Array ( [0] => 120 мм [1] => 170 мм [2] => 220 мм ) [days] => [7,7,7] [material_price] => [1210,1856,2292] [work_price] => [1410,1551,1706] [image] => https://akademik-stroy.ru/wp-content/uploads/materials/sip-paneli.jpg [area_modifier] => 95.91 [parent_name] => Стены 2 этаж (несущие) [parent_id] => 5 [material_sum] => 146224 [work_sum] => 141995 [total_sum] => 288219 [total_days] => 7 [display_material_sum] => 146 224 [display_work_sum] => 141 995 [display_total_sum] => 288 219 ) 1
288 219
Работа:141 995
Материалы:146 224
Дни:7
stdClass Object ( [id] => 96 [attribute_id] => 5 [name] => Сухой брус [material_modifier] => 1 [work_modifier] => 1 [options] => Array ( [0] => 150 мм [1] => 180 мм [2] => 200 мм ) [days] => [7,8,9] [material_price] => [6010,7190,8709] [work_price] => [3204,3845,4229] [image] => https://akademik-stroy.ru/wp-content/uploads/materials/suhoj-brus.jpg [area_modifier] => 95.91 [parent_name] => Стены 2 этаж (несущие) [parent_id] => 5 [material_sum] => 726288 [work_sum] => 322660 [total_sum] => 1048948 [total_days] => 7 [display_material_sum] => 726 288 [display_work_sum] => 322 660 [display_total_sum] => 1 048 948 ) 1
1 048 948
Работа:322 660
Материалы:726 288
Дни:7
stdClass Object ( [id] => 97 [attribute_id] => 5 [name] => Профилированный брус [material_modifier] => 1 [work_modifier] => 1 [options] => Array ( [0] => 150 мм [1] => 180 мм [2] => 200 мм ) [days] => [7,8,9] [material_price] => [8190,9228,10051] [work_price] => [3845,4614,5075] [image] => https://akademik-stroy.ru/wp-content/uploads/materials/profilirovannyj-brus.jpg [area_modifier] => 95.91 [parent_name] => Стены 2 этаж (несущие) [parent_id] => 5 [material_sum] => 989734 [work_sum] => 387213 [total_sum] => 1376947 [total_days] => 7 [display_material_sum] => 989 734 [display_work_sum] => 387 213 [display_total_sum] => 1 376 947 ) 1
1 376 947
Работа:387 213
Материалы:989 734
Дни:7
stdClass Object ( [id] => 98 [attribute_id] => 5 [name] => Оцилиндрованное бревно [material_modifier] => 1 [work_modifier] => 1 [options] => Array ( [0] => 180 мм [1] => 220 мм [2] => 260 мм [3] => 320 мм ) [days] => [7,8,9,10] [material_price] => [75190,9532,10868,13116] [work_price] => [3845,4691,5535,6863] [image] => https://akademik-stroy.ru/wp-content/uploads/materials/ocilindrovannoe-brevno-1.jpg [area_modifier] => 95.91 [parent_name] => Стены 2 этаж (несущие) [parent_id] => 5 [material_sum] => 9086456 [work_sum] => 387213 [total_sum] => 9473669 [total_days] => 7 [display_material_sum] => 9 086 456 [display_work_sum] => 387 213 [display_total_sum] => 9 473 669 ) 1
9 473 669
Работа:387 213
Материалы:9 086 456
Дни:7
stdClass Object ( [id] => 99 [attribute_id] => 5 [name] => Срубы [material_modifier] => 1 [work_modifier] => 1 [options] => Array ( [0] => 260 мм [1] => 320 мм [2] => 360 мм [3] => 400 мм [4] => 500 мм ) [days] => [7,8,9,10,11] [material_price] => [16175,23709,26314,29069,32167] [work_price] => [4806,5911,6621,7349,9260] [image] => https://akademik-stroy.ru/wp-content/uploads/materials/suhoj-brus.jpg [area_modifier] => 95.91 [parent_name] => Стены 2 этаж (несущие) [parent_id] => 5 [material_sum] => 1954694 [work_sum] => 483991 [total_sum] => 2438685 [total_days] => 7 [display_material_sum] => 1 954 694 [display_work_sum] => 483 991 [display_total_sum] => 2 438 685 ) 1
2 438 685
Работа:483 991
Материалы:1 954 694
Дни:7
stdClass Object ( [id] => 194 [attribute_id] => 5 [name] => Брус [material_modifier] => 1 [work_modifier] => 1 [options] => Array ( [0] => 150 мм [1] => 180 мм [2] => 200 мм ) [days] => [10,13,15] [material_price] => [5127,6152,7367] [work_price] => [1602,1922,2115] [image] => https://akademik-stroy.ru/wp-content/uploads/materials/brus.jpg [area_modifier] => 95.91 [parent_name] => Стены 2 этаж (несущие) [parent_id] => 5 [material_sum] => 619581 [work_sum] => 161330 [total_sum] => 780911 [total_days] => 10 [display_material_sum] => 619 581 [display_work_sum] => 161 330 [display_total_sum] => 780 911 ) 1
780 911
Работа:161 330
Материалы:619 581
Дни:10
stdClass Object ( [id] => 195 [attribute_id] => 5 [name] => Газобетон [material_modifier] => 1 [work_modifier] => 1 [options] => Array ( [0] => 300 мм [1] => 375 мм [2] => 400 мм [3] => 500 мм [4] => 600 мм ) [days] => [29,31,35,37,44] [material_price] => [4298,5573,6356,7288,9119] [work_price] => [4538,5251,5926,6733,7195] [image] => https://akademik-stroy.ru/wp-content/uploads/materials/gazobeton.jpg [area_modifier] => 95.91 [parent_name] => Стены 2 этаж (несущие) [parent_id] => 5 [material_sum] => 519399 [work_sum] => 457002 [total_sum] => 976401 [total_days] => 29 [display_material_sum] => 519 399 [display_work_sum] => 457 002 [display_total_sum] => 976 401 ) 1
976 401
Работа:457 002
Материалы:519 399
Дни:29
stdClass Object ( [id] => 196 [attribute_id] => 5 [name] => Блок [material_modifier] => 1 [work_modifier] => 1 [options] => Array ( [0] => 300 мм [1] => 375 мм [2] => 400 мм [3] => 500 мм [4] => 600 мм ) [days] => [29,31,35,37,44] [material_price] => [2698,3973,4356,6588,7119] [work_price] => [5038,5851,6426,8733,9195] [image] => https://akademik-stroy.ru/wp-content/uploads/materials/blok.jpg [area_modifier] => 95.91 [parent_name] => Стены 2 этаж (несущие) [parent_id] => 5 [material_sum] => 326044 [work_sum] => 507354 [total_sum] => 833398 [total_days] => 29 [display_material_sum] => 326 044 [display_work_sum] => 507 354 [display_total_sum] => 833 398 ) 1
833 398
Работа:507 354
Материалы:326 044
Дни:29
stdClass Object ( [id] => 197 [attribute_id] => 5 [name] => Газосиликатный блок [material_modifier] => 1 [work_modifier] => 1 [options] => Array ( [0] => 300 мм [1] => 375 мм [2] => 400 мм [3] => 500 мм [4] => 600 мм ) [days] => [29,31,35,37,44] [material_price] => [4298,5573,6356,7288,9119] [work_price] => [4538,5251,5926,6733,7195] [image] => https://akademik-stroy.ru/wp-content/uploads/materials/gazosilikatnyj-blok.jpg [area_modifier] => 95.91 [parent_name] => Стены 2 этаж (несущие) [parent_id] => 5 [material_sum] => 519399 [work_sum] => 457002 [total_sum] => 976401 [total_days] => 29 [display_material_sum] => 519 399 [display_work_sum] => 457 002 [display_total_sum] => 976 401 ) 1
976 401
Работа:457 002
Материалы:519 399
Дни:29
stdClass Object ( [id] => 198 [attribute_id] => 5 [name] => Керамзитобетонный блок [material_modifier] => 1 [work_modifier] => 1 [options] => Array ( [0] => 300 мм [1] => 375 мм [2] => 400 мм [3] => 500 мм [4] => 600 мм ) [days] => [23,23,24,25,28] [material_price] => [3641,4298,5693,7613,9612] [work_price] => [5737,5737,6903,7958,8901] [image] => https://akademik-stroy.ru/wp-content/uploads/materials/keramzitobetonnyj-blok.jpg [area_modifier] => 95.91 [parent_name] => Стены 2 этаж (несущие) [parent_id] => 5 [material_sum] => 440002 [work_sum] => 577747 [total_sum] => 1017749 [total_days] => 23 [display_material_sum] => 440 002 [display_work_sum] => 577 747 [display_total_sum] => 1 017 749 ) 1
1 017 749
Работа:577 747
Материалы:440 002
Дни:23
stdClass Object ( [id] => 199 [attribute_id] => 5 [name] => Деревянные [material_modifier] => 1 [work_modifier] => 1 [options] => Array ( [0] => 180 мм [1] => 220 мм [2] => 260 мм [3] => 320 мм ) [days] => [7,8,9,10] [material_price] => [7950,9458,11961,14472] [work_price] => [4037,4925,5812,7207] [image] => https://akademik-stroy.ru/wp-content/uploads/materials/derevyannye.jpg [area_modifier] => 95.91 [parent_name] => Стены 2 этаж (несущие) [parent_id] => 5 [material_sum] => 960730 [work_sum] => 406548 [total_sum] => 1367278 [total_days] => 7 [display_material_sum] => 960 730 [display_work_sum] => 406 548 [display_total_sum] => 1 367 278 ) 1
1 367 278
Работа:406 548
Материалы:960 730
Дни:7
stdClass Object ( [id] => 200 [attribute_id] => 5 [name] => Камень [material_modifier] => 1 [work_modifier] => 1 [options] => Array ( [0] => 300 мм [1] => 400 мм [2] => 500 мм [3] => 600 мм ) [days] => [25,27,31,34] [material_price] => [5262,6844,8330,9815] [work_price] => [8331,9135,10427,11069] [image] => https://akademik-stroy.ru/wp-content/uploads/materials/kamen.jpg [area_modifier] => 95.91 [parent_name] => Стены 2 этаж (несущие) [parent_id] => 5 [material_sum] => 635895 [work_sum] => 838978 [total_sum] => 1474873 [total_days] => 25 [display_material_sum] => 635 895 [display_work_sum] => 838 978 [display_total_sum] => 1 474 873 ) 1
1 474 873
Работа:838 978
Материалы:635 895
Дни:25
stdClass Object ( [id] => 201 [attribute_id] => 5 [name] => Каркасно-щитовые [material_modifier] => 1 [work_modifier] => 1 [options] => Array ( [0] => 150 мм [1] => 200 мм [2] => 250 мм [3] => 300 мм [4] => 350 мм [5] => 400 мм ) [days] => [15,16,17,18,19,20] [material_price] => [2379,2639,2898,3458,3601,4175] [work_price] => [2538,2820,3134,3483,4062,5642] [image] => https://akademik-stroy.ru/wp-content/uploads/materials/karkasno-shchitovye.jpg [area_modifier] => 95.91 [parent_name] => Стены 2 этаж (несущие) [parent_id] => 5 [material_sum] => 287494 [work_sum] => 255591 [total_sum] => 543085 [total_days] => 15 [display_material_sum] => 287 494 [display_work_sum] => 255 591 [display_total_sum] => 543 085 ) 1
543 085
Работа:255 591
Материалы:287 494
Дни:15
stdClass Object ( [id] => 202 [attribute_id] => 5 [name] => Рубленные [material_modifier] => 1 [work_modifier] => 1 [options] => Array ( [0] => 150 мм [1] => 200 мм [2] => 250 мм [3] => 300 мм [4] => 350 мм [5] => 400 мм ) [days] => [15,16,17,18,17,18] [material_price] => [35950,50267,60583,75900,80217,100533] [work_price] => [9612,12816,16020,19224,22428,25632] [image] => https://akademik-stroy.ru/wp-content/uploads/materials/rublennye.jpg [area_modifier] => 95.91 [parent_name] => Стены 2 этаж (несущие) [parent_id] => 5 [material_sum] => 4344435 [work_sum] => 967981 [total_sum] => 5312416 [total_days] => 15 [display_material_sum] => 4 344 435 [display_work_sum] => 967 981 [display_total_sum] => 5 312 416 ) 1
5 312 416
Работа:967 981
Материалы:4 344 435
Дни:15
stdClass Object ( [id] => 203 [attribute_id] => 5 [name] => Теплоблок [material_modifier] => 1 [work_modifier] => 1 [options] => Array ( [0] => 300 мм (с облицовкой, не покрашенный) [1] => 400 мм (с облицовкой, не покрашенный) [2] => 300 мм (с облицовкой, покрашенный) [3] => 400 мм (с облицовкой, покрашенный) ) [days] => [15,16,15,16] [material_price] => [2888,3729,3957,4258] [work_price] => [2564,3229,2949,3713] [image] => https://akademik-stroy.ru/wp-content/uploads/materials/teploblok.jpg [area_modifier] => 95.91 [parent_name] => Стены 2 этаж (несущие) [parent_id] => 5 [material_sum] => 349005 [work_sum] => 258209 [total_sum] => 607214 [total_days] => 15 [display_material_sum] => 349 005 [display_work_sum] => 258 209 [display_total_sum] => 607 214 ) 1
607 214
Работа:258 209
Материалы:349 005
Дни:15
stdClass Object ( [id] => 204 [attribute_id] => 5 [name] => Арболитовые блоки [material_modifier] => 1 [work_modifier] => 1 [options] => Array ( [0] => 300 мм [1] => 400 мм [2] => 600 мм ) [days] => [19,22,27] [material_price] => [3210,4475,5852] [work_price] => [4214,4788,5866] [image] => https://akademik-stroy.ru/wp-content/uploads/materials/arbolitovye-bloki.png [area_modifier] => 95.91 [parent_name] => Стены 2 этаж (несущие) [parent_id] => 5 [material_sum] => 387918 [work_sum] => 424373 [total_sum] => 812291 [total_days] => 19 [display_material_sum] => 387 918 [display_work_sum] => 424 373 [display_total_sum] => 812 291 ) 1
812 291
Работа:424 373
Материалы:387 918
Дни:19
stdClass Object ( [id] => 205 [attribute_id] => 5 [name] => Полистиролбетон [material_modifier] => 1 [work_modifier] => 1 [options] => Array ( [0] => 300 мм [1] => 400 мм [2] => 600 мм ) [days] => [29,31,35] [material_price] => [2798,4573,5256] [work_price] => [5038,5851,6426] [image] => https://akademik-stroy.ru/wp-content/uploads/materials/polistirolbeton.jpg [area_modifier] => 95.91 [parent_name] => Стены 2 этаж (несущие) [parent_id] => 5 [material_sum] => 338129 [work_sum] => 507354 [total_sum] => 845483 [total_days] => 29 [display_material_sum] => 338 129 [display_work_sum] => 507 354 [display_total_sum] => 845 483 ) 1
845 483
Работа:507 354
Материалы:338 129
Дни:29
stdClass Object ( [id] => 206 [attribute_id] => 5 [name] => Шлакоблок [material_modifier] => 1 [work_modifier] => 1 [options] => Array ( [0] => 400 мм [1] => 600 мм ) [days] => [15,16] [material_price] => [2391,3471] [work_price] => [2642,3662] [image] => https://akademik-stroy.ru/wp-content/uploads/materials/shlakoblok.jpg [area_modifier] => 95.91 [parent_name] => Стены 2 этаж (несущие) [parent_id] => 5 [material_sum] => 288944 [work_sum] => 266064 [total_sum] => 555008 [total_days] => 15 [display_material_sum] => 288 944 [display_work_sum] => 266 064 [display_total_sum] => 555 008 ) 1
555 008
Работа:266 064
Материалы:288 944
Дни:15
stdClass Object ( [id] => 245 [attribute_id] => 5 [name] => Теплая керамика [material_modifier] => 1 [work_modifier] => 1 [options] => Array ( [0] => 380 мм [1] => 380 мм Thermo [2] => 440 мм [3] => 510 мм ) [days] => [10,10,11,12] [material_price] => [4510,5098,6093,8013] [work_price] => [4737,4937,5903,6958] [image] => https://akademik-stroy.ru/wp-content/uploads/materials/teplaya-keramika.jpg [area_modifier] => 95.91 [parent_name] => Стены 2 этаж (несущие) [parent_id] => 5 [material_sum] => 545018 [work_sum] => 477042 [total_sum] => 1022060 [total_days] => 10 [display_material_sum] => 545 018 [display_work_sum] => 477 042 [display_total_sum] => 1 022 060 ) 1
1 022 060
Работа:477 042
Материалы:545 018
Дни:10
stdClass Object ( [id] => 246 [attribute_id] => 5 [name] => Несъемная опалубка [material_modifier] => 1 [work_modifier] => 1 [options] => Array ( [0] => 380 мм [1] => 380 мм Thermo [2] => 440 мм [3] => 510 мм ) [days] => [10,10,11,12] [material_price] => [3302,3902,4108,5008] [work_price] => [2100,2100,2300,2534] [image] => https://akademik-stroy.ru/wp-content/uploads/materials/nesemnaya-opalubka.jpg [area_modifier] => 95.91 [parent_name] => Стены 2 этаж (несущие) [parent_id] => 5 [material_sum] => 399035 [work_sum] => 211482 [total_sum] => 610517 [total_days] => 10 [display_material_sum] => 399 035 [display_work_sum] => 211 482 [display_total_sum] => 610 517 ) 1
610 517
Работа:211 482
Материалы:399 035
Дни:10
stdClass Object ( [id] => 254 [attribute_id] => 5 [name] => Бревно [material_modifier] => 1 [work_modifier] => 1 [options] => Array ( [0] => 260 мм [1] => 320 мм [2] => 360 мм [3] => 400 мм [4] => 500 мм ) [days] => [7,8,9,10,11] [material_price] => [1874,24045,26930,30972,38825] [work_price] => [5046,6207,6952,7716,9723] [image] => https://akademik-stroy.ru/wp-content/uploads/materials/sruby.jpg [area_modifier] => 95.91 [parent_name] => Стены 2 этаж (несущие) [parent_id] => 5 [material_sum] => 226467 [work_sum] => 508160 [total_sum] => 734627 [total_days] => 7 [display_material_sum] => 226 467 [display_work_sum] => 508 160 [display_total_sum] => 734 627 ) 1
734 627
Работа:508 160
Материалы:226 467
Дни:7
Крыша (Скатная)
stdClass Object ( [id] => 164 [attribute_id] => 37 [name] => Металлочерепица [material_modifier] => 1 [work_modifier] => 1 [options] => Array ( ) [days] => [20] [material_price] => [6112] [work_price] => [5726] [image] => https://akademik-stroy.ru/wp-content/uploads/materials/metallocherepica.jpg [area_modifier] => 114.31 [parent_name] => Крыша (Скатная) [parent_id] => 37 [material_sum] => 880315 [work_sum] => 687266 [total_sum] => 1567581 [total_days] => 20 [display_material_sum] => 880 315 [display_work_sum] => 687 266 [display_total_sum] => 1 567 581 ) 1
1 567 581
Работа:687 266
Материалы:880 315
Дни:20
stdClass Object ( [id] => 165 [attribute_id] => 37 [name] => Гибкая черепица [material_modifier] => 1 [work_modifier] => 1 [options] => Array ( ) [days] => [20] [material_price] => [6980] [work_price] => [5950] [image] => https://akademik-stroy.ru/wp-content/uploads/materials/gibkaya-cherepica.jpg [area_modifier] => 114.31 [parent_name] => Крыша (Скатная) [parent_id] => 37 [material_sum] => 1005334 [work_sum] => 714152 [total_sum] => 1719486 [total_days] => 20 [display_material_sum] => 1 005 334 [display_work_sum] => 714 152 [display_total_sum] => 1 719 486 ) 1
1 719 486
Работа:714 152
Материалы:1 005 334
Дни:20
stdClass Object ( [id] => 166 [attribute_id] => 37 [name] => Цементно-песчаная черепица [material_modifier] => 1 [work_modifier] => 1 [options] => Array ( ) [days] => [20] [material_price] => [10560] [work_price] => [9456] [image] => https://akademik-stroy.ru/wp-content/uploads/materials/cementno-peschanaya-cherepica.jpg [area_modifier] => 114.31 [parent_name] => Крыша (Скатная) [parent_id] => 37 [material_sum] => 1520963 [work_sum] => 1134961 [total_sum] => 2655924 [total_days] => 20 [display_material_sum] => 1 520 963 [display_work_sum] => 1 134 961 [display_total_sum] => 2 655 924 ) 1
2 655 924
Работа:1 134 961
Материалы:1 520 963
Дни:20
stdClass Object ( [id] => 167 [attribute_id] => 37 [name] => Композитная черепица [material_modifier] => 1 [work_modifier] => 1 [options] => Array ( ) [days] => [20] [material_price] => [9506] [work_price] => [8905] [image] => https://akademik-stroy.ru/wp-content/uploads/materials/kompozitnaya-cherepica.jpg [area_modifier] => 114.31 [parent_name] => Крыша (Скатная) [parent_id] => 37 [material_sum] => 1369155 [work_sum] => 1068827 [total_sum] => 2437982 [total_days] => 20 [display_material_sum] => 1 369 155 [display_work_sum] => 1 068 827 [display_total_sum] => 2 437 982 ) 1
2 437 982
Работа:1 068 827
Материалы:1 369 155
Дни:20
stdClass Object ( [id] => 168 [attribute_id] => 37 [name] => Керамическая черепица [material_modifier] => 1 [work_modifier] => 1 [options] => Array ( ) [days] => [20] [material_price] => [12750] [work_price] => [9456] [image] => https://akademik-stroy.ru/wp-content/uploads/materials/keramicheskaya-cherepica.jpg [area_modifier] => 114.31 [parent_name] => Крыша (Скатная) [parent_id] => 37 [material_sum] => 1836390 [work_sum] => 1134961 [total_sum] => 2971351 [total_days] => 20 [display_material_sum] => 1 836 390 [display_work_sum] => 1 134 961 [display_total_sum] => 2 971 351 ) 1
2 971 351
Работа:1 134 961
Материалы:1 836 390
Дни:20
stdClass Object ( [id] => 169 [attribute_id] => 37 [name] => Металлическая фальцевая [material_modifier] => 1 [work_modifier] => 1 [options] => Array ( ) [days] => [20] [material_price] => [8550] [work_price] => [8190] [image] => https://akademik-stroy.ru/wp-content/uploads/materials/metallicheskaya-falcevaya.jpg [area_modifier] => 114.31 [parent_name] => Крыша (Скатная) [parent_id] => 37 [material_sum] => 1231462 [work_sum] => 983009 [total_sum] => 2214471 [total_days] => 20 [display_material_sum] => 1 231 462 [display_work_sum] => 983 009 [display_total_sum] => 2 214 471 ) 1
2 214 471
Работа:983 009
Материалы:1 231 462
Дни:20
stdClass Object ( [id] => 170 [attribute_id] => 37 [name] => Медная фальцевая [material_modifier] => 1 [work_modifier] => 1 [options] => Array ( ) [days] => [20] [material_price] => [20450] [work_price] => [16750] [image] => https://akademik-stroy.ru/wp-content/uploads/materials/mednaya-falcevaya.jpg [area_modifier] => 114.31 [parent_name] => Крыша (Скатная) [parent_id] => 37 [material_sum] => 2945426 [work_sum] => 2010427 [total_sum] => 4955853 [total_days] => 20 [display_material_sum] => 2 945 426 [display_work_sum] => 2 010 427 [display_total_sum] => 4 955 853 ) 1
4 955 853
Работа:2 010 427
Материалы:2 945 426
Дни:20
stdClass Object ( [id] => 171 [attribute_id] => 37 [name] => Зеленая кровля [material_modifier] => 1 [work_modifier] => 1 [options] => Array ( ) [days] => [20] [material_price] => [19850] [work_price] => [16780] [image] => https://akademik-stroy.ru/wp-content/uploads/materials/zelenaya-krovlya.jpg [area_modifier] => 114.31 [parent_name] => Крыша (Скатная) [parent_id] => 37 [material_sum] => 2859007 [work_sum] => 2014028 [total_sum] => 4873035 [total_days] => 20 [display_material_sum] => 2 859 007 [display_work_sum] => 2 014 028 [display_total_sum] => 4 873 035 ) 1
4 873 035
Работа:2 014 028
Материалы:2 859 007
Дни:20
stdClass Object ( [id] => 172 [attribute_id] => 37 [name] => Профлист [material_modifier] => 1 [work_modifier] => 1 [options] => Array ( ) [days] => [20] [material_price] => [3450] [work_price] => [3750] [image] => https://akademik-stroy.ru/wp-content/uploads/materials/proflist.jpg [area_modifier] => 114.31 [parent_name] => Крыша (Скатная) [parent_id] => 37 [material_sum] => 496906 [work_sum] => 450096 [total_sum] => 947002 [total_days] => 20 [display_material_sum] => 496 906 [display_work_sum] => 450 096 [display_total_sum] => 947 002 ) 1
947 002
Работа:450 096
Материалы:496 906
Дни:20
Окна
stdClass Object ( [id] => 51 [attribute_id] => 26 [name] => Есть [material_modifier] => 1 [work_modifier] => 1 [options] => Array ( [0] => Профиль 58 мм, 3-камерный, стеклопакет 2-камерный до 32 мм [1] => Профиль 60 мм, 4-камерный, стеклопакет 2-камерный до 32 мм [2] => Профиль 70 мм, 5-камерный, стеклопакет 2-камерный до 40 мм [3] => Профиль 72 мм, 5-камерный, стеклопакет 2-камерный до 40 мм [4] => Алюминиевые окна Alutech профиль 72 мм, стеклопакет 2-камерный ) [days] => [3,3,3,3,3] [material_price] => [1339,2124,2867,3023,29596] [work_price] => [635,647,659,668,2579] [image] => https://akademik-stroy.ru/wp-content/uploads/materials/okna.jpg [area_modifier] => 170.59 [parent_name] => Окна [parent_id] => 26 [material_sum] => 287809 [work_sum] => 113741 [total_sum] => 401550 [total_days] => 3 [display_material_sum] => 287 809 [display_work_sum] => 113 741 [display_total_sum] => 401 550 ) 1
401 550
Работа:113 741
Материалы:287 809
Дни:3
stdClass Object ( [id] => 52 [attribute_id] => 26 [name] => Нет [material_modifier] => 2 [work_modifier] => 1 [options] => [days] => null [material_price] => null [work_price] => null [image] => https://akademik-stroy.ru/wp-content/uploads/materials/okna.jpg [area_modifier] => 170.59 [parent_name] => Окна [parent_id] => 26 [material_sum] => 0 [work_sum] => 0 [total_sum] => 0 [total_days] => 0 [display_material_sum] => 0 [display_work_sum] => 0 [display_total_sum] => 0 ) 1
0
Работа:0
Материалы:0
Дни:0
Двери входные
stdClass Object ( [id] => 53 [attribute_id] => 27 [name] => Есть [material_modifier] => 1 [work_modifier] => 1 [options] => Array ( ) [days] => [1] [material_price] => [10000] [work_price] => [5500] [image] => https://akademik-stroy.ru/wp-content/uploads/materials/dveri.jpg [area_modifier] => 1 [parent_name] => Двери входные [parent_id] => 27 [material_sum] => 12600 [work_sum] => 5775 [total_sum] => 18375 [total_days] => 1 [display_material_sum] => 12 600 [display_work_sum] => 5 775 [display_total_sum] => 18 375 ) 1
18 375
Работа:5 775
Материалы:12 600
Дни:1
stdClass Object ( [id] => 54 [attribute_id] => 27 [name] => Нет [material_modifier] => 1 [work_modifier] => 1 [options] => Array ( ) [days] => [0] [material_price] => [0] [work_price] => [0] [image] => https://akademik-stroy.ru/wp-content/uploads/materials/dveri.jpg [area_modifier] => 1 [parent_name] => Двери входные [parent_id] => 27 [material_sum] => 0 [work_sum] => 0 [total_sum] => 0 [total_days] => 0 [display_material_sum] => 0 [display_work_sum] => 0 [display_total_sum] => 0 ) 1
0
Работа:0
Материалы:0
Дни:0
Утепление кровли (Мансарда)
stdClass Object ( [id] => 25 [attribute_id] => 13 [name] => Нет [material_modifier] => 1 [work_modifier] => 1 [options] => Array ( ) [days] => [0] [material_price] => [0] [work_price] => [0] [image] => https://akademik-stroy.ru/wp-content/uploads/materials/mineralovata-krov.jpg [area_modifier] => 114.31 [parent_name] => Утепление кровли (Мансарда) [parent_id] => 13 [material_sum] => 0 [work_sum] => 0 [total_sum] => 0 [total_days] => 0 [display_material_sum] => 0 [display_work_sum] => 0 [display_total_sum] => 0 ) 1
0
Работа:0
Материалы:0
Дни:0
stdClass Object ( [id] => 26 [attribute_id] => 13 [name] => Минераловатный [material_modifier] => 1 [work_modifier] => 1 [options] => Array ( [0] => 50 мм [1] => 100 мм [2] => 150 мм [3] => 200 мм [4] => 250 мм [5] => 300 мм [6] => 350 мм [7] => 400 мм [8] => 450 мм [9] => 500 мм ) [days] => [5,5,6,6,6,7,7,7,8,8] [material_price] => [1158,1414,1772,2230,3602,4060,4974,5890,6408,7718] [work_price] => [650,846,846,1098,1318,1450,1596,1754,1930,2122] [image] => https://akademik-stroy.ru/wp-content/uploads/materials/mineralovata-krov.jpg [area_modifier] => 114.31 [parent_name] => Утепление кровли (Мансарда) [parent_id] => 13 [material_sum] => 166787 [work_sum] => 78017 [total_sum] => 244804 [total_days] => 5 [display_material_sum] => 166 787 [display_work_sum] => 78 017 [display_total_sum] => 244 804 ) 1
244 804
Работа:78 017
Материалы:166 787
Дни:5
stdClass Object ( [id] => 123 [attribute_id] => 13 [name] => Эковата (целлюлозная вата) [material_modifier] => 1 [work_modifier] => 1 [options] => Array ( [0] => 50 мм [1] => 100 мм [2] => 150 мм [3] => 200 мм [4] => 250 мм [5] => 300 мм [6] => 350 мм [7] => 400 мм [8] => 450 мм [9] => 500 мм ) [days] => [3,3,4,4,4,5,5,5,5,5] [material_price] => [820,1638,2458,3276,5734,6552,8190,9828,11466,13104] [work_price] => [234,304,304,396,474,522,574,632,694,764] [image] => https://akademik-stroy.ru/wp-content/uploads/materials/ehkovata-krov.jpg [area_modifier] => 114.31 [parent_name] => Утепление кровли (Мансарда) [parent_id] => 13 [material_sum] => 118105 [work_sum] => 28086 [total_sum] => 146191 [total_days] => 3 [display_material_sum] => 118 105 [display_work_sum] => 28 086 [display_total_sum] => 146 191 ) 1
146 191
Работа:28 086
Материалы:118 105
Дни:3
stdClass Object ( [id] => 124 [attribute_id] => 13 [name] => Экструдированный пенополистирол [material_modifier] => 1 [work_modifier] => 1 [options] => Array ( [0] => 50 мм [1] => 100 мм [2] => 150 мм [3] => 200 мм [4] => 250 мм [5] => 300 мм [6] => 350 мм [7] => 400 мм [8] => 450 мм [9] => 500 мм ) [days] => [3,3,4,4,4,5,5,5,5,6] [material_price] => [1146,2292,3438,4584,8020,9166,11458,13750,16040,18332] [work_price] => [390,508,508,660,790,870,958,1052,1158,1274] [image] => https://akademik-stroy.ru/wp-content/uploads/materials/epps-krov.jpg [area_modifier] => 114.31 [parent_name] => Утепление кровли (Мансарда) [parent_id] => 13 [material_sum] => 165059 [work_sum] => 46810 [total_sum] => 211869 [total_days] => 3 [display_material_sum] => 165 059 [display_work_sum] => 46 810 [display_total_sum] => 211 869 ) 1
211 869
Работа:46 810
Материалы:165 059
Дни:3
stdClass Object ( [id] => 125 [attribute_id] => 13 [name] => ПСБ (ППС-пенополистирол) [material_modifier] => 1 [work_modifier] => 1 [options] => Array ( [0] => 50 мм [1] => 100 мм [2] => 150 мм [3] => 200 мм [4] => 250 мм [5] => 300 мм [6] => 350 мм [7] => 400 мм [8] => 450 мм [9] => 500 мм ) [days] => [3,3,4,4,4,5,5,5,5,6] [material_price] => [476,954,1430,1906,3336,3814,4766,5720,6674,7626] [work_price] => [390,508,508,660,790,870,958,1052,1158,1274] [image] => https://akademik-stroy.ru/wp-content/uploads/materials/psb-krov.jpg [area_modifier] => 114.31 [parent_name] => Утепление кровли (Мансарда) [parent_id] => 13 [material_sum] => 68559 [work_sum] => 46810 [total_sum] => 115369 [total_days] => 3 [display_material_sum] => 68 559 [display_work_sum] => 46 810 [display_total_sum] => 115 369 ) 1
115 369
Работа:46 810
Материалы:68 559
Дни:3
stdClass Object ( [id] => 126 [attribute_id] => 13 [name] => ППУ (Пенополиуретан) [material_modifier] => 1 [work_modifier] => 1 [options] => Array ( [0] => 50 мм [1] => 100 мм [2] => 150 мм [3] => 200 мм [4] => 250 мм [5] => 300 мм [6] => 350 мм [7] => 400 мм [8] => 450 мм [9] => 500 мм ) [days] => [2,2,3,3,3,3,4,4,4,4] [material_price] => [2080,4160,6240,8320,14560,16640,20800,24960,29120,33280] [work_price] => [234,304,304,396,474,522,574,632,694,764] [image] => https://akademik-stroy.ru/wp-content/uploads/materials/ppu-krov.jpg [area_modifier] => 114.31 [parent_name] => Утепление кровли (Мансарда) [parent_id] => 13 [material_sum] => 299584 [work_sum] => 28086 [total_sum] => 327670 [total_days] => 2 [display_material_sum] => 299 584 [display_work_sum] => 28 086 [display_total_sum] => 327 670 ) 1
327 670
Работа:28 086
Материалы:299 584
Дни:2
stdClass Object ( [id] => 127 [attribute_id] => 13 [name] => PIR-плиты (пенополиизоцианурат) [material_modifier] => 1 [work_modifier] => 1 [options] => Array ( [0] => 50 мм [1] => 100 мм [2] => 150 мм [3] => 200 мм [4] => 250 мм [5] => 300 мм [6] => 350 мм [7] => 400 мм [8] => 450 мм [9] => 500 мм ) [days] => [3,3,4,4,4,5,5,5,5,6] [material_price] => [2646,5290,7936,10580,18516,21162,26452,31742,37032,42324] [work_price] => [390,508,508,660,790,870,958,1052,1158,1274] [image] => https://akademik-stroy.ru/wp-content/uploads/materials/pir-krov.jpg [area_modifier] => 114.31 [parent_name] => Утепление кровли (Мансарда) [parent_id] => 13 [material_sum] => 381105 [work_sum] => 46810 [total_sum] => 427915 [total_days] => 3 [display_material_sum] => 381 105 [display_work_sum] => 46 810 [display_total_sum] => 427 915 ) 1
427 915
Работа:46 810
Материалы:381 105
Дни:3
Мансардные окна
stdClass Object ( [id] => 27 [attribute_id] => 14 [name] => Нет [material_modifier] => 1 [work_modifier] => 1 [options] => Array ( ) [days] => [0] [material_price] => [0] [work_price] => [0] [image] => https://akademik-stroy.ru/wp-content/uploads/materials/mansardnye-okna-2.jpg [area_modifier] => 1 [parent_name] => Мансардные окна [parent_id] => 14 [material_sum] => 0 [work_sum] => 0 [total_sum] => 0 [total_days] => 0 [display_material_sum] => 0 [display_work_sum] => 0 [display_total_sum] => 0 ) 1
0
Работа:0
Материалы:0
Дни:0
stdClass Object ( [id] => 28 [attribute_id] => 14 [name] => Есть [material_modifier] => 1 [work_modifier] => 1 [options] => Array ( [0] => 55x78 [1] => 55x98 ) [days] => [6,7] [material_price] => [47480,68700] [work_price] => [17900,19500] [image] => https://akademik-stroy.ru/wp-content/uploads/materials/mansardnye-okna-2.jpg [area_modifier] => 1 [parent_name] => Мансардные окна [parent_id] => 14 [material_sum] => 59825 [work_sum] => 18795 [total_sum] => 78620 [total_days] => 6 [display_material_sum] => 59 825 [display_work_sum] => 18 795 [display_total_sum] => 78 620 ) 1
78 620
Работа:18 795
Материалы:59 825
Дни:6
Подшивка кровли
stdClass Object ( [id] => 29 [attribute_id] => 15 [name] => Нет [material_modifier] => 1 [work_modifier] => 1 [options] => Array ( ) [days] => [0] [material_price] => [0] [work_price] => [0] [image] => https://akademik-stroy.ru/wp-content/uploads/materials/sofit.jpg [area_modifier] => 114.31 [parent_name] => Подшивка кровли [parent_id] => 15 [material_sum] => 0 [work_sum] => 0 [total_sum] => 0 [total_days] => 0 [display_material_sum] => 0 [display_work_sum] => 0 [display_total_sum] => 0 ) 1
0
Работа:0
Материалы:0
Дни:0
stdClass Object ( [id] => 30 [attribute_id] => 15 [name] => Есть [material_modifier] => 1 [work_modifier] => 1 [options] => Array ( [0] => Софиты (ПВХ) [1] => Cedral [2] => ДПК [3] => Планкен ) [days] => [7,10,9,8] [material_price] => [1803,3213,3025,3150] [work_price] => [1529,2188,2075,1923] [image] => https://akademik-stroy.ru/wp-content/uploads/materials/sofit.jpg [area_modifier] => 114.31 [parent_name] => Подшивка кровли [parent_id] => 15 [material_sum] => 259687 [work_sum] => 183519 [total_sum] => 443206 [total_days] => 7 [display_material_sum] => 259 687 [display_work_sum] => 183 519 [display_total_sum] => 443 206 ) 1
443 206
Работа:183 519
Материалы:259 687
Дни:7
Водосточная система
stdClass Object ( [id] => 31 [attribute_id] => 16 [name] => Нет [material_modifier] => 1 [work_modifier] => 1 [options] => Array ( ) [days] => [0] [material_price] => [0] [work_price] => [0] [image] => https://akademik-stroy.ru/wp-content/uploads/materials/docke-standard-pvh.jpg [area_modifier] => 114.31 [parent_name] => Водосточная система [parent_id] => 16 [material_sum] => 0 [work_sum] => 0 [total_sum] => 0 [total_days] => 0 [display_material_sum] => 0 [display_work_sum] => 0 [display_total_sum] => 0 ) 1
0
Работа:0
Материалы:0
Дни:0
stdClass Object ( [id] => 32 [attribute_id] => 16 [name] => Есть [material_modifier] => 1 [work_modifier] => 1 [options] => Array ( [0] => Döcke Standard (ПВХ) [1] => Металлические Grand Line ) [days] => [7,7] [material_price] => [1842,2703] [work_price] => [1491,1529] [image] => https://akademik-stroy.ru/wp-content/uploads/materials/docke-standard-pvh.jpg [area_modifier] => 114.31 [parent_name] => Водосточная система [parent_id] => 16 [material_sum] => 265304 [work_sum] => 178958 [total_sum] => 444262 [total_days] => 7 [display_material_sum] => 265 304 [display_work_sum] => 178 958 [display_total_sum] => 444 262 ) 1
444 262
Работа:178 958
Материалы:265 304
Дни:7
Дополнительное утепление наружных стен
stdClass Object ( [id] => 33 [attribute_id] => 17 [name] => Нет [material_modifier] => 1 [work_modifier] => 1 [options] => Array ( ) [days] => [0] [material_price] => [0] [work_price] => [0] [image] => https://akademik-stroy.ru/wp-content/uploads/materials/mineralovata.jpg [area_modifier] => 210.22 [parent_name] => Дополнительное утепление наружных стен [parent_id] => 17 [material_sum] => 0 [work_sum] => 0 [total_sum] => 0 [total_days] => 0 [display_material_sum] => 0 [display_work_sum] => 0 [display_total_sum] => 0 ) 1
0
Работа:0
Материалы:0
Дни:0
stdClass Object ( [id] => 34 [attribute_id] => 17 [name] => Минераловатный [material_modifier] => 1 [work_modifier] => 1 [options] => Array ( [0] => 50 мм [1] => 100 мм [2] => 150 мм [3] => 200 мм [4] => 250 мм [5] => 300 мм ) [days] => [7,8,10,12,14,15] [material_price] => [3437,3613,3803,3915,4601,4830] [work_price] => [2325,2423,2523,2749,2859,3025] [image] => https://akademik-stroy.ru/wp-content/uploads/materials/mineralovata.jpg [area_modifier] => 210.22 [parent_name] => Дополнительное утепление наружных стен [parent_id] => 17 [material_sum] => 910383 [work_sum] => 513200 [total_sum] => 1423583 [total_days] => 7 [display_material_sum] => 910 383 [display_work_sum] => 513 200 [display_total_sum] => 1 423 583 ) 1
1 423 583
Работа:513 200
Материалы:910 383
Дни:7
stdClass Object ( [id] => 128 [attribute_id] => 17 [name] => Эковата (целлюлозная вата) [material_modifier] => 1 [work_modifier] => 1 [options] => Array ( [0] => 50 мм [1] => 100 мм [2] => 150 мм [3] => 200 мм [4] => 250 мм [5] => 300 мм ) [days] => [3,4,5,6,7,8] [material_price] => [810,1319,1629,1838,2267,2676] [work_price] => [1225,1323,1423,1549,1659,1725] [image] => https://akademik-stroy.ru/wp-content/uploads/materials/ehkovata.jpg [area_modifier] => 210.22 [parent_name] => Дополнительное утепление наружных стен [parent_id] => 17 [material_sum] => 214551 [work_sum] => 270395 [total_sum] => 484946 [total_days] => 3 [display_material_sum] => 214 551 [display_work_sum] => 270 395 [display_total_sum] => 484 946 ) 1
484 946
Работа:270 395
Материалы:214 551
Дни:3
stdClass Object ( [id] => 129 [attribute_id] => 17 [name] => Экструдированный пенополистирол [material_modifier] => 1 [work_modifier] => 1 [options] => Array ( [0] => 50 мм [1] => 100 мм [2] => 150 мм [3] => 200 мм [4] => 250 мм [5] => 300 мм ) [days] => [5,6,7,8,9,10] [material_price] => [4560,4300,5119,6292,7010,8583] [work_price] => [1795,1954,2254,2330,2595,2735] [image] => https://akademik-stroy.ru/wp-content/uploads/materials/epps.jpg [area_modifier] => 210.22 [parent_name] => Дополнительное утепление наружных стен [parent_id] => 17 [material_sum] => 1207840 [work_sum] => 396212 [total_sum] => 1604052 [total_days] => 5 [display_material_sum] => 1 207 840 [display_work_sum] => 396 212 [display_total_sum] => 1 604 052 ) 1
1 604 052
Работа:396 212
Материалы:1 207 840
Дни:5
stdClass Object ( [id] => 130 [attribute_id] => 17 [name] => ПСБ (ППС-пенополистирол) [material_modifier] => 1 [work_modifier] => 1 [options] => Array ( [0] => 50 мм [1] => 100 мм [2] => 150 мм [3] => 200 мм [4] => 250 мм [5] => 300 мм ) [days] => [5,6,7,8,9,10] [material_price] => [4822,5200,5819,6292,7010,7583] [work_price] => [1795,1954,2254,2330,2595,2735] [image] => https://akademik-stroy.ru/wp-content/uploads/materials/psb.jpg [area_modifier] => 210.22 [parent_name] => Дополнительное утепление наружных стен [parent_id] => 17 [material_sum] => 1277238 [work_sum] => 396212 [total_sum] => 1673450 [total_days] => 5 [display_material_sum] => 1 277 238 [display_work_sum] => 396 212 [display_total_sum] => 1 673 450 ) 1
1 673 450
Работа:396 212
Материалы:1 277 238
Дни:5
stdClass Object ( [id] => 131 [attribute_id] => 17 [name] => ППУ (Пенополиуретан) [material_modifier] => 1 [work_modifier] => 1 [options] => Array ( [0] => 50 мм [1] => 100 мм [2] => 150 мм [3] => 200 мм [4] => 250 мм [5] => 300 мм ) [days] => [3,4,5,6,7,8] [material_price] => [2860,3400,4219,4592,5010,5583] [work_price] => [729,900,980,1120,1280,1530] [image] => https://akademik-stroy.ru/wp-content/uploads/materials/ppu.jpg [area_modifier] => 210.22 [parent_name] => Дополнительное утепление наружных стен [parent_id] => 17 [material_sum] => 757549 [work_sum] => 160913 [total_sum] => 918462 [total_days] => 3 [display_material_sum] => 757 549 [display_work_sum] => 160 913 [display_total_sum] => 918 462 ) 1
918 462
Работа:160 913
Материалы:757 549
Дни:3
stdClass Object ( [id] => 132 [attribute_id] => 17 [name] => PIR-плиты (пенополиизоцианурат) [material_modifier] => 1 [work_modifier] => 1 [options] => Array ( [0] => 50 мм [1] => 100 мм [2] => 150 мм [3] => 200 мм [4] => 250 мм [5] => 300 мм ) [days] => [5,6,7,8,9,10] [material_price] => [8323,15645,20968,25900,29258,30581] [work_price] => [800,900,970,1150,1280,1330] [image] => https://akademik-stroy.ru/wp-content/uploads/materials/pir.jpg [area_modifier] => 210.22 [parent_name] => Дополнительное утепление наружных стен [parent_id] => 17 [material_sum] => 2204573 [work_sum] => 176585 [total_sum] => 2381158 [total_days] => 5 [display_material_sum] => 2 204 573 [display_work_sum] => 176 585 [display_total_sum] => 2 381 158 ) 1
2 381 158
Работа:176 585
Материалы:2 204 573
Дни:5
Наружная отделка фасада
stdClass Object ( [id] => 37 [attribute_id] => 19 [name] => Нет [material_modifier] => 1 [work_modifier] => 1 [options] => Array ( ) [days] => [0] [material_price] => [0] [work_price] => [0] [image] => https://akademik-stroy.ru/wp-content/uploads/materials/imitaciya-brusa.jpg [area_modifier] => 210.22 [parent_name] => Наружная отделка фасада [parent_id] => 19 [material_sum] => 0 [work_sum] => 0 [total_sum] => 0 [total_days] => 0 [display_material_sum] => 0 [display_work_sum] => 0 [display_total_sum] => 0 ) 1
0
Работа:0
Материалы:0
Дни:0
stdClass Object ( [id] => 38 [attribute_id] => 19 [name] => Имитация бруса [material_modifier] => 1 [work_modifier] => 1 [options] => Array ( [0] => Сосна [1] => Ель [2] => Лиственница ) [days] => [20,20,20] [material_price] => [2994,2762,4954] [work_price] => [1397,1231,1577] [image] => https://akademik-stroy.ru/wp-content/uploads/materials/imitaciya-brusa.jpg [area_modifier] => 210.22 [parent_name] => Наружная отделка фасада [parent_id] => 19 [material_sum] => 793042 [work_sum] => 308361 [total_sum] => 1101403 [total_days] => 20 [display_material_sum] => 793 042 [display_work_sum] => 308 361 [display_total_sum] => 1 101 403 ) 1
1 101 403
Работа:308 361
Материалы:793 042
Дни:20
stdClass Object ( [id] => 136 [attribute_id] => 19 [name] => Планкен [material_modifier] => 1 [work_modifier] => 1 [options] => Array ( [0] => Сосна [1] => Ель [2] => Лиственница ) [days] => [20,20,20] [material_price] => [3194,2862,5154] [work_price] => [1537,1354,1735] [image] => https://akademik-stroy.ru/wp-content/uploads/materials/planken.jpg [area_modifier] => 210.22 [parent_name] => Наружная отделка фасада [parent_id] => 19 [material_sum] => 846018 [work_sum] => 339264 [total_sum] => 1185282 [total_days] => 20 [display_material_sum] => 846 018 [display_work_sum] => 339 264 [display_total_sum] => 1 185 282 ) 1
1 185 282
Работа:339 264
Материалы:846 018
Дни:20
stdClass Object ( [id] => 137 [attribute_id] => 19 [name] => Штукатурка [material_modifier] => 1 [work_modifier] => 1 [options] => Array ( [0] => Цементно-песчаная (минеральная) [1] => Мокрый фасад ) [days] => [35,35] [material_price] => [2231,3938] [work_price] => [1202,2422] [image] => https://akademik-stroy.ru/wp-content/uploads/materials/shtukaturka.jpg [area_modifier] => 210.22 [parent_name] => Наружная отделка фасада [parent_id] => 19 [material_sum] => 590941 [work_sum] => 265319 [total_sum] => 856260 [total_days] => 35 [display_material_sum] => 590 941 [display_work_sum] => 265 319 [display_total_sum] => 856 260 ) 1
856 260
Работа:265 319
Материалы:590 941
Дни:35
stdClass Object ( [id] => 138 [attribute_id] => 19 [name] => Облицовочный кирпич [material_modifier] => 1 [work_modifier] => 1 [options] => Array ( [0] => Керамический [1] => Клинкерный [2] => Ручной формовки [3] => Гиперпрессованный [4] => Силикатный кирпич ) [days] => [45,45,45,45,45] [material_price] => [8174,9148,1040,1257,5876] [work_price] => [3240,3758,4536,4017,3369] [image] => https://akademik-stroy.ru/wp-content/uploads/materials/oblicovochnyj-kirpich.jpg [area_modifier] => 210.22 [parent_name] => Наружная отделка фасада [parent_id] => 19 [material_sum] => 2165106 [work_sum] => 715168 [total_sum] => 2880274 [total_days] => 45 [display_material_sum] => 2 165 106 [display_work_sum] => 715 168 [display_total_sum] => 2 880 274 ) 1
2 880 274
Работа:715 168
Материалы:2 165 106
Дни:45
stdClass Object ( [id] => 139 [attribute_id] => 19 [name] => Фасадная плитка [material_modifier] => 1 [work_modifier] => 1 [options] => Array ( [0] => Клинкерная [1] => Керамическая [2] => Плитка ручной формовки ) [days] => [40,40,40] [material_price] => [2974,1487,3470] [work_price] => [3007,2592,3629] [image] => https://akademik-stroy.ru/wp-content/uploads/materials/fasadnaya-plitka.jpg [area_modifier] => 210.22 [parent_name] => Наружная отделка фасада [parent_id] => 19 [material_sum] => 787745 [work_sum] => 663738 [total_sum] => 1451483 [total_days] => 40 [display_material_sum] => 787 745 [display_work_sum] => 663 738 [display_total_sum] => 1 451 483 ) 1
1 451 483
Работа:663 738
Материалы:787 745
Дни:40
stdClass Object ( [id] => 140 [attribute_id] => 19 [name] => Сайдинг [material_modifier] => 1 [work_modifier] => 1 [options] => Array ( [0] => Виниловый [1] => Металлический [2] => Фиброцементный ) [days] => [20,20,20] [material_price] => [1263,1944,4147] [work_price] => [1263,1944,2074] [image] => https://akademik-stroy.ru/wp-content/uploads/materials/sajding.jpg [area_modifier] => 210.22 [parent_name] => Наружная отделка фасада [parent_id] => 19 [material_sum] => 334540 [work_sum] => 278783 [total_sum] => 613323 [total_days] => 20 [display_material_sum] => 334 540 [display_work_sum] => 278 783 [display_total_sum] => 613 323 ) 1
613 323
Работа:278 783
Материалы:334 540
Дни:20
stdClass Object ( [id] => 141 [attribute_id] => 19 [name] => Камень [material_modifier] => 1 [work_modifier] => 1 [options] => Array ( [0] => Травертин [1] => Дагестанский [2] => Искусственный [3] => Натуральный [4] => Керамогранит ) [days] => [45,45,45,45,45] [material_price] => [4536,3888,2592,3240,2462] [work_price] => [3240,3240,2462,3110,1944] [image] => https://akademik-stroy.ru/wp-content/uploads/materials/kamen-1.jpg [area_modifier] => 210.22 [parent_name] => Наружная отделка фасада [parent_id] => 19 [material_sum] => 1201483 [work_sum] => 715168 [total_sum] => 1916651 [total_days] => 45 [display_material_sum] => 1 201 483 [display_work_sum] => 715 168 [display_total_sum] => 1 916 651 ) 1
1 916 651
Работа:715 168
Материалы:1 201 483
Дни:45
stdClass Object ( [id] => 142 [attribute_id] => 19 [name] => Термопанели [material_modifier] => 1 [work_modifier] => 1 [options] => Array ( ) [days] => [20] [material_price] => [6221] [work_price] => [2333] [image] => https://akademik-stroy.ru/wp-content/uploads/materials/termo.png [area_modifier] => 210.22 [parent_name] => Наружная отделка фасада [parent_id] => 19 [material_sum] => 1647801 [work_sum] => 514965 [total_sum] => 2162766 [total_days] => 20 [display_material_sum] => 1 647 801 [display_work_sum] => 514 965 [display_total_sum] => 2 162 766 ) 1
2 162 766
Работа:514 965
Материалы:1 647 801
Дни:20
stdClass Object ( [id] => 143 [attribute_id] => 19 [name] => Плитка HAUBERK [material_modifier] => 1 [work_modifier] => 1 [options] => Array ( ) [days] => [20] [material_price] => [2786] [work_price] => [1944] [image] => https://akademik-stroy.ru/wp-content/uploads/materials/hauberk.jpg [area_modifier] => 210.22 [parent_name] => Наружная отделка фасада [parent_id] => 19 [material_sum] => 737948 [work_sum] => 429101 [total_sum] => 1167049 [total_days] => 20 [display_material_sum] => 737 948 [display_work_sum] => 429 101 [display_total_sum] => 1 167 049 ) 1
1 167 049
Работа:429 101
Материалы:737 948
Дни:20
stdClass Object ( [id] => 144 [attribute_id] => 19 [name] => Фальцевый фасад [material_modifier] => 1 [work_modifier] => 1 [options] => Array ( ) [days] => [20] [material_price] => [3240] [work_price] => [2592] [image] => https://akademik-stroy.ru/wp-content/uploads/materials/falcevyj-fasad.jpg [area_modifier] => 210.22 [parent_name] => Наружная отделка фасада [parent_id] => 19 [material_sum] => 858202 [work_sum] => 572135 [total_sum] => 1430337 [total_days] => 20 [display_material_sum] => 858 202 [display_work_sum] => 572 135 [display_total_sum] => 1 430 337 ) 1
1 430 337
Работа:572 135
Материалы:858 202
Дни:20
stdClass Object ( [id] => 145 [attribute_id] => 19 [name] => Комбинированный [material_modifier] => 1 [work_modifier] => 1 [options] => Array ( ) [days] => [20] [material_price] => [4629] [work_price] => [3499] [image] => https://akademik-stroy.ru/wp-content/uploads/materials/Kombinirovannyj.jpg [area_modifier] => 210.22 [parent_name] => Наружная отделка фасада [parent_id] => 19 [material_sum] => 1226117 [work_sum] => 772338 [total_sum] => 1998455 [total_days] => 20 [display_material_sum] => 1 226 117 [display_work_sum] => 772 338 [display_total_sum] => 1 998 455 ) 1
1 998 455
Работа:772 338
Материалы:1 226 117
Дни:20
stdClass Object ( [id] => 257 [attribute_id] => 19 [name] => Японские фиброцементные [material_modifier] => 1 [work_modifier] => 1 [options] => Array ( ) [days] => [20] [material_price] => [7043] [work_price] => [2993] [image] => https://akademik-stroy.ru/wp-content/uploads/materials/paneli.jpg [area_modifier] => 210.22 [parent_name] => Наружная отделка фасада [parent_id] => 19 [material_sum] => 1865530 [work_sum] => 660648 [total_sum] => 2526178 [total_days] => 20 [display_material_sum] => 1 865 530 [display_work_sum] => 660 648 [display_total_sum] => 2 526 178 ) 1
2 526 178
Работа:660 648
Материалы:1 865 530
Дни:20
stdClass Object ( [id] => 258 [attribute_id] => 19 [name] => Панели Каньон [material_modifier] => 1 [work_modifier] => 1 [options] => Array ( ) [days] => [20] [material_price] => [4543] [work_price] => [2592] [image] => https://akademik-stroy.ru/wp-content/uploads/materials/kanon.png [area_modifier] => 210.22 [parent_name] => Наружная отделка фасада [parent_id] => 19 [material_sum] => 1203337 [work_sum] => 572135 [total_sum] => 1775472 [total_days] => 20 [display_material_sum] => 1 203 337 [display_work_sum] => 572 135 [display_total_sum] => 1 775 472 ) 1
1 775 472
Работа:572 135
Материалы:1 203 337
Дни:20
Террасы, крыльца, навесы
stdClass Object ( [id] => 39 [attribute_id] => 20 [name] => Нет [material_modifier] => 1 [work_modifier] => 1 [options] => Array ( ) [days] => [0] [material_price] => [0] [work_price] => [0] [image] => https://akademik-stroy.ru/wp-content/uploads/materials/terrasy.jpg [area_modifier] => 30 [parent_name] => Террасы, крыльца, навесы [parent_id] => 20 [material_sum] => 0 [work_sum] => 0 [total_sum] => 0 [total_days] => 0 [display_material_sum] => 0 [display_work_sum] => 0 [display_total_sum] => 0 ) 1
0
Работа:0
Материалы:0
Дни:0
stdClass Object ( [id] => 40 [attribute_id] => 20 [name] => Есть [material_modifier] => 1 [work_modifier] => 1 [options] => Array ( ) [days] => [5] [material_price] => [10450] [work_price] => [1950] [image] => https://akademik-stroy.ru/wp-content/uploads/materials/terrasy.jpg [area_modifier] => 30 [parent_name] => Террасы, крыльца, навесы [parent_id] => 20 [material_sum] => 395010 [work_sum] => 61425 [total_sum] => 456435 [total_days] => 5 [display_material_sum] => 395 010 [display_work_sum] => 61 425 [display_total_sum] => 456 435 ) 1
456 435
Работа:61 425
Материалы:395 010
Дни:5
Балконы
stdClass Object ( [id] => 41 [attribute_id] => 21 [name] => Нет [material_modifier] => 1 [work_modifier] => 1 [options] => Array ( ) [days] => [0] [material_price] => [0] [work_price] => [0] [image] => https://akademik-stroy.ru/wp-content/uploads/materials/balkony.jpg [area_modifier] => 30 [parent_name] => Балконы [parent_id] => 21 [material_sum] => 0 [work_sum] => 0 [total_sum] => 0 [total_days] => 0 [display_material_sum] => 0 [display_work_sum] => 0 [display_total_sum] => 0 ) 1
0
Работа:0
Материалы:0
Дни:0
stdClass Object ( [id] => 42 [attribute_id] => 21 [name] => Есть [material_modifier] => 1 [work_modifier] => 1 [options] => Array ( ) [days] => [12] [material_price] => [3600] [work_price] => [1950] [image] => https://akademik-stroy.ru/wp-content/uploads/materials/balkony.jpg [area_modifier] => 30 [parent_name] => Балконы [parent_id] => 21 [material_sum] => 136080 [work_sum] => 61425 [total_sum] => 197505 [total_days] => 12 [display_material_sum] => 136 080 [display_work_sum] => 61 425 [display_total_sum] => 197 505 ) 1
197 505
Работа:61 425
Материалы:136 080
Дни:12
Отмостка
stdClass Object ( [id] => 43 [attribute_id] => 22 [name] => Нет [material_modifier] => 1 [work_modifier] => 1 [options] => Array ( ) [days] => [0] [material_price] => [0] [work_price] => [0] [image] => https://akademik-stroy.ru/wp-content/uploads/materials/uteplennaya.jpg [area_modifier] => 114.31 [parent_name] => Отмостка [parent_id] => 22 [material_sum] => 0 [work_sum] => 0 [total_sum] => 0 [total_days] => 0 [display_material_sum] => 0 [display_work_sum] => 0 [display_total_sum] => 0 ) 1
0
Работа:0
Материалы:0
Дни:0
stdClass Object ( [id] => 44 [attribute_id] => 22 [name] => Утепленная отмостка [material_modifier] => 1 [work_modifier] => 1 [options] => Array ( ) [days] => [15] [material_price] => [2550] [work_price] => [1750] [image] => https://akademik-stroy.ru/wp-content/uploads/materials/uteplennaya.jpg [area_modifier] => 114.31 [parent_name] => Отмостка [parent_id] => 22 [material_sum] => 367278 [work_sum] => 210045 [total_sum] => 577323 [total_days] => 15 [display_material_sum] => 367 278 [display_work_sum] => 210 045 [display_total_sum] => 577 323 ) 1
577 323
Работа:210 045
Материалы:367 278
Дни:15
stdClass Object ( [id] => 146 [attribute_id] => 22 [name] => Не утепленная отмостка [material_modifier] => 1 [work_modifier] => 1 [options] => Array ( ) [days] => [10] [material_price] => [1650] [work_price] => [1450] [image] => https://akademik-stroy.ru/wp-content/uploads/materials/ne-uteplennaya.jpg [area_modifier] => 114.31 [parent_name] => Отмостка [parent_id] => 22 [material_sum] => 237650 [work_sum] => 174037 [total_sum] => 411687 [total_days] => 10 [display_material_sum] => 237 650 [display_work_sum] => 174 037 [display_total_sum] => 411 687 ) 1
411 687
Работа:174 037
Материалы:237 650
Дни:10
Дренаж вокруг дома
stdClass Object ( [id] => 45 [attribute_id] => 23 [name] => Нет [material_modifier] => 1 [work_modifier] => 1 [options] => Array ( ) [days] => [0] [material_price] => [0] [work_price] => [0] [image] => https://akademik-stroy.ru/wp-content/uploads/materials/drenazh-2.jpg [area_modifier] => 114.31 [parent_name] => Дренаж вокруг дома [parent_id] => 23 [material_sum] => 0 [work_sum] => 0 [total_sum] => 0 [total_days] => 0 [display_material_sum] => 0 [display_work_sum] => 0 [display_total_sum] => 0 ) 1
0
Работа:0
Материалы:0
Дни:0
stdClass Object ( [id] => 46 [attribute_id] => 23 [name] => Есть [material_modifier] => 1 [work_modifier] => 1 [options] => Array ( ) [days] => [5] [material_price] => [2366] [work_price] => [1911] [image] => https://akademik-stroy.ru/wp-content/uploads/materials/drenazh-2.jpg [area_modifier] => 114.31 [parent_name] => Дренаж вокруг дома [parent_id] => 23 [material_sum] => 340776 [work_sum] => 229369 [total_sum] => 570145 [total_days] => 5 [display_material_sum] => 340 776 [display_work_sum] => 229 369 [display_total_sum] => 570 145 ) 1
570 145
Работа:229 369
Материалы:340 776
Дни:5
Автономная канализация (септики)
stdClass Object ( [id] => 47 [attribute_id] => 24 [name] => Нет [material_modifier] => 1 [work_modifier] => 1 [options] => Array ( ) [days] => [0] [material_price] => [0] [work_price] => [0] [image] => https://akademik-stroy.ru/wp-content/uploads/materials/septik.jpg [area_modifier] => 1 [parent_name] => Автономная канализация (септики) [parent_id] => 24 [material_sum] => 0 [work_sum] => 0 [total_sum] => 0 [total_days] => 0 [display_material_sum] => 0 [display_work_sum] => 0 [display_total_sum] => 0 ) 1
0
Работа:0
Материалы:0
Дни:0
stdClass Object ( [id] => 48 [attribute_id] => 24 [name] => Есть [material_modifier] => 1 [work_modifier] => 1 [options] => Array ( [0] => Для дачи на 4 человека [1] => Для дома на 5 человек [2] => Для дома на 6 человек [3] => Для дома на 7 человек [4] => Для дома на 10 человек ) [days] => [7,7,7,8,8] [material_price] => [196340,220500,240940,264200,293340] [work_price] => [50000,55000,60500,66550,73206] [image] => https://akademik-stroy.ru/wp-content/uploads/materials/septik.jpg [area_modifier] => 1 [parent_name] => Автономная канализация (септики) [parent_id] => 24 [material_sum] => 247388 [work_sum] => 52500 [total_sum] => 299888 [total_days] => 7 [display_material_sum] => 247 388 [display_work_sum] => 52 500 [display_total_sum] => 299 888 ) 1
299 888
Работа:52 500
Материалы:247 388
Дни:7
Внутренние (не несущие) перегородки
stdClass Object ( [id] => 49 [attribute_id] => 25 [name] => Нет [material_modifier] => 1 [work_modifier] => 1 [options] => Array ( ) [days] => [0] [material_price] => [0] [work_price] => [0] [image] => https://akademik-stroy.ru/wp-content/uploads/materials/gkl.jpg [area_modifier] => 210.22 [parent_name] => Внутренние (не несущие) перегородки [parent_id] => 25 [material_sum] => 0 [work_sum] => 0 [total_sum] => 0 [total_days] => 0 [display_material_sum] => 0 [display_work_sum] => 0 [display_total_sum] => 0 ) 1
0
Работа:0
Материалы:0
Дни:0
stdClass Object ( [id] => 147 [attribute_id] => 25 [name] => Каркасно-обшивные [material_modifier] => 1 [work_modifier] => 1 [options] => Array ( [0] => 75 мм (без шумоизоляции) [1] => 75 мм (с шумоизоляцией) ) [days] => [11,11] [material_price] => [580,970] [work_price] => [380,570] [image] => https://akademik-stroy.ru/wp-content/uploads/materials/gkl.jpg [area_modifier] => 210.22 [parent_name] => Внутренние (не несущие) перегородки [parent_id] => 25 [material_sum] => 153629 [work_sum] => 83878 [total_sum] => 237507 [total_days] => 11 [display_material_sum] => 153 629 [display_work_sum] => 83 878 [display_total_sum] => 237 507 ) 1
237 507
Работа:83 878
Материалы:153 629
Дни:11
stdClass Object ( [id] => 148 [attribute_id] => 25 [name] => Пазогребневые [material_modifier] => 1 [work_modifier] => 1 [options] => Array ( [0] => 80 мм [1] => 100 мм ) [days] => [5,5] [material_price] => [1022,1313] [work_price] => [600,700] [image] => https://akademik-stroy.ru/wp-content/uploads/materials/pazogrebnevye-bloki.jpg [area_modifier] => 210.22 [parent_name] => Внутренние (не несущие) перегородки [parent_id] => 25 [material_sum] => 270704 [work_sum] => 132439 [total_sum] => 403143 [total_days] => 5 [display_material_sum] => 270 704 [display_work_sum] => 132 439 [display_total_sum] => 403 143 ) 1
403 143
Работа:132 439
Материалы:270 704
Дни:5
stdClass Object ( [id] => 149 [attribute_id] => 25 [name] => Газобетонные [material_modifier] => 1 [work_modifier] => 1 [options] => Array ( [0] => 100 мм [1] => 200 мм ) [days] => [11,11] [material_price] => [1160,1920] [work_price] => [700,900] [image] => https://akademik-stroy.ru/wp-content/uploads/materials/gazobeton-2.jpg [area_modifier] => 210.22 [parent_name] => Внутренние (не несущие) перегородки [parent_id] => 25 [material_sum] => 307258 [work_sum] => 154512 [total_sum] => 461770 [total_days] => 11 [display_material_sum] => 307 258 [display_work_sum] => 154 512 [display_total_sum] => 461 770 ) 1
461 770
Работа:154 512
Материалы:307 258
Дни:11
stdClass Object ( [id] => 150 [attribute_id] => 25 [name] => Кирпичные [material_modifier] => 1 [work_modifier] => 1 [options] => Array ( [0] => 120 мм [1] => 250 мм [2] => 360 мм ) [days] => [7,7,7] [material_price] => [1785,3570,5355] [work_price] => [900,1600,1800] [image] => https://akademik-stroy.ru/wp-content/uploads/materials/kirpich-1.jpg [area_modifier] => 210.22 [parent_name] => Внутренние (не несущие) перегородки [parent_id] => 25 [material_sum] => 472806 [work_sum] => 198658 [total_sum] => 671464 [total_days] => 7 [display_material_sum] => 472 806 [display_work_sum] => 198 658 [display_total_sum] => 671 464 ) 1
671 464
Работа:198 658
Материалы:472 806
Дни:7
Электрика
stdClass Object ( [id] => 55 [attribute_id] => 28 [name] => Нет [material_modifier] => 1 [work_modifier] => 1 [options] => Array ( ) [days] => [0] [material_price] => [0] [work_price] => [0] [image] => https://akademik-stroy.ru/wp-content/uploads/materials/ehlektrika.jpg [area_modifier] => 170.59 [parent_name] => Электрика [parent_id] => 28 [material_sum] => 0 [work_sum] => 0 [total_sum] => 0 [total_days] => 0 [display_material_sum] => 0 [display_work_sum] => 0 [display_total_sum] => 0 ) 1
0
Работа:0
Материалы:0
Дни:0
stdClass Object ( [id] => 56 [attribute_id] => 28 [name] => Есть [material_modifier] => 1 [work_modifier] => 1 [options] => Array ( ) [days] => [10] [material_price] => [650] [work_price] => [950] [image] => https://akademik-stroy.ru/wp-content/uploads/materials/ehlektrika.jpg [area_modifier] => 170.59 [parent_name] => Электрика [parent_id] => 28 [material_sum] => 139713 [work_sum] => 170164 [total_sum] => 309877 [total_days] => 10 [display_material_sum] => 139 713 [display_work_sum] => 170 164 [display_total_sum] => 309 877 ) 1
309 877
Работа:170 164
Материалы:139 713
Дни:10
Сантехника, канализация в доме
stdClass Object ( [id] => 57 [attribute_id] => 29 [name] => Нет [material_modifier] => 1 [work_modifier] => 1 [options] => Array ( ) [days] => [0] [material_price] => [0] [work_price] => [0] [image] => https://akademik-stroy.ru/wp-content/uploads/materials/santekhnika-kanalizaciya-1.jpg [area_modifier] => 170.59 [parent_name] => Сантехника, канализация в доме [parent_id] => 29 [material_sum] => 0 [work_sum] => 0 [total_sum] => 0 [total_days] => 0 [display_material_sum] => 0 [display_work_sum] => 0 [display_total_sum] => 0 ) 1
0
Работа:0
Материалы:0
Дни:0
stdClass Object ( [id] => 58 [attribute_id] => 29 [name] => Есть [material_modifier] => 1 [work_modifier] => 1 [options] => Array ( ) [days] => [10] [material_price] => [600] [work_price] => [730] [image] => https://akademik-stroy.ru/wp-content/uploads/materials/santekhnika-kanalizaciya-1.jpg [area_modifier] => 170.59 [parent_name] => Сантехника, канализация в доме [parent_id] => 29 [material_sum] => 128966 [work_sum] => 130757 [total_sum] => 259723 [total_days] => 10 [display_material_sum] => 128 966 [display_work_sum] => 130 757 [display_total_sum] => 259 723 ) 1
259 723
Работа:130 757
Материалы:128 966
Дни:10
Отопление
stdClass Object ( [id] => 59 [attribute_id] => 30 [name] => Нет [material_modifier] => 1 [work_modifier] => 1 [options] => Array ( ) [days] => [0] [material_price] => [0] [work_price] => [0] [image] => https://akademik-stroy.ru/wp-content/uploads/materials/otoplenie-1.jpg [area_modifier] => 170.59 [parent_name] => Отопление [parent_id] => 30 [material_sum] => 0 [work_sum] => 0 [total_sum] => 0 [total_days] => 0 [display_material_sum] => 0 [display_work_sum] => 0 [display_total_sum] => 0 ) 1
0
Работа:0
Материалы:0
Дни:0
stdClass Object ( [id] => 60 [attribute_id] => 30 [name] => Есть [material_modifier] => 1 [work_modifier] => 1 [options] => Array ( ) [days] => [5] [material_price] => [610] [work_price] => [560] [image] => https://akademik-stroy.ru/wp-content/uploads/materials/otoplenie-1.jpg [area_modifier] => 170.59 [parent_name] => Отопление [parent_id] => 30 [material_sum] => 131115 [work_sum] => 100307 [total_sum] => 231422 [total_days] => 5 [display_material_sum] => 131 115 [display_work_sum] => 100 307 [display_total_sum] => 231 422 ) 1
231 422
Работа:100 307
Материалы:131 115
Дни:5
Теплые полы
stdClass Object ( [id] => 61 [attribute_id] => 31 [name] => Нет [material_modifier] => 1 [work_modifier] => 1 [options] => Array ( ) [days] => [0] [material_price] => [0] [work_price] => [0] [image] => https://akademik-stroy.ru/wp-content/uploads/materials/vodyanye.jpg [area_modifier] => 30 [parent_name] => Теплые полы [parent_id] => 31 [material_sum] => 0 [work_sum] => 0 [total_sum] => 0 [total_days] => 0 [display_material_sum] => 0 [display_work_sum] => 0 [display_total_sum] => 0 ) 1
0
Работа:0
Материалы:0
Дни:0
stdClass Object ( [id] => 151 [attribute_id] => 31 [name] => Водяные [material_modifier] => 1 [work_modifier] => 1 [options] => Array ( ) [days] => [9] [material_price] => [10200] [work_price] => [2500] [image] => https://akademik-stroy.ru/wp-content/uploads/materials/vodyanye.jpg [area_modifier] => 30 [parent_name] => Теплые полы [parent_id] => 31 [material_sum] => 385560 [work_sum] => 78750 [total_sum] => 464310 [total_days] => 9 [display_material_sum] => 385 560 [display_work_sum] => 78 750 [display_total_sum] => 464 310 ) 1
464 310
Работа:78 750
Материалы:385 560
Дни:9
stdClass Object ( [id] => 152 [attribute_id] => 31 [name] => Электро [material_modifier] => 1 [work_modifier] => 1 [options] => Array ( ) [days] => [5] [material_price] => [6300] [work_price] => [1500] [image] => https://akademik-stroy.ru/wp-content/uploads/materials/ehlektricheskij.jpg [area_modifier] => 30 [parent_name] => Теплые полы [parent_id] => 31 [material_sum] => 238140 [work_sum] => 47250 [total_sum] => 285390 [total_days] => 5 [display_material_sum] => 238 140 [display_work_sum] => 47 250 [display_total_sum] => 285 390 ) 1
285 390
Работа:47 250
Материалы:238 140
Дни:5
Черновая отделка стен
stdClass Object ( [id] => 63 [attribute_id] => 32 [name] => Нет [material_modifier] => 1 [work_modifier] => 1 [options] => Array ( ) [days] => [0] [material_price] => [0] [work_price] => [0] [image] => https://akademik-stroy.ru/wp-content/uploads/materials/shtukaturka-shpatlevka-1.jpg [area_modifier] => 170.59 [parent_name] => Черновая отделка стен [parent_id] => 32 [material_sum] => 0 [work_sum] => 0 [total_sum] => 0 [total_days] => 0 [display_material_sum] => 0 [display_work_sum] => 0 [display_total_sum] => 0 ) 1
0
Работа:0
Материалы:0
Дни:0
stdClass Object ( [id] => 153 [attribute_id] => 32 [name] => Штукатурка и шпатлевка [material_modifier] => 1 [work_modifier] => 1 [options] => Array ( ) [days] => [20] [material_price] => [1850] [work_price] => [2600] [image] => https://akademik-stroy.ru/wp-content/uploads/materials/shtukaturka-shpatlevka-1.jpg [area_modifier] => 170.59 [parent_name] => Черновая отделка стен [parent_id] => 32 [material_sum] => 397645 [work_sum] => 465711 [total_sum] => 863356 [total_days] => 20 [display_material_sum] => 397 645 [display_work_sum] => 465 711 [display_total_sum] => 863 356 ) 1
863 356
Работа:465 711
Материалы:397 645
Дни:20
stdClass Object ( [id] => 154 [attribute_id] => 32 [name] => Гипсокортон на стены [material_modifier] => 1 [work_modifier] => 1 [options] => Array ( ) [days] => [15] [material_price] => [950] [work_price] => [2100] [image] => https://akademik-stroy.ru/wp-content/uploads/materials/gkl-1.jpg [area_modifier] => 170.59 [parent_name] => Черновая отделка стен [parent_id] => 32 [material_sum] => 204196 [work_sum] => 376151 [total_sum] => 580347 [total_days] => 15 [display_material_sum] => 204 196 [display_work_sum] => 376 151 [display_total_sum] => 580 347 ) 1
580 347
Работа:376 151
Материалы:204 196
Дни:15
stdClass Object ( [id] => 155 [attribute_id] => 32 [name] => Вагонка [material_modifier] => 1 [work_modifier] => 1 [options] => Array ( ) [days] => [15] [material_price] => [1250] [work_price] => [950] [image] => https://akademik-stroy.ru/wp-content/uploads/materials/vagonka.jpg [area_modifier] => 170.59 [parent_name] => Черновая отделка стен [parent_id] => 32 [material_sum] => 268679 [work_sum] => 170164 [total_sum] => 438843 [total_days] => 15 [display_material_sum] => 268 679 [display_work_sum] => 170 164 [display_total_sum] => 438 843 ) 1
438 843
Работа:170 164
Материалы:268 679
Дни:15
Черновая отделка полов
stdClass Object ( [id] => 65 [attribute_id] => 33 [name] => Нет [material_modifier] => 1 [work_modifier] => 1 [options] => Array ( ) [days] => [0] [material_price] => [0] [work_price] => [0] [image] => https://akademik-stroy.ru/wp-content/uploads/materials/styazhka.jpg [area_modifier] => 170.59 [parent_name] => Черновая отделка полов [parent_id] => 33 [material_sum] => 0 [work_sum] => 0 [total_sum] => 0 [total_days] => 0 [display_material_sum] => 0 [display_work_sum] => 0 [display_total_sum] => 0 ) 1
0
Работа:0
Материалы:0
Дни:0
stdClass Object ( [id] => 156 [attribute_id] => 33 [name] => Стяжка + наливные полы [material_modifier] => 1 [work_modifier] => 1 [options] => Array ( ) [days] => [10] [material_price] => [1000] [work_price] => [900] [image] => https://akademik-stroy.ru/wp-content/uploads/materials/styazhka.jpg [area_modifier] => 170.59 [parent_name] => Черновая отделка полов [parent_id] => 33 [material_sum] => 214943 [work_sum] => 161208 [total_sum] => 376151 [total_days] => 10 [display_material_sum] => 214 943 [display_work_sum] => 161 208 [display_total_sum] => 376 151 ) 1
376 151
Работа:161 208
Материалы:214 943
Дни:10
stdClass Object ( [id] => 157 [attribute_id] => 33 [name] => ОСБ на пол [material_modifier] => 1 [work_modifier] => 1 [options] => Array ( ) [days] => [7] [material_price] => [580] [work_price] => [350] [image] => https://akademik-stroy.ru/wp-content/uploads/materials/osb-1.jpg [area_modifier] => 170.59 [parent_name] => Черновая отделка полов [parent_id] => 33 [material_sum] => 124667 [work_sum] => 62692 [total_sum] => 187359 [total_days] => 7 [display_material_sum] => 124 667 [display_work_sum] => 62 692 [display_total_sum] => 187 359 ) 1
187 359
Работа:62 692
Материалы:124 667
Дни:7
Чистовая отделка стен и полов
stdClass Object ( [id] => 67 [attribute_id] => 34 [name] => Нет [material_modifier] => 1 [work_modifier] => 1 [options] => Array ( ) [days] => [0] [material_price] => [0] [work_price] => [0] [image] => https://akademik-stroy.ru/wp-content/uploads/materials/chistovaya-otdelka.jpg [area_modifier] => 170.59 [parent_name] => Чистовая отделка стен и полов [parent_id] => 34 [material_sum] => 0 [work_sum] => 0 [total_sum] => 0 [total_days] => 0 [display_material_sum] => 0 [display_work_sum] => 0 [display_total_sum] => 0 ) 1
0
Работа:0
Материалы:0
Дни:0
stdClass Object ( [id] => 68 [attribute_id] => 34 [name] => Есть [material_modifier] => 1 [work_modifier] => 1 [options] => Array ( ) [days] => [50] [material_price] => [6000] [work_price] => [3500] [image] => https://akademik-stroy.ru/wp-content/uploads/materials/chistovaya-otdelka.jpg [area_modifier] => 170.59 [parent_name] => Чистовая отделка стен и полов [parent_id] => 34 [material_sum] => 1289660 [work_sum] => 626918 [total_sum] => 1916578 [total_days] => 50 [display_material_sum] => 1 289 660 [display_work_sum] => 626 918 [display_total_sum] => 1 916 578 ) 1
1 916 578
Работа:626 918
Материалы:1 289 660
Дни:50
Отделка потолка
stdClass Object ( [id] => 69 [attribute_id] => 35 [name] => Нет [material_modifier] => 1 [work_modifier] => 1 [options] => Array ( ) [days] => [0] [material_price] => [0] [work_price] => [0] [image] => https://akademik-stroy.ru/wp-content/uploads/materials/mnogourovnevyj-gkl.jpg [area_modifier] => 170.59 [parent_name] => Отделка потолка [parent_id] => 35 [material_sum] => 0 [work_sum] => 0 [total_sum] => 0 [total_days] => 0 [display_material_sum] => 0 [display_work_sum] => 0 [display_total_sum] => 0 ) 1
0
Работа:0
Материалы:0
Дни:0
stdClass Object ( [id] => 70 [attribute_id] => 35 [name] => Есть [material_modifier] => 1 [work_modifier] => 1 [options] => Array ( [0] => Многоуровневый потолок из гипсокартона [1] => Многоуровневый потолок из гипсокартона и натяжного потолка [2] => Одноуровневый потолок из гипсокартона [3] => Одноуровневый натяжной потолок ) [days] => [10,10,1,1] [material_price] => [900,700,700,600] [work_price] => [1000,800,500,300] [image] => https://akademik-stroy.ru/wp-content/uploads/materials/mnogourovnevyj-gkl.jpg [area_modifier] => 170.59 [parent_name] => Отделка потолка [parent_id] => 35 [material_sum] => 193449 [work_sum] => 179120 [total_sum] => 372569 [total_days] => 10 [display_material_sum] => 193 449 [display_work_sum] => 179 120 [display_total_sum] => 372 569 ) 1
372 569
Работа:179 120
Материалы:193 449
Дни:10

Преимущества работы с нами

icon

7 этапов оплаты

icon

Независимый строительный надзор

icon

Экологически чистые материалы

icon

16 лет гарантии

icon

Онлайн-кабинет с веб-камерой

icon

Строители с опытом более 15 лет

icon

Собственное производство

Почему двухэтажный дом 15 на 10 метров — идеальный выбор для семьи в Москве

Когда речь заходит о строительстве собственного дома, каждый начинает думать о комфорте, функциональности и, разумеется, о бюджете. Ведь хочется сочетать все эти критерии, чтобы получить не просто жилище, а настоящее пространство для жизни и отдыха. Именно двухэтажный дом размером 15 на 10 метров с полезной площадью в 170,59 м² становится все более популярным вариантом среди московских семей. И это неудивительно. Первое, что привлекает в таком доме — его размер. Площадь в более чем 170 квадратных метров позволяет разместить все необходимые комнаты и, при этом, сохранить пространство для уюта и личного комфорта каждого члена семьи. Это не просто жилище, а оптимальный баланс между городской удобностью и загородным спокойствием. Уличный участок при этом также не нужно покупать слишком большой — минимальная ширина участка составляет 22,94 м, а длина — 17,64 м, что довольно компактно для Москвы и ее окраин. Кроме того, двухэтажная конструкция — удачное решение с точки зрения планировки: вы получаете полноценные этажи для разделения общественных и приватных зон, а также красивый вид на окрестности с верхнего этажа. Все эти преимущества подтверждает проект, который предлагает компания «Академик Строй». Сегодня мы подробно разберем, почему именно этот проект заслуживает вашего внимания и как можно заказать его легко и быстро по телефону +7 (980) 800-47-93.

Основные характеристики двухэтажного дома 15х10 м

Чтобы вы лучше понимали, о чем идет речь, соберем все ключевые параметры в одну таблицу. Это поможет наглядно оценить габариты и планировку дома.
Параметр Значение
Размеры дома 15 x 10 метров
Полезная площадь 170,59 м²
Жилая площадь 129,33 м²
Этажность 2 этажа
Количество спален 3
Количество санузлов 2
Площадь застройки 118,03 м²
Объем брутто 655 м³
Площадь крыши 186 м²
Угол наклона крыши 35°
Высота здания 7,68 м
Минимальная ширина участка 22,94 м
Минимальная длина участка 17,64 м
Тип крыши двускатная
Опции камин, терраса

Где и как заказать проект двухэтажного дома 15х10 в Москве

Для тех, кто уже решил, что хочет именно такой дом, вопрос стоит следующим образом: где найти надежного подрядчика, который профессионально подготовит проект и поможет запустить строительство? Ответ у компании «Академик Строй» — одного из ведущих разработчиков индивидуальных проектов домов в Москве. Почему именно «Академик Строй»? Во-первых, компания специализируется на современных, продуманных планировках, которые идеально впишутся в реалии московских участков по размерам и техническим требованиям. Проекты соответствуют всем строительным нормам и стандартам, включая энергоэффективность и устойчивость к местным климатическим условиям. Во-вторых, здесь оперативно обрабатывают заказы и всегда готовы проконсультировать по любым вопросам связанным с домом мечты. Не нужно изучать десятки сайтов и тратить время на переписку — достаточно позвонить по телефону +7 (980) 800-47-93 и получить подробную информацию о стоимости, сроках и дальнейших шагах. В-третьих, «Академик Строй» предлагает отличные цены: стоимость проекта двухэтажного дома 15x10 м с такой площадью и характеристиками будет выгодной для широкой аудитории, особенно если сравнивать с аналогичными предложениями на рынке.

Основные этапы заказа проекта

Процесс оформления заказа максимально прост и прозрачен, чтобы клиент чувствовал себя уверенно на каждом этапе.
  • Первичный звонок или заявка на сайте. Вы рассказываете о своих пожеланиях и особенностях участка.
  • Консультация и подбор подходящего проекта. Специалисты «Академик Строй» проводят детальный разбор и предлагают оптимальный вариант с учетом всех нюансов.
  • Подписание договора и согласование всех деталей. Вы утверждаете проект, в который вносятся ваши пожелания.
  • Получение полного пакета документов. Комплект для подачи в соответствующие инстанции и начала строительства.
  • Поддержка и сопровождение. При необходимости компания помогает советами и консультациями по всем возникающим вопросам.

Планировка двухэтажного дома 15х10 — как все устроено внутри

Проект с полезной площадью 170,59 м² заслуживает особого внимания именно благодаря хорошо продуманной планировке, которая учитывает потребности современной семьи из 3-5 человек. В этом доме комфортно жить и принимать гостей, и работать, и отдыхать.

Первый этаж — сердце дома с общими зонами

На первом этаже сосредоточены общие помещения — кухня, гостиная, столовая. Опция с камином создает уютную атмосферу, которая особенно полюбится в холодные московские вечера. Камин не только выделяет центр комнаты, но и является дополнительным источником тепла. Немаловажна и терраса — отличное место для отдыха на свежем воздухе без лишних усилий. Здесь можно устроить барбекю, завтракать по выходным или просто наслаждаться теплом солнца. Кроме общественных зон, на первом этаже есть и функциональные помещения, такие как санузел — одного из двух в доме. Это удобно для гостей и для быстрой бытовой организации пространства.

Второй этаж — зона отдыха и приватности

Второй этаж занимает жилая часть — три спальни, каждая из которых продумана для максимального комфорта. Это значит простор, естественное освещение и возможность уединиться. Гармония пространства располагает к полноценному отдыху и здоровому сну. Большое преимущество — наличие второго санузла, что значительно повышает комфорт жителей и гостей. Вот краткое распределение ключевых помещений на каждом этаже:
Этаж Основные помещения
Первый этаж Кухня, гостиная с камином, столовая, санузел, терраса
Второй этаж 3 спальни, санузел

Особенности конструкции дома и крыши

Современные проекты рассматривают не только внутренние размеры и планировку, но и технические аспекты строения, которые влияют на долговечность, комфорт и безопасность.

Тип крыши и ее преимущества

У выбранного проекта крыша двускатного типа с углом наклона 35°. Это оптимальное решение по нескольким причинам. Во-первых, двускатная крыша обеспечивает надежный сток осадков, что крайне важно для московского климата с достаточно снежными зимами. Во-вторых, угол наклона в 35° позволяет эффективно использовать мансарду при желании, а также значительно продлевает срок службы материалов кровли. Площадь крыши составляет 186 м², что свидетельствует о правильных габаритах и грамотном расчете конструкции. Высота здания — 7,68 м — не слишком большая, что облегчает монтаж и позволяет избежать излишних затрат на фундамент и стены.

Важность объема брутто — 655 м³

Объем брутто дома — это показатель, который включает всю внутреннюю и внешнюю поверхность помещения, позволяя оценить материалоемкость конструкции и будущие затраты на отопление и климат-контроль. Указанный объем в 655 м³ говорит о том, что проект сбалансирован и обеспечивает достаточную площадь воздуха внутри, что положительно отражается на микроклимате дома.

Для кого подходит проект 15x10 м — обзор целевой аудитории

Если вы задаетесь вопросом, насколько данный дом подойдет лично вам, давайте разберемся, кому особенно рекомендуют такой проект.
  • Средняя семья из 3-5 человек. Три спальни достаточно вместительны для родителей и детей, а наличие двух санузлов экономит время и сглаживает утренние «пробки».
  • Пары, планирующие расширение семьи. Вместительность дома позволяет адаптировать пространство под растущие потребности, например, использовать одну из комнат под кабинет, спортзал или гостевую.
  • Те, кто ценит отдых и приятную атмосферу. Наличие камина и террасы превращают дом в место для душевных встреч и расслабления после насыщенного дня.
  • Любители рациональной архитектуры. Компактные размеры участка по минимуму занимают землю, но при этом дают простор для организации придомового пространства и сада.

Каковы минимальные требования к участку под строительство?

Для многих потенциальных покупателей выбор проекта дома зависит от площади и формы участка. В данном случае минимальные параметры для комфортного возведения двухэтажного дома таким размером следующие:
  • Ширина участка: не менее 22,94 метра;
  • Длина участка: не менее 17,64 метра.
Эти параметры связаны с необходимостью соблюдения строительных нормативов, отступов от границ участка и удобного размещения дома с зонами отдыха и площадками для хозяйственных нужд. Если участок соответствует этим размерам, то домовладение будет полноценно воплощено без компромиссов.

Преимущества сотрудничества с компанией «Академик Строй»

Работая с профессионалами, вы получаете массу бонусов, которые существенно упрощают строительство дома и делают его более предсказуемым и экономичным.

Индивидуальный подход к проектированию

Компания внимательно изучает запросы заказчика, согласовывая все нюансы — от архитектуры и планировки до выбора отделочных материалов. Такой подход позволяет создать дом, максимально подходящий именно для вас, а не просто типовой стандарт.

Качество и безопасность

Все проекты соответствуют действующим строительным нормам и стандартам качества. Это означает комфортное проживание в любых погодных условиях, энергоэффективность и долгосрочную эксплуатацию дома без дополнительных затрат на ремонт.

Прозрачность цены и сроки

Одна из главных болей клиентов — непредсказуемость стоимости и сроков реализации. «Академик Строй» дает четкие сметы и соблюдает сроки, предоставляя полный пакет документов для начала строительства.

Сколько стоит проект двухэтажного дома 15x10 в Москве?

Цена на проект зависит от множества факторов: сложности архитектуры, дополнительных опций и эксклюзивных решений. Однако проект такого размера и уровня сложности будет доступен по оптимальной цене, если заказать его у проверенного подрядчика. Компания «Академик Строй» предлагает выгодные условия с учётом качества и сроков. Для точного расчета рекомендуется связаться с менеджерами по телефону +7 (980) 800-47-93, где вам расскажут о деталях, помогут подобрать варианты и оформить заказ с учетом всех ваших пожеланий.

Возможные опции и их влияние на стоимость

  • Установка камина — не только приятный эстетический элемент, но и дополнительный источник отопления;
  • Терраса — комфортное расширение жилого пространства;
Они могут чуть увеличивать стоимость, но существенно повышают уровень комфорта, неспособного сравниться с обычным коттеджем без таких удобств.

Почему именно сейчас стоит задуматься о заказе проекта?

Недвижимость и строительство в Москве и Подмосковье постоянно пользуются спросом, а цены на землю и услуги специалистов постепенно растут. Заказывая проект сейчас, вы получаете несколько весомых преимуществ:
  • Фиксация цены на услуги проектирования, пока курс валют и строительные материалы не изменили смету;
  • Своевременное оформление всех документов и согласование с надзорными органами;
  • Планирование строительства и возможность применять сезонные скидки в зависимости от времени года;
  • Преимущество в выборе подрядчиков и материалов благодаря раннему старту проекта.
Все это вместе означает, что успех и комфорт вашего будущего дома зависят именно от своевременных решений.

Часто задаваемые вопросы о проекте Двухэтажного дома 15x10

Можно ли изменить планировку и добавить гараж?

Компания «Академик Строй» предлагает индивидуальную доработку проектов, позволяющую добавить различные функциональные зоны, включая гараж, при необходимости. Однако базовый проект рассчитан без гаража, что упрощает процесс согласования.

Как осуществляется подготовка к строительству после заказа проекта?

Вы получаете полный пакет чертежей, инженерных расчетов и технической документации, необходимых для подачи разрешений в соответствующие органы и начала строительных работ.

Какие технологии и материалы рекомендуется использовать при реализации проекта?

Проект универсален и подходит для разных строительных систем: кирпич, газобетон, каркасные технологии. Конкретный выбор зависит от бюджета и предпочтений заказчика.

Подытожим: почему стоит выбрать двухэтажный дом 15х10 от «Академик Строй»?

Проект — это не просто лист с планами, а настоящая дорожная карта к дому вашей мечты. Вы получаете современную архитектуру, удобную планировку для всей семьи, а также гарантии качества и профессионализма от опытной компании. Размеры дома и площади подобраны таким образом, чтобы вмещать все необходимые зоны, не создавая при этом излишней громоздкости или сложностей в строительстве. Если вам близки идеи комфорта, функциональности и разумной цены — проект двухэтажного дома 15 на 10 метров площадью 170,59 м² станет идеальным выбором. Чтобы заказать и получить больше информации, звоните по телефону +7 (980) 800-47-93 — специалисты «Академик Строй» всегда готовы помочь каждому клиенту. Создайте пространство, где вам будет приятно жить, работать и отдыхать — начните с правильного проекта!