Двухэтажный дом 13x10 - 151.7 м2 за руб.

ID-76186

Стоимость дома 5480453 руб.
154 м2 Полезная
площадь
13 x 10 м Размеры
2 этажа Этажей
26 м2 Террасы
и балконы
1Без
гаража
4 Количество
спален
3 Количество
санузлов

Планировки

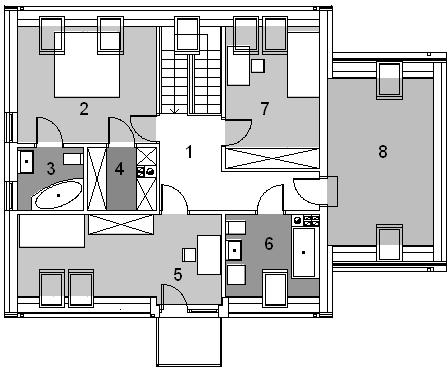
План первого этажа

floor image
  • 1. Прихожая 5,80 m²
  • 2. Коридор 6,56 m²
  • 3. Кладовая 2,48 m²
  • 4. Кухня 9,09 m²
  • 5. Гостиная + столовая 24,75 m²
  • 6. Комната 11,99 m²
  • 7. Ванная комната 3,59 m²
  • 8. Котельная 7,65 m²
  • 9. Гараж на 1 машину 19,43 m²
  • План первого этажа 91,34 m²

План мансарды

floor image
  • 1. Коридор 9,25 m²
  • 2. Комната 12,13 m²
  • 3. Ванная комната 3,96 m²
  • 4. Гардероб 4,14 m²
  • 5. Комната 2,03 m²
  • 6. Ванная комната 5,21 m²
  • 7. Комната 10,43 m²
  • 8. Чердак 13,21 m²
  • План мансарды 60,36 m²

Разрезы

Вертикальный разрез
Вертикальный разрез

Фасады

Передний
Задний
Левый
Правый
Передний
Задний
Левый
Правый

Подробная информация

Жилая площадь
119,06 m²
icon

Сумма площади всех жилых помещений, за вычетом пов. гараж, котельная, чердак, подвал. Учитывается в 100%, для помещений высотой более 2,2 м, в 50% для помещений с высотой 2,2-1,4 м и не включается для более низких помещений (меньше 1,4 м).

Площадь застройки
118,70 m²
icon

Площадь застройки здания определяется как площадь горизонтального сечения по внешнему обводу здания на уровне цоколя, включая выступающие части.

Угол наклона крыши
40°
icon

Наклон ската крыши в градусах. Внимание! В некоторых проектах возникает более чем один наклон крыши.

Высота здания
8,58 m
icon

Высота измеряется от поверхности земли до самой высокой точки кровли (конька), за исключением дымоходов.

Мин. ширина участка
20,54 m
icon

Наименьшая возможная ширина участка, необходимая для строительства выбранного дома. Состоит из длины фасада дома плюс с обеих сторон три метра отступ.

Мин. длина участка
17,54 m
icon

Наименьшая возможная длина участка, необходимая для строительства выбранного дома. Состоит из длины фасада дома плюс с обеих сторон три метра отступ.

Материалы и опции
Общие
Цена, руб.
Площадь м²
190
Площадь от и до
Ежемесячный платёж, руб
Количество спален
4
Гараж
1
Количество санузлов
3
Тип крыши
Ширина
13
Глубина
10

Площади дома

№ п/п Наименование Ед. из. Строительная площадь Полезная площадь
1 1 этаж м2 112.56 91.34
2 2 этаж м2 74.38 60.36
3 Итого м2 186.94 151.7

ПРИГЛАШАЕМ НА ДЕНЬ ОТКРЫТЫХ ДВЕРЕЙ СТРОЯЩЕГОСЯ ДОМА

ХОЧУ ПОЕХАТЬ
День открытых дверей

Калькулятор опций

0

В ипотеку от 18 296 ₽/мес.

Фундамент
stdClass Object ( [id] => 1 [attribute_id] => 1 [name] => Ленточный монолитный ж/б [material_modifier] => 1 [work_modifier] => 1 [options] => Array ( [0] => размер 200 х 700 мм [1] => размер 300 х 900 мм [2] => размер 400 х 1 000 мм [3] => размер 500 х 1 100 мм [4] => размер 600 х 1 200 мм ) [days] => [20,21,22,25,30] [material_price] => [2823,3630,4475,5210,12047] [work_price] => [2154,2826,3731,4577,5293] [image] => https://akademik-stroy.ru/wp-content/uploads/materials/lentochnyj-monolitnyj-zh-b.jpg [area_modifier] => 112.56 [parent_name] => Фундамент [parent_id] => 1 [material_sum] => 419439 [work_sum] => 266700 [total_sum] => 686139 [total_days] => 20 [display_material_sum] => 419 439 [display_work_sum] => 266 700 [display_total_sum] => 686 139 ) 1
686 139
Работа:266 700
Материалы:419 439
Дни:20
stdClass Object ( [id] => 2 [attribute_id] => 1 [name] => Забивные Ж/Б сваи [material_modifier] => 1 [work_modifier] => 1 [options] => Array ( [0] => 150х150х3000мм [1] => 150х150х4000мм [2] => 200х200х3000мм [3] => 200х200х4000мм [4] => 200х200х5000мм [5] => 200х200х6000мм ) [days] => [2,2,2,2,2,2] [material_price] => [1990,2850,3255,4360,5120,6837] [work_price] => [1002,1185,1336,1438,1574,1839] [image] => https://akademik-stroy.ru/wp-content/uploads/materials/zabivnye-zh-b-svai.png [area_modifier] => 112.56 [parent_name] => Фундамент [parent_id] => 1 [material_sum] => 295673 [work_sum] => 124064 [total_sum] => 419737 [total_days] => 2 [display_material_sum] => 295 673 [display_work_sum] => 124 064 [display_total_sum] => 419 737 ) 1
419 737
Работа:124 064
Материалы:295 673
Дни:2
stdClass Object ( [id] => 71 [attribute_id] => 1 [name] => Свайно-ростверковый ж/б [material_modifier] => 1 [work_modifier] => 1 [options] => Array ( [0] => ростверк 200х300 мм [1] => ростверк 300х600 мм [2] => ростверк 400х900 мм [3] => ростверк 500х1200 мм ) [days] => [20,23,25,27] [material_price] => [3018,3474,7109,9792] [work_price] => [2024,3012,5635,7022] [image] => https://akademik-stroy.ru/wp-content/uploads/materials/svajno-rostverkovyj-monolitnyj-zh-b-3.png [area_modifier] => 112.56 [parent_name] => Фундамент [parent_id] => 1 [material_sum] => 448412 [work_sum] => 250604 [total_sum] => 699016 [total_days] => 20 [display_material_sum] => 448 412 [display_work_sum] => 250 604 [display_total_sum] => 699 016 ) 1
699 016
Работа:250 604
Материалы:448 412
Дни:20
stdClass Object ( [id] => 72 [attribute_id] => 1 [name] => Монолитная ж/б плита [material_modifier] => 1 [work_modifier] => 1 [options] => Array ( [0] => 200 мм [1] => 300 мм [2] => 400 мм [3] => 500 мм [4] => 600 мм ) [days] => [30,33,35,37,40] [material_price] => [5348,8555,12788,14388,15189] [work_price] => [4314,4881,7037,8061,10230] [image] => https://akademik-stroy.ru/wp-content/uploads/materials/monolitnaya-zhb-plita.png [area_modifier] => 112.56 [parent_name] => Фундамент [parent_id] => 1 [material_sum] => 794602 [work_sum] => 534142 [total_sum] => 1328744 [total_days] => 30 [display_material_sum] => 794 602 [display_work_sum] => 534 142 [display_total_sum] => 1 328 744 ) 1
1 328 744
Работа:534 142
Материалы:794 602
Дни:30
stdClass Object ( [id] => 73 [attribute_id] => 1 [name] => Утепленная шведская плита [material_modifier] => 1 [work_modifier] => 1 [options] => Array ( [0] => 200 мм [1] => 300 мм [2] => 400 мм [3] => 500 мм [4] => 600 мм ) [days] => [32,37,39,42,45] [material_price] => [10249,12692,13760,14936,16230] [work_price] => [5960,7337,8072,8878,9765] [image] => https://akademik-stroy.ru/wp-content/uploads/materials/uteplennaya-shvedskaya-plita.jpg [area_modifier] => 112.56 [parent_name] => Фундамент [parent_id] => 1 [material_sum] => 1522788 [work_sum] => 737943 [total_sum] => 2260731 [total_days] => 32 [display_material_sum] => 1 522 788 [display_work_sum] => 737 943 [display_total_sum] => 2 260 731 ) 1
2 260 731
Работа:737 943
Материалы:1 522 788
Дни:32
stdClass Object ( [id] => 75 [attribute_id] => 1 [name] => Ленточный из ФБС [material_modifier] => 1 [work_modifier] => 1 [options] => Array ( [0] => толщ. 300 мм [1] => толщ. 400 мм [2] => толщ. 500 мм [3] => толщ. 600 мм ) [days] => [20,20,20,20] [material_price] => [3675,4902,6126,7350] [work_price] => [2451,3264,4083,4902] [image] => https://akademik-stroy.ru/wp-content/uploads/materials/lentochnyj-iz-fbs.png [area_modifier] => 112.56 [parent_name] => Фундамент [parent_id] => 1 [material_sum] => 546029 [work_sum] => 303473 [total_sum] => 849502 [total_days] => 20 [display_material_sum] => 546 029 [display_work_sum] => 303 473 [display_total_sum] => 849 502 ) 1
849 502
Работа:303 473
Материалы:546 029
Дни:20
stdClass Object ( [id] => 76 [attribute_id] => 1 [name] => Цокольный этаж из ФБС [material_modifier] => 1 [work_modifier] => 1 [options] => Array ( [0] => толщ. 300 мм [1] => толщ. 400 мм [2] => толщ. 500 мм [3] => толщ. 600 мм ) [days] => [30,32,34,36] [material_price] => [20916,23299,26680,29060] [work_price] => [17524,18700,19873,21046] [image] => https://akademik-stroy.ru/wp-content/uploads/materials/cokolnyj-ehtazh-iz-fbs.jpg [area_modifier] => 112.56 [parent_name] => Фундамент [parent_id] => 1 [material_sum] => 3107683 [work_sum] => 2169752 [total_sum] => 5277435 [total_days] => 30 [display_material_sum] => 3 107 683 [display_work_sum] => 2 169 752 [display_total_sum] => 5 277 435 ) 1
5 277 435
Работа:2 169 752
Материалы:3 107 683
Дни:30
stdClass Object ( [id] => 77 [attribute_id] => 1 [name] => Цокольный этаж монолитный ж/б [material_modifier] => 1 [work_modifier] => 1 [options] => Array ( [0] => толщ. 200 мм [1] => толщ. 300 мм [2] => толщ. 400 мм [3] => толщ. 500 мм [4] => толщ. 600 мм ) [days] => [40,42,44,46,48] [material_price] => [25421,29148,32275,35602,37326] [work_price] => [20441,21907,23375,24841,26306] [image] => https://akademik-stroy.ru/wp-content/uploads/materials/cokolnyj-etazh-zh-b.jpg [area_modifier] => 112.56 [parent_name] => Фундамент [parent_id] => 1 [material_sum] => 3777032 [work_sum] => 2530923 [total_sum] => 6307955 [total_days] => 40 [display_material_sum] => 3 777 032 [display_work_sum] => 2 530 923 [display_total_sum] => 6 307 955 ) 1
6 307 955
Работа:2 530 923
Материалы:3 777 032
Дни:40
stdClass Object ( [id] => 191 [attribute_id] => 1 [name] => Винтовые сваи [material_modifier] => 1 [work_modifier] => 1 [options] => Array ( [0] => 57х200мм [1] => 76х250мм [2] => 108х300мм [3] => 133х350мм ) [days] => [1,1,2,2] [material_price] => [1200,1300,1450,1600] [work_price] => [400,600,900,1100] [image] => https://akademik-stroy.ru/wp-content/uploads/materials/vintovye-svai.png [area_modifier] => 112.56 [parent_name] => Фундамент [parent_id] => 1 [material_sum] => 178295 [work_sum] => 49526 [total_sum] => 227821 [total_days] => 1 [display_material_sum] => 178 295 [display_work_sum] => 49 526 [display_total_sum] => 227 821 ) 1
227 821
Работа:49 526
Материалы:178 295
Дни:1
Перекрытие цоколя
stdClass Object ( [id] => 3 [attribute_id] => 2 [name] => Деревянные балки [material_modifier] => 1 [work_modifier] => 1 [options] => Array ( [0] => без утепления [1] => утепление 200 мм [2] => утепление 250 мм [3] => утепление 300 мм [4] => утепление 350 мм [5] => утепление 400 мм [6] => утепление 450 мм [7] => утепление 500 мм ) [days] => [8,9,9,9,11,12,13,14] [material_price] => [1634,2042,2344,2947,3149,3652,3354,3557] [work_price] => [1230,1339,1393,1426,1460,1513,1587,1620] [image] => https://akademik-stroy.ru/wp-content/uploads/materials/derevyannye-balki.png [area_modifier] => 112.56 [parent_name] => Перекрытие цоколя [parent_id] => 2 [material_sum] => 242778 [work_sum] => 152294 [total_sum] => 395072 [total_days] => 8 [display_material_sum] => 242 778 [display_work_sum] => 152 294 [display_total_sum] => 395 072 ) 1
395 072
Работа:152 294
Материалы:242 778
Дни:8
stdClass Object ( [id] => 4 [attribute_id] => 2 [name] => Сборные ж/б плиты [material_modifier] => 1 [work_modifier] => 1 [options] => Array ( [0] => без утепления [1] => утепление 150мм [2] => утепление 200мм [3] => утепление 250мм [4] => утепление 300мм [5] => утепление 350мм [6] => утепление 400мм [7] => утепление 450мм [8] => утепление 500мм ) [days] => [13,15,15,15,15,15,15,15,15] [material_price] => [3067,5577,5928,6679,7730,8782,9833,10884,11935] [work_price] => [1520,1956,2102,2247,2392,2537,2684,2829,2974] [image] => https://akademik-stroy.ru/wp-content/uploads/materials/sbornye-zh-b-plity-2.jpg [area_modifier] => 112.56 [parent_name] => Перекрытие цоколя [parent_id] => 2 [material_sum] => 455692 [work_sum] => 188200 [total_sum] => 643892 [total_days] => 13 [display_material_sum] => 455 692 [display_work_sum] => 188 200 [display_total_sum] => 643 892 ) 1
643 892
Работа:188 200
Материалы:455 692
Дни:13
stdClass Object ( [id] => 78 [attribute_id] => 2 [name] => Монолитная ж/б плита [material_modifier] => 1 [work_modifier] => 1 [options] => Array ( [0] => без утепления [1] => утепление 150 мм [2] => утепление 200 мм [3] => утепление 250 мм [4] => утепление 300 мм [5] => утепление 350 мм [6] => утепление 400 мм [7] => утепление 450 мм [8] => утепление 500 мм ) [days] => [18,20,20,20,20,20,20,20,20] [material_price] => [4837,6572,7224,7375,79426,8177,8728,9180,10031] [work_price] => [3348,3921,4112,4302,4493,4684,4875,5066,5256] [image] => https://akademik-stroy.ru/wp-content/uploads/materials/monolitnaya-zh-b-plita-2.jpg [area_modifier] => 112.56 [parent_name] => Перекрытие цоколя [parent_id] => 2 [material_sum] => 718678 [work_sum] => 414536 [total_sum] => 1133214 [total_days] => 18 [display_material_sum] => 718 678 [display_work_sum] => 414 536 [display_total_sum] => 1 133 214 ) 1
1 133 214
Работа:414 536
Материалы:718 678
Дни:18
Стены 1 этаж (несущие)
stdClass Object ( [id] => 6 [attribute_id] => 3 [name] => Пеноблок [material_modifier] => 1 [work_modifier] => 1 [options] => Array ( [0] => 300 мм [1] => 400 мм [2] => 500 мм [3] => 600 мм ) [days] => [29,31,34,39] [material_price] => [3000,4000,4500,4937] [work_price] => [5033,5805,6400,8710] [image] => https://akademik-stroy.ru/wp-content/uploads/materials/penoblok.jpg [area_modifier] => 112.56 [parent_name] => Стены 1 этаж (несущие) [parent_id] => 3 [material_sum] => 445738 [work_sum] => 623166 [total_sum] => 1068904 [total_days] => 29 [display_material_sum] => 445 738 [display_work_sum] => 623 166 [display_total_sum] => 1 068 904 ) 1
1 068 904
Работа:623 166
Материалы:445 738
Дни:29
stdClass Object ( [id] => 79 [attribute_id] => 3 [name] => Керамический блок [material_modifier] => 1 [work_modifier] => 1 [options] => Array ( [0] => 380 мм [1] => 380 мм Thermo [2] => 440 мм [3] => 510 мм ) [days] => [23,23,24,25] [material_price] => [4510,5098,6093,8013] [work_price] => [4737,4937,5903,6958] [image] => https://akademik-stroy.ru/wp-content/uploads/materials/keramicheskij-blok.jpg [area_modifier] => 112.56 [parent_name] => Стены 1 этаж (несущие) [parent_id] => 3 [material_sum] => 670092 [work_sum] => 586516 [total_sum] => 1256608 [total_days] => 23 [display_material_sum] => 670 092 [display_work_sum] => 586 516 [display_total_sum] => 1 256 608 ) 1
1 256 608
Работа:586 516
Материалы:670 092
Дни:23
stdClass Object ( [id] => 80 [attribute_id] => 3 [name] => Кирпич [material_modifier] => 1 [work_modifier] => 1 [options] => Array ( [0] => Кирпич 250 мм [1] => Кирпич 380 мм [2] => Кирпич 510 мм [3] => Кирпич 640 мм [4] => Кирпич 770 мм ) [days] => [30,30,31,33,36] [material_price] => [5500,7142,9206,10171,12235] [work_price] => [8736,10041,12018,15240,18462] [image] => https://akademik-stroy.ru/wp-content/uploads/materials/kirpich.jpg [area_modifier] => 112.56 [parent_name] => Стены 1 этаж (несущие) [parent_id] => 3 [material_sum] => 817186 [work_sum] => 1081657 [total_sum] => 1898843 [total_days] => 30 [display_material_sum] => 817 186 [display_work_sum] => 1 081 657 [display_total_sum] => 1 898 843 ) 1
1 898 843
Работа:1 081 657
Материалы:817 186
Дни:30
stdClass Object ( [id] => 81 [attribute_id] => 3 [name] => Монолитные [material_modifier] => 1 [work_modifier] => 1 [options] => Array ( [0] => 150 мм [1] => 200 мм [2] => 250 мм [3] => 300 мм [4] => 350 мм [5] => 400 мм ) [days] => [45,46,47,49,50,53] [material_price] => [6545,7876,10175,12011,13908,15204] [work_price] => [5106,6444,7698,8552,9807,11461] [image] => https://akademik-stroy.ru/wp-content/uploads/materials/monolitnye.jpg [area_modifier] => 112.56 [parent_name] => Стены 1 этаж (несущие) [parent_id] => 3 [material_sum] => 972451 [work_sum] => 632204 [total_sum] => 1604655 [total_days] => 45 [display_material_sum] => 972 451 [display_work_sum] => 632 204 [display_total_sum] => 1 604 655 ) 1
1 604 655
Работа:632 204
Материалы:972 451
Дни:45
stdClass Object ( [id] => 82 [attribute_id] => 3 [name] => Клееный брус [material_modifier] => 1 [work_modifier] => 1 [options] => Array ( [0] => 160 мм [1] => 175 мм [2] => 200 мм [3] => 215 мм [4] => 240 мм [5] => 270 мм [6] => 282 мм ) [days] => [24,28,32,37,40,42,48] [material_price] => [16975,18773,19950,20545,21599,22159,23275] [work_price] => [4806,5287,5815,6397,7036,7740,8514] [image] => https://akademik-stroy.ru/wp-content/uploads/materials/kleenyj-brus.jpg [area_modifier] => 112.56 [parent_name] => Стены 1 этаж (несущие) [parent_id] => 3 [material_sum] => 2522132 [work_sum] => 595060 [total_sum] => 3117192 [total_days] => 24 [display_material_sum] => 2 522 132 [display_work_sum] => 595 060 [display_total_sum] => 3 117 192 ) 1
3 117 192
Работа:595 060
Материалы:2 522 132
Дни:24
stdClass Object ( [id] => 83 [attribute_id] => 3 [name] => Каркасные [material_modifier] => 1 [work_modifier] => 1 [options] => Array ( [0] => 150 мм [1] => 200 мм [2] => 250 мм [3] => 300 мм ) [days] => [15,16,17,18] [material_price] => [2379,2639,2898,3258] [work_price] => [2418,2686,2985,3716] [image] => https://akademik-stroy.ru/wp-content/uploads/materials/karkasnye.jpg [area_modifier] => 112.56 [parent_name] => Стены 1 этаж (несущие) [parent_id] => 3 [material_sum] => 353470 [work_sum] => 299387 [total_sum] => 652857 [total_days] => 15 [display_material_sum] => 353 470 [display_work_sum] => 299 387 [display_total_sum] => 652 857 ) 1
652 857
Работа:299 387
Материалы:353 470
Дни:15
stdClass Object ( [id] => 84 [attribute_id] => 3 [name] => СИП-панели [material_modifier] => 1 [work_modifier] => 1 [options] => Array ( [0] => 120 мм [1] => 170 мм [2] => 220 мм ) [days] => [7,7,7] [material_price] => [1210,1856,2292] [work_price] => [1410,1551,1706] [image] => https://akademik-stroy.ru/wp-content/uploads/materials/sip-paneli.jpg [area_modifier] => 112.56 [parent_name] => Стены 1 этаж (несущие) [parent_id] => 3 [material_sum] => 179781 [work_sum] => 174581 [total_sum] => 354362 [total_days] => 7 [display_material_sum] => 179 781 [display_work_sum] => 174 581 [display_total_sum] => 354 362 ) 1
354 362
Работа:174 581
Материалы:179 781
Дни:7
stdClass Object ( [id] => 85 [attribute_id] => 3 [name] => Сухой брус [material_modifier] => 1 [work_modifier] => 1 [options] => Array ( [0] => 150 мм [1] => 180 мм [2] => 200 мм ) [days] => [7,8,9] [material_price] => [6010,7190,8709] [work_price] => [3204,3845,4229] [image] => https://akademik-stroy.ru/wp-content/uploads/materials/suhoj-brus.jpg [area_modifier] => 112.56 [parent_name] => Стены 1 этаж (несущие) [parent_id] => 3 [material_sum] => 892961 [work_sum] => 396706 [total_sum] => 1289667 [total_days] => 7 [display_material_sum] => 892 961 [display_work_sum] => 396 706 [display_total_sum] => 1 289 667 ) 1
1 289 667
Работа:396 706
Материалы:892 961
Дни:7
stdClass Object ( [id] => 86 [attribute_id] => 3 [name] => Профилированный брус [material_modifier] => 1 [work_modifier] => 1 [options] => Array ( [0] => 150 мм [1] => 180 мм [2] => 200 мм ) [days] => [7,8,9] [material_price] => [8190,9228,10051] [work_price] => [3845,4614,5075] [image] => https://akademik-stroy.ru/wp-content/uploads/materials/profilirovannyj-brus.jpg [area_modifier] => 112.56 [parent_name] => Стены 1 этаж (несущие) [parent_id] => 3 [material_sum] => 1216864 [work_sum] => 476073 [total_sum] => 1692937 [total_days] => 7 [display_material_sum] => 1 216 864 [display_work_sum] => 476 073 [display_total_sum] => 1 692 937 ) 1
1 692 937
Работа:476 073
Материалы:1 216 864
Дни:7
stdClass Object ( [id] => 87 [attribute_id] => 3 [name] => Оцилиндрованное бревно [material_modifier] => 1 [work_modifier] => 1 [options] => Array ( [0] => 180 мм [1] => 220 мм [2] => 260 мм [3] => 320 мм ) [days] => [7,8,9,10] [material_price] => [75190,9532,10868,13116] [work_price] => [3845,4691,5535,6863] [image] => https://akademik-stroy.ru/wp-content/uploads/materials/ocilindrovannoe-brevno-1.jpg [area_modifier] => 112.56 [parent_name] => Стены 1 этаж (несущие) [parent_id] => 3 [material_sum] => 11171670 [work_sum] => 476073 [total_sum] => 11647743 [total_days] => 7 [display_material_sum] => 11 171 670 [display_work_sum] => 476 073 [display_total_sum] => 11 647 743 ) 1
11 647 743
Работа:476 073
Материалы:11 171 670
Дни:7
stdClass Object ( [id] => 88 [attribute_id] => 3 [name] => Срубы [material_modifier] => 1 [work_modifier] => 1 [options] => Array ( [0] => 260 мм [1] => 320 мм [2] => 360 мм [3] => 400 мм [4] => 500 мм ) [days] => [7,8,9,10,11] [material_price] => [37975,46709,52314,58069,73167] [work_price] => [4806,5911,6621,7349,9260] [image] => https://akademik-stroy.ru/wp-content/uploads/materials/sruby.jpg [area_modifier] => 112.56 [parent_name] => Стены 1 этаж (несущие) [parent_id] => 3 [material_sum] => 5642295 [work_sum] => 595060 [total_sum] => 6237355 [total_days] => 7 [display_material_sum] => 5 642 295 [display_work_sum] => 595 060 [display_total_sum] => 6 237 355 ) 1
6 237 355
Работа:595 060
Материалы:5 642 295
Дни:7
stdClass Object ( [id] => 174 [attribute_id] => 3 [name] => Брус [material_modifier] => 1 [work_modifier] => 1 [options] => Array ( [0] => 150 мм [1] => 180 мм [2] => 200 мм ) [days] => [7,8,9] [material_price] => [5127,6152,7367] [work_price] => [1602,1922,2115] [image] => https://akademik-stroy.ru/wp-content/uploads/materials/brus.jpg [area_modifier] => 112.56 [parent_name] => Стены 1 этаж (несущие) [parent_id] => 3 [material_sum] => 761766 [work_sum] => 198353 [total_sum] => 960119 [total_days] => 7 [display_material_sum] => 761 766 [display_work_sum] => 198 353 [display_total_sum] => 960 119 ) 1
960 119
Работа:198 353
Материалы:761 766
Дни:7
stdClass Object ( [id] => 175 [attribute_id] => 3 [name] => Газобетон [material_modifier] => 1 [work_modifier] => 1 [options] => Array ( [0] => 300 мм [1] => 375 мм [2] => 400 мм [3] => 500 мм [4] => 600 мм ) [days] => [29,31,35,37,44] [material_price] => [4298,5573,6356,7288,9119] [work_price] => [4538,5251,5926,6733,7195] [image] => https://akademik-stroy.ru/wp-content/uploads/materials/gazobeton.jpg [area_modifier] => 112.56 [parent_name] => Стены 1 этаж (несущие) [parent_id] => 3 [material_sum] => 638593 [work_sum] => 561877 [total_sum] => 1200470 [total_days] => 29 [display_material_sum] => 638 593 [display_work_sum] => 561 877 [display_total_sum] => 1 200 470 ) 1
1 200 470
Работа:561 877
Материалы:638 593
Дни:29
stdClass Object ( [id] => 176 [attribute_id] => 3 [name] => Блок [material_modifier] => 1 [work_modifier] => 1 [options] => Array ( [0] => 300 мм [1] => 375 мм [2] => 400 мм [3] => 500 мм [4] => 600 мм ) [days] => [29,31,35,37,44] [material_price] => [2698,3973,4356,6588,7119] [work_price] => [5038,5851,6426,8733,9195] [image] => https://akademik-stroy.ru/wp-content/uploads/materials/blok.jpg [area_modifier] => 112.56 [parent_name] => Стены 1 этаж (несущие) [parent_id] => 3 [material_sum] => 400867 [work_sum] => 623785 [total_sum] => 1024652 [total_days] => 29 [display_material_sum] => 400 867 [display_work_sum] => 623 785 [display_total_sum] => 1 024 652 ) 1
1 024 652
Работа:623 785
Материалы:400 867
Дни:29
stdClass Object ( [id] => 177 [attribute_id] => 3 [name] => Газосиликатный блок [material_modifier] => 1 [work_modifier] => 1 [options] => Array ( [0] => 300 мм [1] => 375 мм [2] => 400 мм [3] => 500 мм [4] => 600 мм ) [days] => [29,31,35,37,44] [material_price] => [4298,5573,6356,7288,9119] [work_price] => [4538,5251,5926,6733,7195] [image] => https://akademik-stroy.ru/wp-content/uploads/materials/gazosilikatnyj-blok.jpg [area_modifier] => 112.56 [parent_name] => Стены 1 этаж (несущие) [parent_id] => 3 [material_sum] => 638593 [work_sum] => 561877 [total_sum] => 1200470 [total_days] => 29 [display_material_sum] => 638 593 [display_work_sum] => 561 877 [display_total_sum] => 1 200 470 ) 1
1 200 470
Работа:561 877
Материалы:638 593
Дни:29
stdClass Object ( [id] => 178 [attribute_id] => 3 [name] => Керамзитобетонный блок [material_modifier] => 1 [work_modifier] => 1 [options] => Array ( [0] => 300 мм [1] => 375 мм [2] => 400 мм [3] => 500 мм [4] => 600 мм ) [days] => [23,23,24,25,28] [material_price] => [3641,4298,5693,7613,9612] [work_price] => [5737,5737,6903,7958,8901] [image] => https://akademik-stroy.ru/wp-content/uploads/materials/keramzitobetonnyj-blok.jpg [area_modifier] => 112.56 [parent_name] => Стены 1 этаж (несущие) [parent_id] => 3 [material_sum] => 540977 [work_sum] => 710332 [total_sum] => 1251309 [total_days] => 23 [display_material_sum] => 540 977 [display_work_sum] => 710 332 [display_total_sum] => 1 251 309 ) 1
1 251 309
Работа:710 332
Материалы:540 977
Дни:23
stdClass Object ( [id] => 179 [attribute_id] => 3 [name] => Деревянные [material_modifier] => 1 [work_modifier] => 1 [options] => Array ( [0] => 180 мм [1] => 220 мм [2] => 260 мм [3] => 320 мм ) [days] => [7,8,9,10] [material_price] => [7950,9458,11961,14472] [work_price] => [4037,4925,5812,7207] [image] => https://akademik-stroy.ru/wp-content/uploads/materials/derevyannye.jpg [area_modifier] => 112.56 [parent_name] => Стены 1 этаж (несущие) [parent_id] => 3 [material_sum] => 1181205 [work_sum] => 499845 [total_sum] => 1681050 [total_days] => 7 [display_material_sum] => 1 181 205 [display_work_sum] => 499 845 [display_total_sum] => 1 681 050 ) 1
1 681 050
Работа:499 845
Материалы:1 181 205
Дни:7
stdClass Object ( [id] => 181 [attribute_id] => 3 [name] => Камень [material_modifier] => 1 [work_modifier] => 1 [options] => Array ( [0] => 300 мм [1] => 400 мм [2] => 500 мм [3] => 600 мм ) [days] => [25,27,31,34] [material_price] => [5262,6844,8330,9815] [work_price] => [8331,9135,10427,11069] [image] => https://akademik-stroy.ru/wp-content/uploads/materials/kamen.jpg [area_modifier] => 112.56 [parent_name] => Стены 1 этаж (несущие) [parent_id] => 3 [material_sum] => 781824 [work_sum] => 1031511 [total_sum] => 1813335 [total_days] => 25 [display_material_sum] => 781 824 [display_work_sum] => 1 031 511 [display_total_sum] => 1 813 335 ) 1
1 813 335
Работа:1 031 511
Материалы:781 824
Дни:25
stdClass Object ( [id] => 182 [attribute_id] => 3 [name] => Каркасно-щитовые [material_modifier] => 1 [work_modifier] => 1 [options] => Array ( [0] => 150 мм [1] => 200 мм [2] => 250 мм [3] => 300 мм [4] => 350 мм [5] => 400 мм ) [days] => [15,16,17,18,19,20] [material_price] => [2379,2639,2898,3458,3601,4175] [work_price] => [2538,2820,3134,3483,4062,5642] [image] => https://akademik-stroy.ru/wp-content/uploads/materials/karkasno-shchitovye.jpg [area_modifier] => 112.56 [parent_name] => Стены 1 этаж (несущие) [parent_id] => 3 [material_sum] => 353470 [work_sum] => 314245 [total_sum] => 667715 [total_days] => 15 [display_material_sum] => 353 470 [display_work_sum] => 314 245 [display_total_sum] => 667 715 ) 1
667 715
Работа:314 245
Материалы:353 470
Дни:15
stdClass Object ( [id] => 183 [attribute_id] => 3 [name] => Рубленные [material_modifier] => 1 [work_modifier] => 1 [options] => Array ( [0] => 150 мм [1] => 200 мм [2] => 250 мм [3] => 300 мм [4] => 350 мм [5] => 400 мм ) [days] => [15,16,17,18,17,18] [material_price] => [35950,50267,60583,75900,80217,100533] [work_price] => [9612,12816,16020,19224,22428,25632] [image] => https://akademik-stroy.ru/wp-content/uploads/materials/rublennye.jpg [area_modifier] => 112.56 [parent_name] => Стены 1 этаж (несущие) [parent_id] => 3 [material_sum] => 5341422 [work_sum] => 1190119 [total_sum] => 6531541 [total_days] => 15 [display_material_sum] => 5 341 422 [display_work_sum] => 1 190 119 [display_total_sum] => 6 531 541 ) 1
6 531 541
Работа:1 190 119
Материалы:5 341 422
Дни:15
stdClass Object ( [id] => 185 [attribute_id] => 3 [name] => Теплоблок [material_modifier] => 1 [work_modifier] => 1 [options] => Array ( [0] => 300 мм (с облицовкой, не покрашенный) [1] => 400 мм (с облицовкой, не покрашенный) [2] => 300 мм (с облицовкой, покрашенный) [3] => 400 мм (с облицовкой, покрашенный) ) [days] => [15,16,15,16] [material_price] => [2888,3729,3957,4258] [work_price] => [2564,3229,2949,3713] [image] => https://akademik-stroy.ru/wp-content/uploads/materials/teploblok.jpg [area_modifier] => 112.56 [parent_name] => Стены 1 этаж (несущие) [parent_id] => 3 [material_sum] => 429097 [work_sum] => 317464 [total_sum] => 746561 [total_days] => 15 [display_material_sum] => 429 097 [display_work_sum] => 317 464 [display_total_sum] => 746 561 ) 1
746 561
Работа:317 464
Материалы:429 097
Дни:15
stdClass Object ( [id] => 186 [attribute_id] => 3 [name] => Арболитовые блоки [material_modifier] => 1 [work_modifier] => 1 [options] => Array ( [0] => 300 мм [1] => 400 мм [2] => 600 мм ) [days] => [19,22,27] [material_price] => [3210,4475,5852] [work_price] => [4214,4788,5866] [image] => https://akademik-stroy.ru/wp-content/uploads/materials/arbolitovye-bloki.png [area_modifier] => 112.56 [parent_name] => Стены 1 этаж (несущие) [parent_id] => 3 [material_sum] => 476939 [work_sum] => 521761 [total_sum] => 998700 [total_days] => 19 [display_material_sum] => 476 939 [display_work_sum] => 521 761 [display_total_sum] => 998 700 ) 1
998 700
Работа:521 761
Материалы:476 939
Дни:19
stdClass Object ( [id] => 187 [attribute_id] => 3 [name] => Полистиролбетон [material_modifier] => 1 [work_modifier] => 1 [options] => Array ( [0] => 300 мм [1] => 400 мм [2] => 600 мм ) [days] => [29,31,35] [material_price] => [2798,4573,5256] [work_price] => [5038,5851,6426] [image] => https://akademik-stroy.ru/wp-content/uploads/materials/polistirolbeton.jpg [area_modifier] => 112.56 [parent_name] => Стены 1 этаж (несущие) [parent_id] => 3 [material_sum] => 415725 [work_sum] => 623785 [total_sum] => 1039510 [total_days] => 29 [display_material_sum] => 415 725 [display_work_sum] => 623 785 [display_total_sum] => 1 039 510 ) 1
1 039 510
Работа:623 785
Материалы:415 725
Дни:29
stdClass Object ( [id] => 188 [attribute_id] => 3 [name] => Шлакоблок [material_modifier] => 1 [work_modifier] => 1 [options] => Array ( [0] => 400 мм [1] => 600 мм ) [days] => [15,16] [material_price] => [2391,3471] [work_price] => [2642,3662] [image] => https://akademik-stroy.ru/wp-content/uploads/materials/shlakoblok.jpg [area_modifier] => 112.56 [parent_name] => Стены 1 этаж (несущие) [parent_id] => 3 [material_sum] => 355253 [work_sum] => 327122 [total_sum] => 682375 [total_days] => 15 [display_material_sum] => 355 253 [display_work_sum] => 327 122 [display_total_sum] => 682 375 ) 1
682 375
Работа:327 122
Материалы:355 253
Дни:15
stdClass Object ( [id] => 189 [attribute_id] => 3 [name] => Теплая керамика [material_modifier] => 1 [work_modifier] => 1 [options] => Array ( [0] => 380 мм [1] => 380 мм Thermo [2] => 440 мм [3] => 510 мм ) [days] => [23,23,24,25] [material_price] => [4510,5098,6093,8013] [work_price] => [4737,4937,5903,6958] [image] => https://akademik-stroy.ru/wp-content/uploads/materials/teplaya-keramika.jpg [area_modifier] => 112.56 [parent_name] => Стены 1 этаж (несущие) [parent_id] => 3 [material_sum] => 670092 [work_sum] => 586516 [total_sum] => 1256608 [total_days] => 23 [display_material_sum] => 670 092 [display_work_sum] => 586 516 [display_total_sum] => 1 256 608 ) 1
1 256 608
Работа:586 516
Материалы:670 092
Дни:23
stdClass Object ( [id] => 190 [attribute_id] => 3 [name] => Несъемная опалубка [material_modifier] => 1 [work_modifier] => 1 [options] => Array ( [0] => 200 мм [1] => 250 мм [2] => 300 мм [3] => 350 мм ) [days] => [15,17,19,21] [material_price] => [3302,3902,4108,5008] [work_price] => [2100,2100,2300,2534] [image] => https://akademik-stroy.ru/wp-content/uploads/materials/nesemnaya-opalubka.jpg [area_modifier] => 112.56 [parent_name] => Стены 1 этаж (несущие) [parent_id] => 3 [material_sum] => 490609 [work_sum] => 260014 [total_sum] => 750623 [total_days] => 15 [display_material_sum] => 490 609 [display_work_sum] => 260 014 [display_total_sum] => 750 623 ) 1
750 623
Работа:260 014
Материалы:490 609
Дни:15
stdClass Object ( [id] => 251 [attribute_id] => 3 [name] => Бревно [material_modifier] => 1 [work_modifier] => 1 [options] => Array ( [0] => 260 мм [1] => 320 мм [2] => 360 мм [3] => 400 мм [4] => 500 мм ) [days] => [7,8,9,10,11] [material_price] => [1874,24045,26930,30972,38825] [work_price] => [5046,6207,6952,7716,9723] [image] => https://akademik-stroy.ru/wp-content/uploads/materials/sruby.jpg [area_modifier] => 112.56 [parent_name] => Стены 1 этаж (несущие) [parent_id] => 3 [material_sum] => 278437 [work_sum] => 624776 [total_sum] => 903213 [total_days] => 7 [display_material_sum] => 278 437 [display_work_sum] => 624 776 [display_total_sum] => 903 213 ) 1
903 213
Работа:624 776
Материалы:278 437
Дни:7
Перекрытие первого этажа
stdClass Object ( [id] => 7 [attribute_id] => 4 [name] => Деревянные балки [material_modifier] => 1 [work_modifier] => 1 [options] => Array ( [0] => без утепления [1] => утепление 200 мм [2] => утепление 250 мм [3] => утепление 300 мм [4] => утепление 350 мм [5] => утепление 400 мм [6] => утепление 450 мм [7] => утепление 500 мм ) [days] => [8,9,9,9,11,12,13,14] [material_price] => [1634,2042,2344,2947,3149,3652,3354,3557] [work_price] => [1230,1339,1393,1426,1460,1513,1587,1620] [image] => https://akademik-stroy.ru/wp-content/uploads/materials/derevyannye-balki.png [area_modifier] => 112.56 [parent_name] => Перекрытие первого этажа [parent_id] => 4 [material_sum] => 242778 [work_sum] => 152294 [total_sum] => 395072 [total_days] => 8 [display_material_sum] => 242 778 [display_work_sum] => 152 294 [display_total_sum] => 395 072 ) 1
395 072
Работа:152 294
Материалы:242 778
Дни:8
stdClass Object ( [id] => 8 [attribute_id] => 4 [name] => Сборные ж/б плиты [material_modifier] => 1 [work_modifier] => 1 [options] => Array ( [0] => без утепления [1] => утепление 150 мм [2] => утепление 200 мм [3] => утепление 250 мм [4] => утепление 300 мм [5] => утепление 350 мм [6] => утепление 400 мм [7] => утепление 450 мм [8] => утепление 500 мм ) [days] => [13,15,15,15,15,15,15,15,15] [material_price] => [3067,5577,5928,6679,7730,8782,9833,10884,11935] [work_price] => [1520,1956,2102,2247,2392,2537,2684,2829,2974] [image] => https://akademik-stroy.ru/wp-content/uploads/materials/sbornye-zh-b-plity-2.jpg [area_modifier] => 112.56 [parent_name] => Перекрытие первого этажа [parent_id] => 4 [material_sum] => 455692 [work_sum] => 188200 [total_sum] => 643892 [total_days] => 13 [display_material_sum] => 455 692 [display_work_sum] => 188 200 [display_total_sum] => 643 892 ) 1
643 892
Работа:188 200
Материалы:455 692
Дни:13
stdClass Object ( [id] => 89 [attribute_id] => 4 [name] => Монолитная ж/б плита [material_modifier] => 1 [work_modifier] => 1 [options] => Array ( [0] => без утепления [1] => утепление 150 мм [2] => утепление 200 мм [3] => утепление 250 мм [4] => утепление 300 мм [5] => утепление 350 мм [6] => утепление 400 мм [7] => утепление 450 мм [8] => утепление 500 мм ) [days] => [18,20,20,20,20,20,20,20,20] [material_price] => [4837,6572,7224,7375,79426,8177,8728,9180,10031] [work_price] => [3348,3921,4112,4302,4493,4684,4875,5066,5256] [image] => https://akademik-stroy.ru/wp-content/uploads/materials/monolitnaya-zh-b-plita-2.jpg [area_modifier] => 112.56 [parent_name] => Перекрытие первого этажа [parent_id] => 4 [material_sum] => 718678 [work_sum] => 414536 [total_sum] => 1133214 [total_days] => 18 [display_material_sum] => 718 678 [display_work_sum] => 414 536 [display_total_sum] => 1 133 214 ) 1
1 133 214
Работа:414 536
Материалы:718 678
Дни:18
Стены 2 этаж (несущие)
stdClass Object ( [id] => 10 [attribute_id] => 5 [name] => Пеноблок [material_modifier] => 1 [work_modifier] => 1 [options] => Array ( [0] => 300 мм [1] => 400 мм [2] => 500 мм [3] => 600 мм ) [days] => [29,31,34,39] [material_price] => [3000,4000,4500,4937] [work_price] => [5033,5805,6400,8710] [image] => https://akademik-stroy.ru/wp-content/uploads/materials/penoblok.jpg [area_modifier] => 74.38 [parent_name] => Стены 2 этаж (несущие) [parent_id] => 5 [material_sum] => 294545 [work_sum] => 411790 [total_sum] => 706335 [total_days] => 29 [display_material_sum] => 294 545 [display_work_sum] => 411 790 [display_total_sum] => 706 335 ) 1
706 335
Работа:411 790
Материалы:294 545
Дни:29
stdClass Object ( [id] => 90 [attribute_id] => 5 [name] => Керамический блок [material_modifier] => 1 [work_modifier] => 1 [options] => Array ( [0] => 380 мм [1] => 380 мм Thermo [2] => 440 мм [3] => 510 мм ) [days] => [23,23,24,25] [material_price] => [4510,5098,6093,8013] [work_price] => [4737,4937,5903,6958] [image] => https://akademik-stroy.ru/wp-content/uploads/materials/keramicheskij-blok.jpg [area_modifier] => 74.38 [parent_name] => Стены 2 этаж (несущие) [parent_id] => 5 [material_sum] => 442799 [work_sum] => 387572 [total_sum] => 830371 [total_days] => 23 [display_material_sum] => 442 799 [display_work_sum] => 387 572 [display_total_sum] => 830 371 ) 1
830 371
Работа:387 572
Материалы:442 799
Дни:23
stdClass Object ( [id] => 91 [attribute_id] => 5 [name] => Кирпич [material_modifier] => 1 [work_modifier] => 1 [options] => Array ( [0] => Кирпич 250 мм [1] => Кирпич 380 мм [2] => Кирпич 510 мм [3] => Кирпич 640 мм [4] => Кирпич 770 мм ) [days] => [30,30,31,33,36] [material_price] => [5500,7142,9206,10171,12235] [work_price] => [8736,10041,12018,15240,18462] [image] => https://akademik-stroy.ru/wp-content/uploads/materials/kirpich.jpg [area_modifier] => 74.38 [parent_name] => Стены 2 этаж (несущие) [parent_id] => 5 [material_sum] => 539999 [work_sum] => 714762 [total_sum] => 1254761 [total_days] => 30 [display_material_sum] => 539 999 [display_work_sum] => 714 762 [display_total_sum] => 1 254 761 ) 1
1 254 761
Работа:714 762
Материалы:539 999
Дни:30
stdClass Object ( [id] => 92 [attribute_id] => 5 [name] => Монолитные [material_modifier] => 1 [work_modifier] => 1 [options] => Array ( [0] => 150 мм [1] => 200 мм [2] => 250 мм [3] => 300 мм [4] => 350 мм [5] => 400 мм ) [days] => [45,46,47,49,50,53] [material_price] => [6545,7876,10175,12011,13908,15204] [work_price] => [5106,6444,7698,8552,9807,11461] [image] => https://akademik-stroy.ru/wp-content/uploads/materials/monolitnye.jpg [area_modifier] => 74.38 [parent_name] => Стены 2 этаж (несущие) [parent_id] => 5 [material_sum] => 642599 [work_sum] => 417763 [total_sum] => 1060362 [total_days] => 45 [display_material_sum] => 642 599 [display_work_sum] => 417 763 [display_total_sum] => 1 060 362 ) 1
1 060 362
Работа:417 763
Материалы:642 599
Дни:45
stdClass Object ( [id] => 93 [attribute_id] => 5 [name] => Клееный брус [material_modifier] => 1 [work_modifier] => 1 [options] => Array ( [0] => 160 мм [1] => 175 мм [2] => 200 мм [3] => 215 мм [4] => 240 мм [5] => 270 мм [6] => 282 мм ) [days] => [24,28,32,37,40,42,48] [material_price] => [16975,18773,19950,20545,21599,22159,23275] [work_price] => [4806,5287,5815,6397,7036,7740,8514] [image] => https://akademik-stroy.ru/wp-content/uploads/materials/kleenyj-brus.jpg [area_modifier] => 74.38 [parent_name] => Стены 2 этаж (несущие) [parent_id] => 5 [material_sum] => 1666633 [work_sum] => 393217 [total_sum] => 2059850 [total_days] => 24 [display_material_sum] => 1 666 633 [display_work_sum] => 393 217 [display_total_sum] => 2 059 850 ) 1
2 059 850
Работа:393 217
Материалы:1 666 633
Дни:24
stdClass Object ( [id] => 94 [attribute_id] => 5 [name] => Каркасные [material_modifier] => 1 [work_modifier] => 1 [options] => Array ( [0] => 150 мм [1] => 200 мм [2] => 250 мм [3] => 300 мм ) [days] => [15,16,17,18] [material_price] => [2379,2639,2898,3258] [work_price] => [2418,2686,2985,3716] [image] => https://akademik-stroy.ru/wp-content/uploads/materials/karkasnye.jpg [area_modifier] => 74.38 [parent_name] => Стены 2 этаж (несущие) [parent_id] => 5 [material_sum] => 233574 [work_sum] => 197836 [total_sum] => 431410 [total_days] => 15 [display_material_sum] => 233 574 [display_work_sum] => 197 836 [display_total_sum] => 431 410 ) 1
431 410
Работа:197 836
Материалы:233 574
Дни:15
stdClass Object ( [id] => 95 [attribute_id] => 5 [name] => СИП-панели [material_modifier] => 1 [work_modifier] => 1 [options] => Array ( [0] => 120 мм [1] => 170 мм [2] => 220 мм ) [days] => [7,7,7] [material_price] => [1210,1856,2292] [work_price] => [1410,1551,1706] [image] => https://akademik-stroy.ru/wp-content/uploads/materials/sip-paneli.jpg [area_modifier] => 74.38 [parent_name] => Стены 2 этаж (несущие) [parent_id] => 5 [material_sum] => 118800 [work_sum] => 115363 [total_sum] => 234163 [total_days] => 7 [display_material_sum] => 118 800 [display_work_sum] => 115 363 [display_total_sum] => 234 163 ) 1
234 163
Работа:115 363
Материалы:118 800
Дни:7
stdClass Object ( [id] => 96 [attribute_id] => 5 [name] => Сухой брус [material_modifier] => 1 [work_modifier] => 1 [options] => Array ( [0] => 150 мм [1] => 180 мм [2] => 200 мм ) [days] => [7,8,9] [material_price] => [6010,7190,8709] [work_price] => [3204,3845,4229] [image] => https://akademik-stroy.ru/wp-content/uploads/materials/suhoj-brus.jpg [area_modifier] => 74.38 [parent_name] => Стены 2 этаж (несущие) [parent_id] => 5 [material_sum] => 590071 [work_sum] => 262145 [total_sum] => 852216 [total_days] => 7 [display_material_sum] => 590 071 [display_work_sum] => 262 145 [display_total_sum] => 852 216 ) 1
852 216
Работа:262 145
Материалы:590 071
Дни:7
stdClass Object ( [id] => 97 [attribute_id] => 5 [name] => Профилированный брус [material_modifier] => 1 [work_modifier] => 1 [options] => Array ( [0] => 150 мм [1] => 180 мм [2] => 200 мм ) [days] => [7,8,9] [material_price] => [8190,9228,10051] [work_price] => [3845,4614,5075] [image] => https://akademik-stroy.ru/wp-content/uploads/materials/profilirovannyj-brus.jpg [area_modifier] => 74.38 [parent_name] => Стены 2 этаж (несущие) [parent_id] => 5 [material_sum] => 804107 [work_sum] => 314590 [total_sum] => 1118697 [total_days] => 7 [display_material_sum] => 804 107 [display_work_sum] => 314 590 [display_total_sum] => 1 118 697 ) 1
1 118 697
Работа:314 590
Материалы:804 107
Дни:7
stdClass Object ( [id] => 98 [attribute_id] => 5 [name] => Оцилиндрованное бревно [material_modifier] => 1 [work_modifier] => 1 [options] => Array ( [0] => 180 мм [1] => 220 мм [2] => 260 мм [3] => 320 мм ) [days] => [7,8,9,10] [material_price] => [75190,9532,10868,13116] [work_price] => [3845,4691,5535,6863] [image] => https://akademik-stroy.ru/wp-content/uploads/materials/ocilindrovannoe-brevno-1.jpg [area_modifier] => 74.38 [parent_name] => Стены 2 этаж (несущие) [parent_id] => 5 [material_sum] => 7382275 [work_sum] => 314590 [total_sum] => 7696865 [total_days] => 7 [display_material_sum] => 7 382 275 [display_work_sum] => 314 590 [display_total_sum] => 7 696 865 ) 1
7 696 865
Работа:314 590
Материалы:7 382 275
Дни:7
stdClass Object ( [id] => 99 [attribute_id] => 5 [name] => Срубы [material_modifier] => 1 [work_modifier] => 1 [options] => Array ( [0] => 260 мм [1] => 320 мм [2] => 360 мм [3] => 400 мм [4] => 500 мм ) [days] => [7,8,9,10,11] [material_price] => [16175,23709,26314,29069,32167] [work_price] => [4806,5911,6621,7349,9260] [image] => https://akademik-stroy.ru/wp-content/uploads/materials/suhoj-brus.jpg [area_modifier] => 74.38 [parent_name] => Стены 2 этаж (несущие) [parent_id] => 5 [material_sum] => 1588087 [work_sum] => 393217 [total_sum] => 1981304 [total_days] => 7 [display_material_sum] => 1 588 087 [display_work_sum] => 393 217 [display_total_sum] => 1 981 304 ) 1
1 981 304
Работа:393 217
Материалы:1 588 087
Дни:7
stdClass Object ( [id] => 194 [attribute_id] => 5 [name] => Брус [material_modifier] => 1 [work_modifier] => 1 [options] => Array ( [0] => 150 мм [1] => 180 мм [2] => 200 мм ) [days] => [10,13,15] [material_price] => [5127,6152,7367] [work_price] => [1602,1922,2115] [image] => https://akademik-stroy.ru/wp-content/uploads/materials/brus.jpg [area_modifier] => 74.38 [parent_name] => Стены 2 этаж (несущие) [parent_id] => 5 [material_sum] => 503377 [work_sum] => 131072 [total_sum] => 634449 [total_days] => 10 [display_material_sum] => 503 377 [display_work_sum] => 131 072 [display_total_sum] => 634 449 ) 1
634 449
Работа:131 072
Материалы:503 377
Дни:10
stdClass Object ( [id] => 195 [attribute_id] => 5 [name] => Газобетон [material_modifier] => 1 [work_modifier] => 1 [options] => Array ( [0] => 300 мм [1] => 375 мм [2] => 400 мм [3] => 500 мм [4] => 600 мм ) [days] => [29,31,35,37,44] [material_price] => [4298,5573,6356,7288,9119] [work_price] => [4538,5251,5926,6733,7195] [image] => https://akademik-stroy.ru/wp-content/uploads/materials/gazobeton.jpg [area_modifier] => 74.38 [parent_name] => Стены 2 этаж (несущие) [parent_id] => 5 [material_sum] => 421985 [work_sum] => 371290 [total_sum] => 793275 [total_days] => 29 [display_material_sum] => 421 985 [display_work_sum] => 371 290 [display_total_sum] => 793 275 ) 1
793 275
Работа:371 290
Материалы:421 985
Дни:29
stdClass Object ( [id] => 196 [attribute_id] => 5 [name] => Блок [material_modifier] => 1 [work_modifier] => 1 [options] => Array ( [0] => 300 мм [1] => 375 мм [2] => 400 мм [3] => 500 мм [4] => 600 мм ) [days] => [29,31,35,37,44] [material_price] => [2698,3973,4356,6588,7119] [work_price] => [5038,5851,6426,8733,9195] [image] => https://akademik-stroy.ru/wp-content/uploads/materials/blok.jpg [area_modifier] => 74.38 [parent_name] => Стены 2 этаж (несущие) [parent_id] => 5 [material_sum] => 264894 [work_sum] => 412199 [total_sum] => 677093 [total_days] => 29 [display_material_sum] => 264 894 [display_work_sum] => 412 199 [display_total_sum] => 677 093 ) 1
677 093
Работа:412 199
Материалы:264 894
Дни:29
stdClass Object ( [id] => 197 [attribute_id] => 5 [name] => Газосиликатный блок [material_modifier] => 1 [work_modifier] => 1 [options] => Array ( [0] => 300 мм [1] => 375 мм [2] => 400 мм [3] => 500 мм [4] => 600 мм ) [days] => [29,31,35,37,44] [material_price] => [4298,5573,6356,7288,9119] [work_price] => [4538,5251,5926,6733,7195] [image] => https://akademik-stroy.ru/wp-content/uploads/materials/gazosilikatnyj-blok.jpg [area_modifier] => 74.38 [parent_name] => Стены 2 этаж (несущие) [parent_id] => 5 [material_sum] => 421985 [work_sum] => 371290 [total_sum] => 793275 [total_days] => 29 [display_material_sum] => 421 985 [display_work_sum] => 371 290 [display_total_sum] => 793 275 ) 1
793 275
Работа:371 290
Материалы:421 985
Дни:29
stdClass Object ( [id] => 198 [attribute_id] => 5 [name] => Керамзитобетонный блок [material_modifier] => 1 [work_modifier] => 1 [options] => Array ( [0] => 300 мм [1] => 375 мм [2] => 400 мм [3] => 500 мм [4] => 600 мм ) [days] => [23,23,24,25,28] [material_price] => [3641,4298,5693,7613,9612] [work_price] => [5737,5737,6903,7958,8901] [image] => https://akademik-stroy.ru/wp-content/uploads/materials/keramzitobetonnyj-blok.jpg [area_modifier] => 74.38 [parent_name] => Стены 2 этаж (несущие) [parent_id] => 5 [material_sum] => 357479 [work_sum] => 469390 [total_sum] => 826869 [total_days] => 23 [display_material_sum] => 357 479 [display_work_sum] => 469 390 [display_total_sum] => 826 869 ) 1
826 869
Работа:469 390
Материалы:357 479
Дни:23
stdClass Object ( [id] => 199 [attribute_id] => 5 [name] => Деревянные [material_modifier] => 1 [work_modifier] => 1 [options] => Array ( [0] => 180 мм [1] => 220 мм [2] => 260 мм [3] => 320 мм ) [days] => [7,8,9,10] [material_price] => [7950,9458,11961,14472] [work_price] => [4037,4925,5812,7207] [image] => https://akademik-stroy.ru/wp-content/uploads/materials/derevyannye.jpg [area_modifier] => 74.38 [parent_name] => Стены 2 этаж (несущие) [parent_id] => 5 [material_sum] => 780544 [work_sum] => 330299 [total_sum] => 1110843 [total_days] => 7 [display_material_sum] => 780 544 [display_work_sum] => 330 299 [display_total_sum] => 1 110 843 ) 1
1 110 843
Работа:330 299
Материалы:780 544
Дни:7
stdClass Object ( [id] => 200 [attribute_id] => 5 [name] => Камень [material_modifier] => 1 [work_modifier] => 1 [options] => Array ( [0] => 300 мм [1] => 400 мм [2] => 500 мм [3] => 600 мм ) [days] => [25,27,31,34] [material_price] => [5262,6844,8330,9815] [work_price] => [8331,9135,10427,11069] [image] => https://akademik-stroy.ru/wp-content/uploads/materials/kamen.jpg [area_modifier] => 74.38 [parent_name] => Стены 2 этаж (несущие) [parent_id] => 5 [material_sum] => 516632 [work_sum] => 681626 [total_sum] => 1198258 [total_days] => 25 [display_material_sum] => 516 632 [display_work_sum] => 681 626 [display_total_sum] => 1 198 258 ) 1
1 198 258
Работа:681 626
Материалы:516 632
Дни:25
stdClass Object ( [id] => 201 [attribute_id] => 5 [name] => Каркасно-щитовые [material_modifier] => 1 [work_modifier] => 1 [options] => Array ( [0] => 150 мм [1] => 200 мм [2] => 250 мм [3] => 300 мм [4] => 350 мм [5] => 400 мм ) [days] => [15,16,17,18,19,20] [material_price] => [2379,2639,2898,3458,3601,4175] [work_price] => [2538,2820,3134,3483,4062,5642] [image] => https://akademik-stroy.ru/wp-content/uploads/materials/karkasno-shchitovye.jpg [area_modifier] => 74.38 [parent_name] => Стены 2 этаж (несущие) [parent_id] => 5 [material_sum] => 233574 [work_sum] => 207654 [total_sum] => 441228 [total_days] => 15 [display_material_sum] => 233 574 [display_work_sum] => 207 654 [display_total_sum] => 441 228 ) 1
441 228
Работа:207 654
Материалы:233 574
Дни:15
stdClass Object ( [id] => 202 [attribute_id] => 5 [name] => Рубленные [material_modifier] => 1 [work_modifier] => 1 [options] => Array ( [0] => 150 мм [1] => 200 мм [2] => 250 мм [3] => 300 мм [4] => 350 мм [5] => 400 мм ) [days] => [15,16,17,18,17,18] [material_price] => [35950,50267,60583,75900,80217,100533] [work_price] => [9612,12816,16020,19224,22428,25632] [image] => https://akademik-stroy.ru/wp-content/uploads/materials/rublennye.jpg [area_modifier] => 74.38 [parent_name] => Стены 2 этаж (несущие) [parent_id] => 5 [material_sum] => 3529629 [work_sum] => 786435 [total_sum] => 4316064 [total_days] => 15 [display_material_sum] => 3 529 629 [display_work_sum] => 786 435 [display_total_sum] => 4 316 064 ) 1
4 316 064
Работа:786 435
Материалы:3 529 629
Дни:15
stdClass Object ( [id] => 203 [attribute_id] => 5 [name] => Теплоблок [material_modifier] => 1 [work_modifier] => 1 [options] => Array ( [0] => 300 мм (с облицовкой, не покрашенный) [1] => 400 мм (с облицовкой, не покрашенный) [2] => 300 мм (с облицовкой, покрашенный) [3] => 400 мм (с облицовкой, покрашенный) ) [days] => [15,16,15,16] [material_price] => [2888,3729,3957,4258] [work_price] => [2564,3229,2949,3713] [image] => https://akademik-stroy.ru/wp-content/uploads/materials/teploblok.jpg [area_modifier] => 74.38 [parent_name] => Стены 2 этаж (несущие) [parent_id] => 5 [material_sum] => 283548 [work_sum] => 209781 [total_sum] => 493329 [total_days] => 15 [display_material_sum] => 283 548 [display_work_sum] => 209 781 [display_total_sum] => 493 329 ) 1
493 329
Работа:209 781
Материалы:283 548
Дни:15
stdClass Object ( [id] => 204 [attribute_id] => 5 [name] => Арболитовые блоки [material_modifier] => 1 [work_modifier] => 1 [options] => Array ( [0] => 300 мм [1] => 400 мм [2] => 600 мм ) [days] => [19,22,27] [material_price] => [3210,4475,5852] [work_price] => [4214,4788,5866] [image] => https://akademik-stroy.ru/wp-content/uploads/materials/arbolitovye-bloki.png [area_modifier] => 74.38 [parent_name] => Стены 2 этаж (несущие) [parent_id] => 5 [material_sum] => 315163 [work_sum] => 344781 [total_sum] => 659944 [total_days] => 19 [display_material_sum] => 315 163 [display_work_sum] => 344 781 [display_total_sum] => 659 944 ) 1
659 944
Работа:344 781
Материалы:315 163
Дни:19
stdClass Object ( [id] => 205 [attribute_id] => 5 [name] => Полистиролбетон [material_modifier] => 1 [work_modifier] => 1 [options] => Array ( [0] => 300 мм [1] => 400 мм [2] => 600 мм ) [days] => [29,31,35] [material_price] => [2798,4573,5256] [work_price] => [5038,5851,6426] [image] => https://akademik-stroy.ru/wp-content/uploads/materials/polistirolbeton.jpg [area_modifier] => 74.38 [parent_name] => Стены 2 этаж (несущие) [parent_id] => 5 [material_sum] => 274712 [work_sum] => 412199 [total_sum] => 686911 [total_days] => 29 [display_material_sum] => 274 712 [display_work_sum] => 412 199 [display_total_sum] => 686 911 ) 1
686 911
Работа:412 199
Материалы:274 712
Дни:29
stdClass Object ( [id] => 206 [attribute_id] => 5 [name] => Шлакоблок [material_modifier] => 1 [work_modifier] => 1 [options] => Array ( [0] => 400 мм [1] => 600 мм ) [days] => [15,16] [material_price] => [2391,3471] [work_price] => [2642,3662] [image] => https://akademik-stroy.ru/wp-content/uploads/materials/shlakoblok.jpg [area_modifier] => 74.38 [parent_name] => Стены 2 этаж (несущие) [parent_id] => 5 [material_sum] => 234752 [work_sum] => 216163 [total_sum] => 450915 [total_days] => 15 [display_material_sum] => 234 752 [display_work_sum] => 216 163 [display_total_sum] => 450 915 ) 1
450 915
Работа:216 163
Материалы:234 752
Дни:15
stdClass Object ( [id] => 245 [attribute_id] => 5 [name] => Теплая керамика [material_modifier] => 1 [work_modifier] => 1 [options] => Array ( [0] => 380 мм [1] => 380 мм Thermo [2] => 440 мм [3] => 510 мм ) [days] => [10,10,11,12] [material_price] => [4510,5098,6093,8013] [work_price] => [4737,4937,5903,6958] [image] => https://akademik-stroy.ru/wp-content/uploads/materials/teplaya-keramika.jpg [area_modifier] => 74.38 [parent_name] => Стены 2 этаж (несущие) [parent_id] => 5 [material_sum] => 442799 [work_sum] => 387572 [total_sum] => 830371 [total_days] => 10 [display_material_sum] => 442 799 [display_work_sum] => 387 572 [display_total_sum] => 830 371 ) 1
830 371
Работа:387 572
Материалы:442 799
Дни:10
stdClass Object ( [id] => 246 [attribute_id] => 5 [name] => Несъемная опалубка [material_modifier] => 1 [work_modifier] => 1 [options] => Array ( [0] => 380 мм [1] => 380 мм Thermo [2] => 440 мм [3] => 510 мм ) [days] => [10,10,11,12] [material_price] => [3302,3902,4108,5008] [work_price] => [2100,2100,2300,2534] [image] => https://akademik-stroy.ru/wp-content/uploads/materials/nesemnaya-opalubka.jpg [area_modifier] => 74.38 [parent_name] => Стены 2 этаж (несущие) [parent_id] => 5 [material_sum] => 324196 [work_sum] => 171818 [total_sum] => 496014 [total_days] => 10 [display_material_sum] => 324 196 [display_work_sum] => 171 818 [display_total_sum] => 496 014 ) 1
496 014
Работа:171 818
Материалы:324 196
Дни:10
stdClass Object ( [id] => 254 [attribute_id] => 5 [name] => Бревно [material_modifier] => 1 [work_modifier] => 1 [options] => Array ( [0] => 260 мм [1] => 320 мм [2] => 360 мм [3] => 400 мм [4] => 500 мм ) [days] => [7,8,9,10,11] [material_price] => [1874,24045,26930,30972,38825] [work_price] => [5046,6207,6952,7716,9723] [image] => https://akademik-stroy.ru/wp-content/uploads/materials/sruby.jpg [area_modifier] => 74.38 [parent_name] => Стены 2 этаж (несущие) [parent_id] => 5 [material_sum] => 183992 [work_sum] => 412854 [total_sum] => 596846 [total_days] => 7 [display_material_sum] => 183 992 [display_work_sum] => 412 854 [display_total_sum] => 596 846 ) 1
596 846
Работа:412 854
Материалы:183 992
Дни:7
Крыша (Скатная)
stdClass Object ( [id] => 164 [attribute_id] => 37 [name] => Металлочерепица [material_modifier] => 1 [work_modifier] => 1 [options] => Array ( ) [days] => [20] [material_price] => [6112] [work_price] => [5726] [image] => https://akademik-stroy.ru/wp-content/uploads/materials/metallocherepica.jpg [area_modifier] => 112.56 [parent_name] => Крыша (Скатная) [parent_id] => 37 [material_sum] => 908116 [work_sum] => 708970 [total_sum] => 1617086 [total_days] => 20 [display_material_sum] => 908 116 [display_work_sum] => 708 970 [display_total_sum] => 1 617 086 ) 1
1 617 086
Работа:708 970
Материалы:908 116
Дни:20
stdClass Object ( [id] => 165 [attribute_id] => 37 [name] => Гибкая черепица [material_modifier] => 1 [work_modifier] => 1 [options] => Array ( ) [days] => [20] [material_price] => [6980] [work_price] => [5950] [image] => https://akademik-stroy.ru/wp-content/uploads/materials/gibkaya-cherepica.jpg [area_modifier] => 112.56 [parent_name] => Крыша (Скатная) [parent_id] => 37 [material_sum] => 1037083 [work_sum] => 736705 [total_sum] => 1773788 [total_days] => 20 [display_material_sum] => 1 037 083 [display_work_sum] => 736 705 [display_total_sum] => 1 773 788 ) 1
1 773 788
Работа:736 705
Материалы:1 037 083
Дни:20
stdClass Object ( [id] => 166 [attribute_id] => 37 [name] => Цементно-песчаная черепица [material_modifier] => 1 [work_modifier] => 1 [options] => Array ( ) [days] => [20] [material_price] => [10560] [work_price] => [9456] [image] => https://akademik-stroy.ru/wp-content/uploads/materials/cementno-peschanaya-cherepica.jpg [area_modifier] => 112.56 [parent_name] => Крыша (Скатная) [parent_id] => 37 [material_sum] => 1568996 [work_sum] => 1170804 [total_sum] => 2739800 [total_days] => 20 [display_material_sum] => 1 568 996 [display_work_sum] => 1 170 804 [display_total_sum] => 2 739 800 ) 1
2 739 800
Работа:1 170 804
Материалы:1 568 996
Дни:20
stdClass Object ( [id] => 167 [attribute_id] => 37 [name] => Композитная черепица [material_modifier] => 1 [work_modifier] => 1 [options] => Array ( ) [days] => [20] [material_price] => [9506] [work_price] => [8905] [image] => https://akademik-stroy.ru/wp-content/uploads/materials/kompozitnaya-cherepica.jpg [area_modifier] => 112.56 [parent_name] => Крыша (Скатная) [parent_id] => 37 [material_sum] => 1412394 [work_sum] => 1102581 [total_sum] => 2514975 [total_days] => 20 [display_material_sum] => 1 412 394 [display_work_sum] => 1 102 581 [display_total_sum] => 2 514 975 ) 1
2 514 975
Работа:1 102 581
Материалы:1 412 394
Дни:20
stdClass Object ( [id] => 168 [attribute_id] => 37 [name] => Керамическая черепица [material_modifier] => 1 [work_modifier] => 1 [options] => Array ( ) [days] => [20] [material_price] => [12750] [work_price] => [9456] [image] => https://akademik-stroy.ru/wp-content/uploads/materials/keramicheskaya-cherepica.jpg [area_modifier] => 112.56 [parent_name] => Крыша (Скатная) [parent_id] => 37 [material_sum] => 1894385 [work_sum] => 1170804 [total_sum] => 3065189 [total_days] => 20 [display_material_sum] => 1 894 385 [display_work_sum] => 1 170 804 [display_total_sum] => 3 065 189 ) 1
3 065 189
Работа:1 170 804
Материалы:1 894 385
Дни:20
stdClass Object ( [id] => 169 [attribute_id] => 37 [name] => Металлическая фальцевая [material_modifier] => 1 [work_modifier] => 1 [options] => Array ( ) [days] => [20] [material_price] => [8550] [work_price] => [8190] [image] => https://akademik-stroy.ru/wp-content/uploads/materials/metallicheskaya-falcevaya.jpg [area_modifier] => 112.56 [parent_name] => Крыша (Скатная) [parent_id] => 37 [material_sum] => 1270352 [work_sum] => 1014053 [total_sum] => 2284405 [total_days] => 20 [display_material_sum] => 1 270 352 [display_work_sum] => 1 014 053 [display_total_sum] => 2 284 405 ) 1
2 284 405
Работа:1 014 053
Материалы:1 270 352
Дни:20
stdClass Object ( [id] => 170 [attribute_id] => 37 [name] => Медная фальцевая [material_modifier] => 1 [work_modifier] => 1 [options] => Array ( ) [days] => [20] [material_price] => [20450] [work_price] => [16750] [image] => https://akademik-stroy.ru/wp-content/uploads/materials/mednaya-falcevaya.jpg [area_modifier] => 112.56 [parent_name] => Крыша (Скатная) [parent_id] => 37 [material_sum] => 3038445 [work_sum] => 2073918 [total_sum] => 5112363 [total_days] => 20 [display_material_sum] => 3 038 445 [display_work_sum] => 2 073 918 [display_total_sum] => 5 112 363 ) 1
5 112 363
Работа:2 073 918
Материалы:3 038 445
Дни:20
stdClass Object ( [id] => 171 [attribute_id] => 37 [name] => Зеленая кровля [material_modifier] => 1 [work_modifier] => 1 [options] => Array ( ) [days] => [20] [material_price] => [19850] [work_price] => [16780] [image] => https://akademik-stroy.ru/wp-content/uploads/materials/zelenaya-krovlya.jpg [area_modifier] => 112.56 [parent_name] => Крыша (Скатная) [parent_id] => 37 [material_sum] => 2949297 [work_sum] => 2077632 [total_sum] => 5026929 [total_days] => 20 [display_material_sum] => 2 949 297 [display_work_sum] => 2 077 632 [display_total_sum] => 5 026 929 ) 1
5 026 929
Работа:2 077 632
Материалы:2 949 297
Дни:20
stdClass Object ( [id] => 172 [attribute_id] => 37 [name] => Профлист [material_modifier] => 1 [work_modifier] => 1 [options] => Array ( ) [days] => [20] [material_price] => [3450] [work_price] => [3750] [image] => https://akademik-stroy.ru/wp-content/uploads/materials/proflist.jpg [area_modifier] => 112.56 [parent_name] => Крыша (Скатная) [parent_id] => 37 [material_sum] => 512598 [work_sum] => 464310 [total_sum] => 976908 [total_days] => 20 [display_material_sum] => 512 598 [display_work_sum] => 464 310 [display_total_sum] => 976 908 ) 1
976 908
Работа:464 310
Материалы:512 598
Дни:20
Окна
stdClass Object ( [id] => 51 [attribute_id] => 26 [name] => Есть [material_modifier] => 1 [work_modifier] => 1 [options] => Array ( [0] => Профиль 58 мм, 3-камерный, стеклопакет 2-камерный до 32 мм [1] => Профиль 60 мм, 4-камерный, стеклопакет 2-камерный до 32 мм [2] => Профиль 70 мм, 5-камерный, стеклопакет 2-камерный до 40 мм [3] => Профиль 72 мм, 5-камерный, стеклопакет 2-камерный до 40 мм [4] => Алюминиевые окна Alutech профиль 72 мм, стеклопакет 2-камерный ) [days] => [3,3,3,3,3] [material_price] => [1339,2124,2867,3023,29596] [work_price] => [635,647,659,668,2579] [image] => https://akademik-stroy.ru/wp-content/uploads/materials/okna.jpg [area_modifier] => 151.7 [parent_name] => Окна [parent_id] => 26 [material_sum] => 268127 [work_sum] => 105962 [total_sum] => 374089 [total_days] => 3 [display_material_sum] => 268 127 [display_work_sum] => 105 962 [display_total_sum] => 374 089 ) 1
374 089
Работа:105 962
Материалы:268 127
Дни:3
stdClass Object ( [id] => 52 [attribute_id] => 26 [name] => Нет [material_modifier] => 2 [work_modifier] => 1 [options] => [days] => null [material_price] => null [work_price] => null [image] => https://akademik-stroy.ru/wp-content/uploads/materials/okna.jpg [area_modifier] => 151.7 [parent_name] => Окна [parent_id] => 26 [material_sum] => 0 [work_sum] => 0 [total_sum] => 0 [total_days] => 0 [display_material_sum] => 0 [display_work_sum] => 0 [display_total_sum] => 0 ) 1
0
Работа:0
Материалы:0
Дни:0
Двери входные
stdClass Object ( [id] => 53 [attribute_id] => 27 [name] => Есть [material_modifier] => 1 [work_modifier] => 1 [options] => Array ( ) [days] => [1] [material_price] => [10000] [work_price] => [5500] [image] => https://akademik-stroy.ru/wp-content/uploads/materials/dveri.jpg [area_modifier] => 1 [parent_name] => Двери входные [parent_id] => 27 [material_sum] => 13200 [work_sum] => 6050 [total_sum] => 19250 [total_days] => 1 [display_material_sum] => 13 200 [display_work_sum] => 6 050 [display_total_sum] => 19 250 ) 1
19 250
Работа:6 050
Материалы:13 200
Дни:1
stdClass Object ( [id] => 54 [attribute_id] => 27 [name] => Нет [material_modifier] => 1 [work_modifier] => 1 [options] => Array ( ) [days] => [0] [material_price] => [0] [work_price] => [0] [image] => https://akademik-stroy.ru/wp-content/uploads/materials/dveri.jpg [area_modifier] => 1 [parent_name] => Двери входные [parent_id] => 27 [material_sum] => 0 [work_sum] => 0 [total_sum] => 0 [total_days] => 0 [display_material_sum] => 0 [display_work_sum] => 0 [display_total_sum] => 0 ) 1
0
Работа:0
Материалы:0
Дни:0
Утепление кровли (Мансарда)
stdClass Object ( [id] => 25 [attribute_id] => 13 [name] => Нет [material_modifier] => 1 [work_modifier] => 1 [options] => Array ( ) [days] => [0] [material_price] => [0] [work_price] => [0] [image] => https://akademik-stroy.ru/wp-content/uploads/materials/mineralovata-krov.jpg [area_modifier] => 112.56 [parent_name] => Утепление кровли (Мансарда) [parent_id] => 13 [material_sum] => 0 [work_sum] => 0 [total_sum] => 0 [total_days] => 0 [display_material_sum] => 0 [display_work_sum] => 0 [display_total_sum] => 0 ) 1
0
Работа:0
Материалы:0
Дни:0
stdClass Object ( [id] => 26 [attribute_id] => 13 [name] => Минераловатный [material_modifier] => 1 [work_modifier] => 1 [options] => Array ( [0] => 50 мм [1] => 100 мм [2] => 150 мм [3] => 200 мм [4] => 250 мм [5] => 300 мм [6] => 350 мм [7] => 400 мм [8] => 450 мм [9] => 500 мм ) [days] => [5,5,6,6,6,7,7,7,8,8] [material_price] => [1158,1414,1772,2230,3602,4060,4974,5890,6408,7718] [work_price] => [650,846,846,1098,1318,1450,1596,1754,1930,2122] [image] => https://akademik-stroy.ru/wp-content/uploads/materials/mineralovata-krov.jpg [area_modifier] => 112.56 [parent_name] => Утепление кровли (Мансарда) [parent_id] => 13 [material_sum] => 172055 [work_sum] => 80480 [total_sum] => 252535 [total_days] => 5 [display_material_sum] => 172 055 [display_work_sum] => 80 480 [display_total_sum] => 252 535 ) 1
252 535
Работа:80 480
Материалы:172 055
Дни:5
stdClass Object ( [id] => 123 [attribute_id] => 13 [name] => Эковата (целлюлозная вата) [material_modifier] => 1 [work_modifier] => 1 [options] => Array ( [0] => 50 мм [1] => 100 мм [2] => 150 мм [3] => 200 мм [4] => 250 мм [5] => 300 мм [6] => 350 мм [7] => 400 мм [8] => 450 мм [9] => 500 мм ) [days] => [3,3,4,4,4,5,5,5,5,5] [material_price] => [820,1638,2458,3276,5734,6552,8190,9828,11466,13104] [work_price] => [234,304,304,396,474,522,574,632,694,764] [image] => https://akademik-stroy.ru/wp-content/uploads/materials/ehkovata-krov.jpg [area_modifier] => 112.56 [parent_name] => Утепление кровли (Мансарда) [parent_id] => 13 [material_sum] => 121835 [work_sum] => 28973 [total_sum] => 150808 [total_days] => 3 [display_material_sum] => 121 835 [display_work_sum] => 28 973 [display_total_sum] => 150 808 ) 1
150 808
Работа:28 973
Материалы:121 835
Дни:3
stdClass Object ( [id] => 124 [attribute_id] => 13 [name] => Экструдированный пенополистирол [material_modifier] => 1 [work_modifier] => 1 [options] => Array ( [0] => 50 мм [1] => 100 мм [2] => 150 мм [3] => 200 мм [4] => 250 мм [5] => 300 мм [6] => 350 мм [7] => 400 мм [8] => 450 мм [9] => 500 мм ) [days] => [3,3,4,4,4,5,5,5,5,6] [material_price] => [1146,2292,3438,4584,8020,9166,11458,13750,16040,18332] [work_price] => [390,508,508,660,790,870,958,1052,1158,1274] [image] => https://akademik-stroy.ru/wp-content/uploads/materials/epps-krov.jpg [area_modifier] => 112.56 [parent_name] => Утепление кровли (Мансарда) [parent_id] => 13 [material_sum] => 170272 [work_sum] => 48288 [total_sum] => 218560 [total_days] => 3 [display_material_sum] => 170 272 [display_work_sum] => 48 288 [display_total_sum] => 218 560 ) 1
218 560
Работа:48 288
Материалы:170 272
Дни:3
stdClass Object ( [id] => 125 [attribute_id] => 13 [name] => ПСБ (ППС-пенополистирол) [material_modifier] => 1 [work_modifier] => 1 [options] => Array ( [0] => 50 мм [1] => 100 мм [2] => 150 мм [3] => 200 мм [4] => 250 мм [5] => 300 мм [6] => 350 мм [7] => 400 мм [8] => 450 мм [9] => 500 мм ) [days] => [3,3,4,4,4,5,5,5,5,6] [material_price] => [476,954,1430,1906,3336,3814,4766,5720,6674,7626] [work_price] => [390,508,508,660,790,870,958,1052,1158,1274] [image] => https://akademik-stroy.ru/wp-content/uploads/materials/psb-krov.jpg [area_modifier] => 112.56 [parent_name] => Утепление кровли (Мансарда) [parent_id] => 13 [material_sum] => 70724 [work_sum] => 48288 [total_sum] => 119012 [total_days] => 3 [display_material_sum] => 70 724 [display_work_sum] => 48 288 [display_total_sum] => 119 012 ) 1
119 012
Работа:48 288
Материалы:70 724
Дни:3
stdClass Object ( [id] => 126 [attribute_id] => 13 [name] => ППУ (Пенополиуретан) [material_modifier] => 1 [work_modifier] => 1 [options] => Array ( [0] => 50 мм [1] => 100 мм [2] => 150 мм [3] => 200 мм [4] => 250 мм [5] => 300 мм [6] => 350 мм [7] => 400 мм [8] => 450 мм [9] => 500 мм ) [days] => [2,2,3,3,3,3,4,4,4,4] [material_price] => [2080,4160,6240,8320,14560,16640,20800,24960,29120,33280] [work_price] => [234,304,304,396,474,522,574,632,694,764] [image] => https://akademik-stroy.ru/wp-content/uploads/materials/ppu-krov.jpg [area_modifier] => 112.56 [parent_name] => Утепление кровли (Мансарда) [parent_id] => 13 [material_sum] => 309045 [work_sum] => 28973 [total_sum] => 338018 [total_days] => 2 [display_material_sum] => 309 045 [display_work_sum] => 28 973 [display_total_sum] => 338 018 ) 1
338 018
Работа:28 973
Материалы:309 045
Дни:2
stdClass Object ( [id] => 127 [attribute_id] => 13 [name] => PIR-плиты (пенополиизоцианурат) [material_modifier] => 1 [work_modifier] => 1 [options] => Array ( [0] => 50 мм [1] => 100 мм [2] => 150 мм [3] => 200 мм [4] => 250 мм [5] => 300 мм [6] => 350 мм [7] => 400 мм [8] => 450 мм [9] => 500 мм ) [days] => [3,3,4,4,4,5,5,5,5,6] [material_price] => [2646,5290,7936,10580,18516,21162,26452,31742,37032,42324] [work_price] => [390,508,508,660,790,870,958,1052,1158,1274] [image] => https://akademik-stroy.ru/wp-content/uploads/materials/pir-krov.jpg [area_modifier] => 112.56 [parent_name] => Утепление кровли (Мансарда) [parent_id] => 13 [material_sum] => 393141 [work_sum] => 48288 [total_sum] => 441429 [total_days] => 3 [display_material_sum] => 393 141 [display_work_sum] => 48 288 [display_total_sum] => 441 429 ) 1
441 429
Работа:48 288
Материалы:393 141
Дни:3
Мансардные окна
stdClass Object ( [id] => 27 [attribute_id] => 14 [name] => Нет [material_modifier] => 1 [work_modifier] => 1 [options] => Array ( ) [days] => [0] [material_price] => [0] [work_price] => [0] [image] => https://akademik-stroy.ru/wp-content/uploads/materials/mansardnye-okna-2.jpg [area_modifier] => 1 [parent_name] => Мансардные окна [parent_id] => 14 [material_sum] => 0 [work_sum] => 0 [total_sum] => 0 [total_days] => 0 [display_material_sum] => 0 [display_work_sum] => 0 [display_total_sum] => 0 ) 1
0
Работа:0
Материалы:0
Дни:0
stdClass Object ( [id] => 28 [attribute_id] => 14 [name] => Есть [material_modifier] => 1 [work_modifier] => 1 [options] => Array ( [0] => 55x78 [1] => 55x98 ) [days] => [6,7] [material_price] => [47480,68700] [work_price] => [17900,19500] [image] => https://akademik-stroy.ru/wp-content/uploads/materials/mansardnye-okna-2.jpg [area_modifier] => 1 [parent_name] => Мансардные окна [parent_id] => 14 [material_sum] => 62674 [work_sum] => 19690 [total_sum] => 82364 [total_days] => 6 [display_material_sum] => 62 674 [display_work_sum] => 19 690 [display_total_sum] => 82 364 ) 1
82 364
Работа:19 690
Материалы:62 674
Дни:6
Подшивка кровли
stdClass Object ( [id] => 29 [attribute_id] => 15 [name] => Нет [material_modifier] => 1 [work_modifier] => 1 [options] => Array ( ) [days] => [0] [material_price] => [0] [work_price] => [0] [image] => https://akademik-stroy.ru/wp-content/uploads/materials/sofit.jpg [area_modifier] => 112.56 [parent_name] => Подшивка кровли [parent_id] => 15 [material_sum] => 0 [work_sum] => 0 [total_sum] => 0 [total_days] => 0 [display_material_sum] => 0 [display_work_sum] => 0 [display_total_sum] => 0 ) 1
0
Работа:0
Материалы:0
Дни:0
stdClass Object ( [id] => 30 [attribute_id] => 15 [name] => Есть [material_modifier] => 1 [work_modifier] => 1 [options] => Array ( [0] => Софиты (ПВХ) [1] => Cedral [2] => ДПК [3] => Планкен ) [days] => [7,10,9,8] [material_price] => [1803,3213,3025,3150] [work_price] => [1529,2188,2075,1923] [image] => https://akademik-stroy.ru/wp-content/uploads/materials/sofit.jpg [area_modifier] => 112.56 [parent_name] => Подшивка кровли [parent_id] => 15 [material_sum] => 267888 [work_sum] => 189315 [total_sum] => 457203 [total_days] => 7 [display_material_sum] => 267 888 [display_work_sum] => 189 315 [display_total_sum] => 457 203 ) 1
457 203
Работа:189 315
Материалы:267 888
Дни:7
Водосточная система
stdClass Object ( [id] => 31 [attribute_id] => 16 [name] => Нет [material_modifier] => 1 [work_modifier] => 1 [options] => Array ( ) [days] => [0] [material_price] => [0] [work_price] => [0] [image] => https://akademik-stroy.ru/wp-content/uploads/materials/docke-standard-pvh.jpg [area_modifier] => 112.56 [parent_name] => Водосточная система [parent_id] => 16 [material_sum] => 0 [work_sum] => 0 [total_sum] => 0 [total_days] => 0 [display_material_sum] => 0 [display_work_sum] => 0 [display_total_sum] => 0 ) 1
0
Работа:0
Материалы:0
Дни:0
stdClass Object ( [id] => 32 [attribute_id] => 16 [name] => Есть [material_modifier] => 1 [work_modifier] => 1 [options] => Array ( [0] => Döcke Standard (ПВХ) [1] => Металлические Grand Line ) [days] => [7,7] [material_price] => [1842,2703] [work_price] => [1491,1529] [image] => https://akademik-stroy.ru/wp-content/uploads/materials/docke-standard-pvh.jpg [area_modifier] => 112.56 [parent_name] => Водосточная система [parent_id] => 16 [material_sum] => 273683 [work_sum] => 184610 [total_sum] => 458293 [total_days] => 7 [display_material_sum] => 273 683 [display_work_sum] => 184 610 [display_total_sum] => 458 293 ) 1
458 293
Работа:184 610
Материалы:273 683
Дни:7
Дополнительное утепление наружных стен
stdClass Object ( [id] => 33 [attribute_id] => 17 [name] => Нет [material_modifier] => 1 [work_modifier] => 1 [options] => Array ( ) [days] => [0] [material_price] => [0] [work_price] => [0] [image] => https://akademik-stroy.ru/wp-content/uploads/materials/mineralovata.jpg [area_modifier] => 186.94 [parent_name] => Дополнительное утепление наружных стен [parent_id] => 17 [material_sum] => 0 [work_sum] => 0 [total_sum] => 0 [total_days] => 0 [display_material_sum] => 0 [display_work_sum] => 0 [display_total_sum] => 0 ) 1
0
Работа:0
Материалы:0
Дни:0
stdClass Object ( [id] => 34 [attribute_id] => 17 [name] => Минераловатный [material_modifier] => 1 [work_modifier] => 1 [options] => Array ( [0] => 50 мм [1] => 100 мм [2] => 150 мм [3] => 200 мм [4] => 250 мм [5] => 300 мм ) [days] => [7,8,10,12,14,15] [material_price] => [3437,3613,3803,3915,4601,4830] [work_price] => [2325,2423,2523,2749,2859,3025] [image] => https://akademik-stroy.ru/wp-content/uploads/materials/mineralovata.jpg [area_modifier] => 186.94 [parent_name] => Дополнительное утепление наружных стен [parent_id] => 17 [material_sum] => 848117 [work_sum] => 478099 [total_sum] => 1326216 [total_days] => 7 [display_material_sum] => 848 117 [display_work_sum] => 478 099 [display_total_sum] => 1 326 216 ) 1
1 326 216
Работа:478 099
Материалы:848 117
Дни:7
stdClass Object ( [id] => 128 [attribute_id] => 17 [name] => Эковата (целлюлозная вата) [material_modifier] => 1 [work_modifier] => 1 [options] => Array ( [0] => 50 мм [1] => 100 мм [2] => 150 мм [3] => 200 мм [4] => 250 мм [5] => 300 мм ) [days] => [3,4,5,6,7,8] [material_price] => [810,1319,1629,1838,2267,2676] [work_price] => [1225,1323,1423,1549,1659,1725] [image] => https://akademik-stroy.ru/wp-content/uploads/materials/ehkovata.jpg [area_modifier] => 186.94 [parent_name] => Дополнительное утепление наружных стен [parent_id] => 17 [material_sum] => 199876 [work_sum] => 251902 [total_sum] => 451778 [total_days] => 3 [display_material_sum] => 199 876 [display_work_sum] => 251 902 [display_total_sum] => 451 778 ) 1
451 778
Работа:251 902
Материалы:199 876
Дни:3
stdClass Object ( [id] => 129 [attribute_id] => 17 [name] => Экструдированный пенополистирол [material_modifier] => 1 [work_modifier] => 1 [options] => Array ( [0] => 50 мм [1] => 100 мм [2] => 150 мм [3] => 200 мм [4] => 250 мм [5] => 300 мм ) [days] => [5,6,7,8,9,10] [material_price] => [4560,4300,5119,6292,7010,8583] [work_price] => [1795,1954,2254,2330,2595,2735] [image] => https://akademik-stroy.ru/wp-content/uploads/materials/epps.jpg [area_modifier] => 186.94 [parent_name] => Дополнительное утепление наружных стен [parent_id] => 17 [material_sum] => 1125229 [work_sum] => 369113 [total_sum] => 1494342 [total_days] => 5 [display_material_sum] => 1 125 229 [display_work_sum] => 369 113 [display_total_sum] => 1 494 342 ) 1
1 494 342
Работа:369 113
Материалы:1 125 229
Дни:5
stdClass Object ( [id] => 130 [attribute_id] => 17 [name] => ПСБ (ППС-пенополистирол) [material_modifier] => 1 [work_modifier] => 1 [options] => Array ( [0] => 50 мм [1] => 100 мм [2] => 150 мм [3] => 200 мм [4] => 250 мм [5] => 300 мм ) [days] => [5,6,7,8,9,10] [material_price] => [4822,5200,5819,6292,7010,7583] [work_price] => [1795,1954,2254,2330,2595,2735] [image] => https://akademik-stroy.ru/wp-content/uploads/materials/psb.jpg [area_modifier] => 186.94 [parent_name] => Дополнительное утепление наружных стен [parent_id] => 17 [material_sum] => 1189881 [work_sum] => 369113 [total_sum] => 1558994 [total_days] => 5 [display_material_sum] => 1 189 881 [display_work_sum] => 369 113 [display_total_sum] => 1 558 994 ) 1
1 558 994
Работа:369 113
Материалы:1 189 881
Дни:5
stdClass Object ( [id] => 131 [attribute_id] => 17 [name] => ППУ (Пенополиуретан) [material_modifier] => 1 [work_modifier] => 1 [options] => Array ( [0] => 50 мм [1] => 100 мм [2] => 150 мм [3] => 200 мм [4] => 250 мм [5] => 300 мм ) [days] => [3,4,5,6,7,8] [material_price] => [2860,3400,4219,4592,5010,5583] [work_price] => [729,900,980,1120,1280,1530] [image] => https://akademik-stroy.ru/wp-content/uploads/materials/ppu.jpg [area_modifier] => 186.94 [parent_name] => Дополнительное утепление наружных стен [parent_id] => 17 [material_sum] => 705736 [work_sum] => 149907 [total_sum] => 855643 [total_days] => 3 [display_material_sum] => 705 736 [display_work_sum] => 149 907 [display_total_sum] => 855 643 ) 1
855 643
Работа:149 907
Материалы:705 736
Дни:3
stdClass Object ( [id] => 132 [attribute_id] => 17 [name] => PIR-плиты (пенополиизоцианурат) [material_modifier] => 1 [work_modifier] => 1 [options] => Array ( [0] => 50 мм [1] => 100 мм [2] => 150 мм [3] => 200 мм [4] => 250 мм [5] => 300 мм ) [days] => [5,6,7,8,9,10] [material_price] => [8323,15645,20968,25900,29258,30581] [work_price] => [800,900,970,1150,1280,1330] [image] => https://akademik-stroy.ru/wp-content/uploads/materials/pir.jpg [area_modifier] => 186.94 [parent_name] => Дополнительное утепление наружных стен [parent_id] => 17 [material_sum] => 2053790 [work_sum] => 164507 [total_sum] => 2218297 [total_days] => 5 [display_material_sum] => 2 053 790 [display_work_sum] => 164 507 [display_total_sum] => 2 218 297 ) 1
2 218 297
Работа:164 507
Материалы:2 053 790
Дни:5
Наружная отделка фасада
stdClass Object ( [id] => 37 [attribute_id] => 19 [name] => Нет [material_modifier] => 1 [work_modifier] => 1 [options] => Array ( ) [days] => [0] [material_price] => [0] [work_price] => [0] [image] => https://akademik-stroy.ru/wp-content/uploads/materials/imitaciya-brusa.jpg [area_modifier] => 186.94 [parent_name] => Наружная отделка фасада [parent_id] => 19 [material_sum] => 0 [work_sum] => 0 [total_sum] => 0 [total_days] => 0 [display_material_sum] => 0 [display_work_sum] => 0 [display_total_sum] => 0 ) 1
0
Работа:0
Материалы:0
Дни:0
stdClass Object ( [id] => 38 [attribute_id] => 19 [name] => Имитация бруса [material_modifier] => 1 [work_modifier] => 1 [options] => Array ( [0] => Сосна [1] => Ель [2] => Лиственница ) [days] => [20,20,20] [material_price] => [2994,2762,4954] [work_price] => [1397,1231,1577] [image] => https://akademik-stroy.ru/wp-content/uploads/materials/imitaciya-brusa.jpg [area_modifier] => 186.94 [parent_name] => Наружная отделка фасада [parent_id] => 19 [material_sum] => 738802 [work_sum] => 287271 [total_sum] => 1026073 [total_days] => 20 [display_material_sum] => 738 802 [display_work_sum] => 287 271 [display_total_sum] => 1 026 073 ) 1
1 026 073
Работа:287 271
Материалы:738 802
Дни:20
stdClass Object ( [id] => 136 [attribute_id] => 19 [name] => Планкен [material_modifier] => 1 [work_modifier] => 1 [options] => Array ( [0] => Сосна [1] => Ель [2] => Лиственница ) [days] => [20,20,20] [material_price] => [3194,2862,5154] [work_price] => [1537,1354,1735] [image] => https://akademik-stroy.ru/wp-content/uploads/materials/planken.jpg [area_modifier] => 186.94 [parent_name] => Наружная отделка фасада [parent_id] => 19 [material_sum] => 788154 [work_sum] => 316059 [total_sum] => 1104213 [total_days] => 20 [display_material_sum] => 788 154 [display_work_sum] => 316 059 [display_total_sum] => 1 104 213 ) 1
1 104 213
Работа:316 059
Материалы:788 154
Дни:20
stdClass Object ( [id] => 137 [attribute_id] => 19 [name] => Штукатурка [material_modifier] => 1 [work_modifier] => 1 [options] => Array ( [0] => Цементно-песчаная (минеральная) [1] => Мокрый фасад ) [days] => [35,35] [material_price] => [2231,3938] [work_price] => [1202,2422] [image] => https://akademik-stroy.ru/wp-content/uploads/materials/shtukaturka.jpg [area_modifier] => 186.94 [parent_name] => Наружная отделка фасада [parent_id] => 19 [material_sum] => 550523 [work_sum] => 247172 [total_sum] => 797695 [total_days] => 35 [display_material_sum] => 550 523 [display_work_sum] => 247 172 [display_total_sum] => 797 695 ) 1
797 695
Работа:247 172
Материалы:550 523
Дни:35
stdClass Object ( [id] => 138 [attribute_id] => 19 [name] => Облицовочный кирпич [material_modifier] => 1 [work_modifier] => 1 [options] => Array ( [0] => Керамический [1] => Клинкерный [2] => Ручной формовки [3] => Гиперпрессованный [4] => Силикатный кирпич ) [days] => [45,45,45,45,45] [material_price] => [8174,9148,1040,1257,5876] [work_price] => [3240,3758,4536,4017,3369] [image] => https://akademik-stroy.ru/wp-content/uploads/materials/oblicovochnyj-kirpich.jpg [area_modifier] => 186.94 [parent_name] => Наружная отделка фасада [parent_id] => 19 [material_sum] => 2017023 [work_sum] => 666254 [total_sum] => 2683277 [total_days] => 45 [display_material_sum] => 2 017 023 [display_work_sum] => 666 254 [display_total_sum] => 2 683 277 ) 1
2 683 277
Работа:666 254
Материалы:2 017 023
Дни:45
stdClass Object ( [id] => 139 [attribute_id] => 19 [name] => Фасадная плитка [material_modifier] => 1 [work_modifier] => 1 [options] => Array ( [0] => Клинкерная [1] => Керамическая [2] => Плитка ручной формовки ) [days] => [40,40,40] [material_price] => [2974,1487,3470] [work_price] => [3007,2592,3629] [image] => https://akademik-stroy.ru/wp-content/uploads/materials/fasadnaya-plitka.jpg [area_modifier] => 186.94 [parent_name] => Наружная отделка фасада [parent_id] => 19 [material_sum] => 733867 [work_sum] => 618341 [total_sum] => 1352208 [total_days] => 40 [display_material_sum] => 733 867 [display_work_sum] => 618 341 [display_total_sum] => 1 352 208 ) 1
1 352 208
Работа:618 341
Материалы:733 867
Дни:40
stdClass Object ( [id] => 140 [attribute_id] => 19 [name] => Сайдинг [material_modifier] => 1 [work_modifier] => 1 [options] => Array ( [0] => Виниловый [1] => Металлический [2] => Фиброцементный ) [days] => [20,20,20] [material_price] => [1263,1944,4147] [work_price] => [1263,1944,2074] [image] => https://akademik-stroy.ru/wp-content/uploads/materials/sajding.jpg [area_modifier] => 186.94 [parent_name] => Наружная отделка фасада [parent_id] => 19 [material_sum] => 311659 [work_sum] => 259716 [total_sum] => 571375 [total_days] => 20 [display_material_sum] => 311 659 [display_work_sum] => 259 716 [display_total_sum] => 571 375 ) 1
571 375
Работа:259 716
Материалы:311 659
Дни:20
stdClass Object ( [id] => 141 [attribute_id] => 19 [name] => Камень [material_modifier] => 1 [work_modifier] => 1 [options] => Array ( [0] => Травертин [1] => Дагестанский [2] => Искусственный [3] => Натуральный [4] => Керамогранит ) [days] => [45,45,45,45,45] [material_price] => [4536,3888,2592,3240,2462] [work_price] => [3240,3240,2462,3110,1944] [image] => https://akademik-stroy.ru/wp-content/uploads/materials/kamen-1.jpg [area_modifier] => 186.94 [parent_name] => Наружная отделка фасада [parent_id] => 19 [material_sum] => 1119307 [work_sum] => 666254 [total_sum] => 1785561 [total_days] => 45 [display_material_sum] => 1 119 307 [display_work_sum] => 666 254 [display_total_sum] => 1 785 561 ) 1
1 785 561
Работа:666 254
Материалы:1 119 307
Дни:45
stdClass Object ( [id] => 142 [attribute_id] => 19 [name] => Термопанели [material_modifier] => 1 [work_modifier] => 1 [options] => Array ( ) [days] => [20] [material_price] => [6221] [work_price] => [2333] [image] => https://akademik-stroy.ru/wp-content/uploads/materials/termo.png [area_modifier] => 186.94 [parent_name] => Наружная отделка фасада [parent_id] => 19 [material_sum] => 1535099 [work_sum] => 479744 [total_sum] => 2014843 [total_days] => 20 [display_material_sum] => 1 535 099 [display_work_sum] => 479 744 [display_total_sum] => 2 014 843 ) 1
2 014 843
Работа:479 744
Материалы:1 535 099
Дни:20
stdClass Object ( [id] => 143 [attribute_id] => 19 [name] => Плитка HAUBERK [material_modifier] => 1 [work_modifier] => 1 [options] => Array ( ) [days] => [20] [material_price] => [2786] [work_price] => [1944] [image] => https://akademik-stroy.ru/wp-content/uploads/materials/hauberk.jpg [area_modifier] => 186.94 [parent_name] => Наружная отделка фасада [parent_id] => 19 [material_sum] => 687476 [work_sum] => 399752 [total_sum] => 1087228 [total_days] => 20 [display_material_sum] => 687 476 [display_work_sum] => 399 752 [display_total_sum] => 1 087 228 ) 1
1 087 228
Работа:399 752
Материалы:687 476
Дни:20
stdClass Object ( [id] => 144 [attribute_id] => 19 [name] => Фальцевый фасад [material_modifier] => 1 [work_modifier] => 1 [options] => Array ( ) [days] => [20] [material_price] => [3240] [work_price] => [2592] [image] => https://akademik-stroy.ru/wp-content/uploads/materials/falcevyj-fasad.jpg [area_modifier] => 186.94 [parent_name] => Наружная отделка фасада [parent_id] => 19 [material_sum] => 799505 [work_sum] => 533003 [total_sum] => 1332508 [total_days] => 20 [display_material_sum] => 799 505 [display_work_sum] => 533 003 [display_total_sum] => 1 332 508 ) 1
1 332 508
Работа:533 003
Материалы:799 505
Дни:20
stdClass Object ( [id] => 145 [attribute_id] => 19 [name] => Комбинированный [material_modifier] => 1 [work_modifier] => 1 [options] => Array ( ) [days] => [20] [material_price] => [4629] [work_price] => [3499] [image] => https://akademik-stroy.ru/wp-content/uploads/materials/Kombinirovannyj.jpg [area_modifier] => 186.94 [parent_name] => Наружная отделка фасада [parent_id] => 19 [material_sum] => 1142256 [work_sum] => 719513 [total_sum] => 1861769 [total_days] => 20 [display_material_sum] => 1 142 256 [display_work_sum] => 719 513 [display_total_sum] => 1 861 769 ) 1
1 861 769
Работа:719 513
Материалы:1 142 256
Дни:20
stdClass Object ( [id] => 257 [attribute_id] => 19 [name] => Японские фиброцементные [material_modifier] => 1 [work_modifier] => 1 [options] => Array ( ) [days] => [20] [material_price] => [7043] [work_price] => [2993] [image] => https://akademik-stroy.ru/wp-content/uploads/materials/paneli.jpg [area_modifier] => 186.94 [parent_name] => Наружная отделка фасада [parent_id] => 19 [material_sum] => 1737936 [work_sum] => 615463 [total_sum] => 2353399 [total_days] => 20 [display_material_sum] => 1 737 936 [display_work_sum] => 615 463 [display_total_sum] => 2 353 399 ) 1
2 353 399
Работа:615 463
Материалы:1 737 936
Дни:20
stdClass Object ( [id] => 258 [attribute_id] => 19 [name] => Панели Каньон [material_modifier] => 1 [work_modifier] => 1 [options] => Array ( ) [days] => [20] [material_price] => [4543] [work_price] => [2592] [image] => https://akademik-stroy.ru/wp-content/uploads/materials/kanon.png [area_modifier] => 186.94 [parent_name] => Наружная отделка фасада [parent_id] => 19 [material_sum] => 1121034 [work_sum] => 533003 [total_sum] => 1654037 [total_days] => 20 [display_material_sum] => 1 121 034 [display_work_sum] => 533 003 [display_total_sum] => 1 654 037 ) 1
1 654 037
Работа:533 003
Материалы:1 121 034
Дни:20
Террасы, крыльца, навесы
stdClass Object ( [id] => 39 [attribute_id] => 20 [name] => Нет [material_modifier] => 1 [work_modifier] => 1 [options] => Array ( ) [days] => [0] [material_price] => [0] [work_price] => [0] [image] => https://akademik-stroy.ru/wp-content/uploads/materials/terrasy.jpg [area_modifier] => 30 [parent_name] => Террасы, крыльца, навесы [parent_id] => 20 [material_sum] => 0 [work_sum] => 0 [total_sum] => 0 [total_days] => 0 [display_material_sum] => 0 [display_work_sum] => 0 [display_total_sum] => 0 ) 1
0
Работа:0
Материалы:0
Дни:0
stdClass Object ( [id] => 40 [attribute_id] => 20 [name] => Есть [material_modifier] => 1 [work_modifier] => 1 [options] => Array ( ) [days] => [5] [material_price] => [10450] [work_price] => [1950] [image] => https://akademik-stroy.ru/wp-content/uploads/materials/terrasy.jpg [area_modifier] => 30 [parent_name] => Террасы, крыльца, навесы [parent_id] => 20 [material_sum] => 413820 [work_sum] => 64350 [total_sum] => 478170 [total_days] => 5 [display_material_sum] => 413 820 [display_work_sum] => 64 350 [display_total_sum] => 478 170 ) 1
478 170
Работа:64 350
Материалы:413 820
Дни:5
Балконы
stdClass Object ( [id] => 41 [attribute_id] => 21 [name] => Нет [material_modifier] => 1 [work_modifier] => 1 [options] => Array ( ) [days] => [0] [material_price] => [0] [work_price] => [0] [image] => https://akademik-stroy.ru/wp-content/uploads/materials/balkony.jpg [area_modifier] => 30 [parent_name] => Балконы [parent_id] => 21 [material_sum] => 0 [work_sum] => 0 [total_sum] => 0 [total_days] => 0 [display_material_sum] => 0 [display_work_sum] => 0 [display_total_sum] => 0 ) 1
0
Работа:0
Материалы:0
Дни:0
stdClass Object ( [id] => 42 [attribute_id] => 21 [name] => Есть [material_modifier] => 1 [work_modifier] => 1 [options] => Array ( ) [days] => [12] [material_price] => [3600] [work_price] => [1950] [image] => https://akademik-stroy.ru/wp-content/uploads/materials/balkony.jpg [area_modifier] => 30 [parent_name] => Балконы [parent_id] => 21 [material_sum] => 142560 [work_sum] => 64350 [total_sum] => 206910 [total_days] => 12 [display_material_sum] => 142 560 [display_work_sum] => 64 350 [display_total_sum] => 206 910 ) 1
206 910
Работа:64 350
Материалы:142 560
Дни:12
Отмостка
stdClass Object ( [id] => 43 [attribute_id] => 22 [name] => Нет [material_modifier] => 1 [work_modifier] => 1 [options] => Array ( ) [days] => [0] [material_price] => [0] [work_price] => [0] [image] => https://akademik-stroy.ru/wp-content/uploads/materials/uteplennaya.jpg [area_modifier] => 112.56 [parent_name] => Отмостка [parent_id] => 22 [material_sum] => 0 [work_sum] => 0 [total_sum] => 0 [total_days] => 0 [display_material_sum] => 0 [display_work_sum] => 0 [display_total_sum] => 0 ) 1
0
Работа:0
Материалы:0
Дни:0
stdClass Object ( [id] => 44 [attribute_id] => 22 [name] => Утепленная отмостка [material_modifier] => 1 [work_modifier] => 1 [options] => Array ( ) [days] => [15] [material_price] => [2550] [work_price] => [1750] [image] => https://akademik-stroy.ru/wp-content/uploads/materials/uteplennaya.jpg [area_modifier] => 112.56 [parent_name] => Отмостка [parent_id] => 22 [material_sum] => 378877 [work_sum] => 216678 [total_sum] => 595555 [total_days] => 15 [display_material_sum] => 378 877 [display_work_sum] => 216 678 [display_total_sum] => 595 555 ) 1
595 555
Работа:216 678
Материалы:378 877
Дни:15
stdClass Object ( [id] => 146 [attribute_id] => 22 [name] => Не утепленная отмостка [material_modifier] => 1 [work_modifier] => 1 [options] => Array ( ) [days] => [10] [material_price] => [1650] [work_price] => [1450] [image] => https://akademik-stroy.ru/wp-content/uploads/materials/ne-uteplennaya.jpg [area_modifier] => 112.56 [parent_name] => Отмостка [parent_id] => 22 [material_sum] => 245156 [work_sum] => 179533 [total_sum] => 424689 [total_days] => 10 [display_material_sum] => 245 156 [display_work_sum] => 179 533 [display_total_sum] => 424 689 ) 1
424 689
Работа:179 533
Материалы:245 156
Дни:10
Дренаж вокруг дома
stdClass Object ( [id] => 45 [attribute_id] => 23 [name] => Нет [material_modifier] => 1 [work_modifier] => 1 [options] => Array ( ) [days] => [0] [material_price] => [0] [work_price] => [0] [image] => https://akademik-stroy.ru/wp-content/uploads/materials/drenazh-2.jpg [area_modifier] => 112.56 [parent_name] => Дренаж вокруг дома [parent_id] => 23 [material_sum] => 0 [work_sum] => 0 [total_sum] => 0 [total_days] => 0 [display_material_sum] => 0 [display_work_sum] => 0 [display_total_sum] => 0 ) 1
0
Работа:0
Материалы:0
Дни:0
stdClass Object ( [id] => 46 [attribute_id] => 23 [name] => Есть [material_modifier] => 1 [work_modifier] => 1 [options] => Array ( ) [days] => [5] [material_price] => [2366] [work_price] => [1911] [image] => https://akademik-stroy.ru/wp-content/uploads/materials/drenazh-2.jpg [area_modifier] => 112.56 [parent_name] => Дренаж вокруг дома [parent_id] => 23 [material_sum] => 351538 [work_sum] => 236612 [total_sum] => 588150 [total_days] => 5 [display_material_sum] => 351 538 [display_work_sum] => 236 612 [display_total_sum] => 588 150 ) 1
588 150
Работа:236 612
Материалы:351 538
Дни:5
Автономная канализация (септики)
stdClass Object ( [id] => 47 [attribute_id] => 24 [name] => Нет [material_modifier] => 1 [work_modifier] => 1 [options] => Array ( ) [days] => [0] [material_price] => [0] [work_price] => [0] [image] => https://akademik-stroy.ru/wp-content/uploads/materials/septik.jpg [area_modifier] => 1 [parent_name] => Автономная канализация (септики) [parent_id] => 24 [material_sum] => 0 [work_sum] => 0 [total_sum] => 0 [total_days] => 0 [display_material_sum] => 0 [display_work_sum] => 0 [display_total_sum] => 0 ) 1
0
Работа:0
Материалы:0
Дни:0
stdClass Object ( [id] => 48 [attribute_id] => 24 [name] => Есть [material_modifier] => 1 [work_modifier] => 1 [options] => Array ( [0] => Для дачи на 4 человека [1] => Для дома на 5 человек [2] => Для дома на 6 человек [3] => Для дома на 7 человек [4] => Для дома на 10 человек ) [days] => [7,7,7,8,8] [material_price] => [196340,220500,240940,264200,293340] [work_price] => [50000,55000,60500,66550,73206] [image] => https://akademik-stroy.ru/wp-content/uploads/materials/septik.jpg [area_modifier] => 1 [parent_name] => Автономная канализация (септики) [parent_id] => 24 [material_sum] => 259169 [work_sum] => 55000 [total_sum] => 314169 [total_days] => 7 [display_material_sum] => 259 169 [display_work_sum] => 55 000 [display_total_sum] => 314 169 ) 1
314 169
Работа:55 000
Материалы:259 169
Дни:7
Внутренние (не несущие) перегородки
stdClass Object ( [id] => 49 [attribute_id] => 25 [name] => Нет [material_modifier] => 1 [work_modifier] => 1 [options] => Array ( ) [days] => [0] [material_price] => [0] [work_price] => [0] [image] => https://akademik-stroy.ru/wp-content/uploads/materials/gkl.jpg [area_modifier] => 186.94 [parent_name] => Внутренние (не несущие) перегородки [parent_id] => 25 [material_sum] => 0 [work_sum] => 0 [total_sum] => 0 [total_days] => 0 [display_material_sum] => 0 [display_work_sum] => 0 [display_total_sum] => 0 ) 1
0
Работа:0
Материалы:0
Дни:0
stdClass Object ( [id] => 147 [attribute_id] => 25 [name] => Каркасно-обшивные [material_modifier] => 1 [work_modifier] => 1 [options] => Array ( [0] => 75 мм (без шумоизоляции) [1] => 75 мм (с шумоизоляцией) ) [days] => [11,11] [material_price] => [580,970] [work_price] => [380,570] [image] => https://akademik-stroy.ru/wp-content/uploads/materials/gkl.jpg [area_modifier] => 186.94 [parent_name] => Внутренние (не несущие) перегородки [parent_id] => 25 [material_sum] => 143121 [work_sum] => 78141 [total_sum] => 221262 [total_days] => 11 [display_material_sum] => 143 121 [display_work_sum] => 78 141 [display_total_sum] => 221 262 ) 1
221 262
Работа:78 141
Материалы:143 121
Дни:11
stdClass Object ( [id] => 148 [attribute_id] => 25 [name] => Пазогребневые [material_modifier] => 1 [work_modifier] => 1 [options] => Array ( [0] => 80 мм [1] => 100 мм ) [days] => [5,5] [material_price] => [1022,1313] [work_price] => [600,700] [image] => https://akademik-stroy.ru/wp-content/uploads/materials/pazogrebnevye-bloki.jpg [area_modifier] => 186.94 [parent_name] => Внутренние (не несущие) перегородки [parent_id] => 25 [material_sum] => 252190 [work_sum] => 123380 [total_sum] => 375570 [total_days] => 5 [display_material_sum] => 252 190 [display_work_sum] => 123 380 [display_total_sum] => 375 570 ) 1
375 570
Работа:123 380
Материалы:252 190
Дни:5
stdClass Object ( [id] => 149 [attribute_id] => 25 [name] => Газобетонные [material_modifier] => 1 [work_modifier] => 1 [options] => Array ( [0] => 100 мм [1] => 200 мм ) [days] => [11,11] [material_price] => [1160,1920] [work_price] => [700,900] [image] => https://akademik-stroy.ru/wp-content/uploads/materials/gazobeton-2.jpg [area_modifier] => 186.94 [parent_name] => Внутренние (не несущие) перегородки [parent_id] => 25 [material_sum] => 286243 [work_sum] => 143944 [total_sum] => 430187 [total_days] => 11 [display_material_sum] => 286 243 [display_work_sum] => 143 944 [display_total_sum] => 430 187 ) 1
430 187
Работа:143 944
Материалы:286 243
Дни:11
stdClass Object ( [id] => 150 [attribute_id] => 25 [name] => Кирпичные [material_modifier] => 1 [work_modifier] => 1 [options] => Array ( [0] => 120 мм [1] => 250 мм [2] => 360 мм ) [days] => [7,7,7] [material_price] => [1785,3570,5355] [work_price] => [900,1600,1800] [image] => https://akademik-stroy.ru/wp-content/uploads/materials/kirpich-1.jpg [area_modifier] => 186.94 [parent_name] => Внутренние (не несущие) перегородки [parent_id] => 25 [material_sum] => 440468 [work_sum] => 185071 [total_sum] => 625539 [total_days] => 7 [display_material_sum] => 440 468 [display_work_sum] => 185 071 [display_total_sum] => 625 539 ) 1
625 539
Работа:185 071
Материалы:440 468
Дни:7
Электрика
stdClass Object ( [id] => 55 [attribute_id] => 28 [name] => Нет [material_modifier] => 1 [work_modifier] => 1 [options] => Array ( ) [days] => [0] [material_price] => [0] [work_price] => [0] [image] => https://akademik-stroy.ru/wp-content/uploads/materials/ehlektrika.jpg [area_modifier] => 151.7 [parent_name] => Электрика [parent_id] => 28 [material_sum] => 0 [work_sum] => 0 [total_sum] => 0 [total_days] => 0 [display_material_sum] => 0 [display_work_sum] => 0 [display_total_sum] => 0 ) 1
0
Работа:0
Материалы:0
Дни:0
stdClass Object ( [id] => 56 [attribute_id] => 28 [name] => Есть [material_modifier] => 1 [work_modifier] => 1 [options] => Array ( ) [days] => [10] [material_price] => [650] [work_price] => [950] [image] => https://akademik-stroy.ru/wp-content/uploads/materials/ehlektrika.jpg [area_modifier] => 151.7 [parent_name] => Электрика [parent_id] => 28 [material_sum] => 130159 [work_sum] => 158527 [total_sum] => 288686 [total_days] => 10 [display_material_sum] => 130 159 [display_work_sum] => 158 527 [display_total_sum] => 288 686 ) 1
288 686
Работа:158 527
Материалы:130 159
Дни:10
Сантехника, канализация в доме
stdClass Object ( [id] => 57 [attribute_id] => 29 [name] => Нет [material_modifier] => 1 [work_modifier] => 1 [options] => Array ( ) [days] => [0] [material_price] => [0] [work_price] => [0] [image] => https://akademik-stroy.ru/wp-content/uploads/materials/santekhnika-kanalizaciya-1.jpg [area_modifier] => 151.7 [parent_name] => Сантехника, канализация в доме [parent_id] => 29 [material_sum] => 0 [work_sum] => 0 [total_sum] => 0 [total_days] => 0 [display_material_sum] => 0 [display_work_sum] => 0 [display_total_sum] => 0 ) 1
0
Работа:0
Материалы:0
Дни:0
stdClass Object ( [id] => 58 [attribute_id] => 29 [name] => Есть [material_modifier] => 1 [work_modifier] => 1 [options] => Array ( ) [days] => [10] [material_price] => [600] [work_price] => [730] [image] => https://akademik-stroy.ru/wp-content/uploads/materials/santekhnika-kanalizaciya-1.jpg [area_modifier] => 151.7 [parent_name] => Сантехника, канализация в доме [parent_id] => 29 [material_sum] => 120146 [work_sum] => 121815 [total_sum] => 241961 [total_days] => 10 [display_material_sum] => 120 146 [display_work_sum] => 121 815 [display_total_sum] => 241 961 ) 1
241 961
Работа:121 815
Материалы:120 146
Дни:10
Отопление
stdClass Object ( [id] => 59 [attribute_id] => 30 [name] => Нет [material_modifier] => 1 [work_modifier] => 1 [options] => Array ( ) [days] => [0] [material_price] => [0] [work_price] => [0] [image] => https://akademik-stroy.ru/wp-content/uploads/materials/otoplenie-1.jpg [area_modifier] => 151.7 [parent_name] => Отопление [parent_id] => 30 [material_sum] => 0 [work_sum] => 0 [total_sum] => 0 [total_days] => 0 [display_material_sum] => 0 [display_work_sum] => 0 [display_total_sum] => 0 ) 1
0
Работа:0
Материалы:0
Дни:0
stdClass Object ( [id] => 60 [attribute_id] => 30 [name] => Есть [material_modifier] => 1 [work_modifier] => 1 [options] => Array ( ) [days] => [5] [material_price] => [610] [work_price] => [560] [image] => https://akademik-stroy.ru/wp-content/uploads/materials/otoplenie-1.jpg [area_modifier] => 151.7 [parent_name] => Отопление [parent_id] => 30 [material_sum] => 122149 [work_sum] => 93447 [total_sum] => 215596 [total_days] => 5 [display_material_sum] => 122 149 [display_work_sum] => 93 447 [display_total_sum] => 215 596 ) 1
215 596
Работа:93 447
Материалы:122 149
Дни:5
Теплые полы
stdClass Object ( [id] => 61 [attribute_id] => 31 [name] => Нет [material_modifier] => 1 [work_modifier] => 1 [options] => Array ( ) [days] => [0] [material_price] => [0] [work_price] => [0] [image] => https://akademik-stroy.ru/wp-content/uploads/materials/vodyanye.jpg [area_modifier] => 30 [parent_name] => Теплые полы [parent_id] => 31 [material_sum] => 0 [work_sum] => 0 [total_sum] => 0 [total_days] => 0 [display_material_sum] => 0 [display_work_sum] => 0 [display_total_sum] => 0 ) 1
0
Работа:0
Материалы:0
Дни:0
stdClass Object ( [id] => 151 [attribute_id] => 31 [name] => Водяные [material_modifier] => 1 [work_modifier] => 1 [options] => Array ( ) [days] => [9] [material_price] => [10200] [work_price] => [2500] [image] => https://akademik-stroy.ru/wp-content/uploads/materials/vodyanye.jpg [area_modifier] => 30 [parent_name] => Теплые полы [parent_id] => 31 [material_sum] => 403920 [work_sum] => 82500 [total_sum] => 486420 [total_days] => 9 [display_material_sum] => 403 920 [display_work_sum] => 82 500 [display_total_sum] => 486 420 ) 1
486 420
Работа:82 500
Материалы:403 920
Дни:9
stdClass Object ( [id] => 152 [attribute_id] => 31 [name] => Электро [material_modifier] => 1 [work_modifier] => 1 [options] => Array ( ) [days] => [5] [material_price] => [6300] [work_price] => [1500] [image] => https://akademik-stroy.ru/wp-content/uploads/materials/ehlektricheskij.jpg [area_modifier] => 30 [parent_name] => Теплые полы [parent_id] => 31 [material_sum] => 249480 [work_sum] => 49500 [total_sum] => 298980 [total_days] => 5 [display_material_sum] => 249 480 [display_work_sum] => 49 500 [display_total_sum] => 298 980 ) 1
298 980
Работа:49 500
Материалы:249 480
Дни:5
Черновая отделка стен
stdClass Object ( [id] => 63 [attribute_id] => 32 [name] => Нет [material_modifier] => 1 [work_modifier] => 1 [options] => Array ( ) [days] => [0] [material_price] => [0] [work_price] => [0] [image] => https://akademik-stroy.ru/wp-content/uploads/materials/shtukaturka-shpatlevka-1.jpg [area_modifier] => 151.7 [parent_name] => Черновая отделка стен [parent_id] => 32 [material_sum] => 0 [work_sum] => 0 [total_sum] => 0 [total_days] => 0 [display_material_sum] => 0 [display_work_sum] => 0 [display_total_sum] => 0 ) 1
0
Работа:0
Материалы:0
Дни:0
stdClass Object ( [id] => 153 [attribute_id] => 32 [name] => Штукатурка и шпатлевка [material_modifier] => 1 [work_modifier] => 1 [options] => Array ( ) [days] => [20] [material_price] => [1850] [work_price] => [2600] [image] => https://akademik-stroy.ru/wp-content/uploads/materials/shtukaturka-shpatlevka-1.jpg [area_modifier] => 151.7 [parent_name] => Черновая отделка стен [parent_id] => 32 [material_sum] => 370451 [work_sum] => 433862 [total_sum] => 804313 [total_days] => 20 [display_material_sum] => 370 451 [display_work_sum] => 433 862 [display_total_sum] => 804 313 ) 1
804 313
Работа:433 862
Материалы:370 451
Дни:20
stdClass Object ( [id] => 154 [attribute_id] => 32 [name] => Гипсокортон на стены [material_modifier] => 1 [work_modifier] => 1 [options] => Array ( ) [days] => [15] [material_price] => [950] [work_price] => [2100] [image] => https://akademik-stroy.ru/wp-content/uploads/materials/gkl-1.jpg [area_modifier] => 151.7 [parent_name] => Черновая отделка стен [parent_id] => 32 [material_sum] => 190232 [work_sum] => 350427 [total_sum] => 540659 [total_days] => 15 [display_material_sum] => 190 232 [display_work_sum] => 350 427 [display_total_sum] => 540 659 ) 1
540 659
Работа:350 427
Материалы:190 232
Дни:15
stdClass Object ( [id] => 155 [attribute_id] => 32 [name] => Вагонка [material_modifier] => 1 [work_modifier] => 1 [options] => Array ( ) [days] => [15] [material_price] => [1250] [work_price] => [950] [image] => https://akademik-stroy.ru/wp-content/uploads/materials/vagonka.jpg [area_modifier] => 151.7 [parent_name] => Черновая отделка стен [parent_id] => 32 [material_sum] => 250305 [work_sum] => 158527 [total_sum] => 408832 [total_days] => 15 [display_material_sum] => 250 305 [display_work_sum] => 158 527 [display_total_sum] => 408 832 ) 1
408 832
Работа:158 527
Материалы:250 305
Дни:15
Черновая отделка полов
stdClass Object ( [id] => 65 [attribute_id] => 33 [name] => Нет [material_modifier] => 1 [work_modifier] => 1 [options] => Array ( ) [days] => [0] [material_price] => [0] [work_price] => [0] [image] => https://akademik-stroy.ru/wp-content/uploads/materials/styazhka.jpg [area_modifier] => 151.7 [parent_name] => Черновая отделка полов [parent_id] => 33 [material_sum] => 0 [work_sum] => 0 [total_sum] => 0 [total_days] => 0 [display_material_sum] => 0 [display_work_sum] => 0 [display_total_sum] => 0 ) 1
0
Работа:0
Материалы:0
Дни:0
stdClass Object ( [id] => 156 [attribute_id] => 33 [name] => Стяжка + наливные полы [material_modifier] => 1 [work_modifier] => 1 [options] => Array ( ) [days] => [10] [material_price] => [1000] [work_price] => [900] [image] => https://akademik-stroy.ru/wp-content/uploads/materials/styazhka.jpg [area_modifier] => 151.7 [parent_name] => Черновая отделка полов [parent_id] => 33 [material_sum] => 200244 [work_sum] => 150183 [total_sum] => 350427 [total_days] => 10 [display_material_sum] => 200 244 [display_work_sum] => 150 183 [display_total_sum] => 350 427 ) 1
350 427
Работа:150 183
Материалы:200 244
Дни:10
stdClass Object ( [id] => 157 [attribute_id] => 33 [name] => ОСБ на пол [material_modifier] => 1 [work_modifier] => 1 [options] => Array ( ) [days] => [7] [material_price] => [580] [work_price] => [350] [image] => https://akademik-stroy.ru/wp-content/uploads/materials/osb-1.jpg [area_modifier] => 151.7 [parent_name] => Черновая отделка полов [parent_id] => 33 [material_sum] => 116142 [work_sum] => 58405 [total_sum] => 174547 [total_days] => 7 [display_material_sum] => 116 142 [display_work_sum] => 58 405 [display_total_sum] => 174 547 ) 1
174 547
Работа:58 405
Материалы:116 142
Дни:7
Чистовая отделка стен и полов
stdClass Object ( [id] => 67 [attribute_id] => 34 [name] => Нет [material_modifier] => 1 [work_modifier] => 1 [options] => Array ( ) [days] => [0] [material_price] => [0] [work_price] => [0] [image] => https://akademik-stroy.ru/wp-content/uploads/materials/chistovaya-otdelka.jpg [area_modifier] => 151.7 [parent_name] => Чистовая отделка стен и полов [parent_id] => 34 [material_sum] => 0 [work_sum] => 0 [total_sum] => 0 [total_days] => 0 [display_material_sum] => 0 [display_work_sum] => 0 [display_total_sum] => 0 ) 1
0
Работа:0
Материалы:0
Дни:0
stdClass Object ( [id] => 68 [attribute_id] => 34 [name] => Есть [material_modifier] => 1 [work_modifier] => 1 [options] => Array ( ) [days] => [50] [material_price] => [6000] [work_price] => [3500] [image] => https://akademik-stroy.ru/wp-content/uploads/materials/chistovaya-otdelka.jpg [area_modifier] => 151.7 [parent_name] => Чистовая отделка стен и полов [parent_id] => 34 [material_sum] => 1201464 [work_sum] => 584045 [total_sum] => 1785509 [total_days] => 50 [display_material_sum] => 1 201 464 [display_work_sum] => 584 045 [display_total_sum] => 1 785 509 ) 1
1 785 509
Работа:584 045
Материалы:1 201 464
Дни:50
Отделка потолка
stdClass Object ( [id] => 69 [attribute_id] => 35 [name] => Нет [material_modifier] => 1 [work_modifier] => 1 [options] => Array ( ) [days] => [0] [material_price] => [0] [work_price] => [0] [image] => https://akademik-stroy.ru/wp-content/uploads/materials/mnogourovnevyj-gkl.jpg [area_modifier] => 151.7 [parent_name] => Отделка потолка [parent_id] => 35 [material_sum] => 0 [work_sum] => 0 [total_sum] => 0 [total_days] => 0 [display_material_sum] => 0 [display_work_sum] => 0 [display_total_sum] => 0 ) 1
0
Работа:0
Материалы:0
Дни:0
stdClass Object ( [id] => 70 [attribute_id] => 35 [name] => Есть [material_modifier] => 1 [work_modifier] => 1 [options] => Array ( [0] => Многоуровневый потолок из гипсокартона [1] => Многоуровневый потолок из гипсокартона и натяжного потолка [2] => Одноуровневый потолок из гипсокартона [3] => Одноуровневый натяжной потолок ) [days] => [10,10,1,1] [material_price] => [900,700,700,600] [work_price] => [1000,800,500,300] [image] => https://akademik-stroy.ru/wp-content/uploads/materials/mnogourovnevyj-gkl.jpg [area_modifier] => 151.7 [parent_name] => Отделка потолка [parent_id] => 35 [material_sum] => 180220 [work_sum] => 166870 [total_sum] => 347090 [total_days] => 10 [display_material_sum] => 180 220 [display_work_sum] => 166 870 [display_total_sum] => 347 090 ) 1
347 090
Работа:166 870
Материалы:180 220
Дни:10

Преимущества работы с нами

icon

7 этапов оплаты

icon

Независимый строительный надзор

icon

Экологически чистые материалы

icon

16 лет гарантии

icon

Онлайн-кабинет с веб-камерой

icon

Строители с опытом более 15 лет

icon

Собственное производство

Двухэтажный дом 13x10 м от компании "Академик Строй" — ваш идеальный выбор для жизни в Москве

Когда речь заходит о строительстве собственного дома, хочется, чтобы он был не просто красивым, а функциональным, комфортным и долговечным. Именно такой дом — двухэтажный проект размером 13 на 10 метров с полезной площадью 151,7 м2 — предлагает компания «Академик Строй» для всех, кто мечтает о просторном жилье в Москве и области. В этой статье я расскажу, почему именно этот проект стоит вашего внимания, какие преимущества он имеет, а также как его заказать. Если вы задумываетесь о новом доме, то, поверьте, выбор готового проекта от опытной компании — это разумное решение. Ведь благодаря профессиональной разработке можно получить оптимальное соотношение цены и качества, а также гарантировать комфорт жизни на долгие годы. Давайте подробно разберем ключевые параметры этого проекта и узнаем, что же внутри.

Основные параметры двухэтажного дома 13x10 — простор и удобство

Площадь дома — важнейший показатель для любой семьи. Тут, в проекте "Академик Строй" предлагается площадь полезная в 151,7 м², что уже говорит о наличии достаточно места для всей семьи и гостей. Внутри вы найдете 4 уютные спальни, что идеально подходит для семьи с детьми или размещения гостей. Также предусмотрены аж 3 санузла, что значительно облегчает повседневную жизнь и устраняет утренние очереди.

Размеры и архитектура дома

Размеры небольшие снаружи? На первый взгляд 13 на 10 метров — это не так уж и много, но при двух этажах такой дом становится действительно просторным. Общая площадь при двух этажах позволяет распланировать жилые и хозяйственные зоны оптимально.
Параметр Значение Описание
Полезная площадь 151,7 м² Общая площадь, пригодная для жизни, без технических помещений
Жилая площадь 119,06 м² Площадь, занятая жилыми комнатами (спальни, гостиные)
Размеры дома 13 x 10 м Габариты по наружным стенам
Количество этажей 2 Классический двухэтажный дом
Количество спален 4 Оптимально для семьи из 3-5 человек и гостей
Количество санузлов 3 Удобное распределение санузлов по этажам
Высота здания 8,58 м Достаточная высота для комфортного проживания
Угол наклона крыши 40° Оптимальный угол для двускатной крыши
Тип крыши Двускатная Эффективное скатывание снега и дождя
Минимальная ширина участка 20,54 м Требуемое пространство для размещения дома с отступами
Минимальная длина участка 17,54 м Необходимая длина под участок

Что делает этот проект особенно привлекательным?

Компания «Академик Строй» действительно знает толк в строительстве домов, поэтому этот проект обладает рядом преимуществ и особенностей, которые создают комфорт и практичность.

Четыре спальни — пространство для каждого члена семьи

В современном доме важно иметь достаточно жилых комнат. Четыре спальни дают возможность организовать личное пространство каждому: родителям — отдельную спальню, детям — свои комнаты, а гостям — гостевую. Кроме того, часть комнат можно использовать как рабочий кабинет, мастерскую или игровую.

Три санузла — редко встречается, но очень удобно

Удобство важно даже в мелочах, и три санузла в доме значительно добавляют комфорта. Это позволяет избежать конфликтов за ванну по утрам и вечерам, когда все собираются в доме. Санузлы расположены на разных этажах, обеспечивая удобный доступ из любой точки дома.

Двускатная крыша с углом наклона 40° — защита от непогоды

Крыша — это один из главных элементов дома, определяющих его долговечность. Благодаря двускатной архитектуре и правильному углу наклона крыши 40°, в Москве и Подмосковье, где случаются значительные снегопады и осадки, снег не задерживается, а вода быстро скатывается, что предотвращает разрушение кровли и уменьшает нагрузку на конструкцию.

Планировка дома — качество и комфорт во всех деталях

Давайте поговорим о внутреннем устройстве дома. Важно, чтобы дом был удобным не только снаружи, но и создавал ощущение уюта и свободы внутри.

Первый этаж — зона активной жизни

Обычно на первом этаже располагаются гостиная, кухня, столовая и вспомогательные помещения. В этом проекте от «Академик Строй» предусмотрена комната на первом этаже, которая может использоваться и как кабинет, и как игровая или библиотека — идеальный вариант для тех, кто работает из дома. Здесь же расположен камин — элемент, придающий дому атмосферу тепла и уюта зимой.

Второй этаж — зона отдыха и уединения

На втором этаже находятся спальни и санузлы. Четыре спальни дают возможность любому члену семьи насладиться личным пространством. Санузлы удобно расположены рядом с жилыми комнатами.

Терраса и дополнительные опции

В проекте предусмотрена терраса — отличное место для отдыха на свежем воздухе, чаепития летом или семейных ужинов. Она расширяет жилую площадь и позволяет проводить больше времени на природе, не покидая собственного дома.
  • Камин — уют в зимние вечера, возможность дополнительного обогрева.
  • Комната на первом этаже — универсальное помещение для работы, рукоделия или отдыха.
  • Терраса — расширение пространства для отдыха на улице.

Особенности участка и строительство в условиях Москвы

Строительство дома — это не только проект, но и тщательное планирование участка. Минимальный размер участка, подходящий для дома 13x10 м, по расчетам «Академик Строй», должен быть не менее 20,54 метров в ширину и 17,54 метра в длину. Это вполне реалистичный параметр для столичной и ближайшей к ней застройки. Особенность московского региона — плотность застройки и необходимость оптимизации пространства. Компактный, но вместительный двухэтажный дом с оптимальной площадью не будет казаться громоздким. Он прекрасно впишется на почти любой загородный участок, позволяя сохранить место для сада, зоны отдыха и хозяйственных построек.

Таблица — сравнение с популярными размерами участков

Тип участка Средняя ширина (м) Средняя длина (м) Соответствие минимальным параметрам
Городская усадьба 20 25 Подходит с небольшим запасом по длине
Загородный участок в Подмосковье 25 30 Идеально подходит
Участок по программе реновации 18 20 Не подходит по ширине
Таким образом, при планировании строительства дома от «Академик Строй» важно выбрать участок, который бы обеспечил комфортное расположение дома и места для прочих нужд.

Цена и как заказать проект — легко и удобно

Очень многие боятся, что качественный и большой проект дома будет стоить баснословных денег, и строительство превратится в долгую «черную дыру» для бюджета. Но специалисты "Академик Строй" позаботились о том, чтобы предложить оптимальное ценовое предложение, которое сочетает в себе качество, продуманность и доступность.

Дополнительные услуги и персонализация

Заказать проект дома 13x10 — это только первый шаг. Компания предлагает доработку проекта под ваши нужды, консультации по выбору материалов, помощь в подборе подрядчиков для строительства. Все это значительно облегчает процесс возведения дома и сводит к минимуму риски непредвиденных затрат.

Как связаться и оформить заказ

Заказать проект дома можно прямо сейчас, позвонив по телефону +7 (980) 800-47-93. Специалисты ответят на все вопросы, подробно расскажут о сроках, условиях оплаты и вариантах реализации.
  • Вы получите индивидуальную консультацию по проекту и участку.
  • Возможна демонстрация 3D-модели дома.
  • Доступна корректировка обычного проекта под ваши требования.

Почему стоит выбрать именно "Академик Строй" для строительства дома в Москве?

Когда речь заходит о строительстве жилья в Москве — важен опыт и надежность. «Академик Строй» работает на рынке уже много лет, имеет сотни реализованных проектов и положительные отзывы клиентов. Они предлагают комплексный подход — от проектирования до сдачи под ключ. Компания гарантирует качество выполненных работ, использует современные технологии и проверенные материалы, что в совокупности обеспечивает максимальную энергоэффективность и долговечность дома. Кроме того, проекты компании оптимальны именно для московского региона, с учетом климатических условий, требований к площади и плотности застройки.

Преимущества сотрудничества с Академик Строй

  1. Качественные проекты с подробной документацией.
  2. Гибкие условия оплаты и сопровождение на всех этапах.
  3. Поддержка и консультации по вопросам строительства.
  4. Проверенные решения для комфортной и уютной жизни.

Итоги: просторный двухэтажный дом с оптимальной планировкой — отличный выбор

Если вы хотите получить просторный и удобный дом в Москве, где каждая семья почувствует себя комфортно, дом 13x10 м с площадью 151,7 м² — то, что нужно. Четыре спальни, три санузла, камин, терраса и удобная планировка на двух этажах создают настоящее пространство для жизни и отдыха. Заказывая проект в компании «Академик Строй», вы получаете не просто документы — а комплексное решение, направленное на комфорт и качество жизни в вашем новом доме. Звоните по +7 (980) 800-47-93, и специалисты компании с удовольствием расскажут обо всех деталях! Этот дом — ваша возможность начать новую главу жизни в уютном, стильном и надежном загородном жилище.