Обзор проекта двухэтажного дома 17x10 – 200,9 м²
В современном строительстве частных домов все чаще выбирают проекты, сочетающие в себе функциональность, комфорт и эстетическую привлекательность. Именно таким является двухэтажный дом размером 17 на 10 метров с полезной площадью 200,9 м². Этот проект идеально подходит для семьи среднего и большого размера, предлагая просторные жилые зоны, удобное расположение комнат и гармоничное сочетание классического дизайна с современными строительными технологиями.
Стоит обратить внимание на тот факт, что при внушительном размере и комфорте данный дом реализуется за разумную и конкурентоспособную стоимость — 7 444 380 рублей. Это выгодное вложение средств, которое учитывает как качественные материалы, так и высокие стандарты строительства.
Размеры и площадь дома: оптимальный баланс
Основные размеры дома – 17 на 10 метров – формируют прочную основу для организации внутреннего пространства. Данные габариты позволяют максимально эффективно разместить необходимые зоны, сохраняя одновременно уют и простор. Общая площадь застройки при этом составляет 149,50 м², что означает, что это именно площадь основания дома, занимаемого на участке.
Полезная площадь дома, равная 200,9 м², раскрывает все преимущества двухэтажного размещения. Данная величина является ключевой при планировании жизни семьи, так как отображает все жилые и хозяйственные помещения, доступные для комфортного использования.
Жилая площадь и планировка комнат
Ключевым показателем удобства является жилая площадь, равная 126,20 м². На этой площади размещаются основные жилые зоны, такие как спальни, гостиная и рабочие кабинеты. Для семьи из 3-5 человек это обширное пространство, позволяющее каждому чувствовать себя комфортно и иметь собственный уголок личного пространства.
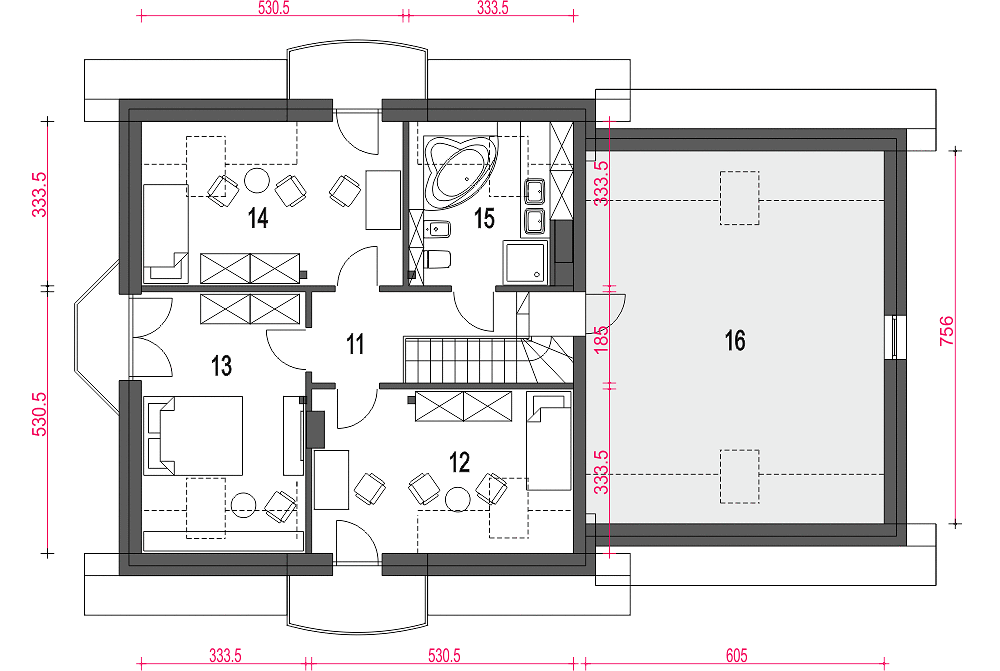
Наличие четырех спален является особо важным преимуществом дома, позволяющим организовать не только просторные спальни для родителей и детей, но и гостевые либо рабочие комнаты. Это особенно актуально в эпоху растущей популярности удаленной работы и необходимости организации личного кабинета дома.
Площади этажей и дополнительные параметры
Площадь нетто составляет 233,20 м², что касается площади всех помещений, включая внутренние стены и коммуникации. Значительный объем брутто – 605 м³ – указывает на объем здания, что важно при расчетах отопления и вентиляции, а также планировании внешнего облика дома.
Архитектурные особенности и конструкция
Одним из важных архитектурных элементов является высота здания — 9 метров. Эта характеристика подчеркивает статусность дома, оригинальность дизайна и дает простор для создания функциональных просторных комнат на втором этаже.
Высота аттиковой стены – 1,17 метра – свидетельствует о наличии мансардных элементов или оформления крыши с определенной архитектурной выразительностью. Это позволяет использовать чердачное пространство с максимальной функциональностью и в то же время украшать внешний вид здания.
Тип и угол наклона крыши
Крыша дома выполнена двускатной с углом наклона 40°. Этот стандартный и проверенный временем формат обеспечивает надежный сток осадков, устойчивость к ветровым нагрузкам и позволяет экономично использовать кровельные материалы. Для жителей регионов с выраженными зимними осадками такой угол оптимален, так как способствует быстрому сходу снега, снижая риск протечек и повреждений.
Общая площадь крыши составляет 259,50 м², что в сочетании с углом наклона является важным параметром для выбора кровельного покрытия и расчета стоимости материалов. Такая площадь крыши открывает простор для решения задач по теплоизоляции, монтажу солнечных панелей или организации дополнительных конструктивных элементов, например, мансардных окон.
Планировка и функциональность жилого пространства
Четыре спальни и два санузла – это оптимальное сочетание, обеспечивающее комфортное проживание даже для семьи с несколькими детьми или гостями. Представленное количество санузлов допускает отдельное размещение туалетных комнат на первом и втором этажах, что значительно повышает уровень удобства, особенно в утренние часы и по вечерам.
Преимущества двух санузлов
Наличие двух санузлов в доме площадью около 200 м² значительно облегчает бытовую жизнь. Семье не придется делить санитарные помещения, что особенно важно при утренней спешке. Дополнительный санузел дает также больше свободы и повышает приватность для каждого члена семьи, а также удобен для приема гостей.
Размещение спален и общих зон
Проект предусматривает гармоничное разделение на ночную и дневную зоны. Обычно спальни располагаются на втором этаже, что способствует тишине и уединению, в то время как гостиная, кухня и столовая размещаются на первом, образуя открытую, многофункциональную пространственную среду.
Важным элементом дизайна является ориентация жилых комнат на южную сторону с целью максимального проникновения естественного света. Такой подход не только улучшает микроклимат в доме, но и снижает потребление электроэнергии в дневное время.
Технические требования к участку и условия строительства
Для комфортного возведения данного дома необходим участок с минимальными размерами 24,90 метра в ширину и 17,70 метра в длину. Это обуславливается габаритами здания и обеспечением необходимого отступа от границ соседних участков, безопасности и комфортного доступа к дому.
Минимальные размеры участка обуславливают сохранение приватности, возможность организации двора, садовой зоны или зоны отдыха вокруг дома. При выборе участка следует учитывать рельеф, доступность коммуникаций и транспортную инфраструктуру.
Проект и этапы строительства
Строительство дома начинается с детальной подготовки участка — вывода коммуникаций, расчистки территории и устройства фундамента. Основные этапы включают возведение стен, монтаж крыши с заданным углом наклона, установку окон и дверей, а затем внутреннюю отделку и устройство инженерных систем.
Рекомендации по инженерным системам
Объем здания в 605 м³ потребует продуманной системы отопления и вентиляции. Современные проекты предусматривают использование энергоэффективных котлов, систем приточно-вытяжной вентиляции с рекуперацией тепла, а также автоматизированных систем контроля климата, что обеспечивает не только комфорт, но и экономию ресурсов.
Стоимость строительства: что входит в 7 444 380 руб.
Цена двухэтажного дома площадью 200,9 м² — 7 444 380 рублей — является конкурентноспособной, учитывая качество, материалы и технические характеристики. В эту сумму включены работы по возведению коробки здания, материалы для крыши, монтаж коммуникаций и стандартные отделочные работы.
Детализация затрат
| Статья расходов | Процент от общей стоимости | Комментарии |
|---|---|---|
| Фундамент и земляные работы | 15% | Основа здания, заливка и подготовка участка |
| Возведение стен и перегородок | 25% | Основные несущие конструкции из качественных материалов |
| Крыша и кровельные работы | 20% | Установка двускатной крыши с утеплением |
| Инженерные системы (электрика, отопление, сантехника) | 20% | Современное оснащение коммуникаций |
| Отделочные работы | 15% | Внутренние отделочные материалы и работы |
| Прочие расходы | 5% | Мелкие работы, доставка и непредвиденные траты |
Важно понимать, что в указанную стоимость заложены базовые материалы и работы. При желании можно дополнить проект улучшениями, увеличить качество отделки и добавить дополнительные инженерные опции, что отразится на конечной цене.
Преимущества выбора данного проекта
Двухэтажный дом с размерами 17x10 метров и площадью более 200 м² подходит для семей, предпочитающих простор и комфорт. Его подробная планировка с четырьмя спальнями и двумя санузлами обеспечивает приватность и удобство для всех членов семьи. Качественное архитектурное решение с двускатной крышей под углом 40° обеспечивает надежность и долговечность постройки.
Разумные параметры дома делают его идеально подходящим для участка с шириной около 25 метров, что распространено в пригородных и сельских районах. Возможность адаптации проекта под местные климатические условия придаёт дому универсальность.
Комфорт в использовании
- Четыре спальни позволяют оптимально разместить семью и гостей
- Два санузла сокращают время ожидания и повышают уровень комфорта
- Двускатная крыша проста в обслуживании и устойчива к осадкам
- Высокие потолки и аттиковая стена создают простор и свет
Экономическая эффективность
- Оптимальная площадь крыши и углы наклона способствуют снижению расходов на отопление
- Рациональная планировка помогает снизить затраты на отделку и коммуникации
- Цена проекта соответствует качеству и позволяет избежать переплат
Заключение
Проект двухэтажного дома с размерами 17 на 10 метров, площадью 200,9 м² и стоимостью строительства около 7,44 миллиона рублей представляет собой оптимальное решение для тех, кто ищет сочетание комфорта, практичности и разумной цены. Максимально продуманный функционал, современные архитектурные решения и высокое качество материалов создают дом, в котором будет приятно жить, принимать гостей и расти семье.



