Двухэтажный дом 14x15 м: современное решение для комфортного проживания
Двухэтажный дом размером 14 на 15 метров — это оптимальное сочетание функциональности и комфорта. Площадь дома в 141,33 м² позволяет с комфортом разместить всю необходимую для жизни инфраструктуру, сохраняя приятную компактность. Такой проект прекрасно подходит для семей, которые ценят удобство, качество и практичность, но не хотят тратить время на огромные квадратные метры, требующие значительного ухода и больших финансовых затрат.
В данной статье мы подробно рассмотрим преимущества и особенности двухэтажного дома 14х15 м, а также поговорим о планировке, организации пространства и выгодах двухэтажного решения в современном частном строительстве.
Размеры и планировка: что предлагает дом 14х15 м
Размеры дома 14 на 15 метров формируют площадь, близкую к 141,33 м², что является золотой серединой для частного жилья. Отдельно стоит выделить, что данные параметры позволяют достаточно грамотно распределить внутреннее пространство, чтобы каждому члену семьи было удобно и уютно.
Двухэтажная конструкция дома такого размера открывает большие возможности для грамотного зонирования — зоны отдыха, работы и приема гостей можно легко отделить друг от друга, не ограничивая себя в площади.
Почему именно 14 x 15 м?
Направление в сторону дома с габаритами 14 на 15 метров обусловлено комфортностью именно таких пропорций для жилого здания. Это не слишком большой, чтобы требовать огромного участка, и в то же время не слишком маленький, чтобы жертвовать функционалом. С технической стороны, такие размеры удобны для реализации большинства типовых строительных технологий и позволяют избежать излишних финансовых расходов при возведении наружных стен и крыши.
Помимо этого, подобный дом легко вписывается в среднестатистический участок, оптимально расходуя место, сохраняя достаточное пространство для озеленения, зон отдыха или личного хозяйства.
Выгоды двух этажей для семейного комфорта
Два этажа — классика частного домостроения, идеально решающая проблему зонирования пространства. Первый этаж как правило используется для общественных зон — гостиной, кухни, столовой и хозяйственных помещений, тогда как второй этаж становится зоной приватных комнат — спален и рабочих кабинетов.
Это разделение помогает сохранить домашний уют и позволяет всем членам семьи чувствовать себя комфортно, не беспокоя друг друга. Также наличие двух этажей дает возможность выгодно применять вертикальное пространство, экономя при этом площадь участка.
Количество спален и санузлов: комфорт для всей семьи
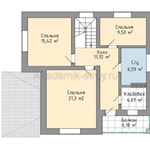
Один из ключевых факторов, влияющих на удобство проживания в доме, — количество спален и санузлов. В проекте данного дома предусмотрено четыре спальни — оптимальное количество для семьи из 4-5 человек, что позволяет каждому иметь личное пространство.
Четыре спальни — это не только комфорт для родителей и детей, но и возможность организовать гостевые комнаты, рабочие кабинеты или игровые зоны для детей. Такой подход делает дом универсальным и просторным для самых разных потребностей.
Два санузла — удобно и практично
Два санузла в доме данной площади — необходимое условие для современного ритма жизни. Особенно важно, когда в семье много членов и все ведут активный образ жизни. Наличие двух санузлов разгружает утренние и вечерние часы, минимизируя очереди и повышая комфорт проживания. Также санузлы можно оборудовать различным образом — гостевой ванная с душевой кабиной на первом этаже и просторный санузел с ванной комнатой для семьи на втором.
Преимущества и особенности организации пространства внутри дома
Пространство внутри дома размером 14х15 метров можно организовать множеством интересных и функциональных способов, которые будут учитываться в зависимости от потребностей жителей.
Гостиная и кухня
Очень популярным решением является открытая планировка первого этажа, совмещающая гостиную и кухню. Это позволяет создать единое пространство, наполненное светом и воздухом, идеально подходящее для семейных вечеров и приема гостей.
Использование современных строительных и отделочных материалов позволяет визуально расширить помещение, а грамотное освещение дополнительно создаст уют и комфорт.
Спальные зоны и приватность
На втором этаже находятся спальные комнаты, которые необходимо расположить так, чтобы обеспечить максимум тишины и уединения. Возможна организация главной спальни с собственной ванной комнатой и гардеробной, а также дополнительных спален для детей или гостей.
Дополнительные помещения и их значимость
В доме достаточно площади для создания кладовых, технических помещений, прачечной и даже кабинета для работы или творчества. Все эти мелочи повышают уровень комфорта и делают проживание более удобным и организованным.
Особенности строительства двухэтажного дома 14x15 м
Строительство двухэтажного дома с габаритами 14 на 15 метров имеет свои нюансы, которые необходимо учитывать на этапе проектирования и возведения здания.
Фундамент
Для дома таких размеров оптимальным будет ленточный или свайно-ленточный фундамент, который обеспечит надежную опору и равномерное распределение нагрузки. Важно учитывать тип грунта на участке и уровень залегания грунтовых вод, что напрямую влияет на конструкцию фундамента и стоимость работ.
Каркас и стены
Выбор материала для стен зависит от климатических условий, бюджета и желаемой эстетики. Варианты могут включать:
- Кирпич или газобетон — долговечные и теплые материалы, позволяющие создать надежную конструкцию.
- Дерево — экологичный и красивый материал, с хорошими теплоизоляционными свойствами.
- Сэндвич-панели — более современный и быстрый вариант, подходящий для жилых домов.
Каждая технология имеет свои плюсы и минусы в части стоимости, теплоизоляции и скорости строительства.
Крыша
Правильное устройство крыши — залог долгой службы всего дома. Для дома 14x15 м особенно важен продуманный угол наклона и качественные материалы внешнего покрытия. Хотя в параметрах дома угол наклона крыши и тип не указаны, это одна из ключевых составляющих, на которую стоит обратить внимание, учитывая погодные условия вашей местности.
Минимальные требования к участку
Размеры дома 14 на 15 метров диктуют минимальные габариты участка, на котором его можно грамотно разместить. При планировании строительных работ обязательно следует учитывать нормы отступов от границ участка и требования по свободным зонам для обустройства зоны отдыха и хозяйственных построек.
Хотя конкретных параметров минимальной ширины и длины участка в доступных данных нет, ориентировочно рекомендуется иметь участок не менее 20-22 метров в ширину и 25-30 метров в длину. Это позволит грамотно разместить дом и сохранить свободное пространство для комфортного проживания.
Экономика и рациональность строительства дома 14 x 15 м
Одним из важных аспектов при выборе проекта является финансовая составляющая. Дом площадью около 141 м² достаточно компактный, чтобы не потребовать больших затрат на материалы и обслуживание, но при этом просторный для комфортной жизни.
Экономия достигается не только за счет оптимального использования площади, но и благодаря рациональному использованию стройматериалов и энергоэффективных решений, которые легко внедрить в двухэтажный дом.
Преимущества двух этажа в финансовом контексте
Дома с двумя этажами имеют меньшее «транспортное» покрытие — внешние стены и крыша, что снижает общую стоимость строительства и эксплуатации. Вместо одного большого этажа с большой площадью фундамента и кровли, двухэтажный дом позволяет уменьшить эти затраты, сохраняя при этом необходимое пространство внутри.
Обогрев и энергосбережение
Правильно спроектированный дом 14х15 м легко отапливается с минимальными затратами. За счет компактной формы и возможности применить современные теплоизоляционные материалы можно значительно уменьшить теплопотери.
Также удобно реализовать системы умного управления отоплением и вентиляцией, что позволит дополнительно экономить энергоресурсы.
Таблица сравнения параметров домашнего пространства с домом 14x15 м
| Параметр | Дом 14x15 м (141,33 м²) | Пример типового дома 10x10 м (100 м²) | Пример просторного дома 20x20 м (400 м²) |
|---|---|---|---|
| Этажность | 2 этажа | 1-2 этажа | 2-3 этажа |
| Количество спален | 4 спальни | 2-3 спальни | 5+ спален |
| Количество санузлов | 2 | 1-2 | 3 и более |
| Площадь кухни-гостиной | около 35-40 м² | 25-30 м² | 50-70 м² |
| Стоимость строительства | Средняя | Низкая | Высокая |
| Обслуживание и эксплуатация | Оптимальное | Минимальное | Высокие затраты |
Список рекомендаций по выбору проекта дома 14x15 м
- Определите приоритеты: жилые комнаты, рабочие пространства и зоны отдыха.
- Обратите внимание на расположение санузлов — наличие двух санузлов значительно повышает комфорт.
- Рассмотрите варианты планировки с открытой кухней-гостиной для более светлого и просторного пространства.
- Уделите внимание эргономике второго этажа — оптимальная планировка спален поможет избежать лишних коридоров и потери площади.
- Продумайте варианты утепления и теплоизоляции — это снизит расходы на отопление и улучшит микроклимат в доме.
- Подберите оптимальную кровельную систему, учитывая особенности климатических условий вашего региона.
Заключение
Двухэтажный дом размером 14 на 15 метров и площадью 141,33 м² — это прекрасный вариант для тех, кто ищет практичный, универсальный и уютный дом для семьи. Разновекторность использования пространства, возможность поместить четыре спальни и два санузла, а также удобное разделение на жилые и хозяйственные зоны делают этот проект особенно привлекательным.
Кроме того, строительство дома таких габаритов будет рациональным с финансовой точки зрения и позволит эффективно использовать площадку для строительства без лишних затрат. Квалифицированный подход к проектированию, выбору материалов и технологии строительства поможет создать действительно комфортное жилье на долгие годы.





























