Одноэтажный дом 14x9 - 98.09 м2 за руб.

ID-83571

Стоимость дома 5093834 руб.
154 м2 Полезная
площадь
14 x 9 м Размеры
1 этаж Этажей
26 м2 Террасы
и балконы
1Без
гаража
3 Количество
спален
1 Количество
санузлов

Планировки

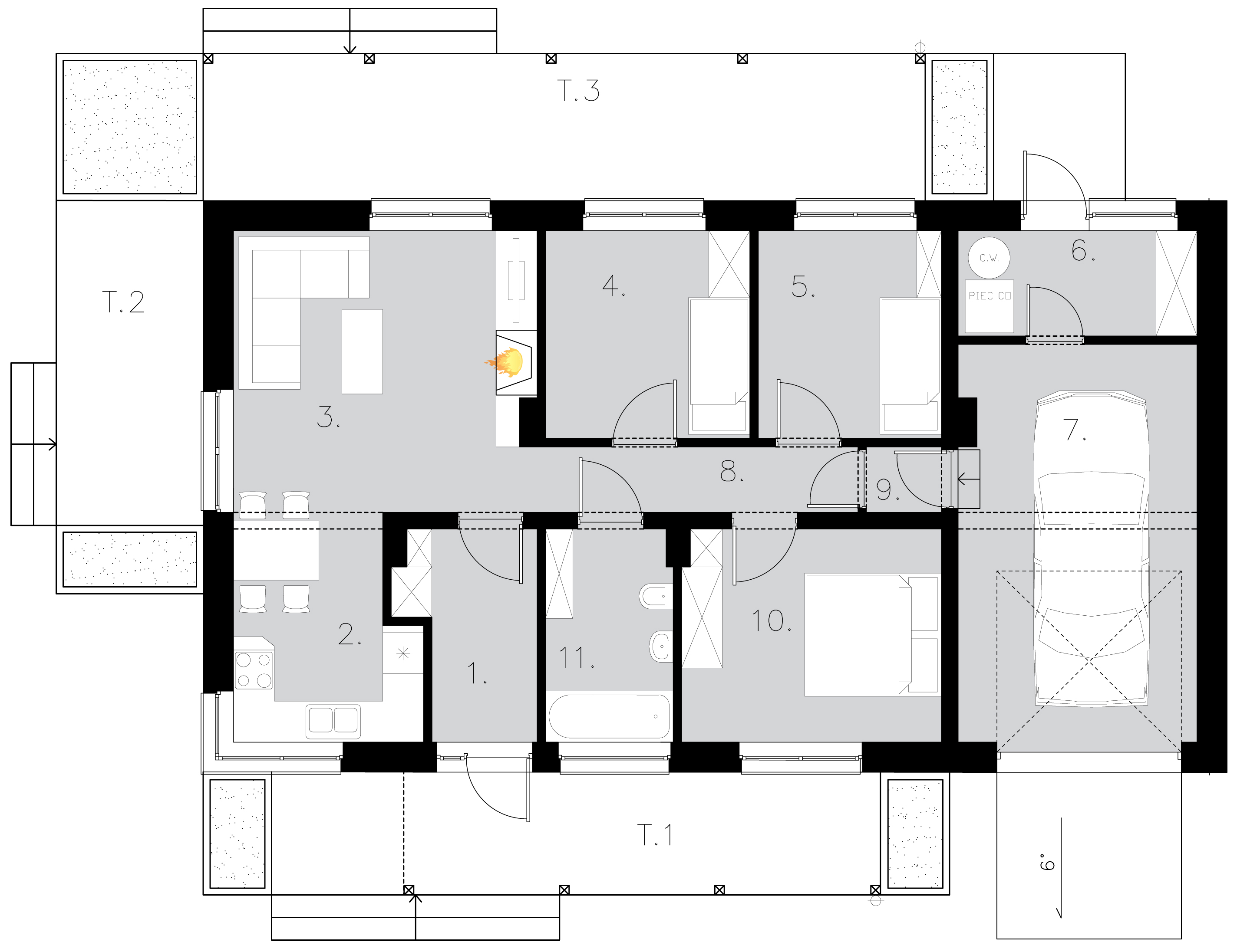
План первого этажа

floor image
  • 1. Прихожая 5,50 m²
  • 2. Кухня 8,30 m²
  • 3. Гостиная 17,70 m²
  • 4. Комната 9,08 m²
  • 5. Комната 8,14 m²
  • 6. Котельная 5,40 m²
  • 7. Гараж на 1 машину 19,82 m²
  • 8. Коридор 5,70 m²
  • 9. Коридор 0,95 m²
  • 10. Комната 11,80 m²
  • 11. Ванная комната 5,70 m²
  • 12. Крыльцо (15,98 m²)
  • 13. Терраса (10,22 m²)
  • 14. Терраса (22,69 m²)
  • План первого этажа 98,09 m²

Разрезы

Вертикальный разрез
Вертикальный разрез

Фасады

Передний
Задний
Левый
Правый
Передний
Задний
Левый
Правый

Подробная информация

Жилая площадь
66,22 m²
icon

Сумма площади всех жилых помещений, за вычетом пов. гараж, котельная, чердак, подвал. Учитывается в 100%, для помещений высотой более 2,2 м, в 50% для помещений с высотой 2,2-1,4 м и не включается для более низких помещений (меньше 1,4 м).

Площадь застройки
125,23 m²
icon

Площадь застройки здания определяется как площадь горизонтального сечения по внешнему обводу здания на уровне цоколя, включая выступающие части.

Угол наклона крыши
25°
icon

Наклон ската крыши в градусах. Внимание! В некоторых проектах возникает более чем один наклон крыши.

Высота здания
5,54 m
icon

Высота измеряется от поверхности земли до самой высокой точки кровли (конька), за исключением дымоходов.

Мин. ширина участка
22,28 m
icon

Наименьшая возможная ширина участка, необходимая для строительства выбранного дома. Состоит из длины фасада дома плюс с обеих сторон три метра отступ.

Мин. длина участка
16,67 m
icon

Наименьшая возможная длина участка, необходимая для строительства выбранного дома. Состоит из длины фасада дома плюс с обеих сторон три метра отступ.

Материалы и опции
Общие
Цена, руб.
Площадь м²
130
Площадь от и до
Ежемесячный платёж, руб
Количество спален
3
Гараж
1
Тип крыши
Количество санузлов
1
Ширина
14
Глубина
9

Площади дома

№ п/п Наименование Ед. из. Строительная площадь Полезная площадь
1 1 этаж м2 120.88 98.09
2 Итого м2 120.88 98.09

ПРИГЛАШАЕМ НА ДЕНЬ ОТКРЫТЫХ ДВЕРЕЙ СТРОЯЩЕГОСЯ ДОМА

ХОЧУ ПОЕХАТЬ
День открытых дверей

Калькулятор опций

0

В ипотеку от 17 154 ₽/мес.

Фундамент
stdClass Object ( [id] => 1 [attribute_id] => 1 [name] => Ленточный монолитный ж/б [material_modifier] => 1 [work_modifier] => 1 [options] => Array ( [0] => размер 200 х 700 мм [1] => размер 300 х 900 мм [2] => размер 400 х 1 000 мм [3] => размер 500 х 1 100 мм [4] => размер 600 х 1 200 мм ) [days] => [20,21,22,25,30] [material_price] => [2823,3630,4475,5210,12047] [work_price] => [2154,2826,3731,4577,5293] [image] => https://akademik-stroy.ru/wp-content/uploads/materials/lentochnyj-monolitnyj-zh-b.jpg [area_modifier] => 120.88 [parent_name] => Фундамент [parent_id] => 1 [material_sum] => 470917 [work_sum] => 299432 [total_sum] => 770349 [total_days] => 20 [display_material_sum] => 470 917 [display_work_sum] => 299 432 [display_total_sum] => 770 349 ) 1
770 349
Работа:299 432
Материалы:470 917
Дни:20
stdClass Object ( [id] => 2 [attribute_id] => 1 [name] => Забивные Ж/Б сваи [material_modifier] => 1 [work_modifier] => 1 [options] => Array ( [0] => 150х150х3000мм [1] => 150х150х4000мм [2] => 200х200х3000мм [3] => 200х200х4000мм [4] => 200х200х5000мм [5] => 200х200х6000мм ) [days] => [2,2,2,2,2,2] [material_price] => [1990,2850,3255,4360,5120,6837] [work_price] => [1002,1185,1336,1438,1574,1839] [image] => https://akademik-stroy.ru/wp-content/uploads/materials/zabivnye-zh-b-svai.png [area_modifier] => 120.88 [parent_name] => Фундамент [parent_id] => 1 [material_sum] => 331961 [work_sum] => 139290 [total_sum] => 471251 [total_days] => 2 [display_material_sum] => 331 961 [display_work_sum] => 139 290 [display_total_sum] => 471 251 ) 1
471 251
Работа:139 290
Материалы:331 961
Дни:2
stdClass Object ( [id] => 71 [attribute_id] => 1 [name] => Свайно-ростверковый ж/б [material_modifier] => 1 [work_modifier] => 1 [options] => Array ( [0] => ростверк 200х300 мм [1] => ростверк 300х600 мм [2] => ростверк 400х900 мм [3] => ростверк 500х1200 мм ) [days] => [20,23,25,27] [material_price] => [3018,3474,7109,9792] [work_price] => [2024,3012,5635,7022] [image] => https://akademik-stroy.ru/wp-content/uploads/materials/svajno-rostverkovyj-monolitnyj-zh-b-3.png [area_modifier] => 120.88 [parent_name] => Фундамент [parent_id] => 1 [material_sum] => 503446 [work_sum] => 281360 [total_sum] => 784806 [total_days] => 20 [display_material_sum] => 503 446 [display_work_sum] => 281 360 [display_total_sum] => 784 806 ) 1
784 806
Работа:281 360
Материалы:503 446
Дни:20
stdClass Object ( [id] => 72 [attribute_id] => 1 [name] => Монолитная ж/б плита [material_modifier] => 1 [work_modifier] => 1 [options] => Array ( [0] => 200 мм [1] => 300 мм [2] => 400 мм [3] => 500 мм [4] => 600 мм ) [days] => [30,33,35,37,40] [material_price] => [5348,8555,12788,14388,15189] [work_price] => [4314,4881,7037,8061,10230] [image] => https://akademik-stroy.ru/wp-content/uploads/materials/monolitnaya-zhb-plita.png [area_modifier] => 120.88 [parent_name] => Фундамент [parent_id] => 1 [material_sum] => 892123 [work_sum] => 599698 [total_sum] => 1491821 [total_days] => 30 [display_material_sum] => 892 123 [display_work_sum] => 599 698 [display_total_sum] => 1 491 821 ) 1
1 491 821
Работа:599 698
Материалы:892 123
Дни:30
stdClass Object ( [id] => 73 [attribute_id] => 1 [name] => Утепленная шведская плита [material_modifier] => 1 [work_modifier] => 1 [options] => Array ( [0] => 200 мм [1] => 300 мм [2] => 400 мм [3] => 500 мм [4] => 600 мм ) [days] => [32,37,39,42,45] [material_price] => [10249,12692,13760,14936,16230] [work_price] => [5960,7337,8072,8878,9765] [image] => https://akademik-stroy.ru/wp-content/uploads/materials/uteplennaya-shvedskaya-plita.jpg [area_modifier] => 120.88 [parent_name] => Фундамент [parent_id] => 1 [material_sum] => 1709681 [work_sum] => 828512 [total_sum] => 2538193 [total_days] => 32 [display_material_sum] => 1 709 681 [display_work_sum] => 828 512 [display_total_sum] => 2 538 193 ) 1
2 538 193
Работа:828 512
Материалы:1 709 681
Дни:32
stdClass Object ( [id] => 75 [attribute_id] => 1 [name] => Ленточный из ФБС [material_modifier] => 1 [work_modifier] => 1 [options] => Array ( [0] => толщ. 300 мм [1] => толщ. 400 мм [2] => толщ. 500 мм [3] => толщ. 600 мм ) [days] => [20,20,20,20] [material_price] => [3675,4902,6126,7350] [work_price] => [2451,3264,4083,4902] [image] => https://akademik-stroy.ru/wp-content/uploads/materials/lentochnyj-iz-fbs.png [area_modifier] => 120.88 [parent_name] => Фундамент [parent_id] => 1 [material_sum] => 613043 [work_sum] => 340718 [total_sum] => 953761 [total_days] => 20 [display_material_sum] => 613 043 [display_work_sum] => 340 718 [display_total_sum] => 953 761 ) 1
953 761
Работа:340 718
Материалы:613 043
Дни:20
stdClass Object ( [id] => 76 [attribute_id] => 1 [name] => Цокольный этаж из ФБС [material_modifier] => 1 [work_modifier] => 1 [options] => Array ( [0] => толщ. 300 мм [1] => толщ. 400 мм [2] => толщ. 500 мм [3] => толщ. 600 мм ) [days] => [30,32,34,36] [material_price] => [20916,23299,26680,29060] [work_price] => [17524,18700,19873,21046] [image] => https://akademik-stroy.ru/wp-content/uploads/materials/cokolnyj-ehtazh-iz-fbs.jpg [area_modifier] => 120.88 [parent_name] => Фундамент [parent_id] => 1 [material_sum] => 3489090 [work_sum] => 2436046 [total_sum] => 5925136 [total_days] => 30 [display_material_sum] => 3 489 090 [display_work_sum] => 2 436 046 [display_total_sum] => 5 925 136 ) 1
5 925 136
Работа:2 436 046
Материалы:3 489 090
Дни:30
stdClass Object ( [id] => 77 [attribute_id] => 1 [name] => Цокольный этаж монолитный ж/б [material_modifier] => 1 [work_modifier] => 1 [options] => Array ( [0] => толщ. 200 мм [1] => толщ. 300 мм [2] => толщ. 400 мм [3] => толщ. 500 мм [4] => толщ. 600 мм ) [days] => [40,42,44,46,48] [material_price] => [25421,29148,32275,35602,37326] [work_price] => [20441,21907,23375,24841,26306] [image] => https://akademik-stroy.ru/wp-content/uploads/materials/cokolnyj-etazh-zh-b.jpg [area_modifier] => 120.88 [parent_name] => Фундамент [parent_id] => 1 [material_sum] => 4240589 [work_sum] => 2841544 [total_sum] => 7082133 [total_days] => 40 [display_material_sum] => 4 240 589 [display_work_sum] => 2 841 544 [display_total_sum] => 7 082 133 ) 1
7 082 133
Работа:2 841 544
Материалы:4 240 589
Дни:40
stdClass Object ( [id] => 191 [attribute_id] => 1 [name] => Винтовые сваи [material_modifier] => 1 [work_modifier] => 1 [options] => Array ( [0] => 57х200мм [1] => 76х250мм [2] => 108х300мм [3] => 133х350мм ) [days] => [1,1,2,2] [material_price] => [1200,1300,1450,1600] [work_price] => [400,600,900,1100] [image] => https://akademik-stroy.ru/wp-content/uploads/materials/vintovye-svai.png [area_modifier] => 120.88 [parent_name] => Фундамент [parent_id] => 1 [material_sum] => 200177 [work_sum] => 55605 [total_sum] => 255782 [total_days] => 1 [display_material_sum] => 200 177 [display_work_sum] => 55 605 [display_total_sum] => 255 782 ) 1
255 782
Работа:55 605
Материалы:200 177
Дни:1
Перекрытие цоколя
stdClass Object ( [id] => 3 [attribute_id] => 2 [name] => Деревянные балки [material_modifier] => 1 [work_modifier] => 1 [options] => Array ( [0] => без утепления [1] => утепление 200 мм [2] => утепление 250 мм [3] => утепление 300 мм [4] => утепление 350 мм [5] => утепление 400 мм [6] => утепление 450 мм [7] => утепление 500 мм ) [days] => [8,9,9,9,11,12,13,14] [material_price] => [1634,2042,2344,2947,3149,3652,3354,3557] [work_price] => [1230,1339,1393,1426,1460,1513,1587,1620] [image] => https://akademik-stroy.ru/wp-content/uploads/materials/derevyannye-balki.png [area_modifier] => 120.88 [parent_name] => Перекрытие цоколя [parent_id] => 2 [material_sum] => 272575 [work_sum] => 170985 [total_sum] => 443560 [total_days] => 8 [display_material_sum] => 272 575 [display_work_sum] => 170 985 [display_total_sum] => 443 560 ) 1
443 560
Работа:170 985
Материалы:272 575
Дни:8
stdClass Object ( [id] => 4 [attribute_id] => 2 [name] => Сборные ж/б плиты [material_modifier] => 1 [work_modifier] => 1 [options] => Array ( [0] => без утепления [1] => утепление 150мм [2] => утепление 200мм [3] => утепление 250мм [4] => утепление 300мм [5] => утепление 350мм [6] => утепление 400мм [7] => утепление 450мм [8] => утепление 500мм ) [days] => [13,15,15,15,15,15,15,15,15] [material_price] => [3067,5577,5928,6679,7730,8782,9833,10884,11935] [work_price] => [1520,1956,2102,2247,2392,2537,2684,2829,2974] [image] => https://akademik-stroy.ru/wp-content/uploads/materials/sbornye-zh-b-plity-2.jpg [area_modifier] => 120.88 [parent_name] => Перекрытие цоколя [parent_id] => 2 [material_sum] => 511620 [work_sum] => 211298 [total_sum] => 722918 [total_days] => 13 [display_material_sum] => 511 620 [display_work_sum] => 211 298 [display_total_sum] => 722 918 ) 1
722 918
Работа:211 298
Материалы:511 620
Дни:13
stdClass Object ( [id] => 78 [attribute_id] => 2 [name] => Монолитная ж/б плита [material_modifier] => 1 [work_modifier] => 1 [options] => Array ( [0] => без утепления [1] => утепление 150 мм [2] => утепление 200 мм [3] => утепление 250 мм [4] => утепление 300 мм [5] => утепление 350 мм [6] => утепление 400 мм [7] => утепление 450 мм [8] => утепление 500 мм ) [days] => [18,20,20,20,20,20,20,20,20] [material_price] => [4837,6572,7224,7375,79426,8177,8728,9180,10031] [work_price] => [3348,3921,4112,4302,4493,4684,4875,5066,5256] [image] => https://akademik-stroy.ru/wp-content/uploads/materials/monolitnaya-zh-b-plita-2.jpg [area_modifier] => 120.88 [parent_name] => Перекрытие цоколя [parent_id] => 2 [material_sum] => 806881 [work_sum] => 465412 [total_sum] => 1272293 [total_days] => 18 [display_material_sum] => 806 881 [display_work_sum] => 465 412 [display_total_sum] => 1 272 293 ) 1
1 272 293
Работа:465 412
Материалы:806 881
Дни:18
Стены 1 этаж (несущие)
stdClass Object ( [id] => 6 [attribute_id] => 3 [name] => Пеноблок [material_modifier] => 1 [work_modifier] => 1 [options] => Array ( [0] => 300 мм [1] => 400 мм [2] => 500 мм [3] => 600 мм ) [days] => [29,31,34,39] [material_price] => [3000,4000,4500,4937] [work_price] => [5033,5805,6400,8710] [image] => https://akademik-stroy.ru/wp-content/uploads/materials/penoblok.jpg [area_modifier] => 120.88 [parent_name] => Стены 1 этаж (несущие) [parent_id] => 3 [material_sum] => 500443 [work_sum] => 699647 [total_sum] => 1200090 [total_days] => 29 [display_material_sum] => 500 443 [display_work_sum] => 699 647 [display_total_sum] => 1 200 090 ) 1
1 200 090
Работа:699 647
Материалы:500 443
Дни:29
stdClass Object ( [id] => 79 [attribute_id] => 3 [name] => Керамический блок [material_modifier] => 1 [work_modifier] => 1 [options] => Array ( [0] => 380 мм [1] => 380 мм Thermo [2] => 440 мм [3] => 510 мм ) [days] => [23,23,24,25] [material_price] => [4510,5098,6093,8013] [work_price] => [4737,4937,5903,6958] [image] => https://akademik-stroy.ru/wp-content/uploads/materials/keramicheskij-blok.jpg [area_modifier] => 120.88 [parent_name] => Стены 1 этаж (несущие) [parent_id] => 3 [material_sum] => 752333 [work_sum] => 658500 [total_sum] => 1410833 [total_days] => 23 [display_material_sum] => 752 333 [display_work_sum] => 658 500 [display_total_sum] => 1 410 833 ) 1
1 410 833
Работа:658 500
Материалы:752 333
Дни:23
stdClass Object ( [id] => 80 [attribute_id] => 3 [name] => Кирпич [material_modifier] => 1 [work_modifier] => 1 [options] => Array ( [0] => Кирпич 250 мм [1] => Кирпич 380 мм [2] => Кирпич 510 мм [3] => Кирпич 640 мм [4] => Кирпич 770 мм ) [days] => [30,30,31,33,36] [material_price] => [5500,7142,9206,10171,12235] [work_price] => [8736,10041,12018,15240,18462] [image] => https://akademik-stroy.ru/wp-content/uploads/materials/kirpich.jpg [area_modifier] => 120.88 [parent_name] => Стены 1 этаж (несущие) [parent_id] => 3 [material_sum] => 917479 [work_sum] => 1214409 [total_sum] => 2131888 [total_days] => 30 [display_material_sum] => 917 479 [display_work_sum] => 1 214 409 [display_total_sum] => 2 131 888 ) 1
2 131 888
Работа:1 214 409
Материалы:917 479
Дни:30
stdClass Object ( [id] => 81 [attribute_id] => 3 [name] => Монолитные [material_modifier] => 1 [work_modifier] => 1 [options] => Array ( [0] => 150 мм [1] => 200 мм [2] => 250 мм [3] => 300 мм [4] => 350 мм [5] => 400 мм ) [days] => [45,46,47,49,50,53] [material_price] => [6545,7876,10175,12011,13908,15204] [work_price] => [5106,6444,7698,8552,9807,11461] [image] => https://akademik-stroy.ru/wp-content/uploads/materials/monolitnye.jpg [area_modifier] => 120.88 [parent_name] => Стены 1 этаж (несущие) [parent_id] => 3 [material_sum] => 1091800 [work_sum] => 709795 [total_sum] => 1801595 [total_days] => 45 [display_material_sum] => 1 091 800 [display_work_sum] => 709 795 [display_total_sum] => 1 801 595 ) 1
1 801 595
Работа:709 795
Материалы:1 091 800
Дни:45
stdClass Object ( [id] => 82 [attribute_id] => 3 [name] => Клееный брус [material_modifier] => 1 [work_modifier] => 1 [options] => Array ( [0] => 160 мм [1] => 175 мм [2] => 200 мм [3] => 215 мм [4] => 240 мм [5] => 270 мм [6] => 282 мм ) [days] => [24,28,32,37,40,42,48] [material_price] => [16975,18773,19950,20545,21599,22159,23275] [work_price] => [4806,5287,5815,6397,7036,7740,8514] [image] => https://akademik-stroy.ru/wp-content/uploads/materials/kleenyj-brus.jpg [area_modifier] => 120.88 [parent_name] => Стены 1 этаж (несущие) [parent_id] => 3 [material_sum] => 2831674 [work_sum] => 668092 [total_sum] => 3499766 [total_days] => 24 [display_material_sum] => 2 831 674 [display_work_sum] => 668 092 [display_total_sum] => 3 499 766 ) 1
3 499 766
Работа:668 092
Материалы:2 831 674
Дни:24
stdClass Object ( [id] => 83 [attribute_id] => 3 [name] => Каркасные [material_modifier] => 1 [work_modifier] => 1 [options] => Array ( [0] => 150 мм [1] => 200 мм [2] => 250 мм [3] => 300 мм ) [days] => [15,16,17,18] [material_price] => [2379,2639,2898,3258] [work_price] => [2418,2686,2985,3716] [image] => https://akademik-stroy.ru/wp-content/uploads/materials/karkasnye.jpg [area_modifier] => 120.88 [parent_name] => Стены 1 этаж (несущие) [parent_id] => 3 [material_sum] => 396851 [work_sum] => 336131 [total_sum] => 732982 [total_days] => 15 [display_material_sum] => 396 851 [display_work_sum] => 336 131 [display_total_sum] => 732 982 ) 1
732 982
Работа:336 131
Материалы:396 851
Дни:15
stdClass Object ( [id] => 84 [attribute_id] => 3 [name] => СИП-панели [material_modifier] => 1 [work_modifier] => 1 [options] => Array ( [0] => 120 мм [1] => 170 мм [2] => 220 мм ) [days] => [7,7,7] [material_price] => [1210,1856,2292] [work_price] => [1410,1551,1706] [image] => https://akademik-stroy.ru/wp-content/uploads/materials/sip-paneli.jpg [area_modifier] => 120.88 [parent_name] => Стены 1 этаж (несущие) [parent_id] => 3 [material_sum] => 201845 [work_sum] => 196007 [total_sum] => 397852 [total_days] => 7 [display_material_sum] => 201 845 [display_work_sum] => 196 007 [display_total_sum] => 397 852 ) 1
397 852
Работа:196 007
Материалы:201 845
Дни:7
stdClass Object ( [id] => 85 [attribute_id] => 3 [name] => Сухой брус [material_modifier] => 1 [work_modifier] => 1 [options] => Array ( [0] => 150 мм [1] => 180 мм [2] => 200 мм ) [days] => [7,8,9] [material_price] => [6010,7190,8709] [work_price] => [3204,3845,4229] [image] => https://akademik-stroy.ru/wp-content/uploads/materials/suhoj-brus.jpg [area_modifier] => 120.88 [parent_name] => Стены 1 этаж (несущие) [parent_id] => 3 [material_sum] => 1002555 [work_sum] => 445394 [total_sum] => 1447949 [total_days] => 7 [display_material_sum] => 1 002 555 [display_work_sum] => 445 394 [display_total_sum] => 1 447 949 ) 1
1 447 949
Работа:445 394
Материалы:1 002 555
Дни:7
stdClass Object ( [id] => 86 [attribute_id] => 3 [name] => Профилированный брус [material_modifier] => 1 [work_modifier] => 1 [options] => Array ( [0] => 150 мм [1] => 180 мм [2] => 200 мм ) [days] => [7,8,9] [material_price] => [8190,9228,10051] [work_price] => [3845,4614,5075] [image] => https://akademik-stroy.ru/wp-content/uploads/materials/profilirovannyj-brus.jpg [area_modifier] => 120.88 [parent_name] => Стены 1 этаж (несущие) [parent_id] => 3 [material_sum] => 1366210 [work_sum] => 534501 [total_sum] => 1900711 [total_days] => 7 [display_material_sum] => 1 366 210 [display_work_sum] => 534 501 [display_total_sum] => 1 900 711 ) 1
1 900 711
Работа:534 501
Материалы:1 366 210
Дни:7
stdClass Object ( [id] => 87 [attribute_id] => 3 [name] => Оцилиндрованное бревно [material_modifier] => 1 [work_modifier] => 1 [options] => Array ( [0] => 180 мм [1] => 220 мм [2] => 260 мм [3] => 320 мм ) [days] => [7,8,9,10] [material_price] => [75190,9532,10868,13116] [work_price] => [3845,4691,5535,6863] [image] => https://akademik-stroy.ru/wp-content/uploads/materials/ocilindrovannoe-brevno-1.jpg [area_modifier] => 120.88 [parent_name] => Стены 1 этаж (несущие) [parent_id] => 3 [material_sum] => 12542775 [work_sum] => 534501 [total_sum] => 13077276 [total_days] => 7 [display_material_sum] => 12 542 775 [display_work_sum] => 534 501 [display_total_sum] => 13 077 276 ) 1
13 077 276
Работа:534 501
Материалы:12 542 775
Дни:7
stdClass Object ( [id] => 88 [attribute_id] => 3 [name] => Срубы [material_modifier] => 1 [work_modifier] => 1 [options] => Array ( [0] => 260 мм [1] => 320 мм [2] => 360 мм [3] => 400 мм [4] => 500 мм ) [days] => [7,8,9,10,11] [material_price] => [37975,46709,52314,58069,73167] [work_price] => [4806,5911,6621,7349,9260] [image] => https://akademik-stroy.ru/wp-content/uploads/materials/sruby.jpg [area_modifier] => 120.88 [parent_name] => Стены 1 этаж (несущие) [parent_id] => 3 [material_sum] => 6334777 [work_sum] => 668092 [total_sum] => 7002869 [total_days] => 7 [display_material_sum] => 6 334 777 [display_work_sum] => 668 092 [display_total_sum] => 7 002 869 ) 1
7 002 869
Работа:668 092
Материалы:6 334 777
Дни:7
stdClass Object ( [id] => 174 [attribute_id] => 3 [name] => Брус [material_modifier] => 1 [work_modifier] => 1 [options] => Array ( [0] => 150 мм [1] => 180 мм [2] => 200 мм ) [days] => [7,8,9] [material_price] => [5127,6152,7367] [work_price] => [1602,1922,2115] [image] => https://akademik-stroy.ru/wp-content/uploads/materials/brus.jpg [area_modifier] => 120.88 [parent_name] => Стены 1 этаж (несущие) [parent_id] => 3 [material_sum] => 855257 [work_sum] => 222697 [total_sum] => 1077954 [total_days] => 7 [display_material_sum] => 855 257 [display_work_sum] => 222 697 [display_total_sum] => 1 077 954 ) 1
1 077 954
Работа:222 697
Материалы:855 257
Дни:7
stdClass Object ( [id] => 175 [attribute_id] => 3 [name] => Газобетон [material_modifier] => 1 [work_modifier] => 1 [options] => Array ( [0] => 300 мм [1] => 375 мм [2] => 400 мм [3] => 500 мм [4] => 600 мм ) [days] => [29,31,35,37,44] [material_price] => [4298,5573,6356,7288,9119] [work_price] => [4538,5251,5926,6733,7195] [image] => https://akademik-stroy.ru/wp-content/uploads/materials/gazobeton.jpg [area_modifier] => 120.88 [parent_name] => Стены 1 этаж (несущие) [parent_id] => 3 [material_sum] => 716968 [work_sum] => 630836 [total_sum] => 1347804 [total_days] => 29 [display_material_sum] => 716 968 [display_work_sum] => 630 836 [display_total_sum] => 1 347 804 ) 1
1 347 804
Работа:630 836
Материалы:716 968
Дни:29
stdClass Object ( [id] => 176 [attribute_id] => 3 [name] => Блок [material_modifier] => 1 [work_modifier] => 1 [options] => Array ( [0] => 300 мм [1] => 375 мм [2] => 400 мм [3] => 500 мм [4] => 600 мм ) [days] => [29,31,35,37,44] [material_price] => [2698,3973,4356,6588,7119] [work_price] => [5038,5851,6426,8733,9195] [image] => https://akademik-stroy.ru/wp-content/uploads/materials/blok.jpg [area_modifier] => 120.88 [parent_name] => Стены 1 этаж (несущие) [parent_id] => 3 [material_sum] => 450065 [work_sum] => 700342 [total_sum] => 1150407 [total_days] => 29 [display_material_sum] => 450 065 [display_work_sum] => 700 342 [display_total_sum] => 1 150 407 ) 1
1 150 407
Работа:700 342
Материалы:450 065
Дни:29
stdClass Object ( [id] => 177 [attribute_id] => 3 [name] => Газосиликатный блок [material_modifier] => 1 [work_modifier] => 1 [options] => Array ( [0] => 300 мм [1] => 375 мм [2] => 400 мм [3] => 500 мм [4] => 600 мм ) [days] => [29,31,35,37,44] [material_price] => [4298,5573,6356,7288,9119] [work_price] => [4538,5251,5926,6733,7195] [image] => https://akademik-stroy.ru/wp-content/uploads/materials/gazosilikatnyj-blok.jpg [area_modifier] => 120.88 [parent_name] => Стены 1 этаж (несущие) [parent_id] => 3 [material_sum] => 716968 [work_sum] => 630836 [total_sum] => 1347804 [total_days] => 29 [display_material_sum] => 716 968 [display_work_sum] => 630 836 [display_total_sum] => 1 347 804 ) 1
1 347 804
Работа:630 836
Материалы:716 968
Дни:29
stdClass Object ( [id] => 178 [attribute_id] => 3 [name] => Керамзитобетонный блок [material_modifier] => 1 [work_modifier] => 1 [options] => Array ( [0] => 300 мм [1] => 375 мм [2] => 400 мм [3] => 500 мм [4] => 600 мм ) [days] => [23,23,24,25,28] [material_price] => [3641,4298,5693,7613,9612] [work_price] => [5737,5737,6903,7958,8901] [image] => https://akademik-stroy.ru/wp-content/uploads/materials/keramzitobetonnyj-blok.jpg [area_modifier] => 120.88 [parent_name] => Стены 1 этаж (несущие) [parent_id] => 3 [material_sum] => 607371 [work_sum] => 797512 [total_sum] => 1404883 [total_days] => 23 [display_material_sum] => 607 371 [display_work_sum] => 797 512 [display_total_sum] => 1 404 883 ) 1
1 404 883
Работа:797 512
Материалы:607 371
Дни:23
stdClass Object ( [id] => 179 [attribute_id] => 3 [name] => Деревянные [material_modifier] => 1 [work_modifier] => 1 [options] => Array ( [0] => 180 мм [1] => 220 мм [2] => 260 мм [3] => 320 мм ) [days] => [7,8,9,10] [material_price] => [7950,9458,11961,14472] [work_price] => [4037,4925,5812,7207] [image] => https://akademik-stroy.ru/wp-content/uploads/materials/derevyannye.jpg [area_modifier] => 120.88 [parent_name] => Стены 1 этаж (несущие) [parent_id] => 3 [material_sum] => 1326174 [work_sum] => 561191 [total_sum] => 1887365 [total_days] => 7 [display_material_sum] => 1 326 174 [display_work_sum] => 561 191 [display_total_sum] => 1 887 365 ) 1
1 887 365
Работа:561 191
Материалы:1 326 174
Дни:7
stdClass Object ( [id] => 181 [attribute_id] => 3 [name] => Камень [material_modifier] => 1 [work_modifier] => 1 [options] => Array ( [0] => 300 мм [1] => 400 мм [2] => 500 мм [3] => 600 мм ) [days] => [25,27,31,34] [material_price] => [5262,6844,8330,9815] [work_price] => [8331,9135,10427,11069] [image] => https://akademik-stroy.ru/wp-content/uploads/materials/kamen.jpg [area_modifier] => 120.88 [parent_name] => Стены 1 этаж (несущие) [parent_id] => 3 [material_sum] => 877777 [work_sum] => 1158109 [total_sum] => 2035886 [total_days] => 25 [display_material_sum] => 877 777 [display_work_sum] => 1 158 109 [display_total_sum] => 2 035 886 ) 1
2 035 886
Работа:1 158 109
Материалы:877 777
Дни:25
stdClass Object ( [id] => 182 [attribute_id] => 3 [name] => Каркасно-щитовые [material_modifier] => 1 [work_modifier] => 1 [options] => Array ( [0] => 150 мм [1] => 200 мм [2] => 250 мм [3] => 300 мм [4] => 350 мм [5] => 400 мм ) [days] => [15,16,17,18,19,20] [material_price] => [2379,2639,2898,3458,3601,4175] [work_price] => [2538,2820,3134,3483,4062,5642] [image] => https://akademik-stroy.ru/wp-content/uploads/materials/karkasno-shchitovye.jpg [area_modifier] => 120.88 [parent_name] => Стены 1 этаж (несущие) [parent_id] => 3 [material_sum] => 396851 [work_sum] => 352812 [total_sum] => 749663 [total_days] => 15 [display_material_sum] => 396 851 [display_work_sum] => 352 812 [display_total_sum] => 749 663 ) 1
749 663
Работа:352 812
Материалы:396 851
Дни:15
stdClass Object ( [id] => 183 [attribute_id] => 3 [name] => Рубленные [material_modifier] => 1 [work_modifier] => 1 [options] => Array ( [0] => 150 мм [1] => 200 мм [2] => 250 мм [3] => 300 мм [4] => 350 мм [5] => 400 мм ) [days] => [15,16,17,18,17,18] [material_price] => [35950,50267,60583,75900,80217,100533] [work_price] => [9612,12816,16020,19224,22428,25632] [image] => https://akademik-stroy.ru/wp-content/uploads/materials/rublennye.jpg [area_modifier] => 120.88 [parent_name] => Стены 1 этаж (несущие) [parent_id] => 3 [material_sum] => 5996978 [work_sum] => 1336183 [total_sum] => 7333161 [total_days] => 15 [display_material_sum] => 5 996 978 [display_work_sum] => 1 336 183 [display_total_sum] => 7 333 161 ) 1
7 333 161
Работа:1 336 183
Материалы:5 996 978
Дни:15
stdClass Object ( [id] => 185 [attribute_id] => 3 [name] => Теплоблок [material_modifier] => 1 [work_modifier] => 1 [options] => Array ( [0] => 300 мм (с облицовкой, не покрашенный) [1] => 400 мм (с облицовкой, не покрашенный) [2] => 300 мм (с облицовкой, покрашенный) [3] => 400 мм (с облицовкой, покрашенный) ) [days] => [15,16,15,16] [material_price] => [2888,3729,3957,4258] [work_price] => [2564,3229,2949,3713] [image] => https://akademik-stroy.ru/wp-content/uploads/materials/teploblok.jpg [area_modifier] => 120.88 [parent_name] => Стены 1 этаж (несущие) [parent_id] => 3 [material_sum] => 481760 [work_sum] => 356427 [total_sum] => 838187 [total_days] => 15 [display_material_sum] => 481 760 [display_work_sum] => 356 427 [display_total_sum] => 838 187 ) 1
838 187
Работа:356 427
Материалы:481 760
Дни:15
stdClass Object ( [id] => 186 [attribute_id] => 3 [name] => Арболитовые блоки [material_modifier] => 1 [work_modifier] => 1 [options] => Array ( [0] => 300 мм [1] => 400 мм [2] => 600 мм ) [days] => [19,22,27] [material_price] => [3210,4475,5852] [work_price] => [4214,4788,5866] [image] => https://akademik-stroy.ru/wp-content/uploads/materials/arbolitovye-bloki.png [area_modifier] => 120.88 [parent_name] => Стены 1 этаж (несущие) [parent_id] => 3 [material_sum] => 535474 [work_sum] => 585797 [total_sum] => 1121271 [total_days] => 19 [display_material_sum] => 535 474 [display_work_sum] => 585 797 [display_total_sum] => 1 121 271 ) 1
1 121 271
Работа:585 797
Материалы:535 474
Дни:19
stdClass Object ( [id] => 187 [attribute_id] => 3 [name] => Полистиролбетон [material_modifier] => 1 [work_modifier] => 1 [options] => Array ( [0] => 300 мм [1] => 400 мм [2] => 600 мм ) [days] => [29,31,35] [material_price] => [2798,4573,5256] [work_price] => [5038,5851,6426] [image] => https://akademik-stroy.ru/wp-content/uploads/materials/polistirolbeton.jpg [area_modifier] => 120.88 [parent_name] => Стены 1 этаж (несущие) [parent_id] => 3 [material_sum] => 466747 [work_sum] => 700342 [total_sum] => 1167089 [total_days] => 29 [display_material_sum] => 466 747 [display_work_sum] => 700 342 [display_total_sum] => 1 167 089 ) 1
1 167 089
Работа:700 342
Материалы:466 747
Дни:29
stdClass Object ( [id] => 188 [attribute_id] => 3 [name] => Шлакоблок [material_modifier] => 1 [work_modifier] => 1 [options] => Array ( [0] => 400 мм [1] => 600 мм ) [days] => [15,16] [material_price] => [2391,3471] [work_price] => [2642,3662] [image] => https://akademik-stroy.ru/wp-content/uploads/materials/shlakoblok.jpg [area_modifier] => 120.88 [parent_name] => Стены 1 этаж (несущие) [parent_id] => 3 [material_sum] => 398853 [work_sum] => 367270 [total_sum] => 766123 [total_days] => 15 [display_material_sum] => 398 853 [display_work_sum] => 367 270 [display_total_sum] => 766 123 ) 1
766 123
Работа:367 270
Материалы:398 853
Дни:15
stdClass Object ( [id] => 189 [attribute_id] => 3 [name] => Теплая керамика [material_modifier] => 1 [work_modifier] => 1 [options] => Array ( [0] => 380 мм [1] => 380 мм Thermo [2] => 440 мм [3] => 510 мм ) [days] => [23,23,24,25] [material_price] => [4510,5098,6093,8013] [work_price] => [4737,4937,5903,6958] [image] => https://akademik-stroy.ru/wp-content/uploads/materials/teplaya-keramika.jpg [area_modifier] => 120.88 [parent_name] => Стены 1 этаж (несущие) [parent_id] => 3 [material_sum] => 752333 [work_sum] => 658500 [total_sum] => 1410833 [total_days] => 23 [display_material_sum] => 752 333 [display_work_sum] => 658 500 [display_total_sum] => 1 410 833 ) 1
1 410 833
Работа:658 500
Материалы:752 333
Дни:23
stdClass Object ( [id] => 190 [attribute_id] => 3 [name] => Несъемная опалубка [material_modifier] => 1 [work_modifier] => 1 [options] => Array ( [0] => 200 мм [1] => 250 мм [2] => 300 мм [3] => 350 мм ) [days] => [15,17,19,21] [material_price] => [3302,3902,4108,5008] [work_price] => [2100,2100,2300,2534] [image] => https://akademik-stroy.ru/wp-content/uploads/materials/nesemnaya-opalubka.jpg [area_modifier] => 120.88 [parent_name] => Стены 1 этаж (несущие) [parent_id] => 3 [material_sum] => 550821 [work_sum] => 291925 [total_sum] => 842746 [total_days] => 15 [display_material_sum] => 550 821 [display_work_sum] => 291 925 [display_total_sum] => 842 746 ) 1
842 746
Работа:291 925
Материалы:550 821
Дни:15
stdClass Object ( [id] => 251 [attribute_id] => 3 [name] => Бревно [material_modifier] => 1 [work_modifier] => 1 [options] => Array ( [0] => 260 мм [1] => 320 мм [2] => 360 мм [3] => 400 мм [4] => 500 мм ) [days] => [7,8,9,10,11] [material_price] => [1874,24045,26930,30972,38825] [work_price] => [5046,6207,6952,7716,9723] [image] => https://akademik-stroy.ru/wp-content/uploads/materials/sruby.jpg [area_modifier] => 120.88 [parent_name] => Стены 1 этаж (несущие) [parent_id] => 3 [material_sum] => 312610 [work_sum] => 701455 [total_sum] => 1014065 [total_days] => 7 [display_material_sum] => 312 610 [display_work_sum] => 701 455 [display_total_sum] => 1 014 065 ) 1
1 014 065
Работа:701 455
Материалы:312 610
Дни:7
Перекрытие первого этажа
stdClass Object ( [id] => 7 [attribute_id] => 4 [name] => Деревянные балки [material_modifier] => 1 [work_modifier] => 1 [options] => Array ( [0] => без утепления [1] => утепление 200 мм [2] => утепление 250 мм [3] => утепление 300 мм [4] => утепление 350 мм [5] => утепление 400 мм [6] => утепление 450 мм [7] => утепление 500 мм ) [days] => [8,9,9,9,11,12,13,14] [material_price] => [1634,2042,2344,2947,3149,3652,3354,3557] [work_price] => [1230,1339,1393,1426,1460,1513,1587,1620] [image] => https://akademik-stroy.ru/wp-content/uploads/materials/derevyannye-balki.png [area_modifier] => 120.88 [parent_name] => Перекрытие первого этажа [parent_id] => 4 [material_sum] => 272575 [work_sum] => 170985 [total_sum] => 443560 [total_days] => 8 [display_material_sum] => 272 575 [display_work_sum] => 170 985 [display_total_sum] => 443 560 ) 1
443 560
Работа:170 985
Материалы:272 575
Дни:8
stdClass Object ( [id] => 8 [attribute_id] => 4 [name] => Сборные ж/б плиты [material_modifier] => 1 [work_modifier] => 1 [options] => Array ( [0] => без утепления [1] => утепление 150 мм [2] => утепление 200 мм [3] => утепление 250 мм [4] => утепление 300 мм [5] => утепление 350 мм [6] => утепление 400 мм [7] => утепление 450 мм [8] => утепление 500 мм ) [days] => [13,15,15,15,15,15,15,15,15] [material_price] => [3067,5577,5928,6679,7730,8782,9833,10884,11935] [work_price] => [1520,1956,2102,2247,2392,2537,2684,2829,2974] [image] => https://akademik-stroy.ru/wp-content/uploads/materials/sbornye-zh-b-plity-2.jpg [area_modifier] => 120.88 [parent_name] => Перекрытие первого этажа [parent_id] => 4 [material_sum] => 511620 [work_sum] => 211298 [total_sum] => 722918 [total_days] => 13 [display_material_sum] => 511 620 [display_work_sum] => 211 298 [display_total_sum] => 722 918 ) 1
722 918
Работа:211 298
Материалы:511 620
Дни:13
stdClass Object ( [id] => 89 [attribute_id] => 4 [name] => Монолитная ж/б плита [material_modifier] => 1 [work_modifier] => 1 [options] => Array ( [0] => без утепления [1] => утепление 150 мм [2] => утепление 200 мм [3] => утепление 250 мм [4] => утепление 300 мм [5] => утепление 350 мм [6] => утепление 400 мм [7] => утепление 450 мм [8] => утепление 500 мм ) [days] => [18,20,20,20,20,20,20,20,20] [material_price] => [4837,6572,7224,7375,79426,8177,8728,9180,10031] [work_price] => [3348,3921,4112,4302,4493,4684,4875,5066,5256] [image] => https://akademik-stroy.ru/wp-content/uploads/materials/monolitnaya-zh-b-plita-2.jpg [area_modifier] => 120.88 [parent_name] => Перекрытие первого этажа [parent_id] => 4 [material_sum] => 806881 [work_sum] => 465412 [total_sum] => 1272293 [total_days] => 18 [display_material_sum] => 806 881 [display_work_sum] => 465 412 [display_total_sum] => 1 272 293 ) 1
1 272 293
Работа:465 412
Материалы:806 881
Дни:18
Крыша (Скатная)
stdClass Object ( [id] => 164 [attribute_id] => 37 [name] => Металлочерепица [material_modifier] => 1 [work_modifier] => 1 [options] => Array ( ) [days] => [20] [material_price] => [6112] [work_price] => [5726] [image] => https://akademik-stroy.ru/wp-content/uploads/materials/metallocherepica.jpg [area_modifier] => 120.88 [parent_name] => Крыша (Скатная) [parent_id] => 37 [material_sum] => 1019570 [work_sum] => 795983 [total_sum] => 1815553 [total_days] => 20 [display_material_sum] => 1 019 570 [display_work_sum] => 795 983 [display_total_sum] => 1 815 553 ) 1
1 815 553
Работа:795 983
Материалы:1 019 570
Дни:20
stdClass Object ( [id] => 165 [attribute_id] => 37 [name] => Гибкая черепица [material_modifier] => 1 [work_modifier] => 1 [options] => Array ( ) [days] => [20] [material_price] => [6980] [work_price] => [5950] [image] => https://akademik-stroy.ru/wp-content/uploads/materials/gibkaya-cherepica.jpg [area_modifier] => 120.88 [parent_name] => Крыша (Скатная) [parent_id] => 37 [material_sum] => 1164365 [work_sum] => 827121 [total_sum] => 1991486 [total_days] => 20 [display_material_sum] => 1 164 365 [display_work_sum] => 827 121 [display_total_sum] => 1 991 486 ) 1
1 991 486
Работа:827 121
Материалы:1 164 365
Дни:20
stdClass Object ( [id] => 166 [attribute_id] => 37 [name] => Цементно-песчаная черепица [material_modifier] => 1 [work_modifier] => 1 [options] => Array ( ) [days] => [20] [material_price] => [10560] [work_price] => [9456] [image] => https://akademik-stroy.ru/wp-content/uploads/materials/cementno-peschanaya-cherepica.jpg [area_modifier] => 120.88 [parent_name] => Крыша (Скатная) [parent_id] => 37 [material_sum] => 1761560 [work_sum] => 1314497 [total_sum] => 3076057 [total_days] => 20 [display_material_sum] => 1 761 560 [display_work_sum] => 1 314 497 [display_total_sum] => 3 076 057 ) 1
3 076 057
Работа:1 314 497
Материалы:1 761 560
Дни:20
stdClass Object ( [id] => 167 [attribute_id] => 37 [name] => Композитная черепица [material_modifier] => 1 [work_modifier] => 1 [options] => Array ( ) [days] => [20] [material_price] => [9506] [work_price] => [8905] [image] => https://akademik-stroy.ru/wp-content/uploads/materials/kompozitnaya-cherepica.jpg [area_modifier] => 120.88 [parent_name] => Крыша (Скатная) [parent_id] => 37 [material_sum] => 1585738 [work_sum] => 1237902 [total_sum] => 2823640 [total_days] => 20 [display_material_sum] => 1 585 738 [display_work_sum] => 1 237 902 [display_total_sum] => 2 823 640 ) 1
2 823 640
Работа:1 237 902
Материалы:1 585 738
Дни:20
stdClass Object ( [id] => 168 [attribute_id] => 37 [name] => Керамическая черепица [material_modifier] => 1 [work_modifier] => 1 [options] => Array ( ) [days] => [20] [material_price] => [12750] [work_price] => [9456] [image] => https://akademik-stroy.ru/wp-content/uploads/materials/keramicheskaya-cherepica.jpg [area_modifier] => 120.88 [parent_name] => Крыша (Скатная) [parent_id] => 37 [material_sum] => 2126884 [work_sum] => 1314497 [total_sum] => 3441381 [total_days] => 20 [display_material_sum] => 2 126 884 [display_work_sum] => 1 314 497 [display_total_sum] => 3 441 381 ) 1
3 441 381
Работа:1 314 497
Материалы:2 126 884
Дни:20
stdClass Object ( [id] => 169 [attribute_id] => 37 [name] => Металлическая фальцевая [material_modifier] => 1 [work_modifier] => 1 [options] => Array ( ) [days] => [20] [material_price] => [8550] [work_price] => [8190] [image] => https://akademik-stroy.ru/wp-content/uploads/materials/metallicheskaya-falcevaya.jpg [area_modifier] => 120.88 [parent_name] => Крыша (Скатная) [parent_id] => 37 [material_sum] => 1426263 [work_sum] => 1138508 [total_sum] => 2564771 [total_days] => 20 [display_material_sum] => 1 426 263 [display_work_sum] => 1 138 508 [display_total_sum] => 2 564 771 ) 1
2 564 771
Работа:1 138 508
Материалы:1 426 263
Дни:20
stdClass Object ( [id] => 170 [attribute_id] => 37 [name] => Медная фальцевая [material_modifier] => 1 [work_modifier] => 1 [options] => Array ( ) [days] => [20] [material_price] => [20450] [work_price] => [16750] [image] => https://akademik-stroy.ru/wp-content/uploads/materials/mednaya-falcevaya.jpg [area_modifier] => 120.88 [parent_name] => Крыша (Скатная) [parent_id] => 37 [material_sum] => 3411354 [work_sum] => 2328451 [total_sum] => 5739805 [total_days] => 20 [display_material_sum] => 3 411 354 [display_work_sum] => 2 328 451 [display_total_sum] => 5 739 805 ) 1
5 739 805
Работа:2 328 451
Материалы:3 411 354
Дни:20
stdClass Object ( [id] => 171 [attribute_id] => 37 [name] => Зеленая кровля [material_modifier] => 1 [work_modifier] => 1 [options] => Array ( ) [days] => [20] [material_price] => [19850] [work_price] => [16780] [image] => https://akademik-stroy.ru/wp-content/uploads/materials/zelenaya-krovlya.jpg [area_modifier] => 120.88 [parent_name] => Крыша (Скатная) [parent_id] => 37 [material_sum] => 3311266 [work_sum] => 2332621 [total_sum] => 5643887 [total_days] => 20 [display_material_sum] => 3 311 266 [display_work_sum] => 2 332 621 [display_total_sum] => 5 643 887 ) 1
5 643 887
Работа:2 332 621
Материалы:3 311 266
Дни:20
stdClass Object ( [id] => 172 [attribute_id] => 37 [name] => Профлист [material_modifier] => 1 [work_modifier] => 1 [options] => Array ( ) [days] => [20] [material_price] => [3450] [work_price] => [3750] [image] => https://akademik-stroy.ru/wp-content/uploads/materials/proflist.jpg [area_modifier] => 120.88 [parent_name] => Крыша (Скатная) [parent_id] => 37 [material_sum] => 575510 [work_sum] => 521295 [total_sum] => 1096805 [total_days] => 20 [display_material_sum] => 575 510 [display_work_sum] => 521 295 [display_total_sum] => 1 096 805 ) 1
1 096 805
Работа:521 295
Материалы:575 510
Дни:20
Окна
stdClass Object ( [id] => 51 [attribute_id] => 26 [name] => Есть [material_modifier] => 1 [work_modifier] => 1 [options] => Array ( [0] => Профиль 58 мм, 3-камерный, стеклопакет 2-камерный до 32 мм [1] => Профиль 60 мм, 4-камерный, стеклопакет 2-камерный до 32 мм [2] => Профиль 70 мм, 5-камерный, стеклопакет 2-камерный до 40 мм [3] => Профиль 72 мм, 5-камерный, стеклопакет 2-камерный до 40 мм [4] => Алюминиевые окна Alutech профиль 72 мм, стеклопакет 2-камерный ) [days] => [3,3,3,3,3] [material_price] => [1339,2124,2867,3023,29596] [work_price] => [635,647,659,668,2579] [image] => https://akademik-stroy.ru/wp-content/uploads/materials/okna.jpg [area_modifier] => 98.09 [parent_name] => Окна [parent_id] => 26 [material_sum] => 181253 [work_sum] => 71630 [total_sum] => 252883 [total_days] => 3 [display_material_sum] => 181 253 [display_work_sum] => 71 630 [display_total_sum] => 252 883 ) 1
252 883
Работа:71 630
Материалы:181 253
Дни:3
stdClass Object ( [id] => 52 [attribute_id] => 26 [name] => Нет [material_modifier] => 2 [work_modifier] => 1 [options] => [days] => null [material_price] => null [work_price] => null [image] => https://akademik-stroy.ru/wp-content/uploads/materials/okna.jpg [area_modifier] => 98.09 [parent_name] => Окна [parent_id] => 26 [material_sum] => 0 [work_sum] => 0 [total_sum] => 0 [total_days] => 0 [display_material_sum] => 0 [display_work_sum] => 0 [display_total_sum] => 0 ) 1
0
Работа:0
Материалы:0
Дни:0
Двери входные
stdClass Object ( [id] => 53 [attribute_id] => 27 [name] => Есть [material_modifier] => 1 [work_modifier] => 1 [options] => Array ( ) [days] => [1] [material_price] => [10000] [work_price] => [5500] [image] => https://akademik-stroy.ru/wp-content/uploads/materials/dveri.jpg [area_modifier] => 1 [parent_name] => Двери входные [parent_id] => 27 [material_sum] => 13800 [work_sum] => 6325 [total_sum] => 20125 [total_days] => 1 [display_material_sum] => 13 800 [display_work_sum] => 6 325 [display_total_sum] => 20 125 ) 1
20 125
Работа:6 325
Материалы:13 800
Дни:1
stdClass Object ( [id] => 54 [attribute_id] => 27 [name] => Нет [material_modifier] => 1 [work_modifier] => 1 [options] => Array ( ) [days] => [0] [material_price] => [0] [work_price] => [0] [image] => https://akademik-stroy.ru/wp-content/uploads/materials/dveri.jpg [area_modifier] => 1 [parent_name] => Двери входные [parent_id] => 27 [material_sum] => 0 [work_sum] => 0 [total_sum] => 0 [total_days] => 0 [display_material_sum] => 0 [display_work_sum] => 0 [display_total_sum] => 0 ) 1
0
Работа:0
Материалы:0
Дни:0
Утепление кровли (Мансарда)
stdClass Object ( [id] => 25 [attribute_id] => 13 [name] => Нет [material_modifier] => 1 [work_modifier] => 1 [options] => Array ( ) [days] => [0] [material_price] => [0] [work_price] => [0] [image] => https://akademik-stroy.ru/wp-content/uploads/materials/mineralovata-krov.jpg [area_modifier] => 120.88 [parent_name] => Утепление кровли (Мансарда) [parent_id] => 13 [material_sum] => 0 [work_sum] => 0 [total_sum] => 0 [total_days] => 0 [display_material_sum] => 0 [display_work_sum] => 0 [display_total_sum] => 0 ) 1
0
Работа:0
Материалы:0
Дни:0
stdClass Object ( [id] => 26 [attribute_id] => 13 [name] => Минераловатный [material_modifier] => 1 [work_modifier] => 1 [options] => Array ( [0] => 50 мм [1] => 100 мм [2] => 150 мм [3] => 200 мм [4] => 250 мм [5] => 300 мм [6] => 350 мм [7] => 400 мм [8] => 450 мм [9] => 500 мм ) [days] => [5,5,6,6,6,7,7,7,8,8] [material_price] => [1158,1414,1772,2230,3602,4060,4974,5890,6408,7718] [work_price] => [650,846,846,1098,1318,1450,1596,1754,1930,2122] [image] => https://akademik-stroy.ru/wp-content/uploads/materials/mineralovata-krov.jpg [area_modifier] => 120.88 [parent_name] => Утепление кровли (Мансарда) [parent_id] => 13 [material_sum] => 193171 [work_sum] => 90358 [total_sum] => 283529 [total_days] => 5 [display_material_sum] => 193 171 [display_work_sum] => 90 358 [display_total_sum] => 283 529 ) 1
283 529
Работа:90 358
Материалы:193 171
Дни:5
stdClass Object ( [id] => 123 [attribute_id] => 13 [name] => Эковата (целлюлозная вата) [material_modifier] => 1 [work_modifier] => 1 [options] => Array ( [0] => 50 мм [1] => 100 мм [2] => 150 мм [3] => 200 мм [4] => 250 мм [5] => 300 мм [6] => 350 мм [7] => 400 мм [8] => 450 мм [9] => 500 мм ) [days] => [3,3,4,4,4,5,5,5,5,5] [material_price] => [820,1638,2458,3276,5734,6552,8190,9828,11466,13104] [work_price] => [234,304,304,396,474,522,574,632,694,764] [image] => https://akademik-stroy.ru/wp-content/uploads/materials/ehkovata-krov.jpg [area_modifier] => 120.88 [parent_name] => Утепление кровли (Мансарда) [parent_id] => 13 [material_sum] => 136788 [work_sum] => 32529 [total_sum] => 169317 [total_days] => 3 [display_material_sum] => 136 788 [display_work_sum] => 32 529 [display_total_sum] => 169 317 ) 1
169 317
Работа:32 529
Материалы:136 788
Дни:3
stdClass Object ( [id] => 124 [attribute_id] => 13 [name] => Экструдированный пенополистирол [material_modifier] => 1 [work_modifier] => 1 [options] => Array ( [0] => 50 мм [1] => 100 мм [2] => 150 мм [3] => 200 мм [4] => 250 мм [5] => 300 мм [6] => 350 мм [7] => 400 мм [8] => 450 мм [9] => 500 мм ) [days] => [3,3,4,4,4,5,5,5,5,6] [material_price] => [1146,2292,3438,4584,8020,9166,11458,13750,16040,18332] [work_price] => [390,508,508,660,790,870,958,1052,1158,1274] [image] => https://akademik-stroy.ru/wp-content/uploads/materials/epps-krov.jpg [area_modifier] => 120.88 [parent_name] => Утепление кровли (Мансарда) [parent_id] => 13 [material_sum] => 191169 [work_sum] => 54215 [total_sum] => 245384 [total_days] => 3 [display_material_sum] => 191 169 [display_work_sum] => 54 215 [display_total_sum] => 245 384 ) 1
245 384
Работа:54 215
Материалы:191 169
Дни:3
stdClass Object ( [id] => 125 [attribute_id] => 13 [name] => ПСБ (ППС-пенополистирол) [material_modifier] => 1 [work_modifier] => 1 [options] => Array ( [0] => 50 мм [1] => 100 мм [2] => 150 мм [3] => 200 мм [4] => 250 мм [5] => 300 мм [6] => 350 мм [7] => 400 мм [8] => 450 мм [9] => 500 мм ) [days] => [3,3,4,4,4,5,5,5,5,6] [material_price] => [476,954,1430,1906,3336,3814,4766,5720,6674,7626] [work_price] => [390,508,508,660,790,870,958,1052,1158,1274] [image] => https://akademik-stroy.ru/wp-content/uploads/materials/psb-krov.jpg [area_modifier] => 120.88 [parent_name] => Утепление кровли (Мансарда) [parent_id] => 13 [material_sum] => 79404 [work_sum] => 54215 [total_sum] => 133619 [total_days] => 3 [display_material_sum] => 79 404 [display_work_sum] => 54 215 [display_total_sum] => 133 619 ) 1
133 619
Работа:54 215
Материалы:79 404
Дни:3
stdClass Object ( [id] => 126 [attribute_id] => 13 [name] => ППУ (Пенополиуретан) [material_modifier] => 1 [work_modifier] => 1 [options] => Array ( [0] => 50 мм [1] => 100 мм [2] => 150 мм [3] => 200 мм [4] => 250 мм [5] => 300 мм [6] => 350 мм [7] => 400 мм [8] => 450 мм [9] => 500 мм ) [days] => [2,2,3,3,3,3,4,4,4,4] [material_price] => [2080,4160,6240,8320,14560,16640,20800,24960,29120,33280] [work_price] => [234,304,304,396,474,522,574,632,694,764] [image] => https://akademik-stroy.ru/wp-content/uploads/materials/ppu-krov.jpg [area_modifier] => 120.88 [parent_name] => Утепление кровли (Мансарда) [parent_id] => 13 [material_sum] => 346974 [work_sum] => 32529 [total_sum] => 379503 [total_days] => 2 [display_material_sum] => 346 974 [display_work_sum] => 32 529 [display_total_sum] => 379 503 ) 1
379 503
Работа:32 529
Материалы:346 974
Дни:2
stdClass Object ( [id] => 127 [attribute_id] => 13 [name] => PIR-плиты (пенополиизоцианурат) [material_modifier] => 1 [work_modifier] => 1 [options] => Array ( [0] => 50 мм [1] => 100 мм [2] => 150 мм [3] => 200 мм [4] => 250 мм [5] => 300 мм [6] => 350 мм [7] => 400 мм [8] => 450 мм [9] => 500 мм ) [days] => [3,3,4,4,4,5,5,5,5,6] [material_price] => [2646,5290,7936,10580,18516,21162,26452,31742,37032,42324] [work_price] => [390,508,508,660,790,870,958,1052,1158,1274] [image] => https://akademik-stroy.ru/wp-content/uploads/materials/pir-krov.jpg [area_modifier] => 120.88 [parent_name] => Утепление кровли (Мансарда) [parent_id] => 13 [material_sum] => 441391 [work_sum] => 54215 [total_sum] => 495606 [total_days] => 3 [display_material_sum] => 441 391 [display_work_sum] => 54 215 [display_total_sum] => 495 606 ) 1
495 606
Работа:54 215
Материалы:441 391
Дни:3
Мансардные окна
stdClass Object ( [id] => 27 [attribute_id] => 14 [name] => Нет [material_modifier] => 1 [work_modifier] => 1 [options] => Array ( ) [days] => [0] [material_price] => [0] [work_price] => [0] [image] => https://akademik-stroy.ru/wp-content/uploads/materials/mansardnye-okna-2.jpg [area_modifier] => 1 [parent_name] => Мансардные окна [parent_id] => 14 [material_sum] => 0 [work_sum] => 0 [total_sum] => 0 [total_days] => 0 [display_material_sum] => 0 [display_work_sum] => 0 [display_total_sum] => 0 ) 1
0
Работа:0
Материалы:0
Дни:0
stdClass Object ( [id] => 28 [attribute_id] => 14 [name] => Есть [material_modifier] => 1 [work_modifier] => 1 [options] => Array ( [0] => 55x78 [1] => 55x98 ) [days] => [6,7] [material_price] => [47480,68700] [work_price] => [17900,19500] [image] => https://akademik-stroy.ru/wp-content/uploads/materials/mansardnye-okna-2.jpg [area_modifier] => 1 [parent_name] => Мансардные окна [parent_id] => 14 [material_sum] => 65522 [work_sum] => 20585 [total_sum] => 86107 [total_days] => 6 [display_material_sum] => 65 522 [display_work_sum] => 20 585 [display_total_sum] => 86 107 ) 1
86 107
Работа:20 585
Материалы:65 522
Дни:6
Подшивка кровли
stdClass Object ( [id] => 29 [attribute_id] => 15 [name] => Нет [material_modifier] => 1 [work_modifier] => 1 [options] => Array ( ) [days] => [0] [material_price] => [0] [work_price] => [0] [image] => https://akademik-stroy.ru/wp-content/uploads/materials/sofit.jpg [area_modifier] => 120.88 [parent_name] => Подшивка кровли [parent_id] => 15 [material_sum] => 0 [work_sum] => 0 [total_sum] => 0 [total_days] => 0 [display_material_sum] => 0 [display_work_sum] => 0 [display_total_sum] => 0 ) 1
0
Работа:0
Материалы:0
Дни:0
stdClass Object ( [id] => 30 [attribute_id] => 15 [name] => Есть [material_modifier] => 1 [work_modifier] => 1 [options] => Array ( [0] => Софиты (ПВХ) [1] => Cedral [2] => ДПК [3] => Планкен ) [days] => [7,10,9,8] [material_price] => [1803,3213,3025,3150] [work_price] => [1529,2188,2075,1923] [image] => https://akademik-stroy.ru/wp-content/uploads/materials/sofit.jpg [area_modifier] => 120.88 [parent_name] => Подшивка кровли [parent_id] => 15 [material_sum] => 300766 [work_sum] => 212549 [total_sum] => 513315 [total_days] => 7 [display_material_sum] => 300 766 [display_work_sum] => 212 549 [display_total_sum] => 513 315 ) 1
513 315
Работа:212 549
Материалы:300 766
Дни:7
Водосточная система
stdClass Object ( [id] => 31 [attribute_id] => 16 [name] => Нет [material_modifier] => 1 [work_modifier] => 1 [options] => Array ( ) [days] => [0] [material_price] => [0] [work_price] => [0] [image] => https://akademik-stroy.ru/wp-content/uploads/materials/docke-standard-pvh.jpg [area_modifier] => 120.88 [parent_name] => Водосточная система [parent_id] => 16 [material_sum] => 0 [work_sum] => 0 [total_sum] => 0 [total_days] => 0 [display_material_sum] => 0 [display_work_sum] => 0 [display_total_sum] => 0 ) 1
0
Работа:0
Материалы:0
Дни:0
stdClass Object ( [id] => 32 [attribute_id] => 16 [name] => Есть [material_modifier] => 1 [work_modifier] => 1 [options] => Array ( [0] => Döcke Standard (ПВХ) [1] => Металлические Grand Line ) [days] => [7,7] [material_price] => [1842,2703] [work_price] => [1491,1529] [image] => https://akademik-stroy.ru/wp-content/uploads/materials/docke-standard-pvh.jpg [area_modifier] => 120.88 [parent_name] => Водосточная система [parent_id] => 16 [material_sum] => 307272 [work_sum] => 207267 [total_sum] => 514539 [total_days] => 7 [display_material_sum] => 307 272 [display_work_sum] => 207 267 [display_total_sum] => 514 539 ) 1
514 539
Работа:207 267
Материалы:307 272
Дни:7
Дополнительное утепление наружных стен
stdClass Object ( [id] => 33 [attribute_id] => 17 [name] => Нет [material_modifier] => 1 [work_modifier] => 1 [options] => Array ( ) [days] => [0] [material_price] => [0] [work_price] => [0] [image] => https://akademik-stroy.ru/wp-content/uploads/materials/mineralovata.jpg [area_modifier] => 120.88 [parent_name] => Дополнительное утепление наружных стен [parent_id] => 17 [material_sum] => 0 [work_sum] => 0 [total_sum] => 0 [total_days] => 0 [display_material_sum] => 0 [display_work_sum] => 0 [display_total_sum] => 0 ) 1
0
Работа:0
Материалы:0
Дни:0
stdClass Object ( [id] => 34 [attribute_id] => 17 [name] => Минераловатный [material_modifier] => 1 [work_modifier] => 1 [options] => Array ( [0] => 50 мм [1] => 100 мм [2] => 150 мм [3] => 200 мм [4] => 250 мм [5] => 300 мм ) [days] => [7,8,10,12,14,15] [material_price] => [3437,3613,3803,3915,4601,4830] [work_price] => [2325,2423,2523,2749,2859,3025] [image] => https://akademik-stroy.ru/wp-content/uploads/materials/mineralovata.jpg [area_modifier] => 120.88 [parent_name] => Дополнительное утепление наружных стен [parent_id] => 17 [material_sum] => 573341 [work_sum] => 323203 [total_sum] => 896544 [total_days] => 7 [display_material_sum] => 573 341 [display_work_sum] => 323 203 [display_total_sum] => 896 544 ) 1
896 544
Работа:323 203
Материалы:573 341
Дни:7
stdClass Object ( [id] => 128 [attribute_id] => 17 [name] => Эковата (целлюлозная вата) [material_modifier] => 1 [work_modifier] => 1 [options] => Array ( [0] => 50 мм [1] => 100 мм [2] => 150 мм [3] => 200 мм [4] => 250 мм [5] => 300 мм ) [days] => [3,4,5,6,7,8] [material_price] => [810,1319,1629,1838,2267,2676] [work_price] => [1225,1323,1423,1549,1659,1725] [image] => https://akademik-stroy.ru/wp-content/uploads/materials/ehkovata.jpg [area_modifier] => 120.88 [parent_name] => Дополнительное утепление наружных стен [parent_id] => 17 [material_sum] => 135120 [work_sum] => 170290 [total_sum] => 305410 [total_days] => 3 [display_material_sum] => 135 120 [display_work_sum] => 170 290 [display_total_sum] => 305 410 ) 1
305 410
Работа:170 290
Материалы:135 120
Дни:3
stdClass Object ( [id] => 129 [attribute_id] => 17 [name] => Экструдированный пенополистирол [material_modifier] => 1 [work_modifier] => 1 [options] => Array ( [0] => 50 мм [1] => 100 мм [2] => 150 мм [3] => 200 мм [4] => 250 мм [5] => 300 мм ) [days] => [5,6,7,8,9,10] [material_price] => [4560,4300,5119,6292,7010,8583] [work_price] => [1795,1954,2254,2330,2595,2735] [image] => https://akademik-stroy.ru/wp-content/uploads/materials/epps.jpg [area_modifier] => 120.88 [parent_name] => Дополнительное утепление наружных стен [parent_id] => 17 [material_sum] => 760674 [work_sum] => 249527 [total_sum] => 1010201 [total_days] => 5 [display_material_sum] => 760 674 [display_work_sum] => 249 527 [display_total_sum] => 1 010 201 ) 1
1 010 201
Работа:249 527
Материалы:760 674
Дни:5
stdClass Object ( [id] => 130 [attribute_id] => 17 [name] => ПСБ (ППС-пенополистирол) [material_modifier] => 1 [work_modifier] => 1 [options] => Array ( [0] => 50 мм [1] => 100 мм [2] => 150 мм [3] => 200 мм [4] => 250 мм [5] => 300 мм ) [days] => [5,6,7,8,9,10] [material_price] => [4822,5200,5819,6292,7010,7583] [work_price] => [1795,1954,2254,2330,2595,2735] [image] => https://akademik-stroy.ru/wp-content/uploads/materials/psb.jpg [area_modifier] => 120.88 [parent_name] => Дополнительное утепление наружных стен [parent_id] => 17 [material_sum] => 804379 [work_sum] => 249527 [total_sum] => 1053906 [total_days] => 5 [display_material_sum] => 804 379 [display_work_sum] => 249 527 [display_total_sum] => 1 053 906 ) 1
1 053 906
Работа:249 527
Материалы:804 379
Дни:5
stdClass Object ( [id] => 131 [attribute_id] => 17 [name] => ППУ (Пенополиуретан) [material_modifier] => 1 [work_modifier] => 1 [options] => Array ( [0] => 50 мм [1] => 100 мм [2] => 150 мм [3] => 200 мм [4] => 250 мм [5] => 300 мм ) [days] => [3,4,5,6,7,8] [material_price] => [2860,3400,4219,4592,5010,5583] [work_price] => [729,900,980,1120,1280,1530] [image] => https://akademik-stroy.ru/wp-content/uploads/materials/ppu.jpg [area_modifier] => 120.88 [parent_name] => Дополнительное утепление наружных стен [parent_id] => 17 [material_sum] => 477089 [work_sum] => 101340 [total_sum] => 578429 [total_days] => 3 [display_material_sum] => 477 089 [display_work_sum] => 101 340 [display_total_sum] => 578 429 ) 1
578 429
Работа:101 340
Материалы:477 089
Дни:3
stdClass Object ( [id] => 132 [attribute_id] => 17 [name] => PIR-плиты (пенополиизоцианурат) [material_modifier] => 1 [work_modifier] => 1 [options] => Array ( [0] => 50 мм [1] => 100 мм [2] => 150 мм [3] => 200 мм [4] => 250 мм [5] => 300 мм ) [days] => [5,6,7,8,9,10] [material_price] => [8323,15645,20968,25900,29258,30581] [work_price] => [800,900,970,1150,1280,1330] [image] => https://akademik-stroy.ru/wp-content/uploads/materials/pir.jpg [area_modifier] => 120.88 [parent_name] => Дополнительное утепление наружных стен [parent_id] => 17 [material_sum] => 1388396 [work_sum] => 111210 [total_sum] => 1499606 [total_days] => 5 [display_material_sum] => 1 388 396 [display_work_sum] => 111 210 [display_total_sum] => 1 499 606 ) 1
1 499 606
Работа:111 210
Материалы:1 388 396
Дни:5
Наружная отделка фасада
stdClass Object ( [id] => 37 [attribute_id] => 19 [name] => Нет [material_modifier] => 1 [work_modifier] => 1 [options] => Array ( ) [days] => [0] [material_price] => [0] [work_price] => [0] [image] => https://akademik-stroy.ru/wp-content/uploads/materials/imitaciya-brusa.jpg [area_modifier] => 120.88 [parent_name] => Наружная отделка фасада [parent_id] => 19 [material_sum] => 0 [work_sum] => 0 [total_sum] => 0 [total_days] => 0 [display_material_sum] => 0 [display_work_sum] => 0 [display_total_sum] => 0 ) 1
0
Работа:0
Материалы:0
Дни:0
stdClass Object ( [id] => 38 [attribute_id] => 19 [name] => Имитация бруса [material_modifier] => 1 [work_modifier] => 1 [options] => Array ( [0] => Сосна [1] => Ель [2] => Лиственница ) [days] => [20,20,20] [material_price] => [2994,2762,4954] [work_price] => [1397,1231,1577] [image] => https://akademik-stroy.ru/wp-content/uploads/materials/imitaciya-brusa.jpg [area_modifier] => 120.88 [parent_name] => Наружная отделка фасада [parent_id] => 19 [material_sum] => 499442 [work_sum] => 194200 [total_sum] => 693642 [total_days] => 20 [display_material_sum] => 499 442 [display_work_sum] => 194 200 [display_total_sum] => 693 642 ) 1
693 642
Работа:194 200
Материалы:499 442
Дни:20
stdClass Object ( [id] => 136 [attribute_id] => 19 [name] => Планкен [material_modifier] => 1 [work_modifier] => 1 [options] => Array ( [0] => Сосна [1] => Ель [2] => Лиственница ) [days] => [20,20,20] [material_price] => [3194,2862,5154] [work_price] => [1537,1354,1735] [image] => https://akademik-stroy.ru/wp-content/uploads/materials/planken.jpg [area_modifier] => 120.88 [parent_name] => Наружная отделка фасада [parent_id] => 19 [material_sum] => 532805 [work_sum] => 213661 [total_sum] => 746466 [total_days] => 20 [display_material_sum] => 532 805 [display_work_sum] => 213 661 [display_total_sum] => 746 466 ) 1
746 466
Работа:213 661
Материалы:532 805
Дни:20
stdClass Object ( [id] => 137 [attribute_id] => 19 [name] => Штукатурка [material_modifier] => 1 [work_modifier] => 1 [options] => Array ( [0] => Цементно-песчаная (минеральная) [1] => Мокрый фасад ) [days] => [35,35] [material_price] => [2231,3938] [work_price] => [1202,2422] [image] => https://akademik-stroy.ru/wp-content/uploads/materials/shtukaturka.jpg [area_modifier] => 120.88 [parent_name] => Наружная отделка фасада [parent_id] => 19 [material_sum] => 372163 [work_sum] => 167092 [total_sum] => 539255 [total_days] => 35 [display_material_sum] => 372 163 [display_work_sum] => 167 092 [display_total_sum] => 539 255 ) 1
539 255
Работа:167 092
Материалы:372 163
Дни:35
stdClass Object ( [id] => 138 [attribute_id] => 19 [name] => Облицовочный кирпич [material_modifier] => 1 [work_modifier] => 1 [options] => Array ( [0] => Керамический [1] => Клинкерный [2] => Ручной формовки [3] => Гиперпрессованный [4] => Силикатный кирпич ) [days] => [45,45,45,45,45] [material_price] => [8174,9148,1040,1257,5876] [work_price] => [3240,3758,4536,4017,3369] [image] => https://akademik-stroy.ru/wp-content/uploads/materials/oblicovochnyj-kirpich.jpg [area_modifier] => 120.88 [parent_name] => Наружная отделка фасада [parent_id] => 19 [material_sum] => 1363541 [work_sum] => 450399 [total_sum] => 1813940 [total_days] => 45 [display_material_sum] => 1 363 541 [display_work_sum] => 450 399 [display_total_sum] => 1 813 940 ) 1
1 813 940
Работа:450 399
Материалы:1 363 541
Дни:45
stdClass Object ( [id] => 139 [attribute_id] => 19 [name] => Фасадная плитка [material_modifier] => 1 [work_modifier] => 1 [options] => Array ( [0] => Клинкерная [1] => Керамическая [2] => Плитка ручной формовки ) [days] => [40,40,40] [material_price] => [2974,1487,3470] [work_price] => [3007,2592,3629] [image] => https://akademik-stroy.ru/wp-content/uploads/materials/fasadnaya-plitka.jpg [area_modifier] => 120.88 [parent_name] => Наружная отделка фасада [parent_id] => 19 [material_sum] => 496106 [work_sum] => 418009 [total_sum] => 914115 [total_days] => 40 [display_material_sum] => 496 106 [display_work_sum] => 418 009 [display_total_sum] => 914 115 ) 1
914 115
Работа:418 009
Материалы:496 106
Дни:40
stdClass Object ( [id] => 140 [attribute_id] => 19 [name] => Сайдинг [material_modifier] => 1 [work_modifier] => 1 [options] => Array ( [0] => Виниловый [1] => Металлический [2] => Фиброцементный ) [days] => [20,20,20] [material_price] => [1263,1944,4147] [work_price] => [1263,1944,2074] [image] => https://akademik-stroy.ru/wp-content/uploads/materials/sajding.jpg [area_modifier] => 120.88 [parent_name] => Наружная отделка фасада [parent_id] => 19 [material_sum] => 210687 [work_sum] => 175572 [total_sum] => 386259 [total_days] => 20 [display_material_sum] => 210 687 [display_work_sum] => 175 572 [display_total_sum] => 386 259 ) 1
386 259
Работа:175 572
Материалы:210 687
Дни:20
stdClass Object ( [id] => 141 [attribute_id] => 19 [name] => Камень [material_modifier] => 1 [work_modifier] => 1 [options] => Array ( [0] => Травертин [1] => Дагестанский [2] => Искусственный [3] => Натуральный [4] => Керамогранит ) [days] => [45,45,45,45,45] [material_price] => [4536,3888,2592,3240,2462] [work_price] => [3240,3240,2462,3110,1944] [image] => https://akademik-stroy.ru/wp-content/uploads/materials/kamen-1.jpg [area_modifier] => 120.88 [parent_name] => Наружная отделка фасада [parent_id] => 19 [material_sum] => 756670 [work_sum] => 450399 [total_sum] => 1207069 [total_days] => 45 [display_material_sum] => 756 670 [display_work_sum] => 450 399 [display_total_sum] => 1 207 069 ) 1
1 207 069
Работа:450 399
Материалы:756 670
Дни:45
stdClass Object ( [id] => 142 [attribute_id] => 19 [name] => Термопанели [material_modifier] => 1 [work_modifier] => 1 [options] => Array ( ) [days] => [20] [material_price] => [6221] [work_price] => [2333] [image] => https://akademik-stroy.ru/wp-content/uploads/materials/termo.png [area_modifier] => 120.88 [parent_name] => Наружная отделка фасада [parent_id] => 19 [material_sum] => 1037752 [work_sum] => 324315 [total_sum] => 1362067 [total_days] => 20 [display_material_sum] => 1 037 752 [display_work_sum] => 324 315 [display_total_sum] => 1 362 067 ) 1
1 362 067
Работа:324 315
Материалы:1 037 752
Дни:20
stdClass Object ( [id] => 143 [attribute_id] => 19 [name] => Плитка HAUBERK [material_modifier] => 1 [work_modifier] => 1 [options] => Array ( ) [days] => [20] [material_price] => [2786] [work_price] => [1944] [image] => https://akademik-stroy.ru/wp-content/uploads/materials/hauberk.jpg [area_modifier] => 120.88 [parent_name] => Наружная отделка фасада [parent_id] => 19 [material_sum] => 464745 [work_sum] => 270239 [total_sum] => 734984 [total_days] => 20 [display_material_sum] => 464 745 [display_work_sum] => 270 239 [display_total_sum] => 734 984 ) 1
734 984
Работа:270 239
Материалы:464 745
Дни:20
stdClass Object ( [id] => 144 [attribute_id] => 19 [name] => Фальцевый фасад [material_modifier] => 1 [work_modifier] => 1 [options] => Array ( ) [days] => [20] [material_price] => [3240] [work_price] => [2592] [image] => https://akademik-stroy.ru/wp-content/uploads/materials/falcevyj-fasad.jpg [area_modifier] => 120.88 [parent_name] => Наружная отделка фасада [parent_id] => 19 [material_sum] => 540479 [work_sum] => 360319 [total_sum] => 900798 [total_days] => 20 [display_material_sum] => 540 479 [display_work_sum] => 360 319 [display_total_sum] => 900 798 ) 1
900 798
Работа:360 319
Материалы:540 479
Дни:20
stdClass Object ( [id] => 145 [attribute_id] => 19 [name] => Комбинированный [material_modifier] => 1 [work_modifier] => 1 [options] => Array ( ) [days] => [20] [material_price] => [4629] [work_price] => [3499] [image] => https://akademik-stroy.ru/wp-content/uploads/materials/Kombinirovannyj.jpg [area_modifier] => 120.88 [parent_name] => Наружная отделка фасада [parent_id] => 19 [material_sum] => 772184 [work_sum] => 486403 [total_sum] => 1258587 [total_days] => 20 [display_material_sum] => 772 184 [display_work_sum] => 486 403 [display_total_sum] => 1 258 587 ) 1
1 258 587
Работа:486 403
Материалы:772 184
Дни:20
stdClass Object ( [id] => 257 [attribute_id] => 19 [name] => Японские фиброцементные [material_modifier] => 1 [work_modifier] => 1 [options] => Array ( ) [days] => [20] [material_price] => [7043] [work_price] => [2993] [image] => https://akademik-stroy.ru/wp-content/uploads/materials/paneli.jpg [area_modifier] => 120.88 [parent_name] => Наружная отделка фасада [parent_id] => 19 [material_sum] => 1174874 [work_sum] => 416063 [total_sum] => 1590937 [total_days] => 20 [display_material_sum] => 1 174 874 [display_work_sum] => 416 063 [display_total_sum] => 1 590 937 ) 1
1 590 937
Работа:416 063
Материалы:1 174 874
Дни:20
stdClass Object ( [id] => 258 [attribute_id] => 19 [name] => Панели Каньон [material_modifier] => 1 [work_modifier] => 1 [options] => Array ( ) [days] => [20] [material_price] => [4543] [work_price] => [2592] [image] => https://akademik-stroy.ru/wp-content/uploads/materials/kanon.png [area_modifier] => 120.88 [parent_name] => Наружная отделка фасада [parent_id] => 19 [material_sum] => 757838 [work_sum] => 360319 [total_sum] => 1118157 [total_days] => 20 [display_material_sum] => 757 838 [display_work_sum] => 360 319 [display_total_sum] => 1 118 157 ) 1
1 118 157
Работа:360 319
Материалы:757 838
Дни:20
Террасы, крыльца, навесы
stdClass Object ( [id] => 39 [attribute_id] => 20 [name] => Нет [material_modifier] => 1 [work_modifier] => 1 [options] => Array ( ) [days] => [0] [material_price] => [0] [work_price] => [0] [image] => https://akademik-stroy.ru/wp-content/uploads/materials/terrasy.jpg [area_modifier] => 30 [parent_name] => Террасы, крыльца, навесы [parent_id] => 20 [material_sum] => 0 [work_sum] => 0 [total_sum] => 0 [total_days] => 0 [display_material_sum] => 0 [display_work_sum] => 0 [display_total_sum] => 0 ) 1
0
Работа:0
Материалы:0
Дни:0
stdClass Object ( [id] => 40 [attribute_id] => 20 [name] => Есть [material_modifier] => 1 [work_modifier] => 1 [options] => Array ( ) [days] => [5] [material_price] => [10450] [work_price] => [1950] [image] => https://akademik-stroy.ru/wp-content/uploads/materials/terrasy.jpg [area_modifier] => 30 [parent_name] => Террасы, крыльца, навесы [parent_id] => 20 [material_sum] => 432630 [work_sum] => 67275 [total_sum] => 499905 [total_days] => 5 [display_material_sum] => 432 630 [display_work_sum] => 67 275 [display_total_sum] => 499 905 ) 1
499 905
Работа:67 275
Материалы:432 630
Дни:5
Балконы
stdClass Object ( [id] => 41 [attribute_id] => 21 [name] => Нет [material_modifier] => 1 [work_modifier] => 1 [options] => Array ( ) [days] => [0] [material_price] => [0] [work_price] => [0] [image] => https://akademik-stroy.ru/wp-content/uploads/materials/balkony.jpg [area_modifier] => 30 [parent_name] => Балконы [parent_id] => 21 [material_sum] => 0 [work_sum] => 0 [total_sum] => 0 [total_days] => 0 [display_material_sum] => 0 [display_work_sum] => 0 [display_total_sum] => 0 ) 1
0
Работа:0
Материалы:0
Дни:0
stdClass Object ( [id] => 42 [attribute_id] => 21 [name] => Есть [material_modifier] => 1 [work_modifier] => 1 [options] => Array ( ) [days] => [12] [material_price] => [3600] [work_price] => [1950] [image] => https://akademik-stroy.ru/wp-content/uploads/materials/balkony.jpg [area_modifier] => 30 [parent_name] => Балконы [parent_id] => 21 [material_sum] => 149040 [work_sum] => 67275 [total_sum] => 216315 [total_days] => 12 [display_material_sum] => 149 040 [display_work_sum] => 67 275 [display_total_sum] => 216 315 ) 1
216 315
Работа:67 275
Материалы:149 040
Дни:12
Отмостка
stdClass Object ( [id] => 43 [attribute_id] => 22 [name] => Нет [material_modifier] => 1 [work_modifier] => 1 [options] => Array ( ) [days] => [0] [material_price] => [0] [work_price] => [0] [image] => https://akademik-stroy.ru/wp-content/uploads/materials/uteplennaya.jpg [area_modifier] => 120.88 [parent_name] => Отмостка [parent_id] => 22 [material_sum] => 0 [work_sum] => 0 [total_sum] => 0 [total_days] => 0 [display_material_sum] => 0 [display_work_sum] => 0 [display_total_sum] => 0 ) 1
0
Работа:0
Материалы:0
Дни:0
stdClass Object ( [id] => 44 [attribute_id] => 22 [name] => Утепленная отмостка [material_modifier] => 1 [work_modifier] => 1 [options] => Array ( ) [days] => [15] [material_price] => [2550] [work_price] => [1750] [image] => https://akademik-stroy.ru/wp-content/uploads/materials/uteplennaya.jpg [area_modifier] => 120.88 [parent_name] => Отмостка [parent_id] => 22 [material_sum] => 425377 [work_sum] => 243271 [total_sum] => 668648 [total_days] => 15 [display_material_sum] => 425 377 [display_work_sum] => 243 271 [display_total_sum] => 668 648 ) 1
668 648
Работа:243 271
Материалы:425 377
Дни:15
stdClass Object ( [id] => 146 [attribute_id] => 22 [name] => Не утепленная отмостка [material_modifier] => 1 [work_modifier] => 1 [options] => Array ( ) [days] => [10] [material_price] => [1650] [work_price] => [1450] [image] => https://akademik-stroy.ru/wp-content/uploads/materials/ne-uteplennaya.jpg [area_modifier] => 120.88 [parent_name] => Отмостка [parent_id] => 22 [material_sum] => 275244 [work_sum] => 201567 [total_sum] => 476811 [total_days] => 10 [display_material_sum] => 275 244 [display_work_sum] => 201 567 [display_total_sum] => 476 811 ) 1
476 811
Работа:201 567
Материалы:275 244
Дни:10
Дренаж вокруг дома
stdClass Object ( [id] => 45 [attribute_id] => 23 [name] => Нет [material_modifier] => 1 [work_modifier] => 1 [options] => Array ( ) [days] => [0] [material_price] => [0] [work_price] => [0] [image] => https://akademik-stroy.ru/wp-content/uploads/materials/drenazh-2.jpg [area_modifier] => 120.88 [parent_name] => Дренаж вокруг дома [parent_id] => 23 [material_sum] => 0 [work_sum] => 0 [total_sum] => 0 [total_days] => 0 [display_material_sum] => 0 [display_work_sum] => 0 [display_total_sum] => 0 ) 1
0
Работа:0
Материалы:0
Дни:0
stdClass Object ( [id] => 46 [attribute_id] => 23 [name] => Есть [material_modifier] => 1 [work_modifier] => 1 [options] => Array ( ) [days] => [5] [material_price] => [2366] [work_price] => [1911] [image] => https://akademik-stroy.ru/wp-content/uploads/materials/drenazh-2.jpg [area_modifier] => 120.88 [parent_name] => Дренаж вокруг дома [parent_id] => 23 [material_sum] => 394683 [work_sum] => 265652 [total_sum] => 660335 [total_days] => 5 [display_material_sum] => 394 683 [display_work_sum] => 265 652 [display_total_sum] => 660 335 ) 1
660 335
Работа:265 652
Материалы:394 683
Дни:5
Автономная канализация (септики)
stdClass Object ( [id] => 47 [attribute_id] => 24 [name] => Нет [material_modifier] => 1 [work_modifier] => 1 [options] => Array ( ) [days] => [0] [material_price] => [0] [work_price] => [0] [image] => https://akademik-stroy.ru/wp-content/uploads/materials/septik.jpg [area_modifier] => 1 [parent_name] => Автономная канализация (септики) [parent_id] => 24 [material_sum] => 0 [work_sum] => 0 [total_sum] => 0 [total_days] => 0 [display_material_sum] => 0 [display_work_sum] => 0 [display_total_sum] => 0 ) 1
0
Работа:0
Материалы:0
Дни:0
stdClass Object ( [id] => 48 [attribute_id] => 24 [name] => Есть [material_modifier] => 1 [work_modifier] => 1 [options] => Array ( [0] => Для дачи на 4 человека [1] => Для дома на 5 человек [2] => Для дома на 6 человек [3] => Для дома на 7 человек [4] => Для дома на 10 человек ) [days] => [7,7,7,8,8] [material_price] => [196340,220500,240940,264200,293340] [work_price] => [50000,55000,60500,66550,73206] [image] => https://akademik-stroy.ru/wp-content/uploads/materials/septik.jpg [area_modifier] => 1 [parent_name] => Автономная канализация (септики) [parent_id] => 24 [material_sum] => 270949 [work_sum] => 57500 [total_sum] => 328449 [total_days] => 7 [display_material_sum] => 270 949 [display_work_sum] => 57 500 [display_total_sum] => 328 449 ) 1
328 449
Работа:57 500
Материалы:270 949
Дни:7
Внутренние (не несущие) перегородки
stdClass Object ( [id] => 49 [attribute_id] => 25 [name] => Нет [material_modifier] => 1 [work_modifier] => 1 [options] => Array ( ) [days] => [0] [material_price] => [0] [work_price] => [0] [image] => https://akademik-stroy.ru/wp-content/uploads/materials/gkl.jpg [area_modifier] => 120.88 [parent_name] => Внутренние (не несущие) перегородки [parent_id] => 25 [material_sum] => 0 [work_sum] => 0 [total_sum] => 0 [total_days] => 0 [display_material_sum] => 0 [display_work_sum] => 0 [display_total_sum] => 0 ) 1
0
Работа:0
Материалы:0
Дни:0
stdClass Object ( [id] => 147 [attribute_id] => 25 [name] => Каркасно-обшивные [material_modifier] => 1 [work_modifier] => 1 [options] => Array ( [0] => 75 мм (без шумоизоляции) [1] => 75 мм (с шумоизоляцией) ) [days] => [11,11] [material_price] => [580,970] [work_price] => [380,570] [image] => https://akademik-stroy.ru/wp-content/uploads/materials/gkl.jpg [area_modifier] => 120.88 [parent_name] => Внутренние (не несущие) перегородки [parent_id] => 25 [material_sum] => 96752 [work_sum] => 52825 [total_sum] => 149577 [total_days] => 11 [display_material_sum] => 96 752 [display_work_sum] => 52 825 [display_total_sum] => 149 577 ) 1
149 577
Работа:52 825
Материалы:96 752
Дни:11
stdClass Object ( [id] => 148 [attribute_id] => 25 [name] => Пазогребневые [material_modifier] => 1 [work_modifier] => 1 [options] => Array ( [0] => 80 мм [1] => 100 мм ) [days] => [5,5] [material_price] => [1022,1313] [work_price] => [600,700] [image] => https://akademik-stroy.ru/wp-content/uploads/materials/pazogrebnevye-bloki.jpg [area_modifier] => 120.88 [parent_name] => Внутренние (не несущие) перегородки [parent_id] => 25 [material_sum] => 170484 [work_sum] => 83407 [total_sum] => 253891 [total_days] => 5 [display_material_sum] => 170 484 [display_work_sum] => 83 407 [display_total_sum] => 253 891 ) 1
253 891
Работа:83 407
Материалы:170 484
Дни:5
stdClass Object ( [id] => 149 [attribute_id] => 25 [name] => Газобетонные [material_modifier] => 1 [work_modifier] => 1 [options] => Array ( [0] => 100 мм [1] => 200 мм ) [days] => [11,11] [material_price] => [1160,1920] [work_price] => [700,900] [image] => https://akademik-stroy.ru/wp-content/uploads/materials/gazobeton-2.jpg [area_modifier] => 120.88 [parent_name] => Внутренние (не несущие) перегородки [parent_id] => 25 [material_sum] => 193505 [work_sum] => 97308 [total_sum] => 290813 [total_days] => 11 [display_material_sum] => 193 505 [display_work_sum] => 97 308 [display_total_sum] => 290 813 ) 1
290 813
Работа:97 308
Материалы:193 505
Дни:11
stdClass Object ( [id] => 150 [attribute_id] => 25 [name] => Кирпичные [material_modifier] => 1 [work_modifier] => 1 [options] => Array ( [0] => 120 мм [1] => 250 мм [2] => 360 мм ) [days] => [7,7,7] [material_price] => [1785,3570,5355] [work_price] => [900,1600,1800] [image] => https://akademik-stroy.ru/wp-content/uploads/materials/kirpich-1.jpg [area_modifier] => 120.88 [parent_name] => Внутренние (не несущие) перегородки [parent_id] => 25 [material_sum] => 297764 [work_sum] => 125111 [total_sum] => 422875 [total_days] => 7 [display_material_sum] => 297 764 [display_work_sum] => 125 111 [display_total_sum] => 422 875 ) 1
422 875
Работа:125 111
Материалы:297 764
Дни:7
Электрика
stdClass Object ( [id] => 55 [attribute_id] => 28 [name] => Нет [material_modifier] => 1 [work_modifier] => 1 [options] => Array ( ) [days] => [0] [material_price] => [0] [work_price] => [0] [image] => https://akademik-stroy.ru/wp-content/uploads/materials/ehlektrika.jpg [area_modifier] => 98.09 [parent_name] => Электрика [parent_id] => 28 [material_sum] => 0 [work_sum] => 0 [total_sum] => 0 [total_days] => 0 [display_material_sum] => 0 [display_work_sum] => 0 [display_total_sum] => 0 ) 1
0
Работа:0
Материалы:0
Дни:0
stdClass Object ( [id] => 56 [attribute_id] => 28 [name] => Есть [material_modifier] => 1 [work_modifier] => 1 [options] => Array ( ) [days] => [10] [material_price] => [650] [work_price] => [950] [image] => https://akademik-stroy.ru/wp-content/uploads/materials/ehlektrika.jpg [area_modifier] => 98.09 [parent_name] => Электрика [parent_id] => 28 [material_sum] => 87987 [work_sum] => 107163 [total_sum] => 195150 [total_days] => 10 [display_material_sum] => 87 987 [display_work_sum] => 107 163 [display_total_sum] => 195 150 ) 1
195 150
Работа:107 163
Материалы:87 987
Дни:10
Сантехника, канализация в доме
stdClass Object ( [id] => 57 [attribute_id] => 29 [name] => Нет [material_modifier] => 1 [work_modifier] => 1 [options] => Array ( ) [days] => [0] [material_price] => [0] [work_price] => [0] [image] => https://akademik-stroy.ru/wp-content/uploads/materials/santekhnika-kanalizaciya-1.jpg [area_modifier] => 98.09 [parent_name] => Сантехника, канализация в доме [parent_id] => 29 [material_sum] => 0 [work_sum] => 0 [total_sum] => 0 [total_days] => 0 [display_material_sum] => 0 [display_work_sum] => 0 [display_total_sum] => 0 ) 1
0
Работа:0
Материалы:0
Дни:0
stdClass Object ( [id] => 58 [attribute_id] => 29 [name] => Есть [material_modifier] => 1 [work_modifier] => 1 [options] => Array ( ) [days] => [10] [material_price] => [600] [work_price] => [730] [image] => https://akademik-stroy.ru/wp-content/uploads/materials/santekhnika-kanalizaciya-1.jpg [area_modifier] => 98.09 [parent_name] => Сантехника, канализация в доме [parent_id] => 29 [material_sum] => 81219 [work_sum] => 82347 [total_sum] => 163566 [total_days] => 10 [display_material_sum] => 81 219 [display_work_sum] => 82 347 [display_total_sum] => 163 566 ) 1
163 566
Работа:82 347
Материалы:81 219
Дни:10
Отопление
stdClass Object ( [id] => 59 [attribute_id] => 30 [name] => Нет [material_modifier] => 1 [work_modifier] => 1 [options] => Array ( ) [days] => [0] [material_price] => [0] [work_price] => [0] [image] => https://akademik-stroy.ru/wp-content/uploads/materials/otoplenie-1.jpg [area_modifier] => 98.09 [parent_name] => Отопление [parent_id] => 30 [material_sum] => 0 [work_sum] => 0 [total_sum] => 0 [total_days] => 0 [display_material_sum] => 0 [display_work_sum] => 0 [display_total_sum] => 0 ) 1
0
Работа:0
Материалы:0
Дни:0
stdClass Object ( [id] => 60 [attribute_id] => 30 [name] => Есть [material_modifier] => 1 [work_modifier] => 1 [options] => Array ( ) [days] => [5] [material_price] => [610] [work_price] => [560] [image] => https://akademik-stroy.ru/wp-content/uploads/materials/otoplenie-1.jpg [area_modifier] => 98.09 [parent_name] => Отопление [parent_id] => 30 [material_sum] => 82572 [work_sum] => 63170 [total_sum] => 145742 [total_days] => 5 [display_material_sum] => 82 572 [display_work_sum] => 63 170 [display_total_sum] => 145 742 ) 1
145 742
Работа:63 170
Материалы:82 572
Дни:5
Теплые полы
stdClass Object ( [id] => 61 [attribute_id] => 31 [name] => Нет [material_modifier] => 1 [work_modifier] => 1 [options] => Array ( ) [days] => [0] [material_price] => [0] [work_price] => [0] [image] => https://akademik-stroy.ru/wp-content/uploads/materials/vodyanye.jpg [area_modifier] => 30 [parent_name] => Теплые полы [parent_id] => 31 [material_sum] => 0 [work_sum] => 0 [total_sum] => 0 [total_days] => 0 [display_material_sum] => 0 [display_work_sum] => 0 [display_total_sum] => 0 ) 1
0
Работа:0
Материалы:0
Дни:0
stdClass Object ( [id] => 151 [attribute_id] => 31 [name] => Водяные [material_modifier] => 1 [work_modifier] => 1 [options] => Array ( ) [days] => [9] [material_price] => [10200] [work_price] => [2500] [image] => https://akademik-stroy.ru/wp-content/uploads/materials/vodyanye.jpg [area_modifier] => 30 [parent_name] => Теплые полы [parent_id] => 31 [material_sum] => 422280 [work_sum] => 86250 [total_sum] => 508530 [total_days] => 9 [display_material_sum] => 422 280 [display_work_sum] => 86 250 [display_total_sum] => 508 530 ) 1
508 530
Работа:86 250
Материалы:422 280
Дни:9
stdClass Object ( [id] => 152 [attribute_id] => 31 [name] => Электро [material_modifier] => 1 [work_modifier] => 1 [options] => Array ( ) [days] => [5] [material_price] => [6300] [work_price] => [1500] [image] => https://akademik-stroy.ru/wp-content/uploads/materials/ehlektricheskij.jpg [area_modifier] => 30 [parent_name] => Теплые полы [parent_id] => 31 [material_sum] => 260820 [work_sum] => 51750 [total_sum] => 312570 [total_days] => 5 [display_material_sum] => 260 820 [display_work_sum] => 51 750 [display_total_sum] => 312 570 ) 1
312 570
Работа:51 750
Материалы:260 820
Дни:5
Черновая отделка стен
stdClass Object ( [id] => 63 [attribute_id] => 32 [name] => Нет [material_modifier] => 1 [work_modifier] => 1 [options] => Array ( ) [days] => [0] [material_price] => [0] [work_price] => [0] [image] => https://akademik-stroy.ru/wp-content/uploads/materials/shtukaturka-shpatlevka-1.jpg [area_modifier] => 98.09 [parent_name] => Черновая отделка стен [parent_id] => 32 [material_sum] => 0 [work_sum] => 0 [total_sum] => 0 [total_days] => 0 [display_material_sum] => 0 [display_work_sum] => 0 [display_total_sum] => 0 ) 1
0
Работа:0
Материалы:0
Дни:0
stdClass Object ( [id] => 153 [attribute_id] => 32 [name] => Штукатурка и шпатлевка [material_modifier] => 1 [work_modifier] => 1 [options] => Array ( ) [days] => [20] [material_price] => [1850] [work_price] => [2600] [image] => https://akademik-stroy.ru/wp-content/uploads/materials/shtukaturka-shpatlevka-1.jpg [area_modifier] => 98.09 [parent_name] => Черновая отделка стен [parent_id] => 32 [material_sum] => 250424 [work_sum] => 293289 [total_sum] => 543713 [total_days] => 20 [display_material_sum] => 250 424 [display_work_sum] => 293 289 [display_total_sum] => 543 713 ) 1
543 713
Работа:293 289
Материалы:250 424
Дни:20
stdClass Object ( [id] => 154 [attribute_id] => 32 [name] => Гипсокортон на стены [material_modifier] => 1 [work_modifier] => 1 [options] => Array ( ) [days] => [15] [material_price] => [950] [work_price] => [2100] [image] => https://akademik-stroy.ru/wp-content/uploads/materials/gkl-1.jpg [area_modifier] => 98.09 [parent_name] => Черновая отделка стен [parent_id] => 32 [material_sum] => 128596 [work_sum] => 236887 [total_sum] => 365483 [total_days] => 15 [display_material_sum] => 128 596 [display_work_sum] => 236 887 [display_total_sum] => 365 483 ) 1
365 483
Работа:236 887
Материалы:128 596
Дни:15
stdClass Object ( [id] => 155 [attribute_id] => 32 [name] => Вагонка [material_modifier] => 1 [work_modifier] => 1 [options] => Array ( ) [days] => [15] [material_price] => [1250] [work_price] => [950] [image] => https://akademik-stroy.ru/wp-content/uploads/materials/vagonka.jpg [area_modifier] => 98.09 [parent_name] => Черновая отделка стен [parent_id] => 32 [material_sum] => 169205 [work_sum] => 107163 [total_sum] => 276368 [total_days] => 15 [display_material_sum] => 169 205 [display_work_sum] => 107 163 [display_total_sum] => 276 368 ) 1
276 368
Работа:107 163
Материалы:169 205
Дни:15
Черновая отделка полов
stdClass Object ( [id] => 65 [attribute_id] => 33 [name] => Нет [material_modifier] => 1 [work_modifier] => 1 [options] => Array ( ) [days] => [0] [material_price] => [0] [work_price] => [0] [image] => https://akademik-stroy.ru/wp-content/uploads/materials/styazhka.jpg [area_modifier] => 98.09 [parent_name] => Черновая отделка полов [parent_id] => 33 [material_sum] => 0 [work_sum] => 0 [total_sum] => 0 [total_days] => 0 [display_material_sum] => 0 [display_work_sum] => 0 [display_total_sum] => 0 ) 1
0
Работа:0
Материалы:0
Дни:0
stdClass Object ( [id] => 156 [attribute_id] => 33 [name] => Стяжка + наливные полы [material_modifier] => 1 [work_modifier] => 1 [options] => Array ( ) [days] => [10] [material_price] => [1000] [work_price] => [900] [image] => https://akademik-stroy.ru/wp-content/uploads/materials/styazhka.jpg [area_modifier] => 98.09 [parent_name] => Черновая отделка полов [parent_id] => 33 [material_sum] => 135364 [work_sum] => 101523 [total_sum] => 236887 [total_days] => 10 [display_material_sum] => 135 364 [display_work_sum] => 101 523 [display_total_sum] => 236 887 ) 1
236 887
Работа:101 523
Материалы:135 364
Дни:10
stdClass Object ( [id] => 157 [attribute_id] => 33 [name] => ОСБ на пол [material_modifier] => 1 [work_modifier] => 1 [options] => Array ( ) [days] => [7] [material_price] => [580] [work_price] => [350] [image] => https://akademik-stroy.ru/wp-content/uploads/materials/osb-1.jpg [area_modifier] => 98.09 [parent_name] => Черновая отделка полов [parent_id] => 33 [material_sum] => 78511 [work_sum] => 39481 [total_sum] => 117992 [total_days] => 7 [display_material_sum] => 78 511 [display_work_sum] => 39 481 [display_total_sum] => 117 992 ) 1
117 992
Работа:39 481
Материалы:78 511
Дни:7
Чистовая отделка стен и полов
stdClass Object ( [id] => 67 [attribute_id] => 34 [name] => Нет [material_modifier] => 1 [work_modifier] => 1 [options] => Array ( ) [days] => [0] [material_price] => [0] [work_price] => [0] [image] => https://akademik-stroy.ru/wp-content/uploads/materials/chistovaya-otdelka.jpg [area_modifier] => 98.09 [parent_name] => Чистовая отделка стен и полов [parent_id] => 34 [material_sum] => 0 [work_sum] => 0 [total_sum] => 0 [total_days] => 0 [display_material_sum] => 0 [display_work_sum] => 0 [display_total_sum] => 0 ) 1
0
Работа:0
Материалы:0
Дни:0
stdClass Object ( [id] => 68 [attribute_id] => 34 [name] => Есть [material_modifier] => 1 [work_modifier] => 1 [options] => Array ( ) [days] => [50] [material_price] => [6000] [work_price] => [3500] [image] => https://akademik-stroy.ru/wp-content/uploads/materials/chistovaya-otdelka.jpg [area_modifier] => 98.09 [parent_name] => Чистовая отделка стен и полов [parent_id] => 34 [material_sum] => 812185 [work_sum] => 394812 [total_sum] => 1206997 [total_days] => 50 [display_material_sum] => 812 185 [display_work_sum] => 394 812 [display_total_sum] => 1 206 997 ) 1
1 206 997
Работа:394 812
Материалы:812 185
Дни:50
Отделка потолка
stdClass Object ( [id] => 69 [attribute_id] => 35 [name] => Нет [material_modifier] => 1 [work_modifier] => 1 [options] => Array ( ) [days] => [0] [material_price] => [0] [work_price] => [0] [image] => https://akademik-stroy.ru/wp-content/uploads/materials/mnogourovnevyj-gkl.jpg [area_modifier] => 98.09 [parent_name] => Отделка потолка [parent_id] => 35 [material_sum] => 0 [work_sum] => 0 [total_sum] => 0 [total_days] => 0 [display_material_sum] => 0 [display_work_sum] => 0 [display_total_sum] => 0 ) 1
0
Работа:0
Материалы:0
Дни:0
stdClass Object ( [id] => 70 [attribute_id] => 35 [name] => Есть [material_modifier] => 1 [work_modifier] => 1 [options] => Array ( [0] => Многоуровневый потолок из гипсокартона [1] => Многоуровневый потолок из гипсокартона и натяжного потолка [2] => Одноуровневый потолок из гипсокартона [3] => Одноуровневый натяжной потолок ) [days] => [10,10,1,1] [material_price] => [900,700,700,600] [work_price] => [1000,800,500,300] [image] => https://akademik-stroy.ru/wp-content/uploads/materials/mnogourovnevyj-gkl.jpg [area_modifier] => 98.09 [parent_name] => Отделка потолка [parent_id] => 35 [material_sum] => 121828 [work_sum] => 112804 [total_sum] => 234632 [total_days] => 10 [display_material_sum] => 121 828 [display_work_sum] => 112 804 [display_total_sum] => 234 632 ) 1
234 632
Работа:112 804
Материалы:121 828
Дни:10

Преимущества работы с нами

icon

7 этапов оплаты

icon

Независимый строительный надзор

icon

Экологически чистые материалы

icon

16 лет гарантии

icon

Онлайн-кабинет с веб-камерой

icon

Строители с опытом более 15 лет

icon

Собственное производство

Одноэтажный дом 14х9 м — идеальный выбор для семьи в Москве

Если вы мечтаете о собственном уютном доме, где каждая деталь продумана для комфорта, то одноэтажный дом размером 14 на 9 метров — это как раз тот вариант, который стоит рассмотреть. Современный дизайн, продуманная планировка и оптимальная площадь делают этот дом настоящим удовольствием для жизни. Компания «Академик Строй» предлагает использовать готовый проект такого дома в Москве с выгодными условиями заказа и разумной ценой, которая порадует любого покупателя. В этом доме площадью 98,09 м², несмотря на компактные размеры, есть всё необходимое для комфортной жизни большой семьи — три спальни, просторная гостиная с камином, удобный санузел и даже терраса для отдыха на свежем воздухе. Удобная планировка в сочетании с качественными материалами и строительными технологиями обеспечат долговечность и уют дома на долгие годы.

Характеристики дома 14x9 — что важно знать перед заказом проекта

Перед тем как заказать проект, важно понять основные параметры, которые влияют на комфорт и стоимость строительства. Рассмотрим ключевые характеристики, предложенные «Академик Строй» для вашего будущего дома.

Параметры и особенности одноэтажного дома 14х9 м

Параметр Значение
Полезная площадь 98,09 м²
Размеры дома 14 x 9 м
Этажей 1 этаж
Количество спален 3
Количество санузлов 1
Жилая площадь 66,22 м²
Площадь застройки 125,23 м²
Угол наклона крыши 25°
Высота здания 5,54 м
Минимальная ширина участка 22,28 м
Минимальная длина участка 16,67 м
Площадь м² 130
Тип крыши Двускатная
Опции Камин, терраса
Каждый параметр влияет на организацию пространства внутри и на внешний вид дома. Особое внимание стоит уделить тому, что дом одноэтажный — это очень удобно для семей с маленькими детьми, пожилыми людьми, а также для тех, кто не хочет или не может использовать лестницы.

Удобства и функциональность: три спальни и одна ванная комната

Три спальни — это великолепный вариант для семьи среднего размера, позволяющий каждому члену семьи иметь собственное личное пространство. Если у вас есть дети, то можно выделить комнаты для каждого и даже оборудовать гостевую или рабочий кабинет. Общая ванная комната одна, но она достаточно просторная и спроектирована с учетом всех современных стандартов. Жилая площадь в 66,22 м² — это оптимальное сочетание жилых комнат и пространства для общего пользования. В доме имеется просторная гостиная, которая может служить центром жизни и отдыха всей семьи.

Планировка дома: почему это важно и каково её устройство

Одно из главных преимуществ готовых проектов, предлагаемым «Академик Строй», — это тщательно продуманная планировка. Заказать проект одноэтажного дома 14х9 в Москве — значит получить эргономичное распределение всех комнат и зон с учётом современных требований комфорта.

Особенности планировки

  • Три спальни расположены так, чтобы обеспечить максимальную конфиденциальность и тишину.
  • Гостиная и кухня объединены или хотя бы находятся рядом, что очень удобно для семейных обедов и приема гостей.
  • Единый санузел расположен в удобной части дома, чтобы быть доступным для всех членов семьи.
  • Камин в гостиной добавляет уюта и создает атмосферу тепла и домашнего очага.
  • Терраса расширяет жилое пространство и становится отличным местом для отдыха на свежем воздухе в теплое время года.
Такое сочетание позволяет использовать пространство рационально и сделать каждую комнату максимально комфортной. Умелое размещение окон обеспечивает хороший естественный свет, а двускатная крыша с углом наклона 25° помогает избежать проблем с осадками и придаёт дому классический, эстетически приятный внешний вид.

Преимущества одноэтажного дома

Традиционно одноэтажные дома ценятся за удобство и простоту эксплуатации. Когда всё пространство расположено на одном уровне, нет необходимости переступать пороги лестниц, что делает дом комфортным для людей любого возраста. Также такие дома легче адаптировать под нужды пожилых или маломобильных жителей. Кроме того, одноэтажный дом легко вписывается в небольшой участок земли, который зачастую предлагается под застройку в Москве и Московской области. Минимальная ширина и длина участка, предусмотренная проектом — 22,28 м и 16,67 м — говорят о том, что такой дом не требует огромных площадей и подойдет семьям, ценящим качество и комфорт, а не излишнюю роскошь.

Особенности экстерьера: крыша, высота и общие размеры

Нельзя упускать из виду внешний вид будущего дома, ведь это лицо вашего участка и то, что создаёт первое впечатление у гостей и соседей. Важнейшие моменты — конструкция крыши, высота здания и площадь застройки.

Угол наклона и тип крыши: функциональность и стиль

Двускатная крыша с углом наклона 25° — классика для частных домов на территории России. Такой угол обеспечивает эффективный отвод снега и дождевой воды, что предотвращает возникновение протечек и ошибок в конструкции. Этот вариант крыши гарантирует долговечность, а классический внешний вид будет всегда в моде.

Высота здания — оптимальный показатель комфорта

Высота здания в 5,54 м отлично подходит для одноэтажного дома с двускатной крышей. Не слишком высокий дом экономит на материалах и эксплуатации, но при этом внутри создаётся ощущение простора и воздуха. Высокие потолки делают комнаты светлыми и создают более приятную атмосферу.

Площадь застройки и планировка участка

Площадь застройки в 125,23 м² позволяет оставить достаточно места на участке для сада, зоны отдыха или даже будущего расширения дома. Проект рассчитан на участок минимального размера 22,28 × 16,67 м, что вполне реально найти в московском пригороде.
Параметр участка Минимальный размер
Ширина 22,28 м
Длина 16,67 м
Такой участок не только предоставляет комфортную площадь для дома, но и оставляет место для дополнительного ландшафтного дизайна — детской площадки, огорода или просто зоны для отдыха.

Опции и дополнительные преимущества: камин и терраса

При заказе проекта одноэтажного дома 14х9 от «Академик Строй», вы получаете не только базовую комфортную планировку, но и дополнительные опции, которые сделают ваш дом по-настоящему уютным и привлекательным.

Камин — сердце дома

Камин в гостиной — это не только источник тепла, но и важный элемент интерьера. Его присутствие создаёт неповторимую атмосферу уюта в холодное время года, позволяя проводить вечера в кругу семьи или с друзьями за чашкой чая. Кроме практической функции, камин удачно вписывается в общий стиль дома, придаёт ему особую эстетику и привносит классическую нотку.

Терраса — летний оазис

Терраса — это замечательное дополнение к жилой площади, которая позволяет насладиться природой, отдыхать и принимать гостей на свежем воздухе. Это пространство можно оформить под зону барбекю, уголок для чтения или даже мини-огород с цветами и зеленью. При проектировании эта терраса учитывается как условно закрытая часть дома, что обеспечивает визуальное единство и гармонию внешнего вида.

Почему стоит заказать проект именно у «Академик Строй»

В Москве и области часто сложно выбрать компанию, предлагающую качественные и доступные проекты домов. «Академик Строй» заслужила репутацию надёжного партнёра, предлагающего комплексные решения для частного домостроения. Вот ключевые причины, почему стоит доверять именно им.

Профессионализм и опыт

Компания специализируется на строительстве частных домов более 10 лет, и все проекты проходят тщательную проверку и адаптацию под требования московского региона. Профессиональные архитекторы и инженеры учитывают современные стандарты строительства, климатические условия и особенности участка.

Оптимальная цена и прозрачность договоров

Цена на проектирование и строительство формируется открыто, без скрытых платежей. Конкурентное предложение позволит вам приобрести качественный проект одноэтажного дома 14х9 — 98.09 м² без переплат и утомительных согласований.

Индивидуальный подход к каждому клиенту

Независимо от того, заказываете ли вы стандартный проект или хотите внести изменения, специалисты «Академик Строй» готовы учесть все ваши пожелания и предложить оптимальные решения. Связаться с компанией можно по телефону +7 (980) 800-47-93, где всегда проконсультируют и помогут сделать правильный выбор.

Как заказать проект дома 14x9 — основные шаги

Если вы готовы сделать решительный шаг и начать строительство своей мечты, то процесс заказа проекта — это простая, но важная процедура.

Пошаговая инструкция

  1. Свяжитесь с компанией по телефону или через онлайн-форму, чтобы узнать условия и получить консультацию относительно проекта и стоимости.
  2. Обсудите детали проекта: количество комнат, дополнительные опции (например, камин и терраса), сроки и бюджет.
  3. Подпишите договор, в котором будут предусмотрены все технические и юридические аспекты сотрудничества.
  4. Получите полный пакет документации
  5. Начинайте строительство, опираясь на проект и рекомендации специалистов.

Советы по успешному заказу

  • Заранее подготовьте информацию о своём участке, включая его размеры и рельеф.
  • Определитесь с вашими основными потребностями и приоритетами для дома — это поможет избежать переделок.
  • Внимательно изучайте все документы и спрашивайте, если что-то непонятно.
  • Следите за ходом работ и регулярно консультируйтесь с командой строителей.

Сравнение одноэтажного дома 14x9 с другими вариантами на рынке Москвы

Площадь дома 98,09 м² оказывается очень удачным вариантом по соотношению цены, размера и комфорта. Давайте посмотрим, чем он отличается от других распространенных вариантов.
Параметр Дом 14x9 (98,09 м²) Дом 10x10 (100 м²) Дом 15x10 (150 м²)
Этажность 1 1 2
Количество спален 3 2 4
Наличие камина Да Нет Опционально
Площадь застройки 125,23 м² 100 м² 150 м²
Минимальный размер участка (длина x ширина) 16,67 x 22,28 м 18 x 18 м 20 x 25 м
Как видно, дом 14x9 — это золотая середина: семья из трёх-четырёх человек получает больше комнат и пространства, чем в доме квадратной формы 10x10, и при этом обходится без необходимости покупать большой и дорогой участок, который потребуется для домов побольше.

Важность правильного выбора материала и строительства по проекту

Вы можете заказать только проект или сразу полностью доверить строительство компании «Академик Строй». Важно помнить, что экономить нужно разумно — на материалах не стоит, а вот грамотный выбор проекта и планировки позволяет существенно сократить расходы без потери комфорта.

Лучшие материалы для одноэтажных домов

Для постройки дома с таким размером и площадью оптимально подходят следующие материалы:
  • Газобетон или пеноблоки — легкие, теплые и быстро возводимые материалы.
  • Керамический кирпич — классика с отличными теплоизолирующими качествами и долговечностью.
  • Деревянный каркас — экологичный и теплоэффективный вариант, особенно если хочется сделать дом с натуральным интерьером.

Почему важен проект и его точное выполнение

Правильный проект — это не просто план на бумаге, а руководство для строителей и гарантия того, что вы получите именно тот дом, за который платите. Ошибки в проектировании ведут к перерасходу материалов, потере времени и неудобствам после заселения. Компания «Академик Строй» располагает всеми необходимыми ресурсами для того, чтобы воплотить ваш дом из проекта в реальность максимально точно и качественно.

Стоит ли купить проект дома 14х9 - 98.09 м² в Москве прямо сейчас?

Если вы готовы сделать шаг к мечте о собственном доме, то выгодное предложение от «Академик Строй» именно сейчас — отличная возможность начать строительство без проволочек. Проект одноэтажного дома 14х9 с оптимальной площадью и классической функциональностью станет прекрасной основой для уюта и счастья вашей семьи. Заманчивые условия — разумная цена, проекты адаптированные под московские условия и возможность оформить заказ быстро и просто — всё это говорит о том, что такой дом — реальный выбор для современного жителя столицы.

Контакты для заказа

  • Телефон: +7 (980) 800-47-93
  • Компания: Академик Строй
  • Услуга: Заказать проект одноэтажного дома 14х9 — 98.09 м²
Позвоните прямо сейчас и получите профессиональную консультацию, чтобы начать путь к вашему новому дому.

Итог

Одноэтажный дом 14 на 9 метров площадью 98,09 м² — это современное решение для тех, кто ищет удобство, функциональность и доступность. Три спальни, камин в гостиной, двускатная крыша с правильным углом наклона, продуманная планировка и возможность отдыха на террасе — всё продумано для вашей комфортной жизни в московском регионе. Компания «Академик Строй» предлагает выгодное сотрудничество по проектированию и строительству, построенное на доверии, опыте и профессионализме. Не упустите шанс воплотить свою мечту в жизнь — теперь это гораздо проще, чем кажется!