Двухэтажный дом 12х9: оптимальное решение для комфортной жизни
Проект дома – это не просто чертежи и размеры, а основа будущего уюта и функциональности вашего жилья. Сегодня мы подробно рассмотрим двухэтажный дом размером 12 на 9 метров с полезной площадью 106,97 м², который сочетает в себе комфорт, стиль и продуманную эргономику. Такой дом подходит как для семей с детьми, так и для тех, кто ценит простор и возможность иметь отдельные помещения под разные нужды. Разберём ключевые характеристики, планировку и особенности, которые делают этот объект одним из самых востребованных вариантов в частном строительстве.
Почему выбирают двухэтажные дома площадью около 100 м²?
Двухэтажные дома пользуются особой популярностью благодаря эффектному сочетанию компактных размеров и удобного распределения пространства. Площадь порядка 100 м² считается оптимальной для комфортного размещения семьи из 3-5 человек. Такой дом не требует слишком большого участка земли, при этом не ограничивает в планировочных решениях.
Проект 12х9 метров предполагает разумную и экономичную застройку с максимальной функциональностью. В таком доме легко обустроить необходимые жилые и вспомогательные помещения, не теряя при этом ощущения простора и уюта.
Технические характеристики дома 12 x 9 м
Перед началом строительства важно изучить основные параметры и понять, как они влияют на итоговый внешний вид и эксплуатацию дома. Ниже представлены ключевые характеристики данного проекта:
| Параметр | Значение |
|---|---|
| Полезная площадь | 106,97 м² |
| Жилая площадь | 100,78 м² |
| Размеры дома | 12 x 9 м |
| Этажность | 2 этажа |
| Количество спален | 4 |
| Количество санузлов | 2 |
| Площадь застройки | 80 м² |
| Площадь нетто | 127,13 м² |
| Объем брутто | 390 м³ |
| Площадь крыши | 201 м² |
| Угол наклона крыши | 43° |
| Высота здания | 8,22 м |
| Минимальные размеры участка | 20 м (ширина) x 17,45 м (длина) |
| Высота аттиковой стены | 0,60 м |
| Тип крыши | Двускатная крыша |
| Опции | Камин, комната на первом этаже, терраса |
Здесь интересен момент с площадью застройки 80 м², что существенно меньше общей площади дома. Это связано с особенностями архитектуры – двухэтажный дом позволяет значительно уменьшить занимаемую площадь участка при сохранении большого жилого пространства. Благодаря высоте здания в 8,22 метра и продуманной крыше, дом выглядит элегантно и гармонично вписывается в ландшафт.
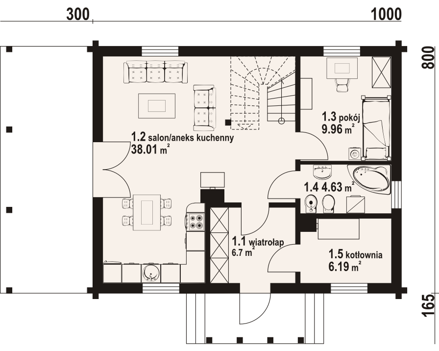
Планировка и функциональность помещений
Планировка – основной элемент, который определяет комфорт проживания. В доме 12х9 расположено достойное количество комнат для семьи из четырех человек и даже больше благодаря четырём спальням и двум санузлам. Такой проект позволяет грамотно зонировать жилое пространство, обеспечивая приватность и удобство.
Первый этаж: зона общения и бытовых функций
На первом этаже традиционно располагается общая зона, включающая просторную гостиную, кухню и столовую, а также дополнительные комнаты. В рассматриваемом доме предусмотрена отдельная комната, которая отлично подойдёт для гостевого размещения, кабинета или даже небольшой мастерской. Среди ключевых особенностей первого этажа — наличие камина, создающего тёплую и уютную атмосферу, особенно в холодный период сезона.
При наличии террасы, которая является одной из опций, можно расширить жилое пространство за счёт открытого, но защищённого от погодных условий пространства. Это идеальный вариант для чаепитий на свежем воздухе или семейных вечеров.
Второй этаж: приватная зона отдыха
Второй этаж предназначен в первую очередь для отдыха. Здесь расположены четыре спальни, что позволяет организовать места для каждого члена семьи, а также принять гостей. Две ванные комнаты на этаже – практичное решение, избавляющее от утренних очередей и обеспечивающее комфорт и спокойно времяпрепровождение для всех жильцов.
Высота аттиковой стены 0,60 метра обеспечивает дополнительное пространство под кровлей, позволяя использовать мансардные помещения для хранения или даже организации рабочих зон. Угол наклона крыши в 43° и двускатная конструкция создают классический симметричный профиль, который исключает застоявшийся воздух и легко справляется с атмосферными осадками.
Архитектурные особенности и внешний вид
Визуальная привлекательность дома во многом определяется его стилем и архитектурным решением. Проект с двускатной крышей и высотой 8,22 метра выглядит одновременно лаконично и представительно. Двускатная крыша не только эстетична, но и функциональна: она препятствует скоплению снега и влаги, что особенно актуально в российских климатических условиях.
Площадь крыши размером 201 м² означает большой потенциал для установки солнечных панелей или декоративных элементов. Высота здания позволяет организовать просторные окна второго этажа, которые будут обеспечивать естественное освещение и визуальное расширение пространства внутри помещений.
Важность минимальных размеров участка
Проект дома требует минимальной ширины участка в 20 метров и длины в 17,45 метра. Эти параметры предоставляют возможность разместить дом с комфортными отступами от границ участка, что обеспечивает конфиденциальность и удобство эксплуатации территории, а также соблюдение требований по пожарной безопасности.
Для многих потенциальных владельцев этот момент имеет особое значение, так как позволяет выбирать землю ближе к городской черте, где площадь участков, как правило, ограничена.
Особенности внутреннего комфорта
Одной из ключевых задач при проектировании частного дома является обеспечение оптимального микроклимата, гармоничного сочетания теплоизоляции и вентиляции. В данном проекте учтены все современные стандарты и материалы, которые обеспечивают энергоэффективность и сниженный уровень шума.
Камин — не только эстетический элемент, но и дополнительный источник тепла, создающий приятную атмосферу в холодное время года. Он становится центром жилой комнаты, вокруг которого собирается семья и гости.
Теплоснабжение и системы инженерии
Проект предусматривает возможность установки современных систем отопления, включая газовые котлы, тёплые полы и интегрированные вентиляционные системы с рекуперацией тепла. Такой подход позволяет сохранить уют и комфорт, уменьшая расходы на энергоносители.
Стоимость строительства и экономическая целесообразность
Одним из значительных факторов выбора дома является его стоимость. Проект двухэтажного дома 12х9 с полезной площадью 106,97 м² оценивается в 4 430 683 рубля. Эта цена учитывает не только сами материалы и стоимость строительства, но и сложность конструкции и качество отделочных работ.
В сравнении с другими проектами с аналогичными характеристиками, этот вариант демонстрирует отличное соотношение цены и качества:
- Площадь дома позволяет использовать все помещения с максимальной функциональностью;
- Оптимальная этажность снижает затраты на фундамент и уменьшает занимаемую площадь участка;
- Высокие технические параметры обеспечивают долговечность и улучшенные эксплуатационные качества;
- Продуманная инфраструктура позволяет легко интегрировать инженерные системы и комфортные опции.
Цена в 4,4 миллиона рублей является привлекательной для сегмента домов с хорошей планировкой и современными техническими решениями. При этом экономия достигается за счёт оптимальной площади застройки, качественного материала и положения дома.
Факторы, влияющие на стоимость
| Фактор | Влияние на стоимость |
|---|---|
| Проект и архитектурные решения | Определяют комплектность, сложность и внешний вид |
| Строительные материалы | Качество и тип материалов существенно влияют на итоговую сумму |
| Техника и инженерные системы | Варианты отопления, канализации и электроснабжения добавляют к стоимости |
| Отделка | Внутренние и наружные отделочные работы формируют эстетическую и эксплуатационную составляющую |
| Опции (камин, терраса) | Дополнительные удобства увеличивают комфорт и влияют на цену |
Практические рекомендации при выборе участка и планировании строительства
Чтобы ваш будущий дом был не только красивым и удобным, но и функциональным, необходимо учитывать несколько важных аспектов при подборе земельного участка и подготовке к строительству.
- Подбор подходящего участка. Минимальные требования – ширина 20 метров и длина 17,45 метра – позволяют найти удобное место в различных районах. Помимо площади важно оценить уровень освещённости, доступ к инженерным коммуникациям, рельеф и окружающую инфраструктуру.
- Расстановка приоритетов. Если в вашей семье важны собственные рабочие кабинеты или комнаты для детей, наличие четырёх спален станет весомым преимуществом. Присутствие двух санузлов значительно облегчает быт большой семьи.
- Планирование коммуникаций. Продумайте заранее расположение отопительных систем, водоснабжения и канализации для максимальной эффективности и минимизации затрат.
- Внешний ландшафт. Используйте террасу и площадку возле дома для организации зоны отдыха. Это позволит расширить функциональность дома и повысить качество жизни.
Обзор основных преимуществ проекта
Подытоживая все рассмотренные аспекты, можно выделить несколько ключевых моментов, которые определяют привлекательность данного проекта двухэтажного дома 12х9 с полезной площадью около 107 м².
- Функциональность. Четыре спальни и два санузла устраивают среднюю и большую семью, не загромождая пространство.
- Разумные габариты. Дом занимает оптимальную площадь участка, оставляя место для сада и организации внешних коммуникаций.
- Эстетика. Двускатная крыша с углом наклона 43°, аккуратная высота и аттиковая стена обеспечивают современный и презентабельный внешний вид.
- Комфорт. Камин и терраса создают уют и дополнительные пространства для отдыха.
- Рациональная цена. Стоимость строительства ниже аналогичных проектов с меньшим функционалом.
Заключая, если вы ищете современный, практичный и стильный дом с разумной ценой, проект 12х9 м с площадью 106,97 м² – это прекрасный выбор. Он соответствует современным требованиям, обеспечивает высокий уровень комфорта и позволяет воплотить мечту о собственном уютном доме с минимальными затратами времени и ресурсов.



