Двухэтажный дом размером 11 на 14 метров: основа комфорта и функциональности
Проектирование и строительство двухэтажного дома размером 11 на 14 метров — это отличное решение для семьи, которая стремится к гармоничному сочетанию просторных помещений и рационального использования земельного участка. Дом с такими габаритами позволяет создать не только вместительное жилое пространство, но и грамотно организовать зоны для отдыха, работы и личной жизни каждого члена семьи.
Планировка двух этажей помогает разделить пространство таким образом, чтобы дом стал максимально удобным — первый этаж более общественный, предназначенный для приема гостей, организации досуга и семейного общения, а второй этаж — личная зона, где располагаются спальни и санузлы. В таком доме хватает места и для хранения, и для организации рабочих кабинетов или мастерских, если это необходимо.
Архитектурные особенности и площадь дома
Размеры дома 11 на 14 метров раскрывают потенциальные возможности для конструкции современного двухэтажного здания. Суммарная площадь весом 321,54 м² демонстрирует, что дом рассчитан на комфортное проживание семьи среднего или крупного состава. Такая площадь позволяет разместить на каждом этаже комнаты разного назначения: гостиную, кухню, столовую, рабочие пространства и зоны отдыха.
Наличие двух этажей придает дому выразительный и статный облик, экономит место на участке и при этом оставляет возможность обустроить вокруг здания ландшафт и зону отдыха на открытом воздухе. Планировка в 11 на 14 метров отлично подходит для создания классического или современного архитектурного стиля, в зависимости от личных предпочтений заказчика.
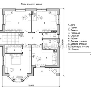
Количество спален и санузлов: баланс комфорта и удобства
В доме предусмотрено три спальни — оптимальное количество для семьи из 4-5 человек. Такой набор жилых комнат позволяет каждому иметь свое личное пространство, необходимое для полноценного отдыха и уединения. Спальни могут быть различного размера и расположены на втором этаже, что обеспечивает тишину и уединенность от общественных зон первого этажа.
Четыре санузла — это большое удобство для повседневной жизни, особенно если дом часто посещают гости или в нем проживают несколько поколений. Такая организация санузлов исключает очереди утром и вечером, а также повышает гигиенические стандарты и комфорт всей семьи. Санузлы могут быть размещены как на первом, так и на втором этажах, близко к спальням и общественным зонам.
Преимущества двухэтажного дома без гаража
Отсутствие встроенного гаража освобождает полезную площадь дома, позволяя более гибко использовать внутреннее пространство. Такой подход расширяет возможности для организации комнат свободного назначения — например, дополнительного кабинета, мастерской, спортивного или игрового зала.
Кроме того, при отказе от гаража появляется возможность обустроить парковочные места на прилегающем участке или рассмотреть вариант возведения отдельной пристройки для автомобилей. Это позволяет более рационально распределить площадь участка и контролировать визуальное восприятие дома с улицы, сохраняя современный и чистый архитектурный облик.
Особенности планировки двухэтажного дома 11х14 м
Рассмотрим типичное распределение функциональных зон в доме с параметрами 11 на 14 метров. На первом этаже рационально располагать общие пространства: гостиную, столовую и кухню. Гостиная может быть светлой и просторной, обеспеченной большими окнами, что позволит наполнить помещение естественным светом и создать уютную атмосферу для общения.
Кухня в таком доме должна быть удобной и эргономичной, с возможностью установки современной техники и хранения продуктов. Столовая может располагаться рядом, что делает процесс приготовления и приема пищи максимально комфортным. На первом этаже также возможно размещение гостевого санузла и хозяйственных помещений.
Второй этаж чаще всего предназначается под спальни, в том числе хозяйскую, детские и гостевые комнаты. Здесь удобно располагать санузлы, что обеспечивает приватность и удобство использования. Дополнительно может быть организована зона отдыха или кабинет.
Примерное распределение комнат на этажах
| Этаж | Комнаты / Зоны | Функциональное назначение |
|---|---|---|
| Первый этаж | Гостиная, кухня, столовая, гостевой санузел, хозяйственное помещение | Общественное пространство для приема гостей, приготовления и приема пищи, бытовые нужды |
| Второй этаж | 3 спальни, 3 санузла, кабинет или зона отдыха | Личные зоны, отдых, работа, обеспечение комфорта жильцов |
Материалы и технологии строительства
При возведении двухэтажных домов размером 11 на 14 метров особое внимание уделяется выбору материалов, который влияет не только на внешний вид, но и на эксплуатационные характеристики здания. Классическая кирпичная кладка обеспечивает великолепную теплоизоляцию, устойчивость к ветровым и осадочным нагрузкам, а также создает прочный и долговечный корпус дома.
Альтернативным вариантом может стать каркасное домостроение с утеплителями современного образца, которое позволяет значительно снизить стоимость строительства и сроки возведения здания. Использование современных отделочных материалов и технологий внутренней отделки сделает дом не только красивым, но и комфортным для проживания, с профилактикой сырости и шумов.
Планировка и эргономика: советы по организации пространства
Проектируя дом с размерами 11×14 метров, важно максимально рационально подходить к зонированию помещений. Один из ключевых принципов — разграничение общественных и приватных зон. Гостиная, кухня и столовая должны располагаться на первом этаже, легко доступном для всех жильцов и посетителей. Это создаст комфортное пространство для совместных мероприятий и семейных ужинов.
На втором этаже спальни лучше располагать так, чтобы одна из них была главной, с собственным санузлом. Детские комнаты можно разделить и оборудовать общим или раздельным санузлом. Кабинет или дополнительная комната для хобби будет отличным решением, особенно если в семье есть потребность в домашнем офисе.
Факторы, которые стоит учесть при зонировании:
- Обеспечение удобных проходов и отсутствие лишних коридоров;
- Использование естественного освещения в жилых и рабочих комнатах;
- Максимальное снижение уровня шума между этажами и соседними комнатами;
- Обеспечение комфортных санузлов рядом со спальнями и общественной зоной.
Преимущества двухэтажных домов в плане энергоэффективности и удобства
Двухэтажный дом размером 11х14 м с продуманной планировкой способен обеспечить высокий уровень энергоэффективности. За счет компактной застройки относительно площади, дом быстрее нагревается и сохраняет тепло в зимний период, что значительно снижает траты на отопление. Также вертикальное разделение помещений помогает организовать эффективную вентиляцию и оптимально размещать инженерные коммуникации.
Кроме того, такое архитектурное решение помогает экономить участок, позволяя сохранить место для сада, зоны отдыха и детской площадки. Это делает проживание в доме более комфортным и удобным.
Особенности участка для дома 11 на 14 метров
Продумывая строительство дома с габаритами 11x14 метров, важно учитывать минимальные размеры участка, который позволит не только разместить сам дом, но и предусмотреть инфраструктуру вокруг: дорожки, площадки, ландшафтные решения. Хотя точные минимальные размеры участка зависят от требований местных норм и личных предпочтений, рекомендуемый свободный периметр по бокам дома должен позволять комфортное пространство для обслуживания здания и организации придомовой территории.
Обычно участок с шириной около 20-25 метров и длиной не менее 25-30 метров станет достаточным для такого дома, учитывая зоны для парковки, отдыха и садоводства. Если участок меньше, придется рассматривать варианты с более компактной или нестандартной планировкой.
Финальные советы по выбору проекта дома 11х14 метров
Подбирая проект дома с размерами 11 на 14 метров и площадью около 321,54 м², важно тщательно проработать все аспекты будущего жилья. Оптимальное сочетание трех спален и четырех санузлов — свидетельство хорошо продуманного баланса между комфортом и функциональностью. Отсутствие гаража — возможность экспериментировать с дополнительными помещениями внутри дома или с наружным расположением парковки.
Перед началом строительства рекомендуется обратить внимание на ориентацию дома по сторонам света, наличие удобных подъездных путей и инженерных сетей. Также немаловажно предусмотреть финишные материалы, которые обеспечат не только эстетичный внешний вид, но и долговечность здания.






































