Преимущества одноэтажного дома 14x16 метров
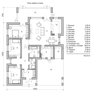
Одноэтажные дома традиционно считаются идеальным решением для семей, стремящихся к комфортному, функциональному и практичному жилищу. Дом размером 14 на 16 метров — это достаточно просторное пространство, которое позволяет размещать все необходимые комнаты для полноценной жизни, не создавая при этом излишней сложности в планировке и эксплуатации. Площадь такого дома (около 192,33 м²) предоставляет простор для реализации самых разнообразных архитектурных идей, не выходя за рамки компактного загородного жилья.
Одним из главных плюсов одноэтажного здания является удобство использования: все комнаты расположены на одном уровне, что особенно ценится в семьях с пожилыми людьми, детьми и теми, кто предпочитает избежать подъема и спуска по лестнице. Это способствует безопасности и комфорту жильцов, что делает дом максимально эргономичным и адаптированным к разным категориям пользователей.
Кроме того, дом площадью 14 на 16 метров хорошо вписывается практически в любой загородный участок, не требуя чрезмерно больших затрат на подведение инженерных коммуникаций и упрощая процессы строительства и отделки. Такой дом является отличным балансом между площадью, функциональностью и стоимостью возведения.
Планировка дома: как найти идеальный баланс
Когда речь идет о доме с габаритами 14х16 метров и одним этажом, важно грамотно спроектировать внутреннее пространство таким образом, чтобы каждая комната имела свое назначение, была удобна и функциональна. В проекте такого дома предусмотрено три спальни и два санузла, что считается оптимальным вариантом для семьи из 4-5 человек.
Наличие трех спален позволяет выделить личное пространство каждому члену семьи или использовать одну из комнат как кабинет, гостевую или игровую зону для детей. Это создает определенную гибкость в организации жилой среды и делает дом максимально универсальным.
Два санузла — важный параметр для комфортной жизни, особенно в многочленных семьях. Как правило, в большем из них располагается ванна, душевая кабина, унитаз и раковина, а в меньшем — достаточно места для установки унитаза и умывальника, что позволяет избежать очередей по утрам и вечером.
Основные зоны дома
Дом с размерами 14 на 16 метров можно условно разделить на три основные зоны: гостиную с кухней, спальную зону и хозяйственные помещения. Такое разделение способствует четкому разграничению пространства, удобству передвижения и организации быта.
| Зона | Назначение | Особенности |
|---|---|---|
| Гостиная и кухня | Общение, приготовление пищи, прием гостей | Открытая или полуоткрытая планировка, большое окно, комфортная мебель |
| Спальная зона | Отдых, личное пространство | Три спальни разного размера, возможность организации гардеробных |
| Хозяйственные помещения | Санузлы, кладовая, технические комнаты | Два санузла, возможность выделения места для прачечной или котельной |
Выбор технологий и материалов для стен и кровли
При строительстве одноэтажного дома размером 14 на 16 метров большое значение имеет выбор качественных материалов. Именно от них зависит долговечность, тепловая эффективность, внешний вид и стоимость объекта. Одноэтажная конструкция позволяет использовать разные технологии — от классических кирпичных и монолитных стен до современных каркасных и энергоэффективных материалов.
Кирпич и газобетон — одни из самых популярных материалов благодаря своей надежности и высоким показателям теплоизоляции. Кроме того, газобетон позволяет экономить средства на отоплении, что актуально для пригородных домов. Если хочется упрощения и снижения срока строительства, стоит обратить внимание на каркасные дома со стенами, заполненными пенополистиролом или минеральной ватой.
Выбор кровли также влияет на эстетику и функциональность дома. Плоская крыша или скатная с углом наклона — дело вкуса и климатических особенностей региона. Для одноэтажного дома можно рекомендовать классическую скатную крышу, обеспечивающую надежное водоотведение и устойчивость к снеговым нагрузкам.
Основные материалы для отделки фасада
- Крашенный или клинкерный кирпич — для создания традиционного и презентабельного внешнего вида.
- Деревянные панели — органично вписываются в ландшафт и создают уютную атмосферу загородного дома.
- Фасадные штукатурки — позволяют варьировать цвет и фактуру отделки, давая простор для дизайнерских решений.
- Композитные панели — современные материалы с высокой устойчивостью к погодным условиям и механическим повреждениям.
Инженерные системы и комфорт в доме 14x16
Комфорт проживания в одноэтажном доме во многом зависит от грамотной организации инженерных систем. Проект дома площадью 192,33 м² включает два санузла, значит, важно продумать разводку водоснабжения, канализации, вентиляцию и системы отопления, чтобы обеспечить надежную и эффективную работу всех коммуникаций.
Отопление чаще всего выбирают исходя из климатических условий: это может быть газовый котел, электрическое отопление или современные тепловые насосы. Одноэтажный дом хорошо подходит для применения систем напольного отопления, которые создают дополнительный комфорт в жилых помещениях, равномерно прогревая полы и пространство.
Вентиляция безусловно играет ключевую роль в поддержании здорового микроклимата. В доме с двумя санузлами необходимо предусмотреть эффективную вытяжку в санузлах и кухне, а при возможности — систему приточно-вытяжной вентиляции с рекуперацией тепла.
Таблица: Основные инженерные системы для дома 14x16 м
| Система | Описание | Рекомендации |
|---|---|---|
| Отопление | Газовый котел, электрический котел, тепловой насос | Рекомендуется комбинированный подход для повышения надежности |
| Водоснабжение | Подключение к водопроводу; при отсутствии — колодец или скважина | Установка накопительного бака для бесперебойного снабжения |
| Канализация | Централизованная или автономная (септик) | Для загородного участка часто практичен септик с системой фильтрации |
| Вентиляция | Приточно-вытяжная с рекуперацией | Обеспечивает экономию тепла и свежий воздух в помещениях |
Особенности дизайна и интерьерное оформление
Одноэтажный дом 14х16 предоставляет прекрасную возможность реализовать самые смелые интерьерные решения. Просторные комнаты позволяют обеспечить хорошие условия для жизни и отдыха каждого члена семьи. При обустройстве дома важно сохранить баланс между открытыми зонами и уединенными комнатами, создать комфортную и уютную атмосферу.
В гостиной и кухне можно предпочесть открытую планировку, чтобы визуально увеличить пространство и оптимизировать освещение. Использование зонирования с помощью мебели, освещения и отделочных материалов помогает структурировать пространство без стен и перегородок.
Для спален выбирается спокойная цветовая гамма, которая способствует расслаблению. Важным элементом интерьера выступает удобная мебель, встроенные шкафы и гардеробные, которые позволяют максимально грамотно использовать доступное пространство.
Советы по оконным решениям
- Широкие окна в гостиной обеспечат помещение естественным светом и создадут визуальный контакт с природой.
- В спальнях стоит применять окна с возможностью проветривания, а также качественные защитные жалюзи или шторы.
- В санузлах предпочтительны небольшие окна для естественного освещения и вентиляции без потери приватности.
Экономическая эффективность строительства и эксплуатации
Одноэтажный дом 14 на 16 метров позволяет разумно подходить к расходам как на строительство, так и на последующее обслуживание. Благодаря компактным размерам и рациональной планировке снижаются издержки на фундамент, кровлю и инженерные сети. Это означает, что можно вкладывать средства в качественные материалы и современные технологии, не выходя за рамки бюджета.
Эксплуатационные расходы также значительно снижаются, если использовать энергоэффективные решения: утепление стен, качественные пластиковые окна, системы отопления с низким потреблением топлива. Два санузла в доме оптимизируют поток жильцов и предотвращают излишние неудобства, что особенно актуально для больших семей.
Основные статьи расходов при строительстве одноэтажного дома 14x16
- Подготовка участка и устройство фундамента
- Возведение стен и кровли
- Монтаж инженерных систем водоснабжения, канализации и отопления
- Внутренняя отделка и установка оконных и дверных конструкций
- Ландшафтные работы и обустройство территории
Перспективы и варианты планировок для дома 14 на 16 метров
Планировка дома площадью 192,33 м² позволяет адаптировать жилое пространство под конкретные потребности семьи. Одна из популярных идей — объединение гостиной и кухни-столовой в единую открытую зону для удобства общения и повышения функциональности. Также можно предусмотреть отдельную гостевую спальню или кабинет.
Еще одна перспектива — организация прямого выхода из дома на задний двор или в небольшой сад с помощью дополнительных дверей или французских окон. Так создается плавный переход между внутренним и внешним пространством, что особенно ценится в теплое время года.
Типовые варианты планировки комнат
| Вариант | Описание | Преимущества |
|---|---|---|
| Классическая | Отдельные комнаты, выделенная кухня, отдельная гостиная | Максимальное уединение, простота в строительстве и отделке |
| Открытая планировка | Гостиная и кухня объединены в одно пространство | Визуально просторнее, удобно для семейных и праздничных мероприятий |
| Гибридный вариант | Частичное объединение кухонной и гостевой зон с выделенными спальнями | Комфортное сочетание открытости и приватности |
Выводы по выбору и строительству одноэтажного дома 14x16
Одноэтажный дом с размерами 14 на 16 метров и площадью 192,33 м² — это прекрасный вариант для тех, кто ценит удобство, функциональность и комфорт. Такой дом удачно сочетает просторное жилое пространство с рациональной организацией помещений, что максимально отвечает потребностям современной семьи.
Грамотный выбор строительных материалов, современных инженерных систем и продуманная архитектура превращают этот дом в долговечное, теплое и уютное жилье, пригодное для жизни круглый год. Воспользовавшись разнообразием вариантов планировок и дизайнерских решений, можно создать индивидуальное пространство, которое будет соответствовать всем вашим представлениям о домашнем уюте и удобстве.






































