Обзор одноэтажного дома 13х14 м с площадью 162,11 м²
Одноэтажный дом с размерами 13 на 14 метров и общей площадью 162,11 квадратных метра становится все более востребованным решением для семей, предпочитающих комфорт, практичность и гармонию с окружающей средой. Такие дома обладают большой функциональностью и при этом сохраняют уют, удобство перемещения по внутреннему пространству и возможность эффективно использовать каждый квадратный метр. В этой статье мы подробно рассмотрим все плюсы, особенности и важные аспекты проектирования и строительства данного типа дома, чтобы помочь вам понять, почему именно этот план может стать оптимальным выбором для вашего будущего жилья.
Одноэтажные дома давно обрели статус классики в частном домостроении. Идеально подходящие для людей всех возрастов, они предлагают удобство без лишних лестниц, что особенно актуально для семей с маленькими детьми и пожилыми родственниками. Размеры 13 на 14 метров создают практически квадратный план, который позволяет рационально зонировать пространство интерьера и создавать комфортные жилые помещения.
Преимущества одноэтажной планировки 13х14 метров
Общий размер дома – 13 метров в ширину и 14 метров в длину – представляет собой отличный баланс между компактностью и достаточным пространством для комфортной жизни семьи из 3–5 человек. 162,11 квадратных метров дают достаточно пространства для организации зон отдыха, работы и приема гостей. Главным преимуществом одноэтажной конструкции является удобство передвижения без лестниц и возможность использовать натуральное освещение по всей площади благодаря размещению окон на одном уровне.
Одноэтажные дома с габаритами 13х14 м позволяют оптимально спланировать внутренние помещения. При таких размерах хозяева получают возможность включить в проект несколько спален с достаточным уровнем личного пространства, общую гостиную, кухню и санузлы. При этом дом не кажется громоздким и по-прежнему легко вписывается в участки с ограниченной площадью.
Почему стоит выбрать одноэтажный дом?
- Отсутствие лестниц. В этом доме нет необходимости подниматься на второй этаж, что особенно важно для пожилых людей и маленьких детей.
- Оптимальное использование пространства. Каждая комната расположена на одном уровне, что облегчает коммуникации и отопление.
- Простота и экономия при строительстве. Одноэтажные дома требуют меньше материалов для перекрытий и фундаментов по сравнению с двухэтажными зданиями.
- Возможность открытой планировки. Проект позволяет легко объединить зоны кухни, столовой и гостиной без помех для свободного перемещения.
Планировка и функциональные зоны дома 13х14
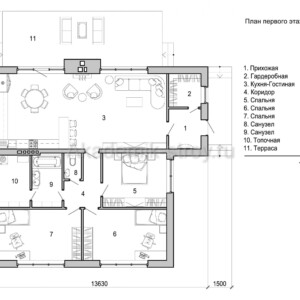
Внутреннее зонирование – ключевой этап, влияющий на удобство проживания и качество жизни в доме. Проект дома размером 13 на 14 метров с площадью 162,11 м² предусматривает оптимальную компоновку жилых и вспомогательных помещений. Наиболее распространенное решение — наличие двух спален и одного санузла, что идеально подходит для небольшой семьи или супружеской пары с двумя детьми.
Спальные зоны
Количество спален в данном проекте – две, что позволяет обеспечить личное пространство каждому члену семьи. Обычно спальни размещают таким образом, чтобы обеспечить максимальный уровень уединения и тишины, отдалив их от зон гостиной и кухни. В одной из спален можно устроить родительскую спальню, а вторую использовать для детей или в качестве кабинета.
Санузел
В доме предусмотрен один санузел, что является нормой для одноэтажных домов такого размера. Для повышения комфорта можно предусмотреть вместительную ванную комнату с современными системами вентиляции и хорошим естественным освещением. Если позволяет пространство, интерьер санузла может включать не только ванную и унитаз, но и стиральную машину, что удобно для повседневного использования.
Общие зоны
Жилая зона в таком доме, как правило, включает гостиную и кухню, которыми часто отводится центральное место. В проекте 13х14 комнаты достаточно просторные, чтобы расположить обеденную группу и удобную зону отдыха с диванами и телевизором. Благодаря квадратной форме дома проекты легко предусматривают возможность открытой или полузакрытой планировки, создавая атмосферу свободы и взаимодействия для всей семьи.
Технические и конструктивные аспекты одноэтажного дома 13х14
Современное строительство частных домов требует учета не только архитектуры, но и инженерных решений, которые обеспечат долговечность, энергоэффективность и комфорт. Дом размером 13х14 метров с одним этажом требует тщательного подхода к фундаменту, конструкции стен, кровли и системам коммуникаций.
Фундамент и несущие конструкции
Размеры дома 13 на 14 метров обуславливают необходимость прочного, но сбалансированного фундамента. Чаще всего для одноэтажных домов выбирают монолитную плиту или ленточный фундамент, которые равномерно распределяют нагрузку и предотвращают деформации строения. Конструктивные элементы стен определяются материалами, выбранными застройщиком — это может быть газобетон, кирпич, деревянный брус или каркасная технология.
Отопление и вентиляция
Одноэтажный дом площадью более 160 м² нуждается в продуманной системе отопления, которая обеспечит равномерное распределение тепла. Современные проекты предусматривают установку котлов на газу или электричестве, системы теплых полов и радиаторы. Вентиляция играет важную роль в поддержании свежести внутренних помещений, поэтому рекомендуется предусмотреть рекуператоры и вытяжные устройства для санузла и кухни.
Окна и освещение
Правильное расположение окон является ключевым для энергоэффективности и уюта в доме. Благодаря масштабу 13х14 м, естественное освещение может быть эффективным во всех комнатах. Часто можно увидеть большие панорамные окна в гостиной и спальнях, которые создает атмосферу простора и света.
Визуальная и эстетическая привлекательность дома
Одноэтажный дом 13х14 метров с площадью 162,11 м² — это не только функциональность, но и внешний вид. Архитекторы и дизайнеры уделяют большое внимание тому, чтобы здание выглядело современно и стильно, сочеталось с окружающим ландшафтом и радовало глаз владельца.
Фасад и отделка
- Материалы фасада. Для облицовки часто используют натуральный камень, дерево, декоративную штукатурку или панельные материалы, которые хорошо сочетаются между собой и подчеркивают архитектурный стиль дома.
- Цветовая гамма. Натуральные оттенки серого, бежевого или коричневого с яркими акцентами в элементах отделки создают гармоничный образ и повышают привлекательность дома.
- Декоративные элементы. Арки, небольшие выступы, декоративные наличники на окнах и оригинальные входные группы — все это придает индивидуальность и выделяет дом на фоне соседних строений.
Кровля и крыша
Хотя параметры угла наклона крыши и площади крыши не представлены в данных, можно отметить, что при проектировании одноэтажного дома с такими габаритами важно подобрать кровельное покрытие с учетом климатических условий и стиля здания. Современные материалы для кровли обеспечивают долговечность, гидроизоляцию и хорошо справляются с нагрузками атмосферных осадков.
Преимущества проживания в одноэтажном доме 13х14
Комфортная площадь 162,11 м² в сочетании с функциональной планировкой обеспечивает достаточное пространство для жизни без ощущения тесноты. Одноэтажный дом такого размера прекрасно подходит для организации досуга, чтобы принимать гостей, заниматься домашними увлечениями и отдыхать в приватных помещениях.
Удобство и безопасность
Отсутствие лестниц снижает риск травм и повышает безопасность для всех поколений семьи. Это особенно важно для родителей маленьких детей и пожилых членов семьи, обеспечивая свободное передвижение по дому и двору.
Экономия на сервисном обслуживании и ремонте
Единый этаж облегчает обслуживание коммуникаций, ремонта и уборки, сокращая сопутствующие затраты и времени. Кроме того, одноэтажные дома легче адаптировать под любые нужды, включая установку систем "умного дома" и энергоэффективных технологий.
Как выбрать участок для строительства дома 13х14 м?
Размеры дома 13 на 14 метров требуют соответствующей площади земельного участка, чтобы оставить место для пристроек, зеленых насаждений и организации комфортной придомовой территории. Один из важных факторов выбора участка – его ширина и длина, позволяющие разместить дом без ощутимых ограничений и обеспечить приток естественного света.
Рекомендации по выбору участка
- Минимальная ширина участка должна быть не меньше 18–20 м, чтобы сохранить зеленые зоны вокруг дома.
- Минимальная длина участка – от 20 м и выше для размещения дополнительных коммуникаций, парковки и зон отдыха.
- Удобство подъездных путей и наличие инфраструктуры – один из главных критериев, чтобы обеспечить комфортное проживание.
Советы по обустройству и дизайну интерьера для дома 162,11 м²
Планировка в 162 квадратных метров дает простор для творчества и продуманной организации жилого пространства. Одноэтажный формат позволяет создавать уникальные дизайнерские решения и экспериментировать с зонированием.
Зонирование пространства
- Жилая зона. Рекомендуется отделять от спальных комнат, чтобы создать дополнительные условия для отдыха.
- Кухня и столовая. Часто объединяются в общую открытую зону, что способствует коммуникации и совместному времяпрепровождению.
- Рабочий кабинет. Может быть выделен как отдельная комната или обустроен в виде функционального уголка в гостиной.
Выбор материалов отделки
Для пола подходят натуральные материалы — паркет, ламинат или плитка. Стены можно оформить нейтральными светлыми оттенками для визуального расширения пространства. В интерьере рекомендуется использовать качественные, экологически безопасные материалы, что особенно важно для семей с детьми.
Свет и освещение
Освещение играет ключевую роль в создании уюта в доме. В одноэтажном доме удобно использовать комбинированное освещение — потолочные светильники и настенные бра для общего света, а также точечные светильники и настольные лампы для рабочих мест и зон отдыха.
Заключение
Одноэтажный дом размером 13 на 14 метров с площадью 162,11 м² сочетает в себе функциональность, комфорт и эстетическую привлекательность. Он идеально подходит для семей, ценящих удобство передвижения, современные архитектурные решения и простоту обслуживания. Продуманная планировка с двумя спальнями и одним санузлом позволяет эффективно использовать пространство, одновременно создавая уютную и просторную атмосферу для жизни.
Выбирая именно подобный проект, вы делаете ставку на практичность, экономичность и долговечность своего жилья, а также получаете возможность воплощать в жизнь любые дизайнерские идеи для интерьера и экстерьера. Внимание к деталям, продуманность инженерных систем и грамотная организация пространства делают одноэтажный дом 13х14 м с площадью 162,11 квадратных метра гармоничным выбором для комфортной жизни на долгие годы.
































