Общее описание проекта двухэтажного дома 16x11 – 161.1 м²
Проект двухэтажного дома с размерами 16 на 11 метров и общей полезной площадью 161,1 м² – это оптимальное решение для семьи, стремящейся к комфорту и рациональному использованию пространства. Дом отличается продуманной планировкой, позволяющей организовать пять и более спален, что является важным моментом для больших семей или тех, кто часто принимает гостей. Наличие трех санузлов значительно повышает удобство проживания и позволяет избежать бытовых неудобств в часы пик.
Такой дом подходит для участка с минимальными размерами 23,7 на 18,9 метров, что достаточно для размещения дома с комфортным отступом от границ участка и возможной организации прилегающей территории для отдыха или садовых композиций. Высота здания составляет 8,23 метра, что визуально делает его солидным и в тоже время не громоздким строением в ландшафте.
Планировка и внутреннее пространство
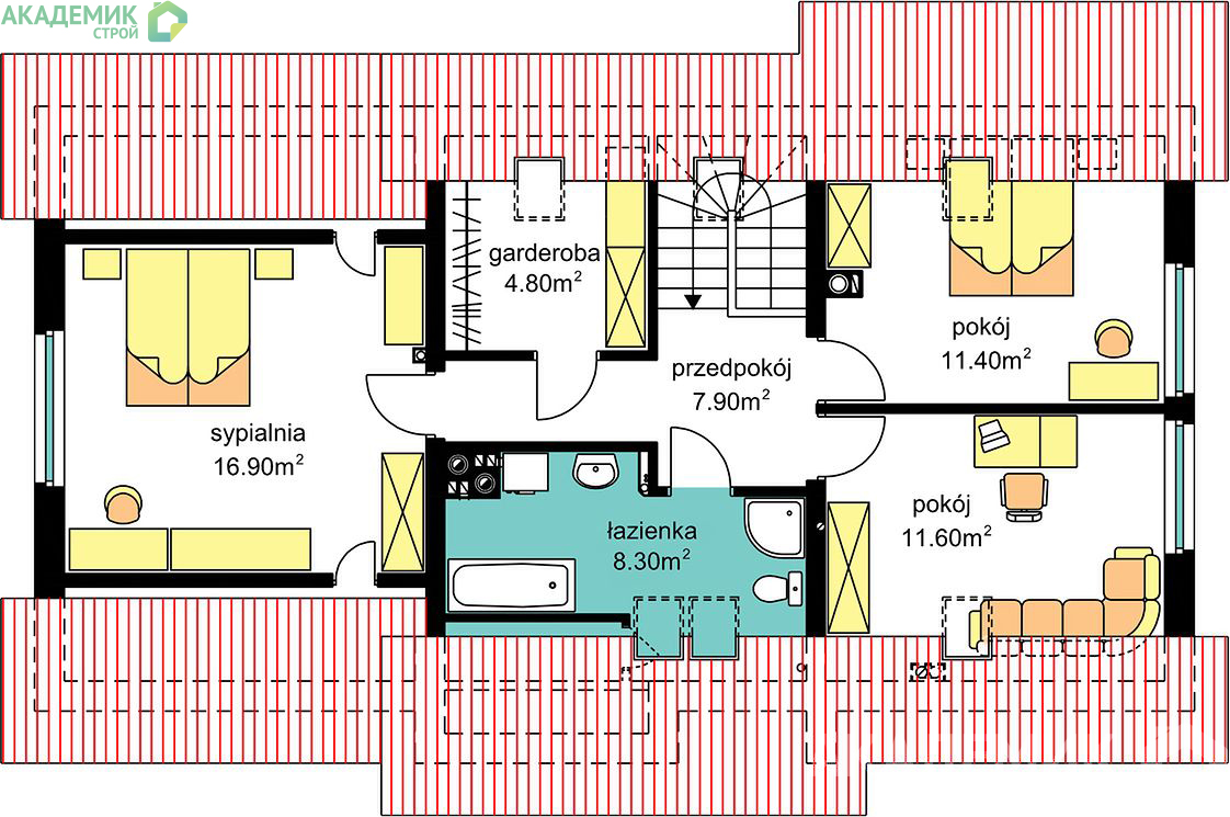
Одной из главных характеристик данного дома является наличие более пяти спален, что превращает его в идеальный вариант для большой семьи. Жилая площадь дома составляет 156,90 м², что свидетельствует о максимально эффективном использовании каждого квадратного метра. Пространство дома организовано так, чтобы обеспечить максимально комфортное размещение всех членов семьи с личным пространством для каждого.
В доме выделено три полноценных санузла, что значительно упрощает ежедневные бытовые процедуры, особенно в утренние и вечерние часы. Это также способствует сохранению уюта и порядка в доме, ведь отсутствие очередей в санитарные комнаты всегда играет важную роль.
Обзор жилых зон
Основная жилая зона представлена пятью и более спальнями, которые расположены, как правило, на втором этаже. Такое размещение позволяет создать приватную атмосферу, где каждый может уединиться и отдыхать после напряженного дня. Площади комнат достаточно велики, чтобы обеспечить комфортное размещение как детей, так и взрослых с возможностью организации рабочего места или зоны для хобби.
Гостиная и общие помещения
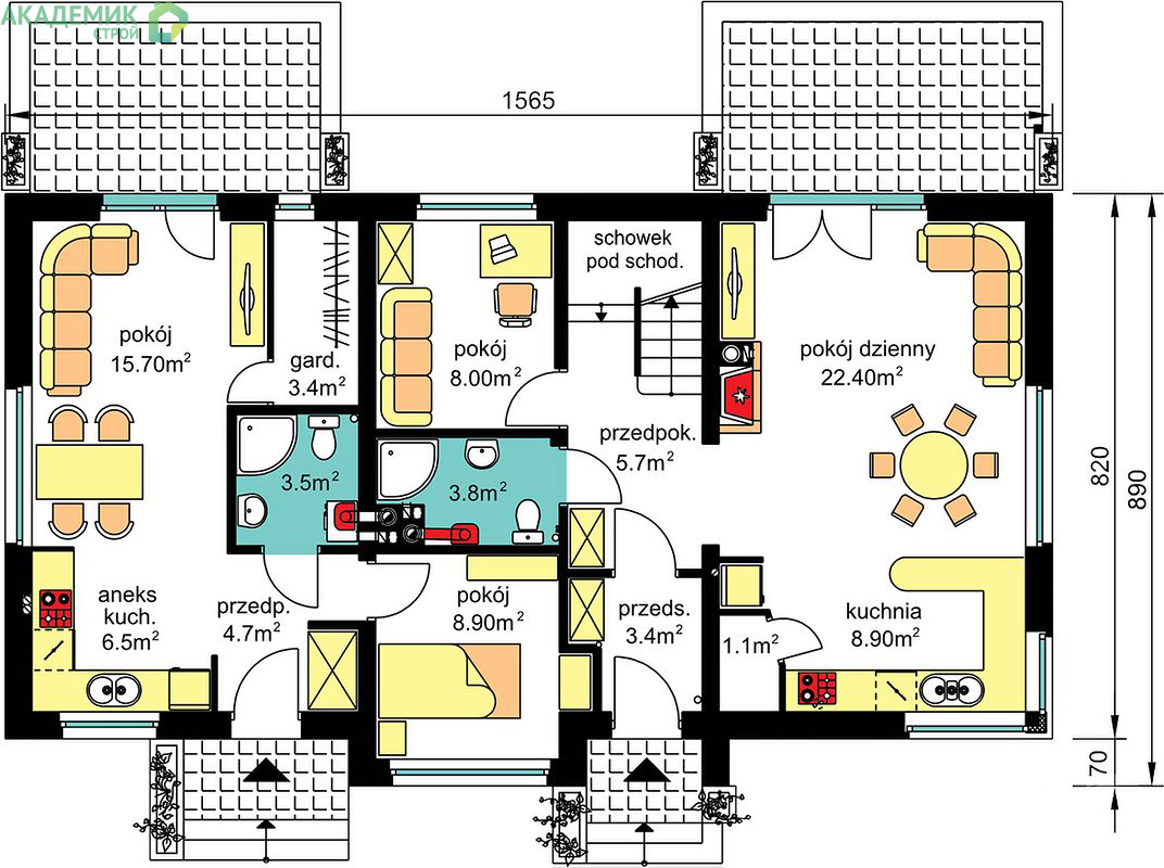
Первый этаж в данном проекте традиционно отведен под гостиную, кухню, столовую и одну из комнат, которая может использоваться как кабинет или дополнительная спальня. В доме предусмотрена комната на первом этаже, что придает проекту универсальность и удобство, особенно для семей с пожилыми родственниками или для тех, кто предпочитает работать и отдыхать, не поднимаясь на второй этаж.
Технические характеристики дома
Дом обладает значительными показателями, которые характеризуют его как современное и комфортное строение. Разберем основные параметры по порядку:
| Параметр | Значение | Комментарий |
|---|---|---|
| Полезная площадь | 161,1 м² | Общая площадь с эффективным использованием |
| Жилая площадь | 156,90 м² | Комфортная площадь жилых комнат |
| Площадь застройки | 132,20 м² | Площадь, занимаемая домом на участке |
| Объем брутто | 771,80 м³ | Общий объем здания |
| Площадь крыши | 233,80 м² | Дополнительная площадь для кровельных работ |
| Высота здания | 8,23 м | Оптимальная высота для двухэтажного дома |
| Угол наклона крыши | 42° | Обеспечивает хороший отвод воды и снеговой нагрузки |
| Минимальные размеры участка | 23,7 х 18,9 м | Требования для комфортного расположения дома |
Особенности архитектуры и дизайна крыши
Крыша дома выполнена в классическом стиле – двускатная с углом наклона 42 градуса, что является оптимальным решением для климатических условий большинства регионов России. Такой угол наклона обеспечивает надежный отвод осадков, что критически важно в зимнее время при нагрузке от снега.
Площадь крыши составляет внушительные 233,8 м², что открывает широкий простор для выбора кровельных материалов и системы утепления. Двускатная крыша позволяет организовать дополнительное полезное пространство в виде мансарды или технического чердака, которые могут использоваться для хранения или создания функциональных зон.
Преимущества двускатной крыши
- Простота конструкции, что снижает стоимость работ и срок строительства.
- Высокая надежность и долговечность.
- Удобство в обслуживании и ремонте в будущем.
- Возможность обустройства мансарды для увеличения жилой площади.
Удобство планировки: комнаты, санузлы и дополнительные опции
Одной из главных характеристик дома является наличие трех санузлов, что особенно важно для больших семей. Количество санузлов позволяет устранить проблемы с очередями в утренние часы и создает комфортные условия для гостей. Расположение санузлов продумано таким образом, чтобы обслуживать как жилые комнаты, так и зоны общего пользования.
Интересной и востребованной опцией этого проекта является наличие камина – уютного элемента, создающего домашний очаг и обеспечивающего дополнительный источник тепла. Камин становится центром гостиной, вокруг которого собирается семья для отдыха и общения.
Отдельно стоит отметить наличие комнаты на первом этаже, которая может иметь разнообразные функции: кабинет для работы, гостевая спальня, игровая зона для детей или тренажерный зал. Такая гибкость при планировке позволяет адаптировать дом под индивидуальные потребности жильцов.
Дополнительные опции для комфорта
- Камин – символ уюта и тепла.
- Комната на первом этаже – для разнообразных сценариев использования.
- Терраса – возможность организовать зону отдыха на свежем воздухе (при наличии проекта).
Стоимость строительства и экономическая составляющая
Стоимость дома площадью 161,1 м² составляет 6 430 156 рублей. Эта цифра включает не только прямые затраты на строительство, но и вложения в высококачественные материалы, инженерные системы, внутренняя отделка и выполнение всех требований по безопасности и энергоэффективности. Для современного двухэтажного дома данных размеров и с таким набором опций эта цена вполне соответствует средней рыночной стоимости в категории комфорт-класса.
Важно понимать, что при выборе проекта и строительстве дома многие факторы влияют на конечную стоимость. Среди них – регион строительства, стоимость рабочей силы, выбранные отделочные материалы, инженерные решения и дополнительное оборудование. Однако качественный проект с продуманной планировкой всегда оправдывает вложения за счет комфорта и функциональности.
Что влияет на стоимость дома 16x11?
| Фактор | Описание | Влияние на стоимость |
|---|---|---|
| Площадь дома | Большая площадь требует больше материалов и труда | Высокое |
| Материалы | Качественные и долговечные строительные материалы повышают цену | Среднее-Высокое |
| Инженерные системы | Современные системы отопления, вентиляции и безопасности | Среднее |
| Внутренняя отделка | Выбор стилей и материалов отделки влияет на цену | Среднее |
| Дополнительные опции | Камин, терраса, эргономичные планировочные решения | Низкое-Среднее |
Требования к участку для строительства дома 16х11
Проект данного двухэтажного дома предъявляет определенные требования к участку, на котором реализуется строительство. Минимальные размеры участка составляют 23,7 метра по ширине и 18,9 метра по длине. Это связано с необходимостью обеспечить достаточное пространство не только под здание, но и для необходимых отступов от границ участка, а также возможность разместить придомовую территорию для отдыха, садовых насаждений или хозяйственных построек.
Такая планировка позволяет максимально комфортно расположить дом, учитывая все правила противопожарного расстояния и санитарные нормы, что особенно важно в условиях плотной застройки коттеджных поселков.
Выводы по проекту и рекомендации
Проект двухэтажного дома 16x11 площадью 161,1 м² – это современное решение для тех, кто ищет функциональный, просторный и эстетически привлекательный дом. Он удовлетворяет потребности большой семьи, предлагая пятую и более спальни, три санузла и комфортные общие зоны. Двускатная крыша с оптимальным углом наклона и площадь застройки позволяют легко вписать дом на участок в типичной коттеджной застройке.
Наличие камина и комнаты на первом этаже придает дому дополнительный уют и многофункциональность. Что касается финансовой стороны, цена в 6 430 156 рублей соответствует затратам на строительство дома такого уровня и с подобным набором опций. При правильной организации строительства и использовании качественных материалов, этот проект станет надежным и комфортным домом на многие годы.







