Двухэтажный дом 13х9 - 137.1 м² от компании "Академик Строй": комфорт и стиль в Москве
Если вы мечтаете о просторном и уютном загородном доме под Москвой, то проект двухэтажного дома размером 13 на 9 метров с полезной площадью 137,1 м² от компании "Академик Строй" — именно то, что стоит рассмотреть. Этот дом идеально подходит для семьи из 4-5 человек, ценящей комфорт, функциональность и современный дизайн. В этом материале мы подробно расскажем, почему стоит заказать именно этот проект, чем он выделяется и каковы главные преимущества.
Конечно, выбор проекта дома — это всегда ответственное решение. Тут важно учесть не только размеры и количество комнат, но и общую планировку, эстетическую привлекательность, эргономику, а также совместимость с участком и ландшафтом. Данный проект учитывает все эти моменты и может стать вашим отличным решением для жизни в пригороде или на даче.
Основные параметры дома: размер, площадь и этажность
Перед тем, как углубиться в детали, давайте посмотрим на ключевые характеристики проекта:
| Параметр |
Значение |
| Размеры дома |
13 х 9 м |
| Полезная площадь |
137,1 м² |
| Количество этажей |
2 |
| Количество спален |
4 |
| Количество санузлов |
2 |
| Жилая площадь |
107,30 м² |
| Площадь застройки |
110,30 м² |
| Площадь крыши |
197 м² |
| Угол наклона крыши |
40° |
| Высота здания |
8,10 м |
| Тип крыши |
двускатная |
Эти параметры уже дают представление о солидных размерах и продуманной архитектуре дома. Давайте разберёмся подробнее, что именно делает этот проект таким привлекательным.
Идеальные габариты для современного загородного дома
Размеры 13 на 9 метров — это отличное соотношение длины и ширины, обеспечивающее удачную конфигурацию комнат и зонирование. Двухэтажность позволяет увеличить жилую площадь до комфортных 137,1 м² без необходимости занимать слишком много места на участке.
Вы только представьте: площадь застройки всего 110,3 м² позволяет сэкономить место для сада, зоны отдыха или даже небольшой огород. При этом жильё останется просторным, ведь жилая площадь — 107,30 м² — позволяет разместить всё, что необходимо для комфортного проживания большой семье.
Оптимальная высота и крыша, подходящая для климата Москвы
Высота здания 8,10 метров отлично вписывается в окружение загородных домов и при этом выглядит гармонично и не громоздко. Для покрытия выбрана двускатная крыша с углом наклона 40°, что отвечает всем климатическим требованиям Московской области: снег будет легко скатываться, а дождь — быстро стекать, минимизируя риски протечек и повреждений.
Кстати, площадь кровли — 197 м² — это достаточно большой запас для использования качественных материалов, которые обеспечат надежную защиту и изоляцию вашего дома.
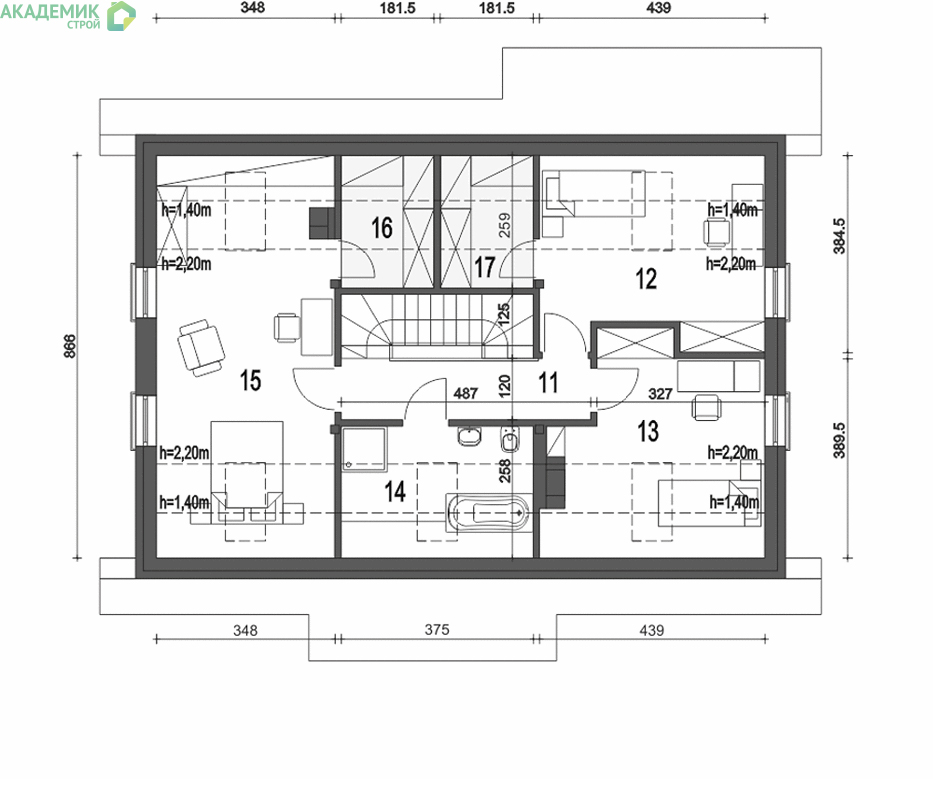
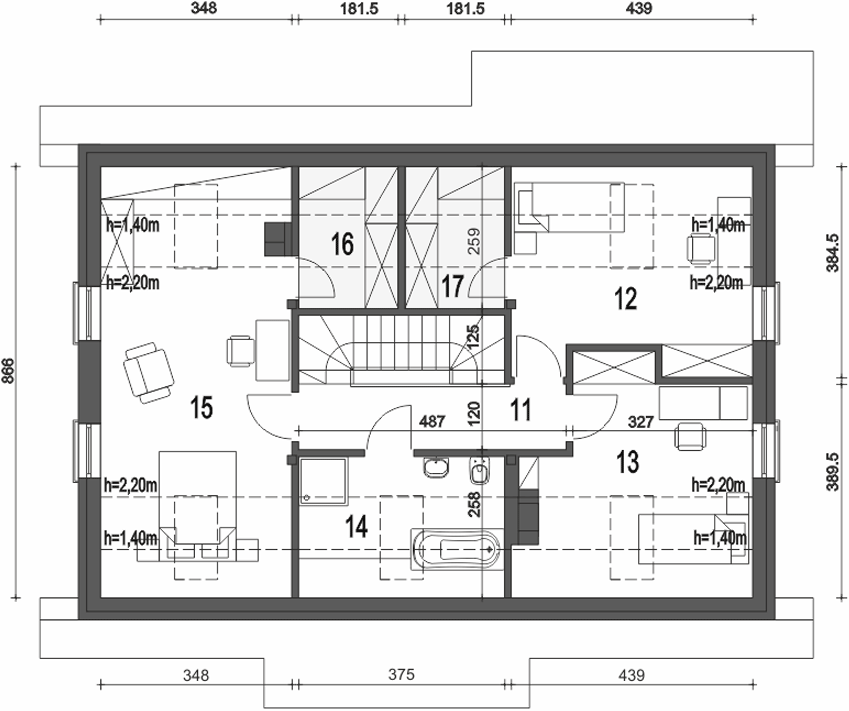
Внутренняя планировка: комфорт для всей семьи
Одним из главных преимуществ этого проекта является разумная и удобная планировка, которую создавали с расчётом на реальную жизнь семьи из 4 человек и больше. Две полноценных санузла и четыре спальни – редкость для такой площади, но здесь это реализовано прекрасно.
Четыре спальни — место для каждого
Особенность дома — именно четыре спальни, что является отличным решением как для большой семьи с детьми, так и для размещения гостей или создания домашнего кабинета. Это отличный баланс между жилой и полезной площадью.
Спальни расположены удобно — три из них на втором этаже, что обеспечивает тишину и приватность. Четвёртая может быть устроена на первом этаже, если понадобится комната для пожилых родственников или гостей.
Два санузла для удобства
Количество санузлов — всегда важный фактор. В этом проекте предусмотрено два полноценные санузла, что особенно важно для семей с детьми и в часы пик по утрам и вечерам. Один из санузлов расположен на первом этаже, второй — на втором, что наносит минимум дискомфорта во время повседневной жизни.
Жилая площадь и функциональные зоны
Общая жилая площадь 107,30 м² — это не просто цифра, а показатель, что в доме вы найдёте просторные гостиные, уютные спальни и удобные рабочие места. Вместе с этим полезная площадь 137,1 м² учитывает и технические зоны — коридоры, гардеробные и вспомогательные помещения.
Такое эффективное распределение пространства делает дом практичным и в то же время не слишком загромождённым.
Дополнительные опции: камин и терраса
Одной из главных изюминок проекта стали дополнительные опции, предлагаемые компанией "Академик Строй". Среди них: уютный камин, который станет центром гостиной зоны в холодное время года, а также просторная терраса, прекрасно подходящая для летних вечеров и отдыха на свежем воздухе.
Терраса — это не просто дополнительное место для посиделок, но и настоящее продолжение жилого пространства, позволяющее наслаждаться природой и шумом садового участка, не покидая своего дома.
Дровяной камин — мечта многих, он не только создаёт атмосферу уюта и тепла, но и служит дополнительным источником отопления, что всегда актуально в холодном климате.
Комната на первом этаже — дополнительное преимущество
В проекте предусмотрена опция отдельной комнаты на первом этаже. Это может быть гостевая, кабинет, игровая комната для детей или даже мастерская. Особенно удобно это для семей, в которых есть пожилые члены, которым сложно подниматься на второй этаж ежедневно.
Технические характеристики и требования к участку
Выбирая готовый проект дома, важно учитывать не только параметры самого строения, но и условия, в которых он будет возводиться.
| Параметр |
Значение |
| Минимальная ширина участка |
20,70 м |
| Минимальная длина участка |
16,70 м |
Эти габариты важны при выборе и покупке земельного участка, они гарантируют, что дом поместится комфортно и с запасом для дворовой территории и возможных дополнительных построек.
Объем здания и строительные материалы
Объем здания составляет 440 м³ — это показатель, который позволяет инженерным специалистам точно рассчитать нагрузки на фундамент, подобрать оптимальные материалы стен и системы вентиляции. Проект тщательно продуман и отвечает современным строительным нормам.
Почему выгодно заказать проект в "Академик Строй"?
Компания "Академик Строй" зарекомендовала себя в Москве и области как надежный партнер, который берется за создание проектов домов, учитывая пожелания клиентов и особенности регионального климата. Почему именно этот проект выгоден?
Привлекательная цена и гибкие условия заказа
Стоит отметить, что цена проекта, учитывая высокое качество и продуманность планировки, находится на оптимальном уровне по московским меркам. Более того, заказ можно оформить по телефону +7 (980) 800-47-93, что делает процесс удобным и быстрым.
Профессиональный подход к каждой детали
В "Академик Строй" работают опытные архитекторы и инженеры, что гарантирует, что заказчик получит полный пакет документов, учитывающий все необходимые расчёты, технические условия и строительные нормы.
Кроме того, возможно адаптировать проект под индивидуальные пожелания: изменить планировку, добавить дополнительные опции, подготовить рекомендации по материалам.
Что нужно учесть при выборе и заказе проекта двухэтажного дома 13х9
Покупка проекта — это первый и очень важный шаг к мечте о собственном доме. Вот на что стоит обратить внимание:
- Размер участка, чтобы дом комфортно разместился и не создал проблем с разрешениями строительства.
- Согласование проекта с местными архитектурными требованиями.
- Возможность дальнейшего расширения или переделки комнат по мере необходимости.
- Продуманность инженерных систем и коммуникаций для удобства в эксплуатации.
- Наличие дополнительных опций, соответствующих вашему стилю жизни.
Компания "Академик Строй" поможет вам пройти все эти этапы с максимальным комфортом и минимальными затратами времени.
Как сделать заказ и что дальше?
Заказать готовый проект очень просто — связаться по телефону +7 (980) 800-47-93 и получить консультацию по всем вопросам. После оформления заказа вы получите полный комплект документации с чертежами и сметой.
Технические специалисты компании готовы сопровождать вас на всех этапах — от покупки проекта до постройки, консультируя по содержанию и предложению подрядчиков.
Преимущества готового проекта перед индивидуальным заказом
Многие задумываются, стоит ли брать готовый проект или лучше делать уникальный дизайн? Вот несколько факторов в пользу выбора проекта "Академик Строй":
| Готовый проект |
Индивидуальный дизайн |
| Быстрая готовность и возможность сразу приступать к строительству |
Процесс занимает больше времени, требует согласований |
| Оптимальная цена по сравнению с эксклюзивным дизайном |
Значительно дороже из-за индивидуальности и детализации |
| Проверенная технология строительства и расчет нагрузок |
Требует дополнительных проверок и расчетов |
| Гарантированная функциональность и эргономика |
Можно адаптировать под любые пожелания, но риск ошибок выше |
Для большинства семей, которые хотят получить комфортный дом быстро и без лишних рисков, предлагаемое решение является именно тем, что нужно.
Заказать проект — начать строить мечту
Двухэтажный дом 13x9 с площадью 137,1 м² — это отличный выбор для жизни в комфортных условиях недалеко от Москвы. Проект от “Академик Строй” сочетает в себе продуманную планировку, качество и привлекательную стоимость.
Если вы хотите быстро и с уверенностью получить готовый дом своей мечты — обратитесь по телефону +7 (980) 800-47-93 и сделайте первый шаг к уютному и современному жилью для своей семьи.
Не упускайте возможность приобрести проект с камином, террасой и всеми удобствами для жизни. Такой дом — это не просто недвижимость, а место, где начинается ваша новая жизнь.