Одноэтажный дом 13х10 - 107,6 м²: идеальный выбор для жизни в Москве
Если вы мечтаете о собственном доме, который сочетает в себе комфорт, функциональность и эстетичность, то одноэтажный дом размером 13 на 10 метров с площадью 107,6 м² — это именно то, что вам нужно. Такой вариант подойдет и для молодой семьи, и для тех, кто ценит удобство, а главное — практичность. Более того, заказать проект этого дома можно прямо сейчас у опытных специалистов компании «Академик Строй», которые знают, как превратить мечту в реальность.
Давайте вместе разберемся, чем этот дом выделяется среди множества других вариантов, какие преимущества он несет в себе, и почему стоит подумать именно о таком проекте, если вы живете в Москве или готовы переехать в пригороды.
Основные параметры одноэтажного дома 13х10 от «Академик Строй»
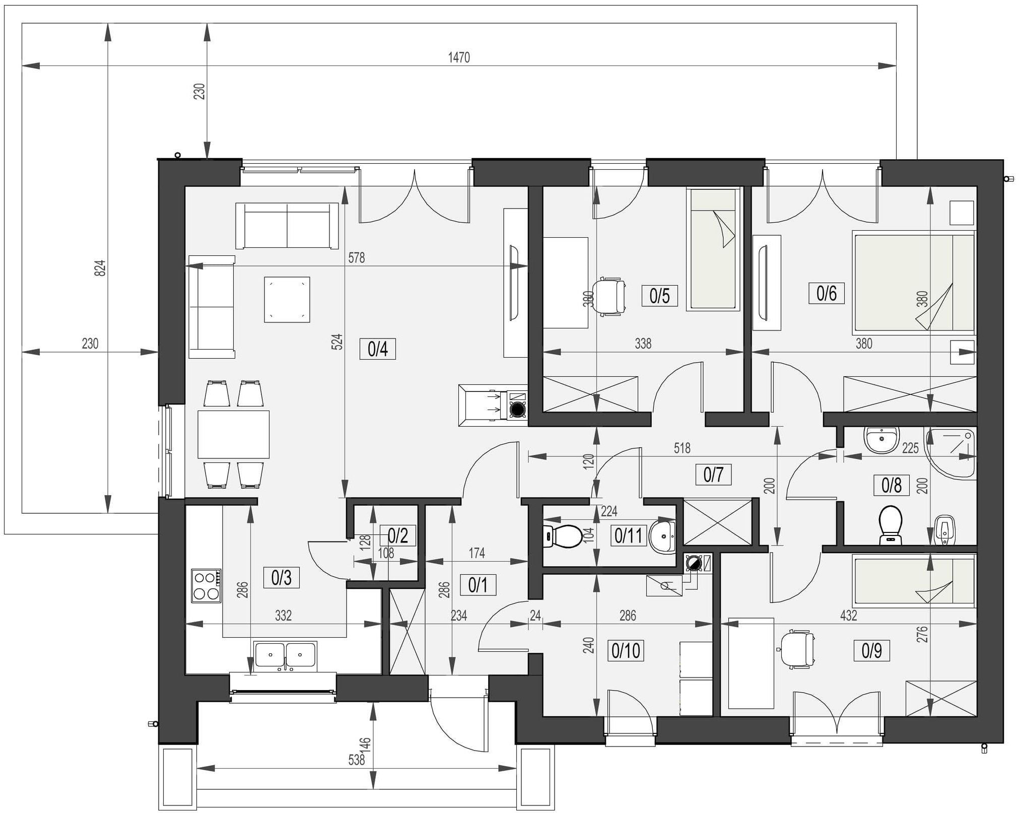
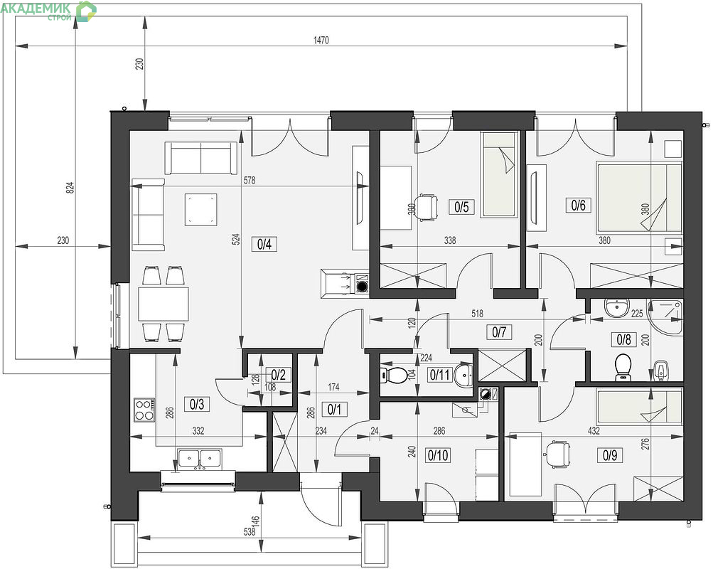
Перед тем как перейти к подробному описанию всех достоинств дома, важно сразу обозначить его ключевые характеристики, так вы сможете лучше представить себе общую картину и оценить будущий комфорт проживания.
| Параметр | Значение |
|---|---|
| Полезная площадь | 107,6 м² |
| Размеры дома | 13 x 10 м |
| Этажей | 1 этаж |
| Количество спален | 3 |
| Количество санузлов | 2 |
| Жилая площадь | 100,55 м² |
| Площадь застройки | 135,39 м² |
| Площадь крыши | 192,60 м² |
| Угол наклона крыши | 30° |
| Высота здания | 6,49 м |
| Минимальная ширина участка | 21,20 м |
| Минимальная длина участка | 17,93 м |
| Тип крыши | двускатная, вальмовые, сложной формы |
| Опции | камин, терраса |
Преимущества одноэтажной планировки для семьи
Одноэтажные дома долгое время остаются популярным выбором среди жителей Москвы и области. И этому есть объективные объяснения. Во-первых, ведь одноэтажный дом – это максимальный комфорт без лишних лестниц и сложных переходов. Если в семье есть дети или пожилые люди, это становится особенно важным, ведь перемещение по дому без препятствий снижает риск травм и делает ежедневную жизнь проще.
Второе важное преимущество – экономия на строительстве и техническом обслуживании. Одноэтажные проекты зачастую обходятся дешевле многоэтажных, а еще имеют более простую систему отопления и вентиляции. Это позволяет существенно сэкономить бюджет как на этапе строительства, так и в будущем, во время эксплуатации дома.
Удобство и приватность
Три спальни в доме площадью 107,6 м² – оптимальное решение для семьи из 3-5 человек. Каждая комната достаточно просторная, чтобы обеспечить личное пространство и место для отдыха каждого члена семьи. При этом комнаты удобно расположены так, что создается ощущение уединения, но при этом не теряется связь с общими зонами – гостиная, кухня, столовая.
Два санузла — это действительно удобно
В современных домах санузлов больше одного – это не роскошь, а необходимость. Почему? Представьте, утром вся семья собирается на работу и в школу, и всем хочется быстро привести себя в порядок. Наличие двух санузлов позволяет сократить очереди и избежать ненужного стресса. Также второй санузел удобен для гостей и поддерживает порядок в доме.
О крыше и экстерьере – красота и практичность в одном
Многие при выборе дома обращают особое внимание на внешний вид и особенности крыши. Для одноэтажного дома «Академик Строй» разработал сложную конструкцию крыши двускатного и вальмового типа с углом наклона 30°. Такой дизайн придает дому особую выразительность и визуальную легкость.
Важно отметить, что площадь крыши составляет целых 192,60 м², что помогает существенно защитить дом от осадков и перепадов температуры. Правильно подобранный угол наклона — это не только вопрос эстетики, но и эффективности отвода воды и снега. В московском климате это особенно важно, так как зима может быть суровой и снежной.
Двускатная и вальмовые кровли: что это и зачем?
- Двускатная крыша — классическое решение, которое легко монтируется и служит надежной защитой от непогоды.
- Вальмовые крыши дополняют конструкцию и делают крышу более устойчивой к ветру, а также придают дому завершенный и элегантный вид.
В таком сочетании крыша становится не только функциональной, но и эффектной частью фасада.
Площадь и планировка: грамотное использование пространства
Общая площадь застройки – 135,39 м² — это та площадь, которую ваш участок будет занимать под домом. Она тщательно спроектирована, чтобы обеспечить гармоничное сочетание размерности, удобства и дополнительных возможностей.
Жилая площадь в размере 100,55 м² говорит о том, что большая часть дома выделена под комфортные комнаты — спальни, гостиную, кухню. Это позволяет устроить пространство так, чтобы каждый уголок был полезным и функциональным.
- Три спальни — для отдыха и уединения
- Два санузла — для комфорта и удобства
- Гостиная с камином — центр семейной жизни, где тепло и уютно
- Терраса — дополнительное место для отдыха и общения на свежем воздухе
Почему стоит заказать именно этот проект?
Потому что он уже готов к реализации! Вам не нужно тратить месяцы на разработку новых чертежей или искать дизайнеров. Все продумано профессионалами, с учетом климата Москвы, современных требований к строительству и энергоэффективности. Компания «Академик Строй» предлагает проект, который можно адаптировать под ваши пожелания, но при этом он уже практически готов к строительству.
Требования к участку под строительство дома 13х10
Перед тем, как начать строительство, важно убедиться, что участок соответствует нужным параметрам, иначе проект не сможет быть реализован в полном объеме.
| Параметр участка | Минимальное значение |
|---|---|
| Минимальная ширина участка | 21,20 м |
| Минимальная длина участка | 17,93 м |
Это позволит обеспечить достаточное пространство для дома с отступами, удобной организации двора и обустройства подъездных путей до дома. Не забывайте, что участок должен быть оборудован коммуникациями — водой, электричеством, газом и канализацией, для которых также необходимы дополнительные разрешения.
Камин и терраса — особенности, которые делают дом уникальным
Проект дома от «Академик Строй» включает в себя несколько опций, которые добавляют особый шарм и функциональность:
- Камин. В российском климате наличие камина – не просто декоративный элемент, а еще и дополнительный источник тепла. Это идеальное место для семейных вечеров, встреч с друзьями и просто уютного времяпрепровождения в холодное время года.
- Терраса. Пространство, выходящее на улицу, где можно наслаждаться свежим воздухом летом, устраивать барбекю или просто отдыхать с чашкой кофе в теплые дни. Терраса моментально расширяет жилую площадь и помогает чувствовать себя ближе к природе.
Как камин и терраса влияют на стоимость и ценность дома?
Хотя наличие камина и террасы может влиять на увеличение стоимости проекта, эти инвестиции вполне оправданы. Во-первых, они поднимают уровень комфортности. Во-вторых, такие дополнительные элементы делают дом более привлекательным на рынке недвижимости, что важно, если в будущем вы решите его продать или сдать в аренду.
Почему заказать проект в «Академик Строй» – это выгодно и надежно?
Компания «Академик Строй» специализируется на создании домов, которые идеально подходят под московские условия эксплуатации. У них за плечами многолетний опыт, сотни реализованных проектов и тысячи довольных клиентов. Заказав именно здесь, вы можете быть уверены в качестве, надежности и соблюдении всех строительных норм и правил.
- Профессионализм. Архитекторы и инженеры тщательно разрабатывают проекты с учетом всех деталей.
- Гибкость. Возможность внести изменения под индивидуальные пожелания.
- Ценовая политика. Отличное соотношение цены и качества, а также специальные предложения для жителей Москвы.
- Поддержка. Консультации на всех этапах, помощь с документами и разрешениями.
Как сделать заказ?
Все просто: достаточно позвонить по номеру +7 (980) 800-47-93, где менеджеры подробно расскажут обо всех нюансах, подберут именно ту версию проекта, которая подойдет вашим требованиям, и согласуют все детали. Это первый шаг на пути к дому вашей мечты.
Подводим итоги: кто оценит такой дом?
Одноэтажный дом 13х10 площадью 107,6 м² — это отличный выбор для тех, кто:
- Ищет комфортный и функциональный дом без лишних этажей.
- Хотел бы жить в доме с тремя спальнями для семьи.
- Ценит наличие двух санузлов для удобства.
- Мечтает о тепло-уютном доме с камином и террасой.
- Готов инвестировать в качество дома, созданного опытными специалистами.
Такой проект гармонично вписывается в городской или пригородный ландшафт Москвы, сочетает современные технологии и традиции, что делает его надежным и привлекательным вариантом для строительства.
Если вы хотите начать новый этап своей жизни в собственном доме с разумной планировкой и оптимальной площадью, проект от «Академик Строй» готов помочь вам в этом. Звоните, выбирайте, заказывайте — и наслаждайтесь комфортом уже очень скоро!







