Двухэтажный дом 13х10 – как выбрать идеальный проект в Москве от компании «Академик Строй»
Если вы мечтаете о собственном уютном доме в Москве или пригороде, но не знаете, с чего начать, то этот материал для вас. Сегодня расскажем подробно о кровле, площади, планировке, а главное — почему стоит обратить внимание именно на двухэтажные дома размером 13 на 10 метров от компании «Академик Строй». Это оптимальное решение для тех, кто хочет получить просторное, удобное жилье с разумной стоимостью проекта и качественным исполнением.
Двухэтажный дом с размерами 13х10 метров – это классика для типового участка в черте города или на дачном поселке. Вы получаете вместительное жилое пространство общей полезной площадью 151,73 м², имеют три спальни и два санузла – комфорт для всей семьи. Обсудим подробно, какие нюансы нужно учитывать при заказе проекта и качественной постройке.
Почему стоит выбирать двухэтажный дом 13х10
Площадь в 151,73 м² позволяет разместить все необходимые зоны – гостиную, кухню-столовую, спальни, кабинет или детские комнаты. Размеры 13 на 10 метров обеспечивают комфортные требования по минимальным размерам участка – порядка 20,64 м в ширину и 17,69 м в длину, что вполне доступно для московских условий. Заказав проект именно такого дома в «Академик Строй», вы получаете оптимальное соотношение цены и качества с полной документацией.
Очень важно понимать, что двухэтажная застройка экономит место на участке. Вместо обширного одноэтажного дома вы получаете компактную и эргономичную структуру. К тому же высота здания 7,68 м натолкнет вас на мысль о солидном и презентабельном внешнем виде, который прекрасно впишется в любой ландшафт.
Технические характеристики дома 13х10
| Параметр | Значение |
|---|---|
| Полезная площадь | 151,73 м² |
| Размеры дома | 13 х 10 м |
| Количество этажей | 2 |
| Количество спален | 3 |
| Количество санузлов | 2 |
| Жилая площадь | 93,28 м² |
| Высота аттиковой стены | 0,56 м |
| Площадь застройки | 129,44 м² |
| Площадь крыши | 215,52 м² |
| Угол наклона крыши | 35° |
| Высота здания | 7,68 м |
| Минимальные размеры участка | 20,64 м (ширина) x 17,69 м (длина) |
| Тип крыши | Двускатная |
| Опции | Камин, терраса |
Что дает такое техническое оснащение?
Высота аттиковой стены всего 0,56 м – это значит, что кровля плавно переходит в фасад, создавая современный архитектурный стиль, без громоздких и высотных «козырьков». Двускатная крыша с углом наклона 35° – универсальное и проверенное решение, которое обеспечивает надежный сток осадков и подходит для климатических условий Москвы. Высота в 7,68 м дает возможность удобно расположить второй этаж, при этом дом не кажется «перекошенным» и гармонично вписывается в окружающую застройку.
Площадь застройки 129,44 м² – сколько фактически займет дом на вашем участке. Важно помнить, что дополнительно понадобится место под маневры для техники, ландшафтный дизайн, а также проходы и подъезды.
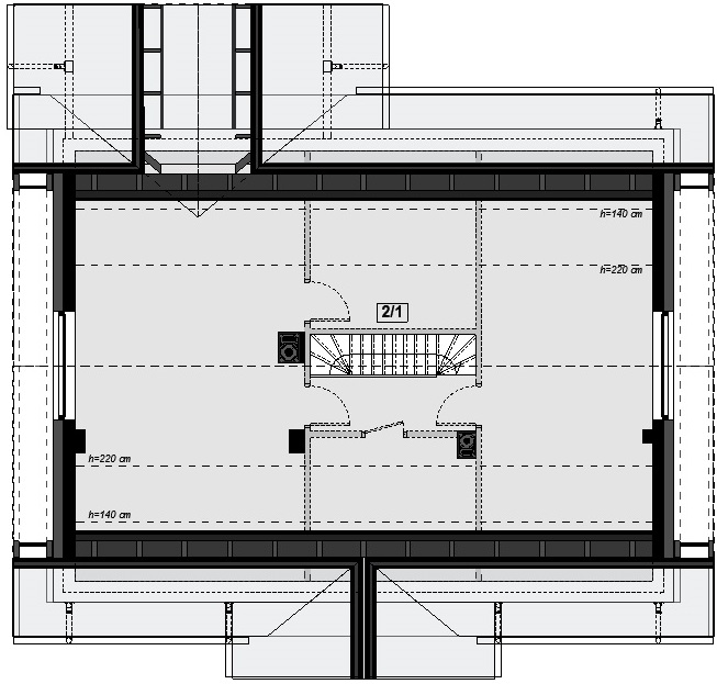
Планировка: как размещены комнаты и сколько пространства для семьи
Одно из основных преимуществ данного проекта – продуманная планировка. Три спальни будут удобны для семьи с детьми, или если вы желаете иметь кабинет и гостевую комнату. Два санузла – огромный плюс для комфорта и функциональности, особенно в вечернее время. Представьте, что больше не придется «стоять в очереди» утром или перед сном, а у каждого члена семьи будет своя зона личного пространства.
Жилая площадь и функциональность
Жилая площадь 93,28 м² четко разделена между зоной отдыха и активными помещениями. Высокий показатель чистого жилого пространства обеспечивает отсутствие тесноты. Гостиная и кухня-столовая занимают центральное место на первом этаже, что позволяет организовать открытое пространство для общения и семейных ужинов. Второй этаж – зона покоя, где предусмотрены все удобства.
- Три функциональные спальни для взрослых и детей;
- Два санузла для комфорта и личного пространства;
- Камин – уют в холодное время года и достойный дизайн;
- Терраса – отличное место для отдыха на свежем воздухе в теплое время года.
Экономика проекта: почему цена в Москве – оптимальная
Для многих жителей Москвы и Подмосковья размер инвестиций в строительство – самый главный вопрос. Проект такого дома в компании «Академик Строй» отличается конкурентоспособной ценой благодаря продуманной планировке, использованию современных энергоэффективных материалов и технологий строительства. Здесь экономия очевидна не только в стоимости проекта, но и в последующем обслуживании дома.
Прежде всего, стройка дома компактной формы – это гораздо дешевле, чем возведение большого одноэтажного особняка. Нормальная высота и двускатная крыша упрощают монтаж, а современные материалы позволяют сократить расходы на отопление. Камин добавляет дополнительный комфорт без крупных энергетических трат.
Сравнение стоимости с другими проектами
| Тип проекта | Площадь (м²) | Приблизительная стоимость (руб.) | Особенности |
|---|---|---|---|
| Двухэтажный дом 13x10 | 151,73 | от 3 000 000 | Оптимальное соотношение площади и цены, камин, терраса |
| Одноэтажный дом 15x15 | 225 | от 5 000 000 | Большая площадь, больше затрат на отопление и стройматериалы |
| Двухэтажный коттедж 10x8 | 120 | от 2 200 000 | Меньше пространства, экономия участка |
Очевидно, что проект от «Академик Строй» по совокупности параметров выгодно выделяется на фоне альтернатив.
Что важно учесть при выборе участка под дом 13х10
Подобный дом требует участка определенных габаритов. Как мы уже говорили, минимальная ширина должна составлять 20,64 м, а длина – не менее 17,69 м, чтобы не испытывать проблем с обустройством дворика, парковки или зоны отдыха на территории.
Обязательно подумайте о том, куда будет выходить терраса и как соотносится расположение дома с солнечной стороны. Хорошее освещение не только увеличивает уют, но и экономит расходы на электроэнергию.
Основные рекомендации по участку
- Выбирайте участок с хорошим дренажем: это защитит фундамент и стены от лишней влаги;
- Обратите внимание на удаленность коммуникаций: это влияет на время и стоимость подключения воды, газа, электричества;
- Расположение относительно окружающей застройки: не стоит приобретать слишком тесные участки, чтобы не страдать от шумов и отсутствия личного пространства;
- Планируйте вход в дом и парковку, учитывая общую ориентацию участка.
Как заказать проект дома 13х10 в компании «Академик Строй»
Если вы решили приобрести качественный проект двухэтажного дома, достаточно связаться с офисом компании по телефону +7 (980) 800-47-93. Здесь вы получите профессиональную консультацию, возможность адаптации проекта под ваши нужды и условия участка, а также подробную смету и план строительства.
Компания «Академик Строй» обеспечивает полный комплекс услуг – от проектирования до запуска строительства, использование современных технологий и материалов, соблюдение всех норм и стандартов. При заказе проекта вы получите:
- Подробные чертежи и документацию, необходимые для монтажа и согласования;
- Разработку индивидуальных решений и инженерных систем;
- Гарантию технической поддержки и постпродажного обслуживания.
Преимущества заказа проекта именно здесь
Опыт и профессионализм команды заметны в экономичности планировки и эргономике внутреннего пространства. Многие клиенты отмечают комфорт в эксплуатации, энергоэффективность и долговечность построек. К тому же сотрудничество с надежным подрядчиком исключает множество непредвиденных ситуаций во время стройки.
Кроме того, возможность заказать проект с опциями – камином и террасой – добавляет однозначной ценности и финального стиля дому. Камин – это не только тепло, но и душевный шарм, который традиционно очень ценится в московских семьях.
Как двускатная крыша с углом в 35° решает задачи климата и эстетики
Особое внимание стоит уделить крыше, ведь климат в Московской области зимой зачастую суров, а дожди и снегопады требуют продуманной конструкции кровли. Двускатная крыша с уклоном в 35 градусов – одно из лучших решений по защите дома от осадков. Она быстро сбрасывает снег и не позволяет образовываться лужам, что увеличивает долговечность материалов.
Площадь крыши 215,52 м² и высота здания 7,68 м создают ощущение масштабности и вместе с тем не переусложняют строительство. Под такой крышей легко разместить мансарду или утепленные чердачные помещения для хозяйственных нужд.
Почему именно такой угол наклона крыши?
- 35° — оптимальное соотношение между объемом пространства под крышей и простотой конструкции;
- Скаты достаточно крутые для быстрого стока воды и снегоудаления;
- Обеспечивает классический внешний вид, который нравится большинству домовладельцев;
- Упрощает монтаж чердачных окон и мансардных помещений.
Поддержка и сервис после заказа проекта
Когда дело доходит до строительства дома, зачастую заказ проекта – это лишь первый этап. Компания «Академик Строй» заботится о своих клиентах и предлагает не только полный пакет чертежей, но и техническое сопровождение. Это особенно важно для тех, кто строит дом своими силами или впервые сталкивается со сложностями строительства.
Обратная связь, поддержка на всех этапах, советы по выбору материалов, рекомендации по энергоэффективности – все это делает процесс комфортнее и надежнее. В итоге вы получаете не просто дом, а теплое, удобное долгосрочное жилье, построенное на доверии и профессионализме.
В заключение о выборе проекта 13x10 – лучший вариант для семьи и вложение в будущее
Если вы стоите перед выбором проекта дома, ориентируйтесь не только на привлекательный внешний вид, но и на практичность и продуманность внутренних решений. «Академик Строй» предлагает отличный проект двухэтажного дома размером 13 на 10 метров с общей полезной площадью 151,73 м², гарантируя качество и справедливую цену.
В таком доме вы найдете все – современный дизайн, комфорт, возможность реализовать задумки с камином и террасой, практичные размеры участка, удобство коммуникаций и надежную строительную документацию. Звоните прямо сейчас по телефону +7 (980) 800-47-93 и делайте первый шаг к дому своей мечты в Москве!







