Общая информация о двухэтажном доме 16x11 – 140,3 м²
Проект двухэтажного дома размером 16 на 11 метров с полезной площадью 140,3 квадратных метров представляет собой идеальное решение для семьи, которая ценит комфорт, функциональность и стиль. Несмотря на сравнительно компактные габариты, дом предлагает достаточное пространство для проживания пятерых и более человек. В нем продуман каждый квадратный метр, чтобы обеспечить удобство и уют каждому члену семьи.
Главное преимущество данного дома – это грамотно спланированная жилая площадь, которая составляет несмотря на полезную площадь, внушительные 154,10 квадратных метров. Этот показатель означает, что внутри дома создано максимально комфортное пространство для размещения комнат различного назначения – от спален до рабочих кабинетов.
Размеры и параметры дома
Дом имеет габариты 16 на 11 метров, что является оптимальным сочетанием для загородного жилья. Такой размер позволяет разместить на участке дом, оставляя достаточно места для организации сада, зоны отдыха или небольшого хозяйственного блока. Минимальные требования к участку при этом составляют 24 метра в ширину и 18,9 метра в длину.
Объем брутто здания достигает 785 кубических метров, что говорит о солидном объеме помещений в сочетании с высотой здания, которая равна 8,23 метрам. Такая высота обеспечивает возможность реализаций высоких потолков внутри дома, способствуя созданию ощущения простора и комфорта.
| Параметр | Значение |
|---|---|
| Размеры дома | 16 x 11 м |
| Полезная площадь | 140,3 м² |
| Жилая площадь | 154,10 м² |
| Этажность | 2 этажа |
| Объем брутто | 785 м³ |
| Высота здания | 8,23 м |
Конструкция и архитектурные особенности дома
Двухэтажный дом выполнен с двускатной крышей с углом наклона 42°, что является классическим и практичным архитектурным решением. Такая крыша надежно защищает строение от осадков и эффективно выводит снежные массы в зимний период. Крыша занимает площадь 233,8 квадратных метров, что свидетельствует о достаточно большом перекрытии, способном защитить стены и продлить срок службы фасадных материалов.
Высота здания в 8,23 метра позволяет создать объемные комнаты с высокими потолками, которые визуально расширяют пространство. Высокие потолки особенно актуальны для жилых комнат и гостиной, где ценится простор и естественная вентиляция. Благодаря этому дизайн интерьеров получает дополнительные возможности для оформления и декорирования.
Особенности планировки и функциональные зоны
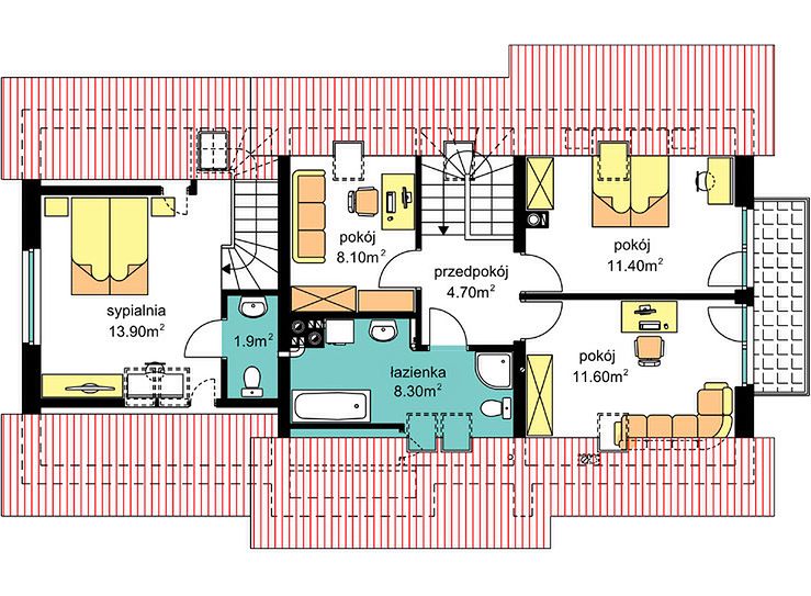
Проект ориентирован на оснащение дома пятью и более спальнями, что делает его особенно удобным для больших семей или двух поколений, проживающих под одной крышей. Кроме того, в доме предусмотрено 4 санузла – это уникальное предложение для домов такого размера, которое значительно увеличивает комфорт и удобство проживания.
Три санузла можно расположить по одному на каждом этаже и один в гостевой зоне, что удобно для гостей и членов семьи. Это позволяет сэкономить время, избегая очередей в утренние часы, а также повышает личную приватность каждого жильца. Множество ванных комнат упрощает организацию бытовых процессов и способствует гигиеническому комфорту.
Планировка жилых и вспомогательных помещений
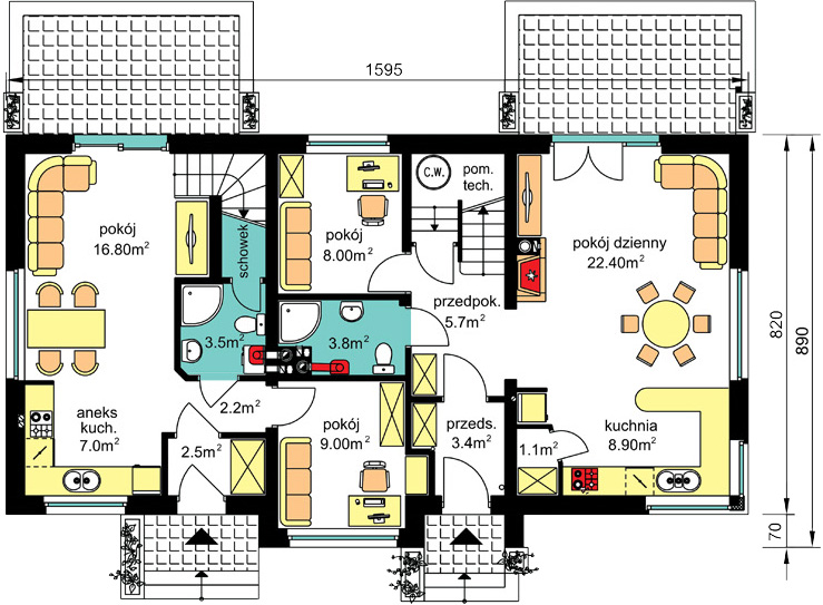
Одним из привлекательных моментов проекта является наличие комнаты на первом этаже, которая может быть использована как кабинет, игровая комната для детей, или же спальня для пожилых членов семьи. Это решение особенно удобно, поскольку избавляет от необходимости подниматься по лестнице, улучшая функциональность дома.
Также предусмотрена терраса, позволяющая наслаждаться свежим воздухом, отдыхать на открытом пространстве и проводить вечеринки в кругу семьи и друзей. Терраса – это важный элемент комфорта, особенно в теплое время года, когда хочется соединить домашний уют с природой.
Расходы и стоимость строительства
Цена такого дома составляет 5 860 693 рубля — это оптимальная стоимость для такого параметра площади и архитектурных особенностей на современном рынке строительства загородных домов. Сюда входят качественные материалы, продуманные инженерные решения и высокотехнологичные методы строительства, что гарантирует долговечность и комфорт.
Примерное распределение затрат при возведении такого дома может включать несколько ключевых статей:
- Фундамент и несущие конструкции – до 25% общей стоимости
- Стены и кровля – около 30%
- Инженерные системы (электрика, водоснабжение, отопление) – 20%
- Внутренняя отделка и отделочные материалы – 15%
- Прочие расходы (проектирование, работы подрядчиков, оформление документации) – 10%
| Статья расхода | Доля в стоимости (%) |
|---|---|
| Фундамент и конструкции | 25% |
| Стены и кровля | 30% |
| Инженерные системы | 20% |
| Внутренняя отделка | 15% |
| Прочие расходы | 10% |
Экономия и инвестиции в комфорт
Хотя цена может показаться достаточно высокой, это инвестиция не только в комфортное жилье, но и в долговечный проект с проверенными технологиями строительства. Высокое качество материалов и продуманная планировка помогут избежать дополнительных расходов на ремонт и перепланировку в будущем.
Энергоэффективность и инженерные системы
Современные дома подобного класса строятся с учетом энергоэффективности, что позволяет существенно снизить эксплуатационные расходы. Благодаря правильному выбору утеплителя, современных оконных конструкций и эффективной вентиляции в доме достигается оптимальный микроклимат и комфортная температура круглый год.
Камин, включенный в проект, не только является эстетическим акцентом, создающим уютную атмосферу в гостиной, но и служит дополнительным источником тепла, что особенно выгодно в холодное время года. Современные камины разрабатываются с учетом безопасности и высокой теплоотдачи, позволяя значительно снизить затраты на отопление.
Водоснабжение и отопление
Дом оборудован четырьмя санузлами, что требует грамотной системы водоснабжения и канализации. Современные инженерные решения позволяют минимизировать потери воды и обеспечить стабильную работу всех приборов без перебоев. Система отопления может быть как традиционной с газовым котлом, так и гибкой с использованием альтернативных источников энергии, таких как тепловые насосы или солнечные коллекторы.
Проектирование и внутренняя отделка
Внутренняя планировка дома способствует максимальному использованию каждого квадратного метра. Просторные спальни ориентированы на максимальный комфорт членов семьи, а отдельные отдельные функциональные зоны помогут избежать лишней тесноты и сделают дом удобным для всех.
Использование современных отделочных материалов позволяет не только создать эстетически привлекательный интерьер, но и обеспечить долговечность и легкость обслуживания помещений. Большое внимание уделяется естественному освещению комнат через окна, благодаря чему дом наполнен светом и теплом.
Зонирование и комфорт
Выделение гостевой зоны, рабочих кабинетов и зон отдыха делает дом по-настоящему функциональным и удобным для проживания. Эта способность к зонированию особенно важна при большом количестве спален и санузлов, которые должны быть максимально автономными для сохранения приватности.
| Этаж | Основные помещения |
|---|---|
| Первый этаж | Гостиная, кухня, столовая, кабинет, санузел, комната отдыха, терраса |
| Второй этаж | 5+ спален, 3 санузла, гардеробные |
Особенности эксплуатации и удобства для жизни
Двухэтажный дом с пятью спальнями и четырьмя санузлами спроектирован так, чтобы обеспечить максимальное удобство для большой семьи или семьи с частыми гостями. Большое количество санузлов позволит избежать бытовых неудобств в пиковые часы, а просторные спальни обеспечат каждому члену семьи личное пространство.
Отсутствие гаража в проекте открывает возможность создания дополнительной открытой парковочной зоны рядом с домом либо возведения гаража отдельно, в зависимости от предпочтений владельцев и особенностей участка.
Комфорт и функциональность на каждый день
Наличие террасы и комнаты отдыха на первом этаже – это важные преимущества для организации досуга и отдыха всей семьи. На террасе можно устраивать семейные обеды, небольшие вечеринки или просто наслаждаться природой и свежим воздухом без необходимости покидать домашний уют.
Кроме того, продуманная функциональная планировка позволяет разделить зоны для активного отдыха и уединения, что положительно сказывается на психологическом комфорте жителей дома.
Заключение
Проект двухэтажного дома 16 на 11 метров и площадью 140,3 квадратных метров представляет собой идеальный вариант для тех, кто ищет просторное, комфортное и функциональное жилье для большой семьи. Оптимальное сочетание размеров, количество спален и санузлов, продвинутые инженерные решения, а также продуманная планировка делают этот дом надежным и удобным выбором для постоянного проживания.
Стоимость в 5 860 693 рубля адекватна уровню качества материалов и строительно-монтажных работ, благодаря чему этот дом станет отличным вложением в комфорт и уют вашей семьи на многие годы.






