Двухэтажный дом размером 11х12 метров: особенности и преимущества
Строительство частного дома всегда начинается с тщательного планирования и выбора правильного проекта. Дом размером 11 на 12 метров – это оптимальное решение, которое сочетает в себе удобство, функциональность и эстетическую привлекательность. Такой дом подойдет как для семей с детьми, так и для тех, кто предпочитает простор и комфорт в жилом пространстве.
В данной статье мы подробно рассмотрим особенности двухэтажного дома с размерами 11 x 12 метров, общей площадью около 177,19 м², уделяя внимание планировке, количеству комнат, санузлам и другим важным аспектам. Если вы планируете строительство или хотите лучше понять данный тип дома, эта информация поможет вам сделать правильный выбор.
Планировка и габариты дома 11х12 метров
Габариты дома – один из ключевых параметров при его проектировании. Дом размером 11 метров по ширине и 12 метров по длине занимает средний сегмент частного жилья. Именно эти размеры позволяют рационально распределить внутреннее пространство, обеспечивая удобство и эргономику.
Двухэтажный дом площадью 177,19 м² при таких размерах становится идеальной площадкой для создания уютного и вместительного жилья. Важно учитывать, что при такой конфигурации можно не только комфортно разместить все необходимые жилые и бытовые помещения, но и сохранить достаточную площадь участка для сада, парковки или зон отдыха.
Значение двух этажей в жилом доме
Два этажа – это классика современного частного домостроения. Она обеспечивает максимальное использование площади при минимальном занимаемом участке. Таким образом, дом 11 на 12 метров с двумя этажами открывает дополнительные возможности по размещению необходимых функциональных зон.
На первом этаже можно организовать просторную гостиную, кухню, столовую и санузел, а второй этаж выделить под приватные зоны: спальни и дополнительные санузлы. Такой раздел между общественными и личными пространствами способствует комфортной жизни всех членов семьи.
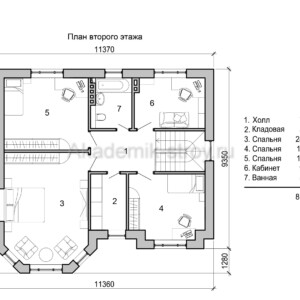
Количество и расположение комнат в доме 11х12 метров
В доме размером 11х12 метров можно удобно разместить 4 спальни, что делает его привлекательным вариантом для семьи из четырех и более человек. Четыре спальни — это хороший баланс между приватностью и доступностью помещений.
Расположение спален, особенно на втором этаже, позволяет создавать уединённые зоны для каждого члена семьи. Часто проект предусматривает родительскую спальню с более просторным интерьером, а остальные три спальни могут быть комнатами для детей или гостевыми.
Два санузла – комфорт и удобство
Количество санузлов в доме играет важную роль в организации быта. Два санузла – оптимальный вариант для современного дома такого размера. Один санузел обычно располагается на первом этаже для гостей и общей эксплуатации, второй – на втором этаже рядом со спальнями, что обеспечивает комфорт и приватность.
Такое расположение помогает сократить очереди по утрам и вечером, особенно в семьях с несколькими детьми. Также наличие двух санузлов повышает уровень гигиены и удобства в доме.
Преимущества и достоинства проекта дома 11x12 с 4 спальнями и 2 санузлами
Дом с размерами 11 на 12 метров, в котором предусмотрено 4 спальни и 2 санузла, отличается функциональностью, комфортом и рациональным использованием площади. Основные достоинства такого проекта включают в себя несколько ключевых пунктов:
- Просторные жилые зоны для всей семьи.
- Разделение общественных и приватных помещений между этажами.
- Комфортное количество санузлов, что исключает излишние очереди и обеспечивает удобство.
- Оптимальное соотношение занимаемой площади и полезной жилой площади.
- Возможность организации дополнительных функциональных комнат (кабинет, гардеробная, зона отдыха).
- Экономия земельного участка за счет компактности планировки при двух этажах.
Как правильно выбрать участок для строительства дома 11x12 метров
Размеры дома 11 на 12 метров определяют минимальные требования к площади и форме земельного участка. Конкретные параметры зависят от планируемого отступа от границ участка, требований к ландшафтному дизайну, парковке и прочим элементам.
Рекомендуется выбирать участок шириной и длиной, превышающими размеры дома минимум на 6-8 метров по каждой стороне для возможности обустройства зон отдыха, подъездных путей и комфортного расположения строения на участке с соблюдением нормативных отступов.
Важность ориентации дома относительно сторон света
При проектировании дома критично учитывать ориентацию относительно сторон света. Это влияет на естественное освещение, тепловой режим и энергоэффективность здания. Дом 11х12 метров можно сориентировать так, чтобы главные жилые комнаты получали максимальное количество солнечного света, а санитарно-технические помещения были расположены на северной стороне.
Правильная ориентация также способствует созданию комфортного микроклимата в доме, снижая потребность в дополнительном отоплении или кондиционировании.
Внутреннее зонирование и распределение пространства
Одним из важнейших аспектов проектирования двуэтажного дома 11х12 метров является грамотное зонирование пространства. Это обеспечивает комфорт, удобство и функциональность каждого помещения, а также способствует более рациональному использованию площади.
Чаще всего в таких проектах первый этаж отдается под общественные зоны: гостиную, кухню, столовую, а второй – под личные комнаты и спальни. Важно предусмотреть достаточное количество удобных проходов и коммуникаций, чтобы не создавать неудобств при перемещении по дому.
Типичная планировка первого этажа
| Помещение | Функция | Пример площади (м²) |
|---|---|---|
| Гостиная | Общественное пространство: отдых, прием гостей | 30-35 |
| Кухня-столовая | Приготовление еды, прием пищи | 20-25 |
| Прихожая | Входная зона, размещение верхней одежды | 8-10 |
| Санузел | Общий, гостевой санузел | 3-5 |
| Хозяйственные помещения | Кладовые, котельная | 5-7 |
Расположение спален и санузлов на втором этаже
Второй этаж традиционно зонируется под комфортные и приватные комнаты. В доме с 4 спальнями обычно выделяют основные и дополнительные спальни, которые могут быть предназначены для детей, гостей или других членов семьи.
Расположение второго санузла рядом с комнатами значительно повышает удобство, особенно в утренние и вечерние часы. Продуманный дизайн позволяет каждому члену семьи иметь личное пространство и приватность, создав условия для полноценного отдыха.
Строительные материалы и технология возведения дома 11x12 м
При выборе строительных материалов важно учитывать климатические условия, желаемый срок эксплуатации дома, бюджет и эстетические предпочтения. Среди популярных материалов для домов такого размера выделяются кирпич, газобетон, дерево и комбинированные варианты.
Газобетонные блоки – отличный выбор для теплого, легкого и быстро возводимого дома, обеспечивающего хорошую теплоизоляцию. Кирпич более прочен и долговечен, однако требует дополнительных расходов на фундамент и отделочные работы. Дерево придаст дому уют и экологичность, но нуждается в регулярном уходе и защите от влаги и насекомых.
Технология строительства двухэтажного дома
Двухэтажный дом 11х12 метров обычно возводится на монолитном или ленточном фундаменте. Стены возводятся с применением выбранных блоков или кирпича, после чего выполняется устройство перекрытий и крыши. Особое внимание уделяется гидроизоляции и утеплению фасадов, чтобы обеспечить энергоэффективность и долговечность здания.
Внутренние перегородки могут быть выполнены из гипсокартона или легких блоков, что позволяет быстро и экономично организовать пространство. Монтаж инженерных систем, таких как отопление, водоснабжение и электроэнергия, осуществляется параллельно со строительными работами.
Советы по оформлению экстерьера и ландшафта участка
Двухэтажный дом 11 на 12 метров предоставляет множество возможностей не только для внутреннего комфорта, но и для стильного оформления фасада и участка. Важно продумать архитектурный стиль здания, отделку и общую концепцию, чтобы дом гармонично вписывался в окружающую среду.
Очень популярным решением являются комбинированные фасады с использованием штукатурки и декоративного облицовочного камня, что придает дому современный и презентабельный вид. Освещение участка, дорожки и зеленые зоны дополнят общий облик и создадут атмосферу уюта и безопасности.
Ландшафтные элементы и зоны отдыха
- Газоны или цветники по периметру дома.
- Зона отдыха с беседкой или мангалом.
- Дорожки из камня или тротуарной плитки.
- Деревья и кустарники для затенения и уюта.
При проектировании ландшафта важно учитывать размеры участка, чтобы все объекты не создавали ненужной тесноты и эффективно использовали территорию.
Планирование коммуникаций и инженерных систем
В доме площадью 177,19 м² с двумя этажами необходимо тщательно продумать все инженерные коммуникации: водоснабжение и канализацию, электрификацию, систему отопления и вентиляции. Это особенно актуально в холодных регионах, где надежное отопление – залог комфорта и безопасности жильцов.
Расчет необходимой мощности отопительных приборов, выбор насосов и фильтров для воды, установка современных систем автоматизации значительно повысит качество проживания и снизит эксплуатационные расходы.
Современные технологии и энергоэффективность
Сегодня многие выбирают энергосберегающие технологии при строительстве частного дома. Использование теплых окон, качественной изоляции, современных котлов и систем управления микроклиматом позволяет сэкономить на коммунальных платежах и снизить экологический след.
Интеграция систем «умный дом» в проект двуэтажного дома площадью 177,19 м² подчеркивает современный подход к жилью и повышает его удобство.
Финансовые аспекты строительства дома 11х12
Стоимость возведения двухэтажного дома размерами 11 на 12 метров зависит от множества факторов, в том числе от выбранных материалов, сложности проекта, типа фундамента и инженерных систем. Общий бюджет может варьироваться в широких пределах, поэтому важно заранее планировать расходы и оставлять резерв на непредвиденные затраты.
Также стоит учесть затраты на подготовку участка, проведение коммуникаций и отделочные работы. Оптимальное распределение бюджета и выбор качественных, но экономичных материалов помогут построить надежное и комфортное жилье.
Итоговые рекомендации для желающих построить двухэтажный дом 11 на 12 метров
Дом с размерами 11х12 метров и площадью около 177,19 м² представляет собой отличный вариант для семейной жизни. С четырьмя спальнями и двумя санузлами такая постройка отвечает требованиям современного комфорта и функциональности.
Перед началом строительства важно внимательно продумать все этапы, начиная с выбора участка и заканчивая проектированием инженерных систем. Обращение к опытным специалистам и архитекторам позволит создать индивидуальный проект, идеально подходящий под ваши нужды и пожелания.
Помните, что качественный дом – это не только размеры и количество комнат, но и продуманная планировка, надежные материалы, удобная инфраструктура и уют, который вы создадите своей семьей.





























