Двухэтажный дом 12x10 - 137.14 м2 за руб.

ID-94095

Стоимость дома 5273431 руб.
154 м2 Полезная
площадь
12 x 10 м Размеры
2 этажа Этажей
26 м2 Террасы
и балконы
0Без
гаража
4 Количество
спален
2 Количество
санузлов

Планировки

План первого этажа

floor image
  • 1. Прихожая 5,23 m²
  • 2. Холл 7,26 m²
  • 3. Кухня 9,23 m²
  • 4. Кладовая 2,41 m²
  • 5. Гостиная + столовая 31,08 m²
  • 6. Ванная комната 3,92 m²
  • 7. Кладовая 8,07 m²
  • 8. Комната 12,55 m²
  • План первого этажа 79,75 m²

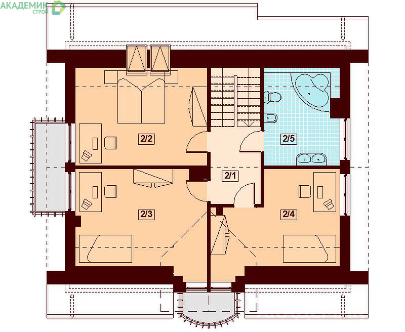
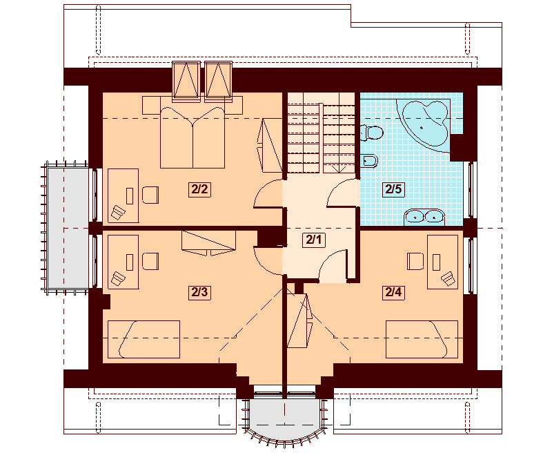
План мансарды

floor image
  • 1. Коридор 5,56 m²
  • 2. Комната 14,95 m² (21,55 m²)
  • 3. Комната 15,81 m² (21,17 m²)
  • 4. Комната 12,81 m² (18,03 m²)
  • 5. Ванная комната 8,26 m² (12,04 m²)
  • План мансарды 57,39 m²

Фасады

Передний
Задний
Левый
Правый
Передний
Задний
Левый
Правый

Подробная информация

Жилая площадь
137,14 m²
icon

Сумма площади всех жилых помещений, за вычетом пов. гараж, котельная, чердак, подвал. Учитывается в 100%, для помещений высотой более 2,2 м, в 50% для помещений с высотой 2,2-1,4 м и не включается для более низких помещений (меньше 1,4 м).

Площадь застройки
107,66 m²
icon

Площадь застройки здания определяется как площадь горизонтального сечения по внешнему обводу здания на уровне цоколя, включая выступающие части.

Нетто кубатура
404 m³
icon

Площадь крыши
183,44 m²
icon

Угол наклона крыши
40°
icon

Наклон ската крыши в градусах. Внимание! В некоторых проектах возникает более чем один наклон крыши.

Высота здания
8,39 m
icon

Высота измеряется от поверхности земли до самой высокой точки кровли (конька), за исключением дымоходов.

Ширина фасада
12,04 m
icon

Длина фасада
9,54 m
icon

Мин. ширина участка
20,04 m
icon

Наименьшая возможная ширина участка, необходимая для строительства выбранного дома. Состоит из длины фасада дома плюс с обеих сторон три метра отступ.

Мин. длина участка
17,54 m
icon

Наименьшая возможная длина участка, необходимая для строительства выбранного дома. Состоит из длины фасада дома плюс с обеих сторон три метра отступ.

Материалы и опции
Общие
Цена, руб.
Площадь м²
170
Площадь от и до
Ежемесячный платёж, руб
Количество спален
4
Гараж
0
Количество санузлов
2
Тип крыши
Ширина
12
Глубина
10

Площади дома

№ п/п Наименование Ед. из. Строительная площадь Полезная площадь
1 1 этаж м2 98.28 79.75
2 2 этаж м2 70.72 57.39
3 Итого м2 169 137.14

Калькулятор опций

0

В ипотеку от 17 685 ₽/мес.

Фундамент
538 054
Работа:232 865
Материалы:305 189
Дни:20
323 459
Работа:108 324
Материалы:215 135
Дни:2
545 081
Работа:218 811
Материалы:326 270
Дни:20
1 044 540
Работа:466 378
Материалы:578 162
Дни:30
1 752 323
Работа:644 324
Материалы:1 107 999
Дни:32
662 270
Работа:264 973
Материалы:397 297
Дни:20
4 155 672
Работа:1 894 485
Материалы:2 261 187
Дни:30
4 958 049
Работа:2 209 836
Материалы:2 748 213
Дни:40
172 973
Работа:43 243
Материалы:129 730
Дни:1
Перекрытие цоколя
309 621
Работа:132 973
Материалы:176 648
Дни:8
495 891
Работа:164 324
Материалы:331 567
Дни:13
884 864
Работа:361 946
Материалы:522 918
Дни:18
Стены 1 этаж (несущие)
868 432
Работа:544 108
Материалы:324 324
Дни:29
999 675
Работа:512 108
Материалы:487 567
Дни:23
1 539 025
Работа:944 431
Материалы:594 594
Дни:30
1 259 566
Работа:551 999
Материалы:707 567
Дни:45
2 354 700
Работа:519 567
Материалы:1 835 133
Дни:24
518 594
Работа:261 405
Материалы:257 189
Дни:15
283 243
Работа:152 432
Материалы:130 811
Дни:7
996 107
Работа:346 378
Материалы:649 729
Дни:7
1 301 080
Работа:415 675
Материалы:885 405
Дни:7
8 544 316
Работа:415 675
Материалы:8 128 641
Дни:7
4 624 968
Работа:519 567
Материалы:4 105 401
Дни:7
727 459
Работа:173 189
Материалы:554 270
Дни:7
955 242
Работа:490 594
Материалы:464 648
Дни:29
836 323
Работа:544 648
Материалы:291 675
Дни:29
955 242
Работа:490 594
Материалы:464 648
Дни:29
1 013 837
Работа:620 216
Материалы:393 621
Дни:23
1 295 891
Работа:436 432
Материалы:859 459
Дни:7
1 469 512
Работа:900 648
Материалы:568 864
Дни:25
531 567
Работа:274 378
Материалы:257 189
Дни:15
4 925 617
Работа:1 039 134
Материалы:3 886 483
Дни:15
589 405
Работа:277 189
Материалы:312 216
Дни:15
802 594
Работа:455 567
Материалы:347 027
Дни:19
847 134
Работа:544 648
Материалы:302 486
Дни:29
544 107
Работа:285 621
Материалы:258 486
Дни:15
999 675
Работа:512 108
Материалы:487 567
Дни:23
584 000
Работа:227 027
Материалы:356 973
Дни:15
748 107
Работа:545 513
Материалы:202 594
Дни:7
Перекрытие первого этажа
309 621
Работа:132 973
Материалы:176 648
Дни:8
495 891
Работа:164 324
Материалы:331 567
Дни:13
884 864
Работа:361 946
Материалы:522 918
Дни:18
Стены 2 этаж (несущие)
624 903
Работа:391 527
Материалы:233 376
Дни:29
719 343
Работа:368 501
Материалы:350 842
Дни:23
1 107 447
Работа:679 591
Материалы:427 856
Дни:30
906 355
Работа:397 206
Материалы:509 149
Дни:45
1 694 387
Работа:373 868
Материалы:1 320 519
Дни:24
373 168
Работа:188 101
Материалы:185 067
Дни:15
203 815
Работа:109 687
Материалы:94 128
Дни:7
716 776
Работа:249 246
Материалы:467 530
Дни:7
936 226
Работа:299 110
Материалы:637 116
Дни:7
6 148 290
Работа:299 110
Материалы:5 849 180
Дни:7
1 632 154
Работа:373 868
Материалы:1 258 286
Дни:7
523 463
Работа:124 623
Материалы:398 840
Дни:10
687 370
Работа:353 020
Материалы:334 350
Дни:29
601 799
Работа:391 916
Материалы:209 883
Дни:29
687 370
Работа:353 020
Материалы:334 350
Дни:29
729 534
Работа:446 293
Материалы:283 241
Дни:23
932 492
Работа:314 046
Материалы:618 446
Дни:7
1 057 427
Работа:648 085
Материалы:409 342
Дни:25
382 503
Работа:197 436
Материалы:185 067
Дни:15
3 544 359
Работа:747 737
Материалы:2 796 622
Дни:15
424 122
Работа:199 459
Материалы:224 663
Дни:15
577 527
Работа:327 815
Материалы:249 712
Дни:19
609 578
Работа:391 916
Материалы:217 662
Дни:29
391 527
Работа:205 526
Материалы:186 001
Дни:15
719 343
Работа:368 501
Материалы:350 842
Дни:10
420 232
Работа:163 363
Материалы:256 869
Дни:10
538 320
Работа:392 538
Материалы:145 782
Дни:7
Крыша (Скатная)
1 279 782
Работа:619 026
Материалы:660 756
Дни:20
1 397 837
Работа:643 243
Материалы:754 594
Дни:20
2 163 889
Работа:1 022 269
Материалы:1 141 620
Дни:20
1 990 377
Работа:962 702
Материалы:1 027 675
Дни:20
2 400 646
Работа:1 022 269
Материалы:1 378 377
Дни:20
1 809 728
Работа:885 405
Материалы:924 323
Дни:20
4 021 618
Работа:1 810 809
Материалы:2 210 809
Дни:20
3 959 996
Работа:1 814 052
Материалы:2 145 944
Дни:20
778 378
Работа:405 405
Материалы:372 973
Дни:20
Окна
297 786
Работа:95 792
Материалы:201 994
Дни:3
0
Работа:0
Материалы:0
Дни:0
Двери входные
17 050
Работа:6 050
Материалы:11 000
Дни:1
0
Работа:0
Материалы:0
Дни:0
Утепление кровли (Мансарда)
0
Работа:0
Материалы:0
Дни:0
195 459
Работа:70 270
Материалы:125 189
Дни:5
113 946
Работа:25 297
Материалы:88 649
Дни:3
166 054
Работа:42 162
Материалы:123 892
Дни:3
93 621
Работа:42 162
Материалы:51 459
Дни:3
250 162
Работа:25 297
Материалы:224 865
Дни:2
328 216
Работа:42 162
Материалы:286 054
Дни:3
Мансардные окна
0
Работа:0
Материалы:0
Дни:0
71 918
Работа:19 690
Материалы:52 228
Дни:6
Подшивка кровли
0
Работа:0
Материалы:0
Дни:0
360 216
Работа:165 297
Материалы:194 919
Дни:7
Водосточная система
0
Работа:0
Материалы:0
Дни:0
360 324
Работа:161 189
Материалы:199 135
Дни:7
Дополнительное утепление наружных стен
0
Работа:0
Материалы:0
Дни:0
1 071 156
Работа:432 218
Материалы:638 938
Дни:7
378 307
Работа:227 728
Материалы:150 579
Дни:3
1 181 395
Работа:333 691
Материалы:847 704
Дни:5
1 230 101
Работа:333 691
Материалы:896 410
Дни:5
667 195
Работа:135 521
Материалы:531 674
Дни:3
1 695 966
Работа:148 720
Материалы:1 547 246
Дни:5
Наружная отделка фасада
0
Работа:0
Материалы:0
Дни:0
816 287
Работа:259 702
Материалы:556 585
Дни:20
879 493
Работа:285 728
Материалы:593 765
Дни:20
638 195
Работа:223 452
Материалы:414 743
Дни:35
2 121 863
Работа:602 316
Материалы:1 519 547
Дни:45
1 111 868
Работа:559 001
Материалы:552 867
Дни:40
469 584
Работа:234 792
Материалы:234 792
Дни:20
1 445 558
Работа:602 316
Материалы:843 242
Дни:45
1 590 189
Работа:433 705
Материалы:1 156 484
Дни:20
879 307
Работа:361 390
Материалы:517 917
Дни:20
1 084 169
Работа:481 853
Материалы:602 316
Дни:20
1 510 995
Работа:650 464
Материалы:860 531
Дни:20
1 865 693
Работа:556 399
Материалы:1 309 294
Дни:20
1 326 397
Работа:481 853
Материалы:844 544
Дни:20
Террасы, крыльца, навесы
0
Работа:0
Материалы:0
Дни:0
409 200
Работа:64 350
Материалы:344 850
Дни:5
Балконы
0
Работа:0
Материалы:0
Дни:0
183 150
Работа:64 350
Материалы:118 800
Дни:12
Отмостка
0
Работа:0
Материалы:0
Дни:0
464 864
Работа:189 189
Материалы:275 675
Дни:15
335 135
Работа:156 757
Материалы:178 378
Дни:10
Дренаж вокруг дома
0
Работа:0
Материалы:0
Дни:0
462 378
Работа:206 594
Материалы:255 784
Дни:5
Автономная канализация (септики)
0
Работа:0
Материалы:0
Дни:0
270 974
Работа:55 000
Материалы:215 974
Дни:7
Внутренние (не несущие) перегородки
0
Работа:0
Материалы:0
Дни:0
178 464
Работа:70 642
Материалы:107 822
Дни:11
301 530
Работа:111 540
Материалы:189 990
Дни:5
345 774
Работа:130 130
Материалы:215 644
Дни:11
499 142
Работа:167 310
Материалы:331 832
Дни:7
Электрика
0
Работа:0
Материалы:0
Дни:0
241 366
Работа:143 311
Материалы:98 055
Дни:10
Сантехника, канализация в доме
0
Работа:0
Материалы:0
Дни:0
200 635
Работа:110 123
Материалы:90 512
Дни:10
Отопление
0
Работа:0
Материалы:0
Дни:0
176 499
Работа:84 478
Материалы:92 021
Дни:5
Теплые полы
0
Работа:0
Материалы:0
Дни:0
419 100
Работа:82 500
Материалы:336 600
Дни:9
257 400
Работа:49 500
Материалы:207 900
Дни:5
Черновая отделка стен
0
Работа:0
Материалы:0
Дни:0
671 300
Работа:392 220
Материалы:279 080
Дни:20
460 104
Работа:316 793
Материалы:143 311
Дни:15
331 879
Работа:143 311
Материалы:188 568
Дни:15
Черновая отделка полов
0
Работа:0
Материалы:0
Дни:0
286 623
Работа:135 769
Материалы:150 854
Дни:10
140 294
Работа:52 799
Материалы:87 495
Дни:7
Чистовая отделка стен и полов
0
Работа:0
Материалы:0
Дни:0
1 433 113
Работа:527 989
Материалы:905 124
Дни:50
Отделка потолка
0
Работа:0
Материалы:0
Дни:0
286 623
Работа:150 854
Материалы:135 769
Дни:10

Преимущества работы с нами

icon

7 этапов оплаты

icon

Независимый строительный надзор

icon

Экологически чистые материалы

icon

16 лет гарантии

icon

Онлайн-кабинет с веб-камерой

icon

Строители с опытом более 15 лет

icon

Собственное производство

Двухэтажный дом 12х10 – уютное пространство для всей семьи

Построить собственный дом – это мечта каждого, кто ценит комфорт и уют. Сегодня я хочу рассказать об одном замечательном проекте двухэтажного дома с размерами 12 на 10 метров и полезной площадью 137,14 м², который идеально подойдет для жизни большой семьи в Москве и Подмосковье. Этот дом совмещает в себе отлично продуманный дизайн, функциональность и оптимальное использование пространства, благодаря чему жильцы получают максимум удобства и свободы. Почему именно двухэтажный дом? Потому что у него есть масса преимуществ: компактность застройки на участке, возможность разделить зону отдыха и общественную часть, а также возможность разместить все необходимые комнаты, включая несколько спален и санузлов. Проект компании «Академик Строй» именно такой – современный, привлекательный и удобный.

Размеры и планировка: освоение каждого квадрата

Оптимальные габариты 12х10 метров

Дом размером 12 на 10 метров — это своего рода золотая середина между просторным жильём и компактным использованием земельного участка. Площадь застройки при таких размерах составляет 107,66 м², что означает, что дом не «съест» слишком много места на участке, а значит вокруг останется место для сада, зоны отдыха или детской площадки. Такой размер квартира позволяет разместить все необходимые комнаты без ущерба для комфорта. Отдельное спасибо хочется сказать продуманной планировке — здесь нет «узких» или громоздких коридоров, вся площадь работает на жильцов.

Полезная площадь 137,14 м² — зачем это важно

Полезная площадь — это та часть дома, где реально живут и отдыхают жильцы. В этом проекте она составляет внушительные 137,14 квадратных метров. Это значит, что учитываются не только комнаты, но и полезное пространство внутри стен, ниш, углов и кладовых. Дом рассчитан на комфортное проживание 4-х спален, что особенно актуально для больших или многопоколенных семей. Здесь каждый найдет свое убежище и личное пространство. Кроме того, в доме предусмотрено два санузла — что очень удобно, когда живут несколько человек.

Функциональные особенности и планировка помещений

Четыре спальни — достаточно для всех

Планировка четырёх спален – это рациональное решение для семьи с детьми или для тех, кто любит принимать гостей на длительный срок. Размещение комнат продумано так, чтобы обеспечить уединение и комфорт. Обычно спальни располагаются на втором этаже, что гарантирует тишину и спокойствие. Каждая спальня имеет достаточную площадь для размещения кровати, шкафа и личных вещей, а благодаря наличию окон комнаты всегда будут светлыми и уютными.

Два санузла — никакой суеты по утрам

Когда в доме несколько человек, наличие двух санузлов – это настоящее спасение. В доме этого проекта предусмотрены просторные, светлые санузлы на каждом этаже. Это снимает неудобства и ускоряет утренние сборы, а также повышает общий комфорт проживания. Современное сантехническое оборудование и грамотная установка – залог надежности и удобства.

Удобная общая зона и дополнительные опции

Особое внимание уделено гостиной и кухне – зонам, где собирается вся семья и проводятся общие вечера. Проект предусматривает наличие камина, который станет отличным центром притяжения холодными вечерами и создаст неповторимую атмосферу уюта. Также на первом этаже предусмотрена отдельная комната, которую можно использовать как кабинет, гостевую или игровую зону — выбор зависит от потребностей хозяев. Дополнительные архитектурные детали — эркер и терраса — делают фасад дома более выразительным, а жилое пространство — более светлым и уютным.

Крыша и внешний вид: защита и стиль

Двускатная крыша с углом наклона 40°

Двускатная кровля — классика, которая проверена временем. В этом проекте угол наклона крыши составляет 40°, что обеспечивает отличное отведение осадков и подходит для снежных зим Московской области. Крыша покрыта материалом с площадью 183,44 м² — покрытие продумывалось с учетом надежности и долговечности, что существенно снижает затраты на ремонт и обслуживание.

Высота здания 8,39 м — оптимальный баланс

Высота дома почти 8,4 метра при 2 этажах позволяет сохранить пропорции здания и при этом не делать его слишком громоздким. Это важно для гармоничной интеграции дома в ландшафт участка и соседского окружения. Современный дизайн фасада с использованием эркера и террасы придает дому свежий и элегантный вид.

Требования к участку и возможности планировки

Минимальные размеры участка для комфортного размещения

Для строительства данного дома необходим участок минимальной шириной 20,04 метра и длиной 17,54 метра. Это не слишком много, учитывая размеры дома и дополнительные зоны, которые нужны для комфорта — отступы согласно строительным нормам, место для зимней парковки, сад или зона отдыха. Такие параметры позволяют легко найти подходящий участок в пригороде Москвы.

Площадь участка 170 м² — что это значит

Указанная площадь в 170 м² может относиться к рекомендуемой площади земельного участка в определенных условиях или к другим параметрам. Однако она показывает, что дом прекрасно впишется даже в средние по размерам участки в пределах дачных товариществ и коттеджных поселков. Это важно, поскольку цена на землю в Подмосковье и Москве высокая, и использовать каждый квадратный метр нужно грамотно.

Почему стоит заказать проект именно в компании «Академик Строй»

Профессионализм и надежность

Компания «Академик Строй» — это команда профессионалов с многолетним опытом в проектировании и строительстве частных домов. Они понимают, как важны детали для будущих владельцев собственного жилья: начиная от эргономичной планировки комнат и заканчивая выбором материалов и отделкой. Большое внимание уделяется тому, чтобы проект как можно быстрее смог воплотиться в жизнь без лишних затрат и доработок.

Оптимальная цена и прозрачные условия

Одним из важных плюсов заказа проекта именно здесь является достойное соотношение цены и качества. Представленные проекты отличаются разумным ценообразованием, а специалисты готовы помочь с учетом всех пожеланий клиентов. Ваш вопрос — их задача, а поддержка идет на каждом этапе от выбора проекта до окончания строительства.

Удобная связь и консультации

Хотите оформить заказ или уточнить детали? Просто позвоните по телефону +7 (980) 800-47-93. Менеджеры с радостью помогут подобрать оптимальный вариант, расскажут про особенности проекта и обсудят все нюансы. Удобно, быстро и без лишней бюрократии.

Подводим итоги: преимущества проекта

Параметр Значение Комментарий
Полезная площадь 137,14 м² Оптимальная площадь для большой семьи
Размеры дома 12 x 10 м Удобный для большинства участков вариант
Этажность 2 этажа Разделение зон отдыха и общественных помещений
Количество спален 4 Достаточно комнат для семьи и гостей
Санузлы 2 Комфортное проживание без очередей
Тип крыши Двускатная, угол 40° Надежная защита от снега и дождя
Высота здания 8,39 м Гармоничные пропорции и удобство
Дополнительные опции Камин, терраса, эркер, отдельная комната на 1 этаже Комфорт и стиль в деталях

Как заказать проект и начать строительство

Если вы задумались о своем доме мечты и хотите получить профессиональный проект, который будет полностью соответствовать вашим желаниям, нужно сделать всего несколько шагов:
  • Позвонить по телефону +7 (980) 800-47-93 и получить консультацию;
  • Обсудить с менеджерами особенности участка и пожелания по дому;
  • Ознакомиться с проектом и внести возможные коррективы;
  • Заключить договор и оформить заказ.
Профессионалы компании «Академик Строй» сопровождают клиентов на всем пути – от выбора проекта до начала строительства. Такой подход минимизирует риски и экономит время.

Преимущества двухэтажных домов в Москве

Жить в собственном доме в мегаполисе – это отличный баланс между городской жизнью и природой. Двухэтажный вариант позволяет сохранить земельный ресурс, ведь площадь застройки меньше, чем у одноэтажных домов с той же площадью. Это важно, учитывая цены и дефицит участков в пригородах Москвы. Кроме того, двухэтажный дом часто выглядит более элегантно и статусно. Высота и форма крыши, а также дополнительные архитектурные элементы, как эркеры и террасы, делают фасад живописным.

Важность индивидуального проекта

В Москве и Подмосковье рыночное предложение построек очень разнообразно, но чаще всего приходится покупать готовые типовые проекты, не всегда полностью удовлетворяющие потребности конкретной семьи. Индивидуальный проект имеет свои плюсы, и компания «Академик Строй» именно это и предлагает. Ваш дом полностью соответствует специфике участка, климату и вашим личным желаниям.

Заключение о выборе дома для вашей мечты

Если вы еще думаете, стоит ли заказывать проект для двухэтажного дома 12х10 с площадью 137,14 м² в Москве, я могу уверенно сказать – да, это отличный выбор для тех, кто ценит комфорт, стиль и функциональность. Отечественные специалисты уже продумали и воплотили все мелочи, чтобы вы получали удовольствие от жизни и не тратились на исправление ошибок. Преимущества такого дома очевидны – простор, удобство, стиль и возможность создать свое уютное гнездышко на пределе бюджета и площади участка. Позвоните в «Академик Строй», и пусть этот проект станет началом вашей счастливой истории!