Обзор одноэтажного дома 19x11 - 132.2 м²
Одноэтажные дома уже давно приобретают популярность среди тех, кто ценит комфорт, практичность и привлекательный внешний вид своего жилья. Проект дома с размерами 19 x 11 метров и полезной площадью 132,2 м² можно считать идеальным решением для семьи средней величины, стремящейся получить просторное и функциональное жилое пространство на одном уровне. Такой дом сочетает в себе преимущества продуманной планировки, современного дизайна и разумного бюджета, что делает его притягательным для широкого круга покупателей.
В данной статье мы подробно рассмотрим основные параметры и особенности этого дома, среди которых – три спальни, два санузла, уютный камин и терраса, а также технические характеристики, включая объем здания и параметры кровли. Это позволит создать полное представление о проекте и поможет понять, почему он может стать отличным выбором именно для вас.
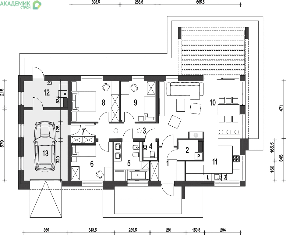
Габариты и площадь дома: функциональность без компромиссов
Размеры дома 19 на 11 метров обеспечивают достаточно большое пространство для комфортной жизни без необходимости увеличивать этажность. Одноэтажное исполнение позволяет избежать множества трудностей с лестницами, что особенно важно для семей с маленькими детьми или пожилыми людьми. При общей полезной площади 132,2 м² дом прекрасно подойдет для семьи из 3-5 человек.
Интересно отметить, что жилая площадь при этом достигает 102,10 м², что говорит о наличии больших и удобных комнат, а также рациональной планировке, где общие зоны и личные помещения гармонично сбалансированы. Такие параметры создают оптимальное пространство для отдыха, работы и приёма гостей.
| Параметр | Значение | Примечание |
|---|---|---|
| Размеры дома | 19 x 11 м | Габариты по фасаду и глубине |
| Полезная площадь | 132,2 м² | Общая жилая и служебная площадь |
| Жилая площадь | 102,10 м² | Площадь жилых комнат |
| Площадь застройки | 169,5 м² | Площадь дома с учетом наружных конструкций |
Планировка одноэтажного дома: комфорт и удобство
Одно из ключевых преимуществ дома площадью около 130 м² – возможность грамотно зонировать пространство под нужды семьи. Три спальни позволяют каждому члену семьи иметь своё уединённое пространство, что немаловажно для личного комфорта. При этом два санузла решают вопрос очередей по утрам, а также создают дополнительный комфорт для гостей.
Размещение спален продумано так, чтобы обеспечить тишину и приватность, одновременно оставляя простор для общих зон. Объем брутто здания составляет 314 м³, что отражает его внушительную вместимость и оптимальный объем внутренних пространств.
Камин в центре дома: тепло и уют
Дополнительным декоративным и функциональным элементом выступает камин – символ домашнего очага. Он не просто создаёт атмосферу уюта, особенно в холодные месяцы, но и служит дополнительным источником отопления, снижая энергозатраты на поддержание комфортной температуры. Камин гармонично вписывается в общий интерьер, становясь центром гостиной или второй по значимости зоной после кухни.
Терраса – территория отдыха на свежем воздухе
Наличие собственной террасы – большое преимущество. Это расширение жилого пространства позволяет организовать зону отдыха на открытом воздухе, где можно завтракать с семьёй, проводить летние вечера с друзьями или наслаждаться природой в уединении. Терраса становится естественным связующим звеном между домом и участком, а также способствует ощущению свободы и комфорта.
- Три спальни с собственной планировкой
- Два санузла с современным оборудованием
- Удобная гостиная с камином
- Отдельная зона кухни и столовой
- Терраса для отдыха на свежем воздухе
Архитектура и конструктивные особенности
При строительстве данного одноэтажного дома использована классическая двускатная крыша с углом наклона в 30 градусов. Такой стиль крыши обладает рядом преимуществ, включая эффективный сток дождевой и талой воды, что продлевает срок службы кровельного покрытия и несущих конструкций. Общая площадь крыши — 190 м², что соответствует габаритам дома и обеспечивает защиту всех жилых помещений.
Высота здания достигает 6,90 метра, что позволяет не только создать гармоничный фасад с симметричной композицией окон и дверей, но и внутренние потолки сделать достаточно высокими для комфортного пребывания и хорошей вентиляции. Такая высота при всех своих достоинствах не требует крупных затрат на отопление за счет грамотной теплоизоляции и продуманной организации пространства.
Минимальные параметры участка для строительства
Выбирая участок для строительства дома 19 на 11 метров, необходимо учитывать минимальные размеры территории, которые должны обеспечить комфортное расположение здания с соблюдением санитарных и строительных норм. Для данного проекта минимальная ширина участка — 26,90 метра, а минимальная длина — 18,90 метра.
Эти параметры дают возможность разместить не только сам дом, но и придать участок эстетичный вид, оборудовать зону для отдыха, посадить декоративные растения или сделать небольшую хозяйственную постройку, если это необходимо. Ориентируясь на такие размеры, вы сможете избежать проблем с соседями и органами местного самоуправления, связанных с нарушением норм застройки.
Стоимость строительства и экономическая составляющая
Одним из самых важных вопросов при выборе проекта дома является стоимость. Дом 19x11 м площадью 132,2 м² доступен по цене 7 112 707 рублей, что выглядит весьма конкурентно на фоне многих предложений на рынке частного домостроения. Такая цена учитывает как материалы, так и услуги по строительству под ключ.
Разложим основные статьи затрат для ориентировочного понимания структуры бюджета:
| Статья расходов | Процент от общей стоимости | Примерная сумма (руб.) |
|---|---|---|
| Фундамент и основание | 20% | 1 422 541 |
| Стены и кровля | 35% | 2 489 447 |
| Внутренняя отделка | 25% | 1 778 177 |
| Инженерные системы (вода, электрика, отопление) | 15% | 1 066 906 |
| Прочее (лестницы, терраса, камин) | 5% | 355 635 |
Такое распределение бюджета помогает наглядно увидеть, на что лучше всего направлять средства для повышения качества и долговечности постройки. Важно помнить, что при строительстве одноэтажного дома расходы на лестницы отсутствуют, что уже дает экономию по сравнению с двухэтажными аналогами.
Преимущества одноэтажного дома 19x11
Подводя итоги, стоит отдельно выделить ключевые достоинства данного проекта, которые делают его привлекательным для широкой аудитории застройщиков:
- Рациональное использование территории. Дом занимает минимум площади при комфортной жилой площади более 100 м².
- Удобство планировки. Три спальни и два санузла гарантируют комфорт всем членам семьи.
- Отсутствие лестниц. Полезно для пожилых и маленьких детей, облегчает передвижение по дому.
- Эстетика и функциональность. Камин и терраса создают уют и расширяют жилое пространство.
- Двускатная крыша с уклоном 30°. Обеспечивает надежность кровли и привлекательный внешний вид.
- Оптимальные параметры участка. Возможность построить дом на стандартном земельном участке средней площади.
- Доступный бюджет. Стоимость строительства под ключ позволяет получить качественное жилье без переплат.
Советы по выбору и эксплуатации
При выборе такого дома рекомендуем обратить внимание на качество выбранных материалов и опыт подрядчика, который будет осуществлять строительство. Правильный монтаж кровли и утепления поможет избежать теплопотерь и продлит срок службы здания. Не менее важно грамотно спланировать инженерные коммуникации, чтобы обеспечить комфортный микроклимат во всех помещениях.
В процессе эксплуатации одноэтажного дома стоит регулярно проводить техобслуживание системы отопления, вентиляции и электроснабжения, что поможет сохранять плановую стоимость содержания дома и минимизировать риски аварийных ситуаций.
Возможности для модернизации и расширения
Проект дома 19х11 метров не ограничивает вас в дальнейшем развитии вашей недвижимости. С учетом площади застройки в 169,5 м² и объемом брутто 314 м³ появляется потенциал для возможных пристроек: например, пристроенной гаражной зоны или зимнего сада.
В случае, если со временем потребуются дополнительные помещения для гостей, хобби или организации домашнего офиса, при грамотном проектировании можно выполнить пристройку или функционально переоборудовать террасу. Такие модернизации позволят адаптировать жилую площадь к изменяющимся потребностям семьи без необходимости переезда.
Заключение о привлекательности проекта
Дом с параметрами 19х11 и полезной площадью 132,2 м² за 7 112 707 рублей – это гармоничное сочетание практичности, комфорта и эстетики, что делает его привлекательным предложением на рынке строительства частных домов. Благодаря продуманной архитектуре, современным инженерным решениям и качественным материалам вы получаете надежное жилье, готовое служить в течение многих десятков лет.







