Двухэтажный дом 14х10 - 140.43 м²: Почему это отличный выбор для семьи в Москве?
Когда речь заходит о выборе проекта для частного дома, многие останавливаются на самых разных вариантах, от одноэтажных бунгало до больших коттеджей с мансардой. Но двухэтажный дом 14х10 метров с полезной площадью в 140.43 м² — это как золотая середина, идеально подходящая для современной семьи, особенно в условиях мегаполиса, такого как Москва. Он сочетает в себе удобство, простор и экономичность, позволяя расположить все необходимые комнаты и зоны отдыха, сохраняя при этом четкую функциональную структуру. Основной плюс такого дома — это рациональное использование земли. Площадь застройки всего 125,05 м² позволяет разместить дом даже на участках сравнительно маленького размера, при этом минимальная ширина участка должна быть около 21,9 метра, а длина — 17,7 метра. Это вполне реалистичные требования, которые помогут вам найти подходящее место для строительства. Добавьте к этому высоту здания — 7,99 метра, и вы получите дом с впечатляющей архитектурной выразительностью и уютной атмосферой внутри.Особенности планировки и комфорт внутри
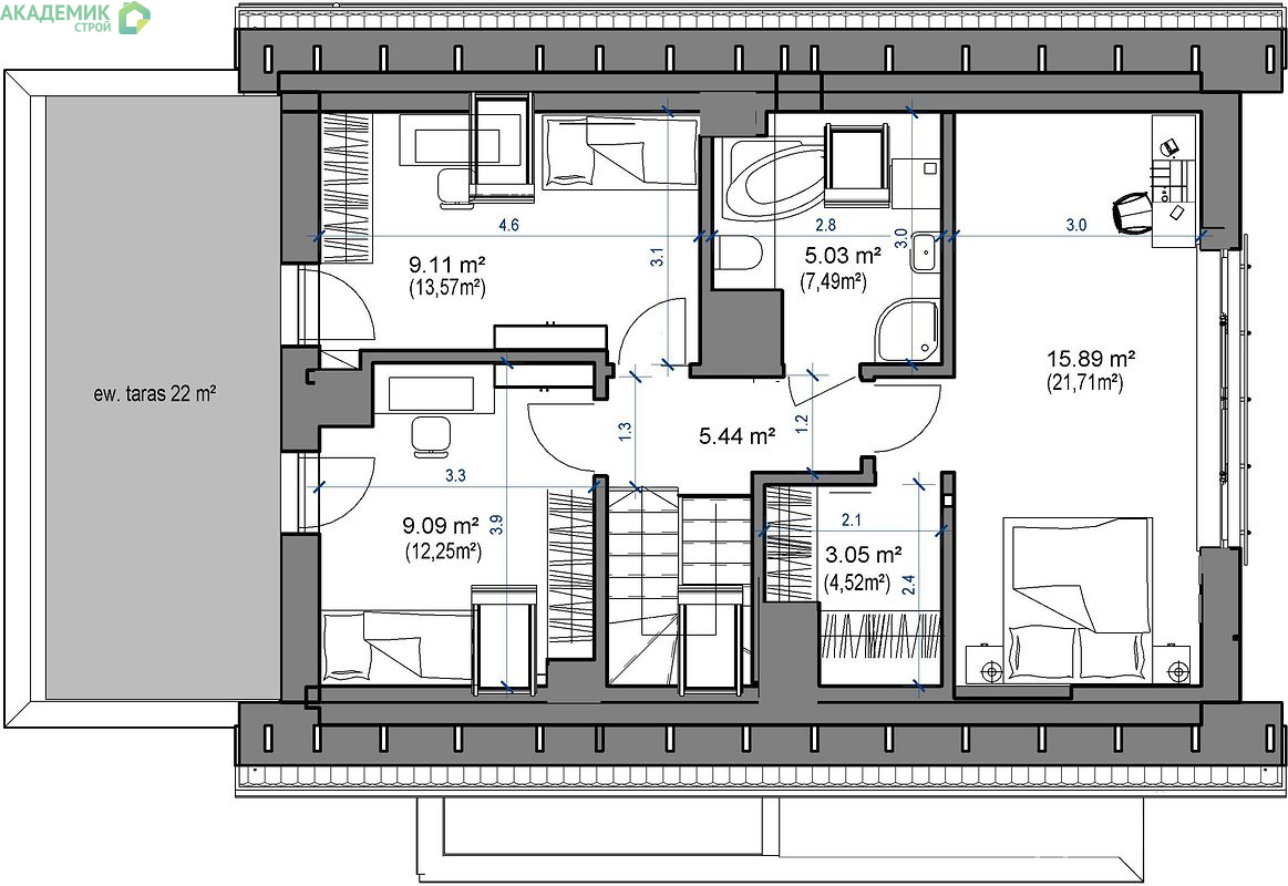
4 спальни — простор и приватность для всей семьи
Практически каждый, кто задумывается о доме для семьи, хочет иметь минимум три уютные спальни. В этом проекте их целых четыре. Такой план идеально подходит для большой семьи или для тех, кто любит принимать гостей. Забудьте о тесноте и необходимости использовать каждый квадратный метр на компромиссы — здесь для каждого найдется свое личное пространство. Четыре спальни удобно разместить на втором этаже, чтобы создать максимально спокойную зону для сна и отдыха.2 санузла — дополнительное удобство без очередей
Согласитесь, когда дом большой, двух санузлов бывает недостаточно, но в случае с этим проектом их именно два, что для семьи из 4-6 человек вполне достаточно. Обычно один санузел находится на первом этаже, а второй — на втором, чтобы каждый мог пользоваться ими в удобное время. Это значительно повышает комфорт, исключая утренние задержки и перебои.Жилая площадь — 113,65 м² и много свободного пространства
Не всегда стоит ориентироваться лишь на общую площадь дома. Важнее понять, сколько квадратных метров отведено под жилые комнаты, которые вы реально будете использовать. 113,65 м² — это впечатляющая жилая площадь, которая включает спальни, гостиную, кухню и другие зоны для отдыха. Это пространство отлично подходит как для уютных семейных вечеров, так и для масштабных праздничных мероприятий.Архитектурные решения: крыша, форма и дизайн дома
Двускатная крыша с углом наклона 40°: классика с практичными преимуществами
Двускатная крыша — пожалуй, самый популярный вид кровли для частных домов в средней полосе России и особенно в Москве. Ее угол наклона в 40° оптимален для региона с достаточно большим уровнем осадков зимой и весной, что обеспечивает качественный сток дождевой воды и снега. Общая площадь крыши составляет 147,40 м², что в сочетании с качественным утеплением и кровельными материалами делает дом теплым и уютным в холодное время года.Высота здания - 7,99 метра: ощущение простора и свободы
Дом высотой почти восемь метров создает внутри ощущение лёгкости — высокие потолки первого и второго этажей не дадут чувства замкнутости. Это особенно приятно, если вы любите, чтобы в доме было много света и воздуха. Такая высота позволяет также легко внедрять декоративные элементы, например, натяжные потолки с подсветкой или просторные окна-панорамной формы.Практичность и дополнительные возможности проекта
Террасу и камин — атмосфера уюта и комфорта
Несмотря на то, что в некоторых параметрах террасы и балконы отмечены без подробностей, проект предлагает опции террасы и камина, которые буквально придают дому характер. Терраса — это идеальное место для отдыха на свежем воздухе летом, приема гостей в теплый сезон или вечерних посиделок на природе. Это расширение жилого пространства помогает создать связь с участком, что отлично сочетается с городской жизнью. Камин — не только источник тепла, но и эмоциональный центр дома. Представьте, как в холодные зимние вечера вся семья собирается у огня, наслаждаясь теплом и уютом. Этот элемент придает дому особенный шарм и становится местом, где рождаются семейные традиции и воспоминания.Комната на первом этаже: многофункциональное пространство
Комната на первом этаже — отличный вариант для организации гостевой спальни, кабинета, детской игровой или даже спортзала. Многие современные проекты позволяют гибко адаптировать значения комнат в зависимости от жизненных потребностей семьи. Если вы работаете удаленно, это пространство может легко превратиться в домашний офис — без лишних передвижений и шума из жилых комнат.Технические параметры и их значение для строительства
Площадь застройки и полезная площадь
| Параметр | Значение | Комментарий |
|---|---|---|
| Площадь застройки | 125,05 м² | Занимаемая площадь на участке |
| Полезная площадь | 140,43 м² | Площадь, пригодная для жизни и использования |
| Жилая площадь | 113,65 м² | Комнаты жилого назначения без кухни и подсобных помещений |
| Площадь крыши | 147,40 м² | Общая площадь скатов кровли |
Минимальные размеры участка: реальность для Москвы
Чтобы построить дом, размеры земельного участка играют ключевую роль. Минимальные размеры для этого дома — 21,9 метра по ширине и 17,7 метра по длине. Это означает, что вам не потребуется огромный участок, что важно с учетом дорогой земли вблизи Москвы. Такие параметры естественно ограничивают выбор, но при этом позволяют грамотно распланировать территорию и создать уютный двор вокруг дома.Почему выгодно заказать проект именно у компании "Академик Строй"?
В Москве и области представлен огромный выбор проектных компаний, предлагающих разработки частных домов. Однако "Академик Строй" отличается своим подходом, сочетающим качество, инновации и оптимальные цены. Во-первых, компания тщательно прорабатывает все проекты, учитывая климатические и геологические особенности региона. Это значит, что выбранный вами дом будет не просто красивым, но и функциональным, теплым и надежным. Во-вторых, "Академик Строй" предлагает выгодную цену на двухэтажный дом 14х10, площадью 140,43 м², что является конкурентным преимуществом на фоне рынка. Вы можете заказать проект по телефону +7 (980) 800-47-93 — специалисты детально проконсультируют вас, дадут ответы на все вопросы, включая этапы строительства, материалы и выбор дополнительных опций.Преимущества сотрудничества с "Академик Строй"
- Индивидуальный подход к каждому клиенту и адаптация проектов под конкретные условия участка.
- Полный пакет документов для получения разрешений на строительство и ввода в эксплуатацию.
- Гарантии качества и соответствия заявленным параметрам.
- Вариативность проектов с возможностью кастомизации: добавление камина, террасы, комнаты на первом этаже.
- Экономия времени и нервов благодаря четкой организации работы и прозрачности на всех этапах.
Стоимость и как можно купить проект дома
Цена проекта дома — пункт, который волнует большинство будущих владельцев. Учитывая комплексность и удобство этого варианта, стоимость проекта дома 14х10 м (140,43 м²) от компании "Академик Строй" остается в рамках разумного. Вместе с тем вы получаете проверенный проект, который уже можно реализовывать без дополнительных доработок.
Проект можно купить по телефону +7 (980) 800-47-93 — так вы ускорите процесс и получите консультации по всем интересующим вопросам. специалисты помогут подобрать удобный способ оплаты и сообщат о возможных дополнительных услугах, например, авторском сопровождении или инженерных расчетах.








