Двухэтажный дом 13x16 - 161.15 м2 за руб.

ID-95890

Стоимость дома 7350357 руб.
154 м2 Полезная
площадь
13 x 16 м Размеры
2 этажа Этажей
26 м2 Террасы
и балконы
0Без
гаража
3 Количество
спален
2 Количество
санузлов

Планировки

План первого этажа

floor image
  • 1. Прихожая 4,45 m²
  • 2. Холл 2,86 m²
  • 3. Туалет 1,66 m²
  • 4. Кладовая 1,88 m²
  • 5. Кухня 10,21 m²
  • 6. Гостиная + столовая 32,19 m²
  • 7. Коридор 12,86 m²
  • 8. Комната 11,75 m²
  • 9. Комната 14,32 m²
  • 10. Гардероб 3,03 m²
  • 11. Ванная комната 6,32 m²
  • 12. Котельная 9,06 m²
  • 13. Гардероб 3,03 m²
  • 14. Комната 11,66 m²
  • План первого этажа 125,28 m²

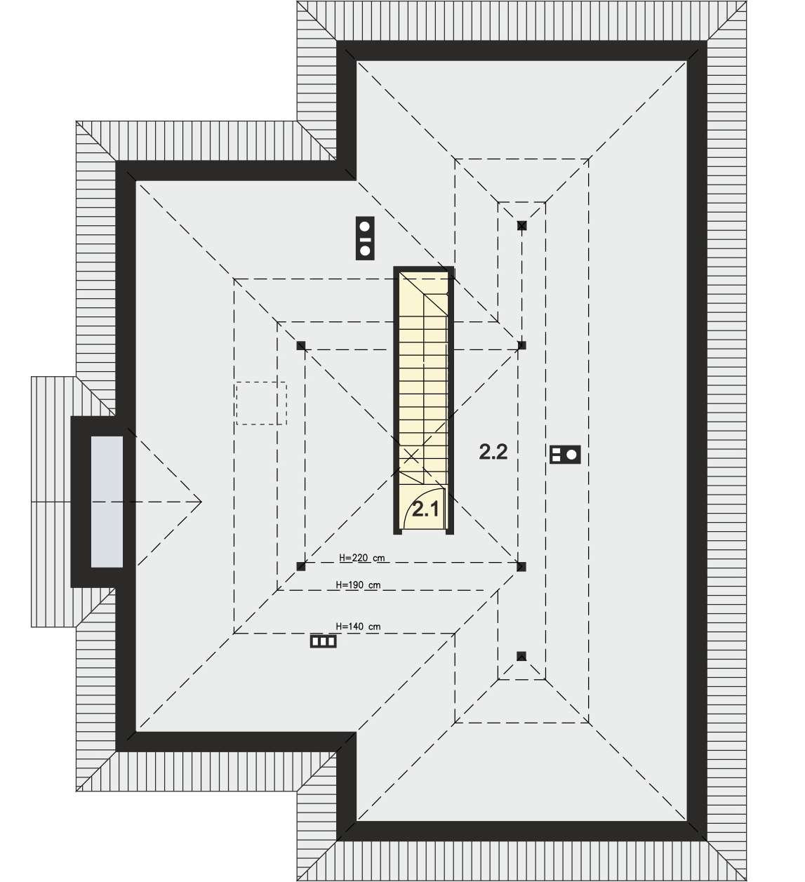
План мансарды

floor image
  • 1. Лестница 0,90 m²
  • 2. Адаптация чердака под мансарду 34,97 m² (144,13 m²)
  • План мансарды 35,87 m²

Разрезы

Вертикальный разрез
Вертикальный разрез

Фасады

Передний
Задний
Левый
Правый
Передний
Задний
Левый
Правый

Подробная информация

Жилая площадь
125,48 m²
icon

Сумма площади всех жилых помещений, за вычетом пов. гараж, котельная, чердак, подвал. Учитывается в 100%, для помещений высотой более 2,2 м, в 50% для помещений с высотой 2,2-1,4 м и не включается для более низких помещений (меньше 1,4 м).

Площадь застройки
175,55 m²
icon

Площадь застройки здания определяется как площадь горизонтального сечения по внешнему обводу здания на уровне цоколя, включая выступающие части.

Общая площадь
336,99 m²
icon

Общая площадь всех этажей здания, в том числе с несущими конструкциями, такими как наружные стены (с утеплением), столбы, террасы, и т. д.

Площадь нетто
270,51 m²
icon

Площадь всех помещений в здании, измеренная на высоте пола.

Объем брутто
808,10 m³
icon

Как правило, это сумма объема всех помещений в здании, подсчитанных по внешнему контуру стены (с утеплением).

Площадь крыши
259 m²
icon

Угол наклона крыши
30°
icon

Наклон ската крыши в градусах. Внимание! В некоторых проектах возникает более чем один наклон крыши.

Высота здания
7,45 m
icon

Высота измеряется от поверхности земли до самой высокой точки кровли (конька), за исключением дымоходов.

Мин. ширина участка
20,78 m
icon

Наименьшая возможная ширина участка, необходимая для строительства выбранного дома. Состоит из длины фасада дома плюс с обеих сторон три метра отступ.

Мин. длина участка
24,09 m
icon

Наименьшая возможная длина участка, необходимая для строительства выбранного дома. Состоит из длины фасада дома плюс с обеих сторон три метра отступ.

Материалы и опции
Общие
Площадь от и до
Цена, руб.
Количество спален
3
Ежемесячный платёж, руб
Площадь м²
200
Гараж
0
Количество санузлов
2
Ширина
13
Глубина
16

Площади дома

№ п/п Наименование Ед. из. Строительная площадь Полезная площадь
1 1 этаж м2 154.38 125.28
2 2 этаж м2 44.2 35.87
3 Итого м2 198.58 161.15

Калькулятор опций

0

В ипотеку от 23 819 ₽/мес.

Фундамент
845 184
Работа:365 788
Материалы:479 396
Дни:20
508 096
Работа:170 158
Материалы:337 938
Дни:2
856 223
Работа:343 712
Материалы:512 511
Дни:20
1 640 782
Работа:732 595
Материалы:908 187
Дни:30
2 752 580
Работа:1 012 115
Материалы:1 740 465
Дни:32
1 040 305
Работа:416 224
Материалы:624 081
Дни:20
6 527 804
Работа:2 975 891
Материалы:3 551 913
Дни:30
7 788 193
Работа:3 471 250
Материалы:4 316 943
Дни:40
271 709
Работа:67 927
Материалы:203 782
Дни:1
Перекрытие цоколя
486 359
Работа:208 876
Материалы:277 483
Дни:8
778 955
Работа:258 123
Материалы:520 832
Дни:13
1 389 961
Работа:568 551
Материалы:821 410
Дни:18
Стены 1 этаж (несущие)
1 364 148
Работа:854 694
Материалы:509 454
Дни:29
1 570 307
Работа:804 428
Материалы:765 879
Дни:23
2 417 529
Работа:1 483 530
Материалы:933 999
Дни:30
1 978 550
Работа:867 091
Материалы:1 111 459
Дни:45
3 698 806
Работа:816 145
Материалы:2 882 661
Дни:24
814 617
Работа:410 620
Материалы:403 997
Дни:15
444 923
Работа:239 443
Материалы:205 480
Дни:7
1 564 703
Работа:544 097
Материалы:1 020 606
Дни:7
2 043 759
Работа:652 950
Материалы:1 390 809
Дни:7
13 421 565
Работа:652 950
Материалы:12 768 615
Дни:7
7 264 984
Работа:816 145
Материалы:6 448 839
Дни:7
1 142 705
Работа:272 048
Материалы:870 657
Дни:7
1 500 512
Работа:770 634
Материалы:729 878
Дни:29
1 313 712
Работа:855 543
Материалы:458 169
Дни:29
1 500 512
Работа:770 634
Материалы:729 878
Дни:29
1 592 553
Работа:974 246
Материалы:618 307
Дни:23
2 035 608
Работа:685 555
Материалы:1 350 053
Дни:7
2 308 336
Работа:1 414 754
Материалы:893 582
Дни:25
834 995
Работа:430 998
Материалы:403 997
Дни:15
7 737 248
Работа:1 632 291
Материалы:6 104 957
Дни:15
925 847
Работа:435 413
Материалы:490 434
Дни:15
1 260 729
Работа:715 613
Материалы:545 116
Дни:19
1 330 694
Работа:855 543
Материалы:475 151
Дни:29
854 694
Работа:448 659
Материалы:406 035
Дни:15
1 570 307
Работа:804 428
Материалы:765 879
Дни:23
917 357
Работа:356 618
Материалы:560 739
Дни:15
1 175 141
Работа:856 902
Материалы:318 239
Дни:7
Перекрытие первого этажа
486 359
Работа:208 876
Материалы:277 483
Дни:8
778 955
Работа:258 123
Материалы:520 832
Дни:13
1 389 961
Работа:568 551
Материалы:821 410
Дни:18
Стены 2 этаж (несущие)
390 564
Работа:244 704
Материалы:145 860
Дни:29
449 589
Работа:230 313
Материалы:219 276
Дни:23
692 154
Работа:424 744
Материалы:267 410
Дни:30
566 472
Работа:248 254
Материалы:318 218
Дни:45
1 058 993
Работа:233 668
Материалы:825 325
Дни:24
233 230
Работа:117 563
Материалы:115 667
Дни:15
127 384
Работа:68 554
Материалы:58 830
Дни:7
447 984
Работа:155 778
Материалы:292 206
Дни:7
585 142
Работа:186 944
Материалы:398 198
Дни:7
3 842 682
Работа:186 944
Материалы:3 655 738
Дни:7
1 020 097
Работа:233 668
Материалы:786 429
Дни:7
327 164
Работа:77 889
Материалы:249 275
Дни:10
429 607
Работа:220 638
Материалы:208 969
Дни:29
376 125
Работа:244 948
Материалы:131 177
Дни:29
429 607
Работа:220 638
Материалы:208 969
Дни:29
455 958
Работа:278 933
Материалы:177 025
Дни:23
582 808
Работа:196 279
Материалы:386 529
Дни:7
660 891
Работа:405 053
Материалы:255 838
Дни:25
239 065
Работа:123 398
Материалы:115 667
Дни:15
2 215 224
Работа:467 335
Материалы:1 747 889
Дни:15
265 077
Работа:124 662
Материалы:140 415
Дни:15
360 955
Работа:204 885
Материалы:156 070
Дни:19
380 987
Работа:244 948
Материалы:136 039
Дни:29
244 704
Работа:128 454
Материалы:116 250
Дни:15
449 589
Работа:230 313
Материалы:219 276
Дни:10
262 645
Работа:102 102
Материалы:160 543
Дни:10
336 451
Работа:245 337
Материалы:91 114
Дни:7
Крыша (Скатная)
2 010 306
Работа:972 378
Материалы:1 037 928
Дни:20
2 195 747
Работа:1 010 417
Материалы:1 185 330
Дни:20
3 399 077
Работа:1 605 799
Материалы:1 793 278
Дни:20
3 126 519
Работа:1 512 229
Материалы:1 614 290
Дни:20
3 770 979
Работа:1 605 799
Материалы:2 165 180
Дни:20
2 842 753
Работа:1 390 809
Материалы:1 451 944
Дни:20
6 317 230
Работа:2 844 452
Материалы:3 472 778
Дни:20
6 220 433
Работа:2 849 546
Материалы:3 370 887
Дни:20
1 222 690
Работа:636 818
Материалы:585 872
Дни:20
Окна
349 921
Работа:112 563
Материалы:237 358
Дни:3
0
Работа:0
Материалы:0
Дни:0
Двери входные
17 050
Работа:6 050
Материалы:11 000
Дни:1
0
Работа:0
Материалы:0
Дни:0
Утепление кровли (Мансарда)
0
Работа:0
Материалы:0
Дни:0
307 031
Работа:110 382
Материалы:196 649
Дни:5
178 988
Работа:39 737
Материалы:139 251
Дни:3
260 840
Работа:66 229
Материалы:194 611
Дни:3
147 062
Работа:66 229
Материалы:80 833
Дни:3
392 958
Работа:39 737
Материалы:353 221
Дни:2
515 567
Работа:66 229
Материалы:449 338
Дни:3
Мансардные окна
0
Работа:0
Материалы:0
Дни:0
71 918
Работа:19 690
Материалы:52 228
Дни:6
Подшивка кровли
0
Работа:0
Материалы:0
Дни:0
565 834
Работа:259 652
Материалы:306 182
Дни:7
Водосточная система
0
Работа:0
Материалы:0
Дни:0
566 004
Работа:253 199
Материалы:312 805
Дни:7
Дополнительное утепление наружных стен
0
Работа:0
Материалы:0
Дни:0
1 258 703
Работа:507 894
Материалы:750 809
Дни:7
444 544
Работа:267 600
Материалы:176 944
Дни:3
1 388 243
Работа:392 116
Материалы:996 127
Дни:5
1 445 477
Работа:392 116
Материалы:1 053 361
Дни:5
784 013
Работа:159 249
Материалы:624 764
Дни:3
1 992 910
Работа:174 759
Материалы:1 818 151
Дни:5
Наружная отделка фасада
0
Работа:0
Материалы:0
Дни:0
959 209
Работа:305 173
Материалы:654 036
Дни:20
1 033 482
Работа:335 756
Материалы:697 726
Дни:20
749 936
Работа:262 576
Материалы:487 360
Дни:35
2 493 377
Работа:707 775
Материалы:1 785 602
Дни:45
1 306 543
Работа:656 876
Материалы:649 667
Дни:40
551 802
Работа:275 901
Материалы:275 901
Дни:20
1 698 660
Работа:707 775
Материалы:990 885
Дни:45
1 868 613
Работа:509 642
Материалы:1 358 971
Дни:20
1 033 264
Работа:424 665
Материалы:608 599
Дни:20
1 273 995
Работа:566 220
Материалы:707 775
Дни:20
1 775 553
Работа:764 353
Материалы:1 011 200
Дни:20
2 192 354
Работа:653 818
Материалы:1 538 536
Дни:20
1 558 634
Работа:566 220
Материалы:992 414
Дни:20
Террасы, крыльца, навесы
0
Работа:0
Материалы:0
Дни:0
409 200
Работа:64 350
Материалы:344 850
Дни:5
Балконы
0
Работа:0
Материалы:0
Дни:0
183 150
Работа:64 350
Материалы:118 800
Дни:12
Отмостка
0
Работа:0
Материалы:0
Дни:0
730 218
Работа:297 182
Материалы:433 036
Дни:15
526 436
Работа:246 236
Материалы:280 200
Дни:10
Дренаж вокруг дома
0
Работа:0
Материалы:0
Дни:0
726 311
Работа:324 522
Материалы:401 789
Дни:5
Автономная канализация (септики)
0
Работа:0
Материалы:0
Дни:0
270 974
Работа:55 000
Материалы:215 974
Дни:7
Внутренние (не несущие) перегородки
0
Работа:0
Материалы:0
Дни:0
209 711
Работа:83 011
Материалы:126 700
Дни:11
354 324
Работа:131 069
Материалы:223 255
Дни:5
406 315
Работа:152 914
Материалы:253 401
Дни:11
586 535
Работа:196 604
Материалы:389 931
Дни:7
Электрика
0
Работа:0
Материалы:0
Дни:0
283 624
Работа:168 402
Материалы:115 222
Дни:10
Сантехника, канализация в доме
0
Работа:0
Материалы:0
Дни:0
235 762
Работа:129 403
Материалы:106 359
Дни:10
Отопление
0
Работа:0
Материалы:0
Дни:0
207 400
Работа:99 268
Материалы:108 132
Дни:5
Теплые полы
0
Работа:0
Материалы:0
Дни:0
419 100
Работа:82 500
Материалы:336 600
Дни:9
257 400
Работа:49 500
Материалы:207 900
Дни:5
Черновая отделка стен
0
Работа:0
Материалы:0
Дни:0
788 829
Работа:460 889
Материалы:327 940
Дни:20
540 659
Работа:372 257
Материалы:168 402
Дни:15
389 983
Работа:168 402
Материалы:221 581
Дни:15
Черновая отделка полов
0
Работа:0
Материалы:0
Дни:0
336 804
Работа:159 539
Материалы:177 265
Дни:10
164 857
Работа:62 043
Материалы:102 814
Дни:7
Чистовая отделка стен и полов
0
Работа:0
Материалы:0
Дни:0
1 684 018
Работа:620 428
Материалы:1 063 590
Дни:50
Отделка потолка
0
Работа:0
Материалы:0
Дни:0
336 804
Работа:177 265
Материалы:159 539
Дни:10

Преимущества работы с нами

icon

7 этапов оплаты

icon

Независимый строительный надзор

icon

Экологически чистые материалы

icon

16 лет гарантии

icon

Онлайн-кабинет с веб-камерой

icon

Строители с опытом более 15 лет

icon

Собственное производство

Двухэтажный дом 13x16 - универсальное решение для семьи

Выбор проекта дома — один из самых важных этапов при строительстве собственного жилья. Сегодня многие семьи стремятся объединить комфорт, функциональность и эстетику, создавая пространство, которое станет не только убежищем, но и источником вдохновения для каждого члена семьи. Двухэтажный дом размером 13 на 16 метров, площадью 161,15 м² – талантливый проект, способный удовлетворить запросы как небольшой, так и расширяющейся семьи. Такой дом гармонично сочетает простор, уют и рациональное использование территории участка.

Размеры дома 13x16 метров предоставляют достаточно пространства для создания сразу нескольких зон, включая зоны отдыха, работы, приема гостей и конечно же спальные комнаты для всей семьи. Дом с двумя этажами позволяет отделить общественную часть от личной, сохранив при этом компактность и удобство эксплуатации.

Площадь и размеры дома: оптимальное пространство для жизни

Площадь, занимаемая домом, – важный критерий при выборе проекта, так как напрямую влияет на комфорт жителей, финансовые затраты и требования к земельному участку. Полезная площадь в 161,15 м² – это та площадь, которая предназначена для активного использования жильцами, включая жилые комнаты, кухни, коридоры и санузлы.

Кроме полезной площади, проект предусматривает площадь застройки в 175,55 м², что учитывает наружные размеры с учетом толщины стен и выступающих элементов. Также указана жилая площадь — 125,48 м², что означает пространство именно жилых комнат без учета технических и вспомогательных помещений. Именно эта жилая площадь формирует комфортное пространство для проживания семьи из нескольких человек.

Основные параметры площади дома
Параметр Значение Описание
Полезная площадь 161,15 м² Площадь помещений, используемых жильцами
Жилая площадь 125,48 м² Площадь жилых комнат
Площадь застройки 175,55 м² Размер дома по земле с учетом наружных стен
Общая площадь 336,99 м² Суммарная площадь всех этажей и помещений

Этажность и планировка: как два этажа изменяют пространство

Двухэтажный дом – классическое архитектурное решение, которое позволяет максимально использовать площадь участка и при этом сохранить удобство передвижения внутри дома. Для данного проекта с размерами 13 на 16 метров и двумя этажами, доступна гибкая функциональная планировка, идеально подходящая для семьи с 3 спальнями.

Как правило, первый этаж отводится под гостиную, кухню, столовую и вспомогательные помещения, включая санузел для гостей. Второй этаж предназначен для приватной зоны – здесь расположены спальни и основной санузел дома. Такое зонирование помогает четко разграничить общественную и приватную жизнь дома.

Распределение комнат

В доме предусмотрено три спальни — достаточно и для семьи с несколькими детьми, и для размещения домашних офисов или кабинетов. Два санузла обеспечивают комфортность и удобство, существенно сокращая утренние очереди, что особенно важно для большой семьи. Важным преимуществом также является наличие камина, создающего атмосферу уюта и тепла в гостиной зоне.

Преимущества двух этажей

  • Экономия площади участка. Два этажа занимают меньше места, оставляя больше пространства для сада, зоны отдыха или детской площадки.
  • Разделение функционала. Разграничение гостевых и жилых комнат помогает избежать шума в спальнях и создает атмосферу уединения.
  • Эстетика и архитектурное разнообразие. Двухэтажный дом позволяет экспериментировать с фасадом и дизайном крыши, подчеркивая индивидуальность.

Крыша дома: особенности конструкции и дизайнерские решения

Проект предлагает сложную крышу со множеством вариантов формы, включая двускатную и вальмовые конструкции. Такая сложная форма крыши способна не только украсить дом, но и оптимизировать внутреннее пространство мансарды, создавая возможность дополнительного освещения и вентиляции.

Угол наклона крыши выбран 30°. Это классический показатель, который хорошо справляется с осадками в северных климатах, позволяя снегу легко скатываться, предотвращая задержки тяжести на кровле. Высота здания достигает 7,45 метров, что соответствует высоте двух жилых этажей и крыши, позволяя сохранить пропорциональность фасада.

Площадь крыши составляет 259 м² — это достаточно большое значение, объясняющееся сложной формой крыши, которая учитывает не только основные скаты, но и многочисленные выступы и эркеры. Функционально такая крыша улучшает звуко- и теплоизоляцию, а также придает дому более выразительный внешний вид.

Типы крыш и их преимущества

Тип кровли Описание Преимущества
Двускатная Два наклонных ската, встречающиеся вдоль конька Простая конструкция и надежность, хорошая защита от осадков
Вальмовая Все скаты наклонены вниз с четырех сторон Устойчивость к ветровым нагрузкам, эстетичный вид
Сложной формы Комбинация разных углов и элементов, эркеры и выступы Выразительность фасада, улучшение внутреннего освещения

Важные параметры и технические характеристики

При проектировании дома специалисты учитывают не только внешний вид и вместимость, но и более глубокие технические показатели. Объем дома (брутто) составляет 808,10 м³ — этот параметр позволяет оценить общий объем строительного материала и тепловой массы, а также помогает рассчитать системы отопления и вентиляции.

Площадь нетто в 270,51 м² – это показатель всей внутренней площади без учета толщины стен и перекрытий, используемая в инженерных расчетах и планировании коммуникаций. Общая площадь помещений 336,99 м² говорит о суммарном объеме всех этажей и вспомогательных элементов.

Минимальные размеры участка, необходимые для размещения дома, составляют 20,78 метра по ширине и 24,09 метра по длине. Такие параметры достаточно типичны для загородных участков в пригородах крупных городов и позволяют с комфортом разместить дом с небольшим приусадебным участком.

Опции для комфорта и уюта: камин, терраса и эркер

Особое место в проекте занимают дополнительные опции, которые делают дом более уютным и функциональным. Камин — не просто элемент интерьера, но и источник дополнительного тепла, создающий уникальную атмосферу семейного очага. Особенно он будет актуален в холодные вечера и в межсезонье.

Наличие террасы расширяет жилое пространство за счет организации зоны отдыха на свежем воздухе. Здесь можно организовать летние обеды, расслабиться после работы, наслаждаться природой и общением с близкими.

Эркер – архитектурное выступающее окно, который визуально увеличивает площадь помещения, наполняет комнату светом и придает фасаду дома индивидуальность и эстетическую привлекательность. Эркеры отлично подходят для обеденной зоны или гостиной, где хочется наслаждаться природным освещением.

Преимущества дополнительных опций

  • Камин: улучшает микроклимат в доме, снижая затраты на отопление.
  • Терраса: дополнительное пространство для отдыха, организации встреч и семейных мероприятий.
  • Эркер: расширение интерьерного пространства, новое место для уединения или работы.

Стоимость строительства: разумные инвестиции в комфорт

Стоимость готового двухэтажного дома с размерами 13x16 м и площадью 161,15 м² по проекту — 4 250 104 рубля. Это весьма конкурентоспособная цена для современного и качественного загородного дома, учитывая количество жилых комнат, количество санузлов, наличие камина и дополнительные архитектурные решения.

В цену входит не только возведение стен и крыши, но и комплекс инженерных решений, что позволяет значительно сократить дальнейшие расходы на отделку, утепление и организацию коммуникаций. Применение современных материалов и технологий строительства делает этот проект оптимальным для тех, кто ценит сочетание качества и разумной стоимости.

Что входит в стоимость?

  • Земляные работы и фундамент
  • Возведение наружных и внутренних стен
  • Конструкция кровли и устройство покрытия
  • Монтаж окон и дверей
  • Частичная или полная внутренняя отделка (зависит от условий договора)
  • Подключение инженерных коммуникаций

Факторы, влияющие на цену

Стоимость строительства может изменяться в зависимости от ряда факторов:

  1. Регион проведения строительства и доступность материалов.
  2. Выбор отделочных материалов и уровень их качества.
  3. Дополнительные опции и материалы по индивидуальным запросам заказчика.
  4. Особенности рельефа и грунта на участке.
  5. Сроки строительства и использование подрядчиков.

Требования к земельному участку и планировка территории

При планировании строительства такого дома важно учитывать минимальные размеры участка — ширина не менее 20,78 м, длина — 24,09 м. Эти параметры подчеркивают, что дом занимает значительную площадь, оставляя при этом место для приусадебной территории, устройства сада или зоны отдыха.

Грамотно организованное пространство на участке позволяет продумать подъездные пути, парковку, ландшафтное оформление и возможно создание ограждений или других оградительных элементов, которые обеспечат безопасность и приватность будущим жителям.

Рекомендации по обустройству территории вокруг дома

  • Создание садовой зоны с цветниками и газоном вдоль фасада дома.
  • Обустройство открытой террасы с мебелью для отдыха.
  • Продуманное освещение дорожек и фасада дома, подчеркивающее архитектуру.
  • Рассмотрение возможности установки декоративных элементов—цветочных клумб, беседок или фонтанов.

Итог: почему стоит выбрать именно этот проект

Двухэтажный дом с параметрами 13x16 м и площадью 161,15 м² – это продуманное вложение в комфорт и качество жизни семьи. Он сочетает в себе оптимальное использование площади участка, современный архитектурный облик и функциональные решения, способные удовлетворить потребности даже самой взыскательной семьи.

Данный проект предусматривает три полноценные спальни, два удобных санузла, гостиную с камином, эркер и уютную террасу для отдыха. Все эти особенности делают дом удобным для проживания и при этом не выходящим за рамки разумного бюджета.

Стоимость строительства — 4 250 104 рубля — привлекательна по сравнению с другими предложениями на рынке, что делает этот проект привлекательным выбором для тех, кто ценит баланс цены и качества. При этом дом обладает потенциалом для дальнейшего развития и адаптации под индивидуальные нужды семьи.