Одноэтажный дом 12x9 — оптимальное решение для семьи
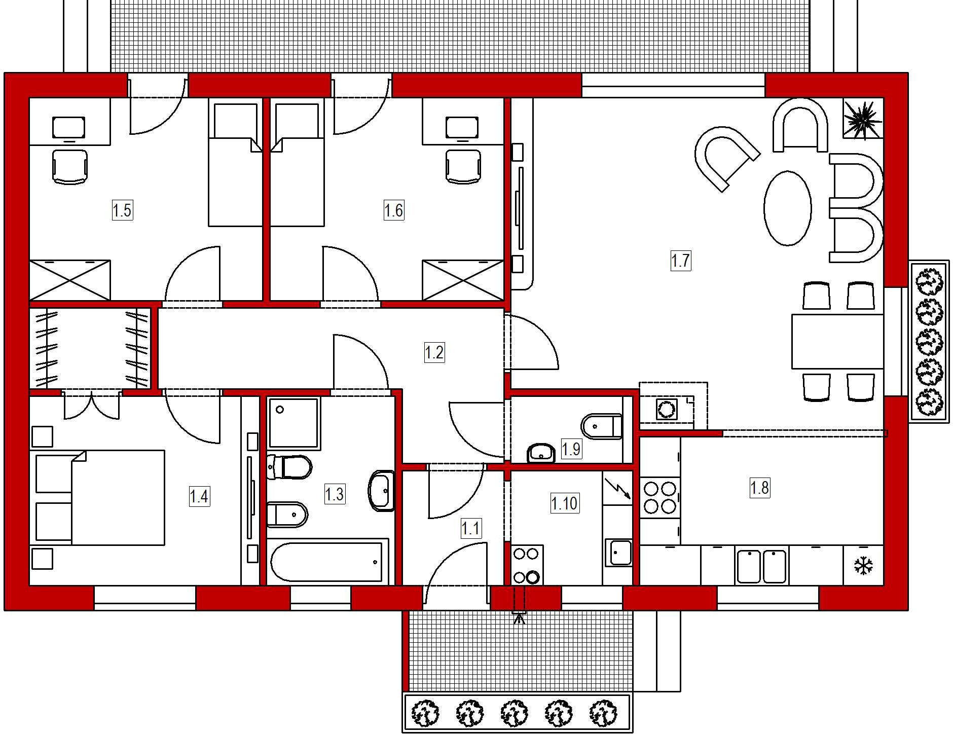
Одноэтажный дом с габаритами 12 на 9 метров – это прекрасный вариант для тех, кто ценит комфорт, рациональность и функциональность. С общей полезной площадью 85,06 м², такой дом позволяет эффективно организовать внутреннее пространство, не теряя при этом уютной атмосферы. Четко продуманная планировка с тремя спальнями и двумя санузлами предлагает достаточно места для семьи из 3-5 человек, обеспечивая каждому члену семьи личное пространство и удобства.
Многие люди выбирают одноэтажные дома из-за их простоты эксплуатации и доступности ремонта. Отсутствие лестниц особенно важен для семей с маленькими детьми или пожилыми людьми, а также для тех, кто планирует проживать в доме долгое время и хочет обеспечить безопасность и удобство для всех поколений.
Планировка и функциональность: что предлагает дом 12x9 м?
Дом размером 12х9 м — это грамотное распределение площади, которое помогает реализовать сразу несколько ключевых задач. Внутреннее помещение площадью 85,06 м² можно назвать компактным, но при этом ним прекрасно подходит как для отдыха, так и для приема гостей и семейных мероприятий.
Три спальни – сколько пространства нужно семье?
Три спальни в одноэтажном доме дают возможность обеспечить личным уголком каждого члена семьи. Родительская спальня отличается повышенным уровнем уединения и комфорта, а две другие комнаты идеально подходят для детей или гостевой зоны. Разделение спальной зоны и общих помещений помогает гармонично сочетать приватность и общение.
Два санузла: удобство и практичность
Наличие двух санузлов в доме с жилой площадью около 85 м² значительно повышает уровень комфорта. Это особенно важно, когда гости или несколько человек одновременно хотят воспользоваться ванной комнатой. В одной зоне можно разместить ванную или душевую, умывальник и унитаз, а во второй – туалетную комнату или дополнительную ванную, что избавляет от утренних очередей и повышает функциональность дома.
Архитектурные особенности и стиль дома
Дом имеет классическую двускатную крышу с углом наклона 35°, что сочетает в себе эстетическую привлекательность и практичность. Такая форма крыши гарантирует эффективное отведение осадков и снежных масс, что особенно важно для регионов с повышенной влажностью или сильными зимами.
Высота здания составляет 6,18 метра — оптимальная величина, позволяющая создать просторное внутреннее пространство и обеспечить эстетичный внешний вид строения. Благодаря этому дом выглядит гармонично и пропорционально на любом участке.
Площадь застройки и требования к участку
Площадь застройки дома составляет 106,13 м², что немного превышает полезную площадь за счет учета наружных стен и конструктивных элементов. Минимальные размеры участка для комфортного размещения этого дома — 20,35 метра в ширину и 17,45 метра в длину. Это позволяет запроектировать вокруг дома зону для небольшой ландшафтной зоны, а также предусмотреть подъездные пути и места для отдыха на свежем воздухе.
Дополнительные опции: камин и терраса
Важной особенностью данного проекта является возможность установки камина, который не только создает уютную атмосферу, но и служит дополнительным источником тепла в холодное время года. Камин становится центром гостиной зоны, собирая домочадцев и гостей, что способствует укреплению семейных традиций и общения.
В числе опций также предусмотрена терраса — идеально дополнение к дому, позволяющее наслаждаться природой, принимать гостей на свежем воздухе или просто отдыхать в тени после рабочего дня. Терраса обеспечивает плавный переход между внутренним и внешним пространством дома, расширяя жилую площадь за счет открытой зоны.
Стоимость и экономическая эффективность строительства
Стоимость дома размером 12x9 метров и полезной площадью 85,06 м² составляет 4 792 126 рублей. Этот показатель включает возведение фундамента, строительство основных конструкций дома, монтаж кровли и утепление, а также внутреннюю отделку базового уровня. Для региона с типичными ценами на строительные материалы и рабочую силу, это разумная и конкурентоспособная стоимость.
При планировании бюджета строительства важно учитывать не только стоимость самого дома, но и расходы на подготовку участка, коммуникации, ландшафтное оформление и отделочные работы. Однако благодаря оптимальным размерам здания и упрощенной одноэтажной конструкции, общий бюджет можно контролировать и оптимизировать под свои финансовые возможности.
Сравнение с другими вариантами домов 85 м²
| Параметр | Дом 12x9 м (85,06 м²) | Дом 10x8 м (80 м²) | Дом 11x10 м (90 м²) |
|---|---|---|---|
| Этажность | 1 | 1 | 1 |
| Кол-во спален | 3 | 2 | 3 |
| Кол-во санузлов | 2 | 1 | 2 |
| Площадь застройки | 106,13 м² | 85 м² | 110 м² |
| Стоимость (руб.) | 4 792 126 | 4 000 000 | 5 200 000 |
Сравнительный анализ показывает, что проект 12x9 выгодно сочетает разумную стоимость и оптимальную функциональность, предлагая три спальни и два санузла, чего не всегда удается достичь в подобных по площади домах.
Преимущества одноэтажного дома 12x9
- Оптимальное использование пространства. Дом задуман так, чтобы максимально эффективно использовать доступную площадь, учитывая потребности семьи.
- Отсутствие лестниц. Это плюс для безопасности, особенно для детей и пожилых людей.
- Эстетичный и практичный дизайн. Двускатная крыша обеспечивает надежную защиту от атмосферных осадков и гармонично вписывается в любой ландшафт.
- Дополнительные опции. Камин и терраса делают проживание в доме более комфортным и разнообразным.
- Контроль бюджета. Стоимость строительства при этом уровне комфорта адекватна и конкурентоспособна на рынке.
Советы по выбору участка для дома 12x9 м
Чтобы построить и комфортно расположить одноэтажный дом таких размеров, важно подобрать участок подходящих габаритов. Минимальная ширина должна быть около 20,35 м, длина — не менее 17,45 м. Это позволит обеспечить достаточное отступление от границ участка, что необходимо для соблюдения строительных норм и создания комфортной внешней зоны вокруг дома.
При выборе участка учитывайте ориентацию по сторонам света: желательно расположить жилую часть дома с окнами на юг или юго-восток, чтобы максимизировать естественное освещение и минимизировать необходимость искусственного освещения и отопления в дневное время.
Расположение коммуникаций
Также важно учитывать наличие и доступность инженерных коммуникаций — водоснабжения, канализации, электричества и газа. Чем меньше затрат придется на их подведение, тем экономичнее будет строительство дома.
Этапы строительства одноэтажного дома 12x9
Проект дома 12x9 с полезной площадью 85,06 м² можно реализовать по стандартной схеме строительства, которая включает несколько основных этапов.
Подготовка и земляные работы
На этом этапе выравнивается площадка, устраивается фундамент. Для дома такого типа оптимальным становится ленточный или плитный фундамент, который обеспечит надежную опору и позволит избежать проблем с осадкой и трещинами.
Возведение стен и монтаж кровли
Стены могут быть выполнены из различных материалов — кирпич, газобетон или деревянный каркас, в зависимости от выбранной технологии строительства и бюджета. Угол наклона крыши в 35° способствует быстрому отводу воды и снега, что упрощает последующий уход за крышей и продлевает срок службы кровельных материалов.
Утепление и работа с фасадом
Важной частью строительства становится качественное утепление дома, которое обеспечивает энергосбережение и комфортный микроклимат в помещении. Для отделки фасада могут использоваться деревянные панели, декоративная штукатурка или кирпичная облицовка, что позволяет адаптировать внешний вид под любые архитектурные предпочтения.
Внутренняя отделка и инженерные сети
После завершения основных строительных этапов начинается установка коммуникаций, отделка стен, пола и потолков. Здесь же монтируются системы отопления, вентиляции, электроснабжения и сантехники, включая подключение камина, как дополнительного источника тепла.
Практические рекомендации по эксплуатации дома
Чтобы дом служил долго и сохранял свой комфорт, важно правильно эксплуатировать его элементы. Регулярное техническое обслуживание крыши, чистка водостоков и камина поможет избежать серьезных повреждений в будущем. Также не забывайте про периодическую проверку водопроводных стен и вентиляционных систем.
Особое внимание стоит уделить утеплению и гидроизоляции, особенно если дом стоит в регионе с суровым климатом. Своевременная замена уплотнителей на окнах и дверях, а также проверка целостности фасадной отделки помогут сократить потери тепла и снизить расходы на отопление.
Итог: почему стоит выбрать одноэтажный дом 12x9 м?
Проект одноэтажного дома размером 12 на 9 метров — идеальное сочетание компактности и функциональности, которое подходит для современной семьи. Он сочетает в себе удобство, современный дизайн и разумную стоимость строительства. Три спальни, два санузла, комфортная кухня-гостиная и дополнительные опции в виде камина и террасы делают дом уютным и многофункциональным.
Правильное планирование участка и грамотный выбор строительных материалов обеспечат долгий срок службы и энергоэффективность дома. Этот проект — удачное решение как для загородного коттеджа, так и для постоянного места жительства.


