Двухэтажный дом 9x15 метров: пространство и комфорт на двух этажах
Проект двухэтажного дома размером 9 на 15 метров представляет собой оптимальное решение для тех, кто ищет просторное и функциональное жилье на участке средних размеров. Такой дом занимает достаточно место, чтобы вместить все необходимые помещения для полноценной семьи, но при этом не требует гигантского земельного участка и больших затрат на строительство и обслуживание. В современном строительстве важна не только площадь, но и грамотное зонирование и использование каждого квадратного метра.
Двухэтажная планировка позволяет значительно расширить жилое пространство, не увеличивая при этом площадь застройки в уровне фундамента. Дом 9х15 с двумя этажами — это прекрасный баланс между удобством, экономией и эстетикой. В таких проектах особо ценится глубокая продуманность каждого помещения, связь между комнатами и грамотное расположение инженерных коммуникаций.
Размеры и общие характеристики дома 9 на 15 метров
Габариты дома в 9 на 15 метров предоставляют оптимальные размеры для семьи из нескольких человек, которые ценят комфорт и личное пространство. Этот формат позволяет легко зонировать помещение по функционалу и при этом сохранять компактность здания.
Двухэтажное строение идеально подходит для поднятия полезной площади без значительного увеличения фундаментных работ и затрат на земельный участок. Размеры 9х15 метров позволяют увеличить внутреннее пространство до более чем 180 квадратных метров, что обеспечивает воздействие большого количества вариаций по планировке и организации интерьеров.
Преимущества двух этажей
Второй этаж в доме несет огромные преимущества, позволяя отделить приватную зону от гостевой. В проекте дома 9х15 с двумя этажами удобно выделить спальные комнаты наверху, таким образом создавая уединенное пространство для каждого члена семьи.
Кроме того, второй этаж освобождает место на первом, где удобно разместить гостиную, кухню, столовую и хозяйственные помещения. Такой подход значительно повышает комфорт проживания и позволяет рационально использовать площадь земельного участка.
Планировка дома: пять и более спален и два санузла
Одним из главных достоинств данного проекта является возможность размещения пяти и более спален. Это значит, что дом подходит не только для большой семьи с детьми, но и для тех, кто часто принимает гостей или планирует создать домашний офис, спортивный зал, или комнату хобби.
Наличие двух санузлов — это важный элемент комфорта, особенно в многочленных семьях. Оптимально, если один из санузлов располагается на первом этаже, а второй — наверху, что снижает необходимость спускаться между этажами и повышает уровень уединения для всех жителей.
Гибкие варианты использования спален
С пятью и более спальнями появляется прекрасная возможность распределить комнаты по категориям: детские, гостевые, для родителей, кабинеты или мастерские. Это многофункциональное зонирование подчеркивает продуманность и функциональность проекта.
Также очевидно, что по мере изменения семейных потребностей одна из спален легко может быть переоборудована, например, в игровую для детей или зону для занятий спортом, что делает дом адаптивным на длительный срок.
Преимущества и особенности планировки 181,3 м²
Общая площадь дома в 181,3 квадратных метров обеспечивает простор для комфортного размещения всей семьи без ощущения тесноты. Это достаточно большое пространство для организации всех необходимых комнат и зон, что делает этот проект привлекательным для тех, кто хочет сочетать уют и функциональность.
При такой площади возможно создание просторной гостиной, совмещенной с кухней и столовой, что отвечает современным тенденциям открытого пространства и улучшает коммуникацию между домочадцами. Чтобы избежать ощущения пустоты, важно правильно расставить мебель и грамотно организовать потоки движения.
Рациональное использование площади
Для дома площадью более 180 м² важно продуманное зонирование, выделение служебных и жилых зон. Необходимо учитывать как общие, так и приватные помещения, а также места для хранения, техники и дополнительного оборудования.
Такой проект позволяет создать уютное пространство с отдельной зоной отдыха, рабочей зоной и личными кабинетами, что отвечает современным потребностям и образу жизни. Высокая площадь способствует оптимальной организации мест для хобби, спорта и творчества.
Важные аспекты строительства и выбора материала
Выбор материалов для возведения двухэтажного дома размером 9х15 и площадью 181,3 м² имеет решающее значение для долговечности и энергоэффективности здания. Современные технологии предлагают широкий спектр строительных материалов — от газобетона и керамических блоков до клееного бруса и каркасных систем.
Каждый вариант имеет свои плюсы и минусы с точки зрения теплозащиты, звукоизоляции, скорости строительства и стоимости. Для двухэтажных домов важна прочность конструкции, устойчивость к нагрузкам и возможность устройства качественной теплоизоляции.
Каркасные технологии и их преимущества
Каркасные дома набирают популярность благодаря своей легкости и быстроте возведения. Такой тип конструкции идеально подходит для двухэтажных зданий средних размеров, включая 9х15 метров. Они обладают высокой теплоизоляцией за счет использования современных утеплителей и дают свободу в дизайне фасадов.
Каркасные дома также легче поддаются модернизации и ремонту, что делает их выгодным инвестированием на долгий срок.
Традиционные материалы: кирпич и блоки
Кирпичные и блочные конструкции обеспечивают высокую прочность и долговечность, а также обладают хорошей теплоемкостью. Однако стоимость и сроки возведения таких домов могут быть выше по сравнению с каркасными. Для двухэтажного дома 9х15 эти материалы подходят, особенно если предполагается использование дома круглогодично.
Керамические блоки или газобетон отлично сочетают прочность с хорошими теплоизоляционными характеристиками, что выгодно сказывается на эксплуатации дома в холодном климате.
Экономика проекта: затраты и эксплуатация
Одним из ключевых факторов при выборе проекта дома является оценка стоимости строительства и эксплуатационных расходов. Дом 9х15 метров с двумя этажами и площадью около 181 м² нельзя назвать бюджетным вариантом, однако грамотное планирование и выбор технологий помогут оптимизировать затраты.
С точки зрения эксплуатации, двухэтажные дома обычно требуют более сложных систем отопления и вентиляции, чем одноэтажные. Но за счет рационального использования площади на одном участке площадь земельного участка значительно экономится, а само строительство требует меньшего количества земляных работ.
Таблица ориентировочных затрат на строительство
| Этап строительства | Ориентировочная стоимость, руб. | Комментарий |
|---|---|---|
| Фундамент | 400 000 – 700 000 | Ленточный монолитный для двухэтажного дома |
| Стены и каркас | 1 200 000 – 2 000 000 | Варьируется в зависимости от материалов |
| Крыша | 400 000 – 600 000 | Тип и покрытие влияют на стоимость |
| Инженерные системы | 500 000 – 800 000 | Отопление, водоснабжение, электрика |
| Внутренняя отделка | 700 000 – 1 200 000 | Черновая и чистовая отделка |
| Итого | 3 200 000 – 5 300 000 | Стоимость ориентировочная для дома 181 м² |
Советы по снижению затрат
- Рационально выбирать материалы с оптимальным соотношением цены и качества.
- Планировать дом с минимальным количеством сложных архитектурных элементов — углы, эркеры, декоративные фасады значительно повышают стоимость.
- Соблюдать баланс между площадью и потребностями семьи, избегая избыточной площади.
- Заказывать работы у проверенных подрядчиков с прозрачной сметой.
- Использовать энергоэффективные системы отопления и утепления для сокращения расходов на эксплуатацию.
Выбор участка и размещение дома 9х15
Дом с габаритами 9 на 15 метров требует правильного выбора земельного участка. Площадь самого дома в плане — 135 квадратных метров, что предполагает наличие дополнительного пространства для обустройства придомовой территории, сада и подъездных путей.
Минимальная ширина и длина участка должны соответствовать не только габаритам дома, но и нормативным требованиям по отступам от границ и обеспечению доступа для техники и пожарной безопасности.
Рекомендации по планировке участка и расположению дома
- Расположить дом на возвышенности или ровной земле для удобства строительства и минимизации затрат на дренаж.
- Обеспечить корректные ориентации по сторонам света: главные жилые комнаты лучше ориентировать на юг или восток для хорошей инсоляции.
- Оставить достаточное пространство для размещения двора, огорода, а также возможных хозяйственных построек.
- Продумать удобные подъездные пути и зоны парковки вне дома, так как в проекте отсутствует гараж.
- Учитывать потенциальное расширение участка или возможность добавления вспомогательных построек в будущем.
Двухэтажные дома без гаража: плюсы и минусы
Наличие или отсутствие гаража в проекте дома — важное решение, которое зависит от многих факторов, включая бюджет, тип участка и потребности семьи. Проект, в котором гараж не предусмотрен, часто предлагает ряд преимуществ.
Отсутствие гаража снижает как строительные затраты, так и нагрузки на фундамент, а также освобождает пространство для дополнительного озеленения или организации зоны отдыха. Такой подход особенно актуален в пригородных и сельских районах, где личный транспорт можно парковать откровенно на территории участка.
Недостатки отсутствия гаража
Однако стоит учесть, что дом без гаража не защищает автомобиль от погодных условий и взломов. Также при отсутствии крытого пространства для машины могут возникать трудности в зимний период с уборкой снега и поддержанием комфорта въезда/выезда.
Тем не менее, многие владельцы предпочитают отдельные навесы или капитальные гаражи, которые можно построить позже, что делает изначальный дом менее громоздким и более легким в проектировании.
Особенности комфорта и эргономики в доме с пятью спальнями
Наличие более пяти спален в доме площадью 181,3 м² говорит о нацелености проекта на крупную семью или возможность активно использовать пространства для разнообразных целей. В таком доме можно выделить зоны с разным уровнем приватности и активного использования.
Основная идея — создание комфортных условий для каждой спальни, включая удобное освещение, звукоизоляцию и близость к санузлам. В то же время стоит позаботиться о достаточной площади общих комнат, таких как гостиная и кухня, где будет собираться вся семья.
Оптимальное размещение санузлов
Два санузла в доме с большим количеством спален — хороший показатель заботы о комфорте. Обычно один санузел располагают на первом этаже, чтобы обслуживать общие зоны и гостей, а второй — на верхнем этаже, обеспечивая жителей спальных комнат личным санузлом.
Современные решения предполагают также организацию дополнительных санитарных узлов или душевых кабин для улучшения функциональности, особенно в больших семьях с детьми и взрослыми.
Общая высота здания и инженерные требования для дома 9х15 метров
Хотя точная высота здания не указана, двухэтажный дом с размерами 9 на 15 м имеет типичную высоту около 6-7 метров с учетом стандартной высоты потолков в 2,7–3 метра и кровельной конструкции. При проектировании важно учитывать нормативы по высоте, а также предусмотреть комфортную высоту помещений для обеспечения достаточного объема воздуха и ощущения пространства.
Высота здания также влияет на выбор материалов для фасада, тип и параметры кровли, а также на требования к вентиляционным системам. Важным аспектом является и обеспечение безопасных эвакуационных выходов с верхнего этажа.
Особенности конструкции второго этажа
Второй этаж — это не только жилые помещения, но и особенности несущих конструкций, перекрытий и шумоизоляции. Выбор материала для межэтажных перекрытий — это важный элемент долговечности и комфорта. В современных проектах часто применяются железобетонные плиты или деревянные балки с надлежащей обработкой.
Также инженерные решения должны включать в себя надежные системы пожарной безопасности, особенно учитывая жилое назначение второго этажа.
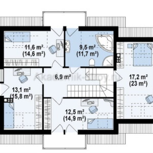
Планировка и зонирование внутри дома 9x15 м
Грамотное зонирование и планировка помещений — ключевые факторы успешного проекта двухэтажного дома. В доме площадью 181,3 м² и с пятью спальнями важно четко разделить зоны активного и пассивного использования, общие и приватные пространства.
Как правило, первый этаж выделяется под общественную зону: гостиную, кухню, столовую, а также хозяйственные помещения — котельную, кладовые, гардеробные и санузел. Второй этаж занимает приватная зона с спальнями, дополнительным санузлом и, возможно, комнатами для занятий или отдыха.
Вариант планировки первого этажа
- Прихожая с гардеробной для хранения верхней одежды и обуви.
- Просторная гостиная с зоной отдыха и телевизионным уголком.
- Кухня со столовой, возможно, с островком для приготовления пищи.
- Санузел с душевой или ванной комнатой для гостей и домочадцев.
- Техническое помещение (котельная, кладовая).
Вариант планировки второго этажа
- Несколько спален, включая родительскую с собственным гардеробом.
- Второй санузел с дополнительными удобствами.
- Дополнительные комнаты под кабинет, игровую или гостевую.
Использование пространства вокруг дома
Дополнительно к преимуществам самого дома 9х15 важно задуматься о формировании территории вокруг него. Обычно, на участках с таким домом располагаются сад, парковочные места, зоны отдыха — садовые беседки, мангальные площадки и детские уголки.
Правильное озеленение и планировка двора способствуют не только комфортному проживанию, но и повышению эстетической ценности участка, что важно при дальнейшем проживании или продаже дома.
Участок для дома 9х15 м
| Параметр | Рекомендуемое значение |
|---|---|
| Минимальная ширина участка | от 18 метров |
| Минимальная длина участка | от 25 метров |
| Отступы от границ | не менее 3 метров с каждой стороны |
Подведение итогов
Двухэтажный дом размером 9 на 15 метров с площадью около 181,3 м² — это прекрасный выбор для семьи, которым важны комфорт, функциональность и рациональное использование пространства. С пятью и более спальнями и двумя санузлами такой проект гарантирует возможность каждому члену семьи иметь свое личное пространство, не забывая о прекрасных общих зонах для встреч и отдыха.
Выбор правильных материалов, грамотная планировка, продуманная внутренняя эргономика и соответствие участка необходимым размерам сделают проживание в таком доме максимально удобным и гармоничным.












































