Архитектурный
проект
Комплексная документация, которая включает в себя детальные чертежи, планы, разрезы и описания, отражающие все аспекты будущего дома: от пространственной планировки (расположение комнат, этажей, окон и дверей) до конструктивных решений (материалы, фундаменты, кровля) и эстетических особенностей (стиль фасада, дизайн интерьеров, интеграция с ландшафтом).
Состав архитектурного проекта
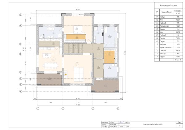
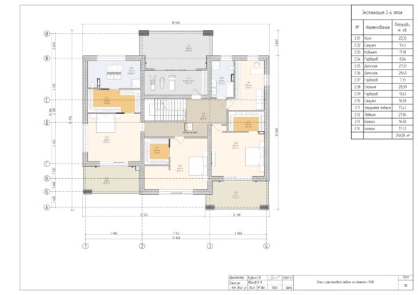
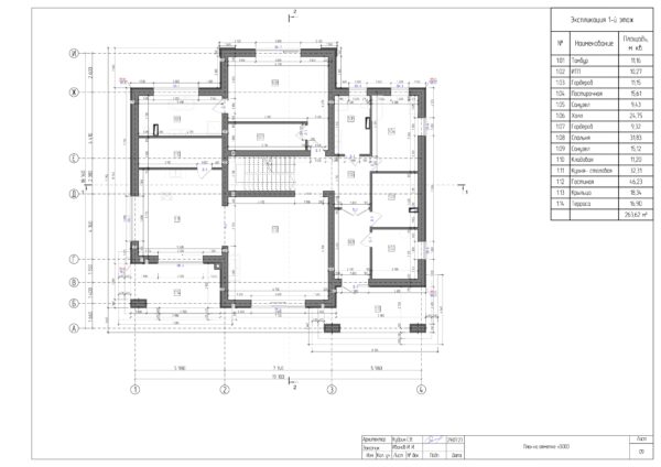
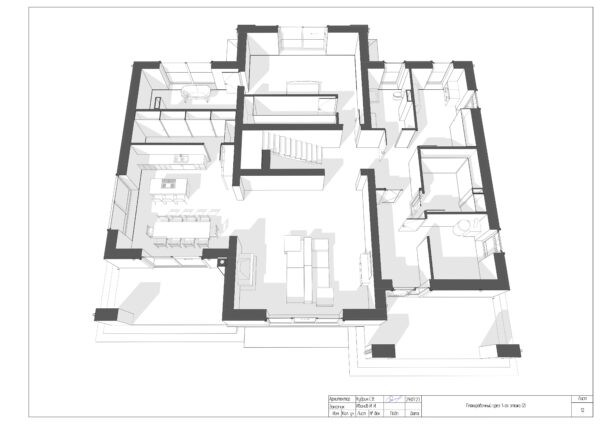
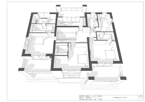
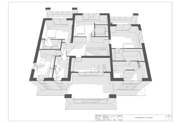
Планировка дома
Проработаем все детали — начиная от высоты объекта и количества этажей, и заканчивая архитектурной планировкой и оформлением внутреннего пространства.
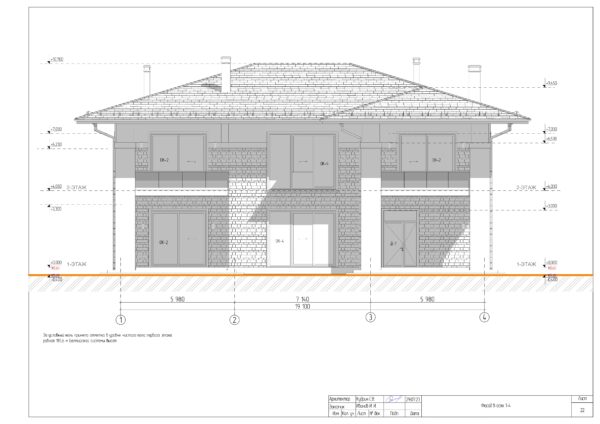
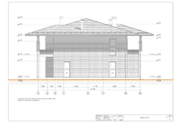
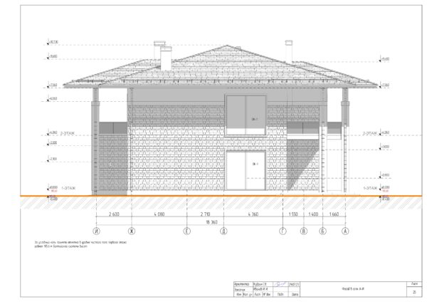
Дизайн фасада дома
Предложим несколько вариантов дизайна фасадов. Применим материалы для облицовки и продемонстрируем, как будет выглядеть ваш дом в итоге.
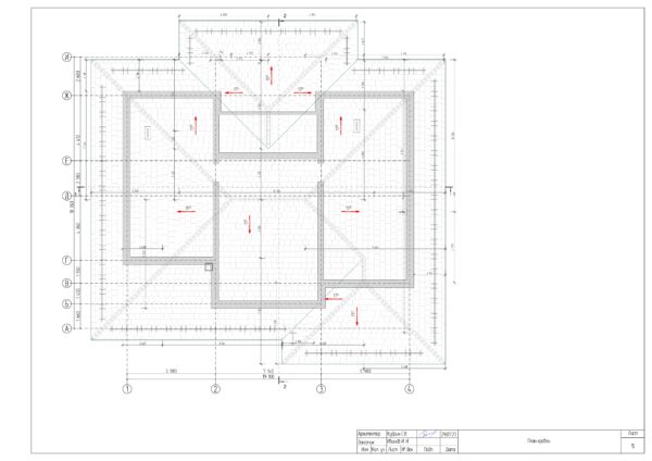
План кровли
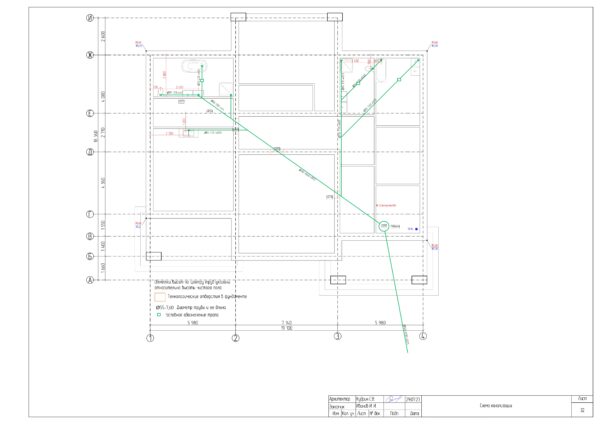
План крыши дома в виде сверху, на котором указаны форма, наклоны скатов, трассы водостоков, расположение дымоходов, мансардных окон и прочих деталей.
План участка
Принимая во внимание строительные нормы, ориентацию по сторонам света, инсоляцию, расположение соседних построек и перспективные точки обзора.
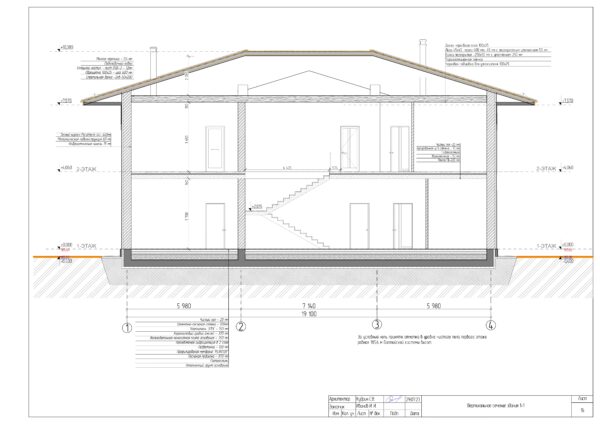
Технические решения
Определим ключевые конструктивные элементы здания — укажем, какие стены будут несущими, а какие ненесущими, типы перекрытий, крыши и лестниц.
Документация
Техническая документация для подрядчиков, которая станет фундаментом для разработки конструктивного проекта здания.
Примеры проектов
архитектурных решений
Заказав проект у нас
вы получите
01. Идеальное планировочное решение
Мы принимаем во внимание все ключевые факторы: эргономику, ваши предпочтения, строительные регламенты, предстоящий дизайн помещений и архитектурные решения, чтобы максимально реализовать возможности вашего дома благодаря тщательно продуманному планированию.
02. Архитектуру вне временных рамок
- На основе ваших предпочтений мы создадим неповторимый архитектурный облик здания
- Все архитектурные и дизайнерские идеи, и материалы для отделки фасадов будут соответствовать вашему строительному бюджету
- В каждом проекте предусматриваем уникальные элементы, которые сделают ваш дом особенным, Например, двойной свет в гостиной, висячая лестница, световые фонари, скрытая кухня
03. Оптимальное размещение дома на участке
Разместим дом на участке, с учетом перепада высот рельефа, ориентации по сторонам света, градостроительных норм и правил землепользования. Выделим границы функциональных зон и малые архитектурные формы.
04. Всю необходимую строительную документацию
Мы подготовим документацию для подрядчиков и получения разрешения на строительство.
- Разбивочные и кладочные планы
- Разрезы дома с высотными отметками
- Фасады в необходимом количестве
- План кровли с водоотводом
- Узлы, сечения, детали
- Ведомости и спецификации
Используем передовые технологии
Bim проектирование
Технология BIM представляет собой трёхмерное моделирование, которое охватывает всё: начиная от инженерных решений и этапов возведения до подсчёта объёма бетона.
Расчет инсоляции
Мы выполняем вычисления, применяя коэффициент КЕО. Осветительные сценарии разрабатываются с учетом местоположения объекта, ориентации проекта по сторонам света, угла наклона солнца и календарных дат.
Unreal Engine
В программе Unreal Engine формируются визуализации, которые предоставляют возможность не только создавать реалистичные изображения, но и выполнять видео-облёты, а также трёхмерные экскурсии по внутренним пространствам здания.
Стоимость
архитектурного
проекта дома
Архитектурные решения (АР)
В архитектурном проекте указываются все, необходимые для строительства, линейные размеры с учетом примерной расстановки мебели и оборудования, даются детальные решения элементов загородного дома - стен, перегородок, полов, кровли, с основными видами, разрезами, сечениями и узлами.
Стоимость:
450 ₽/м²
(строительная площадь здания)Срок:
30 дней
Технадзор
бесплатно!
Если строите сами
При заказе проектирования, технический надзор строительства дома в подарок
Все проектные работы, геология, геодезия
и технадзор
бесплатно!
Если строим мы
Готовое или индивидуальное проектирование — что выбрать?
Индивидуальный проект
Плюсы
- Заказчик участвует на всех этапах проекта в тесной работе с архитектором: он может вносить правки в проект, формируя общую картину дома, и находя тем самым идеальное для себя решение
- Расчёт надежного оптимального фундамента за счёт отсутствия лишнего запаса прочности
- Планировка дома, его адаптация под конкретный земельный участок, позиционирование относительно направления ветра, сторон света
- После строительства нет необходимости переделывать дом под себя
- Выбор материалов и решений производится с учетом бюджета заказчика
Минусы
- На разработку проекта требуется не менее 2 недель
- Цена выше
Типовой проект
Плюсы
- К строительству можно приступить сразу после покупки проектной документации
- Всегда можно внести корректировки в проект, если это необходимо
- Это 100% проверенный вариант, так как строительство объекта по проекту уже выполнялось
- Цена ниже
Минусы
- Стоимость строительства может быть увеличена для создания запаса прочности. Это делается для надёжности, так как фундамент закладывается с учётом особенностей региона
- При позиционировании готового дома на участке могут возникнуть трудности. В этом случае клиенту необходимо будет подстраиваться уже под имеющееся решение. Нужно быть готовым к тому, что такие изменения приведут к увеличению общей стоимости строительства
- Невозможность корректировок или замены материалов и решений, заложенных в несущих конструкциях типового проекта
- Нет полноценных решений по отделке фасада
Как мы работаем?
Мы умеем подготовить профессиональный проект архитектурных решений
1 день
Консультация
с архитектором
Внимательно выслушаем ваши пожелания по площади дома, количеству этажей и назначению помещений. Учтем индивидуальные особенности и привычки членов семьи.
5 дней
Изучение документации
Изучим градостроительный план земельного участка, геодезические данные, топографические съемки, а также технические условия для подключения воды, электричества и газа.
Заказать
архитектурный проект
загородного дома
-
Идеальное планировочное решение
-
Уникальный архитектурный облик дома
-
Оптимальное размещение дома на участке
-
Разработка всей строительной документации
Наши преимущества
Опытная команда
У нас работают архитекторы с профильным образованием, которые доказали свой профессионализм на практике.
Стандарты качества
Соблюдаем СНиПы и ГОСТы.
Лучшие в своем деле
Все архитекторы имеют высшее профильное образование
и опыт реального проектирования более 5 лет.
Отзывы наших клиентов
Часто задаваемые вопросы
А вы сможете построить дом после проектирования?
9 из 10 проектов мы в дальнейшем строим. Как известно, никто не знает проект лучше, чем его автор. Именно поэтому нам с уверенностью можно доверить строительство. Наши строители не допустят ошибок при возведении объекта, за счет авторского надзора, не позволяющего отступить от требований проекта. А вы в свою очередь сэкономите до 20% при покупке строительных материалов на нашем собственном производстве.
С чего начать проектирование дома?
Перед тем, как начинать работы по проектированию, необходимо определиться с местом возведения будущего дома. Для обсуждения потребуется кадастровый план или кадастровый номер участка. На первой встрече со специалистами Вам необходимо иметь при себе регламент застройки. Наши опытные архитекторы помогут подобрать для Вас подходящий стиль дома из множества возможных, а также площадь будущего дома, учитывая при этом размер участка, его формы и рельеф. Для последующего удобства обустройства территории около застройки, мы выберем наилучшее месторасположение дома на участке. После обсуждения всех этих нюансов можно с уверенностью начинать проектирование, обговаривать бюджет и технологии строительства. Специалисты нашей компании помогут и дадут дельный совет.
Сколько времени занимает процесс проектирования дома?
Приблизительные сроки разработки будут озвучены после встречи с архитектором и составления технического задания. Обычно индивидуальное проектирование дома занимает от 2 недель до 1 месяца. Точный срок зависит от нескольких факторов, а именно от сложности архитектуры, количества элементов дома, которые требуется проработать. Большая часть времени уходить на согласование, внесение правок, поиск идеального решения для клиента.
Сколько стоит проектирование дома?
Для строительства дома необходимы архитектурный и конструктивный разделы. Их стоимость составляет от 350 руб/м². Из этого следует, что наименьшая стоимость проекта для дома площадью 150 м² составит 52.500 рублей. Готовый проект можно приобрести по цене от 20 000 рублей. Итоговая стоимость может быть увеличена при доработке проекта под индивидуальные характеристики участка, а также при дополнительных пожеланиях заказчика.
Можно ли купить проект дома «Академик Строй», но реализовать его в другой компании?
Да. Вы получите готовый проект дома, который будет технически правильно и стильно оформлен, и с которым в последующем будет легко работать строителям любой квалификации. Но при заказе проектной документации в нашей компании, Вас ждут специальные условия. Все подробности можно уточнить, позвонив по телефону, или написав нам в социальных сетях.
Каким способом можно оплатить?
Оплата происходит в 2 этапа. Первый платёж равный 50% от общей стоимости вносится до начала работ. Оставшиеся 50% - после утверждения эскиза. В случае если площадь, прописанная в расчётах будет отличаться от фактической, то будет произведена корректировка окончательного расчета.
Проектирование дома бесплатно
В компании «Академик Строй» можно заказать проект дома бесплатно. Проектная документация включает в себя архитектурный и конструктивный разделы, а также визуализацию дома. Для этого необходимо заключить с нами договор на строительство. При данных условиях нами будет компенсирована стоимость проектирования, и дополнительно предоставлена длительная гарантия на возведённый дом – 20 лет.














































