Общее описание проекта двухэтажного дома 10x12 м
Проект двухэтажного дома размером 10х12 метров является одним из самых востребованных вариантов для частного строительства. Такой формат здания идеально подходит для семей, стремящихся сочетать комфорт, функциональность и рациональное использование пространства. Дом площадью 174.33 м² предлагает удачное соотношение между масштабом и уютом, позволяя разместить все необходимые помещения для жизни даже большой семьи.
Два этажа предоставляют больше возможностей для планировки, а габариты 10 на 12 метров делают дом пропорциональным и удобным для застройки на участках средней площади. Этот тип жилья легко адаптируется под разные стили, от классики до модерна, что позволяет удовлетворить самые разнообразные эстетические предпочтения.
Кроме того, двухэтажные дома экономят участок, освобождая дополнительное пространство для сада, зоны отдыха или дополнительной постройки, что особенно актуально в условиях ограниченной площади земли.
Размеры и площадь дома: что важно учитывать
Размеры дома 10 на 12 метров являются ключевыми параметрами, от которых зависит планировка фасада, внутренняя организация пространства и, конечно же, затраты на строительство. Площадь 174.33 м² позволяет грамотно распланировать жилые и технические зоны.
В проекте с этими размерами, часто размещают три спальни, что идеально для семьи с двумя или тремя детьми. При этом каждая спальня может быть просторной, хорошо освещенной, с возможностью размещения дополнительной мебели – шкафов, письменных столов и иных элементов комфорта.
Таблица основных параметров двухэтажного дома 10x12
| Параметр | Значение |
|---|---|
| Размеры дома | 10 x 12 м |
| Количество этажей | 2 |
| Общая площадь | 174.33 м² |
| Количество спален | 3 |
| Количество санузлов | 2 |
Такой формат позволяет грамотно распределить полезную площадь между комфортабельными жилыми и вспомогательными помещениями, что делает дом удобным для длительного проживания и приема гостей.
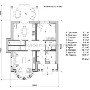
Планировка первого этажа
Первый этаж в доме размером 10 на 12 метров традиционно включает общественные зоны, которые обеспечивают комфорт всей семьи и гостей. В таком доме обычно размещают просторную гостиную, кухню, столовую и гостевой санузел. Благодаря размеру дома можно реализовать открытую концепцию, где зона кухни плавно переходит в гостиную и столовую, создавая ощущение простора и свободы.
Для удобства обитателей в гостиной можно предусмотреть большие окна, которые впускают много дневного света, а также выход на участок или террасу (если предусмотрена). Наличие второго санузла на этаже значительно повышает комфортабельность дома, особенно при гостевых визитах.
Кроме того, на первом этаже часто располагают технические помещения: котельную, кладовку или помещение для хранения бытовых принадлежностей, что позволяет максимально разгрузить жилые комнаты на втором этаже.
Планировка второго этажа: приватные зоны
Второй этаж в доме 10х12 метров отведен под приватные зоны. Здесь расположены три спальни, которые обычно рассчитаны на членов семьи. Три отдельные спальни — оптимальное решение для семей с детьми или с гостями, так как каждая комната обладает достаточной площадью для отдыха и личной жизни.
На втором этаже также предусмотрено два санузла: это значительно повышает уровень комфорта, исключая очереди на утренний туалет и снижая напряженность в семейной жизни. Один санузел может быть полноценно оборудован и совместным, а второй — небольшим по размеру, например, с умывальником и унитазом.
Зонирование второго этажа зачастую включает и небольшое пространство для общего пользования: например, холл или кабинет, которые играют роль места для работы, чтения или развлечений.
Преимущества трехспальной планировки
- Возможность размещения детей в отдельных комнатах.
- Свобода обустройства каждой спальни под индивидуальные потребности.
- Наличие гостевой или рабочей комнаты при желании.
- Удобное распределение личного пространства обеспечивает комфорт каждому члену семьи.
Особенности и преимущества двухэтажных домов 10x12 м
Двухэтажный дом с размерами 10x12 м прекрасно вписывается в ландшафт любых участков средней площади. Благодаря вертикальному построению, такой дом позволяет значительно экономить площадь земельного участка, что особенно важно для тех, кто предпочитает просторный сад или зону барбекю.
Кроме того, использование двух этажей дает возможность создавать интересные архитектурные решения: наличие эркеров, балконов, разнообразных оконных конструкций, что придает дому не только индивидуальность, но и улучшает естественную вентиляцию и освещение помещений.
С технической точки зрения двухэтажное строение с оптимальной площадью обладает хорошей энергоэффективностью, так как тепло поднимается вверх, создавая естественный микроклимат в жилых зонах второго этажа. При правильной организации отопления и вентиляционных систем, в таком доме легко поддерживать комфортную температуру в любое время года.
Варианты материалов и конструкций для дома 10x12 м
Выбор материала для возведения двухэтажного дома размером 10 на 12 метров является важным этапом, от которого зависит долговечность, теплоизоляция и внешний вид здания. Современный строительный рынок предлагает широкий спектр материалов, каждый из которых имеет свои достоинства и ограничения.
Разберем наиболее популярные варианты:
Кирпич
Кирпичный дом славится прочностью и хорошими теплоизоляционными характеристиками. Кирпич долговечен, устойчив к огню и шуму, а также позволяет реализовать сложные архитектурные формы. Однако строительство из кирпича требует фундаментальной подготовки и может быть затратным по времени и стоимости.
Брус и бревно
Дома из бруса и бревна популярны благодаря своей экологичности и природной эстетике. Такой дом «дышит», имеет приятный микроклимат и быстро нагревается. Однако древесина требует должного ухода, обработки средствами защиты от гниения, насекомых и огня.
Каркасные технологии
Каркасные дома характеризуются легкостью конструкции, быстрым возведением и энергоэффективностью. При использовании качественных утеплителей и пароизоляционных мембран каркасный дом может обеспечивать комфортный климат в любое время года.
Пенобетон и газобетон
Пенобетон и газобетон – современный строительный материал с хорошими теплоизоляционными свойствами. Дома из этого материала отличаются низкой теплопроводностью, что позволяет значительно экономить на отоплении. К тому же, эти блоки легко обрабатываются, что ускоряет процесс строительства.
Системы коммуникаций и инженерные решения для дома 174.33 м²
Современный двухэтажный дом требует грамотного проектирования инженерных систем, от которых зависит комфорт проживания и безопасность всех членов семьи. В доме площадью 174.33 м² рационально организовать следующие коммуникации:
Отопление и вентиляция
Для обеспечения тепла выгодно использовать комбинированные системы отопления: котлы на газу, электрические или даже пеллетные. Также стоит уделить внимание организации системы вентиляции с приточно-вытяжным типом с рекуперацией тепла — это не только улучшит качество воздуха, но и повысит энергоэффективность дома.
Водоснабжение и канализация
Два санузла в доме потребуют продуманного размещения стояков и удобных инженерных трасс. Оптимально предусмотреть подключение к центральной системе водоснабжения и канализации, если участок расположен в населенном пункте. Для загородных домов часто актуальны системы автономного водоснабжения с колодцем или скважиной и септики или локальные очистные сооружения.
Электроснабжение и безопасность
Адекватная электропроводка с запасом по мощности обеспечит эксплуатацию бытовой техники и системы освещения. Рекомендуется установить системы умного дома, автоматизацию и системы безопасности, такие как сигнализация и видеонаблюдение.
Эстетика и внешний вид дома 10x12
Внешний облик дома играет важную роль, так как это первое впечатление о строении и его владельцах. Проект двухэтажного дома 10 на 12 метров предоставляет широкие возможности в области дизайна фасадов и решения архитектурных элементов.
Материалы отделки могут варьироваться: классическая штукатурка, облицовка кирпичом или камнем, декоративная отделка из дерева или композитных панелей. Цветовые решения выбирать нужно исходя из ландшафта участка и предпочитаемого стиля, будь то современный минимализм, прованс, классицизм или скандинавская стилистика.
Немаловажным аспектом является крыша, которая не только защищает дом от атмосферных воздействий, но и подчеркивает его архитектурную индивидуальность. Выбор кровельного материала зависит от климатических условий, дизайна и бюджета строительства.
Важные рекомендации для строительства дома размером 10x12 м
Перед началом строительства дома 10 на 12 метров необходимо тщательно продумать следующие аспекты:
- Подбор участка с учетом минимальных требований по размерам и рельефу;
- Проверка коммуникаций и возможность подключения к инженерным сетям;
- Определение бюджета и корректировка проекта в зависимости от финансовых возможностей;
- Выбор строительных материалов и подрядчика;
- Проработка документации и получение разрешений на строительство;
- Продумать будущие возможности расширения или изменения проекта;
- Уделить внимание оптимальной теплоизоляции и энергосбережению.
Итог: функциональность и комфорт двухэтажного дома 10x12
Двухэтажный дом площадью 174.33 м² размером 10 на 12 метров — это идеальный вариант для тех, кто хочет получить комфортное, просторное жилье с рациональным использованием пространства. Три спальни и два санузла обеспечивают полноценный комфорт для семьи, а два этажа позволяют грамотно распределить области для отдыха, работы и общего времяпрепровождения.
Кроме того, размер дома открывает широкие возможности для выбора материалов, инженерных систем и архитектурных решений, что позволяет сделать дом не только удобным, но и стильным, энергоэффективным и современным.
Этот проект отлично подойдет для строительства в загородных условиях, где особое значение имеет сочетание практичности и эстетики, экономия места на участке и комфорт для всей семьи.
































