Двухэтажный дом 11x13 - оптимальное решение для комфортного проживания
Проект двухэтажного дома с размерами 11 на 13 метров и общей площадью 186,14 м2 – это современное и продуманное решение для тех, кто ценит комфорт, простор и функциональность. Такие размеры дают возможность организовать достаточно жилого пространства, не занимая при этом чрезмерной площади участка. Два этажа обеспечивают четкое зонирование – ночная и дневная части дома разделяются, благодаря чему каждая семья получает свой уютный уголок.
Планировка дома 11х13 м позволяет грамотно распределить помещения, предусмотреть оптимальное количество спален и санузлов, а также создать комфортные общественные зоны для отдыха и приёма гостей. Такой формат дома идеально подходит как для семьи с детьми, так и для тех, кто часто принимает гостей или организует семейные праздники.
Архитектурные особенности дома 11х13
Функциональное зонирование и два этажа
Наличие двух этажей – одна из ключевых особенностей этого дома. Первый этаж традиционно отводится под общественные помещения – гостиную, кухню, столовую, возможно, кабинет или гостевую комнату. Второй этаж – зона отдыха и уединения, где располагаются спальни и санузлы. Такое разделение позволяет всем членам семьи чувствовать себя комфортно, находясь при этом в одном доме.
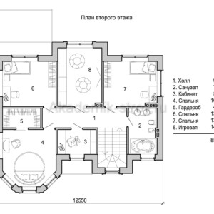
Габариты дома 11 на 13 метров обеспечивают достаточный простор для создания трех полноценных спальных комнат, что особенно актуально для семей с детьми. Кроме того, здесь предусмотрено два санузла – один на первом этаже и второй на втором, что значительно повышает удобство проживания и снижает утренние очереди к ванной комнате.
Планировочные решения и расположение комнат
Особое внимание при проектировании дома уделяется организации пространства, чтобы избежать лишних коридоров и улучшить циркуляцию света и воздуха. Вариант 11х13 позволяет сделать просторную гостиную с выходом в обеденную зону и кухню. Возможно организовать открытое пространство или закрытые помещения в зависимости от предпочтений заказчика.
На втором этаже по плану располагаются три спальни. Они могут иметь разную площадь, что позволяет адаптировать их под разные нужды – например, главная спальня с гардеробной, детская и кабинет. Два санузла обеспечивают дополнительный комфорт, особенно в утренние часы.
Преимущества двухэтажного дома площадью 186,14 м2
Экономия пространства на участке
Двухэтажное строительство – отличный способ максимально эффективно использовать земельный участок, особенно если его площадь ограничена. Дом размером 11х13 метров занимает приблизительно 143 м2 под фундаментом, оставляя достаточно территории для сада, детской площадки, или зоны отдыха. При этом полезная площадь жилья значительно увеличивается за счёт второго этажа, составляющего суммарно 186,14 м2, что выгодно отличает такой проект от одноэтажной альтернативы.
Таким образом, при компактных габаритах footprint, вы получаете просторный и комфортный дом, который будет гармонично вписываться в ландшафтный дизайн и обильную зелень участка.
Возможности для дизайна и архитектурной выразительности
Проект дома с такими габаритами позволяет применить самые разные архитектурные стили: от классики и модерна до скандинавского стиля. Выбор отделочных материалов, фасадных решений, оконных систем и других элементов помогает подчеркнуть индивидуальность дома и сделать проживание в нём максимально приятным.
Двухэтажный формат даёт возможность добавить интересные детали, например, небольшие эркеры, мансардные окна или фактурные отделки. При удачном сочетании можно получить не только функциональное, но и эстетически привлекательное жилище.
Технические характеристики и рекомендации по строительству
Основные размеры и габариты дома
| Параметр | Значение |
|---|---|
| Размеры дома | 11 x 13 м |
| Количество этажей | 2 |
| Количество спален | 3 |
| Количество санузлов | 2 |
| Общая площадь | 186,14 м² |
Обратите внимание, что площадь застройки приблизительно равна площади основания дома – это примерно 143 м2. Высота здания и другие специфические параметры зависят от выбранного проекта и материалов, но, как правило, двухэтажные дома такого плана имеют общую высоту около 6-7 метров (без учета мансарды).
Выбор материалов и конструктивные решения
Качество возведения дома напрямую зависит от выбора строительных материалов. Для стен наиболее популярны следующие варианты:
- Газобетон или пеноблоки – отличный выбор для регионов с умеренным климатом, обладающие хорошими теплоизоляционными характеристиками.
- Кирпич – классический и долговечный материал, обеспечивающий надежность и эстетическую привлекательность.
- Дерево – популярный вариант для экологичных и тёплых домов, но требует дополнительной обработки от влаги и насекомых.
Перекрытия между этажами могут быть выполнены из железобетона, деревянных балок или комбинированных конструкций. Важно уделить внимание звукоизоляции, чтобы минимизировать передачу шума между этажами. Современные технологии позволяют совмещать прочность и легкость конструкций, сохраняя комфорт внутри дома.
Особенности внутренних помещений и их организация
Три спальни – комфорт и личное пространство
Три спальные комнаты – оптимальный набор для семьи из нескольких человек. Во всех комнатах можно создать индивидуальный стиль, добавить необходимую мебель и бытовую технику. Основная спальня традиционно располагается на втором этаже, может иметь собственную гардеробную или ванную комнату для дополнительного комфорта.
Две другие спальни могут использоваться как детские комнаты, кабинет или гостевые. Важно при проектировании продумать удобное расположение окон для естественного освещения и вентиляции, а также предусмотреть достаточное количество розеток и систем хранения.
Два санузла – удобство для всей семьи
Наличие двух санузлов значительно улучшает удобство проживания нескольких человек. Один санузел на первом этаже станет удобным для гостей и дневного использования, а второй, расположенный на втором этаже, – для семейного пользования ночью.
Современные проекты предусматривают использование душевых кабин, ванн, биде и современной сантехники, что повышает общую удовлетворенность жильем. Повышенное внимание следует уделять качеству водоснабжения и канализационных систем, чтобы избежать проблем в дальнейшем.
Удобство эксплуатации и дополнения для дома 11х13
Отсутствие гаража – плюсы и минусы
В представленном проекте гараж отсутствует, что имеет как свои преимущества, так и недостатки. С одной стороны, отсутствие гаража упрощает конструкцию дома, снижает затраты и снижает нагрузку на участок. С другой стороны, владельцам автомобиля нужно предусмотреть возможность организации крытой стоянки или навеса, особенно в регионах с неблагоприятными климатическими условиями.
Если гараж важен, его можно организовать отдельно или в виде пристройки, сохраняя общие габариты и эстетику дома. При этом стоит заранее предусмотреть удобные подъездные пути и проникновение света.
Террасы и балконы – потенциальные возможности
Проект не предусматривает наличие террас и балконов, однако пространство двух этажей и размеры дома позволяют легко внедрить такие элементы. Балконы могут стать дополнительным местом для отдыха, создания мини-огорода или зоны для утреннего кофе. Террасы на первом этаже — отличное решение для организации зоны отдыха на открытом воздухе, особенно летом.
Добавление террасы или балкона требует согласования с архитектором и строительной компанией, чтобы обеспечить сохранение прочности здания и соответствие нормам безопасности.
Минимальные размеры участка и планирование
Для размещения дома размером 11 на 13 м необходимо подходящее по габаритам земельное владение. В идеале, минимальная ширина и длина участка должны превышать размеры дома минимум на 3-4 метра по каждой стороне, что позволит обеспечить необходимое пространство для организации отступов, подъездных дорог и озеленения.
Такое пространство дает возможность организовать комфортный ландшафтный дизайн с садом, дорожками, зоной отдыха или детской площадкой. Помимо эстетики, правильное размещение дома относительно сторон света улучшит естественное освещение помещений и поможет сэкономить на отоплении в холодное время года.
Преимущества выбора двухэтажного дома 11х13 для семьи
- Рациональное использование участка: компактный фундамент с максимальной жилой площадью;
- Просторные и функциональные комнаты: три спальни, два санузла, удобная гостиная;
- Возможность разнообразных планировочных решений: адаптация под личные предпочтения;
- Оптимальный комфорт: разделение зон отдыха и общественных комнат;
- Разумные затраты на строительство и содержание: эффективное соотношение цены и качества;
- Перспективы дальнейшего обустройства: возможность добавления террас, балконов, пристроек и навесов.
Рекомендации по выбору подрядчиков и этапам строительства
Выбирая проект дома 11х13, важно обратиться к опытным специалистам – архитекторам, инженерам и строителям, которые помогут создать индивидуальный план, реализуемый с учетом всех особенностей участка и предпочтений владельцев. Только профессиональное сопровождение гарантирует качественное выполнение всех этапов строительства — от заливки фундамента до внутренней отделки.
Основные этапы строительства двухэтажного дома включают в себя:
- Разработка проектной документации и согласование с соответствующими органами;
- Подготовка и планировка участка;
- Заливка фундамента и устройство подземных коммуникаций;
- Возведение стен и перекрытий;
- Монтаж кровли и утепление здания;
- Установка окон, дверей и внутренних инженерных систем;
- Внутренняя отделка и благоустройство наружных фасадов;
- Подключение коммуникаций – водоснабжения, отопления, электроэнергии.
Сроки и стоимость зависят от выбранных материалов, сложности проекта и квалификации рабочей бригады. Важно помнить, что основной экономией становится не только бюджет, но и время, если доверить работу профессионалам.
Заключение
Двухэтажный дом размером 11х13 метров и площадью 186,14 м2 — это оптимальное сочетание комфорта, функциональности и экономии пространства. Три спальни и два санузла делают такой дом удобным для семьи разного состава, а два этажа позволяют реализовать продуманное зонирование помещений. Отсутствие гаража и террас позволяет максимально адаптировать проект под индивидуальные нужды и бюджет. При правильной организации строительства и грамотном выборе материалов такой дом станет настоящим уютным гнездышком для вашей семьи.










































