Основные характеристики двухэтажного дома 11x12 м – 177,1 м²
Двухэтажный дом размерами 11 на 12 метров – это оптимальное решение для семьи, стремящейся объединить комфортное пространство и функциональность на сравнительно небольшой площади. Общая площадь в 177,1 м² позволяет разместить все необходимые жилые и бытовые зоны, сохраняя при этом уют и атмосферу домашнего уюта.
Два этажа предоставляют достаточное количество жилой площади для размещения нескольких спален и общих комнат, что идеально подходит для семей с детьми или тех, кто часто принимает гостей. Размеры дома 11х12 метров дают возможность организовать удобную планировку, где нет лишних проходных зон, а каждый квадратный метр работает на удобство жильцов.
Планировка и зонирование пространства
Одним из ключевых достоинств двухэтажных домов является возможность продуманного зонирования пространства. В данном проекте основное внимание уделяется размещению четырех спален и двух санузлов, что обеспечивает рациональное распределение как общественных, так и приватных зон.
Первый этаж: функциональные помещения и дневные зоны
На первом этаже обычно располагаются гостиная, кухня, столовая и помещения для бытовых нужд. Такой подход обеспечивает удобный доступ к главным общественным зонам дома и создает условия для комфортного общения всей семьи.
Во многих проектах с размерами 11х12 метров удачно размещается просторная кухня, объединённая с обеденной зоной, а также уютная гостиная с большими окнами. В результате создаётся светлое помещение, наполненное солнечным светом, что благоприятно влияет на настроение обитателей дома.
Второй этаж: личное пространство и спальни
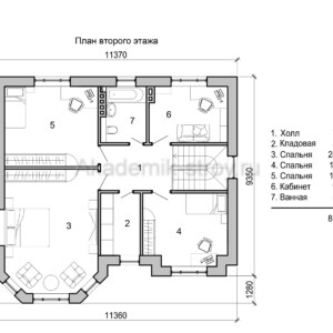
Второй этаж отведён под четыре спальни, что позволяет каждому члену семьи иметь личное пространство для отдыха и восстановления сил. Наличие двух санузлов на двух этажах значительно повышает комфорт проживания и упрощает утренние и вечерние процедуры для всех домочадцев.
Продуманная планировка второго этажа способствует не только удобству, но и приватности, ведь спальни находятся на удалении от общественных зон и не подвержены шуму с первого этажа.
Преимущества двухэтажного дома размерами 11х12 метров
Такой дом объединяет в себе ряд очевидных преимуществ, которые делают его привлекательным вариантом для различных категорий покупателей.
Рациональное использование земельного участка
За счет компактных габаритов в плане и двух этажей, дом занимает сравнительно небольшую площадь земельного участка, оставляя достаточно места для организации сада, зоны отдыха или детской площадки. Это особенно важно в условиях ограниченного размера участка.
Экономия при строительстве и эксплуатации
Двухэтажная конструкция позволяет экономить на фундаменте и кровле по сравнению с одноэтажным домом аналогичной площади. Меньшая площадь застройки означает более экономичное использование строительных материалов и меньшие затраты на утепление и содержание.
Функциональность и удобство проживания
Наличие четырёх спален и двух санузлов обеспечивает высокий уровень комфорта для семьи из нескольких человек. Каждый может найти свое личное пространство, а также пользоваться общими зонами без заторов и очередей, что особенно ценно в утренние часы.
Строительные материалы и технические особенности
Выбор строительных материалов для дома размером 11х12 м оказывает существенное влияние на его теплоизоляцию, прочность и долговечность. Оптимальное сочетание современных технологий и классических решений способно обеспечить надежность и уют на долгие годы.
Фундамент и стены
Для дома с двумя этажами и размерами 11 на 12 метров рекомендуется использовать ленточный или монолитный фундамент, который обеспечит надежную опору и равномерное распределение нагрузок от конструкции. Стены могут быть возведены из газобетона, кирпича или бруса – выбор зависит от бюджета, климата и желаемого стиля дома.
Кровля и утепление
С учетом двухэтажной конструкции важно грамотно спроектировать кровлю, чтобы обеспечить надежную защиту от осадков и создать оптимальный микроклимат внутри помещения. Качественный утеплитель и пароизоляция позволят значительно снизить затраты на отопление в холодное время года.
Инженерные коммуникации
При проектировании дома следует уделить внимание грамотному размещению инженерных сетей – водопровода, канализации, отопления и электроснабжения. Размещение двух санузлов требует продуманных решений в плане разводки труб и вентиляции.
Планировка комнат: организация жилого пространства
Двухэтажный дом площадью 177,1 м² с четырьмя спальнями и двумя санузлами позволяет удобно организовать все необходимые помещения для полноценного проживания семьи.
Спальни: комфорт и приватность
Каждая из четырех спален может быть организована с учетом индивидуальных предпочтений жильцов — для родителей, детей или гостей. Хорошая звукоизоляция между комнатами повысит уровень комфорта, а правильный выбор окон обеспечит достаточное количество естественного света.
Санузлы: удобство и функциональность
Наличие двух санузлов является важным аспектом комфортного проживания. Как правило, один санузел располагается на первом этаже рядом с гостиной или кухней, а второй на втором этаже – вблизи спален. Такой подход оптимизирует движение жильцов и снижает утренние очереди к ванной комнате.
Общие зоны и дополнительные помещения
Кроме гостиной и кухни, в доме разумно предусмотреть кладовую, гардеробную или техническое помещение для хранения инвентаря и бытовой техники. Если позволяет планировка, можно оборудовать небольшую рабочую зону или кабинет.
Преимущества двух этажей для семьи
В отличие от одноэтажных домов, двухэтажные конструкции принято считать более «семейными», так как они позволяют с комфортом разместить всех членов семьи и при этом разделить общественные и личные зоны.
- Отделение шума: днем активная зона располагается на первом этаже, ночью – спокойный отдых на втором.
- Экономия места – дом занимает меньшую площадь участка.
- Больше возможностей для дизайна и оформления интерьера.
Примерная планировка дома 11x12 м с указанием комнат
| Этаж | Комната | Функция | Примечание |
|---|---|---|---|
| 1 этаж | Гостиная | Общая зона для отдыха и приема гостей | Просторная, с большими окнами |
| 1 этаж | Кухня-столовая | Приготовление и прием пищи | Объединенная зона для комфорта |
| 1 этаж | Санузел | Гостевой или общий | Удобен для гостей |
| 2 этаж | Спальни (4 шт.) | Личные комнаты для членов семьи | Включая родительскую и детские спальни |
| 2 этаж | Санузел | Основной для жильцов | Запланирован на втором этаже |
Варианты планировки и стили оформления
Современный дом 11х12 метров легко адаптируется под различные стилевые решения — от классики до минимализма и скандинавского стиля. Важным элементом является эргономика пространства и качественное освещение, которое способно визуально расширить помещение и добавить уюта.
Классический стиль
Использование натуральных материалов, деревянных элементов и спокойной цветовой гаммы создают теплую и уютную атмосферу. При такой стилистике хорошо смотрятся большие окна с наличниками и изящные декоративные элементы на фасаде.
Современный минимализм
Чистые линии, нейтральные оттенки и минимум декора обеспечивают практичность и современный вид дома. Пространство организуется максимально функционально, с акцентом на комфорт и технологичность.
Скандинавский стиль
В основе лежит светлая цветовая палитра, много естественного света и использование экологичных материалов. Такой дизайн акцентирует внимание на простоте и функциональности, что идеально подходит для семейного дома.
Особенности строительства дома 11x12 метров
Перед началом строительства важно учесть не только параметры участка, но и особенности климата, грунта и ориентации дома относительно сторон света. Это повлияет на выбор материалов, проект кровли и окон.
Фундамент и грунт
Площадь дома 177,1 м² требует надежного основания. Тип фундамента подбирается на основе анализа грунта. Легкие грунты, например, песчаные, могут потребовать свайного или монолитного основания, в то время как прочные глинистые почвы допускают ленточный фундамент.
Климатические особенности
При строительстве в холодных регионах стоит уделить внимание утеплению фасадов и кровли, а также вентиляционным системам, которые обеспечат поддержание комфортного микроклимата.
Ориентация дома
Правильное расположение окон и жилых комнат относительно сторон света способствует экономии на отоплении и освещении, а также улучшает качество жизни жильцов благодаря естественному освещению.
Интерьер и декор: создание уюта в двухэтажном доме
Каждый элемент интерьера влияет на восприятие пространства и настроение. В доме с четырьмя спальнями и двумя санузлами важно гармонично сочетать цвета, текстуры и освещение, чтобы создать комфортную и гостеприимную атмосферу.
Выбор цветовой гаммы
Для общих зон подойдёт светлая и нейтральная палитра, которая визуально расширит пространство и задаст тон всей комнате. В спальнях можно использовать более насыщенные и спокойные оттенки, способствующие расслаблению и отдыху.
Мебель и освещение
Оптимально подобранная мебель должна быть не только красивой, но и функциональной – особенно в спальнях и кухнях. Помимо центрального освещения важно предусмотреть дополнительные источники света - настольные лампы, торшеры и точечный свет для создания уюта и практичности.
Заключение
Проект двухэтажного дома 11х12 метров с общей площадью 177,1 м² выгодно сочетает в себе практичность, комфорт и эстетику. Четыре спальни и два санузла создают условия для удобного проживания семьи любого состава, а грамотное зонирование пространства позволяет рационально использовать каждый квадратный метр. Такой дом прекрасен как основа для воплощения различных дизайнерских решений и комфортной жизни на долгие годы.































