Обзор проекта двухэтажного дома 16х12 - 166.6 м²
Когда речь заходит о выборе проекта частного дома, важны не только размеры и количество этажей, но и оптимальное использование пространства. Представленный проект двухэтажного дома размером 16 на 12 метров с полезной площадью 166,6 м² является примером грамотного планирования и продуманной архитектуры. Такой дом отлично подойдет для проживания большой семьи, предлагая удобное зонирование и комфортные условия для жизни и отдыха.
При стоимости строительства в 6 520 911 рублей этот вариант демонстрирует сбалансированное сочетание качества, функциональности и комфортного пространства. Рассмотрим подробно ключевые параметры проекта, которые делают этот дом привлекательным для будущих обладателей.
Габариты и архитектурные особенности дома
Размеры дома составляют 16 м в длину и 12 м в ширину — это оптимальные пропорции, которые позволяют эффективно использовать площадь участка и обеспечить комфортную планировку внутренних помещений. Дом имеет два этажа, что позволяет рационально распределить жилую площадь.
Общая площадь застройки равна 151,2 м², что означает, что при размещении дома на участке вы будете помнить о необходимости сохранять достаточное пространство для сада и других элементов ландшафтного дизайна. Минимальные рекомендации по размеру участка для такого дома составляют 23,9 м по ширине и 19,6 м по длине, что является комфортной площадью для частного дома с двором.
Форма и высота здания
Высота здания достигает 8,42 метра, что является оптимальным для двухэтажного дома с двускатной крышей. Угол наклона крыши выбран равным 40°, что обеспечивает надежный отвод осадков и улучшает эксплуатационные характеристики кровли. Двускатная крыша — классическое решение, обеспечивающее простоту монтажа, эффективное использование чердачного пространства и эстетическую привлекательность.
Площадь крыши равна 260,9 м², что говорит о достаточно большом использовании кровельного покрытия, что важно учитывать при выборе материалов и планировании бюджета на отделку и теплоизоляцию кровли.
Внутреннее пространство и планировка
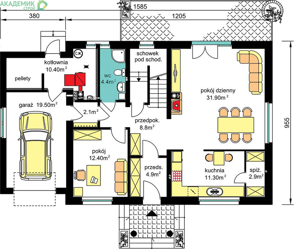
Одним из главных преимуществ этого дома является продуманное и функциональное распределение жилой площади. Общая жилая площадь составляет 126,8 м² из 166,6 м² полезной площади — это говорит о том, что большая часть пространства отведена именно под жилые комнаты, а не вспомогательные помещения.
Количество спален и санузлов
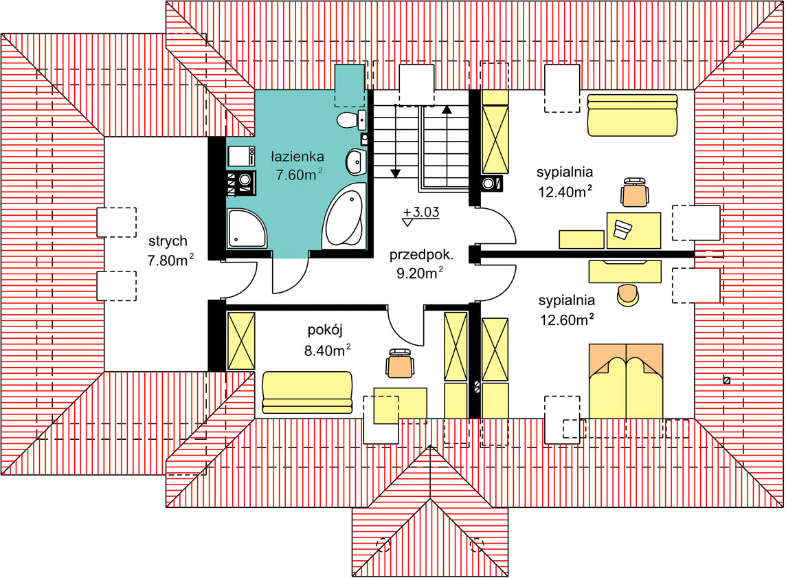
Дом рассчитан на четыре спальни, что делает его идеальным для семьи с двумя и более детьми или пожилыми родственниками, которые хотят иметь отдельное пространство. Четыре спальни позволяют организовать личное пространство для каждого члена семьи, а также сделать гостевые или рабочие комнаты.
Общая планировка также предусматривает два санузла, что существенно повышает удобство проживания. Наличие нескольких санузлов особенно важно для семей с детьми и в часы пикового использования бытовых помещений.
Комфортные зоны общего пользования
Помимо жилых комнат, дом имеет просторные зоны для приема гостей и семейного отдыха. Большая гостиная, кухня и столовая, расположенные на первом этаже, позволяют организовывать комфортные встречи с друзьями и родственниками. Высокие потолки создают воздушность и простор, необходимый для приятной атмосферы.
Также стоит отметить, что возможность дизайнерской доработки внутренних помещений открывает большие перспективы для кастомизации проекта под индивидуальные нужды заказчика.
Архитектурные и технические характеристики
Объем здания и площадь крыши
Объем брутто здания составляет 781,4 м³, что является важным показателем при проектировании систем отопления, вентиляции и кондиционирования. Чем больше объем, тем более энергоемкими могут стать инженерные коммуникации, поэтому грамотное проектирование и выбор материалов становятся ключевыми факторами в создании энергоэффективного дома.
Площадь крыши, равная 260,9 м², является существенным параметром при расчете нагрузки на фундамент и стеновые конструкции. Это число также влияет на стоимость и выбор материалов кровельного покрытия, оптимальных для климатических условий выбранного региона.
Тип крыши и его преимущества
В проекте используется двускатная крыша с углом наклона 40°. Двускатные крыши являются классическим и проверенным временем решением в частном строительстве. Они обеспечивают отличное стечение осадков, устойчивы к ветровым нагрузкам и предоставляют возможность создания жилого или складского чердака.
Угол наклона в 40° позволяет эффективно использовать кровельное пространство для установки мансардных окон, солнечных панелей или создания вентиляционных отсеков, что способствует поддержанию микроклимата и экономии на коммунальных расходах.
Требования к участку и условия размещения дома
Каждый дом предъявляет свои требования к участку, чтобы соблюсти нормы строительства и обеспечить комфортное проживание. Минимальный размер участка для размещения данного дома должен быть не менее 23,9 м по ширине и 19,6 м по длине.
Это условие гарантирует достаточную удаленность от границ соседних участков, оптимальное расположение дома для организации придомовой территории, а также пространство для организации парковочных мест и сада.
Стоимость проекта и экономическая составляющая
Цена строительства дома 16х12 метров с полезной площадью 166,6 м² составляет 6 520 911 рублей. Это достаточно конкурентный показатель для частных домов такого класса, учитывая количество помещений, функциональность и архитектурное оформление.
Стоимость включает использование качественных строительных материалов и инженерных систем, а также затраты на подготовительные работы и отделку. Цена может варьироваться в зависимости от региона строительства и выбора конкретных материалов.
Что влияет на стоимость дома?
- Материалы и технологии строительства — от фундамента до крыши.
- Выбор окон и дверей с повышенной теплоизоляцией.
- Инженерные коммуникации: отопление, водоснабжение, электропроводка.
- Отделочные работы и дизайн интерьера.
- Логистика и сложность строительных работ.
Таблица основных характеристик дома 16х12
| Параметр | Значение | Комментарий |
|---|---|---|
| Размеры дома (м) | 16 x 12 | Оптимальный размер и пропорции для комфортного проживания |
| Полезная площадь (м²) | 166.6 | Площадь, доступная для использования внутри дома |
| Жилая площадь (м²) | 126.8 | Область с жилыми комнатами — спальни, гостиная |
| Количество этажей | 2 | Двухэтажное планировочное решение |
| Количество спален | 4 | Удобно для семьи из нескольких человек |
| Количество санузлов | 2 | Для максимального комфорта жителей |
| Объем брутто (м³) | 781.4 | Важен для расчетов инженерных систем |
| Площадь крыши (м²) | 260.9 | Учитывается при выборе кровельных материалов |
| Высота дома (м) | 8.42 | Высота от основания до конька крыши |
| Минимальный размер участка (м) | 23.9 x 19.6 | Обеспечивает комфортный зазор и нормальное размещение |
| Стоимость строительства (руб.) | 6 520 911 | Полная стоимость проекта под ключ |
| Тип крыши | Двускатная | Классическая и надежная конструкция |
| Угол наклона крыши (градусы) | 40° | Обеспечивает эффективный отвод воды и снега |
Преимущества проживания в доме 16х12 с полезной площадью 166,6 м²
Данный проект сочетает в себе множество приятных аспектов, делающих повседневную жизнь комфортной и удобной. Перекрытия между этажами обеспечивают хорошую звукоизоляцию. Отсутствие гаража освобождает дополнительное пространство, которое можно использовать для благоустройства приусадебного участка, организации летних зон отдыха или детских площадок.
Такое планировочное решение становится особенно полезным в современных условиях, когда семья ценит приватность и уют, а также хочет видеть вместительную и светлую гостиную для совместных встреч.
Особенности использования пространства
- Четыре спальни позволяют обеспечить каждому члену семьи отдельное личное пространство.
- Два санузла существенно повышают уровень удобства и позволяют избежать очередей по утрам.
- Гостиная и кухня организованы так, чтобы быть удобными как для повседневного пользования, так и для праздничных мероприятий.
- Большая площадь крыши дает возможность установки солнечных батарей, что позволит экономить на коммунальных платежах и сделает дом экологичнее.
Заключение: почему стоит выбрать этот проект
Проект двухэтажного дома 16х12 с полезной площадью 166,6 м² представляет собой удачное сочетание удобства и функциональности. Он уютен для большой семьи, легко поддается адаптации под индивидуальные пожелания и соответствует современным требованиям по энергосбережению и комфорту.
При разумной стоимости строительства дом этого типа становится отличным выбором для тех, кто ищет просторное и качественное жилье в частном секторе.




