Обзор двухэтажного дома размером 9 на 11 метров
Проект двухэтажного дома размером 9 на 11 метров предлагает оптимальное сочетание компактности и функциональности, что особенно актуально для небольших земельных участков. Площадь 147.76 м2 — это прекрасный баланс между просторностью жилого пространства и разумным использованием строительных материалов и бюджета. Благодаря двум этажам такое жилище отлично подойдет для семей средней численности, обеспечивая все необходимое для комфортной и удобной жизни.
Размеры дома 9 на 11 метров позволяют достаточно легко вписать постройку в различные ландшафтные условия, при этом сохраняя удобные внутренние планировки. Небольшой, но эффективный по площади фундамент снижает затраты на строительство и облегчает процесс возведения дома. Внутренняя организация пространства создана так, чтобы обеспечить максимальную эргономику и удобство использования каждого квадратного метра.
Преимущества двухэтажного строительства
Выбор двух этажей вместо одного позволяет существенно увеличить жилую площадь без необходимости увеличивать размер застройки по земле. Это особенно важно для участков ограниченной площади либо там, где хочется максимально сохранить садовую или приусадебную зону. Двухэтажные дома получаются более компактными в плане фундамента, а значит, обладают рядом технологических преимуществ, таких как лучшее распределение нагрузок и меньшая стоимость строительно-монтажных работ.
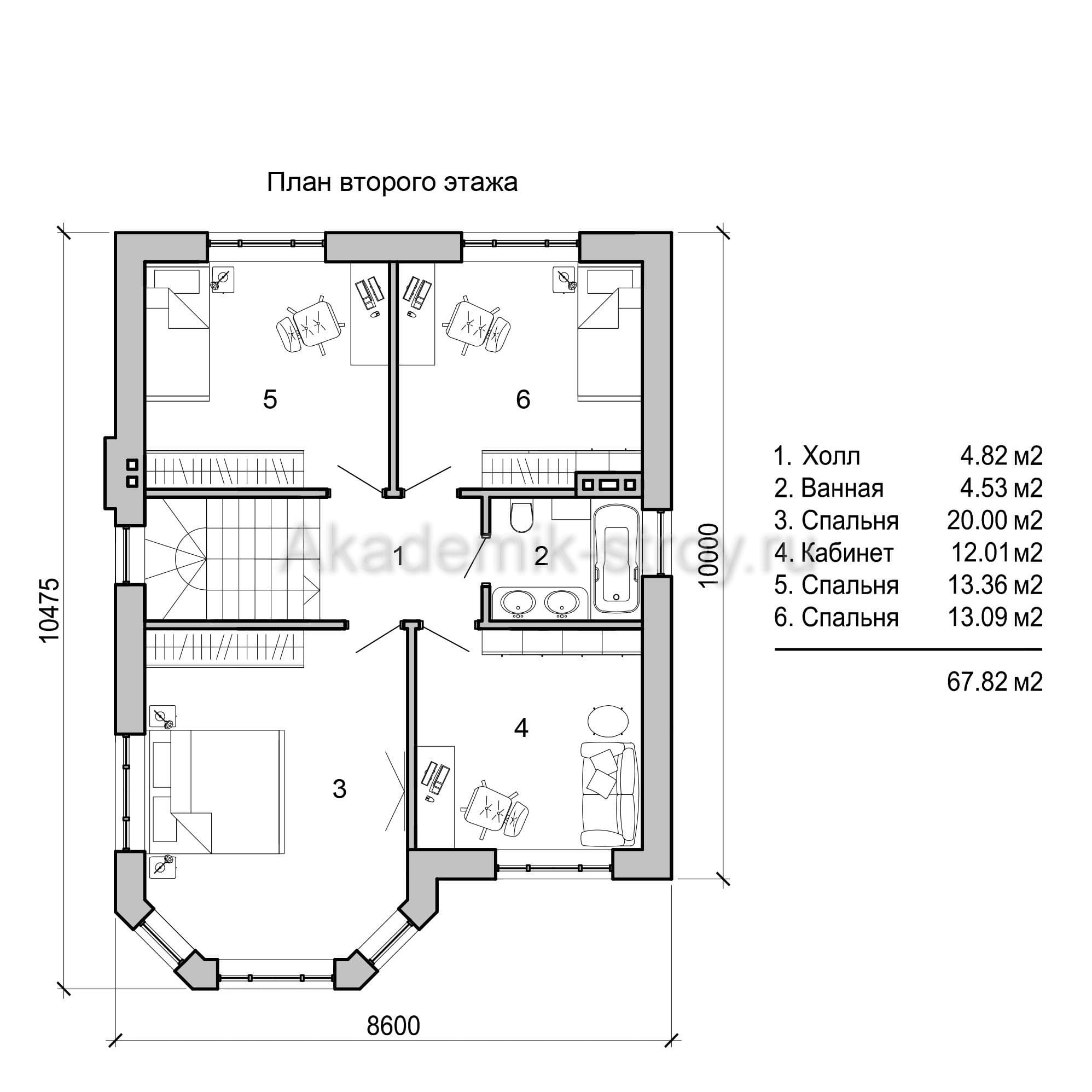
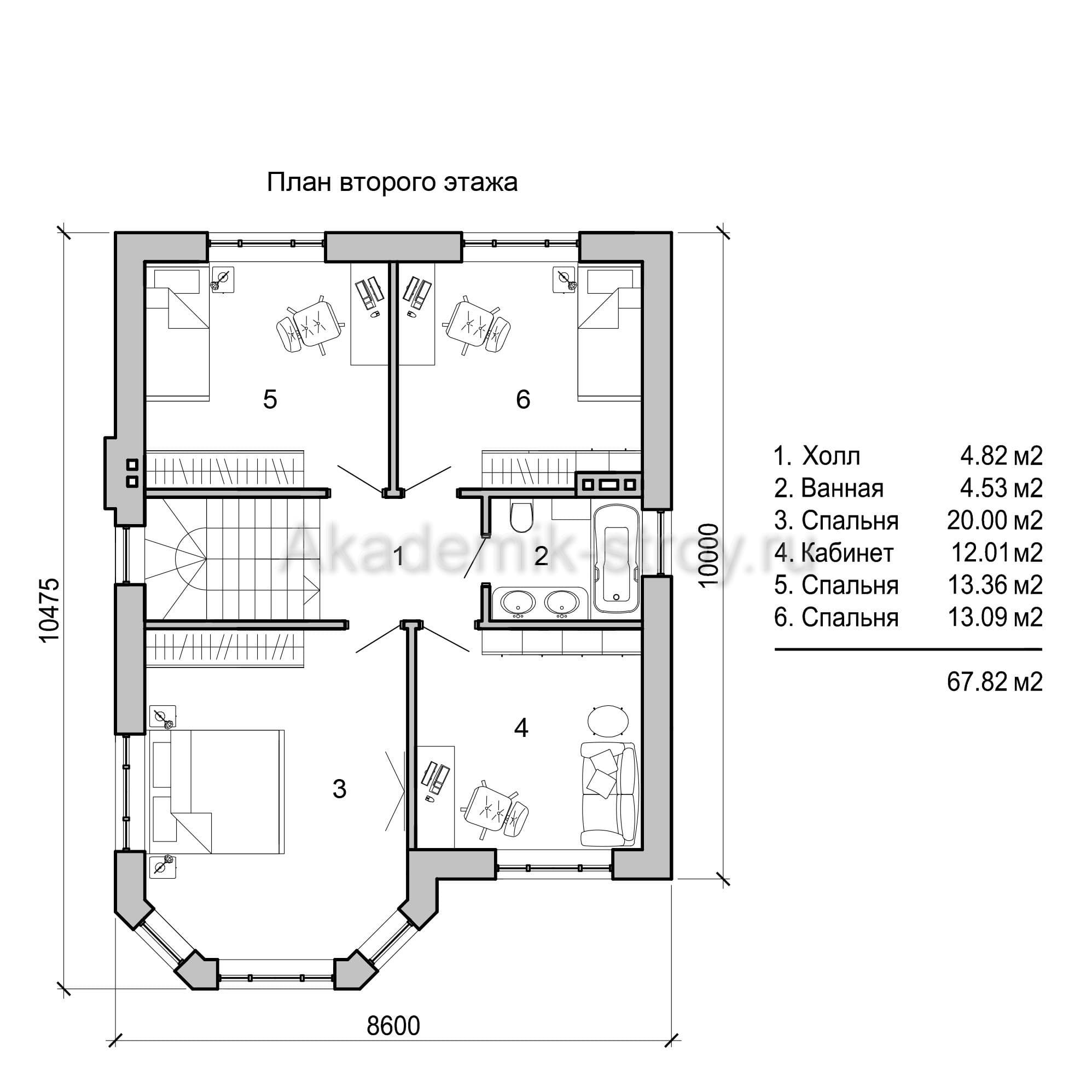
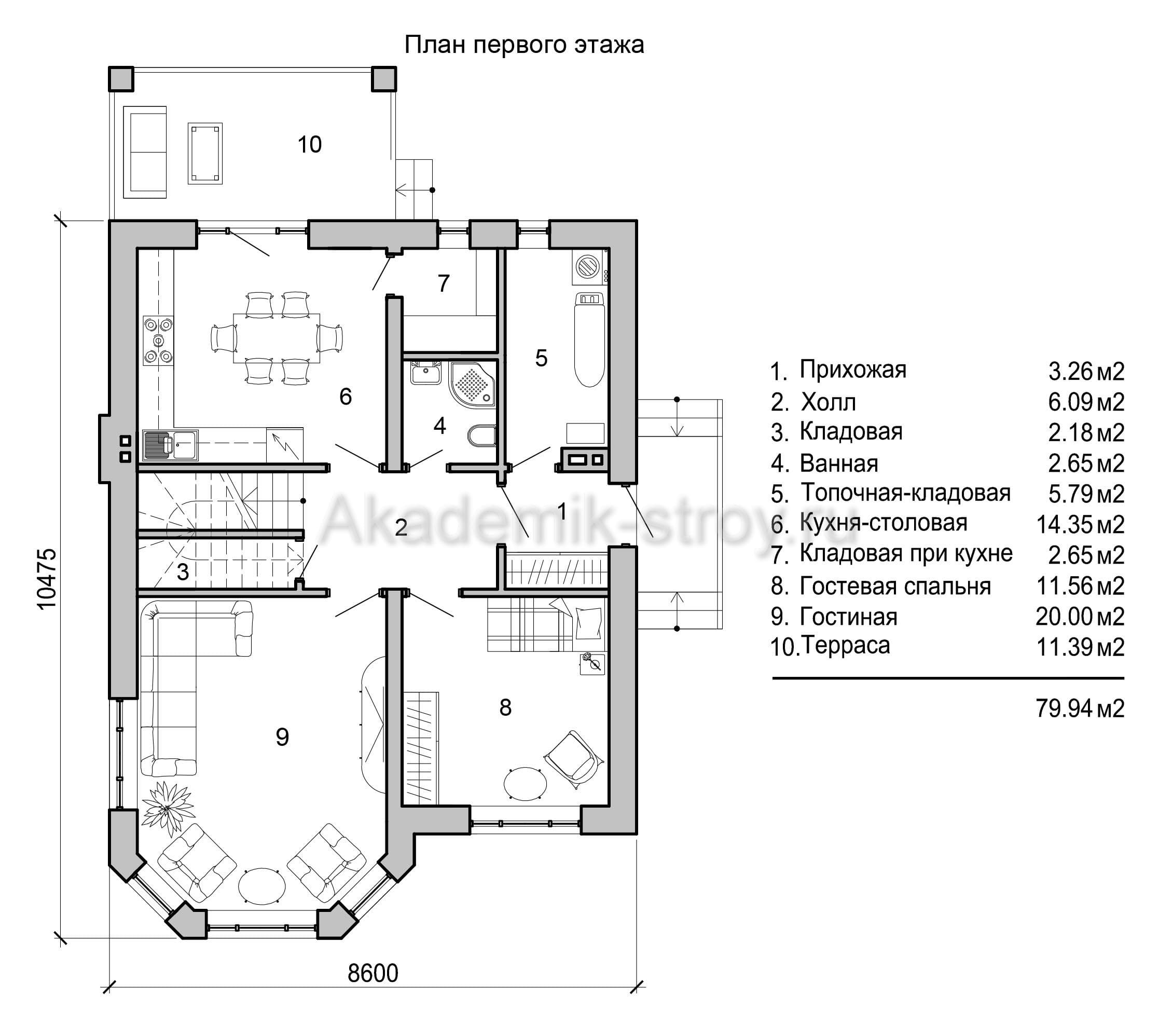
Два этажа позволяют четко разделить жилые зоны. Например, в проекте с тремя спальнями обе зоны отдыха находятся на втором этаже, что позволяет отделить их от активных дневных зон первого этажа. Это обеспечивает комфорт и приватность для всех членов семьи. Зачастую в таких домах на первом этаже располагают гостиную, кухню, столовую и рабочий кабинет, оставляя второй этаж под спальни и санитарные помещения.
Экономика строительства
Двухэтажный дом с компактной площадью фундамента в 9x11 метров требует менее затратных материалов для основания и стен в сравнении с одноэтажным аналогом той же общей площади. Это отражается на стоимости проекта в целом, что делает двухэтажные дома популярными среди экономически ориентированных заказчиков. Кроме того, вертикальное строительство позволяет рационально использовать кровельные материалы и инженерные системы.
Планировка и функциональность: 3 спальни и 2 санузла
Трехкомнатная планировка — оптимальный выбор для семей с детьми или для тех, кто ценит наличие личного пространства. В проекте дома размером 9x11 предусмотрено комфортное размещение трех спален, что позволяет каждому члену семьи иметь собственное уединенное пространство. Спальни могут варьироваться по размеру и назначению: основная спальня с гардеробной и двумя детскими комнатами либо спальни для гостей.
Наличие двух санузлов является большим удобством, особенно при проживании нескольких человек. Это обеспечивает более высокую функциональность домовладения, снижает время ожидания и увеличивает комфорт. Обычно один из санузлов располагается на первом этаже, второй — на втором, что делает их использование максимально удобным в разных частях дома.
Распределение жилых и технических зон
В типичном проекте 9 на 11 метров первый этаж отводится под общественные зоны: большой гостиной, кухни и столовой, а также санузла и, возможно, рабочей комнаты. Второй этаж традиционно включает спальни и второй санузел. Такая схема способствует максимальному комфорту и удобству, а также позволяет рационально разместить коммуникации.
Преимущества двух санузлов
- Снижение утренних очередей в ванной при большом числе проживающих.
- Повышенная гигиена и удобство для гостей и членов семьи.
- Возможность создания разных по функционалу санузлов — гостевой и приватный.
Архитектура и стиль дома размером 9x11 метров
Современные проекты двухэтажного дома 9 на 11 м обладают универсальностью архитектурных решений. Они легко адаптируются под различные стили — от классики до минимализма и хай-тека. При этом важно сохранять баланс между красотой фасада и функциональностью каждого элемента. Дом может включать большие окна, которые наполняют помещения светом, а его компактные размеры позволяют легко создавать привлекательный внешний вид.
Стоит отметить, что размеры дома 9х11 м позволяют значительно экономить на отделочных материалах и инженерных коммуникациях, при этом архитекторам удается сохранить эстетику за счет грамотного проектирования крыши, фасадных элементов и открытых пространств. Вертикальное разделение дома дополняется возможностью расположения балконов, террас и лоджий, что увеличивает жилую и полезную площадь.
таблица: Основные характеристики дома 9x11 м
| Параметр | Значение |
|---|---|
| Размеры дома | 9 x 11 метров |
| Количество этажей | 2 |
| Общая площадь | 147.76 м² |
| Количество спален | 3 |
| Количество санузлов | 2 |
Технологические особенности возведения двухэтажного дома 9х11
Строительство двухэтажного дома площадью около 147 м2 требует соблюдения ряда технологических правил. Ключевым этапом является правильное устройство фундамента, который должен обеспечить надежность и устойчивость здания. Для дома с такими размерами обычно выбирают ленточный или плитный фундамент с учетом геологических особенностей участка.
Стены дома могут быть выполнены из различных материалов — кирпича, газобетона, дерева или комбинированных решений. Выбор зависит от бюджета, климатических условий региона и предпочтений заказчика. Газобетон привлекателен своей экономичностью и хорошими теплоизоляционными свойствами, тогда как кирпич обеспечивает высокую прочность и долговечность.
Использование современных материалов
Для повышения энергоэффективности дома широко применяются утеплители и герметики. В фасадных конструкциях используют минеральную вату, пенополиуретан или пенополистирол. Качественная изоляция стен позволяет значительно снизить затраты на отопление в зимний период и кондиционирование летом.
Особенности кровельных решений
Хотя в списке параметров не указана конкретная крыша, в двухэтажных домах размером 9 на 11 м рекомендуют использовать двускатные или вальмовые крыши с углом наклона, который обеспечивает быстрое стечение воды и снеговой нагрузки. Это защищает конструкцию от преждевременного износа и способствует долговечности.
Практичность использования и расположение на участке
Для размещения дома 9 на 11 метров важно подобрать участок с достаточными размерами. Несмотря на компактность такой постройки, необходима оптимальная ориентация по сторонам света для максимального использования солнечного освещения и обеспечения теплового комфорта. Предпочтительно размещать жилые помещения с большими окнами на южную сторону.
Компактный размер дома позволяет сохранить на участке зоны для сада, детской площадки или зон отдыха. Двухэтажная застройка минимизирует площадь застройки, что расширяет возможности по озеленению территории и организации хозяйственных построек. Наличие трех спален и двух санузлов делает его удобным жильем даже для семьи с несколькими детьми.
Минимальные размеры участка для строительства
- Ширина участка должна быть не менее 15-18 метров для обеспечения комфортного размещения дома с боковыми отступами.
- Длина участка зависит от окружающей инфраструктуры, но рекомендуется, чтобы она была не менее 25-30 метров.
- Высокое значение имеет ландшафт участка и его рельеф — ровная площадь значительно упрощает работы по возведению дома.
Вертикальное зонирование пространства
Вертикальное разделение функций между этажами позволяет максимально эффективно использовать площадь в 147.76 м². Первый этаж обычно включает в себя гостевую зону и дневные помещения, тогда как второй этаж предназначается для спокойного отдыха — спален и санузлов. Такой подход создает комфортный ритм жизни и позволяет избежать излишнего шума и дискомфорта.
Возможное распределение комнат
| Этаж | Назначение помещений |
|---|---|
| Первый этаж | Гостиная, кухня-столовая, рабочий кабинет, санузел |
| Второй этаж | Три спальни, второй санузел |
Комфорт и уют в доме размером 9х11 метров
Особое внимание в проекте уделяется созданию уютной атмосферы с технологиями современного уровня комфорта. Продуманная вентиляция, качественная теплоизоляция и грамотное расположение окон способствуют формированию оптимального микроклимата в помещениях. При правильном планировании в доме создается ощущение простора и свободы.
Современные решения систем отопления — будь то газовый котел, теплый пол или воздушное отопление — делают проживание в доме приятным в любое время года. Наличие двух санузлов — тоже заметное преимущество с точки зрения удобства и гигиены. Такие дома часто оборудуются системой "умный дом", что облегчает управление освещением, температурой и безопасностью.
Заключение: Почему стоит выбрать двухэтажный дом 9x11 м
Проект двухэтажного дома размером 9 на 11 метров и общей площадью около 147.76 м² представляет собой идеальный вариант для тех, кто ищет комфортное, функциональное и экономичное жилье. Оптимальные размеры, хорошая планировка с тремя спальнями и двумя санузлами, а также возможность создать уютные, светлые и просторные комнаты делают такой дом отличным выбором для семей различного состава.
Кроме того, компактность фундамента и рациональное использование строительных материалов существенно снижают расходы, а готовность дома к современным инженерным решениям обеспечивает высокий уровень комфорта и энергоэффективности. В итоге двухэтажный дом 9x11 — это дом с хорошей перспективой на долгие годы, который отвечает современным требованиям к уюту и функциональности.






















