Обзор двухэтажного дома 9х11 метров с площадью 147.76 м²
Проектирование частного дома всегда начинается с определения оптимальных размеров и планировки помещения, которые отвечают как функциональным требованиям семьи, так и эстетическим предпочтениям. Дом размером 9 на 11 метров — это классический вариант загородного коттеджа, сочетающий комфорт, компактность и удобство. Общая площадь в 147.76 квадратных метров предоставляет достаточно пространства для комфортной жизни даже большой семьи.
Двухэтажная структура такого дома позволяет рационально использовать участок земли, оставляя место для сада, зоны для отдыха или детской площадки. Два этажа обеспечивают логичное разделение жилищной и хозяйственной зон, а также приватных и общих комнат, что особенно важно для домов с несколькими спальнями и необходимостью нескольких санузлов.
Двухэтажный дом 9x11 – это пример гармоничного сочетания удобства и функциональности, позволяющий эффективно распределить внутреннее пространство без увеличения площади застройки, что всегда приветствуется на небольших земельных участках.
Размеры и конструктивные особенности: почему 9x11 метров — оптимальный выбор
Габариты дома 9 м в ширину и 11 м в длину представляют собой удачное сочетание для организации просторного, но уютного жилья. Такой формат считается весьма эргономичным, так как не требует большого земельного участка для строительства, при этом обеспечивает достаточно площади для любых потребностей семьи.
Одним из ключевых преимуществ дома с размерами 9х11 м является возможность использовать типовые строительные материалы и технологии, существенно сокращая затраты на возведение фундамента и каркаса дома. К тому же, грамотная планировка позволяет избежать лишних проходных помещений и коридоров, что делает интерьер более свободным и светлым.
Преимущества двухэтажной планировки
Два этажа — это отличный способ увеличить жилую площадь без расширения застройки в плане. Это особенно актуально для тех участков, где площадь ограничена или существует необходимость сохранить максимальную часть земли под зеленые зоны.
Двухэтажный дом удобен тем, что на первом этаже традиционно размещают общие зоны — кухню, гостиную, столовую и санузел для гостей, а на втором — приватные комнаты: спальни и дополнительные санузлы. В домах с 4 спальнями, как в нашем случае, такая планировка обеспечивает каждому члену семьи свое личное пространство, что повышает комфорт и способствует гармонии в доме.
Размещение и функции комнат: планировка для семьи из 4-6 человек
Дом с 4 спальнями площадью 147.76 м² — это идеальное сочетание комфорта и вместимости. Основная сложность в проектировании такого дома — правильное зонирование, чтобы ни одна комната не была слишком маленькой, а все помещения имели четко определенное назначение.
Дополнение к спальням двумя санузлами решает вопрос удобства и эргономики, позволяя не создавать очередей по утрам и вечерам. Такая планировка часто также предусматривает наличие хозяйственных или гардеробных комнат, чтобы сохранить порядок и не загромождать жилые помещения.
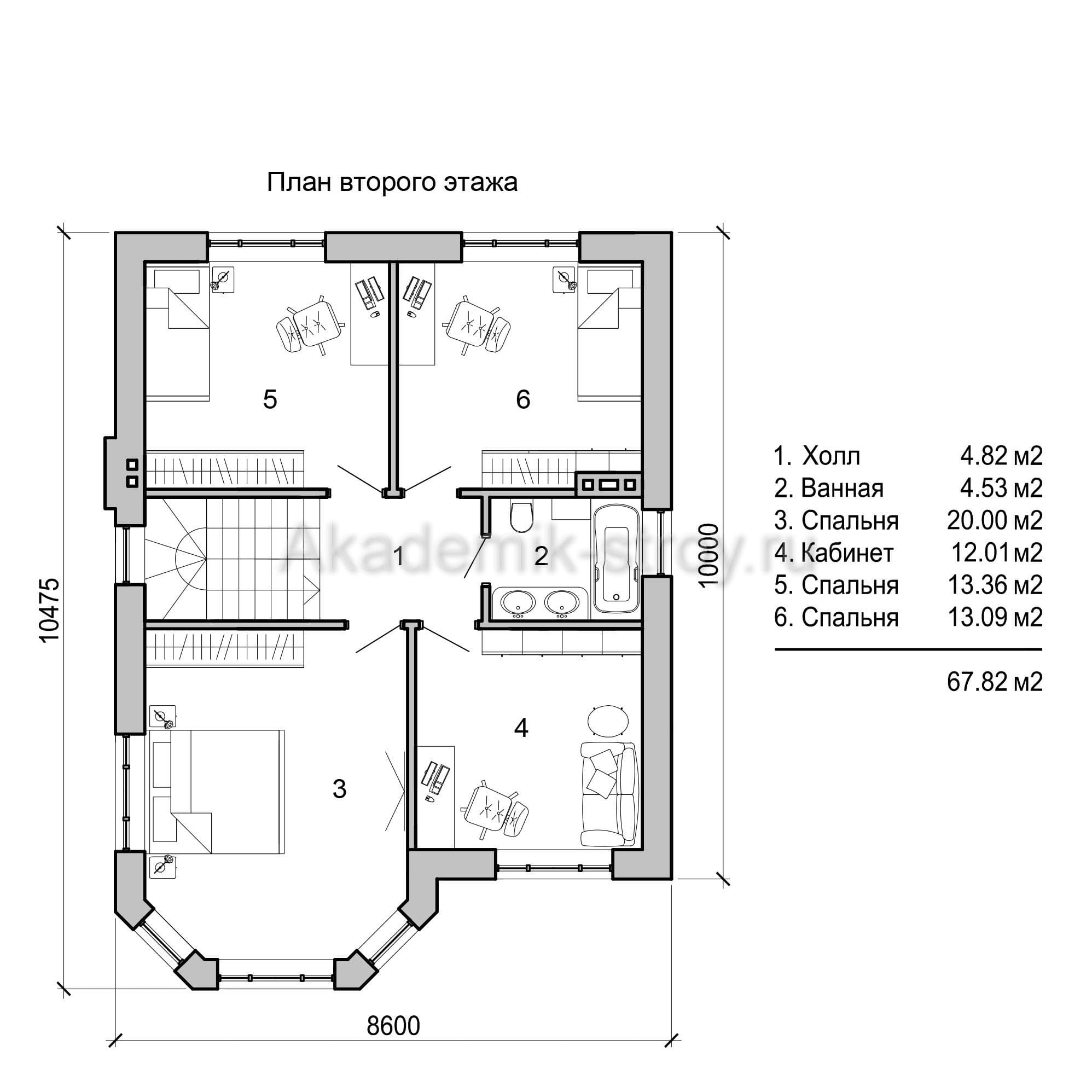
Распределение жилых комнат по этажам
Первый этаж предназначен для общих зон — гостиной с просторной столовой зоной и кухней, соединенной со столовой открытой или частично открытой планировкой. Это позволяет создать уютное пространство для общения и приема гостей. Наличие гостевого санузла особенно важно для удобства посетителей и поддержания чистоты в основном жилье.
Второй этаж является приватной зоной с четырьмя спальнями и вторым санузлом. Такой выбор позволяет распределить комнаты не только по назначению, но и по уровню шума и личной активности, что является важным для семей с детьми или взрослыми, работающими в нестандартные часы.
Проектирование санузлов: оптимальный комфорт для каждого
Два санузла в доме 147.76 м² — это правило хорошего тона. Они существенно повышают функциональность жилого пространства, особенно в домах с четырьмя спальнями. Один из санузлов обычно размещается на первом этаже и служит как гостевой, так и хозяйственный, второй — на этаже с приватными комнатами.
В дизайне санузлов важно продумать не только расположение и объем, но и инженерные коммуникации, чтобы обеспечить минимальные затрату при подключении к центральным системам водоснабжения и канализации.
Основные рекомендации по комплектации санузлов
- В одном из санузлов следует предусмотреть полноценную ванну для семей с маленькими детьми, а во втором — оборудовать душевую кабину для быстрого использования.
- Расстановка сантехники должна обеспечивать удобство и простор для свободного передвижения, особенно если планируются использовать санузлы сразу несколькими членами семьи.
- Необходимо предусмотреть качественную вентиляцию и освещение для предотвращения образования конденсата и плесени.
Строительство двухэтажного дома: выбор материалов и технологий
Строительство дома размером 9 на 11 метров обычно начинается с правильного выбора фундамента и несущих конструкций. Последовательность и качество работ напрямую влияют на эксплуатационные характеристики здания, долговечность и комфорт проживания.
Для двухэтажных домов в такой конфигурации оптимальны следующие технологии:
- Монолитный железобетонный фундамент — обеспечивает высокую надежность даже на слабых грунтах.
- Каркасно-щитовые или блочные конструкции — позволяют быстро возводить стены при хорошем уровне теплоизоляции.
- Использование современных утеплителей — гарантирует комфортный микроклимат внутри дома при минимальных энергозатратах.
Дополнительные преимущества дают грамотные решения по остеклению, наружной отделке и устройству кровли, которые вместе создают гармоничный и долговечный жилой комплекс.
Выбор кровли для двухэтажного дома 9x11
Правильный выбор типа и конструкции крыши чрезвычайно важен для сохранения тепла и защиты здания от погодных воздействий. Для дома площадью 147.76 м² рекомендуются классические скатные крыши, которые хорошо отводят воду и снег, обладают длительным сроком службы и позволяют оптимально использовать подкрышное пространство для мансарды или чердака.
| Тип крыши | Преимущества | Недостатки |
|---|---|---|
| Двускатная | Простая конструкция, легкость в обслуживании, экономичный материал | Ограничение свободного пространства на верхнем этаже |
| Четырехскатная (вальмовая) | Устойчивость к ветру и снегу, эстетика | Сложность конструкции, больший расход материалов |
| Мансардная | Максимальное использование чердачного пространства | Сложность устройства и высокая стоимость |
План участка под двухэтажный дом 9х11 м
Планирование участка для строительства дома 9х11 м требует учета минимальных габаритов самого дома, а также зон для хозяйственных построек, подъездных путей, парковки и зеленых насаждений. Хотя данный дом не оснащен встроенным гаражом, важно предусмотреть место для парковки автомобилей и территорию для пребывания на свежем воздухе.
Оптимальные размеры участка начинают с ориентировочно 15х20 метров, что обеспечивает необходимое отступление от соседних построек и комфортную организацию свободных зон.
Основные зоны участка
- Жилая зона: собственно дом.
- Зона отдыха: террасы, беседки, места для барбекю.
- Хозяйственная зона: сараи, кладовые, места для мусорных контейнеров.
- Парковка: открытая или навес для авто.
- Зона сада: грядки, цветники, газон.
Внутренняя отделка и дизайн интерьера
Общее ощущение комфорта в двухэтажном доме во многом зависит от грамотно продуманного дизайна. Использование светлых нейтральных тонов в отделке создает эффект расширения пространства. Можно применить натуральные материалы — дерево, камень в отделке стен или пола — для придания уюта и экологичности.
Высокие потолки и большое количество окон обеспечивают хорошее естественное освещение, что особенно важно в местах общего пользования, таких как гостиная и кухня. В спальнях и детских комнатах предпочтителен более мягкий и теплый свет, который способствует расслаблению и сну.
Организация пространства и мебель
Для дома с четырьмя спальнями стоит позаботиться о функциональной мебели: встроенные шкафы с максимальным использованием пространства, компактные, но удобные спальные гарнитуры, модульные системы хранения. Зоны общего пользования лучше организовывать с учетом максимального открытого пространства, что позволяет сохранить чувство легкости и простора.
Энергосбережение и современные инженерные решения
Современный частный дом 9x11 м — это не только теплое и комфортное жилье, но и эффективное использование энергоресурсов. На каждом этапе проектирования и строительства важно предусмотреть системы, снижающие расходы на отопление и электричество.
К примеру, применение теплоизоляционных материалов последнего поколения, установка двух- или трехкамерных окон с энергосберегающими стеклами, а также использование современных систем отопления и вентиляции с рекуперацией тепла помогут существенно сократить расходы на содержание дома.
Перечень рекомендуемых энергосберегающих технологий
| Технология | Описание | Преимущества |
|---|---|---|
| Солнечные панели | Генерация электроэнергии с помощью солнечной энергии | Снижение затрат на энергию, экологичность |
| Система теплых полов | Отопление дома с помощью подогрева пола | Равномерное распределение тепла, комфорт |
| Рекуперация | Вентиляция с возвратом тепла из отработанного воздуха | Экономия энергии, качественный микроклимат |
Финансовые и временные аспекты строительства двухэтажного дома 9х11
При проектировании любого дома важна оценка сроков и бюджета строительства. Дом площадью около 147.76 м² обычно относится к средней категории по объему работ и стоимости. Правильный подбор материалов, привлечения проверенных подрядчиков и четкое планирование позволяют значительно сократить сроки строительства без потери качества.
Средний срок возведения двухэтажного дома такого размера может варьироваться от 6 до 12 месяцев в зависимости от выбранных технологий и сезонных условий. Первоначальные инвестиции окупаются в процессе эксплуатации, особенно если в проекте использованы современные энергоэффективные решения.
Основные составляющие затрат
- Фундамент
- Стены и перекрытия
- Крыша
- Инженерные коммуникации
- Отделочные работы
- Внутреннее оборудование
Итог: почему стоит выбрать двухэтажный дом 9x11 площадью 147.76 м²
Дом с размерами 9 на 11 метров и четырьмя спальнями идеально подходит для комфортного проживания среднестатистической семьи, обеспечивая достаточное пространство для всех членов дома и гостей. Двухэтажная конструкция позволяет рационально использовать участок, распространяя жилое пространство по этажам и разделяя зоны отдыха и работы.
Два санузла — это еще один важный аспект комфорта, позволяющий избежать бытовых неудобств даже в часы пиковой нагрузки. Планировка, продуманная с учетом эргономики и требований современных семей, делает такой дом чрезвычайно привлекательным с точки зрения инвестиции в жилье на долгие годы.
В совокупности с современными строительными технологиями, отделкой и инженерией, данный тип дома становится прекрасным выбором для тех, кто ищет баланс между качеством, функциональностью и стоимостью.



























