Общая характеристика двухэтажного дома 10x14 метров с площадью 280 м²
Проект двухэтажного дома размером 10 на 14 метров с общей полезной площадью 280 квадратных метров представляет собой оптимальное решение для семьи, стремящейся к комфорту и рациональному распределению жилого пространства. Благодаря двум этажам дом позволяет максимально эффективно использовать каждый метр площади, создавая уютные комнаты и просторные общие зоны.
Размеры дома 10x14 метра делают его компактным снаружи, что упрощает выбор участка и снижает затраты на фундамент и крышу по сравнению с более крупными постройками. При этом внутреннее пространство в 280 м² предоставляет достаточно места для различных функций и активностей: от отдыха до работы и приёма гостей.
Двухэтажная конструкция выгодно использует вертикальное пространство и минимизирует площадь застройки на участке, что актуально для тех, кто планирует строительство на ограниченной по размеру территории. Такой дом легко вписывается в разнообразные ландшафты и архитектурные стили – от классики до современного минимализма.
Планировка и распределение зон в доме 10х14 м
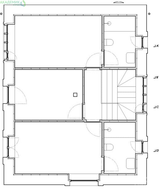
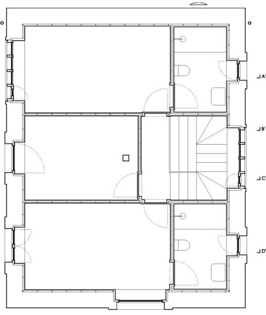
Один из ключевых критериев выбора проекта дома — удобная и продуманная планировка. В данном случае проект предусматривает три спальни и три санузла, что делает этот дом комфортным для семьи любого состава: от пары с детьми до семьи с частыми гостями.
Наличие трех спален позволяет каждому члену семьи иметь личное пространство, что особенно важно в условиях современного ритма жизни. В то же время, санузлы, расставленные с умом, обеспечивают высокую степень автономии и удобства, снижая очереди в утренние часы и увеличивая комфорт проживания.
Распределение спален
Три спальни – это идеальный вариант для родителей и двух детей или для комфортного проживания трех человек с возможностью организации гостевой зоны. Особенность двухэтажного дома в том, что чаще всего приватные зоны размещают на втором этаже, что дополнительно гарантирут спокойствие и тишину.
Первая спальня может стать главной – просторной и оборудованной просторным гардеробом, вторая — детской или рабочей комнатой, а третья — гостевой. Такая гибкость в использовании пространства позволяет адаптировать дом под конкретные нужды семьи.
Санузлы: комфорт и приватность
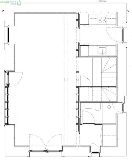
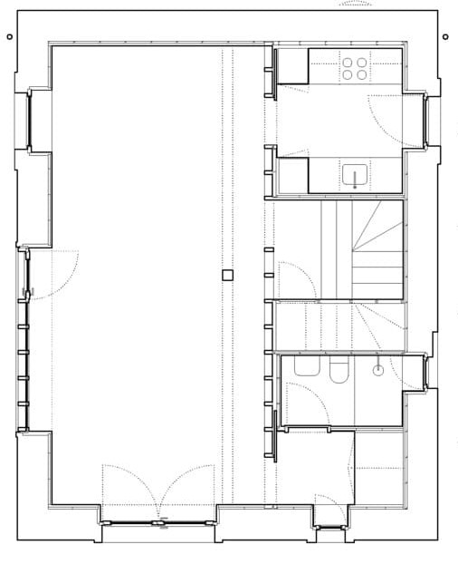
Три санузла в доме площадью 280 м² – это показатель современного подхода к обеспечению удобства жителей. Один из санузлов обычно располагается на первом этаже, что актуально для гостей и для использования при проведении времени в общих зонах, таких как кухня и гостиная.
Два остальных санузла находятся на втором этаже, и они могут быть распределены между спальнями. Один из санузлов может быть оснащён ванной, а другой — душевой кабиной, предоставляя разнообразие для выбора и комфорт всем жильцам.
Преимущества двухэтажного дома 10x14 метров для семьи
Двухэтажный дом такого размера идеально подходит для семей разного состава благодаря своей универсальности и грамотному распределению комнат. Он предоставляет достаточную личную и общую площадь, при этом сохраняя компактность и преимущества строительства на небольшом участке.
Одно из главных достоинств двух этажей – разделение дневных и ночных зон. Общественные зоны традиционно располагаются на первом этаже (кухня, гостиная, столовая), что обеспечивает коммуникацию между членами семьи и гостями без вторжения в приватные комнаты. Второй этаж отведён для максимально комфортного отдыха и уединения.
В итоге, такой дом хорошо подходит для тех, кто ценит функциональность и комфорт, требует автономности для членов семьи и хочет получить оптимальный баланс между пространством и стоимостью строительства.
Экономическая сторона: стоимость дома 280 м² за 9 007 336 рублей
Стоимость строительства и отделки двухэтажного дома площадью 280 квадратных метров по цене 9 007 336 рублей — аргумент, способный привлечь внимание больших и средних семей. Эта цена демонстрирует доступность возведения просторного и качественного жилья без необходимости значительных финансовых вложений, которые часто пугают потенциальных застройщиков.
При бюджете порядка 9 миллионов рублей можно рассчитывать на материалы высокого класса, современный дизайн, а также удобные инженерные системы. Важно понимать, что стоимость включает не только возведение стен и кровли, но и отделочные работы, коммуникации, а также оснащение современными системами отопления, водоснабжения и электрики.
Такой бюджет позволяет уделять внимание деталям — от продуманного устройства окон и дверей до энергоэффективных решений, что делает будущий дом максимально комфортным и экономичным в эксплуатации.
Формирование стоимости: из чего складывается цена?
| Статья расходов | Процент от общей стоимости | Примерная сумма (руб.) | Комментарии |
|---|---|---|---|
| Фундамент | 15% | 1 350 000 | Заливка фундамента, армирование, гидроизоляция |
| Стены и перекрытия | 30% | 2 700 000 | Кирпич, газобетон, утеплитель, монтаж |
| Кровля и гидроизоляция | 15% | 1 350 000 | Монтаж кровли, утеплитель, водосточные системы |
| Отделочные работы | 20% | 1 800 000 | Штукатурка, плитка, покраска, полы |
| Инженерные системы | 15% | 1 350 000 | Отопление, электрика, водоснабжение, канализация |
| Прочие расходы | 5% | 450 000 | Проектные работы, согласования, непредвиденные затраты |
Такое распределение бюджета является приблизительным, но показывает, на какие этапы строительства необходимо обратить особое внимание, чтобы уложиться в заданную стоимость без потери качества.
Почему стоит выбрать именно такой дом: основные преимущества проекта
Проект двухэтажного дома 10х14 метров с площадью 280 м² и тремя спальнями — это идеальное сочетание комфорта, функциональности и экономичности. Рассмотрим ключевые преимущества:
- Просторное пространство: 280 м² — это достаточно площади для комфортного проживания, работы и отдыха большим семьям.
- Грамотное распределение комнат: три спальни и три санузла — оптимальное количество для обеспечения уединения и удобства.
- Двухэтажная планировка: делит дом на дневную и ночную зоны, что улучшает организацию пространства.
- Компактные размеры: 10x14 м — оптимальный размер для большинства участков, позволяющий сохранить место для озеленения и других построек.
- Доступная стоимость: 9 миллионов рублей за такой объем работ и качество — выгодное предложение на современном рынке.
Сочетание всех этих факторов делает данный проект привлекательным как для молодых семей, так и для тех, кто планирует строительство дома для постоянного проживания или в качестве дачи повышенного комфорта.
Как выбрать участок для строительства дома 10x14 м?
Для комфортного возведения двухэтажного дома размером 10 на 14 метров необходимо учитывать не только технические параметры самой конструкции, но и особенности земельного участка. Несмотря на то, что минимальные размеры участка не указаны в проекте, можно выделить несколько важных рекомендаций.
Во-первых, участок должен иметь достаточную площадь, чтобы дом не выглядел тесным, а вокруг него оставалось место для зоны отдыха, сада или других необходимых построек. Для дома размером 10х14 метров рекомендуется участок не менее 15 метров в ширину и 20-25 метров в длину.
Во-вторых, рекомендуется обратить внимание на рельеф и тип грунта, ведь от этого зависит как удобство строительства, так и затраты на укрепление фундамента. Равнинная территория с устойчивыми грунтами существенно снижает стоимость и сроки возведения дома.
Также важно обеспечить удобный подъезд к участку для техники, безопасное расположение коммуникаций, а также наличие солнечной инсоляции, что позитивно скажется на энергопотреблении и уюте внутри дома.
Основные этапы строительства двухэтажного дома 280 м²
Строительство двухэтажного дома площадью 280 квадратных метров — это сложный и многоступенчатый процесс, требующий тщательной подготовки и последовательного выполнения всех работ. Рассмотрим основные этапы, которые позволят добиться качественного и долговечного результата.
Подготовительный этап
На этом этапе оформляется проект, проводится выбор участка, осуществляется земляные работы, а также делается разметка под фундамент. Важно тщательно подготовить площадку, вывезти все лишнее и обеспечить доступ техники.
Заливка фундамента
Фундамент — основа любого дома. Для двухэтажного строения площадью 280 м² чаще всего используется ленточный армированный фундамент, обеспечивающий устойчивость и равномерное распределение нагрузки. Этот этап требует высокого качества материалов и профессионального подхода.
Возведение стен и перекрытий
Наружные и внутренние стены строятся из материалов, выбранных по проекту — газобетон, кирпич или пеноблоки. Перекрытия между этажами обеспечивают прочность и безопасность конструкции. Особое внимание уделяется утеплению и гидроизоляции для повышения энергоэффективности.
Кровельные работы
Крыша защищает дом от атмосферных воздействий и является важной составляющей энергоэффективности. Выбор и монтаж кровельного материала проводится с учётом климатических условий и архитектурного стиля дома.
Отделочные работы
Внутренняя отделка делает дом комфортным и стильным. Она включает штукатурку, покраску, настил полов, установку сантехники и электроприборов. В этой стадии выбираются декоративные решения, которые задают общий характер интерьера.
Подведение коммуникаций
От корректного подключения водопровода, отопления, электросетей и канализации зависит удобство проживания. Монтаж инженерных систем сопровождается тестированием и наладкой оборудования, что гарантирует безопасность и надежность эксплуатации.
Рекомендации по дизайну и отделке дома 280 м²
Выбор стиля и отделочных материалов — один из завершающих, но не менее важных этапов строительства. Правильно подобранный дизайн подчеркнёт архитектурные особенности дома и позволит создать гармоничное пространство для жизни.
Какие рекомендации следует учитывать при оформлении интерьера и экстерьера дома 10х14 м?
Внешний вид дома
- Фасады: сочетание светлых и тёмных оттенков, декоративных элементов из натурального камня или дерева создаёт респектабельный вид.
- Окна: большие современные окна с энергосберегающими стеклопакетами обеспечат интерьеру свет и визуальное расширение пространства.
- Кровля: классическая или современная, формирует силуэт дома и влияет на его стиль.
Внутренний дизайн
Зонирование комнат с комфортной мебелью и эргономичной подсветкой создаст атмосферу уюта. Для отделки стен подходят натуральные материалы или экологически чистые краски, а полы могут быть выполнены из дерева или керамической плитки.
Важно предусмотреть хранение вещей и бытовую функциональность — встроенные шкафы в спальнях и прихожей, удобную кухню и просторную столовую.
Советы по эксплуатации и уходу за двухэтажным домом 10x14 м
После завершения строительства и заселения важно уделять внимание регулярному уходу за домом, чтобы сохранить его эксплуатационные качества и продлить срок службы всех конструкций.
- Проверка кровли: ежегодная инспекция позволит выявить и устранить повреждения, предохраняя дом от протечек и промерзания.
- Обслуживание инженерных систем: своевременный ремонт отопления, водопровода и электрики предотвратит возможные аварии и убережёт от больших затрат.
- Уход за фасадом: очистка и обновление декоративных покрытий защитит стены от неблагоприятных погодных условий.
- Вентиляция и влажность воздуха: регулярное проветривание и использование воздухоочистителей создаёт здоровый микроклимат внутри дома.
Внимательное отношение к дому на каждом этапе эксплуатации поможет сохранить вложенные средства и создаст условия для комфортной и долгой жизни в новом жилье.













