Обзор проекта двухэтажного дома 15х9 с площадью 245 м²
Строительство собственного дома — важный и ответственный шаг, к которому необходимо подходить с максимальной тщательностью. Особое внимание уделяется не только выбору участка и конструкции, но и грамотной планировке внутреннего пространства, которая обеспечит комфорт всей семье. В данном материале мы рассмотрим проект двухэтажного дома с размерами 15 на 9 метров и общей полезной площадью 245 м², цена которого составляет 8 133 836 рублей. Такой дом оптимально подойдет для семьи из 3-5 человек, благодаря рациональному распределению комнат и функциональной организации пространства.
Общая планировка предусматривает две полноценных жизни зоны — на первом и втором этажах, что создает удобство при эксплуатации и позволяет организовать личное пространство для каждого члена семьи. Наличие четырёх спален делает данный проект особенно привлекательным для семей с детьми или тех, кто часто принимает гостей.
Плюсы и ключевые характеристики дома 15x9 м
Размеры дома 15 на 9 метров – это классический прямоугольник, который обеспечивает максимально эффективное использование площади. Данный габарит облегчает выбор готовых материалов и технологий, а также снижает расходы на фундамент и кровлю.
Полезная площадь в 245 квадратных метров — это более чем достаточно для комфортного проживания в доме с двумя этажами. При средней жилищной норме на человека порядка 25-30 м², это позволяет иметь как общие зоны для семьи, так и личные комнаты для каждого.
Кроме того, стоимость проекта в 8 133 836 рублей является вполне конкурентной в сегменте коттеджного строительства. Цена учитывает все основные работы по возведению и отделке дома, что делает предложение особенно привлекательным для заказчиков, ориентирующихся на качество и удобство.
Преимущества двухэтажной планировки
Двухэтажные дома традиционно считают отличным решением для тех, кто хочет максимально использовать небольшой или средних размеров участок земли, не распыляясь на чрезмерно большую площадь застройки. Вертикальное расположение жилых и вспомогательных помещений позволяет не только сэкономить площадь участка, но и разделить зоны по функциональному назначению.
Как правило, первый этаж в подобных проектах предназначается для общественных зон — кухни, гостиной, столовой, рабочего кабинета. Второй этаж отводится для приватных зон — спален и санузлов. Таким образом достигается психологический комфорт и оптимальное распределение повседневных процессов.
Планировка и функциональные зоны
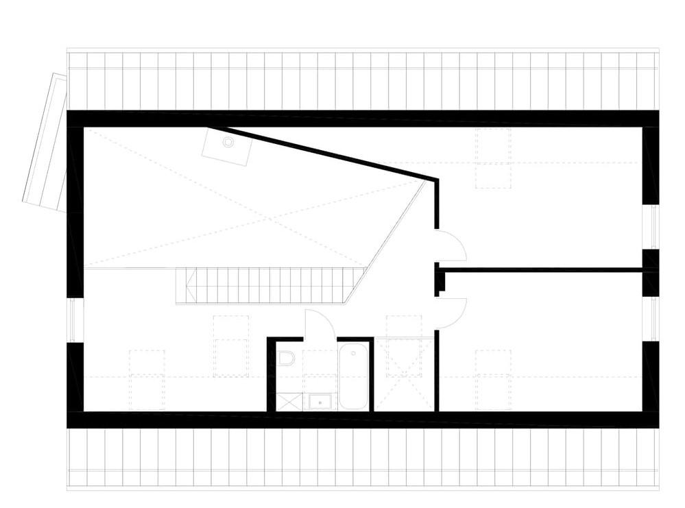
Основной особенностью данного дома является наличие четырех спален, что говорит о продуманной планировке с учетом потребностей современной семьи. Четыре спальни позволяют организовать детские комнаты для каждого ребенка, гостевую спальню, а также выделить отдельное пространство для родителей. Такая структура значительно повышает независимость и обеспечивает личное пространство.
Количество и размещение санузлов
В доме предусмотрено два санузла, что отвечает минимальным требованиям комфорта многолюдной семьи. Наличие по крайней мере двух санузлов позволяет избежать утренних очередей и создать более удобный режим пользования водными ресурсами. Первый санузел обычно находится на первом этаже, вблизи гостевой зоны, второй — на втором этаже рядом со спальнями.
Это также хорошо сказывается на гигиене и общей функциональности помещения, особенно тогда, когда проживает 4 и более человек.
Материалы и технологии строительства для дома 15х9
Выбор стройматериалов является одним из важнейших этапов планирования. Для коттеджей с площадью около 245 м² оптимальным вариантом зачастую становятся газобетонные блоки, кирпич или каркасные технологии с облицовкой. Они обеспечивают достаточную прочность, теплоизоляцию и долговечность дома.
Каждая технология имеет свои преимущества. Кирпич гарантирут надежность и высокую огнестойкость, газобетон выгодно отличается по теплоизоляционным характеристикам и цене, каркасные методы весьма быстры в возведении и позволяют существенно сэкономить на фундаменте.
Особенности фундамента при размере 15 х 9 метров
Площадь дома 135 м² (15м × 9м) в плане требует прочного и устойчивого фундамента. Оптимальным будет ленточный фундамент, который равномерно распределит нагрузку по всей периметру дома. Такой тип основания обеспечивает долговечность, а при правильной гидроизоляции минимизирует риск протечек и промерзания.
При наличии двух этажей нагрузка увеличивается, поэтому глубина заложения должна быть выбрана с учетом типа грунта и климатических условий региона. Важно обращаться к профессионалам для проведения геологических изысканий.
Поэтапное строительство и примерная смета
Для бюджетного управления проектом строительства двухэтажного дома площадью 245 м² основное внимание уделяется грамотному планированию этапов строительства и контролю исполнения. Стоимость около 8 миллионов рублей (8 133 836 руб.) включает все основные работы и материалы, но конечно, каждая смета — индивидуальна.
Этапы строительства
- Подготовка участка и разметка. Включает очистку территории, выравнивание, разметку по проекту.
- Заливка фундамента. Ключевой этап для будущей надёжности строения.
- Возведение стен первого и второго этажей. Использование выбранного материала, установка окон и дверей.
- Кровельные работы. Своевременная защита дома от осадков и воздействий окружающей среды.
- Внутренняя отделка. Электрика, сантехника, утепление и отделочные работы.
- Финишное благоустройство и сдача объекта.
Примерная смета на строительство двухэтажного дома 15х9
| Наименование работы | Стоимость (руб.) | Примечание |
|---|---|---|
| Подготовительные работы и земельные работы | 400 000 | Разметка, вывоз мусора, очистка участка |
| Фундамент и гидроизоляция | 1 200 000 | Ленточный фундамент с гидроизоляцией |
| Строительство стен | 3 200 000 | Материал газобетон + отделочные работы |
| Кровельные работы | 700 000 | Покрытие кровли и утепление |
| Инженерные сети и коммуникации | 900 000 | Сантехника, электрика |
| Отделочные работы внутри дома | 1 600 000 | Штукатурка, покраска, установка дверей и окон |
| Итого | 8 000 000 - 8 200 000 |
Практические советы при выборе и строительстве дома 15х9 с 4 спальнями
Так как дом с четырьмя спальнями предполагает проживание нескольких членов семьи, важно продумать планировку с учетом удобства и эргономики. Зонирование пространства значительно повысит качество жизни и позволит избежать конфликтов из-за нехватки личного пространства.
Также стоит учитывать вопросы отопления и энергосбережения. Дом такого размера требует продуманной системы отопления и хорошей теплоизоляции стен и окон, чтобы обеспечить комфорт в зимние месяцы и экономию бюджета на коммунальных услугах.
Что важно предусмотреть при планировке
- Обустройство просторной кухни-гостиной, объединяющей ряд функциональных зон.
- Наличие хотя бы одного небольшого рабочего кабинета или зоны для взрослых.
- Расположение санузлов максимально приближено ко всем спальням.
- Соразмерные размеры спален для обеспечения комфорта и гармонии.
- Учёт перспектив расширения или перепланировки в будущем.
Рекомендации по внешнему облику дома
Внешний вид дома играет важную роль не только в эстетике, но и в привлечении интереса потенциальных жильцов или гостей. Несмотря на то, что проект не предусматривает гараж или террасы, современный внешний дизайн можно подчеркнуть декоративными элементами фасада, качественной отделкой стен и цветовой гаммой.
Выбор светлых гладких штукатурок, натурального камня или декоративного кирпича позволит дому выглядеть современно и стильно. Окна с энергосберегающими стеклопакетами с тонкими рамами обеспечат изящество и максимум естественного света внутри.
Почему дом 15x9 - 245 м² — выгодное вложение
Проект напрямую ориентирован на тех, кто хочет получить просторный, качественный и удобный дом с оптимальным соотношением цена-качество. Благодаря рациональной планировке и продуманным деталям постройки, такой дом может стать местом комфортного проживания на многие годы.
Инвестиции в дом подобного типа оправданы не только с точки зрения комфорта, но и перспективы роста стоимости недвижимости. Хорошо спроектированный и построенный двухэтажный дом с четырьмя спальнями отвечает современным требованиям жилищного рынка и может стать полноценным капиталом для семьи.




















