Введение в проект двухэтажного дома 15х10 метров с площадью 250 м²
Планирование строительства загородного дома – процесс ответственный и требующий глубоких знаний не только о строительных технологиях, но и о том, как объединить комфорт и функциональность в одном проекте. Двухэтажный дом размером 15х10 метров с общей полезной площадью 250 м² – это оптимальное решение для семей, которые ценят пространство и уют, но при этом хотят получить разумное соотношение цены и качества.
В данной статье мы подробно рассмотрим все ключевые аспекты этого проекта, выделим его преимущества, расскажем о внутренней планировке и тонкостях строительства. Кроме того, мы разберём стоимость реализации, что позволит будущим домовладельцам сделать выбор осознанно и подготовиться к важному этапу своей жизни – строительству собственного дома.
Размеры и этажность дома 15х10: оптимальный выбор для семьи
Размеры здания 15 метров в длину и 10 метров в ширину создают идеально продуманную прямоугольную форму дома. Такое решение не только эстетично смотрится на участке, но и позволяет максимально рационально использовать внутреннее пространство. Два этажа – идеальная высота, чтобы вместить все необходимые жилые зоны, не занимая слишком много места в ширину и длину участка.
Двухэтажные дома востребованы как для города, так и для пригорода, так как они позволяют создать полноценное пространство, сохраняя при этом участок для сада, бассейна или детской площадки. Важно отметить, что при габаритах 15х10 м полезная площадь по проекту составляет ровно 250 м², что обеспечивает комфортное проживание семьи из 3–5 человек.
Какие преимущества даёт двухэтажный формат дома 15х10?
- Экономия площади участка. За счёт вертикального расположения помещений можно сэкономить до 40–50% площади застройки по сравнению с одноэтажным аналогом.
- Зонирование пространства. Первый этаж отлично подходит для общих зон — гостиной, кухни, столовой, а второй — для приватных, таких как спальни и кабинеты.
- Оптимизация инженерных коммуникаций. Водопровод, отопление и электрика проще прокладывать и обслуживать в вертикально организованном доме.
- Возможность красивой архитектуры. Отделка фасадов и формы крыши легко варьируются, создавая уникальный внешний вид дома.
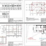
Планировка и функциональные зоны: 3 спальни и 2 санузла на 250 м²
Одной из важных характеристик комфортного дома является грамотное распределение жилых и технических помещений. В проекте двухэтажного дома 15х10 м предусмотрено три спальни, что идеально подходит для семьи с детьми. Каждая из спален располагается на втором этаже, что гарантирует тишину и уединение.
Полезная площадь дома – 250 квадратных метров — позволяет сделать комнаты не просто "гнездами", а полноценными территориями отдыха и творчества. Из них можно выделить просторные главную спальню с гардеробной, детские комнаты, а также кабинет для работы.
Особенности санузлов в проекте
В доме предусмотрено два санузла. Это оптимальное количество для дома такого размера. Один санузел обычно располагается на первом этаже для гостей и общего пользования, а второй – на втором этаже, рядом со спальнями. Такое размещение значительно облегчает повседневную жизнь и снимает напряжение в утренние часы.
Распределение помещений в двухэтажном доме 15х10
| Этаж | Помещение | Назначение | Примерная площадь (м²) |
|---|---|---|---|
| Первый этаж | Гостиная | Общая зона для отдыха и приёма гостей | 40–45 |
| Первый этаж | Кухня-столовая | Приготовление и приём пищи | 25–30 |
| Первый этаж | Холл, коридоры | Связь между зонами и вход | 20 |
| Первый этаж | Санузел | Гостевой и вспомогательный | 5–6 |
| Второй этаж | Спальни (3 шт.) | Личные комнаты жильцов | 50–60 суммарно |
| Второй этаж | Второй санузел | Семейный/личный | 7–8 |
| Второй этаж | Кабинет/игровая | Зона для работы или досуга | 25–30 |
Стоимость строительства дома 15х10 площадью 250 м²: полный разбор
Разбираясь в финансовой стороне проекта, важно понимать, как формируются затраты на строительство дома такого размера. Общая стоимость строительства дома 15x10 м с полезной площадью 250 м² по проекту составляет 9 155 595 рублей. Этот показатель включает в себя все основные этапы, такие как подготовительные работы, закупка материалов, возведение строительных конструкций, монтаж инженерных систем и отделочные работы.
Стоимость также сбалансирована: проект ориентирован на хозяев, которые хотят получить продуманный, прочный дом, без излишеств, но и без экономии на качестве. Такой подход обеспечивает и экономию, и долговечность объекта.
Как формируется итоговая стоимость дома?
Стоимость возведения двухэтажного дома складывается из множества компонентов. Ниже представлена таблица с основными статьями бюджета, которые влияют на итоговую цену в 9 155 595 рублей.
| Статья расходов | Описание | Примерная доля в цене (%) | Примерная сумма (руб.) |
|---|---|---|---|
| Подготовительные работы | Рытье котлована, выравнивание участка, фундамент | 15 | 1 373 339 |
| Строительные материалы | Кирпич, бетон, арматура, дерево, утеплители | 35 | 3 204 358 |
| Работы по строительству | Возведение стен, перекрытий, крыши | 25 | 2 288 899 |
| Инженерные системы | Отопление, водоснабжение, электрика | 15 | 1 373 339 |
| Отделочные работы | Внутренняя и внешняя отделка, покрытия полов | 10 | 915 559 |
Что влияет на увеличение или снижение стоимости?
- Выбор материалов. Натуральный камень и премиальные отделочные материалы повышают цену, но делают дом эксклюзивным и долговечным.
- Особенности проектировки. Индивидуальные изменения планировки увеличивают стоимость разработки чертежей и монтажных работ.
- Регион строительства. В удалённых регионах доставка материалов и организация рабочих процессов стоят дороже.
- Опыт подрядчиков. Профессиональные бригады с проверенной репутацией гарантируют качество, что сокращает вероятность переделок и затрат в будущем.
Технические аспекты строительства: что важно знать при возведении дома 250 м²
Строительство дома в два этажа площадью 250 м² требует особого внимания к качеству фундаментных работ и строительных материалов. Именно эти элементы обеспечивают долговечность здания и его безопасности для жильцов.
Фундамент должны закладывать с учётом геологических условий участка и нагрузки от общей площади дома. При стандартных условиях чаще всего выбирается ленточный или свайный фундамент, так как он подходит для большинства типов грунтов и равномерно распределяет вес конструкции.
Конструкционные особенности стен и перекрытий
Для стен выбирают энергоэффективные и надёжные материалы, способные сохранять тепло в зимний период и прохладу летом. Комбинация газоблока с утеплителем, либо классический кирпич с дополнительным теплоизоляционным слоем – одни из самых востребованных вариантов.
Перекрытия между этажами выполняются из ж/б плит или сборных конструкций с деревянными балками. Выбор зависит от бюджета и инженерных решений, но важно обеспечить достаточную прочность и звукоизоляцию.
Кровля и её роль в доме 15х10
Хотя в исходных данных тип крыши и угол наклона не указаны, при проектировании дома с размерами 15х10 м обычно рекомендуют кровлю с умеренным или крутым уклоном. Такая кровля лучше защищает помещение от осадков и облегчает сток воды.
Тип кровельного материала подбирается исходя из климата и бюджета. Металлочерепица, битумная черепица или натуральная черепица – популярные варианты для создания прочной и эстетичной крыши.
Эргономика и комфорт использования дома 15x10 с 3 спальнями и 2 санузлами
Особое внимание в проекте уделено удобству проживания. Два санузла решают проблему очередей в утренние и вечерние часы, а наличие трёх спальных комнат создаёт баланс между приватностью и общением в семье. Кроме того, достаточно просторные общие помещения поддерживают ощущение свободы внутри дома.
Комнаты сна – важная зона для восстановления сил. В проекте можно предусмотреть просторные окна, хорошую звукоизоляцию и продуманную вентиляцию, что значительно повысит качество жизни владельцев.
Важность правильного освещения и вентиляции
В доме площадью 250 м² недостаточно просто установить окна; нужно научиться грамотно использовать естественное освещение и обеспечивать качественный воздухообмен. Для этого проектировщики рекомендуют сочетать большие оконные проёмы с контролируемыми системами вентиляции, которые поддерживают микроклимат и уменьшают затраты на отопление и кондиционирование.
Комфортная зона для семьи и гостей
На первом этаже большое внимание уделено гостиной и кухне-столовой — здесь предполагается самая активная жизнь дома. Просторное помещение позволяет ставить крупную мебель, организовывать зону отдыха, а также устраивать семейные или праздничные мероприятия.
Планирование участка под дом 15х10: советы по размещению и использованию пространства
Оптимальное размещение дома на участке – не менее важный этап, чем сам проект. Для здания 15х10 м рекомендуется участок с минимальными размерами, позволяющими разместить дом с достаточным отступом от границ и зоной для дополнительного использования.
Несмотря на отсутствие гаража в проекте, пространство возле дома может быть использовано под открытый паркинг или беседку. Важно заранее выделить места для проходов, посадок и хозяйственных построек.
Организация ландшафта вокруг дома
- Создание зелёных зон с деревьями и кустарниками для создания микроклимата и уюта;
- Разбивка зоны отдыха – беседка, барбекю, детская площадка;
- Обустройство дорожек и подъездных путей с учётом направления света и комфорта передвижения.
Пример таблицы по минимальным требованиям участка для дома 15х10
| Параметр | Рекомендуемое значение | Комментарий |
|---|---|---|
| Минимальная ширина участка | 20 м | Для размещения дома с отступами по 2–3 м с каждой стороны |
| Минимальная длина участка | 25–30 м | Для обеспечения пространства перед фасадом и задним двором |
| Отступы от границ | 3 м | Соблюдение норм противопожарной безопасности и комфорта |
Подводя итоги: почему дом 15x10 с площадью 250 м² — это умный выбор
Двухэтажный дом площадью 250 квадратных метров размером 15 на 10 метров – это продуманное решение для тех, кто хочет совместить комфорт городской квартиры с преимуществами загородной жизни. Оптимальная планировка с тремя спальнями и двумя санузлами обеспечивает удобство для всей семьи, а разумная стоимость строительства в районе 9 миллионов рублей делает проект доступным для многих.
Кроме того, размер и этажность позволяют экономно использовать участок, оставляя пространство для благоустройства территории. Такой дом станет уютным гнёздышком и надёжной крепостью на многие годы. Правильный выбор материалов и профессиональный подход к строительству гарантируют качество и долговечность.





















