Введение в концепцию двухэтажного дома 15x10 метров площадью 180 м²
Проектирование и строительство частного дома — это всегда захватывающий и ответственный процесс, который требует учета множества факторов: от планировки и выбора материалов до бюджета и функциональности. Сегодня мы рассмотрим популярный и практичный вариант — двухэтажный дом размером 15 на 10 метров с полезной площадью 180 м². Такой дом подходит для семьи из 3-4 человек, обеспечивая комфортное пространство для жизни, отдыха и работы.
Двухэтажная планировка — это идеальное решение, позволяющее рационально использовать участок и дать простор жильцам без необходимости увеличивать площадь застройки. Дом размером 15х10 метров отличается компактностью и удобством, а площадь в 180 м² обеспечивает достаточную свободу для обустройства функциональных и уютных комнат. Ниже мы подробно раскроем преимущества такой конструкции, особенности планировки и ориентировочный бюджет строительства в размере 7 404 070 рублей.
Преимущества двухэтажного дома с размерами 15 на 10 метров
Дом с размерами 15x10 м — это баланс между уютом и функциональностью. Главным преимуществом такой конструкции является возможность разместить все необходимые помещения в пределах компактного периметра, сохранить благоустроенный двор и при этом обеспечить комфортное проживание для всей семьи.
Во-первых, двухэтажный формат позволяет разделить зоны общего доступа и личного пространства. Например, на первом этаже можно расположить гостиную, кухню и санузлы, а на втором — спальни и кабинеты. Это значительно улучшает удобство и улучшает работу всех систем коммуникации, уменьшая необходимость в длинных коридорах.
Во-вторых, при строительстве дома габаритами 15x10 м значительно проще управлять строительными материалами, расходом времени и трудозатратами. Отделочные материалы и инженерные системы можно установить с минимальными затратами, при этом не теряя в качестве.
Оптимальное использование пространства
При габаритах дома 15х10 метров рациональное зонирование играет ключевую роль. Полезная площадь в размере 180 м² позволяет беспроблемно обустроить несколько спален и нескольких санузлов, что особенно ценно для семьи с несколькими детьми или когда в доме сразу проживает несколько поколений.
Размещение трех спален делает такой дом удобным для семейных людей, а наличие четырех санузлов значительно повышает комфорт и снижает очереди в утренние часы. Такое количество санузлов также крайне удобно для приема гостей и создания отдельной зоны для хозяйственных задач.
Планировка дома 15x10 м: функциональность и комфорт
Планировка дома — это ключевой момент. Именно она задает уровень комфорта и уют, создавая основу для правильного распределения пространства. В доме с габаритами 15 на 10 метров проектировщики обычно придерживаются нескольких базовых принципов: четкое разделение общественной и приватной зон, удобство перемещения между помещениями и многофункциональность комнат.
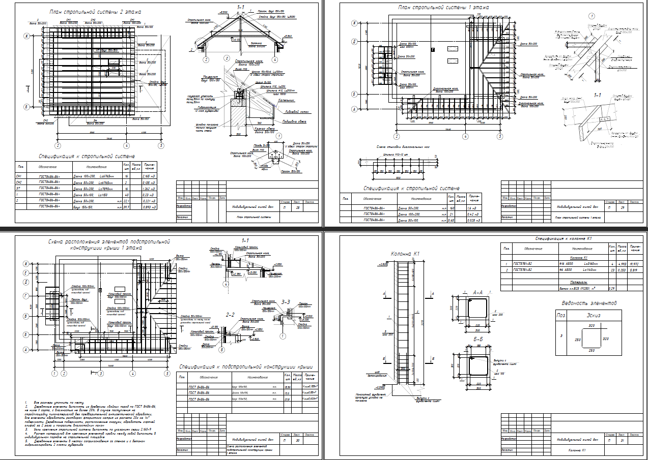
Первый этаж: социальные функции и инженерные помещения
Первый этаж часто отводится под общие помещения: гостиную, кухню, столовую, технические помещения и возможно кабинет. При суммарной площади первого этажа около 90 м² можно достаточно свободно расположить все необходимые элементы для комфортной семейной жизни.
Основные помещения на первом этаже включают:
- Гостиная: просторная зона для приема гостей и семейных встреч;
- Кухня-столовая: открытая планировка позволяет максимально использовать свет и пространство;
- Санузел: наличие санузла на первом этаже удобно как для жителей, так и для гостей;
- Технические помещения: зона под котельную, постирочную или кладовую;
- Прихожая и коридоры: достаточно просторные для комфортного перемещения.
Второй этаж: зона приватных помещений и отдыха
Второй этаж ориентирован на создание уюта и уединения. Здесь принято располагать спальни и дополнительные санузлы. Три спальни, предусмотренные в проекте, обеспечивают комфорт всем членам семьи, а четыре санузла позволяют избежать очередей и дискомфорта.
Нередко в проекте предусматривают небольшие гардеробные комнаты и зоны для организации работы или учебы втечение дня. Важно, чтобы комнаты имели хорошее естественное освещение — это улучшает общее восприятие пространства и повышает качество жизни.
Особенности строительства и инженерные системы
При строительстве дома площадью 180 м² с двумя этажами очень важно грамотно подобрать конструктивные решения и инженерные системы, так как от этого напрямую зависит долговечность здания, комфорт и энергоэффективность.
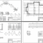
Фундамент и несущие конструкции
Ввиду размеров дома и его двухэтажной конфигурации рекомендуется использовать ленточный или свайно-ростверковый фундамент, который обеспечит надежность и достаточную несущую способность. От выбора фундамента также зависят особенности будущих отделочных работ и стоимость этапа строительства.
В качестве несущих конструкций используют каркас из железобетона или клееного бруса, в зависимости от бюджета и предпочтений заказчика. Каркасные конструкции позволяют значительно ускорить срок строительства и уменьшить вес здания.
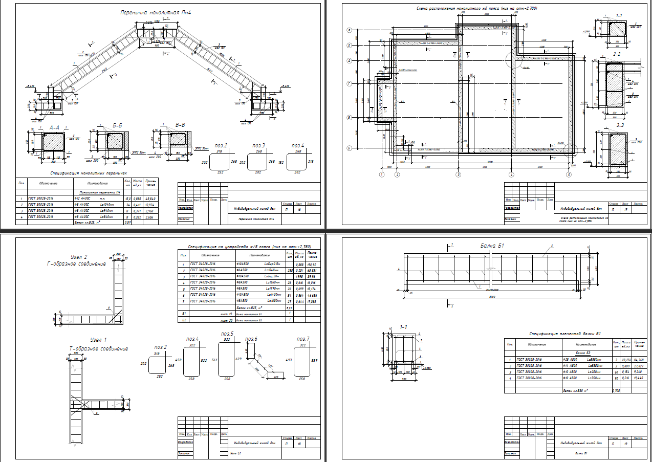
Кровля и утепление
Хотя данные о типе крыши и ее угле наклона в проекте отсутствуют, важно обеспечить качественную теплоизоляцию дома. С учетом площади в 180 м² использование современных утеплительных материалов позволит существенно сократить расходы на отопление в холодный период. Кроме того, выбор надежной кровельной системы обеспечивает защиту от осадков и сводит к минимуму вероятность протечек.
Инженерные коммуникации
В доме с четырьмя санузлами схема прокладки водоснабжения и канализации требует особого внимания. Рекомендуется продумать разводку таким образом, чтобы снизить теплопотери, обеспечить полноценный водообмен и избежать конфликтов между водой холодной и горячей подачи.
Электроснабжение должно отвечать потребностям всех бытовых приборов, включая системы освещения, нагревателей и кондиционеров. Для экономии электроэнергии часто используют умные системы управления и LED-светильники.
Бюджет строительства: стоимость дома 15х10 м за 7 404 070 рублей
Стоимость строительства дома является одним из ключевых факторов при принятии решения. Предлагаемый бюджет в размере 7 404 070 рублей за двухэтажный дом размером 15 на 10 метров с общей полезной площадью 180 м² является разумным и конкурентным на современном рынке частного строительства.
Разбивка основных статей затрат
| Статья затрат | Процент от бюджета | Сумма (руб.) | Комментарий |
|---|---|---|---|
| Фундамент и несущие конструкции | 25% | 1 851 017 | Качественный фундамент и каркас |
| Стены и наружные работы | 30% | 2 221 221 | Кладка, утепление, отделка фасада |
| Кровля | 10% | 740 407 | Материалы и монтаж |
| Инженерные системы | 20% | 1 480 814 | Водоснабжение, канализация, электрика |
| Внутренняя отделка и отделочные материалы | 15% | 1 110 610 | Штукатурка, покраска, напольные покрытия |
Такая разбивка затрат позволяет выделить приоритетные задачи и планировать работы поэтапно. В зависимости от индивидуальных предпочтений заказчика и специфики участка все позиции могут варьироваться, но в целом данные цифры отражают средние рыночные значения.
Важность тщательного планирования бюджета
Подход к планированию бюджета должен быть системным. Опытный строительный специалист всегда рекомендует включать в смету не только прямые расходы на материалы и работы, но и скрытые затраты, например, на проектирование, получение разрешений, непредвиденные ситуации. Это обеспечивает спокойствие и контроль на всех этапах возведения дома.
Выбор участка для дома 15x10 метров
При проектировании дома размерами 15 на 10 метров крайне важно учитывать размеры участка и его расположение. Несмотря на то, что конкретные минимальные размеры участка не были указаны, есть несколько базовых рекомендаций, которые помогут избежать ошибок и создать комфортное пространство не только внутри дома, но и на придомовой территории.
Расположение дома на участке
Дом с шириной 10 метров требует у участка минимум 15-18 метров по ширине, чтобы соблюсти нормы отступов до соседних строений и обеспечить удобный подъезд. По длине участок может быть более протяженным — 25-30 метров. Такие параметры позволяют сформировать зону для площадки отдыха, посадки зеленых насаждений, установки малых архитектурных форм.
Зонирование и ландшафтный дизайн
Участок рядом с домом важно обустроить максимально комфортно — сделать зону барбекю, детскую площадку или беседку. При наличии террасы или балкона (хотя в нашем проекте они отсутствуют) такие зоны получают естественное продолжение, но и без них можно создать уютную атмосферу с помощью продуманного ландшафтного дизайна.
Какие строительные материалы оптимальны для дома 15x10 180 м²?
Выбор строительных материалов зависит от бюджета, климата и предпочтений к внешнему облику дома. Для дома площадью 180 м² сегодня популярны материалы, обеспечивающие высокую энергоэффективность и долговечность.
Кирпич и бетон
Классический вариант — использование керамического кирпича и монолитного бетона. Они обеспечивают хорошую теплоизоляцию, звуконепроницаемость и прочность. Срок службы таких зданий измеряется много десятилетиями.
Дерево и каркасные технологии
Современные каркасные дома из клееного бруса или панелей позволяют существенно сократить время строительства, снизить стоимость и при этом получить теплое и экологичное жилье. Подобные технологии идеально подходят для домов среднего класса и позволяют быстро реализовать проект 15x10 м.
Технологии утепления
При любой технологии строительства особое внимание уделяется утеплению стен, пола и крыши. Эффективный теплоизоляционный слой состоит из минеральной ваты, пенополистирола или эковаты, что гарантирует оптимальный микроклимат в доме и снижает затраты на отопление.
Энергосбережение и современные технологии в доме 180 м²
Современные частные дома немыслимы без применения энергоэффективных решений, которые позволяют экономить ресурсы и создавать комфортную среду для проживания. Двухэтажный дом параметрами 15 на 10 метров отлично подходит для внедрения таких технологий.
Системы отопления и вентиляции
Автоматические системы отопления на базе газовых котлов или тепловых насосов обеспечивают комфорт и экономию энергии. Вентиляционные системы с рекуперацией тепла помогают поддерживать чистый воздух без значительных теплопотерь, что особенно важно в больших домах с несколькими санузлами.
Умный дом
Интеграция систем "умный дом" становится нормой для современных построек площадью около 180 м². Управление освещением, климатом, системой безопасности через мобильное приложение позволяет повысить уровень комфорта и повысить энергоэффективность.
Энергоэффективное освещение и техника
Использование LED-ламп и энергоэффективной бытовой техники снижает расходы на электроэнергию и снижает воздействие на окружающую среду. Планирование электрических сетей с учетом этих особенностей — важная часть современного проекта.
Заключение: почему стоит выбрать такой дом
Двухэтажный дом 15х10 метров с полезной площадью 180 м² — это сочетание комфорта, функциональности и разумной цены. Такой дом обеспечивает большое количество жилого пространства на сравнительно небольшой площади застройки, хорошо подходит для семьи в 3-5 человек и предусматривает все необходимые удобства, включая несколько санузлов и комнат для отдыха.
Бюджет строительства в размере около 7,4 миллиона рублей — это разумные инвестиции, учитывающие как качество материалов и работ, так и современные стандарты энергоэффективности. Основываясь на опыте и рекомендациях, такой проект будет отвечать всем требованиям для создания удобного и надежного семейного жилья.


















