Введение в стиль Райта: одноэтажный дом 11x11 с площадью 137 м2
Современное строительство частных домов неразрывно связано с поиском идеального баланса между эстетикой, функциональностью и комфортом. Одним из самых популярных и впечатляющих архитектурных направлений по сей день остается стиль Фрэнка Ллойда Райта — американского архитектора, который сумел переосмыслить идею жилья, гармонично вписывающегося в природную среду. Дом в стиле Райта 144 — это воплощение лучших традиций этого архитектурного направления, выполненное в форме одноэтажного строения размером 11 на 11 метров и площадью 137 квадратных метров.
Данный проект представляет собой оптимальное решение для тех, кто ценит лаконичность и комфорт в каждой детали. Компактные размеры дома идеально подходят для семей из трех-пяти человек, предлагая в то же время просторное внутреннее пространство и продуманную планировку. В нашем подробном обзоре вы найдете все ключевые особенности этого дома, узнаете о его архитектурных деталях, преимуществах и тонкостях строительства.
Архитектурные особенности дома в стиле Райта
Стиль Райта отличает стремление к органичному единству с природой. Этот принцип реализован не только в внешнем облике домов, но и во внутренней планировке, использовании натуральных материалов и цветовой гамме.
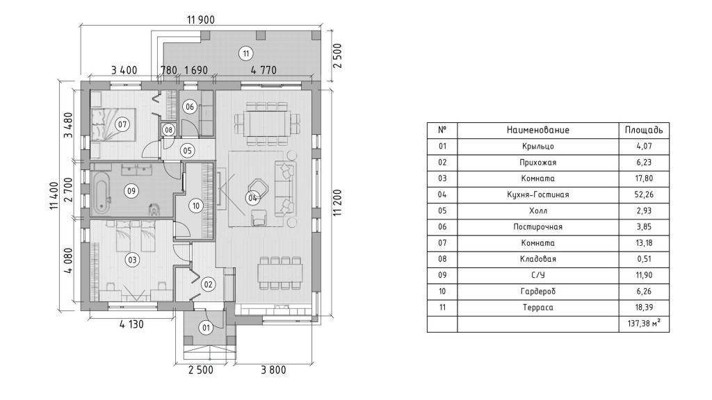
Важно отметить, что дом имеет строгую, но при этом элегантную геометрию — габариты 11 на 11 метров делают его квадратным. Это способствует рациональному распределению жилого пространства без лишних коридоров и узких переходов. Одноэтажность здания придает дому ощущение простора и удобства, что особенно важно для семей с детьми и пожилыми людьми.
Элементы дизайна, характерные для стиля Райта
В архитектуре дома четко прослеживаются следующие ключевые элементы стиля Райта:
- Низкая горизонтальная линия крыши, которая визуально "прижимает" дом к земле и создает ощущение защищенности.
- Натуральные материалы в отделке фасада, часто имитирующие камень, дерево и кирпич.
- Большие окна, которые максимально раскрывают внутреннее пространство на окружающий пейзаж и обеспечивают естественное освещение.
- Открытая планировка, где комната становится продолжением природы через террасы или сад, даже если террас в данном проекте нет.
Даже без наличия отдельных террас дом "дышит" за счет панорамных окон и правильного расположения внутренних помещений, что является характерной чертой для архитектуры Райта.
Планировка дома: комфорт и функциональность
Дом в стиле Райта 144 занимает площадь в 137 м² и выполнен в одноэтажной конструкции, что уже само по себе отражает стремление к простоте и удобству. Габариты 11 на 11 метров позволяют сформировать грамотное распределение комнат и зон без чрезмерного перегруза пространства.
Количество и расположение спален
В доме предусмотрены две спальни, что является оптимальным вариантом для семьи из трех-четырех человек. Обе комнаты имеют достаточно места для размещения двуспальной кровати, шкафов и прочей мебели. Благодаря продуманной планировке спальни находятся на противоположных сторонах дома, что обеспечивает максимальную приватность и комфорт жильцам.
Санузлы и хозяйственные помещения
Дом оборудован одним санузлом. Несмотря на то, что для некоторых наличие всего одного санузла может показаться недостаточным, следует помнить, что грамотная планировка и использование современных сантехнических решений позволяет сделать этот единственный санузел функциональным и удобным для повседневного использования всей семьи. Внутренняя отделка санузла выполнена в спокойных тонах с акцентом на качество материалов и практичность.
Общая жилая зона и кухня
Обширное пространство общей комнаты позволяет объединить гостиную и кухню, что создает ощущение открытого пространства и способствует лучшей коммуникации в семье и с гостями. Большие окна и открытые планировочные решения подчеркивают связь с природой, что является также одной из отличительных черт стиля Райта.
Преимущества одноэтажного жилого дома 11x11 м
Выбор одноэтажного дома — решение, которое имеет сразу несколько серьезных преимуществ как с практической, так и с экономической точки зрения. Рассмотрим более подробно почему именно такой формат конструкции заслуживает вашего внимания.
Удобство и безопасность
Одноэтажный дом предоставляет легкий доступ ко всем помещениям без необходимости использования лестниц. Это особенно актуально для семей с маленькими детьми, пожилыми членами семьи или людей с ограниченными физическими возможностями. Также сокращается риск травм, связанных с падениями на лестнице.
Экономическая эффективность
Строительство одноэтажного дома зачастую обходится дешевле, чем многоэтажных аналогов, если рассматривать общую стоимость материалов и трудозатраты. В случае с домом в стиле Райта 144 сумма строительства составляет 7 370 425 рублей, что для площади 137 м² является конкурентоспособным предложением при высоком качестве и стильном дизайне.
Энергосбережение и вентиляция
Одноэтажные здания легче обогревать и охлаждать - тепло распределяется равномернее, а вентиляция может быть спроектирована более эффективно. Это сказывается на стабильности микроклимата внутри дома и снижает затраты на коммунальные услуги.
Цена строительства и состав затрат
Цена строительства дома в стиле Райта 144 площадью 137 м² с габаритами 11×11 м составляет 7 370 425 рублей. Данная стоимость включает в себя все основные этапы: от фундамента и стен до кровли и внешней отделки. Чтобы понять, из чего складывается эта сумма и как она распределяется, рассмотрим ключевые категории затрат.
| Статья затрат | Описание | Процент от стоимости |
|---|---|---|
| Фундамент | Устройство прочного основания с соблюдением технологии и учётом грунтовых особенностей участка | 15% |
| Конструкция стен | Материалы (кирпич, блоки, дерево), утепление и кладка | 30% |
| Крыша | Каркас, кровельное покрытие и гидроизоляция | 20% |
| Окна и двери | Изготовление и монтаж энергоэффективных окон и входных дверей | 10% |
| Внутренние работы | Штукатурка, отделка, сантехника, электрика | 15% |
| Прочие расходы | Проектные работы, доставка материалов, административные расходы | 10% |
Таким образом, предложение по цене строительства дома в стиле Райта является твердым примером разумного вложения в комфортное, стильное и современное жилье.
Выбор материалов и технологии строительства
Важной составляющей успешного строительства дома в стиле Райта является подбор качественных и экологически чистых материалов. Это способствует долговечности здания и поддерживает концепцию гармоничного взаимодействия с природой.
Материалы для стен и отделки
Для возведения стен в данном проекте широко применяются натуральный камень, дерево и высококачественные керамические блоки. Наружная отделка дома выполнена с применением материалов, которые хорошо противостоят воздействию атмосферных факторов и сохраняют эстетичный внешний вид на долгие годы.
Утепление и энергоэффективность
Для однолетнего дома особенно важно сохранить тепло в зимний период и прохладу летом. Использование современных утеплителей позволяет снизить теплопотери и сократить расходы на отопление. Многие заказчики также выбирают энергосберегающие окна с тройным стеклопакетом и специальными покрытиями, что в дополнение к качественному утеплению создает комфортные условия независимо от температуры наружного воздуха.
Кровельные решения
Несмотря на отсутствие указания типа крыши в параметрах, в доме в стиле Райта, как правило, применяется плоская или с небольшим уклоном крыша, которая подчеркивает минимализм и горизонтальное расположение здания. Для покрытия выбираются долговечные и экологичные материалы - металлочерепица, гибкая черепица или современные мембраны.
Планировка комнат и зонирование
Умение рационально распределить пространство является ключевым для одноэтажного дома площадью 137 м2. Правильная планировка позволяет обустроить комфортное и эргономичное пространство для жизни и отдыха.
Жилая зона
Основное пространство дома занимает совмещенная гостиная с кухней-столовой, что обеспечивает удобное взаимодействие членов семьи и гостей. Большие окна визуально расширяют комнату и позволяют наслаждаться природой изнутри. Разумное размещение мебели и техники позволяет сохранить свободную зону для отдыха и общения.
Спальные комнаты
Две спальни размещены так, чтобы гарантировать тишину и уединение для каждого из жильцов. Вторая комната может быть оснащена в качестве детской, кабинета или гостевой, что дает дополнительную гибкость использования помещений.
Санузел
Один санузел спроектирован с учетом максимального функционала, включающий ванну или душевую кабину, умывальник и туалет. Важным аспектом является удобный доступ из любой части дома.
Возможности использования и адаптации дома под ваши нужды
Дом в стиле Райта 144 можно адаптировать под разные жизненные ситуации и требования. Проект отличается гибкостью и позволяет изменять внутренние планировочные решения с учетом личных предпочтений без ущерба стилю и целостности архитектуры.
- Дополнительные опции: включение камина в гостиной, установка теплых полов, оснащение умным домом.
- Размещение хозяйственных помещений: выделение места для гардеробной зоны, кладовки или технического помещения.
- Перепланировка санузла: возможность расширения или создания второго санузла при необходимости.
Даже без гаража, предусмотренного в проекте, можно обустроить удобные парковочные места рядом с домом или подумать о постройке навеса, сохраняя при этом чистую и аккуратную территорию.
Выводы: дом в стиле Райта 144 – выбор современной семьи
Одноэтажный дом размером 11х11 метров и площадью 137 квадратных метров – это решение, которое объединяет в себе лучшее из функциональности, эстетики и экономической разумности. Стиль Райта придает дому неповторимый характер, подчеркивая стремление к гармонии с природой и современными стандартами комфорта.
Стоимость строительства в 7 370 425 рублей делает этот проект доступным вариантом для тех, кто ценит качество и инновации в архитектуре. Простота и удобство одноэтажного решения, продуманная планировка с двумя спальнями и одним санузлом создают идеальные условия для жизни семьи любой конфигурации. Такой дом обеспечит не только уют и безопасность, но и станет предметом гордости для своих владельцев благодаря уникальному стилю и современным технологиям.







