Введение в проект «Дом 112»: одноэтажный комфорт и простор
Проект «Дом 112» представляет собой идеальное решение для тех, кто мечтает о просторном, функциональном и одновременно элегантном одноэтажном доме. Общая полезная площадь в 282 квадратных метра при габаритах 10 на 21 метр позволяет воплотить в жизнь самые смелые задумки по созданию семейного гнезда, где каждый член семьи будет чувствовать себя максимально уютно и свободно.
Одноэтажные дома всегда ценились за удобство и практичность – отсутствуют лестницы, что облегчает передвижение, особенно для пожилых людей и маленьких детей. В сочетании с большими размерами и грамотной планировкой, «Дом 112» раскрывает потенциал именно такого подхода к строительству загородной недвижимости. В этой статье мы полностью погрузимся в особенности данного проекта, разберём планировку, конструктивные решения и преимущества, которые помогут сделать выбор именно в пользу этого дома.
Общая концепция и габариты: как размеры создают комфорт
Размер дома 10x21 м – это классический прямоугольник, который отлично вписывается в многие типы загородных участков. Общая полезная площадь в 282 м² даёт достаточное пространство для зонирования дома на дневную и ночную части, а также для размещения всех необходимых функциональных помещений. Ограничение высоты в один этаж приносит дополнительные плюсы, начиная от быстроты строительства и заканчивая удобством эксплуатации.
Для наглядности ниже приведена сравнительная таблица, в которой мы сравним основные параметры типовых одноэтажных домов с размерами, близкими к 10x21 м.
| Параметр | Проект «Дом 112» | Типовой дом 8x20 м | Типовой дом 12x18 м |
|---|---|---|---|
| Общая площадь, м² | 282 | 160 | 216 |
| Этажей | 1 | 1 | 1 |
| Спален | 3 | 3 | 4 |
| Санузлов | 3 | 1 | 2 |
Как видно, проект «Дом 112» значительно превосходит типовые дома по общей размере и количеству санузлов, что положительно сказывается на удобстве для многодетной семьи или совместного проживания нескольких поколений.
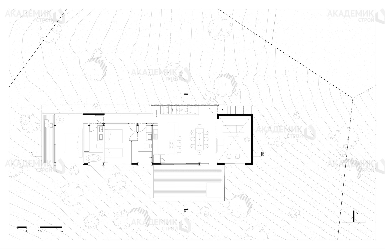
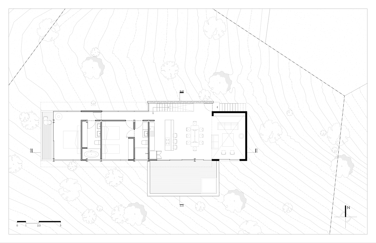
Планировка и функциональные зоны одноэтажного дома 10х21
Большой смысл в проектировании дома площадью свыше 280 м² заключается в грамотном распределении функциональных зон между дневной и ночной частью. В одноэтажном доме важно не только удобство, но и логичность перемещения внутри помещений, а также возможность уединения при сохранении связи со всеми членами семьи.
Три спальни: индивидуальность и комфорт для каждого
Три спальни – ответ на потребность семьи в личном пространстве для каждого. Вариации здесь могут быть достаточно широкими: от детских комнат до родительской спальни с гардеробной зоной. Важно, что все спальни могут мерно располагаться на удалении от шумной гостиной зоны, создавая атмосферу спокойствия и отдыха.
Три санузла: свобода выбора и приватность
Наличие трёх санузлов – это редкость даже для больших домов. Такой подход значительно сокращает утренние очереди и дает чувство личного комфорта. При этом можно организовать один санузел при гостиной или гостевой зоне, а остальные – при спальнях. Это практичная и удобная схема, которая востребована в семьях с разным графиком и большим количеством членов.
Общая гостиная и кухня: сердце дома
Проект «Дом 112» позволяет объединить гостиную, столовую и кухню в просторное общее пространство. Это открытая планировка, которая идеально подходит для семейных встреч и встреч с друзьями. Большие окна, направленные на участок, наполняют дом светом и создают ощущение единения с природой, что особенно ценно в загородном доме.
Конструктивные особенности и строительные материалы
Выбор строительных материалов и конструктивных решений напрямую влияет на эстетические, эксплуатационные и энергоэффективные характеристики дома. Для дома с полезной площадью 282 м² важно обеспечить надёжность и долговечность конструкции при оптимальной стоимости.
Общие рекомендации для домов такого типа включают:
- Каркасные или кирпичные стены – в зависимости от климата и бюджета;
- Утепление с применением современных материалы, таких как минеральная вата или пенополиуретан;
- Кровля с учётом нагрузки снега и осадков (особенно важно в регионах с холодным климатом);
- Качественные оконные конструкции с многофункциональными стеклопакетами для снижения теплопотерь;
- Современные вентиляционные и отопительные системы, гарантируя комфорт в любое время года.
В проекте «Дом 112» заложены параметры, которые позволяют снизить тепловые потери, что при крупных площадях очень важно для поддержания экономичной эксплуатации дома.
Принципы энергоэффективности
При строительстве и проектировании одноэтажного дома большого размера ключевым аспектом становится энергосбережение. Энергоэффективный дом позволяет сэкономить средства на отоплении и кондиционировании, что особенно актуально в условиях переменчивого климата.
Большое значение имеют:
- Толщина и состав ограждающих конструкций;
- Герметичность окон и дверей;
- Использование современных систем автоматизации;
- Рациональная ориентация дома по сторонам света;
- Защита от излишнего солнечного нагрева летом.
Эти нюансы оптимально учтены в проекте, что выгодно выделяет его на фоне многих других вариантов.
Стоимость строительства: бюджет и планирование расходов
Цена в 8 919 678 рублей для дома площадью 282 м² – это реалистичный ориентир, отражающий совокупность расходов на строительные работы, материалы и инженерное оснащение. Очень важно понимать, что такой бюджет является базовым и может меняться в зависимости от региональных особенностей, выбранных материалов и подрядчиков.
Структура расходов на строительство дома
В общей простейшей схеме расчетов можно выделить следующие статьи затрат:
- Фундаментные работы – в среднем 10-15% от бюджета;
- Возведение стен – 30-40% расходов, зависит от материала (кирпич, блоки, дерево);
- Кровельные работы – около 10%;
- Отделочные работы – 15-20%, включая внутреннюю отделку, инженерные системы и электрику;
- Ландшафт и благоустройство участка (при необходимости).
| Статья затрат | Доля в бюджете (%) | Примерная сумма (руб.) |
|---|---|---|
| Фундамент | 12 | 1 070 361 |
| Стены | 35 | 3 121 887 |
| Кровля | 10 | 891 968 |
| Отделка и инженерия | 30 | 2 675 903 |
| Непредвиденные расходы | 13 | 1 158 558 |
Такая разбивка позволяет планировать финансовые потоки и реализовать проект с минимальными рисками перерасхода.
Почему стоит выбрать одноэтажный дом площадью 282 м²?
Многие потенциальные владельцы земельных участков задумываются, какой формат дома будет наиболее удобен и выгоден. Одноэтажные дома с большой площадью – явление, заслуживающее особого внимания ввиду целого ряда преимуществ.
Преимущества одноэтажного дома
- Удобство эксплуатации. Отсутствие лестниц облегчает доступ для всех категорий жильцов – от детей до пожилых людей.
- Бесперебойное зонирование. Все помещения находятся на одном уровне, что облегчает коммуникации и планировку инженерных сетей.
- Энергоэффективность. При правильной организации дом меньшего объёма по сравнению с двухэтажным аналогом удобнее отапливать и кондиционировать.
- Возможность максимального использования наружной территории. Площадь земельного участка можно рационально обустроить, используя близость к дому.
Особенности большой площади в одноэтажном доме
Общая площадь 282 м² позволяет реализовать не только стандартный набор жилых комнат, но и дополнительные пространственные решения – кабинет, гостевую комнату, просторный холл и даже зону отдыха с сауной или тренажёрным залом. Все эти опции делают дом максимально функциональным, отвечая всем современным требованиям к загородному жилью.
Как правильно организовать участок под дом 10x21 м?
Для комфортного размещения дома с размерами 10 на 21 метр важно учитывать размеры и рельеф земельного участка. Хотя минимальные требования к размерам участка зависят от местных нормативов, для такого дома обычно рекомендуется иметь участок не менее 15x25 метров, чтобы обеспечить достаточное пространство для хозяйственных построек и зон отдыха.
Основные рекомендации по организации территории
- Обозначьте границы хозяйственной зоны с возможностью размещения гаража или навеса (если будет необходимость дополнительно построить такие сооружения).
- Выделите место для сада или зоны барбекю с учётом ориентации дома относительно солнца.
- Предусмотрите дорожки и подъездные пути, не загружая при этом основной фасад дома.
- Обратите внимание на озеленение, которое станет естественным ограждением и обеспечит приватность.
Грамотный подход к ландшафтному дизайну поможет раскрыть потенциал дома и всего участка, создавая единое комфортное пространство для жизни и отдыха.
Функциональный и стильный одноэтажный дом: ключевые преимущества проекта
Одноэтажный проект с большой полезной площадью строится не только вокруг площади и количества комнат, но и вокруг качества и гармонии внутреннего пространства. На этапе проектирования команда архитекторов и инженеров уделяет особое внимание созданию проектов, отражающих современные стандарты комфорта и капитального строительства.
В идеале, такой дом должен объединять несколько важных аспектов:
- Эргономику и рациональность. Каждая комната продумана для активного и комфортного использования вне зависимости от времени суток;
- Комфортную приватность. Зоны отдыха и рабочие пространства отделены от главных общественных зон;
- Безопасность и надежность. Конструктивные решения позволяют пережить любые климатические условия и времени года;
- Современный дизайн. Эстетика фасада, грамотное зонирование наружных окон и входных групп создают привлекательность и статус жилья.
Выводы по проекту «Дом 112»
Подведённый итог по проекту одноэтажного дома площадью 282 м² с габаритами 10x21 м и тремя спальнями демонстрирует, что это решение идеально для большой семьи, которая ценит удобство, простор и функциональность. Разумное соотношение цены и качества, продуманная планировка и базовая инженерия делают этот проект привлекательным в современном загородном строительстве.
Этот дом открывает возможности для воплощения самых смелых архитектурных и интерьерных решений, позволяя сделать семейное гнездо по-настоящему комфортным и уникальным. Если вы находитесь в поисках моделей домов, ориентированных на практичность и качество, проект «Дом 112» станет отличным выбором.























