Обзор одноэтажного дома АС-204 — идеальное решение для семьи
Одноэтажный дом 9х8 метров – это классический формат жилой недвижимости для тех, кто ценит комфорт, функциональность и удобство. Проект АС-204 площадью 139 м² представляет собой сбалансированное решение, которое подойдёт как молодой семье, так и тем, кто предпочитает простоту и практичность. Дом построен на одном этаже, что особенно удобно для пожилых людей и семей с маленькими детьми, так как позволяет избежать неудобств, связанных с лестницами и перемещениями в пространстве.
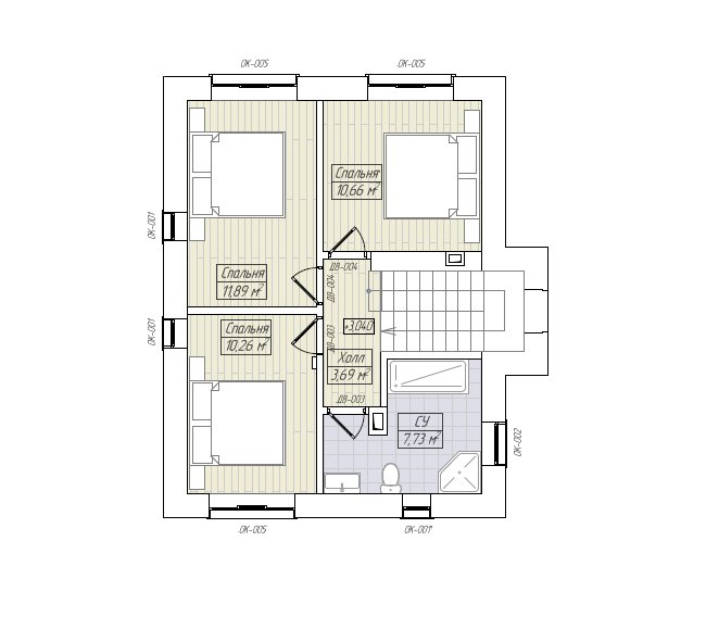
Уникальность проекта заключается в рациональном использовании площади, предусмотрено три спальни и два санузла, что делает планировку продуманной и комфортной. В статье мы подробно рассмотрим все ключевые параметры дома АС-204, его преимущества и перспективы для разных категорий жильцов.
Основные характеристики дома АС-204
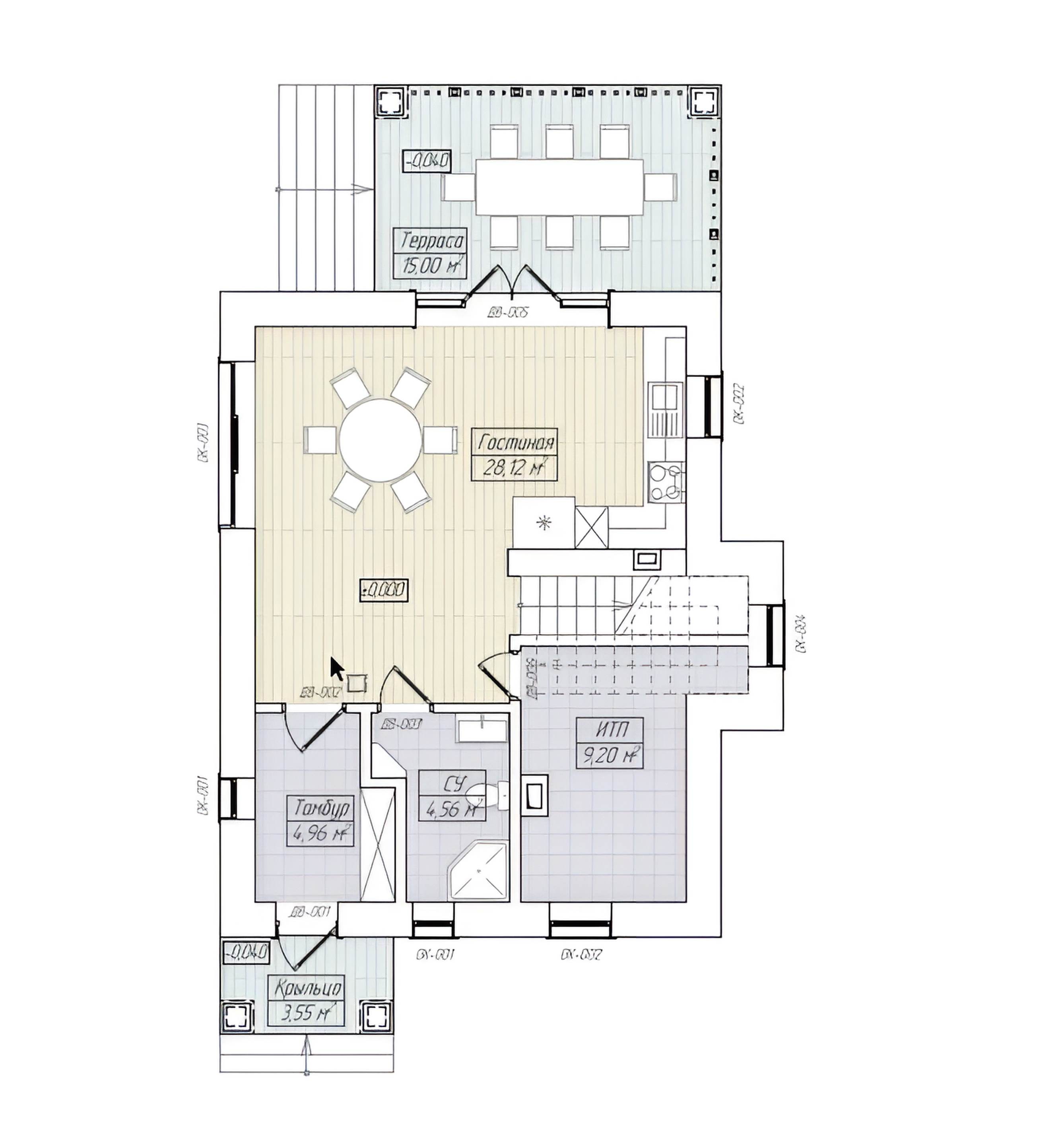
Размеры дома и площадь жилого пространства становятся базой для оценки его функционала и удобства. Дом АС-204 имеет габариты 9 на 8 метров, что обеспечивает достаточное пространство для комфортного проживания и создания уюта.
| Параметр | Значение |
|---|---|
| Полезная площадь | 139 м² |
| Размеры дома | 9 x 8 м |
| Этажей | 1 этаж |
| Количество спален | 3 |
| Количество санузлов | 2 |
Размеры дома позволяют спроектировать удобные и просторные комнаты, при этом сохранить уют и ощущение домашнего тепла. Одноэтажная конструкция упрощает коммуникации и значительно снижает затраты на строительство и отделку по сравнению с домами в два и более этажей.
Преимущества одноэтажных домов
Одноэтажные дома традиционно популярны своей универсальностью. Они удобно размещаются на небольших участках, обеспечивают безбарьерное пространство, что особенно актуально для пожилых людей и маленьких детей с безопасностью на первом плане. Кроме того, обслуживание одноэтажного дома обходится дешевле, чем многоэтажного с лестницами и лестничными площадками, поскольку меньше нуждается в укреплении, отделке и регулярном контроле технического состояния лестниц.
Также одноэтажные конструкции обычно отличаются более низкими теплопотерями, поскольку отсутствует внутренняя вертикальная циркуляция воздуха, что способствует стабильному микроклимату внутри помещений. В помещение легко проникать солнечному свету благодаря продуманному расположению окон.
Планировка и грамотное использование пространства
Три спальни и два санузла — оптимальное решение для семьи из четырёх-пяти человек или для тех, кто часто принимает гостей. Это позволяет создать комфортные условия для каждого члена семьи, предоставив личное пространство и одновременно сохранив общие зоны для общения и отдыха.
Спальные зоны: комфорт и приватность
В доме организованы три спальни, что немаловажно для обеспечения уюта и приватности. Каждая из комнат может быть оформлена с учётом индивидуальных предпочтений жильцов — будь это детская, гостиная спальня или кабинет для работы из дома. Наличие спальни для каждого члена семьи позволяет эффективно избежать конфликта пространства и создаёт благоприятные условия для отдыха и восстановления.
Два санузла — важный плюс для семейного комфорта
Два санузла значительно облегчают утренние и вечерние процедуры для всех жителей дома, что особенно важно в семьях с несколькими членами. Один из санузлов может быть совмещён с ванной комнатой, второй — организован как гигиеническая зона с душевой кабиной и унитазом. Это повышает удобство использования дома и улучшает повседневный комфорт всей семьи.
Этапы строительства дома АС-204
Строительство дома АС-204 начинается с подготовки участка и организации фундамента, затем возводятся несущие стены, загружается кровля и проводится внутренняя отделка. Приведём подробный обзор основных этапов строительства, чтобы вы лучше понимали, как реализовать проект устойчивого и комфортабельного дома.
Подготовка участка и фундамент
Выбор участка и его подготовка — первый значимый шаг. Размеры участка должны соответствовать габаритам дома, а также правилам землепользования. Для эффективной эксплуатации строения требуется ровная, хорошо дренированная поверхность. Далее заливается фундамент, который служит основой всей конструкции, и от качества его выполнения зависит долговечность дома.
Возведение стен
Для одноэтажного дома обычно используют кирпич, газобетон или дерево. Каждый материал имеет свои преимущества — кирпичные стены обеспечивают прочность и долговечность, газобетон отлично удерживает тепло и обеспечивает превосходную звукоизоляцию, деревянные конструкции создают комфортный микроклимат. Изготовление стен и установка окон проводится с учётом всех строительных норм и технологий.
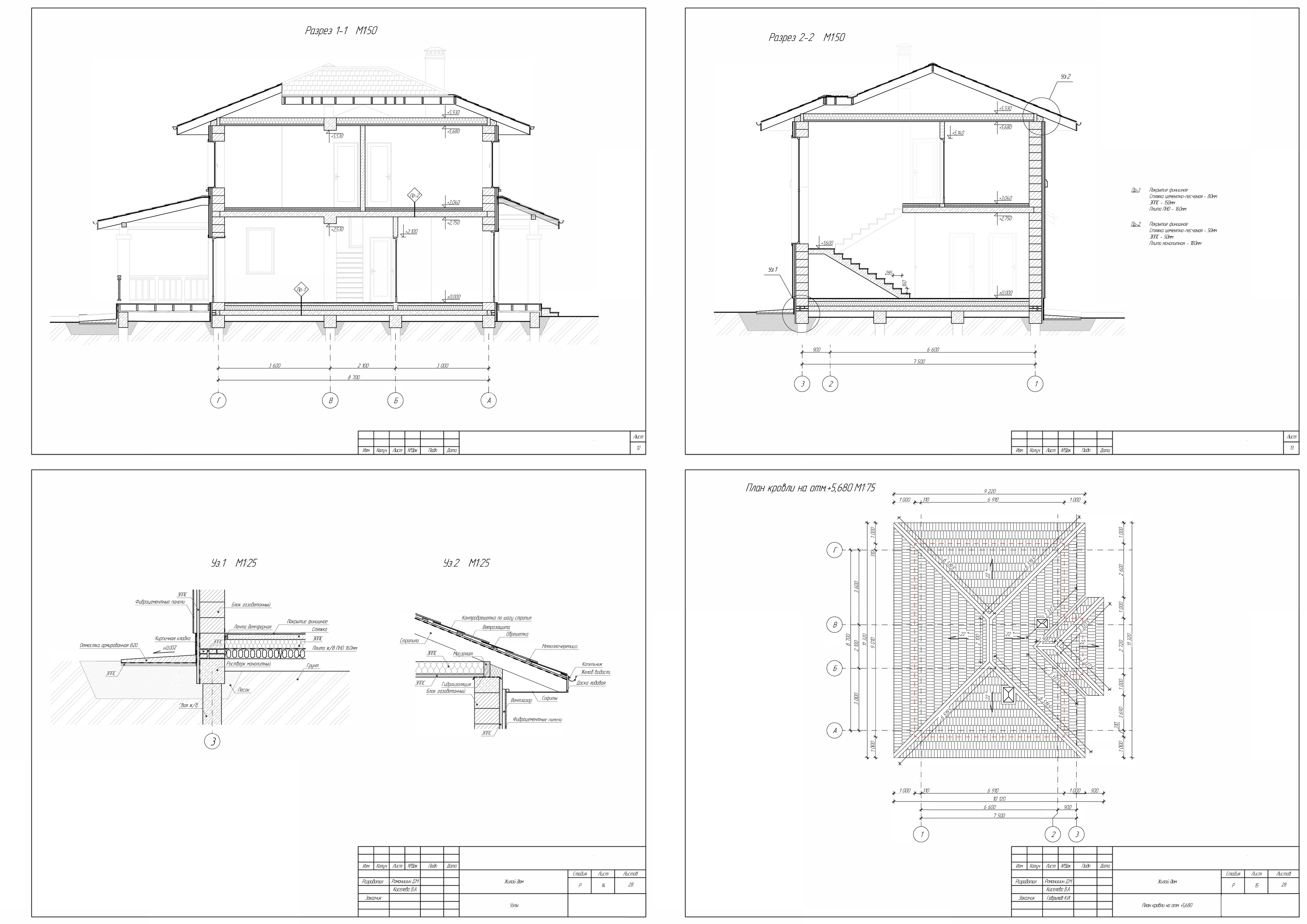
Кровля и изоляция
Кровля — важнейшая часть дома, она защищает от осадков и гарантирует теплоизоляцию. Для одноэтажных домов чаще всего выбирают двускатную или плоскую крышу. Хотя в проекте АС-204 параметр типа крыши не указан, опыт показывает, что наклонные крыши оптимальны для регионов с обильными снегопадами. Гидроизоляция и теплоизоляция крыши обеспечивают защиту от потери тепла и образования плесени, что продлевает срок службы дома.
Внутренняя отделка и коммуникации
После возведения стен и установки крыши переходят к прокладке коммуникаций: электричества, водопровода, канализации и отопления. Одноэтажный дом упрощает выполнение этих работ, поскольку все системы легко достигаются и обслуживаются. Внутренняя отделка помещений подбирается с учётом стиля и пожеланий жильцов — от классики до модерна.
Преимущества проекта АС-204 при сравнении с аналогами
На современном рынке строительства большое количество проектов частных домов, но АС-204 выделяется рядом особенностей, которые делают этот дом привлекательным.
Таблица сравнения параметров дома АС-204 с другими одноэтажными домами аналогичной площади
| Параметр | АС-204 | Средний аналог |
|---|---|---|
| Площадь, м² | 139 | 130-140 |
| Количество спален | 3 | 2-3 |
| Санузлы | 2 | 1-2 |
| Размеры дома (м) | 9 x 8 | 8 x 9, 10 x 8 |
| Этажность | 1 этаж | 1 этаж |
| Цена, руб. | 5 749 069 | 5 000 000 - 6 000 000 |
Данный проект отличается оптимальным соотношением площади, количества спален и санузлов, что делает его универсальным для различных задач жилья. Цена в 5 749 069 руб. является конкурентоспособной в сегменте домов данного размера и качества исполнения.
Экономическая выгода и функциональность
При выборе проекта для строительства большую роль играют не только эстетика и комфорт, но и экономическая составляющая. Дом АС-204 оптимизирован для снижения затрат на отопление, техническое обслуживание и ремонт благодаря рациональной планировке и технологичным материалам. Одноэтажное решение упрощает все работы и сокращает время строительства, что дополнительно снижает бюджет.
Практические советы по обустройству дома АС-204
После строительства дома важно уделить внимание его внутреннему обустройству, чтобы создать максимально удобное и уютное пространство для жизни. Ниже представлены рекомендации, которые помогут оптимизировать пространство и сделать дом ещё более комфортным.
Зонирование пространства
Планировка с тремя спальнями и двумя санузлами предоставляет возможность четко разделить дом на приватные и общественные зоны. Рекомендуется расположить спальни в отдалении от гостиной и кухни, что обеспечит тишину и покой в спальнях. Санузлы следует распределить так, чтобы они были максимально удобны для всех жителей.
Выбор мебели и расстановка
Для рационального использования пространства предпочтительно выбирать компактную, но функциональную мебель. Например, в спальнях можно использовать встроенные шкафы и откидные кровати для экономии места. В гостиной стоит установить зону отдыха с диванами и креслами, а также столовую зону с достаточным количеством сидячих мест для приёмов гостей.
Освещение и вентиляция
Поскольку дом одноэтажный, очень важно продумать систему естественного и искусственного освещения. Окна должны быть расположены так, чтобы максимизировать дневной свет, а в темное время суток — использовать энергоэффективные осветительные приборы с теплым светом. Вентиляционная система обеспечит циркуляцию воздуха и комфортный микроклимат для всех помещений.
Стоимость строительства и инвестиционная привлекательность
Цена дома АС-204 - 5 749 069 рублей является обоснованной находкой для рынка частного домостроения. Стоимость учитывает качество материалов, трудозатраты и современные технологии строительства. При анализе стоимости также важно учесть экономию в период эксплуатации, поскольку энергоэффективные дома позволяют значительно уменьшить расходы на отопление летом и зимой.
Инвестиционная привлекательность дома состоит в том, что хорошо продуманный одноэтажный дом сохраняет высокую ликвидность на рынке недвижимости. Такая недвижимость востребована и у арендаторов, и у покупателей, что гарантирует хорошие перспективы при перепродаже или сдаче в аренду.
Факторы влияния на итоговую стоимость
- Используемые материалы и технологии строительства.
- Расходы на внутреннюю отделку и инженерные системы.
- Расположение и подготовка участка.
- Дополнительные работы, включая ландшафтный дизайн.
Правильное планирование и выбор подрядчиков поможет избежать дополнительных расходов и задержек в строительстве, что положительно отразится на общей стоимости и качестве реализации проекта АС-204.
Заключение
Дом АС-204 — это современный, практичный и комфортный вариант для тех, кто ищет качественное одноэтажное жильё площадью 139 м². Проект ориентирован на семейное проживание с максимальной функциональностью благодаря трём спальням и двум санузлам. Размеры дома 9 на 8 метров позволяют эффективно использовать пространство, обеспечивая удобство и уют.
Реализация данного проекта – гарантия экономии на строительстве, удобства эксплуатации и комфортного проживания в течение многих лет. Если вы рассматриваете строительство дома с оптимальным соотношением цена-качество и функциональность, АС-204 — достойный выбор, который обладает всеми качествами современного частного дома.













/3448078536.jpg)
/4094213133.jpg)
/3816007758.jpg)
/2266154375.jpg)
/2422854084.jpg)
/2850352385.jpg)
/3198155074.jpg)